Een vrijstaand woonhuis uit 2005 van circa 145 m² - uit te breiden naar zo’n 170 m² - met een zonnige achter- en zijtuin op het gewilde Steigereiland. De woning heeft twee bouwlagen en is uitermate geschikt als familiehuis. De begane grond heeft veel lichtinval, een gezellige open keuken en een royale woonkamer met een schuifdeur naar de tuin. Op de eerste verdieping zijn drie ruime slaapkamers en de trap die naar het dakterras leidt. Momenteel is er parkeerplek voor twee auto’s naast de woning en indien nodig kan de berging verschoven worden om plaats te maken voor het vergroten van de tuin of creëren van extra parkeerruimte. Een belangrijke troef is de heerlijk zonnige en groene tuin met fruitbomen, leilinden en rododendronstruiken, waar elk jaar weer vogels nestelen.

Design visie
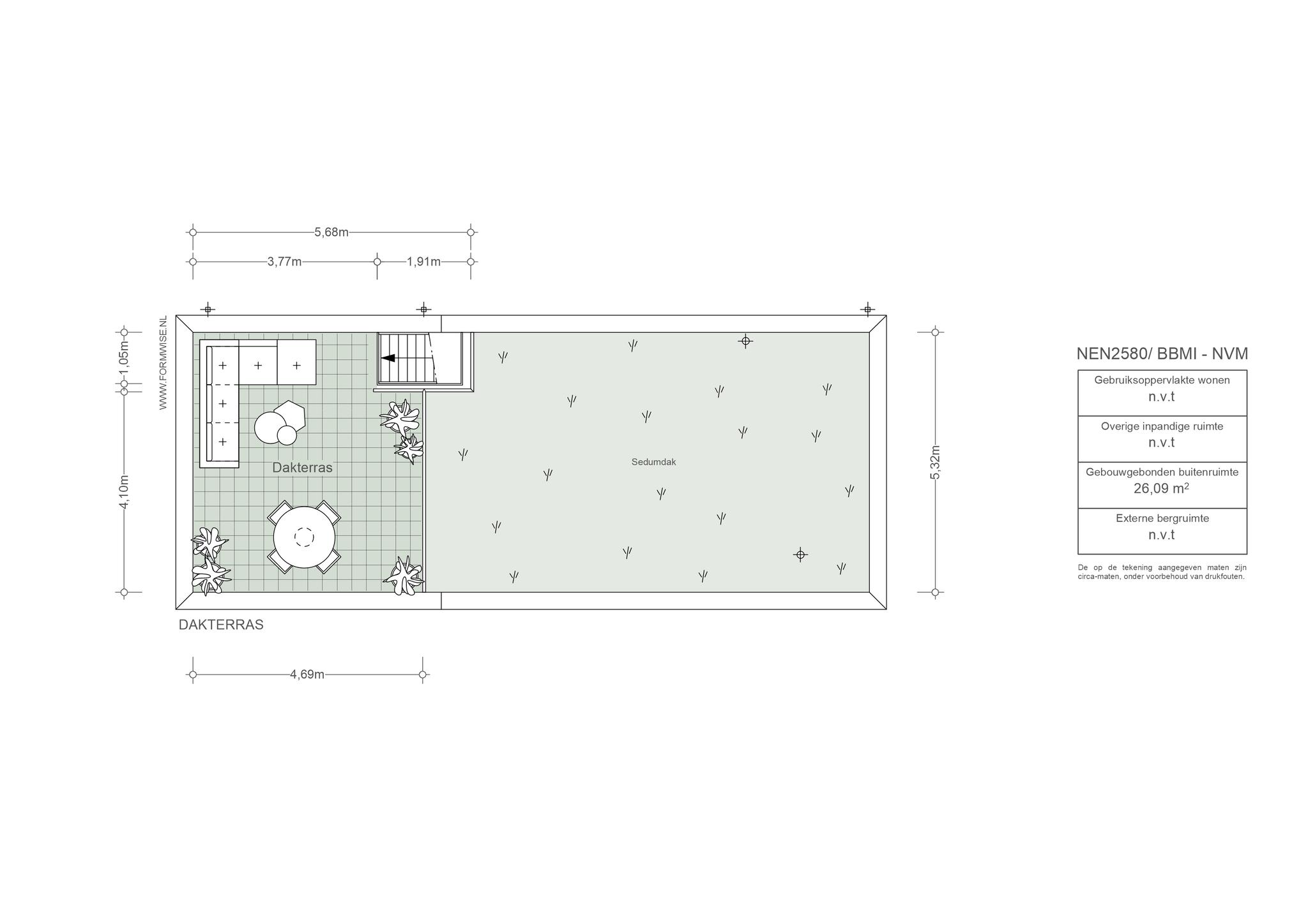
Architect Julius Bosma ontwierp dit woonhuis genaamd ‘Riant’, met ‘less is more’ als uitgangspunt. Dit devies vertaalt zich in de functionele opzet van de woning met weldadig licht. De gevel is opgetrokken in twee kleuren baksteen: zandkleur aan de achterzijde en rood aan de voorzijde. De begane grond is ingedeeld voor de functies wonen en koken. Op de verdieping zijn drie slaapkamers en een ruime badkamer. En dan is er nog een fijn dakterras van ongeveer 25 m², te bereiken via een stalen trap. Het overige dakvlak is onlangs, in 2022, door een groendakspecialist voorzien van een sedum-bedekking. Dit groene dak zorgt voor extra verkoeling in de zomer, absorbeert regenwater én bevordert de biodiversiteit.

De rondleiding
Entree in hal met gastentoilet en trapkast voor bergruimte. De open keuken is gelegen aan de voorzijde en voorzien van diverse inbouwapparatuur. De lichte woonkamer aan de achterzijde is met een brede schuifdeur verbonden met de tuin. Op deze verdieping ligt een eikenhouten vloer.
De tuin ligt rondom de woning, waardoor er sprake is van een voor-, achter- en zijtuin.
Het woonhuis staat aan de linkerzijde van het perceel zodat waardoor er in de zijtuin voldoende ruimte is om de auto te parkeren.
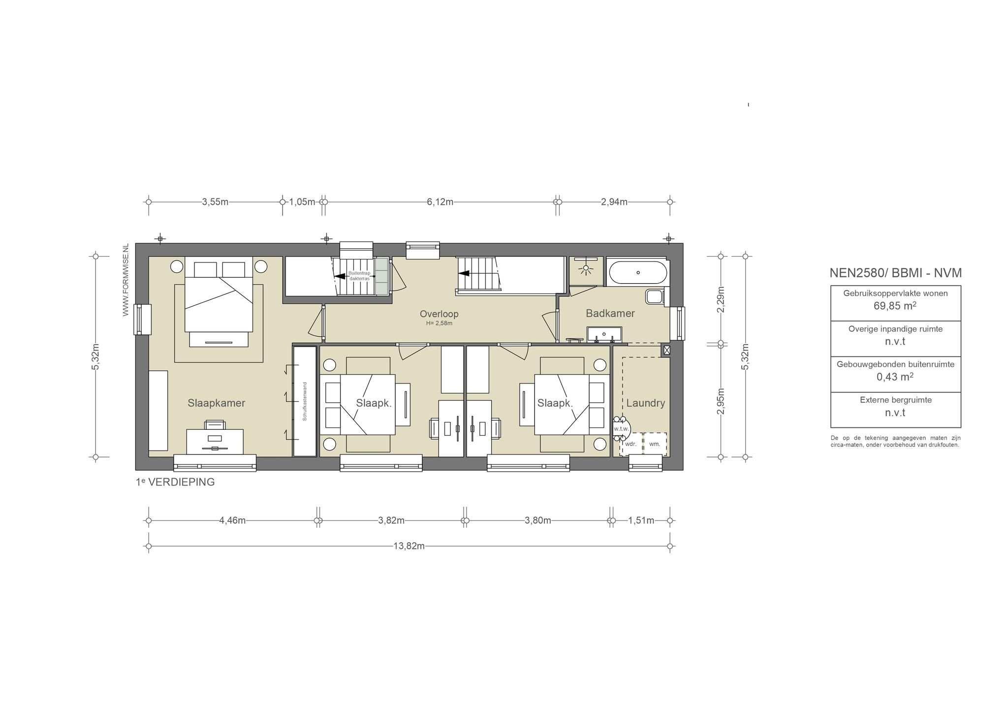
Op de eerste verdieping zijn drie slaapkamers. Aan de voorzijde bevindt zich de praktisch ingerichte badkamer, met een ligbad, inloopdouche, wastafel en toilet. Het royale dakterras is te bereiken via een trap achter een deur op de overloop.

De omgeving
De woning ligt op het Steigereiland, het eerste eiland na de brug naar IJburg. In een omgeving die zich kenmerkt door veel zelfbouwkavels, vrijstaande woningen en breed opgezette straten. Vlakbij, op Haveneiland-West aan de IJburglaan, is een winkelcentrum waar alle dagelijkse boodschappen verkrijgbaar zijn, maar waar evengoed leuke delicatessenwinkels zijn voor speciale gelegenheden.

De bereikbaarheid
Het woonhuis is uitstekend bereikbaar met zowel eigen vervoer en openbaar vervoer. Op de IJburglaan om de hoek zijn verschillende tram- en bushaltes. Op 14 minuten fietsen ligt station Amsterdam Science Park en Amsterdam Centraal Station is bereikbaar met de tram.

De parkeergelegenheid
Er kan geparkeerd worden naast de woning. Momenteel is voorzien in twee parkeerplaatsen voor auto’s. De schuur kan worden verschoven zodat de parkeerplaats kan worden verklein en het tuingedeelte vergroot als er extra plek nodig is.

Wat de bewoners gaan missen
“Wij zijn enorm gesteld op de heerlijke tuin die het huis heeft. Op elk moment van de dag van de zon kunnen genieten, of het nou voor het huis is, op het dakterras of in de achtertuin.”

De bijzonderheden
• Gebruiksoppervlakte wonen circa 145 m², uit te breiden naar 170 m²
• Parkeren op eigen terrein met voldoende ruimte voor twee auto’s
• Zonnig tuin en fraai aangelegde tuin op het noordwesten en dakterras van circa 25 m²
• Vrijstaand en licht woonhuis op geliefde locatie in IJburg
• Er is altijd wel een mogelijkheid om ergens in de zon te zitten
• Verplaatsbare berging
• Energielabel A en glasvezelverbinding
• Een omgevingsvergunning is af gegeven om een dakopbouw van circa 25 m² te realiseren
• Erfpachtcanon bedraagt € 4.899,06 per jaar, AB 2000 is van toepassing
• Aanvraag overstap eeuwigdurende erfpacht met AB 2016 is tijdig gedaan

AM103964-1740994-Pieter-Holmstraat-12,-Amsterdam-138687211

Zonnig en fijn
De huidige bewoners vielen direct voor de grote leefruimte die overloopt in de tuin, toen ze dit huis ooit zelf voor het eerst kwamen bezichtigen. En voor de zee van licht die door het gehele huis binnenvalt. Ze vertellen ook dat ze vaak buiten eten en dat de bank voor het huis hun favoriete plek is om al vroeg in de ochtend in de zon thee te drinken. Ik kan me dat goed voorstellen.

De woning is vrijstaand en gebouwd in 2005. Dat recente jaar is een voordeel, want woningen van na 2000 zijn uitstekend geïsoleerd en degelijk van constructie. Uitbreiding is mogelijk met een opbouw en het platte dak is een mooie locatie om zonnepanelen op te leggen.

De eigenaren hebben er altijd met veel plezier gewoond. Nu ze een andere woning gevonden hebben op hun geliefde IJburg, hopen ze dat er opnieuw bewoners zijn intrek nemen om hun plek in deze buurt op te vullen.


Otte van Apeldoorn | Makelaar Broersma Wonen
AM103964-1740994-Pieter-Holmstraat-12,-Amsterdam-138688718

Designvisie
Architect Julius Bosma ontwierp dit woonhuis genaamd ‘Riant’, met ‘less is more’ als uitgangspunt. Dit devies vertaalt zich in de functionele opzet van de woning met weldadig licht. De gevel is opgetrokken in twee kleuren baksteen: zandkleur aan de achterzijde en rood aan de voorzijde. De begane grond is ingedeeld voor de functies wonen en koken. Op de verdieping zijn drie slaapkamers en een ruime badkamer. En dan is er nog een fijn dakterras van ongeveer 25 m2, te bereiken via een stalen trap. Het overige dakvlak is onlangs, in 2022, door een groendakspecialist voorzien van een sedum-bedekking. Dit zorgt voor extra verkoeling in de zomer, absorbeert regenwater én bevordert de biodiversiteit.

Energiezuinig
Deze woning is gebouwd in 2004/2005 en dat betekent dat de isolatie tiptop in orde is. De hele woning is volgens de laatste standaarden geïsoleerd, van vloer tot de muren en het dak en natuurlijk dubbelglas. Daarnaast is er een warmteterugwininstallatie die de woning nog energiezuiniger maakt, en wordt er verwarmd met stadsverwarming. Deze woning is dus al volledig aardgasvrij.

Goed onderhouden
De huidige bewoners hebben de keuken, het sanitair en de badkamer vervangen in 2016. De vaatwasser en de combimagnetron zijn nog recenter vervangen, in 2022. Ook het schilderwerk buiten is nog vers: dit is in 2018 uitgevoerd door DeHo Schilderwerken. In oktober 2019 is de woning intern geheel gestuukt.
Kortom: een goed onderhouden huis dat zo kan worden betrokken. En mochten de nieuwe bewoners dat willen, dan ligt de weg vrij om een opbouw te realiseren.
De omgevingsvergunning hiervoor wordt meegeleverd bij de verkoop.

AM103964-1740994-Pieter-Holmstraat-12,-Amsterdam-138972331
AM103964-1740994-Pieter-Holmstraat-12,-Amsterdam-138687179
AM103964-1740994-Pieter-Holmstraat-12,-Amsterdam-138687161
AM103964-1740994-Pieter-Holmstraat-12,-Amsterdam-138687174

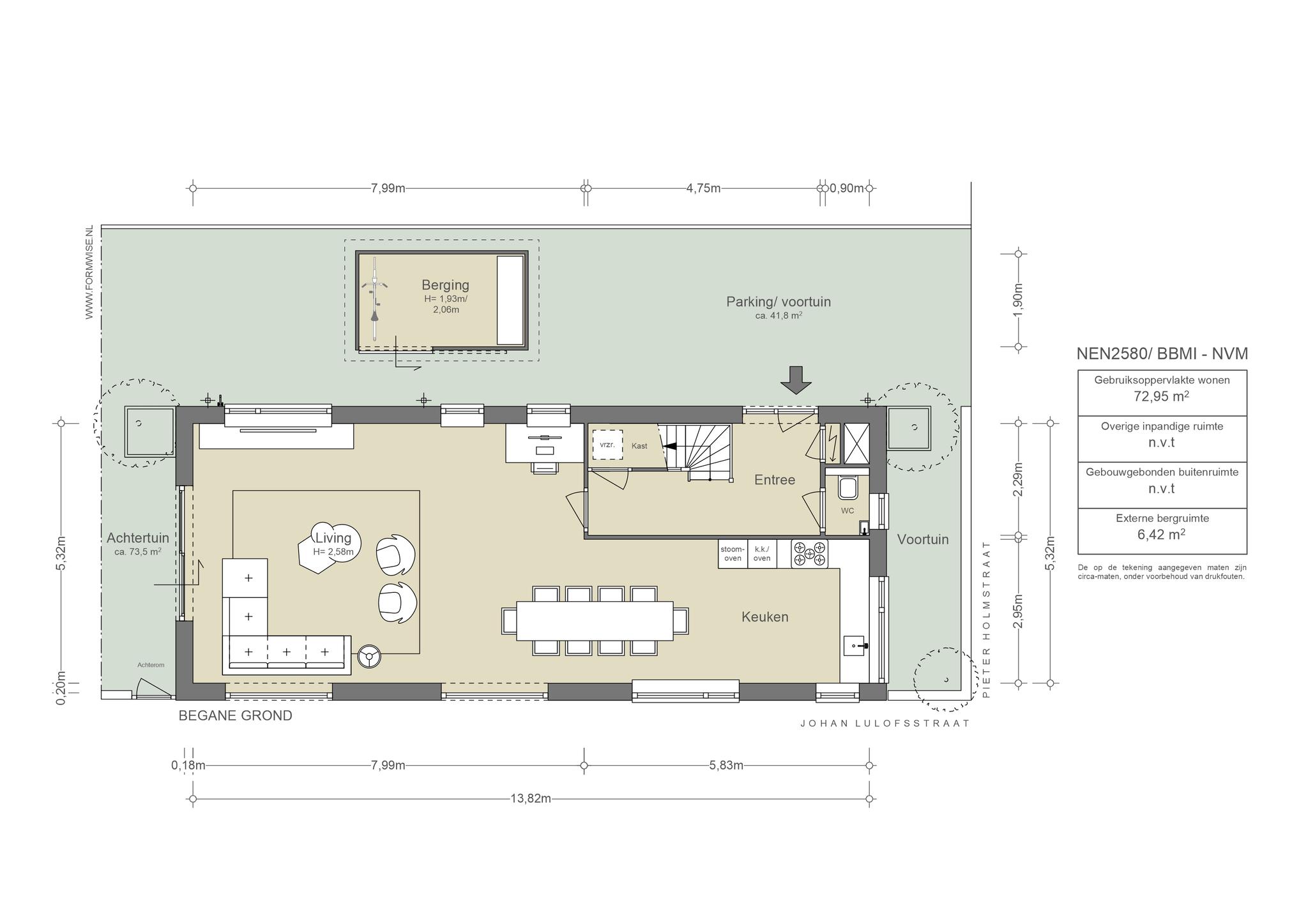
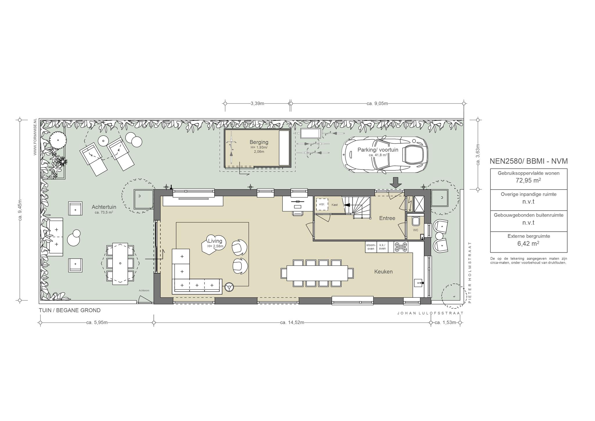
De begane grond
De functionele hal achter de voordeur biedt toegang tot de gang en dan de woonkamer, en via de trap tot de verdieping. Ook is er een trapkast voor extra bergruimte en een apart toilet met vrij hangende wc en fontein.
Opvallend in de woonkamer zijn de grote vensters die veel licht binnenlaten en de bourgondische eikenhouten vloer die rust uitstraalt en eenheid brengt.
De brede schuifdeur naar buiten maakt dat de tuin op mooie dagen een verlengstuk is van de woonkamer. De grote eettafel vormt in deze ruimte het centrale punt, tussen de zithoek en de keuken.
De keuken bevindt zich aan de voorzijde in een hoekopstelling. Het robuuste betonnen werkblad verleent hieraan een stoere uitstraling.
En zoals dat hoort in een modern huis, is alle benodigde keukenapparatuur aanwezig.

AM103964-1740994-Pieter-Holmstraat-12,-Amsterdam-138972335
AM103964-1740994-Pieter-Holmstraat-12,-Amsterdam-138687176
AM103964-1740994-Pieter-Holmstraat-12,-Amsterdam-138687177
AM103964-1740994-Pieter-Holmstraat-12,-Amsterdam-138687185
AM103964-1740994-Pieter-Holmstraat-12,-Amsterdam-138687203
AM103964-1740994-Pieter-Holmstraat-12,-Amsterdam-138687197

De eerste verdieping
Op de verdieping zijn drie slaapkamers. De ouderslaapkamer ligt aan de rustige tuin, waar ’s ochtends de vogeltjes vrolijk fluiten.
Ook de kinderkamers zijn van goed formaat.
Aan de voorzijde bevindt zich de praktisch ingerichte badkamer, met een ligbad, inloopdouche, wastafel en toilet.
Het wastafelmeubel is uitgevoerd in wit. Achter de badkamer is de technische ruimte met de warmteterugwininstallatie (WTW), de wasmachine en droger.
Alle vertrekken in de woning zijn voorzien van mechanische ventilatie.

AM103964-1740994-Pieter-Holmstraat-12,-Amsterdam-138687183
AM103964-1740994-Pieter-Holmstraat-12,-Amsterdam-138972337
AM103964-1740994-Pieter-Holmstraat-12,-Amsterdam-138687188
AM103964-1740994-Pieter-Holmstraat-12,-Amsterdam-138687181
AM103964-1740994-Pieter-Holmstraat-12,-Amsterdam-138687164
AM103964-1740994-Pieter-Holmstraat-12,-Amsterdam-138972342
AM103964-1740994-Pieter-Holmstraat-12,-Amsterdam-138687210

De buitenruimte
Het woonhuis staat aan de linkerzijde van het perceel, zodat daarnaast, in de zijtuin, ruimte is om twee auto’s te parkeren. En vooral de fijne zonnige achtertuin is een belangrijke troef. Rondom het perceel is een onderheide erfafscheiding aangebracht met een deur naar de tuin. Handig bijvoorbeeld voor fietsen. Aan de voorkant is een ondiepe voortuin, ideaal voor een bank om al vroeg in de ochtend in de zon een kop thee of koffie te drinken.

Het dakterras
Het royale dakterras is te bereiken via een trap achter een deur op de overloop. Een fijne plek met veel zon met vrij uitzicht over de buurt.

AM103964-1740994-Pieter-Holmstraat-12,-Amsterdam-138690282
1087 HN Franz Zieglerstraat 26-7
1087 HN Franz Zieglerstraat 26-5

De woning ligt op het Steigereiland, het eerste eiland na de brug naar IJburg. In een omgeving die zich kenmerkt door veel zelfbouwkavels, vrijstaande woningen en breed opgezette straten. Vlakbij, op Haveneiland-West aan de IJburglaan, is een winkelcentrum waar alle dagelijkse boodschappen verkrijgbaar zijn, maar waar evengoed leuke delicatessenwinkels zijn voor speciale gelegenheden.
Ook zijn er veel andere voorzieningen in de buurt. Basis- en middelbare scholen bijvoorbeeld, die goed staan aangeschreven. Ook heeft IJburg voor bewoners op sportief gebied veel te bieden. Zo zijn er diverse sportclubs, waaronder hockey, voetbal, tennis, kano en wind-/kitesurfen. De horeca is goed vertegenwoordigd met een ruim en groeiend aanbod aan leuke restaurants en drinkgelegenheden. Cafe Restaurant Vrijburcht is een gezellige plek waar men 7 dagen per week vanaf 11:00 uur kan genieten van koffie/thee met huisgemaakte taarten, lunch, high tea, borrel, diner en high wine. Het zonovergoten terras ligt direct aan het water met uitzicht op het groen van ‘t Diemerpark. tevens zijn zij foyer voor Theater Vrijburcht.
Voor wandelaars, natuurliefhebbers en kinderen die graag buiten spelen, ligt het Diemerpark op loopafstand. Een zee van groen, twee keer zo groot als het Vondelpark, met een eigen strandje met zonneweide. De bewoners gaan ook graag naar Blijburg op IJburg, een prachtig ruim strand aan het IJmeer.

De bereikbaarheid
Het woonhuis is uitstekend bereikbaar met eigen vervoer via de twee toegangswegen (S114) vanaf de ring A10 en/of de A1. Luchthaven Schiphol is bijvoorbeeld binnen 20 autominuten te bereizen.
Voor fietsers is er een goede en snelle fietsroute over het Amsterdam-Rijnkanaal via de Watergraafsmeer, die onder andere naar het Centrum leidt. Ook de verbindingen met het openbaar vervoer zijn uitstekend. Op de IJburglaan om de hoek zijn verschillende tram- en bushaltes. Op 14 minuten fietsen ligt station Amsterdam Science Park en wie de tram neemt, staat binnen een kwartier op Amsterdam CS.

De parkeergelegenheid
Er kunnen twee auto’s geparkeerd worden naast de woning. Bijzonder is dat de schuur/berging verplaatsbaar is. Handig als er een extra parkeerplek nodig is.

AM103964-1740994-Pieter-Holmstraat-12,-Amsterdam-138687165

Wat de bewoners gaan missen
Toen we hier ruim 15 jaar geleden kwamen wonen, wisten we dat dit ons familiehuis zou worden. Een huis met heerlijke ruimtes die het ons als jong gezin zou bieden, dat is waar we voor vielen. Niet alleen het huis zelf, maar ook de straat, de fijne buurt Steigereiland en IJburg als geheel. De rust en het gevoel van een dorp, maar dan toch in de stad met alle voordelen heel dichtbij.

Onze kinderen zijn opgegroeid door buiten te spelen in de straat en daarna op heel Steigereiland. Veilig, maar met het idee dat de wereld aan hun voeten ligt. In de zomer veel zwemmen en varen met hun eigen boot, met je handdoek over de schouder of sup onder de arm ga je zo het zwemwater in op nog geen 2 minuten lopen. En ook in de winter bij sneeuw en ijs is het genieten van alles wat de buurt te bieden heeft.

Wij zijn enorm gesteld op de heerlijke tuin die het huis heeft. Op elk moment van de dag van de zon kunnen genieten, of het nou voor het huis is, op het dakterras of in de achtertuin. In de lente en zomer staat de brede schuifpui open die de woonkamer met de tuin verbindt.

In de ruime en lichte woonkamer en de open keuken brengen we de meeste tijd door. Lekker samen eten, borrelen of rustig op de bank relaxen. Wij hebben deze grote open en vooral lichte ruimte, waar je samen kunt verblijven en ook je eigen ding kunt doen, altijd als erg fijn ervaren.

IJburg is fijn: scholen in de buurt, sporten in het Diemerpark om de hoek, winkels en horeca allemaal op loopafstand. Wij gaan ons fijne huis verlaten, maar blijven op ons geliefde IJburg.

AM103964-1740994-Pieter-Holmstraat-12,-Amsterdam-138687211
AM103964-1740994-Pieter-Holmstraat-12,-Amsterdam-138972333
Kenmerken
Pieter Holmstraat 12, Amsterdam
Vraagprijs
  • € 840.000 k.k.
Beschikbaarheid
  • In overleg
Vertrekken
  • 4 kamers
  • 3 slaapkamers
  • 1 badkamer
Onderhoud
  • Intern: Goed
  • Extern: Goed
Oppervlakten & Inhoud
  • Woonoppervlakte: 143 m²
  • Tuinoppervlakte: 73 m²
  • Perceeloppervlakte: 214 m²
Bouwjaar
  • 2005
Installaties
  • Mechanische ventilatie
  • Natuurlijke ventilatie
  • Schuifpui
Ligging
  • Aan rustige weg
  • In woonwijk
Parkeren
  • Betaald parkeren
  • Op eigen terrein
  • Parkeervergunningen
  • Parkeerplaats
Type verwarming
  • Stadsverwarming
  • Warmte terugwininstallatie
Type warmwater
  • Stadsverwarming
Bestemming
  • Woonruimte
Eigendomssoort
  • Eigendom belast met erfpacht
Buitenruimte
  • Achtertuin
  • Voortuin
  • Zijtuin
  • Zonneterras
  • Dakterras
Kadastraal
  • Gemeente: Amsterdam
  • Sectie: Au
  • Nummer: 1281
Duurzaamheid
  • Volledig geisoleerd
  • Energielabel A
Soort
  • Eengezinswoning
  • Vrijstaande-woning
  • Woonhuis
Bijzonderheden
  • Gedeeltelijk gestoffeerd
Overige kenmerken
  • OZB ('23) € 381,86 per jaar
  • Rioolrecht ('23) € 160,43 per jaar
  • Erfpachtcanon € 4.899,06 per jaar
Plattegrond
Pieter Holmstraat 12, Amsterdam
AM103964-1740994-Pieter-Holmstraat-12,-Amsterdam-138694859
AM103964-1740994-Pieter-Holmstraat-12,-Amsterdam-138694860
AM103964-1740994-Pieter-Holmstraat-12,-Amsterdam-138694861
AM103964-1740994-Pieter-Holmstraat-12,-Amsterdam-138694862
Documenten
Pieter Holmstraat 12, Amsterdam
Locatie
Pieter Holmstraat 12, Amsterdam
Interieur
01
Adres
Pedro de Medinalaan 89-91,
1086 XP Amsterdam

Design020

Op de westelijke punt van het Steigereiland vind je Design020; een groot woonwarenhuis met allerlei designmeubels van aanbieders zoals woonwinkel Kasstoor & Wonen 2000 en andere showrooms. Het is de perfectie plek om lekker rond te dwalen en inspiratie op te doen voor interieur en design. De ruimte is prachtig, met veel daglicht, zwevende trappen en een industrieel karakter. In de showrooms kun je naast designermeubelen ook bouwmaterialen bekijken zoals deurklinken en gietvloeren. Daarnaast is Design020 ook een meetingpunt voor architecten en designers.

162849785_190219572906159_4250034024078259020_n
02
Adres
Pedro de Medinalaan 91,
1086 XK Amsterdam

Kasstoor

De Kasstoor biedt sophisticated Amsterdam living. Deze zaak is al langer dan 100 jaar toonaangevend op het gebied van top design meubelen. Kasstoor is expert in het samenbrengen van klassieke en moderne ideeën. Een team van professionals reist de hele wereld af om de mooiste items te verzamelen. In de showroom gevestigd aan de prachtige Amerstamdse IJ kun je deze prachtige designer meubelen bekijken. Van banken tot stoelen tot tafels; hier vind je het allemaal en van de beste kwaliteit.

286463721_1350282202151603_2114217501944506381_n
03
Adres
Bert Haanstrakade 100,
1087 DN Amsterdam

Joink

Sinds 2011 kopen en verkoopt Joink voornamelijk vintage designmeubels, met de nadruk op de ontwerpen van Charles en Ray Eames. Bijna alle items worden gevonden in de EU en de Verenigde Staten; gekocht van particulieren, nalatenschappen, veilingen en vintage dealers. Sinds 2016 biedt Joink een breder scala aan geweldige designklassiekers, van bekende tot onbekende tijdloze ontwerpen.

119235730_640071679979829_2528260860777625963_n
04
Adres
Javaplein 31HS,
1095 CJ Amsterdam

Found in Sweden

Found in Sweden, gelegen op het Javaplein in Amsterdam Oost, is een vintage winkel die trouw is aan zijn naam. Alles in de winkel is zorgvuldig geselecteerd uit Zweden, variërend van mid-century dressoirs tot lampen en tafelkleden. De collectie verandert voortdurend, met wekelijks nieuwe vondsten uit Zweden of liefdevol gerestaureerde stukken. Hoewel sommige items designklassiekers zijn, biedt de winkel ook betaalbare vintage schatten. De eigenaar, een gepassioneerde vintage-jager, deelt haar liefde voor unieke stukken. Found in Sweden is een plek waar de wereld van vintage tot leven komt, met verrassingen op elk bezoek.

119183029_748370379060570_3524924206402000634_n
05
Adres
Ertskade 272,
1019 BB Amsterdam

Frankly Amsterdam

Het jonge Nederlandse bedrijf Frankly Amsterdam – met oprichter Femke Derks aan het roer – ontwerpt, produceert en verkoopt kleden, bedlinnen, plaids en sjaals. Producten in zachte naturel tinten die warme, comfort en rust toevoegen aan ieder interieur. Bij Frankly Amsterdam doen ze dingen anders, hun producten hebben een eerlijke oorsprong waarbij werknemers in een goede omgeving met zuivere, onschadelijke materialen werken en een eerlijk loon ontvangen.

06
Adres
Javastraat 105,
1094 HC Amsterdam

Buurtkringloop

De Buurtkringloop is een kringloopwinkel en ontmoetingsplek voor bewoners van de Indische buurt. Geopend dankzij crowdfunding en het winnen van de publieksprijs ter waarde van 2.500 euro bij ‘Boost je Buurt’. Je kunt hier zoeken naar bijzondere spulletjes, maar ook flexwerken of vergaderen. Verder is er een koffiehoek en komen er gratis workshops.

Boodschappen
07
Adres
Joris Ivensplein,
1087 BP Amsterdam

De REURING markt

De REURING markt strijkt elke zaterdag neer van 09:00 tot 16:00 en is een kleine maar fijne markt op IJburg. De gezellige sfeer van IJburg en de goede kwaliteit van producten staan hier voorop. Het ligt naast het Winkelcentrum van IJburg en bevindt zich naast een mooie speeltuin. Je vindt er diversen kramen met onder andere Alfons koffiebonen uit Italië, een jam speciaal zaak met bijzondere chutneys, buikspek van de BBQ in een foodtruck, een Mexicaanse specialist en nog veel meer. Ga erheen om het zelf mee te maken.

Kaddour
08
Adres
Pampuslaan 22,
1087 LA Amsterdam

Slagerij Kaddour

Bij Kaddour hebben ze een breed scala aan ambachtelijk vers vlees en vleeswaren. Het assortiment biedt puur en eerlijk kwaliteitsvlees, zowel lokaal als wereldwijd, waaronder Hollands vlees, exclusief Halal Wagyu, verfijnd John Dee rundvlees uit Australië en smaakvol Maimoa lamsvlees uit Nieuw-Zeeland. Al ruim 35 jaar staat Slagerij Kaddour bekend om uitmuntende kwaliteit, met recepten die generaties lang worden doorgegeven. Ontdek de gezonde, diervriendelijke aanpak en geniet van handgeknoopte rollades, gourmet- en barbecuepakketten, ambachtelijke vleeswaren en het welbekende broodje kip grilworst.

millie
327448751_105529872451533_2683322311542512579_n
09
Adres
Bottelarijstraat 1,
1019 VC Amsterdam

Millie Vanillie

Bij Millie Vanillie wordt van s’morgens vroeg tot ‘s avonds laat gebakken. Het assortiment bestaat onder andere uit verse zuurdesembroden en patisserie zoals kardemom buns en custard buns.
Daarnaast wordt er bij Millie Vanillie ook heerlijke koffie geserveerd. De bonen komen ook van  Sprout.

LANDMARKT_TOTAAL-WEB-2048×1363
10
Adres
Schellingwouderdijk 339,
1023 NK Amsterdam

Landmarkt Schellingwoude

Landmarkt Schellingwoude is een grote overdekte supermarkt met producten voornamelijk van lokale ondernemers en kleine telers. De Landmarkt staat bekend om zijn ambachtelijke leveranciers uit de buurt en heeft dan ook een heel breed assortiment aan goede producten. Je kan hier ook vers bereide maaltijden afhalen, of op eten in het restaurant naast de supermarkt. Daar eet je wat de kok schaft, en is het dus elke dag anders. Je kan er ook een koffietje drinken en uitkijken over de mooie Schellingwouderdijk.

1465889_221896457986867_1027729947_o
11
Adres
C. van Eesterenlaan,
Amsterdam

Thull's deli

Thulls deli is een echte goede traiteur. Ze maken heerlijke dagvers-maaltijden met mediterrane invloeden om mee te nemen. Je kan er naast maaltijden ook heerlijke royaal belegde broodjes afhalen die vers gemaakt worden door de vriendelijke verkopers. Alles is vers en huisgemaakt. De deli heeft een uitgebreide en met zorg uitgekozen selectie Europese wijn en cider, zuurdesembrood van Restaurant As, chocolade, charcuterie, kazen, olijfolie, azijnen, blikvis en meer.  Thulls is echter echt bekend geworden doordat ze zelf pickles en gefermenteerde groente zoals zuurkool en kimchi maken. Daarnaast zijn ze brouwer van waterkefir en kombucha!

22490121_179839189242836_3341019391178952167_n
12
Adres
C. van Eesterenlaan,
Amsterdam

Biomarkt Zeeburg

Al meer dan 10 jaar is er iedere woensdag biologische markt op de Van Eesterenlaan in Zeeburg. Groente, fruit, noten, kaas, olijven, raw food, brood, paddenstoelen, vegetarische roti, pizza, Libanese mezze, vis en gegrilde kippetjes. Het zit aan de Oostelijke Eilanden dus je hebt ook nog mooi uitzicht. Tip: sommigen zeggen dat ze de lekkerste kibbeling van Amsterdam hier verkopen…

Eten & drinken
mchi_20130210
13
Adres
IJburglaan 1295,
1087 JJ Amsterdam

Restaurant Mchi

Bij restaurant Mchi draait het om proeven, eten en delen. In dit Aziatische restaurant werken ze volgens een shared-dining concept en kun je samen genieten van allerlei verse gerechtjes van hoge kwaliteit. Ze serveren hier heerlijke Aziatische gerechten - van dim sum tot sushi tot gefrituurde tofu. Het restaurant heeft een rustige ambiance en het personeel is zeer gastvrij en behulpzaam.

Schermafbeelding 2022-07-01 om 12.42.58
14
Adres
Durgerdammerdijk 53,
1026 CA Amsterdam

Theetante Durgerdam

In het dijkhuis aan het IJsselmeer ligt Theetante Durgerdam. Hier worden de heerlijkste huisgemaakte taarten met een warme kop koffie of thee geserveerd. Op het pittoreske terras met uitzicht over de authentieke huisjes van Durgerdam kan je lekker zitten, maar binnen aan de stamtafel is het ook heel gezellig. De taarten verschillen elke week dus je kan iedere week een nieuw stuk taart proeven. De ideale plek om bij te komen van een lange fietstocht.

Baggerbeest
15
Adres
Rudi van Dantzigstraat 1,
1095 PK Amsterdam

Bar Baggerbeest

Een plek om wat te drinken, een hapje te eten, nieuwe mensen te ontmoeten en te verbinden. Stil je honger met overheerlijke steenoven pizza's. Lust je dorst met een van de  (biologische) wijnen, eerlijke koffie of (Amsterdams) bier. Bar Baggerbeest is onderdeel van Broedplaats Baggerbeest hét culturele ankerpunt van de stadswijk-in-wording: de Sluisbuurt. Club: Op vrijdag, zaterdag en zondag na 21.00 uur is er ruimte voor een culturele programmering.

home-1800x1000_4
eat-drink-1800x1100_1
16
Adres
Durgerdammerdijk 73,
1026 CB Amsterdam

Restaurant de Mark

Laat je omringen door de gastvrije sociale sfeer van het restaurant De Mark aan het meer. Of dat nu bij de open haard in de eetkamer is, in de wijnkamer of op het terras aan het water. De Mark is een bescheiden maar absoluut een culinaire hotspot, samengesteld door Michelin-sterrenchefs. Chef-kok Koen Marees werkt samen met de gourmet helden Richard van Oostenbrugge en Thomas Groot van de Michelin-sterrenrestaurants 212 en De Juwelier in Amsterdam. Lokale, verse en seizoensgebonden ingrediënten vormen de basis van het menu. Waarbij vertrouwde klassiekers gedurfd en ongecompliceerd zijn en eenvoudige ingrediënten gerechten creëren die gewoon goed smaken. Combineer dit met een fles uit de wijnkelder om je avond compleet te maken.

106477833_3230819603637267_5055141329423735816_n
17
Adres
IJburglaan 1489,
1087 KM Amsterdam

Espressofabriek

De Espressofabriek heeft meerdere vestigingen in Amsterdam; bij de Westergas, IJburg en bij Zeeburgereiland. Bij de Espressofabriek kun je de lekkerste koffie, cappuchino, en natuurlijk espresso halen. De uitstraling is hip en industrieel en je kunt zowel binnen als buiten heerlijk zitten. Wat extra leuk is aan deze zaak is dat zij ook een eigen koffiebranderij hebben. In de winkels verkopen zij ook hun eigen producten zodat je ook thuis van een kopje verse koffie kan genieten.

467683_483607991655776_1494931399_o
18
Adres
Krijn Taconiskade 124,
1087 HV Amsterdam

NAP Amsterdam

NAP Amsterdam is prachtig gelegen aan de haven in IJburg. Ze hebben een heerlijk buitenterras aan het water en prachtig interieur. Op de menukaart staan allerlei verschillende gerechten; van tagliatelle tot hamburgers. Bij NAP Amsterdan kunt hier terecht voor lunch, diner en voor een frisse borrel. Ook hebben ze hebben leuke arrangementen voor het vieren van een verjaardag, jubilieum of promotie. NAP Amsterdam is een heerlijke plek om neer te strijken tijdens een fietstochtje langs het water of om samen met vrienden een drankje te drinken in de zon.

joki
19
Adres
Cruquiusweg 89F,
1019 AG Amsterdam

Jōki

De naam ‘JōKi’ (wat Stoom betekent in het Japans) verwijst naar het ‘Gemaal de Cruquius’, de grootste stoommachine ter wereld.
De koffie wordt hier gemaakt met de bonen van Stooker, dat zit dus wel goed.

20
Adres
Cruquiusweg 83D,
1019 AT Amsterdam

Krux brouwwerf

Vroeger was Cruquiuseiland één grote werf. Nu is er alleen nog een brouwwerf over. Eentje waar bier wordt gebrouwen en waar je ook kan komen drinken. Volgens zeggen de kleinste brouwerij van Amsterdam. Dit heeft twee voordelen; door de kleine batches kunnen ze makkelijk experimenteren met de recepten én is het bier altijd super vers!

272793218_3188322951397443_5440626548767686297_n
21
Adres
Flevopark 13a,
1095 KE Amsterdam

Distilleerderij ’t nieuwe diep

Distilleerderij ’t nieuwe diep bevindt zich op een mooie rustige plek in het Flevopark. Bij mooi weer kan je hier heerlijk op het terras bij de vijver zitten en hoor je de geluiden van eenden en andere dieren om je heen. Ze maken een 100-tal producten waaronder verschillende jenevers, likeuren en bitters, zoveel mogelijk gemaakt van biologische grondstoffen. Neem bijvoorbeeld’ ‘het groene juffertje in de plas’ of een citroenjenever. Naast sterke dranken serveren ze ook andere dranken en verschillende borrelhapjes.

 

4409833c90ff3131539a50f0e860c079
Vuurtoreneiland_Winter_Annelore_W
22
Adres
Amsterdam

Vuurtoreneiland

Echt iets speciaals plannen? Dan ben je bij Vuurtoren eiland aan het juiste adres. Een uitstapje voor de echte foodie en wijnliefhebber. Stap op de boot bij het Lloyd hotel en laat je meevoeren naar een klein eiland over ‘t Ij. Een hidden gem waar zomers wordt ontvangen in de kas en s’winters dineert in het fort. Verwacht een compleet 5-gangen diner met regionale producten bereid op open vuur. Je kunt er nu ook blijven slapen! Onlangs zijn er 5 slaapkamers gecreëerd.

Schermafbeelding 2022-07-01 om 12.46.22
23
Adres
Javaplein 23,
1095 CJ Amsterdam

Restaurant Wilde Zwijnen

Bij restaurant Wilde Zwijnen wordt gekookt volgens de moderne Nederlandse keuken. Zelf zeggen ze daar over; 'Een Modern Nederlandse keuken betekent voor ons: ingrediënten van Nederlandse bodem, hoe meer de ingrediënten uit de buurt, hoe beter. We koken seizoensgebonden, ook vegetarisch en gebruiken zoveel als mogelijk duurzame producten.' Wilde Zwijnen serveert een vast menu bestaande uit drie, vier of vijf gangen. Op maandag en dinsdag kan er a la carte gegeten worden.

image
24
Adres
Javaplein 25,
1095 HR Amsterdam

Bar bachrach

Bar Bachrach is zowel een bar als een restaurant. Je vindt hier modern midden-Oosters eten, denk bijvoorbeeld aan halloumi met biet of een Jeruzalem bagel. Chefkok Yaniv stelt met zorg de gerechten samen met verschillende verse seizoensgebonden producten. Je kunt hier genieten van een goed glas wijn en kleine gerechtjes of lekker lang tafelen met een diner volgens het vooraf samengestelde chef's menu. Binnen hangt een heerlijke warme sfeer door houten interieur en de mix van vintage kunt en moderne elementen.

25
Adres
Javastraat 149,
1094 HE Amsterdam

De Jonge Admiraal

Aan het einde van de Javastraat, tegen het Javaplein aan vind je De Jonge Admiraal. Ze serveren hier heerlijke koffies, goede broodjes en heerlijke taart van Majesteit Taart, een taartenwinkel verderop in de Javastraat. De Jonge Admiraal is gezellig en Laptopfree, iedereen die er zit is gezellig aan het kletsen of spelletjes aan het spelen en dat zorgt voor een goede sfeer. ’s Avonds kan je er ook lekkere biertjes uit de buurt drinken en er zijn vaak leuke evenementen als pubquizzes, Ajax-wedstrijden of live optredens.

Stadspaleizen in de Willemsparkbuurt

Stadspaleizen in de Willemsparkbuurt

Buurtgids: Weteringbuurt

Buurtgids: Weteringbuurt

Ontmoet de ondernemer: in deze serie Hans Woerlee, van projectontwikkeling naar de keuken

Ontmoet de ondernemer: in deze serie Hans Woerlee, van projectontwikkeling naar de keuken

Onlangs bekeken
Bekijk het overzicht

Deze site maakt gebruik van cookies.

Voor welke cookies geef je akkoord?