Luxe wonen in een licht appartement in het populaire Oud-Zuid. Dit appartement gelegen op de tweede verdieping heeft twee slaapkamers, een badkamer en ruim balkon. Zeer gunstig gelegen en goed afgewerkt wat het appartement tot een fijne ruimte maakt.

Een rondleiding

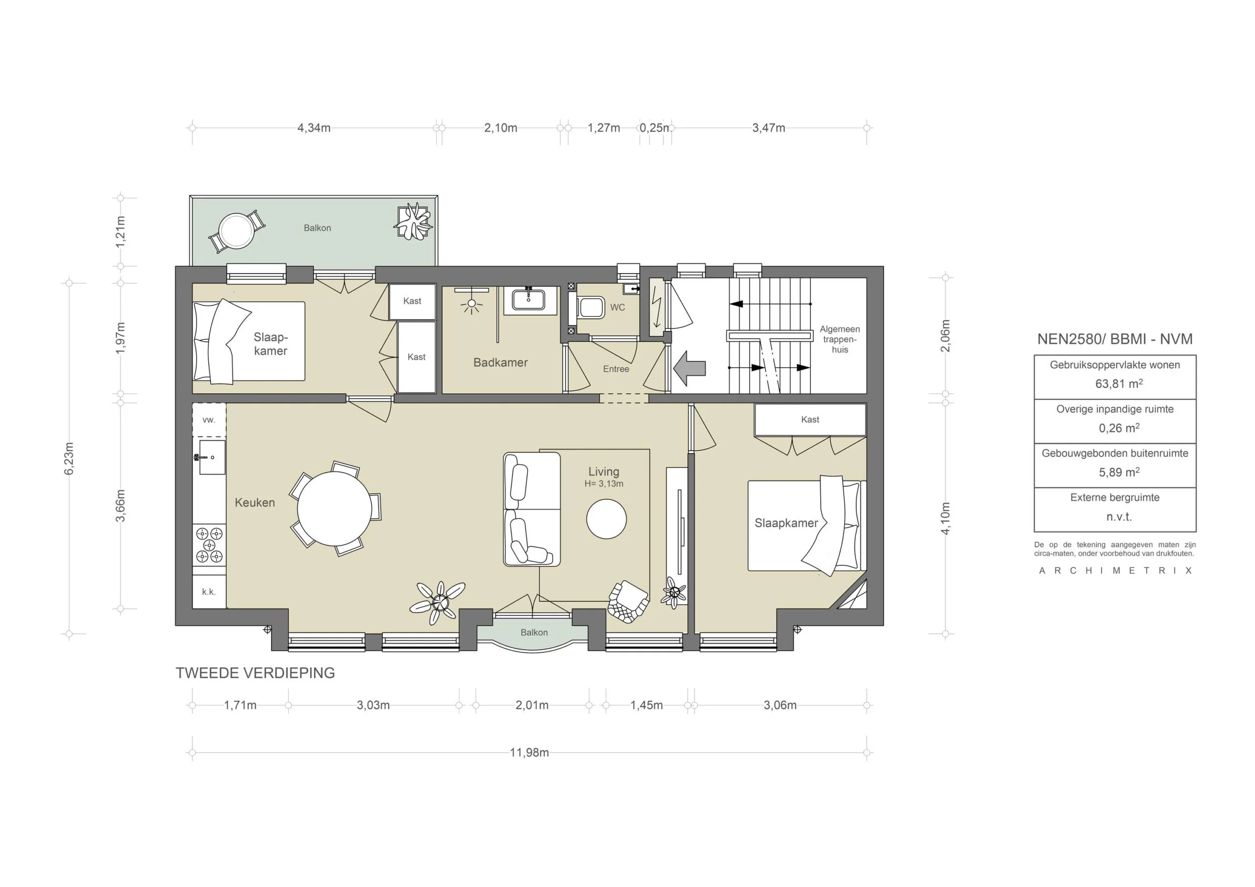
Tweede verdieping
De woonruimte is licht en overzichtelijk, met hoge ramen aan de voorzijde die zorgen voor een prettige natuurlijke lichtinval. De dubbele deuren openen naar een Frans balkon, wat het contact met buiten versterkt. Het appartement is mooi afgewerkt met een houten visgraatvloer. De keuken is subtiel opgenomen in een maatwerk kastenwand en voorzien van een inductiekookplaat, geïntegreerde afzuiging en een verzonken spoelbak. Dankzij de open indeling gaan koken, eten en ontspannen moeiteloos in elkaar over. Er is genoeg ruimte voor een royale eettafel, met zicht op zowel de keuken als de zithoek. 

De slaapkamers zijn licht en afgewerkt in dezelfde stijl als de rest van het appartement. De slaapkamer ligt aan de voorzijde en heeft een leuke erker dat zorgt voor meer licht en extra diepte. Ook hier zijn de wanden strak afgewerkt en ligt dezelfde eiken visgraatvloer. De tweede slaapkamer aan de achterzijde, heeft door middel van openslaande deuren toegang naar het balkon. De moderne badkamer is mooi afgewerkt met grote wandtegels in een lichte steentint. De inloopdouche is voorzien van een regendouche en een glazen wand. Het wastafelmeubel biedt voldoende opbergruimte en is afgewerkt met een wit blad en donkere fronten. 

De buitenruimte
Aan de voorzijde ligt een Frans balkon, bereikbaar via dubbele deuren vanuit de woonkamer. Aan de achterzijde ligt een ruim balkon, toegankelijk vanuit de slaapkamer. Dit balkon biedt meer ruimte en kijkt uit over een ruim binnengebied met zicht op de omliggende schoolgebouwen. Door de ligging op het zuidoosten valt hier in de ochtendzon en blijft het overdag licht. Beide buitenruimtes dragen bij aan de openheid van het appartement en zorgen voor veel licht.

Bereikbaarheid
De woning ligt in het hart van het Museumkwartier, op loopafstand van het Museumplein, het Vondelpark en de grachten. In de directe omgeving vind je toonaangevende musea als het Rijksmuseum en het Van Gogh Museum, afgewisseld met boetieks, kwaliteitswinkels en bekende namen aan de P.C. Hooftstraat. Ook op het gebied van horeca is er ruime keuze: van goede koffie tot verfijnd dineren. Voor dagelijkse boodschappen zijn de Van Baerlestraat en Beethovenstraat dichtbij, net als de markt op de Jacob Obrechtstraat. De Pijp en het centrum bereik je lopend of met de fiets in enkele minuten.

De bijzonderheden
- Beschikbaar: per 1 december;
- Huurprijs: € 2.950,- excl. per maand;
- Huurperiode; Model A, onbepaalde tijd, minimaal 12 maanden;
- Borg: 2 maanden huur;
- Gestoffeerd.

Kenmerken
Pieter de Hoochstraat 67C, Amsterdam
Huurprijs
  • € 2.950 per maand
Beschikbaarheid
  • In overleg
Vertrekken
  • 3 kamers
  • 2 slaapkamers
  • 1 badkamer
Onderhoud
  • Intern: Goed tot uitstekend
  • Extern: Goed tot uitstekend
Oppervlakten & Inhoud
  • Woonoppervlakte: 64 m²
  • Gebouwgebonden buitenruimte: 6 m²
Bouwjaar
  • 1913
Installaties
  • Frans balkon
  • Mechanische ventilatie
  • Natuurlijke ventilatie
  • TV kabel
Ligging
  • In woonwijk
Parkeren
  • Betaald parkeren
  • Parkeervergunningen
Type verwarming
  • CV Ketel
Type warmwater
  • CV Ketel
Bestemming
  • Woonruimte
Eigendomssoort
  • Volle eigendom
Buitenruimte
  • Geen tuin
  • Balkon
Kadastraal
  • Gemeente: Amsterdam
  • Sectie: U
  • Nummer: 9767
Duurzaamheid
  • Dubbel glas
  • Energielabel A
Soort
  • Appartement
  • Bovenwoning
Welke woonlaag
  • 3e
Plattegrond
Pieter de Hoochstraat 67C, Amsterdam
AM106810-2104767-Pieter-de-Hoochstraat-67C,-Amsterdam-253372786
Documenten
Pieter de Hoochstraat 67C, Amsterdam
Locatie
Pieter de Hoochstraat 67C, Amsterdam
Eten & drinken
image04-1
01
Adres
Ruysdaelstraat 25,
1071 WZ Amsterdam

Breadwinner Too

Breadwinner Bagels werd opgericht door Jon Fairclough, die zijn liefde voor ambachtelijk bakken vertaalde naar handgerolde zuurdesem-bagels met een eigen signatuur. Wat begon in de Jordaan groeide uit tot een geliefd concept met meerdere locaties, waaronder deze vestiging in De Pijp. In de keuken draait het om natuurlijke ingrediënten en dagelijks versgebakken bagels, gecombineerd met creatieve en klassieke toppings.

Schermafbeelding 2022-06-20 om 13.47.57
Schermafbeelding 2022-06-20 om 13.49.19
02
Adres
Johannes Vermeerstraat 52,
1071 DT Amsterdam

Café Loetje

In 1977 werd café Loetje opgericht als biljartcafé door Ludwig 'Loetje' Klinkhamer, maar het duurde niet lang voor men het biljart inruilde voor de ossenhaasbiefstuk die werd geserveerd. Meer dan veertig jaar later is Loetje een gigantische keten en is het oorspronkelijke 'Café' een begrip in Amsterdam. De smakelijke biefstuk wordt geserveerd met huisgemaakte frietjes en zwemt in verse jus - om je vingers bij af te likken!

Bisous-001-24-05-by-RVDA-DSC_0270
03
Adres
Albert Cuypstraat 31,
1072 LZ Amsterdam

Bisous

Een 'over de top interieur' van Jean-Philippe Demeyer (Architectural Digest AD100 architect) gecombineerd met een uitstekende keuken waarvan ze zelf zeggen 'A sumptuous French – Zeeland cuisine'.  Een goed voorbeeld hiervan zijn de Zeelandse kokkels in een room witte wijnsaus afgemaakt met Pasris en peterselie. Bisou!

53700300_311590863045393_1981039547722498048_n
Schermafbeelding 2022-06-20 om 13.29.38
04
Adres
Albert Cuypstraat 20H,
1072 CT Amsterdam

Sababa

De eigenaar van Sababa wilde goede, perfecte falafel. Ze zijn verschillende combinaties gaan uitproberen, producten gaan proeven en zo ontstond hun perfecte falafel broodje. Geïnspireerd op de Israëlische keuken, heerlijk voor een snelle hap of om uitgebreid te eten met een biertje erbij.

Schermafbeelding 2022-06-20 om 13.58.14
Schermafbeelding 2022-06-20 om 13.58.34
05
Adres
Frans Halsstraat 76 HS,
1072 BV Amsterdam

Maris Piper Brasserie

Het begrip brasserie vindt zijn oorsprong in de Elzas en serveert over het algemeen wat luxere gerechten dan een bistro. De Breda Group heeft met Maris Piper is een eigentijdse versie neergezet. Hier kun je traditionele vis- en schelpdierengerechten, vlees en seizoensfavorieten bestellen. Denk aan Denk aan oesters, artichoke en piepkuiken.Wil je je laten verrassen, dan kan je kiezen voor de Chef's Table, een dertiengangenmenu dat veranderd per seizoen. Voor een gezellige sfeer en een goed gevuld bord is dit restaurant in De Pijp zeker het bezoeken waard.

Schermafbeelding 2022-10-05 om 14.40.44
06
Adres
Saenredamstraat 37,
1072 CB Amsterdam

La Dilettante

Eigenaren Olivier von Grumbkow en Hans Vervoort openden de deuren van La Dilettante. La Dilettante is open voor lunch en wijn. Bij de natuurwijnen worden hapjes geserveerd als quiches, tarte tatins, patés en rillettes. Een van die natuurwijnen die de mannen schenken heet La dilettante. Dat is niet de enige verklaring voor de gekozen naam. Het woord heeft verschillende betekenissen. Een daarvan is: iemand die iets doet uit liefhebberij.

437922501_1117156876006867_728206199129953616_n
07
Adres
Albert Cuypstraat 58-60,
1072 CV Amsterdam

Auberge Amsterdam

De eigenaren van onder andere 212 (**), de Juwelier (*) en Bistro de la Mer (*) waren zelf een fervent bezoeker van voorheen Auberge jean & Marie. Nu zetten zij de Auberge traditie voort op deze zelfde plek. Voor 38 euro eet je hier een uitstekend 3 gangen menu.

Cafe-Wildschut-Amsterdam-Zuid-terras-1-uai-1250×1000
Cafe-Wildschut-Amsterdam-ontbijt-lunch-brunch-diner-borrel-2-uai-1250×1000
08
Adres
Roelof Hartplein 1,
1071 TR Amsterdam

Café wildschut

Café wildschut zit aan het Roelof Hartplein en is een ideale uitvalbasis om een drankje te doen. Vooral 's zomers ben je hier aan het goede adres, het terras heeft namelijk van 's ochtends vroeg tot 's avonds zon. Omdat het café aan een plein zit is er altijd reuring. Het café is gevestigd in een monumentaal pand van de Amsterdamse school en heeft kosmopolitisch interieur met jaren '20 elementen. Er komt een gemêleerd publiek en is inmiddels al decennia een begrip onder Amsterdammers. Je kan hier ook terecht voor ontbijt, lunch en diner.

335969_460774987275260_2002095946_o
09
Adres
Ferdinand Bolstraat 74,
1072 LM Amsterdam

Toko Ramee

Midden op de Ferdinandbolstraat vind je Toko Ramee. Zoals al vermeld staat op de buitenkant van de toko is er een scala aan authentieke Indonesische en Aziatische producten. Het is een toko die aansluit op het familiare gevoel van de traditionele Indische en Chinees-Indische keuken, waar er voor iedereen iets te vinden valt. De toko is gevuld met geïmporteerde hapjes en drankjes en ook met kookgerei om zelf dingen thuis te maken. Van een complete rijsttafel tot huisgemaakt spekkoek: Toko Ramee neemt je maar al te graag mee in het proces om een heerlijke maaltijd samen te stellen. Mocht dat niet genoeg reden zijn om naar de toko toe te komen, vrees niet – toko Ramee heeft ook een catering service paraat!

IMG_6482-HDR-2048×2048
Sora_02s
10
Adres
Ceintuurbaan 49,
1072 ET Amsterdam

Sora Sapporo

Sora Sapporo Ramen serveert authentieke Japanse ramen en andere Aziatische gerechten. Het restaurant heeft twee vestigingen in Amsterdam, waarvan één is geleden aan de Ceintuurbaan in de Pijp. Het restaurant staat bekend om zijn smaakvolle noedels. Deze noedels worden geïmporteerd uit Japan, waar ze gespecialiseerd zijn in het bereiden van dit product. Ook de bouillon, die deel uit maakt van de miso soep en de tonkotsu shoyu ramen is het proberen waard. Voor degenen die liever thuis van een heerlijke kom noedels genieten: Sora Sapporo Ramen bezorgt ook aan huis.

foto-oesters
11
Adres
Van Baerlestraat 158,
1071 BG Amsterdam

Brasserie van Baerle

De Franse brasserie van Baerle is niet meer weg te denken uit het Amsterdamse stadsbeeld. Met een levensloop van al 41 jaar in Amsterdam-Zuid, is het een vertrouwde plek. De compacte lunch- en dinerkaart bestaat uit klassieke gerechten uit de overwegend Franse brasserie keuken én vernieuwende eigentijdse gerechten.  In het seizoen zijn er altijd oesters, asperges en kreeft. Naast à la carte is er zowel voor lunch als diner een wisselend 3-gangen keuzemenu dat sinds 2010 jaarlijks door Michelin met een ‘BIB Gourmand’  onderscheiden wordt. Grootspraak, de restaurantgids voor wijnliefhebbers, rangschikt Brasserie van Baerle al jaren tot de beste ‘wijnrestaurants’ van Amsterdam.

IMG_2512
photoshoot_for_roum_cafe_babaganoush_2880x2304
12
Adres
Eerste Jan Steenstraat 85H,
1072 NE Amsterdam

Roum Café

Roum Café brengt Midden-Oosterse en Oost-Mediterrane smaken naar De Pijp met een focus op verse ingrediënten, rijke kruiden en traditionele bereidingswijzen. De keuken combineert familierituelen en huisgemaakte recepten met een eigentijdse presentatie die de complexe smaken van de regio goed tot hun recht laat komen. Hoewel er geen publieke chef-naam breed geprofileerd wordt, is het team gepassioneerd over authentieke, hartige gerechten die je doen denken aan een diner bij familie aan de Middellandse Zee.

Schermafbeelding 2022-09-28 om 17.27.18
Schermafbeelding 2022-09-28 om 17.26.37
13
Adres
Ceintuurbaan 238,
1072 GE Amsterdam

Tapi 'n Bowls

Bij Tapi 'n Bowls bieden ze Braziliaanse gerechten met een moderne jonge twist. De specialiteiten zijn Tapiocas en exotische smoothie bowls. De smoothie bowls worden geserveerd met meer dan 200 verschillende soorten vruchten met verschillende kleuren en smaken. De tapioca is een gerecht van cassave zetmeel, wat erg populair is in het noorden van Brazilië. De Tapioca heeft een knapperige buitenkant en is zacht van binnen. Daarbij is het ook erg gezond omdat het geen geen gluten, vetten, lactose of suiker bevat.

 

downloadgram.org_610617586_18420032773136397_3224401437205912253_n
14
Adres
Van Baerlestraat 51,
1071 BJ Amsterdam

Esh Pitabar

Esh Pitabar is het nieuwe hoofdstuk van broers Ilan en Joël Benamara, die eerder sinds 2015 Café Martinot runden tot het pand in 2022 noodgedwongen moest sluiten vanwege funderingsherstel. Na een succesvolle crowdfunding besloten ze hun zaak opnieuw op te bouwen, dit keer met meer ruimte voor hun Israëlische roots en inspiratie uit Tel Aviv. Chef Ilan Benamara staat zelf in de keuken en bewaakt een simpele maar duidelijke regel: alles is huisgemaakt, van de hummus tot het pitabrood. Op de kaart vind je streetfood zoals pita falafel, hummus met warme kikkererwten en verse pizza’s, precies zoals je ze in Israël ook zou eten.

Sjefietshe-Amsterdam-Restaurant-01
Sjefietshe-Amsterdam-Restaurant-06-750×1000
15
Adres
Van Ostadestraat 1,
1072 SL Amsterdam

Sjefietshé

Sjefietshe is een cevicheria in het midden van de Pijp, met een mooi terras met genoeg plek. Voor eenieder die niet bekend is met het heerlijke Zuid-Amerikaanse gerecht: het klassieke Peruviaanse voorgerecht bestaat uit rauwe (wit) vis die ‘gegaard’ is in limoensap. Het gerecht wordt geserveerd met chili, koriander, rode ui en een oceaan aan limoen. Een overdonderende smaaksensatie en daarom ook moeilijk om goed te evenaren. Sjefietshe doet een goede poging en maakt met een Amsterdamse flair een goede eigen variant. Naast de ceviches met verschillende soorten vis is er ook de optie om van lekkere bites te genieten, waaronder de Sjefietshe special: de door hun uitgevonden ‘hotdoctopus’. Genoeg redenen om hier dus langs te gaan en voor jezelf te besluiten of de zaak erin slaagt je mee te nemen naar hogere Zuid-Amerikaanse sferen!

Schermafbeelding 2022-06-20 om 14.04.47
16
Adres
Ferdinand Bolstraat 37,
1072 LB Amsterdam

Onigiri YA!

De meeste mensen die door de Pijp struinen voor Japans komen niet veel verder dan het denken aan sushi en bubble tea (ook al komt dit oorspronkelijk uit Taiwan). Bij Onigri Ya staat dan ook specifiek op de deur vermeld dat deze items hier niet te koop zijn. In plaats daarvan is Onigri Ya een authentiek Japans restaurant en daarnaast ook een kruideniers- en delicatessenwinkel. Zoals verwacht zijn de Onigri’s een specialiteit: gekruide Japanse rijstballen in verschillende vormen, bedekt met nori en met vullingen van vis tot fruit. Voor eenieder die wel eens naar animé kijkt, Onigri Ya brengt het voedsel wat eenieder zo doet watertanden van het beeldscherm naar een lief klein winkeltje in de Pijp. Simpelweg een must-go.

image-asset
17
Adres
Ceintuurbaan 71 H,
1072 EW Amsterdam

Kafé Kontrast

Kafé Kontrast is ontstaan uit de liefde voor het ongecompliceerde. Ze laten zich  inspireren door hun Scandinavische roots en de charme van cafés in Zuidoost-Azië.  De essentie is om een ruimte te creëren waar mensen kunnen eten, drinken en gewoon zichzelf kunnen zijn. Op doordeweekse dagen bieden ze een diner aan en in het weekend serveren ze brunch.

downloadgram.org_559269343_17863440108473004_1651162527312755216_n
18
Adres
Albert Cuypstraat 82-H,
1072 CX Amsterdam

Crema

Crema groeide uit tot een geliefde hotspot door zijn ambachtelijke softijs, gemaakt van verse lokale melk en room, zonder kunstmatige smaken of kleurstoffen. Met echte vanille uit Madagaskar staat kwaliteit hier centraal, tot in het kleinste detail. Naast ijs kun je er terecht voor specialty coffee en homemade cookies, waardoor het net zo goed een koffiestop als een dessertplek is. De menukaart speelt met contrasten, van klassieke coupes tot de verrassende combinatie van soft serve met premium olijfolie en Maldon zeezout.

339816079_240302538447892_8075740380035601622_n
19
Adres
Van Baerlestraat 47-49,
1071 AP Amsterdam

L'Entrecôte et les Dames

L’Entrecôte et les Dames omarmt het concept van een formule-restaurant, zoals de Fransen het noemen. Binnen een sfeervol ingerichte Franse brasserie staat de entrecôte centraal, altijd met een lichte 'bleu' bereiding van het Maas-Rijn-IJsel rund. Dit wordt geserveerd met frietjes en een verfrissende salade. Als je hierna nog trek hebt krijg je nog een keer een portie opgediend. Liever geen vlees? Als alternatief serveren zij in roomboter gebakken sliptong met ravigottesaus. Zelfde formule en zelfde prijs als het entrecôte menu.

344794704_172401005427383_4729904843469609369_n
347634872_1412020886212625_495521124589363058_n
20
Adres
Frans Halsstraat 28,
1072 BS Amsterdam

Café Caron

Café Caron werd geboren uit de inspiratie van Alain en Roeltje thuis. Hun zonen Tom en David wilden een restaurant beginnen dat aanvoelde alsof je aan hun eigen eettafel zat, waar top gerechten zonder poespas in een huiselijke setting werden geserveerd. De menukaart is compact en wisselt naargelang het aanbod van het seizoen. De wijnkaart is stevig geworteld in Frankrijk. Inmiddels is het familiebedrijf uitgegroeid tot 4 zaken.

Boodschappen
downloadgram.org_608197557_17886555126421954_6843272127401052487_n
21
Adres
Saenredamstraat 32,
1072 CH Amsterdam

Layers Bakery

Layers is een bakery en deli in Amsterdam, opgericht door de Franse patissier Alexandre Scour, die zijn vakmanschap vertaalt naar een plek waar alles laag voor laag wordt opgebouwd. In de ochtenden draait boven het open pastry lab op volle toeren met boterige croissants, viennoiserie en patisserie die volledig in huis worden gemaakt. In de middag verplaatst de aandacht zich naar beneden, waar de deli verse sandwiches serveert met dezelfde toewijding aan kwaliteit en detail. Het concept draait om ambacht zonder opsmuk, met eten dat precies en met aandacht is bereid.

86970959_3017388671613224_8101255914595549184_n
22
Adres
Van Baerlestraat 67,
1071 AR Amsterdam

Renzo’s Delicatessen

Bij Renzo’s Delicatessen draait het om huisgemaakte, culinaire en Italiaanse producten. Alle gerechten worden hier dagvers gemaakt. Naast Renzo’s klassiekers is er ook een variërend menu. Voor de een is Renzo’s een buurtwinkel en voor de ander een plek om te lunchen of dineren. Je kan er ook terecht voor boodschappen, een Italiaanse meeneem menu of  een broodje. En dan vooral het broodje Dino: rundergehakt of warme kippendijen met de beruchte dinosaus, zonnemayo, rucola en zongedroogde tomaatjes.

Interieur
Pasted Graphic
23
Adres
Gerard Doustraat 54,
1072 VT Amsterdam

Duikelman

In het hart van De Pijp vind je Duikelman, al sinds 1940 dé kookwinkel van Amsterdam. Van espressomachines tot Japanse messen – elke kok, professioneel of thuis, raakt hier geïnspireerd. De speciaalzaken op de Ferdinand Bolstraat en Gerard Doustraat vormen samen een culinair walhalla. Hier proef je niet alleen kwaliteit, maar ook vakmanschap. Een must voor wie koken als ambacht ziet.

Scherm­afbeelding 2025-07-23 om 14.24.00
Scherm­afbeelding 2025-07-23 om 14.23.36
24
Adres
Eerste Jan van der Heijdenstraat 103B,
1072 TN Amsterdam

Juki Amsterdam

JUKI Amsterdam is een ode aan design met karakter. In de showroom in De Pijp vind je iconische vintage meubels, lampen en objecten – elk met een verhaal.Van Bauhaus tot Memphis, met liefde geselecteerd en klaar voor een tweede leven.  JUKI Amsterdam biedt haar collectie aan via de webshop, met elke donderdag om 18:00 uur (CET) een nieuwe drop. De showroom in De Pijp is open op afspraak én elke zaterdag van 12:00 tot 18:00.

Een appartement met het comfort van een hotelsuite. Een ontwerp van Anne Claus

Een appartement met het comfort van een hotelsuite. Een ontwerp van Anne Claus

Uitgelicht; Garage Du Vin

Uitgelicht; Garage Du Vin

Ontmoet de ondernemer, in deze serie Evelien en Kiriakos Polichronakis, eigenaar en chef van Griekse traiteur Mitsos

Ontmoet de ondernemer, in deze serie Evelien en Kiriakos Polichronakis, eigenaar en chef van Griekse traiteur Mitsos

Onlangs bekeken
Bekijk het overzicht

Deze site maakt gebruik van cookies.

Voor welke cookies geef je akkoord?