Een uniek "vakwerk" huis, dat op een prachtige wijze is getransformeerd tot een designhuis. Dit stoere, strakke, verrassende en speelse gezinshuis heeft een totaal bruto vloeroppervlakte van meer dan 373 m², waarvan 313 m² gebruiksoppervlakte. Het huis heeft zijn eigen sfeer en karakter, en biedt veel luxe. Bovendien is het halfvrijstaand en daardoor zeer privé, en het is uitzonderlijk goed geïsoleerd voor geluid van binnen naar buiten en vice versa. Met het aangrenzende schoolbuurpand dat 's avonds en in het weekend leeg is, geniet je hier van veel rust en stilte.
Rondleiding
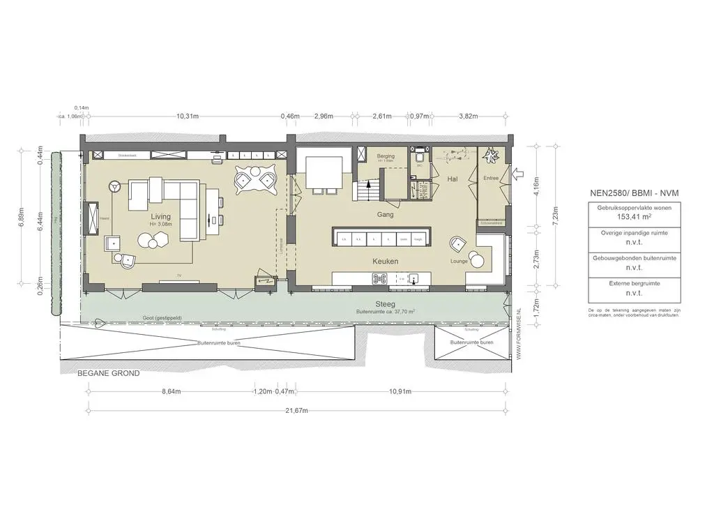
Dit pand heeft een prachtige en stoere gevel met originele 19e-eeuwse dubbele deuren. De ruime hal heeft een bakstenen muur, betonnen vloer en stalen deuren, samen met een grote garderobe. De woonkeuken biedt een gezellige zit- en eethoek met uitzicht op de gracht en een ruime luxe keuken van Italiaans design. De keuken is op maat gemaakt en voorzien van hoogwaardige apparatuur. Er is ook een tweede zithoek grenzend aan de keuken en een grote woonkamer met een plafondhoogte van ruim 3 meter met veel ramen, een visgraatvloer en een gashaard.
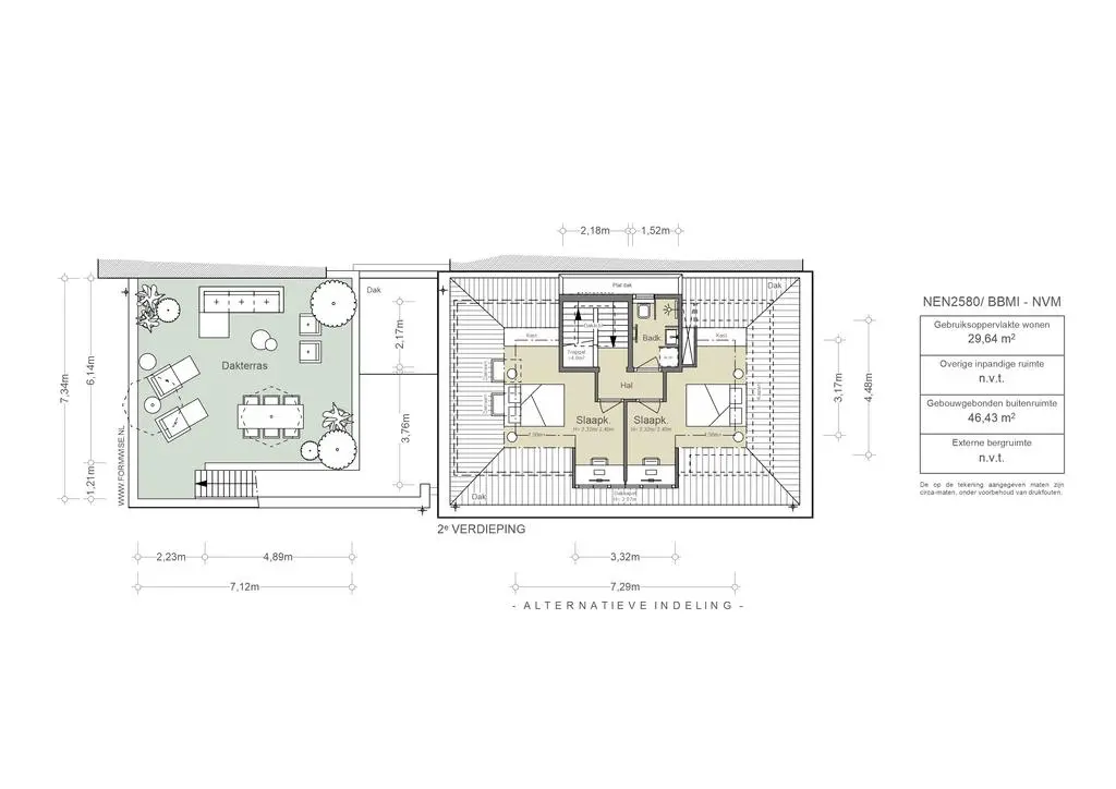
Op de eerste verdieping met een plafondhoogte van 2,90 meter bevinden zich een ruime overloop, drie slaapkamers, een luxueuze badkamer en een mastersuite met kleedruimte en open badkamer. Het huis heeft ook een sauna, inbouwkasten en een extra badkamer op zolder. De zolderruimte is ideaal voor een au pair, nanny of zelfs een apart appartement voor een studerend kind. Buiten is er een prachtig dakterras, een patio-terras en een eigen steeg die toegang geeft tot de gracht. Het pand biedt veel mogelijkheden voor ontspanning en genieten van buitenruimtes.
Buurtgids
Gelegen aan een rustige en idyllisch grachtje aan de oostzijde van de Jordaan nabij Leidsegracht en Prinsengracht. Vanaf hier is ook Oud West op loopafstand.
Winkels, theaters zoals de Nieuwe De La Mar, bioscopen, musea en galeries, volop horecagelegenheden en poppodia als De Melkweg en Paradiso; deze zijn allen te vinden op een steenworp afstand.
Bijzonderheden
• Feitelijk als 1 woning in gebruik; als 2 huisnummers, 21A en 21B, te boek
• Mogelijkheid huren parkeerplaats(en) op 300 meter afstand
• Mogelijkheid tot aanvraag 2 parkeervergunningen;
• Unesco Wereld erfgoed
• Rijksbeschermd stadsgezicht
• Recent uitgebouwd
• Gestoffeerd
• Luxe sauna
• Hoofdslaapkamer voorzien van airconditioning
• Binnen- en buiten videobewaking
• Gelegen op erfpachtgrond van Gemeente Amsterdam. Huidig tijdvak 23-04-2020 t/m 30-06-2061, AB 2000, te betalen canon bedraagt € 18017,24 per jaar
• Erfpachtcanon is op basis van AB 2016 vastgeklikt voor canonbetaling per 01-07-2061 met jaarlijkse indexerig
• In beginsel IB aftrekbaar van inkomstenbelasting.
• Volledig geïsoleerd met onder andere isolatieglas en dakisolatie
• Achterhuis betreft nieuwbouw uit 2014 en 2020 met onder andere nieuwe fundering
Het Vakwerk Pand
Destijds heb ik het pand in oude en casco staat gezien. Het werd toen door de woningbouwvereniging verkocht. Voor veel partijen, en degene waarmee ik keek, was het een te groot project en een gebouw met vele uitdagingen, dat alles bij elkaar snel een te hoge hindernis was.
De huidige eigenaren hebben toen wel hun nek uitgestoken en de potentie ervan ingezien. Zij zijn het avontuur aangegaan. Na alle plannen bedacht te hebben en te hebben uitgewerkt, is de aannemer aan de slag gegaan. Wij zagen het pand pas voor het eerst toen het grootste deel af was. Wederom iets heel bijzonders. Op dat moment was de uitbouw aan de achterzijde en het terras nog niet gerealiseerd. Die is in de tweede instantie uitgevoerd en afgebouwd en hierdoor is het pand meer compleet gemaakt. Daar de eigenaren buiten Amsterdam gingen wonen en de optie open wilde houden op termijn terug te keren naar hun stadpaleisje, is het pand de laatste jaren verhuurd geweest. Nu is er in overleg besloten toch te gaan verkopen, en is ons gevraagd op zoek te gaan naar kopers die de waarde onderkennen van hoe uniek dit gebouw is.
Degene die zich gelukkig mag prijzen als koper, zal er zeker een prachtige tijd tegemoet gaan. Iedere bezoeker zal dat iedere keer opnieuw bevestigen.
Kees Kemp | Makelaar Broersma Wonen
Daniël de Bont | Makelaar Broersma Wonen
Passeerdersgracht: Deze naam herinnert aan de passeerderij, zoals men de bereiding van Spaans leer noemde. Toen in 1631 dit soort van leerbewerking in de oude binnenstad werd verboden, vestigden de passeerderijen zich hier naast de reeds bestaande leerlooierijen (Looiersbuurt). Dit bijzondere pand is in 1895 afgebouwd als gereedschap bergplaats voor de Dienst der Publieke Werken.
Het pand onderscheidt zich doordat de gevel is opgebouwd uit houten vakwerk die de grond verdeeld in gevels. De vakken zijn gevuld met metselwerk, raamvlakken en traditioneel grote deuren. Het houten vakwerk onderscheidt zich doordat deze wit is geschilderd en metselwerk en raampartijen respectievelijk steenrood en monumentengroen is. De kap is een traditionele zadeldak met Tuile du Nord pannen.
In 2014 is het geheel gerestaureerd en uitgebouwd. Naar ontwerp van architectenbureau Gietermans en Van Dijk is er aan de achterzijde een nieuw achterhuis ontworpen en gebouwd. Met wit gepleisterde gevel en houten aftimmeringen is de oppervlakte en het gebruik vergroot. Daarbij is er kwalitatieve buitenruimte gecreëerd met een heerlijk dakterras.
Het interieur is deels historisch en deels modern, compleet met hedendaags comfort en luxe. Daar waar mogelijk is de historie van het gebouw zichtbaar gelaten. Als geheel is het Vakwerk Pand een heel mooi en spannend huis dat elke keer weer opnieuw verrast.
Het pand heeft een fraaie en stoere gevel met de originele 19e eeuwse dubbele deuren als entree tot een ruime hal. Deze hal heeft een brickwall, betonvloer en stalen deuren. De hal heeft een grote garderobe. Het entree heeft een video toegangssyteem welke is aangesloten op het home domotica systeem. De hal geeft toegang tot de woonkeuken en de centrale hal met trappenhuis en toilet. De woonkeuken heeft een gezellige geïntegreerde zit-/eethoek met grachtenzicht en een lang en strak in wit uitgevoerde ruime luxueuze keuken. De keuken is op maat gemaakt Italiaans design van de firma Boffi en heeft de topline van Gaggenau inbouw apparatuur waar met name de koel-vries combinatie van 150 cm breed een eyecatcher is. Daarnaast is de keuken onder andere met een Quooker en een Avintage wijnklimaatkast uitgevoerd. Aan de keuken grenst nog een tweede ziteethoek aan een tweede brickwall. Via originele houten openslaande deuren en een additionele open doorgang is er een verbinding naar de 71 m² grote woonkamer. Riant met grote raampartijen, eiken visgraat, een Bellfire gashaard en geïntegreerde wandmeubels en TV.
De eerste verdieping is via een brede trap met bordes toegankelijk. Deze geeft toegang tot een ruime overloop met studiehoek en toilet. Dit deel van het huis heeft drie slaapkamers en een ruime en luxueuze badkamer. Via een tussenhal met toilet en sauna is de mastersuite bereikbaar. Deze hoofdslaapkamer meet totaal circa 45 m² en kent een loftachtige indeling met veel kleedruimte middels notenhouten maatkasten, een luxe open badkamer met onder andere een ligbad en dubbele douche. Baden, wastafels en kranen in het hele huis zijn van het ‘Marike’ (marike.com) en van ‘Cocoon’ (bycocoon.com/nl). De sauna is mooi ingetogen en uitgevoerd in cederhout met een glazen pui. De sauna is naast het terras gesitueerd om ook buiten te kunnen afkoelen. Samen biedt het een complete wellness ervaring. De vele inbouw kledingkasten zijn allen op maat ingebouwd. In het voorhuis is een kap-verdieping die zich goed leent als gym of speelzolder. Veel bergruimte en extra badkamer met douche en toilet, maken deze verdieping ook geschikt voor een nanny-ruimte of gastenverblijf.
Het huis heeft een waanzinnig fraai dakterras met veel zon en privacy! Deze ligt vrij en beschut en is mooi afgewerkt. Naast het dakterras is er een patio-terras en nog een buitenruimte op de begane grond. In het voorhuis is een kap-verdieping die zich goed leent als gym of speelzolder. Verder geeft de woonkamer ook toegang tot een unieke eigen steeg over de volle lengte van het huis van bijna 22 meter lang en 1,70 meter breed. Deze steeg heeft eigen privédeuren die direct toegang geven tot de gracht, dit is zeldzaam binnen de grachtengordel! Het is ideaal voor fietsen en heerlijk voor buiten vertoeven via de ruime openslaande deuren van de woonkamer.
De Passeerdersgracht bevindt zich in het hart van de bruisende Jordaan, één van de meest geliefde wijken van Amsterdam. De Jordaan staat bekend om zijn pittoreske straatjes, historische grachtenpanden en levendige sfeer. Het is een populaire bestemming voor zowel de lokale bevolking als toeristen van over de hele wereld. De Passeerdersgracht zelf is een rustige en charmante straat, omgeven door prachtige architectuur. Men zal hier een mix van historische gebouwen en moderne appartementen vinden. Het is een aantrekkelijke buurt met een vriendelijke en gastvrije sfeer. Op loopafstand van de woning is een breed scala aan voorzieningen te vinden. De nabijgelegen Elandsgracht is een levendige straat met diverse winkels, boetiekjes, cafés en restaurants. Een andere populaire straat in de buurt is de Rozengracht. Deze straat staat bekend om zijn vele theaters, bioscopen en concertzalen. Eén van de grote voordelen van de buurt is de nabijheid van de prachtige grachten van Amsterdam. Op korte loopafstand bevindt men zich aan de rand van de beroemde grachtengordel, die op de werelderfgoedlijst van UNESCO staat. Hier kan er gewandeld worden langs de grachten, genoten worden van het uitzicht op de historische gebouwen en zelfs een rondvaart maken om de stad vanaf het water te verkennen.
Bereikbaarheid
De woning is centraal gelegen, zo is het 7 minuten fietsen naar Centraal Station, vanwaar alle mogelijk bestemmingen te bereiken zijn. Op 2 minuten loopafstand is er een tramhalte en bushalte (Elandsgracht) waar trams 5 ,7 en 19 en bussen N84 en N88 stoppen. Verder is de woning ook met de auto goed te bereiken, via verschillende uitvalswegen op de ring van Amsterdam.
Parkeergelegenheid
Parkeren is mogelijk via een vergunningenstelsel op de openbare weg (vergunningsgebied Centrum-2d). Met een parkeervergunning voor Centrum-2d mag u parkeren in Centrum-2. Een parkeervergunning voor bewoners kost € 326,65 per 6 maanden. Momenteel is er voor dit vergunningsgebied een wachttijd van 17 maanden. Een tweede parkeervergunning is in dit gebied niet mogelijk. Naast de openbare weg is het met een parkeervergunning mogelijk om te parkeren in garage Europarking. (Bron: Gemeente Amsterdam, september 2025).