In het oudste gedeelte van Amsterdam Centrum ligt dit monumentale en charmante grachtenpand van circa 82m², gelegen binnen de grachtengordel. Het beschikt over een woonkeuken, woonkamer, slaap-/werkkamer en een slaapkamer met badkamer op de bovenste etage. Gelegen op eigen grond.

Rondleiding
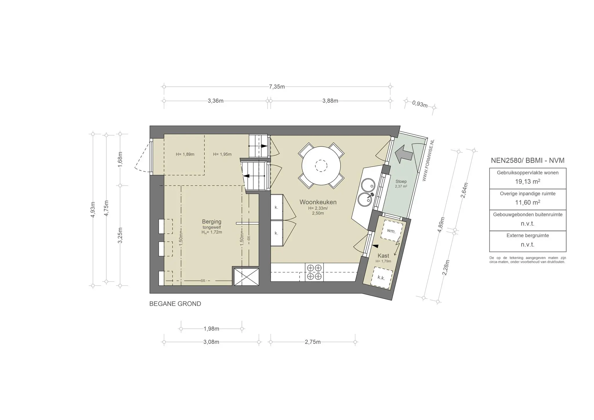
Bij binnenkomst wordt direct de authentieke sfeer van het pand ervaren. De keuken is voorzien van oude tegels op de vloer en de achterwand van het aanrecht is versierd met Delftsblauwe tegeltjes, die een warme, huiselijke uitstraling geven. Onder de keuken bevindt zich een ruime kelder voor opslag. Aangrenzend aan de keuken, in het oude “pothuis,” zijn de wasmachineaansluiting en de meterkast te vinden. Via het trappenhuis, bekleed met witjes die het historische karakter van het pand versterken, is de eerste verdieping bereikbaar. Hier bevindt zich de woonkamer, waar tijdens de restauratie in 1999 de originele okergele lambrisering werd ontdekt en zorgvuldig teruggebracht, met subtiele accenten van ossenrood. De hoge ramen bieden een prachtig uitzicht op de gracht en de Oudemanhuispoort.
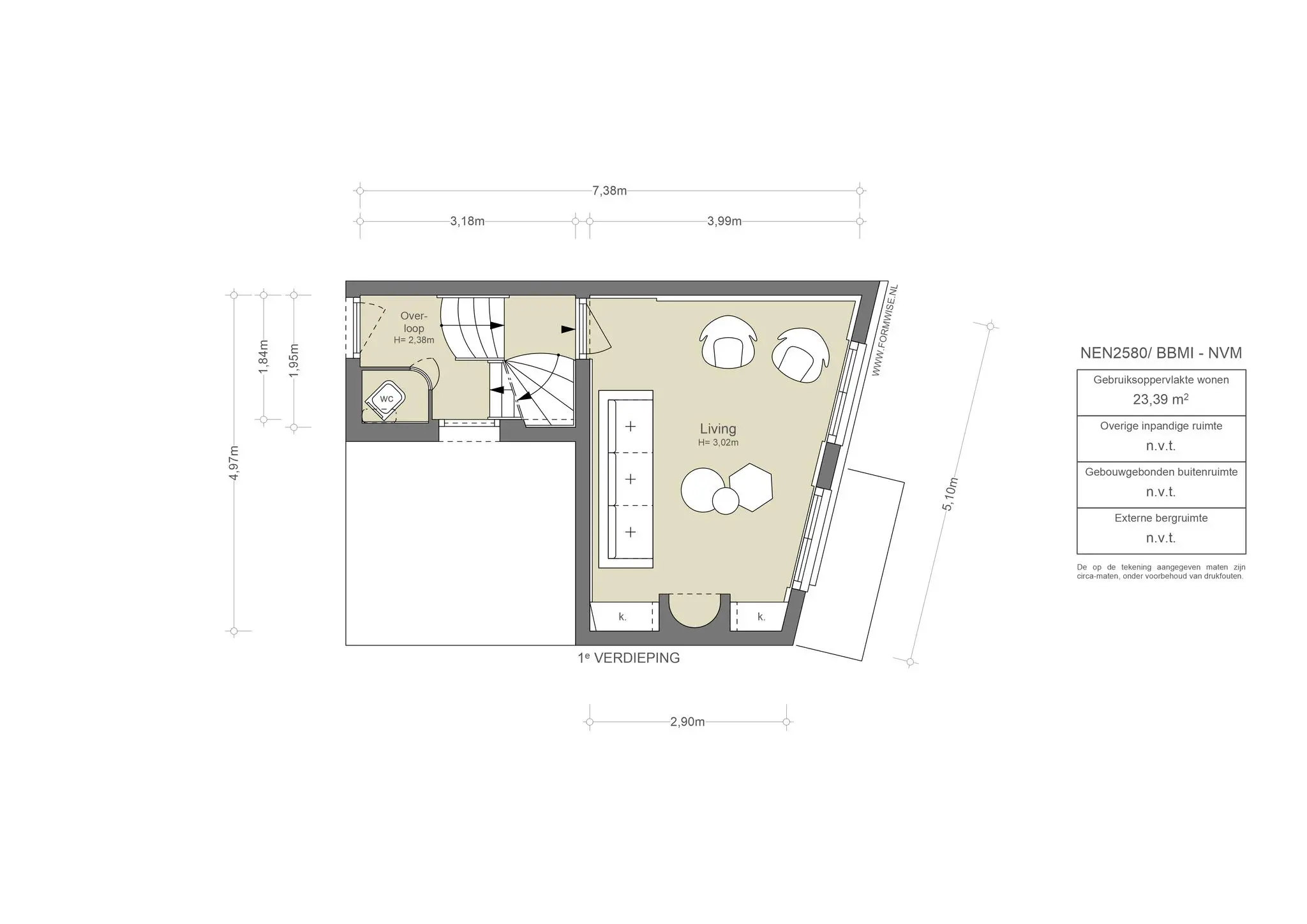
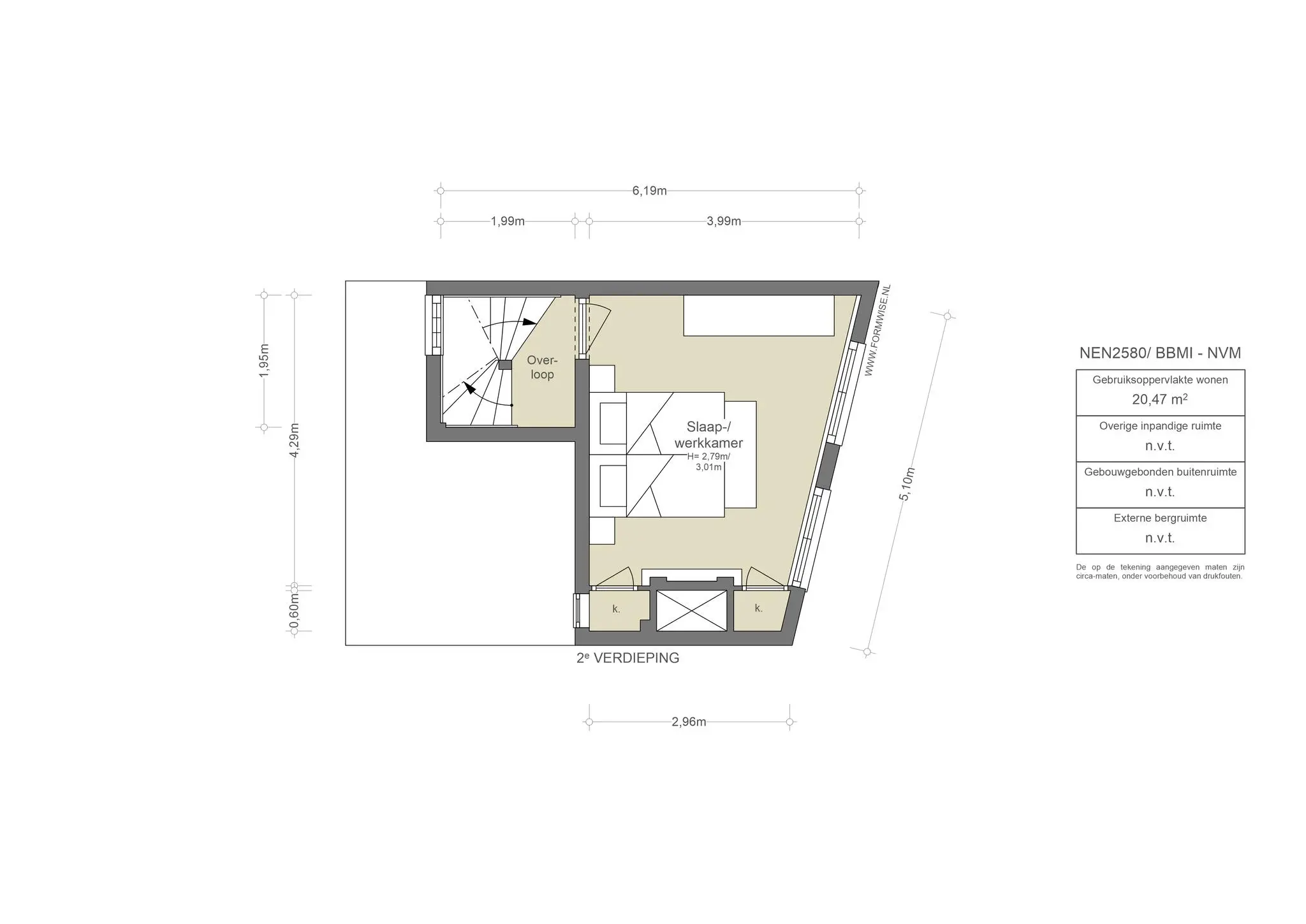
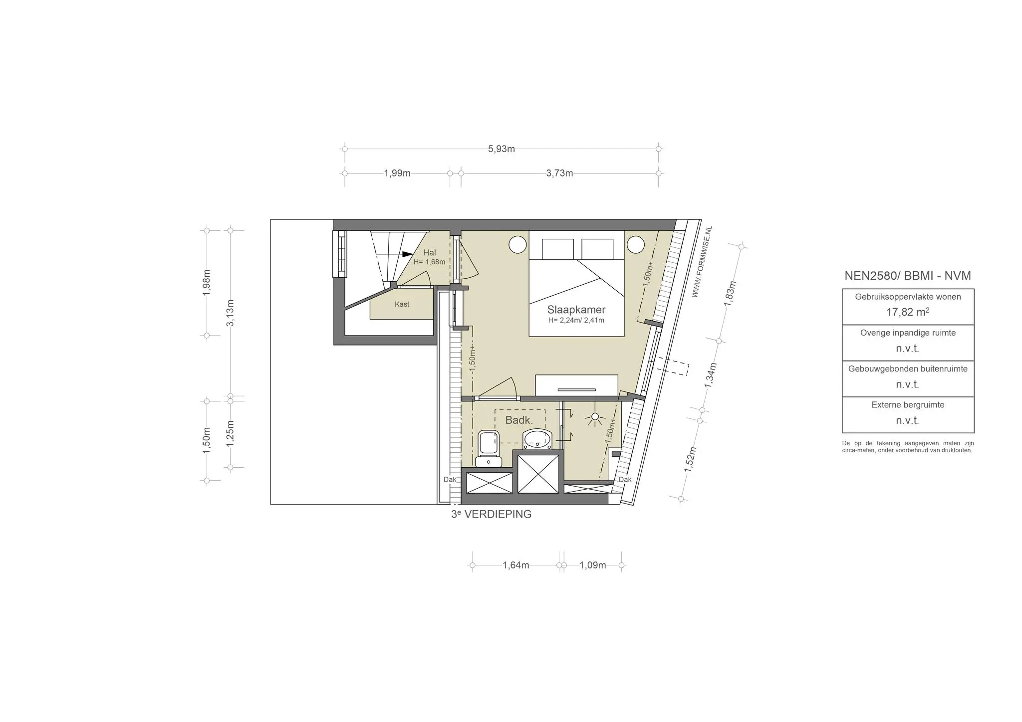
Op de tweede verdieping bevindt zich een werkkamer die ook als slaapkamer kan dienen, met een schouw en ingebouwde kasten. De bovenste verdieping herbergt de tweede slaapkamer en de badkamer. De slaapkamer is ruim en knus, gelegen onder de dakbalken en de badkamer is voorzien van een douche, wc en wastafel.

Wat de bewoners gaan missen 
"We zaten het liefst aan het water met een tafeltje en wat stoeltjes wat te eten en te drinken in de zon. Heerlijk stokbrood en croissants halen we in de Lange Brugsteeg bij de zoete inval met de bijzondere naam: 'de Laatste Kruimel'."

Buurtgids 
Dit grachtenpand is gelegen in het hart van het centrum van Amsterdam, omringd door een rijk cultureel aanbod zoals de Nationale Opera & Ballet, de Hermitage Amsterdam, het Allard Pierson Museum en Foam. De levendige Nieuwmarkt, met elke zaterdag een boerenmarkt, biedt daarnaast een charmante sfeer. De centrale ligging biedt een gevarieerd winkelaanbod in de directe omgeving, van boetieks tot bekende merken. In de buurt bevinden zich ook gerenommeerde restaurants en grand cafés, zoals De Jaren, Freddy’s Bar en Restaurant Flore. En 'last but not least': De Laatste Kruimel, een ambachtelijke bakker die beroemd is om zijn heerlijke scones.

Bijzonderheden
•    Gebruiksoppervlakte wonen circa 82 m²
•    Gelegen op eigen grond
•    Geheel grachtenpand (vier verdiepingen plus kelder)
•    Charmant & karakteristiek grachtenhuis
•    Originele elementen zoals tegels en lambrizering
•    Rijksmonument
•    Rijksbeschermd stadsgezicht
•    Onderdeel UNESCO Werelderfgoed
 

AM105681-1944471-Oudezijds-Achterburgwal-212,-Amsterdam-206122337

Bij De Tabaksmakelaar
Dit monumentale grachtenpand aan de Oudezijds Achterburgwal is volgens beschikbare documenten gebouwd in het tweede kwart van de 18e eeuw. De naam die aan de woning is gegeven, verwijst naar de rijke geschiedenis van het pand, gelegen in de voormalige tabaksbuurt. In de Nes, Frascati en de Brakke Grond vonden tabaksveilingen plaats, waar tabak werd gedroogd en sigaren op grote schaal werden gerold. Het Makelaarsbruggetje, tegenover de Agnietenkapel, was een handige doorgang voor tabaksmakelaars om snel naar de veilingen aan de overkant van de gracht te komen. Deze makelaars, die eveneens in grachtenpanden woonden, hadden ook dit grachtenpand in hun bezit. Het grachtenpand was altijd verbonden met het grachtenpand aan de Oudezijds Voorburgwal, waar de tabaksopslag zich bevond.
Wij mogen dit bijzondere, historische grachtenpand verkopen namens de huidige eigenaren, die het pand sinds 1970 in bezit hebben en er jarenlang met veel plezier hebben gewoond. Enkele jaren geleden verhuisden zij naar het grachtenpand aan de Oudezijds Voorburgwal en verhuurden het grachtenpand op nummer 212. Wij hebben de eer dit bijzondere grachtenpand te verkopen aan een nieuwe bewoner die zich een plek in het hart van de stad wenst.


Daniël de Bont | Makelaar Broersma Wonen
AM105681-1944471-Oudezijds-Achterburgwal-212,-Amsterdam-206122315
Geschiedenis

De Oudezijds Achterburgwal maakt deel uit van de middeleeuwse stad en markeerde ooit de oostelijke grens van Amsterdam. Tot het einde van de 14e eeuw deelde de Amstel de stad in twee gelijke delen: de oude zijde met de Oude Kerk en de nieuwe zijde met de Nieuwe Kerk. Ter bescherming van de stad werd aan beide zijden een gracht gegraven, met daarachter een burgwal, een aarden wal voorzien van een houten palissade. Rond 1385 werd een nieuwe wal aangelegd achter de bestaande, en werd de oude wal de Voorburgwal en de nieuwe de Achterburgwal, zowel aan de oude als de nieuwe zijde van de stad. Dit leidde tot de namen Oudezijds Voorburgwal, Oudezijds Achterburgwal, Nieuwezijds Voorburgwal en Nieuwezijds Achterburgwal (nu de Spuistraat). De Oudezijds Achterburgwal werd in 1367 gegraven en kreeg na een dijkdoorbraak in 1380 de nieuwe Sint Antoniesdijk, die in 1387 werd aangelegd.
Voor de Alteratie in 1578 bevonden zich in deze buurt veel kloosters. Amsterdam herbergde 16 vrouwenkloosters en drie mannenkloosters, waarvan de meeste aan de Oudezijds Achterburgwal. De namen van vele zijstraten herinneren nog aan deze kloosterhistorie, zoals de Bethaniënstraat en Monnikenstraat. Ook het Spinhuis, een vrouwengevangenis voor zwervers en bedelaars, stond aan de Oudezijds Achterburgwal.
De Oudezijds Achterburgwal herbergt meer dan 100 rijksmonumenten, waaronder de Oudemanhuispoort (thans de locatie van de Universiteit van Amsterdam), de Waalse Kerk en De Gecroonde Rae (een grachtenhuis). In 2006 werd de Oudezijds Achterburgwal gerenoveerd door de gemeente Amsterdam, wat bijdroeg aan het behoud van dit historische stadsdeel.

AM105681-1944471-Oudezijds-Achterburgwal-212,-Amsterdam-229296980
AM105681-1944471-Oudezijds-Achterburgwal-212,-Amsterdam-206122369
AM105681-1944471-Oudezijds-Achterburgwal-212,-Amsterdam-206122343
AM105681-1944471-Oudezijds-Achterburgwal-212,-Amsterdam-206122379
Wonen en koken

Bij binnenkomst wordt meteen de historische sfeer van het pand duidelijk voelbaar. De keuken, met authentieke tegels op de vloer, een ingebouwde buffetkast en de prachtig gedecoreerde Delftsblauwe tegeltjes op de achterwand van het aanrecht, ademt de sfeer van de 18e eeuw. Deze originele details geven de keuken een warme, huiselijke uitstraling. De ruimte onder de keuken biedt een kelder met veel opbergruimte, en in het oude “pothuis” bevinden zich de wasmachineaansluiting, een aansluiting voor een koelkast en de meterkast.
Het trappenhuis, met zijn muren bekleed met historische witte tegeltjes (‘witjes’) die het oude karakter van de woning versterken, leidt naar de woonkamer op de eerste verdieping. Hier stuiten we op een bijzonder detail dat tijdens een restauratie in 1999 werd ontdekt: de lage houten lambrisering, oorspronkelijk okergeel, is met zorg teruggebracht naar zijn authentieke kleur, met subtiele accenten van ossenrood. Dit zorgt voor een rijke, historische uitstraling. De hoge ramen bieden een prachtig uitzicht over de gracht en de Oudemanhuispoort aan de overzijde.

AM105681-1944471-Oudezijds-Achterburgwal-212,-Amsterdam-206122349
AM105681-1944471-Oudezijds-Achterburgwal-212,-Amsterdam-206122401
AM105681-1944471-Oudezijds-Achterburgwal-212,-Amsterdam-206122461
AM105681-1944471-Oudezijds-Achterburgwal-212,-Amsterdam-206122415
AM105681-1944471-Oudezijds-Achterburgwal-212,-Amsterdam-206122667
AM105681-1944471-Oudezijds-Achterburgwal-212,-Amsterdam-206122661
Slapen en baden

Op de tweede verdieping bevindt zich een werk-/slaapkamer met uitzicht over de gracht. Ook hier komen authentieke elementen terug, zoals ingebouwde kasten en een schouw, die de historische charme van het pand versterken. Deze verdieping kan op multifunctionele wijze in gebruik genomen worden.
De derde en bovenste verdieping herbergt de sfeervolle slaapkamer en de badkamer. De slaapkamer is voorzien van een karakteristieke balkenstructuur, wat het geheel een speelse indeling geeft door de schuine wanden en zichtbare balken. De badkamer is functioneel ingericht met een douche, wc en een wastafel, en biedt alles voor een comfortabel verblijf.

AM105681-1944471-Oudezijds-Achterburgwal-212,-Amsterdam-206122601
AM105681-1944471-Oudezijds-Achterburgwal-212,-Amsterdam-206122693
AM105681-1944471-Oudezijds-Achterburgwal-212,-Amsterdam-206122719
AM105681-1944471-Oudezijds-Achterburgwal-212,-Amsterdam-206122829

Buurtgids
Dit grachtenpand is gelegen in het hart van het centrum van Amsterdam, omringd door een rijk cultureel aanbod zoals de Nationale Opera & Ballet, de Hermitage Amsterdam, het Allard Pierson Museum en Foam. De levendige Nieuwmarkt, met elke zaterdag een boerenmarkt, biedt daarnaast een charmante sfeer. De centrale ligging biedt een gevarieerd winkelaanbod in de directe omgeving, van boetieks tot bekende merken. In de buurt bevinden zich ook gerenommeerde restaurants en grand cafés, zoals De Jaren, Freddy’s Bar en Restaurant Flore. En ‘last but not least’: De Laatste Kruimel, een ambachtelijke bakker die beroemd is om zijn heerlijke scones, croissants, taarten en quiches..

Bereikbaarheid
Het grachtenpand is zowel met de fiets, auto als openbaar vervoer zeer goed bereikbaar. De Ring A10 is al binnen 15 tot 20 autominuten te bereiken. Vanaf zowel halte Rokin als halte Koningsplein vertrekken meerdere tramlijnen, zoals tram 2, 4, 12 en 14 naar Centraal Station en Nieuw Sloten, Javaplein, Station Rai en Amstelstation. Vanaf metrohalte Rokin vertrekt de Noord-zuidlijn. Vanaf het Centraal Station en Station Noord vertrekt het streekvervoer met onder andere een directe verbinding naar Luchthaven Schiphol. Met de fiets is Station Zuid binnen 5 minuten aan te rijden.

Parkeergelegenheid
Parkeren is mogelijk via een vergunningenstelsel op de openbare weg (vergunningsgebied Centrum-1). Met een parkeervergunning voor Centrum-1 mag u parkeren in Centrum-1 en Centrum- 3. Een parkeervergunning voor bewoners kost € 315,60 per 6 maanden. Momenteel is er voor dit vergunningsgebied een wachttijd van 2 maanden. Een tweede parkeervergunning is in dit gebied niet mogelijk.
Naast de openbare weg is het ook mogelijk om met een parkeervergunning kosteloos te parkeren in garage Rokin en garage Oosterdok Eiland. (Bron: Gemeente Amsterdam, november 2024).

AM105681-1944471-Oudezijds-Achterburgwal-212,-Amsterdam-206122917
AM105681-1944471-Oudezijds-Achterburgwal-212,-Amsterdam-206122909
AM105681-1944471-Oudezijds-Achterburgwal-212,-Amsterdam-206122675
Wat de eigenaren gaan missen

Kom bij ons binnen in de Oudezijds Achterburgwal 212, een huis dat gebouwd is rond 1735; het is beschermd stadsgezicht en Rijksmonument, en dat merk je. We stappen de keuken in, waar je je meteen thuis voelt, met op de vloer oude tegels en boven het aanrecht een wand met Delftsblauwe tegels. Laten we naar boven gaan en je ziet dat het hele trappenhuis bedekt is met oude witte tegeltjes, zogenaamde witjes. Op de eerste verdieping ontdekten we, bij een restauratie in 1999, dat de lage houten lambrisering als onderste verflaag oker had; zo moet het geweest zijn rond 1600 en die kleur hebben we weer teruggebracht, met voor de details de verfkleur ossenrood. Door naar de tweede verdieping. Daar troffen we oude tegeltjes aan met versieringen in een kleur die paars, bordeaux rood benadert. Die tegels hebben we als een mozaïek in de schouw aangebracht en van die kleur hebben we twee lichtere tinten ontleend voor het houtwerk. Dan naar de bovenste verdieping, de slaapkamer waar ook een toilet en douche zijn; de kleur zacht geel leek ons passend bij die intieme ruimte.
Terug naar beneden, naar de straat waar aan de grachtkant geen auto’s geparkeerd kunnen en mogen worden. Dus dat was onze geliefde plek om aan het water tafeltje en stoeltjes te zetten om wat te eten en te drinken. De Oudezijds Achterburgwal is het oudste deel van het centrum van Amsterdam. Wat een genot dat dit stuk van de Achterburgwal zo opmerkelijk rustig is. Ons geliefde restaurant aan de nabij gelegen Geldersekade is het overheerlijke Lastage. Aan diezelfde Geldersekade is onze apotheek die dateert van 1696. Op de ruime Nieuwmarkt wemelt het van de restaurants en cafés met als middelpunt de Waag die stamt uit de vijftiende eeuw; op zaterdag is er een biologische markt. Restaurant Bern, tegenover de Waag, heeft sublieme kaasfondue. Gaan we naar de Kloveniersburgwal met aan het begin de vishandel Tel met een overdaad aan soorten vis. Aan de andere kant is er de prachtige en veelzijdige drogist Jacob Hooy die opgericht werd in 1743. Het interieur is bewaard gebleven, magnifiek. Van daaruit richting Jodenbreestraat, bijna naast het museum Het Rembrandthuis, kopen we onze koffie en thee bij Lévelt waar het uit de overdaad moeilijk kiezen is. Heerlijk stokbrood en croissants halen we in de Lange Brugsteeg bij de zoete inval met de bijzondere naam: “de Laatste Kruimel”. Als je een minuut verder loopt kom je bij het Rokin waar een station van de metro is, van de Noord Zuidlijn, die naar het Centraal Station gaat en in de andere richting naar Station Zuid waar men de trein kan nemen richting de luchthaven Schiphol. Als je bij het Rokin de tramrails oversteekt en iets verder doorloopt passeer je de beroemde winkelstraat, de Kalverstraat, en kom je op het plein dat de naam Spui draagt. Hier zijn twee bijzondere boekwinkels: The American Book Centre, ABC, en Athenaeum. Maar er zijn ook enkele befaamde cafés waaronder Hoppe en Café de Zwart. Loop het steegje door, over de bruggen van het Singel en de Herengracht en je arriveert bij Pompadour, de lekkerste patisserie van Amsterdam, denken wij, waar het interieur wonderschoon is en de prachtige taartjes en bonbons je toelachen. Het is tijd om terug te keren naar de Oudezijds Achterburgwal 212 om daar te genieten van het prachtige uitzicht over de gracht en je echt thuis te voelen in één van de oudste huizen van Amsterdam.

Kiki & Joost

AM105681-1944471-Oudezijds-Achterburgwal-212,-Amsterdam-206122329
Kenmerken
Oudezijds Achterburgwal 212, Amsterdam
Vraagprijs
  • € 795.000 k.k.
Beschikbaarheid
  • In overleg
Vertrekken
  • 4 kamers
  • 2 slaapkamers
  • 1 badkamer
Onderhoud
  • Intern: Redelijk
  • Extern: Redelijk
Oppervlakten & Inhoud
  • Woonoppervlakte: 82 m²
  • Overige inpandige ruimte: 12 m²
  • Perceeloppervlakte: 25 m²
Bouwjaar
  • 1735
Installaties
  • Natuurlijke ventilatie
  • TV kabel
Ligging
  • In centrum
Parkeren
  • Betaald parkeren
  • Parkeervergunningen
Type verwarming
  • CV Ketel
Type warmwater
  • CV Ketel
Bestemming
  • Woonruimte
Eigendomssoort
  • Volle eigendom
Buitenruimte
  • Geen tuin
Kadastraal
  • Gemeente: Amsterdam
  • Sectie: G
  • Nummer: 9379
Duurzaamheid
  • Dakisolatie
Soort
  • Grachtenpand
  • Tussenwoning
  • Woonhuis
Bijzonderheden
  • Beschermd stads of dorpsgezicht
  • Monument
Overige kenmerken

OZB ('24) € 221,76 per jaar
Rioolrecht ('24) € 166,85 per jaar

Plattegrond
Oudezijds Achterburgwal 212, Amsterdam
AM105681-1944471-Oudezijds-Achterburgwal-212,-Amsterdam-206765515
AM105681-1944471-Oudezijds-Achterburgwal-212,-Amsterdam-206765523
AM105681-1944471-Oudezijds-Achterburgwal-212,-Amsterdam-206765527
AM105681-1944471-Oudezijds-Achterburgwal-212,-Amsterdam-206765531
Documenten
Oudezijds Achterburgwal 212, Amsterdam
Locatie
Oudezijds Achterburgwal 212, Amsterdam
Kunst & cultuur
mokum-
01
Adres
Oudezijds Voorburgwal 334,
1012 GM Amsterdam

Galerie Mokum

Galerie Mokum was de eerste galerie in Amsterdam die realistische kunst tentoonstelde. De Galerie is opgericht in 1962 door Dieuwke Bakker in een pand aan de Oudezijds Voorburgwal. De galerie heeft in de voorbijgaande jaren vele verschillende kunstenaars vertegenwoordigd die zich rekenen tot de stroming van het realisme; een reactie op de abstracte en de pop-art kunst van de 20ste eeuw. Bij de figuratieve realistische kunst draait het juist om het afbeelden van herkenbare figuren, objecten en landschappen. Voorbeelden van Nederlandse kunstenaars van het Realisme zijn Henk Helmantel en Gerard Huysman. In Galerie Mokum kun je de werken van Helmantal, Huysman en nog vele andere realistische kunstenaars bewonderen.

0351475001574868608
02
Adres
Kloveniersburgwal 95,
1011 KB Amsterdam

Upstream Gallery

In het 17e -eeuwse monumentale pand het ‘Poppenhuis’ aan de Kloveniersburgwal zit kunstgalerie Upstream Gallery. Deze hedendaagse kunstgalerie heeft binnen korte tijd een internationale reputatie opgebouwd onder verzamelaars, kunstinstituties, kunstcritici en natuurlijk kunstliefhebbers. De focus van de galerie ligt op radicaal, geëngageerde, conceptuele en post-internet kunst en representeert zowel Nederlandse als internationale kunstenaars.

Eten & drinken
zeppos2
03
Adres
Gebed Zonder End 5,
1012 HS Amsterdam

Kapitein Zeppo's

Kapitein Zeppos is al een begrip sinds 1987 in het historische hart van Amsterdam. Je vindt Zeppos in het charmante steegje 'Gebed zonder End', gelegen tussen de Nes, de Oudezijds Voorburgwal en de Grimburgwal. Deze verborgen schat in het oudste deel van Amsterdam brengt je in vakantiestemming met zijn zuidelijke ambiance. Bij het betreden van 'Gebed zonder End' waan je je meteen in Frankrijk, Italië of Spanje. Bij Zeppos kun je niet alleen genieten van smakelijke mediterrane gerechten en een uitgebreide selectie bieren, wijnen en cocktails, maar ook van de beroemde Zeppos chantants.

279320232_5090733947689477_5472404736776999199_n
04
Adres
Langebrugsteeg 4,
1012 GB Amsterdam

De Laatste Kruimel

Als je door de Langebrugsteeg loopt kan het niet anders dan dat je oog valt op het raam van de Laatste Kruimel. Die staat zo vol met lekkernijen dat je wel naar binnen moet gaan. Het is een schattig gezellig plekje waar ze een ruim aanbod aan zoete en hartige lekkernijen hebben. De quiches zijn aan te raden en eigenlijk alle taarten ook. Een perfect plekje om tijdens het slenteren door het centrum van Amsterdam even een pauze te nemen.

05
Adres
Oudezijds Voorburgwal 197,
1012 EX Amsterdam

Oriole

De menukaart van Oriole combineert mediterrane tradities met een moderne twist, met een focus op verfijnde groenten en seizoensgebonden ingrediënten. Gerechten zoals gegrilde pimientos de Padrón, klassieke paté en croûte met uiencompote, en taramasalata met tomatenjam en kalamata-olijven tonen de veelzijdigheid van de keuken. In 2023 werd Oriole bekroond met een Bib Gourmand in de MICHELIN Gids Nederland, een erkenning voor de uitstekende prijs-kwaliteitverhouding. Het terras op de binnenplaats is een prachtige plek.

17097307_1679119559053755_6845664369855800669_o
06
Adres
Rokin 91a,
1012 KL Amsterdam

Bar du Champagne

Bar du Champagne is zoals je waarschijnlijk wel vermoedt een champagne bar met kleine gerechten en barbites. Het is aan het Rokin in hartje Amsterdam. Het is een nieuwe vestiging van Rick Swinckles, de eigenaar van Sjefietshe en Le Coeur. Je kan een champagne bestellen aan de hand van het menu of eentje kiezen uit de winkel in de bar. De prijzen zijn goed te betalen. Ze bieden een samenstelling van oude vintage champagne of bijvoorbeeld Bollinger, Veuve Cliquot, Moët & Chandon.

Schermafbeelding 2022-06-20 om 14.36.53
07
Adres
Nieuwe Doelenstraat 12-14,
1012 CP Amsterdam

Trattoria Graziella

Trattoria Graziella viert de pure Italiaanse keuken in al zijn glorie, met huisgemaakte pasta’s, antipasti’s en uitgebreide hoofdgerechten. Denk aan pappardella met lamsstoof en artisjok of Corvina bereid met tomaat en inktvis. Chef Luigi di Benedetto en zijn team streven naar uitgesproken maar gebalanceerde smaken met aandacht voor detail. Buon appetito!

08
Adres
Nieuwe Doelenstraat 2-14,
1012 CP Amsterdam

Restaurant Flore (**)

‘Chef Bas Van Kranen heeft zuivelproducten uit zijn repertoire gebannen en een primaire plaats gegeven in al zijn gerechten. In deze voornamelijk plantaardige aanpak is er nog wel plaats voor wild, gevogelte en vis. Zo hebben we een mooie herinnering aan een kwartel die in zijn geheel op karkas gegaard werd en aan tafel gepresenteerd werd. En daarna mooi ontbeend met fijne wortelbereiding, duindoornbes en jus van de beentjes op het bord verscheen. Vooraf proefden we onder meer van een aparte combinatie rond witte bonen, hazelnoten en peer met daarna zacht gegaarde zeekat afgewerkt met dauwbraam en dulse wier.’

355451958_3094913100804303_7512211906125210481_n
342046445_949688526364499_2198747169614493523_n
09
Adres
Nieuwe Doelenstraat 2-14,
1012 AC Amsterdam

Marie Amsterdam

Brasserie Marie is verbonden aan het luxueuze Hotel De L'Europe en heeft een mooie ligging aan het water. Het restaurant brengt de smaken van de Côte d'Azur naar het centrum van Amsterdam. Ontdek de Franse keuken met het heerlijke menu vol met de beste gerechten. Chef Jop heeft de kunst van het combineren van moderniteit met de klassieke Franse keuken onder de knie. Geniet van de selectie wijnen, sterke dranken en cocktails die perfect passen bij je maaltijd en geserveerd worden met gastvrijheid van hoog niveau.

242050582_360803685716696_7109183515119121407_n
10
Adres
Nes 37,
1012 KC Amsterdam

Bubbles & wine

In een van de gezelligste straatjes van Amsterdam vind je de champagne- en wijnbar Bubbles & Wines. Als je een selectieve smaak hebt in wijn weet je in ieder geval zeker dat je hier terecht kan voor een glaasje. Er worden namelijk 55 wijnen per glas geserveerd, stuk voor stuk van hoge kwaliteit. Dit kleine, gezellige barretje is de perfecte plek voor alle wijnliefhebbers.

121809131_3509012395830210_6882860816101610842_n
11
Adres
Kloveniersburgwal 59HS,
1011 JZ Amsterdam

Café de Engelbewaarder

Een begrip in Amsterdam is Amsterdamsch Literair Café de Engelbewaarder. Het pand is een rijksmonument en is vernoemd naar de roman Herinneringen van een Engelbewaarder van W.F. Hermans. Al sinds 1947 zit Café de Engelbewaarder midden in de altijd gezellige Nieuwmarktbuurt. Café de Engelbewaarder was het eerste literaire café in Amsterdam en is onder andere bekend van zijn ‘jazz op zondag’ , de gezellige drukke vrijdagavonden en de vele bieren van de tap. Van studenten tot buurtbewoners, tot eigenlijk heel Amsterdam, iedereen is te vinden in dit café. s' Zomers zit je er heerlijk op hun terras aan de Kloveniersburgwal. Je kan er ook terecht voor een goede daghap.

278945606_5310719742273696_7221241987575868234_n
12
Adres
Oudezijds Voorburgwal 177-179,
1012 EV Amsterdam

Oriental city

De go to voor een heerlijke dimsum in het hartje van Amsterdam. Bij Oriental city wordt de klassieke Chinees Kantonese keuken gevierd, terwijl je uitkijkt over de grachten van Amsterdam. Een aanrader is om verschillende gerechten te delen en zo alles te kunnen proeven! Van vegetarisch tot vis en vlees, Oriental heeft voor ieder wat wils.

302010347_495888739209659_6066910017611455600_n
13
Adres
Rozenboomsteeg 4,
1012 PR Amsterdam

Café de Dokter

Café de Dokter ook wel 't Doktertje, is opgericht door een chirurg van het Binnengasthuis. Hij opende het café als ontmoetingsplaats voor artsen en studenten. Tegenwoordig komen de bezoekers overal en nergens vandaan.

308625621_500084445461429_6138057629704289413_n
273840719_3056563714661746_2507089483278792366_n
14
Adres
Rokin 26,
1012 KS Amsterdam

Fulu Mandarijn

Bij Fulu Mandarijn vind je als een van de weinige Chinese zaken in Amsterdam een authentieke Sichuan-keuken. Het lijkt bijna onmogelijk om een keuze te maken van de uitgebreide menukaart. Daarbij hebben ze ook een breed scala aan cocktailmogelijkheden. Je kan er midden in het centrum terecht voor lunch of een diner. Als je langsgaat probeer dan de gekookte zeebaars in hete chilisaus, met enokitake champignon en tofu. Het wordt geserveerd in een hete stenen pot en staat nog sissend op tafel.

11053527_694797250630787_7848248797792553972_o
15
Adres
Rokin 17,
1012 KK Amsterdam

Van Stapele koekmakerij

Ze verkopen maar één soort koekje, maken geen reclame, en de winkel zit verstopt in de Heisteeg. Toch is deze klassieke koekmakerij niet te missen door de lange rij die er dag in dag uit staat. En het is het zeker waard om aan te sluiten in deze rij: het koekje van chocoladedeeg met de rijke cacao is knapperig van de buitenkant en heeft een zachte vulling van boterzachte gesmolten witte chocolade, wat wil je nog meer? De winkel is bijna niet te missen doordat de geur van de koekjes je tegemoetkomt als je over het drukke Spui plein loopt. Voor de chocolade liefhebber een must try!

16
Adres
Amstel 2,
1017 AA Amsterdam

Incanto

Mooi opgemaakte borden, verfijnde smaken en een centrale locatie aan de Amstel. Met uitzondering op de zondag kan je bij Encanto iedere avond terecht voor stijlvol Italiaans eten. De seizoenskeuken wisselt vier keer per jaar van menu. Denk aan Octopus met crème van gegrilde tomaten, paprika en pompelmoes en Fettucine met ragout van wild zwijn. Van primi tot dulci een absolute kwaliteitskaart.

275042291_979211133006208_959133114569991851_n
17
Adres
Regulierssteeg 4,
1017 CP Amsterdam

Pho King

In een steegje bij het Rembrandtplein bevindt zich een kleine Vietnamese zaak. De originele smaak van Pho varieert door het hele land, waarbij het in het midden van Vietnam vaak wat pittiger is en in het noorden zouter. Er zijn slechts een paar zitplekken binnen, maar buiten kun je plaatsnemen op houten krukjes. De soep is gevuld met malse reepjes rundvlees, gehaktballetjes en een flinke dosis koriander, taugé en fijngesneden reepjes rode ui, lente-ui en limoen.

Schermafbeelding 2022-10-10 om 12.05.00
Schermafbeelding 2022-10-10 om 12.05.19
18
Adres
Voetboogstraat 23,
1012 XK Amsterdam

Bhatti Pasel

Na jaren ervaring opdoen in top restaurants en hotels in verschillende landen, opent Tika Pun zijn eigen deuren van Bhatti Pasel. Een authentiek Nepalees restaurant midden in Amsterdam. Je kan er terecht voor een snelle lunch, een diner of een shared dining experience. Ze serveren heerlijke Nepalese, met de keuze uit gestoomde of gefrituurde dumplings (momo), gecombineerd met sesam, tomaat of koriander.

Schermafbeelding 2022-06-20 om 14.22.03
Schermafbeelding 2022-06-20 om 14.22.22
19
Adres
Dam 27,
1012 JS Amsterdam

Restaurant Bougainville

Een diner voor twee of een zakelijke bespreking? Restaurant Bougainville kan je terecht voor een onvergetelijke fine dining ervaring. Met gerechten van wereldklasse hoeft er geen einde aan deze avond te komen. Het restaurant bevindt zich namelijk in het luxueuze Hotel TwentySeven. Combineer de avond met een cocktail experience of overnachten in eigen stad. Aan mogelijkheden geen tekort.

20
Adres
Dam 27,
1012 JS Amsterdam

Bougainville (*)

Gevestigd in het exclusieve Hotel TwentySeven, is Bougainville toegankelijk voor zowel hotelgasten als externe bezoekers. Hier wordt innovatie in de keuken gecombineerd met traditie, wat resulteert in een culinaire reis die alle zintuigen prikkelt. nder leiding van Executive Chef Tim Golsteijn worden westers en oosters geïnspireerde smaken op een creatieve en verfijnde manier gecombineerd. Het menu varieert van een 5- tot 7-gangendiner tot à-la-cartegerechten, bereid met seizoensgebonden ingrediënten en een focus op smaak, textuur en presentatie.

21
Adres
Dam 9,
1012 JS Amsterdam

The White Room by Jacob Jan Boerma (*)

Onder de leiding van Signature Chef Jacob Jan Boerma en Chef de Cuisine Tristan de Boer biedt het restaurant een verfijnde keuken die draait om pure smaken, frisse tonen en een perfecte balans van zuren en specerijen. De gerechten zijn een eerbetoon aan Nederlandse ingrediënten met subtiele wereldwijde invloeden. Het restaurant is gehuisvest in de historische 'Witte Zaal' van Grand Hotel Krasnapolsky, een ruimte die sinds 1885 bekend staat om haar klassieke elegantie. De verfijnde inrichting combineert de grandeur van het verleden met een eigentijdse stijl, wat zorgt voor een unieke en luxueuze ambiance.

Interieur
78552237_3325188250831176_5394966351024488448_n
22
Adres
Rusland 3,
1012 CK Amsterdam

Wonderwood

De naam WonderWood spreekt eigenlijk vrijwel voor zich: een wonderlijke wereld aan allerlei soorten unieke meubels van prachtig hout. Naast dat WonderWood zowel een winkel als een gallerij is, biedt de winkel meer dan meubels alleen: design, kunst en leuke gadgets. Het is een wereld waar er voor eenieder - niet alleen de houtliefhebber - meer dan genoeg te vinden is. Ook is er voor ieders persoonlijke stijl wat wils, of dit nou producten uit de brede collectie vintage zijn, of een hip design item! Wonderwood is daarmee ideaal om in rond te snuffelen, of inspiratie op te doen voor een nieuw interieur.

TW-Reality-Check-3-2800px-600×600
Droog_Gallery
cafe-droog
23
Adres
Staalstraat 7B,
1011 JJ Amsterdam

Droog

Droog is een designlabel gevestigd in Amsterdam en staat bekend om hun conceptuele en contextuele benadering van design. De naam Droog staat voor de droge humor van de designs in hun collectie. Een verwijzing naar de Nederlandse nuchterheid. Naast een galerie is er ook een winkel, een restaurant en verschillende ruimtes die gehuurd kunnen worden. Alle ruimtes hebben hun eigen unieke karakter en zijn ingericht met kunst en design stukken uit de Droog collectie.

spuiboekenmarkt10
24
Adres
Spui,
1012 WX Amsterdam

Boekenmarkt Spui

De Boekenmarkt op het Spui wordt iedere vrijdag, het hele jaar door, gehouden van 10.00 – 18.00 uur. Alleen in geval van overmacht (zoals bijvoorbeeld heel slecht weer) gaat de markt niet door. Maar vaak gebeurd dit niet, want de echte boekenliefhebber laat zich niet tegenhouden door wat regen, en de verkopers ook niet. Je vindt er tweedehands en antiquarische boeken en is al dertig jaar een begrip, ook in het buitenland. Ook prenten, pamfletten, affiches, documenten en tijdschriften kan je hier aantreffen, in meerdere talen!

Boodschappen
sterk-staaltje-winkel
25
Adres
Staalstraat 12,
1011 JL Amsterdam

Sterk Staaltje

Sterk Staaltje is al meer dan twintig jaar een begrip in de binnenstad van Amsterdam. Deze unieke eetwinkel heeft een grote variatie aan eten met een nadruk op vers. Zo is iedere maaltijd, broodje, salade of soep net een beetje anders. Met bezoekers uit alle lagen van de bevolking; van omwonenden en kantoorpersoneel tot studenten en toeristen die hier een broodje komen eten. Je kan hier kortom terecht voor een sterk staaltje eten.

Kunstagenda augustus 2025

Kunstagenda augustus 2025

De Franse keuken in Amsterdam; een selectie van restaurants, epiceries, patisseries en brasseries

De Franse keuken in Amsterdam; een selectie van restaurants, epiceries, patisseries en brasseries

Prinseneiland buurt

Prinseneiland buurt

Onlangs bekeken
Bekijk het overzicht

Deze site maakt gebruik van cookies.

Voor welke cookies geef je akkoord?