Een modern 3-kamer appartement gelegen op de vierde verdieping met een fantastisch uitzicht over het Oosterdok en de historische binnenstad.

Vierde verdieping
Via de centrale hal kan men het appartement op de vierde verdieping bereiken met de lift of trap.

Wonen en koken
Bij binnenkomst in het appartement is er een lange hal met een separate wc. De ruime woonkamer met open keuken ligt aan de voorzijde. Hoge plafonds en een grote pui met een balkon zorgen voor een ruimtelijk en licht effect. De keuken met kookeiland heeft inbouwapparatuur zoals een keramische kookplaat, afzuigkap, vaatwasser, koel-vriescombinatie en oven/magnetron.

Slapen en baden
De twee ruime slaapkamers bevinden zich aan de achterkant en hebben veel lichtinval. De woning heeft een licht houten parketvloer met vloerverwarming en -koeling. De moderne badkamer heeft een inloop regendouche, ligbad en dubbele wastafel.

Berging en parkeerplek
De woning heeft een privéberging in de onderbouw en een eigen parkeerplek in de garage.

Buitenruimte
Er is een balkon en Frans balkon gelegen aan de woonkamer.

Buurtgids
Oosterdokeiland, een bijzonder hoogwaardige ontwikkeling naast Amsterdam Centraal Station, gelegen tussen het historische centrum en het IJ. Dit gebied is ontstaan in 1832 door de aanleg van de Oosterdoksdam en heeft zich door de jaren heen ontwikkeld tot een hotspot door het culturele aanbod en horeca op topniveau.

Bijzonderheden
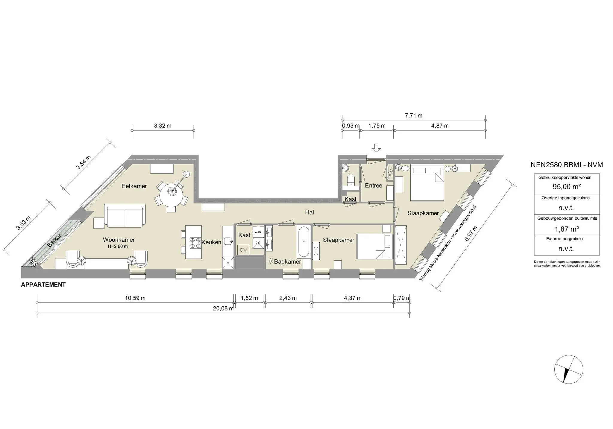
• Gebruiksoppervlakte wonen circa 95 m²
• Balkon van circa 2 m²
• Stijlvolle gemeenschappelijke entree met twee liften
• Uniek panoramisch uitzicht over Amsterdam
• Huidige erfpachtcanon bedraagt € 4.202,00 per jaar tot 15-10-2060.
• De overstap eeuwigdurende erfpacht (AB 2016) is reeds gedaan, waarbij er gekozen is voor het vastklikken van de canon (€ 2.335,00 per jaar)
• Zeer energiezuinig voorzien van aardwarmte (Jaarlijks onderhouden WKO systeem voor warmte en koeling)
• Energielabel A
• Vloerverwarming en koeling
• Stadsverwarming
• Buitenzonwering aan de voorzijde
• Servicekosten VvE woning € 284,78 per maand
• Servicekosten VVE parkeerplaats € 40,75 per maand
• Eigen parkeerplaats separaat te koop voor € 75.000,-
• Privé berging in de onderbouw
• Gezamenlijke fietsenberging

Deze informatie is door ons met de nodige zorgvuldigheid samengesteld. Onzerzijds wordt echter geen enkele aansprakelijkheid aanvaard voor enige onvolledigheid, onjuistheid of anderszins, dan wel de gevolgen daarvan. Alle opgegeven maten en oppervlakten zijn slechts indicatief
De Meetinstructie is gebaseerd op de NEN2580. De Meetinstructie is bedoeld om een meer eenduidige manier van meten toe te passen voor het geven van een indicatie van de gebruiksoppervlakte. De Meetinstructie sluit verschillen in meetuitkomsten niet volledig uit, door bijvoorbeeld interpretatieverschillen, afrondingen of beperkingen bij het uitvoeren van de meting.
 

AM105543-1896968-Oosterdokskade-29,-Amsterdam-191193979

Ode Wharf
Dit moderne appartement, met een prachtig 180 graden vrij uitzicht over het water en het Oosterdok, ligt midden in de binnenstad. Het is een unieke en bruisende locatie met veel voorzieningen zoals winkels, horeca en een hotel om de hoek. Het gebouw, ontworpen in 2011 door HvDN architecten, maakte destijds deel uit van het grootschalige nieuwbouwproject Ode. Het eiland heeft een geheel eigen dynamiek en ligt dichtbij het Centraal Station, maar is ook perfect bereikbaar met de auto.
De actieve VVE, bestaande uit 28 appartementen, wordt professioneel beheerd. Deze plek is ruimtelijk van karakter en heeft ook een ontspannen sfeer. Hier wonen betekent wonen op een van de mooiste plekken van Amsterdam. De huidige eigenaren hebben de woning een aantal jaren verhuurd, maar vinden de tijd nu rijp om het appartement te verkopen.


Ronald van de Bijl | Makelaar Broersma Wonen
Oosterdokskade 29-39

Designvisie
Het herontwikkelde Oosterdokseiland, een binnenstedelijke locatie nabij het Centraal Station, biedt een mix van functies: woningen, kantoren, een hotel, een bibliotheek, een conservatorium, winkels en horeca. Voorheen een industriële zone, is het getransformeerd naar een moderne, stedelijke ruimte. Het stedenbouwkundig plan van EEA Architects gaat uit van een hoge dichtheid binnen zes blokken, doorsneden door smalle stegen en opgewerkt door binnenplaatsen. Elk blok is ontworpen door meerdere architecten. Het gebouw van HVDN architecten ligt aan de kade op het zuiden, met op de onderste twee lagen winkels en daarboven luxe appartementen met riant uitzicht over de stad.
De twee volumes binnen het bouwdeel van HVDN architecten, de hoek en het palazzo, worden gescheiden door een ‘kloof’ die zich over de hele hoogte van het gebouw uitstrekt. Door de scherpe hoeken van de kavel hebben de appartementen unieke vormen. Ze zijn ruim, licht en bieden een prachtig uitzicht over de binnenstad door grote glaspuien van vloer tot plafond, die volledig opengevouwen kunnen worden. Het plaatsen van de puien op verschillende dieptes in de gevel zorgt voor een mooi reliëf.
Samenvattend combineert de architectuur van Oosterdokskade 29 moderne esthetiek met functionaliteit en duurzaamheid. Het gebouw is een opvallende toevoeging aan de skyline van Amsterdam en een voorbeeld van hedendaagse Nederlandse architectuur.

AM105543-1896968-Oosterdokskade-29,-Amsterdam-191193985
AM105543-1896968-Oosterdokskade-29,-Amsterdam-191194029
AM105543-1896968-Oosterdokskade-29,-Amsterdam-191194047
AM105543-1896968-Oosterdokskade-29,-Amsterdam-191194015

Woonkamer en keuken
Via de centrale hal is het appartement op de vierde verdieping met de trap of lift bereikbaar. Aan de voorzijde van de woning bevindt zich de ruime woonkamer met open keuken. De hoge plafonds (2,80 meter) en de grote pui met balkon, die volledig opengezet kan worden, zorgen voor een ruimtelijk effect met prachtige lichtinval. De elektrische haard geeft een sfeervolle ambiance op koude dagen.
De keuken, met kookeiland, is voorzien van inbouwapparatuur zoals een keramische kookplaat, vaatwasser, koel-vriescombinatie en oven/magnetron.
De woning heeft een privéberging in de onderbouw en beschikt over een eigen parkeerplek in de garage. Deze parkeerplek is niet inbegrepen bij de vraagprijs, maar wordt apart te koop aangeboden. Voor de fiets is er een gezamenlijke fietsenberging.

Het balkon
Er is een balkon gelegen aan de woonkamer en een frans balkon aan de eetkamer met een weids uitzicht over het water, het Oosterdok en de historische binnenstad.

AM105543-1896968-Oosterdokskade-29,-Amsterdam-191194025
AM105543-1896968-Oosterdokskade-29,-Amsterdam-191194033
AM105543-1896968-Oosterdokskade-29,-Amsterdam-191194261
AM105543-1896968-Oosterdokskade-29,-Amsterdam-191194031
AM105543-1896968-Oosterdokskade-29,-Amsterdam-191194043
AM105543-1896968-Oosterdokskade-29,-Amsterdam-191194057
AM105543-1896968-Oosterdokskade-29,-Amsterdam-191194089
AM105543-1896968-Oosterdokskade-29,-Amsterdam-191194141

Slapen en baden
In de hal van het appartement strekt zich een lange gang uit waaraan de slaapvertrekken gelegen zijn en er is een separate wc met fonteintje. De twee ruime slaapkamers bevinden zich aan de achterkant van de woning en hebben een fijne lichtinval. De gehele woning is voorzien van een lichte houten parketvloer, vloerverwarming en een vloerkoelingssysteem.
De moderne badkamer, centraal gelegen in de woning, beschikt over een inloop regendouche, ligbad en dubbele wastafel.

AM105543-1896968-Oosterdokskade-29,-Amsterdam-191194069
AM105543-1896968-Oosterdokskade-29,-Amsterdam-191194111
1011 BS Kromme Waal 16A-30
Oosterdokskade 29-35
1011 BS Kromme Waal 16A-36

Buurtgids
Oosterdokeiland, een bijzonder hoogwaardige ontwikkeling naast Amsterdam Centraal Station, gelegen tussen het historische centrum en het IJ. Dit gebied is ontstaan in 1832 door de aanleg van de Oosterdoksdam en heeft zich door de jaren heen ontwikkeld tot een hotspot door het culturele aanbod en horeca op topniveau.

Bereikbaarheid
De woning beschikt over een uitstekende bereikbaarheid omdat het Centraal Station op loopafstand is gelegen met vele trein, bus- en metroverbindingen. Deze aansluitingen zorgen voor een snelle en directe verbinding naar verschillende plekken zoals Schiphol Airport, De Zuidas, Station Bijlmer Arena, Station Overamstel en Amsterdam Noord.

Parkeergelegenheid
In de ondergelegen parkeergarage is een privé parkeerplek aanwezig.

1011 BS Kromme Waal 16A-34
AM105543-1896968-Oosterdokskade-29,-Amsterdam-191194007
AM105543-1896968-Oosterdokskade-29,-Amsterdam-191193991
AM105543-1896968-Oosterdokskade-29,-Amsterdam-191194045
Kenmerken
Oosterdokskade 29, Amsterdam
Vraagprijs
  • € 950.000 k.k.
Beschikbaarheid
  • In overleg
Vertrekken
  • 3 kamers
  • 2 slaapkamers
  • 1 badkamer
Onderhoud
  • Intern: Goed
  • Extern: Goed
Oppervlakten & Inhoud
  • Woonoppervlakte: 95 m²
  • Gebouwgebonden buitenruimte: 2 m²
Bouwjaar
  • 2012
Installaties
  • Buitenzonwering
  • Lift
  • Mechanische ventilatie
Ligging
  • Vrij uitzicht
Parkeren
  • Parkeergarage
  • Parkeerkelder
  • Parkeerplaats
Type verwarming
  • Stadsverwarming
  • Vloerverwarming geheel
Type warmwater
  • Centrale voorziening
Bestemming
  • Woonruimte
Eigendomssoort
  • Eigendom belast met erfpacht
Buitenruimte
  • Geen tuin
  • Balkon
Kadastraal
  • Gemeente: Amsterdam
  • Sectie: G
  • Nummer: 9140
Duurzaamheid
  • Hr glas
  • Vloerisolatie
  • Energielabel A
Soort
  • Appartement
  • Bovenwoning
Welke woonlaag
  • 4e
Plattegrond
Oosterdokskade 29, Amsterdam
AM105543-1896968-Oosterdokskade-29,-Amsterdam-192239967
AM105543-1896968-Oosterdokskade-29,-Amsterdam-192239971
AM105543-1896968-Oosterdokskade-29,-Amsterdam-192239973
Documenten
Oosterdokskade 29, Amsterdam
Locatie
Oosterdokskade 29, Amsterdam
Eten & drinken
290519966_5611492022228629_1772961692533362132_n
289445498_5596530173724814_8556288068091218682_n
01
Adres
Oosterdokskade 8,
1011 AE Amsterdam

Sea Palace Restaurant

Bij het Sea Palace Restaurant kan je genieten op het water in het centrum van Amsterdam. Het restaurant is het grootste drijvende restaurant van Europa. Het heeft een uitgebreide keuze uit Authentieke Kantonese gerechten, een uitgebreide dim sum-kaart en specialiteiten zoals peking eend en Sichuan gerechten. Als je tijdens het eten wil genieten van een prachtig uitzicht over Amsterdam moet je naar de bovenste verdieping gaan en op het terras zitten.

285987739_2300404186801989_8700931663954507608_n
305923059_516543457140175_7830958742907311211_n
02
Adres
De Ruijterkade 128,
1011 AC Amsterdam

Choux (*)

Chef Merijn van Berlo is één van de pioniers van de keuken waar groenten de hoofdrol spelen. De keuken is veelzijdig; er wordt gefermenteerd, ingemaakt, gerookt, gezout en is een duidelijke Noordelijke inslag in het gebruik van gezochte ingrediënten en de lichte, frisse smaken. Figo van Onna, mede-eigenaar en sommelier van restaurant Choux, is een eigenzinnige denker met een uitgesproken mening over natuurwijn en de wijnwereld. Choux heeft sinds 2025 een michelin ster.

241096550_1959134597579275_3873300371299258253_n
2021-07-30
03
Adres
Geldersekade 19,
1011 EJ Amsterdam

Ken Sushi

Een bezoek aan sushi bar Ken Sushi is niet zomaar een avondje lekker Japans eten. Bij Ken Sushi zit je aan de bar terwijl chef Ken jouw gerechten à la minute klaarmaakt. Hij gebruikt traditionele sushirijst op 37 graden en de verste ingrediënten. Al kokend vertelt Ken gepassioneerd over de herkomst en bereidingswijze van zijn spectaculaire sushi gerechten. Dit alles maakt een diner bij Ken Sushi tot een heerlijke ervaring. Mocht je een bezoek aan deze speciale sushi bar willen brengen, dan moet je vaak wel van te voren reserveren; er is namelijk maar plek voor 13 gasten aan de bar,

DSC_4354
vermeer-amsterdam
04
Adres
Prins Hendrikkade 59-72,
1012 AD Amsterdam

Restaurant Vermeer

In veel restaurants claimt men groenten een belangrijke rol te geven. In Vermeer is dit echt zo. De keuken is er zelfs op aangepast. Chef Chris Naylor maakte met de renovatie van het hotelrestaurant een aantal jaren geleden ook de overstap naar een wat lichtere keuken. Daarin is nog steeds ruim plaats voor mooie vers en bijzonder vlees, maar wordt er net zo lief een radijsje uit de daktuin geserveerd als amuse. Het restaurant is in het NH Hotel Barbizon Palace gelegen, het opende in 1988 en  Gault Millau kent het restaurant 18 van de maximaal 20 punten toe.

downloadgram.org_557787509_17863908447470367_6944842329356963715_n
downloadgram.org_555586332_17863908456470367_940047058501965771_n
05
Adres
Prins Hendrikkade 59-72,
1012 AD Amsterdam

Vermeers Wijnkamer

Vermeers Wijnkamer is de wijnbar van Restaurant Vermeer in het NH Collection Barbizon Palace, opgezet als een laagdrempelige plek voor liefhebbers van goede wijn. Hier draait het om ontdekken en proeven, met een wisselende selectie wijnen per glas en kleine gerechten die perfect aansluiten bij wat er in je glas zit. Chef Sebastian Baquero Garces en sommelier Dannis Apeldoorn brengen de signatuur van het restaurant naar een informelere setting. De sfeer is ontspannen en persoonlijk, ideaal voor een spontaan glas na werk of als start van een avond uit. de wine kamer is iedere dag vanaf 16.00 geopend.

Schermafbeelding 2022-06-20 om 14.28.04
06
Adres
Zeedijk 77,
1012 AS Amsterdam

Thaise Snackbar Bird

Amsterdam staat bekend om zijn grote hoeveelheid heerlijke Aziatische restaurants en afhaalplekken. Overal in de stad vind je wel goed eten uit de Aziatische keuken. Maar, qua Thais is er wel eentje het aller bekendst en dat is met een rede. Midden op de Zeedijk, op nummer 77 vind je Thaise Snackbar Bird, en ze zitten inmiddels al sinds 1993 op deze plek. Je kan binnen zitten en een kijkje nemen in de open keuken om te zien hoe de koks de Thaise wok-maaltijden flamberen, of je kan lekker afhalen. Beiden gaat op rap tempo, maar de smaak en kwaliteit is altijd heel erg hoog. Van heel erg, Thais pittig, tot iets milder, alle specialiteiten hebben ze hier ongeveer, en ze zijn allemaal de moeite waard te proberen.

243463650_4321667584537847_7872240798151771396_n
186538737_3924071934297416_4287599861561935390_n
07
Adres
1012 BD Amsterdam

Dun Yong Kitchen

Deze ramen tent bevindt zich bovenin de Aziatische supermarkt Dun Yong. Nadat chef Taka 4 jaar in een  Japanse Izakaya-gastropub heeft gewerkt kwam hij naar Nederland om zijn droom te vervullen. Hij droomde ervan om een eigen zaak te hebben waar gezonde en betaalbare streetfood wordt geserveerd. In 2021 introduceerde chef Taka een van zijn specialiteiten 'spicy tan tan ramen' aan het menu; spicy kip en varken samen met kimchi. 

Schermafbeelding 2022-09-26 om 16.53.45
08
Adres
Zeedijk 1,
1012 AN Amsterdam

In 't Aepjen

In de 16e eeuw ( de tijd van de VOC) bood het café een goedkoop onderdak aan zeelieden. De zeelieden brachten apen van overzee. Deze schattige aapjes zaten natuurlijk vol met vlooien, dus iedereen die In 't Aepjen had gelogeerd kwam krabbend van de jeuk naar buiten. Naar verluidt komt hier de naam van het café en ook de uitdrukking "in de aap gelogeerd zijn" vandaan. Tegenwoordig kan je nog steeds genieten van een borrel en kan je om je heen kijken naar alle relikwieën die zijn bewaard.

Schermafbeelding 2022-06-20 om 20.13.23
Schermafbeelding 2022-06-20 om 20.13.41
09
Adres
Peperstraat 10,
1011 TL Amsterdam

Gebroeders Hartering

Onder leiding van eigenaar Paul Hartering kookt een nieuwe generatie chefs pure, authentieke en verfijnde gerechten, met herkomst en vakmanschap als kern. Paul werd in 2019 door Gault Millau bekroond tot ‘Ambachtsman van het Jaar’, terwijl zijn broer Niek met liefde de service en de wijnkaart leidt. De sfeer voelt als een combinatie van een ouderwetse bruine kroeg en een eigentijdse Franse bistro. Witte linnen tafelkleden steken mooi af tegen de warme, bruinhouten wanden.

463946_339794439388956_1516802307_o
10
Adres
Rapenburg 18,
1011 TX Amsterdam

Hiding in Plain Sight

Voor Hiding in Plain Sight moet je even op je fiets vanuit het centrum. Naast de IJtunnel ligt deze knusse cocktailbar waar je unieke cocktails kunt zippen vanaf je barkruk of vanaf luie stoelen op de bovenverdieping. De unieke cocktail combinaties die bijna culinair te noemen zijn kun je een heerlijke avond loungen. Ben je slechts bekend met een gin & tonic? Dat geeft niets, het vriendelijke barpersoneel voorziet je graag van zoveel keuzes dat het je doet duizelen (als het niet de alcohol is).

DSC_7509-copy
11
Adres
Zeedijk 111-113,
1012 AV Amsterdam

Nam Kee

Nam Kee werd landelijk bekend door het boek ‘Oesters van Nam Kee’, van de schrijver Kees Beijnum. In Amsterdam is dit restaurant met authentieke Cantonese keuken al langer een begrip. Nadat het eerste restaurant op de Zeedijk 111 in 1981 haar deuren opende, volgden er snel nog twee nieuwe locaties (Geldersekade 117 en Maria Heinekenplein 4). De sfeer op de vestiging aan de Nieuwmarkt is open en gezellig. Je kan er komen voor een stevige maaltijd met een grote groep of voor een lunch met een kleiner gezelschap. Het personeel heeft goede service en vriendelijkheid als prioriteit.

410122272_17878473722990810_444435071764874332_n
12
Adres
Peperstraat 23,
1011 TJ Amsterdam

Restaurant R21

Chef Orlando David (werkte voorheen o.a.voor Oud Sluis van Sergio Herman ***) opende in de Peperstraat tegenover Gebr Hartering een fine dining restaurant. Je eet er een 6 of 7 gangen menu voor respectievelijk 75 en 90 euro, maar er is ook een a la carte menu beschikbaar. De reislust van de chef is zichtbaar en te proeven in zijn stijl van koken. Invloeden en producten van de hele wereld sieren de gerechten.

311818043_550213110440356_8306196781376141381_n
13
Adres
Warmoesstraat 17,
1012 HT Amsterdam

Sichuan

Op de Warmoesstraat midden in Amsterdam zit het traditionele Chinese Sichuan restaurant. Hier komen alle chef-koks uit de provincie Sichuan in China en hebben meer dan twintig jaar ervaring in de lokale keuken. Hoewel de gerechten pittig zijn, zoals te verwachten bij Szechuan-keuken, is de balans en dosering van specerijen precies goed, waardoor de aroma's de smaak bepalen in plaats van de hitte.

14
Adres
Koningsstraat 29,
1011 ET Amsterdam

Restaurant Kyō

Kyō is opgericht vanuit de behoefte aan meer Japanse Izakaya-stijl restaurants. Een plek waar je kunt ontspannen met vrienden in een informele sfeer, terwijl je geniet van authentiek Japans eten met een ruime keuze aan sake of Japans bier.

unnamed
15
Adres
Zeedijk 120,
1012 BB Amsterdam

Café Dijk 120

Café Dijk heeft zijn deuren geopend in 1971. Het is een gezellig Amsterdams café midden op de Zeedijk. Het cafe heeft veel stamgasten van ver buiten Amsterdam.

01-672×672
16
Adres
Kattenburgerstraat 5,
1018 JA Amsterdam

Scheepskameel

Scheepskameel is gevestigd in een voormalige koksschool van de marine (aan het water!) op het voormalige marineterrein. Chef en mede-eigenaar Tijs Jeurissen en de twee andere eigenaren Pieter Smits (ook van Rijsel) en Bob Kaasenbrood hebben een tijdloze zaak neergezet met uitstekend eten en een minstens zo uitstekende eigenzinnige wijnkaart, samengesteld met alleen maar Duitse wijnen. De wijnen zijn tevens te koop via de (online) winkel Wijnkameel. De service is, net zoals het zuster restaurant Rijsel, uitstekend.

354912923_206137615317034_6858223588130235843_n
17
Adres
Molensteeg 13H,
1012 BG Amsterdam

Kim's So Korean Food

Dit Koreaanse restaurant is pas sinds april geopend en nu al erg populair. Het serveert comfortvoedsel dat het beste gedeeld kan worden. Zo zijn de classics bimbap en Koreaanse gefrituurde kip een must zijn. Daarbij hebben ze nog lekkere kleinere gerechten zoals dumplings, kimchi-pannenkoeken en pittige cheesy ramen. Qua drank hebben ze een selectie van rijstwijnen, bier en enkele geïmporteerde soju-soda's.

122614769_1711814495641441_8578797435899363029_n
18
Adres
Zeedijk 122,
1012 BB Amsterdam

Hoi Tin

Bij Hoi Tin in Amsterdam kun je terecht voor authentieke Chinese gerechten. Het restaurant, gelegen aan de Nieuwmarkt, heeft een uitgebreide menukaart met onder andere dim sum, noedelsoepen en geroosterd vlees. De gerechten worden vers bereid en geserveerd in een sfeervolle setting met gedempt licht en houten tafels. Hoi Tin is populair bij zowel locals als toeristen

Scherm­afbeelding 2024-01-10 om 13.10.18
19
Adres
Lange Niezel 27,
1012 GS Amsterdam

Ramen Impossible

Midden in hartje Amsterdam zit het tweede restaurant van Akihiro Hara (46) en Atsushi Ishida (44). Ramen Impossible, het zusje van Men Impossible, onderscheidt zich met haar 'Sauce style' Ramen, ook bekend als 'Mazesoba' in het Japans. Gemaakt met Japans meel en geserveerd in een weelderige saus van saffraan-gekookte paddenstoelen en gebrande prei, biedt Ramen Impossible een verrassend vegan alternatief in de moderne Japanse keuken.

Schermafbeelding 2023-09-27 om 15.50.33
20
Adres
Korte Koningsstraat 13 H,
1011 EX Amsterdam

Black Gold Amsterdam

Black Gold Amsterdam ligt midden in de stad en is een onafhankelijke vinyl- en speciaalkoffiewinkel. Er hangt een relaxed sfeertje waar je kunt neuzen tussen de lp-planten, maar waar ook goede koffie wordt geserveerd. De koffiebonen zijn afkomstig van White Label Coffee.

21
Adres
Zeedijk 130,
1012 BC Amsterdam

A-Fusion

A-Fusion is een populair Aziatisch fusionrestaurant aan de Zeedijk in Amsterdam, dat sinds 2003 een unieke mix van Chinese, Japanse, Thaise en Koreaanse keukens aanbiedt. Het menu varieert van verse sushi en dim sum tot gegrilde satés en wokgerechten, met kleinere porties die gasten in staat stellen meerdere smaken te proeven. Het restaurant staat bekend om zijn levendige sfeer en open keuken, waar de bereiding van gerechten een echte belevenis is. A-Fusion ontving in 2023 een Bib Gourmand-onderscheiding van de Michelin Gids, een erkenning voor de uitstekende prijs-kwaliteitverhouding.

Boodschappen
sauces
0nd-floor-frozen-715×500
22
Adres
Stormsteeg 9,
1012 BD Amsterdam

Dun Yong

In de oudste toko van Amsterdam zijn er meerdere verdiepingen waar je kan verdwalen. In 1959 begon Dun Yong deze winkel om de Chinese gemeenschap in de buurt te voorzien van hun dagelijkse Chinese producten. Inmiddels zijn we drie generaties verder en is de winkel uitgebreid. Je kan hier niet alleen voedingsproducten maar ook wierook en keukengerei kopen. Op de bovenste verdieping van de toko zit een klein eethuisje waar je met de allerlekkerste ramen kan lunchen. Als je je wil verdiepen in deze toko of de toko-cultuur in Nederland, is er zelfs een boek geschreven over deze toko die je kan kopen bij de kassa.

0005_Main-Slagerij-Vet-MI_0112-960X360
23
Adres
Zeedijk 99,
1012 AT Amsterdam

Slagerij Vet

Slagerij Vet is een begrip onder de Amsterdammers in de Nieuwmarktbuurt. Al 60 jaar zit deze ambachtelijke zaak gevestigd op de Zeedijk. De (vaste) klant is erg belangrijk, dat merk je meteen als je binnenkomt. Deze slagerij heeft de klant als prioriteit, alles kan dan ook worden bereid. Vet groeit mee met de mensen en levert eerlijke en kwalitatieve producten. Je kan de zaak niet uitlopen zonder een Broodje Zeedijk te hebben geprobeerd, een rijkgevulde pistolet met de befaamde Zeedijksaus naar geheim recept.

Kunst & cultuur
DD403232
24
Adres
Oosterdok 2,
1011 VX Amsterdam

Nemo

Museum Nemo is misschien wel het verrassendste en leukste museum dat Amsterdam te bieden heeft. Nemo is een sciencemuseum maar op een hele speelse manier. Je kan allerlei natuurkundige en scheikundige dingen uittesten, zelf doen, bekijken en een hele boel leren. Voor jong en oud is dit museum een groot plezier. Tip: Ga in de zomer op het dak van Nemo wat drinken en kijk uit over het IJ en Amsterdam!

25
Adres
Piet Heinkade 3,
1019 BR Amsterdam

Het BIMHUIS

Het BIMHUIS is in 1974 opgericht door een groep jazzmuzikanten, zij misten een podium voor jazzmuziek in Amsterdam. Een oude meubelzaak werd omgetoverd tot podium wat ze het 'BIMHUIS’ noemde. Onder musici werd het een bekende plek en er werd ook een podiumplek voor aanstormend talent geboden. In de loop der jaren is het ontwikkeld tot een internationaal toonaangevend podium voor jazz en geïmproviseerde muziek. Vele jazzlegendes hebben er al opgetreden zoals; Art Blakey, Charles Mingus en Archie Shepp. De huidige locatie werd in 2005 geopend aan de Piet Heinkade. Het is een intieme zaal waar de jazzmuziek tot zijn recht komt. Er zit tevens een café en restaurant met prachtig uitzicht over het IJ.

Buurtgids: Weteringbuurt

Buurtgids: Weteringbuurt

Oosterparkbuurt

Oosterparkbuurt

‘Le Plantage.’ Een historisch pand uit 1824, ooit gebouwd en ingericht als chocolade- en suikerwerkfabriek, nu vier moderne appartementen op een van de mooiste locaties van de Plantage buurt.

‘Le Plantage.’ Een historisch pand uit 1824, ooit gebouwd en ingericht als chocolade- en suikerwerkfabriek, nu vier moderne appartementen op een van de mooiste locaties van de Plantage buurt.

Onlangs bekeken
Bekijk het overzicht

Deze site maakt gebruik van cookies.

Voor welke cookies geef je akkoord?