THE ART HOUSE | Hidden Object®
Royaal en karaktervol wonen aan de gracht in een uniek rijksmonument van circa 535 m², met inpandige garage en zonnige buitenruimtes. Dit pand is onder architectuur gemoderniseerd door Mark Fuller Architects, met behoud van historische details én met een uitgesproken eigentijdse stijl. De woning bestaat uit vier ruime en lichte woonlagen, met onder meer een indrukwekkende vide, een living van 3,55 meter hoog met glazen plafond, een binnentuin en een royaal terras aan de leefverdieping. Het huis combineert comfort, design en functionaliteit, met een slimme indeling en maatwerkoplossingen. Denk aan een privésuite met dressing, meerdere slaapkamers, een gym of atelier en een centrale woonkeuken als het hart van het huis. De ligging aan de rustige Nieuwe Herengracht, tegenover het Wertheimpark, biedt vrij uitzicht én de levendigheid van de stad op loopafstand. Een woning voor liefhebbers van ruimte, licht, architectuur en bijzondere details.
Nieuwsgierig geworden? Ervaar de volledige woonbeleving op onze Hidden Objects® website. Na registratie en toetsing, ontvangt u van ons toegang tot de volledige woningpresentatie.
Bijzonderheden
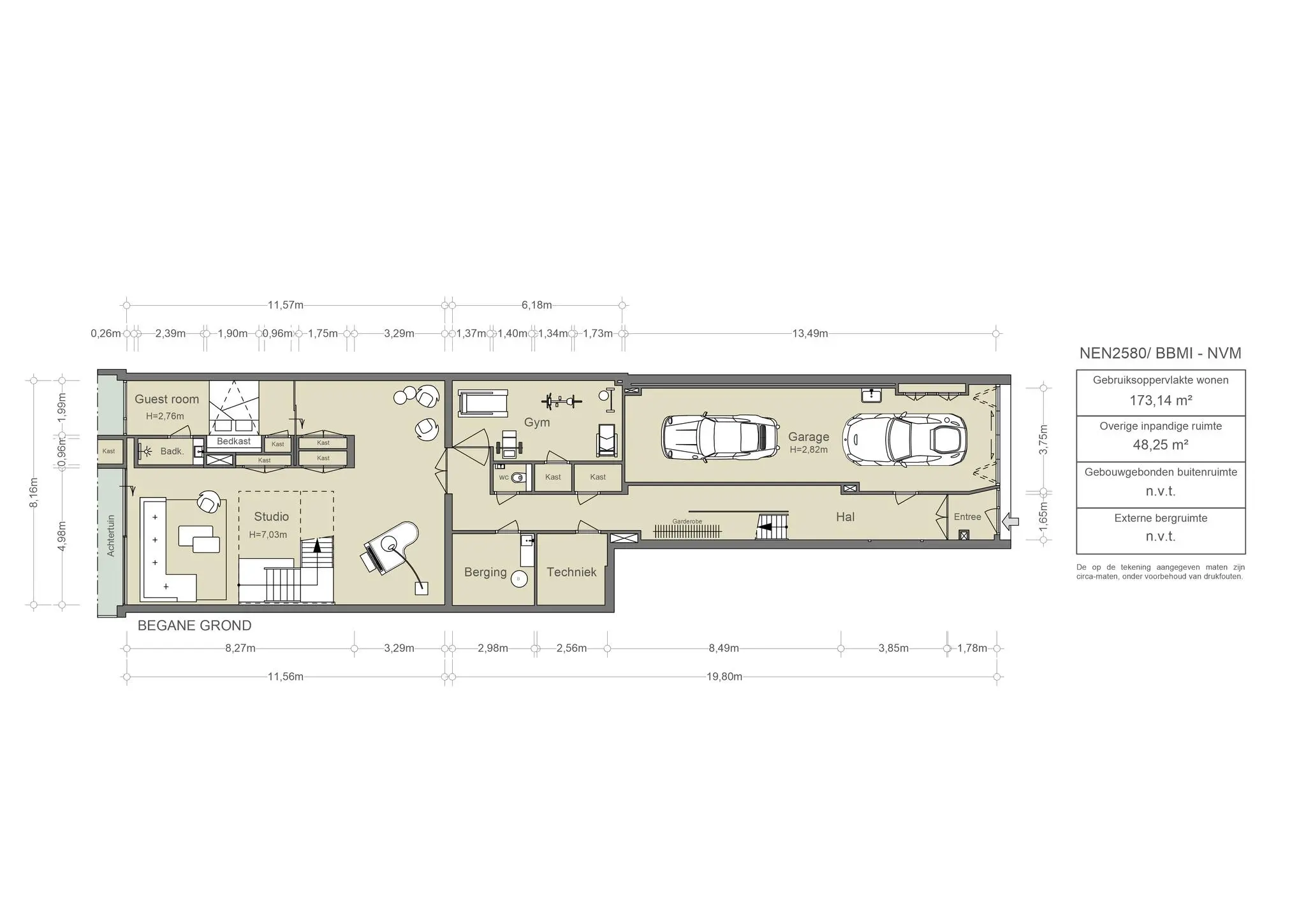
• Gebruiksoppervlakte wonen circa 484 m² plus 50 m² inpandige ruimte; totaal circa 535 m²
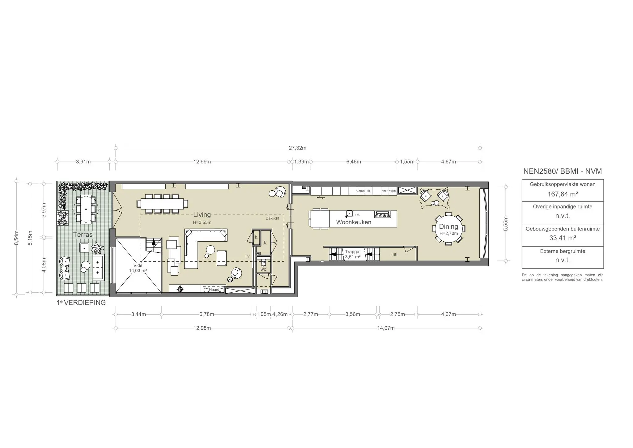
• Dakterras en tuin gelegen op het noordwesten van respectievelijk circa 33 m² en 85 m²
• Gelegen op eigen grond
• Interieurarchitect Studio Erik Gutter
• Gerenoveerd in 2009, inclusief nieuwe fundering
• Energielabel A+
• Rijksmonument
• Rijksbeschermd stadsgezicht
Deze informatie is door ons met de nodige zorgvuldigheid samengesteld. Onzerzijds wordt echter geen enkele aansprakelijkheid aanvaard voor enige onvolledigheid, onjuistheid of anderszins, dan wel de gevolgen daarvan. Alle opgegeven maten en oppervlakten zijn slechts indicatief. De Meetinstructie is gebaseerd op de NEN2580. De Meetinstructie is bedoeld om een meer eenduidige manier van meten toe te passen voor het geven van een indicatie van de gebruiksoppervlakte. De Meetinstructie sluit verschillen in meetuitkomsten niet volledig uit, door bijvoorbeeld interpretatieverschillen, afrondingen of beperkingen bij het uitvoeren van de meting.
--------------------
THE ART HOUSE | Hidden Object®
Living spaciously and with character along the canal, in a unique national monument of approximately 535 m², complete with an indoor garage and sunny outdoor spaces. This property was carefully renovated under architectural supervision by Mark Fuller Architects, preserving historic details while adding a distinctly contemporary style. The home spans four generous and light-filled levels, featuring an impressive atrium with a steel staircase, a 3.55-meter-high living room with a graphic glass ceiling, an inner garden, and a large terrace connected to the main living floor. The house combines comfort, design, and functionality with a smart layout and custom-built features throughout. Highlights include a private suite with dressing room, several bedrooms, a gym or studio, and a centrally located kitchen that forms the heart of the home. Located on the quiet Nieuwe Herengracht, opposite the Wertheimpark, it offers open green views with the city’s lively energy just a short walk away. A unique home for those who appreciate space, light, architecture, and refined details.
Curious to know more? Experience the full living impression on our Hidden Objects® website. After registration and verification, we will provide you access to the complete property presentation.
Specifications
• Usable living area approx. 484 m² plus 50 m² indoor space; total approx. 535 m²
• Terrace and garden facing northwest, approx. 33 m² and 85 m² respectively
• Freehold property
• Interior design by Studio Erik Gutter
• Renovated in 2009, including a new foundation
• Energy label A+
• National monument
• Located in a listed and protected cityscape
This information has been compiled with due care. However, we do not accept any liability for inaccuracies, omissions or their consequences. All stated dimensions and surfaces are indicative only. The measurement guidelines are based on NEN2580 and are intended to ensure a consistent approach in indicating floor area. However, variations in measurement outcomes cannot be entirely excluded, due to interpretation differences, rounding, or practical limitations during measurement.
The Art House
Een ruimte die inspireert, een gevel die intrigeert, een woonbeleving die raakt. “Hier zou ik wel kunnen wonen“; een understatement en als een makelaar dit zegt moet het wel een heel bijzonder huis zijn. The Art House onderscheidt zich op meerdere fronten. De zandkleurige gevel met haar evenwichtige vlakverdeling en ingetogen compositie creëert een architectonisch geheel met een serene uitstraling. Ook de interne opzet is opmerkelijk. De indeling is doordacht en verrassend, met royale volumes, hoge plafonds en lange zichtlijnen die uitnodigen tot verstilling en expressie. De beleving wordt versterkt door het licht en de vrijheid van het zicht rondom. Aan de voorzijde een open perspectief over de omgeving, aan de achterzijde een besloten groene wereld. Een essentieel kenmerk van deze woning is de symbiose tussen kunst en architectuur. De vele hoge wanden en het ruimtelijke karakter vormen een natuurlijk decor voor kunstobjecten, een kwaliteit die door de huidige eigenaren met gevoel en precisie is benut. The Art House voorziet tevens in één van de meest gezochte woonwensen: de mogelijkheid tot parkeren op eigen terrein. Een object waarin de essentie van wonen, kunst en rust op een subtiele manier samenkomt.
Kees Kemp | Makelaar Broersma Wonen
Kees Kemp | Makelaar Broersma Wonen
Jelle Mundt | Makelaar Broersma Wonen
De transformatie van een monumentaal kantoor- en magazijngebouw tot een karaktervol woonhuis vormde een bijzondere opgave voor architect Mark Fuller. Een pand met een rijk verleden, waarin gedurende de vorige eeuw meerdere functies elkaar hebben opgevolgd en waarbij het object meermaals ingrijpend is aangepast. De huidige gevel dateert van circa 1875 en weerspiegelt in grote lijnen nog altijd de oorspronkelijke vormentaal van die periode. De begane grond is in de loop der tijd diverse keren gewijzigd en inmiddels, in overleg met Monumentenzorg, op een zorgvuldige wijze opnieuw ingepast. De oorspronkelijk terugliggende kap is daarbij niet hersteld. Architectonisch spreekt vooral de licht gebogen raampartij op de eerste verdieping tot de verbeelding — een verfijnd detail dat bijdraagt aan het expressieve karakter van de gevel. De meest tot de verbeelding sprekende fase in de geschiedenis van het pand is ongetwijfeld die van bioscoop Hollandia, actief tussen 1912 en 1954. Een intiem filmtheater dat zijn sporen naliet in de buurt. In de jaren daarna kreeg het pand een zakelijke invulling als kantoor en magazijnruimte. Tijdens een bezichtiging in 2008 zagen de huidige bewoners niet wat er was, maar wat het zou kunnen worden. De potentie werd herkend, ondanks de staat van het object: een gevel die hersteld diende te worden, een fundering die versteviging vroeg, en asbest dat verwijderd moest worden. De betrokkenheid van Monumentenzorg vereiste niet alleen technische precisie, maar vooral creativiteit en doorzettingsvermogen van zowel de opdrachtgevers als de architect. Het resultaat is een woonhuis met een uitgesproken identiteit. Een object waarin geschiedenis, karakter en hedendaagse woonwensen op subtiele wijze zijn samengebracht. Een tijdloos geheel, dat tot op heden zijn kwaliteit en aantrekkingskracht behoudt.
Wonen vormt het kloppend hart van dit karaktervolle grachtenpand. Verdeeld over twee niveaus, met als verbindend element een indrukwekkend open trappenhuis dat niet alleen functioneel, maar ook architectonisch bepalend is voor het geheel. Dit trappenhuis creëert met zijn vide een royale ruimtelijkheid en laat het licht vrij spel krijgen. De bouwmuur, als oorspronkelijk element van het pand, is als een sculpturaal object in het zicht gebracht en omlijst met een stalen frame voorzien van glas. De garden room op de begane grond verbindt het pand met de tuin. Een intieme plek, perfect als werkruimte of juist om tot rust te komen. Het contact met buiten, dankzij de grote glazen pui, maakt deze ruimte tot een natuurlijke overgang tussen binnen en buiten. De volledige eerste verdieping is ingericht als living met keuken. Een bewuste keuze, ingegeven door het panoramische uitzicht, de overvloed aan daglicht en het ruimtelijke karakter. De hoge plafonds en expressieve daklichten verlenen het geheel een bijna monumentale uitstraling. Dit deel van het object maakte ooit deel uit van de oorspronkelijke bioscoopzaal, wat nog altijd voelbaar is in de atelierachtige setting. De huidige bewoners hebben deze kwaliteit versterkt door kunst een prominente plaats te geven. De ruimte, hoewel royaal, ademt intimiteit. Rondom de op maat ontworpen haard ontstaat een warm middelpunt, versterkt door een zorgvuldig gekozen kleurenpalet. Aan de achterzijde opent een grote glazen pui naar het terras; aan de voorzijde biedt een breed raam uitzicht op de gracht en het tegenovergelegen park. Een kamer aan de grachtzijde strekt zich uit over de volle breedte van het pand en wordt gekenmerkt door een decoratief cassettenplafond en een robuuste eikenhouten parketvloer. De brede vensterbank vormt een natuurlijke zitplek, waar het leven op de gracht van dichtbij te ervaren is. Centraal op de verdieping is de keuken gepositioneerd, een bewuste keuze van de architect. Hier komen zichtlijnen samen: richting het groen van de tuin, het terras én de dynamiek van de gracht. Deze Boffi-keuken is een toonbeeld van ingetogen luxe. Een lange wand met inbouwkasten en apparatuur vormt een visueel rustig vlak, terwijl het langgerekte kookeiland uitnodigt tot samenzijn. Voorzien van hoogwaardige Gaggenau-apparatuur — waaronder een heteluchtoven, American freezer, ijsblokjesmachine, wijnkoelkast en Quooker — biedt de keuken een perfecte balans tussen functionaliteit en esthetiek. Grenzend aan het kookeiland bevindt zich een zitgedeelte met bar, afgewerkt met een robuust houten blad. Hier ontstaat een informele sfeer die uitnodigt tot ontmoeting. Deze verdieping vormt als geheel een ideale setting voor het ontvangen van gasten, met een naadloze verbinding tussen de grachtzijde en de tuinzijde.
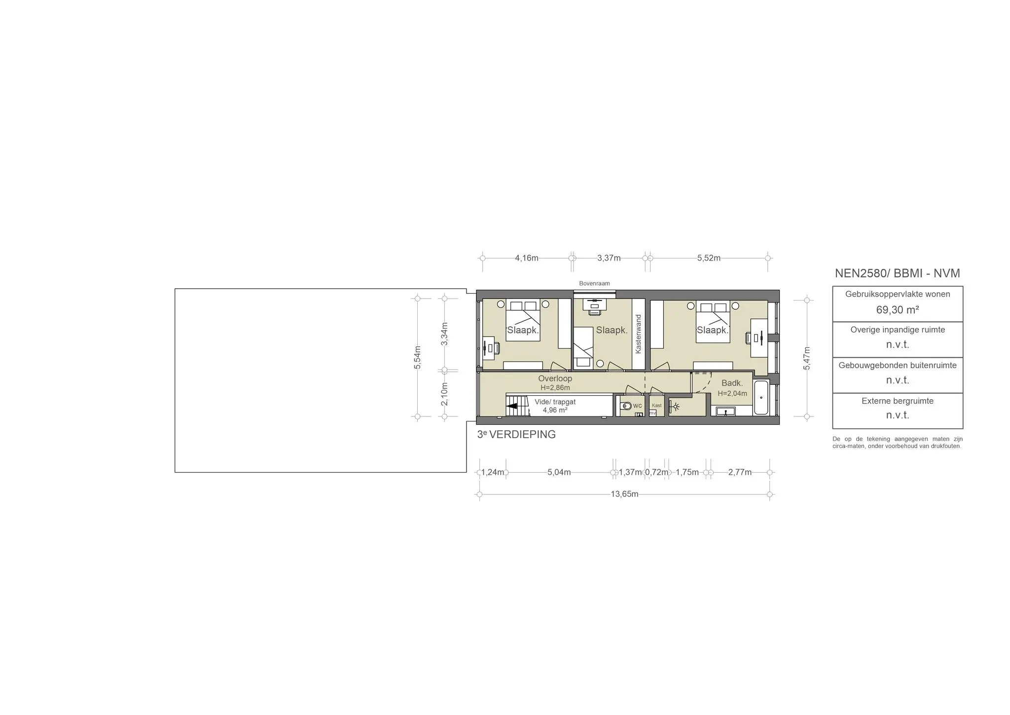
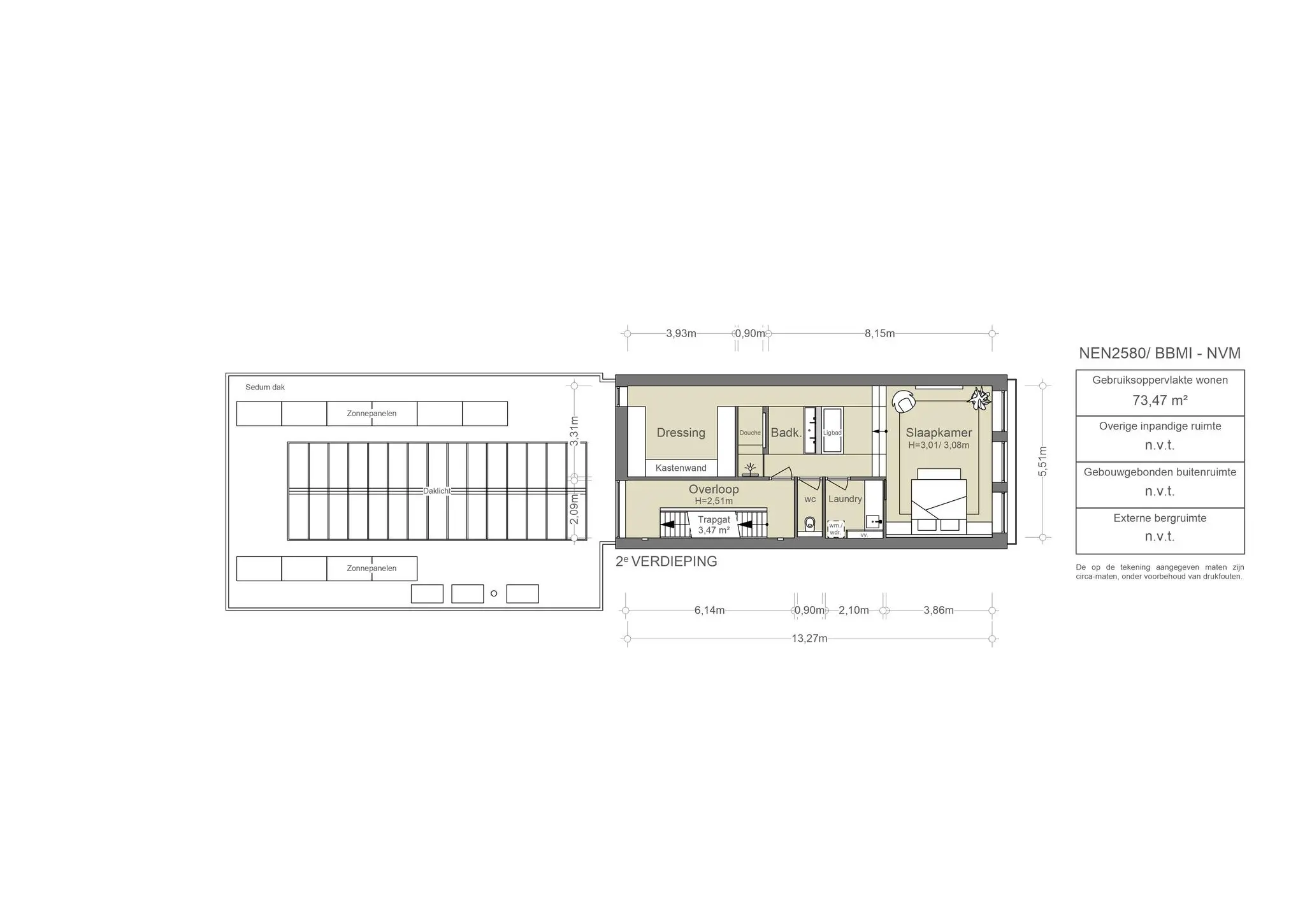
Met in totaal vijf slaapvertrekken en drie badkamers voorziet het huis in een uitgebalanceerde indeling die aansluit bij de wensen van een gezin. De slaapvertrekken zijn verdeeld over de twee bovenste woonlagen, aangevuld met een separate gastenkamer op de begane grond aan de tuinzijde. De volledige tweede verdieping is ingericht als privésuite. Aan de grachtzijde bevindt zich een riante slaapkamer met zicht op het water. De ruimte is verbonden met een open badkamer en een dressing. De badkamer beschikt over een royaal ligbad met uitzicht op de gracht, een extra ruime inloopdouche en een dubbele wastafel. Het toilet is separaat gesitueerd. Op deze verdieping is tevens de laundry zorgvuldig weggewerkt. De derde verdieping biedt ruimte aan drie slaapkamers en een gedeelde badkamer. Twee van de drie vertrekken beschikken over royale afmetingen, gelegen aan respectievelijk de grachtzijde en de tuinzijde. De badkamer op deze etage is voorzien van een inloopdouche, een ligbad en een dubbele wastafel. Op de lichte overloop bevindt zich een apart toilet. Op de begane grond is een afzonderlijke ruimte ingericht als gym. Deze ruimte leent zich tevens uitstekend voor een alternatieve invulling, zoals een wellnessruimte met onder andere een sauna.
Aan de achterzijde van het pand bevindt zich een beschutte tuin, omgeven door volgroeid groen. Een buitenruimte met een besloten karakter, waar rust en privacy samenkomen. Dankzij de ligging wordt hier tot in de avond van de zon genoten. De tuin vormt een natuurlijk verlengde van de tuinkamer op de begane grond. Binnen en buiten vloeien hier op vanzelfsprekende wijze in elkaar over, waardoor beide functies elkaar versterken. In de tuin zijn diverse kasten geïntegreerd, zorgvuldig ontworpen ten behoeve van opslag zonder afbreuk te doen aan de esthetiek van de buitenruimte. Op de eerste verdieping bevindt zich een tweede buitenruimte: een royaal dakterras van circa vijfendertig vierkante meter, direct grenzend aan de eetkamer. Een grote glazen pui opent naar dit terras, dat is ontworpen als verlengstuk van het dagelijks leven. Een plek om te tafelen, te ontspannen en te genieten van de avondzon. Het terras voegt bovendien een groen perspectief toe aan zowel de keuken als de living, en versterkt de beleving van licht, lucht en ruimte op deze woonverdieping.
Het woonhuis is gelegen aan de Nieuwe Herengracht, in het historische centrum van Amsterdam. Een karaktervolle straat met uitzicht op het groen van het Wertheimpark, op loopafstand van de Amstel en de Hortus Botanicus. De directe omgeving biedt een rijke schakering aan cultuur, natuur en voorzieningen. Diverse musea bevinden zich op korte afstand, waaronder het Rembrandthuis, het Amsterdam Museum, het Joods Museum en het H’ART Museum. Ook dierentuin Artis ligt binnen wandelbereik. Voor dagelijkse boodschappen en verfijnde speciaalzaken ligt de Utrechtsestraat nabij — een levendige straat met onder meer een ambachtelijke bakker, slager en banketbakker, aangevuld met modezaken en delicatessenwinkels. Op maandag biedt het Amstelveld een charmante bloemenmarkt; op zaterdag vindt een biologische markt plaats op de Nieuwmarkt. Qua horeca biedt de buurt een breed palet: van een ontspannen brunch in de tuin van Dignita, tot klassiek borrelen bij Café Eik & Linde of De Druif. Voor gastronomische avonden zijn er meerdere restaurants met een Michelinster op steenworp afstand.
Bereikbaarheid
Dankzij de centrale ligging in het hart van de stad is het huis uitstekend bereikbaar per fiets. Ook het openbaar vervoer biedt optimale verbindingen met alle delen van Amsterdam. Het Centraal Station ligt op loopafstand en via metrostation Waterlooplein zijn onder andere Station Amstel, RAI en de Zuidas snel bereikbaar. Tramlijn 14 stopt eveneens bij Waterlooplein en verbindt het Centraal Station met stadsdeel Oost, tot aan halte Flevopark. Met de auto is het pand goed te bereiken via de IJ-tunnel vanuit Amsterdam-Noord of via de Wibautstraat en afrit S112 vanaf de Ring A10.
Parkeergelegenheid
De woning heeft gelegenheid om inpandig twee auto’s te stallen.
We zeggen altijd: op deze plek heb je alle lusten en niet de lasten van Amsterdam. Er is geen plek in Amsterdam die logistiek zo perfect is als deze: twee trams om de hoek, het metrostation vanaf waar je in twee haltes op CS en in drie haltes op Amstel bent op minder dan vijf minuten lopen. De IJ-tunnel om de stad naar het noorden uit te rijden en de Wibautstraat naar het zuiden. En niet te vergeten inpandige parkeerruimte voor twee auto’s en je fietsen. Dat gaan we nergens anders vinden. Ook de combinatie van de rust in huis en de reuring buiten is uniek. Binnen hebben we nooit last gehad van buren en genoten we van het uitzicht op het Wertheimpark, buiten bezochten we met veel plezier de vele café’s, restaurants, markten en musea die overal om ons heen te vinden zijn. Het avondzonnetje op het terras van de Druif, een Indisch bordje bij Café Kadijk, de leestips van Rita bij boekhandel Zwart-op-Wit, een biertje bij Eik en Linde, de Zomeravonden in Artis, de biologische markt op de Nieuwmarkt, een tentoonstelling in het Joods Historisch Museum; we zullen het stuk voor stuk missen en er zeker af en toe nog een ommetje voor gaan maken. Het is de plek waar onze kinderen zijn opgegroeid, we diners voor vrienden hebben georganiseerd, bedrijven zijn gestart, logees hebben verwelkomd, boeken bij de haard hebben gelezen, geluierd in de tuin en geborreld op het terras. Stuk voor stuk onvergetelijk. We zijn dankbaar dat we bijna twintig jaar van dit geweldige huis op deze fantastische plek hebben mogen genieten.