Dit goed onderhouden dubbele benedenhuis van 172 m² bevindt zich aan een rustige, kindvriendelijke kade op een zeer gewilde woonlocatie. Het complex is in 2020 volledig gerenoveerd, inclusief funderingsherstel, en getransformeerd tot een comfortabel gezinshuis. De keuken vormt het hart van de woning en gaat naadloos over in de grote, ruime living en het eetgedeelte, dat uitkijkt over de Singelgracht.
Het huis beschikt verder over drie ruime en praktische slaapkamers, twee luxe badkamers en veel ingebouwde kastruimte. De fijne tuin is voorzien van vaste banken en een mooie Plataan. Gelegen op eigen grond met een goed functionerende VvE.

Rondleiding
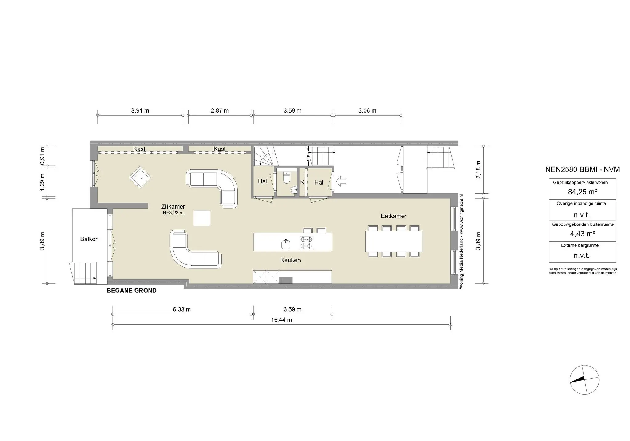
De woning beschikt over een stijlvolle woonkamer aan de achterzijde, uitgerust met openslaande deuren naar een balkon. Deze verdieping heeft een hoogte van meer dan 3,20 meter, met een mooie houten keuken in het centrum, compleet met een werkeiland. Aan de grachtzijde bevinden zich twee vensters die veel natuurlijk licht binnenlaten en het eetgedeelte verlichten.
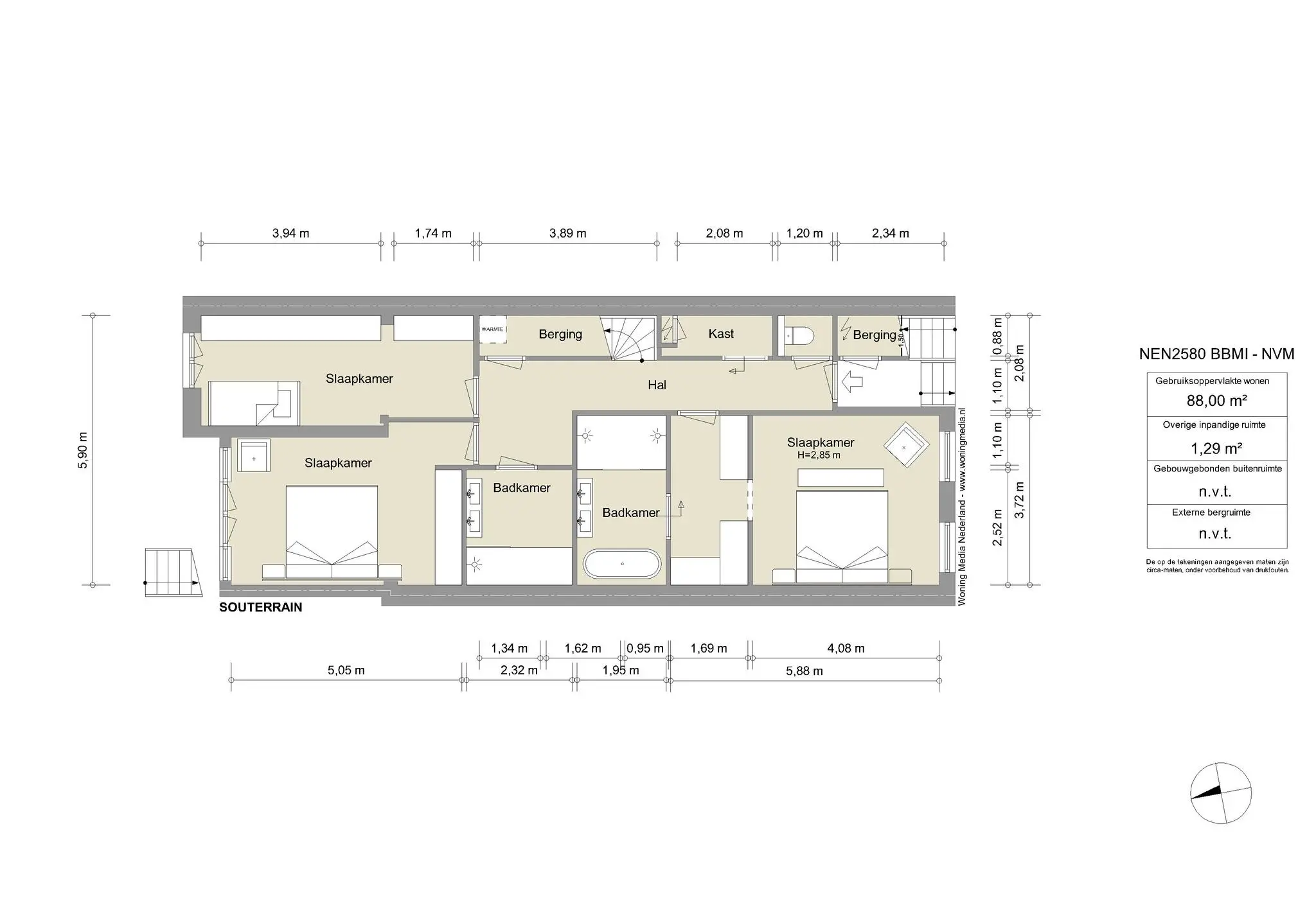
De slaapverdieping, gelegen op de tuinverdieping, is koel en heeft een eigen toegang. De hoofdslaapkamer aan de voorzijde is voorzien van op maat gemaakte kasten en een en-suite badkamer. Deze badkamer is uitgerust met een vrijstaand ligbad en een inloopdouche met dubbele douches. De twee achterste kamers zijn van goed formaat en delen een badkamer met inloopdouche en wastafel. Er is tevens een aparte wc en een berging aan de voorkant van de woning.
De tuin biedt in de ochtend en avond zon, met een bank die speciaal is ontworpen om in de middagzon te genieten. Een prachtige plataan zorgt voor de nodige privacy, en er is slim gebruikgemaakt van kunstgras en klinkerbestrating.

Buurtgids
Het appartement bevindt zich in een omgeving met een divers aanbod aan specialiteitenwinkels, waaronder banketbakkerij Holtkamp, Slagerij de Leeuw en de Albert Heijn, evenals de Albert Cuypmarkt voor dagelijkse boodschappen. Voor heerlijke koffie, lunch of diner zijn er talrijke horecagelegenheden te vinden aan de Weteringschans, Vijzelgracht en Utrechtsestraat. Bovendien is “De Pijp” gemakkelijk te bereiken.

Bijzonderheden
• Gebruiksoppervlakte wonen circa 166 m²
• Tuin gelegen op het noorden van circa 70 m²
• Gelegen op eigen grond
• Energielabel A
• Studio Piet Boon en Anne Claus Interiors
• Servicekosten VvE € 190,88 per maand
• Voorschot stookkosten € 190,00 per maand
• Voorzien van nieuwe fundering in 2020
• Volledig gerenoveerd in 2020
• Gemeentelijk beschermd/ Rijksbeschermd stadsgezicht
• Onderdeel UNESCO Werelderfgoed

AM105390-1933884-Nicolaas-Witsenkade-12A,-Amsterdam-201261075

Mazzelman
Enige tijd geleden hadden we contact met de verkopers over de verkoop van hun benedenhuis. Na een periode van radiostilte hebben zij besloten om te verhuizen voor een leven met meer groen. Ze zijn nu op zoek naar een vrijstaand huis in Muiden met veel ruimte en een natuurlijke omgeving.
Dit stijlvolle benedenhuis komt nu te koop op een zeer gewilde locatie in het populaire postcodegebied 1017. Het complex is in 2020 volledig gerenoveerd, inclusief de fundering en het casco. De naam van het complex verwijst naar de bijnaam van Nicolaas Witsen, die bekendstond als een duizendpoot; in het Bargoens wordt dit een Mazzelman genoemd.


Otte van Apeldoorn | Makelaar Broersma Wonen
Judith de Jong | Makelaar Broersma Wonen

AM105390-1933884-Nicolaas-Witsenkade-12A,-Amsterdam-201261171
Designvisie

In de tweede helft van de 19e eeuw was de neorenaissance de populairste bouwstijl, een periode waarin de Hollandse Renaissance uit de 16e eeuw opnieuw werd geïnterpreteerd. Deze stijl kenmerkt zich door horizontale natuurstenen banden tussen het metselwerk en trapgevels die nauwelijks te onderscheiden zijn van de oorspronkelijke renaissancegevels. Het historische karakter werd verder versterkt door een rijkere decoratie, wat ook gold voor winkels die met opvallende gevels de aandacht van het publiek wisten te trekken.
Op de plek waar nu de Den Texstraat, Nicolaas Witsenstraat en Pieter Pauwstraat liggen, stond tussen 1845 en 1885 de Hollandsche Gazfabriek. Deze fabriek werd opgericht door suikerfabrikant C. de Bruyn & Zonen om de concurrentie aan te gaan met de al gevestigde Imperial Gaz Company, de zogenaamde ‘Engelse’ gasfabriek. Suikerraffinadeurs, grote afnemers van gas, zagen de prijzen van de Engelse fabriek stijgen en besloten zelf gas te produceren.
Vanaf 1890 werden er op deze locatie huizen gebouwd, met de aanleg van twee nieuwe straten: de Den Texstraat, vernoemd naar oud-burgemeester C.J.A. den Tex (1824-1882), en de Nicolaas Witsenstraat, genoemd naar een voormalige 17e-eeuwse burgemeester. De speeltuin in het Weteringplantsoen werd verplaatst naar de huidige locatie. In 2020 onderging het gebied een volledige renovatie, inclusief de aanleg van een nieuwe fundering.

AM105390-1933884-Nicolaas-Witsenkade-12A,-Amsterdam-201260825
AM105390-1933884-Nicolaas-Witsenkade-12A,-Amsterdam-201261067
AM105390-1933884-Nicolaas-Witsenkade-12A,-Amsterdam-201261003
AM105390-1933884-Nicolaas-Witsenkade-12A,-Amsterdam-201261041
Wonen en koken

Dit dubbele benedenhuis biedt een ongeëvenaard verblijf op een prachtige locatie. De entree, bereikbaar via een stenen buitentrap, leidt naar een tochtportaal met een slimme garderobekast.
Het hart van de woning wordt gevormd door een keuken van sublieme kwaliteit, gekenmerkt door een robuust houten design. Het kookeiland, afgewerkt met een verfijnd marmeren blad, fungeert als het middelpunt van de ruimte. De achterwand, uitgevoerd in dezelfde houtsoort, biedt ruimte aan hoogwaardige apparatuur en creëert tegelijkertijd een subtiele overgang naar het woongedeelte.
Het eetgedeelte biedt een weids uitzicht over de Singelgracht, terwijl de verheven positie zorgt voor aangename privacy. Twee royale, zuidelijk georiënteerde vensters laten overvloedig daglicht binnenstromen.
Het zitgedeelte aan de achterzijde imponeert met riante afmetingen van zes meter breed en een hoogte van meer dan 3,20 meter. Openslaande deuren naar het balkon bieden een fijne uitloop. Vanaf het balkon leidt een goedlopende trap naar de tuin. Een strakke visgraatvloer met vloerverwarming en op maat gemaakte kasten completeren dit sfeervolle geheel.

AM105390-1933884-Nicolaas-Witsenkade-12A,-Amsterdam-201261121
AM105390-1933884-Nicolaas-Witsenkade-12A,-Amsterdam-201261131
AM105390-1933884-Nicolaas-Witsenkade-12A,-Amsterdam-201261011
AM105390-1933884-Nicolaas-Witsenkade-12A,-Amsterdam-201261023
AM105390-1933884-Nicolaas-Witsenkade-12A,-Amsterdam-201261295
AM105390-1933884-Nicolaas-Witsenkade-12A,-Amsterdam-201261285
AM105390-1933884-Nicolaas-Witsenkade-12A,-Amsterdam-201261305
Slapen en baden

De tuinverdieping is een oase van rust, gewijd aan ontspanning en persoonlijke verzorging. De hoofdslaapkamer, gelegen aan de voorzijde, gaat naadloos over in een en-suite badkamer met elegante vaste kasten.
Deze badkamer is een lust voor het oog, uitgerust met een vrijstaand ligbad, een op maat gemaakte natuurstenen wastafel en een royale inloopdouche. Grote plavuizen met vloerverwarming en witte zelliges in de doucheruimte creëren een luxueuze sfeer.
Aan de rustige achterzijde bevinden zich twee aanvullende slaapvertrekken. Eén kamer beschikt over een vierseizoenen pui die toegang biedt tot de tuin. De andere kamer onderscheidt zich door subtiel geïntegreerde maatwerk kasten en een klassiek Frans behang in “toile de Jouy” stijl, wat een tijdloze elegantie uitstraalt.
De gehele woning is voorzien van vloerverwarming, wat bijdraagt aan de serene ambiance en luxe. De luxe badkamer, ten behoeve van de twee achtergelegen slaapvertrekken, is een toonbeeld van verfijnde functionaliteit. Een royale inloopdouche met drain en een subtiel opzetrandje vormt het middelpunt van deze ruimte. De wanden zijn met zorg afgewerkt; deels bekleed met zachte leemstuc, deels met elegante witte Zelliges tegels, wat een harmonieus samenspel van texturen creëert. Een op maat vervaardigde wastafel met dubbele wandkranen voegt een extra luxe element toe. Beide badkamers zijn uitgerust met comfortabele vloerverwarming, wat bijdraagt aan het algehele comfort.

AM105390-1933884-Nicolaas-Witsenkade-12A,-Amsterdam-201261263
AM105390-1933884-Nicolaas-Witsenkade-12A,-Amsterdam-201261233
AM105390-1933884-Nicolaas-Witsenkade-12A,-Amsterdam-201261201
AM105390-1933884-Nicolaas-Witsenkade-12A,-Amsterdam-201261269
AM105390-1933884-Nicolaas-Witsenkade-12A,-Amsterdam-201261291
AM105390-1933884-Nicolaas-Witsenkade-12A,-Amsterdam-201261319
AM105390-1933884-Nicolaas-Witsenkade-12A,-Amsterdam-201640295
AM105390-1933884-Nicolaas-Witsenkade-12A,-Amsterdam-201640283

De tuin
De tuin, toegankelijk via een trap vanaf de woonverdieping, biedt een serene ontsnapping in het bruisende stadsleven. Deze zorgvuldig ontworpen buitenruimte harmoniseert functionaliteit met esthetiek.
Centraal in de tuin ligt een strak gazon van kunstgras, omgeven door sierlijke bestrating in visgraatmotief, een subtiele verwijzing naar het interieur. De houten omheining, begroeid met klimop, waarborgt privacy en vormt een stijlvol decor voor de weelderige beplanting. Een op maat gemaakte geïntegreerde zitbank nodigt uit tot ontspanning en maakt het mogelijk om snel gebruik te maken van deze fijne buitenplek.

AM105390-1933884-Nicolaas-Witsenkade-12A,-Amsterdam-201640259
AM105390-1933884-Nicolaas-Witsenkade-12A,-Amsterdam-201261163
AM105390-1933884-Nicolaas-Witsenkade-12A,-Amsterdam-201640239
AM105390-1933884-Nicolaas-Witsenkade-12A,-Amsterdam-201640213
AM105390-1933884-Nicolaas-Witsenkade-12A,-Amsterdam-201640339

Buurtgids
Het appartement bevindt zich in een omgeving met een divers aanbod aan specialiteitenwinkels, waaronder banketbakkerij Holtkamp, Slagerij de Leeuw en de Albert Heijn, evenals de Albert Cuypmarkt voor dagelijkse boodschappen. Voor heerlijke koffie, lunch of diner zijn er talrijke horecagelegenheden te vinden aan de Weteringschans, Vijzelgracht en Utrechtsestraat. Bovendien is “De Pijp” gemakkelijk te bereiken.

Bereikbaarheid
Het appartement is goed bereikbaar met de fiets, auto en openbaar vervoer. De Ring A10 is met de auto binnen 15 minuten te bereiken via afslag S109 en S112. Vanaf halte Frederiksplein en de Vijzelgracht vertrekken verschillende tram- en buslijnen, zoals trams 1, 3, 7, 19 en 24. De Noord-Zuidlijnhalte biedt directe verbindingen met Amsterdam Centraal, Amsterdam Noord en Amsterdam Zuid, met aansluitingen op trein- en streekvervoer.

Parkeergelegenheid
Parkeren is mogelijk via een vergunningenstelsel op de openbare weg (vergunningsgebied Centrum-2g), waarbij er vrijwel altijd een parkeerplek beschikbaar is. Met een parkeervergunning voor Centrum-2g is parkeren in Centrum-2 toegestaan. De kosten voor een parkeervergunning voor bewoners bedragen €315,60 per 6 maanden, met een huidige wachttijd van 4 maanden. Een tweede parkeervergunning is in dit gebied niet mogelijk. Daarnaast is het ook mogelijk om met een parkeervergunning kosteloos te parkeren in garage Vijzelgracht. (Bron: Gemeente Amsterdam, oktober 2024).

AM105390-1933884-Nicolaas-Witsenkade-12A,-Amsterdam-201640323
AM105390-1933884-Nicolaas-Witsenkade-12A,-Amsterdam-201640333
AM105390-1933884-Nicolaas-Witsenkade-12A,-Amsterdam-201640329
Kenmerken
Nicolaas Witsenkade 12A, Amsterdam
Vraagprijs
  • € 1.880.000 k.k.
Beschikbaarheid
  • In overleg
Vertrekken
  • 4 kamers
  • 3 slaapkamers
  • 2 badkamers
Onderhoud
  • Intern: Goed tot uitstekend
  • Extern: Goed tot uitstekend
Oppervlakten & Inhoud
  • Woonoppervlakte: 166 m²
  • Externe bergruimte: 2 m²
Bouwjaar
  • 1886
Installaties
  • Mechanische ventilatie
Ligging
  • Aan rustige weg
  • Aan water
  • In woonwijk
  • Vrij uitzicht
Parkeren
  • Betaald parkeren
  • Parkeervergunningen
Schuur/Berging Voorzieningen
  • Voorzien van verwarming
Type verwarming
  • CV Ketel
Type warmwater
  • CV Ketel
Bestemming
  • Woonruimte
Eigendomssoort
  • Volle eigendom
Buitenruimte
  • Achtertuin
  • Balkon
Kadastraal
  • Gemeente: Amsterdam
  • Sectie: I
  • Nummer: 12051
Duurzaamheid
  • Dubbel glas
  • Muurisolatie
  • Vloerisolatie
  • Energielabel A
Soort
  • Appartement
  • Dubbel-benedenhuis
Bijzonderheden
  • Beschermd stads of dorpsgezicht
Overige kenmerken

OZB ('24) € 661,12 per jaar
Rioolrecht ('24) € 166,85 per jaar
Servicekosten VvE € 190,88 per maand
 

Plattegrond
Nicolaas Witsenkade 12A, Amsterdam
AM105390-1933884-Nicolaas-Witsenkade-12A,-Amsterdam-204792757
AM105390-1933884-Nicolaas-Witsenkade-12A,-Amsterdam-204792761
AM105390-1933884-Nicolaas-Witsenkade-12A,-Amsterdam-204792765
AM105390-1933884-Nicolaas-Witsenkade-12A,-Amsterdam-204792769
Documenten
Nicolaas Witsenkade 12A, Amsterdam
Locatie
Nicolaas Witsenkade 12A, Amsterdam
Eten & drinken
01
Adres
Weteringschans 76,
1017 XR Amsterdam

An

Gelegen aan de Weteringschans 76 in Amsterdam, is Japans Restaurant An sinds 1989 een begrip voor authentieke, huisgemaakte Japanse gerechten. Het restaurant specialiseert zich in traditionele Japanse maaltijden zoals ze thuis bereid worden, met pure, verse en gezonde ingrediënten. Bij An staat ambacht centraal: bijna alle gerechten worden met de hand gemaakt. Gasten kunnen genieten van diverse Japanse klassiekers, zoals sushi, tempura en teishoku-setmenu’s. Er is daarnaast speciale aandacht voor groentegerechten, wat het restaurant toegankelijk maakt voor vegetarische en veganistische gasten.

downloadgram.org_571902759_18102388009641879_2152803389231709999_n
downloadgram.org_574515938_18102388048641879_8716818313911497798_n
downloadgram.org_572126293_18102388021641879_5057052068189435512_n
02
Adres
Weteringschans 171,
1017 XD Amsterdam

Veneur

Chef-eigenaren Yoran Jacobi en Moriaan Koeleman staken hun jarenlange samenwerking in het voormalige sterrenrestaurant De Juwelier* in een nieuw Frans restaurant aan de Weteringschans. Samen met sommelier en mede-eigenaar Bas Hazen brengen ze hier een productgedreven keuken waarin vlees, grillades en open vuur de hoofdrol spelen. Het menu is klassiek Frans met moderne accenten en seizoensproducten, waarbij robuuste sauzen en precisie centraal staan. De zorgvuldig samengestelde wijnkaart vormt een perfecte partner voor de a-la-carte gerechten. Veneur combineert nostalgische charme met eigentijdse gastvrijheid, met een warme sfeer en een terras dat doet denken aan een Parijse bistro.

50241633_2207645855964289_3493298168299257856_n
03
Adres
Albert Cuypstraat 203-C,
1073 BE Amsterdam

Saskia's Huiskamerrestaurant

De naam zegt het al: eten bij Saskia's Huiskamerrestaurant is als dineren in de huiskamer. In dit restaurant eet je alleen in kleine gezelschappen tot 10 personen. Een uitstekende manier om een gezellige knusse avond door de brengen met een groep vrienden. Saskia's Huiskamerrestaurant is echt begonnen als restaurant in de huiskamer van eigenaresse Saskia en is later verhuist naar een eigen pand. Het restaurant bestaat nu al 18 jaar maar heeft zijn bijzondere sfeer weten te behouden. Het restaurant bevindt zich aan de Albert Cuypstraat; vlakbij de markt waar Saskia dagelijks inspiratie opdoet voor nieuwe gerechten

04
Adres
Eerste Sweelinckstraat 1,
1073 CK Amsterdam

Warung Swietie

Warung Swietie Lelydorp is een Surinaams restaurant op een steenworp afstand van de Albert Cuyp Markt. Het staat bekend om saotosoep en roti, die beiden voor een hele betaalbare prijs over de toonbank vliegen. Het is één van de kleinste Warungs in Amsterdam en in de zomer heeft het eethuis zelfs een klein terras. Voor een snelle hap zoals een broodje Pom met zuur kun je hier prima terecht!

447164722_1356420922001941_4467312401791193537_n
05
Adres
Eerste Sweelinckstraat 10,
1073 CM Amsterdam

Badcuyp

Een geweldige locatie (een voormalig badhuis jarenlang geliefd als jazz­café De Badcuyp en voorheen Escobar) gecombineerd met een superjong team. Voormalig chef van Bar du Champagne, Joep Hermans , opende samen met Martin de Nes (ex Rijsel) en Tobias Kuyt (ex Troef) op de hoek van de Albert Cuyp een eigen restaurant waar op open vuur wordt gekookt. Tobias stelde een uitgebreide wijnkaart samen met een concentratie op Frankrijk en Italie.

Schermafbeelding 2022-06-27 om 18.11.15
06
Adres
Falckstraat 3,
1017 VV Amsterdam

Bouchon du centre

Op de hoek van de Reguliersgracht vind je 40m2 knus Frankrijk, inclusief traditionele bistro sfeer en rood wit-geruite tafelkleden. De bistro wordt gerund door Hanneke Schouten en is geopend van woensdag tot en met zaterdag. Het concept is ontstaan vanuit de ‘bouchon Lyonnais’ waarbij met betaalbare ingrediënten een hoogwaardige maaltijd wordt bereid.

273217385_628333881829822_6168734948118851788_n
07
Adres
Ferdinand Bolstraat 10,
1072 LJ Amsterdam

Kaasbar Amsterdam

Bij Kaasbar Amsterdam krijg je kaas (joh) vooraf, kaas als hoofdgerecht, kaas on the side én kaas als dessert. Er is zelfs kaasijs! Alle producten die hier verkocht worden zijn uit Nederland. Ook leuk, voor de vegans zijn er ook diverse opties vegan kaas. Aan de bar kan je een lopende band met verschillende kaasjes voorbij zien komen.

72369503_2440972226192232_6382862125353664512_n
08
Adres
Ferdinand Bolstraat 12,
1072 LJ Amsterdam

Bardak

Bardak verplaatst Mediterraans Manhattan naar Amsterdam. In dit restaurant serveren ze de lekkerste soorten streetfood uit Tel Aviv. Naast heerlijke gerechten zoals gefrituurde bloemkool en crunchy falafel, maken ze hier ook spannende vintage cocktails met namen zoals Chili Cucumber Margarita en Sweet Bliss. Verse ingrediënten zijn key en ook de warme zomerse sfeer van het Midden Oosten mag niet ontbreken. Bardak is een een pareltje waar je kan genieten in Tel Aviv style.

Schermafbeelding 2022-07-01 om 13.26.17
09
Adres
Albert Cuypstraat 228,
1073 BN Amsterdam

De Japanner

De Japanner is inmiddels een fenomeen geworden in zowel de Pijp als in Oud-West. De vestiging in de Pijp zit op de Albert Cuyp markt, wat het gemakkelijk maakt om binnen te stappen nadat je ergens een biertje hebt gedaan. Het concept is simpel en straight-forward: heerlijk Japans fingerfood wat gepaard gaat met ofwel een cocktail, Japans biertje, saké of een non-alcoholisch alternatief natuurlijk. Het komt dan ook niet als een verassing dat de reviews over de Japanner lovend zijn, waarbij vooral het vriendelijke personeel als de lekkere hapjes worden uitgelicht.

20220413-Petit-Caron-©-Chantal-Arnts-21
10
Adres
Gerard Douplein 10,
1072 VE Amsterdam

Petit Caron

Het kleine broertje van Café Caron, opgericht en gemanaged door Alain Caron en zijn zoons, gelegen op het altijd gezellig drukke Gerard Douplein. Reserveer een tafeltje op het terras en waan je in de Parijse wijk Les Marais. Bestel de signature dish van Petit: Côte de Boeuf, en een mooie fles Lowel. De wijn komt ook uit de koker van de Caron Familie, en is vernoemd naar de jongste zoon uit het telg Caron. Een soepele wijn rode wijn, het liefst mild gekoeld gedronken, uit de Loire, die zich ideaal leent om te genieten van alles wat Petit te bieden heeft.

531752126_18517818733042884_4854671475590984167_n
11
Adres
Gerard Douplein 8,
1072 VE Amsterdam

Brut de Mer

De inrichting van Brut de Mer is levendig en stedelijk, passend bij de dynamische oester- en visbar in De Pijp. Het interieur is informeel en ademt de sfeer van een Franse Rivièra-bar, waar je geniet van verse zeevruchten zoals oesters en fruits de mer. De ruimte is compact en knus, waardoor je het gevoel hebt in een authentieke, bruisende viszaak te zijn. Bij mooi weer biedt het terras een populaire plek om buiten te eten.

Schermafbeelding 2022-06-20 om 19.25.16
12
Adres
Albert Cuypstraat 250 HS,
1073 BP Amsterdam

Osakaball

The Osaka streetfood kraam staat op maandag op de Ten Katemarkt en van dinsdag tot en met zaterdag op de Albert Cuypmarkt. The kraam heel gedurende het jaar heel wat trouwe klanten opgebouwd met hun authentieke Japanse dishes. Van ramen tot, okonomiyaki, noodles en curry. Wandel over de markt met een lege maag en volg de geur van lekker eten.

275790806_542543747084575_7206843501789032588_n
13
Adres
Ferdinand Bolstraat 13-15,
1072 LA Amsterdam

Soju bar

Bij Soju Bar kun je genieten van heerlijk knapperige Korean Fried Chicken. Naast de Fried Chicken bieden ze ook andere Koreaanse gerechten aan en natuurlijk de befaamde Soju. Bij Soju bar kun je genieten van Korean Fried Chicken en dit wegspoelen met bier en Soju, een Koreaanse borrel die vergelijkbaar is met sake in Japan. Soju wordt meestal gemaakt van rijst en is een gedestilleerde drank die verrassend lekker is om te drinken. Als je je avond echt op z'n Koreaans wilt beginnen, bestel dan een sojubomb, een soort 'kopstootje' maar dan met soju in plaats van jenever.

DSC_3974-Edit-1363×2048
DSC_3970-Edit-1363×2048
14
Adres
Albert Cuypstraat 260,
1073 BR Amsterdam

Ranchi

Ranchi is een Japanse broodjeszaak gerund door Sebastiaan en Christiaan Roosink. Een broodje in Japanse stijl wordt ook wel Sando genoemd. Keuzes zijn bijvoorbeeld een chicken sando (met krokante kip) of de beroemde tamago sando met eiersalade. Daarnaast hebben ze een broodje met tsukune (een soort gehaktbrood) gemaakt van kippengehakt in yakitori-stijl. Lekker met sesam, bosui, gember, knoflook en tare-saus.

Boodschappen
downloadgram.org_468511512_17950326035880735_2970155290351330324_n
15
Adres
Gerard Doustraat 180,
1073 XA Amsterdam

De Predetariër

De Predetariër is opgericht door Kaj de Jager, James Snoerwang en Philip Buys, drie vrienden die hun kantoorbaan opzegden na hun groeiende afkeer van de bio-industrie. Vanuit hun gedeelde liefde voor natuur en jacht ontwikkelden ze het idee van predetarisch eten: vooral plantaardig, met af en toe verantwoord wild vlees. Via hun webshop verkopen ze wild dat wordt geschoten voor natuurbeheer in Nederland, Duitsland en Polen, en datzelfde principe brengen ze nu naar hun fysieke winkel én deli. In de zaak koop je producten om mee naar huis te nemen, maar kun je ook aanschuiven voor broodjes als rendang van hert en pastrami van gans, met duurzame drankjes erbij.

247591968_3070054166616521_5753782012107438783_n
278910128_3200962820192321_8300979430721222855_n
16
Adres
Albert Cuypstraat,
1073 BD Amsterdam

De Albert Cuypmarkt

De Albert Cuypmarkt is van maandag t/m zaterdag geopend van 9:00 tot 18:00 en is met 260 kramen de grootste dagmarkt van Europa. Het gemeentebestuur besloot om in 1905 een vrije markt te vestigen dat vandaag de dag de Albert Cuypmarkt is, vernoemd naar een 17e -eeuwse kunstschilder. Je kan hier je dagelijkse boodschappen doen en terecht voor in het speciaal verse vis, delicatessen en verschillende soorten stoffen. De markt is natuurlijk bekend onder de Amsterdammers, maar ook toeristen weten de markt te vinden om bijvoorbeeld de typische Hollandse lekkernijen als haring en stroopwafel te proeven en opzoek te gaan naar souvenirs. Het is ook een leuke markt om gewoon even af te lopen voor de gezelligheid.

119121435_131526715332723_8568503447827834886_n
278784717_306079698266849_2026436298554568020_n
17
Adres
Albert Cuypstraat 208H,
1073 BM Amsterdam

Rise Bakery

De drie eigenaren van Rise Bakery ontmoetten elkaar in Londen waar ze allemaal in de horeca werkten. Door de maatregelen van de pandemie op de horeca besloten ze gezamenlijk hun droom te volgen en naar Amsterdam te komen om een bakkerij te openen. Alle drie hebben ze een eigen specialiteit en dat resulteert in Franse broden, zuurdesem en taartjes. Gelegen aan de Albert Cuypstraat is dit de perfecte plek om een Deens gebakje of een kaneelbroodje te eten voor of na boodschappen op de markt.

18
Adres
Eerste van der Helststraat 54b,
1072 NX Amsterdam

Slagerij Zagora

Islamitische slagerij Zagora is bij menig buurtbewoner van de Pijp bekend. In een zijstraatje van de Albert Cuyp Markt vind je deze parel van een winkel, die veel meer is dan een slager alleen. Voor de deur staan oneindig veel dozen en kratten met groentes uitgestald, allemaal even kleurrijk en vers. Kruiden zoals onder andere rozemarijn en tijm koop je hier in potjes, voor bespottelijk goede prijzen. In tegenstelling tot de bosjes uit de supermarkt kun je deze onderhouden met water, waardoor de kruiden veel langer meegaan. De slagerij maakt uiteraard ook vlees, waaronder huisgemaakte merquez worstjes, shoarma en hamburgers. De vriendelijke mannen uit de winkel staan altijd paraat voor het groepje trouwe klanten en maken maar al te graag tijd voor je vrij. Een duidelijke tussenstop voor iedereen die graag zijn boodschappen op de Albert Cuyp doet!

Homepage3-1
19
Adres
Eerste Sweelinckstraat 18,
1073 CM Amsterdam

Il Pastificio

Een pastafabriek; zo noemt Il Pastificio zichzelf. Hier maken ze zelf Italiaanse pasta op authentieke wijze. Elke dag zijn ze bezig met het bereiden van verse producten. Het aanbod is groot: van fusilli tot conchiglie tot rigatoni napoletani. Of je nou indruk wil maken tijdens een etentje; of lekker voor jezelf wil koken; met de producten van Il Pastificio wordt elk pastagerecht een succes.

20
Adres
Albert Cuypstraat 267,
1073 BH Amsterdam

C&C Asianmarkt

Aan het einde/of het begin van de Albert Cuyp ligt de C&C Asian Supermarket. De winkel is een begrip voor eenieder die tijdens het koken opeens bijzondere ingrediënten nodig heeft. Naast verse producten heeft de winkel een gigantisch assortiment met allerlei Aziatische must-haves wanneer het op onmisbare ingrediënten aankomt. Van heerlijke pindasaus voor bij summer-rolls tot ongelofelijke hoeveelheden ingevroren dumplings om in bamboe mandjes zelf op te warmen. De sojasaus vliegt in grote flessen en betaalbare prijzen over de toonbank en ook voor enkele leuke decoraties kan je hier terecht. De pret kan echter niet op, want er is óók nog een klein hoekje in de supermarkt waar er vers eten wordt klaargemaakt. Hier kun je dus na je grote boodschappen genieten van onder andere verse summer-rolls of een banh mi (Vietnamese baguette).

109766827_132145775204852_2275089963292755727_n
21
Adres
Govert Flinckstraat 175h,
1073 BT Amsterdam

Epicerie de Pijp

Een beetje Frankrijk in Amsterdam. Vanwege het gemis van franse delicatessen, als eigenaresse Merabi naar Frankrijk ging kwam ze terug met tassen vol boodschappen, is deze zaak om de hoek van de Albert Cuyp markt geopend.
Alle producten zijn door de eigenaren zelf uitgezocht en geïmporteerd. Versproducten zoals Le Mi-chèvre Soignon, een kaas gemaakt van geit en koelmelk, maar ook galettes Saint Jacques, crêpes gevuld met coquilles in roomboter-peterseliesaus.

 

Interieur
278287126_5017084395041979_5150113744866398002_n
278227977_5017084525041966_5244810507209283372_n
22
Adres
Lijnbaansgracht 319A,
1017 WZ Amsterdam

Casa Gitane

Op de Lijnbaansgracht bevindt zich de prachtige in aardse kleuren gehulde studio van Casa Gitane. Gitane betekent gipsy en zo herbergt Casa Gitane meubels en voorwerpen geïnspireerd op verre oorden, wereldreizen en een nomadische levensstijl. Hun collectie bestaat uit drie belangrijke ingrediënten; unieke vintage stukken, een selectie van bestaande merken en onze eigen ontwerpen. Momenteel voornamelijk webshop en project inrichting.

Kunst & cultuur
64de1fcd0b0424e4a3a718cc_DSC08433-p-1600
62fd325e97b604afb95b89cd_001.M.SIMONS GALERIE- HOEKSTRA + STOCK-2022-PH.GJ-p-1600
23
Adres
Lijnbaansgracht 318,
1017 WZ Amsterdam

M.Simons

M.simons is opgericht in 2021. Het is een galerie gevestigd in het historische centrum van Amsterdam. Hoewel de galerie voornamelijk gefocust is op schilder-en grafische kunst biedt het ook ruimte voor diverse andere artistieke media, waaronder fotografie en beeldhouwkunst.

Displacement-with-Basim-Magdy-Andrei-Roiter-Hrair-Sarkissian-at-AKINCI
24
Adres
Lijnbaansgracht 317,
1017 WZ Amsterdam

Akinci

De liefhebber voor hedendaagse kunst zit bij AKINCI zeker goed. AKINCI heeft een grote focus op nieuwe ontwikkelingen in de hedendaagse kunst en is expliciet geëngageerd met kunstenaars die socio-politieke, ecologische en gender vragen in hun werk integreren. Hun programma wordt bepaald door een diversiteit aan media en cross-overs tussen geluid, architectuur, schilderkunst, beeldhouwkunst, film en installatie. Je vindt er werken van o.a. Stephan Balkenhol, Theo Jansen en Edwin Zwakman.

1600px-Giovanni-Nardi-Photography_5Y6A6134
25
Adres
Lijnbaansgracht 314,
1017 WZ Amsterdam

Lumen Travo Gallery

Lumen Travo is opgericht door Marianne van Tilborg in 1985. Het is een hedendaagse kunstgalerie in Amsterdam. Elk jaar organiseert de galerij diverse tentoonstellingen in samenwerking met zowel opkomende als gevestigde kunstenaars. Lumen Travo maakt zich zorgen over actuele thema's zoals identiteit, representatie en postkolonialisme en streeft ernaar de veelheid aan stemmen te laten zien die een rol spelen in onze geglobaliseerde samenleving. Door krachtige en diverse artistieke perspectieven te presenteren, die niet beperkt blijven tot het westerse gezichtspunt, engageert deze galerij zich in een visueel gesprek met open ogen voor de hele wereld.

De markten van Amsterdam

De markten van Amsterdam

Oost, een selectie van fijne plekken rondom de Indische buurt

Oost, een selectie van fijne plekken rondom de Indische buurt

Samengesteld; een collectie woningen met bijzondere open haarden

Samengesteld; een collectie woningen met bijzondere open haarden

Onlangs bekeken
Bekijk het overzicht

Deze site maakt gebruik van cookies.

Voor welke cookies geef je akkoord?