Modern en licht turn-key appartement van circa 71 m² MET lift, gelegen in het groene Buitenveldert. Het appartement biedt een ruime en lichte woonkamer, een stijlvolle moderne keuken, twee comfortabele slaapkamers, een luxe badkamer met inloopdouche en dubbel wastafelmeubel en een zonnig balkon op het zuiden. De erfpacht is eeuwigdurend afgekocht. Dit biedt deze woning zorgeloos en comfortabel wonen in een rustige, maar centrale buurt.

Rondleiding
Het appartement op de eerste verdieping is zowel per lift als trap te bereiken en biedt een ruimtelijke doorzonwoonkamer met grote raampartijen, waardoor het interieur wordt overspoeld met natuurlijk licht. De woonkamer biedt plek voor een comfortabele zithoek en een royale eettafel, perfect voor gezellige avonden. Door de hele woning ligt een strakke laminaatvloer met vloerverwarming, wat zorgt voor een warme en aangename sfeer. De moderne keuken is stijlvol ingericht en voorzien van hoogwaardige inbouwapparatuur, waaronder een combi-stoom oven.
Het appartement beschikt over twee gelijkwaardige slaapkamers, beiden met directe toegang tot het zonnige balkon op het zuiden, dat een fraai uitzicht biedt over het plantsoen en de straat. De moderne badkamer is stijlvol ingericht met een ruime inloopdouche, een dubbel wastafelmeubel en een verwarmde spiegel. Daarnaast zijn er een praktische bergkast met een wasmachineaansluiting en een separaat toilet aanwezig.
Een perfect appartement voor wie comfortabel, licht en stijlvol wil wonen!

Buurtgids 
Nedersticht 232 is gelegen in de wijk Buitenveldert-Oost in Amsterdam. Deze buurt staat bekend om haar rustige en groene omgeving, met diverse voorzieningen binnen handbereik. Op korte afstand bevindt zich het Amstelpark, een prachtig aangelegd park dat uitnodigt tot wandelen en recreatie. Daarnaast ligt het recent gerenoveerde winkelcentrum Gelderlandplein op slechts enkele minuten loopafstand, waar een breed scala aan luxe winkels en horecagelegenheden te vinden is. Met de fiets zijn zowel de Beethovenstraat als de Scheldestraat binnen tien minuten te bereiken, beide straten bieden een divers aanbod aan winkels en restaurants. De buurt is goed bereikbaar met het openbaar vervoer en heeft uitstekende verbindingen naar andere delen van de stad. Kortom, wonen op Nedersticht 232 biedt een harmonieuze combinatie van rust, groen en stedelijke voorzieningen.

Bijzonderheden
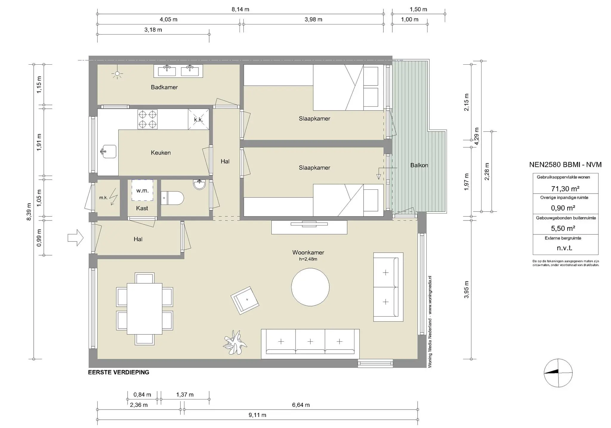
•    Gebruiksoppervlakte wonen circa 71 m²
•    Balkon gelegen op het zuiden van circa 6 m²
•    Twee slaapkamers
•    Gelegen op erfpachtgrond van Gemeente Amsterdam. De erfpachtcanon is eeuwigdurend afgekocht
•    Energielabel D
•    In 2018 geheel turn-key gerenoveerd
•    Lift
•    Berging in de onderbouw
•    VvE professioneel beheerd door IJmere
•    Plannen voor verduurzaming gebouw door VVE
•    Servicekosten VvE € 206,00 per maand
•    Snelle oplevering mogelijk
•    Niet-zelfbewoningsclausule zal in de koopakte worden opgenomen
 

AM105478-1966166-Nedersticht-232,-Amsterdam-214064231

Zonnig Nedersticht
Dit turn-key driekamerappartement combineert modern wooncomfort met een praktische indeling, wat het ideaal maakt voor starters, stellen en kleine gezinnen. De huidige eigenaar heeft de woning altijd verhuurd en gunt het nu graag aan iemand die waarde hecht aan een instapklaar appartement en de groene omgeving van Buitenveldert weet te waarderen. In deze buurt bevinden zich parken zoals het Amstelpark en Beatrixpark op korte afstand voor een dagelijkse wandeling, terwijl de levendigheid van de stad eenvoudig op te zoeken is. Het luxe winkelcentrum Gelderlandplein en de Zuidas bieden een ruim aanbod aan winkels en restaurants in de directe omgeving.
De straatnaam Nedersticht verwijst naar de historische indeling van het middeleeuwse gewest Utrecht, dat werd verdeeld in Nedersticht en Oversticht. Net als veel andere straatnamen in Buitenveldert is deze naam een eerbetoon aan de geografische en historische namen van Nederland, waarmee het appartement in een wijk met een rijke achtergrond is gelegen.


Judith de Jong | Makelaar Broersma Wonen
AM105478-1966166-Nedersticht-232,-Amsterdam-214064207
Designvisie

Buitenveldert, gelegen in het zuiden van Amsterdam, is een wijk die zich onderscheidt door haar modernistische stedenbouwkundige opzet en architectuur uit de jaren ’50 en ’60. Ontworpen volgens het Algemeen Uitbreidingsplan (AUP) van Cornelis van Eesteren, straalt de wijk ruimtelijkheid en rust uit.
De architectuur in Buitenveldert wordt gekenmerkt door functionalisme, met strakke lijnen, praktische indelingen en grote ramen die zorgen voor veel daglicht. De bebouwing bestaat uit galerijflats, eengezinswoningen en modernistische laagbouw. Brede lanen, open pleinen en parken, zoals het Amstelpark en het Gijsbrecht van Aemstelpark, omringen de woningen en geven de wijk een groene, serene sfeer die ideaal is voor gezinnen en ouderen.
Naast het groen biedt Buitenveldert enkele opvallende voorzieningen, zoals het Gelderlandplein, een winkelcentrum dat in de jaren ’60 is gebouwd en sindsdien is gemoderniseerd. De nabijheid van de Zuidas, met zijn moderne hoogbouw, vormt een interessant contrast met de ingetogen architectuur van Buitenveldert zelf.
Buitenveldert is een wijk waar traditie en moderniteit harmonieus samenkomen, en waar de idealen van de modernistische woonwijk – licht, lucht en ruimte – nog steeds voelbaar zijn.

AM105478-1966166-Nedersticht-232,-Amsterdam-214064203
AM105478-1966166-Nedersticht-232,-Amsterdam-214064223
AM105478-1966166-Nedersticht-232,-Amsterdam-214064221
AM105478-1966166-Nedersticht-232,-Amsterdam-214064255
Wonen en koken

Het appartement op de eerste verdieping is zowel met de lift als de trap te bereiken. Bij binnenkomst via de hal betreedt u de lichte en sfeervolle doorzonwoonkamer. Dankzij grote raampartijen geniet deze ruimte van een overvloed aan natuurlijk licht. De living biedt meer dan voldoende plek voor een comfortabele zithoek en een ruime eettafel. De gehele woning is voorzien van een moderne laminaatvloer met vloerverwarming, wat zorgt voor extra comfort.
De centrale hal verbindt de woonkamer met de slaapkamers, badkamer, keuken, een praktische bergkast met wasmachineaansluiting en een separaat toilet. De keuken is uitgerust met hoogwaardige inbouwapparatuur, waaronder een combi-stoomoven, vaatwasser, 4-pits gaskookplaat, koel-vriescombinatie en afzuigkap, wat het tot een functionele en stijlvolle ruimte maakt.

AM105478-1966166-Nedersticht-232,-Amsterdam-214064231
AM105478-1966166-Nedersticht-232,-Amsterdam-214064225
AM105478-1966166-Nedersticht-232,-Amsterdam-214064257
AM105478-1966166-Nedersticht-232,-Amsterdam-214064265
AM105478-1966166-Nedersticht-232,-Amsterdam-214064253
AM105478-1966166-Nedersticht-232,-Amsterdam-214064249
Slapen en baden

Het appartement beschikt over twee gelijkwaardige slaapkamers, beiden met directe toegang tot het balkon aan de voorzijde. De master bedroom is ruim genoeg voor een groot tweepersoonsbed en een kledingkast, terwijl de tweede slaapkamer ideaal is als kinder-, logeer- of werkkamer. De neutrale afwerking biedt volop mogelijkheden om de ruimtes naar eigen smaak in te richten. De moderne badkamer is slim ingedeeld en voorzien van een royale inloopdouche met regendouche, een dubbel wastafelmeubel en een verwarmde spiegel.

AM105478-1966166-Nedersticht-232,-Amsterdam-214064259
AM105478-1966166-Nedersticht-232,-Amsterdam-214064271
AM105478-1966166-Nedersticht-232,-Amsterdam-214064263
AM105478-1966166-Nedersticht-232,-Amsterdam-214064269
AM105478-1966166-Nedersticht-232,-Amsterdam-214064243
AM105478-1966166-Nedersticht-232,-Amsterdam-214064239
AM105478-1966166-Nedersticht-232,-Amsterdam-214064237
Het balkon

Het op het zuiden gelegen balkon strekt zich uit aan de voorzijde van het appartement en biedt een fraai uitzicht over het plantsoen en de straat. Een ideale plek om te ontspannen en te genieten van de zon.

AM105478-1966166-Nedersticht-232,-Amsterdam-214064235
AM105842-1936588-Geervliet-147,-Amsterdam-202748371
AM105582-1897951-Geervliet-147,-Amsterdam-191742199
AM105478-1966166-Nedersticht-232,-Amsterdam-214064209

Buurtgids
Nedersticht 232 is gelegen in de wijk Buitenveldert-Oost in Amsterdam. Deze buurt staat bekend om haar rustige en groene omgeving, met diverse voorzieningen binnen handbereik. Op korte afstand bevindt zich het Amstelpark, een prachtig aangelegd park dat uitnodigt tot wandelen en recreatie. Daarnaast ligt het recent gerenoveerde winkelcentrum Gelderlandplein op slechts enkele minuten loopafstand, waar een breed scala aan luxe winkels en horecagelegenheden te vinden is. Met de fiets zijn zowel de Beethovenstraat als de Scheldestraat binnen tien minuten te bereiken, beide straten bieden een divers aanbod aan winkels en restaurants. De buurt is goed bereikbaar met het openbaar vervoer en heeft uitstekende verbindingen naar andere delen van de stad. Kortom, wonen op Nedersticht 232 biedt een harmonieuze combinatie van rust, groen en stedelijke voorzieningen.

Bereikbaarheid
Uitstekende verbindingen met de auto naar de ring A10 en op loopafstand van openbaar vervoer (station RAI voor trein, metro, tram en bus. In de buurt zijn verschillende tram- en bushaltes te vinden, en ook het trein- en metrostation Amsterdam-Zuid/WTC is snel en makkelijk bereikbaar. Met tramlijn 5 en metrolijn 51 is het centrum van Amsterdam of luchthaven Schiphol direct te bereiken. Het complex ligt bovendien gunstig ten opzichte van de A10 (afslag 109). Ook de uitvalswegen (A9, A2, A10 en A4) liggen op slechts enkele minuten rijden.

Parkeergelegenheid
Parkeren is mogelijk via een vergunningenstelsel op de openbare weg (vergunningsgebied Zuid 7).
Met een parkeervergunning voor Zuid 7 mag u parkeren in Zuid 7. Een parkeervergunning voor bewoners kost € 57,00 per 6 maanden.
Momenteel is er voor dit vergunningsgebied geen wachttijd. Een tweede parkeervergunning is in dit gebied mogelijk dit kost € 142,50 per 6 maanden (Bron: Gemeente Amsterdam, januari 2025).

AM105478-1966166-Nedersticht-232,-Amsterdam-214064241
AM105478-1966166-Nedersticht-232,-Amsterdam-214064215
Kenmerken
Nedersticht 232, Amsterdam
Vraagprijs
  • € 480.000 k.k.
Beschikbaarheid
  • In overleg
Vertrekken
  • 3 kamers
  • 2 slaapkamers
  • 1 badkamer
Onderhoud
  • Intern: Goed tot uitstekend
  • Extern: Goed
Oppervlakten & Inhoud
  • Woonoppervlakte: 72 m²
  • Overige inpandige ruimte: 1 m²
  • Gebouwgebonden buitenruimte: 6 m²
  • Externe bergruimte: 8 m²
Bouwjaar
  • 1963
Installaties
  • Lift
  • Mechanische ventilatie
Ligging
  • Aan rustige weg
  • In woonwijk
Parkeren
  • Betaald parkeren
  • Parkeervergunningen
Type verwarming
  • CV Ketel
  • Vloerverwarming geheel
Type warmwater
  • CV Ketel
Bestemming
  • Woonruimte
Eigendomssoort
  • Eigendom belast met erfpacht
Buitenruimte
  • Geen tuin
  • Balkon
Kadastraal
  • Gemeente: Amsterdam
  • Sectie: Ak
  • Nummer: 4299
Duurzaamheid
  • Dubbel glas
  • Energielabel D
Soort
  • Appartement
  • Bovenwoning
Welke woonlaag
  • 2e
Bijzonderheden
  • Toegankelijk voor minder validen
  • Toegankelijk voor ouderen
Overige kenmerken
  • OZB ('24): € 196,81 per jaar
  • Rioolrecht ('25): € 185,20 per jaar
  • Servicekosten VvE: € 206,00 per maand
  • VvE professioneel beheerd door IJmere
  • Plannen voor verduurzaming van het gebouw door de VvE
  • Erfpacht is eeuwigdurend afgekocht
  • Energielabel: D
  • In 2018 volledig turn-key gerenoveerd
  • Niet-zelfbewoningsclausule wordt opgenomen in de koopakte
Plattegrond
Nedersticht 232, Amsterdam
AM105478-1966166-Nedersticht-232,-Amsterdam-215539009
AM105478-1966166-Nedersticht-232,-Amsterdam-215539011
AM105478-1966166-Nedersticht-232,-Amsterdam-215539015
AM105478-1966166-Nedersticht-232,-Amsterdam-215539017
Documenten
Nedersticht 232, Amsterdam
Locatie
Nedersticht 232, Amsterdam
Boodschappen
01
Adres
Gelderlandplein 187,
1082 LW Amsterdam

Shilia Supermarkets

Een Japanse en Koreaanse foodmarkt. Gevestigd op het Gelderlandplein. Oorspronkelijk opende ze deze winkel om mensen uit Japan en Korea zich weer een beetje thuis te laten voelen, maar inmiddels weet iedereen deze foodmarkt te vinden. Authentiek, goed eten, als je Aziatisch wilt gaan koken is dit de plek.

02
Adres
Kastelenstraat 262-264,
1082 EJ Amsterdam

Atariya

Naast importeur en distributie van Japanse producten heeft dit bedrijf ook een winkel in Amsterdam. Hier vind je een geweldig en uitgebreid assortiment aan Japanse etenswaar producten. Het is ook mogelijk om eten af te halen. De winkel heeft een kleine keuken waarin elke ochtend verse maaltijden worden bereid.

Mordechai-Mouwes-kastelenstraat-sept2009
03
Adres
Kastelenstraat 261,
1082 EG Amsterdam

Mouwes

Mouwes Koshere Delicatessen is al meer dan 200 jaar het adres voor alle koshere producten. Of je komt voor je dagelijkse boodschappen of  je zoekt iets speciaals , zij hebben het allemaal. Van brood, kaas en vlees tot Israelische specialiteiten.  Je kan er ook terecht voor broodjes of soms gerechten zoals Sefardische kip met couscous.

04
Adres
Buitenveldertselaan 166,
1081 AC Amsterdam

Slagerij Hergo

Slagerij Hergo is de vleesspecialist in Amsterdam. Al in 1930 begon de heer Cantor, een Duitse worstmaker, samen met zijn vrouw die uit een Amsterdamse slagersfamilie kwam, zijn slagerij met typische Duitse worstspecialiteiten. Met het motto ‘De slager met ’n koksmuts’ is Hergo uitgegroeid naar vier verschillende locaties en is zo tegenwoordig niet meer weg te denken uit het straatbeeld van Amsterdam. Met jachtworst, hausmacher, ossenworst, pekelvlees maar ook met een broodje filet americain onderscheidt Hergo zich als slagerij in het topsegment.

180912402_1910769552415460_9061827722288066926_n
05
Adres
Scheldeplein 20,
1078 GR Amsterdam

Sab’s Deli

Bij Sab’s Deli ligt de focus op echt lekker, maar net wat specialer dan normaal, en uiteraard waar mogelijk duurzame en lokale producten. Al deze dingen samen vormen het merk ‘Sab’s. Ze verzorgen ook complete caterings van thuisdiners tot heerlijke borrelhapjes. Gelegen vlak naast de drukke RAI in Amsterdam Zuid, kan je ook altijd als je net de trein uitstapt even binnenlopen en kijken wat de pot schaft. Het zal niet tegenvallen!

Schermafbeelding 2022-07-01 om 14.03.31
06
Adres
Maasstraat 88,
1078 HM Amsterdam

Sophie Eats

Sophie Eats is een cateringbedrijf en deli-shop gevestigd in Amsterdam. Met kwalitatieve seizoen producten wordt er een balans naar smaken en textuur gezocht die het eten uniek en lekker maken. Het kleurrijke menu is geschikt voor iedere gelegenheid; van een zakenlunch of een mode-evenement tot een sfeervolle borrel. In het winkeltje kan je terecht voor koffie, een vers sapje of iets lekkers te eten voor onderweg.

Eten & drinken
366937812_17933803049710351_8213912525779000332_n
367438354_17933803034710351_539942877662656212_n
370936688_17935908203710351_8346539429364568324_n
07
Adres
Beethovenstraat 515,
1083 HK Amsterdam

Nela

Bij Nela vieren ze de samensmelting van live vuur koken met hoogwaardige en zorgvuldig geselecteerde ingrediënten. Ze halen en selecteren seizoensgebonden producten van gespecialiseerde partners.  Het open vuur is het perfecte gereedschap voor de chefkoks om warmte en temperatuur te gebruiken om ongelooflijke texturen en smaken te creëren. Nela is bedacht door toonaangevende chefs Hari Shetty en Ori Geller, die twee decennia ervaring hebben op het internationale podium. Na jarenlang te hebben gewerkt voor toprestaurants zoals Nobu (Londen), Yaffo-Tel Aviv, Izakaya, The Duchess en Mr. Porter (Amsterdam), bundelden ze hun krachten met de innovatieve internationale ondernemer Gilad Hayeem (Waverly Group). Samen brachten Hari, Ori en Gilad hun gedeelde visie en creativiteit tot leven door Nela op te richten.

08
Adres
Gelrestraat 28,
1079 MZ Amsterdam

Restaurant Showw (*)

Eigenaren Lendl Mijnhijmer (sommelier en restaurant manager) en Dorus Floris, executive chef, voorheen Bougainville (*) openden hun eigen fine dining restaurant aan de kop van de Zuidas. Naast een 6 gangen menu is er ook de mogelijkheid om a la carte te eten. Hier wordt op hoog niveau gekookt en de uitstekende wijnkaart bevat maar liefst 750 wijnen. In 2024 ontving Showw een Michelinster, waarbij Lendl Mijnhijmer tevens werd bekroond met de Michelin Sommelier Award voor zijn uitmuntende wijnadviezen en combinaties. Het menu varieert van een 5- tot 6-gangendiner, met gerechten zoals langoustine met aardpeer, curry en koffie, en tarbot met risotto, paprika en XO-saus.

Interieur_Zuidas_24-12-2018-scaled
09
Adres
Parnassusweg 1021,
1082 LZ Amsterdam

Café Loetje Zuid As

In 1977 werd café Loetje opgericht als biljartcafé door Ludwig 'Loetje' Klinkhamer, maar het duurde niet lang voor men het biljart inruilde voor de ossenhaasbiefstuk die werd geserveerd. Meer dan veertig jaar later is Loetje een gigantische keten en is het oorspronkelijke 'Café' een begrip in Amsterdam. De smakelijke biefstuk wordt geserveerd met huisgemaakte frietjes en zwemt in verse jus - om je vingers bij af te likken!

87063095_139858640829594_2768792685031456768_n
10
Adres
Buitenveldertselaan 114,
1081 AB Amsterdam

China Supreme

China Supreme is een must-visit voor liefhebbers van Chinees streetfood en comfort food. Het populairste gerecht op de kaart zijn de jianbingcrêpes, die gevuld worden met onder andere ei, pittige olie en lente-ui, garnalen of eend. Verder biedt de kaart heerlijke wontons, gyozas en de specialiteit biangbiang noedels. De perfecte plek om de authentieke Chinese smaken te ontdekken.

144252327_1117059068733866_113518853239563698_n
11
Adres
Buitenveldertselaan 158A,
1081 AB Amsterdam

Wagyu Yakiniku Kanata

Wagyu Yakiniku Kanata restaurant is een plek waar je kan genieten van rundvlees van de hoogste kwaliteit. Bij Kanata vind je een traditionele ingebouwde Japanse barbecue aan tafel, waar je zelf je Wagyu vlees en groenten grilt. De Wagyu die ze serveren komt uit Japan en is beoordeeld met een A5 (dat is de hoogte score). Daarbij hebben ze ook Wagyu van boerderijen uit Spanje die al tientallen jaren ervaring hebben met het fokken van hoogwaardige Wagyu.

12
Adres
Parnassusweg 400,
1081 LD Amsterdam

Vascobelo Parnassusweg

Vascobelo ontstond in 1998 in Antwerpen vanuit de familiepassie van Marc De Roeck, die opgroeide met vers gebrande koffie van zijn vader. De kracht ligt in de combinatie van Belgische koffiecultuur, langzaam gebrande blends en een herkenbare, ambachtelijke signatuur waarin kwaliteit en beleving centraal staan.

316696614_701301834540671_3708281314260770335_n
144520165_409011853732573_3822562762173474371_n
13
Adres
Europaplein 87,
1078 GZ Amsterdam

Scandinavian Embassy

Hier wordt ervaring en interesse in Scandinavisch eten en duurzaamheid geboden. Bij de Embassy traceren ze kleine, niche-leveranciers en gaan mee met de seizoenswisselingen van producten. De keuken biedt menu's voor een betaalbare prijs waarbij de gezonde en milieuvriendelijke wortels van de Scandinavische keuken behouden blijven. Bijzonder is dat ze ook koffie met eten combineren , waardoor, volgens hun zeggen, de algehele culinaire ervaring verbeterd wordt. Dit is hun tweede locatie. De ander locatie is in de Pijp gevestigd.

downloadgram.org_559642553_122125719002959277_149688819253188505_n
14
Adres
Europaplein 67,
1078 GW Amsterdam

Toet Amsterdam

Toet is het mediterraan georiënteerde restaurant van het team achter Troef, dat met deze tweede zaak een eigen draai geeft aan mediterrane en Italiaanse smaken in Zuid-Amsterdam. De eigenaren — waaronder Niels Leijssenaar, Roderick Kunst, Willem Alberts en Raymond Plat — brengen dezelfde kwaliteit en gastvrijheid als hun Troef-concept, maar dan met frisse, mediterraanse invloeden op de kaart. Je vindt hier gerechten zoals kreeft met gnocchi of pizzeta met ’nduja en rivierkreeft, die de rijke smaken van de Middellandse Zee reflecteren.

Hakata-Senpachi-dsc_0680-4000PX-1024×683
15
Adres
Wielingenstraat 16,
1078 KK Amsterdam

Hakata Senpachi

Prachtig Japans eten en de lekkerste saké's; dat is Hakata Senpachi. Dit restaurant aan de Wielingenstraat bestaat al langer dan 20 jaar en heeft in al die jaren altijd haar autentieke japanse sfeer behouden. De manier waarop restaurant is ontworpen doet het lijken op een echt Japans restaurant in de steegjes van Tokyo. Hakanta Senpachi is als Yakitori-ya - gespecialiseerd in het maken van gegrilde kipspiesjes, die in Japans Yakitori worden genoemd. De spiesen worden gegrild via traditionele kookwijzen op de houtskool grill. Deze grill staat overigens in het midden van het restaurant waardoor de ruimte altijd volhangt met de lekkerste aroma's.

175682_10152206008775179_210428518_o
16
Adres
Scheldeplein 22,
1072 GJ Amsterdam

Pisa IJs

Bij deze bescheiden ijswinkel bij Amsterdam RAI ben je aan het goede adres voor heerlijk Italiaans ijs. Sinds 1935 kun je hier terecht voor ambachtelijk ijs in meer dan 60 verschillende (wisselende) smaken per seizoen. Samen met ijswinkel Venetië ietsje verderop zijn deze twee ijswinkels dé plekken om goed schepijs in Amsterdam-Zuid te halen, vandaar ook de lange rijen in de zomer, maar het wachten waard en het gaat snel!

HI-RES_Broodjeszaak-Sal-Meijer_8521-1-1024×683
17
Adres
Professor J.H. Bavincklaan 5,
1183 AT Amstelveen

Sal Meyer

Koshere delicatessen sinds 1957! Begonnen op de nieuwmarkt, verhuisd naar de Scheldestraat. Vervolgens naar Buitenveldert en nu in Amstelveen. Al meer dan 60 jaar een begrip vanwege de broodjes (warm) pekelvlees, ossenworst, halfom en de viskoekjes. Eenvoudig, lekker en zelfgemaakt. Mensen rijden er voor om.

Schermafbeelding 2022-05-18 om 15.54.00
18
Adres
Scheldeplein 4,
1078 GR Amsterdam

Visaandeschelde

Al meer dan 20 jaar een begrip in Amsterdam Zuid. Zoals ze zelf zeggen is hun culinaire passie het omtoveren van dagverse vis en seizoensproducten tot spannende en heerlijke gerechten. En daarmee is eigenlijk bijna alles al gezegd. Visaandeschelde ziet er chique uit, maar binnen is er geen te kort aan een goede portie Amsterdamse gezelligheid. Ook kan je in de zomer heerlijk op het terras zitten dat uitkijkt op het Scheldeplein.

Kunst & cultuur
19
Adres
Hildegard Von Bingenstraat 4,
1081 LH Amsterdam

Cinema The Pulse

Cinema The Pulse is een filmtheater in de plint van The Pulse of Amsterdam op de Zuidas, met een breed programma van arthouse, cult en actuele films. De kracht ligt in de combinatie van cinema, architectuur en ontmoeting, als stedelijke filmhub waar filmbeleving en metropolitane context samenkomen.

downloadgram.org_597897714_1508494480841935_8620457783605645660_n
20
Adres
Prinses Irenestraat 36,
1077 WX Amsterdam

De Thomas

De Thomas is een monumentale kerk aan de rand van de Zuidas waar religie en cultuur bewust samenkomen. Met een eigen theater, concerten en debatavonden is het een plek voor ontmoeting en verdieping, midden in het zakelijke hart van Amsterdam Zuid. Het gebouw geldt als een belangrijk voorbeeld van naoorlogse kerkarchitectuur in Nederland en is vormgegeven in een expressieve, brutalistische stijl.

21
Adres
De Boelelaan 1111,
1081 HV Amsterdam

Rialto VU

Rialto VU is de tweede locatie van het historische filmtheater Rialto (1921) en gevestigd op de VU-campus aan de Boelelaan. De kracht ligt in de combinatie van arthouse cinema, festivals en culturele programmering binnen een bredere culturele hub waar film, kunst en academie samenkomen.

22
Adres
De Boelelaan 1111,
1081 HV Amsterdam

VU ART SCIENCE gallery

De VU ART SCIENCE gallery is een universitaire galerie op de VU-campus waar kunst en wetenschap elkaar ontmoeten in tentoonstellingen en dialogen rond actuele thema’s. De kracht ligt in de multidisciplinaire uitwisseling tussen kunstenaars, onderzoekers en publiek, met een duidelijke focus op kennis, onderzoek en maatschappelijke vraagstukken.

pati_F1A7803ssdweb
_F1A4074
23
Adres
Parnassusweg 220,
1076 AV Amsterdam

Diez Gallery

Diez is een Amsterdamse kunstgalerie met een internationale uitstraling, opgericht in 2022 door Diego Diez. De tentoonstellingen worden samengesteld in samenwerking met kunstenaars die affiniteit hebben met Diez's interesses en zullen zowel internationaal als nationaal talent presenteren in Amsterdam. Naast het tentoonstellingsprogramma streeft Diez ernaar een toegankelijke ruimte te zijn voor een breed publiek met diverse activiteiten en evenementen zoals poëzielezingen, samengestelde diners en kunstenaarsgesprekken.

24
Adres
Van der Boechorststraat 8,
1081 BT Amsterdam

De Botanische Tuin Zuidas

De Botanische Tuin Zuidas, ontstaan als universitaire hortus in 1967, is een verrassend groene oase midden op de VU-campus. Met duizenden plantensoorten, gespecialiseerde collecties en kronkelende paden vormt de tuin een rustige, bijna verborgen plek waar wetenschap, natuur en stedelijke dynamiek op een bijzondere manier samenkomen.

Kunst en kleur; Park Van Eeghen

Kunst en kleur; Park Van Eeghen

Samengesteld; een collectie werkplekken in het centrum van Amsterdam.

Samengesteld; een collectie werkplekken in het centrum van Amsterdam.

Kunst & cultuur agenda december 2025

Kunst & cultuur agenda december 2025

Onlangs bekeken
Bekijk het overzicht

Deze site maakt gebruik van cookies.

Voor welke cookies geef je akkoord?