Uniek wonen aan de Nassaukade met uitzicht over het water. Het appartement is gelegen op de bel etage en de eerste verdieping van het gebouw en heeft een speelse indeling. 

Een rondleiding 

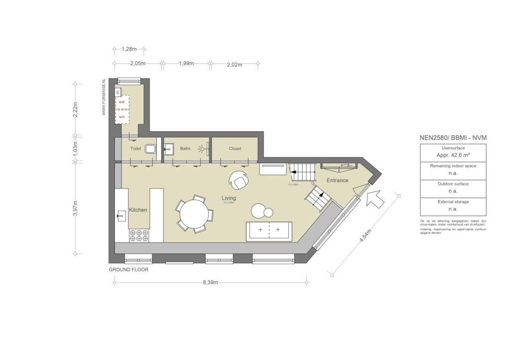
De begane grond
Bij binnenkomst via de eigen entree spreekt de lichte woonkamer gelijk tot de verbeelding, dit komt door de grote winkelramen aan twee kanten. De luxe open keuken is voorzien van alle benodigde apparatuur zoals een vijfpits gasfornuis, afzuigkap, vaatwasser en twee koelkasten. De badkamer, met douche en wastafel, het toilet en washok bevinden zich naast de keuken en zijn naadloos verwerkt in de zijkant van de woonkamer door middel van schuifdeuren.

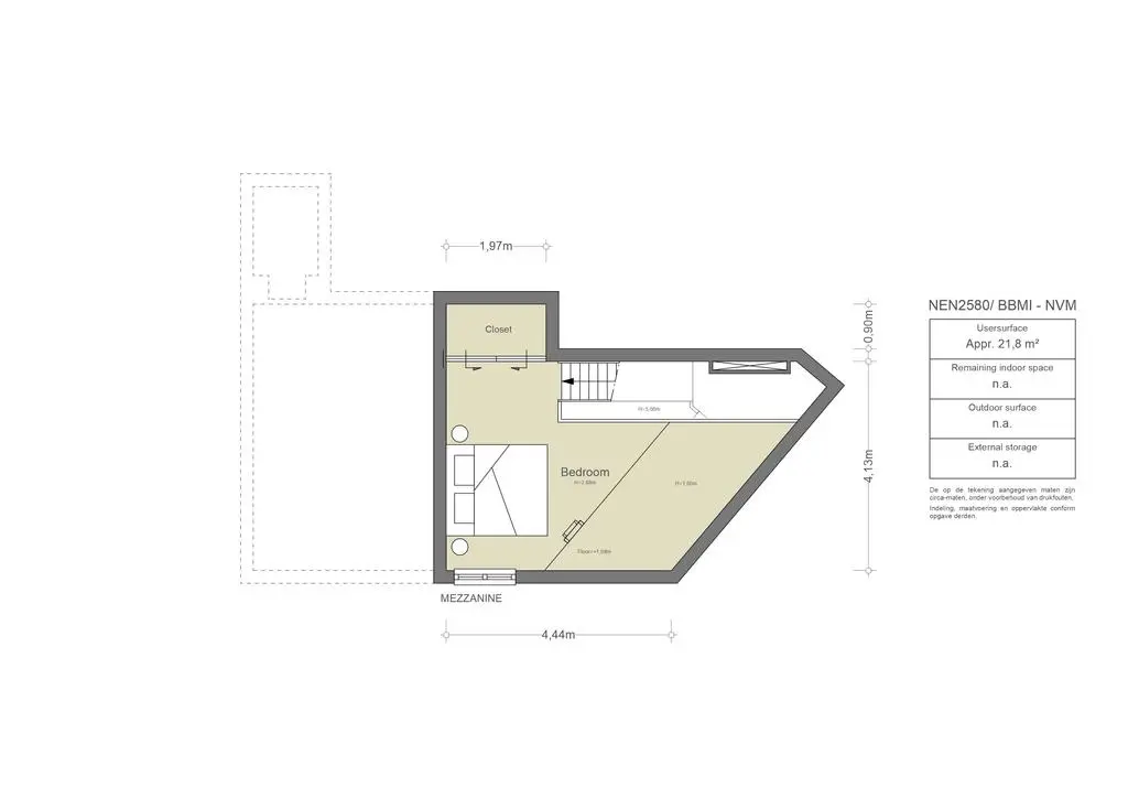
De eerste verdieping
De gehele etage behelst de ruim opgezette slaapkamer met ingebouwde garderobe en wandkasten. Vanuit de slaapkamer is er uitzicht over de Nassaukade. 

De omgeving en bereikbaarheid  
Gelegen aan het water op een centrale locatie in Stadsdeel West, nabij het Westerpark, het Haarlemmerplein, de Westerstraat en het Van Limburg Stirumplein. Waar een divers aanbod van winkels, restaurants, terrassen, traiteurs en koffietentjes te vinden is. Alle voorzieningen zoals cultuur en diverse supermarkten zijn in de buurt.

En het appartement is goed bereikbaar met het openbaar vervoer. Diverse tram en bushaltes. Tevens uitstekend gelegen ten opzichte van de Ring A10 is met de auto binnen enkele minuten te bereiken. 

De parkeergelegenheid
Er is een mogelijkheid om een parkeervergunning aan te vragen. 

De bijzonderheden
- Huurprijs: € 2.400,- exclusief per maand; 
- Schoonmaak: inclusief de huurprijs één keer per maand; 
- Startdatum: 2 februari 2026; 
- Borgsom: twee maanden huur;
- Huurperiode: huurovereenkomst Model A voor onbepaalde tijd, minimaal twaalf maanden;  
- Oplevering: gemeubileerd;
- Garantstelling: verhuurder accepteert geen garantstelling. 

Meer ontdekken? Ervaar de volledige woonbeleving op onze BRSM website of download de brochure.

Deze informatie is door ons met de nodige zorgvuldigheid samengesteld. Onzerzijds wordt echter geen enkele aansprakelijkheid aanvaard voor enige onvolledigheid, onjuistheid of anderszins, dan wel de gevolgen daarvan.

Kenmerken
Nassaukade 60H, Amsterdam
Huurprijs
  • € 2.300 per maand
Beschikbaarheid
  • Per datum
Vertrekken
  • 2 kamers
  • 1 slaapkamer
Onderhoud
  • Intern: Goed
  • Extern: Goed
Oppervlakten & Inhoud
  • Woonoppervlakte: 71 m²
Installaties
  • Natuurlijke ventilatie
  • TV kabel
Ligging
  • Aan vaarwater
Parkeren
  • Betaald parkeren
  • Openbaar parkeren
  • Parkeervergunningen
Type verwarming
  • CV Ketel
Type warmwater
  • CV Ketel
Bestemming
  • Woonruimte
Buitenruimte
  • Geen tuin
Duurzaamheid
  • Energielabel C
Soort
  • Appartement
  • Benedenwoning
Bijzonderheden
  • Gemeubileerd
Plattegrond
Nassaukade 60H, Amsterdam
AM106974-2115436-Nassaukade-60H,-Amsterdam-259028244
AM106974-2115436-Nassaukade-60H,-Amsterdam-259028252
Documenten
Nassaukade 60H, Amsterdam
Locatie
Nassaukade 60H, Amsterdam
Eten & drinken
DuendeDos-22-e1518696764691
01
Adres
Nieuwe Willemsstraat 1-3,
1015 JH Amsterdam

Duende dos

Erik Nieuwendijk (56) en Jackie Tack (51), de bevlogen eigenaren van restaurant Dos, hebben een culinaire reis van 25 jaar achter de rug. In een tijd waarin het uitleggen van tapas nog noodzakelijk was, hebben ze nu, mede dankzij de invloed van drie Spaanse experts uit het oude Centra, gekozen voor klassieke Spaanse gerechten. Met Roberto en Jesus, samen meer dan 60 jaar ervaring in de Spaanse keuken, wordt het authentieke karakter van Dos versterkt. Dit restaurant staat dan ook synoniem voor de traditionele Spaanse keuken met gebruik van goede en eerlijke ingrediënten, bereid op een simpele en smaakvolle wijze.

02
Adres
Tweede Nassaustraat,
1052 BJ Amsterdam

Wang’s Flavour

Wang's Flavour, gevestigd in de Tweede Nassaustraat, is een must-visit voor liefhebbers van de Zhejiang-keuken. De frisse en milde smaken van deze keuken komen terug in de originele gerechten op het menu. Hier geen typische Chinese afhaalgerechten, maar juist minder bekende nummers. Wie van pittig houdt, kan kiezen uit een selectie pikante Sichuan-gerechten. Wang's Flavour staat ook bekend om zijn fenomenale geroosterde eend. Naast dineren in het restaurant kun je hier ook bestellen.

531474882_18073893428004240_7187049577581030040_n
03
Adres
Lindengracht 248,
1015 KM Amsterdam

ô bistro

ô bistro aan de Lindengracht is zo’n plek waar je meteen voelt dat er een subtiele balans is gevonden tussen vakmanschap en warmte. Het restaurant wordt bestierd door een Frans-Italiaans duo: chef Pierre Buffard, die de klassieke Franse bistrokeuken met aandacht en precisie naar tafel brengt, en sommelier Daniele Gaudiello, die met zijn Italiaanse achtergrond zorgt voor een wijnkaart die nét even verder reikt dan de verwachte Bourgogne of Bordeaux. Het resultaat is een met zorg samengesteld menu vol Franse favorieten zoals terrine, côte de boeuf, mille-feuille begeleid door wijnen die je nieuwsgierig maken in plaats van op de automatische piloot te laten drinken.

Schermafbeelding 2022-05-18 om 17.25.42
Schermafbeelding 2022-05-18 om 17.25.52
04
Adres
Westerstraat 264,
1015 MT Amsterdam

The Good Companion

Gelegen middenin de Jordaan vind je The Good Companion. Duurzame vis en dagverse producten staan hier vooraan. De naam zegt het al, losjes de Engelse vertaling van ‘Het goede maatje’, en vandaar dat ze hier ook goddelijke Fish and chips verkopen die je met al je goede maten kan opeten. Maar ook oesters, mosselen en andere specialiteiten zijn hier van hoge kwaliteit.

downloadgram.org_587815698_17866575474532165_7443963130573318662_n
05
Adres
Westerstraat 266,
1015 MT Amsterdam

Kamer

Kamer is de nieuwe bar en restaurant in het voormalige pand van Café de Parel, opgezet door Ciaran Patrick en Justin Grooten. Voor Patrick is het zijn eerste eigen zaak, na eerdere ervaringen bij onder andere Sebonsa en 4850. Samen bouwden ze een plek waar een spannende, eigenzinnige keuken hand in hand gaat met een sterke focus op (natuur)wijnen. De kaart wisselt regelmatig en nodigt uit om te delen, proeven en ontdekken zonder vast stramien.

Schermafbeelding 2022-07-01 om 16.55.36
Schermafbeelding 2022-07-01 om 16.55.03
06
Adres
Westerstraat 186,
1015 MR Amsterdam

Madre

Restaurant & cocktailbar Madre is ideaal gelegen op de Westerstraat, midden in de Jordaan. Het is de Bacalar van het centrum en daarmee dus net zo een veelbelovende taqueria met verfrissende cocktails. De boodschap van Madre zit verwerkt in de naam: alles begint en eindigt bij onze mama's. Wat betreft het eten betekent dit dat het process van productie tot vork rekening houdt met de liefde van moeder natuur. Het gebruik van lokale producten uit het seizoen draagt bij aan de positieve boodschap van het restaurant en is ook te proeven, zowel in de Mexicaanse keuken als in de met limoen doordrenkte mescal cocktails. Reserveren is handig maar hoeft niet, de helft van de ruimte wordt open gehouden voor walk-in's!

274181554_514374306780067_7358645921505996051_n
260857342_459161318968033_4297636042881752011_n
07
Adres
Westerstraat 182,
1015 MR Amsterdam

Café Parlotte

Mooie wijn, lekker eten, maar vooral ook de gezelligheid van samen een avond doorbrengen op een fijne plek. Dat is Café Parlotte”, zo zeggen ze zelf.  Je kunt aanschuiven voor wijn, oesters, charcuterie, kaas en andere lekkere dingen, maar er wordt ook een wekelijks wisselend driegangen menu geserveerd. De wijnkaart in 1 van de beste van de stad. Margot Los, sommelier van het jaar 2023, schenkt net zo lief een huiswijn als de meest bijzondere fles.

Schermafbeelding 2022-06-27 om 18.28.45
08
Adres
Lindengracht 158h,
1015 KK Amsterdam

SAINT-JEAN

Sinds kort bevindt zich in de Jordaan: Saint Jean. Toen de eigenaar Yann Pierre-Jean plant-based ging eten was hij erg teleurgesteld in de smaken van vegan gebak. Hij besloot vanuit huis te gaan bakken en dit te verkopen. Dit groeide uit tot zijn eigen plant-based bakkerij en koffiespeciaalzaak. Het is er altijd druk maar als je vroeg bent, kun je een van de kenmerkende cruffins scoren, gevuld met een huisgemaakte pistachecrème die goddelijk is.

295079637_591004842678920_1576899559534590796_n
289654946_399354438825573_6894201784105698344_n
09
Adres
Van Limburg Stirumstraat 115,
1051 BA Amsterdam

Cafe Beurre

Café Beurre is een laagdrempelige plek waar je zonder reservering altijd welkom bent. Het restaurant heeft een voorliefde voor groenten en boter, en gebruikt geen vlees of vis in hun gerechten. De wijnkaart is samengesteld door voormalig medewerker van Balthazar's Keuken en De Wijnwinkel, en biedt een selectie van Franse en Italiaanse wijnen tegen fatsoenlijke prijzen. Het restaurant heeft ook veel aandacht voor aperitieven en serveert een klassiek Frans hapje van radijs met zelfgemaakte boter van biologische boerderij De Beekhoeve. De menukaart wisselt regelmatig en biedt gul smakende, ongecompliceerde gerechten die uit de losse pols lijken te zijn ontstaan.

170048820_833091807392145_1141200956224978229_n
10
Adres
Westerstraat 136,
1015 MP Amsterdam

Hummus Bistro D&A

Hummus Bistro D&A is opgezet door twee Israëlische vrouwen. Je kan er de hele dag door genieten van heerlijke gerechten. Begin je dag met shakshuka voor ontbijt, smul van traditionele hummus met verschillende toppings tijdens de lunch en proef vlees- of vegetarische gerechten bij het diner. Alles is mogelijk en kan de hele dag worden besteld. De traditionele hummus wordt geserveerd met pitabrood, salade en zuur, maar je kunt ook kiezen voor toppings zoals geroosterde groenten of langzaam gegaard vlees en verse kruiden.

361918206_239911348927037_426215727825515003_n
372800321_317823594101483_3189312280135650856_n
11
Adres
Westerstraat 86,
1015 MN Amsterdam

Sins of Sal

Bij Sins of Sal wijkt de keuken af van de authentieke Latijns-Amerikaanse stijl van Salmuera. Het menu omarmt streetfood met onder andere de Heretic Hamburger, met huancaina-kaassalsa en de Molleja (zwezerik) Tostadas. In tegenstelling tot Salmuera, waar de nadruk ligt op familiediners of romantisch kaarslicht, is Sins of Sal gedurfd en zondig. Kaarsvet druipt van de kandelaren, betonlook muren en rode tl-buizen sieren het interieur.

cafenol-amsterdam-huikamer
12
Adres
Westerstraat 109,
1015 LX Amsterdam

Café Nol

Een echt familiebedrijf en een authentiek Amsterdams café. Gelegen aan de Westerstraat in de gezellige buurt de Jordaan is het café niet te missen: de rode luifels zijn op een grote afstand al zichtbaar. Ook van binnen is alles rood en oer-Amsterdams. Barkrukken van leer, kanten gordijntjes voor de ramen, kroonluchters en oude foto’s aan de muren maken Café Nol iconisch. De tijd lijkt hier stil te staan; zodra je naar binnen gaat bevind je je in het Amsterdam van 1966 (toen opende dit café voor het eerst haar deuren). Ben je op zoek naar Amsterdamse gezelligheid, dan ben je bij Café Nol aan het goede adres.

370862932_1664011317414313_2153678134155894104_n
362099727_235733052148717_1962555790629958447_n
13
Adres
Boomstraat 41A,
1015 LB Amsterdam

Café R. De Rosa

Eindelijk kunnen we aanschuiven bij Café R. De Rosa, gelegen in de Jordaan tussen de Westerstraat en de Lindengracht. Deze charmante hoekzaak wordt gerund door de ervaren Floris (bekend van restaurant VRR) en mede-eigenaar Marieke (Chateau Amsterdam). Bij Café R. De Rosa vind je goede kwaliteit zonder de hoge prijzen. Filterkoffie met melk, tap-chardonnay en heerlijke barhappen zoals ingelegde artisjokken en zelfgemaakte ei-mayonaise. De keuze is bewust beperkt en bij elke bestelling krijg je water en maïsnootjes.

tosca-square-mm-1
dinerbon
14
Adres
Lindengracht 75,
1015 KD Amsterdam

Toscanini

Nadat Maud Moody 40 jaar geleden met Toscanini begon is het restaurant niet meer weg te denken uit de lijst van beste restaurants in Amsterdam. Het restaurant is ruim, gezellig en ook licht. Hier vind je een wisselende menukaart van hoge kwaliteit, een enorm uitgebreide wijnkaart en uitstekende service. Chef Leonardo Pacenti houdt ervan de gerechten te versimpelen, zonder in te boeten aan verfijning en smaak. Alleen de allerbeste ingrediënten, niet teveel mee gedaan, behalve goed bereid.

Interieur
15
Adres
De Wittenkade 111,
1052 AG Amsterdam

Kringloopwinkel Kerk & Buurt

Deze kringloopwinkel is gevestigd in een wel heel bijzondere locatie: de kelder van de Nassaukerk die gebouwd is in jaren ’20 stijl. Die kelder telt aardig wat vierkante meters, en zo kun je dus ook in deze kringloopwinkel alles vinden: van meubels, kleding en boeken tot speelgoed en serviesgoed.

5
16
Adres
Tweede Goudsbloemdwarsstraat 5-B,
1015 JX Amsterdam

Galerie Gaudium

Galerie Gaudium is gespecialiseerd in 20e-eeuws design van de meest iconische architecten en ontwerpers. De galerie bevindt zich in het hart van het prachtige Amsterdam, waar ze verschillende thematentoonstellingen presenteren van midcentury meubels gecombineerd met hedendaagse kunst. Thema's omvatten het werk van beroemde ontwerpers zoals Mathieu Matégot en Charlotte Perriand, of locatiegerichte tentoonstellingen zoals Deens, Italiaans of Japans design. Nieuwe tentoonstellingen worden aangekondigd via hun sociale media. De items in de tentoonstelling zijn te koop en beschikbaar in de online winkel.

301947465_605253844644493_4038455270847539030_n
93272394_103697074641306_3532475111921680384_n
17
Adres
Westerstraat 141HS,
1015 LZ Amsterdam

Leeelijk

Leeelijk is een prachtige antiekwinkel gelegen in het hart van de Jordaan. De winkel is perfect voor wie op zoek is naar mooie antieke meubels, zoals stoelen, tafeltjes, spiegels, krukjes, etc. De winkel is vrij groot en overaal staan spullen. Vergeet niet ver door te lopen naar achter. Er is ontzettend veel te zien en te scoren, dus neem lekker je tijd om alles te bekijken. Er is een grote diversiteit aan meubels en decoratie stukken, van klassieke stijlen tot meer moderne vintage items. De eigenaars, die vaak in de winkel aanwezig zijn, zijn zeer behulpzaam en kunnen je meer vertellen over de historie van de stukken en waar ze vandaan komen.

Boodschappen
jwo hoek
18
Adres
Tweede Goudsbloemdwarsstraat 1,
1015 JX Amsterdam

JWO Lekkernijen

Eten en drinken is lust en leven van de eigenaren van JWO. In het hartje van de Jordaan word je hier verwelkomd met echte Amsterdamse gezelligheid én lekkernijen. Je kunt er alle benodigdheden voor een heerlijke borrelplank kopen; van kaas en vleeswaren tot heerlijke rode wijn. Rond lunchtijd kan je hier een broodje bestellen aan de marmeren bar. Na een broodje grillworst van slagerij Louman met honingmosterdsaus en uiteraard een glas melk erbij, wil je nooit meer anders.

43624563_m-1
19
Adres
Goudsbloemstraat 76,
1015 JR Amsterdam

Slagerij Louman

Slagerij Louman is al sinds 1890 een begrip in Amsterdam en omstreken. Naast veel vaste omwonende klanten, komen veel mensen van buiten de stad speciaal voor Slagerij Louman voor een stukje vlees, andere vleeswaren of een ambachtelijk bereide worst. De slagerij is met gepaste trots al drie generaties in de familie. In hartje Jordaan kan je hier terecht voor kwaliteit, vakmanschap én de lekkerste gehaktballen.

405081974_17867905413020752_6521648150883525543_n
Scherm­afbeelding 2024-01-10 om 13.57.03
20
Adres
Lindengracht 99,
1015 KD Amsterdam

SAINT-JEAN Deli

Bij SAINT-JEAN Deli, net tegenover de bakkerij, vind je zoete-en hartige lekkernijen, sandwiches en delicatessen voor thuis. Hier geen overdaad aan vegan zoetigheden, maar een mooie mix met lekkere koffie. Het lunchmenu biedt versgebakken ciabatta, belegde sandwiches en wekelijks wisselende gerechten. Voor zoetekauwen zijn er cinnamon buns, croissants en andere lekkernijen uit eigen keuken. Daarbij hebben ze een ruime keuze aan natuurwijnen. De flessen zijn te koop voor thuis of je kunt ter plekke van een glas wijn genieten.

21
Adres
Westerstraat,
1015 LZ Amsterdam

Westerstraatmarkt

Elke week is er de Westerstraat markt, ook wel bekend als de lapjesmarkt. Ze staan hierom bekend omdat de markt ontzettend veel stoffen en lapjes-kramen heeft. Mensen van allen kanten komen hier naartoe om de mooiste stoffen te scoren. Maar ook lekker eten en andere dingen kan je hier vinden, de markt is veelzijdig met meer dan 212 kramen!

deli_hompepage
22
Adres
Lindengracht 79,
1015 KD Amsterdam

Toscanini Deli

Naast het geweldige restaurant vind je Toscanini Deli, beroemd om de goddelijke kaneelbrioche, échte Italiaanse espresso, focaccia of  een broodje met verse producten zoals kaas, worst of ansjovis. Daarnaast verkopen ze ook avondmaaltijden met alle Italiaanse specialiteiten. Denk aan pasta, pastasauzen, maar ook vers gemaakte groente- vis- en vleesgerechten. Ook pizzameel, azijnen, biologische goede olijfolie en verschillende Italiaanse wijnen zijn hier te koop.

Kunst & cultuur
485A9340-2048×1446-1-1024×723
23
Adres
Lindengracht 148,
1015 KK Amsterdam

Kersgallery

In de Kersgallery vind je twee stromen moderne hedendaagse kunstwerken. Enerzijds kunstenaars die het theatrale en absurde van het dagelijks leven weergeven en anderzijds kunstenaars die middels abstract-impressionisme de natuur in al haar wonderbaarlijkheid laten zien. Voor Annelien Kers zijn veel kleur en een levendige sfeer de stuwende krachten achter de kunstwerken die in de Kersgallery worden tentoongesteld.

Pianola-met-rol-scaled
24
Adres
Westerstraat 106,
1015 MN Amsterdam

Geelvinck Pianola Museum

Midden in de Jordaan ligt een uniek museum, namelijk het kleine Geelvinck Pianola museum. Voor eenieder die geen idee heeft wat de -la achter piano doet: het is de verzamelnaam voor alle automatisch spelende piano’s. Het archief van het museum heeft meer dan 30.000 rollen en deze kunnen allemaal afgespeeld worden op verschillende soorten muziekinstrumenten. Het museum legt uit wat deze pianorollen zijn, hoe deze worden gemaakt en wie er vooral gebruik van maakt. Daarnaast is het museum ook te gebruiken om een zaal voor 50 man te huren en worden er regelmatig concerten gehouden waar online kaartjes voor kunnen worden gekocht.

Schermafbeelding 2022-05-18 om 17.00.15
Schermafbeelding 2022-05-18 om 17.00.08
25
Adres
Eerste Anjeliersdwarsstraat 36,
1015 NR Amsterdam

Galerie KochXBo

Galerie KochXBos is opgericht door koppel Esther Koch en Hans Bos in 2005. In deze galerie in volkswijk de Jordaan bieden zij ruimte aan eigentijdse underground kunstenaars om hun werken te etaleren. Galerie KochXBos is de plek in Amsterdam om vernieuwende avant-garde en surrealistische kunst te bekijken. Over de smaak en visie van opgerichte Koch en Bos valt niet te twisten. Elk jaar weten zij in Galerie KochXBos meerdere boeiende en fascinerende tentoonstellingen te organiseren. Het recente succes van KochXBos is niet onopgemerkt gebleven. In 2011 is deze galerie door magazine the Guardian benoemd tot de top 10 van zelfstandige galeries in Amsterdam. Als bezoeker wordt je uitgenodigd in de nieuwe wereld met kunst vol met welkome verrassingen.

Vondel View

Vondel View

Uitgelicht; Romance with a View, het allerlaatste stuk van de Prinsengracht

Uitgelicht; Romance with a View, het allerlaatste stuk van de Prinsengracht

Uitgelicht; een heerlijk licht en slim ingedeeld appartement aan het Valeriusplein in Oud-Zuid

Uitgelicht; een heerlijk licht en slim ingedeeld appartement aan het Valeriusplein in Oud-Zuid

Onlangs bekeken
Bekijk het overzicht

Deze site maakt gebruik van cookies.

Voor welke cookies geef je akkoord?