Elegant wonen in een klassiek dubbel benedenhuis met stadstuin aan de Nassaukade in Amsterdam Oud-West.

Een gestoffeerd familiehuis verdeeld over twee woonlagen, met drie slaapkamers, een vernieuwde keuken en een zorgvuldig ontworpen indeling. Gelegen op een locatie waar rust en reuring elkaar moeiteloos afwisselen, aan de westelijke grachtengordel tussen de Helmersbuurt en de Jordaan.

Een rondleiding

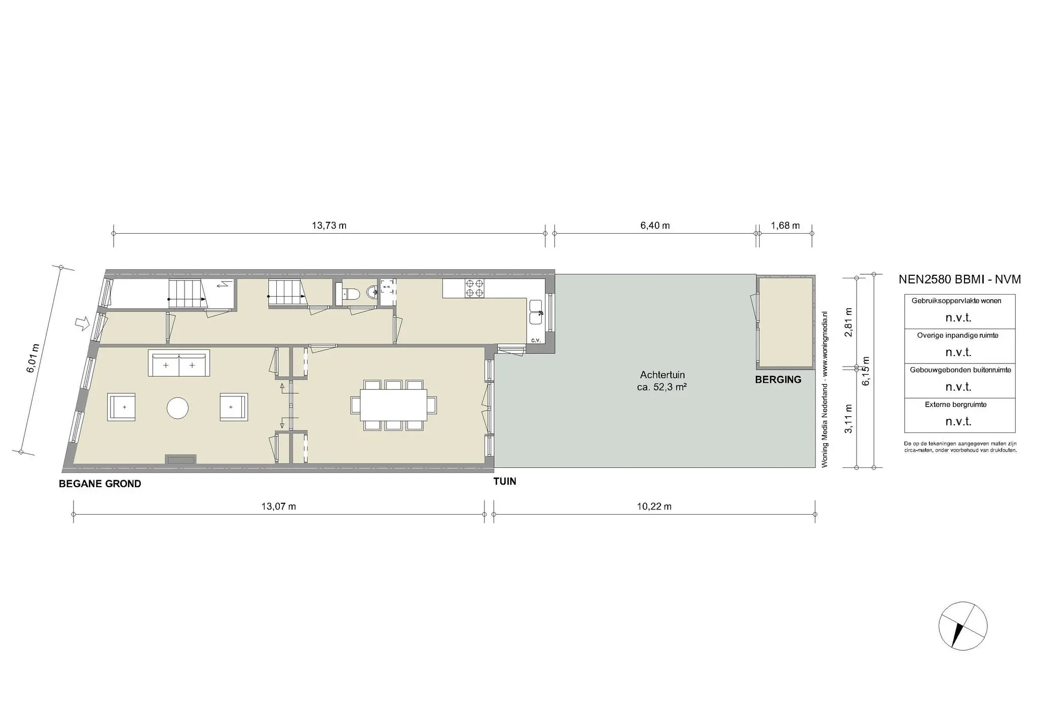
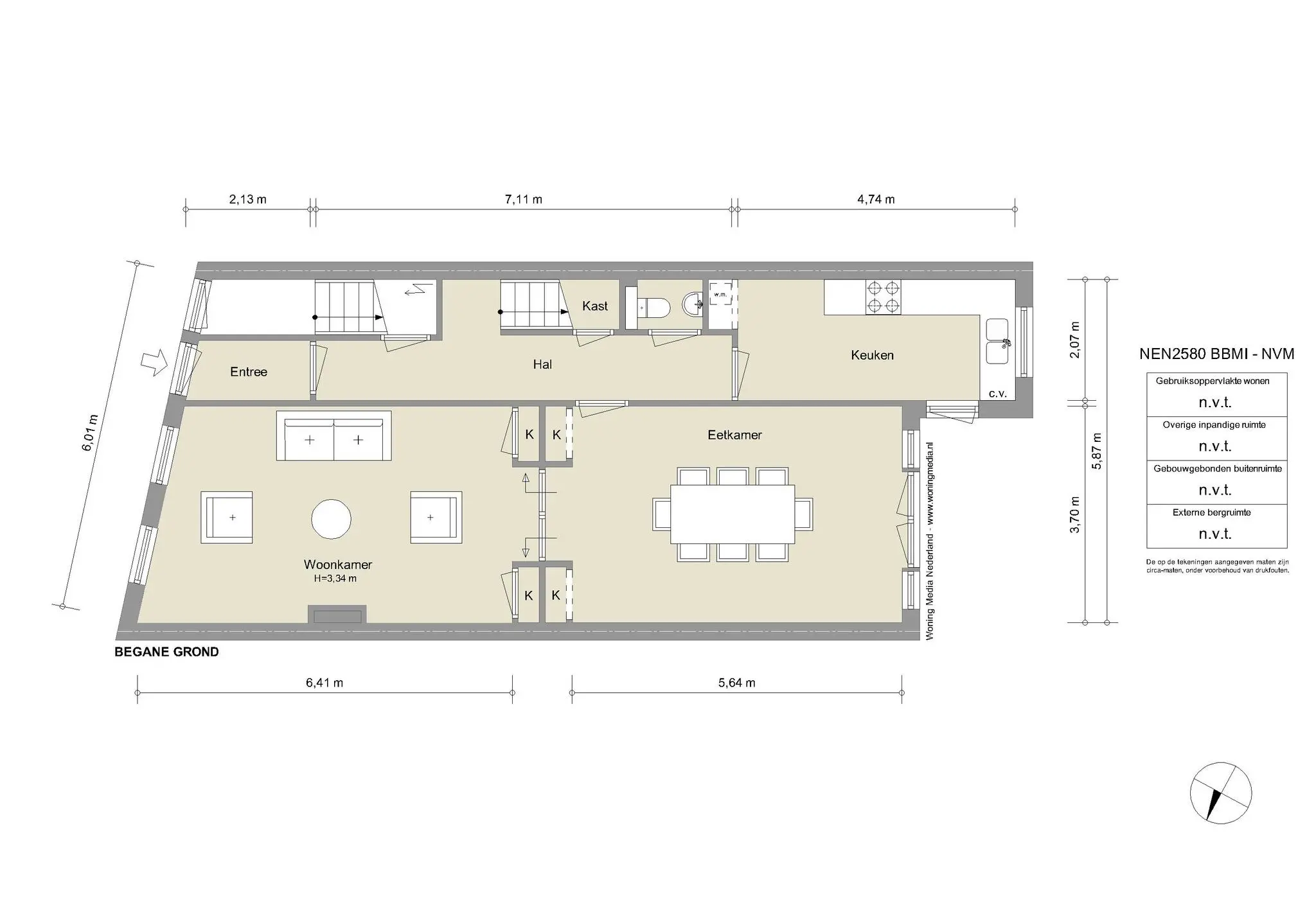
De begane grond
Binnenkomst via een houten voordeur met glas-in-lood bovenlicht. Een verfijnde entree die leidt naar de eetkamer aan de voorzijde, met uitzicht over de Nassaukade. Een ruimte met karakter, voorzien van een zwarte schouw, hoge plafonds met sierlijsten en klassieke details.

Aan de achterzijde ligt de living – een lichte en rustige ruimte met zicht op het groen van de tuin. Via dubbele deuren ontstaat een directe verbinding met de circa 11 meter diepe tuin op het westen. De visgraatvloer loopt drempelloos door en vormt een warme basis tussen voor- en achterzijde.

Een rustige keuken in een ingetogen kleurenpalet, met strakke lijnen en greep loze kasten. Voorzien van een oven, inductiekookplaat, koelkast en vaatwasser. Grote raampartijen zorgen voor natuurlijk licht en uitzicht op de groene buitenruimte.

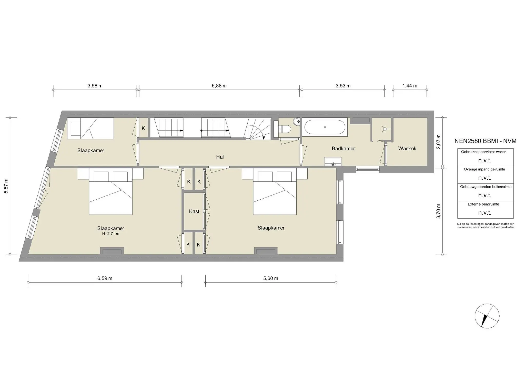
De eerste verdieping
De eerste verdieping omvat drie slaapkamers, een badkamer en een tweede toilet. Aan de voorzijde bevinden zich twee slaapkamers: een grotere kamer met balkon en ingebouwde kasten. En een tweede kamer met zicht op de Nassaukade. Aan de achterzijde ligt een riante slaapkamer met uitzicht op de tuin. De badkamer bevindt zich eveneens aan de tuinzijde en is ingericht met een ligbad, een inloopdouche en een wastafelmeubel. Een separate ruimte biedt plaats aan wasmachine en droger.

De buitenruimte
De tuin op het westen is omzoomd met bamboe en biedt rust en privacy. Het terras sluit direct aan op de eetkamer en voelt als een verlengstuk van de leefruimte. Een groene plek om te ontspannen.

De omgeving en bereikbaarheid
Gelegen in Amsterdam Oud-West, op korte afstand van het Vondelpark, de Jordaan en culturele bestemmingen zoals De Hallen. In de directe omgeving bevinden zich restaurants, galeries, cafés en speciaalzaken. De Negen Straatjes, het Leidseplein en de Ten Katemarkt zijn gemakkelijk bereikbaar. Goede verbindingen met het openbaar vervoer en directe aansluiting op de ringweg A10.

De parkeergelegenheid
Parkeergelegenheid via het vergunningstelsel van de gemeente Amsterdam.

De bijzonderheden
- Huurprijs: € 4.750,- exclusief per maand; 
- Beschikbaar: 1 juni 2025;
- Contract: onbepaalde tijd, minimaal twaalf maanden;
- Borg: twee maanden huur;
- Gestoffeerd;
- Woningdelen is niet toegestaan op basis van de regels van de gemeente Amsterdam.

Kenmerken
Nassaukade 375H, Amsterdam
Huurprijs
  • € 4.750 per maand
Beschikbaarheid
  • Per datum
Vertrekken
  • 4 kamers
  • 3 slaapkamers
Onderhoud
  • Intern: Goed
  • Extern: Goed
Oppervlakten & Inhoud
  • Woonoppervlakte: 165 m²
  • Gebouwgebonden buitenruimte: 52 m²
Bouwjaar
  • 1892
Ligging
  • Aan drukke weg
  • Aan vaarwater
  • Vrij uitzicht
Bestemming
  • Woonruimte
Buitenruimte
  • Achtertuin
Duurzaamheid
  • Energielabel C
Soort
  • Appartement
  • Dubbel-benedenhuis
Plattegrond
Nassaukade 375H, Amsterdam
AM106274-2005387-Nassaukade-375H,-Amsterdam-227761522
AM106274-2005387-Nassaukade-375H,-Amsterdam-227761530
AM106274-2005387-Nassaukade-375H,-Amsterdam-227761536
AM106274-2005387-Nassaukade-375H,-Amsterdam-227761542
Documenten
Nassaukade 375H, Amsterdam
Locatie
Nassaukade 375H, Amsterdam
Eten & drinken
272906180_4754289304606196_2316678134679603007_n
01
Adres
Bosboom Toussaintstraat 26,
1054 AS Amsterdam

Café Toussaint

Café Toussaint is een gezellig buurtcafé waar je terecht kunt voor het ontbijt tot het diner en voor snacks en cocktails. De gerechten worden geserveerd in een klein eetgedeelte met uitzicht op de open keuken of op het heerlijke grote buitenterras. Verveling bestaat niet in Toussaint. Ze hebben er kasten vol spelletjes, een jeu de boules baan en afhankelijk van het seizoen hebben ze er mosselfestijnen, barbecue-events of wijnproeverijen.

275843270_493096732309075_1709426496827556956_n
244372554_393432455608837_1440249416982792851_n
02
Adres
Bosboom Toussaintstraat 28-H,
1054 AS Amsterdam

Gertrude

Gertrude is een bar en restaurant waar je terecht kan voor een steengoede maaltijd. Er wordt hier met de seizoenen meegekookt en de nadruk ligt vooral op seizoensgroenten en verantwoorde vis- en vleessoorten. Denk aan gepekelde sardientjes met rucola-olie, pappardelle met ragù of afsluiten met perencrumble met zure room en kazen van Kef. Het interieur bestaat uit mooie antieke stukken wat zorgt voor een chique maar ook huiselijke sfeer. Doordeweeks kan je hier dineren en in het weekend kan je hier ook lunchen.

03
Adres
Prinsengracht 422,
1016 JC Amsterdam

Sinck

Teamleider Timo van der Stad is samen met Chef-kok Sander Bierenbroodspot en sommelier Sabas Joosten (eerder de Librije), restaurant en wijnbar Sicnk gestart. Bij Sinck gaan ze voor kwaliteit én voor een lage drempel. Chefkok Sander zorgt voor goede bereidingen van mooie producten met extra focus op sauzen. Het restaurant bevindt zich boven en beneden kom je terecht in de sfeervolle wijnbar. De wijnkaart is uitgebreid met een focus op Franse wijnen.

04
Adres
Prinsengracht 424,
1016 JC Amsterdam

Café de Pieper

Café de Pieper is familiebedrijf met veel stamgasten. Het is een klassiek, maar gezellig café met houten lambrisering, waar je bier, cider en worst kunt krijgen.

1519ee_6ac76a1674b441f1abb675ca34e30f4d_mv2
05
Adres
Eerste Constantijn Huygensstraat 41H,
1054 BR Amsterdam

The Bab

Het Koreaanse restaurant The Bab heeft de authentieke smaak die je zou verwachten van een Koreaans restaurant, maar dan zonder al te fancy te zijn. Eigenaren Junghun Pyo en zijn vrouw Haksun (Sunny) Kim willen namelijk dat mensen zich op hun gemak voelen bij hen en casual Korean food kunnen proeven. Het eerste waar je aan moet denken als je denkt aan Koreaans eten zijn de gerechten bibimbap en gefrituurde kip. De bibimbap bevat rijst, groenten en een rauw ei. De gefrituurde kip is bereid met een speciale Koreaanse kruidenmix. Een ander populair gerecht dat je bij The Bab kunt bestellen zijn de kimchipannenkoeken. Deze pannenkoekjes zijn gevuld met ui en kimchi, een gefermenteerde kool die steeds populairder wordt in het westen.

180661497_109525414592089_5524060405684313540_n
199541340_112181734417905_7498033300373632292_n
06
Adres
Looiersgracht 144,
1016 VT Amsterdam

Café de Jonge Wees

Café De Jonge Wees, gelegen aan de Looiersgracht 144, is een typische bruine buurtkroeg die de basis legt voor de welbekende Amsterdamse gezelligheid met een uitgebreide selectie bieren, jenevers en borrelhappen. Hier is altijd Ajax te zien en dankzij het zonnige terras kun je zowel binnen als buiten van de sfeer genieten. Bovendien is Café De Jonge Wees het zusje van Proeflokaal A. Van Wees, wat betekent dat alle jenevers die in de Jordaan worden geschonken afkomstig zijn van A. Van Wees Distilleerderij de Ooievaar in Amsterdam.

S__3538969
278628659_710596233460905_6303603926454891176_n
07
Adres
Leidseplein 10,
1017 PT Amsterdam

Sushi HANABI

Hanabi, wat 'vuurwerk' betekent, is een uniek Japans restaurant met twee verdiepingen. Beneden kun je genieten van donburi en yakitori, terwijl je boven kan genieten van een klassieke Edomae-sushi ervaring. Het omakase-menu stelt de chef in staat om gerechten naar eigen inzicht te serveren, rechtstreeks aan de gasten. Deze sushi is al op smaak gebracht met sojasaus en wasabi en kan zelfs met de hand worden gegeten. Bij Hanabi heb je de flexibiliteit om je reserveringstijd te kiezen en uit drie prijscategorieën te kiezen. De duurdere menu's bevatten luxere ingrediënten zoals blauwvintonijn, sneeuwkrab, kaviaar en Japanse coquille. Het diner begint met verfijnde amuses, gevolgd door heerlijke gerechten zoals sake-gemarineerde coquille met kaviaar en zoete sneeuwkrab met yuzu.

187513275_541642613509567_7586706852571280627_n
08
Adres
Eerste Constantijn Huygensstraat 63H,
1054 BT Amsterdam

Uncommon

In de levendige Eerste Constantijn Huijgenstraat biedt Uncommon een unieke koffie- en eetervaring. De oprichters, Clay en Josh, gaan verder dan de bekende koffiebronnen.  Ze halen ook bonen uit ongewone plantages in Myanmar en Indonesië, die ze vervolgens zelf branden. Bij elke geserveerde kop koffie voelen ze de verplichting om een eerbetoon te brengen aan de koffieproducent. Deze toewijding aan bijzondere koffie strekt zich ook uit naar het menu, waar vegetarische of vegan gerechten altijd een ongebruikelijk ingrediënt bevatten. Ondanks de drukte van de straat biedt het minimalistisch stijlvolle interieur van Uncommon een zen-achtige sfeer.

09
Adres
Eerste Constantijn Huygensstraat 82,
1054 BX Amsterdam

Koffiesalon

De allerlekkerste Italiaanse koffie gemaakt door goede barista’s. De service is heel erg goed en je proeft dat de koffie gemaakt is door experts. Je kan hier ook terecht voor simpele en lekkere ontbijthapjes. Ze hebben hier take-away maar even binnenzitten is ook mogelijk. De koffiesalon heeft meerdere vestigingen in de stad.

312331621_1088836571776973_4262642838619724150_n
294589445_714591559836108_6334057245334888778_n
10
Adres
Nassaukade 330 H,
1053 LT Amsterdam

Cafecito

Cafecito is een onderdeel van de Cafecito-franchise, een Amsterdamse koffiebranderij die besloot koffiezaken te openen om hun eigen afzet te stimuleren toen de verkoop aan horecagelegenheden tijdens de pandemie stagneerde. Cafecito heeft al drie vestigingen in Amsterdam en één in Rotterdam. De Nassaukade-locatie is de nieuwste toevoeging, geleid door onderneemster Chow, die eerder twee bubble tea-winkels bezat. Ze heeft nu haar eigen Cafecito, waar ze professionele barista's in dienst heeft voor het bereiden van koffie, inclusief de trots van de zaak: cold brew. Naast diverse koffiesoorten bieden ze kleine cakejes en hun eigen koffieblend voor thuisgebruik aan.

Schermafbeelding 2022-06-20 om 19.00.24
11
Adres
Bilderdijkstraat 203,
1053 KS Amsterdam

De Japanner

De Japanner is inmiddels een fenomeen geworden in zowel de Pijp als in Oud-West. Het concept is simpel en straight-forward: heerlijk Japans fingerfood wat gepaard gaat met ofwel een cocktail, Japans biertje, saké of een non-alcoholisch alternatief natuurlijk. Het komt dan ook niet als een verassing dat de reviews over de Japanner lovend zijn, waarbij vooral het vriendelijke personeel als de lekkere hapjes worden uitgelicht.

12
Adres
Bilderdijkstraat 208H,
1053 LG Amsterdam

Soenes roti

Het is een feit dat de roti van Soenessardien een groot succes is, maar daarnaast serveert hij ook andere populaire keuzes zoals de bara, een gefrituurd gekruid deeg met bijvoorbeeld garnalen of lam. Bij de nasi en bami worden groenten en salade geserveerd en de grillgerechten  hebben een heerlijke Surinaamse twist. Er komen voornamelijk buurtbewoners, maar ook steeds meer toeristen hebben deze plek ontdekt. Je kan ook via de website het eten thuis laten bezorgen.

 

downloadgram.org_575292204_17860139958539237_3845020802038171024_n
downloadgram.org_581821679_17860140000539237_4947837432897632977_n
13
Adres
Eerste Helmersstraat 83,
1054 CR Amsterdam

Wilhelmina Café

Wilhelmina Café werd geopend door team Binnenvisser als een buurtcafé pur sang in de Helmersbuurt, een plek van woensdag tot en met zondag van 08:30 tot middernacht leeft. De keuken staat onder leiding van Rafael Lamoth, ex-Café Binnenvisser en nu mede-eigenaar, die zijn herkenbare stijl van no-nonsense bistroklassiekers hier moeiteloos doorzet. Op de kaart staan gerechten als half kippetje met gezouten citroenjus, mosselen met gerookte beurre blanc en salades als panzanella en Caesar. Onder het genot van natuurwijnen, negroni’s en een goed glas pastis voelt elke maaltijd hier ontspannen en vanzelfsprekend.

Kunst & cultuur
Cinecenter-Zaal-1-kopie-2
14
Adres
Lijnbaansgracht 236,
1017 PH Amsterdam

Cinecenter

Klein filmhuis met onder andere goede arthouse films. Zit aangesloten in het Cineville netwerk, dus met een Cineville pas kan je ook hier terecht. Ook leuk om van tevoren of na afloop een drankje te drinken. De locatie is direct naast het Leidseplein dus vanuit hier kan je nog veel andere leuke plekken bezoeken.

slide-158
15
Adres
Leidseplein 26,
1017 PT Amsterdam

Internationaal Theater Amsterdam

Het huidige gebouw dateert uit 1894. Al eerder stond er een schouwburg, maar deze bestond grotendeels uit hout en daar is niks meer van overgebleven na een hevige brand. Het Internationaal Theater Amsterdam valt op, omdat het een vooruitgeschoven plek heeft op het Leidseplein en twee torens en een ruim balkon heeft. Het heeft een klassieke zaal en een moderne zaal. De trappen en kroonluchters stralen luxe uit en je kunt je goed voorstellen dat het publiek vroeger voornamelijk uit de hogere klasse kwam. Er zijn voornamelijk toneelstukken te zien, maar wordt ook verleend voor onder andere moderne dans, lezingen en het boekenbal.

tumblr_mxhhnyvV5C1qjguz6o1_1280
16
Adres
Prinsengracht 645,
1016 HV Amsterdam

Galerie Wim van Krimpen

Sinds 1991 is Galerie Wim van Krimpen gehuisvest aan de Prinsengracht. Wim van Krimpen is een van de meest gewaardeerde museumdirecteuren van Nederland daarbij staat hij wereldwijd ook bekend als een verwoed kunstverzamelaar. In zijn galerie in de Jordaan vind je bijzondere hedendaagse kunstwerken. Vergeet van tevoren niet te bellen want de galerie is uitsluitend op afspraak te bezoeken.

deur_6e47a554-ba37-4854-8ed7-dba08d3a300c
17
Adres
Prinsengracht 615H,
1016 HT Amsterdam

Galerie Madé van Krimpen

Galerie Madé van Krimpen, voorheen bekend als Multiplemadé, presenteert een mix van tentoonstellingen die werk tonen van zowel gevestigde als opkomende kunstenaars. Hoewel de galerie vooral gericht is op solotentoonstellingen en groepsexposities, werken ze ook regelmatig samen met creatieve collectieven en makers om pop-up-evenementen en take-overs te organiseren.

contact-1-scaled
18
Adres
Kleine-Gartmanplantsoen 10,
1017 RR Amsterdam

De Balie

In De Balie worden onafhankelijke programma’s over kunst, cultuur en politiek georganiseerd. Er zijn drie theaterzalen, een bioscoop en een café-restaurant, waar al sinds 1982 spraakmakende gesprekken, films en kunstprojecten met als uitgangspunt een open, pluriforme, democratische en rechtsstatelijke samenleving plaatsvinden. Hier wordt een moeilijk gesprek niet uit de weggegaan, maar wordt juist de nadruk gelegd op de ontmoeting tussen mensen met uiteenlopende meningen en vrije gedachtewisseling. Als je zin hebt in een debat, gesprek, kunst of een biertje, is dit de plek.

270053381_5179749475386566_1324756550501219040_n
19
Adres
Prinsengracht 452,
1017 KE Amsterdam

De Uitkijk

Amsterdam heeft door de jaren heen vele bioscopen komen en gaan, maar Filmtheater De Uitkijk bestaat nog steeds! Het pand aan de Prinsengracht 452 heeft een bewogen verleden en begon in 1912 als City Bioscoop, toen het werd omgebouwd van een 17e-eeuws pakhuis. In 1929 nam de Filmliga de bioscoop over en veranderde de naam in het Filmtheater De Uitkijk. Dit was het allereerste avant-garde filmtheater van Nederland. Sinds 2007 is De Uitkijk een zusterproject van de organisatie Kriterion en wordt het geleid door een groep van dertien studenten.

Boodschappen
downloadgram.org_496874981_17848936944460251_3669236045324019553_n
20
Adres
Bosboom Toussaintstraat 70,
1054 AV Amsterdam

Zicami Market

Zicami Market is een tweemaandelijkse Italiaanse markt, opgezet door Camilla, bekend van het patisseriemerk La Torta di Camilla. Vanuit haar liefde voor haar roots brengt ze in Amsterdam een zorgvuldig geselecteerde groep Italiaanse foodmakers samen. Bezoekers wandelen langs kraampjes met cannoli, handgemaakte pasta, ambachtelijke sauzen, charcuterie, kazen, olijfolie en dolci, alsof je even door een Siciliaans dorp loopt. De kracht van Zicami zit niet alleen in het eten, maar in de sfeer: espresso aan kleine tafels, Italiaanse muziek en het gevoel van een buurtmarkt waar iedereen elkaar ontmoet. Je vindt de markt elke eerste en derde zaterdag van de maand aan de Bosboom Toussaintstraat 70.

 

288460093_5757378127616106_4944675648070804179_n
21
Adres
Eerste Helmersstraat 63 hs,
1054 DC Amsterdam

Vleck wijnen

Vleck wijnen is een van de eerste wijnimporteurs van natuurwijnen in Nederland. De wijnen worden direct van de boer uit Frankrijk gekocht; van wijngaard naar winkel. Vleck heeft als filosofie om zo min mogelijk in te grijpen bij de natuurlijke processen van het wijn maken, op de wijngaarden wordt niet gewerkt met insecticiden en kunstmest. Kortom; als je houdt van natuurwijn is dit dé plek.

324881858_834540850983260_7922799188280236168_n
22
Adres
Elandsgracht 113,
1016 TT Amsterdam

Vindict wine

Vindict wine is te vinden aan de rand van de Jordaan op de Elandsgracht. Omdat ze niet alleen van wijn houden maar ook van ontwerpen en bouwen, hebben ze deze prachtplek een eigen en duurzaam design gegeven. Elk onderdeel van de winkel heeft een vorig leven gekend. Zo is de vloer gemaakt van steenschotten uit oude steenfabrieken en worden de wijnen gepresenteerd in schoenen kasten uit de Puma-fabriek van het voormalige Tsjecho-Slowakije.  Er wordt hier elk soort wijn aangeboden: van vijf euro tot een fles Dom Pérignon Champagne. Alle witte, rosé en bubbels zijn gekoeld verkrijgbaar.

Interieur
web-4_2880x
Martijn_Vonck_Fotografie_21_900x
23
Adres
Prinsengracht 645,
1016 HV Amsterdam

The Frozen fountain

Of je nou een tourist of ras-amsterdammer bent, het blijft heerlijk om door de negen straatjes te struinen. The frozen fountain is één van die winkels waar je ogen naar afdwalen wanneer je de etalage met excentrieke design meubels passeert. In 1992 werd de basis voor the frozen fountain gevormd, zijde een platforms voor designers – voornamelijk afgestudeerden van de Design Acedemy in Eindhoven. Omdat ‘Dutch Design’ internationaal al een behoorlijke naam had verkregen, was de samenwerking met jonge Nederlandse designers een gigantische stimulus voor de bekendheid van the frozen fountain. Naast een winkel met een prachtige collectie noemt the frozen fountain zichzelf ook een instituut: voor en door designers, om de eer aan Dutch Design hoog te houden. En hoe!

281661230_5289140751106028_5004304199774961695_n
282007955_5286220708064699_8260481307134760693_n
24
Adres
Looiersgracht 40B,
1016 VS Amsterdam

FEST

FEST is een Nederlands interieurmerk dat in 2013 is gestart door Femke Furnée. De kerngedachte achter FEST: een mooie omgeving toegankelijk maken, voor iedereen. FEST biedt high-end meubels en woonaccessoires – zonder dat daar een high-end prijskaartje aan hangt. De vrolijke, tijdloze en duurzame collecties worden ontwikkeld in samenwerking met internationale designers. Bij FEST vind je alles om jouw interieur een (kleurrijke) boost te geven.

120215712_3464581680287775_8524877858352079533_n
25
Adres
Eerste Helmersstraat 84-C,
1054 DL Amsterdam

Arjan

Het herkenbare “Arjan boeket” zie je bij menig fietser op de schouder langskomen. De boeketten zijn te vinden bij Arjan Bloemen aan de Eerste Helmersstraat in Amsterdam. De eigenaar, Arjan Konincks, is al vanaf jongs af aan in de weer met bloemen. Samen met zijn team staat hij dagelijks klaar om u te helpen met het creëren van de mooiste boeketten.

The Barns

The Barns

Uitgelicht; In het hart van Oud-Zuid, tussen het Museumplein en de PC Hooftstraat verschijnt het mondaine ‘Petit Paris’

Uitgelicht; In het hart van Oud-Zuid, tussen het Museumplein en de PC Hooftstraat verschijnt het mondaine ‘Petit Paris’

De beste koffiezaken van Amsterdam

De beste koffiezaken van Amsterdam

Onlangs bekeken
Bekijk het overzicht

Deze site maakt gebruik van cookies.

Voor welke cookies geef je akkoord?