Minervalaan 103 is een transparante, lichte en moderne villa met een solide basis, klaar om gemoderniseerd te worden tot een van de mooiste woonhuizen aan de laan. Gelegen op het grootste perceel van de Minervalaan, ligt deze villa centraal en vrij, met parkeren op eigen terrein en een tuin die multifunctioneel kan worden ingedeeld. De woonlaag van de drie verdiepingen tellende villa, met een oppervlakte van 447 vierkante meter, ligt mooi verhoogd ten opzichte van het maaiveld. Dankzij het vele glas aan drie zonzijden en de royale afmetingen, biedt deze laag de mogelijkheid om een prachtige woonverdieping te creëren. De bovengelegen slaapverdieping leent zich voor in totaal vier tot vijf slaapkamers, drie tot vier badkamers, een kleedkamer en een wasruimte. In het souterrain bevindt zich een gastenverblijf, extra bergruimte en ruimte voor installaties. De plattegrond maakt het mogelijk om een interne lift te installeren en op het perceel staat een nieuwe garage. Omdat het geen monument betreft en geen onderdeel is van een beschermd stadsgezicht, zijn er geen beperkingen vanuit die regelgeving.
The Glass House Villa heeft alles in zich om een van de fraaiste villa’s aan de Minervalaan te worden.

Buurtgids 
De Minervalaan is een prachtige brede en rustige laan, de as van Zuid, en deze woning ligt in het deel tussen de Apollolaan en Minervaplein. Naar het noorden verbindt de laan naar het Hilton Hotel en de Cornelis Schuytstraat naar het Vondelpark. Naar het zuiden loopt de laan tot aan de Zuidas. Op loopafstand liggen de Beethovenstraat en het Olympiaplein, waar de eigenaren hun brood bij de Franse bakker halen en de kaas bij Tromp. De Beethovenstraat voorziet hen in de slager Hergo, terwijl slager Zikking op de Marathonweg hun geheime adresje is. 

Bijzonderheden
•    Gebruiksoppervlakte wonen circa 447 m²
•    Terras rondom het huis van circa 108 m²
•    Tuin rondom het pand van circa 130 m²
•    Drie woonlagen
•    Gelegen op erfpachtgrond van Gemeente Amsterdam. Huidig tijdvak 28-12-2021 t/m 15-08-2030, de huidige erfpachtcanon bedraagt € 973,35 per jaar
•    Overstap eeuwigdurende erfpacht met AB 2016 is reeds gedaan en er is gekozen voor toekomstige canonbetaling, de toekomstige te betalen canon bedraagt € 19.039,40 per jaar per jaar vanaf 2030
•    Vooruitlopend op de stijgende inflatie heeft de eigenaar in 2022 nog een aanvraag gedaan om alsnog eeuwigdurend af te kopen. Gegevens zijn op te vragen via ons kantoor
•    Energielabel E
•    Betonnen fundering uit 1957
 

AM105368-1868185-Minervalaan-103,-Amsterdam-181297187

The Glass House Villa
Dit woonhuis aan de Minervalaan is wellicht een van de meest opmerkelijke in de buurt, met bovendien het grootste perceel in de straat. Na vele jaren door deze straat te hebben gefietst en telkens weer verwonderd te zijn over wat er zich achter deze gevel schuilhoudt, krijgen we nu de kans om dit unieke ontwerp te koop aan te bieden.
Dit huis werd eind jaren ’50 ontworpen en gebouwd, en het had destijds al een zeer moderne uitstraling. Het betonnen casco dat nu aanwezig is, vormt een uitstekende basis om hier een duurzame en eigentijdse gezinswoning van te maken. Met de ruime tuin rondom het huis biedt deze woning de gelegenheid om weer het meest prachtige huis van de straat en de buurt te worden.
Wij hebben het volste vertrouwen dat de nieuwe eigenaar hier de komende jaren met veel plezier zal wonen en dit huis tot zijn recht zal laten komen.

 


Ronald van de Bijl | Makelaar Broersma Wonen
Minervalaan 103-4

Architectuur
Het woonhuis, ontworpen door architect Martinus Kamerling in 1957, is een uitstekend voorbeeld van het Nieuwe Bouwen-concept. Dit ontwerp maakte gebruik van veel glas en beton, en oorspronkelijk was het huis bekleed met lichtblauwe tegels als wandafwerking. Later werd echter besloten om de gevel te isoleren en te voorzien van stucwerk. Ondanks dat het huis al ruim 65 jaar oud is, behoudt het nog steeds een moderne en eigentijdse uitstraling.
Architect Martinus Kamerling was lid van de architectenvereniging De Acht en Opbouw, die zich bezighield met de werkgroep Noordoostpolder. Binnen deze groep werden plannen gemaakt voor het nieuwe dorp Nagele, dat voornamelijk bestaat uit vergelijkbare bebouwing met platte daken en veel glas. Het is waarschijnlijk dat deze ervaringen Kamerling hebben geïnspireerd bij het ontwerpen van het huis aan de Minervalaan.
In 1969 onderging het oorspronkelijke ontwerp een wijziging. Er werd een uitbreiding van de eerste verdieping toegevoegd, waardoor deze volledig bebouwd werd en de gevel gelijkgetrokken werd met die van de begane grond. Deze aanpassing is tot op de dag van vandaag behouden gebleven.
In 1989 vond de laatste wijziging plaats, waarbij de garage werd vervangen door woonruimte en een glazen pui werd geplaatst in plaats van de garagedeur. Hierdoor ontstond in het reeds bestaande souterrain een zelfstandig appartement.

Minervalaan 103-19
Mindervalaan 103-30 V2
Mindervalaan 103-36
Mindervalaan 103-27 V2

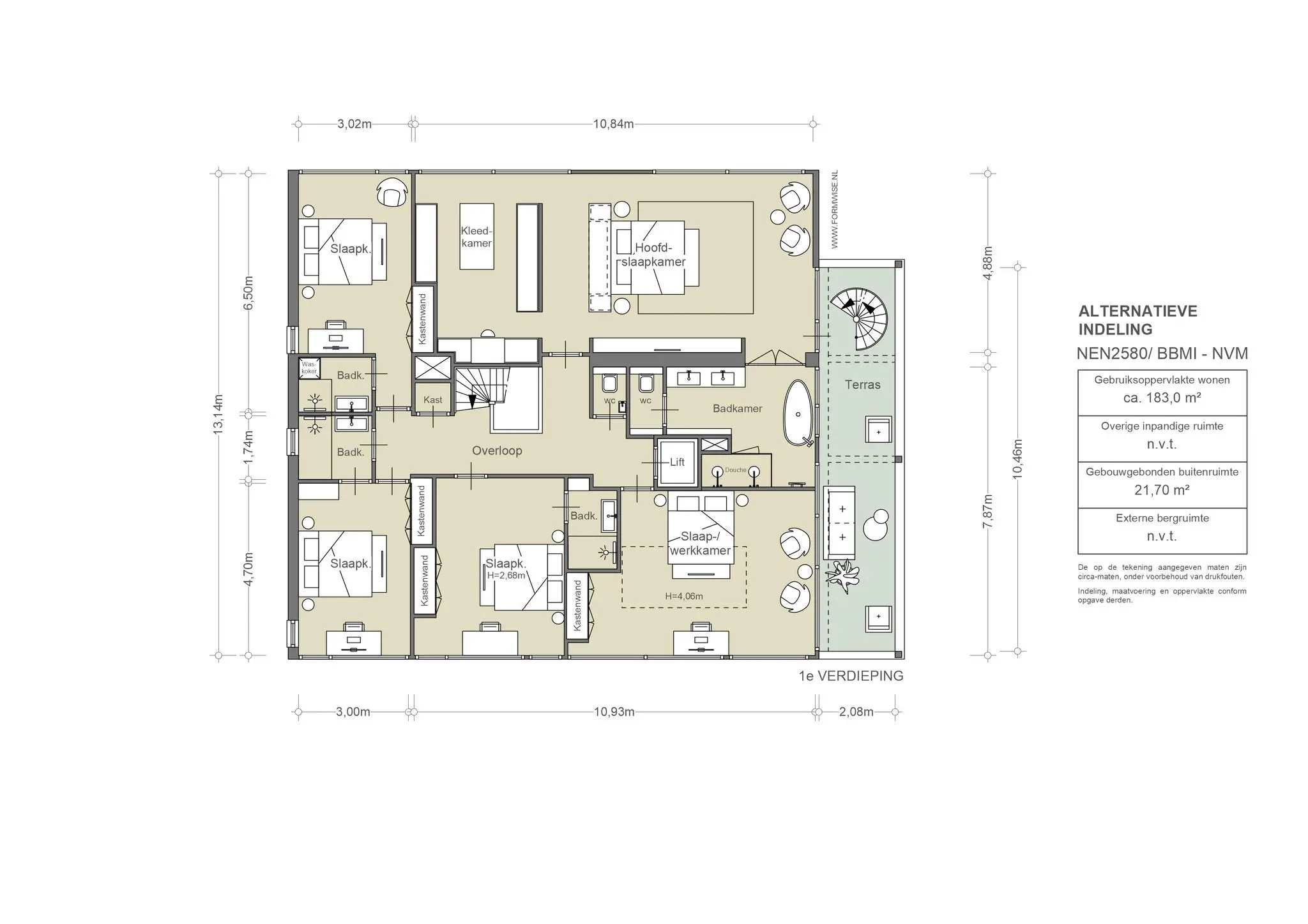
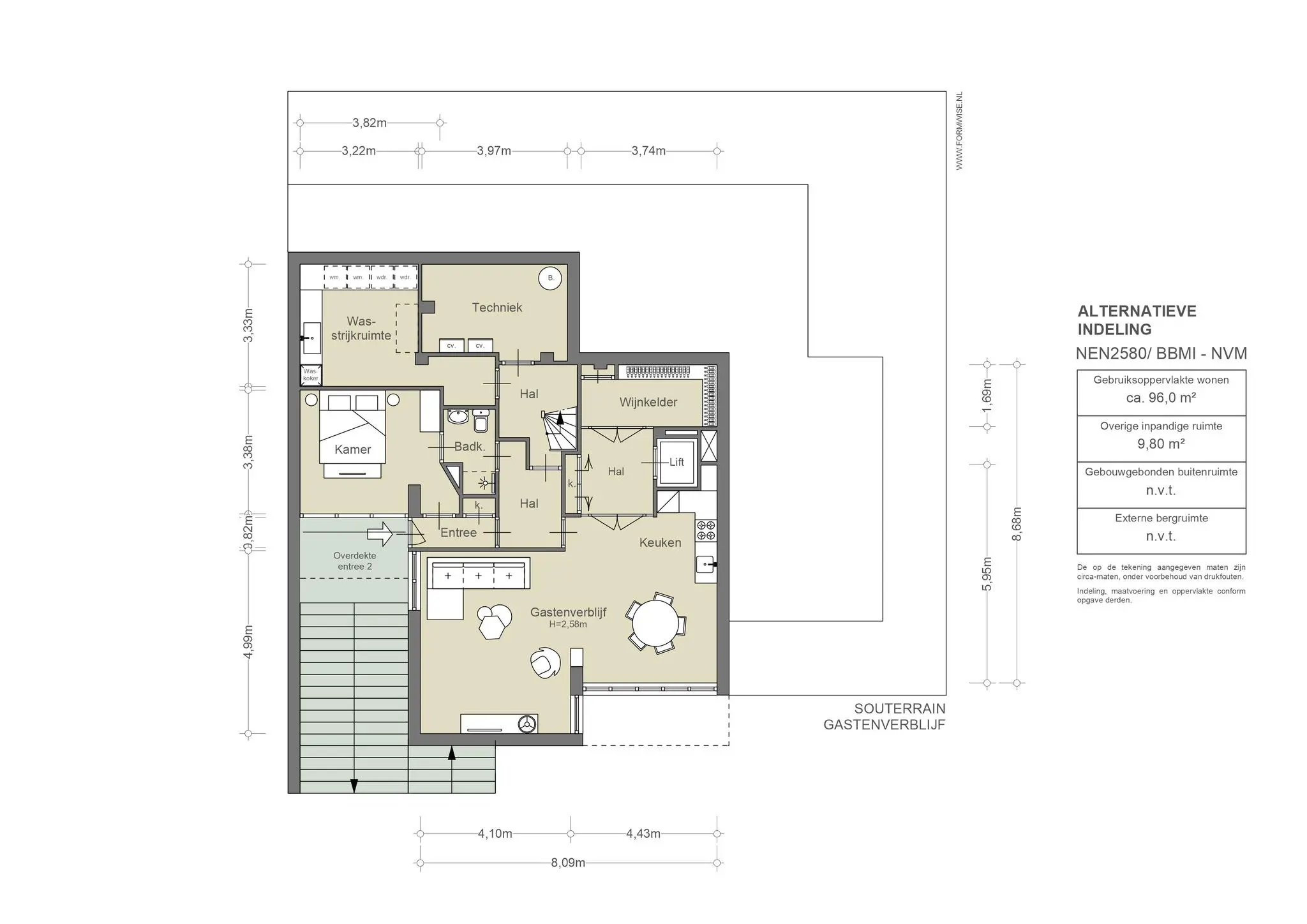
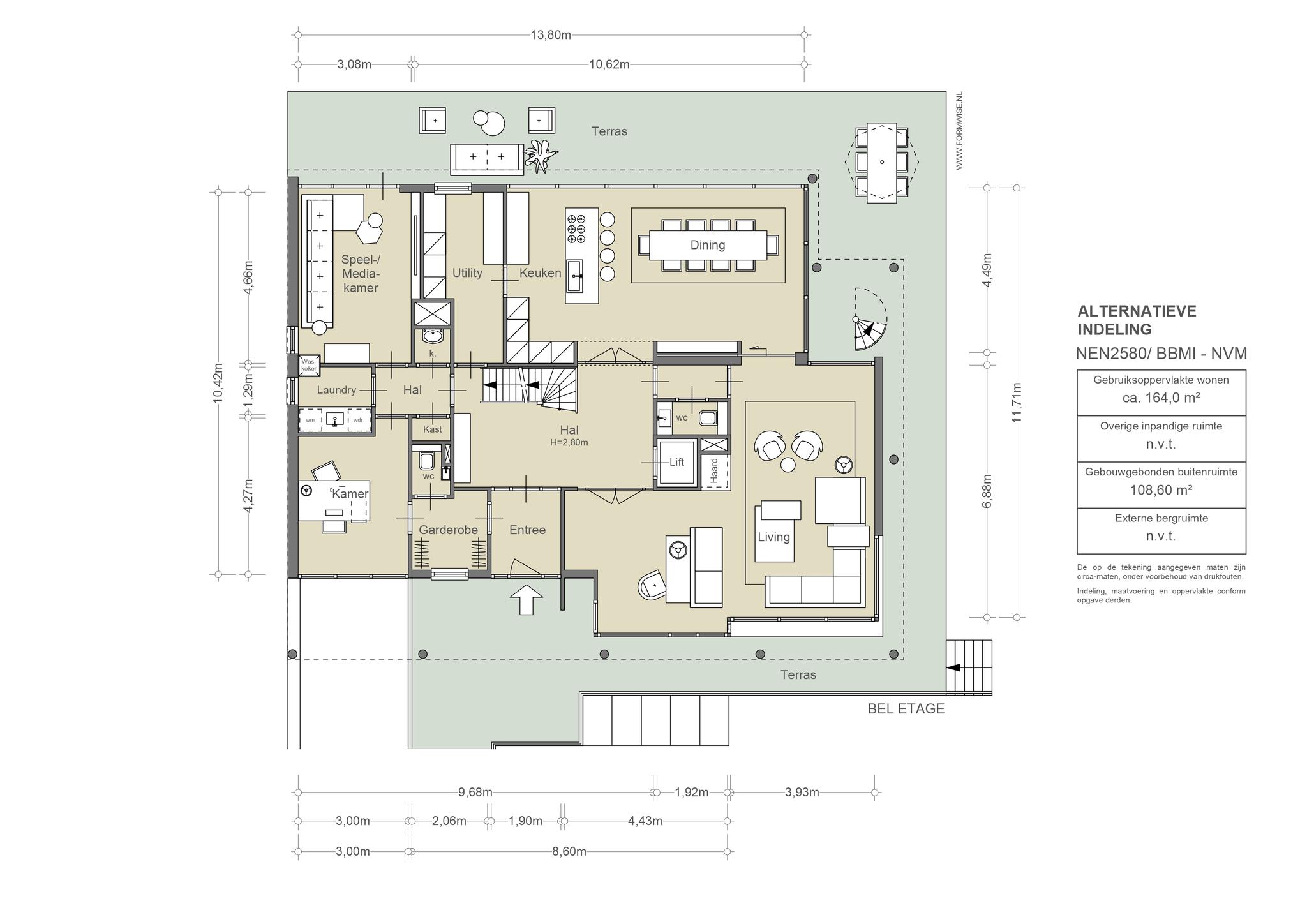
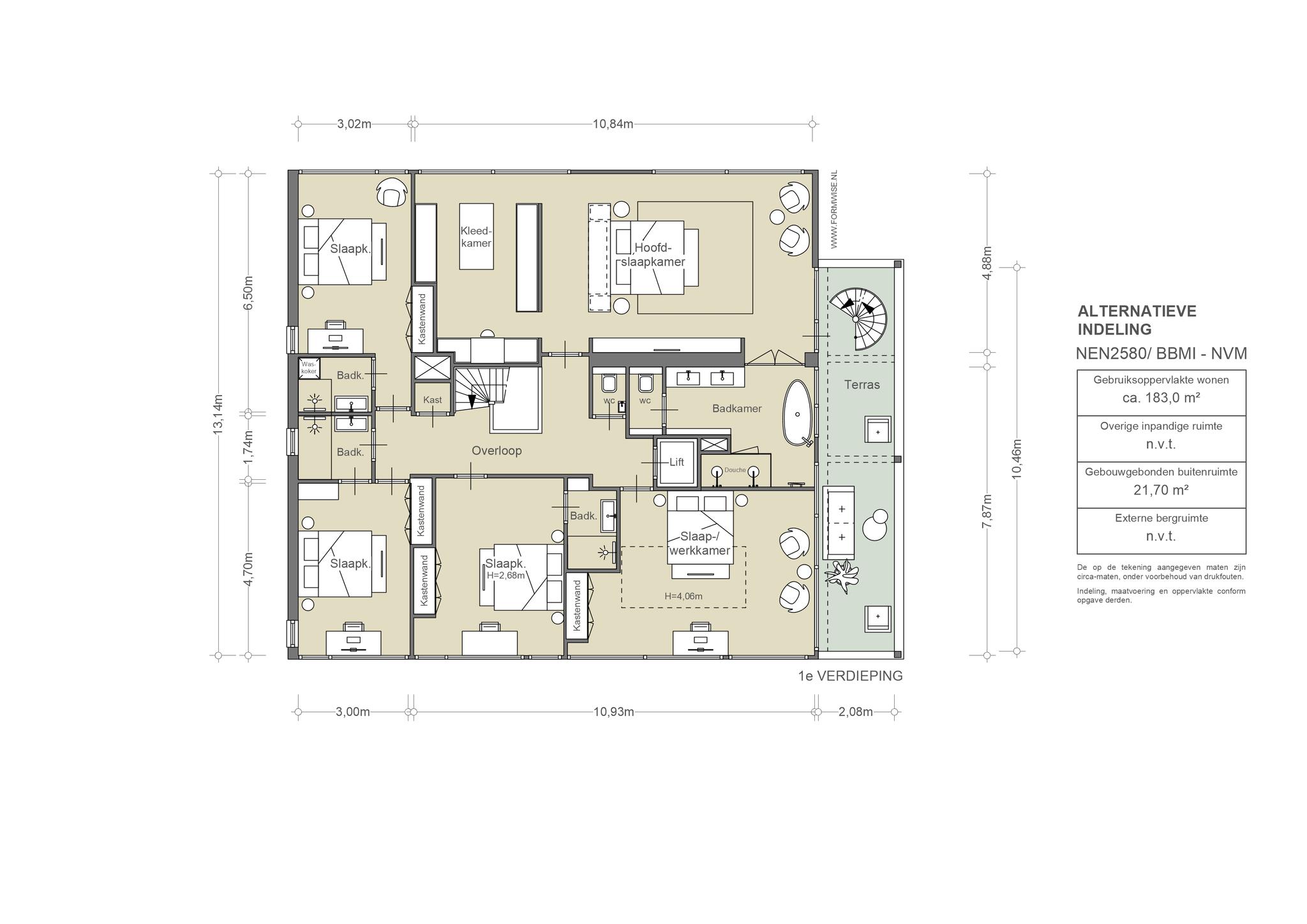
Het woonhuis is door de loop van de jaren intern verbouwd waarbij is gekozen voor de creatie van grote ruime kamers en vertrekken. Om een impressie te geven hoe het woonhuis kan worden getransformeerd naar een eigentijdse moderne woning hebben we een nieuwe indeling opgesteld zoals weergegeven in de alternatieve plattegrond.

Wonen en koken
Bij binnenkomst is er een vestibule met garderobe en toilet, gevolgd door een ruime centrale hal met een open trap en een personenlift. De L-vormige woonkamer is gericht op zowel de tuin als de straat. Er is een directe verbinding met de woonkeuken aan de achterzijde, met toegang tot het terras en de tuin. Grenzend aan de keuken bevindt zich een bijkeuken of utilityroom. Aan de voorzijde van de begane grond is er een werkkamer en aan de tuinzijde een speel- of mediakamer. Tussen deze twee ruimtes is een laundry mogelijk.

Mindervalaan 103-11
Minervalaan 103 keuken
AM105368-1868185-Minervalaan-103,-Amsterdam-185806077
AM104260-1786713-Minervalaan-103,-Amsterdam-156646963
Mindervalaan 103-44
Mindervalaan 103-46
Mindervalaan 103-50

Slapen en baden
Op de eerste verdieping, bereikbaar via de trap of de toekomstige inpandige lift, bevindt zich een ruime overloop met een apart toilet en inbouwkast. De hoofdslaapkamer aan de achterzijde heeft veel glas aan de tuinzijde en biedt toegang tot een terras met een spiltrap naar het dak. De hoofdslaapkamer heeft een royale indeling, inclusief een kleedruimte en een eigen badkamer met mogelijkheid voor een ligbad, ruime inloopdouche en dubbele wastafel. Daarnaast kan er een afzonderlijk toilet in deze badkamer worden gecreëerd. Op deze verdieping is er ook ruimte voor nog vier ruime slaapkamers en drie badkamers.

Gastenverblijf
Het souterrain herbergt een volledig zelfstandig gastenverblijf met een woonkamer met open keuken en een slaapkamer met aangrenzende badkamer. Vanwege de eigen entree is dit gedeelte geschikt voor bijvoorbeeld een nanny, die ook via de trap en lift verbonden is met het hoofdgebouw. Verder zijn er in het souterrain een wijnkelder, technische ruimte en een was-/strijkruimte aanwezig.

Minervalaan 103 slaapkamer
1077 JV Beethovenstraat 156-1-6
1077 RC Titiaanstraat 1-54
Minervalaan 103-5

De Minervalaan is een prachtige brede en rustige laan, de as van Zuid, en deze woning is gelegen in het deel tussen de Apollolaan en Minervaplein. Naar het noorden verbindt de laan naar het Hilton Hotel en de Cornelis Schuytstraat naar het Vondelpark. Naar het zuiden loopt de laan tot aan de Zuidas. Op loopafstand liggen de Beethovenstraat en het Olympiaplein, waar de eigenaren hun brood bij de Franse bakker halen en de kaas bij Tromp. De Beethovenstraat voorziet hen in de slager Hergo, terwijl slager Zikking op de Marathonweg hun geheime adresje is.

Bereikbaarheid
Naast alle voorzieningen is de ligging van de woning zeer centraal en goed bereikbaar. De Ring is op meerdere manieren met de auto te bereiken en tramlijn 24 ligt op één minuut lopen. Station Zuid/WTC is beloopbaar of een minuutje op de fiets. Metro en treinverbindingen, ook naar luchthaven Schiphol, zijn uitstekend. Met de trein is het slechts 10 minuten rijden naar Schiphol.

Parkeergelegenheid
Parkeren is mogelijk op eigen terrein. Daarnaast is het mogelijk te parkeren via een vergunningenstelsel op de openbare weg (vergunningsgebied Zuid 5.). Met een parkeervergunning voor Zuid 5. mag u parkeren in Zuid 5. Een parkeervergunning voor bewoners kost € 186,29 per 6 maanden. Er is op dit moment geen wachtlijst voor dit vergunning gebied. Een tweede parkeervergunning kost € 465,73 per 6 maanden. (Bron: Gemeente Amsterdam, juni 2024).

1076 BN Stadionkade 110-60
Kenmerken
Minervalaan 103, Amsterdam
Vraagprijs
  • € 7.600.000 k.k.
Beschikbaarheid
  • In overleg
Vertrekken
  • 10 kamers
  • 7 slaapkamers
  • 4 badkamers
Onderhoud
  • Intern: Goed
  • Extern: Goed
Oppervlakten & Inhoud
  • Woonoppervlakte: 447 m²
  • Overige inpandige ruimte: 10 m²
  • Gebouwgebonden buitenruimte: 109 m²
  • Externe bergruimte: 20 m²
  • Perceeloppervlakte: 900 m²
Bouwjaar
  • 1957
Ligging
  • In woonwijk
Parkeren
  • Op eigen terrein
Type verwarming
  • CV Ketel
Type warmwater
  • CV Ketel
Bestemming
  • Woonruimte
Eigendomssoort
  • Eigendom belast met erfpacht
Buitenruimte
  • Achtertuin
  • Dakterras
Kadastraal
  • Gemeente: Amsterdam
  • Sectie: Ab
  • Nummer: 1756
Duurzaamheid
  • Energielabel E
Soort
  • Villa
  • Vrijstaande-woning
  • Woonhuis
Overige kenmerken

•           OZB ('23) € 1.851,14 per jaar
•           Rioolrecht ('24) € 166,84 per jaar
•           Erfpachtcanon € 973,35 per jaar *
* In beginsel IB aftrekbaar

Plattegrond
Minervalaan 103, Amsterdam
AM105368-1868185-Minervalaan-103,-Amsterdam-181297265
AM105368-1868185-Minervalaan-103,-Amsterdam-181297269
AM105368-1868185-Minervalaan-103,-Amsterdam-181297273
AM105368-1868185-Minervalaan-103,-Amsterdam-181297279
Documenten
Minervalaan 103, Amsterdam
Locatie
Minervalaan 103, Amsterdam
Kunst & cultuur
downloadgram.org_597897714_1508494480841935_8620457783605645660_n
01
Adres
Prinses Irenestraat 36,
1077 WX Amsterdam

De Thomas

De Thomas is een monumentale kerk aan de rand van de Zuidas waar religie en cultuur bewust samenkomen. Met een eigen theater, concerten en debatavonden is het een plek voor ontmoeting en verdieping, midden in het zakelijke hart van Amsterdam Zuid. Het gebouw geldt als een belangrijk voorbeeld van naoorlogse kerkarchitectuur in Nederland en is vormgegeven in een expressieve, brutalistische stijl.

pati_F1A7803ssdweb
_F1A4074
02
Adres
Parnassusweg 220,
1076 AV Amsterdam

Diez Gallery

Diez is een Amsterdamse kunstgalerie met een internationale uitstraling, opgericht in 2022 door Diego Diez. De tentoonstellingen worden samengesteld in samenwerking met kunstenaars die affiniteit hebben met Diez's interesses en zullen zowel internationaal als nationaal talent presenteren in Amsterdam. Naast het tentoonstellingsprogramma streeft Diez ernaar een toegankelijke ruimte te zijn voor een breed publiek met diverse activiteiten en evenementen zoals poëzielezingen, samengestelde diners en kunstenaarsgesprekken.

03
Adres
Hildegard Von Bingenstraat 4,
1081 LH Amsterdam

Cinema The Pulse

Cinema The Pulse is een filmtheater in de plint van The Pulse of Amsterdam op de Zuidas, met een breed programma van arthouse, cult en actuele films. De kracht ligt in de combinatie van cinema, architectuur en ontmoeting, als stedelijke filmhub waar filmbeleving en metropolitane context samenkomen.

04
Adres
De Boelelaan 1111,
1081 HV Amsterdam

VU ART SCIENCE gallery

De VU ART SCIENCE gallery is een universitaire galerie op de VU-campus waar kunst en wetenschap elkaar ontmoeten in tentoonstellingen en dialogen rond actuele thema’s. De kracht ligt in de multidisciplinaire uitwisseling tussen kunstenaars, onderzoekers en publiek, met een duidelijke focus op kennis, onderzoek en maatschappelijke vraagstukken.

05
Adres
De Boelelaan 1111,
1081 HV Amsterdam

Rialto VU

Rialto VU is de tweede locatie van het historische filmtheater Rialto (1921) en gevestigd op de VU-campus aan de Boelelaan. De kracht ligt in de combinatie van arthouse cinema, festivals en culturele programmering binnen een bredere culturele hub waar film, kunst en academie samenkomen.

Eten & drinken
frietsteeg
06
Adres
Stadionkade 73 /A,
1076 BJ Amsterdam

De Frietsteeg

De Frietsteeg is een snackbar aan de gracht in de Stadionbuurt. Ze serveren hier heerlijke krokante frietjes en vele andere snacks. De frieten worden met de hand gesneden en je hebt keus uit meer dan 20 sauzen. Ook bijzonder: de Frietsteeg is gevestigd in een historisch huisje en er is een groot zonnig terras aan het water

07
Adres
Olympiaplein 111,
1077 CV Amsterdam

The Coffee District

Eigenaren Adil Loukane en Rosa Loukane begonnen met een hole-in-the-wall coffeeshop in een modewinkel in Zuid. Toen de winkel de deuren sloot, grepen Adil en Rosa hun kans en besloten om hun eigen koffiebar te openen. Inmiddels hebben ze meerdere locaties. De koffie wordt gemaakt met een eigen melange gebrand door Lot Sixty One. Daarnaast worden er zoetigheden aangeboden zoals de inmiddelsal bekende kaneelbroodjes en bananenbrood.

89760007_208364853843740_4913033452334350336_n
08
Adres
Beethovenstraat 58,
1077 JK Amsterdam

Winebar QV

Bij Winebar QV kan je in principe de hele dag doorbrengen alsof je in Italië bent. Je begint met een Italiaanse espresso, luncht met een warme maaltijd en sluit af met een goed glas wijn met bijbehorend een Italiaanse aperitivo. Het is er gezellig en stijlvol ingericht en je kan aan de hoge krukken aan de bar zitten, aan de lagere tafeltjes of op het kleine terras.

366937812_17933803049710351_8213912525779000332_n
367438354_17933803034710351_539942877662656212_n
370936688_17935908203710351_8346539429364568324_n
09
Adres
Beethovenstraat 515,
1083 HK Amsterdam

Nela

Bij Nela vieren ze de samensmelting van live vuur koken met hoogwaardige en zorgvuldig geselecteerde ingrediënten. Ze halen en selecteren seizoensgebonden producten van gespecialiseerde partners.  Het open vuur is het perfecte gereedschap voor de chefkoks om warmte en temperatuur te gebruiken om ongelooflijke texturen en smaken te creëren. Nela is bedacht door toonaangevende chefs Hari Shetty en Ori Geller, die twee decennia ervaring hebben op het internationale podium. Na jarenlang te hebben gewerkt voor toprestaurants zoals Nobu (Londen), Yaffo-Tel Aviv, Izakaya, The Duchess en Mr. Porter (Amsterdam), bundelden ze hun krachten met de innovatieve internationale ondernemer Gilad Hayeem (Waverly Group). Samen brachten Hari, Ori en Gilad hun gedeelde visie en creativiteit tot leven door Nela op te richten.

84828243_1531217050352887_4539296221554016256_o
10
Adres
Agamemnonstraat 27,
1076 LP Amsterdam

Umeno

Umeno is een van de oudste Japanse restaurants in Amsterdam dat geliefd is bij haar vaste lokale gasten. Zodra je binnenstapt zie je een intieme ruimte met traditionele Japanse authenticiteit gevormd door het handgemaakte houten interieur, de shamisen en shakuhachi muziek en de enorme gastvrijheid van Ayumi en Atsuhito Hosono. De nigiri sushi is een aanrader, want de kwaliteit van de vis is uitstekend.

315761837_664619815074448_8137880443810625460_n
321084772_1555342291555230_7489434614896126447_n
11
Adres
Beethovenstraat 38,
1077 JJ Amsterdam

Et Claire

Op de Beethoven straat bevindt zich Et Claire. Et Claire is ontstaan uit een voorliefde voor de beste viennoiserie, koffie, (ijs)thee in combinatie met eindeloze zoete en hartige mogelijkheden.  Het motto bij et Claire is ''ne vous contentez pas de moins'', wat betekent dat je niet genoegen moet nemen met minder.

12
Adres
Parnassusweg 400,
1081 LD Amsterdam

Vascobelo Parnassusweg

Vascobelo ontstond in 1998 in Antwerpen vanuit de familiepassie van Marc De Roeck, die opgroeide met vers gebrande koffie van zijn vader. De kracht ligt in de combinatie van Belgische koffiecultuur, langzaam gebrande blends en een herkenbare, ambachtelijke signatuur waarin kwaliteit en beleving centraal staan.

264088316_309512271179442_4492361891256328028_n
242514067_218469310302263_8949483099160412699_n
13
Adres
Beethovenstraat 19,
1077 HM Amsterdam

Cafecito

Cafecito, een minimalistische koffiezaak, biedt hoogwaardige koffie uit stralend witte machines. Het is een onderdeel van de Cafecito-franchise, een Amsterdamse koffiebranderij die besloot koffiezaken te openen om hun eigen afzet te stimuleren toen de verkoop aan horecagelegenheden tijdens de pandemie stagneerde. Cafecito heeft al drie vestigingen in Amsterdam en één in Rotterdam. Cafecito is een tot de essentie teruggebrachte zaak. Je drinkt er topkoffie uit witte machines.

Interieur_Zuidas_24-12-2018-scaled
14
Adres
Parnassusweg 1021,
1082 LZ Amsterdam

Café Loetje Zuid As

In 1977 werd café Loetje opgericht als biljartcafé door Ludwig 'Loetje' Klinkhamer, maar het duurde niet lang voor men het biljart inruilde voor de ossenhaasbiefstuk die werd geserveerd. Meer dan veertig jaar later is Loetje een gigantische keten en is het oorspronkelijke 'Café' een begrip in Amsterdam. De smakelijke biefstuk wordt geserveerd met huisgemaakte frietjes en zwemt in verse jus - om je vingers bij af te likken!

84942268_1529941500492597_3844385910518972416_n
15
Adres
Apollolaan 138,
1077 BG Amsterdam

Roberto's Restaurant Amsterdam

In de top tien Italiaanse restaurants van Amsterdam mag Roberto’s niet ontbreken. Het restaurant is gelegen in het Hilton hotel, waar de iconische Italiaanse keuken sinds 25 jaar de borden vult. Het restaurant draait om pure en simpele smaken met gerechten als dungesneden aubergine, groene farfalle pasta met kreeftensaus en Lava cake.

483279358_18324217756166170_7586630462193368446_n
16
Adres
Stadionweg 271,
1076 NZ Amsterdam

Cucina casalinga

Giovanni Carmelitano is de eigenaar van Cucina Casalinga, een Italiaans restaurant gevestigd aan de Stadionweg 271 in Amsterdam-Zuid. Geboren in Rome, met een moeder uit Puglia, brengt Giovanni zijn Zuid-Italiaanse roots tot leven in zijn restaurant. Al meer dan twintig jaar is hij een toegewijde vertolker van de Italiaanse keuken, waarbij hij traditionele smaken combineert met een moderne benadering. De intieme sfeer en het beperkte aantal zitplaatsen zorgen voor een persoonlijke eetervaring die doet denken aan dineren bij een Italiaanse ‘nonna’ thuis.

vascobelo-stadionplein-01
17
Adres
Stadionplein 100,
1076 CK Amsterdam

Vascobelo

Vascobelo, van origine uit Antwerpen, was bedoeld als een café waar mensen zouden komen voor een unieke koffie ervaring. Inmiddels is de keten aan Vascobelo Café-Brasseries bekend van veel meer dan alleen dat. De vestiging in de Rijnstraat is uniek door het knusse interieur en de open keuken, wat de locatie ideaal maakt voor intieme ontmoetingen of zakelijke bijeenkomsten.

Hakata-Senpachi-dsc_0680-4000PX-1024×683
18
Adres
Wielingenstraat 16,
1078 KK Amsterdam

Hakata Senpachi

Prachtig Japans eten en de lekkerste saké's; dat is Hakata Senpachi. Dit restaurant aan de Wielingenstraat bestaat al langer dan 20 jaar en heeft in al die jaren altijd haar autentieke japanse sfeer behouden. De manier waarop restaurant is ontworpen doet het lijken op een echt Japans restaurant in de steegjes van Tokyo. Hakanta Senpachi is als Yakitori-ya - gespecialiseerd in het maken van gegrilde kipspiesjes, die in Japans Yakitori worden genoemd. De spiesen worden gegrild via traditionele kookwijzen op de houtskool grill. Deze grill staat overigens in het midden van het restaurant waardoor de ruimte altijd volhangt met de lekkerste aroma's.

Boodschappen
Schermafbeelding 2022-05-12 om 19.08.47
19
Adres
Olympiaplein 111,
1077 CV Amsterdam

L'Amuse

Volgens sommigen is dit de beste kaaswinkel van Nederland. Ze hebben een indrukwekkend breed assortiment van de lekkerste kazen. Ook heerlijke wijn, salami, ham en olijfolie is hier te koop. Je wordt uitstekend geholpen en de kaas is echt van een ander niveau. Aanrader!

20
Adres
Olympiaplein 119,
1077 CW Amsterdam

Le Fournil de Sébastien

Le Fournil is het initiatief van Susan en Sébastien, die na jaren bakkerservaring in Frankrijk in 2007 naar Nederland kwamen om een authentieke Franse boulangerie te openen. De kracht ligt in het ambachtelijke handwerk, zuurdesem en de bewuste keuze voor kleinschaligheid en pure, traditionele broodbereiding.

hergo
21
Adres
Beethovenstraat 49,
1077 HN Amsterdam

Slagerij Hergo

Slagerij Hergo is de vleesspecialist in Amsterdam. Al in 1930 begon de heer Cantor, een Duitse worstmaker, samen met zijn vrouw die uit een Amsterdamse slagersfamilie kwam, zijn slagerij met typische Duitse worstspecialiteiten. Met het motto ‘De slager met ’n koksmuts’ is Hergo uitgegroeid naar vier verschillende locaties en is zo tegenwoordig niet meer weg te denken uit het straatbeeld van Amsterdam. Met jachtworst, hausmacher, ossenworst, pekelvlees maar ook met een broodje filet americain onderscheidt Hergo zich als slagerij in het topsegment.

22
Adres
Marathonweg 51,
1076 TB Amsterdam

Slagerij Zikking & Zoon

Slagerij Zikking & Zoon zit aan de Marathonweg en is een begrip in Amsterdam. Eigenaar Robert Zikking is een geboren en getogen Amsterdammer die samen met zijn vrouw in 1995 gepassioneerd en vol zelfvertrouwen een eigen zaak begon. Zoals hij zelf zegt: ‘Het is geen sprookje, maar een (h)eerlijke werkelijkheid die een geschiedenis heeft.’ De filet americain is gemaakt met het recept van een oude Jordaanse dam en niet te ontbreken is de nostalgische Amsterdamse ossenworst.

21125326_348074012310751_3902449023829329736_o
21125332_348074092310743_8164135921726057693_o
21200854_348074335644052_3928733172084979767_o
23
Adres
Stadionplein,
1076 CJ Amsterdam

Stadionpleinmarkt

Op het mooie Stadionplein, midden in Oud-Zuid vind je elke zaterdag de Stadionpleinmarkt. Ze gaan om 09:00 open en zijn dus een ideale markt voor mensen die op zaterdag vroeg hun weekboodschappen gedaan willen hebben. Ook hebben ze hier prachtige bloemen te koop en vind je er veel verschillende buurtbewoners. De sfeer is altijd goed en de markt is open tot 17:00.

Interieur
5a1eff_bf84a6dcd25c4e9983e1e74f8140f4da_mv2
24
Adres
Rubensstraat 45,
1077 MJ Amsterdam

Flower fusion

Elke zaterdag van 9:30 tot 17:00 kunt u Ilona Bokma van Flowerfusion vinden op de ZuiderMRKT. Unieke en schitterende bloemen waardoor je het gevoel krijgt middenin een pluktuin te staan. Doordat Ilona iedere week andere bloemen, planten en kleuren uitzoekt die aansluiten bij het seizoen, is het elke zaterdag weer een feestje om langs te gaan bij Flowerfusion.

Een voormalig stoffenmagazijn

Een voormalig stoffenmagazijn

Het Verhaal van Michelin: Van Banden naar Gastronomie

Het Verhaal van Michelin: Van Banden naar Gastronomie

Contempory living

Contempory living

Onlangs bekeken
Bekijk het overzicht

Deze site maakt gebruik van cookies.

Voor welke cookies geef je akkoord?