Een eigentijds en zeer comfortabel benedenhuis van circa 251 m² met een waanzinnige tuin (ca 120 m²) op het zuidoosten. En uiteraard gelegen op eigen grond.
Rondleiding
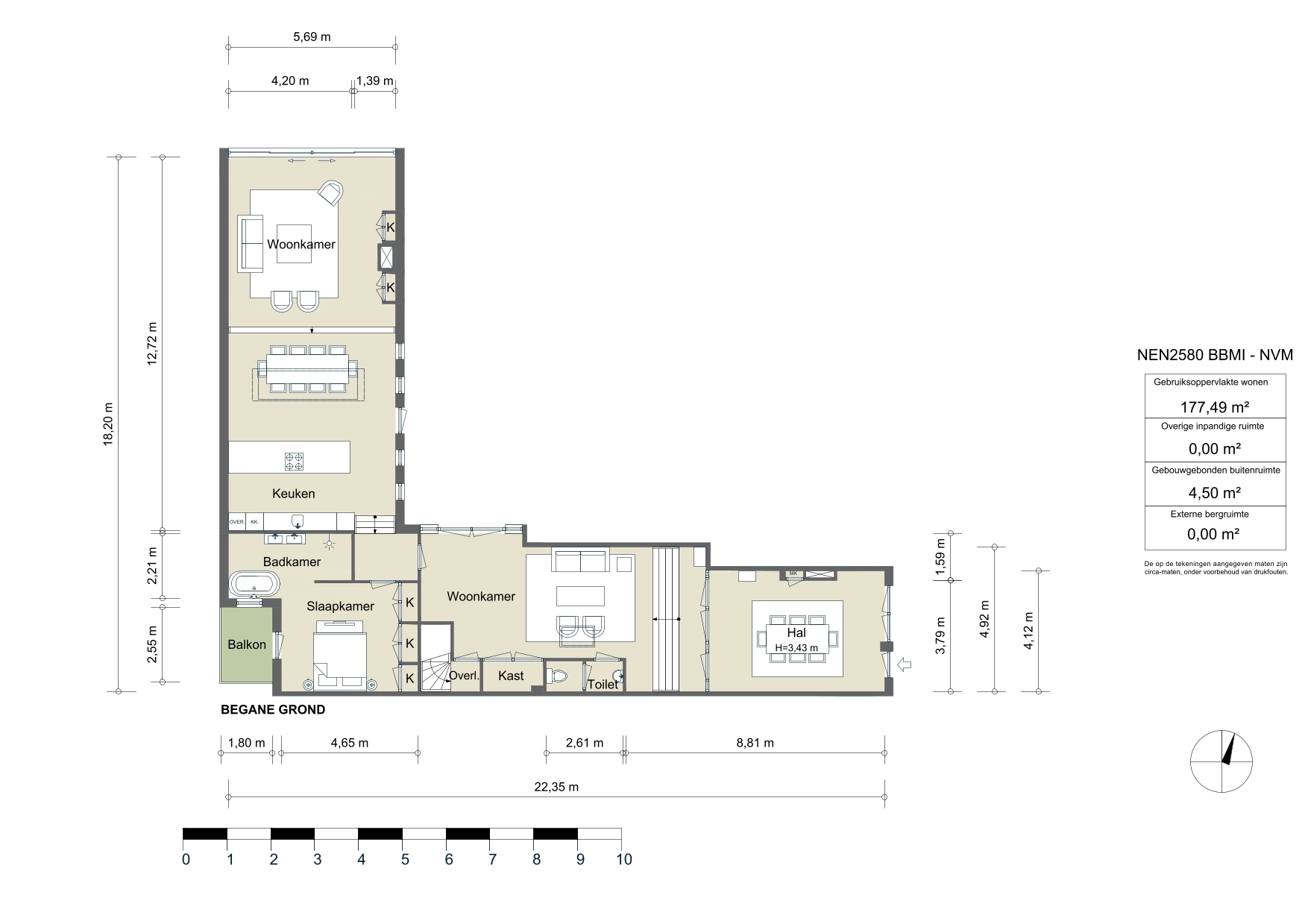
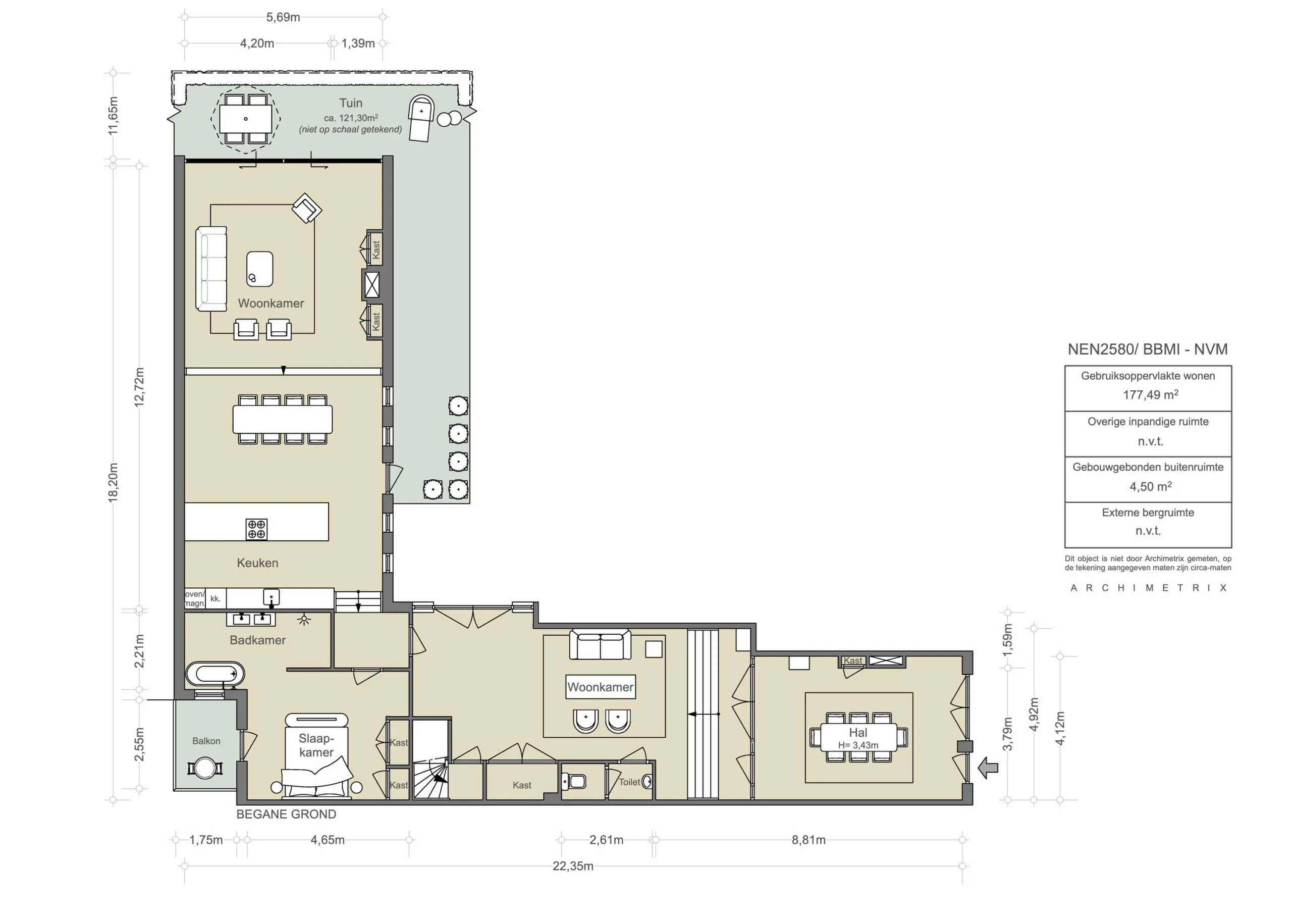
Aan de tuinzijde strekt de woonkamer zich uit over de volle breedte, met schuifpuien die de overgang naar buiten moeiteloos laten verlopen. De visgraatvloer, warme wandafwerking en ingebouwde haard brengen rust en balans.
De moderne keuken vormt het hart van het huis. Met een lang marmeren werkblad, geïntegreerde apparatuur en een directe verbinding met het eetgedeelte en de tuin is dit een plek om samen te zijn. Een niveauverschil leidt naar een tweede zitkamer met zicht op de patio en tuin. Ideaal als televisiekamer of bibliotheek. Aan de voorzijde bevindt zich een multifunctionele ruimte, nu in gebruik als werkkamer, maar net zo geschikt voor sport of spel.
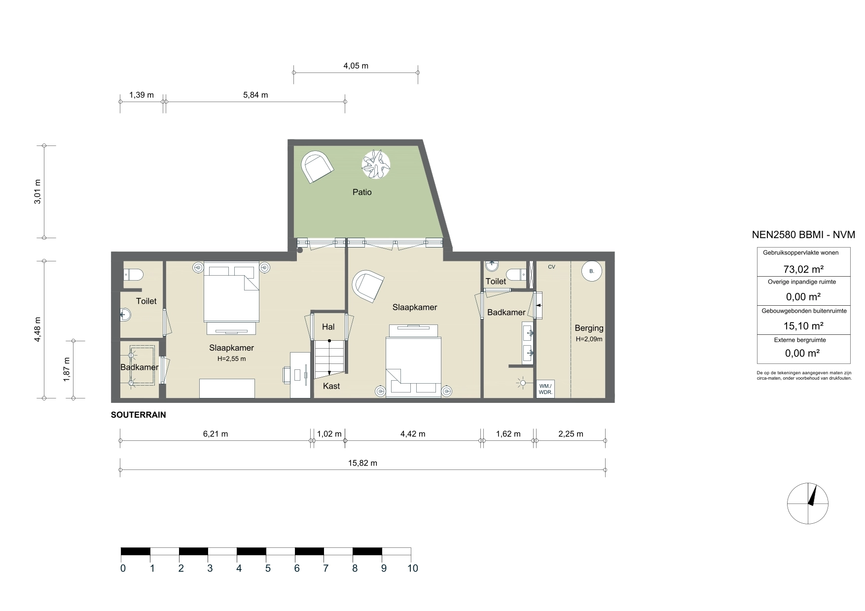
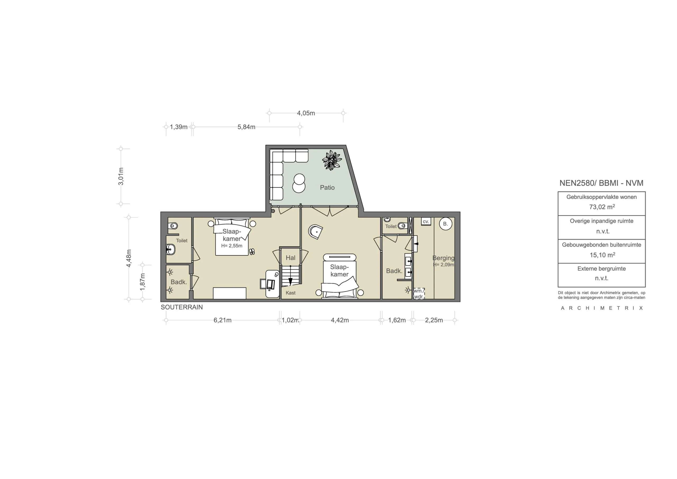
De hoofdslaapkamer ligt op de begane grond, een serene suite met een riante ensuite badkamer. Vrijstaand bad, inloopdouche en marmeren wastafelmeubel zijn subtiel geïntegreerd in een rustgevende ruimte vol daglicht. In het souterrain liggen twee volwaardige slaapkamers met elk haar eigen badkamer. Dankzij de patio is ook hier het licht verrassend aanwezig en een goede plafondhoogte van 2,55 m. Alles ademt verfijning: van de regendouches tot het doorlopende visgraatparket.
Buitenruimte
De buitenruimtes zijn werkelijk uniek. Aan de achterzijde ligt een royaele stadstuin op het zuidoosten: zonnig, besloten en groen. De patio tussen de woonlagen biedt een tweede plek van stilte en beschutting. Samen vormen ze een zeldzaam ensemble – midden in de stad, maar met het gevoel van een buitenverblijf.
Buurtgids
De woning ligt in een charmante en levendige buurt in het centrum van Amsterdam aan de Lauriergracht, bekend om haar historische karakter en moderne dynamiek. Op loopafstand bevinden zich de beroemde Amsterdamse grachten, monumentale panden, musea en een gevarieerd aanbod aan eetgelegenheden, van traditionele cafés tot verfijnde restaurants. De nabijgelegen Jordaan biedt een rijk palet aan boetieks, markten zoals de Noordermarkt en lokale specialiteiten. De Lauriergracht verenigt Amsterdamse geschiedenis met hedendaags stadsleven en vormt daarmee een unieke plek om te wonen.
Bijzonderheden:
• Woonoppervlakte ca. 251 m²
• Privé tuin van ca. 120 m²
• Energielabel A
• Eigen grond
• Fundering is vernieuwd
• Luxe & eigentijds wonen
• Vloerverwarming
• VvE met 7 leden (professioneel beheer)
• Servicekosten € 429,61 per maand
Pakhuis façade
Ultiem en zeer comfortabel familiehuis van circa 251 m² met een heerlijke tuin van circa 120 m² op het zuidoosten.
Aan de Laurierstraat is in 2020 het gebouw gerenoveerd, inclusief de fundering, en werd op de begane grond een verrassende benedenwoning gerealiseerd met royale leefruimtes, comfortabele slaapkamers en die fantastische tuin. Voor de ontwikkelaar mocht ons kantoor destijds alle zeven woningen verkopen. De woning werd turn-key opgeleverd, met gebruik van hoogwaardige materialen. De huidige eigenaren hebben het geheel verder verfijnd door het plaatsen van vaste kastenwanden, een sfeervolle gashaard en fraaie wandafwerking.
Wat ik persoonlijk als bijzonder aangenaam ervaar, is dat je hier midden in de levendige Jordaan woont, maar binnenshuis een oase van rust treft. Een subliem en eigentijds benedenhuis, gelegen op eigen grond.
Judith de Jong | Makelaar Broersma Wonen
Jelle Mundt | Makelaar Broersma Wonen
Achter een ingetogen gevel aan de Laurierstraat ontvouwt zich een woning die verrast. Alles is hier gericht op balans — tussen rust en raffinement, traditie en moderniteit. De ingetogen architectuur aan de buitenzijde verraadt weinig van het serene interieur daarachter, waarin zachte kleuren en natuurlijke materialen de toon zetten. De plattegrond is langgerekt en ongebruikelijk, en splitst zich subtiel in diverse ruimtes voor wonen en eventueel werken aan huis.
Van oudsher werd op nummer 246 gewerkt aan het exclusieve Nederlandse automerk ‘Spyker’. De vernieuwde garagedeuren herinneren aan deze rijke historie. Het gebouw is in 2020 volledig gerenoveerd, inclusief een nieuwe fundering, met oog voor een optimale indeling en overvloedige lichtinval.
De woonvertrekken zijn georganiseerd rondom het groen. Aan de achterzijde, grenzend aan de diepe tuin, ligt een riante woonkamer met schuifpuien over de volle breedte. Een ruimte van zachtheid en licht, met een warme visgraatvloer, ingetogen wandafwerking en een serene zithoek. De ingebouwde haard vormt een subtiel middelpunt, geflankeerd door maatwerk kasten en open schappen waarin boeken en objecten hun plek vinden.
De keuken is royaal en doordacht vormgegeven. Een lang werkblad van natuursteen biedt ruimte voor koken, serveren en samenzijn, met daarachter een wandopstelling in rustige tinten. Alle apparatuur — waaronder een quooker, wijnklimaatkast, inductiekookplaat met downdraftventilatie, koel-vriescombinatie en vaatwasser — is volledig geïntegreerd. Het ontwerp is minimalistisch, maar rijk in materiaalgebruik door het marmeren werkblad. De plek voor de eettafel ligt direct aan het eiland en kijkt uit op de tuin, waardoor binnen en buiten zich op vanzelfsprekende wijze met elkaar verbinden.
Een niveauverschil leidt naar een tweede zitkamer aan de patio, in te richten als intieme televisiehoek of leeskamer. Hier zorgen op maat gemaakte kasten voor zowel elegantie als functionaliteit; verborgen deuren geven toegang tot aangrenzende vertrekken. Aan de voorzijde van het huis ligt een multifunctionele ruimte, momenteel in gebruik als kantoor, maar ook geschikt als plek voor kinderen of sport. Een stalen pui met glas scheidt deze ruimte van de rest van de woning — een stijlvolle en lichte afscheiding.
De slaapvertrekken ademen dezelfde verfijning als de rest van het huis: ingetogen luxe, warm materiaalgebruik en een rustgevende, bijna monastieke sfeer. De hoofdslaapkamer op de begane grond is een suite in de ware zin van het woord. Deze ruimte opent naar het balkon aan de tuinzijde en loopt naadloos over in een riante badkamer met vrijstaand bad, dubbele wastafel in marmer, inloopdouche en overvloedig daglicht. Ingebouwde kasten zorgen voor rust in het beeld, terwijl het licht via hoge raampartijen gefilterd binnenvalt.
In het souterrain bevinden zich twee royale slaapkamers, elk met een eigen badkamer en toilet. De kamers worden verlicht via de patio en zijn verrassend licht voor een benedenverdieping, mede dankzij de plafondhoogte van 2,55 meter. Ook deze badkamers zijn zorgvuldig ontworpen: met marmeren wastafelmeubels, grote spiegels, dubbele regendouches en een ingetogen kleurenpalet. De lijnen zijn strak, de materialen rijk, en de afwerking uitzonderlijk. Doorlopende visgraatvloeren zorgen voor eenheid en warmte in het interieur.
Op deze etage bevindt zich tevens een royale wasruimte, die ook als berging kan worden gebruikt.
De buitenruimte van Laurierstraat 246 H is zowel royaal als zorgvuldig vormgegeven. Aan de achterzijde ligt een diepe stadstuin van ruim 120 m² op het zuidoosten — besloten, zonnig en groen. Houten erfafscheidingen, een sierlijk gazon en volwassen beplanting zorgen voor structuur en natuurlijke privacy. Vanuit de woonruimte opent een brede glazen pui naar het terras, dat naadloos overgaat in het gras. Het niveauverschil tussen terras en tuin versterkt het ruimtelijk effect en maakt de tuin tot een natuurlijk verlengstuk van het interieur. Subtiele paden en beplanting in aardewerken potten voegen kleur en karakter toe.
Aan de zijkant ligt een tweede buitenruimte: een intieme patio grenzend aan de slaapkamers in het souterrain. De sfeer is hier beschut en sereen. Hoge witte muren en een strakke vlondervloer vormen een helder, minimalistisch ensemble. Beide buitenruimtes zijn uitzonderlijk in verhouding tot de woning en zeldzaam in de binnenstad. Ze bieden ruimte, zon en stilte — midden in de Jordaan.
De woning ligt in een charmante en levendige buurt in het centrum van Amsterdam aan de Lauriergracht, bekend om haar historische karakter en moderne dynamiek. Op loopafstand bevinden zich de beroemde Amsterdamse grachten, monumentale panden, musea en een gevarieerd aanbod aan eetgelegenheden, van traditionele cafés tot verfijnde restaurants. De nabijgelegen Jordaan biedt een rijk palet aan boetieks, markten zoals de Noordermarkt en lokale specialiteiten. De Lauriergracht verenigt Amsterdamse geschiedenis met hedendaags stadsleven en vormt daarmee een unieke plek om te wonen.
Bereikbaarheid
De woning aan de Laurierstraat 246 H is uitstekend bereikbaar, zowel met de fiets, auto als het openbaar vervoer. Het Centraal Station is binnen vijf minuten fietsen te bereiken. Op slechts twee minuten loopafstand bevindt zich een tramhalte waar tramlijnen 13 en 17 stoppen. Daarnaast is de woning goed bereikbaar met de auto via verschillende uitvalswegen naar de Ring A10.
Parkeergelegenheid
Parkeren is mogelijk via een vergunningensysteem op de openbare weg (vergunningsgebied Centrum-2d). Met een parkeervergunning voor Centrum-2d mag u parkeren in Centrum-2. Een parkeervergunning voor bewoners kost € 326,65 per zes maanden. Momenteel is er voor dit vergunningsgebied een wachttijd van 16 maanden. Een tweede parkeervergunning is in dit gebied niet mogelijk.
Daarnaast is er de mogelijkheid om te parkeren in parkeergarage Q-Park Europarking aan de Marnixstraat 250. Deze parkeergarage ligt op loopafstand van de woning en biedt 24 uur per dag toegang. Met een parkeervergunning voor bewoners mag u in bepaalde gebieden ook parkeren in een parkeergarage, zonder extra kosten.