Royaal dubbel benedenhuis van circa 91 m² met terras gelegen op het westen.

Rondleiding

Begane grond
De begane grond vormt één open geheel waarin wonen, koken en leven op een vanzelfsprekende manier samenkomen. Aan de terraszijde ligt de woonkamer: een lichte ruimte met directe toegang tot buiten. Dankzij de openslaande deur vloeit het leven op zonnige dagen moeiteloos door naar het royale terras, waar plek is voor zowel een zithoek als een eettafel in de open lucht.
De keuken ligt aan de voorzijde van de woning en is in open verbinding met de rest van de leefruimte. De lange opstelling biedt volop werkruimte en is subtiel ingepast in de architectuur van de ruimte. Aan de overzijde is plaats voor een royale eettafel bij het raam — een fijne plek voor lange diners, of juist voor een rustige ochtendkoffie in het ochtendlicht.
De centrale trap deelt de ruimte op natuurlijke wijze in, zonder het gevoel van openheid te verstoren. Een trapkast biedt slimme extra bergruimte, terwijl de entreehal toegang geeft tot een separaat gastentoilet.
De plafonds van bijna twee meter veertig dragen bij aan een ruimtelijke beleving, terwijl de dubbele oriëntatie zorgt voor prettig daglicht gedurende de hele dag. Wat opvalt is de helderheid van de indeling: elke meter is functioneel, zonder dat het ten koste gaat van comfort of uitstraling.

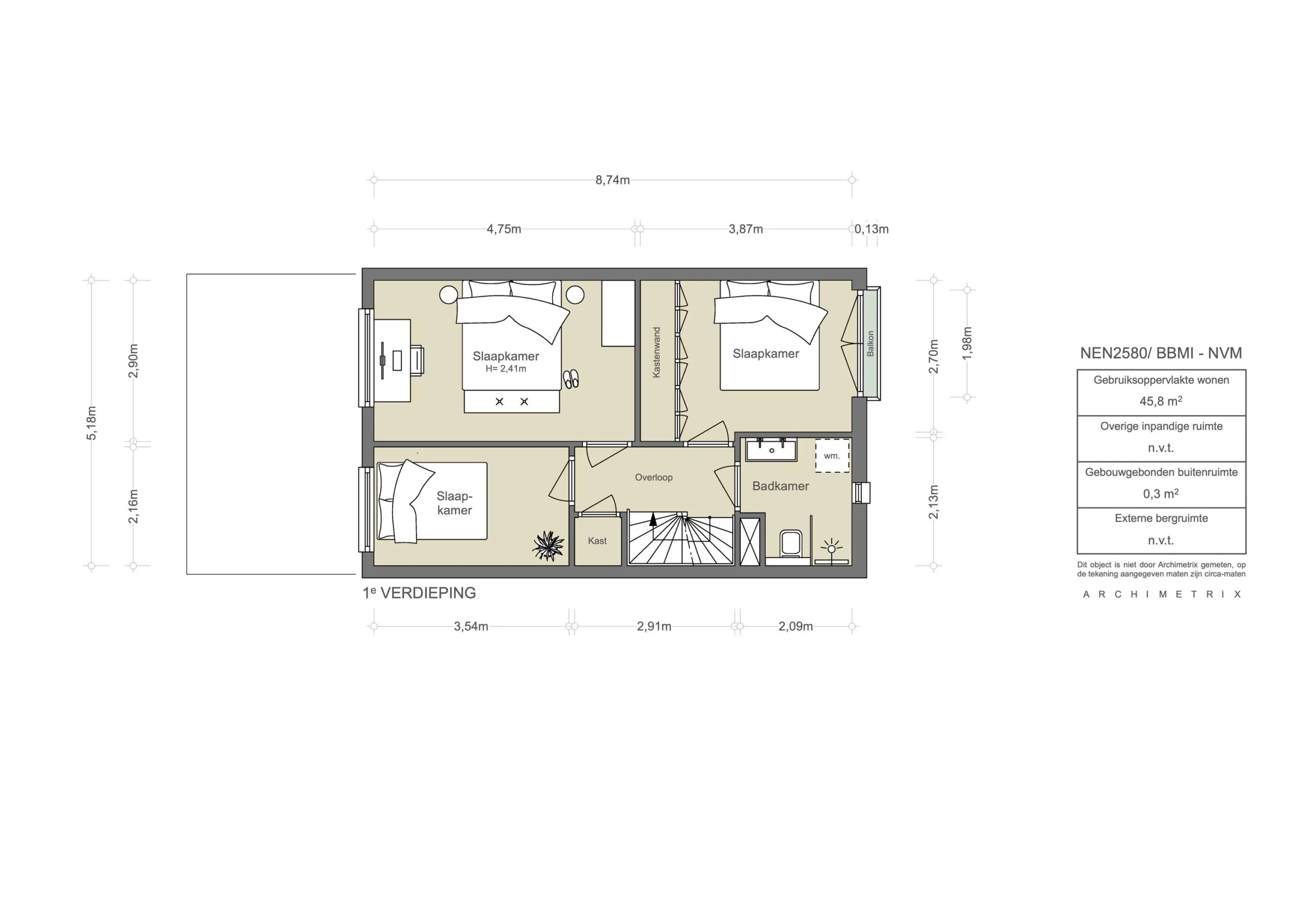
Eerste verdieping
Op de eerste verdieping ontvouwt zich een rustige en overzichtelijke slaapverdieping met drie volwaardige kamers, een comfortabele badkamer en slimme bergruimte. De hoofdslaapkamer aan de achterzijde kijkt uit over het terras. Dankzij de brede maatvoering en rustige ligging vormt deze kamer een uitnodigende plek voor ontspanning, ver weg van de dynamiek van de stad. Aan de voorzijde bevindt zich een tweede slaapkamer met een opvallend lange kastenwand. Deze ingebouwde opbergruimte biedt niet alleen veel praktische capaciteit, maar houdt de kamer tegelijkertijd rustig en geordend. Een Frans balkon zorgt voor licht, lucht en een prettige verbinding met buiten. De derde kamer, eveneens aan de achterzijde, heeft zicht op het terras en is veelzijdig in te zetten — als werkkamer, kinderkamer of logeerruimte. Alle kamers profiteren van grote ramen, prettige plafondhoogten en een doordachte indeling zonder ruimteverlies. De badkamer is compact, maar compleet. Met een dubbele wastafel, inloopdouche, toilet en een nis voor de wasmachine is alles aanwezig voor een comfortabel dagelijks ritme. De afwerking is modern en neutraal, met ruimte voor persoonlijke invulling. Op de overloop is extra opbergruimte gecreëerd, subtiel geïntegreerd in de indeling. De routing is helder: alle vertrekken zijn direct bereikbaar. Dat maakt deze verdieping tot een rustige, functionele bovenlaag waar wonen zich moeiteloos aanpast aan het dagelijks leven.

De buitenruimte en berging
Aan de woonkamer grenst een royaal terras van meer dan vijf meter breed. De ligging op het westen maakt dit een perfecte plek voor lange middagen in de zon en zwoele avonden buiten. De houten vlonder loopt over de volle breedte van de woning, wat niet alleen ruimtelijkheid, maar ook een vanzelfsprekende verbinding met het binnenleven oplevert. Dankzij de directe toegang vanuit de woonkamer is het terras een volwaardig verlengstuk van het interieur. De opzet biedt ruimte voor zowel een eettafel als een loungehoek. Plantenbakken, verlichting en buitenmeubilair komen hier volledig tot hun recht, zonder dat het terras zijn luchtige karakter verliest. De beschutte ligging zorgt bovendien voor privacy en luwte, ook in de stadse setting. In het gebouw bevindt zich een eigen berging van ruim zes vierkante meter, ideaal voor fietsen, koffers of seizoensopslag. De ruimte is goed toegankelijk, voorzien van daglicht en heeft een nette afwerking.

Bereikbaarheid
De woning ligt in stadsdeel Centrum, midden in de karaktervolle wijk Nieuwmarkt/Lastage. Een omgeving waar het oude Amsterdam voelbaar is, maar die tegelijk rustiger en groener aanvoelt dan je zou verwachten. De ligging is strategisch: binnen enkele minuten rijd je via de IJ-tunnel de stad uit, richting de Ring A10. Ook met het openbaar vervoer is de bereikbaarheid uitstekend. Metrostation Waterlooplein ligt op loopafstand, met directe verbindingen naar onder meer Amsterdam Centraal, Zuid en Amstel. Daarnaast zijn er diverse tram- en buslijnen in de nabije omgeving. Wie liever te voet of op de fiets reist, vindt alles dichtbij. Artis, de Hortus Botanicus en de Plantagebuurt liggen letterlijk om de hoek. Ook het Oosterpark, het Marineterrein en de grachten zijn snel bereikt. Het is een plek waar de stad altijd dichtbij is, maar waar je ook moeiteloos aan de drukte kunt ontsnappen.

Parkeergelegenheid
Parkeren is mogelijk middels een parkeervergunning op de openbare weg of betaald parkeren.

De bijzonderheden
- Huurprijs: € 3.100,- excl. per maand;
- Beschikbaar: per direct;
- Borg: 2 maanden huur;
- Huurtermijn: Model A, onbepaalde tijd, minimaal 12 maanden;
- Gestoffeerd

Kenmerken
Koerierstersplein 15, Amsterdam
Huurprijs
  • € 3.100 per maand
Beschikbaarheid
  • In overleg
Vertrekken
  • 4 kamers
  • 3 slaapkamers
Onderhoud
  • Intern: Goed
  • Extern: Goed
Oppervlakten & Inhoud
  • Woonoppervlakte: 91 m²
  • Gebouwgebonden buitenruimte: 17 m²
  • Externe bergruimte: 6 m²
  • Tuinoppervlakte: 17 m²
Bouwjaar
  • 1998
Ligging
  • In centrum
Parkeren
  • Betaald parkeren
  • Parkeervergunningen
Bestemming
  • Woonruimte
Buitenruimte
  • Zonneterras
  • Balkon
Duurzaamheid
  • Dubbel glas
  • Energielabel A
Soort
  • Appartement
  • Dubbel-benedenhuis
Bijzonderheden
  • Beschermd stads of dorpsgezicht
Plattegrond
Koerierstersplein 15, Amsterdam
AM106543-2046911-Koerierstersplein-15,-Amsterdam-241006804
AM106543-2046911-Koerierstersplein-15,-Amsterdam-241006806
Documenten
Koerierstersplein 15, Amsterdam
Locatie
Koerierstersplein 15, Amsterdam
Interieur
14485124_526385714238776_4161774116515468985_n
01
Adres
Valkenburgerstraat 167-A,
1011 MJ Amsterdam

Arclinea

Bij Arclinea Amsterdam helpen ze je graag bij het creëren van je Italiaanse droomkeuken. De keukens behoren door hun professionaliteit, klasse en tijdloosheid tot de absolute top van het keukendesign. Stuk voor stuk combineert Arclinea in hun keukens professioneel koken met prachtig design en innovatieve apparatuur.Bekijk het zelf in hun showroom aan de Valkenburgerstraat in Amsterdam.

47682925_2138085526252244_3479898621955014656_n
02
Adres
Valkenburgerstraat 201A,
1011 MJ Amsterdam

Baden baden

Baden Baden Interior is een badkamer- en interieurwinkel die in 2000 werd opgericht. De winkel bestaat uit een regelmatig wisselende eclectische mix van meubelen, design, kunst, objecten en accessoires. Als liefhebber van goed design kan je je hart ophalen bij Baden Baden Interior en kom zeker langs voor luxe, tijdloze en comfortabele badkamers, kranen en Italiaanse merken die naadloos aansluiten bij uw persoonlijke wensen.

Eten & drinken
300799293_442244344620995_5318374096276279217_n
03
Adres
Rapenburgerplein 83,
1011 VJ Amsterdam

Café de Druif

Café de Druif is een van de oudste proeflokalen in Amsterdam. Tijdens de Gouden Eeuw kregen hier matrozen druiven als cadeau en zo is het aan zijn naam gekomen. Tegenwoordig is het een ontmoetingsplek voor veel stamgasten. Op het grote terras aan het water kan je er heerlijk zitten met een zeer uitgebreide bierkaart. Het decor bestaat uit kleine vaten opgesteld waaruit vroeger de jenever getapt werd en in plaats van muziek luister je naar het geluid van kletsende stamgasten.

410122272_17878473722990810_444435071764874332_n
04
Adres
Peperstraat 23,
1011 TJ Amsterdam

Restaurant R21

Chef Orlando David (werkte voorheen o.a.voor Oud Sluis van Sergio Herman ***) opende in de Peperstraat tegenover Gebr Hartering een fine dining restaurant. Je eet er een 6 of 7 gangen menu voor respectievelijk 75 en 90 euro, maar er is ook een a la carte menu beschikbaar. De reislust van de chef is zichtbaar en te proeven in zijn stijl van koken. Invloeden en producten van de hele wereld sieren de gerechten.

DSC05478
05
Adres
Rapenburgerplein 1,
1011 VA Amsterdam

Café Scharrebier

Café Scharrebier is een erkend proeflokaal van Brandbieren en lid van de Amsterdamse Brandslang. Maak kennis met het unieke karakter van elk van de Brand bieren in ons Brand Proeflokaal. Alle kasteleins zijn bij Brand op de brouwerij geweest, waar ze persoonlijk zijn meegenomen in de kunst van het brouwen. Scharrebier is een perfect Amsterdamse bruincafé waar je altijd terecht kan voor een goede portie gezelligheid. Uitkijkend op de Nieuwe Herengracht kan je hier heerlijk mensen kijken.

Schermafbeelding 2022-06-20 om 20.13.23
Schermafbeelding 2022-06-20 om 20.13.41
06
Adres
Peperstraat 10,
1011 TL Amsterdam

Gebroeders Hartering

Onder leiding van eigenaar Paul Hartering kookt een nieuwe generatie chefs pure, authentieke en verfijnde gerechten, met herkomst en vakmanschap als kern. Paul werd in 2019 door Gault Millau bekroond tot ‘Ambachtsman van het Jaar’, terwijl zijn broer Niek met liefde de service en de wijnkaart leidt. De sfeer voelt als een combinatie van een ouderwetse bruine kroeg en een eigentijdse Franse bistro. Witte linnen tafelkleden steken mooi af tegen de warme, bruinhouten wanden.

463946_339794439388956_1516802307_o
07
Adres
Rapenburg 18,
1011 TX Amsterdam

Hiding in Plain Sight

Voor Hiding in Plain Sight moet je even op je fiets vanuit het centrum. Naast de IJtunnel ligt deze knusse cocktailbar waar je unieke cocktails kunt zippen vanaf je barkruk of vanaf luie stoelen op de bovenverdieping. De unieke cocktail combinaties die bijna culinair te noemen zijn kun je een heerlijke avond loungen. Ben je slechts bekend met een gin & tonic? Dat geeft niets, het vriendelijke barpersoneel voorziet je graag van zoveel keuzes dat het je doet duizelen (als het niet de alcohol is).

Schermafbeelding 2022-06-27 om 17.36.31
Schermafbeelding 2022-06-27 om 17.36.48
08
Adres
Entrepotdok 8,
1018 AD Amsterdam

Restaurant Entrepot

Dit restaurant zit, (verrassend genoeg) gevestigd op het Entrepotdok. Een van de mooiste stukjes Amsterdam, prachtige grachten maar haast onaangeraakt door toeristen. Het restaurant zit in een van de oude pakhuizen en de veel van het eten op de kaart is bereid op open vuur. De wijnkaart is ook uitstekend en het restaurant is ruim en heel gezellig. Goede service en heerlijk eten en drinken.

Processed with VSCO with s3 preset
09
Adres
Kadijksplein 4,
1018 AB Amsterdam

Sotto Pizza

Sotto Pizza is één van de top 10 Italiaanse restaurants in Amsterdam. Het restaurant opende haar deuren in 2021, maar is sindsdien een begrip onder de pizza-liefhebbers. De diverse keuze is een weergave van de kundigheid van de koks, maar hun klassieke Margherita is onverslaanbaar. Het interieur heeft iets weg van een moderne Spaanse tapasbar, met een fijne sfeer. Je kan bij Sotto uitgebreid tafelen of snel een pizza eten aan de bar. Het personeel is behulpzaam en vriendelijk.

10
Adres
Kadijksplein 9,
1018 AC Amsterdam

A Tavola

Italiaanse keuken met gerechten gebaseerd op klassieke familierecepten. De wortels van A Tavola liggen in Palomonte, een klein dorpje in de provincie Salerno, een vruchtbaar gebied doordat het op vulkanische grond ligt. Ze koken hier op gevoel, volgens de koks hier is dat de basis voor puur, traditioneel Italiaans eten. Ambacht en kwaliteit staan voorop en dat proef je. Verse producten, met aandacht bereid.

Low-Res-voor-internet-Eik-en-Linden-2021-Livestream-Copyright-Janus-van-den-Eijnden-2-768×512
11
Adres
Plantage Middenlaan 22A,
1018 DE Amsterdam

Café Eik en Linde

Café Eik en Linde is een echte Amsterdamse bruine kroeg met een lange geschiedenis. Tegenwoordig komt hier een gemêleerd publiek samen dat reikt van stamgasten en biljarters tot studenten en toeristen. Het zorgt voor een aangename sfeer waardoor het café een begrip is geworden, ook buiten Amsterdam. Het café is onder meer bekend om de radio-uitzendingen die in de bovenzaal werden opgenomen, met als beroemdste uitzending ‘Een dik uur met Ischa’ van Ischa Meijer. Het is kortom een plek waar politiek, literatuur en kunst samenkomen met een biertje.

Schermafbeelding 2023-09-27 om 15.50.33
12
Adres
Korte Koningsstraat 13 H,
1011 EX Amsterdam

Black Gold Amsterdam

Black Gold Amsterdam ligt midden in de stad en is een onafhankelijke vinyl- en speciaalkoffiewinkel. Er hangt een relaxed sfeertje waar je kunt neuzen tussen de lp-planten, maar waar ook goede koffie wordt geserveerd. De koffiebonen zijn afkomstig van White Label Coffee.

de+Plantage-Buiten+Herfst-129+copy
13
Adres
Plantage Kerklaan 36,
1018 CZ Amsterdam

De Plantage

Bij De Plantage kom je voor de klassieke, statige Amsterdamse grandeur. Bij de bijzondere plek naast/in Artis kan je terecht voor alles en meer: een prima kop koffie met een ontbijtje, een snelle of langzame lunch of een uitgebreid diner. De plek voelt groot aan bij binnenkomst, maar de inrichting is intiem. Laat je verrassen door de Plats de Plantage van de chefs, of kies uit de vele à la carte opties. Laat zeker de Hemelse Modder als dessert niet aan je voorbij gaan.

blog-1
14
Adres
Plantage Middenlaan 30A,
1018 DG Amsterdam

Box Sociaal

Box Sociaal is in de eerste plaats een ontbijt- en brunchrestaurant, maar biedt ook diner- en drankopties aan. Het menu is geïnspireerd op Australië. De gerechten worden bereid met duurzame en lokale producten. Voor vegetariërs en veganisten is er goed nieuws: alle vleesburgers kunnen worden vervangen door de 'Beyond Meat Burger'. Geniet van een kwalitatieve brunch, lokaal gebrande koffie, zorgvuldig geselecteerde natuurwijnen, op maat gemaakte cocktails en heerlijke speciaalbieren.

Hapjeshoek
15
Adres
Waterlooplein 6,
1011 MS Amsterdam

De Hapjeshoek

De Hapjeshoek is een bruisend Surinaams eethuis. Het is gevestigd in het historische metrostation Waterlooplein en verwelkomt gasten al sinds 1995. Het is opgericht door drie broers en het is uitgegroeid tot een levendige locatie vol heerlijk eten en vriendelijk personeel. Geniet van een gevarieerd menu met verse Surinaamse broodjes, hapjes en maaltijden voor lunch en diner. Allemaal samengesteld om kwaliteit te bieden tegen betaalbare prijzen.

16
Adres
Koningsstraat 29,
1011 ET Amsterdam

Restaurant Kyō

Kyō is opgericht vanuit de behoefte aan meer Japanse Izakaya-stijl restaurants. Een plek waar je kunt ontspannen met vrienden in een informele sfeer, terwijl je geniet van authentiek Japans eten met een ruime keuze aan sake of Japans bier.

downloadgram.org_559858310_17895309681315568_8989814781705937724_n
17
Adres
Amstel 47,
1011 PW Amsterdam

Alpha Deli

Alpha Deli wordt gerund door Marius, een Griekse ondernemer die met zijn zaak een stukje Athene naar Amsterdam brengt. Hij staat zelf op de vloer, begroet zijn gasten persoonlijk en serveert traditionele Griekse koffie en snacks zoals spanakopita en hartige filodeeggebakjes. De ingrediënten komen grotendeels uit Griekenland, waardoor de smaken dicht bij huis blijven. Overdag is het een fijne plek voor koffie en iets zoets, later op de dag schuif je net zo makkelijk aan voor salades en warme hapjes.

Cafe_fonteyn_terras31
Cafe_fonteyn_interieur4
18
Adres
Nieuwmarkt 13- 15,
1011 JR Amsterdam

Café Fonteyn

Fonteyn staat bekend als een gezellig, huiselijk en warm bruincafé met goed personeel. Gelegen op de Nieuwmarkt is Fonteyn al lang een begrip in de Nieuwmarktbuurt. Ze serveren veel verschillende soorten bier en een lekkere daghap. Ze hebben een groot verwarmd terras waar je dus alle seizoenen op kan zitten en lekker mensen kan kijken die over de Nieuwmarkt struinen.

Kunst & cultuur
19
Adres
Plantage Middenlaan 2a,
1018 DD Amsterdam

Hortus Botanicus

De Hortus Botanicus Amsterdam is een van de oudste botanische tuinen ter wereld. Ook de Oranjerie, het bijbehorende grand café, is een eeuwenoud monument waar je – zelfs midden in de winter – heerlijk tot rust komt. Ze hebben een uitgebreide lunchkaart, en je eet terwijl je middenin de prachtige tropische tuinen zit. In de zomer is het terras natuurlijk ook open. Het is een van de best bewaarde geheimpjes van Amsterdam, zeker de moeite waard om heen te gaan en de rust van het groen zelf te ervaren.

10411762_809398709124978_6571844653319791164_n
20
Adres
Oudeschans 67,
1011 KW Amsterdam

Van Zoetendaal Photography

Van Zoetendaal Photography is voornamelijk actief in de internationale hedendaagse fotografie, met het samenstellen van tentoonstellingen in musea, als galerie, en ook met het uitgeven van verschillende fotoboeken. In 2014 veranderde Van Zoetendaal zijn galerieruimte grotendeels om in een studio om zijn eigen kunstprojecten, kunstboeken en installaties te ontwikkelen. Hoewel de galerie doorgaans alleen op afspraak geopend is, speelt zij een belangrijke rol in de jaarlijkse Unseen Photo Fair.

Evabloem_Hermitage-020.jpg.1200x630_q85
21
Adres
Amstel 51,
1018 EJ Amsterdam

H'ART Museum

'Het voormalige Hermitage museum gaat nauw samenwerken met British Museum, Centre Pompidou en Smithsonian American Art Museum. H’ART Museum opent vensters op de wereld en toont de verbindende kracht van kunst.' Door de verbintenis met deze internationale topmusea komen wereldberoemde kunstcollecties naar Amsterdam. Centre Pompidou heeft een van de belangrijkste collecties moderne en hedendaagse kunst in Europa. Het British Museum kent als een van de oudste musea ter wereld een collectie die continenten en oceanen omspant. Smithsonian American Art Museum (SAAM) heeft naam en faam als een van de bekendste musea van het Smithsonian Institution.

 

BC_02028_052
22
Adres
Amstel 51,
1018 EJ Amsterdam

Amsterdam Museum

In het voormalige Burgerweeshuis van Amsterdam bevindt zich sinds 1975 het Amsterdam Museum. In 1926 opende het museum in de Waag en sindsdien fungeert het museum als ware schatkamer van de stad. De historische collectie vertelt aan de hand van duizenden kunstwerken en voorwerpen het indrukwekkende verhaal van de stad, reikend van de vroege Middeleeuwen tot het heden. Naast de vaste collectie die het historische verhaal van Amsterdam laat zien, vertellen de wisselende tentoonstellingen de verhalen van het hedendaagse Amsterdam.

© Twycer / www.twycer.nl
23
Adres
Kattenburgerplein 1,
1018 KK Amsterdam

Scheepvaartmuseum

Ontdek de scheepvaart en de maritieme geschiedenis van Nederland in het scheepvaartmuseum. Het museum ligt in het water aan het oosterdok, vroeger werd dit gebouw gebruikt als pakhuis voor de opslag van scheepsuitrusting en kanonnen toen Amsterdam nog de grootste haven ter wereld was. De collectie bevat schilderijen, scheepsmodellen, kaarten en wapens. Het is het op een na grootste maritieme museum ter wereld. In het water voor het museum ligt een replica van het VOC-schip ‘Amsterdam’. In de tongewelven onder de binnenplaats werden vroeger duizenden liters water opgeslagen om de scheepsliederen te voorzien van water onderweg.

Boodschappen
241491943_1718774814985933_3325818017112894796_n
269905089_1802052389991508_8614231142031174020_n
24
Adres
Plantage Kerklaan 41,
1018 CV Amsterdam

De Deli

Een eigentijdse deli in de luwte van de Plantage, waar buurtgevoel en kwaliteit samenkomen. De Deli combineert koffiebar, lunchplek en delicatessenwinkel in één ontspannen setting. Op het menu staan seizoensgebonden gerechten, versgebakken brood en huisgemaakte specials. De focus ligt op lokale producten en eenvoud, zonder in te leveren op smaak of detail.

67482526_3181760118517216_8278390957271941120_n
Schermafbeelding 2022-03-28 om 16.52.53
25
Adres
Waterlooplein 2,
1011 NZ Amsterdam

Waterloopleinmarkt

Achter de Stopera vind je volgens velen de beste vlooienmarkt van Amsterdam. Onder andere hebben ze hier prachtige platen, foto’s maar ook stapels prachtige vintage kleren. Menig hippe Amsterdammer scoort hier zijn Levi’s 501. Maar ook mooie accessoires, sieraden en onderdelen voor je fiets kan je hier kopen. Elke werk- en zaterdag geopend.

Contempory living

Contempory living

Een ranke woontoren van hout – revolutionair in constructie, radicaal in intentie.

Een ranke woontoren van hout – revolutionair in constructie, radicaal in intentie.

Interview. Ontmoet de ondernemer, in deze serie Tanja Deurloo, geurexpert en parfumdesigner over geur in huis. “Je kunt geur als vierde dimensie zien in een ruimte.”

Interview. Ontmoet de ondernemer, in deze serie Tanja Deurloo, geurexpert en parfumdesigner over geur in huis. “Je kunt geur als vierde dimensie zien in een ruimte.”

Onlangs bekeken
Bekijk het overzicht

Deze site maakt gebruik van cookies.

Voor welke cookies geef je akkoord?