Het appartement aan de Kerkstraat 88 I is gelegen op eigen grond in het chique centrum van Amsterdam. In 2010 is het gehele pand grondig gerenoveerd, waarbij onder andere de fundering is hersteld. Deze sfeervolle woning biedt een ruime woonkamer in het voorhuis. De eigentijdse woonkeuken met veel werkruimte, en de twee ruime slaapkamers (beide met een eigen badkamer en suite), bevinden zich in het achterhuis. De slaapkamer op de bovenste verdieping heeft een indrukwekkende plafondhoogte van ruim 4 meter. Het zonnige terras van 19 m² grenst aan de woonkeuken en is perfect om buiten te genieten. Deze woning combineert stijlvol wonen met een heerlijke binnen-buitenbeleving in het centrum van Amsterdam.

Rondleiding
De ruime woonkamer, gelegen op de eerste verdieping in het voorhuis, is voorzien van een warme houten vloer en inbouwkasten. De speelse doorkijk leidt naar de sfeervolle woonkeuken in het achterhuis. Deze eigentijdse keuken biedt veel werkruimte en is ideaal voor een kok. Openslaande deuren verbinden de keuken met een terras voor een naadloze binnen-buitenervaring. In de hal bevinden zich een gastentoilet, meterkast en wasruimte. 
De woning beschikt over twee ruime slaapkamers, elk gelegen op een eigen verdieping en voorzien van een badkamer en suite. De eerste slaapkamer, op de tweede verdieping, heeft een badkamer met ligbad, dubbele wastafel en inloopdouche. De tweede slaapkamer, op de bovenste verdieping, heeft een indrukwekkende plafondhoogte van ruim 4 meter en een eigen badkamer met inloopdouche, toilet en wastafel. In de vaste kast is de cv-ketel ondergebracht, en de vide biedt extra opbergruimte.
Het zonnige terras van circa 19 m² op het zuidoosten is direct toegankelijk vanuit de woonkeuken en biedt een rustige plek om van de buitenlucht te genieten, weg van de drukte van de stad.

Wat de bewoners gaan missen 
"De woonkeuken is altijd onze lievelingsplek geweest, een sfeervolle plek voor diners."

Buurtgids 
De woning is gelegen in één van de meest charmante en historische buurt van Amsterdam. Deze buurt staat bekend om zijn pittoreske grachten, prachtige architectuur en levendige sfeer. Het is een plek waar geschiedenis, cultuur en hedendaagse trends naadloos samenkomen. Het is omgeven door elegante herenhuizen, sierlijke bruggen en weelderige bomen die een idyllisch decor vormen. De buurt rond de woning is ook de thuisbasis van vele iconische bezienswaardigheden. Het Rijks-, Stedelijk en Van Gogh Museum zijn op loopafstand gelegen. Ook dichtbij zijn de Stadsschouwburg, het Concertgebouw, Tuschinski en Paradiso. De omgeving biedt ook een scala aan trendy boetieks, gezellige cafés, restaurants en galeries. Wandelen door de buurt is een ervaring op zich, omdat je wordt omringd door een mix van lokale bewoners, kunstenaars, toeristen en de altijd bruisende sfeer van Amsterdam. 

Bijzonderheden
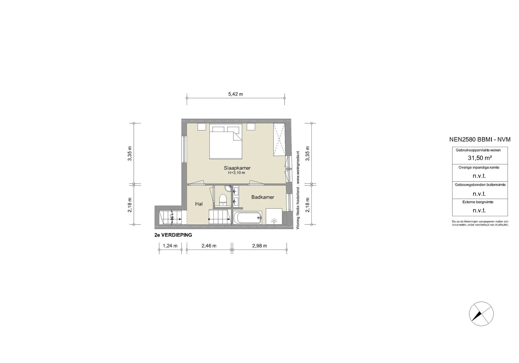
•    Gebruiksoppervlakte wonen circa 136 m²
•    Gelegen op eigen grond
•    Energielabel C
•    Servicekosten VvE € 200,00 per maand
•    Gerenoveerd in 2010, inclusief funderingsherstel
•    Rijksbeschermd stadsgezicht
•    Onderdeel UNESCO Werelderfgoed
 

AM105578-1897313-Kerkstraat-88-1,-Amsterdam-195878737

City Church
Wonen in het chique centrum is een voorrecht. Zelf heb ik enkele jaren op de Lange Leidsedwarsstraat gewoond en heb ik dit deel van de stad mogen ervaren. De dynamiek van het centrum is iets waar ik enorm van heb kunnen genieten; het is de reden waarom je in de stad wilt wonen.
De woning aan de Kerkstraat 88 I is in meerdere opzichten verrassend. Het speelse karakter, de indeling en de stilte in het achterhuis zullen potentiële kopers in positieve zin verrassen. Dit overkwam mij namelijk ook.
Mocht je verdere interesse hebben, dan nodig ik je graag uit om eens langs te komen. Uiteraard vertel ik je dan nog meer over het appartement. Wellicht tot snel!


Otte van Apeldoorn | Makelaar Broersma Wonen
Glenn van der Zanden | Makelaar Broersma Wonen
AM105578-1897313-Kerkstraat-88-1,-Amsterdam-195878671
Architectuur

Architectuur
Het pand aan de Kerkstraat 88 is gebouwd als één bouweenheid rond 1782 in een atypische (neorenaissance) bouwstijl voor de buurt. Kenmerkend voor het pand en de stijl zijn het gebruik van een in baksteen opgemetselde gevel in combinatie met diverse natuurstenen details en rijk gedetailleerde gevelankers. De gevel heeft verder kenmerken van symmetrie en detaillering die typerend zijn voor de neorenaissance stijl, zoals de boogvormige ramen en de decoratieve elementen boven de raamvensters. De gevel van dit pand is een lijstgevel. Dit type gevel kenmerkt zich door een rechte, vaak eenvoudige bovenzijde (de lijst) die de gevel afsluit. In dit geval zie je bovenaan de gevel een duidelijke kroonlijst die de gevel afdekt. De lijstgevel was een veelvoorkomend geveltype in stedelijke architectuur in Nederland, vooral bij herenhuizen en woonhuizen.
In de loop der jaren is de voorgevel aan het pand meerdere keren aangepast passend bij de functionaliteit van bijvoorbeeld een werkplaats of winkel.
In 2010 heeft er een grootschalige renovatie plaatsgevonden, waarbij het casco en de buitenschil grondig zijn aangepakt. Daarbij is tevens de fundering hersteld. De gehele verbouwing is onder begeleiding van architect André van Stigt uitgevoerd. Van Stigt heeft voornamelijk renovatieprojecten op zijn naam staan, waaronder een groot aantal scholen in Amsterdam, het Conservatorium hotel, Apollohallen en het Filmmuseum.

AM105578-1897313-Kerkstraat-88-1,-Amsterdam-195878669
AM105578-1897313-Kerkstraat-88-1,-Amsterdam-195878687
AM105578-1897313-Kerkstraat-88-1,-Amsterdam-195878681
AM105578-1897313-Kerkstraat-88-1,-Amsterdam-195878739
Wonen en koken

Wonen en koken
De living is gelegen op de eerste verdieping en via de hal te bereiken. De ruime woonkamer bevindt zich in het voorhuis, grenzend aan de Kerkstraat, en is voorzien van een warme houten vloer en een mooie inbouwkastenwand. De doorkijk naar het achterhuis geeft een speels effect. In het achterhuis bevindt zich de sfeervolle en ruim opgezette woonkeuken. Deze nagenoeg vierkante ruimte nodigt uit tot een gezellig diner met vrienden en/of familie. De keuken is eigentijds en functioneel ingedeeld, ideaal voor een echte kok. Er is voldoende werkruimte om een heerlijke maaltijd te bereiden, of om aan de bar te genieten van een snel ontbijtje of een gezellige borrel. De openslaande deuren naar het terras zorgen voor een vrije doorloop naar buiten, wat zorgt voor een optimale binnen-buiten beleving.
In de hal bevinden zich verder een gastentoilet, meterkast en wasruimte.

AM105578-1897313-Kerkstraat-88-1,-Amsterdam-195878717
AM105578-1897313-Kerkstraat-88-1,-Amsterdam-195878721
AM105578-1897313-Kerkstraat-88-1,-Amsterdam-195878741
AM105578-1897313-Kerkstraat-88-1,-Amsterdam-195878759
AM105578-1897313-Kerkstraat-88-1,-Amsterdam-195878751
AM105578-1897313-Kerkstraat-88-1,-Amsterdam-195878753
Slapen en baden

Slapen en baden
De woning beschikt over twee volwaardige slaapkamers, beide gelegen in het achterhuis. De slaapkamers bevinden zich elk op een eigen verdieping en bieden voldoende ruimte voor een kingsize bed en een kastenwand. De eerste slaapkamer is gesitueerd op de tweede verdieping en beschikt over een riante badkamer en suite. De badkamer is voorzien van onder andere een ligbad, dubbel wastafelmeubel en een inloopdouche. Tevens is er in de hal een separaat toilet te vinden.
Op de derde, tevens bovenste, verdieping bevindt zich de tweede slaapkamer. Deze kamer heeft, mede door de hoogte van ruim vier meter, een uniek karakter. Ook deze slaapkamer beschikt over een eigen badkamer en suite, welke is voorzien van onder andere een inloopdouche, toilet en wastafel. In de vaste kast is de cv-ketel te vinden en de vide biedt extra bergruimte.

AM105578-1897313-Kerkstraat-88-1,-Amsterdam-195878763
AM105578-1897313-Kerkstraat-88-1,-Amsterdam-195878765
AM105578-1897313-Kerkstraat-88-1,-Amsterdam-195878771
AM105578-1897313-Kerkstraat-88-1,-Amsterdam-195878769
AM105578-1897313-Kerkstraat-88-1,-Amsterdam-195878713
AM105578-1897313-Kerkstraat-88-1,-Amsterdam-195878715
Het terras en de patio

Het terras en de patio
Een ultieme buitenbeleving vanuit de woonkeuken dankzij openslaande deuren naar het terras. Lekker buiten in de zon zitten? Dat kan hier perfect. Het terras is gelegen op het zonnige zuidoosten, een heerlijke plek om te genieten van de rust en even de dynamiek van de stad te vergeten. Met een oppervlakte van circa 19 m² is het terras ruim en rustig gelegen aan de achterzijde van de woning.

AM105578-1897313-Kerkstraat-88-1,-Amsterdam-195878725
AM105578-1897313-Kerkstraat-88-1,-Amsterdam-195878729
AM105085-1847480-Kerkstraat-38,-Amsterdam-169771939
AM104788-1811262-Frederiksplein-12,-Amsterdam-158419019
AM105578-1897313-Kerkstraat-88-1,-Amsterdam-195878675
Bereikbaarheid

Buurtgids
De woning is gelegen in één van de meest charmante en historische buurt van Amsterdam. Deze buurt staat bekend om zijn pittoreske grachten, prachtige architectuur en levendige sfeer. Het is een plek waar geschiedenis, cultuur en hedendaagse trends naadloos samenkomen. Het is omgeven door elegante herenhuizen, sierlijke bruggen en weelderige bomen die een idyllisch decor vormen. De buurt rond de woning is ook de thuisbasis van vele iconische bezienswaardigheden. Het Rijks-, Stedelijk en Van Gogh Museum zijn op loopafstand gelegen. Ook dichtbij zijn de Stadsschouwburg, het Concertgebouw, Tuschinski en Paradiso.
De omgeving biedt ook een scala aan trendy boetieks, gezellige cafés, restaurants en galeries. Wandelen door de buurt is een ervaring op zich, omdat je wordt omringd door een mix van lokale bewoners, kunstenaars, toeristen en de altijd bruisende sfeer van Amsterdam.

Bereikbaarheid 
Het appartement is zowel met de fiets, auto als openbaar vervoer zeer goed bereikbaar. De Ring A10 is al binnen 5 autominuten te bereiken via afslag S108 (Oud-Zuid). Vanaf zowel de Prinsengracht als het Leidseplein vertrekken meerdere tram- en buslijnen, zoals tram 1, 2, 5, 7, 12 en 19 naar onder andere Centraal Station en Nieuw Sloten, Amstelveen, Osdorp en Sloterdijk. Vanaf Leidseplein vertrekt eveneens het streekvervoer met onder andere een directe verbinding naar Luchthaven Schiphol. Met de fiets is Centraal Station binnen 5-10 minuten aan te rijden.
Amsterdam staat bekend als een fietsvriendelijke stad, en er zijn tal van fietspaden en fietsenstallingen in de omgeving. Met de fiets kun je gemakkelijk door de grachten navigeren en genieten van de prachtige omgeving.

Parkeergelegenheid
Parkeren is mogelijk via een vergunningenstelsel op de openbare weg (vergunningsgebied Centrum-2f). Met een parkeervergunning voor Centrum-2f mag u parkeren in Centrum-2. Een parkeervergunning voor bewoners kost 315,60 per 6 maanden.
Momenteel is er voor dit vergunningsgebied een wachttijd van 10 maanden. Een tweede parkeervergunning is in dit gebied niet mogelijk.
Naast de openbare weg is het ook mogelijk om met een parkeervergunning kosteloos te parkeren in garage Vijzelgracht. (Bron: Gemeente Amsterdam, september 2024).

AM105374-1870426-Kerkstraat-134D,-Amsterdam-181742083
"De woonkeuken is altijd onze lievelingsplek geweest, een sfeervolle plek voor diners."

Wat de eigenaren gaan missen
Kerkstraat, gerestaureerd door meesterarchitect André Van Stigt van het gerenommeerde architectenbureau Van Stigt, is met veel respect voor het originele pand gerenoveerd. De woonkeuken is altijd onze lievelingsplek geweest, een sfeervolle plek voor diners. De woonkamer, met zijn hogere plafond, biedt veel meer ruimtelijkheid.
De keuken en woonkamer zijn beiden onze favoriete plekken in het huis. Vanuit de patio kun je naar een ander deel van de kamer kijken, wat een gevoel van verbondenheid geeft.
Kerkstraat is een unieke straat met eenrichtingsverkeer, midden in het centrum en toch een oase van rust. De lijstenmaker beneden is een perfecte buur, en met de beste koffie van Bocca vonden wij de buurt altijd geweldig.
Aanraders in de buurt zijn Bocca voor koffie, Red voor surf en turf, Soep Enzo voor een gezonde lunch, en Stach voor snacks.
Als we afscheid nemen, zullen we de herinnering aan Kerkstraat als een heerlijk groot huis, waar je toch in elke kamer heel knus voelt, koesteren.

AM105578-1897313-Kerkstraat-88-1,-Amsterdam-195878689
AM105578-1897313-Kerkstraat-88-1,-Amsterdam-195878735
Kenmerken
Kerkstraat 88-1, Amsterdam
Vraagprijs
  • € 1.100.000 k.k.
Beschikbaarheid
  • In overleg
Vertrekken
  • 3 kamers
  • 2 slaapkamers
  • 2 badkamers
Onderhoud
  • Intern: Goed
  • Extern: Goed
Oppervlakten & Inhoud
  • Woonoppervlakte: 136 m²
  • Gebouwgebonden buitenruimte: 19 m²
Bouwjaar
  • 1782
Installaties
  • Dakraam
  • Mechanische ventilatie
  • Natuurlijke ventilatie
  • Rookkanaal
  • TV kabel
Ligging
  • In centrum
Parkeren
  • Betaald parkeren
  • Parkeervergunningen
Type verwarming
  • CV Ketel
Type warmwater
  • CV Ketel
Bestemming
  • Woonruimte
Eigendomssoort
  • Volle eigendom
Buitenruimte
  • Geen tuin
  • Dakterras
Kadastraal
  • Gemeente: Amsterdam
  • Sectie: I
  • Nummer: 12141
Duurzaamheid
  • Dakisolatie
  • Dubbel glas
  • Muurisolatie
  • Energielabel C
Soort
  • Appartement
  • Bovenwoning
Welke woonlaag
  • 2e
Bijzonderheden
  • Beschermd stads of dorpsgezicht
  • Erfgoed
  • Gedeeltelijk gestoffeerd
Overige kenmerken

OZB ('24) € 474,94 per jaar
Rioolrecht ('24) € 166,85 per jaar
Servicekosten VvE € 200,-- per maand

Plattegrond
Kerkstraat 88-1, Amsterdam
AM105578-1897313-Kerkstraat-88-1,-Amsterdam-194745987
AM105578-1897313-Kerkstraat-88-1,-Amsterdam-194745999
AM105578-1897313-Kerkstraat-88-1,-Amsterdam-194747655
AM105578-1897313-Kerkstraat-88-1,-Amsterdam-194746011
Documenten
Kerkstraat 88-1, Amsterdam
Locatie
Kerkstraat 88-1, Amsterdam
Eten & drinken
Schermafbeelding 2022-05-18 om 18.34.11
01
Adres
Kerkstraat 96H,
1017 GP Amsterdam

Bocca

Als je goede koffie zegt, kan je inmiddels een boel plekken in Amsterdam opnoemen maar, Bocca is weer even net nog een slagje beter. Hun werkruimte is groot zodat de barista’s genoeg ruimte hebben de beste koffie te zetten. De moeite waard om naar binnen te gaan, al is het maar om te zien hoe deze geschoolde barista’s alles eraan doen om jouw perfecte cappuccino met vakmanschap klaar te maken.

325547281_571799494854962_4627029980323073806_n
02
Adres
Kerkstraat 59,
1017 GC Amsterdam

Yuzu Dining Bar

Bij Yuzu Dining Bar serveren ze geen sushi, maar wel een verscheidenheid aan kleine Japanse gerechten, waaronder edamame en verschillende yakitorispiesjes. Het restaurant laat je kennis maken met de Japanse gewoonten, zoals het opbergen van je jas in een mandje onder je stoel en het eten zonder bestek. De sfeer is informeel en gezellig, en het personeel is vriendelijk en attent. Je kan er ook terecht voor een cocktail tot in de late uurtjes.

03
Adres
Lange Leidsedwarsstraat 37-41,
1017 NG Amsterdam

The Madras Diaries

The Madras Diaries is geopend in 2020 en biedt een Zuid-Indiase keuken aan. In deze keuken wordt over het algemeen pittiger gekruid dan wij gewend zijn. Er wordt veel gebruik gemaakt van chili’s, zwarte peper, kruidnagel en kardemom. Dat maakt het behalve extreem rijk van smaak, soms ook wat minder toegankelijk. Gelukkig bieden ze een zelfgemaakte limonade kaart aan om af te koelen. Naast de bekende mango lassi hebben ze seizoensdrankjes en nog veel meer. Goed nieuws voor de vegetariërs en veganisten, binnen deze keuken wordt dat niet gezien als een uitzondering. Genoeg keuze dus!

04
Adres
Korte Leidsedwarsstraat 139-141,
1017 PZ Amsterdam

Taste of Culture

Tate of Culture schijnt de plek te zijn waar chefs midden in de nacht naartoe gaan als ze zin hebben in Chinees eten. En ik geef ze geen ongelijk. De menukaart is enorm uitgebreid, je kan kiezen tussen authentieke Chinese gerechten of dimsum. Een gerecht wat je zeker niet mag missen is de eend. Je kan het half of heel bestellen, met rijst en verschillende sauzen of getrancheerd en geserveerd met flensjes.

tokyo_ramen_iki_ramen_restaurant_amsterdam_header
05
Adres
Kerkstraat 148A,
1017 GR Amsterdam

Tokyo Ramen Takeichi

Deze Japanse ramen keten heeft inmiddels al meerdere vestigingen over de hele wereld. In Amsterdam zijn inmiddels al drie vestigingen. Tokyo Ramen Takeichi is bekend om zijn gezonde ramen met kip en groentebouillon. Doordat ze trouw blijven aan de Japanse roots is het een authentieke restaurant. Naast hun specialiteit zijn de side dishes ook heerlijk. De 'karaage' zal je niet teleurstellen.

Carmen-Guest-House-Amsterdam-Store-Patter-PlacesIMG_0520
06
Adres
Keizersgracht 600,
1017 EP Amsterdam

Carmen

Winkel, restaurant en guesthouse. Eigenaren Carmen Atiyah de Baets en Joris ter Meulen Swijtink openden na enkele jaren gewerkt en gewoond te hebben in Londen deze geweldige hotspot op de Keizersgracht. Carmen selecteerde een fijne mix van mode, interieur, accessoires van bijzondere ontwerpers. Joris bestiert de keuken waar regelmatig buitenlandse bevriende chefs gehost worden.

07
Adres
Prinsengracht 568,
1017 KR Amsterdam

Heuvel

Buurtbewoners en galeriehouders uit het Spiegelkwartier komen hier regelmaat op bezoek. Bij Café Heuvel is het bijna elke dag dag rond 17:00 al volop borreluur. 'Als ik sneuvel, dan bij Heuvel!' Het kleine hoekcafé met fijn terras is een van de oudste cafés van de stad.

08
Adres
Lijnbaansgracht 267 HS,
1017 RL Amsterdam

Shiraz

Shiraz is niet voor niets als winnaar uit de wijnbar van het jaar wedstrijd gekomen. In het hartje van Amsterdam ligt deze geliefde wijnbar, waar je nieuwe wijnen kan ontdekken of terug kan vallen op je favoriete wijn. Als je het lastig vindt om te kiezen tussen de in totaal 150 wijnen, staat het personeel altijd paraat om je van vakkundig advies te voorzien of om iets te laten proeven. In deze tuin van wijnen kan je genieten van een heerlijk glas wijn met een bijbehorend hapje.

313291039_676821367342686_470247651338795489_n
09
Adres
Nieuwe Spiegelstraat 3A,
1017 DB Amsterdam

Zero Zero

Zero Zero is een bakkerij en delicatessenwinkel gelegen in Amsterdam en eigendom van dezelfde eigenaren als Ceppi's. Naast het maken van pizza is Greco gespecialiseerd in het maken van zuurdesembrood. De naam Zero Zero komt van bloem als de basis van wat ze verkopen. De Toscaanse zuurdesembroden (schiacciata) zijn belegd met ingrediënten zoals gegrilde aubergine, gemarineerde courgette met munt, balsamico en zongedroogde tomaten (€9), of mortadella, stracciatella en pistache (€10). Zero Zero verkoopt verkoopt naast de broodjes een breed scala aan Italiaanse delicatessen, waaronder wijn, zakken pasta en olijfolie. Verse ingrediënten voor broodjes zijn ook te koop. Hoewel de meeste klanten komen voor een broodje om mee te nemen, zijn ze ook welkom om te blijven en te genieten van een kopje koffie. Volgens Greco zijn alle delicatessen verkrijgbaar bij Zero Zero uit afkomstig uit Italië.

S__3538969
278628659_710596233460905_6303603926454891176_n
10
Adres
Leidseplein 10,
1017 PT Amsterdam

Sushi HANABI

Hanabi, wat 'vuurwerk' betekent, is een uniek Japans restaurant met twee verdiepingen. Beneden kun je genieten van donburi en yakitori, terwijl je boven kan genieten van een klassieke Edomae-sushi ervaring. Het omakase-menu stelt de chef in staat om gerechten naar eigen inzicht te serveren, rechtstreeks aan de gasten. Deze sushi is al op smaak gebracht met sojasaus en wasabi en kan zelfs met de hand worden gegeten. Bij Hanabi heb je de flexibiliteit om je reserveringstijd te kiezen en uit drie prijscategorieën te kiezen. De duurdere menu's bevatten luxere ingrediënten zoals blauwvintonijn, sneeuwkrab, kaviaar en Japanse coquille. Het diner begint met verfijnde amuses, gevolgd door heerlijke gerechten zoals sake-gemarineerde coquille met kaviaar en zoete sneeuwkrab met yuzu.

foto6
Buffet-van-Odette-148
11
Adres
Prinsengracht 598,
1017 KS Amsterdam

Buffet van Odette

Odette Rigterink begon Buffet van Odette in 1994. Ze laadde pannen vol met zelfgemaakt eten in een krat voorop de fiets en serveerde een dagmenu aan jong en oud Amsterdam bij de crèche Enfant Terrible. Vanaf 2011 is het restaurant gevestigd op Prinsengracht 598, op de hoek van Weteringstraat. Ze serveren hun vaste klassiekers en koken ook met het seizoen mee en hebben een uitgebreide (natuur)wijnkaart. Van maandag tot en met vrijdag serveren ze zowel lunch als diner.

 

downloadgram.org_564220181_122106806385035737_2639409528052682900_n
downloadgram.org_591949292_122113731201035737_4138354092764306839_n
12
Adres
Reguliersdwarsstraat 28,
1017 BM Amsterdam

Blik

Blik is opgezet door Tijn Verstappen en driesterrenchef Jacob Jan Boerma, samen met gastheer Manuel Broekman en ondernemer Tim Ouborg, als een bistro bar waar eenvoud en kwaliteit samenkomen. De kaart draait om herkenbare klassiekers met een creatieve twist, waarbij Boerma’s ervaring in topkeukens voelbaar is zonder dat het stijf of formeel wordt. Naast de gezellige binnenruimte beschikt Blik ook over een tuinterras achter het pand, een fijne plek om bij goed weer te genieten van je gerecht en glas in de buitenlucht.

13
Adres
Prinsengracht 424,
1016 JC Amsterdam

Café de Pieper

Café de Pieper is familiebedrijf met veel stamgasten. Het is een klassiek, maar gezellig café met houten lambrisering, waar je bier, cider en worst kunt krijgen.

14
Adres
Prinsengracht 422,
1016 JC Amsterdam

Sinck

Teamleider Timo van der Stad is samen met Chef-kok Sander Bierenbroodspot en sommelier Sabas Joosten (eerder de Librije), restaurant en wijnbar Sicnk gestart. Bij Sinck gaan ze voor kwaliteit én voor een lage drempel. Chefkok Sander zorgt voor goede bereidingen van mooie producten met extra focus op sauzen. Het restaurant bevindt zich boven en beneden kom je terecht in de sfeervolle wijnbar. De wijnkaart is uitgebreid met een focus op Franse wijnen.

Frens-Haringhandel_FMWS_20160418_0039_-e1592935539840
traditional-herring-frens-haringhandel-710×375
15
Adres
1017 AW Amsterdam

Frens Haringhandel

Frens Haringhandel is nog een van de weinige viskramen in Amsterdam waar je heerlijke verse haring en andere vis kan bestellen op de traditioneel Hollandse manier. Al sinds 1972 is de familie Frens actief in de haringindustrie, inmiddels wordt de kraam gerund door vrouw, zoon en vriend van Frens. De kraam staat op een vaste plek op Koningsplein en is iedere dag geopend voor een verse hap vis met zuurtjes en ui.

Kunst & cultuur
Schermafbeelding 2023-09-26 om 13.10.24
16
Adres
Kerkstraat 105-A,
1017 GD Amsterdam

Siewe Gallery

Slewe Gallery is in 1944 opgericht door Martita Slewe. De galerie is gespecialiseerd in hedendaagse kunst. Het internationaal georiënteerde programma legt vanaf het begin de nadruk op actuele ontwikkelingen in de abstracte kunst, met name in de schilderkunst. De galerie vertegenwoordigt zowel gevestigde als opkomende kunstenaars uit diverse generaties en landen.

art_386_roger-katwijk_troublesome-fancies_roos-holleman_web-res_jdewaart_14-5-22_5
17
Adres
Prinsengracht 737,
1017 KK Amsterdam

Roger Katwijk Galerie

Aan de Prinsengracht 737 kun je de prachtige Roger Katwijk galerie vinden. Een lichte plek voor hedendaagse kunst, abstracte kunst en geabstraheerde figuratie van zowel Nederlandse als internationale kunstenaars. Het gehele jaar door kun je hier wisselende exposities ontdekken op het gebied van de schilder- en beeldhouwkunst.

2006b22272a073075554111102a2a516e7e_resized
18
Adres
Prinsengracht 510 O,
1017 KH Amsterdam

Mia Karlova Galerie

Mia Karlova Galerie, gelegen aan de Prinsengracht, streeft ernaar een dialoog tot stand te brengen tussen werken van verschillende genres door middel van een gemeenschappelijke emotionele taal. Mia Karlova Galerie zet functionele beeldhouwkunst in de schijnwerpers met een intrigerend programma van internationale hedendaagse kunstenaars en productontwerpers. Deze kunstvorm, die originaliteit uitstraalt in ontwerp of materiaal, biedt een uitzonderlijk plezier tijdens de interactie.

270053381_5179749475386566_1324756550501219040_n
19
Adres
Prinsengracht 452,
1017 KE Amsterdam

De Uitkijk

Amsterdam heeft door de jaren heen vele bioscopen komen en gaan, maar Filmtheater De Uitkijk bestaat nog steeds! Het pand aan de Prinsengracht 452 heeft een bewogen verleden en begon in 1912 als City Bioscoop, toen het werd omgebouwd van een 17e-eeuws pakhuis. In 1929 nam de Filmliga de bioscoop over en veranderde de naam in het Filmtheater De Uitkijk. Dit was het allereerste avant-garde filmtheater van Nederland. Sinds 2007 is De Uitkijk een zusterproject van de organisatie Kriterion en wordt het geleid door een groep van dertien studenten.

contact-1-scaled
20
Adres
Kleine-Gartmanplantsoen 10,
1017 RR Amsterdam

De Balie

In De Balie worden onafhankelijke programma’s over kunst, cultuur en politiek georganiseerd. Er zijn drie theaterzalen, een bioscoop en een café-restaurant, waar al sinds 1982 spraakmakende gesprekken, films en kunstprojecten met als uitgangspunt een open, pluriforme, democratische en rechtsstatelijke samenleving plaatsvinden. Hier wordt een moeilijk gesprek niet uit de weggegaan, maar wordt juist de nadruk gelegd op de ontmoeting tussen mensen met uiteenlopende meningen en vrije gedachtewisseling. Als je zin hebt in een debat, gesprek, kunst of een biertje, is dit de plek.

slide-158
21
Adres
Leidseplein 26,
1017 PT Amsterdam

Internationaal Theater Amsterdam

Het huidige gebouw dateert uit 1894. Al eerder stond er een schouwburg, maar deze bestond grotendeels uit hout en daar is niks meer van overgebleven na een hevige brand. Het Internationaal Theater Amsterdam valt op, omdat het een vooruitgeschoven plek heeft op het Leidseplein en twee torens en een ruim balkon heeft. Het heeft een klassieke zaal en een moderne zaal. De trappen en kroonluchters stralen luxe uit en je kunt je goed voorstellen dat het publiek vroeger voornamelijk uit de hogere klasse kwam. Er zijn voornamelijk toneelstukken te zien, maar wordt ook verleend voor onder andere moderne dans, lezingen en het boekenbal.

170602_Hanson_Paradiso_LLS-1616
22
Adres
Weteringschans 6,
1017 SG Amsterdam

Paradiso

Paradiso is een poppodium, nachtclub en cultuurpaleis. Door de jaren heen hebben er heel veel bekende artiesten opgetreden waaronder; Prince, Red Hot Chili Peppers, UB40 en Nirvana. Vroeger was het een gebouw van een kerkgenootschap wat terug te zien is aan de hoge plafonds en de glas-in-lood ramen. Als je binnenkomt heb je recht en links trappen en rechtdoor bevindt zich de grote zaal met meerdere balkons. Doordat Paradiso een heel gevarieerd programma biedt heeft het een grote variëteit in publiek. Van jong tot oud en van punker tot popliefhebber. Tevens geeft het ruimte aan bijzondere initiatieven en projecten.

Cinecenter-Zaal-1-kopie-2
23
Adres
Lijnbaansgracht 236,
1017 PH Amsterdam

Cinecenter

Klein filmhuis met onder andere goede arthouse films. Zit aangesloten in het Cineville netwerk, dus met een Cineville pas kan je ook hier terecht. Ook leuk om van tevoren of na afloop een drankje te drinken. De locatie is direct naast het Leidseplein dus vanuit hier kan je nog veel andere leuke plekken bezoeken.

Boodschappen
casa del gusto
24
Adres
Kerkstraat 121,
1017 GE Amsterdam

Casa del gusto

Gianni en Gessica hebben een duidelijke toekomstvisie voor Casa del Gusto. ‘We willen een klein bedrijf blijven dat met kleinschalige boeren samenwerkt: dat is ons concept. ‘Alle boeren met wie wij werken, kennen we persoonlijk. Wij kopen onze Grana Padano – de populairste kaas van Italië – in bij een boer die slechts twee stukken per dag produceert. Dat is bijna niets vergeleken grote industriële producenten die honderden exemplaren per dag leveren. Wat wij heel belangrijk vinden, is dat je door de smaak van onze salami’s, pasta’s en bieren de producenten leert kennen.' Je moet de liefde die de boeren erin hebben gestopt terug kunnen proeven’, legt Gessica uit. Van hazelnootpasta en gnocchi tot bottarge en aloë vera-beautyproducten: de winkel staat vol heerlijke delicatesse en mooie producten. Casa del Gusto is, net zoals de naam suggereert, een smaakhuis voor zijn klanten.

Interieur
19891-en-muuto-showroom-amsterdam-16
26895-en-amstedam-showroom-sep-2023-muuto-hi-res-32
25
Adres
Keizersgracht 469,
1017 DK Amsterdam

Muuto

Muuto is geworteld in de Scandinavische ontwerptraditie, gekenmerkt door tijdloze esthetiek, functionaliteit, vakmanschap en een eerlijke expressie. Muuto komt van 'muutos', wat nieuwe perspectieven betekent in het Fins. Je herkent het design omdat het muutos heeft: objecten verheven door nieuwe perspectieven, wereldwijd gewaardeerd en representatief voor het beste van Scandinavisch design vandaag de dag. Om Muuto te bezoeken moet je van te voren een afspraak maken, dat kan via hun website.

Samengesteld; een collectie creatieve werkplekken in hergebruikte gebouwen

Samengesteld; een collectie creatieve werkplekken in hergebruikte gebouwen

Duurzaam met de tijd mee – een huis dat leeft, groeit en bewaart

Duurzaam met de tijd mee – een huis dat leeft, groeit en bewaart

Kunst & cultuur agenda maart 2026

Kunst & cultuur agenda maart 2026

Onlangs bekeken
Bekijk het overzicht

Deze site maakt gebruik van cookies.

Voor welke cookies geef je akkoord?