Elegant wonen in een volledig high end gerenoveerd appartement met lift in het centrum van Amsterdam.

Bijzonder wonen in één van de acht luxe appartementen in de Kerkstraat 132 – 134. Dit driekamer appartement is gelegen op de tweede verdieping van het volledig gerenoveerde en goed geïsoleerde (energielabel A) pand gelegen op een unieke locatie. De afwerking en materialen dragen bij aan een stijlvolle woonbeleving.

Een rondleiding 

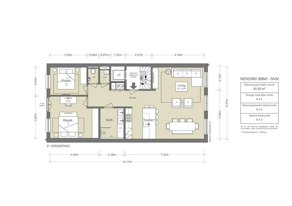
De tweede verdieping 
Bij binnenkomst via de trap of lift op de tweede verdieping spreekt de woonkamer met moderne open keuken aan de voorzijde gelijk tot de verbeelding. De maatwerk keuken is voorzien van inbouwapparatuur zoals een elektrische kookplaat met bladafzuigsysteem. Aan de achterzijde bevinden zich twee slaapkamers uitkijkend op de binnentuinen waarbij de wijd openslaande buitenramen en deur zorgen voor een ruimtelijk en open gevoel. 

Er zijn lichte materialen en kleuren gebruikt wat een gevoel van elegantie en luxe geeft. De afwerking van de badkamer zorgt voor een design uitstraling en is voorzien van dubbele wastafel met kastruimte en een douche. Het appartement heeft een lichtplan, vloerverwarming en automatisch CO2 gestuurde airco's. Op de hal bevindt zich een separaat toilet. 

Het gebouw  
Vroeger had de begane grond een winkelfunctie en de verdiepingen erboven zijn altijd voor bewoning gebruikt. Het gebouw is tegenwoordig onderdeel van het renovatieproject Kerkstraat 132 – 134 waarbij er in de twee panden acht appartementen zijn gerealiseerd. Het projectontwerp is gedaan door Grand & Johnson die zich richten op een high-end look and feel. 

De omgeving 
De Kerkstraat kenmerkt zich door het dorpsachtige karakter in het centrum van Amsterdam. De omgeving biedt een groots aanbod van winkels, restaurants, terrassen, koffiecafeetjes en culturele hotspots zoals het Rijksmuseum, De Hermitage, Koninklijk Theater Carré, Hortus Botanicus en Artis.

De parkeergelegenheid 
Er is een mogelijkheid om een parkeervergunning aan te vragen.

De bijzonderheden 
- Beschikbaar: 1 april 2025;
- Huurprijs: € 3.250,- excl. per maand;
- Huurperiode: min. 12 maanden;
- Borg: 2 maanden huur;
- CPI + 1%;
- Gestoffeerd.

Kenmerken
Kerkstraat 134C, Amsterdam
Huurprijs
  • € 3.250 per maand
Beschikbaarheid
  • Per datum
Vertrekken
  • 3 kamers
  • 2 slaapkamers
  • 1 badkamer
Onderhoud
  • Intern: Uitstekend
  • Extern: Uitstekend
Oppervlakten & Inhoud
  • Woonoppervlakte: 85 m²
Installaties
  • Lift
Ligging
  • In centrum
Type verwarming
  • Vloerverwarming geheel
Bestemming
  • Woonruimte
Buitenruimte
  • Geen tuin
Duurzaamheid
  • Energielabel A+
Soort
  • Appartement
  • Bovenwoning
Welke woonlaag
  • 3e
Plattegrond
Kerkstraat 134C, Amsterdam
AM106251-1989740-Kerkstraat-134C,-Amsterdam-221730527
Documenten
Kerkstraat 134C, Amsterdam
Locatie
Kerkstraat 134C, Amsterdam
Boodschappen
casa del gusto
01
Adres
Kerkstraat 121,
1017 GE Amsterdam

Casa del gusto

Gianni en Gessica hebben een duidelijke toekomstvisie voor Casa del Gusto. ‘We willen een klein bedrijf blijven dat met kleinschalige boeren samenwerkt: dat is ons concept. ‘Alle boeren met wie wij werken, kennen we persoonlijk. Wij kopen onze Grana Padano – de populairste kaas van Italië – in bij een boer die slechts twee stukken per dag produceert. Dat is bijna niets vergeleken grote industriële producenten die honderden exemplaren per dag leveren. Wat wij heel belangrijk vinden, is dat je door de smaak van onze salami’s, pasta’s en bieren de producenten leert kennen.' Je moet de liefde die de boeren erin hebben gestopt terug kunnen proeven’, legt Gessica uit. Van hazelnootpasta en gnocchi tot bottarge en aloë vera-beautyproducten: de winkel staat vol heerlijke delicatesse en mooie producten. Casa del Gusto is, net zoals de naam suggereert, een smaakhuis voor zijn klanten.

overholtkamp
02
Adres
Vijzelgracht 15,
1017 HM Amsterdam

Patisserie Holtkamp

Patisserie Holtkamp is een bekend begrip onder de Amsterdammers. Ooit bekend geworden met de altijd verse tompouce, is Holtkamp tegenwoordig dé plek om de lekkerste (citroen)taarten en garnalenkroketten te halen. De recepten werken al jaren heel goed, want rond de feestdagen staat er altijd een rij. Het kleine winkeltje aan de Vijzelgracht is functioneel, maar vooral mooi authentiek. Het personeel is ontzettend vriendelijk en behulpzaam. Zeker een bezoekje waard.

Eten & drinken
tokyo_ramen_iki_ramen_restaurant_amsterdam_header
03
Adres
Kerkstraat 148A,
1017 GR Amsterdam

Tokyo Ramen Takeichi

Deze Japanse ramen keten heeft inmiddels al meerdere vestigingen over de hele wereld. In Amsterdam zijn inmiddels al drie vestigingen. Tokyo Ramen Takeichi is bekend om zijn gezonde ramen met kip en groentebouillon. Doordat ze trouw blijven aan de Japanse roots is het een authentieke restaurant. Naast hun specialiteit zijn de side dishes ook heerlijk. De 'karaage' zal je niet teleurstellen.

Schermafbeelding 2022-05-18 om 18.34.11
04
Adres
Kerkstraat 96H,
1017 GP Amsterdam

Bocca

Als je goede koffie zegt, kan je inmiddels een boel plekken in Amsterdam opnoemen maar, Bocca is weer even net nog een slagje beter. Hun werkruimte is groot zodat de barista’s genoeg ruimte hebben de beste koffie te zetten. De moeite waard om naar binnen te gaan, al is het maar om te zien hoe deze geschoolde barista’s alles eraan doen om jouw perfecte cappuccino met vakmanschap klaar te maken.

Carmen-Guest-House-Amsterdam-Store-Patter-PlacesIMG_0520
05
Adres
Keizersgracht 600,
1017 EP Amsterdam

Carmen

Winkel, restaurant en guesthouse. Eigenaren Carmen Atiyah de Baets en Joris ter Meulen Swijtink openden na enkele jaren gewerkt en gewoond te hebben in Londen deze geweldige hotspot op de Keizersgracht. Carmen selecteerde een fijne mix van mode, interieur, accessoires van bijzondere ontwerpers. Joris bestiert de keuken waar regelmatig buitenlandse bevriende chefs gehost worden.

06
Adres
Prinsengracht 568,
1017 KR Amsterdam

Heuvel

Buurtbewoners en galeriehouders uit het Spiegelkwartier komen hier regelmaat op bezoek. Bij Café Heuvel is het bijna elke dag dag rond 17:00 al volop borreluur. 'Als ik sneuvel, dan bij Heuvel!' Het kleine hoekcafé met fijn terras is een van de oudste cafés van de stad.

foto6
Buffet-van-Odette-148
07
Adres
Prinsengracht 598,
1017 KS Amsterdam

Buffet van Odette

Odette Rigterink begon Buffet van Odette in 1994. Ze laadde pannen vol met zelfgemaakt eten in een krat voorop de fiets en serveerde een dagmenu aan jong en oud Amsterdam bij de crèche Enfant Terrible. Vanaf 2011 is het restaurant gevestigd op Prinsengracht 598, op de hoek van Weteringstraat. Ze serveren hun vaste klassiekers en koken ook met het seizoen mee en hebben een uitgebreide (natuur)wijnkaart. Van maandag tot en met vrijdag serveren ze zowel lunch als diner.

 

325547281_571799494854962_4627029980323073806_n
08
Adres
Kerkstraat 59,
1017 GC Amsterdam

Yuzu Dining Bar

Bij Yuzu Dining Bar serveren ze geen sushi, maar wel een verscheidenheid aan kleine Japanse gerechten, waaronder edamame en verschillende yakitorispiesjes. Het restaurant laat je kennis maken met de Japanse gewoonten, zoals het opbergen van je jas in een mandje onder je stoel en het eten zonder bestek. De sfeer is informeel en gezellig, en het personeel is vriendelijk en attent. Je kan er ook terecht voor een cocktail tot in de late uurtjes.

09
Adres
Korte Leidsedwarsstraat 139-141,
1017 PZ Amsterdam

Taste of Culture

Tate of Culture schijnt de plek te zijn waar chefs midden in de nacht naartoe gaan als ze zin hebben in Chinees eten. En ik geef ze geen ongelijk. De menukaart is enorm uitgebreid, je kan kiezen tussen authentieke Chinese gerechten of dimsum. Een gerecht wat je zeker niet mag missen is de eend. Je kan het half of heel bestellen, met rijst en verschillende sauzen of getrancheerd en geserveerd met flensjes.

10
Adres
Lijnbaansgracht 267 HS,
1017 RL Amsterdam

Shiraz

Shiraz is niet voor niets als winnaar uit de wijnbar van het jaar wedstrijd gekomen. In het hartje van Amsterdam ligt deze geliefde wijnbar, waar je nieuwe wijnen kan ontdekken of terug kan vallen op je favoriete wijn. Als je het lastig vindt om te kiezen tussen de in totaal 150 wijnen, staat het personeel altijd paraat om je van vakkundig advies te voorzien of om iets te laten proeven. In deze tuin van wijnen kan je genieten van een heerlijk glas wijn met een bijbehorend hapje.

313291039_676821367342686_470247651338795489_n
11
Adres
Nieuwe Spiegelstraat 3A,
1017 DB Amsterdam

Zero Zero

Zero Zero is een bakkerij en delicatessenwinkel gelegen in Amsterdam en eigendom van dezelfde eigenaren als Ceppi's. Naast het maken van pizza is Greco gespecialiseerd in het maken van zuurdesembrood. De naam Zero Zero komt van bloem als de basis van wat ze verkopen. De Toscaanse zuurdesembroden (schiacciata) zijn belegd met ingrediënten zoals gegrilde aubergine, gemarineerde courgette met munt, balsamico en zongedroogde tomaten (€9), of mortadella, stracciatella en pistache (€10). Zero Zero verkoopt verkoopt naast de broodjes een breed scala aan Italiaanse delicatessen, waaronder wijn, zakken pasta en olijfolie. Verse ingrediënten voor broodjes zijn ook te koop. Hoewel de meeste klanten komen voor een broodje om mee te nemen, zijn ze ook welkom om te blijven en te genieten van een kopje koffie. Volgens Greco zijn alle delicatessen verkrijgbaar bij Zero Zero uit afkomstig uit Italië.

12
Adres
Lange Leidsedwarsstraat 37-41,
1017 NG Amsterdam

The Madras Diaries

The Madras Diaries is geopend in 2020 en biedt een Zuid-Indiase keuken aan. In deze keuken wordt over het algemeen pittiger gekruid dan wij gewend zijn. Er wordt veel gebruik gemaakt van chili’s, zwarte peper, kruidnagel en kardemom. Dat maakt het behalve extreem rijk van smaak, soms ook wat minder toegankelijk. Gelukkig bieden ze een zelfgemaakte limonade kaart aan om af te koelen. Naast de bekende mango lassi hebben ze seizoensdrankjes en nog veel meer. Goed nieuws voor de vegetariërs en veganisten, binnen deze keuken wordt dat niet gezien als een uitzondering. Genoeg keuze dus!

19264285_1400067526755014_1069961631133216664_o
13
Adres
Weteringstraat 37,
1017 SM Amsterdam

Café de Wetering

Een bruine kroeg ten voeten uit en niet eenvoudig te vinden als je niet precies weet waar je wezen moet. Het cafe bevind zich in een prachtig 17e eeuws pand. Er is een vide boven de bar waar zich een open haard bevindt. Dit bruincafé is ook bijzonder omdat het een uitstekende wijnkaart heeft, en dat zie je niet vaak in klassieke Amsterdamse kroegen. Uiteraard ook heerlijk bier, borrelnootjes en, niet onbelangrijk, je betaalt hier alleen in cash.

weteringstraat-new-1604
Schermafbeelding 2022-05-18 om 18.36.27
14
Adres
Weteringstraat 48,
1017 SP Amsterdam

Back to Black

Back to Black is een koffiebar met een eigen branderij aan de Weteringstraat. Bij Back to Black wordt elk stap in het productieproces van koffie met passie en vakmanschap uitgevoerd. Vanuit hun liefde voor koffie reizen de eigenaren van Back to Black de hele wereld af op zoek naar de beste producten. Deze verkopen zij vervolgens in hun eigen zaak. Naast koffie serveren ze ook lekkere koekjes en taartjes én ze verkopen ook eigen t-shirts met mooie designs.

Schermafbeelding 2022-06-27 om 17.58.26
15
Adres
Weteringstraat 41,
1017 SM Amsterdam

Restaurant Watergang

Sinds begin 2019 zit Watergang in een charmant 17 eeuws pandje in de leuke Weteringbuurt wat voorheen decennialang Spaans restaurant La Cacerola huisvestte. Uit het kleine keukentje op twee hoog tovert Chef Tim van Grootheest (voorheen jarenlang patissier bij Bord'Eau) verrassende gerechten.  Watergang serveert een verrassingsmenu dat regelmatig wijzigt en laveert tussen Franse en Italiaanse maar ook oosterse smaken.

tokyo_ramen_iki_ramen_restaurant_amsterdam_wat_is_ramen
16
Adres
Vijzelstraat 135,
1017 HJ Amsterdam

Tokyo Ramen Takeichi

Deze Japanse ramen keten heeft inmiddels al meerdere vestigingen over de hele wereld. In Amsterdam zijn inmiddels al drie vestigingen. Tokyo Ramen Takeichi is bekend om zijn gezonde ramen met kip en groentebouillon. Doordat ze trouw blijven aan de Japanse roots is het een authentieke restaurant. Naast hun specialiteit zijn de side dishes ook heerlijk. De 'karaage' zal je niet teleurstellen.

downloadgram.org_564220181_122106806385035737_2639409528052682900_n
downloadgram.org_591949292_122113731201035737_4138354092764306839_n
17
Adres
Reguliersdwarsstraat 28,
1017 BM Amsterdam

Blik

Blik is opgezet door Tijn Verstappen en driesterrenchef Jacob Jan Boerma, samen met gastheer Manuel Broekman en ondernemer Tim Ouborg, als een bistro bar waar eenvoud en kwaliteit samenkomen. De kaart draait om herkenbare klassiekers met een creatieve twist, waarbij Boerma’s ervaring in topkeukens voelbaar is zonder dat het stijf of formeel wordt. Naast de gezellige binnenruimte beschikt Blik ook over een tuinterras achter het pand, een fijne plek om bij goed weer te genieten van je gerecht en glas in de buitenlucht.

Kunst & cultuur
Schermafbeelding 2023-09-26 om 13.10.24
18
Adres
Kerkstraat 105-A,
1017 GD Amsterdam

Siewe Gallery

Slewe Gallery is in 1944 opgericht door Martita Slewe. De galerie is gespecialiseerd in hedendaagse kunst. Het internationaal georiënteerde programma legt vanaf het begin de nadruk op actuele ontwikkelingen in de abstracte kunst, met name in de schilderkunst. De galerie vertegenwoordigt zowel gevestigde als opkomende kunstenaars uit diverse generaties en landen.

2006b22272a073075554111102a2a516e7e_resized
19
Adres
Prinsengracht 510 O,
1017 KH Amsterdam

Mia Karlova Galerie

Mia Karlova Galerie, gelegen aan de Prinsengracht, streeft ernaar een dialoog tot stand te brengen tussen werken van verschillende genres door middel van een gemeenschappelijke emotionele taal. Mia Karlova Galerie zet functionele beeldhouwkunst in de schijnwerpers met een intrigerend programma van internationale hedendaagse kunstenaars en productontwerpers. Deze kunstvorm, die originaliteit uitstraalt in ontwerp of materiaal, biedt een uitzonderlijk plezier tijdens de interactie.

art_386_roger-katwijk_troublesome-fancies_roos-holleman_web-res_jdewaart_14-5-22_5
20
Adres
Prinsengracht 737,
1017 KK Amsterdam

Roger Katwijk Galerie

Aan de Prinsengracht 737 kun je de prachtige Roger Katwijk galerie vinden. Een lichte plek voor hedendaagse kunst, abstracte kunst en geabstraheerde figuratie van zowel Nederlandse als internationale kunstenaars. Het gehele jaar door kun je hier wisselende exposities ontdekken op het gebied van de schilder- en beeldhouwkunst.

270053381_5179749475386566_1324756550501219040_n
21
Adres
Prinsengracht 452,
1017 KE Amsterdam

De Uitkijk

Amsterdam heeft door de jaren heen vele bioscopen komen en gaan, maar Filmtheater De Uitkijk bestaat nog steeds! Het pand aan de Prinsengracht 452 heeft een bewogen verleden en begon in 1912 als City Bioscoop, toen het werd omgebouwd van een 17e-eeuws pakhuis. In 1929 nam de Filmliga de bioscoop over en veranderde de naam in het Filmtheater De Uitkijk. Dit was het allereerste avant-garde filmtheater van Nederland. Sinds 2007 is De Uitkijk een zusterproject van de organisatie Kriterion en wordt het geleid door een groep van dertien studenten.

170602_Hanson_Paradiso_LLS-1616
22
Adres
Weteringschans 6,
1017 SG Amsterdam

Paradiso

Paradiso is een poppodium, nachtclub en cultuurpaleis. Door de jaren heen hebben er heel veel bekende artiesten opgetreden waaronder; Prince, Red Hot Chili Peppers, UB40 en Nirvana. Vroeger was het een gebouw van een kerkgenootschap wat terug te zien is aan de hoge plafonds en de glas-in-lood ramen. Als je binnenkomt heb je recht en links trappen en rechtdoor bevindt zich de grote zaal met meerdere balkons. Doordat Paradiso een heel gevarieerd programma biedt heeft het een grote variëteit in publiek. Van jong tot oud en van punker tot popliefhebber. Tevens geeft het ruimte aan bijzondere initiatieven en projecten.

contact-1-scaled
23
Adres
Kleine-Gartmanplantsoen 10,
1017 RR Amsterdam

De Balie

In De Balie worden onafhankelijke programma’s over kunst, cultuur en politiek georganiseerd. Er zijn drie theaterzalen, een bioscoop en een café-restaurant, waar al sinds 1982 spraakmakende gesprekken, films en kunstprojecten met als uitgangspunt een open, pluriforme, democratische en rechtsstatelijke samenleving plaatsvinden. Hier wordt een moeilijk gesprek niet uit de weggegaan, maar wordt juist de nadruk gelegd op de ontmoeting tussen mensen met uiteenlopende meningen en vrije gedachtewisseling. Als je zin hebt in een debat, gesprek, kunst of een biertje, is dit de plek.

Interieur
19891-en-muuto-showroom-amsterdam-16
26895-en-amstedam-showroom-sep-2023-muuto-hi-res-32
24
Adres
Keizersgracht 469,
1017 DK Amsterdam

Muuto

Muuto is geworteld in de Scandinavische ontwerptraditie, gekenmerkt door tijdloze esthetiek, functionaliteit, vakmanschap en een eerlijke expressie. Muuto komt van 'muutos', wat nieuwe perspectieven betekent in het Fins. Je herkent het design omdat het muutos heeft: objecten verheven door nieuwe perspectieven, wereldwijd gewaardeerd en representatief voor het beste van Scandinavisch design vandaag de dag. Om Muuto te bezoeken moet je van te voren een afspraak maken, dat kan via hun website.

EnterTheLoft_IV_WEB_LARGE_AicoLind-14_1500x
EnterTheLoft_IV_WEB_LARGE_AicoLind-9_1500x
25
Adres
Vijzelstraat 77,
1017 HG Amsterdam

Enter the loft

Enter the Loft is een boetiek interieurwinkel en een interieur adviesbureau  met een passie; zien hoe ruimtes hun magie op mensen uitoefenen. Ga langs bij hun showroom aan de Vijzelstraat (by appointment only) en voel hoe zij ruimtes tot leven brengen door ze in te richten met hun favoriete interieurvondsten die met liefde en aandacht zijn gemaakt en die bestaan uit natuurlijke materialen – hout, leer, glas, staal, wol en keramiek.

Buurtgids: Volewijck (Noord) rondom van der Pekstraat

Buurtgids: Volewijck (Noord) rondom van der Pekstraat

De jurist die kunst gebruikt om anders te denken. Aernoud Bourdrez over kunst, conflicten en de ruimte tussen die twee.

De jurist die kunst gebruikt om anders te denken. Aernoud Bourdrez over kunst, conflicten en de ruimte tussen die twee.

Samengesteld; slim ingedeelde appartementen met het comfort van een suite.

Samengesteld; slim ingedeelde appartementen met het comfort van een suite.

Onlangs bekeken
Bekijk het overzicht

Deze site maakt gebruik van cookies.

Voor welke cookies geef je akkoord?