Een klassiek en Rijksmonumentaal grachtenpand bestaande uit een begane grond, eerste etage, twee bovengelegen verdiepingen en een zolder. De zwarte gevel, de klauwstukken die de halsgevel versieren geven het een elegante uitstraling. De stijlkamers en de Negentiende eeuwse trappenhuis geven de allure. Dit royaal opgezette huis bestaat uit een voorhuis en een licht achterhuis die zijn verbonden met een statig en prettig beloopbaar trappenhuis. Het pand is multifunctioneel te gebruiken.
Het pand
De totale oppervlakte is circa 466 m², die thans zijn verdeeld over vier min of meer zelfstandige wooneenheden. Het pand leent zich voor zelfbewoning, belegging of voor ontwikkeling. Dit fraaie monument ligt op uitstekende locatie en is gelegen op eigen grond. De diepe achtertuin is zonnig en wordt afgesloten met een dubbelbreed tuinhuis. De tuin heeft hier ook een dubbele perceelbreedte. Ten behoeve van renovatie en restauratie zijn er plannen en meerdere subsidieregelingen.
Buitenruimte
Keurtuin: Een oase in de binnenstad, omdat de tuinen tussen de Keizersgracht en Herengracht het breedst zijn en minst bebouwd. Daarbij ligt aan de achterzijde de Gouden Bocht met extra grote in imposante panden. De panden 503 en 505 zijn tot nu toe in gebruik geweest als een gemeenschappelijke tuin. Achter in de tuin staat een tuinhuis over de breedte van de twee percelen. Conform de huidige erfafscheiding worden de percelen kadastraal van elkaar gesplitst. Het tuinhuis wordt verkocht met nummer 503 en een stuk van de tuin van 505. De tuin zal dan ca. 150 m² groot worden.
Buurtgids
Keizersgracht 503 ligt in de Grachtengordel-Zuid, in een rustig gedeelte van de Spiegelbuurt. Vlak bij het Rijksmuseum, het Amstelveld en talloze voorzieningen van buurtwinkels en speciaalzaken tot culturele instellingen, toprestaurants, bruine cafés en galerieën. Deze buurt heeft naar verhouding veel jonge inwoners van tussen de 25 en 44 jaar. Zo is deze locatie makkelijk bereikbaar en is de metro halte Vijzelstraat op loopafstand.
Bijzonderheden
• Gebruiksoppervlakte wonen ca. 466 m²
• Diepe tuin met charmant tuinhuis
• Gelegen op eigen grond
• Funderingsherstel is vereist
• Rijksmonument gelegen in Rijks beschermd stadsgezicht en door UNESCO aangewezen beschermd wereld erfgoed
• Verkopers nemen een asbest-, ouderdoms- en niet bewoning clausule op in de koopakte
• Project notaris is Dentons te Amsterdam
• Kijk voor meer informatie op de website van het Nationaal Monumenten Portaal, Restauratiefonds en Rijksdienst voor het Cultureel Erfgoed met betrekking tot mogelijkheden.
• Funderingsrapport aanwezig
• Asbestinventarisatie aanwezig
• Het naastgelegen pand - Keizersgracht 505 - is eveneens te koop, vraagprijs € 2.800.000,-- kosten koper
De Koopman
De erven hebben ons kantoor ingeschakeld om hen bij de verkoop te adviseren. Hun pand aan de Keizersgracht heeft een lange historie en een eigen karakter. Voor de familie heeft het huis vele aspecten en facetten, waardoor zij voorafgaand ons consult hebben gevraagd. Dit dossier omvat bijna alles wat ik als makelaar interessant vind, zoals bouwkundige vraagstukken, de splitsing van een kadastraal perceel, registratie, milieu, renovatie, subsidies van de rijksoverheid en mogelijk het opnieuw aanbrengen van een fundering.
In dit proces hebben wij de familie volledige inzage gegeven, en heb ik het pand grondig leren kennen. Ik zie het als een prachtig grachtenpand, oorspronkelijk gebouwd als koopmanshuis met tuinhuis, waaraan later een dubbel achterhuis is toegevoegd, wat het uniek maakt.
Het is een bijzonder pand met diverse gebruiksmogelijkheden, en biedt een prachtige kans voor de toekomstige koper. Naar mijn verwachting zal dat een ontwikkelaar of investeerder zijn, hoewel ook een familie die op zoek is naar veel ruimte niet is uitgesloten. Uiteindelijk zal de markt het bepalen.
Otte van Apeldoorn | Makelaar Broersma Wonen
Kees Kemp | Makelaar Broersma Wonen
Koopmanshuis met monumenten nummer 2374.
Dit elegante koopmanshuis dateert uit 1680 en maakt daarmee deel uit van de vierde uitleg van de grachtengordel. Het is gebouwd in opdracht van Laurens Wittebol, makelaar en koopman. Hij was ook opdrachtgever van de buurpanden 501 en 505, waarmee 503 een schitterende halsgeveldrieling vormt. Tot ver in de achttiende eeuw bleven de drie panden in één hand.
Eind negentiende eeuw heeft dit pand een forse verbouwing ondergaan. Daarbij is onder andere de bordestrap afgebroken en de entree naar grachtniveau gebracht. In diezelfde periode is ook het drielaagse achterhuis bijgebouwd. Weer later zijn de panden op Keizersgracht 503 en 505 op de begane grond samengevoegd. Bij de verkoop wordt de perceelindeling 503-505 weer hersteld.
Bijzonderheden van 503 zijn onder meer een verswaterreservoir onder de gang en de opvallende halsgevel. Deze is versierd met een bloemenmotief en op het lijstvormige fronton zijn wapens afgebeeld.
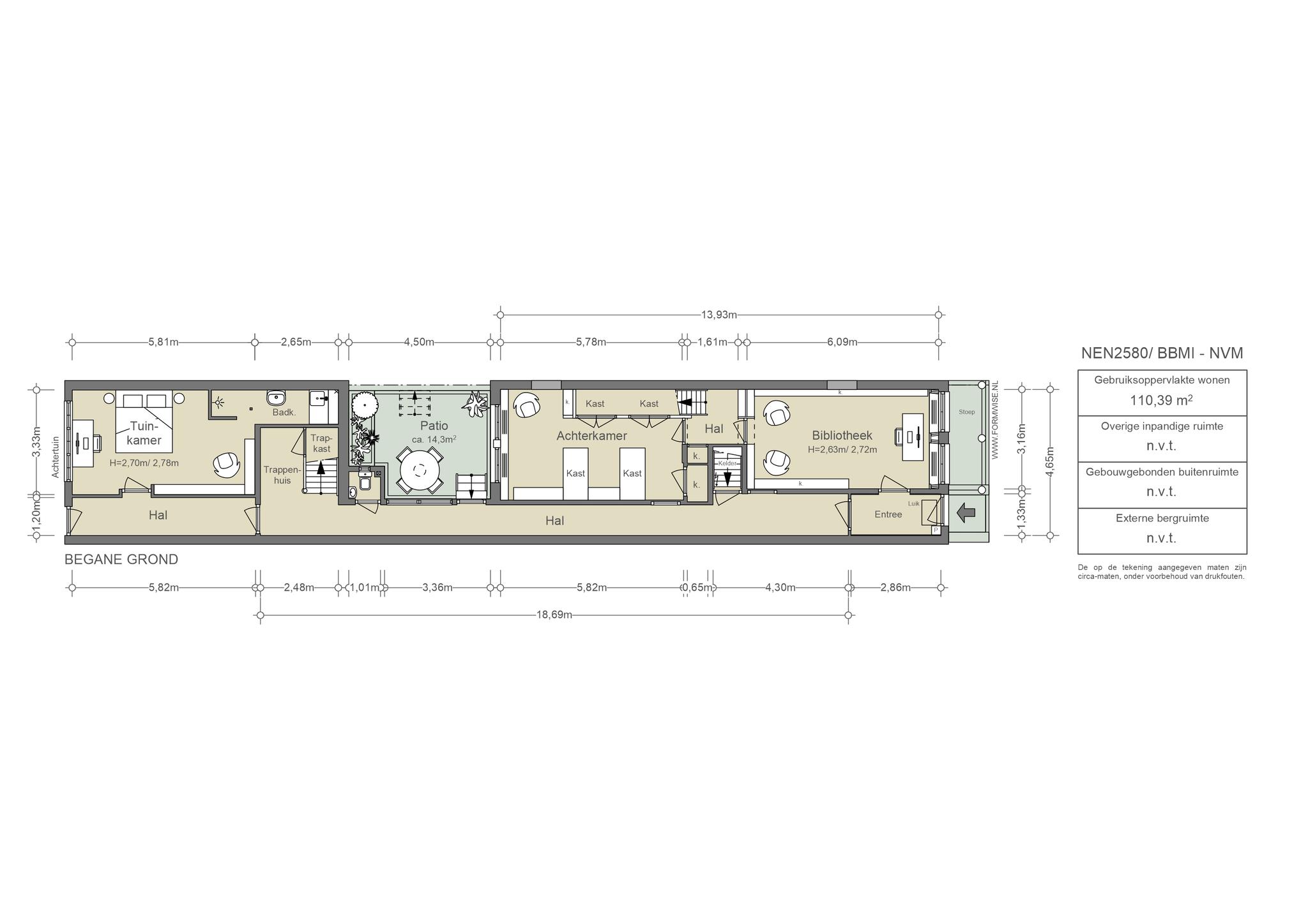
De entree op grachtniveau loopt door in een gang met marmeren plavuizen die achter in het pand toegang geeft tot de zonnige keurtuin. Er is een kamer aan de voorzijde en een achterkamer die uitkijkt op de patio. Aan het eind van de negentiende eeuw is hier een achterhuis bijgebouwd van maar liefst drie lagen, met op de begane grond een aangename tuinkamer. Kenmerkend voor dit koopmanshuis uit de gouden eeuw is ook de kelder, met als extra bijzonderheid dat er onder de gang nog een origineel vers drinkwaterreservoir aanwezig is.
De eerste verdieping
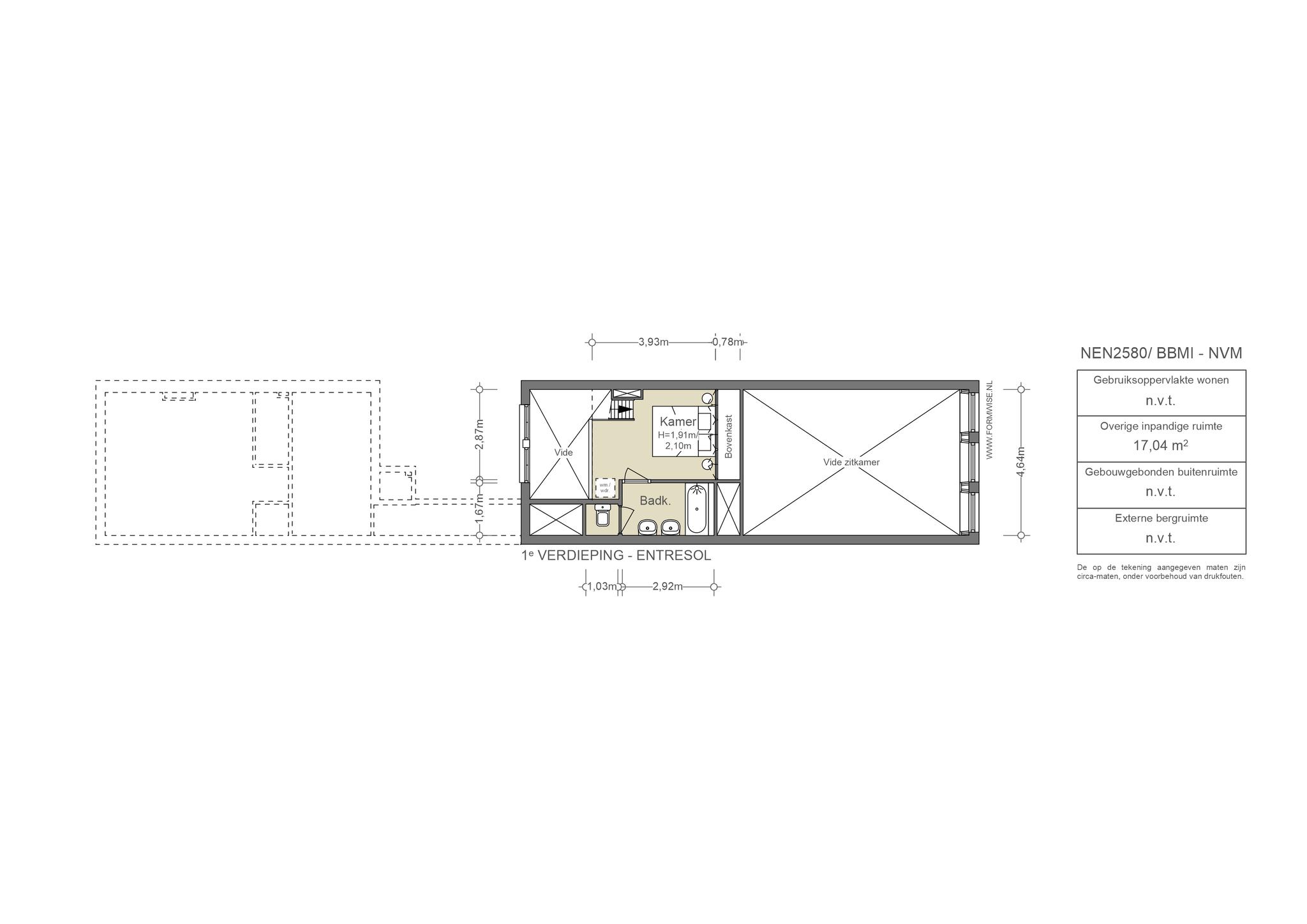
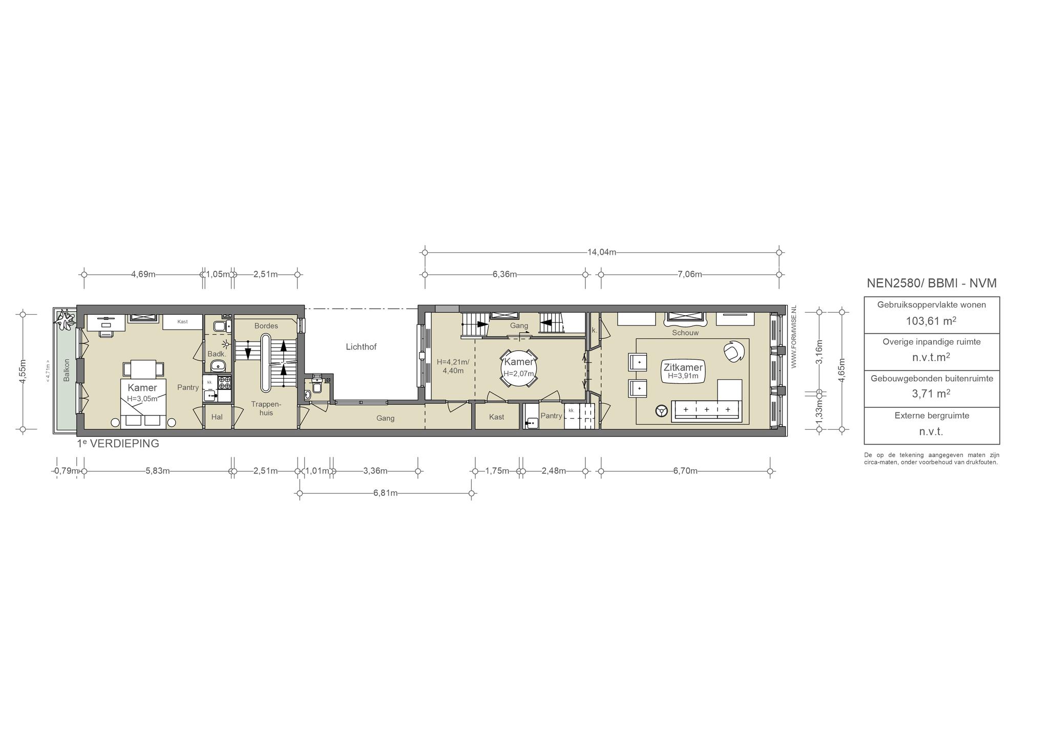
Deze verdieping is circa vier meter hoog en heeft drie ramen aan de gracht. De ramen gaan open met monumentale espagnoletten. Ook de haard in rococostijl draagt bij aan de elegante uitstraling. De voorgevel ligt op het zuiden. Dit maakt dat de zonnestralen die op het water in de gracht vallen, door de ramen reflecteren op het plafond. Dit geeft de ruimte een prachtig licht. Aan de achterzijde wederom aan het lichthof hebben eerdere eigenaren gebruikgemaakt van de hoogte door een entresol te construeren. Zo is een knusse, prettige slaapplek ontstaan met eigen sanitair. In het achterhuis is een aparte studio met openslaande deuren naar een balkon met avondzon aan de tuin. De studio is voorzien van een pantry en een badkamer met douche.
Ook op deze verdieping geeft het hoge plafond een bijzonder ruimtelijk effect. Het voorhuis op deze verdieping herbergt een zelfstandige wooneenheid met een voorkamer met open haard en een slaapkamer aan de achterkant. Tussen de slaapkamer en de woonkamer bevindt zich een keuken. Het achterhuis heeft op deze verdieping een aparte, sfeervolle studio met twee ramen die uitzicht bieden op de tuin. Deze studio heeft ook een eigen keuken en badkamer.
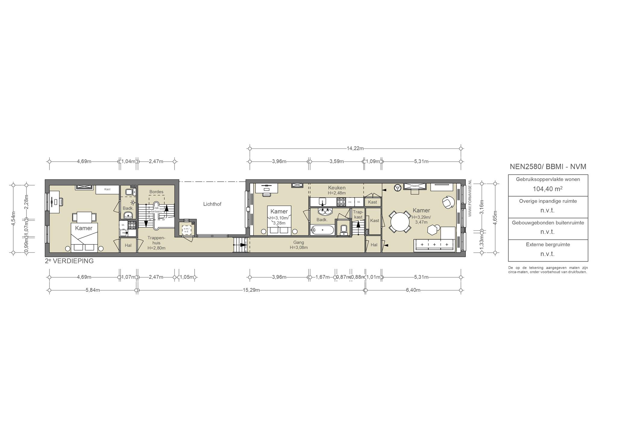
De derde verdieping
Net als op de tweede verdieping bevindt zich hier in het voorhuis een zelfstandige eenheid. Deze bestaat uit een woonkamer, een slaapkamer, een eenvoudige keuken en in het midden een badkamer met ligbad, wastafel en toilet. Het geheel heeft een oppervlakte van ca. 62 m² en een courante indeling.
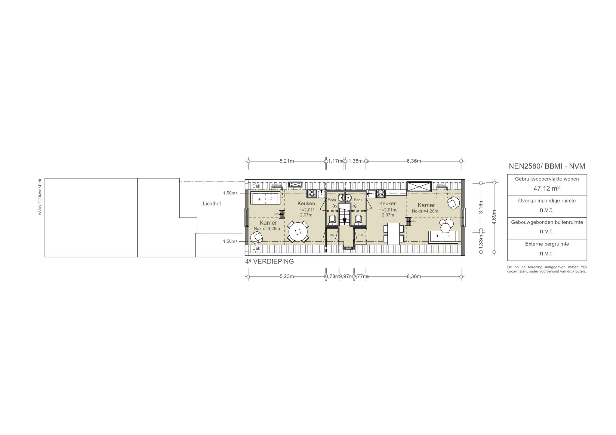
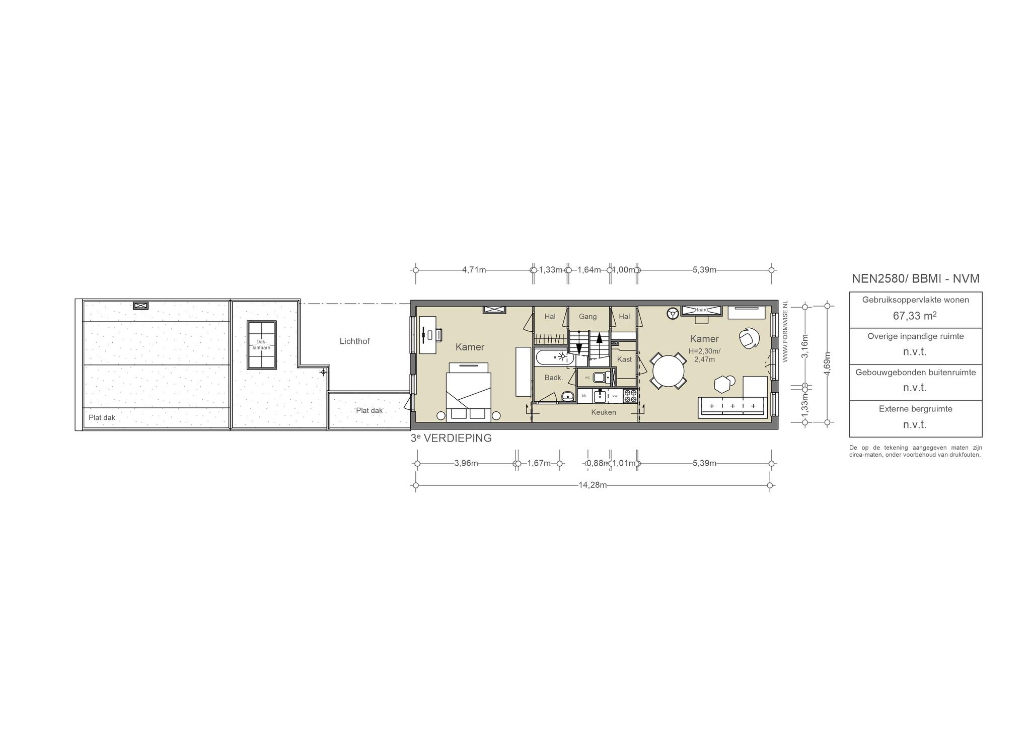
De vierde verdieping
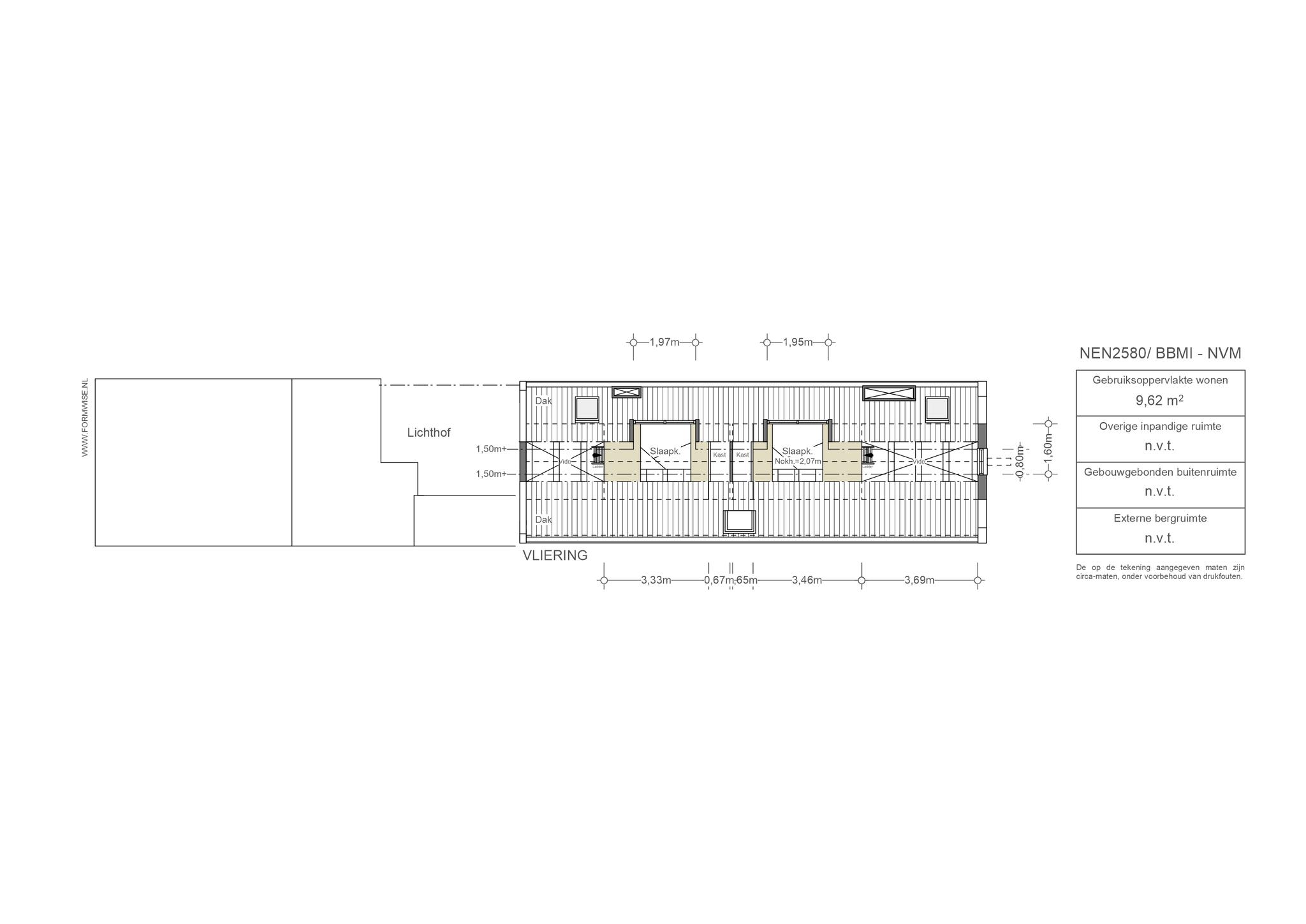
Deze verdieping in het hoofdhuis is verdeeld in twee ongeveer even grote studio’s met vliering, van respectievelijk 20 m² en 23 m².
Zo is het pand op dit moment verdeeld over zelfstandige appartementen en studio’s.
Een van de aantrekkelijke elementen van dit grachtenpand is de fraaie keurtuin. Een oase in de binnenstad; en juist op de plek waar de tuinen tussen de Keizersgracht en de Herengracht op hun breedst zijn, met de minste bebouwing. Hier ligt aan de achterzijde de Gouden Bocht met zijn extra grote en imposante panden.
Het gedeelte van de keurtuin achter Keizersgracht 503 en 505 is tot nu toe in gebruik geweest als een gemeenschappelijke tuin voor beide panden. Achterin staat een tuinhuis over de breedte van de twee percelen. In overeenstemming met de huidige erfafscheiding worden de percelen kadastraal gesplitst. Het tuinhuis wordt verkocht met nummer 503 en een stuk van de tuin van 505.
Keizersgracht 503 ligt in de Grachtengordel-Zuid, in een rustig gedeelte van de Spiegelbuurt. Vlak bij het Rijksmuseum, het Amstelveld en talloze voorzieningen van buurtwinkels en speciaalzaken tot culturele instellingen, toprestaurants, bruine cafés en galerieën. Deze buurt heeft naar verhouding veel jonge inwoners van tussen de 25 en 44 jaar. Zo is deze locatie makkelijk bereikbaar en is de metro halte Vijzelstraat op loopafstand.
Bereikbaarheid
De verbindingen met het openbaar vervoer zijn uitstekend. Zo is de Noord/Zuidlijn vlakbij en zijn er goede tramverbindingen vanaf de Leidsestraat en de Vijzelgracht die om de hoek liggen. Alle haltes zijn op enkele minuten lopen.
Het pand ligt op loopafstand van een supermarkt en het Centraal Station en met de fiets is bijna elke plek binnen de ring binnen 20 minuten te bereiken. Daarnaast is de dichtstbijzijnde uitvalsweg in de nabije omgeving op ongeveer 5 minuten rijden.
Parkeergelegenheid
Parkeren is mogelijk via een vergunningenstelsel op de openbare weg (vergunningsgebied Centrum-2f). Met een parkeervergunning voor Centrum-2f mag u parkeren in Centrum-2. Een parkeervergunning voor bewoners kost € 315,60 per 6 maanden. Momenteel is er voor dit vergunningsgebied een wachttijd van 12 maanden. Een tweede parkeervergunning is in dit gebied niet mogelijk. (Bron: Gemeente Amsterdam, oktober 2024).