Een klassiek en Rijksmonumentaal grachtenpand bestaande uit een begane grond, eerste etage, twee bovengelegen verdiepingen en een zolder. De zwarte gevel, de klauwstukken die de halsgevel versieren geven het een elegante uitstraling. De stijlkamers en de Negentiende eeuwse trappenhuis geven de allure. Dit royaal opgezette huis bestaat uit een voorhuis en een licht achterhuis die zijn verbonden met een statig en prettig beloopbaar trappenhuis. Het pand is multifunctioneel te gebruiken.

Het pand
De totale oppervlakte is circa 466 m², die thans zijn verdeeld over vier min of meer zelfstandige wooneenheden. Het pand leent zich voor zelfbewoning, belegging of voor ontwikkeling. Dit fraaie monument ligt op uitstekende locatie en is gelegen op eigen grond. De diepe achtertuin is zonnig en wordt afgesloten met een dubbelbreed tuinhuis. De tuin heeft hier ook een dubbele perceelbreedte. Ten behoeve van renovatie en restauratie zijn er plannen en meerdere subsidieregelingen.

Buitenruimte
Keurtuin: Een oase in de binnenstad, omdat de tuinen tussen de Keizersgracht en Herengracht het breedst zijn en minst bebouwd. Daarbij ligt aan de achterzijde de Gouden Bocht met extra grote in imposante panden. De panden 503 en 505 zijn tot nu toe in gebruik geweest als een gemeenschappelijke tuin. Achter in de tuin staat een tuinhuis over de breedte van de twee percelen. Conform de huidige erfafscheiding worden de percelen kadastraal van elkaar gesplitst. Het tuinhuis wordt verkocht met nummer 503 en een stuk van de tuin van 505. De tuin zal dan ca. 150 m² groot worden.

Buurtgids
Keizersgracht 503 ligt in de Grachtengordel-Zuid, in een rustig gedeelte van de Spiegelbuurt. Vlak bij het Rijksmuseum, het Amstelveld en talloze voorzieningen van buurtwinkels en speciaalzaken tot culturele instellingen, toprestaurants, bruine cafés en galerieën. Deze buurt heeft naar verhouding veel jonge inwoners van tussen de 25 en 44 jaar. Zo is deze locatie makkelijk bereikbaar en is de metro halte Vijzelstraat op loopafstand.

Bijzonderheden
• Gebruiksoppervlakte wonen ca. 466 m²
• Diepe tuin met charmant tuinhuis
• Gelegen op eigen grond
• Funderingsherstel is vereist
• Rijksmonument gelegen in Rijks beschermd stadsgezicht en door UNESCO aangewezen beschermd wereld erfgoed
• Verkopers nemen een asbest-, ouderdoms- en niet bewoning clausule op in de koopakte
• Project notaris is Dentons te Amsterdam
• Kijk voor meer informatie op de website van het Nationaal Monumenten Portaal, Restauratiefonds en Rijksdienst voor het Cultureel Erfgoed met betrekking tot mogelijkheden.
• Funderingsrapport aanwezig
• Asbestinventarisatie aanwezig
• Het naastgelegen pand - Keizersgracht 505 - is eveneens te koop, vraagprijs € 2.800.000,-- kosten koper

 

AM105163-1843504-Keizersgracht-503,-Amsterdam-172792755

De Koopman
De erven hebben ons kantoor ingeschakeld om hen bij de verkoop te adviseren. Hun pand aan de Keizersgracht heeft een lange historie en een eigen karakter. Voor de familie heeft het huis vele aspecten en facetten, waardoor zij voorafgaand ons consult hebben gevraagd. Dit dossier omvat bijna alles wat ik als makelaar interessant vind, zoals bouwkundige vraagstukken, de splitsing van een kadastraal perceel, registratie, milieu, renovatie, subsidies van de rijksoverheid en mogelijk het opnieuw aanbrengen van een fundering.
In dit proces hebben wij de familie volledige inzage gegeven, en heb ik het pand grondig leren kennen. Ik zie het als een prachtig grachtenpand, oorspronkelijk gebouwd als koopmanshuis met tuinhuis, waaraan later een dubbel achterhuis is toegevoegd, wat het uniek maakt.
Het is een bijzonder pand met diverse gebruiksmogelijkheden, en biedt een prachtige kans voor de toekomstige koper. Naar mijn verwachting zal dat een ontwikkelaar of investeerder zijn, hoewel ook een familie die op zoek is naar veel ruimte niet is uitgesloten. Uiteindelijk zal de markt het bepalen.


Otte van Apeldoorn | Makelaar Broersma Wonen
Kees Kemp | Makelaar Broersma Wonen
AM105163-1843504-Keizersgracht-503,-Amsterdam-172792775
Designvisie

Koopmanshuis met monumenten nummer 2374.
Dit elegante koopmanshuis dateert uit 1680 en maakt daarmee deel uit van de vierde uitleg van de grachtengordel. Het is gebouwd in opdracht van Laurens Wittebol, makelaar en koopman. Hij was ook opdrachtgever van de buurpanden 501 en 505, waarmee 503 een schitterende halsgeveldrieling vormt. Tot ver in de achttiende eeuw bleven de drie panden in één hand.
Eind negentiende eeuw heeft dit pand een forse verbouwing ondergaan. Daarbij is onder andere de bordestrap afgebroken en de entree naar grachtniveau gebracht. In diezelfde periode is ook het drielaagse achterhuis bijgebouwd. Weer later zijn de panden op Keizersgracht 503 en 505 op de begane grond samengevoegd. Bij de verkoop wordt de perceelindeling 503-505 weer hersteld.
Bijzonderheden van 503 zijn onder meer een verswaterreservoir onder de gang en de opvallende halsgevel. Deze is versierd met een bloemenmotief en op het lijstvormige fronton zijn wapens afgebeeld.

AM105163-1843504-Keizersgracht-503,-Amsterdam-172792621
AM105163-1843504-Keizersgracht-503,-Amsterdam-172792647
AM105163-1843504-Keizersgracht-503,-Amsterdam-172792635
AM105163-1843504-Keizersgracht-503,-Amsterdam-172792643
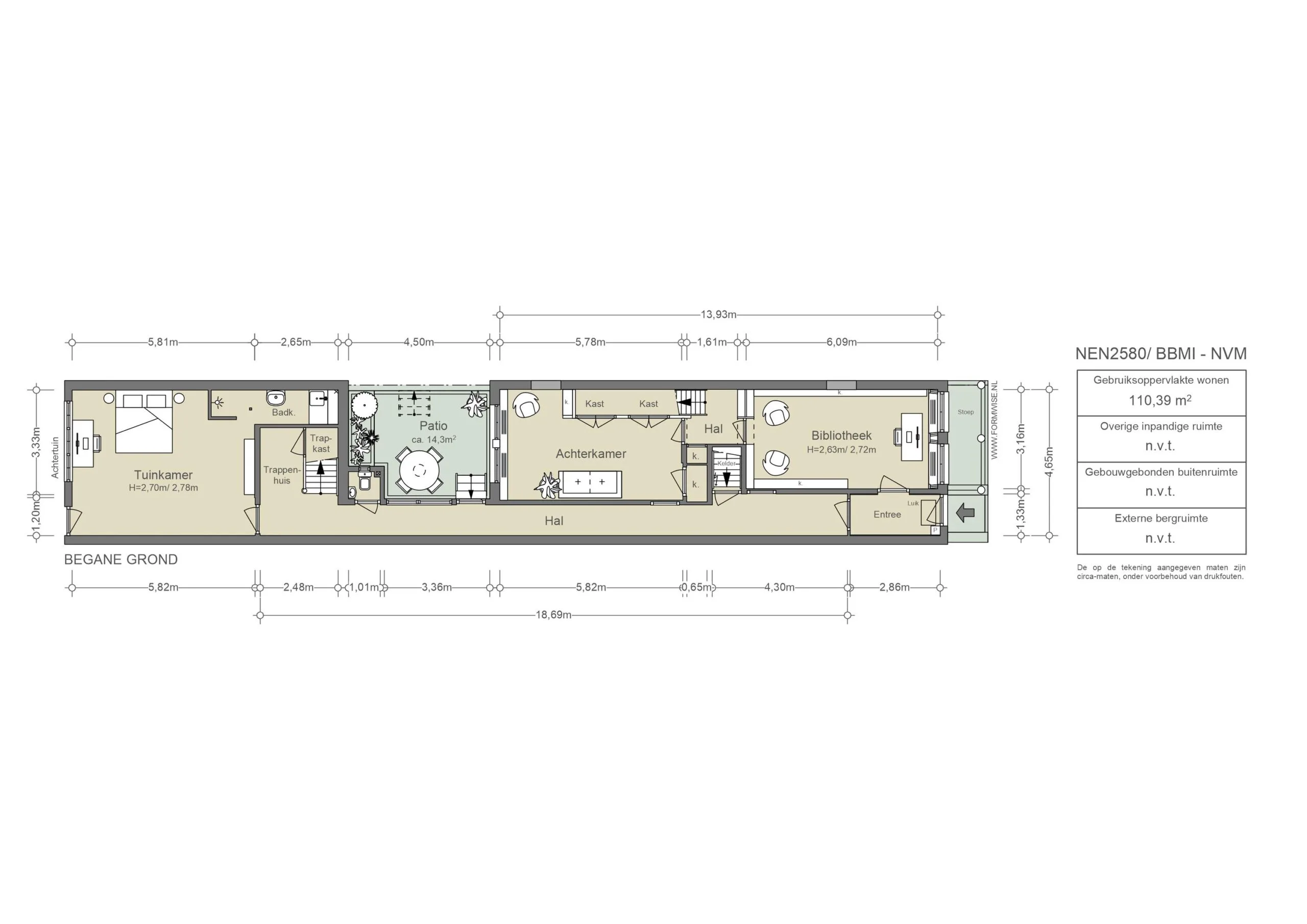
Begane grond

De entree op grachtniveau loopt door in een gang met marmeren plavuizen die achter in het pand toegang geeft tot de zonnige keurtuin. Er is een kamer aan de voorzijde en een achterkamer die uitkijkt op de patio. Aan het eind van de negentiende eeuw is hier een achterhuis bijgebouwd van maar liefst drie lagen, met op de begane grond een aangename tuinkamer. Kenmerkend voor dit koopmanshuis uit de gouden eeuw is ook de kelder, met als extra bijzonderheid dat er onder de gang nog een origineel vers drinkwaterreservoir aanwezig is.

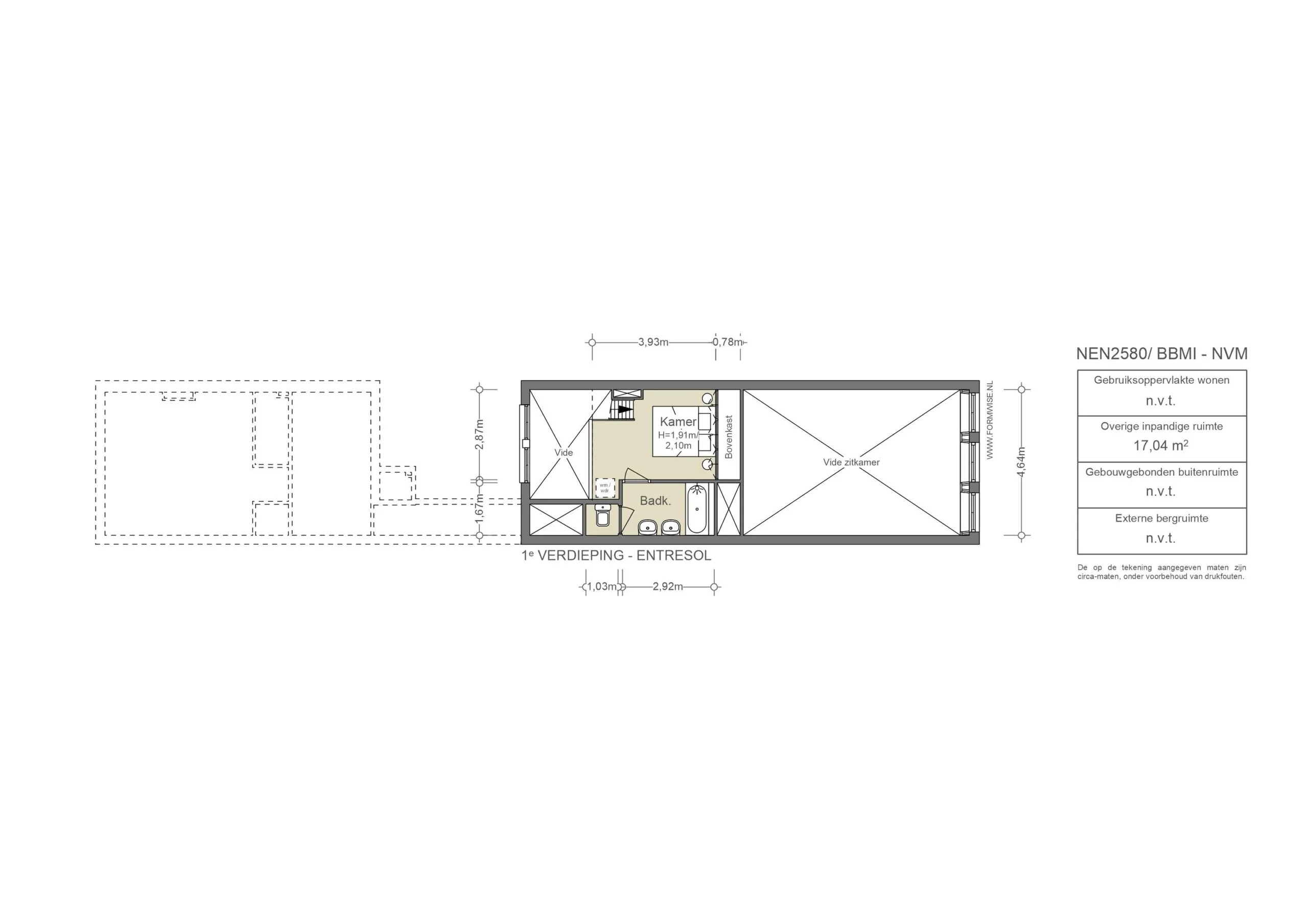
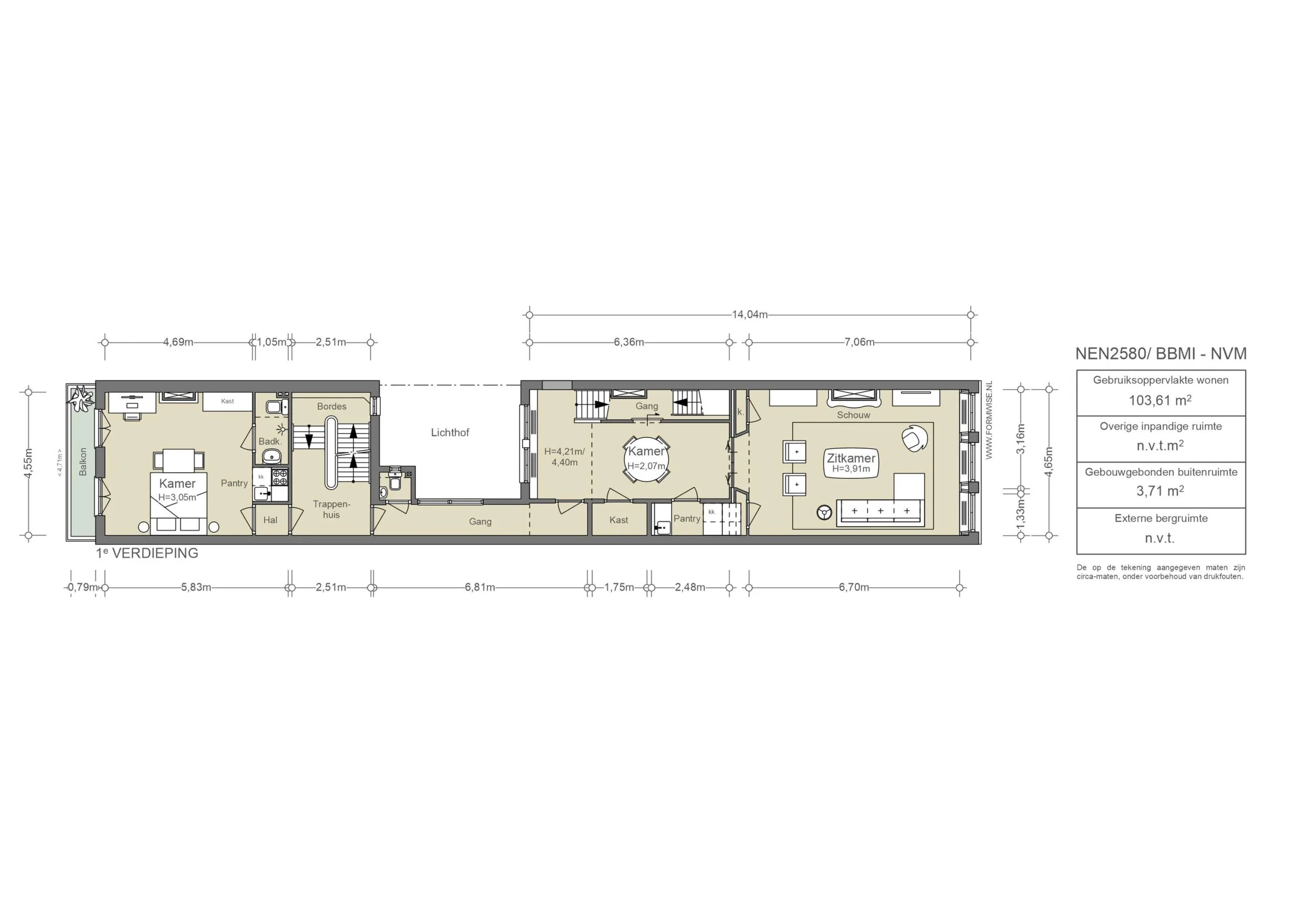
De eerste verdieping
Deze verdieping is circa vier meter hoog en heeft drie ramen aan de gracht. De ramen gaan open met monumentale espagnoletten. Ook de haard in rococostijl draagt bij aan de elegante uitstraling. De voorgevel ligt op het zuiden. Dit maakt dat de zonnestralen die op het water in de gracht vallen, door de ramen reflecteren op het plafond. Dit geeft de ruimte een prachtig licht. Aan de achterzijde wederom aan het lichthof hebben eerdere eigenaren gebruikgemaakt van de hoogte door een entresol te construeren. Zo is een knusse, prettige slaapplek ontstaan met eigen sanitair. In het achterhuis is een aparte studio met openslaande deuren naar een balkon met avondzon aan de tuin. De studio is voorzien van een pantry en een badkamer met douche.

AM105163-1843504-Keizersgracht-503,-Amsterdam-172792723
AM105163-1843504-Keizersgracht-503,-Amsterdam-172792651
AM105163-1843504-Keizersgracht-503,-Amsterdam-172792671
AM105163-1843504-Keizersgracht-503,-Amsterdam-172792669
AM105163-1843504-Keizersgracht-503,-Amsterdam-172792667
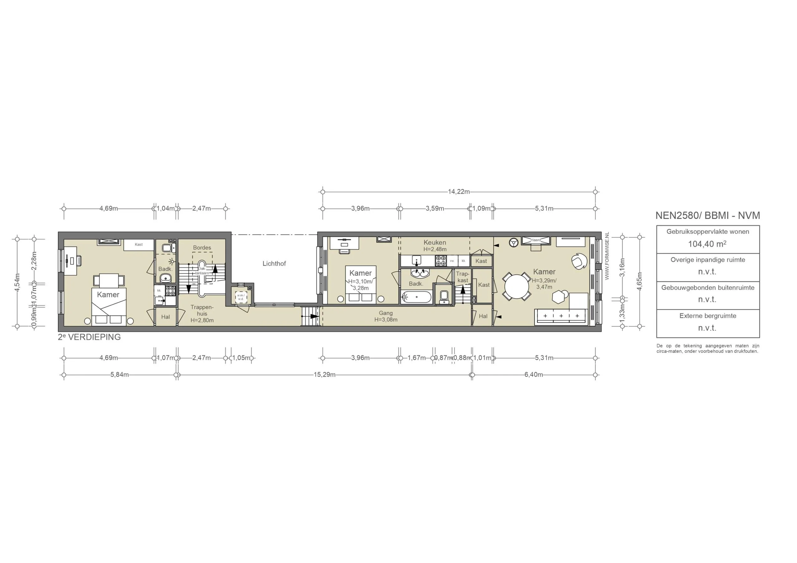
De tweede verdieping

Ook op deze verdieping geeft het hoge plafond een bijzonder ruimtelijk effect. Het voorhuis op deze verdieping herbergt een zelfstandige wooneenheid met een voorkamer met open haard en een slaapkamer aan de achterkant. Tussen de slaapkamer en de woonkamer bevindt zich een keuken. Het achterhuis heeft op deze verdieping een aparte, sfeervolle studio met twee ramen die uitzicht bieden op de tuin. Deze studio heeft ook een eigen keuken en badkamer.

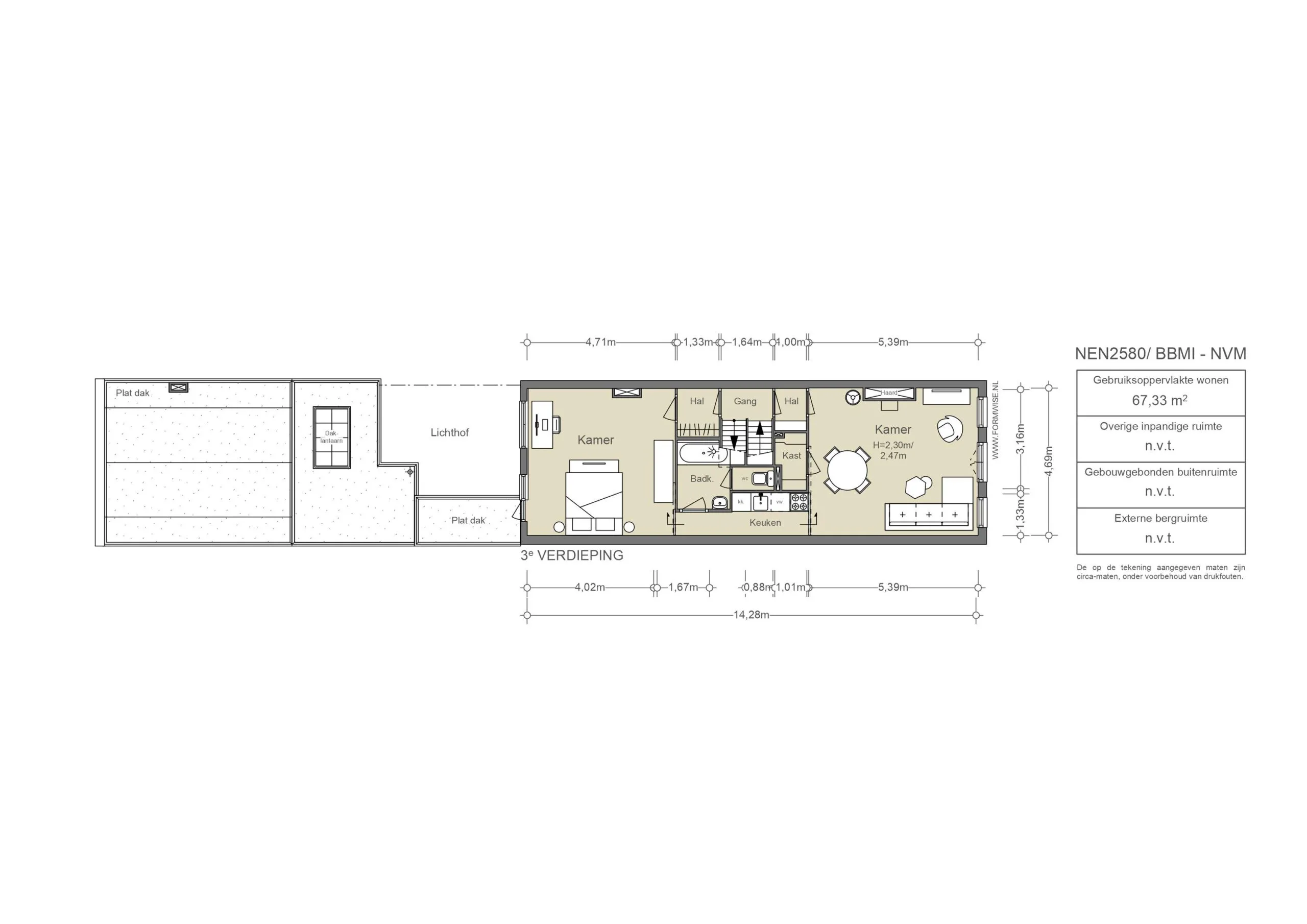
De derde verdieping
Net als op de tweede verdieping bevindt zich hier in het voorhuis een zelfstandige eenheid. Deze bestaat uit een woonkamer, een slaapkamer, een eenvoudige keuken en in het midden een badkamer met ligbad, wastafel en toilet. Het geheel heeft een oppervlakte van ca. 62 m² en een courante indeling.

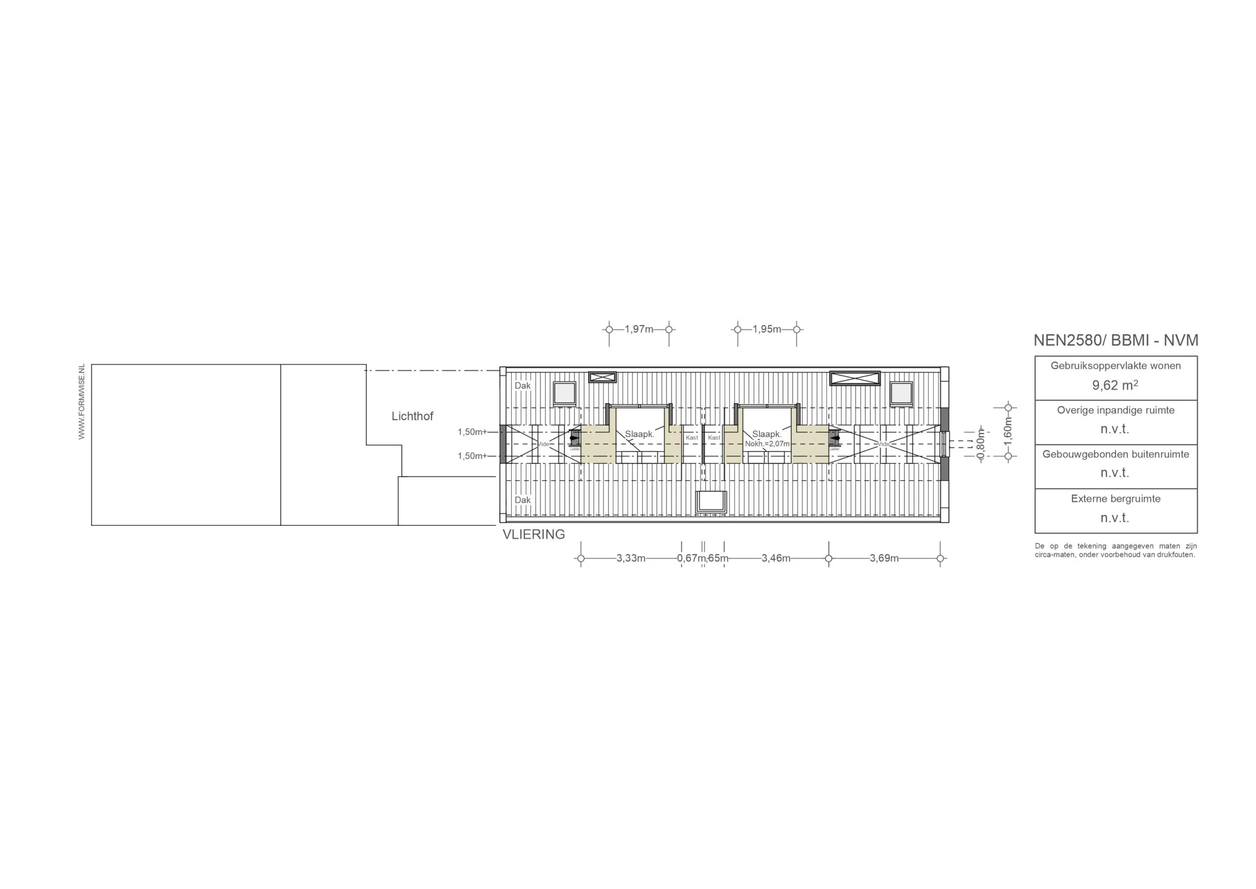
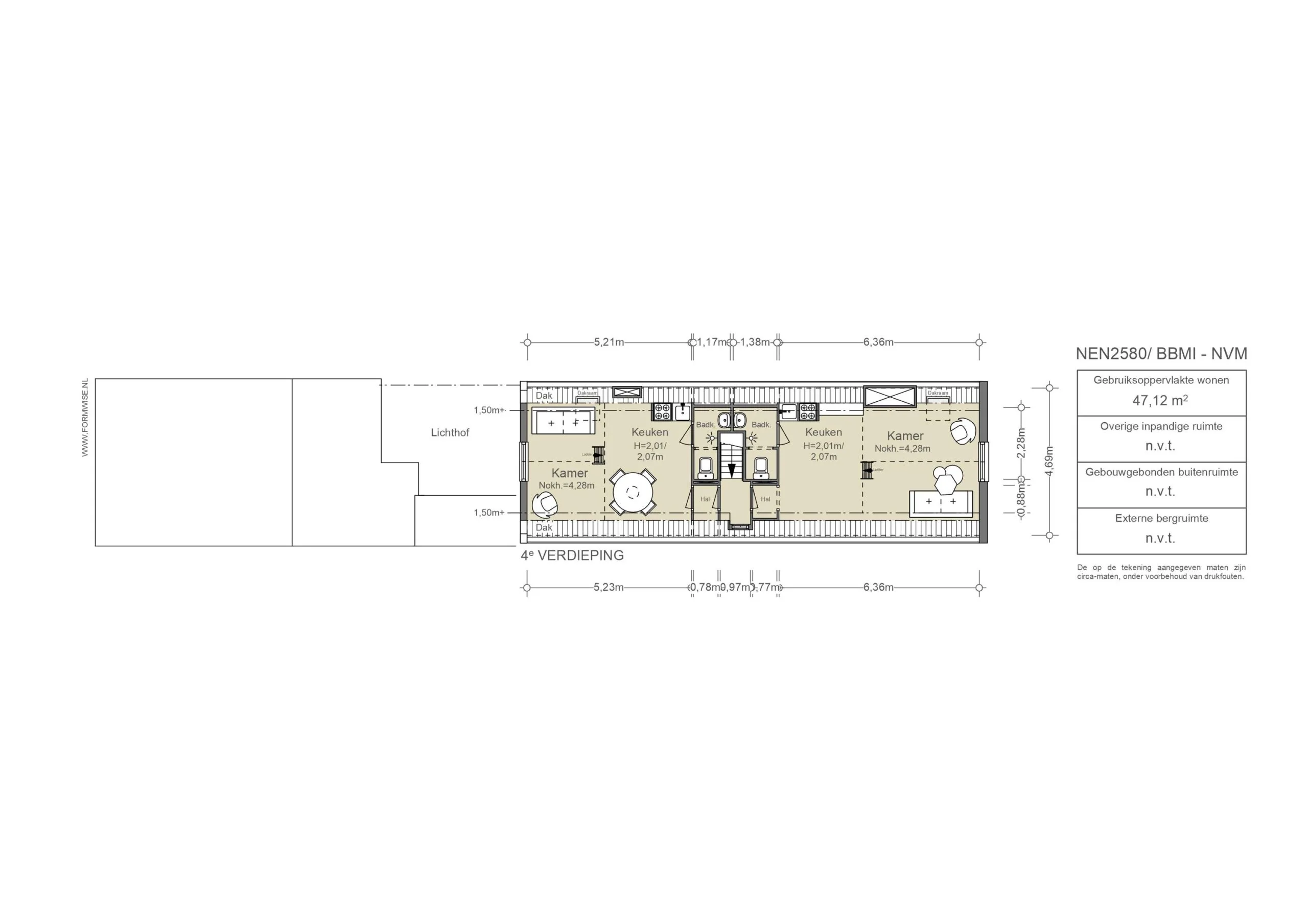
De vierde verdieping
Deze verdieping in het hoofdhuis is verdeeld in twee ongeveer even grote studio’s met vliering, van respectievelijk 20 m² en 23 m².
Zo is het pand op dit moment verdeeld over zelfstandige appartementen en studio’s.

AM105163-1843504-Keizersgracht-503,-Amsterdam-172792677
AM105163-1843504-Keizersgracht-503,-Amsterdam-172792683
AM105163-1843504-Keizersgracht-503,-Amsterdam-172792699
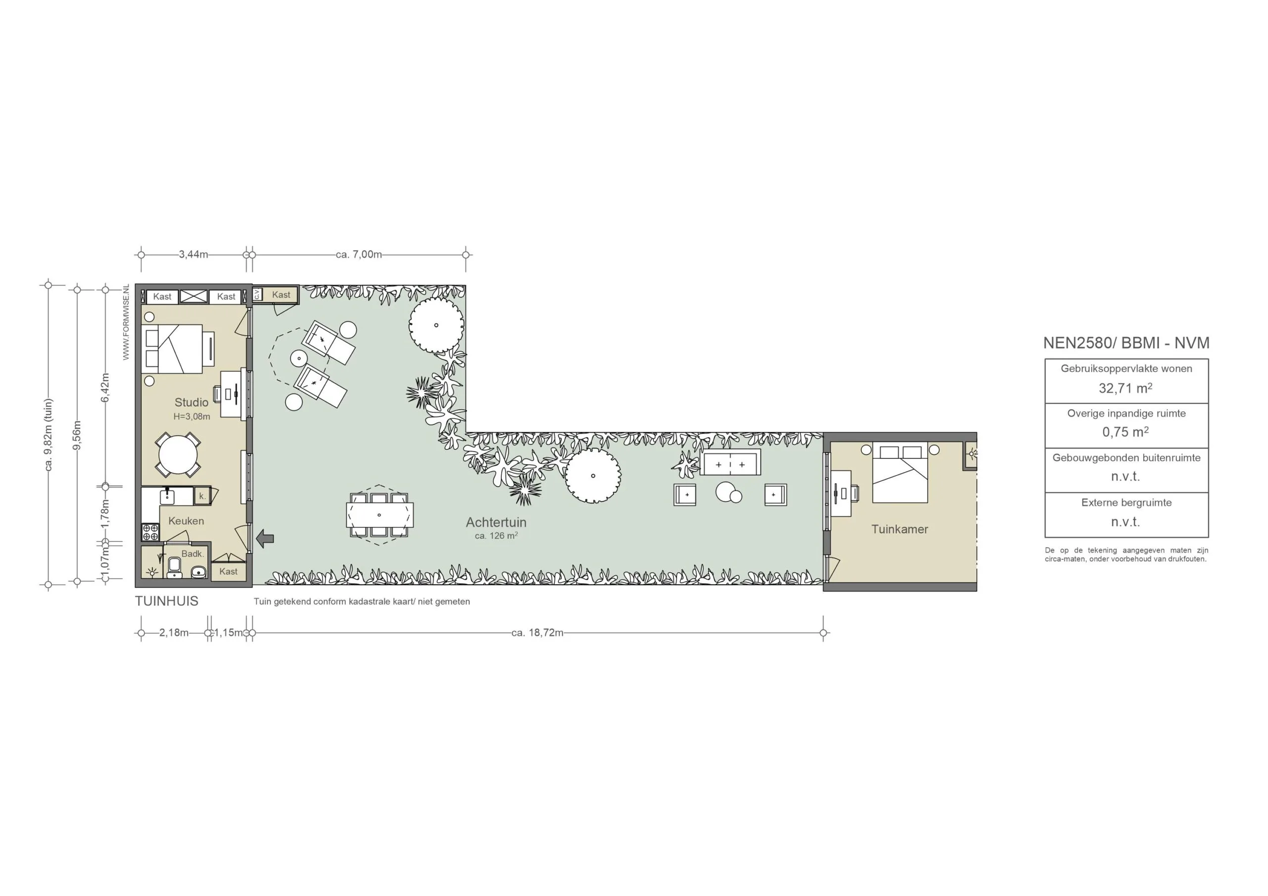
De buitenruimte

Een van de aantrekkelijke elementen van dit grachtenpand is de fraaie keurtuin. Een oase in de binnenstad; en juist op de plek waar de tuinen tussen de Keizersgracht en de Herengracht op hun breedst zijn, met de minste bebouwing. Hier ligt aan de achterzijde de Gouden Bocht met zijn extra grote en imposante panden.
Het gedeelte van de keurtuin achter Keizersgracht 503 en 505 is tot nu toe in gebruik geweest als een gemeenschappelijke tuin voor beide panden. Achterin staat een tuinhuis over de breedte van de twee percelen. In overeenstemming met de huidige erfafscheiding worden de percelen kadastraal gesplitst. Het tuinhuis wordt verkocht met nummer 503 en een stuk van de tuin van 505.

AM105163-1843504-Keizersgracht-503,-Amsterdam-172792617
AM105163-1843504-Keizersgracht-503,-Amsterdam-172792767
1017 DE Nieuwe Spiegelstraat 6A-5
1017 DX Keizersgracht 725-78
Buurtgids

Keizersgracht 503 ligt in de Grachtengordel-Zuid, in een rustig gedeelte van de Spiegelbuurt. Vlak bij het Rijksmuseum, het Amstelveld en talloze voorzieningen van buurtwinkels en speciaalzaken tot culturele instellingen, toprestaurants, bruine cafés en galerieën. Deze buurt heeft naar verhouding veel jonge inwoners van tussen de 25 en 44 jaar. Zo is deze locatie makkelijk bereikbaar en is de metro halte Vijzelstraat op loopafstand.

Bereikbaarheid
De verbindingen met het openbaar vervoer zijn uitstekend. Zo is de Noord/Zuidlijn vlakbij en zijn er goede tramverbindingen vanaf de Leidsestraat en de Vijzelgracht die om de hoek liggen. Alle haltes zijn op enkele minuten lopen.
Het pand ligt op loopafstand van een supermarkt en het Centraal Station en met de fiets is bijna elke plek binnen de ring binnen 20 minuten te bereiken. Daarnaast is de dichtstbijzijnde uitvalsweg in de nabije omgeving op ongeveer 5 minuten rijden.

Parkeergelegenheid
Parkeren is mogelijk via een vergunningenstelsel op de openbare weg (vergunningsgebied Centrum-2f). Met een parkeervergunning voor Centrum-2f mag u parkeren in Centrum-2. Een parkeervergunning voor bewoners kost € 315,60 per 6 maanden. Momenteel is er voor dit vergunningsgebied een wachttijd van 12 maanden. Een tweede parkeervergunning is in dit gebied niet mogelijk. (Bron: Gemeente Amsterdam, oktober 2024).

 

1017 VJ Utrechtsestraat 75-6
AM105163-1843504-Keizersgracht-503,-Amsterdam-172826029
AM105163-1843504-Keizersgracht-503,-Amsterdam-172792735
AM105163-1843504-Keizersgracht-503,-Amsterdam-172792721
Kenmerken
Keizersgracht 503, Amsterdam
Vraagprijs
  • € 3.200.000 k.k.
Beschikbaarheid
  • In overleg
Vertrekken
  • 17 kamers
  • 9 slaapkamers
  • 9 badkamers
Onderhoud
  • Intern: Redelijk
  • Extern: Redelijk
Oppervlakten & Inhoud
  • Woonoppervlakte: 466 m²
  • Overige inpandige ruimte: 44 m²
  • Gebouwgebonden buitenruimte: 4 m²
  • Perceeloppervlakte: 372 m²
Bouwjaar
  • 1680
Installaties
  • Dakraam
  • Natuurlijke ventilatie
  • Rookkanaal
  • TV kabel
Ligging
  • Aan rustige weg
  • Aan vaarwater
  • Aan water
  • In centrum
  • In woonwijk
Parkeren
  • Betaald parkeren
  • Openbaar parkeren
  • Parkeervergunningen
Schuur/Berging Voorzieningen
  • Voorzien van elektra
  • Voorzien van verwarming
  • Voorzien van water
Type verwarming
  • CV Ketel
  • Open haard
Type warmwater
  • CV Ketel
  • Geiser eigendom
Bestemming
  • Woonruimte
Eigendomssoort
  • Volle eigendom
Buitenruimte
  • Achtertuin
Kadastraal
  • Gemeente: Amsterdam
  • Sectie: I
  • Nummer: 6113
Soort
  • Grachtenpand
  • Tussenwoning
  • Woonhuis
Bijzonderheden
  • Beschermd stads of dorpsgezicht
  • Dubbele bewoning mogelijk
  • Erfgoed
  • Monument
  • Monumentaal pand
Overige kenmerken
  • OZB ('25) € 2.699,21 per jaar
  • Rioolrecht ('25) € 185,20 per jaar
Plattegrond
Keizersgracht 503, Amsterdam
AM105163-1843504-Keizersgracht-503,-Amsterdam-204001469
AM105163-1843504-Keizersgracht-503,-Amsterdam-204001473
AM105163-1843504-Keizersgracht-503,-Amsterdam-204001475
AM105163-1843504-Keizersgracht-503,-Amsterdam-204001479
AM105163-1843504-Keizersgracht-503,-Amsterdam-204001483
AM105163-1843504-Keizersgracht-503,-Amsterdam-204001485
AM105163-1843504-Keizersgracht-503,-Amsterdam-204001487
AM105163-1843504-Keizersgracht-503,-Amsterdam-204001489
AM105163-1843504-Keizersgracht-503,-Amsterdam-204001491
Documenten
Keizersgracht 503, Amsterdam
Locatie
Keizersgracht 503, Amsterdam
Kunst & cultuur
Schermafbeelding 2023-09-26 om 13.10.24
01
Adres
Kerkstraat 105-A,
1017 GD Amsterdam

Siewe Gallery

Slewe Gallery is in 1944 opgericht door Martita Slewe. De galerie is gespecialiseerd in hedendaagse kunst. Het internationaal georiënteerde programma legt vanaf het begin de nadruk op actuele ontwikkelingen in de abstracte kunst, met name in de schilderkunst. De galerie vertegenwoordigt zowel gevestigde als opkomende kunstenaars uit diverse generaties en landen.

art_386_roger-katwijk_troublesome-fancies_roos-holleman_web-res_jdewaart_14-5-22_5
02
Adres
Prinsengracht 737,
1017 KK Amsterdam

Roger Katwijk Galerie

Aan de Prinsengracht 737 kun je de prachtige Roger Katwijk galerie vinden. Een lichte plek voor hedendaagse kunst, abstracte kunst en geabstraheerde figuratie van zowel Nederlandse als internationale kunstenaars. Het gehele jaar door kun je hier wisselende exposities ontdekken op het gebied van de schilder- en beeldhouwkunst.

2006b22272a073075554111102a2a516e7e_resized
03
Adres
Prinsengracht 510 O,
1017 KH Amsterdam

Mia Karlova Galerie

Mia Karlova Galerie, gelegen aan de Prinsengracht, streeft ernaar een dialoog tot stand te brengen tussen werken van verschillende genres door middel van een gemeenschappelijke emotionele taal. Mia Karlova Galerie zet functionele beeldhouwkunst in de schijnwerpers met een intrigerend programma van internationale hedendaagse kunstenaars en productontwerpers. Deze kunstvorm, die originaliteit uitstraalt in ontwerp of materiaal, biedt een uitzonderlijk plezier tijdens de interactie.

270053381_5179749475386566_1324756550501219040_n
04
Adres
Prinsengracht 452,
1017 KE Amsterdam

De Uitkijk

Amsterdam heeft door de jaren heen vele bioscopen komen en gaan, maar Filmtheater De Uitkijk bestaat nog steeds! Het pand aan de Prinsengracht 452 heeft een bewogen verleden en begon in 1912 als City Bioscoop, toen het werd omgebouwd van een 17e-eeuws pakhuis. In 1929 nam de Filmliga de bioscoop over en veranderde de naam in het Filmtheater De Uitkijk. Dit was het allereerste avant-garde filmtheater van Nederland. Sinds 2007 is De Uitkijk een zusterproject van de organisatie Kriterion en wordt het geleid door een groep van dertien studenten.

foam_editions_rezwt_w1600_h800_h800_q85-1-2
05
Adres
Keizersgracht 609,
1017 DS Amsterdam

Foam

Foam is een fotografiemuseum die meestal meerdere tentoonstellingen tegelijk presenteert. De exposities wisselen van historische foto’s tot kunstfoto’s en van documentairefotografie tot modefoto’s. Elk jaar wordt er werk vertoond van bekende fotografen; denk aan Helmut Newton en William Klein. Foam stimuleert jong talent en zij hebben dan ook de kans om hun werk tijdelijk tentoon te stellen. De zalen zijn strak en modern vormgegeven en de foto’s zijn met spotjes verlicht, zodat deze goed zichtbaar zijn. Foam kan je elke paar maanden opnieuw bezoeken door hun constant wisselende exposities.

goed_formaat_website_peter_kooijman_(16)
06
Adres
Keizersgracht 672,
1017 ET Amsterdam

Museum van Loon

In een voormalig woonhuis uit 1672 aan de Amsterdamse grachtengordel ligt Museum van Loon. Naast vaste opstelling met (historische) portretten, meubilair, zilverwerk en porselein, worden hier ook tijdelijke tentoonstellingen georganiseerd waarbij een deel van de collectie van het museum, het huis, of de geschiedenis van de familie Van Loon centraal staan. Achter het huis ligt de unieke tuin die is aangelegd in de stijl van de 17e eeuw. Kortom een museum waar je terecht kan voor erfgoed, kunstgeschiedenis én hedendaagse kunst.

Eten & drinken
313291039_676821367342686_470247651338795489_n
07
Adres
Nieuwe Spiegelstraat 3A,
1017 DB Amsterdam

Zero Zero

Zero Zero is een bakkerij en delicatessenwinkel gelegen in Amsterdam en eigendom van dezelfde eigenaren als Ceppi's. Naast het maken van pizza is Greco gespecialiseerd in het maken van zuurdesembrood. De naam Zero Zero komt van bloem als de basis van wat ze verkopen. De Toscaanse zuurdesembroden (schiacciata) zijn belegd met ingrediënten zoals gegrilde aubergine, gemarineerde courgette met munt, balsamico en zongedroogde tomaten (€9), of mortadella, stracciatella en pistache (€10). Zero Zero verkoopt verkoopt naast de broodjes een breed scala aan Italiaanse delicatessen, waaronder wijn, zakken pasta en olijfolie. Verse ingrediënten voor broodjes zijn ook te koop. Hoewel de meeste klanten komen voor een broodje om mee te nemen, zijn ze ook welkom om te blijven en te genieten van een kopje koffie. Volgens Greco zijn alle delicatessen verkrijgbaar bij Zero Zero uit afkomstig uit Italië.

Schermafbeelding 2022-05-18 om 18.34.11
08
Adres
Kerkstraat 96H,
1017 GP Amsterdam

Bocca

Als je goede koffie zegt, kan je inmiddels een boel plekken in Amsterdam opnoemen maar, Bocca is weer even net nog een slagje beter. Hun werkruimte is groot zodat de barista’s genoeg ruimte hebben de beste koffie te zetten. De moeite waard om naar binnen te gaan, al is het maar om te zien hoe deze geschoolde barista’s alles eraan doen om jouw perfecte cappuccino met vakmanschap klaar te maken.

Carmen-Guest-House-Amsterdam-Store-Patter-PlacesIMG_0520
09
Adres
Keizersgracht 600,
1017 EP Amsterdam

Carmen

Winkel, restaurant en guesthouse. Eigenaren Carmen Atiyah de Baets en Joris ter Meulen Swijtink openden na enkele jaren gewerkt en gewoond te hebben in Londen deze geweldige hotspot op de Keizersgracht. Carmen selecteerde een fijne mix van mode, interieur, accessoires van bijzondere ontwerpers. Joris bestiert de keuken waar regelmatig buitenlandse bevriende chefs gehost worden.

325547281_571799494854962_4627029980323073806_n
10
Adres
Kerkstraat 59,
1017 GC Amsterdam

Yuzu Dining Bar

Bij Yuzu Dining Bar serveren ze geen sushi, maar wel een verscheidenheid aan kleine Japanse gerechten, waaronder edamame en verschillende yakitorispiesjes. Het restaurant laat je kennis maken met de Japanse gewoonten, zoals het opbergen van je jas in een mandje onder je stoel en het eten zonder bestek. De sfeer is informeel en gezellig, en het personeel is vriendelijk en attent. Je kan er ook terecht voor een cocktail tot in de late uurtjes.

downloadgram.org_564220181_122106806385035737_2639409528052682900_n
downloadgram.org_591949292_122113731201035737_4138354092764306839_n
11
Adres
Reguliersdwarsstraat 28,
1017 BM Amsterdam

Blik

Blik is opgezet door Tijn Verstappen en driesterrenchef Jacob Jan Boerma, samen met gastheer Manuel Broekman en ondernemer Tim Ouborg, als een bistro bar waar eenvoud en kwaliteit samenkomen. De kaart draait om herkenbare klassiekers met een creatieve twist, waarbij Boerma’s ervaring in topkeukens voelbaar is zonder dat het stijf of formeel wordt. Naast de gezellige binnenruimte beschikt Blik ook over een tuinterras achter het pand, een fijne plek om bij goed weer te genieten van je gerecht en glas in de buitenlucht.

tokyo_ramen_iki_ramen_restaurant_amsterdam_header
12
Adres
Kerkstraat 148A,
1017 GR Amsterdam

Tokyo Ramen Takeichi

Deze Japanse ramen keten heeft inmiddels al meerdere vestigingen over de hele wereld. In Amsterdam zijn inmiddels al drie vestigingen. Tokyo Ramen Takeichi is bekend om zijn gezonde ramen met kip en groentebouillon. Doordat ze trouw blijven aan de Japanse roots is het een authentieke restaurant. Naast hun specialiteit zijn de side dishes ook heerlijk. De 'karaage' zal je niet teleurstellen.

Frens-Haringhandel_FMWS_20160418_0039_-e1592935539840
traditional-herring-frens-haringhandel-710×375
13
Adres
1017 AW Amsterdam

Frens Haringhandel

Frens Haringhandel is nog een van de weinige viskramen in Amsterdam waar je heerlijke verse haring en andere vis kan bestellen op de traditioneel Hollandse manier. Al sinds 1972 is de familie Frens actief in de haringindustrie, inmiddels wordt de kraam gerund door vrouw, zoon en vriend van Frens. De kraam staat op een vaste plek op Koningsplein en is iedere dag geopend voor een verse hap vis met zuurtjes en ui.

14
Adres
Lange Leidsedwarsstraat 37-41,
1017 NG Amsterdam

The Madras Diaries

The Madras Diaries is geopend in 2020 en biedt een Zuid-Indiase keuken aan. In deze keuken wordt over het algemeen pittiger gekruid dan wij gewend zijn. Er wordt veel gebruik gemaakt van chili’s, zwarte peper, kruidnagel en kardemom. Dat maakt het behalve extreem rijk van smaak, soms ook wat minder toegankelijk. Gelukkig bieden ze een zelfgemaakte limonade kaart aan om af te koelen. Naast de bekende mango lassi hebben ze seizoensdrankjes en nog veel meer. Goed nieuws voor de vegetariërs en veganisten, binnen deze keuken wordt dat niet gezien als een uitzondering. Genoeg keuze dus!

15
Adres
Prinsengracht 568,
1017 KR Amsterdam

Heuvel

Buurtbewoners en galeriehouders uit het Spiegelkwartier komen hier regelmaat op bezoek. Bij Café Heuvel is het bijna elke dag dag rond 17:00 al volop borreluur. 'Als ik sneuvel, dan bij Heuvel!' Het kleine hoekcafé met fijn terras is een van de oudste cafés van de stad.

foto6
Buffet-van-Odette-148
16
Adres
Prinsengracht 598,
1017 KS Amsterdam

Buffet van Odette

Odette Rigterink begon Buffet van Odette in 1994. Ze laadde pannen vol met zelfgemaakt eten in een krat voorop de fiets en serveerde een dagmenu aan jong en oud Amsterdam bij de crèche Enfant Terrible. Vanaf 2011 is het restaurant gevestigd op Prinsengracht 598, op de hoek van Weteringstraat. Ze serveren hun vaste klassiekers en koken ook met het seizoen mee en hebben een uitgebreide (natuur)wijnkaart. Van maandag tot en met vrijdag serveren ze zowel lunch als diner.

 

17
Adres
Korte Leidsedwarsstraat 139-141,
1017 PZ Amsterdam

Taste of Culture

Tate of Culture schijnt de plek te zijn waar chefs midden in de nacht naartoe gaan als ze zin hebben in Chinees eten. En ik geef ze geen ongelijk. De menukaart is enorm uitgebreid, je kan kiezen tussen authentieke Chinese gerechten of dimsum. Een gerecht wat je zeker niet mag missen is de eend. Je kan het half of heel bestellen, met rijst en verschillende sauzen of getrancheerd en geserveerd met flensjes.

317354155_576309097838056_5300133261289346202_n
18
Adres
Beulingstraat 7,
1017 BA Amsterdam

Pianeta Terra

Fabio van Pianeta Terra, staat bekend als de onbetwiste kampioen van slowfood in de stad. In zijn keuken combineert hij op meesterlijke wijze de fijnste lokale ingrediënten tot authentiek Italiaanse gerechten. Gastvrouw Laura Martini maakt de ervaring compleet door bijpassende prachtige wijnen te schenken, waardoor een perfect verzorgde avond gegarandeerd is.

19
Adres
Lijnbaansgracht 267 HS,
1017 RL Amsterdam

Shiraz

Shiraz is niet voor niets als winnaar uit de wijnbar van het jaar wedstrijd gekomen. In het hartje van Amsterdam ligt deze geliefde wijnbar, waar je nieuwe wijnen kan ontdekken of terug kan vallen op je favoriete wijn. Als je het lastig vindt om te kiezen tussen de in totaal 150 wijnen, staat het personeel altijd paraat om je van vakkundig advies te voorzien of om iets te laten proeven. In deze tuin van wijnen kan je genieten van een heerlijk glas wijn met een bijbehorend hapje.

Schermafbeelding 2022-10-10 om 12.05.00
Schermafbeelding 2022-10-10 om 12.05.19
20
Adres
Voetboogstraat 23,
1012 XK Amsterdam

Bhatti Pasel

Na jaren ervaring opdoen in top restaurants en hotels in verschillende landen, opent Tika Pun zijn eigen deuren van Bhatti Pasel. Een authentiek Nepalees restaurant midden in Amsterdam. Je kan er terecht voor een snelle lunch, een diner of een shared dining experience. Ze serveren heerlijke Nepalese, met de keuze uit gestoomde of gefrituurde dumplings (momo), gecombineerd met sesam, tomaat of koriander.

S__3538969
278628659_710596233460905_6303603926454891176_n
21
Adres
Leidseplein 10,
1017 PT Amsterdam

Sushi HANABI

Hanabi, wat 'vuurwerk' betekent, is een uniek Japans restaurant met twee verdiepingen. Beneden kun je genieten van donburi en yakitori, terwijl je boven kan genieten van een klassieke Edomae-sushi ervaring. Het omakase-menu stelt de chef in staat om gerechten naar eigen inzicht te serveren, rechtstreeks aan de gasten. Deze sushi is al op smaak gebracht met sojasaus en wasabi en kan zelfs met de hand worden gegeten. Bij Hanabi heb je de flexibiliteit om je reserveringstijd te kiezen en uit drie prijscategorieën te kiezen. De duurdere menu's bevatten luxere ingrediënten zoals blauwvintonijn, sneeuwkrab, kaviaar en Japanse coquille. Het diner begint met verfijnde amuses, gevolgd door heerlijke gerechten zoals sake-gemarineerde coquille met kaviaar en zoete sneeuwkrab met yuzu.

Boodschappen
casa del gusto
22
Adres
Kerkstraat 121,
1017 GE Amsterdam

Casa del gusto

Gianni en Gessica hebben een duidelijke toekomstvisie voor Casa del Gusto. ‘We willen een klein bedrijf blijven dat met kleinschalige boeren samenwerkt: dat is ons concept. ‘Alle boeren met wie wij werken, kennen we persoonlijk. Wij kopen onze Grana Padano – de populairste kaas van Italië – in bij een boer die slechts twee stukken per dag produceert. Dat is bijna niets vergeleken grote industriële producenten die honderden exemplaren per dag leveren. Wat wij heel belangrijk vinden, is dat je door de smaak van onze salami’s, pasta’s en bieren de producenten leert kennen.' Je moet de liefde die de boeren erin hebben gestopt terug kunnen proeven’, legt Gessica uit. Van hazelnootpasta en gnocchi tot bottarge en aloë vera-beautyproducten: de winkel staat vol heerlijke delicatesse en mooie producten. Casa del Gusto is, net zoals de naam suggereert, een smaakhuis voor zijn klanten.

Interieur
19891-en-muuto-showroom-amsterdam-16
26895-en-amstedam-showroom-sep-2023-muuto-hi-res-32
23
Adres
Keizersgracht 469,
1017 DK Amsterdam

Muuto

Muuto is geworteld in de Scandinavische ontwerptraditie, gekenmerkt door tijdloze esthetiek, functionaliteit, vakmanschap en een eerlijke expressie. Muuto komt van 'muutos', wat nieuwe perspectieven betekent in het Fins. Je herkent het design omdat het muutos heeft: objecten verheven door nieuwe perspectieven, wereldwijd gewaardeerd en representatief voor het beste van Scandinavisch design vandaag de dag. Om Muuto te bezoeken moet je van te voren een afspraak maken, dat kan via hun website.

EnterTheLoft_IV_WEB_LARGE_AicoLind-14_1500x
EnterTheLoft_IV_WEB_LARGE_AicoLind-9_1500x
24
Adres
Vijzelstraat 77,
1017 HG Amsterdam

Enter the loft

Enter the Loft is een boetiek interieurwinkel en een interieur adviesbureau  met een passie; zien hoe ruimtes hun magie op mensen uitoefenen. Ga langs bij hun showroom aan de Vijzelstraat (by appointment only) en voel hoe zij ruimtes tot leven brengen door ze in te richten met hun favoriete interieurvondsten die met liefde en aandacht zijn gemaakt en die bestaan uit natuurlijke materialen – hout, leer, glas, staal, wol en keramiek.

68b5fce4900d8af5fd8fa70e_Frame 109
68b5fcde3bc17a074edca4a0_Frame 121
25
Adres
Singel 395,
1012 WN Amsterdam

Two Story

Two Story ontstond vanuit de overtuiging dat kunst voor iedereen is en dat hedendaagse kunst niet afstandelijk of intimiderend hoeft te zijn. De oprichters transformeerden een historisch grachtenpand tot een tweelaagse combinatie van galerie, designstore en café die aanvoelt als een echt thuis. Hun visie draait om het creëren van dat Sunday Morning Feeling, met de geur van verse koffie, zachte muziek en kunst die opgaat in het dagelijkse ritme. Voor het ontwerp werkten ze samen met het Kopenhaagse Atelier Axo, bekend om hun ruimtelijke storytelling en gevoel voor balans tussen oud en nieuw. De sfeer is warm en toegankelijk, een plek waar nostalgie en vernieuwing samenkomen in een omgeving die kunst vanzelfsprekend maakt.

Uitgelicht; Open view

Uitgelicht; Open view

Samengesteld; een collectie creatieve werkplekken in hergebruikte gebouwen

Samengesteld; een collectie creatieve werkplekken in hergebruikte gebouwen

Uitgelicht; The Gentleman

Uitgelicht; The Gentleman

Onlangs bekeken
Bekijk het overzicht

Deze site maakt gebruik van cookies.

Voor welke cookies geef je akkoord?