Een appartement van circa 186 m² gelegen op eigen grond dat historie, schaal en comfort samenbreng

Via de volgende link kunt u eenvoudig een bezichtiging inplannen.

Rondleiding
Achter de bekende art nouveau gevel uit 1927 bevindt zich een zeldzaamheid in de Amsterdamse binnenstad: een ruimtelijk appartement van bijna 200 m², volledig gelijkvloers met lift. Vanuit de statige hal komt de lift direct uit in de woning op de tweede verdieping. Bij binnenkomst valt onmiddellijk de bijzondere maatvoering op. Dankzij een dubbelbrede gevel en vijf grote ramen op een rij, heeft u een ongehinderd en breed zicht op de historische Keizersgracht. Omdat de woning van meerdere kanten natuurlijk licht ontvangt, kent het gehele appartement een uitzonderlijke helderheid en een zeer prettige atmosfeer.
De royale oppervlakte zorgt ervoor dat de verschillende woonfuncties op een vloeiende manier in elkaar overgaan. Het zitgedeelte aan de ramen met uitzicht over de gracht, met een natuurlijke overloop naar de eethoek en de open keuken. Het is een indeling die ruimtelijkheid combineert met overzichtelijkheid.
De ruime hoofdslaapkamer aan de achterzijde is voorzien van royale inbouwkasten en kijkt uit over het beschutte groen van de binnentuinen. De tweede slaapkamer leent zich met haar formaat uitstekend als comfortabel gastenverblijf of rustige werkplek. De woning biedt bovendien de mogelijkheid om relatief eenvoudig een derde slaapkamer te creëren, waardoor de indeling zich goed laat aanpassen aan verschillende woonwensen.
In het slaapgedeelte bevinden zich de badkamers. De hoofd badkamer is uitgevoerd in natuursteen en beschikt over een ligbad en wastafelmeubel. Daarnaast is er een tweede badkamer met douche en aansluitingen voor wasapparatuur.
Vanuit het achterste deel van het appartement is er toegang tot het terras op het zuidwesten. Deze buitenruimte ligt beschut aan de binnenzijde van het bouwblok en biedt een rustige plek om buiten te zitten in de middag- en avondzon.
De combinatie van de uitzonderlijke gevelbreedte, het vrije uitzicht over de Keizersgracht, lift direct in het appartement en de royale indeling maakt deze woning bijzonder binnen de grachtengordel. Tegelijkertijd liggen voorzieningen, restaurants en openbaar vervoer op korte afstand, waardoor het appartement het comfort van een ruime stadswoning combineert met een centrale ligging in Amsterdam.

Buurtgids 
Keizersgracht 496A ligt in de Grachtengordel-Zuid. De levendigheid van de binnenstad bevindt zich hier op steenworp afstand. Op korte loopafstand liggen onder andere het Leidseplein en het Koningsplein, met een breed aanbod aan winkels, boetieks, cafés, terrassen en restaurants. Ook de Negen Straatjes, bekend om hun speciaalzaken en sfeervolle horeca, zijn binnen enkele minuten bereikbaar. Voor cultuur en ontspanning bevinden zich onder andere het DeLaMar Theater, de Stadsschouwburg en diverse musea op loop- of fietsafstand. Tegelijkertijd bieden de grachten en omliggende straten volop mogelijkheden om te genieten van de historische omgeving en het groen langs het water.

Bijzonderheden
•    Gebruiksoppervlakte wonen circa 186 m²
•    Balkon gelegen op het zuidwesten van circa 6 m²
•    Berging van circa 33 m²
•    Gelegen op eigen grond
•    Energielabel D
•    Eenvoudig een derde slaapkamer te creëren
•    Servicekosten VvE € 470,- per maand
•    Gemeentelijk monument
•    Rijksbeschermd stadsgezicht
 

AM101830-2120006-Keizersgracht-496A,-Amsterdam-261903552

Keizers Continental
Aan een ruim en open gedeelte van de Keizersgracht bevindt zich dit bijzondere appartement op de derde verdieping van een karakteristiek gebouw uit 1927. Oorspronkelijk gebouwd voor de Continentale Handelsbank en later jarenlang in gebruik bij onder meer de ANWB, draagt het pand een duidelijke geschiedenis die nog altijd voelbaar is in de statige architectuur en de royale maatvoering.
Het appartement onderscheidt zich door de uitzonderlijke breedte aan de voorzijde. De hoge, gebogen ramen geven vrij zicht over de gracht en zorgen voor een opvallend lichte leefruimte. Met een woonoppervlak van circa 186 m² en een directe lift die uitkomt in het appartement, biedt de woning een niveau van comfort dat in historische grachtenpanden zelden voorkomt.
De combinatie van de brede gevel, de open leefruimte en de rustige slaapvertrekken aan de achterzijde zorgt voor een heldere en goed uitgebalanceerde indeling. Het terras op het zuidwesten vormt daarbij een aangename buitenruimte met middag- en avondzon.
De ligging tussen de Vijzelstraat en de Leidsegracht maakt dat voorzieningen, restaurants en openbaar vervoer zich op korte afstand bevinden, terwijl het uitzicht over de gracht juist rust en ruimte biedt.


Jelle Mundt | Makelaar Broersma Wonen
Ronald van de Bijl | Makelaar Broersma Wonen
AM101830-2120006-Keizersgracht-496A,-Amsterdam-261903282
Designvisie

Het gebouw aan de Keizersgracht heeft een statige architectuur met een opvallend brede gevel voor de grachtengordel. De natuurstenen voorgevel met hoge rondboogvensters bepaalt het karakter van het pand en geeft het een monumentale uitstraling. De plaatsing van de vensters en de detaillering rondom de entree zorgen voor een evenwichtige gevel.
Het pand dateert uit 1927 en werd oorspronkelijk gebouwd voor de Continentale Handelsbank. Later waren op de begane grond onder meer een juwelier en andere commerciële functies gevestigd, terwijl de bovenliggende etages in gebruik waren als kantoorruimte. In 1987 zijn de etages herontwikkeld en ingericht als woningen. De oorspronkelijke kantoorfunctie verklaart de royale maatvoering en de uitzonderlijke breedte van de gevel.
De woonverdieping heeft een brede leefruimte aan de voorzijde met een reeks hoge ramen die uitkijken over de Keizersgracht. Deze ramen zorgen voor veel daglicht en bieden uitzicht op de gracht en het straatbeeld. De plafondhoogte van ruim drie meter versterkt het gevoel van ruimte en benadrukt de proporties van de leefruimte.
De indeling is ruim en overzichtelijk, waarbij de verschillende functies in de leefruimte logisch met elkaar zijn verbonden. Door de breedte van de gevel kunnen meerdere woonzones worden gecreëerd zonder dat het ruimtelijke gevoel verloren gaat.
Het appartement is direct bereikbaar via een lift die uitkomt in het appartement zelf, wat zorgt voor een zelfstandige en private entree. In combinatie met de woonoppervlakte van circa 186 m² en de brede gevel aan de gracht heeft de woning een ruim en representatief karakter binnen de grachtengordel.

Keizersgracht 496A-1
Keizersgracht 496A-6
Keizersgracht 496A-5
Keizersgracht 496A-10
Wonen en koken

De leefruimte bevindt zich aan de voorzijde van het appartement en strekt zich uit over vrijwel de volledige breedte van de gevel aan de Keizersgracht. Een reeks hoge rondboogvensters zorgt hier voor veel natuurlijk licht en biedt uitzicht op de gracht. Vanuit de zithoek is er vrij zicht op het water en de karakteristieke gevels aan de overzijde.
Door de uitzonderlijke breedte van de gevel ontstaat een royale leefruimte waarin verschillende functies vanzelfsprekend naast elkaar bestaan. Het zitgedeelte ligt direct aan de ramen en profiteert optimaal van het uitzicht. Verder in de ruimte ontstaat een natuurlijke overgang naar het eetgedeelte, waardoor er een heldere en comfortabele indeling ontstaat.
De keuken is open geïntegreerd in de leefruimte en vormt een logisch onderdeel van het dagelijks gebruik. De positie in de ruimte zorgt ervoor dat koken en wonen met elkaar verbonden blijven, zonder dat de openheid van de woonkamer wordt onderbroken.
De combinatie van de brede gevel, de hoge plafonds en de grote raampartijen geeft deze verdieping een bijzonder ruimtelijk karakter. Het licht, het uitzicht en de open indeling maken de woonkamer tot het centrale punt van het appartement, waar wonen, koken en ontvangen goed samenkomen.

Keizersgracht 496A-13
Keizersgracht 496A-8
Keizersgracht 496A-16 2
AM101830-2120006-Keizersgracht-496A,-Amsterdam-261903652
AM101830-2120006-Keizersgracht-496A,-Amsterdam-261903658
AM101830-2120006-Keizersgracht-496A,-Amsterdam-261903648
AM101830-2120006-Keizersgracht-496A,-Amsterdam-261903692
Slapen en baden

De slaapvertrekken bevinden zich aan de rustige achterzijde van het appartement. Door deze ligging zijn de kamers duidelijk afgescheiden van de levendigheid van de gracht en ontstaat er een aangename, stille omgeving.
De hoofdslaapkamer heeft een royale maatvoering en wordt gekenmerkt door de brede raampartij die zorgt voor een gelijkmatige lichtinval. Langs de wand is een grote kastenwand geïntegreerd, waardoor er veel bergruimte beschikbaar is zonder dat dit ten koste gaat van de ruimtelijkheid van de kamer.
De tweede slaapkamer is eveneens ruim van opzet en kan flexibel worden gebruikt, bijvoorbeeld als logeerkamer, werkkamer of extra slaapkamer. Door de afmetingen van het appartement is het bovendien mogelijk om relatief eenvoudig een derde slaapkamer te creëren, waardoor de indeling zich goed leent voor verschillende woonwensen.
De badkamer is uitgevoerd in natuursteen en heeft een rustige, functionele indeling met ligbad en wastafelmeubel. Daarnaast is er een tweede badkamer aanwezig met douche en aansluitingen voor wasapparatuur, wat het dagelijks gebruik praktisch maakt.

AM101830-2120006-Keizersgracht-496A,-Amsterdam-261903664
AM101830-2120006-Keizersgracht-496A,-Amsterdam-261903704
AM101830-2120006-Keizersgracht-496A,-Amsterdam-261903706
AM101830-2120006-Keizersgracht-496A,-Amsterdam-261903714
Keizersgracht 496A-37 – kopie
Keizersgracht 496A-17
Keizersgracht 496A-18
De buitenruimte

Aan de achterzijde van het appartement bevindt zich een terras van circa zes vierkante meter. Het terras ligt op het zuidwesten, waardoor het in de middag en avond prettig in de zon ligt.
Door de ligging aan de binnenzijde van het bouwblok is dit een rustige plek met uitzicht op de omliggende achtergevels en daken. Het terras is direct bereikbaar vanuit het slaapgedeelte en vormt daarmee een aangename buitenruimte die eenvoudig te gebruiken is als zitplek of voor groenvoorziening in potten. De combinatie van de rustige ligging en de gunstige zonoriëntatie maakt het terras tot een functionele aanvulling op het appartement.

AM101830-2120006-Keizersgracht-496A,-Amsterdam-261903832
AM101830-2120006-Keizersgracht-496A,-Amsterdam-261903758
Buurtfoto 1
AM101830-2120006-Keizersgracht-496A,-Amsterdam-261903794

Buurtgids
Keizersgracht 496A ligt in de Grachtengordel-Zuid. De levendigheid van de binnenstad bevindt zich hier op steenworp afstand. Op korte loopafstand liggen onder andere het Leidseplein en het Koningsplein, met een breed aanbod aan winkels, boetieks, cafés, terrassen en restaurants. Ook de Negen Straatjes, bekend om hun speciaalzaken en sfeervolle horeca, zijn binnen enkele minuten bereikbaar. Voor cultuur en ontspanning bevinden zich onder andere het DeLaMar Theater, de Stadsschouwburg en diverse musea op loop- of fietsafstand. Tegelijkertijd bieden de grachten en omliggende straten volop mogelijkheden om te genieten van de historische omgeving en het groen langs het water.

Bereikbaarheid
De woning aan de Keizersgracht 496A uitstekend bereikbaar met zowel de fiets, auto als het openbaar vervoer. De tramhalte Keizersgracht bevindt zich op slechts één minuut loopafstand, waar tram 2, 12 en 17 directe verbindingen bieden naar onder andere Amsterdam Centraal Station en diverse andere stadsdelen. Daarnaast ligt metrohalte Rokin op circa tien minuten loopafstand, met de Noord/Zuidlijn richting Amsterdam Noord en Amsterdam Zuid. Met de fiets zijn alle voorzieningen en locaties binnen de ring binnen 20 minuten te bereiken. De uitvalswegen en de Ring A10 zijn binnen circa 15 minuten met de auto te bereiken.

Parkeren
Parkeren is mogelijk via een vergunningenstelsel op de openbare weg (vergunningsgebied Centrum-2f). Met een parkeervergunning voor Centrum-2f mag u parkeren in Centrum-2. Een parkeervergunning voor bewoners kost € 338,70 per 6 maanden. Momenteel is er voor dit vergunningsgebied een wachttijd van 14 maanden. Een tweede parkeervergunning is in dit gebied niet mogelijk. (Bron: Gemeente Amsterdam, maart 2026).

Buurtfoto 2
AM101830-2120006-Keizersgracht-496A,-Amsterdam-261903700
AM101830-2120006-Keizersgracht-496A,-Amsterdam-261903516
AM101830-2120006-Keizersgracht-496A,-Amsterdam-261903628
Kenmerken
Keizersgracht 496A, Amsterdam
Vraagprijs
  • € 2.400.000 k.k.
Beschikbaarheid
  • In overleg
Vertrekken
  • 4 kamers
  • 3 slaapkamers
  • 2 badkamers
Onderhoud
  • Intern: Redelijk
  • Extern: Goed
Oppervlakten & Inhoud
  • Woonoppervlakte: 186 m²
  • Gebouwgebonden buitenruimte: 6 m²
  • Externe bergruimte: 33 m²
Bouwjaar
  • 1927
Installaties
  • Lift
  • Mechanische ventilatie
  • Natuurlijke ventilatie
  • TV kabel
Ligging
  • Aan water
  • In centrum
Parkeren
  • Openbaar parkeren
  • Parkeervergunningen
Type verwarming
  • CV Ketel
Type warmwater
  • CV Ketel
Bestemming
  • Woonruimte
Eigendomssoort
  • Volle eigendom
Buitenruimte
  • Geen tuin
  • Balkon
Kadastraal
  • Gemeente: Amsterdam
  • Sectie: I
  • Nummer: 10214
Duurzaamheid
  • Energielabel D
Soort
  • Appartement
  • Tussenverdieping
Welke woonlaag
  • 3e
Bijzonderheden
  • Beschermd stads of dorpsgezicht
  • Monumentaal pand
Overige kenmerken
  • OZB ('26) €860,06 per jaar
  • Rioolrecht ('26) € 192,04 per jaar
  • Servicekosten VvE € 470,- per maand
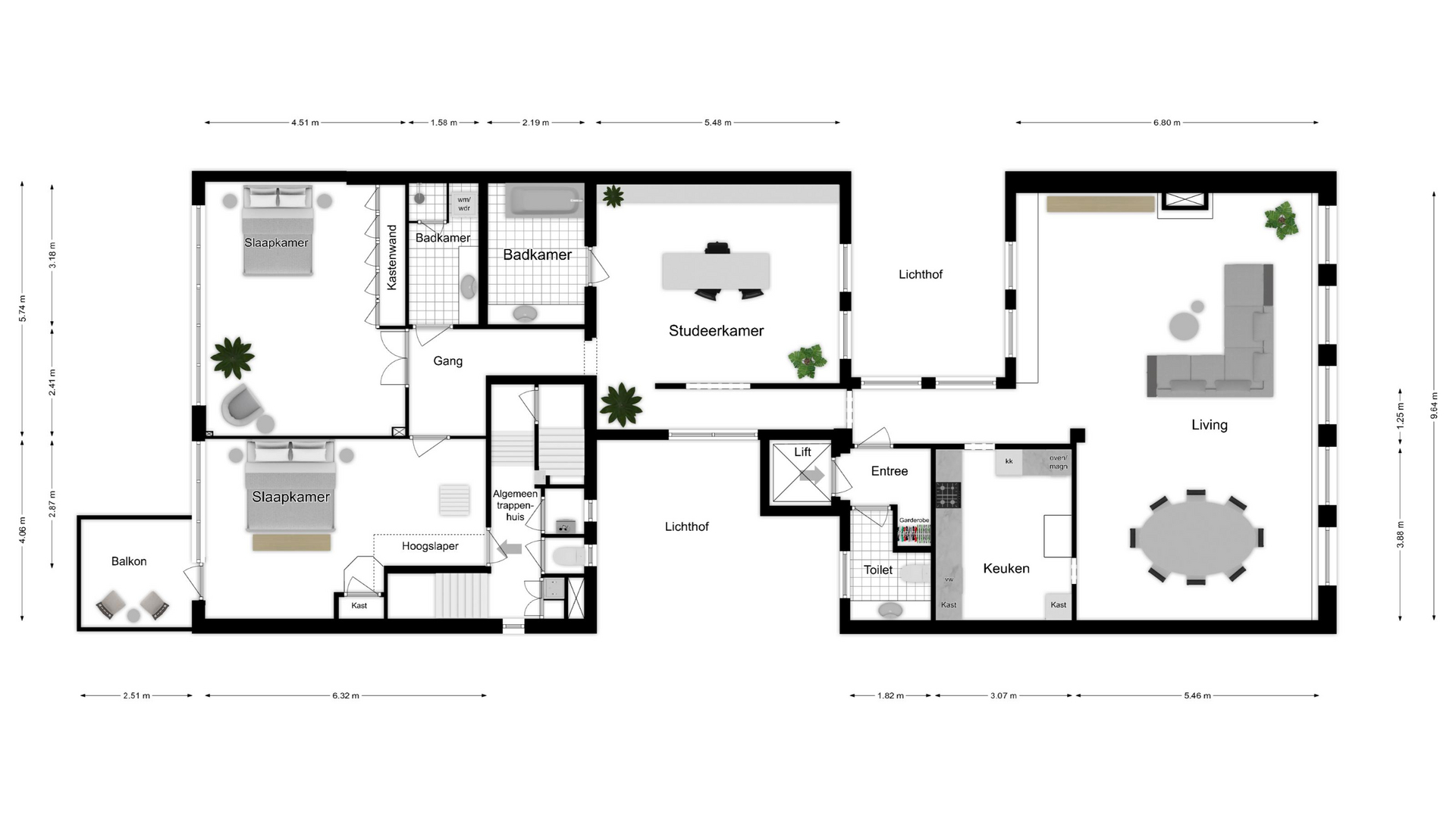
Plattegrond
Keizersgracht 496A, Amsterdam
AM101830-2120006-Keizersgracht-496A,-Amsterdam-265216424
AM101830-2120006-Keizersgracht-496A,-Amsterdam-265216430
AM101830-2120006-Keizersgracht-496A,-Amsterdam-265216438
AM101830-2120006-Keizersgracht-496A,-Amsterdam-265216444
AM101830-2120006-Keizersgracht-496A,-Amsterdam-265216508
AM101830-2120006-Keizersgracht-496A,-Amsterdam-265216854
AM101830-2120006-Keizersgracht-496A,-Amsterdam-266623584
Documenten
Keizersgracht 496A, Amsterdam
Locatie
Keizersgracht 496A, Amsterdam
Interieur
19891-en-muuto-showroom-amsterdam-16
26895-en-amstedam-showroom-sep-2023-muuto-hi-res-32
01
Adres
Keizersgracht 469,
1017 DK Amsterdam

Muuto

Muuto is geworteld in de Scandinavische ontwerptraditie, gekenmerkt door tijdloze esthetiek, functionaliteit, vakmanschap en een eerlijke expressie. Muuto komt van 'muutos', wat nieuwe perspectieven betekent in het Fins. Je herkent het design omdat het muutos heeft: objecten verheven door nieuwe perspectieven, wereldwijd gewaardeerd en representatief voor het beste van Scandinavisch design vandaag de dag. Om Muuto te bezoeken moet je van te voren een afspraak maken, dat kan via hun website.

web-4_2880x
Martijn_Vonck_Fotografie_21_900x
02
Adres
Prinsengracht 645,
1016 HV Amsterdam

The Frozen fountain

Of je nou een tourist of ras-amsterdammer bent, het blijft heerlijk om door de negen straatjes te struinen. The frozen fountain is één van die winkels waar je ogen naar afdwalen wanneer je de etalage met excentrieke design meubels passeert. In 1992 werd de basis voor the frozen fountain gevormd, zijde een platforms voor designers – voornamelijk afgestudeerden van de Design Acedemy in Eindhoven. Omdat ‘Dutch Design’ internationaal al een behoorlijke naam had verkregen, was de samenwerking met jonge Nederlandse designers een gigantische stimulus voor de bekendheid van the frozen fountain. Naast een winkel met een prachtige collectie noemt the frozen fountain zichzelf ook een instituut: voor en door designers, om de eer aan Dutch Design hoog te houden. En hoe!

Eten & drinken
325547281_571799494854962_4627029980323073806_n
03
Adres
Kerkstraat 59,
1017 GC Amsterdam

Yuzu Dining Bar

Bij Yuzu Dining Bar serveren ze geen sushi, maar wel een verscheidenheid aan kleine Japanse gerechten, waaronder edamame en verschillende yakitorispiesjes. Het restaurant laat je kennis maken met de Japanse gewoonten, zoals het opbergen van je jas in een mandje onder je stoel en het eten zonder bestek. De sfeer is informeel en gezellig, en het personeel is vriendelijk en attent. Je kan er ook terecht voor een cocktail tot in de late uurtjes.

Schermafbeelding 2022-05-18 om 18.34.11
04
Adres
Kerkstraat 96H,
1017 GP Amsterdam

Bocca

Als je goede koffie zegt, kan je inmiddels een boel plekken in Amsterdam opnoemen maar, Bocca is weer even net nog een slagje beter. Hun werkruimte is groot zodat de barista’s genoeg ruimte hebben de beste koffie te zetten. De moeite waard om naar binnen te gaan, al is het maar om te zien hoe deze geschoolde barista’s alles eraan doen om jouw perfecte cappuccino met vakmanschap klaar te maken.

05
Adres
Prinsengracht 424,
1016 JC Amsterdam

Café de Pieper

Café de Pieper is familiebedrijf met veel stamgasten. Het is een klassiek, maar gezellig café met houten lambrisering, waar je bier, cider en worst kunt krijgen.

06
Adres
Lange Leidsedwarsstraat 37-41,
1017 NG Amsterdam

The Madras Diaries

The Madras Diaries is geopend in 2020 en biedt een Zuid-Indiase keuken aan. In deze keuken wordt over het algemeen pittiger gekruid dan wij gewend zijn. Er wordt veel gebruik gemaakt van chili’s, zwarte peper, kruidnagel en kardemom. Dat maakt het behalve extreem rijk van smaak, soms ook wat minder toegankelijk. Gelukkig bieden ze een zelfgemaakte limonade kaart aan om af te koelen. Naast de bekende mango lassi hebben ze seizoensdrankjes en nog veel meer. Goed nieuws voor de vegetariërs en veganisten, binnen deze keuken wordt dat niet gezien als een uitzondering. Genoeg keuze dus!

07
Adres
Prinsengracht 422,
1016 JC Amsterdam

Sinck

Teamleider Timo van der Stad is samen met Chef-kok Sander Bierenbroodspot en sommelier Sabas Joosten (eerder de Librije), restaurant en wijnbar Sicnk gestart. Bij Sinck gaan ze voor kwaliteit én voor een lage drempel. Chefkok Sander zorgt voor goede bereidingen van mooie producten met extra focus op sauzen. Het restaurant bevindt zich boven en beneden kom je terecht in de sfeervolle wijnbar. De wijnkaart is uitgebreid met een focus op Franse wijnen.

S__3538969
278628659_710596233460905_6303603926454891176_n
08
Adres
Leidseplein 10,
1017 PT Amsterdam

Sushi HANABI

Hanabi, wat 'vuurwerk' betekent, is een uniek Japans restaurant met twee verdiepingen. Beneden kun je genieten van donburi en yakitori, terwijl je boven kan genieten van een klassieke Edomae-sushi ervaring. Het omakase-menu stelt de chef in staat om gerechten naar eigen inzicht te serveren, rechtstreeks aan de gasten. Deze sushi is al op smaak gebracht met sojasaus en wasabi en kan zelfs met de hand worden gegeten. Bij Hanabi heb je de flexibiliteit om je reserveringstijd te kiezen en uit drie prijscategorieën te kiezen. De duurdere menu's bevatten luxere ingrediënten zoals blauwvintonijn, sneeuwkrab, kaviaar en Japanse coquille. Het diner begint met verfijnde amuses, gevolgd door heerlijke gerechten zoals sake-gemarineerde coquille met kaviaar en zoete sneeuwkrab met yuzu.

317354155_576309097838056_5300133261289346202_n
09
Adres
Beulingstraat 7,
1017 BA Amsterdam

Pianeta Terra

Fabio van Pianeta Terra, staat bekend als de onbetwiste kampioen van slowfood in de stad. In zijn keuken combineert hij op meesterlijke wijze de fijnste lokale ingrediënten tot authentiek Italiaanse gerechten. Gastvrouw Laura Martini maakt de ervaring compleet door bijpassende prachtige wijnen te schenken, waardoor een perfect verzorgde avond gegarandeerd is.

Frens-Haringhandel_FMWS_20160418_0039_-e1592935539840
traditional-herring-frens-haringhandel-710×375
10
Adres
1017 AW Amsterdam

Frens Haringhandel

Frens Haringhandel is nog een van de weinige viskramen in Amsterdam waar je heerlijke verse haring en andere vis kan bestellen op de traditioneel Hollandse manier. Al sinds 1972 is de familie Frens actief in de haringindustrie, inmiddels wordt de kraam gerund door vrouw, zoon en vriend van Frens. De kraam staat op een vaste plek op Koningsplein en is iedere dag geopend voor een verse hap vis met zuurtjes en ui.

103869559_10163664798155142_645102952535043170_n
11
Adres
Huidenstraat 25,
1016 ER Amsterdam

Café de Pels

Café de Pels is een echt intellectueel creatief café. Menig boek of column is hier geschreven, goede gesprekken worden hier gevoerd en leuke of stomme grappen zijn hier uitgeprobeerd. Ook wordt er in de Pels op z’n Amsterdams geflirt, gediscussieerd en zoals het hoort in een Amsterdams bruincafé, bier gedronken. De muren hangen vol met kunst dat door vaste gasten zelf gemaakt is. Het is een bruincafé met een creatief randje, broodjes kroket en op maandag een daghap.

284424519_5126376000748750_5583589813571934548_n
12
Adres
Wijde Heisteeg 1,
1016 AS Amsterdam

The Lebanese Sajeria

Lange rijen staan er dagelijks voor de vestigingen van de The Lebanese Sajeria in Amsterdam. Deze zaak is begonnen als foodtruck waar de eigenaren Libanees fastfood serveren met een twist. In 2016 openden zij hun eerste restaurant in de 9 straatjes en het werd een groots succes. Inmiddels hebben zij drie vestigingen in Amsterdam waar zij elke dag overheerlijke gerechten uit de Libanese keuken serveren. Bij The Lebanese Sajeria koken ze met een traditionele Saj; een koepelvormige plaat waar broden op gebakken kunnen worden. Op de saj maken ze hun manoushes en saj broden die worden gebruikt voor de smaakvolle wraps zoals de Manoushe Zatar en Halloumi of de Beef Labneh.

downloadgram.org_564220181_122106806385035737_2639409528052682900_n
downloadgram.org_591949292_122113731201035737_4138354092764306839_n
13
Adres
Reguliersdwarsstraat 28,
1017 BM Amsterdam

Blik

Blik is opgezet door Tijn Verstappen en driesterrenchef Jacob Jan Boerma, samen met gastheer Manuel Broekman en ondernemer Tim Ouborg, als een bistro bar waar eenvoud en kwaliteit samenkomen. De kaart draait om herkenbare klassiekers met een creatieve twist, waarbij Boerma’s ervaring in topkeukens voelbaar is zonder dat het stijf of formeel wordt. Naast de gezellige binnenruimte beschikt Blik ook over een tuinterras achter het pand, een fijne plek om bij goed weer te genieten van je gerecht en glas in de buitenlucht.

313291039_676821367342686_470247651338795489_n
14
Adres
Nieuwe Spiegelstraat 3A,
1017 DB Amsterdam

Zero Zero

Zero Zero is een bakkerij en delicatessenwinkel gelegen in Amsterdam en eigendom van dezelfde eigenaren als Ceppi's. Naast het maken van pizza is Greco gespecialiseerd in het maken van zuurdesembrood. De naam Zero Zero komt van bloem als de basis van wat ze verkopen. De Toscaanse zuurdesembroden (schiacciata) zijn belegd met ingrediënten zoals gegrilde aubergine, gemarineerde courgette met munt, balsamico en zongedroogde tomaten (€9), of mortadella, stracciatella en pistache (€10). Zero Zero verkoopt verkoopt naast de broodjes een breed scala aan Italiaanse delicatessen, waaronder wijn, zakken pasta en olijfolie. Verse ingrediënten voor broodjes zijn ook te koop. Hoewel de meeste klanten komen voor een broodje om mee te nemen, zijn ze ook welkom om te blijven en te genieten van een kopje koffie. Volgens Greco zijn alle delicatessen verkrijgbaar bij Zero Zero uit afkomstig uit Italië.

Kunst & cultuur
270053381_5179749475386566_1324756550501219040_n
15
Adres
Prinsengracht 452,
1017 KE Amsterdam

De Uitkijk

Amsterdam heeft door de jaren heen vele bioscopen komen en gaan, maar Filmtheater De Uitkijk bestaat nog steeds! Het pand aan de Prinsengracht 452 heeft een bewogen verleden en begon in 1912 als City Bioscoop, toen het werd omgebouwd van een 17e-eeuws pakhuis. In 1929 nam de Filmliga de bioscoop over en veranderde de naam in het Filmtheater De Uitkijk. Dit was het allereerste avant-garde filmtheater van Nederland. Sinds 2007 is De Uitkijk een zusterproject van de organisatie Kriterion en wordt het geleid door een groep van dertien studenten.

art_386_roger-katwijk_troublesome-fancies_roos-holleman_web-res_jdewaart_14-5-22_5
16
Adres
Prinsengracht 737,
1017 KK Amsterdam

Roger Katwijk Galerie

Aan de Prinsengracht 737 kun je de prachtige Roger Katwijk galerie vinden. Een lichte plek voor hedendaagse kunst, abstracte kunst en geabstraheerde figuratie van zowel Nederlandse als internationale kunstenaars. Het gehele jaar door kun je hier wisselende exposities ontdekken op het gebied van de schilder- en beeldhouwkunst.

Schermafbeelding 2023-09-26 om 13.10.24
17
Adres
Kerkstraat 105-A,
1017 GD Amsterdam

Siewe Gallery

Slewe Gallery is in 1944 opgericht door Martita Slewe. De galerie is gespecialiseerd in hedendaagse kunst. Het internationaal georiënteerde programma legt vanaf het begin de nadruk op actuele ontwikkelingen in de abstracte kunst, met name in de schilderkunst. De galerie vertegenwoordigt zowel gevestigde als opkomende kunstenaars uit diverse generaties en landen.

tumblr_mxhhnyvV5C1qjguz6o1_1280
18
Adres
Prinsengracht 645,
1016 HV Amsterdam

Galerie Wim van Krimpen

Sinds 1991 is Galerie Wim van Krimpen gehuisvest aan de Prinsengracht. Wim van Krimpen is een van de meest gewaardeerde museumdirecteuren van Nederland daarbij staat hij wereldwijd ook bekend als een verwoed kunstverzamelaar. In zijn galerie in de Jordaan vind je bijzondere hedendaagse kunstwerken. Vergeet van tevoren niet te bellen want de galerie is uitsluitend op afspraak te bezoeken.

deur_6e47a554-ba37-4854-8ed7-dba08d3a300c
19
Adres
Prinsengracht 615H,
1016 HT Amsterdam

Galerie Madé van Krimpen

Galerie Madé van Krimpen, voorheen bekend als Multiplemadé, presenteert een mix van tentoonstellingen die werk tonen van zowel gevestigde als opkomende kunstenaars. Hoewel de galerie vooral gericht is op solotentoonstellingen en groepsexposities, werken ze ook regelmatig samen met creatieve collectieven en makers om pop-up-evenementen en take-overs te organiseren.

2006b22272a073075554111102a2a516e7e_resized
20
Adres
Prinsengracht 510 O,
1017 KH Amsterdam

Mia Karlova Galerie

Mia Karlova Galerie, gelegen aan de Prinsengracht, streeft ernaar een dialoog tot stand te brengen tussen werken van verschillende genres door middel van een gemeenschappelijke emotionele taal. Mia Karlova Galerie zet functionele beeldhouwkunst in de schijnwerpers met een intrigerend programma van internationale hedendaagse kunstenaars en productontwerpers. Deze kunstvorm, die originaliteit uitstraalt in ontwerp of materiaal, biedt een uitzonderlijk plezier tijdens de interactie.

Cinecenter-Zaal-1-kopie-2
21
Adres
Lijnbaansgracht 236,
1017 PH Amsterdam

Cinecenter

Klein filmhuis met onder andere goede arthouse films. Zit aangesloten in het Cineville netwerk, dus met een Cineville pas kan je ook hier terecht. Ook leuk om van tevoren of na afloop een drankje te drinken. De locatie is direct naast het Leidseplein dus vanuit hier kan je nog veel andere leuke plekken bezoeken.

slide-158
22
Adres
Leidseplein 26,
1017 PT Amsterdam

Internationaal Theater Amsterdam

Het huidige gebouw dateert uit 1894. Al eerder stond er een schouwburg, maar deze bestond grotendeels uit hout en daar is niks meer van overgebleven na een hevige brand. Het Internationaal Theater Amsterdam valt op, omdat het een vooruitgeschoven plek heeft op het Leidseplein en twee torens en een ruim balkon heeft. Het heeft een klassieke zaal en een moderne zaal. De trappen en kroonluchters stralen luxe uit en je kunt je goed voorstellen dat het publiek vroeger voornamelijk uit de hogere klasse kwam. Er zijn voornamelijk toneelstukken te zien, maar wordt ook verleend voor onder andere moderne dans, lezingen en het boekenbal.

Boodschappen
casa del gusto
23
Adres
Kerkstraat 121,
1017 GE Amsterdam

Casa del gusto

Gianni en Gessica hebben een duidelijke toekomstvisie voor Casa del Gusto. ‘We willen een klein bedrijf blijven dat met kleinschalige boeren samenwerkt: dat is ons concept. ‘Alle boeren met wie wij werken, kennen we persoonlijk. Wij kopen onze Grana Padano – de populairste kaas van Italië – in bij een boer die slechts twee stukken per dag produceert. Dat is bijna niets vergeleken grote industriële producenten die honderden exemplaren per dag leveren. Wat wij heel belangrijk vinden, is dat je door de smaak van onze salami’s, pasta’s en bieren de producenten leert kennen.' Je moet de liefde die de boeren erin hebben gestopt terug kunnen proeven’, legt Gessica uit. Van hazelnootpasta en gnocchi tot bottarge en aloë vera-beautyproducten: de winkel staat vol heerlijke delicatesse en mooie producten. Casa del Gusto is, net zoals de naam suggereert, een smaakhuis voor zijn klanten.

9
24
Adres
Huidenstraat 12,
1016 ES Amsterdam

Chocolaterie Pompadour

Chocolaterie Pompadour is een patisserie aan de Huidenstraat. Alles draait hier om vakmanschap, pure producten en passie voor chocolade en gebak. Elk chocolaatje wordt met zorg gemaakt en prachtig gedecoreerd. In de bijbehorende tearoom kunt u in het prachtig nostalgische interieur genieten van heerlijke thee of Catalaanse koffie. Bij elk kopje koffie serveert Pomadour ook een zelfgebakken financier; een zalig frans cakeje van Spaanse amandelen en beurre noisette. Kortom, voor de beste gebakjes met pure smaken ben je hier aan het juiste adres.

kaaskamer-amsterdam-cheese-lunch-broodjes-speciale-kaas-80
25
Adres
Runstraat 7,
1016 GJ Amsterdam

Kaaskamer

De naam zegt het al; bij de Kaaskamer kan je terecht voor kaas. Van de vloer tot het plafond is deze winkel gevuld met kaas waarbij vakmanschap en traditie voorop staan. Bij deze kaasspeciaalzaak kan je tussen de 300 en 400 soorten kaas kopen uit heel Europa. Je kan hier je broodje beleggen met ruime keuze en om het af te maken kan je ook kiezen tussen verschillende huisgemaakte sausjes. Uit Frankrijk worden de kazen iedere twee weken zelf opgehaald en in Nederland ligt de focus op biologische kazen die rechtstreeks van de boer komen. Ook worden er wijnen, salades, olijven, hammen en noten verkocht voor een complete borrelplank.

Uitgelicht; Maison D’Angle

Uitgelicht; Maison D’Angle

Een galerie die meeleeft. In haar huis in Amsterdam Oud-Zuid ontwikkelde Marian Cramer een galeriepraktijk die zich onttrekt aan het klassieke model.

Een galerie die meeleeft. In haar huis in Amsterdam Oud-Zuid ontwikkelde Marian Cramer een galeriepraktijk die zich onttrekt aan het klassieke model.

Uitgelicht; In het hart van Oud-Zuid, tussen het Museumplein en de PC Hooftstraat verschijnt het mondaine ‘Petit Paris’

Uitgelicht; In het hart van Oud-Zuid, tussen het Museumplein en de PC Hooftstraat verschijnt het mondaine ‘Petit Paris’

Onlangs bekeken
Bekijk het overzicht

Deze site maakt gebruik van cookies.

Voor welke cookies geef je akkoord?