Appartement van een totale oppervlakte circa 119 m² (waarvan circa 24m² op de eerste verdieping met een plafondhoogte van 1,96 m en tot de balk 1,86 m), gelegen aan de Keizersgracht nabij de Leidsestraat. Het beschikt over een woonkamer, keuken, 2 slaapkamers, 1 badkamer en een dakterras. Gelegen op eigen grond.

Rondleiding
Aan de Keizersgracht, in het hart van Amsterdam, bevindt zich dit prachtige, lichte appartement op de bovenste verdieping van een monumentaal pand met uitzicht over het water.
De entree van het gebouw ademt historie: marmeren wanden, facetgeslepen glas, een donkergroene loper en een klassieke kroonluchter zorgen voor een statige ontvangst. Op de derde verdieping bevindt zich dit stijlvolle appartement met twee slaapkamers.
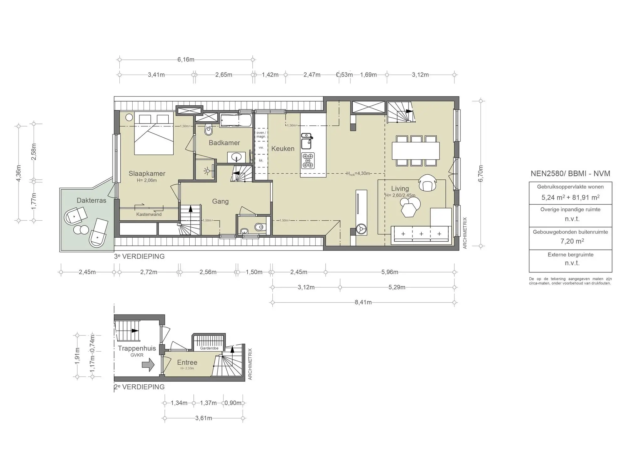
Aan de voorzijde bevindt zich de royale woonkamer met open keuken. Met een breedte van bijna zeven meter en een deel van de woonkamer met een plafondhoogte van circa 4,30 m², valt hier volop natuurlijk licht naar binnen. Dit zorgt samen met het schitterende uitzicht over de gracht voor een unieke woonbeleving. De open indeling versterkt het ruimtelijke gevoel, met de stijlvolle, moderne keuken als centraal middelpunt. Deze is uitgerust met diverse inbouwapparatuur en een royaal keukeneiland dat niet alleen veel werkruimte biedt, maar ook uitnodigt tot gezellige momenten met een kop koffie of een glas wijn.
De master bedroom ligt aan de rustige achterzijde van het appartement. Authentieke houten balken geven deze kamer karakter en vormen een mooi contrast met de lichte, natuurlijke tinten van vloer en wanden. En-suite bevindt zich de moderne badkamer, voorzien van een ligbad, inloopdouche, toilet en dubbele wastafel – een plek van rust en luxe, prachtig geïntegreerd in de originele stijl van het pand. Vanuit deze slaapkamer is ook het ruime dakterras toegankelijk: een zeldzaam rustige buitenruimte midden in de stad.
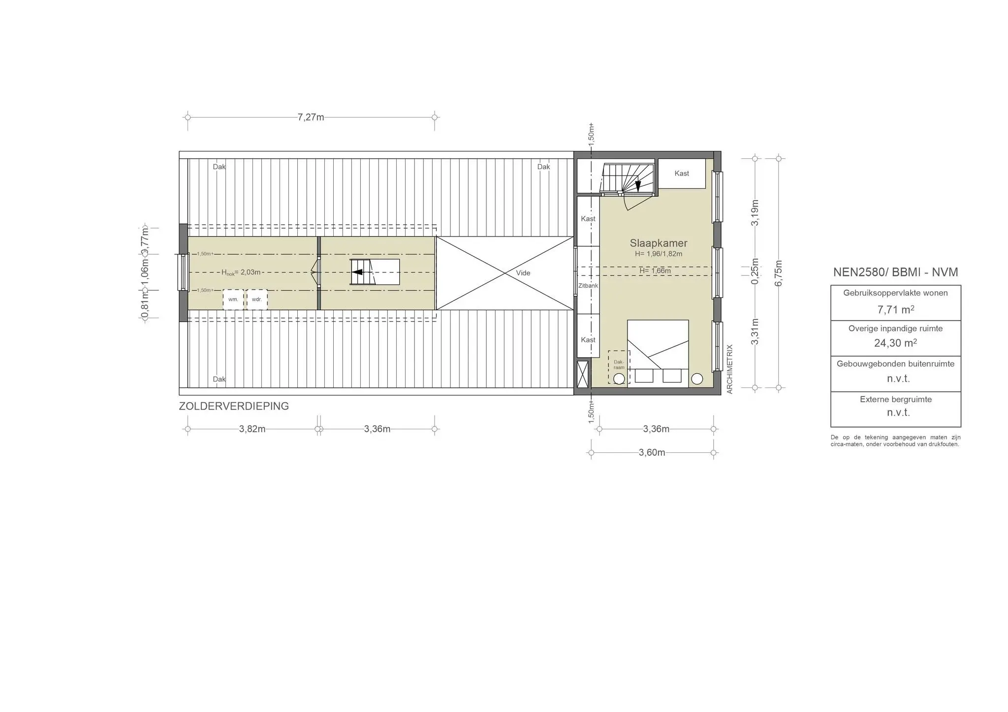
De tweede slaapkamer bevindt zich op de entresol, bereikbaar via een stijlvolle trap vanuit de woonkamer. Hoewel deze ruimte een plafondhoogte heeft van circa 1,96 m² en daarmee valt onder ‘overige inpandige ruimte’, is ze volledig functioneel en uitstekend te gebruiken als tweede slaapkamer of werkplek.

Buurtgids
Keizersgracht 451 3 ligt in de Grachtengordel-Zuid, in een rustig gedeelte van de Spiegelbuurt. Het is dicht bij het Rijksmuseum, het Amstelveld en tal van voorzieningen, zoals buurtwinkels, speciaalzaken, culturele instellingen, toprestaurants, bruine cafés en galerieën. Deze buurt heeft relatief veel jonge inwoners tussen de 25 en 44 jaar. De locatie is goed bereikbaar, met de metrohalte Vijzelstraat op loopafstand.

Bijzonderheden
•    Gebruiksoppervlakte circa 119 m² ( 95 m² wonen + 24 m² overig inpandige ruimte)
•    Dakterras gelegen oosten circa 7 m²
•    Gelegen op eigen grond
•    VvE kosten voor onderhoudt worden jaarlijks verrekend. 
•    Trappenhuis is onlangs geschilderd
•    Monument
•    Onderdeel UNESCO Werelderfgoed

AM106081-1991047-Keizersgracht-451-3,-Amsterdam-221649841

Het Koopmanshuis aan de Gracht
Wonen aan de gracht is voor mij de ultieme Amsterdam-beleving. Wakker worden, de gordijnen openslaan en genieten van het uitzicht op de gracht en de bruisende Leidsestraat—dat is puur genieten. Dit appartement ligt op een toplocatie, ingeklemd tussen de Spiegelgracht en het Museumkwartier met zijn vele galeries en musea, en aan de andere kant de gezellige Jordaan en de 9 Straatjes, bekend om hun unieke winkels, de levendige Noordermarkt en tal van uitstekende restaurants. Dankzij de centrale ligging is de hele stad binnen handbereik.
Het appartement bevindt zich op de bovenste verdieping van een statig gebouw. Bij binnenkomst word je verwelkomd in een prachtige, historische gemeenschappelijke hal met originele ornamenten. De combinatie van het klassieke pand en het moderne appartement vind ik ook leuk. De sfeer van het appartement ik heel fijn, het is een breed appartement met veel ramen, hoogte en licht. Het heeft een goede en ruim opgezette indeling, een grote woonkamer met open keuken aan de voorzijde met het mooie uitzicht op de gracht, de masterbedroom aan de rustige achterzijde met badkamer en-suite en toegang tot het dakterras. Een tweede ruime slaapkamer gelegen op de entresol en een aparte wasruimte.
Graag nodig ik je uit om langs te komen zodat je het appartement ook zo kan ervaren!


Judith de Jong | Makelaar Broersma Wonen
AM106081-1991047-Keizersgracht-451-3,-Amsterdam-221649739
Designvisie

Rond het jaar 1740, te midden van de bloeiende handel en het groeiende aanzien van Amsterdam, werd een statig koopmanshuis gebouwd aan een van de grachten. Met een gevelbreedte van 7,54 meter was het een pand dat zich niet alleen onderscheidde door zijn omvang, maar ook door zijn degelijke fundamenten, zorgvuldig gelegd door Mr. Nicolaes Benedictus Ingels. De eerste steen markeerde het begin van een huis dat generaties lang een toonbeeld van koopmanssucces zou blijven. Simon Storm voltooide het bouwwerk, die met vakmanschap en precisie het pand afbouwde en het zijn eerste gezicht gaf.
Ruim een halve eeuw later kreeg het huis een nieuwe, meer verfijnde uitstraling. De gevel werd bekroond met een rechte kroonlijst, ondersteund door vier imposante consoles waartussen sierlijke tussenlichten werden geplaatst. Ooit prijkte er een balustrade met elegante hoekvazen op het dak, een teken van de grandeur die de eigenaar wilde uitstralen. De ramen werden in Empire-stijl uitgevoerd, passend bij de mode van die tijd. Een statige stoep leidde naar de verhoogde ingang, terwijl een aparte onderingang toegang bood tot het souterrain. De toegang zelf werd verrijkt met een fraai omlijste deurpartij, die bezoekers uitnodigde in een huis waar koopmanschap en welvaart samenkwamen.
Aan het einde van de 18e eeuw onderging het huis opnieuw een subtiele, maar verfijnde verandering. Boven de ingang werd een snijraam geplaatst. De gevel behield zijn lijstgevel met een iets naar voren springende middentravee, terwijl de rechte lijst met de vier consoles de statige uitstraling van het pand onderstreepte. Door de eeuwen heen bleef dit huis een stille getuige van de veranderingen in de stad. Handelaren kwamen en gingen, mode en stijlen wisselden, maar de fundamenten die ooit door Ingels waren gelegd, hielden stand. Vandaag de dag is het een herinnering aan de grandeur van weleer, een stukje levend erfgoed dat nog steeds de ziel van Amsterdam ademt.

AM106081-1991047-Keizersgracht-451-3,-Amsterdam-221649745
AM106081-1991047-Keizersgracht-451-3,-Amsterdam-221649825
AM106081-1991047-Keizersgracht-451-3,-Amsterdam-221649817
AM106081-1991047-Keizersgracht-451-3,-Amsterdam-221649845
Wonen en koken

Bij binnenkomst in deze adembenemende woonkamer met open keuken spreken de breedte, hoogte en het licht gelijk tot de verbeelding. Dit royale loft-appartement combineert de charme van authentieke balken met een modern afwerkingsniveau. De open indeling zorgt voor een ruimtelijk gevoel, met een stijlvolle keuken als centraal middelpunt.
De moderne open keuken vormt het hart van de woning en is een droom voor kookliefhebbers. Het ruime keukeneiland biedt niet alleen een royale werkruimte, maar fungeert ook als een gezellige plek om aan te schuiven met een kop koffie of een glas wijn. De strakke keukenkasten zorgen voor een chique contrast met het lichte interieur. De strakke afzuigkap en subtiele verlichting geven de keuken een luxe en eigentijdse uitstraling.
Dankzij de grote ramen stroomt het daglicht rijkelijk naar binnen en geniet je vanuit de eet- en zithoek van een prachtig uitzicht over de stad. De kamer ademt warmte en elegantie, met een sfeervolle mix van natuurlijke materialen, lichte tinten en moderne designaccenten.

AM106081-1991047-Keizersgracht-451-3,-Amsterdam-221649867
AM106081-1991047-Keizersgracht-451-3,-Amsterdam-221649829
AM106081-1991047-Keizersgracht-451-3,-Amsterdam-221649883
AM106081-1991047-Keizersgracht-451-3,-Amsterdam-221649795
AM106081-1991047-Keizersgracht-451-3,-Amsterdam-221649765
AM106081-1991047-Keizersgracht-451-3,-Amsterdam-221649769
Slapen en baden

Het appartement beschikt over twee slaapkamers, waarvan de master aan de achterzijde ligt. Deze kamer heeft veel karakter door de authentieke houten balken, die goed passen bij de lichte, natuurlijke tinten van de vloer en wanden. De moderne badkamer is direct bereikbaar vanuit de master slaapkamer, en het dakterras is ook via deze slaapkamer te bereiken. De badkamer is voorzien van een ligbad, douche, toilet en dubbele wastafel, en past goed bij de oorspronkelijke stijl van het pand.
De tweede slaapkamer bevindt zich op de entresol, bereikbaar via een stijlvolle trap vanuit de woonkamer. Deze kamer biedt extra ruimte die ideaal is als werkplek of tweede slaapkamer.

AM106081-1991047-Keizersgracht-451-3,-Amsterdam-221649785
AM106081-1991047-Keizersgracht-451-3,-Amsterdam-221649925
AM106081-1991047-Keizersgracht-451-3,-Amsterdam-221649813
AM106081-1991047-Keizersgracht-451-3,-Amsterdam-221649911
AM106081-1991047-Keizersgracht-451-3,-Amsterdam-221649801
AM106081-1991047-Keizersgracht-451-3,-Amsterdam-221649805
AM106081-1991047-Keizersgracht-451-3,-Amsterdam-221649753
Het dakterras

Het ruime dakterras vormt een uitnodigende buitenruimte met een zeldzaam gevoel van rust in het hart van de stad. Gelegen aan de achtzijde van het object en omgeven door klassieke gevels, biedt dit terras uitzicht het groen van de besloten binnentuinen. Een plek om te genieten van de buitenlucht en zon, en om te ontspannen.

AM106081-1991047-Keizersgracht-451-3,-Amsterdam-221649715
AM106081-1991047-Keizersgracht-451-3,-Amsterdam-221649733
AM106081-1991047-Keizersgracht-451-3,-Amsterdam-221649709
Buurtgids

Keizersgracht 451 3 ligt in de Grachtengordel-Zuid, in een rustig gedeelte van de Spiegelbuurt. Het is dicht bij het Rijksmuseum, het Amstelveld en tal van voorzieningen, zoals buurtwinkels, speciaalzaken, culturele instellingen, toprestaurants, bruine cafés en galerieën. Deze buurt heeft relatief veel jonge inwoners tussen de 25 en 44 jaar. De locatie is goed bereikbaar, met de metrohalte Vijzelstraat op loopafstand.

Bereikbaarheid
De verbindingen met het openbaar vervoer zijn uitstekend. De Noord/Zuidlijn is dichtbij en er zijn goede tramverbindingen vanaf de Leidsestraat en de Vijzelgracht, die om de hoek liggen. Alle haltes zijn binnen enkele minuten lopen.
Het pand ligt op loopafstand van een supermarkt en het Centraal Station, en met de fiets is bijna elke plek binnen de ring binnen 20 minuten te bereiken. De dichtstbijzijnde uitvalsweg is slechts ongeveer 5 minuten rijden.

Parkeergelegenheid
Parkeren is mogelijk via een vergunningenstelsel op de openbare weg (vergunningsgebied Centrum-2f). Met een parkeervergunning voor Centrum-2f mag u parkeren in Centrum-2. Een parkeervergunning voor bewoners kost € 326,65 per 6 maanden. Momenteel is er voor dit vergunningsgebied een wachttijd van 13 maanden. Een tweede parkeervergunning is in dit gebied niet mogelijk. Naast de openbare weg is het ook mogelijk om met een parkeervergunning kosteloos te parkeren in garage Markenhoven en garage Muziektheater. (Bron: Gemeente Amsterdam, april 2025).

AM106081-1991047-Keizersgracht-451-3,-Amsterdam-221649875
AM106081-1991047-Keizersgracht-451-3,-Amsterdam-221649821
Kenmerken
Keizersgracht 451-3, Amsterdam
Vraagprijs
  • € 1.040.000 k.k.
Beschikbaarheid
  • In overleg
Vertrekken
  • 4 kamers
  • 2 slaapkamers
  • 1 badkamer
Onderhoud
  • Intern: Goed
  • Extern: Goed
Oppervlakten & Inhoud
  • Woonoppervlakte: 119 m²
  • Gebouwgebonden buitenruimte: 7 m²
Installaties
  • Mechanische ventilatie
  • TV kabel
Ligging
  • Aan vaarwater
  • Aan water
  • In centrum
  • In woonwijk
  • Vrij uitzicht
Parkeren
  • Betaald parkeren
  • Parkeervergunningen
Type verwarming
  • CV Ketel
Type warmwater
  • CV Ketel
Bestemming
  • Woonruimte
Eigendomssoort
  • Volle eigendom
Buitenruimte
  • Geen tuin
  • Dakterras
Kadastraal
  • Gemeente: Amsterdam
  • Sectie: I
  • Nummer: 10370
Soort
  • Appartement
  • Bovenwoning
Welke woonlaag
  • 4e
Bijzonderheden
  • Beschermd stads of dorpsgezicht
  • Monument
Overige kenmerken
  • OZB ('25) € 731,06 per jaar
  • Rioolrecht ('25) € 185,20 per jaar
  • Eigen grond
  • VvE kosten voor onderhoud worden jaarlijks verrekend
  • Trappenhuis is onlangs geschilderd
Plattegrond
Keizersgracht 451-3, Amsterdam
AM106081-1991047-Keizersgracht-451-3,-Amsterdam-224793200
AM106081-1991047-Keizersgracht-451-3,-Amsterdam-224793204
Documenten
Keizersgracht 451-3, Amsterdam
Locatie
Keizersgracht 451-3, Amsterdam
Interieur
19891-en-muuto-showroom-amsterdam-16
26895-en-amstedam-showroom-sep-2023-muuto-hi-res-32
01
Adres
Keizersgracht 469,
1017 DK Amsterdam

Muuto

Muuto is geworteld in de Scandinavische ontwerptraditie, gekenmerkt door tijdloze esthetiek, functionaliteit, vakmanschap en een eerlijke expressie. Muuto komt van 'muutos', wat nieuwe perspectieven betekent in het Fins. Je herkent het design omdat het muutos heeft: objecten verheven door nieuwe perspectieven, wereldwijd gewaardeerd en representatief voor het beste van Scandinavisch design vandaag de dag. Om Muuto te bezoeken moet je van te voren een afspraak maken, dat kan via hun website.

web-4_2880x
Martijn_Vonck_Fotografie_21_900x
02
Adres
Prinsengracht 645,
1016 HV Amsterdam

The Frozen fountain

Of je nou een tourist of ras-amsterdammer bent, het blijft heerlijk om door de negen straatjes te struinen. The frozen fountain is één van die winkels waar je ogen naar afdwalen wanneer je de etalage met excentrieke design meubels passeert. In 1992 werd de basis voor the frozen fountain gevormd, zijde een platforms voor designers – voornamelijk afgestudeerden van de Design Acedemy in Eindhoven. Omdat ‘Dutch Design’ internationaal al een behoorlijke naam had verkregen, was de samenwerking met jonge Nederlandse designers een gigantische stimulus voor de bekendheid van the frozen fountain. Naast een winkel met een prachtige collectie noemt the frozen fountain zichzelf ook een instituut: voor en door designers, om de eer aan Dutch Design hoog te houden. En hoe!

68b5fce4900d8af5fd8fa70e_Frame 109
68b5fcde3bc17a074edca4a0_Frame 121
03
Adres
Singel 395,
1012 WN Amsterdam

Two Story

Two Story ontstond vanuit de overtuiging dat kunst voor iedereen is en dat hedendaagse kunst niet afstandelijk of intimiderend hoeft te zijn. De oprichters transformeerden een historisch grachtenpand tot een tweelaagse combinatie van galerie, designstore en café die aanvoelt als een echt thuis. Hun visie draait om het creëren van dat Sunday Morning Feeling, met de geur van verse koffie, zachte muziek en kunst die opgaat in het dagelijkse ritme. Voor het ontwerp werkten ze samen met het Kopenhaagse Atelier Axo, bekend om hun ruimtelijke storytelling en gevoel voor balans tussen oud en nieuw. De sfeer is warm en toegankelijk, een plek waar nostalgie en vernieuwing samenkomen in een omgeving die kunst vanzelfsprekend maakt.

Eten & drinken
325547281_571799494854962_4627029980323073806_n
04
Adres
Kerkstraat 59,
1017 GC Amsterdam

Yuzu Dining Bar

Bij Yuzu Dining Bar serveren ze geen sushi, maar wel een verscheidenheid aan kleine Japanse gerechten, waaronder edamame en verschillende yakitorispiesjes. Het restaurant laat je kennis maken met de Japanse gewoonten, zoals het opbergen van je jas in een mandje onder je stoel en het eten zonder bestek. De sfeer is informeel en gezellig, en het personeel is vriendelijk en attent. Je kan er ook terecht voor een cocktail tot in de late uurtjes.

317354155_576309097838056_5300133261289346202_n
05
Adres
Beulingstraat 7,
1017 BA Amsterdam

Pianeta Terra

Fabio van Pianeta Terra, staat bekend als de onbetwiste kampioen van slowfood in de stad. In zijn keuken combineert hij op meesterlijke wijze de fijnste lokale ingrediënten tot authentiek Italiaanse gerechten. Gastvrouw Laura Martini maakt de ervaring compleet door bijpassende prachtige wijnen te schenken, waardoor een perfect verzorgde avond gegarandeerd is.

Schermafbeelding 2022-05-18 om 18.34.11
06
Adres
Kerkstraat 96H,
1017 GP Amsterdam

Bocca

Als je goede koffie zegt, kan je inmiddels een boel plekken in Amsterdam opnoemen maar, Bocca is weer even net nog een slagje beter. Hun werkruimte is groot zodat de barista’s genoeg ruimte hebben de beste koffie te zetten. De moeite waard om naar binnen te gaan, al is het maar om te zien hoe deze geschoolde barista’s alles eraan doen om jouw perfecte cappuccino met vakmanschap klaar te maken.

Frens-Haringhandel_FMWS_20160418_0039_-e1592935539840
traditional-herring-frens-haringhandel-710×375
07
Adres
1017 AW Amsterdam

Frens Haringhandel

Frens Haringhandel is nog een van de weinige viskramen in Amsterdam waar je heerlijke verse haring en andere vis kan bestellen op de traditioneel Hollandse manier. Al sinds 1972 is de familie Frens actief in de haringindustrie, inmiddels wordt de kraam gerund door vrouw, zoon en vriend van Frens. De kraam staat op een vaste plek op Koningsplein en is iedere dag geopend voor een verse hap vis met zuurtjes en ui.

downloadgram.org_564220181_122106806385035737_2639409528052682900_n
downloadgram.org_591949292_122113731201035737_4138354092764306839_n
08
Adres
Reguliersdwarsstraat 28,
1017 BM Amsterdam

Blik

Blik is opgezet door Tijn Verstappen en driesterrenchef Jacob Jan Boerma, samen met gastheer Manuel Broekman en ondernemer Tim Ouborg, als een bistro bar waar eenvoud en kwaliteit samenkomen. De kaart draait om herkenbare klassiekers met een creatieve twist, waarbij Boerma’s ervaring in topkeukens voelbaar is zonder dat het stijf of formeel wordt. Naast de gezellige binnenruimte beschikt Blik ook over een tuinterras achter het pand, een fijne plek om bij goed weer te genieten van je gerecht en glas in de buitenlucht.

284424519_5126376000748750_5583589813571934548_n
09
Adres
Wijde Heisteeg 1,
1016 AS Amsterdam

The Lebanese Sajeria

Lange rijen staan er dagelijks voor de vestigingen van de The Lebanese Sajeria in Amsterdam. Deze zaak is begonnen als foodtruck waar de eigenaren Libanees fastfood serveren met een twist. In 2016 openden zij hun eerste restaurant in de 9 straatjes en het werd een groots succes. Inmiddels hebben zij drie vestigingen in Amsterdam waar zij elke dag overheerlijke gerechten uit de Libanese keuken serveren. Bij The Lebanese Sajeria koken ze met een traditionele Saj; een koepelvormige plaat waar broden op gebakken kunnen worden. Op de saj maken ze hun manoushes en saj broden die worden gebruikt voor de smaakvolle wraps zoals de Manoushe Zatar en Halloumi of de Beef Labneh.

103869559_10163664798155142_645102952535043170_n
10
Adres
Huidenstraat 25,
1016 ER Amsterdam

Café de Pels

Café de Pels is een echt intellectueel creatief café. Menig boek of column is hier geschreven, goede gesprekken worden hier gevoerd en leuke of stomme grappen zijn hier uitgeprobeerd. Ook wordt er in de Pels op z’n Amsterdams geflirt, gediscussieerd en zoals het hoort in een Amsterdams bruincafé, bier gedronken. De muren hangen vol met kunst dat door vaste gasten zelf gemaakt is. Het is een bruincafé met een creatief randje, broodjes kroket en op maandag een daghap.

11
Adres
Prinsengracht 424,
1016 JC Amsterdam

Café de Pieper

Café de Pieper is familiebedrijf met veel stamgasten. Het is een klassiek, maar gezellig café met houten lambrisering, waar je bier, cider en worst kunt krijgen.

12
Adres
Prinsengracht 422,
1016 JC Amsterdam

Sinck

Teamleider Timo van der Stad is samen met Chef-kok Sander Bierenbroodspot en sommelier Sabas Joosten (eerder de Librije), restaurant en wijnbar Sicnk gestart. Bij Sinck gaan ze voor kwaliteit én voor een lage drempel. Chefkok Sander zorgt voor goede bereidingen van mooie producten met extra focus op sauzen. Het restaurant bevindt zich boven en beneden kom je terecht in de sfeervolle wijnbar. De wijnkaart is uitgebreid met een focus op Franse wijnen.

13
Adres
Lange Leidsedwarsstraat 37-41,
1017 NG Amsterdam

The Madras Diaries

The Madras Diaries is geopend in 2020 en biedt een Zuid-Indiase keuken aan. In deze keuken wordt over het algemeen pittiger gekruid dan wij gewend zijn. Er wordt veel gebruik gemaakt van chili’s, zwarte peper, kruidnagel en kardemom. Dat maakt het behalve extreem rijk van smaak, soms ook wat minder toegankelijk. Gelukkig bieden ze een zelfgemaakte limonade kaart aan om af te koelen. Naast de bekende mango lassi hebben ze seizoensdrankjes en nog veel meer. Goed nieuws voor de vegetariërs en veganisten, binnen deze keuken wordt dat niet gezien als een uitzondering. Genoeg keuze dus!

313291039_676821367342686_470247651338795489_n
14
Adres
Nieuwe Spiegelstraat 3A,
1017 DB Amsterdam

Zero Zero

Zero Zero is een bakkerij en delicatessenwinkel gelegen in Amsterdam en eigendom van dezelfde eigenaren als Ceppi's. Naast het maken van pizza is Greco gespecialiseerd in het maken van zuurdesembrood. De naam Zero Zero komt van bloem als de basis van wat ze verkopen. De Toscaanse zuurdesembroden (schiacciata) zijn belegd met ingrediënten zoals gegrilde aubergine, gemarineerde courgette met munt, balsamico en zongedroogde tomaten (€9), of mortadella, stracciatella en pistache (€10). Zero Zero verkoopt verkoopt naast de broodjes een breed scala aan Italiaanse delicatessen, waaronder wijn, zakken pasta en olijfolie. Verse ingrediënten voor broodjes zijn ook te koop. Hoewel de meeste klanten komen voor een broodje om mee te nemen, zijn ze ook welkom om te blijven en te genieten van een kopje koffie. Volgens Greco zijn alle delicatessen verkrijgbaar bij Zero Zero uit afkomstig uit Italië.

Schermafbeelding 2022-05-18 om 19.33.11
15
Adres
Spui 18-20,
1012 XA Amsterdam

Hoppe

Dit café is een klassieker: sinds 1670 is Café Hoppe al gevestigd aan het centrale plein genaamd t’ Spui. Café Hoppe heeft dan ook een rijkelijke geschiedenis: hier werd de basis gelegd voor een van de grootste politieke partijen van Nederland, voormalig Koningin Beatrix vereerde de bruine Amsterdamse kroeg met een bezoek maar ook Freddy Heineken, grondlegger van het meest bekende Nederlandse bier liep de deur plat in dit centraal gelegen café. En nog steeds is Hoppe een van de meest bruisende cafés in het centrum van Amsterdam. Strijk hier neer voor een (Heineken) biertje, geniet van de zon en kijk om je heen.

S__3538969
278628659_710596233460905_6303603926454891176_n
16
Adres
Leidseplein 10,
1017 PT Amsterdam

Sushi HANABI

Hanabi, wat 'vuurwerk' betekent, is een uniek Japans restaurant met twee verdiepingen. Beneden kun je genieten van donburi en yakitori, terwijl je boven kan genieten van een klassieke Edomae-sushi ervaring. Het omakase-menu stelt de chef in staat om gerechten naar eigen inzicht te serveren, rechtstreeks aan de gasten. Deze sushi is al op smaak gebracht met sojasaus en wasabi en kan zelfs met de hand worden gegeten. Bij Hanabi heb je de flexibiliteit om je reserveringstijd te kiezen en uit drie prijscategorieën te kiezen. De duurdere menu's bevatten luxere ingrediënten zoals blauwvintonijn, sneeuwkrab, kaviaar en Japanse coquille. Het diner begint met verfijnde amuses, gevolgd door heerlijke gerechten zoals sake-gemarineerde coquille met kaviaar en zoete sneeuwkrab met yuzu.

Kunst & cultuur
Schermafbeelding 2023-09-26 om 13.10.24
17
Adres
Kerkstraat 105-A,
1017 GD Amsterdam

Siewe Gallery

Slewe Gallery is in 1944 opgericht door Martita Slewe. De galerie is gespecialiseerd in hedendaagse kunst. Het internationaal georiënteerde programma legt vanaf het begin de nadruk op actuele ontwikkelingen in de abstracte kunst, met name in de schilderkunst. De galerie vertegenwoordigt zowel gevestigde als opkomende kunstenaars uit diverse generaties en landen.

art_386_roger-katwijk_troublesome-fancies_roos-holleman_web-res_jdewaart_14-5-22_5
18
Adres
Prinsengracht 737,
1017 KK Amsterdam

Roger Katwijk Galerie

Aan de Prinsengracht 737 kun je de prachtige Roger Katwijk galerie vinden. Een lichte plek voor hedendaagse kunst, abstracte kunst en geabstraheerde figuratie van zowel Nederlandse als internationale kunstenaars. Het gehele jaar door kun je hier wisselende exposities ontdekken op het gebied van de schilder- en beeldhouwkunst.

270053381_5179749475386566_1324756550501219040_n
19
Adres
Prinsengracht 452,
1017 KE Amsterdam

De Uitkijk

Amsterdam heeft door de jaren heen vele bioscopen komen en gaan, maar Filmtheater De Uitkijk bestaat nog steeds! Het pand aan de Prinsengracht 452 heeft een bewogen verleden en begon in 1912 als City Bioscoop, toen het werd omgebouwd van een 17e-eeuws pakhuis. In 1929 nam de Filmliga de bioscoop over en veranderde de naam in het Filmtheater De Uitkijk. Dit was het allereerste avant-garde filmtheater van Nederland. Sinds 2007 is De Uitkijk een zusterproject van de organisatie Kriterion en wordt het geleid door een groep van dertien studenten.

tumblr_mxhhnyvV5C1qjguz6o1_1280
20
Adres
Prinsengracht 645,
1016 HV Amsterdam

Galerie Wim van Krimpen

Sinds 1991 is Galerie Wim van Krimpen gehuisvest aan de Prinsengracht. Wim van Krimpen is een van de meest gewaardeerde museumdirecteuren van Nederland daarbij staat hij wereldwijd ook bekend als een verwoed kunstverzamelaar. In zijn galerie in de Jordaan vind je bijzondere hedendaagse kunstwerken. Vergeet van tevoren niet te bellen want de galerie is uitsluitend op afspraak te bezoeken.

deur_6e47a554-ba37-4854-8ed7-dba08d3a300c
21
Adres
Prinsengracht 615H,
1016 HT Amsterdam

Galerie Madé van Krimpen

Galerie Madé van Krimpen, voorheen bekend als Multiplemadé, presenteert een mix van tentoonstellingen die werk tonen van zowel gevestigde als opkomende kunstenaars. Hoewel de galerie vooral gericht is op solotentoonstellingen en groepsexposities, werken ze ook regelmatig samen met creatieve collectieven en makers om pop-up-evenementen en take-overs te organiseren.

2006b22272a073075554111102a2a516e7e_resized
22
Adres
Prinsengracht 510 O,
1017 KH Amsterdam

Mia Karlova Galerie

Mia Karlova Galerie, gelegen aan de Prinsengracht, streeft ernaar een dialoog tot stand te brengen tussen werken van verschillende genres door middel van een gemeenschappelijke emotionele taal. Mia Karlova Galerie zet functionele beeldhouwkunst in de schijnwerpers met een intrigerend programma van internationale hedendaagse kunstenaars en productontwerpers. Deze kunstvorm, die originaliteit uitstraalt in ontwerp of materiaal, biedt een uitzonderlijk plezier tijdens de interactie.

Boodschappen
casa del gusto
23
Adres
Kerkstraat 121,
1017 GE Amsterdam

Casa del gusto

Gianni en Gessica hebben een duidelijke toekomstvisie voor Casa del Gusto. ‘We willen een klein bedrijf blijven dat met kleinschalige boeren samenwerkt: dat is ons concept. ‘Alle boeren met wie wij werken, kennen we persoonlijk. Wij kopen onze Grana Padano – de populairste kaas van Italië – in bij een boer die slechts twee stukken per dag produceert. Dat is bijna niets vergeleken grote industriële producenten die honderden exemplaren per dag leveren. Wat wij heel belangrijk vinden, is dat je door de smaak van onze salami’s, pasta’s en bieren de producenten leert kennen.' Je moet de liefde die de boeren erin hebben gestopt terug kunnen proeven’, legt Gessica uit. Van hazelnootpasta en gnocchi tot bottarge en aloë vera-beautyproducten: de winkel staat vol heerlijke delicatesse en mooie producten. Casa del Gusto is, net zoals de naam suggereert, een smaakhuis voor zijn klanten.

9
24
Adres
Huidenstraat 12,
1016 ES Amsterdam

Chocolaterie Pompadour

Chocolaterie Pompadour is een patisserie aan de Huidenstraat. Alles draait hier om vakmanschap, pure producten en passie voor chocolade en gebak. Elk chocolaatje wordt met zorg gemaakt en prachtig gedecoreerd. In de bijbehorende tearoom kunt u in het prachtig nostalgische interieur genieten van heerlijke thee of Catalaanse koffie. Bij elk kopje koffie serveert Pomadour ook een zelfgebakken financier; een zalig frans cakeje van Spaanse amandelen en beurre noisette. Kortom, voor de beste gebakjes met pure smaken ben je hier aan het juiste adres.

kaaskamer-amsterdam-cheese-lunch-broodjes-speciale-kaas-80
25
Adres
Runstraat 7,
1016 GJ Amsterdam

Kaaskamer

De naam zegt het al; bij de Kaaskamer kan je terecht voor kaas. Van de vloer tot het plafond is deze winkel gevuld met kaas waarbij vakmanschap en traditie voorop staan. Bij deze kaasspeciaalzaak kan je tussen de 300 en 400 soorten kaas kopen uit heel Europa. Je kan hier je broodje beleggen met ruime keuze en om het af te maken kan je ook kiezen tussen verschillende huisgemaakte sausjes. Uit Frankrijk worden de kazen iedere twee weken zelf opgehaald en in Nederland ligt de focus op biologische kazen die rechtstreeks van de boer komen. Ook worden er wijnen, salades, olijven, hammen en noten verkocht voor een complete borrelplank.

40 exiting openings in 2023

40 exiting openings in 2023

De mooiste bloemisten van Amsterdam

De mooiste bloemisten van Amsterdam

Een statig herenhuis krijgt een nieuwe ziel.

Een statig herenhuis krijgt een nieuwe ziel.

Onlangs bekeken
Bekijk het overzicht

Deze site maakt gebruik van cookies.

Voor welke cookies geef je akkoord?