Aan de Keizersgracht, tussen de Berenstraat en de Runstraat, ligt dit bijzondere dubbele benedenhuis van circa 109 m² (wonen & overige inpandige ruimte).

Het sfeervolle appartement maakt deel uit van een rijksmonument waarvan de fundering onlangs is vernieuwd (2019).
  
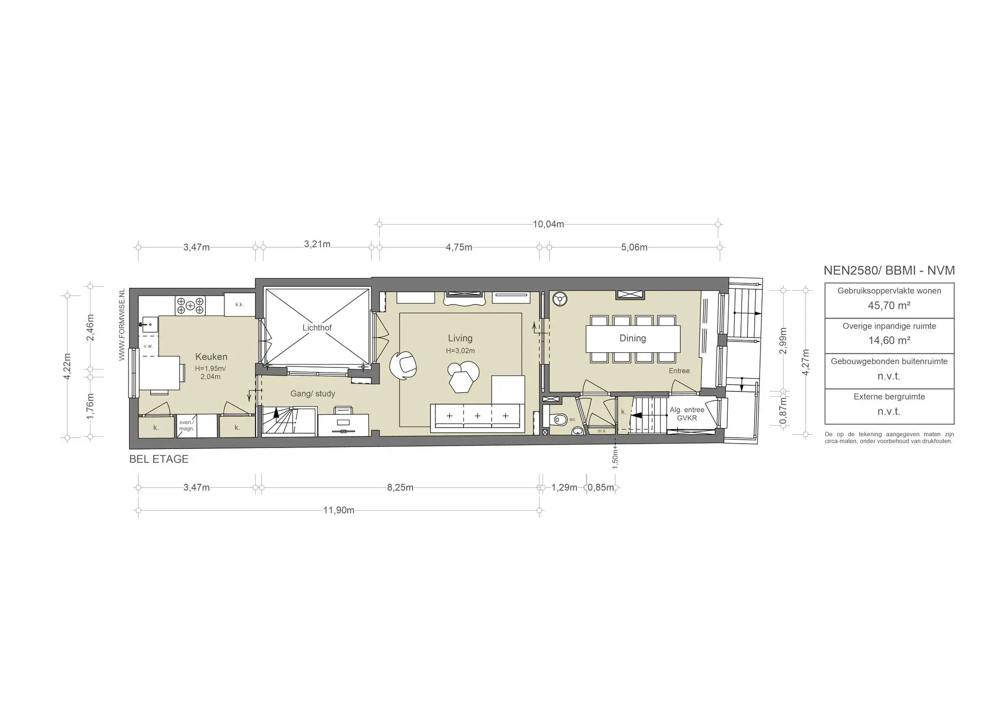
Bel-etage
De bel-etage straalt de historie uit van dit koopmanshuis door de hoogte, oude schouw en prachtige doorkijk op een binnentuin aan de achterzijde. 

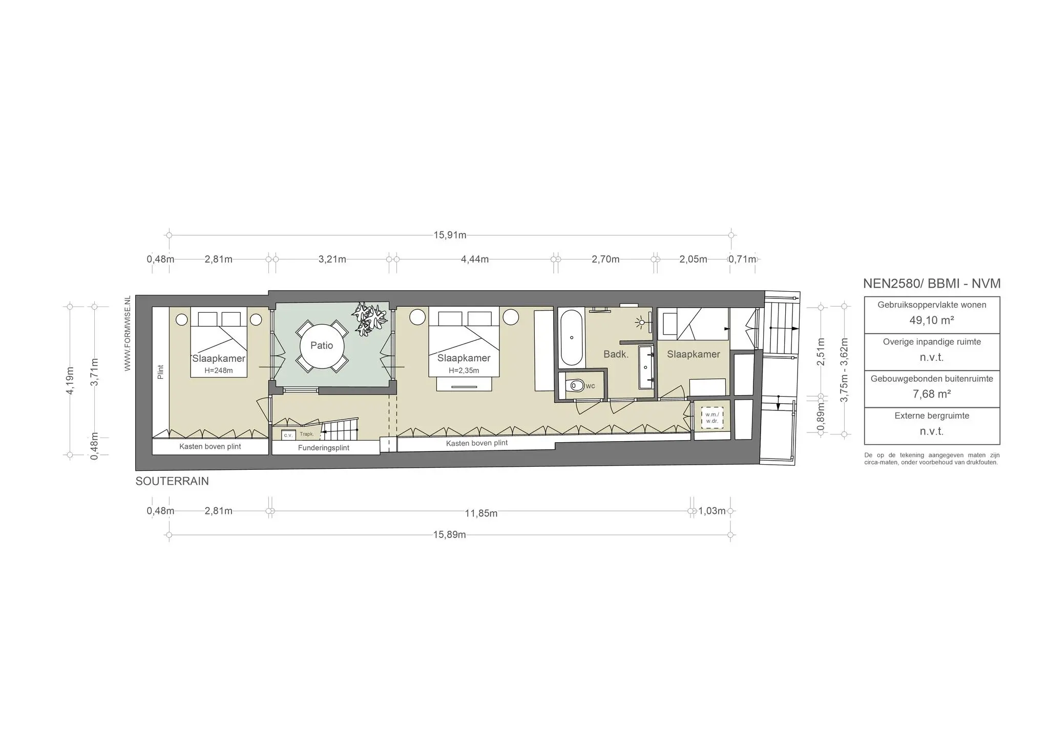
Souterrain
Het souterrain is recent volledig gerenoveerd en biedt nu een ruime en functionele indeling met twee slaapkamers, een separaat toilet en een moderne badkamer, voorzien van een douche, bad en wastafelmeubel. Aan de voorzijde is een lichte werkkamer gesitueerd, ideaal voor thuiswerken of studeren. De hoogwaardige afwerking en slimme indeling maken deze verdieping tot een veelzijdige en comfortabele leefruimte.

Rondleiding
De woonverdieping (bel-etage) ligt iets boven straatniveau wat een prachtig zicht geeft over de gracht en uiteraard iets meer privacy. De ruimte is verdeeld in een licht eetgedeelte aan de gracht en een sfeervol zitgedeelte in het midden met een fraaie schouw en open haard. Door het lichthof komt hier veel licht binnen. 

De rustieke keuken met prachtige balken is recentelijk voorzien van nieuwe inbouwapparatuur, handgrepen en een natuurstenen werkblad. De hoogte is hier 1,95 m (tot de balk – overige inpandige ruimte). Ook hier is door het lichthof veel natuurlijk licht. Vanuit de keuken is er een idyllisch zicht op een binnentuin. 

Bijzonderheden
•    Gebruiksoppervlakte inclusief overige inpandige ruimte circa 109 m²
•    Patio van circa 8m²
•    Gelegen op eigen grond
•    Bouwjaar 1860
•    Fundering hersteld in 2019.
•    Souterrain recent geheel verbouwd
•    Recent schilderwerk buitenzijde geheel gedaan
•    Recent keuken voorzien van nieuwe inbouwapparatuur en handgrepen.
•    Souterrain voorzien van vloerverwarming
•    CV ketel uit 2024
•    Servicekosten VvE € 332 per maand
•    Rijksmonument
•    Gelegen nabij de Negen Straatjes 

Keizersgracht 330 A-5

De Kleine Koopman
Te midden van de gezellige en hippe negen straatjes ligt deze bijzondere benedenwoning, hier is een mooie mix te realiseren van historie en comfort.
Onlangs is het souterrain gerenoveerd met twee goede slaapkamers en een extra werkplek. Hierbij is nagedacht over de indeling maar ook bergruimte en dag licht, dit dankzij het licht hof wat is doorgetrokken tot in het souterrain
Wat ik een waardevolle investering vind is het behouden van de historische elementen op de bel-etage. De mooie schouw, prachtige hoogte en originele deuren weerspiegelt de historie van dit koopmanshuis.


Judith de Jong | Makelaar Broersma Wonen
AM105801-1931228-Keizersgracht-330A,-Amsterdam-200348633

Designvisie
Dit 4,57 m. brede koopmanshuis is omstreeks 1640 gebouwd voor Pieter de Loo.
Het heeft een gevel waarvan de dammen (gedeelte van een muur tussen twee kozijnen) als pilasters bewerkt zijn. Tegen de kap heeft het twee pilasters met bloem versierde vleugelstukken en afgedekt met een driehoekig fronton.
De huidige gevel is van omstreeks 1860 en heeft een rechte kroonlijst, drie keer twee platte consoles en een stoep. In 1917 is de onderpui veranderd en in 1924 de stoep voor de Maatschappij Hoeksteen door F.H. Holtes. Het oorspronkelijke huis is vermoedelijk gebouwd omstreeks 1620 voor mijnheer Cornelis Pot.
Het souterrain is recent grondig gerenoveerd. Dankzij een lichthof valt er voldoende daglicht naar binnen. Aan de achterzijde bevinden zich de hoofdslaapkamer en een tweede slaapkamer met toegang tot de patio. In het midden is er een apart toilet en een moderne badkamer met een wastafelmeubel, inloopdouche en ligbad. Aan de voorkant is een werkkamer gesitueerd. Langs de funderingswand zijn inbouwkasten geplaatst voor extra opbergruimte en een efficiënte indeling.

Keizersgracht 330 A-1
AM105801-1931228-Keizersgracht-330A,-Amsterdam-200348673
Keizersgracht 330 A-15
AM105801-1931228-Keizersgracht-330A,-Amsterdam-200348701

Wonen en koken
De woonverdieping (bel-etage grond) ligt iets boven straat niveau wat een prachtig zicht geeft over de gracht en uiteraard iets meer privacy. De ruimte is verdeeld in een licht eetgedeelte aan de gracht en een sfeervol zitgedeelte in het midden met fraaie schouw – open haard. Door de patio komt hier veel licht binnen en de openslaande deuren maken ook verbinding met de keuken. De rustieke keuken met prachtig balken is voorzien van diverse inbouwapparatuur en natuurstenen werkblad. De hoogte is hier 1,95 (tot de balk – overige inpandige ruimte). Vanuit de keuken is er een idyllisch zicht op een binnentuin.

AM105801-1931228-Keizersgracht-330A,-Amsterdam-200348795
Keizersgracht 330 A-13
AM105801-1931228-Keizersgracht-330A,-Amsterdam-200348801
AM105801-1931228-Keizersgracht-330A,-Amsterdam-200348819
AM105801-1931228-Keizersgracht-330A,-Amsterdam-200931695
AM105801-1931228-Keizersgracht-330A,-Amsterdam-200348935
AM105801-1931228-Keizersgracht-330A,-Amsterdam-200348955

Slapen en baden
Recent is het souterrain volledig gerenoveerd met oog voor detail. Een belangrijke toevoeging is het lichthof, die zorgt voor voldoende daglicht in het souterrain. Aan de achterzijde bevindt zich de primaire slaapkamer, die toegang biedt tot de patio, evenals de tweede slaapkamer op dit niveau. Deze ruimte is nu open maar door het plaatsen van een (glazen) wand makkelijk af te sluiten. In de gang zit een separaat toilet en een volledig vernieuwde badkamer, uitgerust met een wastafelmeubel, inloopdouche en ligbad. Daarnaast is er aan de voorzijde een lichte werkkamer te vinden. Langs de gehele funderingswand zijn inbouwkasten gerealiseerd, wat zorgt voor extra bergruimte en een efficiënte indeling.

AM105801-1931228-Keizersgracht-330A,-Amsterdam-200931687
AM105801-1931228-Keizersgracht-330A,-Amsterdam-200348891
AM105801-1931228-Keizersgracht-330A,-Amsterdam-200348693
AM105801-1931228-Keizersgracht-330A,-Amsterdam-200348847
AM105801-1931228-Keizersgracht-330A,-Amsterdam-200348873

Patio
De patio van circa 8 m² geeft extra licht en lucht aan de living en keuken, vanuit beiden slaapkamers is de patio door openslaande deuren te bereiken. Een intieme buitenplek.

Keizersgracht 330 A-35
Keizersgracht 330 A-12
Keizersgracht 330 A-21

Buurtgids
Gelegen in het midden van de 9 straatjes aan de Keizersgracht, met aan de ene kant de Leidsegracht en de traditionele Jordaan om de hoek, is er een enorm aanbod uit unieke boetiekwinkels en leuke restaurants. De levendige Noordermarkt en Lindengrachtmarkt zijn op zaterdag op loopafstand te bezoeken.
Het openbaar vervoer biedt toegang tot alle delen van Amsterdam, inclusief de Zuidas. De dichtsbijzijnde tramhaltes zijn Koningsplein en Westermarkt, de bussen vertrekken vanaf de Elandsgracht. De metro halte Rokin (noordzuidlijk) ligt op 10 min. lopen.

Bereikbaarheid
Het openbaar vervoer biedt toegang tot alle delen van Amsterdam, inclusief de Zuidas. De dichtsbijzijnde tramhaltes zijn Koningsplein en Westermarkt, de bussen vertrekken vanaf de Elandsgracht. De metro halte Rokin (noordzuidlijk) ligt op 10 min. lopen.

Parkeergelegenheid
Parkeren is mogelijk via een vergunningenstelsel op de openbare weg (vergunningsgebied Centrum-2e.). De kosten voor bewoners zijn € 315,60 per 6 maanden. Momenteel is de wachttijd voor dit vergunningsgebied 11 maanden (Bron Gemeente Amsterdam oktober, 2024).

Keizersgracht 330 A-33
Keizersgracht 330 A-19
Keizersgracht 330 A-32
Kenmerken
Keizersgracht 330A, Amsterdam
Vraagprijs
  • € 1.085.000 k.k.
Beschikbaarheid
  • In overleg
Vertrekken
  • 5 kamers
  • 2 slaapkamers
  • 1 badkamer
Onderhoud
  • Intern: Goed
  • Extern: Goed
Oppervlakten & Inhoud
  • Woonoppervlakte: 109 m²
  • Gebouwgebonden buitenruimte: 8 m²
  • Tuinoppervlakte: 8 m²
Bouwjaar
  • 1640
Installaties
  • Natuurlijke ventilatie
  • Rookkanaal
  • TV kabel
Ligging
  • Aan water
  • In centrum
  • In woonwijk
Parkeren
  • Betaald parkeren
  • Openbaar parkeren
  • Parkeervergunningen
Type verwarming
  • CV Ketel
  • Vloerverwarming gedeeltelijk
Type warmwater
  • CV Ketel
Bestemming
  • Woonruimte
Eigendomssoort
  • Volle eigendom
Buitenruimte
  • Patio atrium
Kadastraal
  • Gemeente: Amsterdam
  • Sectie: E
  • Nummer: 9927
Duurzaamheid
  • Gedeeltelijk dubbel glas
Soort
  • Appartement
  • Bel-etage
  • Dubbel-benedenhuis
Bijzonderheden
  • Beschermd stads of dorpsgezicht
  • Monumentaal pand
Overige kenmerken
  • OZB ('24) € 511,59 per jaar
  • Rioolrecht ('24) € 160,43 per jaar
  • Servicekosten VvE € 332,00 per maand
Plattegrond
Keizersgracht 330A, Amsterdam
AM105801-1931228-Keizersgracht-330A,-Amsterdam-200351485
AM105801-1931228-Keizersgracht-330A,-Amsterdam-200351501
Documenten
Keizersgracht 330A, Amsterdam
Locatie
Keizersgracht 330A, Amsterdam
Eten & drinken
Vinkeles_Impression_Patio_LRS_06
Restaurant_Vinkeles_Food_LRS_13-1500×630
01
Adres
Keizersgracht 384,
1016 GB Amsterdam

Vinkeles (**)

Omsloten door hotel Dylan, is restaurant Vinkeles klein Frankrijk dichtbij huis. Met een prachtige locatie aan de Keizersgracht is het restaurant bij uitstek een chique aangelegenheid. De keuken draagt de handtekening van chef Jurgen van der Zalm die in 2023 zijn tweede ster er mee verdiende.

258259290_1099450644203131_9046645986166328405_n
273169718_727311508235024_4226021460398763832_n
02
Adres
Berenstraat 8,
1016 GH Amsterdam

Chun Café

In de druk gelegen Negenstraatjes heeft Chun Café onlangs hun bubble tea menu uitgebreid met een selectie van speciale  sandwiches. De sandwiches zijn verkrijgbaar in vier smaken. De opties zijn: eiersalade, bacon ei en kaas, knoflookgarnalen ei en rib-eye bulgogi. Heerlijk boterachtig en perfect geroosterd.

313848685_1144510456168068_7188390628705923134_n
03
Adres
Runstraat 6,
1016 GK Amsterdam

Screaming Beans

Screaming Beans is een Amsterdams merk dat lokaal en internationaal bekend staat om zijn hoogwaardige koffie. Deze locatie bevindt zich te midden in de historische Negen Straatjes van Amsterdam.  Met zijn gezellige en familiaire sfeer is de winkel aan de Runstraat een tweede huiskamer geworden voor de ondernemers, bewoners en bezoekers van de Runstraat. Kom langs en geniet ook van een heerlijk gebakje, gebakken door Sara of Mateen.

sfeer-buiten1
04
Adres
Runstraat 12,
1016 GK Amsterdam

Restaurant Smelt

Smelt is een gezellig en sfeervol restaurant in de 9 straatjes van Amsterdam. Het restaurant is gespecialiseerd in kaasfondue en biedt vijf verschillende soorten kaas aan. Naast klassieke kaasfondue kun je bij Smelt ook genieten van bijzondere smaken zoals truffel en pesto. Als je geen grote eter bent, kun je ook eenpersoonsporties bestellen. Het interieur van Smelt is knus en warm, met veel hout en kaarslicht. Een perfecte plek om te genieten van een heerlijke kaasfondue met vrienden of familie.

242763162_10159469480317380_5670688408655907350_n
05
Adres
Runstraat 14,
1016 GK Amsterdam

Café de Doffer

Café in de 9-straatjes met een knus terras en een eenvoudige doch goede menukaart. Je kan hier ook terecht voor lunch en borrelhapjes. De Doffer is al sinds de jaren zeventig een begrip in de Amsterdamse 9 straatjes en trekt daarom ook een leuk gevarieerd publiek met uiteraard een goede portie Amsterdamse gezelligheid. Voor iedereen wat wils hier!

353641879_1419939592163038_8634430788037824397_n
290397117_436247795090553_6563998570248249791_n
06
Adres
Wolvenstraat 22,
1016 EP Amsterdam

Café Wolf

Bakkerij Wolf opende al een jaar geleden haar deuren. En dan is nu daarnaast Café Wolf geopend,  waar je kunt genieten van verfrissende gerechten boordevol groenten in een prachtig Scandinavisch interieur. De gerechten zijn hier niet je standaard kost, maar bieden een unieke culinaire ervaring van hoog niveau. Het Café is geopend van dinsdag tot zondag vanaf 8:30 tot 18:00 (de keuken sluit om 17:00).

 

103869559_10163664798155142_645102952535043170_n
07
Adres
Huidenstraat 25,
1016 ER Amsterdam

Café de Pels

Café de Pels is een echt intellectueel creatief café. Menig boek of column is hier geschreven, goede gesprekken worden hier gevoerd en leuke of stomme grappen zijn hier uitgeprobeerd. Ook wordt er in de Pels op z’n Amsterdams geflirt, gediscussieerd en zoals het hoort in een Amsterdams bruincafé, bier gedronken. De muren hangen vol met kunst dat door vaste gasten zelf gemaakt is. Het is een bruincafé met een creatief randje, broodjes kroket en op maandag een daghap.

image_ramen1_large-1777×1000-q75
08
Adres
Elandsgracht 2A,
1016 TV Amsterdam

Fou Fow Ramen

Vroeger was dit ramen restaurant een goed bewaard geheim dat verscholen zat in de Chinese buurt. Maar ondertussen heeft Fou Fow al twee locaties in de stad en is Fou Fow een bekende naam voor de Amsterdammer die van ramen houden. Op de gezellige en bruisende Elandsgracht eet je de overheerlijke en overigens goedgeprijsde – van origine Chineese - ramen van Fou Fow. Je kunt kiezen uit vier soorten soep op basis van verschillende bouillons en daar gaan dan vervolgens diverse ingrediënten in waaronder natuurlijk de main ingredient: noedels!

downloadgram.org_604217678_17883443676424172_3742355923198128651_n
09
Adres
Elandsgracht 14,
1016 TV Amsterdam

Gifu Ramen Bar

Chef en mede-eigenaar Ryoji Miyachi brengt met Gifu Ramen Bar een eerbetoon aan de Japanse ramencultuur waarin hij zelf is opgegroeid. Samen met het team achter Chun Café positioneert hij ramen als volwaardig chef-driven comfort food. De keuken draait om perfect uitgebalanceerde bouillons die urenlang worden getrokken voor maximale diepte en umami. Naast ramen serveert Gifu izakaya-achtige gerechten die de Japanse eetcultuur compleet maken. De sfeer is rustig en warm, met een minimalistisch interieur en zicht op de open keuken.

10
Adres
Elandsgracht 29-31,
1016 TM Amsterdam

Rakang

Op de altijd gezellige Elandsgracht zit het Thaise restaurant Rakang. Vriendelijke bediening, prettige sfeer en heerlijk authentiek Thais eten! En volgens sommigen zelfs de lekkere Thai van Amsterdam… Of je het daar mee eens bent laten we aan jou over. Maar ben je op zoek naar een lekker, vers, aziatisch restaurant. Dan is Rakang zeker de moeite waard. En na die lekkere Thaise maaltijd biedt de Elandsgracht genoeg gelegenheid om nog een biertje drinken in een van de vele kroegen.

334769154_945169810172701_5632375530644746601_n
11
Adres
Prinsengracht 381HS,
1016 HL Amsterdam

Café Restaurant Verlan

Het voormalige pand van het bekende Envy krijgt een nieuw leven met Café Restaurant Verlan. In dit gezellige restaurant worden eigentijdse Franse à-la-carte gerechten geserveerd. Het dinermenu is de hele dag beschikbaar, terwijl de lunch tot 15:00 uur wordt geserveerd. Of je nu koffie, een uitgebreide lunch, borrelhapjes, of een diner zoekt, Verlan heeft het allemaal. Je kunt plaatsnemen aan de lange marmeren bar en de koks aan het werk zien in de open keuken. Het restaurant is geopend van woensdag tot maandag voor het diner, en op zaterdag en zondag voor de lunch.

Schermafbeelding 2022-07-01 om 17.17.51
12
Adres
Eerste Looiersdwarsstraat 15,
1016 VL Amsterdam

Bar Parry

Bar Parry is het jonge broertje/zusjes van Restaurant Balthazar’s Keuken. Bij Bar Parry serveren ze sinds 2018 mooie kleine gerechten, charcuterie en kaas met een lekker glas wijn. Ze werken al bijna 25 jaar nauw samen met De Wijnwinkel (Runstraat 23). In de bar staat een groot deel van het assortiment op de kaart. Bijzonder; ze hanteren een vaste opslag op de winkelprijs zodat ze ook de meer bijzondere wijnen voor een goede prijs kunnen schenken.

413921630_17881045268992530_3502756144754358179_n
13
Adres
Elandsgracht 45,
1016 TN Amsterdam

Ela Restobar

ELA Restobar verwelkomt je graag in hun 'all-day' food concept. In de ochtend en middag is het de ideale locatie voor een heerlijke kop Spaanse koffie, een smakelijke lunch of een (zakelijke) bijeenkomst. Naarmate de dag vorder, verandert het in een plek waar je kunt genieten van een verfrissende cocktail of een smaakvol Italiaans biertje. En voor wie trek heeft, biedt chef Teun Dikkers een unieke draai aan de klassieke mediterrane keuken.

Kunst & cultuur
74e6adf2059221ac2dd55278be18c13b_w680
14
Adres
Keizersgracht 321,
1016 EE Amsterdam

De BorzoGallery

De BorzoGallery gelegen aan de Keizersgracht is toonaangevend op het gebied van NUL/Zero, minimalisme en conceptuele kunst. Het koppelen van het nabije verleden aan de hedendaagse kunst is een van de belangrijkste speerpunten. Zoals ze zelf zeggen: “Kunstenaars van nu ‘staan op de schouders’ van hun voorgangers, waarbij wij schrille contrasten niet schuwen.”

Installation-view-Through-Painters-Eyes-1-2000×1159
2022-08-04_RONMANDOS_133
15
Adres
Prinsengracht 282,
1016 HJ Amsterdam

Galerie Ron Mandos

Galerie Ron Mandos heeft in 20 jaar tijd een prominente plaats verworven binnen de Nederlandse kunstscene. De galerie opende haar deuren in Rotterdam in 1999 en is sinds 2010 verhuisd naar hun huidige galerie in het Amsterdamse galeriedistrict. Galerie Ron Mandos is een galerie voor hedendaagse kunst en presenteert tentoonstellingen van o.a. internationaal erkende kunstenaars maar de focus ligt op opkomende kunstenaars.

Overzicht-midden-Galerie-Bart-Krista-Jongsma
16
Adres
Elandsgracht 16,
1016 TW Amsterdam

Galerie Bart

Galerie Bart is een galerie voor hedendaagse kunst in Amsterdam met een focus op zowel gevestigde als jonge kunstenaars die in Nederland zijn afgestudeerd en uitblinken door hun vernieuwende vakmanschap. Bij Bart vind je kunstenaars die ofwel speels en fris, stevig en scherp, sereen en lichtvoetig of serieus met een vleugje humor werk maken. Zij zoeken de grenzen van hun medium op en bevragen deze, met als doel de grenzen te verleggen.

378423472_1305502846767633_1129165759947426315_n
378086752_667689901969156_5251451171088816529_n
17
Adres
Prinsengracht 371B,
1016 HK Amsterdam

Stevenson

De galerie werd opgericht in 2003 en wordt geleid door een collectief van 13 directeuren, waaronder Federica Angelucci, Marc Barben, Lerato Bereng, Joost Bosland, David Brodie, Sinazo Chiya, Andrew da Conceicao, Jessica Honeyman, Lanese Jaftha, Sisipho Ngodwana, Sophie Perryer, Alexander Richards en Michael Stevenson, Stevenson presenteert een internationaal tentoonstellingsprogramma met een specifieke focus op de regio's waarin haar galerijen zich bevinden, namelijk Kaapstad, Johannesburg en Amsterdam.

erin_johnson.1000×700
18
Adres
Singel 372,
1016 AH Amsterdam

Ellen de Bruijne Projects

Ellen de Bruijne Projects is een galerie die zich sinds de eerste tentoonstelling in 1999 richt op nieuwe tendensen in de hedendaagse kunst door het nieuwe in vergelijking te brengen met het recente verleden en te experimenteren om nieuwe standaarden te ontwikkelen, waarbij de nadruk ligt op performing art, sociaal gerelateerde kunst, installaties en werken in uitvoering.

Interieur
anoukbeerents_003
19
Adres
Prinsengracht 467-BG,
1016 HP Amsterdam

Anouk Beerents

Anouk Beerents is sinds 1987 uitgegroeid tot een bekend begrip op het gebied van de import en export van antieke spiegels. Het atelier aan de Prinsengracht biedt ruimte aan hun collectie van ruim 300 spiegels uit de 18e en 19e eeuw, waarvan het merendeel zijn origine vindt in Frankrijk en Italië, en is verguld in bladgoud of bladzilver.

269811997_4974956682516096_4977920613031829702_n
20
Adres
Prinsengracht 397,
1016 DN Amsterdam

360 volt

Gevestigd aan de Prinsengracht kun je 360volt vinden, opgericht door Hilde de Lange en Emile de Cock. 360volt heeft inmiddels een van de grootste collecties vintage originele industriële lampen en bijzondere objecten. De lampen van 360volt zijn bijzonder omdat alle lampen worden gerestaureerd, maar toch hun authentieke uitstraling behouden – industrieel, met strakke lijnen, eenvoudige vormen en van duurzame materialen.

281661230_5289140751106028_5004304199774961695_n
282007955_5286220708064699_8260481307134760693_n
21
Adres
Looiersgracht 40B,
1016 VS Amsterdam

FEST

FEST is een Nederlands interieurmerk dat in 2013 is gestart door Femke Furnée. De kerngedachte achter FEST: een mooie omgeving toegankelijk maken, voor iedereen. FEST biedt high-end meubels en woonaccessoires – zonder dat daar een high-end prijskaartje aan hangt. De vrolijke, tijdloze en duurzame collecties worden ontwikkeld in samenwerking met internationale designers. Bij FEST vind je alles om jouw interieur een (kleurrijke) boost te geven.

Boodschappen
Schermafbeelding 2022-09-27 om 11.29.03
22
Adres
Wolvenstraat 22,
1016 EP Amsterdam

Bakkerij Wolf

In de negen straatjes in Amsterdam zit Bakkerij Wolf. Blijf even lekker zitten of neem wat lekkere dingen mee naar huis. Op de rustieke houtrekken achter te toonbank staan de zuurdesembroden uitgesteld. Bij deze bakker in de Wolfstraat heb je broden, croissants en gebakjes van de allerbeste kwaliteit. De geur van de kaneelbroodjes en croissants is onweerstaanbaar en je kijkt je ogen uit in de vitrine vol lekkers. Probeer absoluut de amandelcroissant en het aardbeientaartje

kaaskamer-amsterdam-cheese-lunch-broodjes-speciale-kaas-80
23
Adres
Runstraat 7,
1016 GJ Amsterdam

Kaaskamer

De naam zegt het al; bij de Kaaskamer kan je terecht voor kaas. Van de vloer tot het plafond is deze winkel gevuld met kaas waarbij vakmanschap en traditie voorop staan. Bij deze kaasspeciaalzaak kan je tussen de 300 en 400 soorten kaas kopen uit heel Europa. Je kan hier je broodje beleggen met ruime keuze en om het af te maken kan je ook kiezen tussen verschillende huisgemaakte sausjes. Uit Frankrijk worden de kazen iedere twee weken zelf opgehaald en in Nederland ligt de focus op biologische kazen die rechtstreeks van de boer komen. Ook worden er wijnen, salades, olijven, hammen en noten verkocht voor een complete borrelplank.

9
24
Adres
Huidenstraat 12,
1016 ES Amsterdam

Chocolaterie Pompadour

Chocolaterie Pompadour is een patisserie aan de Huidenstraat. Alles draait hier om vakmanschap, pure producten en passie voor chocolade en gebak. Elk chocolaatje wordt met zorg gemaakt en prachtig gedecoreerd. In de bijbehorende tearoom kunt u in het prachtig nostalgische interieur genieten van heerlijke thee of Catalaanse koffie. Bij elk kopje koffie serveert Pomadour ook een zelfgebakken financier; een zalig frans cakeje van Spaanse amandelen en beurre noisette. Kortom, voor de beste gebakjes met pure smaken ben je hier aan het juiste adres.

Schermafbeelding 2022-07-01 om 17.10.30
25
Adres
Looiersgracht 12,
1016 VS Amsterdam

Foodware

Foodware is de plek voor eerlijk voedsel: vers bereid en zonder kunstmatige toevoegingen. Combineer verschillende gerechten tot een maaltijd door te kiezen uit een assortiment van vis-, vlees- of vegetarische ingrediënten. Foodware was oorspronkelijk een traiteur, maar je kan tegenwoordig ook hun heerlijke verse maaltijden in het restaurant aan de Looiersgracht opeten. Maar heb je haast? Dan kan je het eten ook altijd nog gewoon meenemen. Het aanbod aan gerechten is redelijk vast en niet heel groot maar dit bevordert de kwaliteit. Zin in lekker, gezond en niet al te moeilijk eten? Dan is Foodware een perfecte plek om naar toe te gaan.

Affordable Art Fair Amsterdam, 9-13 Oktober 2024

Affordable Art Fair Amsterdam, 9-13 Oktober 2024

Een selectie van gezellige bruine café’s in Amsterdam

Een selectie van gezellige bruine café’s in Amsterdam

Uitgelicht; ‘Parkzicht’. ‘Onze woonkamer is op de bovenste verdieping, en nog iedere ochtend als we bovenkomen, worden we blij: het licht, het uitzicht, de vrijheid!’

Uitgelicht; ‘Parkzicht’. ‘Onze woonkamer is op de bovenste verdieping, en nog iedere ochtend als we bovenkomen, worden we blij: het licht, het uitzicht, de vrijheid!’

Onlangs bekeken
Bekijk het overzicht

Deze site maakt gebruik van cookies.

Voor welke cookies geef je akkoord?