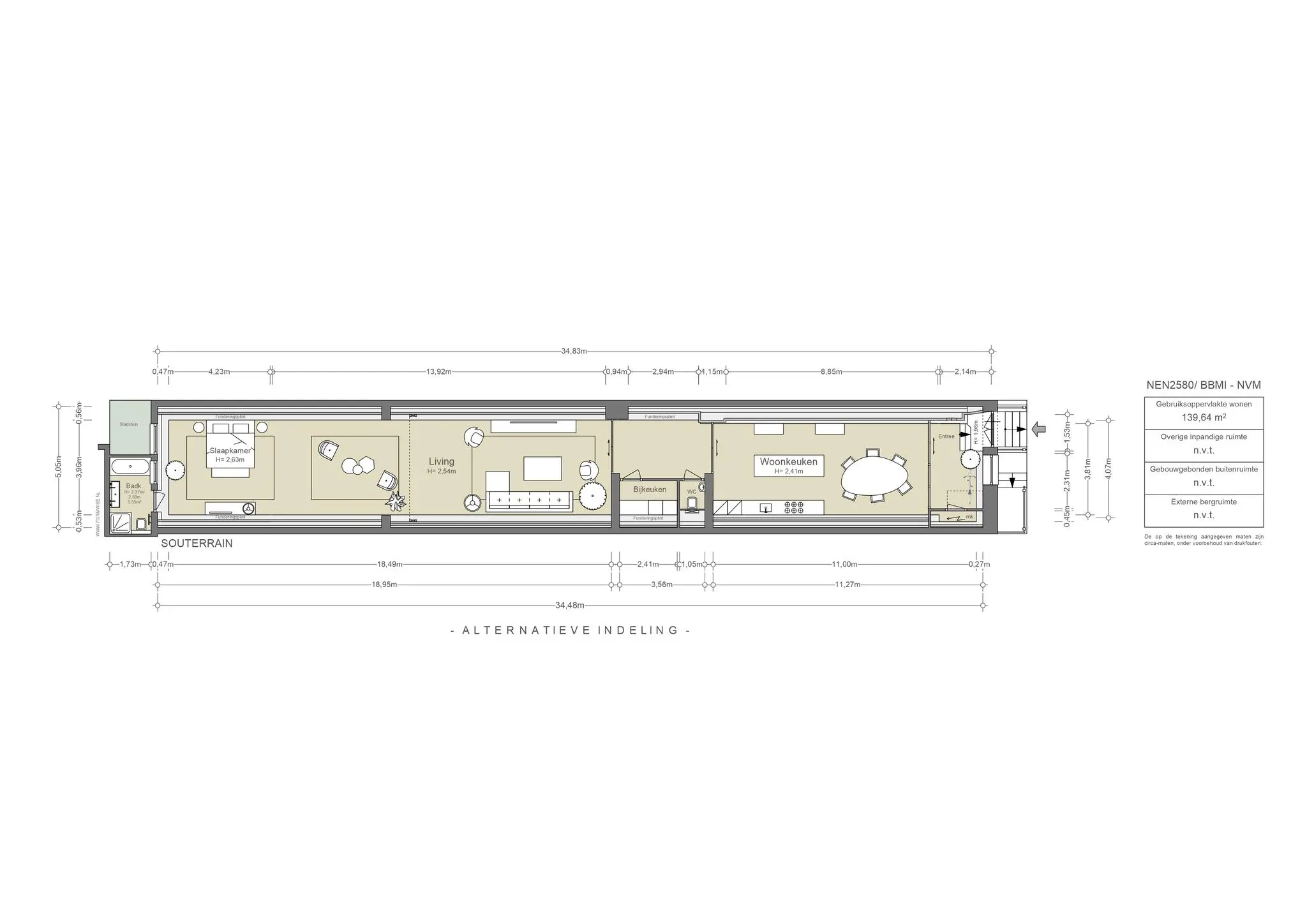
De ruimte in het souterrain van het karakteristieke grachtenpand aan de Keizersgracht heeft een bewoonbare oppervlakte van bijna circa 140 m². De ruimte is afgelopen periode in gebruik geweest als bedrijfsruimte en bied mede door zijn dubbele bestemming de mogelijkheid een woning te creëren. 

Kijk vooral naar de artist impressies en de plattegrond voor de beoogde indeling van de ruimte. 

Buurtgids
Gelegen in het midden van de 9 straatjes aan de Keizersgracht, met aan de ene kant de Leidsegracht en de traditionele Jordaan om de hoek, is er een enorm aanbod uit unieke boetiekwinkels en leuke restaurants. De levendige Noordermarkt en Lindengrachtmarkt zijn op zaterdag op loopafstand te bezoeken. 
Het openbaar vervoer biedt toegang tot alle delen van Amsterdam, inclusief de Zuidas. De dichtstbijzijnde tramhaltes zijn Koningsplein en Westermarkt, de bussen vertrekken vanaf de Elandsgracht. De metro halte Rokin (noordzuidlijn) ligt op 10 minuten lopen. 

Bijzonderheden
•    Gebruiksoppervlakte wonen circa 139,64 m²
•    Tuin gelegen zuidwesten 
•    Gelegen op eigen grond
•    Rijksmonument

Deze informatie is door ons met de nodige zorgvuldigheid samengesteld. Onzerzijds wordt echter geen enkele aansprakelijkheid aanvaard voor enige onvolledigheid, onjuistheid of anderszins, dan wel de gevolgen daarvan. Alle opgegeven maten en oppervlakten zijn slechts indicatief.
De Meetinstructie is gebaseerd op de NEN2580. De Meetinstructie is bedoeld om een meer eenduidige manier van meten toe te passen voor het geven van een indicatie van de gebruiksoppervlakte. De Meetinstructie sluit verschillen in meetuitkomsten niet volledig uit, door bijvoorbeeld interpretatieverschillen, afrondingen of beperkingen bij het uitvoeren van de meting.

Keizers_Kantoor

Sous-Keizer 306
De ruimte aan de Keizersgracht 306 in het souterrain is lang in gebruik geweest als bedrijfsruimte. Er is door de vereniging van eigenaren toestemming verleend om een omgevingsvergunning aan te vragen voor een woning. De bijzonder diepe ruimte heeft inlevingsvermogen nodig om een goed beeld te krijgen hoe het straks bewoond kan worden. Ik verwacht dat een nieuwe eigenaar creatief zal zijn. Deze zal onder andere hoogte creëren en een mooie oplossing bedenken voor de funderingsplint en het lichtinval.


Jelle Mundt | Makelaar Broersma Wonen
Keizersgracht 306 souterrain-12

Designvisie
De ruimte maakt onderdeel uit van een karakteristiek en monumentaal herenhuis aan de bekende Keizersgracht. Deze traditionele grachten maakte in de 17e en 18 eeuw een belangrijk deel uit van de bloeiende handel en economie van Amsterdam. In deze Gouden Eeuw was de Amstel was een belangrijke vaarroute. De woningen aan de grachten werden destijds door koopmannen en rijke adelen gebouwd.
in 1904 is de oorspronkelijke halsgevel vervangen door een rechte gesneden lijst om meer ruimte te creëren op de zolder. Later in 1916 is het gebouw in gebruik genomen als kantoor met magazijn ( souterrain).
In 1972 is de fundering van het gebouw vernieuwd en zijn de verdiepingen gesplitst om in de toekomst de ruimten als woningen in gebruik te nemen. 

 

Keizersgracht 306 souterrain-14
Keizersgracht 306 souterrain-33
Keizersgracht 306 souterrain-20
Keizers_Kantoor

Rondleiding
De eigen entree met voorportaal geeft toegang tot de open ruimte. Deze ruimte is bijna 35 meter diep. In het ontwerp is er voldoende ruimte voor een grote woonkeuken, werk/atelier ruimte, woonkamer en aparte slaapkamer. Aan de achterzijde van de ruimte is een mogelijkheid een doorgang te creëren naar een kleine binnentuin.

 

Keizersgracht 306 souterrain-21
Keizers_Kitchen
Keizersgracht 306 souterrain-31
Keizersgracht 306 souterrain-25
Keizersgracht 306 souterrain-17
Keizersgracht 306 souterrain-30
Keizers_Living
Keizersgracht 306 souterrain-27
Keizersgracht 306-O_Wonen
Keizersgracht 306 souterrain-39
Keizers_Bed
Keizersgracht 306 souterrain-34
Keizersgracht 306 souterrain-13
Keizersgracht 306 souterrain-2
Keizersgracht 306 souterrain-10
Keizersgracht 306 souterrain-3
Keizersgracht 306 souterrain-5

Gelegen in een gezellige en vooral centrale locatie met leuke restaurants, in het midden van de 9 straatjes aan de Keizersgracht, met aan de ene kant de Leidsegracht en de traditionele Jordaan om de hoek. Er is een enorm aanbod uit unieke boetiekwinkels en leuke restaurants. De levendige Noordermarkt en Lindengrachtmarkt zijn op zaterdag op loopafstand te bezoeken.
Door de centrale ligging is alles op fiets- en loopafstand; een zeer fijne locatie dus om te wonen. Wonen in het centrum biedt een geheel andere sfeer en beleving die uniek grootstedelijk is en ook heel intiem. Dat komt ook door de historische setting, die ‘s avonds romantiek geeft en overdag kleurrijke personages aantrekt.

Bereikbaarheid 
Dankzij de centrale ligging is het pand zeer goed bereikbaar. Het zuidelijke deel van de gracht ontsluit zich via de Stadhouderskade naar de Vijzelgracht en via de Spiegelgracht. Voor degenen op de fiets, lopend en met de auto zijn er meerdere wegen, waaronder via de Leidsegracht. Het openbaar vervoer is ‘om de hoek: tramlijnen op Vijzelstraat en de metrohalte op Vijzelgracht zijn direct bereikbaar.
Het openbaar vervoer biedt toegang tot alle delen van Amsterdam, inclusief de Zuidas. De dichtstbijzijnde tramhaltes zijn Koningsplein en Westermarkt, de bussen vertrekken vanaf de Elandsgracht. De metro halte Rokin (noordzuidlijn) ligt op 10 minuten lopen.

Parkeergelegenheid 
Parkeren is mogelijk via een vergunningenstelsel op de openbare weg (vergunningsgebied Centrum-2e.).
Met een parkeervergunning voor Centrum-2e mag u parkeren in Centrum-2.
Een parkeervergunning voor bewoners kost € 315,60 per 6 maanden. Momenteel is er voor dit vergunningsgebied een wachttijd van 8 maanden. Een tweede parkeervergunning is in dit gebied niet mogelijk. (Bron: Gemeente Amsterdam, april 2024).

Keizersgracht 306 souterrain-1
Kenmerken
Keizersgracht 306O, Amsterdam
Vraagprijs
  • € 618.000 k.k.
Beschikbaarheid
  • In overleg
Vertrekken
  • 2 kamers
  • 1 slaapkamer
  • 1 badkamer
Onderhoud
  • Intern: Goed
  • Extern: Goed
Oppervlakten & Inhoud
  • Woonoppervlakte: 140 m²
Bouwjaar
  • 1620
Ligging
  • Aan vaarwater
  • Aan water
  • In centrum
  • In woonwijk
Parkeren
  • Betaald parkeren
  • Parkeervergunningen
Bestemming
  • Woonruimte
Eigendomssoort
  • Volle eigendom
Buitenruimte
  • Achtertuin
Kadastraal
  • Gemeente: Amsterdam
  • Sectie: E
  • Nummer: 9495
Soort
  • Appartement
  • Benedenwoning
Bijzonderheden
  • Monument
Overige kenmerken

OZB ('24) € 663,85 per jaar
Rioolrecht ('24) € 166,85 per jaar
 

Plattegrond
Keizersgracht 306O, Amsterdam
AM105179-1852191-Keizersgracht-306O,-Amsterdam-177714499
Documenten
Keizersgracht 306O, Amsterdam
Locatie
Keizersgracht 306O, Amsterdam
Eten & drinken
258259290_1099450644203131_9046645986166328405_n
273169718_727311508235024_4226021460398763832_n
01
Adres
Berenstraat 8,
1016 GH Amsterdam

Chun Café

In de druk gelegen Negenstraatjes heeft Chun Café onlangs hun bubble tea menu uitgebreid met een selectie van speciale  sandwiches. De sandwiches zijn verkrijgbaar in vier smaken. De opties zijn: eiersalade, bacon ei en kaas, knoflookgarnalen ei en rib-eye bulgogi. Heerlijk boterachtig en perfect geroosterd.

353641879_1419939592163038_8634430788037824397_n
290397117_436247795090553_6563998570248249791_n
02
Adres
Wolvenstraat 22,
1016 EP Amsterdam

Café Wolf

Bakkerij Wolf opende al een jaar geleden haar deuren. En dan is nu daarnaast Café Wolf geopend,  waar je kunt genieten van verfrissende gerechten boordevol groenten in een prachtig Scandinavisch interieur. De gerechten zijn hier niet je standaard kost, maar bieden een unieke culinaire ervaring van hoog niveau. Het Café is geopend van dinsdag tot zondag vanaf 8:30 tot 18:00 (de keuken sluit om 17:00).

 

334769154_945169810172701_5632375530644746601_n
03
Adres
Prinsengracht 381HS,
1016 HL Amsterdam

Café Restaurant Verlan

Het voormalige pand van het bekende Envy krijgt een nieuw leven met Café Restaurant Verlan. In dit gezellige restaurant worden eigentijdse Franse à-la-carte gerechten geserveerd. Het dinermenu is de hele dag beschikbaar, terwijl de lunch tot 15:00 uur wordt geserveerd. Of je nu koffie, een uitgebreide lunch, borrelhapjes, of een diner zoekt, Verlan heeft het allemaal. Je kunt plaatsnemen aan de lange marmeren bar en de koks aan het werk zien in de open keuken. Het restaurant is geopend van woensdag tot maandag voor het diner, en op zaterdag en zondag voor de lunch.

image_ramen1_large-1777×1000-q75
04
Adres
Elandsgracht 2A,
1016 TV Amsterdam

Fou Fow Ramen

Vroeger was dit ramen restaurant een goed bewaard geheim dat verscholen zat in de Chinese buurt. Maar ondertussen heeft Fou Fow al twee locaties in de stad en is Fou Fow een bekende naam voor de Amsterdammer die van ramen houden. Op de gezellige en bruisende Elandsgracht eet je de overheerlijke en overigens goedgeprijsde – van origine Chineese - ramen van Fou Fow. Je kunt kiezen uit vier soorten soep op basis van verschillende bouillons en daar gaan dan vervolgens diverse ingrediënten in waaronder natuurlijk de main ingredient: noedels!

Vinkeles_Impression_Patio_LRS_06
Restaurant_Vinkeles_Food_LRS_13-1500×630
05
Adres
Keizersgracht 384,
1016 GB Amsterdam

Vinkeles (**)

Omsloten door hotel Dylan, is restaurant Vinkeles klein Frankrijk dichtbij huis. Met een prachtige locatie aan de Keizersgracht is het restaurant bij uitstek een chique aangelegenheid. De keuken draagt de handtekening van chef Jurgen van der Zalm die in 2023 zijn tweede ster er mee verdiende.

downloadgram.org_604217678_17883443676424172_3742355923198128651_n
06
Adres
Elandsgracht 14,
1016 TV Amsterdam

Gifu Ramen Bar

Chef en mede-eigenaar Ryoji Miyachi brengt met Gifu Ramen Bar een eerbetoon aan de Japanse ramencultuur waarin hij zelf is opgegroeid. Samen met het team achter Chun Café positioneert hij ramen als volwaardig chef-driven comfort food. De keuken draait om perfect uitgebalanceerde bouillons die urenlang worden getrokken voor maximale diepte en umami. Naast ramen serveert Gifu izakaya-achtige gerechten die de Japanse eetcultuur compleet maken. De sfeer is rustig en warm, met een minimalistisch interieur en zicht op de open keuken.

313848685_1144510456168068_7188390628705923134_n
07
Adres
Runstraat 6,
1016 GK Amsterdam

Screaming Beans

Screaming Beans is een Amsterdams merk dat lokaal en internationaal bekend staat om zijn hoogwaardige koffie. Deze locatie bevindt zich te midden in de historische Negen Straatjes van Amsterdam.  Met zijn gezellige en familiaire sfeer is de winkel aan de Runstraat een tweede huiskamer geworden voor de ondernemers, bewoners en bezoekers van de Runstraat. Kom langs en geniet ook van een heerlijk gebakje, gebakken door Sara of Mateen.

sfeer-buiten1
08
Adres
Runstraat 12,
1016 GK Amsterdam

Restaurant Smelt

Smelt is een gezellig en sfeervol restaurant in de 9 straatjes van Amsterdam. Het restaurant is gespecialiseerd in kaasfondue en biedt vijf verschillende soorten kaas aan. Naast klassieke kaasfondue kun je bij Smelt ook genieten van bijzondere smaken zoals truffel en pesto. Als je geen grote eter bent, kun je ook eenpersoonsporties bestellen. Het interieur van Smelt is knus en warm, met veel hout en kaarslicht. Een perfecte plek om te genieten van een heerlijke kaasfondue met vrienden of familie.

242763162_10159469480317380_5670688408655907350_n
09
Adres
Runstraat 14,
1016 GK Amsterdam

Café de Doffer

Café in de 9-straatjes met een knus terras en een eenvoudige doch goede menukaart. Je kan hier ook terecht voor lunch en borrelhapjes. De Doffer is al sinds de jaren zeventig een begrip in de Amsterdamse 9 straatjes en trekt daarom ook een leuk gevarieerd publiek met uiteraard een goede portie Amsterdamse gezelligheid. Voor iedereen wat wils hier!

122150534_1672849526208532_3165418229905077788_n
10
Adres
Prinsengracht 341,
1016 DN Amsterdam

Koffiehuis de Hoek

Op het hoekje van de Runstraat en de Prinsengracht vind je dit klassieke Amsterdamse koffiehuis. Sinds 1954 weten veel verschillende mensen deze bijzondere plek te vinden. Op het zonnige terras kan je genieten van de drukte op de Amsterdamse grachten en binnen kan je genieten van het mooie interieur. Goede huisgemaakte taarten, pannenkoeken, omeletten en andere lekkere broodjes en uiteraard: koffie.

11
Adres
Reestraat 8,
1016 DN Amsterdam

Restaurant Jansz

De 17e eeuwse ambachtsman Volkert Jansz: man met verfijnde smaak, goede stijl en een passie voor levendige conversaties. Hij geloofde er sterk in dat decadentie en luxe pas echt tot hun recht komen wanneer je het deelt en dat is precies hoe het ook voelt bij Jansz. Moderne-Nederlandse keuken met liefde bereid. Je kan er ook terecht voor lunch en koffie als je door de 9 straatjes aan het struinen bent.

103869559_10163664798155142_645102952535043170_n
12
Adres
Huidenstraat 25,
1016 ER Amsterdam

Café de Pels

Café de Pels is een echt intellectueel creatief café. Menig boek of column is hier geschreven, goede gesprekken worden hier gevoerd en leuke of stomme grappen zijn hier uitgeprobeerd. Ook wordt er in de Pels op z’n Amsterdams geflirt, gediscussieerd en zoals het hoort in een Amsterdams bruincafé, bier gedronken. De muren hangen vol met kunst dat door vaste gasten zelf gemaakt is. Het is een bruincafé met een creatief randje, broodjes kroket en op maandag een daghap.

DSC08095
Scherm­afbeelding 2024-01-10 om 15.28.36
13
Adres
Reestraat 28-32,
1016 DN Amsterdam

Bussia

Een modern Italiaans restaurant én ambachtelijke bakkerij in het hart van Amsterdam. De bakkerij voorziet in knapperig zuurdesembrood, verse barista koffie en de lekkerste Italiaanse patisserie. 's Avonds vormt de bakkerij de ingang van het restaurant. De keuken van Bussia heeft een verfijnde Italiaanse kookstijl, waar ambacht en moderniteit samenkomen. Alleen de allerbeste authentieke ingrediënten vormen de basis van de keuken. Het brood, de gebak en de pasta's zijn handgemaakt. Proef de authenticiteit. Precies zoals de Italiaanse keuken bedoeld is. Geen shortcuts, alleen precisie, geduld en liefde.

14
Adres
Elandsgracht 29-31,
1016 TM Amsterdam

Rakang

Op de altijd gezellige Elandsgracht zit het Thaise restaurant Rakang. Vriendelijke bediening, prettige sfeer en heerlijk authentiek Thais eten! En volgens sommigen zelfs de lekkere Thai van Amsterdam… Of je het daar mee eens bent laten we aan jou over. Maar ben je op zoek naar een lekker, vers, aziatisch restaurant. Dan is Rakang zeker de moeite waard. En na die lekkere Thaise maaltijd biedt de Elandsgracht genoeg gelegenheid om nog een biertje drinken in een van de vele kroegen.

Boodschappen
Schermafbeelding 2022-09-27 om 11.29.03
15
Adres
Wolvenstraat 22,
1016 EP Amsterdam

Bakkerij Wolf

In de negen straatjes in Amsterdam zit Bakkerij Wolf. Blijf even lekker zitten of neem wat lekkere dingen mee naar huis. Op de rustieke houtrekken achter te toonbank staan de zuurdesembroden uitgesteld. Bij deze bakker in de Wolfstraat heb je broden, croissants en gebakjes van de allerbeste kwaliteit. De geur van de kaneelbroodjes en croissants is onweerstaanbaar en je kijkt je ogen uit in de vitrine vol lekkers. Probeer absoluut de amandelcroissant en het aardbeientaartje

kaaskamer-amsterdam-cheese-lunch-broodjes-speciale-kaas-80
16
Adres
Runstraat 7,
1016 GJ Amsterdam

Kaaskamer

De naam zegt het al; bij de Kaaskamer kan je terecht voor kaas. Van de vloer tot het plafond is deze winkel gevuld met kaas waarbij vakmanschap en traditie voorop staan. Bij deze kaasspeciaalzaak kan je tussen de 300 en 400 soorten kaas kopen uit heel Europa. Je kan hier je broodje beleggen met ruime keuze en om het af te maken kan je ook kiezen tussen verschillende huisgemaakte sausjes. Uit Frankrijk worden de kazen iedere twee weken zelf opgehaald en in Nederland ligt de focus op biologische kazen die rechtstreeks van de boer komen. Ook worden er wijnen, salades, olijven, hammen en noten verkocht voor een complete borrelplank.

9
17
Adres
Huidenstraat 12,
1016 ES Amsterdam

Chocolaterie Pompadour

Chocolaterie Pompadour is een patisserie aan de Huidenstraat. Alles draait hier om vakmanschap, pure producten en passie voor chocolade en gebak. Elk chocolaatje wordt met zorg gemaakt en prachtig gedecoreerd. In de bijbehorende tearoom kunt u in het prachtig nostalgische interieur genieten van heerlijke thee of Catalaanse koffie. Bij elk kopje koffie serveert Pomadour ook een zelfgebakken financier; een zalig frans cakeje van Spaanse amandelen en beurre noisette. Kortom, voor de beste gebakjes met pure smaken ben je hier aan het juiste adres.

Interieur
anoukbeerents_003
18
Adres
Prinsengracht 467-BG,
1016 HP Amsterdam

Anouk Beerents

Anouk Beerents is sinds 1987 uitgegroeid tot een bekend begrip op het gebied van de import en export van antieke spiegels. Het atelier aan de Prinsengracht biedt ruimte aan hun collectie van ruim 300 spiegels uit de 18e en 19e eeuw, waarvan het merendeel zijn origine vindt in Frankrijk en Italië, en is verguld in bladgoud of bladzilver.

269811997_4974956682516096_4977920613031829702_n
19
Adres
Prinsengracht 397,
1016 DN Amsterdam

360 volt

Gevestigd aan de Prinsengracht kun je 360volt vinden, opgericht door Hilde de Lange en Emile de Cock. 360volt heeft inmiddels een van de grootste collecties vintage originele industriële lampen en bijzondere objecten. De lampen van 360volt zijn bijzonder omdat alle lampen worden gerestaureerd, maar toch hun authentieke uitstraling behouden – industrieel, met strakke lijnen, eenvoudige vormen en van duurzame materialen.

Kunst & cultuur
74e6adf2059221ac2dd55278be18c13b_w680
20
Adres
Keizersgracht 321,
1016 EE Amsterdam

De BorzoGallery

De BorzoGallery gelegen aan de Keizersgracht is toonaangevend op het gebied van NUL/Zero, minimalisme en conceptuele kunst. Het koppelen van het nabije verleden aan de hedendaagse kunst is een van de belangrijkste speerpunten. Zoals ze zelf zeggen: “Kunstenaars van nu ‘staan op de schouders’ van hun voorgangers, waarbij wij schrille contrasten niet schuwen.”

Installation-view-Through-Painters-Eyes-1-2000×1159
2022-08-04_RONMANDOS_133
21
Adres
Prinsengracht 282,
1016 HJ Amsterdam

Galerie Ron Mandos

Galerie Ron Mandos heeft in 20 jaar tijd een prominente plaats verworven binnen de Nederlandse kunstscene. De galerie opende haar deuren in Rotterdam in 1999 en is sinds 2010 verhuisd naar hun huidige galerie in het Amsterdamse galeriedistrict. Galerie Ron Mandos is een galerie voor hedendaagse kunst en presenteert tentoonstellingen van o.a. internationaal erkende kunstenaars maar de focus ligt op opkomende kunstenaars.

378423472_1305502846767633_1129165759947426315_n
378086752_667689901969156_5251451171088816529_n
22
Adres
Prinsengracht 371B,
1016 HK Amsterdam

Stevenson

De galerie werd opgericht in 2003 en wordt geleid door een collectief van 13 directeuren, waaronder Federica Angelucci, Marc Barben, Lerato Bereng, Joost Bosland, David Brodie, Sinazo Chiya, Andrew da Conceicao, Jessica Honeyman, Lanese Jaftha, Sisipho Ngodwana, Sophie Perryer, Alexander Richards en Michael Stevenson, Stevenson presenteert een internationaal tentoonstellingsprogramma met een specifieke focus op de regio's waarin haar galerijen zich bevinden, namelijk Kaapstad, Johannesburg en Amsterdam.

Overzicht-midden-Galerie-Bart-Krista-Jongsma
23
Adres
Elandsgracht 16,
1016 TW Amsterdam

Galerie Bart

Galerie Bart is een galerie voor hedendaagse kunst in Amsterdam met een focus op zowel gevestigde als jonge kunstenaars die in Nederland zijn afgestudeerd en uitblinken door hun vernieuwende vakmanschap. Bij Bart vind je kunstenaars die ofwel speels en fris, stevig en scherp, sereen en lichtvoetig of serieus met een vleugje humor werk maken. Zij zoeken de grenzen van hun medium op en bevragen deze, met als doel de grenzen te verleggen.

charles-avery-the-taile-of-the-one-armed-snake-2020_installation-view-7
claudia-martinez-garay-i-will-outlive-you-install-2018
24
Adres
Keizersgracht 241,
1016 EA Amsterdam

GRIMM

GRIMM werd in 2005 in Amsterdam opgericht. Sinds de oprichting heeft de galerie voor hedendaagse kunst zich toegelegd op het promoten en ondersteunen van opkomende en mid-career kunstenaars die werken in een divers scala aan media. Ze vertegenwoordigen meer dan dertig internationale kunstenaars en hebben naast hun galerie in Amsterdam ook een galerie in New York.

21-of-the-most-beautiful-drawings-schoonhoven-peeters-install-kaldenbach-9
25
Adres
Herengracht 254A,
1016 BV Amsterdam

The Merchant House

The Merchant House werd opgericht door Marsha Plotnitsky en is gevestigd in een zeventiende-eeuws grachtenpand. Het is een kunstruimte en galerie die hedendaagse kunst presenteert om te ontdekken, te verkennen en te verzamelen. De galerie belichaamt een eigentijdse benadering van de tradities die de stad en de kunst met elkaar verbinden. Sinds de lancering van het programma in 2013 heeft Plotnitsky meer dan dertig thematische projecten samengesteld, waarbij ze samenwerkt met kunstenaars om plaatsgebonden installaties, opdrachtwerk en nieuw werk te creëren dat aansluit bij het karakteristieke grachtenpand en andere ruimtes.

Monumentaal werken midden in de stad

Monumentaal werken midden in de stad

Oosterparkbuurt

Oosterparkbuurt

Waar drinken we de lekkerste wijnen in Amsterdam? Een selectie van wijn barren én restaurants met een bijzondere wijnkaart

Waar drinken we de lekkerste wijnen in Amsterdam? Een selectie van wijn barren én restaurants met een bijzondere wijnkaart

Onlangs bekeken
Bekijk het overzicht

Deze site maakt gebruik van cookies.

Voor welke cookies geef je akkoord?