Een heerlijk rustig gelegen en prettig ingedeeld achterhuis met een klassieke gevel die verleidt. Met een romantische uitstraling en binnentuin is het appartement een verrassing. Heerlijk om in te wonen met een totaal van circa 78 m², met een openkeuken en living met openslaande deuren naar de tuin. Royale slaapkamer met tevens openslaande deuren naar de tuin. De woning biedt geen luxe in overdaad, maar wel tijdloze charme en intimiteit. De tuin van ruim 73 vierkante meter is een verlengde en onderdeel van het woongenot, beschut en zonnig. 

Rondleiding
Met een open keuken, ruime eetkamer en aangrenzende zitkamer met openslaande deuren naar de tuin, is deze ruimte favoriet bij de eigenaren. De keuken heeft een groot aanrecht, opvallende spoelbak en 5-pits gasfornuis, en er is plaats voor een grote eettafel en een speelhoek of bureau. Grote ramen en deuren bieden zicht op de tuin.
De royale slaapkamer aan de achterzijde heeft ook openslaande deuren naar de rustige, groene tuin. De badkamer is ruim, met zwart/beige tegels, inloopdouche, toilet en wastafel. De tuin is zonnig, groen en voelt als een Parijse binnentuin, waardoor het een geliefde plek is voor de eigenaren.

Buurtgids
De ligging van deze woning maakt het een zeer gewilde locatie in de buurt. Er is veel te beleven, zoals de markt op maandag en de mooie grachten, evenals diverse gerenommeerde lagere en middelbare scholen. De buurt heeft ook veel te bieden op het gebied van eten en drinken, met beroemde culinaire hotspots zoals Winkel 43 voor de bekende appeltaart, Café Toscanini en Café de Klepel op loopafstand. Op zaterdag is er een biologische markt op de Noordermarkt, tegenover het huis, en op zondag is Domenica een aanrader voor de lunch. Kortom, een heerlijke buurt met een authentiek dorps karakter. Er zijn tal van goede en leuke restaurants in de directe omgeving, waaronder De Parel, Café Libertine en Mos. Ook zijn er diverse winkels voor dagelijkse boodschappen en bijzondere inkopen in de Haarlemmerstraat en de Westerstraat, en natuurlijk zijn er diverse terrassen en koffietentjes om te ontdekken. Dit alles is letterlijk om de hoek te vinden. Verschillende grote stadsparken, zoals het Westerpark en het Stenen Hoofd, zijn gemakkelijk per fiets te bereiken, evenals plekken om in de zomer het water op te gaan. Kortom, deze woning is gelegen op een van de mooiste plekjes (zowel intern als extern) van Amsterdam. Het ligt ook nog eens om de hoek van de beroemde Westertoren en de Herenmarkt.

Bijzonderheden
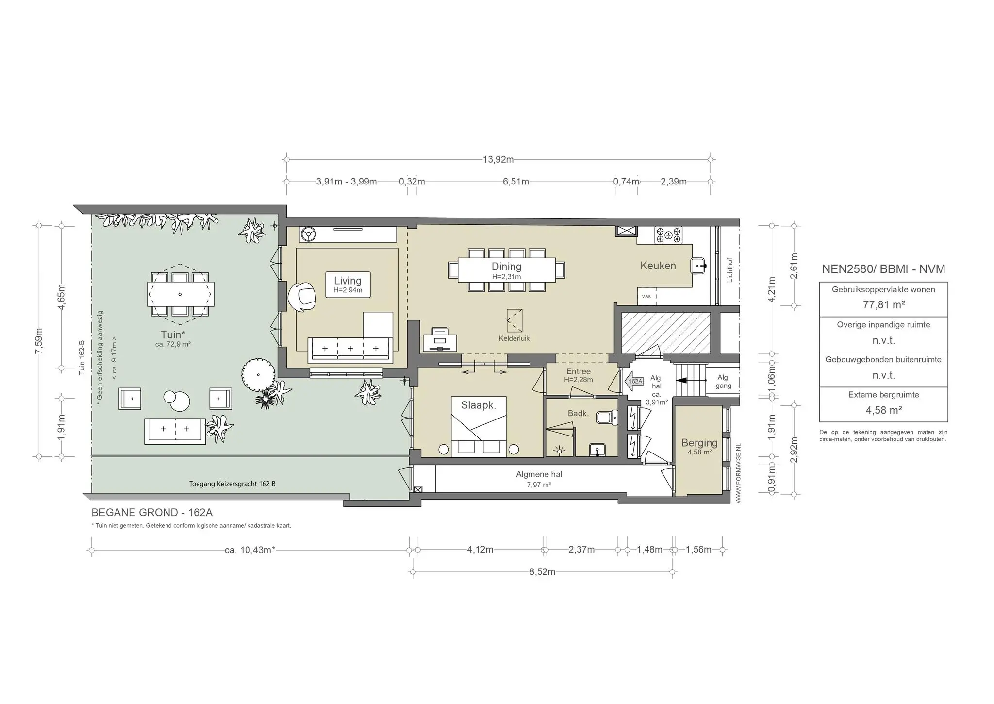
•    Gebruiksoppervlakte wonen circa 78 m²
•    Tuin gelegen op het westen van circa 73 m²
•    Gelegen op eigen grond
•    Servicekosten VvE € 473,94 per maand
•    Rijksmonument
•    Informatie fundering, bestaande fundering
•    Renovatiejaar 2017
•    Onderdeel Rijksbeschermd stadsgezicht.
•    Onderdeel UNESCO Werelderfgoed

AM106200-1981573-Keizersgracht-162A,-Amsterdam-219641181

Centrum Chique Wonen
Toen ik destijds de huidige eigenaren adviseerde bij de aankoop van hun woning, was de aankoop een avontuur met een verrassing. De toegang tot de woning is onorthodox: via een fraai entree, een gang en een groene binnentuin. Een van de verborgen parels in de binnentuinen op de grachtengordel, uit een andere periode van welvaart en onder invloed van de Franse tijd. Dit achterhuis had volgens mij ook in Parijs of Lyon op een binnenterrein kunnen staan. Mijn cliënten waren op slag verliefd. En terecht. Hier wonen is een voorrecht en een beleving van rust en historie. Een unieke plek, zoals wordt gezegd, maar dan echt.


Ronald van de Bijl | Makelaar Broersma Wonen
Kees Kemp | Makelaar Broersma Wonen
AM106200-1981573-Keizersgracht-162A,-Amsterdam-219641325
Architectuur

Een achterhuis van een grachtenpand. De archieven gaan terug tot 1887, toen het toenmalige achterhuis moest worden verbouwd als onderkomen voor De Stichting Hoogeropgeleiden met Gereformeerde grondslag, de voorganger van de Vrije Universiteit. Het achterhuis is toen verbouwd als onderdeel van Keizersgracht 162, 164 en 166, dat ook was verbonden met de Prinsengracht. Uit 1887 dateert grotendeels de huidige opzet en gevel van het pand. Tot in de jaren zeventig is het complex, waar het achterhuis onderdeel van was, in gebruik geweest bij de Vrije Universiteit. Daarna is het Leger des Heils gebruiker geweest en was het onderkomen voor alleenstaande, niet-werkende mannen. Het pand had een pensioenbestemming. In de jaren tachtig is het pand leeggekomen en is nummer 162 verbouwd tot woningen. Toen de huidige eigenaren het kochten, was het reeds bewoond. Zij hebben het een en ander gemoderniseerd en verbouwd. Opvallend is de fraaie klassieke gevel met mooie raamverdelingen en het pleisterwerk. Samen met de begroeiing heeft het een romantische uitstraling. Het interne trappenhuis is ook uit deze tijd.

AM106200-1981573-Keizersgracht-162A,-Amsterdam-219641101
Keizersgracht 162 A-13
AM106200-1981573-Keizersgracht-162A,-Amsterdam-219641213
AM106200-1981573-Keizersgracht-162A,-Amsterdam-219641109
Wonen en koken

Met een heerlijke open keuken op de begane grond, voorzien van een ruime eetkamer en aangrenzend een zitkamer met dubbele openslaande deuren naar de tuin, is dit een van de favoriete ruimtes van de eigenaren. Hier komt iedereen samen, kan met veel mensen eten, en vormt de tuin onderdeel van het geheel. Het aanrecht biedt plek voor uitgebreid koken en heeft een grote, in het oog springende spoelbak en een 5-pits gasfornuis. Centraal is er ruimte voor een grote, lange eettafel. Daarnaast is er een ruimte voor een speelhoek of een zitje met een bureau. De grote ramen en openslaande deuren bieden zicht op de tuin.

AM106200-1981573-Keizersgracht-162A,-Amsterdam-219641063
AM106200-1981573-Keizersgracht-162A,-Amsterdam-219641191
AM106200-1981573-Keizersgracht-162A,-Amsterdam-219641127
AM106200-1981573-Keizersgracht-162A,-Amsterdam-219641139
AM106200-1981573-Keizersgracht-162A,-Amsterdam-219641221
AM106200-1981573-Keizersgracht-162A,-Amsterdam-219641231
AM106200-1981573-Keizersgracht-162A,-Amsterdam-219641229
Slapen en baden

De royale slaapkamer is gelegen aan de achterzijde met openslaande deuren naar de tuin. De slaapkamer ligt heel rustig in de binnentuinen, waardoor men hier veilig en rustig met open ramen kan slapen.
Er is een ruim opgezette badkamer met zwart/beige vloertegel gecombineerd met beige wandtegel. Daarnaast heeft de badkamer een ruime inloopdouche, een toilet en wastafel.

AM106200-1981573-Keizersgracht-162A,-Amsterdam-219641235
AM106200-1981573-Keizersgracht-162A,-Amsterdam-219641237
AM106200-1981573-Keizersgracht-162A,-Amsterdam-219641227
AM106200-1981573-Keizersgracht-162A,-Amsterdam-219641239
AM106200-1981573-Keizersgracht-162A,-Amsterdam-219641321
De tuin

De tuin is een van de belangrijkste assets. Omgeven door groen en zonnig. De tuin is een rustige en veilige plek in de stad. Dankzij het groen en onder andere een klimop, heeft de tuin de sfeer van een binnentuin die zo ook in Parijs of Lyon zou kunnen zijn. De tuin is daarnaast onderdeel van de toegang en is met de openslaande deuren ook onderdeel van het wonen op de begane grond. De eigenaren hebben de tuin altijd als een van de fijnste aspecten van het huis ervaren.

AM106200-1981573-Keizersgracht-162A,-Amsterdam-219641181
AM106200-1981573-Keizersgracht-162A,-Amsterdam-219641323

De ligging van deze woning maakt het een zeer gewilde locatie in de buurt. Er is veel te beleven, zoals de markt op maandag en de mooie grachten, evenals diverse gerenommeerde lagere en middelbare scholen. De buurt heeft ook veel te bieden op het gebied van eten en drinken, met beroemde culinaire hotspots zoals Winkel 43 voor de bekende appeltaart, Café Toscanini en Café de Klepel op loopafstand. Op zaterdag is er een biologische markt op de Noordermarkt, tegenover het huis, en op zondag is Domenica een aanrader voor de lunch. Kortom, een heerlijke buurt met een authentiek dorps karakter. Er zijn tal van goede en leuke restaurants in de directe omgeving, waaronder De Parel, Café Libertine en Mos. Ook zijn er diverse winkels voor dagelijkse boodschappen en bijzondere inkopen in de Haarlemmerstraat en de Westerstraat, en natuurlijk zijn er diverse terrassen en koffietentjes om te ontdekken. Dit alles is letterlijk om de hoek te vinden. Verschillende grote stadsparken, zoals het Westerpark en het Stenen Hoofd, zijn gemakkelijk per fiets te bereiken, evenals plekken om in de zomer het water op te gaan. Kortom, deze woning is gelegen op een van de mooiste plekjes (zowel intern als extern) van Amsterdam. Het ligt ook nog eens om de hoek van de beroemde Westertoren en de Herenmarkt.

Bereikbaarheid
De woning is gelegen in de noordelijke grachtengordel in Amsterdam Centrum. Deze locatie is gemakkelijk te bereiken met het openbaar vervoer, de fiets en te voet. De dichtstbijzijnde tramhalte ligt op een paar minuten lopen. Verder zijn er verschillende fietspaden en fietsenstallingen in de buurt waar fietsen veilig geparkeerd kunnen worden. Het Centraal Station is op 10 minuten loopafstand. Via de ontsluitingen langs het IJ naar West, de IJtunnel en de Piet Heintunnel is de Ring op vrij eenvoudige wijze te bereiken.

Parkeergelegenheid
Parkeren is mogelijk via een vergunningenstelsel op de openbare weg (vergunningsgebied Centrum-2c).
Met een parkeervergunning voor Centrum-2c mag u parkeren in Centrum-2. Een parkeervergunning voor bewoners kost € 315,60 per 6 maanden. Momenteel is er voor dit vergunningsgebied een wachttijd van 27 maanden. Een tweede parkeervergunning is in dit gebied niet mogelijk. (Bron: Gemeente Amsterdam, maart 2025).

AM106200-1981573-Keizersgracht-162A,-Amsterdam-219641275
Wat de eigenaren gaan missen

In het centrum van Amsterdam wonen, maar toch in de luwte zitten. Geen toeristen die bij je naar binnenkijken. Als je de deur opent naar de binnentuin, zie je meteen iets bijzonders: een royale en charmante binnentuin met grote Amsterdamse geschiedenis en uitzicht op een tuinhuis met Franse landhuis sfeer geven je een warm welkom. Grote ramen met mooie lichtinval en een een brede gevel geven dit huis een heel ruimtelijk, licht en open gevoel. De grote woonkamer heeft openslaande deuren naar de gelijkvloerse tuin met bronzen lantaarns, oude klinkertjes en vele bomen waarvan altijd wel iets in bloei staat. De Japanse kers, de blauwe regen of de hazelnootboom die jaarlijks een grote hoeveelheid verse hazelnootjes strooit in september. Een tuin die van ‘s ochtends tot ‘s avonds zon heeft en zich perfect leent voor BBQ-feestjes en avondborrels, en loslopende huisdieren met uitzicht op de iconische Westertoren. Een heerlijk appartement met fijne speeltuinen en goede scholen op korte loopafstand. Heerlijke restaurantjes en gezellige cafeetjes om de hoek. Kortom, een stille oase in een bruisende buurt.

AM106200-1981573-Keizersgracht-162A,-Amsterdam-219641337
AM106200-1981573-Keizersgracht-162A,-Amsterdam-219641339
Kenmerken
Keizersgracht 162A, Amsterdam
Vraagprijs
  • € 820.000 k.k.
Beschikbaarheid
  • In overleg
Vertrekken
  • 2 kamers
  • 1 slaapkamer
  • 1 badkamer
Onderhoud
  • Intern: Goed
  • Extern: Goed
Oppervlakten & Inhoud
  • Woonoppervlakte: 78 m²
  • Overige inpandige ruimte: 11 m²
  • Externe bergruimte: 5 m²
  • Tuinoppervlakte: 73 m²
Bouwjaar
  • 1618
Installaties
  • Airconditioning
  • TV kabel
Ligging
  • Aan rustige weg
  • Beschutte ligging
  • In centrum
  • In woonwijk
Parkeren
  • Betaald parkeren
  • Parkeergarage
  • Parkeervergunningen
Type verwarming
  • CV Ketel
Type warmwater
  • CV Ketel
Bestemming
  • Woonruimte
Eigendomssoort
  • Volle eigendom
Buitenruimte
  • Achtertuin
Kadastraal
  • Gemeente: Amsterdam
  • Sectie: M
  • Nummer: 6189
Soort
  • Appartement
  • Benedenwoning
Bijzonderheden
  • Monument
Overige kenmerken

OZB ('24) € 388,76 per jaar
Rioolrecht ('24) € 166,85 per jaar
Servicekosten VvE € 473,94 per maand

Plattegrond
Keizersgracht 162A, Amsterdam
AM106200-1981573-Keizersgracht-162A,-Amsterdam-219641343
AM106200-1981573-Keizersgracht-162A,-Amsterdam-219646007
Documenten
Keizersgracht 162A, Amsterdam
Locatie
Keizersgracht 162A, Amsterdam
Eten & drinken
162653683_183194140274614_3689818971079216628_n
01
Adres
Keizersgracht 157,
1015 CL Amsterdam

Café Brandon

Café Brandon is een café in Amsterdam gelegen aan de rand van de Jordaan. Met als openingsjaar 1626 is het een van de oudste, nog bestaande, cafés van Amsterdam.

Schermafbeelding 2022-09-26 om 18.13.07
02
Adres
Prinsengracht 114,
1015 EA Amsterdam

De Twee Zwaantjes

Café De twee Zwaantjes is een gezellige bruine kroeg gelegen in hartje Amsterdam. Elke week komt een vaste groep van zes muzikanten in wisselde samenstelling spelen, maar ook de gasten kunnen hun favoriete liedjes zingen.

1
4
03
Adres
Herengracht 169,
1015 BJ Amsterdam

Heertje Friet

In een authentiek Amsterdams pand, in het oude centrum van Amsterdam, vind je: Heertje Friet. De frieten bij Heertje Friet worden elke dag vers gesneden.  Daarbij hebben ze een groot aanbod aan verschillende soorten sauzen met onder andere vegan opties. Naast de overheerlijke friet hebben ze ook kroketten met garnaal, kip of kaas.

04
Adres
Prinsenstraat 27,
1015 DB Amsterdam

Café de Twee Prinsen

Café de Twee Prinsen is de derde zaak van de mannen achter Binnenvisser en de Corner Store. Hier kan je 's ochtends al voor de koffie binnenploffen, lunchen met een baguette of aan de bar hangen voor wat bites en de uitgebreide selectie natuurwijnen. Oftewel  het café voor ontbijt tot late borrel.

398866851_2084725278550009_2045391366418278164_n
416522940_603820108545118_3960406295925336014_n
05
Adres
Prinsenstraat 16h,
1015 DC Amsterdam

OSLO

Bij OSLO Amsterdam omarmen ze met toewijding de Scandinavische filosofie. Het gebak wordt met zorg vervaardigd, strevend naar het perfecte balans tussen zoet en verfijning, bevredigend zonder enige overdaad. Het resultaat is een  combinatie van complexiteit, maar toch toegankelijk voor iedereen. Bij OSLO maken ze gebruik van uitsluitend organische en biodynamische ingrediënten in hun bakproces, waarmee ze niet alleen heerlijke gebakjes creëren, maar ook de aarde een beetje beter achterlaten.

06
Adres
Prinsenstraat 20,
1015 DD Amsterdam

Christiaan Smit

Christiaan Smit is een intiem restaurant in de Jordaan, gevestigd aan de Prinsenstraat 20 in Amsterdam. Het biedt een 4- of 5-gangendiner, met de mogelijkheid om à la carte te bestellen. Onder leiding van chef-kok Simon van Lith ligt de focus op seizoensgebonden gerechten met vlees, vis en lokale producten, zoals langoustines en dry-aged vis. Sommelier Abel van Schoonhoven verzorgt bijpassende wijnen. Het interieur, geïnspireerd op Engelse pubs, straalt comfort en gezelligheid uit. Met ruimte voor 30 gasten en een binnentuin biedt het restaurant een warme sfeer. De naam is een eerbetoon aan Christiaan Smit, een historische kargadoor uit Amsterdam, bekend als "Kikkie van de Prinsensluis". Het restaurant combineert hoogwaardige gerechten met een vleugje Amsterdamse geschiedenis, ideaal voor een culinaire avond in een bijzondere setting.

Schermafbeelding 2022-05-18 om 17.11.04
07
Adres
Prinsenstraat 22,
1015 DD Amsterdam

Café De Klepel

In 2013 veranderde eigenaar Maureen Café de Klepel van een klassieke bruine kroeg in een wijncafé waar Franse wijn centraal staat. Chefs Ewout Lindenhovius en Rudolf Brand serveren dagelijks een wisselend menu van 3 of 4 gangen. De wijnkaart is volledig Frans en wordt begeleid door een sterk team van sommeliers dat de kaart tot in detail kent. Er staan meer dan 300 verschillende flessen op de kaart en elke avond schenken ze zo’n 25, steeds wisselende, wijnen per glas.

08
Adres
Nieuwe Leliestraat 34,
1015 ST Amsterdam

Eetcafé de Reiger

Eetcafé De Reiger in de Jordaan is nog altijd dat buurtcafé waar je makkelijk binnenstapt voor een goed bord eten en een prettig glas wijn, maar achter de schermen is er iets veranderd. Sinds 2025 wordt De Reiger gerund door dezelfde ondernemers die je misschien kent van Entrepot, Metro en De Druif: jonge horecamakers met een scherp oog voor sfeer, eenvoud en kwaliteit. Ze hebben weinig aan het café veranderd, de houten vloer kraakt nog steeds zoals vroeger, de Amstel-borden hangen bewust op z’n kop, maar in de keuken is juist nét dat beetje extra aandacht gekomen. Denk aan eenvoudige maar goed klaargemaakte klassiekers  voor een zachte prijs en altijd iets lekkers op de tap. Een café waar het verleden gekoesterd wordt, maar waar de toekomst smakelijk aan tafel schuift.

279508919_1412880715841289_4687270343439268000_n
295771871_1466924723770221_5169999350187462603_n
09
Adres
Prinsenstraat,
1015 DD Amsterdam

Kikkie van de Prinsensluis

Op de hoek van de Prinsenstraat en de Prinsengracht ligt dit café restaurant. Er is een ruim terras met een ruime selectie natuurwijnen. Het is een ideale plek voor een borrel die overloopt in een lange avond met gerechtjes die het niveau van barhapjes ruim ontstijgen. In het weekend kan je terecht voor een lekkere lunch, dat betekent  huis-gerookte Pastrami vanaf 12:00 net zoals de smashburger en meer kleine gerechtjes.

Schermafbeelding 2022-05-18 om 17.31.24
10
Adres
Herenstraat 22,
1015 CB Amsterdam

Linguini

Essentieel in de Italiaanse keuken is simpliciteit: zolang de ingrediënten goed zijn heb je niet veel nodig. “Less is more”. Dat hebben ze bij Linguini in de Herenstraat goed begrepen. Het interieur ademt het Italiaanse dolce vita-gevoel: sfeervolle oude tegels en een mooie lange bank als eyecatcher: Linguini is een knusse en warme trattoria, met oog voor detail. De kaart is klein en bestaat voornamelijk uit pasta. Deze bestel je of in een kleine portie (voor één persoon), of op z’n Italiaans in een grote pan voor de ‘famiglia’. Pasta, pasta, pasta dus. Allemaal bereid met liefde en passie door de Italiaanse ‘pasta maestro’ genaamd Lorenzo Isidoro.

11
Adres
Herenstraat 14,
1015 CA Amsterdam

Max restaurant

Max, geboren in Jakarta, leerde de basis van zijn moeder die kok was. Verwacht geen Indonesische nostalgie, maar een eigen, lichtvoetige interpretatie van de Indische keuken. Het interieur is huiselijk maar niet tuttig.  MAX voelt als een eerbetoon aan de familiegeschiedenis van de chef, maar ook als een restaurant dat volledig in het hier en nu staat.

106164903_3058951907522542_6784995522149172868_n
12
Adres
Prinsengracht 44,
1015 DW Amsterdam

Het Bruine Paard

Recht tegenover Café het Bruine Paard bevindt zich een steile brug. Vroeger was daar aan de overkant een brandweerkazerne. Het verhaal gaat dat het paard met brandweerwagen en al tijdens een forse winternacht van de brug af gleed en zo in het café belandde. Vandaar de naam het Bruine Paard.

13
Adres
Westermarkt 11,
1016 DH Amsterdam

Wil Graanstra Friteshuis

Je fiets er misschien wel regelmatig langs, want de frietkraam van Wil Graanstra staat al sinds 1956 op het plein naast de Westerkerk. Het familiebedrijf serveert het ouderwetse frietje mayonaise, oorlog, curry saus en piccalilly. Neem wat cash mee voor deze overheerlijke frituur in puntzak.

277111890_988609821787348_6304436288886646121_n
356632415_17976296840513911_3934120761219878510_n
14
Adres
Eerste Tuindwarsstraat 2A,
1015 RV Amsterdam

Margo's

Toen Margo en haar man besloten om veganistisch te worden, misten ze het meest knapperige croissants. Na duizenden pogingen hebben ze eindelijk bereikt wat nodig was. De croissants van Margo's zijn niet te onderscheiden van de variant met dierlijke boter. Daarnaast serveren ze American coockies en vers bereide sandwiches in dagelijks versgebakken zachte broodjes, met de meest verse ingrediënten.

65787414_878401562514387_3883812924317237248_n
15
Adres
Tweede Egelantiersdwarsstraat 16,
1015 SC Amsterdam

Le Petit Deli

Bij Le Petit Deli kan je terecht voor verschillende lekkernijen. Zo hebben ze een patisserie met een wisselend assortiment van klassieke franse gebakjes als eclairs, choux, macarons. Daarnaast serveren ze ook luxe broodjes en salades. De sauzen en marinades worden bij Le Petit Deli elke dag zelf gemaakt.

Sikil+Pak
rosario
16
Adres
Tweede Egelantiersdwarsstraat 9 H,
1015 SB Amsterdam

Rosario Cocina Mexicana

Bij Rosario werken ze met een kleine wisselende kaart. Ze koken gerechten uit de moderne Mexicaanse keuken, zoals ze die zelf ook het liefste koken en eten. De taco's zijn een echte aanrader. Vooral de Taco de Suadero (rundvlees met tomatensalsa), maar ook het chefsmenu van vier gangen moet je eigenlijk een keer hebben geprobeerd.

3-970×692
17
Adres
Tweede Tuindwarsstraat 53,
1015 RZ Amsterdam

La Perla

Waar La Perla al aan twee kanten van de straat zit, kocht de eigenaar van de pizzeria-plus ook het naastgelegen pand van het ‘hoofdrestaurant’ waar maar liefst 33 jaar lang Burger’s Patio huisde. Die is er inmiddels niet meer maar het Italiaanse restaurant La Perla wel. Naast overheerlijke pizza’s met een goede dunne bodem maken ze hier ook andere verrukkelijke Italiaanse gerechten. Het wordt wel een van de beste pizzeria’s van Amsterdam genoemd, en je snapt waarom!

277773530_4858737694175482_5797203563042126028_n
338220331_754378932860278_5647799297097666_n
18
Adres
Westerstraat 3,
1015 LT Amsterdam

Luuk's Coffee

Midden in de Jordaan tegenover Winkel 43 bevindt zich Luuk's coffee. Luuk Nijsen is de oprichter van deze speciale koffiebar. Ze zijn enorm populair vanwege hun uitstekende locatie en nog betere koffie. Bovendien maken ze heerlijke zoete lekkernijen als je trek hebt. Je kan hier zeven dagen per week terecht.

Schermafbeelding 2022-10-05 om 15.50.17
19
Adres
Tweede Tuindwarsstraat 12 H,
1015 RZ Amsterdam

La Fiorita

Een moderne Italiaanse keuken in het midden van de Jordaan. Goede producten en fantastisch bereid. Een tafeltje dichtbij de open keuken is aan te raden, zodat je kan zien waar al het heerlijks bereid wordt. De sfeer is gezellig en chique. Aan te raden voor een feestelijke gelegenheid of gewoon als je erg goed Italiaans wilt eten.

Kunst & cultuur
Stephen Wilks_10
20
Adres
Leliegracht 47,
1016 GT Amsterdam

Andriesse Eyck Galerie

De eigenaren, Zsa-Zsa Eyck en Paul Andriesse, van de Andriesse Eyck Galerie hebben ruim 30 jaar ervaring op het gebied van internationale, hedendaagse kunst. De galerie vertegenwoordigt opkomende en mid-career kunstenaars. Het is de ultieme ruimte voor verzamelaars, academici en kunstprofessionals om in een intieme setting van kunst te kunnen genieten en ook (nieuwe) kunst te kunnen ontdekken.

Schermafbeelding 2022-05-18 om 17.00.15
Schermafbeelding 2022-05-18 om 17.00.08
21
Adres
Eerste Anjeliersdwarsstraat 36,
1015 NR Amsterdam

Galerie KochXBo

Galerie KochXBos is opgericht door koppel Esther Koch en Hans Bos in 2005. In deze galerie in volkswijk de Jordaan bieden zij ruimte aan eigentijdse underground kunstenaars om hun werken te etaleren. Galerie KochXBos is de plek in Amsterdam om vernieuwende avant-garde en surrealistische kunst te bekijken. Over de smaak en visie van opgerichte Koch en Bos valt niet te twisten. Elk jaar weten zij in Galerie KochXBos meerdere boeiende en fascinerende tentoonstellingen te organiseren. Het recente succes van KochXBos is niet onopgemerkt gebleven. In 2011 is deze galerie door magazine the Guardian benoemd tot de top 10 van zelfstandige galeries in Amsterdam. Als bezoeker wordt je uitgenodigd in de nieuwe wereld met kunst vol met welkome verrassingen.

Interieur
Patrik_met_zijn_snor
22
Adres
Leliegracht 22-H,
1015 DG Amsterdam

Architectura & Natura

Al meer dan 75 jaar zit Architectura & Natura gehuisvest in een historisch gebouw aan de Leliegracht. Deze winkel behoort inmiddels tot de meest bekende boekenwinkels van Amsterdam, met leesvoer over architectuur, stedenbouw, tuinarchitectuur en natuurhistorie. De boeken komen van over de hele wereld en zijn in het Engels verkrijgbaar.

326596473_589242286548496_1998648644895507445_n
23
Adres
Eerste Tuindwarsstraat 1,
1015 RV Amsterdam

Tableware

Bij Tableware vind je duizenden unieke vintage glazen, borden, serveerschalen, prachtige sets van zilveren bestek en tafeldecoratie, waardoor elk gerecht dat je maakt absoluut onvergetelijk wordt. De stukken zijn verzameld van over de hele wereld, van schelpborden uit Miami tot champagnecoupes uit Parijs, je kan ze bij Tableware allemaal vinden.

Boodschappen
333873882_1377824666317927_335638137217452798_n
327172299_935941664482870_3257284156023251333_n
24
Adres
Tweede Egelantiersdwarsstraat 13H,
1015 SB Amsterdam

NU Koffie & Delicatessen

In hartje Jordaan is de nieuwe delicatessenwinkel NU te vinden. Het interieur is strak en een mix tussen New York en de Amsterdamse stijl. Ze serveren koffie gemaakt met vers gebrande bonen van de Espressofabriek. Daarnaast hebben ze de keuze uit gebak en broodjes gemaakt van Ulmus bakkerij. Als je van plan bent nog even te blijven zitten, neem dan ook een kijkje naar de selectie van natuurwijnen.

09d056_f78daf4a5ac841dba751a666ccaaf36a_mv2
25
Adres
Westerstraat 55,
1015 LV Amsterdam

Terre Lente

Bij Terre Lente importeren ze hun producten direct van kleinschalige biologische boeren- en familiebedrijven uit Calabrië, Zuid-Italië, en dat proef je. De producten zijn eerlijk, goed en écht Italiaans. Ze hebben onder andere worst, kaas, olijfolie, gemaakte groenten en uiteraard bijzondere wijnen. Alles is dus biologisch geproduceerd. In hartje Jordaan vind je dit pareltje. Tip: neem ook lekker kopje Napolitaanse koffie of een belegde focaccia.

Ontmoet interieur ontwerpster Anita Fraser. Na een carrière als procesadvocaat volgde ze een opleiding interieurontwerp aan de University of Arts London. Samen met ontwerpers en architecten verfijnt ze woon- en werkruimtes.

Ontmoet interieur ontwerpster Anita Fraser. Na een carrière als procesadvocaat volgde ze een opleiding interieurontwerp aan de University of Arts London. Samen met ontwerpers en architecten verfijnt ze woon- en werkruimtes.

Vondel View

Vondel View

Buurtgids: Weteringbuurt

Buurtgids: Weteringbuurt

Onlangs bekeken
Bekijk het overzicht

Deze site maakt gebruik van cookies.

Voor welke cookies geef je akkoord?