Het appartement op de Kazernestraat is een comfortabel en optimaal ingedeelde woning op de heerlijke locatie. De straat is rustig (autoluw) en vanaf het Franse balkon aan de voorzijde kijk je zo het water van de Alexanderkade op.
De woning voldoet aan vele wensen, zo is het gelegen op eigen grond, heeft het een energielabel A, 2 slaapkamers, een fijne buurt en is het zeer smaakvol ingericht. 

Het gebouw
Het gebouw aan de Kazernestraat is uit begin 1900 en in 2012 met oog voor detail gerenoveerd. Zo is onder andere de fundering hersteld, nieuwe kozijnen met HR glas geplaatst, het dak vernieuwd en de gevel hersteld.  Door deze renovatie heeft het appartement een zeer goed energielabel gekregen, namelijk A.

Buurtgids 
De Kazernestraat is gelegen aan een rustige en  autoluwe straat nabij onder andere Artis, de Plantage, het Oosterpark, Botanical Gardens en het Tropenmuseum.
In de omgeving zijn veel gezellige horecagelegenheden, zoals buurtcafé De Groene Olifant, café Louie Louie en restaurant Plantage.  Voor de dagelijkse boodschappen kan men terecht op o.a. de Czaar Peterstraat met een rijk aanbod verfijnde delicatessenzaken en uiteraard ook de grotere supermarkten. 
De Kazernestraat ligt op de grens van de Plantagebuurt en Oost. 

Wat de bewoners gaan missen
"We fell in love with the light and the high ceilings of this apartment."

Bereikbaarheid
Goed bereikbaar met het openbaar vervoer via Amsterdam Muiderpoort en Metrostation Weesperplein. Vanaf Metrostation vertrekken drie metrolijnen naar verschillende uithoeken van de stad. Voor openbaar vervoer binnen de stad ligt de bus- en tramhalte op loopafstand voor tram 7 (Slotermeer – Azartplein), 14 (Centraal Station – Flevopark) en 19 (Station Sloterdijk – Diemen) en de nachtbus tussen Centraal Station en Station Bijlmer Arena.

De bijzonderheden

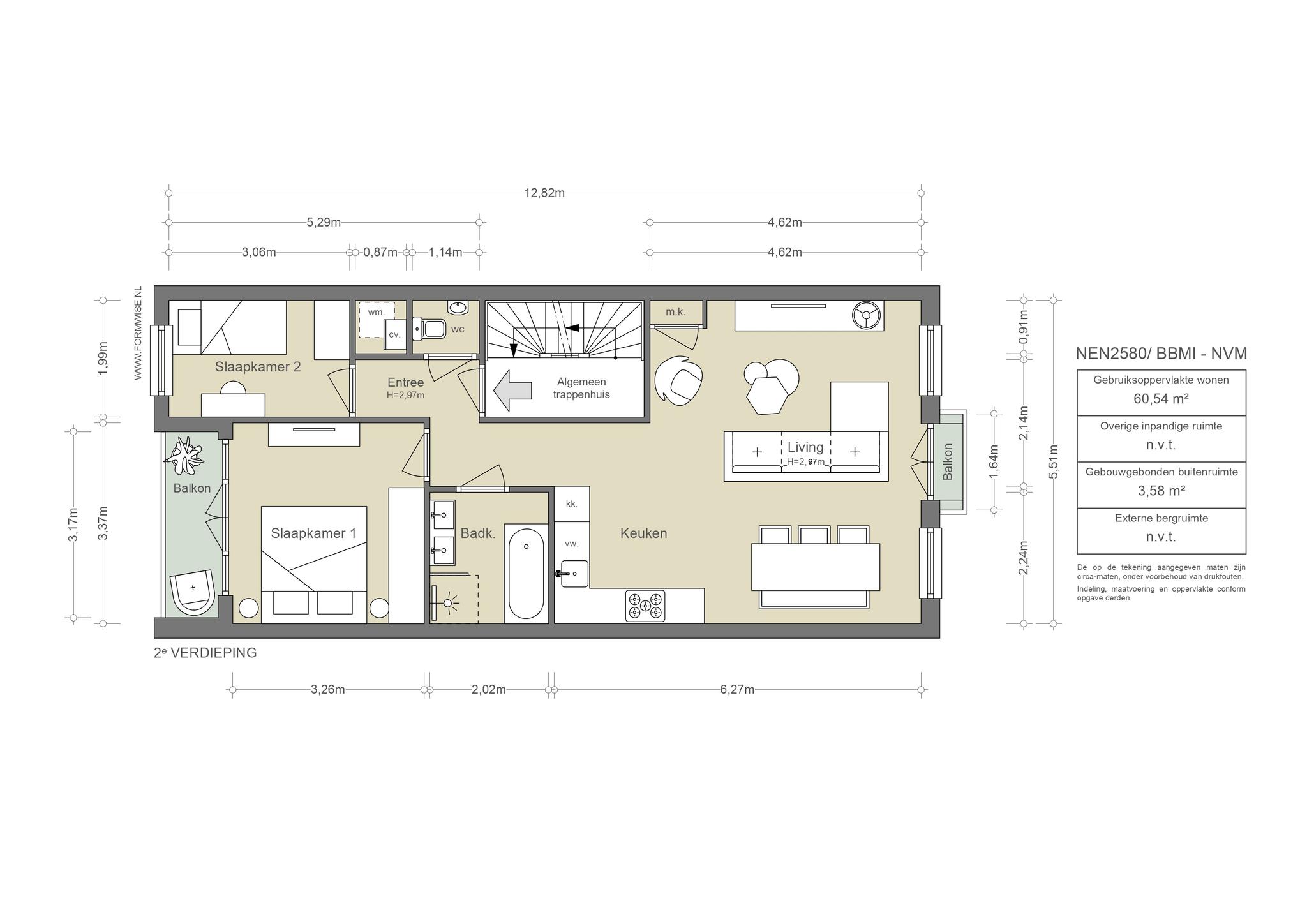
•    Gebruiksoppervlakte wonen circa 61 m²
•    Balkon op het zuidwesten
•    Frans balkon voorzijde
•    Gelegen op eigen grond
•    Energielabel A
•    Dubbel glas, houten kozijnen
•    Servicekosten VvE € 80,- per maand
•    Rijksbeschermd stadsgezicht
•    Fundering vernieuwd in 2012
•    Smaakvol wonen 
•    Verfijnde afwerking

Deze informatie is door ons met de nodige zorgvuldigheid samengesteld. Onzerzijds wordt echter geen enkele aansprakelijkheid aanvaard voor enige onvolledigheid, onjuistheid of anderszins, dan wel de gevolgen daarvan. Alle opgegeven maten en oppervlakten zijn slechts indicatief
De Meetinstructie is gebaseerd op de NEN2580. De Meetinstructie is bedoeld om een meer eenduidige manier van meten toe te passen voor het geven van een indicatie van de gebruiksoppervlakte. De Meetinstructie sluit verschillen in meetuitkomsten niet volledig uit, door bijvoorbeeld interpretatieverschillen, afrondingen of beperkingen bij het uitvoeren van de meting
 

AM104070-1737099-Kazernestraat-22II,-Amsterdam-139185705

Kazerne 22
Het appartement op de Kazernestraat is een comfortabel en optimaal ingedeelde woning op de heerlijke locatie. De straat is rustig (autoluw) en vanaf het Franse balkon aan de voorzijde kijk je zo het water van de Alexanderkade op.

De woning voldoet aan vele wensen, zo is het gelegen op eigen grond, heeft het een energielabel A, 2 slaapkamers, een fijne buurt en is het zeer smaakvol ingericht.

Ik heb de huidige eigenaren destijds geholpen bij de zoektocht, vele appartementen bekeken en dit appartement voelden voor hun meteen goed.


Judith de Jong | Makelaar Broersma Wonen
AM104070-1737099-Kazernestraat-22II,-Amsterdam-139542698

Het gebouw
De 19e eeuw wordt er in Amsterdams een reeks van bouwstijlen uit het verleden opnieuw geïnterpreteerd. De populairste bouwstijl in de tweede helft van de 19e eeuw is de Neorenaissance, een stijlperiode waarbij de Hollandse Renaissance uit de 16e eeuw opnieuw werd geïnterpreteerd. Kenmerkend voor de Neorenaissance zijn de horizontale, natuurstenen lagen tussen het metselwerk en de trapgevels, die bijna niet zijn te onderscheiden van die uit de tijd van de Renaissance. Het historische sentiment werd nu alleen kracht bijgezet door nog uitbundiger om te springen met de decoraties. Datzelfde gold voor winkels, die wilden opvallen om publiek te trekken.

Het gebouw aan de Kazernestraat is in 2012 met oog voor detail gerenoveerd, zo is onder andere de fundering hersteld, nieuwe kozijnen met HR glas geplaatst, het dak vernieuwd en de gevel hersteld.  Door deze renovatie heeft het appartement een zeer goed energielabel gekregen, namelijk A.

AM104070-1737099-Kazernestraat-22II,-Amsterdam-139542691
AM104070-1737099-Kazernestraat-22II,-Amsterdam-139185694
AM104070-1737099-Kazernestraat-22II,-Amsterdam-139185695
AM104070-1737099-Kazernestraat-22II,-Amsterdam-139185713

Rondleiding
Het uiterst verzorgde en zeer smaakvolle appartement is gelegen op de tweede etage, bereikbaar via het gemeenschappelijke trappenhuis.

Living & Cooking
De zeer lichte woonkamer is gelegen aan de voorzijde met een sfeervol frans balkon aan de rustige straat. De hoogte van de plafonds met mooie sierlijsten geven het geheel een zeer prettige uitstraling.

De tijdloze open keuken is in een hoekopstelling met een stoer granietenwerkblad en diverse inbouwapparatuur (vaatwasser, combimagnetron, ijskast met vriesvak, gascomfort en wasemkap).

De huidige eigenaren hebben een mooie witte stalen deur geplaatst tussen de woonkamer en de hal, waardoor de ruimte stijlvol kan worden afgesloten.

AM104070-1737099-Kazernestraat-22II,-Amsterdam-139185710
AM104070-1737099-Kazernestraat-22II,-Amsterdam-139185711
AM104070-1737099-Kazernestraat-22II,-Amsterdam-139185707
AM104070-1737099-Kazernestraat-22II,-Amsterdam-139185712
AM104070-1737099-Kazernestraat-22II,-Amsterdam-139185726
AM104070-1737099-Kazernestraat-22II,-Amsterdam-139185722
AM104070-1737099-Kazernestraat-22II,-Amsterdam-139185730

Bed & Beyond
Aan de achterzijde van het appartement zijn twee goede slaapkamers. In de hoofdslaapkamer is er een op maat gemaakte kledingkast geplaatst. Deze kasten geven veel bergruimte en door het maatwerk een rustige uitstraling in de slaapkamer. Vanuit deze kamer is ook het balkon te betreden.

De tweede slaapkamer wordt door de huidige eigenaren gebruikt als werkkamer, uiteraard ook perfect als baby- of kinderkamer.

De moderne en ruime badkamer heeft een inloopdouche, ligbad en dubbel wastafelmeubel. Er is gekozen voor een separaat toilet

AM104070-1737099-Kazernestraat-22II,-Amsterdam-139185718
AM104070-1737099-Kazernestraat-22II,-Amsterdam-139185737
AM104070-1737099-Kazernestraat-22II,-Amsterdam-139185735
AM104070-1737099-Kazernestraat-22II,-Amsterdam-139185732
AM104070-1737099-Kazernestraat-22II,-Amsterdam-139542698
AM104070-1737099-Kazernestraat-22II,-Amsterdam-139542677
AM104070-1737099-Kazernestraat-22II,-Amsterdam-139542682

De buitenruimte
Het appartement heeft een beschut balkon aan de achterzijde, deze is gelegen op het zuidenwesten. Daarnaast is er aan de voorzijde een frans balkon. Heerlijk de deuren open zetten in de woonkamer op een zonnige ochtend.

Het appartement is met oog voor detail afgewerkt door onder andere de fraaie houten vloer, stalen deur, op maat gemaakte kasten, et cetera. Oftewel: heerlijk thuiskomen.

AM104070-1737099-Kazernestraat-22II,-Amsterdam-139542673
AM104070-1737099-Kazernestraat-22II,-Amsterdam-139542723
AM104070-1737099-Kazernestraat-22II,-Amsterdam-139542669
AM104070-1737099-Kazernestraat-22II,-Amsterdam-139185751
AM104070-1737099-Kazernestraat-22II,-Amsterdam-139542725

De Kazernestraat is gelegen aan een rustige en autoluwe straat nabij onder andere Artis, de Plantage, het Oosterpark, Botanical Gardens en het Tropenmuseum.
In de omgeving zijn veel gezellige horecagelegenheden, zoals buurtcafé De Groene Olifant, café Louie Louie en restaurant Plantage. Voor de dagelijkse boodschappen kan men terecht op onder andere de Czaar Peterstraat met een rijk aanbod verfijnde delicatessenzaken en uiteraard ook de grotere supermarkten.
De Kazernestraat ligt op de grens van de Plantagebuurt en Oost.

De bereikbaarheid
Goed bereikbaar met het openbaar vervoer via Amsterdam Muiderpoort en Metrostation Weesperplein. Vanaf Metrostation vertrekken drie metrolijnen naar verschillende uithoeken van de stad. Voor openbaar vervoer binnen de stad ligt de bus- en tramhalte op loopafstand voor tram 7 (Slotermeer – Azartplein), 14 (Centraal Station – Flevopark) en 19 (Station Sloterdijk – Diemen) en de nachtbus tussen Centraal Station en Station Bijlmer Arena.
Gunstig gelegen ten opzichte van de uitvalswegen A1 en A2 via de Wibautstraat en S112.

De parkeergelegenheid
Parkeren is mogelijk via een vergunningenstelsel op de openbare weg (vergunningsgebied Centrum 3.). Met een parkeervergunning voor Centrum 3 mag u parkeren in Centrum-1 en Centrum 3.
Een parkeervergunning voor bewoners kost € 287,09 per 6 maanden. Momenteel is er voor dit vergunningsgebied een wachttijd van 8 maanden. Naast de openbare weg is het ook mogelijk om kosteloos te parkeren in garage Markenhoven en garage Muziektheater. (Bron: Cition maart 2023).

 

AM104070-1737099-Kazernestraat-22II,-Amsterdam-139185749

Wat de bewoners gaan missen
We fell in love with the light and the high ceilings of this apartment. It was also a perfect canvas for the interiors we wanted to feature within our home.
Both being creatives we were able to style the interior with our favourite pieces we’ve collected through the years from living in London, New York and collecting our favourite pieces from European antique collectors.
We have invested some key features in this apartment over the last few years – ones that we’ll miss dearly.
The first thing we did was to strip and re-varnish the floors, which made the apartment so much lighter, with a nicer tone of wood which sets it apart from many other Dutch apartments.
The terrazzo kitchen countertop is a beautiful feature -we worked with a local Dutch artisan to create the exact type of terrazzo we wanted to remind us of some of our favourite Italian kitchens in Puglia and Calabria. I love how thick it is and that it’s quite an unusual terrazzo you don’t see often.
I also work from home so we decided to commission a bespoke cream steal door to be installed – to make sure the kitchen and living area felt separate from the bedroom and bathrooms. This time working with a local Dutch steel welder we had this handmade – this door allows us to keep the light flowing through the apartment and having it cream meant it doesn’t look like the standard black steel door. It blends in perfectly when open or closed.
The kitchen sink is also a favourite bespoke feature, again working with a local craftsman on individually tiling it to give this checkerboard effect. I will be sad to leave this terrazzo and checkerboard sink. Something we will look to create in our new home.
Both the front and back balconies get morning sun and evening sun – something that was a deal breaker when looking for this place. I will miss the sun on my face with a drink in my hand.
And finally – our wonderful neighbours, the last few years with Covid has been a bit strange and everyone is so kind and welcoming, they’re the kind of neighbours you wish you have when you move to a new place.

AM104070-1737099-Kazernestraat-22II,-Amsterdam-139542695
AM104070-1737099-Kazernestraat-22II,-Amsterdam-139542714
Kenmerken
Kazernestraat 22II, Amsterdam
Vraagprijs
  • € 640.000 k.k.
Beschikbaarheid
  • In overleg
Vertrekken
  • 3 kamers
  • 2 slaapkamers
  • 1 badkamer
Onderhoud
  • Intern: Goed
  • Extern: Goed
Oppervlakten & Inhoud
  • Woonoppervlakte: 61 m²
Bouwjaar
  • 1905
Installaties
  • Frans balkon
  • TV kabel
  • Zonnepanelen
Ligging
  • Aan rustige weg
  • In centrum
  • In woonwijk
Parkeren
  • Betaald parkeren
  • Openbaar parkeren
  • Parkeervergunningen
Type verwarming
  • CV Ketel
Type warmwater
  • CV Ketel
Bestemming
  • Woonruimte
Eigendomssoort
  • Volle eigendom
Buitenruimte
  • Geen tuin
  • Balkon
Kadastraal
  • Gemeente: Amsterdam
  • Sectie: O
  • Nummer: 5078
Duurzaamheid
  • Dubbel glas
  • Energielabel A
Soort
  • Appartement
  • Bovenwoning
Welke woonlaag
  • 3e
Bijzonderheden
  • Beschermd stads of dorpsgezicht
Overige kenmerken

•    OZB ('23) € 246,10 per jaar
•    Rioolrecht ('23) € 160,43 per jaar
•    Servicekosten VvE € 80,- per maand

Plattegrond
Kazernestraat 22II, Amsterdam
AM104070-1737099-Kazernestraat-22II,-Amsterdam-139733463
Documenten
Kazernestraat 22II, Amsterdam
Locatie
Kazernestraat 22II, Amsterdam
Kunst & cultuur
Lichthal Tropenmuseum
01
Adres
Linnaeusstraat 2,
1092 CK Amsterdam

Tropenmuseum

Het Tropenmuseum is een museum over wereldculturen en vertelt de verhalen over de koloniale geschiedenis van Nederland. Het museum is gevestigd in een monumentaal pand uit 1926 aan de rand van het Oosterpark. Binnen heeft dit museum een grote vaste collectie maar het biedt ook regelmatig nieuwe en actuele exposities aan. Het menselijk verhaal staat in dit museum centraal; ondanks de enorme diversiteit aan wereldse culturen kan de bezoeker meeleven met de elk van de verhalen die zijn getoond in dit museum. Het Tropenmuseum is ook een echte aanrader voor een museumbezoek met kinderen. Het leren over de inspirerende verhalen en exotische voorwerpen is voor bezoekers van iedere leeftijd een intrigerende ervaring.

artis_hoofdentree_ingang_adelaars_r_1920x1080.jpg__1920x0_q85_subject_location-1023,731_subsampling-2
02
Adres
Plantage Kerklaan 38-40,
1018 CZ Amsterdam

Artis

Artis is de oudste dierentuin van Nederland, het werd in 1838 opgericht met het doel om de natuur dichter bij de mensen te brengen. Het begon klein als een tuin met vijver en een wintertuin en in de loop der jaren kwamen er steeds meer gebouwen dieren en bomen bij. Vandaag de dag zijn er meer dan 900 verschillende diersoorten te bewonderen waaronder ook enkele bijzondere diersoorten zoals de algazellen, de witstaartgnoes en de margay. Je kan een hele dag zoet zijn in Artis. Waan je bijvoorbeeld in een tropisch klimaat, bewonder bijzondere vissensoorten en lach om de aapjes op de apenrots.

2020 galeriefoto
03
Adres
Nieuwevaart 200,
1018 ZN Amsterdam

Galerie Franzis Engels

Op een steenworp afstand van het Centraal Station kun je Galerie Franzis Engels vinden. Een galerie voor hedendaagse kunst met wel vier verdiepingen. Op de bovenste verdieping worden zowel solo- als thematische tentoonstellingen gehouden. De drie benedenverdiepingen en de tuin tonen frisse en verrassende werken uit het galeriearchief van nationale en internationale kunstenaars.

Eten & drinken
Schermafbeelding 2022-05-18 om 16.27.07
Schermafbeelding 2022-05-18 om 16.24.25
04
Adres
Linnaeusstraat 11A,
1093 EC Amsterdam

Louie Louie

Bar Louie Louie is de perfecte spot om een biertje te drinken na een bezoek aan het Tropenmuseum. Ongeacht welk wispelturig Nederlandse weer het is - het overdekte terras met heaters creëert gelegenheid om lang te blijven hangen en te genieten van de Zuid-Amerikaanse keuken.

332894119_921385202326600_5373420399738393924_n
05
Adres
Mauritskade 61,
1092 AD Amsterdam

Spring Cafe Brasserie

In het vijfsterrenhotel Pillows Grand Boutique Hotel Maurits At The Park bevindt zich Spring Café Brasserie met uitzicht op het Oosterpark en een heerlijk terras voor de zomer. Binnen heerst een echte brasseriesfeer met een gevarieerd menu, waaronder klassiekers zoals steak tartaar en prei met sauce gribiche.

372585365_816792220071200_4096314404636617150_n
321610369_531908492008084_6257815916651647779_n
06
Adres
Mauritskade 61,
1092 AD Amsterdam

VanOost

Na enige vertraging en een herbenoeming is het eindelijk zover: chef Floris van Straalen, voorheen werkzaam bij Felix, opent zijn restaurant in het nieuwe Pillows Hotel Maurits aan het Oosterpark. Bij VanOost kun je een internationale keuken verwachten, gepresenteerd in de vorm van een chefsmenu. Elk seizoen staat een nieuw hoofdingrediënt centraal, waarvan de chef drie verschillende bereidingen serveert. De amuses worden geserveerd in de aparte bar, waar ook de huischampagne wordt geschonken, met uitzicht op de Mauritskade.

151547326_2761937994066349_5799390836558443898_n
07
Adres
Dapperstraat 12HS,
1093 BV Amsterdam

Boi Boi

Boi Boi is een gezellige plek dicht bij de bruisende Dapper Market. Strijk neer in in de hippe tent, geniet van de met graffiti bespoten decoraties en neem de tijd voor de smaakvolle gerechten. De Thaise keuken is niet alleen smaakvol en bijzonder door de Laotiaanse twist, maar ook nog eens vers en gezond.

08
Adres
Dapperstraat 4,
1093 BT Amsterdam

Best döner

Hasan Karaca staat sinds 1990 met zijn kraam op de Dappermarkt in Amsterdam-Oost. Eerst verkocht hij allerlei verschillen producten totdat hij in 2003 besloot te beginnen met een kebabkraam. Dat was een goede beslissing want zijn heerlijke broodjes en wraps sloegen aan bij de bezoekers van de markt. Inmiddels heeft Hasan een grote groep vaste klanten die wekelijks een hapje bij hem komen halenHet geheim voor zijn ultieme kebab schuilt in de hoge kwaliteit van de ingrediënten. Hasan kookt alleen maar met 100% lamsvlees en voegt hier zijn ook een speciaal kruidenmengsel aan toe.

09
Adres
Eerste Van Swindenstraat 4,
1093 GC Amsterdam

Roopram Roti

Roopram Roti komt oorspronkelijk uit Suriname en werd geëxporteerd naar Nederland vanwege de grote vraag naar roti op de Nederlandse markt, onder andere door vakantiegangers uit Paramaribo. Om aan deze vraag te voldoen, besloot J. Roopram diepvries roti naar Nederland te exporteren. Helaas werd dit op het laatste moment tegengehouden vanwege de beperkingen op de uitvoer van kip en kipdelen uit Suriname. In plaats daarvan opende J. Roopram in juli 2002 zijn eerste restaurant aan het Mathenesserplein 89 te Rotterdam. Dit werd gevolgd door het tweede filiaal in Amsterdam, genaamd Roopram Roti Eetcafé. Sindsdien zijn er twee extra filialen geopend, namelijk in Den Haag en aan de Van Woustraat 37 te Amsterdam.

Naskip-Amsterdam
10
Adres
Dapperstraat 147,
1093 BS Amsterdam

Naskip

In 1962 begon de grootmoeder van de huidige eigenaren in Nederland haar heerlijke gemarineerde kip te verkopen. Met al meer dan 50 jaar succes in Suriname, staat Naskip bekend om kwaliteit, smaak, service en redelijke prijzen. De naam komt van de familieachternaam Nassy en het Amsterdamse 'nassen'.  De producten zijn volledig afgestemd op de Surinaamse smaak, bereid met verse ingrediënten en 100% plantaardige vetten. Populaire gerechten als fried chicken, french fries en gekookte maiskolven zijn hier te vinden.

424596480_18280834828163733_2921239417396427875_n
424881953_18280834837163733_8258135845662124209_n
11
Adres
Dapperstraat 1,
1093 BK Amsterdam

Café Wu

Café Wu is een moderne bistro, geïnspireerd door de Chinese keuken en cultuur. Timo de Beurs (voorheen slagerij de beurs) serveert spannende gerechten van klassiek Chinees tot een vrije interpretatie hiervan met Europese technieken en producten. Op de wijnkaart van Chi Ling Wu (voorheen o.a. Scheepskameel) staan Europese wijnen met nadruk op Frankrijk, Duitsland en Italië. Café Wu hanteert zowel een vijf-gangenmenu als een beknopt á la carte-menu. Naast goed eten en fijne wijn is er ook bijzondere aandacht voor muziek, met een belangrijke rol voor elegant vinyl en tape.

369563027_18230648920239181_4099421685668908615_n
369536029_18230648980239181_3347084069038983889_n
12
Adres
Wagenaarstraat 70H,
1093 CV Amsterdam

Wakuli

Wakuli ontleent aan het Swahili-woord 'wakulima', wat boer betekent. Hier vind je kwaliteitskoffie die op duurzame wijze is verkregen tegen betaalbare prijzen.  Ze halen hun bonen bij kleinschalige boeren die groene productie produceren en roosteren ze op de beste manier mogelijk voor maximale smaak. Je kunt hier alle gebruikelijke koffiesoorten krijgen, evenals heerlijke ijskoffie en nitro cold brew. Last but not least, hebben ze een aantal zoete en hartige lekkernijen beschikbaar, van empanadas tot broodjes en croissants.

27578607_578172719204037_6017695974258900992_n
13
Adres
Zeeburgerstraat 4,
1018 AG Amsterdam

Burritos Anonymous

Bij Burritos Anonymous geloven ze dat geluk door de maag gaat.De onweerstaanbare creaties combineren verse groenten, smakelijke rijst, knapperige bonen, gesmolten kaas en een zachte bloemtortilla. Maar dat is niet alles! Een complete burrito-maaltijd omvat ook tortillachips met zure room en hete saus, altijd inbegrepen. Kies uit kip, rund, gehakt, pulled pork of een vegetarische variant. Bezoek de winkel voor deze smaakexplosie en ontdek ook de heerlijke hete sauzen en zelfgemaakte guacamole.

Brouwerij ‘t IJ
14
Adres
Funenkade 7,
1018 AL Amsterdam

Brouwerij 't IJ

Brouwerij 't IJ is een bier brouwerij gevestigd in een oud badhuis en is goed te herkennen, omdat deze naast de molen De Gooyer ligt. Ze maken speciaalbieren en deze zijn gewoon gemaakt van Amsterdams leidingwater. Het begon ooit als een kleinschalige ambachtelijke bierbrouwerij met twee soorten bier, maar inmiddels heeft het merk ook bekendheid gekregen buiten Amsterdam en heeft het assortiment zich flink uitgebreid. Proef bijvoorbeeld de bekende 'natte', 'zatte' en IJwit of probeer één van de seizoenbieren; zoals 'PaasIJ' of 'IJndejaars'. De brouwerij heeft ook een proeflokaal en een groot zonnig terras met een aanlegsteiger.

465556684_569213952170014_7462375669783959967_n
15
Adres
Reinwardtstraat 1,
1093 GT Amsterdam

Turbo Amsterdam

Volgens de eigenaren (ook van het er tegenover gelegen buurtcafe de Tros) is de naam gekozen omdat de plek snel en vernieuwend moet zijn. De kwaliteit hoog, de toegang laagdrempelig. Koffie met cinnamonbuns in de ochtend, sandwiches of een huisgemaakt kroket in de middag en diner met (natuur)wijn in de avond. Een restaurant noemen ze zichzelf niet, eerder een plek voor culinaire snacks.

16
Adres
Linnaeusstraat 63H,
1093 Amsterdam

Buurtcafé de Tros

De eigenaars van dit (anders dan de naam zou vermoeden) restaurant zijn door de wol geverfd.  Het leuk hier is dat je aan de bar snacks kunt eten, maar ook aan tafel uitgebreid kunt dineren. Denk aan gerechten als dun gesneden rib-eye met balsamico mayonaise, pecorino en kappertjes of verschillende soorten kool met een hollandaise saus.

Schermafbeelding 2023-01-25 om 14.57.20
17
Adres
Eerste Van Swindenstraat 423,
1093 GB Amsterdam

Toko Bersama

Bij Toko Bersama kan je terecht voor authentieke Indonesische gerechten. Van heerlijke roti tot rames en van soepen tot snacks, er is voor ieder wat wils. Van de rijsttafel zijn er verschillende varianten beschikbaar, van klein (voor één persoon) tot extra compleet. Deze kan (desgewenst) volledig vegetarisch worden geserveerd. Bij de normale rijsttafel ( van €36), voor twee personen, kies je zelf twee basis-, drie vlees- en drie groente- of sojagerechten. Standaard komen daar kroepoek, seroendeng, tempé en sambal bij. De rijsttafel biedt de mogelijkheid om de verschillende Indonesische gerechten te proberen.

image
18
Adres
Eerste Van Swindenstraat 581,
1093 LC Amsterdam

Bar Botanique

Gezellig wat drinken in de groene oase van Bar Botanique. Een hippe bar waar je terecht kan voor alle soorten drankjes, lunch, pizza's, burgers en een driegangenmenu. Neem bijvoorbeeld de 'pulpo' als voorgerecht (anijs-doperwtencrème, pomme paille, chorizopoeder) een langoustine bisque als hoofdgerecht (gebakken zeeduivel, gamba's, la ratte aardappelen, seizoensgroenten) en de chocolade bavaroise (honeycomb, koekjes bodem, saus van dulce de leche met zeezout) als dessert.

downloadgram.org_590429894_17888291427401226_9085664243585121965_n
19
Adres
Czaar Peterstraat 21,
1018 NX Amsterdam

Restaurant Fyr

Executive Chef en eigenaar Elian Muller opende Fyr in de Czaar Peterstraat na jaren ervaring bij restaurant Vinkeles, waar hij zijn vakmanschap verder verfijnde. Zijn visie voor Fyr is geïnspireerd op de vier elementen — water, aarde, lucht en vuur — die samen de basis vormen van de seizoensgebonden gerechten. Muller werkt veel met lokale producten en technieken zoals koken op houtvuur, waarvoor de grote houtoven in de keuken symbool staat. De menu’s zijn zorgvuldig opgebouwd en weerspiegelen zijn liefde voor robuuste smaken en elegante presentatie. De sfeer is warm en gastvrij  met een modern interieur.

27891761_1207124329420457_6314721945216614400_n
20
Adres
Linnaeusstraat 99,
1093 EL Amsterdam

Baking lab

Bij Baking Lab zijn ze gespecialiseerd in zuurdesem, maar hebben ze ook onweerstaanbare gebakjes als canelé. Daarnaast bieden ze een volledig vegetarisch, ontbijt- en lunchmenu aan met tal van vegan opties. De winkel heeft een rustieke uitstraling met hout interieur. Boven is veel zitruimte, geschikt om te werken en een paar plekken buiten. Baking lab organiseert regelmatig workshops, zoals een waarin wordt gedemonstreerd hoe oud brood kan worden gerecycled als ingrediënt voor nieuw brood.

de+Plantage-Buiten+Herfst-129+copy
21
Adres
Plantage Kerklaan 36,
1018 CZ Amsterdam

De Plantage

Bij De Plantage kom je voor de klassieke, statige Amsterdamse grandeur. Bij de bijzondere plek naast/in Artis kan je terecht voor alles en meer: een prima kop koffie met een ontbijtje, een snelle of langzame lunch of een uitgebreid diner. De plek voelt groot aan bij binnenkomst, maar de inrichting is intiem. Laat je verrassen door de Plats de Plantage van de chefs, of kies uit de vele à la carte opties. Laat zeker de Hemelse Modder als dessert niet aan je voorbij gaan.

Boodschappen
22
Adres
Eerste Van Swindenstraat 16,
1093 GD Amsterdam

Authentic India

In het hart van stadsdeel Oost in Amsterdam vind je Authentic India, haal je heerlijke Indiase samosa's. Deze knapperige, driehoekige flapjes van filodeeg zijn gevuld met allerlei lekkernijen, zoals aardappelen, erwten en kruiden. Naast de traditionele samosa's biedt Authentic India ook verschillende andere Indiase gerechten, waaronder tandoori kip en curry's. De naam zegt het al, maar als je op zoek bent naar authentiek Indiaas eten in Oost, dan is Authentic India zeker een bezoek waard.

downloadgram.org_586674768_17852772084595287_4799551715545584353_n
23
Adres
Reinwardtstraat 4h,
1093 HG Amsterdam

De Kaaf

De mannen achter restaurant De Tros en zusje Turbo openden met Wijnwinkel de Tros, ook wel De Kaaf, hun eigen wijnwinkel in Oost. Hier brengen ze dezelfde liefde voor natuurwijn die hun restaurants kenmerkt naar een plek waar je gewoon binnenloopt om iets moois mee naar huis te nemen. De schappen staan vol met zorgvuldig geselecteerde flessen, van pet nat tot champagne en van rood tot wit en oranje. Voor wie De Tros kent, voelt De Kaaf als een logische uitbreiding: dezelfde smaak, maar dan in winkelvorm. Daarnaast is de ruimte ook af te huren voor proeverijen en besloten avonden, waardoor De Kaaf net zo goed ontmoetingsplek als winkel is.

63190709_2245453812169463_1319492671491801088_n
24
Adres
Wittenburgergracht 303,
1018 ZL Amsterdam

Frank's Smokehouse

Al meer dan twintig jaar bevindt Frank’s rokerij zich in Amsterdam, nog op dezelfde plek waar de eerste echte winkel werd geopend op de Wittenburgergracht. Al in 1984 leerde Frank forel roken in Zweden en zo werd hij gegrepen door de simpele oervorm van conserveren. Toen hij hier in Amsterdam mee verderging in zijn achtertuin werden eerst vrienden zijn klant en groeide zo uit tot een gevestigde rokerij. Als je erlangs loopt kan je de geur van de ambachtelijke gerookte vis en vlees al buiten ruiken.

25
Adres
Javastraat 11-13-15,
1094 GX Amsterdam

Yakhlaf

In de bruisende gezellige en veelzijdige Javastraat vind je meerdere geweldige buurtsupers en Yakhlaf is daar een van. Enorm uitgebreide supermarkt met een hele goede groente en fruitafdeling. Daarnaast verkopen ze ook vers vlees en Midden-Oosterse delicatessen. Een heel erg goed (misschien wel beter) alternatief voor alle grote supermarktketens.

Uitgelicht; Maria Magdalena, een loft appartement in een voormalige pastorie

Uitgelicht; Maria Magdalena, een loft appartement in een voormalige pastorie

De beste koffiezaken van Amsterdam

De beste koffiezaken van Amsterdam

Een selectie van nieuwe openingen in de stad.

Een selectie van nieuwe openingen in de stad.

Onlangs bekeken
Bekijk het overzicht

Deze site maakt gebruik van cookies.

Voor welke cookies geef je akkoord?