Licht 3-kamerappartement van circa 48 m², gelegen in het zeer populaire Oud-West, op eigen grond. Het appartement beschikt over een woonkamer met open keuken, twee slaapkamers, een separaat toilet, een badkamer en een terras van circa 11 m². In het appartement is gedeeltelijk vloerverwarming en het is mooi afgewerkt met keramische houtlooktegels.

Rondleiding 
Het appartement biedt een lichte en sfeervolle living met een open keuken die naadloos aansluit op het heerlijke terras van circa 11 m², gelegen op het noordwesten. De glazen pui tussen de woonkamer en slaapkamer zorgt voor veel lichtinval. De woning is voorzien van vloerverwarming en houtlooktegels, een functionele keuken met moderne inbouwapparatuur en een separaat toilet. De hoofdslaapkamer is ruim en rustig gelegen, terwijl de tweede slaapkamer multifunctioneel is en grenst aan het terras. De badkamer is uitgerust met een inloopdouche, wastafelmeubel en wasmachineaansluiting. Het terras vormt een fijn verlengstuk van de living en is ideaal om buiten te genieten.

Buurtgids
Wonen in een sfeervolle omgeving, dichtbij het groene hart van de stad: het Vondelpark. Dit appartement is gelegen in het populaire stadsdeel Oud-West, met een grote diversiteit aan winkels, restaurants, trendy cafés en sportfaciliteiten. Zo biedt de J.P. Heijestraat ambachtelijke winkels zoals Levain et Le Vin, Trakteren en Zeeduivel. Voor een borrel op het terras zijn Gebrouwen door Vrouwen, Nonna, Gitane, Night Kitchen Amsterdam, Bar Kosta en Café Lennep uitstekende keuzes. Met de Overtoom om de hoek sluit je de avond af in heerlijke restaurants zoals Parallel en Gustatio. Daarnaast ligt de woning dichtbij het groen van het Vondelpark, waar je kunt ontsnappen aan de drukte van de stad en kunt genieten van de rust van de natuur.

Bijzonderheden
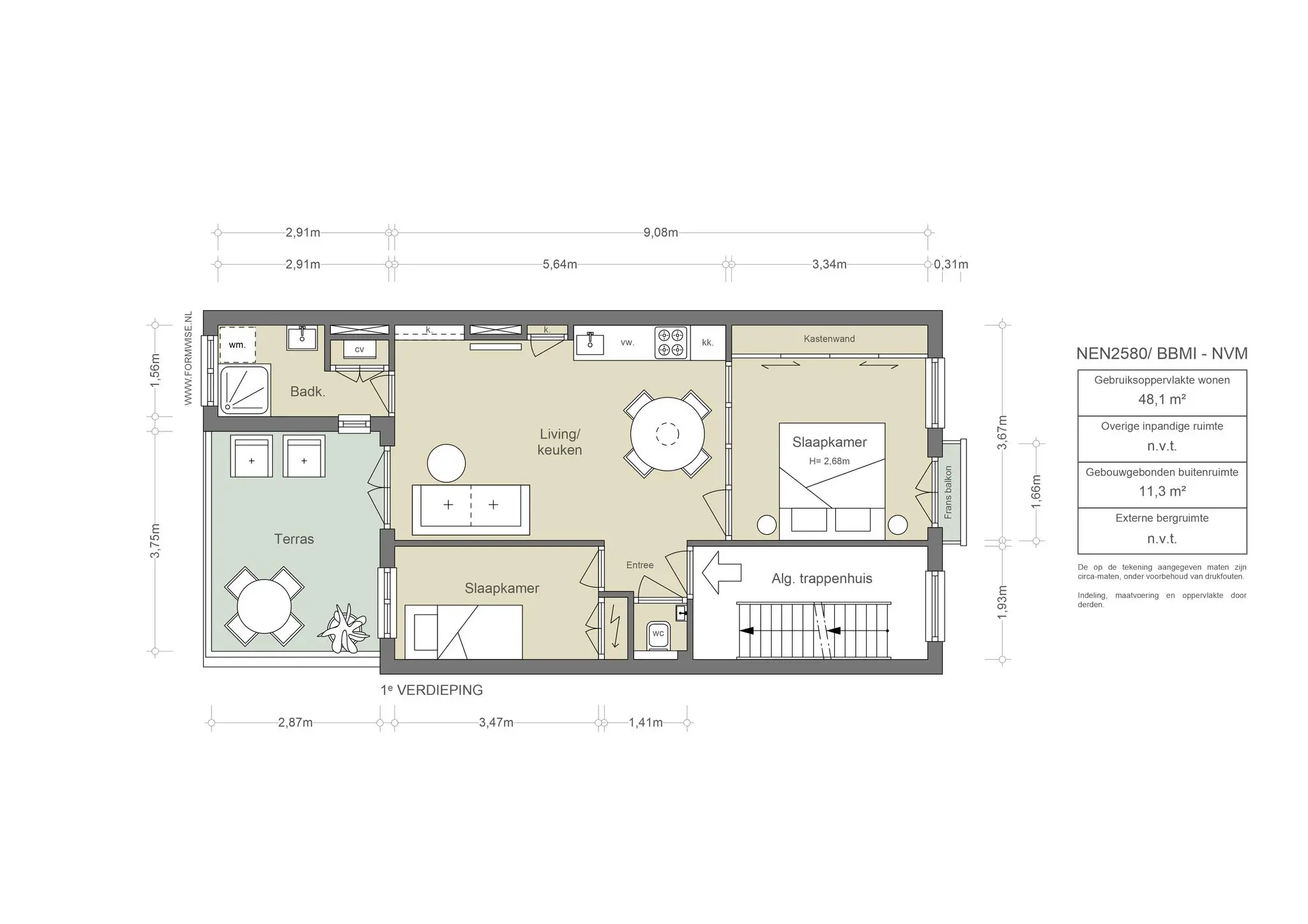
•    Gebruiksoppervlakte wonen circa 48 m²
•    Terras van circa 11 m² en een frans balkon
•    Gelegen op eigen grond
•    Energielabel E
•    Servicekosten VvE € 130,- per maand
•    Kleine VvE 3 leden, in eigen beheer gevoerd

AM105870-1947888-Kanaalstraat-192-1,-Amsterdam-207882321

Oud West Living
Wij begeleiden als kantoor de verkoop van een uiteenlopend aanbod. Als makelaar is deze afwisseling erg uitdagend en draagt dit bij aan het beeld dat je krijgt van de totale woningmarkt in Amsterdam. Zelf heb ik een zwak voor Amsterdam-West, waar ik zelf ook heb gewoond. De dynamiek van de buurt is erg fijn en de voorzieningen zijn goed. Op onder andere de J.P. Heijestraat, Overtoom en Kinkerstraat is een diversiteit aan winkels, speciaalzaken en traiteurs te vinden. Daarnaast zijn er diverse goede restaurants en gezellige cafés in de buurt. Het appartement betreft een goed ingedeeld 3-kamerappartement van circa 48 m². De woning biedt een perfecte combinatie van eigentijds wonen en comfort. Dankzij de indeling met twee slaapkamers en een kwalitatieve buitenruimte grenzend aan de living, is het appartement zeer goed ingedeeld, waarbij optimaal gebruik is gemaakt van de ruimte. Uniek aan dit appartement is de aanwezigheid van vloerverwarming in combinatie met een keramische tegel uitgevoerd in houtlook. Mocht je verdere interesse hebben, dan nodig ik je graag uit om eens langs te komen. Uiteraard vertel ik je dan nog meer over het appartement. Wellicht tot snel!


Glenn van der Zanden | Makelaar Broersma Wonen
AM105870-1947888-Kanaalstraat-192-1,-Amsterdam-208253721
Architectuur

De Helmersbuurt is aangelegd aan het eind van de 19e en het begin van de 20e eeuw. Veel mensen trokken naar de grote stad, waar de industrie zich had gevestigd. Doordat de bevolking in rap tempo groeide, begon de gemeente Amsterdam te bouwen buiten de Singelgracht. De grote vraag naar nieuwe woningen zorgde ervoor dat veel traditionele, vakbekwame bouwers niet konden voldoen aan de vraag. De panden werden in kleine blokjes gebouwd (3-4 panden), waardoor er een diversiteit aan gebouwen ontstond. Veel ontwerpers voerden de titel architect, maar waren dat zelden. De huizen werden vaak ontworpen door een grondexploitant, aannemer of makelaar. Het pand aan de Kanaalstraat 192 is rond 1912 gebouwd onder leiding van de gebroeders De Boer. Zij bebouwden drie percelen, bestaande uit Kanaalstraat 190–194. Het complex is gebouwd in de verstrakte stijl van de Amsterdamse School. In deze bouwperiode waren kamers vaak en suite, hadden ramen een mooie vlakverdeling, en werden paneeldeuren toegepast. Het Franse balkon aan de voorzijde benadrukt het karakter dat bij deze tijd past. Voordat de verkopers eigenaar werden, is het appartement intern gerenoveerd, waarbij onder andere vloerverwarming is aangelegd in de gehele woning.

AM105870-1947888-Kanaalstraat-192-1,-Amsterdam-207882293
AM105870-1947888-Kanaalstraat-192-1,-Amsterdam-207882361
AM105870-1947888-Kanaalstraat-192-1,-Amsterdam-207882321
AM105870-1947888-Kanaalstraat-192-1,-Amsterdam-207882325
Wonen en koken

De woonkamer aan de achterzijde van het appartement is het hart van de woning. Er is voldoende ruimte voor een zit- en eetgedeelte: de ideale plek voor ontspanning en gezelligheid. Door de glazen pui, die de living en slaapkamer van elkaar scheidt, is het doorzonkarakter bewaard gebleven. Hierdoor is er veel lichtinval, wat de ruimte verder verrijkt. Aangrenzend aan de woonkamer ligt het ruime terras van circa 11 m², dat zorgt voor een prettige connectie met de buitenruimte. De open keuken is functioneel en uitgerust met inbouwapparatuur, waaronder een koel-/vriescombinatie, oven, vaatwasser, inductiekookplaat en afzuigkap. De zeer diepe kasten in de keuken zorgen voor veel bergruimte. Het toilet is separaat en bevindt zich bij de toegangsdeur van het appartement. De gehele woning is voorzien van vloerverwarming in combinatie met een keramische tegel in houtlook.

AM105870-1947888-Kanaalstraat-192-1,-Amsterdam-207882315
AM105870-1947888-Kanaalstraat-192-1,-Amsterdam-208253735
AM105870-1947888-Kanaalstraat-192-1,-Amsterdam-207882353
AM105870-1947888-Kanaalstraat-192-1,-Amsterdam-207882385
AM105870-1947888-Kanaalstraat-192-1,-Amsterdam-207882375
AM105870-1947888-Kanaalstraat-192-1,-Amsterdam-207882337
Slapen en baden

De hoofdslaapkamer is gelegen aan de rustige straatzijde van het appartement en biedt ruimte voor een tweepersoonsbed en een grote inbouwkast.
De badkamer is te betreden vanuit de woonkamer en beschikt over een instapdouche, wasmachineaansluiting en wastafelmeubel. De tweede slaapkamer is eveneens te bereiken vanuit de woonkamer en is multifunctioneel te gebruiken, bijvoorbeeld als werk-, logeer- of kinderkamer. Deze kamer grenst met een raampartij aan het terras.

AM105870-1947888-Kanaalstraat-192-1,-Amsterdam-208253727
AM105870-1947888-Kanaalstraat-192-1,-Amsterdam-207882455
AM105870-1947888-Kanaalstraat-192-1,-Amsterdam-208253787
Kanaalstraat 192 1-17
AM105870-1947888-Kanaalstraat-192-1,-Amsterdam-208253809
AM105870-1947888-Kanaalstraat-192-1,-Amsterdam-207882477
AM105870-1947888-Kanaalstraat-192-1,-Amsterdam-207882467
Het terras

Het appartement beschikt over een kwalitatieve buitenruimte van circa 11 m², gelegen op het noordwesten. Hoewel de buitenruimte niet heel zonnig is, fungeert deze in de zomer als een verlengstuk van de living. Heerlijk buiten BBQ’en of genieten van een drankje na werk kan hier uitstekend. De openslaande deuren vanuit de woonkamer zorgen ervoor dat de buitenruimte zeer goed bereikbaar is.

AM105870-1947888-Kanaalstraat-192-1,-Amsterdam-207882461
AM105870-1947888-Kanaalstraat-192-1,-Amsterdam-207882503
AM105870-1947888-Kanaalstraat-192-1,-Amsterdam-207882509
AM105870-1947888-Kanaalstraat-192-1,-Amsterdam-207882517

Wonen in een sfeervolle omgeving, dichtbij het groene hart van de stad: het Vondelpark. Dit appartement is gelegen in het populaire stadsdeel Oud-West, met een grote diversiteit aan winkels, restaurants, trendy cafés en sportfaciliteiten. Zo biedt de J.P. Heijestraat ambachtelijke winkels zoals Levain et Le Vin, Trakteren en Zeeduivel. Voor een borrel op het terras zijn Gebrouwen door Vrouwen, Nonna, Gitane, Night Kitchen Amsterdam, Bar Kosta en Café Lennep uitstekende keuzes. Met de Overtoom om de hoek sluit je de avond af in heerlijke restaurants zoals Parallel en Gustatio. Daarnaast ligt de woning dichtbij het groen van het Vondelpark, waar je kunt ontsnappen aan de drukte van de stad en kunt genieten van de rust van de natuur.

Bereikbaarheid
De woning geniet van een uitstekende bereikbaarheid dankzij de nabijheid van openbaarvervoervoorzieningen en uitvalswegen. Op onder andere de Overtoom, Kinkerstraat en Bilderdijkstraat zijn meerdere tram- en bushaltes te vinden. Centraal Station is binnen 14 minuten fietsen te bereiken. De woning is tevens uitstekend met de auto bereikbaar via de S100, S106 en S108 vanaf de ring A10. Door de gunstige ligging in de stad is luchthaven Schiphol binnen 14 autominuten te bereiken.

Parkeergelegenheid
Parkeren is mogelijk via een vergunningenstelsel op de openbare weg (vergunningsgebied West-11.3). Met een parkeervergunning voor West-11.3 mag u parkeren in West-11. Een parkeervergunning voor bewoners kost € 186,29 per 6 maanden. Momenteel is er voor dit vergunningsgebied een wachttijd van 5 maanden. Een tweede parkeervergunning is in dit gebied niet mogelijk. (Bron: Gemeente Amsterdam, november 2024).

AM105870-1947888-Kanaalstraat-192-1,-Amsterdam-207882309
Wat de eigenaren gaan missen

Wij hebben niet lang hoeven nadenken toen dit huis op de markt kwam, en we hebben geen dag spijt gehad van onze keuze. Het is voor ons de ideale plek geweest, in (naar ons idee) de leukste buurt van Amsterdam. Het is een licht, ruim ingedeeld huis waar wij met z’n tweeën, en misschien zelfs met een eerste kindje, perfect uit de voeten konden. De indeling en het comfort maken het huis verrassend praktisch. Het terras aan de achterkant is absoluut ons favoriete plekje. Zodra het lekker weer is, staan de terrasdeuren open en verplaatsen we ons naar buiten. Of het nu met een klein gezelschap is of met een groep vrienden rond de barbecue – en dat komt in de zomer geregeld voor – de sfeer is altijd goed. De buurt waardeert de levendigheid gelukkig ook, zolang het binnen de perken blijft. Dat maakt het terras voor ons een soort verlengstuk van de woonkamer, waar we graag tijd doorbrengen. De omgeving maakt het plaatje compleet. Oud-West heeft alles wat je nodig hebt: op zaterdagochtend naar de Ten Katemarkt, de leukste lunchtentjes en cafés om de hoek, en altijd genoeg opties voor een avondje uit. Pizza Project voor een goede pizza, Staring at Jacob’s voor brunch, Levain et Le Vin voor heerlijk brood of een goed glas wijn, en recent ook De Zingende Zwaan – die buurtklassiekers hebben we echt omarmd. Voor een late-night snack op de Jan Pieter Heijestraat of een laatste drankje in de Figurantenbar hoef je nooit ver te lopen. Wat we hier echt gaan missen, is die mix van levendigheid en rust. Ons stukje van de Kanaalstraat ligt net buiten de drukte, dus het is relatief stil – wat fijn is na een lange dag en helpt bij een goede nachtrust. Het kanaal om de hoek zorgt bovendien voor gezellige waterpret, waar je aan kunt meedoen of van kunt genieten met een borrel op een van de terrasjes of bankjes. Het is een buurt waar je je thuis voelt, maar waar altijd iets te doen is – en dat gaan we zeker missen.

AM105870-1947888-Kanaalstraat-192-1,-Amsterdam-207882491
AM105870-1947888-Kanaalstraat-192-1,-Amsterdam-207882523
Kenmerken
Kanaalstraat 192-1, Amsterdam
Vraagprijs
  • € 435.000 k.k.
Beschikbaarheid
  • In overleg
Vertrekken
  • 3 kamers
  • 2 slaapkamers
  • 1 badkamer
Onderhoud
  • Intern: Goed
  • Extern: Goed
Oppervlakten & Inhoud
  • Woonoppervlakte: 48 m²
  • Gebouwgebonden buitenruimte: 11 m²
  • Tuinoppervlakte: 11 m²
Bouwjaar
  • 1913
Installaties
  • Frans balkon
  • Natuurlijke ventilatie
  • TV kabel
Ligging
  • Aan rustige weg
  • In woonwijk
Parkeren
  • Betaald parkeren
  • Parkeervergunningen
Type verwarming
  • CV Ketel
  • Vloerverwarming gedeeltelijk
Type warmwater
  • CV Ketel
Bestemming
  • Woonruimte
Eigendomssoort
  • Volle eigendom
Buitenruimte
  • Zonneterras
  • Dakterras
Kadastraal
  • Gemeente: Amsterdam
  • Sectie: T
  • Nummer: 5783
Duurzaamheid
  • Energielabel E
Soort
  • Appartement
  • Bovenwoning
Welke woonlaag
  • 2e
Overige kenmerken

OZB ('24): € 204,67 per jaar
Rioolrecht ('24): € 166,85 per jaar
Servicekosten VvE € 130,- per maand

Plattegrond
Kanaalstraat 192-1, Amsterdam
AM105870-1947888-Kanaalstraat-192-1,-Amsterdam-208258743
Documenten
Kanaalstraat 192-1, Amsterdam
Locatie
Kanaalstraat 192-1, Amsterdam
Eten & drinken
01
Adres
Rhijnvis Feithstraat,
1054 TT Amsterdam

De Figurantenbar

Een buurtkroeg zoals die hoort te zijn; fijne bediening, leuke mensen, lekkere wijntjes en veel gezelligheid. Met de buurtbewoners voetbal kijken, aan een popquiz meedoen of naar livemuziek luisteren. Het aanbod is divers en gezellig.

downloadgram.org_505199169_17968221128916987_8853914751551748836_n
02
Adres
J.J. Cremerplein 34H,
1054 TL Amsterdam

Taal Coffee

Taal Coffee is een koffiezaak in Amsterdam-West, opgericht door Aleksandra Fedorova, die na jaren ervaring in de koffiewereld haar eigen plek wilde creëren rond ontmoeting en aandacht. De naam verwijst naar de manier waarop smaak en gesprek mensen verbinden, en dat idee vormt het hart van de zaak. Hier draait het om zorgvuldig bereide espresso’s en filterkoffie, met bonen van kleine branders en seizoensgebonden dranken. Naast koffie worden er ambachtelijke zoetigheden geserveerd, in een ruimte waar buurtbewoners graag blijven zitten om te werken of bij te praten.

8-Neapolitan-Pizza-Bar
03
Adres
Wilhelminastraat 153HS,
1054 WC Amsterdam

Pizza Project

Het begon met een pizzaoven in hun achtertuin. Elke vrijdag stond er een rij voor hun woning met vrienden en familie die een pizza kwamen halen. Inmiddels hebben Idske en Bas twee vestigingen en een foodtruck. Het geheim? Het deeg 48 uur laten rijzen waardoor de bodem luchtig wordt en de pizza minder zwaar op de maag ligt. In het weekend worden er ook broodjes voor de lunch geserveerd.

243487692_916456538963690_7976686809274757497_n
04
Adres
Overtoom 445,
1054 KG Amsterdam

Focacceria

De Italiaanse Valeria Lucente vindt de Italiaanse restaurants in Amsterdam verrassend goed, maar ze heeft wel heimwee naar de smaken van thuis. Vooral de focaccia uit haar streek. Dit delicate platbrood, ongeveer twee centimeter dik, is luchtig, vettig en zo zacht als een wolk. In tegenstelling tot focaccia uit andere Italiaanse regio's heeft de genovese-variant geen knapperige, maar een zachte bovenkant. Dit komt door voor het bakken het deeg te bestrijken met olijfolie, water en zout. Vooral in Genua wordt focaccia genoten bij elk eetmoment en dat kan nu dus ook in Amsterdam.

Schermafbeelding 2022-06-20 om 12.06.45
05
Adres
Wilhelminastraat 109,
1054 WB Amsterdam

Barrica

Bij Barrica kan je terecht voor wijn en eten. Je begeeft je hier in Mediterrane sferen met een Italiaanse en Spaanse wijn- en menukaart én het warme, gezellige interieur. Je kan kiezen voor shared dining met een soort mix tussen tapas en antipasti. Zo kan je van alles wat proeven, van burrata en lasagne tot kabeljauw in tomatensaus. Een sfeervol restaurant met goede wijnen en heerlijk eten.

downloadgram.org_599174450_17869878831481062_7625921310109593583_n
downloadgram.org_584414906_17867642610481062_6913260930332692383_n
06
Adres
Staringplein 22,
1054 VL Amsterdam

Gorgo Lunchroom

Gorgo is opgezet door Rifat Ergor en Berkutay Gunel, die negen jaar geleden samen Istanboel verlieten en in Amsterdam hun droom van een eigen zaak realiseerden. Ergor is architect, Gunel creative director, en die creatieve blik voel je in alles: van het licht in de ruimte tot de manier waarop de keuken wordt benaderd. Hun lunchroom is geïnspireerd op Anatolië en omschrijven ze zelf als 'neither East nor West', een plek waar Turkse, Arabische, Perzische, Armeense en Griekse invloeden samenkomen. Op de kaart staan eigenzinnige gerechten zoals tosti’s met kavurma, tahini en honing, sesamkoekjes vol verschillende sesamvarianten en drankjes als sumac-limonade en hoşaf-kombucha.

downloadgram.org_612064080_18088618793472192_8522096381989837072_n
downloadgram.org_503799539_18064983656472192_5322203112114680114_n
07
Adres
Jacob Van Lennepkade 334D,
1053 NJ Amsterdam

Bon Burger

Bon Burger is de nieuwe zaak van Freek Kattenberg, bekend van Bottleshop in Oost, die met dit concept zijn liefde voor burgers en natuurwijn samenbrengt. Na jaren van succesvolle burgerpop-ups in Bottleshop besloot hij dat het tijd was voor een vaste plek in West, op de geliefde vlonder aan de Jacob van Lennepkade. Kattenberg gelooft dat juist iets simpels als een hamburger goed uitvoeren een vak is, en dat zie je terug in zijn focus op grilltechniek en kwaliteit. Het vlees komt van Nederlandse dubbeldoelkoeien, die eerst als melkkoe hebben geleefd en daardoor duurzamer en smaakvoller zijn. Bon Burger voelt als een ontspannen buurtplek waar kenners en nieuwsgierige voorbijgangers samenkomen voor burgers, wijn en lange avonden aan het water.

26-lvffood-com-5129-57-20230127
08
Adres
Postjesweg 1,
1057 DT Amsterdam

Daalder (*)

Zijn Indonesische roots en Aziatische invloeden kruiden de inventiviteit van chef Huwaë. Hij schuwt allerminst de contrasterende smaken. Het talent van deze chef ligt in de harmonie die hij bereikt met dergelijke associaties. Soms is hij iets klassieker, zoals met een perfect gegaarde langoustine waarbij een botersaus komt die is verrijkt met champagne, appelsien en Grand Marnier. Subtiel, intens, explosief. Helemaal Dennis Huwaë. Daalder heeft 1 Michelin ster.

1500-x-1000-pxl5-1024×683
09
Adres
Overtoom 515,
1054 LN Amsterdam

Adam

Alle gerechten zien er fraai uit, zonder overdreven gedoe. Ook de smaken doen zich gelden: eerlijk, spannend en in balans. Al snel in ons menu komen we een topper tegen: perfect gegaarde griet met een fris-ziltige oestervinaigrette, komkommerlinten, amandelcrème, een bite van gefrituurde vishuid en een saus van nori. Even tongstrelend: een perfect stukje lam van de Big Green Egg, bereid met chorizo en geserveerd met twee heerlijke sauzen.’

280279707_690276598712258_782257989926286225_n
10
Adres
Lootsstraat 5,
1053 NT Amsterdam

Eetcafé Meo’s Colosseum

Bij het Surinaams-en Caribische Eetcafé Meo’s Colosseum kan je elke dag vanaf 04.00 uur 's ochtends tot 10.30 uur 's avonds terecht en op zaterdag tot 05.00 uur (en soms nog langer). Ze staan altijd voor je klaar wanneer andere eetgelegenheden gesloten zijn met lekkernijen als nasi, bami, pom, of moksi alesi. Op vrijdag en zaterdag zijn er ook barbecue gerechten en huisgemaakte friet. Krijg je er nog geen genoeg van? Binnenkort zijn ze 24 uur geopend.

Gitane-NinaSlagmolen-10juli2023-188-1365×2048
329963219_8769040973168667_1375211572719675553_n
11
Adres
Jan Pieter Heijestraat 146,
1054 MK Amsterdam

Gitane

Angelo Kremmydas, zowel chef als eigenaar, kookt enkel met de meest verse en seizoensgebonden ingrediënten. Het menu weerspiegelt zijn visie en biedt een bescheiden en verfijnde selectie eigentijdse à la carte-gerechten. Hier geen ingewikkelde setmenu's; in plaats daarvan heb je de vrijheid om precies te bestellen waar je op dat moment naar verlangt. Angelo's mediterrane achtergrond schittert in elk gerecht. Naast het smaakvolle menu is er een uitgebreide wijnkaart.

downloadgram.org_587941642_17861923047540463_7528525127815259624_n
downloadgram.org_580577890_17860377204540463_347230483383533533_n
12
Adres
Jan Pieter Heijestraat 94A,
1053 GS Amsterdam

Café Vitalente

Café Vita Lente werd geopend door Simon Witmaar, voormalig eigenaar van het sterrenrestaurant Coulisse, dat hij samen met Tim van der Molen runde. Met Vita Lente koos hij bewust voor iets totaal anders: geen fine dining, maar een café waar spontaniteit en vrijheid centraal staan. In de keuken staat Bas Holthuizen, die meeging vanuit Coulisse en hier kookt in een losser format met warme en koude gerechten die je de hele dag door kunt bestellen. Het concept draait om het Italiaanse idee van 'vita lenta', langzaam leven, waarbij je op elk moment vanaf 11.30 kunt binnenlopen en zo lang blijft als je wilt.

271553756_4698050586938795_6728215580262896284_n
61044194_2189624581114754_5141080698035109888_n
13
Adres
Jan Pieter Heijestraat 121,
1054 ME Amsterdam

Flo's Appetizing

Bij Flo's Appetizing ben je aan het juiste adres voor handgemaakte Amerikaanse bagels. Eigenaresse Heather Eddy maakt elke dag met passie de meest verse bagels met gevarieerde toppings voor je klaar. Favoriet is de pastrami of gegrilde kaas en ei.

1515753586-meneer-de-wit_bar4589
1547131084-meneer-de-witjcb8132
14
Adres
Witte de Withstraat 10,
1057 XV Amsterdam

Meneer de Wit heeft Honger

In 2015 opende Meneer de Wit heeft Honger; een restaurant met een huiselijke sfeer en heerlijk eten. Chef Simo Bouabgha leerde koken van zijn oma in het zuiden van Marokko en houdt van het eten dat de moeders rondom de Middellandse zee met alle liefde, geduld koken. Het menu bestaat uit seizoensgebonden gerechten met deze verfijnde en warme smaken, vaak gebaseerd op groente maar er is ook duurzaam vlees, gevogelte en vis.

350797001_546119614400873_859829144022127459_n
15
Adres
Jan Pieter Heijestraat 76,
1053 GS Amsterdam

Wakuli

Wakuli ontleent aan het Swahili-woord 'wakulima', wat boer betekent. Hier vind je kwaliteitskoffie die op duurzame wijze is verkregen tegen betaalbare prijzen.  Ze halen hun bonen bij kleinschalige boeren die groene productie produceren en roosteren ze op de beste manier mogelijk voor maximale smaak. Je kunt hier alle gebruikelijke koffiesoorten krijgen, evenals heerlijke ijskoffie en nitro cold brew. Last but not least, hebben ze een aantal zoete en hartige lekkernijen beschikbaar, van empanadas tot broodjes en croissants.

300884117_172675551991923_5973370947242380801_n
16
Adres
Eerste Helmersstraat 174H,
1054 EK Amsterdam

Mr. Gyoza

Het restaurant biedt naast de traditionele varkensvlees gyoza ook vegetarische en veganistische opties, waaronder roze bietengyoza. Daarnaast staan er verschillende bijgerechten en desserts op de kaart, zoals gefrituurde kip, ramen noedels en groene thee ijs. Het interieur van Mr. Gyoza is modern en gezellig, met een open keuken waar je de koks aan het werk kunt zien.

 

 

244941393_392674422556390_5974260137434439690_n
361937251_1006343037055178_1266157854329145058_n
17
Adres
Postjesweg 98,
1057 EG Amsterdam

Mundi

Bij Mundi in Amsterdam-West komt alles samen: goede koffie, wijnen voor in de avond en een gezellige plek om te werken of te kletsen. Gelegen aan de Kinkerstraat, biedt Mundi een diversiteit aan bezoekers, van freelancers met laptops tot mensen die voor een sterke bak koffie komen. De koffie van Five Ways is krachtig en pittig, ook beschikbaar voor thuis. De roze bank met speelhoek maakt het kindvriendelijk, terwijl dagelijks lekkers van Ulmus en een selectie natuurwijnen de ervaring compleet maken. Mundi is elke dag open van 08:00 tot 16/17 uur.

344958756_744684200721961_1937864838698341245_n
350812931_924913161950865_6719435353221097677_n
18
Adres
Hoofdweg 141,
1057 CN Amsterdam

Restaurant Felperlaan

Recent heeft Restaurant Felperlaan zijn deuren geopend in de Baarsjes. De eigenaren zijn bekend van Café Mundi. Eigenaresse Lila, en haar partner Benten willen kunstenaars uit de buurt de mogelijkheid bieden om hun kunst te exposeren. Het restaurant is een bruisende buurtstek met de focus op goed eten en een toegankelijke sfeer. Het dagmenu, seizoensgebonden en geprijsd tussen de 39 en 49 euro, wordt om de drie à vier weken vernieuwd. Daarnaast biedt het restaurant een (borrel)hapjeskaart met vaste items zoals oesters, huisgemaakte paté (ook vegetarisch) en diverse vegetarische gerechten. De keuken combineert invloeden uit Zuid-Frankrijk, Noord-Italië en Spanje.

Interieur
358014390_18301446502098195_6874054696510138290_n
19
Adres
Baarsjesweg 276 H,
1058 AD Amsterdam

Cocoon house Amsterdam

Cocoon house Amsterdam is de plek waar je 20e-eeuwse antiek, designstukken en kunst ontdekt. De focus ligt op unieke en goed ontworpen stukken die gebruikt kunnen worden om stijlvolle en individuele interieurs te creëren. De verzamelaar, Sander van Eyck, is interieur- en productontwerper. Hij heeft zijn eigen collectie meubels en verlichting onder de naam: 'Made by Sander'.

studio3000-vintage-objects
20
Adres
Derde Kostverlorenkade 35,
1054 TS Amsterdam

Studio 3000

Studio 3000 is een multifunctionele creatieve ruimte. De studio is opgericht in 2020 door Nurcan Tuzkapan en is gevestigd lang de Derde Kostverlorenkade. In de studio worden design meubels getoond, verkocht en verhuurd. Naast vintage designmeubels vind je hier ook een fotografiestudio. Op haar instagramkanaal houdt Nurcan haar volgers op de hoogte van haar nieuwste vondsten en geplande event. Als je geïnteresseerd bent in creatieve projecten en design, is het zeker aan te raden om het platform van Nurcan in de gaten te houden.

104196247_2609875105928789_2143325823481766499_n
21
Adres
Baarsjesweg 208,
1057 HT Amsterdam

The BirdTsang

The BirdTsang is een jonge keramiek studio gevestigd aan de Baarsjesweg die unieke en handgemaakte ontwerpen maakt. The Bird Tsang wordt gerund door kunstenaars Robin de Vogel & Johannes Tsang, die zich focussen op de samenwerking met innovatieve chef-koks om unieke en op maat gemaakte ontwerpen te creëren die een eetervaring complimenteren en verhogen met onderscheidend en duurzaam keramisch servies.

Schermafbeelding-2018-06-26-om-15.18.30-e1530019385389
22
Adres
Amstelveenseweg 39,
1054 MC Amsterdam

Eginstill

Eginstill is een bijzonder collectief, gespecialiseerd in interieurdesign. Het grote team aan leden, van ambachtsmannen tot aan de creatief leider Frans Pahlplatz, voorziet enthousiastelingen van workshops waarin alle interieur wensen waar kunnen worden gemaakt. Deze processen worden zo duurzaam mogelijk gemaakt, door het gebruik van recyclebare materialen zoals staal en hout van een familiebedrijf in Finland. Eginstill wil het liefste alle projecten zo uniek maken als hun klanten en dit doen ze met passie. Ook voor de lekkere bak koffie kan je hier goed terecht en er is genoeg om tijdens het nuttigen naar te kijken!

Boodschappen
Schermafbeelding 2022-06-20 om 12.19.42
23
Adres
Overtoom 444,
1054 JW Amsterdam

Chabrol

Al meer dan dertig jaar is Chabrol een gevestigde wijnwinkel in Amsterdam en omstreken. Chabrol is gegroeid van een kleine wijnwinkel in de buurt naar een importeur van unieke, organische wijnen. De wijnen worden met een passie voor wijn en het verhaal achter de wijn geselecteerd. Dat kan je bijvoorbeeld lezen in de nieuwsbrief waar ze over iedere wijn een verhaal schrijven zodat de echte wijnliefhebber alles te weten komt. Je kan bij Chabrol voor een hele brede variatie aan wijnen terecht, zowel voor een wijntje voor doordeweeks als een wijn voor speciale momenten.

Schermafbeelding 2022-06-20 om 12.29.03
2_levain-et-le-vin
24
Adres
Jan Pieter Heijestraat 168,
1054 ML Amsterdam

Levain et le vin

In deze hippe bakkerij in Oud-West proef je het meest heerlijke zuurdesem brood, en zijn ze gespecialiseerd in natuurwijn. In de bakkerij wordt elke dag op natuurlijke wijze zuurdesem gemaakt en kan je er heerlijke koffies drinken gemaakt door barista's die weten wat ze doen. Ze hebben overheerlijke focaccias en een echte aanrader is de kaneelbrioche. Als je een avond lekker gaat borrelen is Levain et Levin de plek waar je naartoe moet. Het personeel dat er werkt weet wat ze verkopen, dus tips vragen is een aanrader!

holyactiefoto-s-183.960×0
holyactiefoto-s-164.960×0
25
Adres
Jan Pieter Heijestraat 88,
1053 GS Amsterdam

Holy Ravioli

Holy Ravioli is een pastawinkel in Amsterdam-West. Er zijn maar liefst 15 verschillende soorten ravioli en bij iedere ravioli hoort een passende pesto, boter, chutney, saus of kaas. Alle producten zijn seizoengebonden en vers en dat zorgt voor de allerlekkerste pasta. Daarnaast zijn er ook soepen, lasagnes, salades en toetjes. Je kan lekker buiten zitten in de zomer op de picknickbanken of pasta mee naar huis nemen en zelf klaarmaken als je een keer geen tijd hebt om te komen. De perfecte plek voor pastafanaten.

Kunstagenda juli 2025

Kunstagenda juli 2025

Anja Henneman, voormalig topmodel, ontwierp dit interieur op de 19e verdieping van het Pontsteiger gebouw

Anja Henneman, voormalig topmodel, ontwierp dit interieur op de 19e verdieping van het Pontsteiger gebouw

De Man Achter het Ambacht – Barry Zardoni, restauratiestukadoor

De Man Achter het Ambacht – Barry Zardoni, restauratiestukadoor

Onlangs bekeken
Bekijk het overzicht

Deze site maakt gebruik van cookies.

Voor welke cookies geef je akkoord?