Heerlijk en rustig wonen in een modern en ruim gemeubileerd huis. De woning heeft drie slaapkamers, een zonnig terras op het Zuiden aan het water en een eigen parkeerplaats. Daarnaast is het ook mogelijk om de woning met een boot aan te meren via de steiger.

Een rondleiding
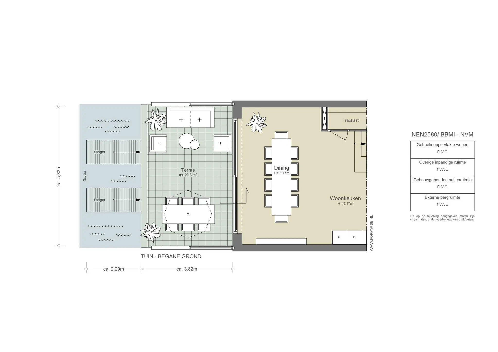
De entree is voorzien van een separaat toilet en een ingebouwde kast voor de garderobe. Via de hal toegang tot de ruime eetkamer met een moderne open keuken. De grote raampartijen die toegang bieden naar het zonnige terras zorgen voor veel lichtinval. Het uitzicht op het water geeft een oase van rust.
De moderne open keuken heeft een luxe uitstraling en is voorzien van alle keukenapparatuur van Siemens zoals een wijn ijskast, dubbele ijskast en vriezer, Quooker, inductie kookplaat en een ingebouwde koffie machine. Daarnaast is er ook veel opslag door middel van de hoogwaardige inbouwkasten over de gehele muur.
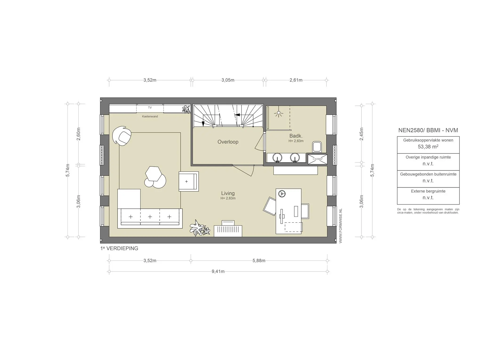
Op deze verdieping bevindt zich een zitgedeelte, de woonkamer met een ingebouwde televisie en zowel aan de voorzijde als achterzijde uitzicht. De ruime badkamer met vloerverwarming heeft een riante inloopdouche, toilet en een dubbele wastafel met meubel.
Zowel een ruime slaapkamer met ingebouwde kasten aan de voorzijde als aan de achterzijde. Separaat is er een wasruimte met inbouwkasten die aansluiting heeft voor de wasmachine en droger.
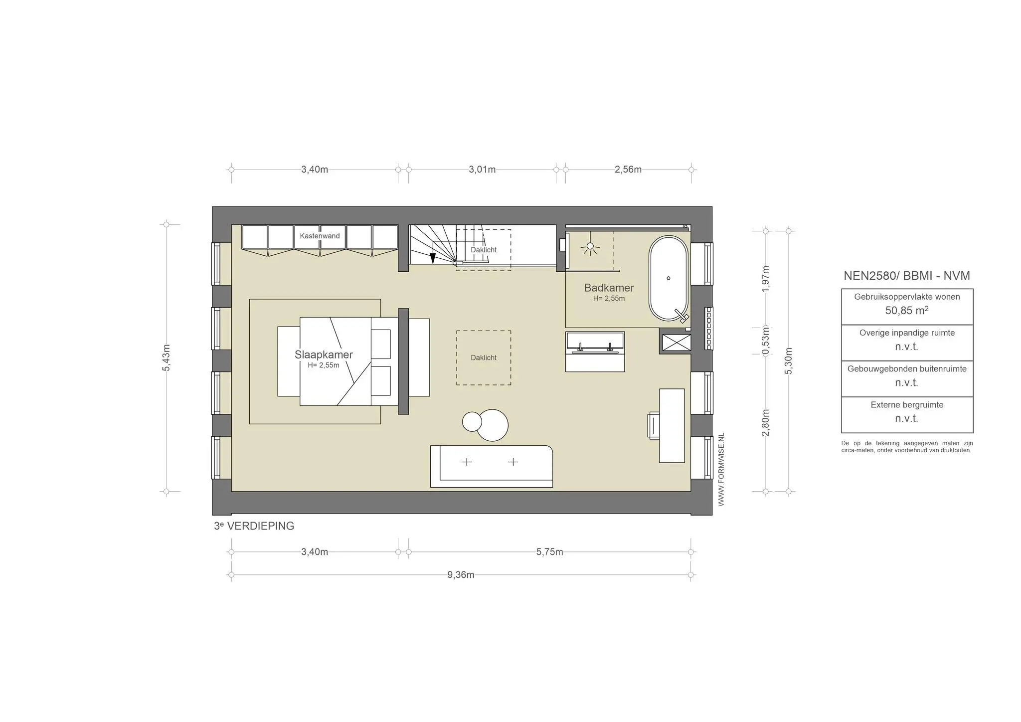
De gehele derde verdieping is voorzien van een moderne en ruime slaapkamer met en-suite een badkamer en airco. De badkamer heeft een ligbad, inloopdouche en wastafel met meubel. Zowel de eerste, tweede, als derde verdieping heeft een houten visgraatvloer.
Het huis heeft een zonnig terras aan het water en gelegen op het zuiden. Het is mogelijk om een eigen bootje aan te meren.

Omgeving en bereikbaarheid
Op Ijburg wonen is unique, dichtbij het centrum van Amsterdam en in een rustige omgeving aan het water. Op loopafstand bevindt zich een winkelcentrum Ijburg met diverse winkels om de dagelijkse boodschappen te doen. Bovendien heeft de buurt ook meerdere basisscholen en middelbare scholen, een kinderopvang en er is een recreatiestrand te vinden. Ook strand Blijburg is gemakkelijk te bereiken en het is mogelijk om van het terras te genieten van de sfeervolle restaurants aan de haven of op Steigereiland.
Het openbaar vervoer is uitstekend, zowel de bus- als tramhaltes met verbinding naar o.a. het Centraal Station zijn om de hoek. Daarnaast is de A10 en A9 makkelijk bereikbaar met de auto.

Kenmerken
John Fernhouthof 16, Amsterdam
Vraagprijs
  • € 1.500.000 k.k.
Beschikbaarheid
  • In overleg
Vertrekken
  • 7 kamers
  • 5 slaapkamers
  • 2 badkamers
Onderhoud
  • Intern: Goed
  • Extern: Goed
Oppervlakten & Inhoud
  • Woonoppervlakte: 215 m²
  • Gebouwgebonden buitenruimte: 22 m²
  • Perceeloppervlakte: 83 m²
Bouwjaar
  • 2017
Installaties
  • Schuifpui
  • Zonnecollectoren
Ligging
  • Aan rustige weg
  • Aan vaarwater
  • Aan water
  • In woonwijk
Parkeren
  • Op eigen terrein
Bestemming
  • Woonruimte
Eigendomssoort
  • Eigendom belast met erfpacht
Buitenruimte
  • Achtertuin
Kadastraal
  • Gemeente: Amsterdam
  • Sectie: Au
  • Nummer: 3278
Duurzaamheid
  • Volledig geisoleerd
  • Energielabel A
Soort
  • Eengezinswoning
  • Tussenwoning
  • Woonhuis
Overige kenmerken
  • Rioolrecht ('24) € 166,85 per jaar
  • Erfpachtcanon is eeuwigdurend afgekocht
Plattegrond
John Fernhouthof 16, Amsterdam
AM105763-1960070-John-Fernhouthof-16,-Amsterdam-210961307
AM105763-1960070-John-Fernhouthof-16,-Amsterdam-210961309
AM105763-1960070-John-Fernhouthof-16,-Amsterdam-210961317
AM105763-1960070-John-Fernhouthof-16,-Amsterdam-210961321
AM105763-1960070-John-Fernhouthof-16,-Amsterdam-210961325
Documenten
John Fernhouthof 16, Amsterdam
Locatie
John Fernhouthof 16, Amsterdam
Interieur
286463721_1350282202151603_2114217501944506381_n
01
Adres
Bert Haanstrakade 100,
1087 DN Amsterdam

Joink

Sinds 2011 kopen en verkoopt Joink voornamelijk vintage designmeubels, met de nadruk op de ontwerpen van Charles en Ray Eames. Bijna alle items worden gevonden in de EU en de Verenigde Staten; gekocht van particulieren, nalatenschappen, veilingen en vintage dealers. Sinds 2016 biedt Joink een breder scala aan geweldige designklassiekers, van bekende tot onbekende tijdloze ontwerpen.

02
Adres
Pedro de Medinalaan 89-91,
1086 XP Amsterdam

Design020

Op de westelijke punt van het Steigereiland vind je Design020; een groot woonwarenhuis met allerlei designmeubels van aanbieders zoals woonwinkel Kasstoor & Wonen 2000 en andere showrooms. Het is de perfectie plek om lekker rond te dwalen en inspiratie op te doen voor interieur en design. De ruimte is prachtig, met veel daglicht, zwevende trappen en een industrieel karakter. In de showrooms kun je naast designermeubelen ook bouwmaterialen bekijken zoals deurklinken en gietvloeren. Daarnaast is Design020 ook een meetingpunt voor architecten en designers.

162849785_190219572906159_4250034024078259020_n
03
Adres
Pedro de Medinalaan 91,
1086 XK Amsterdam

Kasstoor

De Kasstoor biedt sophisticated Amsterdam living. Deze zaak is al langer dan 100 jaar toonaangevend op het gebied van top design meubelen. Kasstoor is expert in het samenbrengen van klassieke en moderne ideeën. Een team van professionals reist de hele wereld af om de mooiste items te verzamelen. In de showroom gevestigd aan de prachtige Amerstamdse IJ kun je deze prachtige designer meubelen bekijken. Van banken tot stoelen tot tafels; hier vind je het allemaal en van de beste kwaliteit.

119235730_640071679979829_2528260860777625963_n
04
Adres
Javaplein 31HS,
1095 CJ Amsterdam

Found in Sweden

Found in Sweden, gelegen op het Javaplein in Amsterdam Oost, is een vintage winkel die trouw is aan zijn naam. Alles in de winkel is zorgvuldig geselecteerd uit Zweden, variërend van mid-century dressoirs tot lampen en tafelkleden. De collectie verandert voortdurend, met wekelijks nieuwe vondsten uit Zweden of liefdevol gerestaureerde stukken. Hoewel sommige items designklassiekers zijn, biedt de winkel ook betaalbare vintage schatten. De eigenaar, een gepassioneerde vintage-jager, deelt haar liefde voor unieke stukken. Found in Sweden is een plek waar de wereld van vintage tot leven komt, met verrassingen op elk bezoek.

119183029_748370379060570_3524924206402000634_n
05
Adres
Ertskade 272,
1019 BB Amsterdam

Frankly Amsterdam

Het jonge Nederlandse bedrijf Frankly Amsterdam – met oprichter Femke Derks aan het roer – ontwerpt, produceert en verkoopt kleden, bedlinnen, plaids en sjaals. Producten in zachte naturel tinten die warme, comfort en rust toevoegen aan ieder interieur. Bij Frankly Amsterdam doen ze dingen anders, hun producten hebben een eerlijke oorsprong waarbij werknemers in een goede omgeving met zuivere, onschadelijke materialen werken en een eerlijk loon ontvangen.

Boodschappen
06
Adres
Joris Ivensplein,
1087 BP Amsterdam

De REURING markt

De REURING markt strijkt elke zaterdag neer van 09:00 tot 16:00 en is een kleine maar fijne markt op IJburg. De gezellige sfeer van IJburg en de goede kwaliteit van producten staan hier voorop. Het ligt naast het Winkelcentrum van IJburg en bevindt zich naast een mooie speeltuin. Je vindt er diversen kramen met onder andere Alfons koffiebonen uit Italië, een jam speciaal zaak met bijzondere chutneys, buikspek van de BBQ in een foodtruck, een Mexicaanse specialist en nog veel meer. Ga erheen om het zelf mee te maken.

Kaddour
07
Adres
Pampuslaan 22,
1087 LA Amsterdam

Slagerij Kaddour

Bij Kaddour hebben ze een breed scala aan ambachtelijk vers vlees en vleeswaren. Het assortiment biedt puur en eerlijk kwaliteitsvlees, zowel lokaal als wereldwijd, waaronder Hollands vlees, exclusief Halal Wagyu, verfijnd John Dee rundvlees uit Australië en smaakvol Maimoa lamsvlees uit Nieuw-Zeeland. Al ruim 35 jaar staat Slagerij Kaddour bekend om uitmuntende kwaliteit, met recepten die generaties lang worden doorgegeven. Ontdek de gezonde, diervriendelijke aanpak en geniet van handgeknoopte rollades, gourmet- en barbecuepakketten, ambachtelijke vleeswaren en het welbekende broodje kip grilworst.

LANDMARKT_TOTAAL-WEB-2048×1363
08
Adres
Schellingwouderdijk 339,
1023 NK Amsterdam

Landmarkt Schellingwoude

Landmarkt Schellingwoude is een grote overdekte supermarkt met producten voornamelijk van lokale ondernemers en kleine telers. De Landmarkt staat bekend om zijn ambachtelijke leveranciers uit de buurt en heeft dan ook een heel breed assortiment aan goede producten. Je kan hier ook vers bereide maaltijden afhalen, of op eten in het restaurant naast de supermarkt. Daar eet je wat de kok schaft, en is het dus elke dag anders. Je kan er ook een koffietje drinken en uitkijken over de mooie Schellingwouderdijk.

millie
327448751_105529872451533_2683322311542512579_n
09
Adres
Bottelarijstraat 1,
1019 VC Amsterdam

Millie Vanillie

Bij Millie Vanillie wordt van s’morgens vroeg tot ‘s avonds laat gebakken. Het assortiment bestaat onder andere uit verse zuurdesembroden en patisserie zoals kardemom buns en custard buns.
Daarnaast wordt er bij Millie Vanillie ook heerlijke koffie geserveerd. De bonen komen ook van  Sprout.

Eten & drinken
mchi_20130210
10
Adres
IJburglaan 1295,
1087 JJ Amsterdam

Restaurant Mchi

Bij restaurant Mchi draait het om proeven, eten en delen. In dit Aziatische restaurant werken ze volgens een shared-dining concept en kun je samen genieten van allerlei verse gerechtjes van hoge kwaliteit. Ze serveren hier heerlijke Aziatische gerechten - van dim sum tot sushi tot gefrituurde tofu. Het restaurant heeft een rustige ambiance en het personeel is zeer gastvrij en behulpzaam.

467683_483607991655776_1494931399_o
11
Adres
Krijn Taconiskade 124,
1087 HV Amsterdam

NAP Amsterdam

NAP Amsterdam is prachtig gelegen aan de haven in IJburg. Ze hebben een heerlijk buitenterras aan het water en prachtig interieur. Op de menukaart staan allerlei verschillende gerechten; van tagliatelle tot hamburgers. Bij NAP Amsterdan kunt hier terecht voor lunch, diner en voor een frisse borrel. Ook hebben ze hebben leuke arrangementen voor het vieren van een verjaardag, jubilieum of promotie. NAP Amsterdam is een heerlijke plek om neer te strijken tijdens een fietstochtje langs het water of om samen met vrienden een drankje te drinken in de zon.

106477833_3230819603637267_5055141329423735816_n
12
Adres
IJburglaan 1489,
1087 KM Amsterdam

Espressofabriek

De Espressofabriek heeft meerdere vestigingen in Amsterdam; bij de Westergas, IJburg en bij Zeeburgereiland. Bij de Espressofabriek kun je de lekkerste koffie, cappuchino, en natuurlijk espresso halen. De uitstraling is hip en industrieel en je kunt zowel binnen als buiten heerlijk zitten. Wat extra leuk is aan deze zaak is dat zij ook een eigen koffiebranderij hebben. In de winkels verkopen zij ook hun eigen producten zodat je ook thuis van een kopje verse koffie kan genieten.

4409833c90ff3131539a50f0e860c079
Vuurtoreneiland_Winter_Annelore_W
13
Adres
Amsterdam

Vuurtoreneiland

Echt iets speciaals plannen? Dan ben je bij Vuurtoren eiland aan het juiste adres. Een uitstapje voor de echte foodie en wijnliefhebber. Stap op de boot bij het Lloyd hotel en laat je meevoeren naar een klein eiland over ‘t Ij. Een hidden gem waar zomers wordt ontvangen in de kas en s’winters dineert in het fort. Verwacht een compleet 5-gangen diner met regionale producten bereid op open vuur. Je kunt er nu ook blijven slapen! Onlangs zijn er 5 slaapkamers gecreëerd.

191686408_2310828075718601_276839848729415013_n
14
Adres
Overdiemerweg 37,
1111 PP Diemen

Paviljoen Puur

Paviljoen puur is een spectaculaire locatie midden in het Diemerpark. Het paviljoen kan afgehuurd worden voor trouwfeesten en zakelijke evenementen, maar je kunt hier ook informeel een hapje komen eten. Het gebouw is speciaal door de ronde vormen geïnspireerd op het nabijgelegen gerestaureerde fort Diemerdam. Door het omliggende groen heerst er een in de omgeving ban het paviljoen een heerlijke kalme sfeer. Leuk is dat ze zowel een binnen- als een buitenkeuken hebben dus als het lekker weer is kan er ook buiten in de zon gekookt worden.

Schermafbeelding 2022-07-01 om 12.42.58
15
Adres
Durgerdammerdijk 53,
1026 CA Amsterdam

Theetante Durgerdam

In het dijkhuis aan het IJsselmeer ligt Theetante Durgerdam. Hier worden de heerlijkste huisgemaakte taarten met een warme kop koffie of thee geserveerd. Op het pittoreske terras met uitzicht over de authentieke huisjes van Durgerdam kan je lekker zitten, maar binnen aan de stamtafel is het ook heel gezellig. De taarten verschillen elke week dus je kan iedere week een nieuw stuk taart proeven. De ideale plek om bij te komen van een lange fietstocht.

home-1800x1000_4
eat-drink-1800x1100_1
16
Adres
Durgerdammerdijk 73,
1026 CB Amsterdam

Restaurant de Mark

Laat je omringen door de gastvrije sociale sfeer van het restaurant De Mark aan het meer. Of dat nu bij de open haard in de eetkamer is, in de wijnkamer of op het terras aan het water. De Mark is een bescheiden maar absoluut een culinaire hotspot, samengesteld door Michelin-sterrenchefs. Chef-kok Koen Marees werkt samen met de gourmet helden Richard van Oostenbrugge en Thomas Groot van de Michelin-sterrenrestaurants 212 en De Juwelier in Amsterdam. Lokale, verse en seizoensgebonden ingrediënten vormen de basis van het menu. Waarbij vertrouwde klassiekers gedurfd en ongecompliceerd zijn en eenvoudige ingrediënten gerechten creëren die gewoon goed smaken. Combineer dit met een fles uit de wijnkelder om je avond compleet te maken.

Baggerbeest
17
Adres
Rudi van Dantzigstraat 1,
1095 PK Amsterdam

Bar Baggerbeest

Een plek om wat te drinken, een hapje te eten, nieuwe mensen te ontmoeten en te verbinden. Stil je honger met overheerlijke steenoven pizza's. Lust je dorst met een van de  (biologische) wijnen, eerlijke koffie of (Amsterdams) bier. Bar Baggerbeest is onderdeel van Broedplaats Baggerbeest hét culturele ankerpunt van de stadswijk-in-wording: de Sluisbuurt. Club: Op vrijdag, zaterdag en zondag na 21.00 uur is er ruimte voor een culturele programmering.

joki
18
Adres
Cruquiusweg 89F,
1019 AG Amsterdam

Jōki

De naam ‘JōKi’ (wat Stoom betekent in het Japans) verwijst naar het ‘Gemaal de Cruquius’, de grootste stoommachine ter wereld.
De koffie wordt hier gemaakt met de bonen van Stooker, dat zit dus wel goed.

272793218_3188322951397443_5440626548767686297_n
19
Adres
Flevopark 13a,
1095 KE Amsterdam

Distilleerderij ’t nieuwe diep

Distilleerderij ’t nieuwe diep bevindt zich op een mooie rustige plek in het Flevopark. Bij mooi weer kan je hier heerlijk op het terras bij de vijver zitten en hoor je de geluiden van eenden en andere dieren om je heen. Ze maken een 100-tal producten waaronder verschillende jenevers, likeuren en bitters, zoveel mogelijk gemaakt van biologische grondstoffen. Neem bijvoorbeeld’ ‘het groene juffertje in de plas’ of een citroenjenever. Naast sterke dranken serveren ze ook andere dranken en verschillende borrelhapjes.

 

20
Adres
Cruquiusweg 83D,
1019 AT Amsterdam

Krux brouwwerf

Vroeger was Cruquiuseiland één grote werf. Nu is er alleen nog een brouwwerf over. Eentje waar bier wordt gebrouwen en waar je ook kan komen drinken. Volgens zeggen de kleinste brouwerij van Amsterdam. Dit heeft twee voordelen; door de kleine batches kunnen ze makkelijk experimenteren met de recepten én is het bier altijd super vers!

Schermafbeelding 2022-07-01 om 12.46.22
21
Adres
Javaplein 23,
1095 CJ Amsterdam

Restaurant Wilde Zwijnen

Bij restaurant Wilde Zwijnen wordt gekookt volgens de moderne Nederlandse keuken. Zelf zeggen ze daar over; 'Een Modern Nederlandse keuken betekent voor ons: ingrediënten van Nederlandse bodem, hoe meer de ingrediënten uit de buurt, hoe beter. We koken seizoensgebonden, ook vegetarisch en gebruiken zoveel als mogelijk duurzame producten.' Wilde Zwijnen serveert een vast menu bestaande uit drie, vier of vijf gangen. Op maandag en dinsdag kan er a la carte gegeten worden.

image
22
Adres
Javaplein 25,
1095 HR Amsterdam

Bar bachrach

Bar Bachrach is zowel een bar als een restaurant. Je vindt hier modern midden-Oosters eten, denk bijvoorbeeld aan halloumi met biet of een Jeruzalem bagel. Chefkok Yaniv stelt met zorg de gerechten samen met verschillende verse seizoensgebonden producten. Je kunt hier genieten van een goed glas wijn en kleine gerechtjes of lekker lang tafelen met een diner volgens het vooraf samengestelde chef's menu. Binnen hangt een heerlijke warme sfeer door houten interieur en de mix van vintage kunt en moderne elementen.

23
Adres
Javastraat 149,
1094 HE Amsterdam

De Jonge Admiraal

Aan het einde van de Javastraat, tegen het Javaplein aan vind je De Jonge Admiraal. Ze serveren hier heerlijke koffies, goede broodjes en heerlijke taart van Majesteit Taart, een taartenwinkel verderop in de Javastraat. De Jonge Admiraal is gezellig en Laptopfree, iedereen die er zit is gezellig aan het kletsen of spelletjes aan het spelen en dat zorgt voor een goede sfeer. ’s Avonds kan je er ook lekkere biertjes uit de buurt drinken en er zijn vaak leuke evenementen als pubquizzes, Ajax-wedstrijden of live optredens.

335762138_934316891080636_1785099370396513561_n
24
Adres
Helmholtzstraat 37,
1098 LD Amsterdam

Badeta

Badeta begint langzaamaan naam te maken in de stad met ondertussen twee locaties. Het begon in De Pijp en heeft nu ook een vestiging in de Watergraafsmeer. De twee oprichters hebben de missie om in elk stadsdeel een locatie te openen.  Deze koffiebranderij verkoopt heerlijke koffie met hun eigen melanges en diverse huisgemaakte lekkernijen. Duurzame koffie staat centraal, afkomstig van kleinschalige boeren met milieuvriendelijke boerderijen en goede arbeidsomstandigheden.

332004675_204572422165776_4113914790198879540_n
379365114_800101005188183_1929561919302743061_n
25
Adres
Newtonstraat 101,
1098 HC Amsterdam

Bakkerij Mas

Eigenaresse Suzanne Corbeek was ooit filmproducente, maar haar carrière nam een onverwachte wending door de komst van Covid-19. Ze ontdekte haar passie voor bakken en raakte al snel geïnteresseerd in het maken van haar eigen desem. De vraag groeide gestaag, waarbij de keuken thuis al snel transformeerde tot een kleine bakkerij, waar het hele gezin meehielp. In 2022 opende Suzanne Bakkerij Mas, in een hoekpand aan de Newtonstraat. Hier verkoopt ze niet alleen haar heerlijke biologische desembrood, maar bied ze ook een scala aan desemtosti's, focaccia's, koffie, thee en andere drankjes aan als lunchopties.

Tien jaar Shortlist Amsterdam, alle adressen.

Tien jaar Shortlist Amsterdam, alle adressen.

Buurtgids: de Jordaan rondom de Bloemstraat

Buurtgids: de Jordaan rondom de Bloemstraat

Prinseneiland buurt

Prinseneiland buurt

Onlangs bekeken
Bekijk het overzicht

Deze site maakt gebruik van cookies.

Voor welke cookies geef je akkoord?