Riant wonen in een elegant gemeubileerd (familie) huis in het populaire Oud Zuid. Dit drielaags benedenhuis met 242 m2 leefruimte heeft vier slaapkamers, twee badkamers, een balkon en heerlijke tuin. Het is gunstig ingedeeld en de charme en sfeer van het huis zorgen ervoor dat het een ideale plek is om thuis te komen.

Een rondleiding

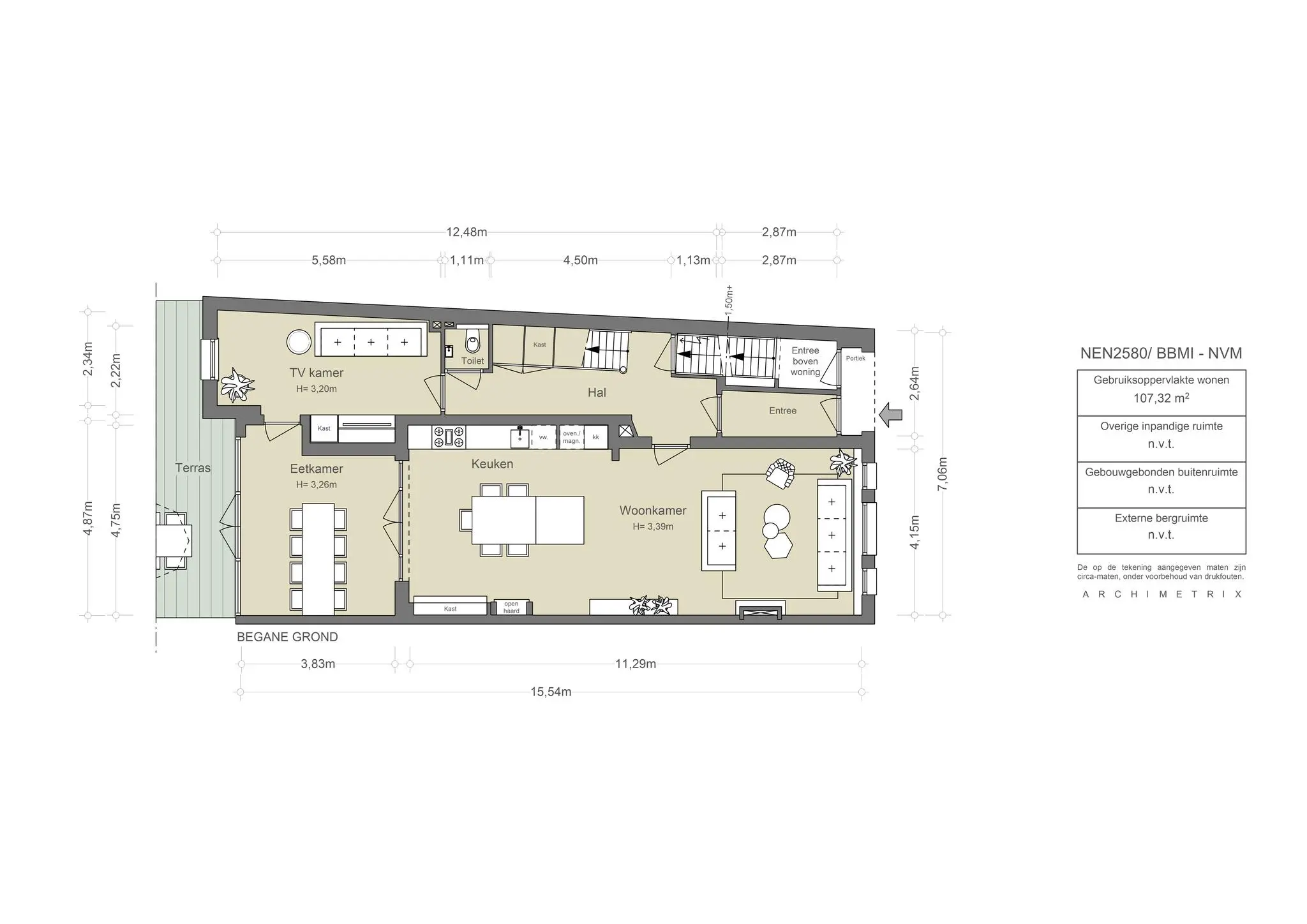
Begane grond
Bij binnenkomst spreken de hoge plafonds, ruimte en het licht gelijk tot de verbeelding. Op deze verdieping bevindt zich het ruime leefgedeelte met open-keuken, deze smaakvolle ruimte vormt het hart van het huis, waar wonen en koken samenkomen. De open keuken is voorzien van geïntegreerde apparatuur, en heeft een aan het eiland een gezellige zithoek. De living aan de voorzijde baadt in daglicht dankzij de grote ramen en biedt een unieke en vrije doorkijk op de Frans van Mierisstraat. De zichtlijnen, het kleurpalet en de natuurlijke materialen zorgen voor een gebalanceerde woonbeleving met aandacht voor detail en harmonie.

Middels de glazen deuren is de eetkamer te bereiken, deze vormt een natuurlijk verlengstuk van de keuken en de tuin. De ruimte is verbonden met de keuken met gashaard en nodigt uit tot lange tafelmomenten, met zicht op het groen. De diepe, fraai aangelegde tuin biedt een sfeervol decor voor buitenleven, met meerdere zitplekken en genoeg speelruimte voor kinderen. Middels de eetkamer en de hal is de afgesloten televisiekamer te bereiken. Op de hal bevindt zich een separaat toilet.

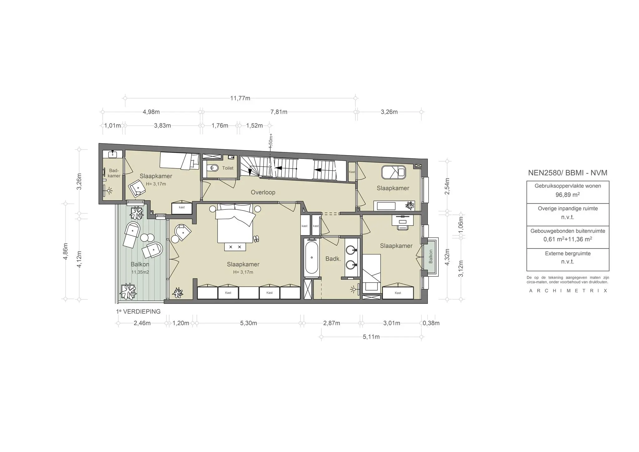
Eerste verdieping
Op deze slaapverdieping bevinden zich vier ruime slaapkamers en twee badkamers. De masterbedroom bevindt zich aan de tuinkant, een bijzonder ruime slaapkamer met inbouwkasten, warme materialen, hoge plafonds en directe toegang tot het balkon. Verder bevinden zich op deze verdieping nog drie kinderslaapkamers en twee badkamers. De grote badkamer is voorzien van een dubbele wastafel, ligbad en douche. De kleine badkamer van een douche en wastafel. Op de hal bevindt zich een separaat toilet.

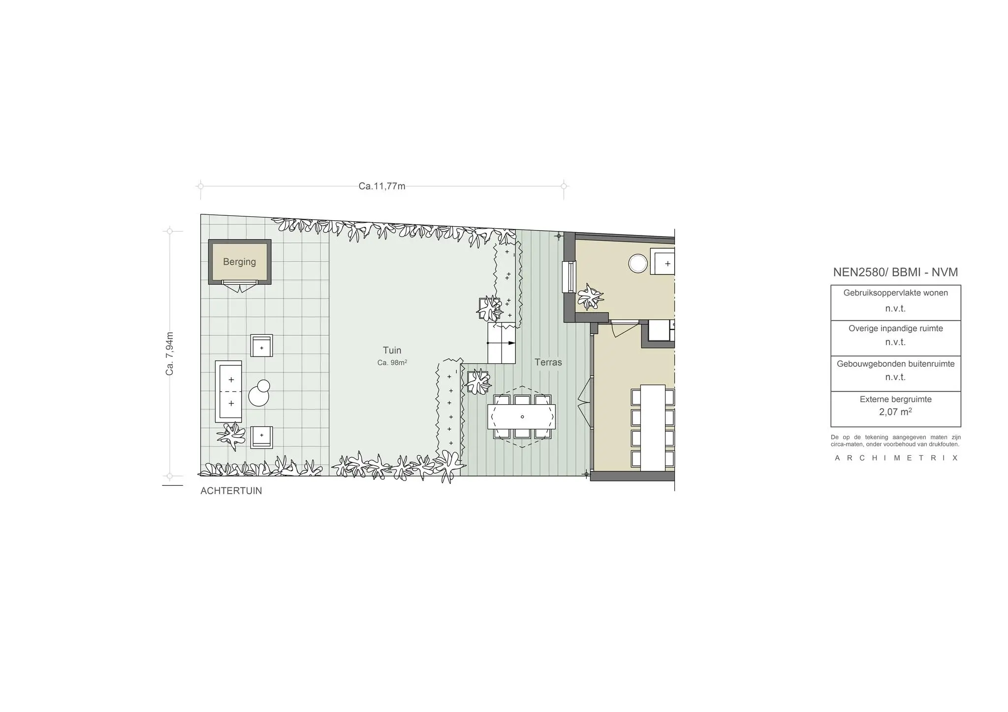
Souterrain
Het ruime souterrain van maar liefst 38 m2 wordt gebruikt als wasruimte en bergruimte.

De omgeving en bereikbaarheid
Deze populaire buurt staat bekend om de levendige mix van ambachtelijke buurtwinkels, exclusieve boetieks, gezellige cafés en sfeervolle restaurants. Het Vondelpark en de Cornelis Schuytstraat liggen op loopafstand en het is een van de mooiste en meest geliefde locaties van Amsterdam. Ook (internationale) scholen zijn binnen handbereik.

Ringweg A-10 (S100 en S108) is binnen enkele minuten bereikbaar. Op loopafstand is de metro en tramlijnen 2, 16 en buslijnen 145, 170, 172, 174 en 272 te bereiken.

De parkeergelegenheid
Er is een mogelijkheid om een parkeervergunning aan te vragen.

De bijzonderheden
- Beschikbaar: per 15 juli;
- Huurprijs: € 10.000,- excl. per maand;
- Huurperiode: Model C, 12 maanden;
- Borg: 2 maanden huur;
- Gemeubileerd.

Kenmerken
Johannes Vermeerstraat 73H, Amsterdam
Huurprijs
  • € 10.000 per maand
Beschikbaarheid
  • Per datum
Vertrekken
  • 7 kamers
  • 4 slaapkamers
  • 2 badkamers
Onderhoud
  • Intern: Goed
  • Extern: Goed
Oppervlakten & Inhoud
  • Woonoppervlakte: 204 m²
  • Overige inpandige ruimte: 38 m²
  • Gebouwgebonden buitenruimte: 12 m²
  • Externe bergruimte: 2 m²
  • Tuinoppervlakte: 98 m²
Ligging
  • In woonwijk
Parkeren
  • Betaald parkeren
  • Openbaar parkeren
  • Parkeervergunningen
Bestemming
  • Woonruimte
Buitenruimte
  • Achtertuin
  • Balkon
Duurzaamheid
  • Energielabel A
Soort
  • Appartement
  • Dubbel-benedenhuis
Bijzonderheden
  • Gemeubileerd
Plattegrond
Johannes Vermeerstraat 73H, Amsterdam
AM106185-2008118-Johannes-Vermeerstraat-73H,-Amsterdam-228213444
AM106185-2008118-Johannes-Vermeerstraat-73H,-Amsterdam-228213484
AM106185-2008118-Johannes-Vermeerstraat-73H,-Amsterdam-228213486
AM106185-2008118-Johannes-Vermeerstraat-73H,-Amsterdam-228213488
Documenten
Johannes Vermeerstraat 73H, Amsterdam
Locatie
Johannes Vermeerstraat 73H, Amsterdam
Eten & drinken
Schermafbeelding 2022-06-20 om 13.47.57
Schermafbeelding 2022-06-20 om 13.49.19
01
Adres
Johannes Vermeerstraat 52,
1071 DT Amsterdam

Café Loetje

In 1977 werd café Loetje opgericht als biljartcafé door Ludwig 'Loetje' Klinkhamer, maar het duurde niet lang voor men het biljart inruilde voor de ossenhaasbiefstuk die werd geserveerd. Meer dan veertig jaar later is Loetje een gigantische keten en is het oorspronkelijke 'Café' een begrip in Amsterdam. De smakelijke biefstuk wordt geserveerd met huisgemaakte frietjes en zwemt in verse jus - om je vingers bij af te likken!

image04-1
02
Adres
Ruysdaelstraat 25,
1071 WZ Amsterdam

Breadwinner Too

Breadwinner Bagels werd opgericht door Jon Fairclough, die zijn liefde voor ambachtelijk bakken vertaalde naar handgerolde zuurdesem-bagels met een eigen signatuur. Wat begon in de Jordaan groeide uit tot een geliefd concept met meerdere locaties, waaronder deze vestiging in De Pijp. In de keuken draait het om natuurlijke ingrediënten en dagelijks versgebakken bagels, gecombineerd met creatieve en klassieke toppings.

Cafe-Wildschut-Amsterdam-Zuid-terras-1-uai-1250×1000
Cafe-Wildschut-Amsterdam-ontbijt-lunch-brunch-diner-borrel-2-uai-1250×1000
03
Adres
Roelof Hartplein 1,
1071 TR Amsterdam

Café wildschut

Café wildschut zit aan het Roelof Hartplein en is een ideale uitvalbasis om een drankje te doen. Vooral 's zomers ben je hier aan het goede adres, het terras heeft namelijk van 's ochtends vroeg tot 's avonds zon. Omdat het café aan een plein zit is er altijd reuring. Het café is gevestigd in een monumentaal pand van de Amsterdamse school en heeft kosmopolitisch interieur met jaren '20 elementen. Er komt een gemêleerd publiek en is inmiddels al decennia een begrip onder Amsterdammers. Je kan hier ook terecht voor ontbijt, lunch en diner.

Bisous-001-24-05-by-RVDA-DSC_0270
04
Adres
Albert Cuypstraat 31,
1072 LZ Amsterdam

Bisous

Een 'over de top interieur' van Jean-Philippe Demeyer (Architectural Digest AD100 architect) gecombineerd met een uitstekende keuken waarvan ze zelf zeggen 'A sumptuous French – Zeeland cuisine'.  Een goed voorbeeld hiervan zijn de Zeelandse kokkels in een room witte wijnsaus afgemaakt met Pasris en peterselie. Bisou!

foto-oesters
05
Adres
Van Baerlestraat 158,
1071 BG Amsterdam

Brasserie van Baerle

De Franse brasserie van Baerle is niet meer weg te denken uit het Amsterdamse stadsbeeld. Met een levensloop van al 41 jaar in Amsterdam-Zuid, is het een vertrouwde plek. De compacte lunch- en dinerkaart bestaat uit klassieke gerechten uit de overwegend Franse brasserie keuken én vernieuwende eigentijdse gerechten.  In het seizoen zijn er altijd oesters, asperges en kreeft. Naast à la carte is er zowel voor lunch als diner een wisselend 3-gangen keuzemenu dat sinds 2010 jaarlijks door Michelin met een ‘BIB Gourmand’  onderscheiden wordt. Grootspraak, de restaurantgids voor wijnliefhebbers, rangschikt Brasserie van Baerle al jaren tot de beste ‘wijnrestaurants’ van Amsterdam.

downloadgram.org_610617586_18420032773136397_3224401437205912253_n
06
Adres
Van Baerlestraat 51,
1071 BJ Amsterdam

Esh Pitabar

Esh Pitabar is het nieuwe hoofdstuk van broers Ilan en Joël Benamara, die eerder sinds 2015 Café Martinot runden tot het pand in 2022 noodgedwongen moest sluiten vanwege funderingsherstel. Na een succesvolle crowdfunding besloten ze hun zaak opnieuw op te bouwen, dit keer met meer ruimte voor hun Israëlische roots en inspiratie uit Tel Aviv. Chef Ilan Benamara staat zelf in de keuken en bewaakt een simpele maar duidelijke regel: alles is huisgemaakt, van de hummus tot het pitabrood. Op de kaart vind je streetfood zoals pita falafel, hummus met warme kikkererwten en verse pizza’s, precies zoals je ze in Israël ook zou eten.

53700300_311590863045393_1981039547722498048_n
Schermafbeelding 2022-06-20 om 13.29.38
07
Adres
Albert Cuypstraat 20H,
1072 CT Amsterdam

Sababa

De eigenaar van Sababa wilde goede, perfecte falafel. Ze zijn verschillende combinaties gaan uitproberen, producten gaan proeven en zo ontstond hun perfecte falafel broodje. Geïnspireerd op de Israëlische keuken, heerlijk voor een snelle hap of om uitgebreid te eten met een biertje erbij.

339816079_240302538447892_8075740380035601622_n
08
Adres
Van Baerlestraat 47-49,
1071 AP Amsterdam

L'Entrecôte et les Dames

L’Entrecôte et les Dames omarmt het concept van een formule-restaurant, zoals de Fransen het noemen. Binnen een sfeervol ingerichte Franse brasserie staat de entrecôte centraal, altijd met een lichte 'bleu' bereiding van het Maas-Rijn-IJsel rund. Dit wordt geserveerd met frietjes en een verfrissende salade. Als je hierna nog trek hebt krijg je nog een keer een portie opgediend. Liever geen vlees? Als alternatief serveren zij in roomboter gebakken sliptong met ravigottesaus. Zelfde formule en zelfde prijs als het entrecôte menu.

Schermafbeelding 2022-10-05 om 14.40.44
09
Adres
Saenredamstraat 37,
1072 CB Amsterdam

La Dilettante

Eigenaren Olivier von Grumbkow en Hans Vervoort openden de deuren van La Dilettante. La Dilettante is open voor lunch en wijn. Bij de natuurwijnen worden hapjes geserveerd als quiches, tarte tatins, patés en rillettes. Een van die natuurwijnen die de mannen schenken heet La dilettante. Dat is niet de enige verklaring voor de gekozen naam. Het woord heeft verschillende betekenissen. Een daarvan is: iemand die iets doet uit liefhebberij.

437922501_1117156876006867_728206199129953616_n
10
Adres
Albert Cuypstraat 58-60,
1072 CV Amsterdam

Auberge Amsterdam

De eigenaren van onder andere 212 (**), de Juwelier (*) en Bistro de la Mer (*) waren zelf een fervent bezoeker van voorheen Auberge jean & Marie. Nu zetten zij de Auberge traditie voort op deze zelfde plek. Voor 38 euro eet je hier een uitstekend 3 gangen menu.

335969_460774987275260_2002095946_o
11
Adres
Ferdinand Bolstraat 74,
1072 LM Amsterdam

Toko Ramee

Midden op de Ferdinandbolstraat vind je Toko Ramee. Zoals al vermeld staat op de buitenkant van de toko is er een scala aan authentieke Indonesische en Aziatische producten. Het is een toko die aansluit op het familiare gevoel van de traditionele Indische en Chinees-Indische keuken, waar er voor iedereen iets te vinden valt. De toko is gevuld met geïmporteerde hapjes en drankjes en ook met kookgerei om zelf dingen thuis te maken. Van een complete rijsttafel tot huisgemaakt spekkoek: Toko Ramee neemt je maar al te graag mee in het proces om een heerlijke maaltijd samen te stellen. Mocht dat niet genoeg reden zijn om naar de toko toe te komen, vrees niet – toko Ramee heeft ook een catering service paraat!

IMG_6482-HDR-2048×2048
Sora_02s
12
Adres
Ceintuurbaan 49,
1072 ET Amsterdam

Sora Sapporo

Sora Sapporo Ramen serveert authentieke Japanse ramen en andere Aziatische gerechten. Het restaurant heeft twee vestigingen in Amsterdam, waarvan één is geleden aan de Ceintuurbaan in de Pijp. Het restaurant staat bekend om zijn smaakvolle noedels. Deze noedels worden geïmporteerd uit Japan, waar ze gespecialiseerd zijn in het bereiden van dit product. Ook de bouillon, die deel uit maakt van de miso soep en de tonkotsu shoyu ramen is het proberen waard. Voor degenen die liever thuis van een heerlijke kom noedels genieten: Sora Sapporo Ramen bezorgt ook aan huis.

344794704_172401005427383_4729904843469609369_n
347634872_1412020886212625_495521124589363058_n
13
Adres
Frans Halsstraat 28,
1072 BS Amsterdam

Café Caron

Café Caron werd geboren uit de inspiratie van Alain en Roeltje thuis. Hun zonen Tom en David wilden een restaurant beginnen dat aanvoelde alsof je aan hun eigen eettafel zat, waar top gerechten zonder poespas in een huiselijke setting werden geserveerd. De menukaart is compact en wisselt naargelang het aanbod van het seizoen. De wijnkaart is stevig geworteld in Frankrijk. Inmiddels is het familiebedrijf uitgegroeid tot 4 zaken.

Sjefietshe-Amsterdam-Restaurant-01
Sjefietshe-Amsterdam-Restaurant-06-750×1000
14
Adres
Van Ostadestraat 1,
1072 SL Amsterdam

Sjefietshé

Sjefietshe is een cevicheria in het midden van de Pijp, met een mooi terras met genoeg plek. Voor eenieder die niet bekend is met het heerlijke Zuid-Amerikaanse gerecht: het klassieke Peruviaanse voorgerecht bestaat uit rauwe (wit) vis die ‘gegaard’ is in limoensap. Het gerecht wordt geserveerd met chili, koriander, rode ui en een oceaan aan limoen. Een overdonderende smaaksensatie en daarom ook moeilijk om goed te evenaren. Sjefietshe doet een goede poging en maakt met een Amsterdamse flair een goede eigen variant. Naast de ceviches met verschillende soorten vis is er ook de optie om van lekkere bites te genieten, waaronder de Sjefietshe special: de door hun uitgevonden ‘hotdoctopus’. Genoeg redenen om hier dus langs te gaan en voor jezelf te besluiten of de zaak erin slaagt je mee te nemen naar hogere Zuid-Amerikaanse sferen!

IMG_2512
photoshoot_for_roum_cafe_babaganoush_2880x2304
15
Adres
Eerste Jan Steenstraat 85H,
1072 NE Amsterdam

Roum Café

Roum Café brengt Midden-Oosterse en Oost-Mediterrane smaken naar De Pijp met een focus op verse ingrediënten, rijke kruiden en traditionele bereidingswijzen. De keuken combineert familierituelen en huisgemaakte recepten met een eigentijdse presentatie die de complexe smaken van de regio goed tot hun recht laat komen. Hoewel er geen publieke chef-naam breed geprofileerd wordt, is het team gepassioneerd over authentieke, hartige gerechten die je doen denken aan een diner bij familie aan de Middellandse Zee.

Schermafbeelding 2022-09-28 om 17.27.18
Schermafbeelding 2022-09-28 om 17.26.37
16
Adres
Ceintuurbaan 238,
1072 GE Amsterdam

Tapi 'n Bowls

Bij Tapi 'n Bowls bieden ze Braziliaanse gerechten met een moderne jonge twist. De specialiteiten zijn Tapiocas en exotische smoothie bowls. De smoothie bowls worden geserveerd met meer dan 200 verschillende soorten vruchten met verschillende kleuren en smaken. De tapioca is een gerecht van cassave zetmeel, wat erg populair is in het noorden van Brazilië. De Tapioca heeft een knapperige buitenkant en is zacht van binnen. Daarbij is het ook erg gezond omdat het geen geen gluten, vetten, lactose of suiker bevat.

 

Schermafbeelding 2022-06-20 om 14.04.47
17
Adres
Ferdinand Bolstraat 37,
1072 LB Amsterdam

Onigiri YA!

De meeste mensen die door de Pijp struinen voor Japans komen niet veel verder dan het denken aan sushi en bubble tea (ook al komt dit oorspronkelijk uit Taiwan). Bij Onigri Ya staat dan ook specifiek op de deur vermeld dat deze items hier niet te koop zijn. In plaats daarvan is Onigri Ya een authentiek Japans restaurant en daarnaast ook een kruideniers- en delicatessenwinkel. Zoals verwacht zijn de Onigri’s een specialiteit: gekruide Japanse rijstballen in verschillende vormen, bedekt met nori en met vullingen van vis tot fruit. Voor eenieder die wel eens naar animé kijkt, Onigri Ya brengt het voedsel wat eenieder zo doet watertanden van het beeldscherm naar een lief klein winkeltje in de Pijp. Simpelweg een must-go.

Boodschappen
86970959_3017388671613224_8101255914595549184_n
18
Adres
Van Baerlestraat 67,
1071 AR Amsterdam

Renzo’s Delicatessen

Bij Renzo’s Delicatessen draait het om huisgemaakte, culinaire en Italiaanse producten. Alle gerechten worden hier dagvers gemaakt. Naast Renzo’s klassiekers is er ook een variërend menu. Voor de een is Renzo’s een buurtwinkel en voor de ander een plek om te lunchen of dineren. Je kan er ook terecht voor boodschappen, een Italiaanse meeneem menu of  een broodje. En dan vooral het broodje Dino: rundergehakt of warme kippendijen met de beruchte dinosaus, zonnemayo, rucola en zongedroogde tomaatjes.

downloadgram.org_608197557_17886555126421954_6843272127401052487_n
19
Adres
Saenredamstraat 32,
1072 CH Amsterdam

Layers Bakery

Layers is een bakery en deli in Amsterdam, opgericht door de Franse patissier Alexandre Scour, die zijn vakmanschap vertaalt naar een plek waar alles laag voor laag wordt opgebouwd. In de ochtenden draait boven het open pastry lab op volle toeren met boterige croissants, viennoiserie en patisserie die volledig in huis worden gemaakt. In de middag verplaatst de aandacht zich naar beneden, waar de deli verse sandwiches serveert met dezelfde toewijding aan kwaliteit en detail. Het concept draait om ambacht zonder opsmuk, met eten dat precies en met aandacht is bereid.

Interieur
277535791_5208467215858783_4051211327754731278_n
274469633_5110110329027806_2507568570523403675_n
20
Adres
Van Baerlestraat 39-43,
1071 AP Amsterdam

Cosentino

Cosentino Group is een wereldwijd bekend Spaans familiebedrijf dat hoogwaardige innovatieve oppervlakken produceert en distribueert voor de wereld van design en architectuur. Aan de Van Baerlestraat bevindt zich hun inspiratiecentrum waar men kleuren, materialen en toepassingen voor architectuur en designprojecten met elkaar kan vergelijken. Cosentino City biedt een uitgebreid inspiratieplatform waar architecten en ontwerpers elkaar kunnen ontmoeten en kunnen werken.

Pasted Graphic
21
Adres
Gerard Doustraat 54,
1072 VT Amsterdam

Duikelman

In het hart van De Pijp vind je Duikelman, al sinds 1940 dé kookwinkel van Amsterdam. Van espressomachines tot Japanse messen – elke kok, professioneel of thuis, raakt hier geïnspireerd. De speciaalzaken op de Ferdinand Bolstraat en Gerard Doustraat vormen samen een culinair walhalla. Hier proef je niet alleen kwaliteit, maar ook vakmanschap. Een must voor wie koken als ambacht ziet.

Scherm­afbeelding 2025-07-23 om 14.24.00
Scherm­afbeelding 2025-07-23 om 14.23.36
22
Adres
Eerste Jan van der Heijdenstraat 103B,
1072 TN Amsterdam

Juki Amsterdam

JUKI Amsterdam is een ode aan design met karakter. In de showroom in De Pijp vind je iconische vintage meubels, lampen en objecten – elk met een verhaal.Van Bauhaus tot Memphis, met liefde geselecteerd en klaar voor een tweede leven.  JUKI Amsterdam biedt haar collectie aan via de webshop, met elke donderdag om 18:00 uur (CET) een nieuwe drop. De showroom in De Pijp is open op afspraak én elke zaterdag van 12:00 tot 18:00.

Kunst & cultuur
c153afe5-3697-4974-a057-290d46de1ffb
23
Adres
Museumplein 6,
1071 DJ Amsterdam

Van Goghmuseum

In het Van Goghmuseum aan het museumplein vind je de mooiste werken van bekend Nederlands schilder Vincent van Gogh. Het museum heeft een vaste collectie met de meesterwerken van Van Gogh en een wisselende expositie waar werken worden getoond van zowel tijdsgenoten als hedendaagse kunstenaars. In het museum zijn tentoonstellingen geweest van onder andere David Hockney en Maurice Denis. Naast het tonen van kunst voert het Van Goghmuseum ook onderzoek uit over Vincent van Gogh en zijn tijd. Op de website van het museum kun je veel informatie vinden over de uitgevoerde onderzoeksprojecten en restauraties. Het museum is erg populair, met name onder de internationale toeristen, om teleurstelling en lange rijen te voorkomen is het handig om van te voren online al tickets te bestellen.

Exterieur-Concertgebouw-Kerst-Winter-crop-1
grotezaal-eduarduslee
24
Adres
Concertgebouwplein 10,
1071 LN Amsterdam

Het Concertgebouw

Het Concertgebouw is één van de monumentale panden aan het Amsterdamse Museumplein. Het gebouw stamt uit 1888 en is voltooid volgens de stijl van het Weens classicisme; als heeft het ook kenmerken uit de neorenaissance. Het gebouw is ontworpen voor klassieke concerten maar heeft in de jaren 60 en 70 ook een tijd dienst gedaan als poppodium. Bekende sterren die hier hebben opgetreden zijn onder andere Led Zappelin en Aretha Franklin. Tegenwoordig vinden er jaarlijks bijna duizend concerten en andere culturele activiteiten in het Concertgebouw plaats. Voor degenen met een kleiner budget zijn er ook gratis lunchconcerten. Voor een bezoek aan een lunchconcert kun je het beste eerst even op de website kijken. Vaak kun je daar van de voren gratis kaartjes reserveren.

Ontmoet interieur ontwerpster Anita Fraser. Na een carrière als procesadvocaat volgde ze een opleiding interieurontwerp aan de University of Arts London. Samen met ontwerpers en architecten verfijnt ze woon- en werkruimtes.

Ontmoet interieur ontwerpster Anita Fraser. Na een carrière als procesadvocaat volgde ze een opleiding interieurontwerp aan de University of Arts London. Samen met ontwerpers en architecten verfijnt ze woon- en werkruimtes.

Video: wonen in een oude Telefooncentrale in Amsterdam West

Video: wonen in een oude Telefooncentrale in Amsterdam West

Uitgelicht; Een voormalige drukkerij in de Pijp

Uitgelicht; Een voormalige drukkerij in de Pijp

Onlangs bekeken
Bekijk het overzicht

Deze site maakt gebruik van cookies.

Voor welke cookies geef je akkoord?