Heel prettig benedenhuis aan de sunny side. Heel licht benedenhuis met zuid georiënteerde tuin en achterzijde. Op dat gedeelte van de Johannes Verhulststraat dat tussen de Banstraat en de Cornelis Schuytstraat en het meest gewilde deel is.
 
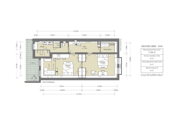
Meer dan 240 m² woongenot die zijn verdeeld over 3 heel prettige en courant ingedeelde woonlagen, met o.a. een volwaardige onderverdieping.
 
Een woning met charme en grandeur, waar de huidige eigenaren met gevoel voor detail en sfeer het huis hebben gemoderniseerd en hun keuzes hebben gemaakt. De uitkomst is niet over de top, maar met de luxe van mooie details en materialen.
 
Vanuit de bouw is het huis rijk in detaillering en ruime maatvoering. De ruime maatvoering en grote raampartijen maken dat het huis heerlijk licht is. De diepe tuin op het zuiden maakt ook dat er veel zon is, al in het vroege voorjaar en late najaar.
 
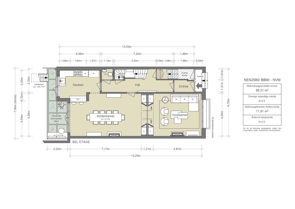
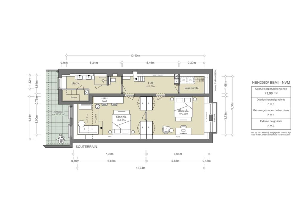
Naast de ruime kamer en suite met een half open keuken, zijn er vier riante slaapkamers en een kleinere, 2 luxe en complete badkamers, een wasruimte en een walk-in.
 
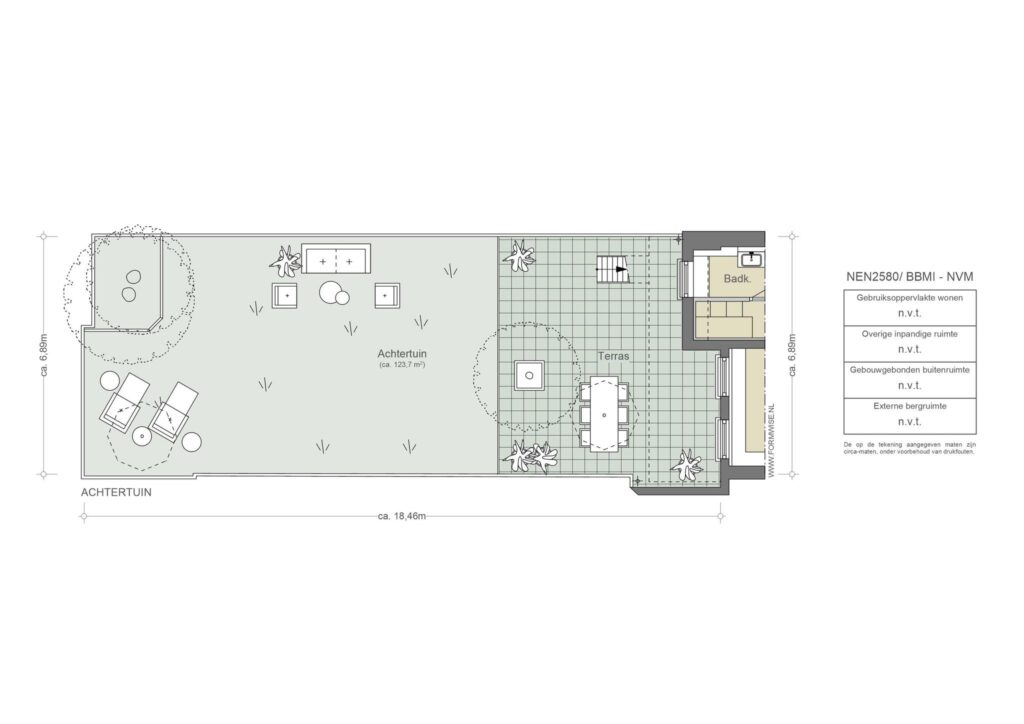
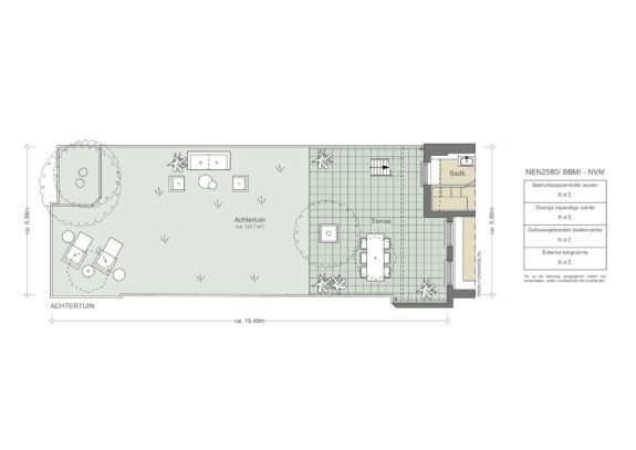
De tuin heeft een grootte van bijna 130 m² en heeft een diepte van meer dan 18 meter. Daarnaast is het omgeven door veel groen en biedt daarom veel privacy.
 
De huidige eigenaren hebben hier veel liefde in gestopt en ervaren; zij zullen de buurt en de tuin ongelofelijk veel gaan missen. Doch een nieuwe uitdaging heeft hun hart gestolen en hen doen kiezen dit huis te verkopen. Het huis is nu op zoek naar een nieuwe bewoner die ook de liefde voor het huis zal voelen.
 
Het appartement maakt deel uit van een fraai herenhuis dat rond 1910 is gebouwd en uit 2 appartementen bestaat. De Vereniging van Eigenaren heeft slechts 2 leden en het is goed onderhouden. Het pand is in 2019/2020 voorzien van een nieuwe fundering en kelderbak.
 
Omgeving:
Gelegen in één van de mooiste en rustige delen van de Concertgebouwbuurt, tussen de Cornelis Schuytstraat en de Banstraat. Strategisch gelegen ten opzichte van vele voorzieningen waaronder scholen, winkels en musea op loopafstand.
 
Nabij het Vondelpark, winkels en restaurants in de Cornelis Schuytstraat en de Boerenmarkt op zaterdag op het Jacob Obrechtplein. Het Museumplein, de P.C. Hooftstraat en de Beethovenstraat bevinden zich op 5 minuten lopen.
 
Vlakbij bevindt zich de oudste Albert Heijn van de stad, net als een overweldigend aanbod van mooie middenstand, toprestaurants en leuke cafés.
 
Ook de Amstelveenseweg en de Zeilstraat met tal van winkels en eetgelegenheden zijn vlakbij.
 
Uitstekend bereikbaar met het openbaar vervoer (tramlijn 2 en de bussen 347, 357 en 397 en het Haarlemmermeerstation) en per auto via afslag S107 of de S108.
 
Bijzonderheden:

  • Gebruiksoppervlakte wonen ca. 241 m²
  • Tuin gelegen op het zuiden van 124 m² met toegang tot veranda van 12 m²
  • Loggia op de eerste verdieping van 6 m²
  • Gelegen op eigen grond
  • Servicekosten VvE € xxx-xx per maand
  • Achterzijde geschilderd in 2021
  • Geheel dubbel glas
  • Deze informatie is door ons met de nodige zorgvuldigheid samengesteld. Onzerzijds wordt echter geen enkele aansprakelijkheid aanvaard voor enige onvolledigheid, onjuistheid of anderszins, dan wel de gevolgen daarvan. Alle opgegeven maten en oppervlakten zijn slechts indicatief.
  • De Meetinstructie is gebaseerd op de NEN2580. De Meetinstructie is bedoeld om een meer eenduidige manier van meten toe te passen voor het geven van een indicatie van de gebruiksoppervlakte. De Meetinstructie sluit verschillen in meetuitkomsten niet volledig uit, door bijvoorbeeld interpretatieverschillen, afrondingen of beperkingen bij het uitvoeren van de meting.

 
Kijk voor meer informatie, brochure en plattegrond op onze site!
 

Kenmerken
Johannes Verhulststraat 91huis, Amsterdam
Vraagprijs
  • € 3.480.000 k.k.
Beschikbaarheid
  • In overleg
Vertrekken
  • 7 kamers
  • 5 slaapkamers
  • 2 badkamers
Onderhoud
  • Intern: Goed tot uitstekend
  • Extern: Goed tot uitstekend
Oppervlakten & Inhoud
  • Woonoppervlakte: 241 m²
  • Tuinoppervlakte: 124 m²
Bouwjaar
  • 1901
Installaties
  • Alarminstallatie
  • Natuurlijke ventilatie
Ligging
  • Aan rustige weg
  • In woonwijk
Parkeren
  • Betaald parkeren
  • Parkeervergunningen
Type verwarming
  • CV Ketel
  • Open haard
  • Vloerverwarming gedeeltelijk
Type warmwater
  • CV Ketel
Bestemming
  • Woonruimte
Eigendomssoort
  • Volle eigendom
Buitenruimte
  • Achtertuin
  • Balkon
  • Loggia
Kadastraal
  • Gemeente: Amsterdam
  • Sectie: U
  • Nummer: 9072
Duurzaamheid
  • Dubbel glas
  • Energielabel B
Soort
  • Appartement
  • Benedenwoning
Overige kenmerken
  • Tuin op het zuiden
  • Dubbel glas
  • Eigen grond
Documenten
Johannes Verhulststraat 91huis, Amsterdam
Locatie
Johannes Verhulststraat 91huis, Amsterdam
Eten & drinken
downloadgram.org_612368537_18441156778097723_3706005334160954595_n
01
Adres
Johannes Verhulststraat 64-H,
1071 NH Amsterdam

Franzen

Chef en eigenaar Jesse Franzen groeide op in een horecafamilie in Haarlem. Zijn vader stond in de keuken, zijn moeder werkte in de bediening. Zijn eigen professionele reis begon in de keuken van het tweesterrenrestaurant Chapeau, waarna hij ervaring opdeed bij onder andere Aan de Poel, Ron Gastrobar en Lars Amsterdam. Met Franzen creëert Jesse een plek die voelt als een moderne huiskamer voor de stad. Toegankelijk en warm, maar altijd met een hoge standaard. Het menu is klassiek en herkenbaar, met hier en daar een verrassende twist.

Schermafbeelding 2022-05-11 om 16.25.41
02
Adres
Johannes Verhulststraat 32,
1071 NE Amsterdam

Pizzeria Le 4 Stagioni

Voor bezoekers van het Concertgebouw zijn de Romaanse pizza's met dunne bodem geen vreemde. Sinds 1978 voorziet de pizzeria in Oud-Zuid menige groep en (grote) families van authentiek Italiaans eten. Het interieur heeft een Mediteraans tintje en het menu biedt voor ieder wat wils, van verse pasta's en mals vlees, tot onmisbare antipasti en vegetarische alternatieven.

brasserie-de-joffers-buiten02-1600px-1024×615
Brasserie_De_Joffers_Lunch-7-1600px-1024×683
03
Adres
Willemsparkweg 163,
1071 GZ Amsterdam

Brasserie de Joffers

Met een groot terras in de zomer én winter is brasserie Joffers al 15 jaar een bekende hotspot op steenworp afstand van het Vondelpark en het Museumkwartier. Mocht de zon niet schijnen, dan is er binnen genoeg plek - een met kunst en spiegelwanden ingerichte ruimte, wat voor een huiselijke sfeer zorgt. De ontmoetingsplek voor de buurt is ideaal voor ontbijt, lunch en diner of simpelweg voor een lekkere kop koffie.

04
Adres
Cornelis Schuytstraat 8-10,
1071 JH Amsterdam

Brasserie van Dam

Brasserie van Dam staat bekend om een simpele maar effectieve receptuur: een niet te uitgebreide kaart met kwalitatief goede producten, acceptabele prijzen, goede koffie, een fijne sfeer en vriendelijk personeel.

273565404_2463417327127039_151412226997513128_n
05
Adres
Willemsparkweg 177,
1071 GZ Amsterdam

Batoni Khinkali

In Nederland is de Georgische keuken helaas ondervertegenwoordigd, ondanks haar rijke en boeiende culinaire erfgoed. Gelukkig biedt Batoni Khinkali een introductie tot deze smaakvolle keuken. Dit restaurant, opgericht door de Georgische klarinettist Levan Tskhadadze, combineert zijn liefde voor muziek met zijn passie voor koken. Hier kunnen gasten genieten van Georgische klassiekers zoals khinkali, katsjapuri en lobio, evenals een veganistisch en vleesmenu, allemaal geserveerd met de kenmerkende Georgische gastvrijheid.

tip_10694-edible-treasures-large
06
Adres
Jacob Obrechtstraat 75,
1071 KK Amsterdam

Edible Treasures

In een voormalige slagerij in Amsterdam Zuid huist de concept store Edibe Treasures. Naast de 'edibles en drinkables' in de koffieshop vind je hier een prachtige selectie van alles voor op de tafel zoals zilverwerk, keramiek, tafellinnen, maar ook kookboeken en accessoires. Er worden ook regelmatig pop ups en workshops georganiseerd.

Schermafbeelding 2022-05-18 om 16.11.48
Schermafbeelding 2022-05-18 om 16.12.05
07
Adres
Willemsparkweg 74,
1071 HK Amsterdam

George W.P.A

George W.P.A is de ideale plek om neer te strijken voor een goed glas wijn en lekker eten met een chique touch. De brasserie in Zuid is naar eigen zeggen een combinatie van klassieke Franse gerechten, verpakt in New-Yorkse stijl en staat bekend om signature dishes zoals gegrilde kreeft en Blackened Tuna. Treed binnen (op reservering) in het "Upper South" van Amsterdam en see for yourself!

08
Adres
Valeriusstraat 85,
1071 MG Amsterdam

Carter

Carter is een moderne brasserie in Amsterdam-Zuid waar internationale klassiekers worden geserveerd met flair en finesse. Aan de Valeriusstraat voelt deze plek als een elegant buurtcafé – informeel, verfijnd en altijd gastvrij. Op de kaart staan tijdloze gerechten als steak tartare, burrata en kreeftenpasta, met een solide wijnselectie ernaast.

welling
09
Adres
Jan Willem Brouwersstraat 32,
1071 LK Amsterdam

Café Welling

Café Welling is een knus buurtcafé aan de J.W. Brouwersstraat; vlakbij het Museumplein. Hier kun je genieten van een lekker biertje aan de bar of op het terras als het zonnetje schijnt. Dit buurtcafé kent een lange geschiedenis. Het café bestaat al langer dan 70 jaar maar draagt pas sinds 1963 de naam Café Welling. Deze historie verklaart misschien wel de oude vertrouwde sfeer die in dit café altijd te vinden blijkt. Interessant voor muziekliefhebbers: bij Café Welling worden regelmatig Jazz-avonden georganiseerd.

10
Adres
Valeriusstraat 90,
1075 GH Amsterdam

Barolo

Bar Barolo brengt de sfeer van Noord-Italië naar de Valeriusstraat, midden in het elegante Amsterdam-Zuid. De wijnkaart is royaal en zorgvuldig samengesteld, met Barolo als vanzelfsprekend middelpunt. Op het menu: huisgemaakte pasta, klassieke antipasti en seizoensgerechten zonder opsmuk. Het interieur is warm en ingetogen, net als de gastvrijheid – hier wordt met aandacht gewerkt.

362085173_18198336283252516_5120199989074488114_n
11
Adres
Willemsparkweg 220hs,
1071 HX Amsterdam

Restaurant Visque

Op het prachtige hoekje van Amsterdam Zuid bevindt zich Restaurant Visque, waar vis de hoofdrol speelt. Onze menukaart is flexibel en afhankelijk van de dagelijkse keuze voor de meest verse en smaakvolle producten. Chef Menno geeft een eigen twist aan eenvoudige Franse gerechten, zoals coquilles, Hollandse garnalen, sliptong en onze bekende Tuna Wellington.

84942268_1529941500492597_3844385910518972416_n
12
Adres
Apollolaan 138,
1077 BG Amsterdam

Roberto's Restaurant Amsterdam

In de top tien Italiaanse restaurants van Amsterdam mag Roberto’s niet ontbreken. Het restaurant is gelegen in het Hilton hotel, waar de iconische Italiaanse keuken sinds 25 jaar de borden vult. Het restaurant draait om pure en simpele smaken met gerechten als dungesneden aubergine, groene farfalle pasta met kreeftensaus en Lava cake.

13
Adres
Valeriusstraat 128B,
1075 GD Amsterdam

Castell Zuid

Castell Zuid is de stijlvolle nieuwe vestiging van het iconische Amsterdamse grillrestaurant Castell, gevestigd aan de Valeriusstraat in Oud-Zuid. Waar het origineel in het centrum bekendstaat om zijn no-nonsense steaks en late diners, brengt deze locatie dezelfde smaken in een verfijnde setting. “Same taste, same vibe, different look” luidt het motto – en dat klopt: herkenbaar en toch helemaal nieuw.

photo_1500x
14
Adres
Willemsparkweg 8h,
1071 HD Amsterdam

Coffee District

Eigenaren Adil Loukane en Rosa Loukane begonnen met een hole-in-the-wall coffeeshop in een modewinkel in Zuid. Toen de winkel de deuren sloot, grepen Adil en Rosa hun kans en besloten om hun eigen koffiebar te openen. Inmiddels hebben ze meerdere locaties. De koffie wordt gemaakt met een eigen melange gebrand door Lot Sixty One. Daarnaast worden er zoetigheden aangeboden zoals de inmiddelsal bekende kaneelbroodjes en bananenbrood.

312175149_2011502502368624_2613652535986311070_n
15
Adres
Koninginneweg 34,
1075 CZ Amsterdam

Tozi

TOZI betekent in Venetiaans dialect ‘een groep vrienden’, en dat voel je direct als je binnenkomt. Het is net alsof je terecht komt in één grote familie. De kaart toont een selectie van kleine Venetiaans geïnspireerde gerechten om te delen, bekend als cicchetti. Met een Italiaanse wijnkaart en een cocktailbar met Italiaanse gins en negroni's.

 

339816079_240302538447892_8075740380035601622_n
16
Adres
Van Baerlestraat 47-49,
1071 AP Amsterdam

L'Entrecôte et les Dames

L’Entrecôte et les Dames omarmt het concept van een formule-restaurant, zoals de Fransen het noemen. Binnen een sfeervol ingerichte Franse brasserie staat de entrecôte centraal, altijd met een lichte 'bleu' bereiding van het Maas-Rijn-IJsel rund. Dit wordt geserveerd met frietjes en een verfrissende salade. Als je hierna nog trek hebt krijg je nog een keer een portie opgediend. Liever geen vlees? Als alternatief serveren zij in roomboter gebakken sliptong met ravigottesaus. Zelfde formule en zelfde prijs als het entrecôte menu.

Boodschappen
groentenier-winkel-voor-buiten
17
Adres
Cornelis Schuytstraat 35,
1071 NL Amsterdam

Groenteboer Tom Ensink

Groenteboer Tom Ensink zorgt ervoor dat klanten kunnen kiezen uit een exclusief assortiment aan eerlijke producten. Naast groenten worden er kazen, fruit, noten, oliën, wijnen én maaltijden verkocht - zorgvuldig geselecteerd voor de échte fijnproevers in Zuid. Specifieke wensen kunnen worden vervuld wat betreft het bestellen van producten, maar ook voor de verse maaltijden.

Schermafbeelding 2022-05-18 om 19.26.29
18
Adres
Van Breestraat 107A,
1071 ZJ Amsterdam

De Wijnkaart

In het Museumkwartier in Amsterdam-Zuid zit De Wijnkaart. Hier worden allerlei soorten wijnen uit de vergeten Oost-Europese wijnlanden geserveerd. Alhoewel de geschiedenis van het wijn maken hier is begonnen, zijn deze landen vaak vergeten in de wijnwereld. Als je benieuwd bent geworden naar alle soorten wijnen kan je een wijnproeverij doen in de wijnbar, waarbij je zelf mag uitkiezen welke je wil proeven. Naast de borrelplanken die wekelijks veranderen, staan er ook hoofdgerechten op het menu.

1593079817
19
Adres
Johannes Verhulststraat,
1066 VH Amsterdam

Slagerij De Schuyt

Slagerij De Schuyt, vernoemd naar hun locatie in de Cornelis Schuytstraat, heeft als symbool de parkiet. Net als de parkiet heeft deze kenmerkende slagerij zijn oorsprong in de jaren zeventig en hebben beiden hun plek veroverd in Amsterdam. Geïnspireerd door de parkiet begon eigenaar Evert Blauwendraat zijn slagerij met het idee om daar een karakteristiek, persoonlijk en bijzonder embleem aan te geven dat voor iedereen herkenbaar is. Bij dit familiebedrijf met een rijke historie kan je terecht voor vlees en delicatessen.

69495482_2355482024538342_8370925297519820800_n
20
Adres
1071 MR Amsterdam

ZuiderMRKT

De zuiderMRKT is een kleine, gezellige, wekelijkse buurtmarkt. Uniek door haar coöperatieve karakter. De coöperatie bestaat uit leden - enthousiaste buurtbewoners - die de markt een warm toedragen en meehelpen op de markt en in de groentekraam. De leden bepalen samen het aanbod van alle kramen. Zij kopen groente en fruit rechtstreeks in bij de boer, om ze voor eerlijke prijzen op het zuiderMRKT-plein te verkopen.

Interieur
Menno+Kroon+-+Maikel+Thijssen+Photography+-+www.maikelthijssen.com-3
21
Adres
Cornelis Schuytstraat 11,
1071 JC Amsterdam

Menno Kroon

De uitbundige en sfeervolle etalage van Menno Kroon toont zulke betoverende en bijzondere bloemen dat je wel even binnen moet kijken. Prille liefde, verrukking, het onvermijdelijke afscheid. Elk boeket van Menno Kroon geeft betekenis aan een bijzonder moment. Niks is ze te gek bij Menno Kroon en u kunt er terecht voor de meest speciale en uiteenlopende boeketten.

277535791_5208467215858783_4051211327754731278_n
274469633_5110110329027806_2507568570523403675_n
22
Adres
Van Baerlestraat 39-43,
1071 AP Amsterdam

Cosentino

Cosentino Group is een wereldwijd bekend Spaans familiebedrijf dat hoogwaardige innovatieve oppervlakken produceert en distribueert voor de wereld van design en architectuur. Aan de Van Baerlestraat bevindt zich hun inspiratiecentrum waar men kleuren, materialen en toepassingen voor architectuur en designprojecten met elkaar kan vergelijken. Cosentino City biedt een uitgebreid inspiratieplatform waar architecten en ontwerpers elkaar kunnen ontmoeten en kunnen werken.

Kunst & cultuur
241801382_194597056100298_7531339944812475387_n
23
Adres
Willemsparkweg 134,
1071 HR Amsterdam

Galerie Bildhalle

Bildhalle is oorspronkelijk opgericht als een Zwitserse galerie gespecialiseerd in klassieke en hedendaagse fotografie. De galerie heeft inmiddels vestigingen in Zürich en Amsterdam. Sinds de oprichting door Mirjam Cavegn in 2013, heeft de galerie zich ontwikkeld tot een van de meest gerespecteerde fotogaleries in Zwitserland. In oktober 2021 zette Bildhalle haar groei voort met de opening van een tweede galerie aan de Willemsparkweg in Amsterdam. Hier presenteert de galerie een zorgvuldig geselecteerde collectie van Nederlandse en internationale kunstenaars, variërend van opkomend talent tot gevestigde fotografen.

315727004_139279408874516_3171046503847699668_n
24
Adres
Willemsparkweg 64H,
1071 HK Amsterdam

Hama Gallery

Bij Hama Gallery geloven ze dat een galerie een grenzeloze ontmoetingsplaats is waar kunst en mensen samenkomen. Het doel is om kunst toegankelijker te maken door een unieke ervaring te bieden die breekt met traditie. De galerie verwelkomt bezoekers met open armen, of je nu binnenloopt voor een spontaan bezoek, een intieme privébezichtiging wilt, of samen met anderen kunst wilt vieren tijdens onze feestelijke openingen en tuinevenementen.

Exterieur-Concertgebouw-Kerst-Winter-crop-1
grotezaal-eduarduslee
25
Adres
Concertgebouwplein 10,
1071 LN Amsterdam

Het Concertgebouw

Het Concertgebouw is één van de monumentale panden aan het Amsterdamse Museumplein. Het gebouw stamt uit 1888 en is voltooid volgens de stijl van het Weens classicisme; als heeft het ook kenmerken uit de neorenaissance. Het gebouw is ontworpen voor klassieke concerten maar heeft in de jaren 60 en 70 ook een tijd dienst gedaan als poppodium. Bekende sterren die hier hebben opgetreden zijn onder andere Led Zappelin en Aretha Franklin. Tegenwoordig vinden er jaarlijks bijna duizend concerten en andere culturele activiteiten in het Concertgebouw plaats. Voor degenen met een kleiner budget zijn er ook gratis lunchconcerten. Voor een bezoek aan een lunchconcert kun je het beste eerst even op de website kijken. Vaak kun je daar van de voren gratis kaartjes reserveren.

De beste ‘Ramen’ shops van Amsterdam

De beste ‘Ramen’ shops van Amsterdam

Oost, een selectie van fijne plekken rondom de Indische buurt

Oost, een selectie van fijne plekken rondom de Indische buurt

Een ranke woontoren van hout – revolutionair in constructie, radicaal in intentie.

Een ranke woontoren van hout – revolutionair in constructie, radicaal in intentie.

Onlangs bekeken
Bekijk het overzicht

Deze site maakt gebruik van cookies.

Voor welke cookies geef je akkoord?