Een royaal dubbel bovenhuis van circa 164 m² met originele details, zonnig terras en Frans balkon. De woning verkeert in eenvoudige staat en biedt een solide basis voor renovatie, met onder voorwaarden de mogelijkheid tot een dakterras.

Rondleiding
Via de centrale entree en het trappenhuis bereikt u de woning op de tweede verdieping. Hier bevinden zich de leefruimten, ingericht volgens de klassieke kamer-en-suite: een woonkamer aan de voorzijde met uitzicht op het plein met daarnaast een werkkamer, en een eetkamer aan de achterzijde, verbonden via schuifdeuren en vaste kasten. De houten vloeren en originele schouwen geven beide ruimtes een herkenbare stijl. De gesloten keuken ligt aan de achterzijde en is functioneel van opzet. Een interne trap leidt naar de derde verdieping, waar drie slaapkamers zijn gesitueerd. Aan de achterzijde bevindt zich de hoofdslaapkamer met openslaande deuren naar een besloten terras. Aan de voorzijde zijn twee kamers gesitueerd, waarvan één ruim en één compact. Op de overloop bevinden zich een apart toilet en meerdere bergkasten. De badkamer is licht en ruim, en beschikt over een ligbad, wastafel en aansluiting voor wasapparatuur. Aan de voorzijde is er een Frans balkon, aan de achterzijde het terras, met uitzicht op de binnentuinen. De mogelijkheid tot het realiseren van een dakterras biedt perspectief voor verdere uitbreiding van het buitenleven. Klassiek Verhulst is een woning met potentie. Functioneel ingedeeld, gelegen op een rustige locatie, en voorzien van de kenmerken die horen bij een pand uit begin vorige eeuw.

Buurtgids
De Johannes Verhulststraat is vernoemd naar de Nederlandse componist en dirigent Johannes Verhulst. De straat is omstreeks 1900 aangelegd in een landbouwgebied met slootjes, akkers en weilanden. Tussen 1900 en 1903 werden de huizenblokken gebouwd met herenhuizen, etagewoningen en winkels. Enkele architecten die de huizen ontworpen in de Johannes Verhulststraat waren L. van der Tas, S.P. Herfst en J. Lenderik. Ze bouwden voornamelijk in de stijlen neorenaissance en art nouveau. De woning is gelegen in Oud-Zuid om de hoek van de Cornelis Schuytstraat en het Vondelpark maar ook dicht bij het Museumplein en het Concertgebouw. Een plek die aanvoelt als een dorp, waar kinderen spelen op straat en boetiek winkels om de hoek. De Johannes Verhulststraat is een rustige kindvriendelijke straat nabij zeer goed aangeschreven scholen, speelpleinen en op loopafstand van het Museumplein en Vondelpark.
Een bijzonder centrale locatie ten opzichte van het bruisende centrum, cultuurrijke Oud-Zuid, de Beethovenbuurt en onder andere het fraaie Vondelpark. Omgeven door kwalitatieve grootstedelijke voorzieningen. 

Bijzondere Kenmerken
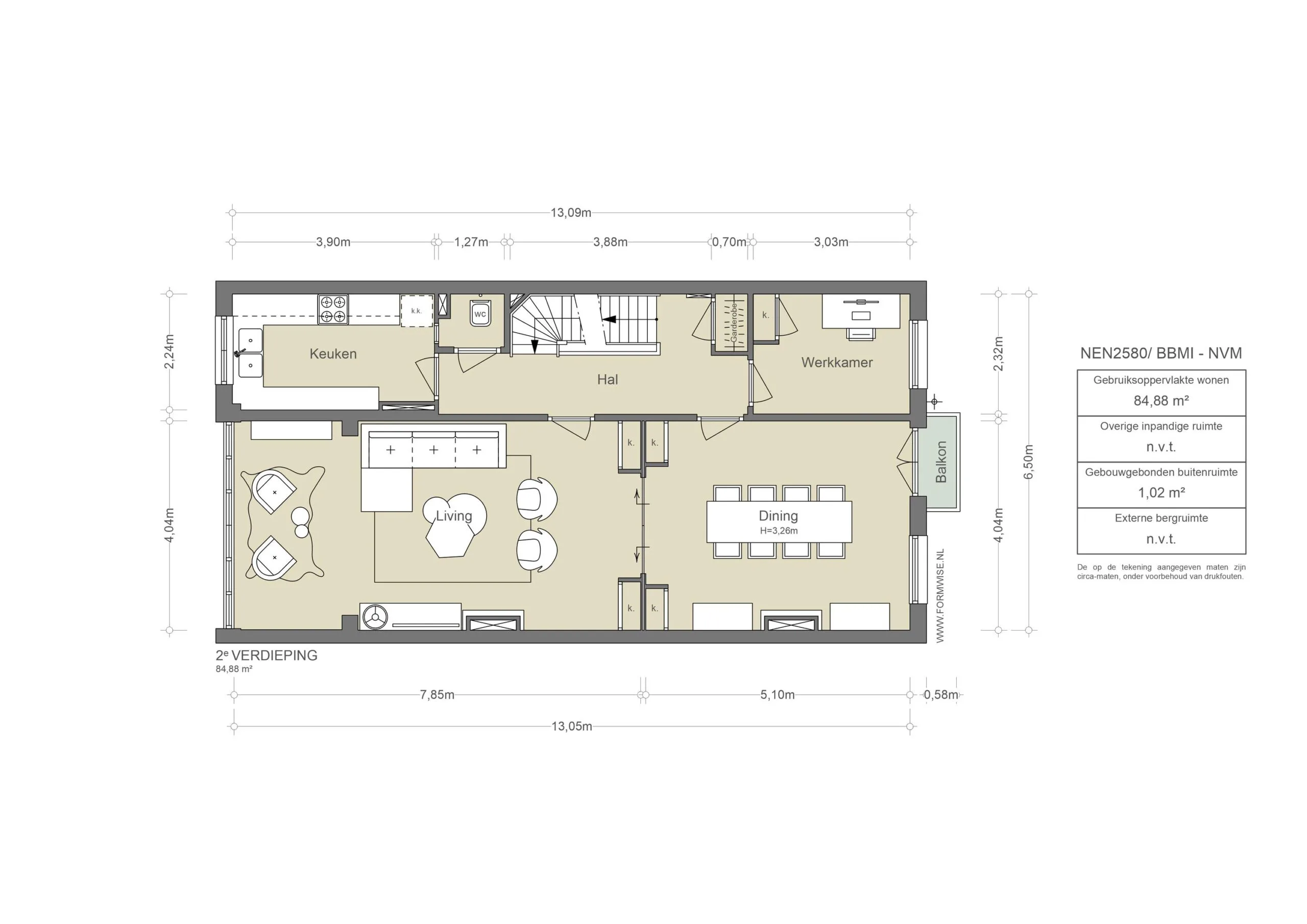
•    Gebruiksoppervlakte wonen circa 164 m²
•    Balkon aan de voorzijde
•    Terras aan de achterzijde 
•    Zeer lichte en ruim opgezette bovenwoning
•    Uitstekende locatie in Zuid
•    Mogelijkheid creëren dakterras
•    Gelegen op eigen grond, kleine VvE
•    Energielabel G
•    Niet-bewonersclausule van toepassing
•    Gemeentelijk beschermd stadsgezicht

Deze informatie is door ons met de nodige zorgvuldigheid samengesteld. Onzerzijds wordt echter geen enkele aansprakelijkheid aanvaard voor enige onvolledigheid, onjuistheid of anderszins, dan wel de gevolgen daarvan. Alle opgegeven maten en oppervlakten zijn slechts indicatief
De Meetinstructie is gebaseerd op de NEN2580. De Meetinstructie is bedoeld om een meer eenduidige manier van meten toe te passen voor het geven van een indicatie van de gebruiksoppervlakte. De Meetinstructie sluit verschillen in meetuitkomsten niet volledig uit, door bijvoorbeeld interpretatieverschillen, afrondingen of beperkingen bij het uitvoeren van de meting.

AM106721-2083930-Johannes-Verhulststraat-174-2,-Amsterdam-248637815

Klassiek Verhulst
Aan een van de meest karakteristieke lanen van Amsterdam-Zuid ligt Klassiek Verhulst – een royaal dubbel bovenhuis met originele details, klassieke indeling en functionele buitenruimten. De woning biedt circa 168 m² woonoppervlak verdeeld over twee verdiepingen, met een zonnig terras aan de achterzijde en een Frans balkon aan de voorzijde. De indeling is helder en traditioneel: een kamer en suite op de tweede etage, drie slaapkamers op de derde etage, een gesloten keuken en een ruime badkamer. De woning verkeert in eenvoudige staat en biedt een uitstekende basis voor renovatie naar eigen inzicht. Daarbij is er, onder voorwaarden, mogelijkheid tot het realiseren van een dakterras van circa 30% van het dakoppervlak. Gelegen in de rustige Johannes Verhulststraat, midden in het geliefde Oud-Zuid, met alle stedelijke voorzieningen binnen handbereik.
Wij informeren u graag over de mogelijkheden.


Jelle Mundt | Makelaar Broersma Wonen
AM106721-2083930-Johannes-Verhulststraat-174-2,-Amsterdam-248637801
Designvisie

Het bovenhuis aan de Johannes Verhulststraat bevindt zich in een traditioneel opgebouwde gevelrij in Amsterdam Zuid. De architectuur is kenmerkend voor het begin van de twintigste eeuw: gemetselde gevels, houten balkonconstructies en een dubbele voordeur onder een gemetselde boog. De ligging tegenover het Dufayplein zorgt voor een prettige, open blik naar buiten. Binnen is de klassieke indeling behouden. De leef verdieping is opgezet als kamer-en-suite, met de woon- en eetkamer gescheiden door vaste kasten en schuifdeuren. Hoge plafonds en grote raampartijen aan weerszijden zorgen voor een lichte en doorlopende ruimte. Originele details zoals de glas-in-lood bovenlichten, houten paneeldeuren en twee zwarte schouwen zijn nog aanwezig en vormen een duidelijke referentie naar het oorspronkelijke ontwerp. De trapopgang is ruim en voorzien van de oorspronkelijke leuning. Op de slaapverdieping is de stijl doorgetrokken in de vorm van paneeldeuren en vaste kasten. De indeling is functioneel, met drie slaapkamers, een badkamer en meerdere bergingen. Aan de achterzijde ligt een besloten terras op het zuiden. De woning is overzichtelijk ingedeeld en bezit een helder ritme van ruimtes, waarin oorspronkelijke elementen een vanzelfsprekend onderdeel vormen van de structuur.

AM106721-2083930-Johannes-Verhulststraat-174-2,-Amsterdam-248637799
AM106721-2083930-Johannes-Verhulststraat-174-2,-Amsterdam-248637841
AM106721-2083930-Johannes-Verhulststraat-174-2,-Amsterdam-248637815
AM106721-2083930-Johannes-Verhulststraat-174-2,-Amsterdam-248637819
Wonen en koken

De tweede verdieping is ingericht als klassieke kamer-en-suite, met aan de voorzijde de woonkamer en aan de achterzijde de eetkamer. Beide ruimtes worden gescheiden door schuifdeuren met vaste kasten aan weerszijden. De kamer aan de voorzijde biedt uitzicht op het groen van het Dufayplein en beschikt over twee grote raampartijen en een balkon, naast de woonkamer bevind zich de werkkamer. De achterkamer kijkt uit op het binnenterrein en heeft een erker met glas-in-loodramen. Op de vloer ligt een doorlopende houten vloer, en beide ruimtes zijn voorzien van een originele zwarte schouw. De plafonds zijn hoog en ononderbroken, wat de ruimtelijkheid versterkt. De keuken is gelegen aan de achterzijde en heeft een gesloten opstelling. De inrichting is eenvoudig, met een L-vormige opstelling voorzien van een gaskookplaat, oven en spoelbak. De kastfronten en apparatuur zijn functioneel maar gedateerd. Er is daglicht via een groot raam aan de achterzijde.

AM106721-2083930-Johannes-Verhulststraat-174-2,-Amsterdam-248637835
AM106721-2083930-Johannes-Verhulststraat-174-2,-Amsterdam-248637919
AM106721-2083930-Johannes-Verhulststraat-174-2,-Amsterdam-248637929
AM106721-2083930-Johannes-Verhulststraat-174-2,-Amsterdam-248637841
AM106721-2083930-Johannes-Verhulststraat-174-2,-Amsterdam-248638029
AM106721-2083930-Johannes-Verhulststraat-174-2,-Amsterdam-248638105
AM106721-2083930-Johannes-Verhulststraat-174-2,-Amsterdam-248638123
Slapen en baden

De derde verdieping is volledig ingericht als slaapverdieping en beschikt over drie slaapkamers. Twee van deze kamers zijn volwaardig van formaat, de derde is een functionele zijkamer. De slaapkamer aan de achterzijde heeft openslaande deuren naar een inpandig terras, gesitueerd op het zuiden. De badkamer ligt aan de achterzijde en is voorzien van een ligbad, wastafel, aansluitingen voor wasapparatuur en een groot raam dat zorgt voor daglicht. De afwerking bestaat uit wit gemarmerd tegelwerk. De ruimte is royaal van opzet, maar gedateerd in uitstraling. De overloop biedt toegang tot meerdere bergkasten, en er is een separaat toilet aanwezig. De gehele verdieping ademt de originele structuur en maatvoering van het pand, met paneeldeuren en hoge plafonds als terugkerende elementen.

AM106721-2083930-Johannes-Verhulststraat-174-2,-Amsterdam-248638055
AM106721-2083930-Johannes-Verhulststraat-174-2,-Amsterdam-248637859
AM106721-2083930-Johannes-Verhulststraat-174-2,-Amsterdam-248638079
AM106721-2083930-Johannes-Verhulststraat-174-2,-Amsterdam-248638097
AM106721-2083930-Johannes-Verhulststraat-174-2,-Amsterdam-248637847
De Buitenruimte

Aan de achterzijde beschikt de woning over een besloten terras van de derde etage, toegankelijk vanuit de achtergelegen slaapkamer. Dit terras ligt op het zuiden en biedt voldoende ruimte voor een zitopstelling. Aan de voorzijde bevindt zich een balkon met uitzicht op het Dufayplein. Daarnaast bestaat de mogelijkheid tot het realiseren van een dakterras van maximaal 30% van het dakoppervlak, onder voorbehoud van toestemming van de VvE en een vergunningsprocedure bij de gemeente.

AM106721-2083930-Johannes-Verhulststraat-174-2,-Amsterdam-248637871
AM106721-2083930-Johannes-Verhulststraat-174-2,-Amsterdam-248637903
AM106721-2083930-Johannes-Verhulststraat-174-2,-Amsterdam-248637803
AM106721-2083930-Johannes-Verhulststraat-174-2,-Amsterdam-248637809
AM106721-2083930-Johannes-Verhulststraat-174-2,-Amsterdam-248641197
Buurtgids

De Johannes Verhulststraat is vernoemd naar de Nederlandse componist en dirigent Johannes Verhulst. De straat is omstreeks 1900 aangelegd in een landbouwgebied met slootjes, akkers en weilanden. Tussen 1900 en 1903 werden de huizenblokken gebouwd met herenhuizen, etagewoningen en winkels. Enkele architecten die de huizen ontworpen in de Johannes Verhulststraat waren L. van der Tas, S.P. Herfst en J. Lenderik. Ze bouwden voornamelijk in de stijlen neorenaissance en art nouveau. De woning is gelegen in Oud-Zuid om de hoek van de Cornelis Schuytstraat en het Vondelpark maar ook dicht bij het Museumplein en het Concertgebouw. Een plek die aanvoelt als een dorp, waar kinderen spelen op straat en boetiek winkels om de hoek. De Johannes Verhulststraat is een rustige kindvriendelijke straat nabij zeer goed aangeschreven scholen, speelpleinen en op loopafstand van het Museumplein en Vondelpark. Een bijzonder centrale locatie ten opzichte van het bruisende centrum, cultuurrijke Oud-Zuid, de Beethovenbuurt en onder andere het fraaie Vondelpark. Omgeven door kwalitatieve grootstedelijke voorzieningen.

Bereikbaarheid
De Johannes Verhulststraat is een rustige, lommerrijke straat in het hart van Amsterdam Oud-Zuid. Op loopafstand bevinden zich het Vondelpark, Museumplein en de Cornelis Schuytstraat met haar speciaalzaken en restaurants. De bereikbaarheid per openbaar vervoer is uitstekend met tramlijnen richting Amsterdam CS, Zuid en Amstelveen. Met de auto is er via de De Lairessestraat en de S108 directe aansluiting op de Ring A10. Parkeren geschiedt via het vergunningensysteem van de gemeente Amsterdam.

Parkeergelegenheid
Parkeren is mogelijk via een vergunningenstelsel op de openbare weg (vergunningsgebied Zuid 8.1).
Met een parkeervergunning voor Zuid 8.1 mag u parkeren in Zuid-1, Zuid-2 en Zuid-8. Een parkeervergunning voor bewoners kost € 192,81 per 6 maanden. De eerste vergunningperiode kan korter of langer zijn dan 6 maanden. De kosten kunnen daardoor afwijken.

AM106721-2083930-Johannes-Verhulststraat-174-2,-Amsterdam-248641233
AM106721-2083930-Johannes-Verhulststraat-174-2,-Amsterdam-248638139
AM106721-2083930-Johannes-Verhulststraat-174-2,-Amsterdam-248637811
AM106721-2083930-Johannes-Verhulststraat-174-2,-Amsterdam-248637829
Kenmerken
Johannes Verhulststraat 174-2, Amsterdam
Vraagprijs
  • € 1.380.000 k.k.
Beschikbaarheid
  • In overleg
Vertrekken
  • 8 kamers
  • 3 slaapkamers
  • 1 badkamer
Onderhoud
  • Intern: Redelijk
  • Extern: Goed
Oppervlakten & Inhoud
  • Woonoppervlakte: 164 m²
  • Gebouwgebonden buitenruimte: 10 m²
  • Perceeloppervlakte: 140 m²
Bouwjaar
  • 1908
Installaties
  • Natuurlijke ventilatie
  • TV kabel
Ligging
  • Aan rustige weg
  • In woonwijk
Parkeren
  • Betaald parkeren
  • Parkeervergunningen
Bestemming
  • Woonruimte
Eigendomssoort
  • Volle eigendom
Buitenruimte
  • Geen tuin
  • Balkon
  • Dakterras
Kadastraal
  • Gemeente: Amsterdam
  • Sectie: U
  • Nummer: 11152
Duurzaamheid
  • Energielabel G
Soort
  • Appartement
  • Bovenwoning
Welke woonlaag
  • 3e
Bijzonderheden
  • Beschermd stads of dorpsgezicht
Overige kenmerken

OZB ('25) € 729,32 per jaar
Rioolrecht ('25) € 185,20 per jaar
Servicekosten VvE € p.m. 

Plattegrond
Johannes Verhulststraat 174-2, Amsterdam
AM106721-2083930-Johannes-Verhulststraat-174-2,-Amsterdam-248640539
AM106721-2083930-Johannes-Verhulststraat-174-2,-Amsterdam-248640541
AM106721-2083930-Johannes-Verhulststraat-174-2,-Amsterdam-248640543
Documenten
Johannes Verhulststraat 174-2, Amsterdam
Locatie
Johannes Verhulststraat 174-2, Amsterdam
Eten & drinken
01
Adres
Valeriusstraat 128B,
1075 GD Amsterdam

Castell Zuid

Castell Zuid is de stijlvolle nieuwe vestiging van het iconische Amsterdamse grillrestaurant Castell, gevestigd aan de Valeriusstraat in Oud-Zuid. Waar het origineel in het centrum bekendstaat om zijn no-nonsense steaks en late diners, brengt deze locatie dezelfde smaken in een verfijnde setting. “Same taste, same vibe, different look” luidt het motto – en dat klopt: herkenbaar en toch helemaal nieuw.

02
Adres
Valeriusstraat 90,
1075 GH Amsterdam

Barolo

Bar Barolo brengt de sfeer van Noord-Italië naar de Valeriusstraat, midden in het elegante Amsterdam-Zuid. De wijnkaart is royaal en zorgvuldig samengesteld, met Barolo als vanzelfsprekend middelpunt. Op het menu: huisgemaakte pasta, klassieke antipasti en seizoensgerechten zonder opsmuk. Het interieur is warm en ingetogen, net als de gastvrijheid – hier wordt met aandacht gewerkt.

312175149_2011502502368624_2613652535986311070_n
03
Adres
Koninginneweg 34,
1075 CZ Amsterdam

Tozi

TOZI betekent in Venetiaans dialect ‘een groep vrienden’, en dat voel je direct als je binnenkomt. Het is net alsof je terecht komt in één grote familie. De kaart toont een selectie van kleine Venetiaans geïnspireerde gerechten om te delen, bekend als cicchetti. Met een Italiaanse wijnkaart en een cocktailbar met Italiaanse gins en negroni's.

 

04
Adres
Valeriusstraat 85,
1071 MG Amsterdam

Carter

Carter is een moderne brasserie in Amsterdam-Zuid waar internationale klassiekers worden geserveerd met flair en finesse. Aan de Valeriusstraat voelt deze plek als een elegant buurtcafé – informeel, verfijnd en altijd gastvrij. Op de kaart staan tijdloze gerechten als steak tartare, burrata en kreeftenpasta, met een solide wijnselectie ernaast.

362085173_18198336283252516_5120199989074488114_n
05
Adres
Willemsparkweg 220hs,
1071 HX Amsterdam

Restaurant Visque

Op het prachtige hoekje van Amsterdam Zuid bevindt zich Restaurant Visque, waar vis de hoofdrol speelt. Onze menukaart is flexibel en afhankelijk van de dagelijkse keuze voor de meest verse en smaakvolle producten. Chef Menno geeft een eigen twist aan eenvoudige Franse gerechten, zoals coquilles, Hollandse garnalen, sliptong en onze bekende Tuna Wellington.

366416263_660727485939210_4584064804028118782_n
06
Adres
Valeriusplein 4A,
1075 BG Amsterdam

Juliette

In Amsterdam Zuid  kun je bij Juliette genieten van ontbijt en lunch in de zon. Het menu is gebaseerd op verse ingrediënten van lokale leveranciers en wordt dagelijks samengesteld op basis van wat er op de markt beschikbaar is. Denk aan gerechten zoals de Porco Rosso: mortadella, stracciatellakaas, Spaanse guindillapepers en rode pesto. Voor het diner of een borrel kan je terecht bij buurman Bar Jules. De focus ligt op Zuid-Europese gerechten zoals pizzetta's, pata negra en geroosterde octopus.

07
Adres
Cornelis Schuytstraat 8-10,
1071 JH Amsterdam

Brasserie van Dam

Brasserie van Dam staat bekend om een simpele maar effectieve receptuur: een niet te uitgebreide kaart met kwalitatief goede producten, acceptabele prijzen, goede koffie, een fijne sfeer en vriendelijk personeel.

273565404_2463417327127039_151412226997513128_n
08
Adres
Willemsparkweg 177,
1071 GZ Amsterdam

Batoni Khinkali

In Nederland is de Georgische keuken helaas ondervertegenwoordigd, ondanks haar rijke en boeiende culinaire erfgoed. Gelukkig biedt Batoni Khinkali een introductie tot deze smaakvolle keuken. Dit restaurant, opgericht door de Georgische klarinettist Levan Tskhadadze, combineert zijn liefde voor muziek met zijn passie voor koken. Hier kunnen gasten genieten van Georgische klassiekers zoals khinkali, katsjapuri en lobio, evenals een veganistisch en vleesmenu, allemaal geserveerd met de kenmerkende Georgische gastvrijheid.

84942268_1529941500492597_3844385910518972416_n
09
Adres
Apollolaan 138,
1077 BG Amsterdam

Roberto's Restaurant Amsterdam

In de top tien Italiaanse restaurants van Amsterdam mag Roberto’s niet ontbreken. Het restaurant is gelegen in het Hilton hotel, waar de iconische Italiaanse keuken sinds 25 jaar de borden vult. Het restaurant draait om pure en simpele smaken met gerechten als dungesneden aubergine, groene farfalle pasta met kreeftensaus en Lava cake.

brasserie-de-joffers-buiten02-1600px-1024×615
Brasserie_De_Joffers_Lunch-7-1600px-1024×683
10
Adres
Willemsparkweg 163,
1071 GZ Amsterdam

Brasserie de Joffers

Met een groot terras in de zomer én winter is brasserie Joffers al 15 jaar een bekende hotspot op steenworp afstand van het Vondelpark en het Museumkwartier. Mocht de zon niet schijnen, dan is er binnen genoeg plek - een met kunst en spiegelwanden ingerichte ruimte, wat voor een huiselijke sfeer zorgt. De ontmoetingsplek voor de buurt is ideaal voor ontbijt, lunch en diner of simpelweg voor een lekkere kop koffie.

downloadgram.org_612368537_18441156778097723_3706005334160954595_n
11
Adres
Johannes Verhulststraat 64-H,
1071 NH Amsterdam

Franzen

Chef en eigenaar Jesse Franzen groeide op in een horecafamilie in Haarlem. Zijn vader stond in de keuken, zijn moeder werkte in de bediening. Zijn eigen professionele reis begon in de keuken van het tweesterrenrestaurant Chapeau, waarna hij ervaring opdeed bij onder andere Aan de Poel, Ron Gastrobar en Lars Amsterdam. Met Franzen creëert Jesse een plek die voelt als een moderne huiskamer voor de stad. Toegankelijk en warm, maar altijd met een hoge standaard. Het menu is klassiek en herkenbaar, met hier en daar een verrassende twist.

12
Adres
Hendrik Jacobszstraat 18,
1075 PD Amsterdam

LOT61 Coffee Roasters

Geboren in Sydney, grootgebracht in Brooklyn en nu stevig geworteld in Amsterdam: LOT61 is allesbehalve een doorsnee koffiezaak. Als onafhankelijke koffiebrander combineert het merk internationale flair met lokaal vakmanschap. Slow coffee die met precisie en aandacht is gezet. De esthetiek is rauw maar verfijnd, de sfeer informeel en creatief – een plek waar buurt en barista samenkomen. Met hun B Corp-certificering laat LOT61 bovendien zien dat smaak en duurzaamheid hand in hand kunnen gaan.

Schermafbeelding 2022-05-11 om 16.25.41
13
Adres
Johannes Verhulststraat 32,
1071 NE Amsterdam

Pizzeria Le 4 Stagioni

Voor bezoekers van het Concertgebouw zijn de Romaanse pizza's met dunne bodem geen vreemde. Sinds 1978 voorziet de pizzeria in Oud-Zuid menige groep en (grote) families van authentiek Italiaans eten. Het interieur heeft een Mediteraans tintje en het menu biedt voor ieder wat wils, van verse pasta's en mals vlees, tot onmisbare antipasti en vegetarische alternatieven.

Schermafbeelding 2022-05-18 om 16.11.48
Schermafbeelding 2022-05-18 om 16.12.05
14
Adres
Willemsparkweg 74,
1071 HK Amsterdam

George W.P.A

George W.P.A is de ideale plek om neer te strijken voor een goed glas wijn en lekker eten met een chique touch. De brasserie in Zuid is naar eigen zeggen een combinatie van klassieke Franse gerechten, verpakt in New-Yorkse stijl en staat bekend om signature dishes zoals gegrilde kreeft en Blackened Tuna. Treed binnen (op reservering) in het "Upper South" van Amsterdam en see for yourself!

tip_10694-edible-treasures-large
15
Adres
Jacob Obrechtstraat 75,
1071 KK Amsterdam

Edible Treasures

In een voormalige slagerij in Amsterdam Zuid huist de concept store Edibe Treasures. Naast de 'edibles en drinkables' in de koffieshop vind je hier een prachtige selectie van alles voor op de tafel zoals zilverwerk, keramiek, tafellinnen, maar ook kookboeken en accessoires. Er worden ook regelmatig pop ups en workshops georganiseerd.

featured-gallery-0
16
Adres
Koninginneweg 212,
1075 EL Amsterdam

Simply Fish

Simply Fish is gelegen in Oud-Zuid aan de Koninginneweg. Zoals de naam al doet vermoeden is het restaurant gespecialiseerd in het bereiden van vis. Echtpaar Jan en Francis Rijk bezaten voorheen eenzelfde soort restaurant in Zeeland, een welbekende provincie voor overheerlijke vis en zeevruchten. Op het menu kan je onder andere fruit de mer, garnalenkroketjes, oesters en hun beroemde kreeftenbisque vinden.

Boodschappen
1593079817
17
Adres
Johannes Verhulststraat,
1066 VH Amsterdam

Slagerij De Schuyt

Slagerij De Schuyt, vernoemd naar hun locatie in de Cornelis Schuytstraat, heeft als symbool de parkiet. Net als de parkiet heeft deze kenmerkende slagerij zijn oorsprong in de jaren zeventig en hebben beiden hun plek veroverd in Amsterdam. Geïnspireerd door de parkiet begon eigenaar Evert Blauwendraat zijn slagerij met het idee om daar een karakteristiek, persoonlijk en bijzonder embleem aan te geven dat voor iedereen herkenbaar is. Bij dit familiebedrijf met een rijke historie kan je terecht voor vlees en delicatessen.

groentenier-winkel-voor-buiten
18
Adres
Cornelis Schuytstraat 35,
1071 NL Amsterdam

Groenteboer Tom Ensink

Groenteboer Tom Ensink zorgt ervoor dat klanten kunnen kiezen uit een exclusief assortiment aan eerlijke producten. Naast groenten worden er kazen, fruit, noten, oliën, wijnen én maaltijden verkocht - zorgvuldig geselecteerd voor de échte fijnproevers in Zuid. Specifieke wensen kunnen worden vervuld wat betreft het bestellen van producten, maar ook voor de verse maaltijden.

Schermafbeelding 2022-05-18 om 19.26.29
19
Adres
Van Breestraat 107A,
1071 ZJ Amsterdam

De Wijnkaart

In het Museumkwartier in Amsterdam-Zuid zit De Wijnkaart. Hier worden allerlei soorten wijnen uit de vergeten Oost-Europese wijnlanden geserveerd. Alhoewel de geschiedenis van het wijn maken hier is begonnen, zijn deze landen vaak vergeten in de wijnwereld. Als je benieuwd bent geworden naar alle soorten wijnen kan je een wijnproeverij doen in de wijnbar, waarbij je zelf mag uitkiezen welke je wil proeven. Naast de borrelplanken die wekelijks veranderen, staan er ook hoofdgerechten op het menu.

69495482_2355482024538342_8370925297519820800_n
20
Adres
1071 MR Amsterdam

ZuiderMRKT

De zuiderMRKT is een kleine, gezellige, wekelijkse buurtmarkt. Uniek door haar coöperatieve karakter. De coöperatie bestaat uit leden - enthousiaste buurtbewoners - die de markt een warm toedragen en meehelpen op de markt en in de groentekraam. De leden bepalen samen het aanbod van alle kramen. Zij kopen groente en fruit rechtstreeks in bij de boer, om ze voor eerlijke prijzen op het zuiderMRKT-plein te verkopen.

40696884_263976027789595_4869878192174792704_n
21
Adres
Koninginneweg 255,
1075 CV Amsterdam

Wijnhuis Amsterdam

Hoewel ze bij Wijnhuis Amsterdam al meer dan 25 jaar professioneel wijn proeven en selecteren, is het wijnhuis in Amsterdam een vrij recente toevoeging aan hun verhaal.  Na talloze proefsessies waren ze zo enthousiast over de Duitse wijnen dat ze maar al te graag de wijnen een platform wilden geven binnen Nederland. Zo openden ze in mei 2018 Wijnhuis.Amsterdam, met in eerste instantie slechts drie eigen importen uit Duitsland. Inmiddels vertegenwoordigen ze een indrukwekkend assortiment van twintig Duitse wijnmakers, drie uit Oostenrijk en één uit Luxemburg. Bij het selecteren van de wijnen is elegantie, de drinkbaarheid, lage alcoholpercentages en een minimale interventie in het productieproces belangrijk.

Interieur
Menno+Kroon+-+Maikel+Thijssen+Photography+-+www.maikelthijssen.com-3
22
Adres
Cornelis Schuytstraat 11,
1071 JC Amsterdam

Menno Kroon

De uitbundige en sfeervolle etalage van Menno Kroon toont zulke betoverende en bijzondere bloemen dat je wel even binnen moet kijken. Prille liefde, verrukking, het onvermijdelijke afscheid. Elk boeket van Menno Kroon geeft betekenis aan een bijzonder moment. Niks is ze te gek bij Menno Kroon en u kunt er terecht voor de meest speciale en uiteenlopende boeketten.

Annindriya-Perfume-_Lounge-Local-Minded-005_lichter_Lowres_480x480
perfumelounge 2
23
Adres
Cornelis Krusemanstraat 25,
1075 NC Amsterdam

Perfume Lounge

Bij de ‘Perfume lounge’ richten ze zich op het maken en adviseren van geuren voor bedrijven en organisaties en wat reuk kan toevoegen aan een merk of organisatie. Daarnaast hebben zij een winkel met een assortiment van de meest bijzondere parfums van de wereld, waar zij ook persoonlijk geuradvies geven. Advies voor op de huid of in huis. Volgens de experts voegt geur iets toe wat niet zichtbaar en tastbaar is. Je kunt geur op verschillende manieren inzetten in een ruimte. Het begint natuurlijk eerst dat het er niet negatief mag ruiken. Er zijn best wel veel ruimtes waar je het riool of sanitair ruikt, waar veel gerookt is of waar de afzuiging niet goed is en het naar eten ruikt. De meeste simpele manier van geur in huis is dat het schoon ruikt. Veel mensen associëren schoonmaak of wasmiddel met een schoon, opgeruimd en verzorgd huis. Daarnaast kun je de ambiance aanzetten. Net zoals met licht en muziek kun je de sfeer verzachten of versterken. Je kunt het heel huiselijk laten ruiken of juist heel modern. Landelijk of artistiek. Of juist heel minimalistisch of intiem.

Kunst & cultuur
241801382_194597056100298_7531339944812475387_n
24
Adres
Willemsparkweg 134,
1071 HR Amsterdam

Galerie Bildhalle

Bildhalle is oorspronkelijk opgericht als een Zwitserse galerie gespecialiseerd in klassieke en hedendaagse fotografie. De galerie heeft inmiddels vestigingen in Zürich en Amsterdam. Sinds de oprichting door Mirjam Cavegn in 2013, heeft de galerie zich ontwikkeld tot een van de meest gerespecteerde fotogaleries in Zwitserland. In oktober 2021 zette Bildhalle haar groei voort met de opening van een tweede galerie aan de Willemsparkweg in Amsterdam. Hier presenteert de galerie een zorgvuldig geselecteerde collectie van Nederlandse en internationale kunstenaars, variërend van opkomend talent tot gevestigde fotografen.

315727004_139279408874516_3171046503847699668_n
25
Adres
Willemsparkweg 64H,
1071 HK Amsterdam

Hama Gallery

Bij Hama Gallery geloven ze dat een galerie een grenzeloze ontmoetingsplaats is waar kunst en mensen samenkomen. Het doel is om kunst toegankelijker te maken door een unieke ervaring te bieden die breekt met traditie. De galerie verwelkomt bezoekers met open armen, of je nu binnenloopt voor een spontaan bezoek, een intieme privébezichtiging wilt, of samen met anderen kunst wilt vieren tijdens onze feestelijke openingen en tuinevenementen.

‘Duurzaam hergebruik met behoud van geschiedenis’.

‘Duurzaam hergebruik met behoud van geschiedenis’.

Een bron van inspiratie in Bergen Noord Holland

Een bron van inspiratie in Bergen Noord Holland

Kunstagenda oktober 2025

Kunstagenda oktober 2025

Onlangs bekeken
Bekijk het overzicht

Deze site maakt gebruik van cookies.

Voor welke cookies geef je akkoord?