Gerenoveerd en licht drielaags bovenhuis met eigen entree vanaf de straat en een woonoppervlakte van 186 m². Het is gelegen op eigen grond. Een woning waar sfeer en comfort mooi samenkomen. De afwerking is hoogwaardig met behoud van het originele karakter. Van de royale living met klassieke details tot het heerlijk dakterras met een panoramisch uitzicht.

Rondleiding
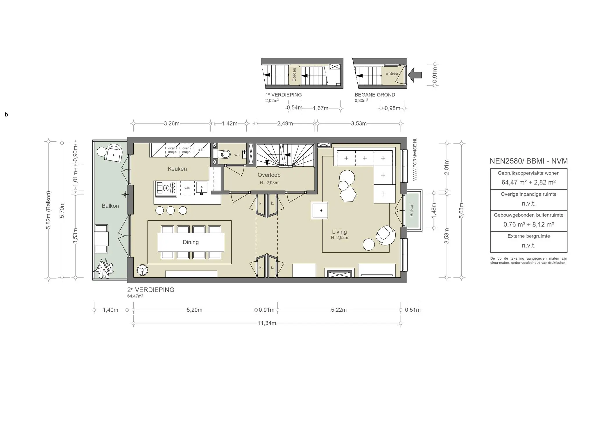
De woonverdieping is een stijlvolle ruimte waar het licht en ruimtelijke gevoel direct opvallen. Aan de voorzijde biedt de living een warme plek om te ontspannen. Klassieke details zoals de kamer ensuite, schouw en de hoge ramen versterken de sfeer, terwijl een royale zithoek met charmante franse balkon uitzicht biedt op de groene en brede straat. 
De eetkamer vormt de schakel tussen de living en de open keuken. Hier is ruimte voor een lange eettafel onder sierlijke hanglampen, perfect voor gezellige diners. De keuken zelf is een combinatie van strakke lijnen en warme materialen. Een groot kookeiland met natuurstenen werkblad biedt ruimte om te koken, terwijl de witte kastenwand zorgt voor een rustige uitstraling. De moderne apparatuur, inclusief dubbele ovens en een ruime inductiekookplaat, quooker etc maakt koken hier een feest. De open planken bieden plaats aan stijlvolle accessoires en een gezellige koffiehoek met espressomachine maakt de ruimte compleet, ideaal voor een ontspannen start van de dag.

Op iedere etage ligt een hoogwaardige eiken vloer in visgraat patroon. 
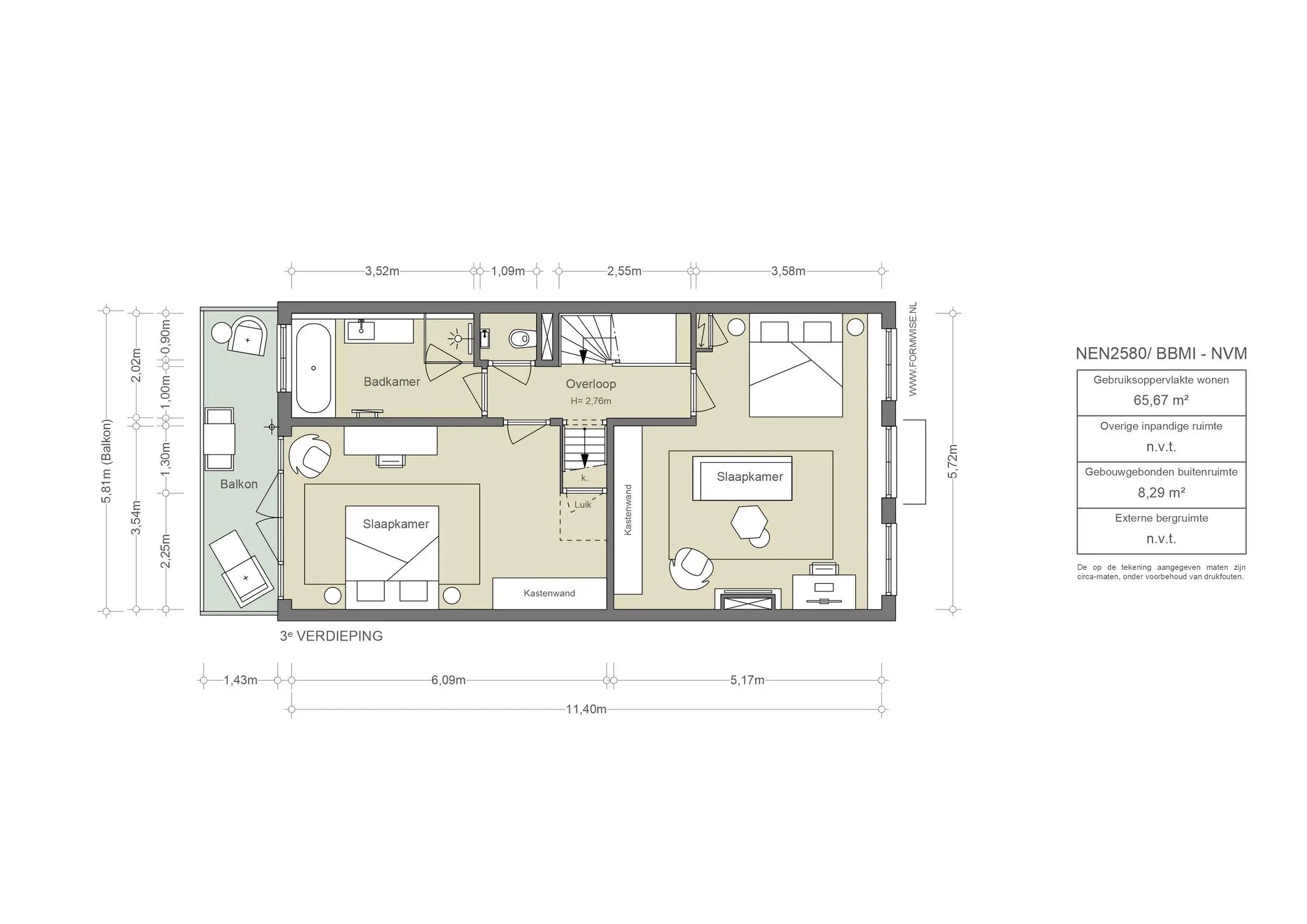
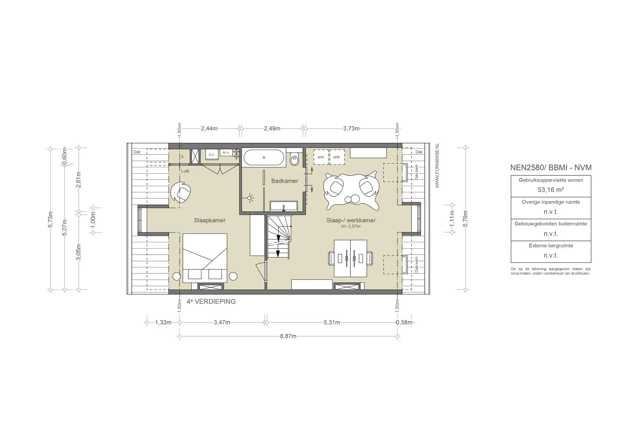
Het royale bovenhuis heeft vier zeer ruime slaapkamers en twee volwaardige badkamers verdeeld over twee woonlagen.
De slaapverdieping biedt rust en comfort. Aan de voorzijde bevindt zich de master bedroom, met grote ramen die zorgen voor veel natuurlijk licht. Er is meer dan voldoende ruimte voor een grote kastenwand. De badkamer is stijlvol afgewerkt met een inloopdouche, ligbad en dubbel wastafelmeubel. Er is gekozen voor een tijdloze en moderne afwerking door grijstinten en hout. Op deze etage is er een separaat toilet aanwezig. Aan de achterzijde bevindt zich een tweede slaapkamer met toegang tot een balkon. 
De bovenste verdieping heeft eveneens twee royale slaapkamers, ook kan dit uitstekend. Dankzij de grote dakramen in de schuine wanden voelt het hier licht en ruim aan. De tweede badkamer is modern, met een inloopdouche, ligbad, wastafel en toilet.

Buitenruimte
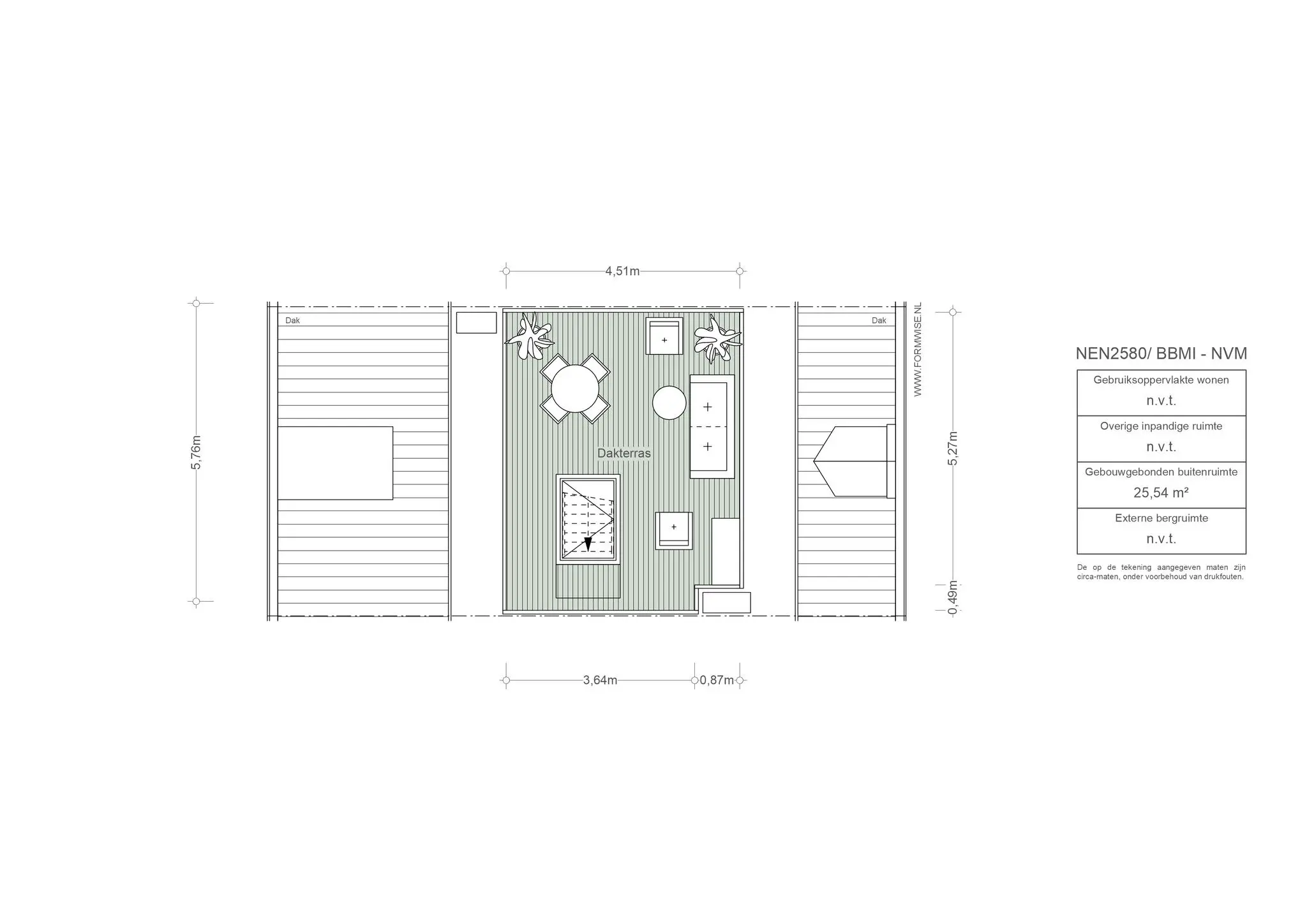
De buitenruimten van het pand biedt zowel drie prettige balkons als een royaal dakterras van ca. 26m². Het balkon aan de achterzijde is een ideale plek voor een rustige zitplek. Het dakterras biedt een panoramisch uitzicht over de stad, met ruimte om te loungen en te dineren. Planten zorgen voor privacy en sfeer, en een buitendouche biedt verkoeling op warme dagen. Vanuit hier prachtig uitzicht over de stad.

Buurtgids
De woning is gelegen in het geliefde Museumkwartier, bekend om zijn 19e-eeuwse architectuur, sfeervolle cafés, exclusieve winkels en iconische musea. Het Museumplein, het Vondelpark en de grachten bevinden zich op loopafstand.
In de directe omgeving liggen het Rijksmuseum en het Van Gogh Museum, beide wereldwijd bekend. Ook de P.C. Hooftstraat — dé luxe winkelstraat van Amsterdam — ligt op slechts enkele minuten lopen.
De buurt biedt een ruim aanbod aan restaurants, cafés en bars, met voor ieder wat wils. Voor dagelijkse boodschappen zijn er kwaliteitswinkels aan de Van Baerlestraat en Beethovenstraat. Elke zaterdag is er een biologische markt aan de Jacob Obrechtstraat.
De levendige Pijp, met de Albert Cuypmarkt, het Vondelpark en het stadscentrum zijn allemaal eenvoudig te voet bereikbaar.
Kortom, een ideale locatie voor wie wil wonen in een charmante en culturele omgeving in het hart van Amsterdam.

Bijzonderheden
•    Gebruiksoppervlakte wonen circa 186 m²
•    Dakterras van circa 26 m²
•    Gelegen op eigen grond
•    Energielabel A
•    Intern gerenoveerd in 2021
•    Airconditioning op de slaapverdiepingen
•    Vve met 2 leden
•    Servicekosten € 110,- per maand 
•    Gemeentelijk beschermd stadsgezicht
 

AM104058-1800051-Jacob-Obrechtstraat-18-2,-Amsterdam-154909539

De Jacob
Welkom aan de Jacob Obrechtstraat 18 – een woning waar sfeer en comfort samenkomen. Hier geniet je van prachtig licht dankzij de hoge raampartijen en van ruimtes die met zorg en oog voor detail zijn afgewerkt. De afwerking is hoogwaardig, met behoud van het originele karakter. Van de royale living met klassieke elementen tot het heerlijke dakterras met panoramisch uitzicht – elke ruimte ademt stijl en rust.
Dit drielaags benedenhuis met eigen entree heeft een woonoppervlakte van 186 m² en is gelegen op eigen grond.


Judith de Jong | Makelaar Broersma Wonen
Jelle Mundt | Makelaar Broersma Wonen
AM104058-1800051-Jacob-Obrechtstraat-18-2,-Amsterdam-154909297
Designvisie

Dit klassieke pand aan de Jacob Obrechtstraat combineert historische charme met modern comfort. De gevel met rijk metselwerk, sierlijke natuurstenen details en een karakteristiek balkon weerspiegelt de Amsterdamse architectuur uit het fin de siècle. Het pand, met zijn fraaie ornamenten en hoge raampartijen, vertelt de rijke geschiedenis van Amsterdam-Zuid.
Het is gebouwd in neorenaissancestijl. Kenmerkend voor deze bouwstijl is het gebruik van baksteen in combinatie met natuurstenen banden en decoraties, een symmetrische gevelindeling, rijk gedetailleerde raamomlijstingen en decoratieve elementen zoals speklagen. Ook de dakkapellen en de hoge, smalle ramen met ronde bogen zijn typische kenmerken van de neorenaissance-architectuur.

AM104058-1800051-Jacob-Obrechtstraat-18-2,-Amsterdam-154909291
AM104058-1800051-Jacob-Obrechtstraat-18-2,-Amsterdam-154909323
AM104058-1800051-Jacob-Obrechtstraat-18-2,-Amsterdam-154909307
AM104058-1800051-Jacob-Obrechtstraat-18-2,-Amsterdam-154909351
Wonen en koken

De woonverdieping is een stijlvolle ruimte waar licht en ruimte de hoofdrol spelen. Aan de voorzijde biedt de living een warme plek om te ontspannen. Klassieke details zoals de kamer en suite, schouw en hoge ramen versterken de sfeer, terwijl een royale zithoek met charmant Frans balkon uitkijkt op de groene, brede straat.
De eetkamer vormt de schakel tussen de living en de open keuken. Hier is ruimte voor een lange eettafel onder sierlijke hanglampen – perfect voor gezellige diners. De keuken zelf combineert strakke lijnen met warme materialen. Een groot kookeiland met natuurstenen werkblad biedt volop ruimte om te koken, terwijl de witte kastenwand voor een rustige uitstraling zorgt. De moderne apparatuur, waaronder dubbele ovens, een royale inductiekookplaat en een Quooker, maakt koken hier een waar plezier. Open planken bieden plaats aan stijlvolle accessoires en een gezellige koffiehoek met espressomachine maakt de ruimte compleet – ideaal voor een ontspannen begin van de dag.
Op elke etage ligt een hoogwaardige eikenhouten vloer in visgraatpatroon.

AM104058-1800051-Jacob-Obrechtstraat-18-2,-Amsterdam-154909347
AM104058-1800051-Jacob-Obrechtstraat-18-2,-Amsterdam-154909313
AM104058-1800051-Jacob-Obrechtstraat-18-2,-Amsterdam-154909389
AM104058-1800051-Jacob-Obrechtstraat-18-2,-Amsterdam-154909421
AM104058-1800051-Jacob-Obrechtstraat-18-2,-Amsterdam-154909403
AM104058-1800051-Jacob-Obrechtstraat-18-2,-Amsterdam-154909467
Slapen en baden

Het royale bovenhuis beschikt over vier zeer ruime slaapkamers en twee volwaardige badkamers, verdeeld over twee woonlagen.
De slaapverdieping biedt rust en comfort. Aan de voorzijde bevindt zich de master bedroom, met grote ramen die zorgen voor veel natuurlijk licht. Er is meer dan voldoende ruimte voor een royale kastenwand. De badkamer is stijlvol afgewerkt en voorzien van een inloopdouche, ligbad en een dubbel wastafelmeubel. De keuze voor grijstinten in combinatie met hout zorgt voor een tijdloze en moderne uitstraling. Op deze etage is tevens een separaat toilet aanwezig. Aan de achterzijde bevindt zich een tweede slaapkamer met toegang tot een balkon.
De bovenste verdieping beschikt eveneens over twee royale slaapkamers, die ook uitstekend kunnen dienen als werkkamer of logeerkamer. Dankzij de grote dakramen in de schuine wanden voelen de ruimtes licht en ruim aan. De tweede badkamer is modern uitgevoerd en voorzien van een inloopdouche, ligbad, wastafel en toilet.

AM104058-1800051-Jacob-Obrechtstraat-18-2,-Amsterdam-154909481
AM104058-1800051-Jacob-Obrechtstraat-18-2,-Amsterdam-154909523
AM104058-1800051-Jacob-Obrechtstraat-18-2,-Amsterdam-154909493
AM104058-1800051-Jacob-Obrechtstraat-18-2,-Amsterdam-154909509
AM104058-1800051-Jacob-Obrechtstraat-18-2,-Amsterdam-154909335
AM104058-1800051-Jacob-Obrechtstraat-18-2,-Amsterdam-154909529
AM104058-1800051-Jacob-Obrechtstraat-18-2,-Amsterdam-154909383
Buitenruimte

De buitenruimte van het pand omvat drie prettige balkons en een royaal dakterras van circa 26 m². Het balkon aan de achterzijde is een ideale plek voor een moment van rust. Het dakterras biedt een panoramisch uitzicht over de stad en beschikt over voldoende ruimte om te loungen en te dineren. Groene beplanting zorgt voor privacy en sfeer, terwijl een buitendouche aangename verkoeling biedt op warme dagen. Vanaf hier is het uitzicht over de stad werkelijk prachtig.

AM104058-1800051-Jacob-Obrechtstraat-18-2,-Amsterdam-154909361
AM104058-1800051-Jacob-Obrechtstraat-18-2,-Amsterdam-154909647
AM104058-1800051-Jacob-Obrechtstraat-18-2,-Amsterdam-154909605
AM104058-1800051-Jacob-Obrechtstraat-18-2,-Amsterdam-154909631
Buurtgids

De woning is gelegen in het geliefde Museumkwartier, bekend om zijn 19e-eeuwse architectuur, sfeervolle cafés, exclusieve winkels en iconische musea. Het Museumplein, het Vondelpark en de grachten bevinden zich op loopafstand.
In de directe omgeving liggen het Rijksmuseum en het Van Gogh Museum, beide wereldwijd bekend. Ook de P.C. Hooftstraat — dé luxe winkelstraat van Amsterdam — ligt op slechts enkele minuten lopen.
De buurt biedt een ruim aanbod aan restaurants, cafés en bars, met voor ieder wat wils. Voor dagelijkse boodschappen zijn er kwaliteitswinkels aan de Van Baerlestraat en Beethovenstraat. Elke zaterdag is er een biologische markt aan de Jacob Obrechtstraat.
De levendige Pijp, met de Albert Cuypmarkt, het Vondelpark en het stadscentrum zijn allemaal eenvoudig te voet bereikbaar.
Kortom, een ideale locatie voor wie wil wonen in een charmante en culturele omgeving in het hart van Amsterdam.

Bereikbaarheid
De woning is gemakkelijk te bereiken met het openbaar vervoer, de fiets, te voet en met de auto. De halte voor het openbaar vervoer is op loopafstand. De tram- en bushalte op het museumplein is circa 3 minuten lopen. Met de fiets is het mogelijk om binnen enkele minuten het centrum te bereiken.
De woning is ook goed te bereiken met de auto. Er zijn verschillende uitvalswegen in de buurt, zoals de A10, de ringweg van Amsterdam, biedt verbindingen naar de rest van Nederland.

Parkeergelegenheid
Parkeren is mogelijk via een vergunningenstelsel op de openbare weg (vergunningsgebied Zuid 8.1.).
Met een parkeervergunning voor Zuid 8.1 mag u parkeren in Zuid-1 en Zuid-2 en Zuid-8.
Een parkeervergunning voor bewoners kost € € 192,81 per 6 maanden.
Momenteel is er voor dit vergunningsgebied een wachttijd van 7 maanden. Een tweede parkeervergunning is in dit gebied niet mogelijk. (Bron: Gemeente Amsterdam, mei 2025).

AM104058-1800051-Jacob-Obrechtstraat-18-2,-Amsterdam-154909587
AM104058-1800051-Jacob-Obrechtstraat-18-2,-Amsterdam-154909319
AM104058-1800051-Jacob-Obrechtstraat-18-2,-Amsterdam-154909497
Kenmerken
Jacob Obrechtstraat 18-2, Amsterdam
Vraagprijs
  • € 1.880.000 k.k.
Beschikbaarheid
  • In overleg
Vertrekken
  • 6 kamers
  • 4 slaapkamers
  • 2 badkamers
Onderhoud
  • Intern: Goed tot uitstekend
  • Extern: Goed tot uitstekend
Oppervlakten & Inhoud
  • Woonoppervlakte: 186 m²
  • Gebouwgebonden buitenruimte: 43 m²
Bouwjaar
  • 1898
Installaties
  • Airconditioning
  • Domotica
  • Glasvezel kabel
  • Mechanische ventilatie
  • TV kabel
Ligging
  • Aan rustige weg
  • In woonwijk
Parkeren
  • Betaald parkeren
  • Parkeervergunningen
Type verwarming
  • CV Ketel
Type warmwater
  • CV Ketel
Bestemming
  • Woonruimte
Eigendomssoort
  • Volle eigendom
Buitenruimte
  • Geen tuin
  • Balkon
  • Dakterras
Kadastraal
  • Gemeente: Amsterdam
  • Sectie: U
  • Nummer: 9945
Duurzaamheid
  • Dubbel glas
  • Energielabel A
Soort
  • Appartement
  • Bovenwoning
Welke woonlaag
  • 2e
Bijzonderheden
  • Beschermd stads of dorpsgezicht
Overige kenmerken
  • OZB ('25) € 941,09 per jaar
  • Rioolrecht ('25) € 185,20 per jaar
  • Gelegen op eigen grond
  • Airconditioning op de slaapverdiepingen
  • VvE met 2 leden
  • Servicekosten € 110,- per maand 
  • Gemeentelijk beschermd stadsgezicht
Plattegrond
Jacob Obrechtstraat 18-2, Amsterdam
AM104058-1800051-Jacob-Obrechtstraat-18-2,-Amsterdam-138594186
AM104058-1800051-Jacob-Obrechtstraat-18-2,-Amsterdam-138594188
AM104058-1800051-Jacob-Obrechtstraat-18-2,-Amsterdam-138594189
AM104058-1800051-Jacob-Obrechtstraat-18-2,-Amsterdam-138594191
Documenten
Jacob Obrechtstraat 18-2, Amsterdam
Locatie
Jacob Obrechtstraat 18-2, Amsterdam
Eten & drinken
Schermafbeelding 2022-05-18 om 16.11.48
Schermafbeelding 2022-05-18 om 16.12.05
01
Adres
Willemsparkweg 74,
1071 HK Amsterdam

George W.P.A

George W.P.A is de ideale plek om neer te strijken voor een goed glas wijn en lekker eten met een chique touch. De brasserie in Zuid is naar eigen zeggen een combinatie van klassieke Franse gerechten, verpakt in New-Yorkse stijl en staat bekend om signature dishes zoals gegrilde kreeft en Blackened Tuna. Treed binnen (op reservering) in het "Upper South" van Amsterdam en see for yourself!

Schermafbeelding 2022-05-11 om 16.25.41
02
Adres
Johannes Verhulststraat 32,
1071 NE Amsterdam

Pizzeria Le 4 Stagioni

Voor bezoekers van het Concertgebouw zijn de Romaanse pizza's met dunne bodem geen vreemde. Sinds 1978 voorziet de pizzeria in Oud-Zuid menige groep en (grote) families van authentiek Italiaans eten. Het interieur heeft een Mediteraans tintje en het menu biedt voor ieder wat wils, van verse pasta's en mals vlees, tot onmisbare antipasti en vegetarische alternatieven.

downloadgram.org_612368537_18441156778097723_3706005334160954595_n
03
Adres
Johannes Verhulststraat 64-H,
1071 NH Amsterdam

Franzen

Chef en eigenaar Jesse Franzen groeide op in een horecafamilie in Haarlem. Zijn vader stond in de keuken, zijn moeder werkte in de bediening. Zijn eigen professionele reis begon in de keuken van het tweesterrenrestaurant Chapeau, waarna hij ervaring opdeed bij onder andere Aan de Poel, Ron Gastrobar en Lars Amsterdam. Met Franzen creëert Jesse een plek die voelt als een moderne huiskamer voor de stad. Toegankelijk en warm, maar altijd met een hoge standaard. Het menu is klassiek en herkenbaar, met hier en daar een verrassende twist.

welling
04
Adres
Jan Willem Brouwersstraat 32,
1071 LK Amsterdam

Café Welling

Café Welling is een knus buurtcafé aan de J.W. Brouwersstraat; vlakbij het Museumplein. Hier kun je genieten van een lekker biertje aan de bar of op het terras als het zonnetje schijnt. Dit buurtcafé kent een lange geschiedenis. Het café bestaat al langer dan 70 jaar maar draagt pas sinds 1963 de naam Café Welling. Deze historie verklaart misschien wel de oude vertrouwde sfeer die in dit café altijd te vinden blijkt. Interessant voor muziekliefhebbers: bij Café Welling worden regelmatig Jazz-avonden georganiseerd.

photo_1500x
05
Adres
Willemsparkweg 8h,
1071 HD Amsterdam

Coffee District

Eigenaren Adil Loukane en Rosa Loukane begonnen met een hole-in-the-wall coffeeshop in een modewinkel in Zuid. Toen de winkel de deuren sloot, grepen Adil en Rosa hun kans en besloten om hun eigen koffiebar te openen. Inmiddels hebben ze meerdere locaties. De koffie wordt gemaakt met een eigen melange gebrand door Lot Sixty One. Daarnaast worden er zoetigheden aangeboden zoals de inmiddelsal bekende kaneelbroodjes en bananenbrood.

brasserie-de-joffers-buiten02-1600px-1024×615
Brasserie_De_Joffers_Lunch-7-1600px-1024×683
06
Adres
Willemsparkweg 163,
1071 GZ Amsterdam

Brasserie de Joffers

Met een groot terras in de zomer én winter is brasserie Joffers al 15 jaar een bekende hotspot op steenworp afstand van het Vondelpark en het Museumkwartier. Mocht de zon niet schijnen, dan is er binnen genoeg plek - een met kunst en spiegelwanden ingerichte ruimte, wat voor een huiselijke sfeer zorgt. De ontmoetingsplek voor de buurt is ideaal voor ontbijt, lunch en diner of simpelweg voor een lekkere kop koffie.

07
Adres
Cornelis Schuytstraat 8-10,
1071 JH Amsterdam

Brasserie van Dam

Brasserie van Dam staat bekend om een simpele maar effectieve receptuur: een niet te uitgebreide kaart met kwalitatief goede producten, acceptabele prijzen, goede koffie, een fijne sfeer en vriendelijk personeel.

273565404_2463417327127039_151412226997513128_n
08
Adres
Willemsparkweg 177,
1071 GZ Amsterdam

Batoni Khinkali

In Nederland is de Georgische keuken helaas ondervertegenwoordigd, ondanks haar rijke en boeiende culinaire erfgoed. Gelukkig biedt Batoni Khinkali een introductie tot deze smaakvolle keuken. Dit restaurant, opgericht door de Georgische klarinettist Levan Tskhadadze, combineert zijn liefde voor muziek met zijn passie voor koken. Hier kunnen gasten genieten van Georgische klassiekers zoals khinkali, katsjapuri en lobio, evenals een veganistisch en vleesmenu, allemaal geserveerd met de kenmerkende Georgische gastvrijheid.

tip_10694-edible-treasures-large
09
Adres
Jacob Obrechtstraat 75,
1071 KK Amsterdam

Edible Treasures

In een voormalige slagerij in Amsterdam Zuid huist de concept store Edibe Treasures. Naast de 'edibles en drinkables' in de koffieshop vind je hier een prachtige selectie van alles voor op de tafel zoals zilverwerk, keramiek, tafellinnen, maar ook kookboeken en accessoires. Er worden ook regelmatig pop ups en workshops georganiseerd.

491415080_17861354841388437_2472288904698911980_n
10
Adres
Museumplein 10,
1071 DJ Amsterdam

Sandberg

Café Restaurant Sandberg is genoemd naar Willem Sandberg, de vernieuwende oud-directeur van het Stedelijk Museum, een naam die meteen iets zegt over de ambities achter dit restaurant. Het is opgezet door dezelfde jonge Amsterdamse horecaondernemers die ook achter Entrepot en Metro zitten. Overdag werkt de bakkerij samen met de keuken voor zoet bij de koffie, broodjes om mee te nemen of juist een uitgebreide lunch.  Voor het diner sluiten de gordijnen en serveert het jonge team creatieve, maar herkenbare en klassieke gerechten.

75224712_2485719571643176_1503888755814039552_n
13227437_1766619810219826_8909053433635960844_o
11
Adres
Paulus Potterstraat 50,
1071 DB Amsterdam

Taiko

Taiko bevindt zich in het vijfsterren Conservatorium Hotel in Amsterdam. In de keuken staat chef Schilo van Coevorden. Als chef is hij klassiek Frans geschoold, maar raakte al snel niet uitgepraat over de exotische smaken uit Azië. Samen met zijn team heeft hij een menu samengebracht met onder andere sushi, dimsum, curry's en vlees en vis gerechten. Uiteraard zijn er ook vegetarische opties.

339816079_240302538447892_8075740380035601622_n
12
Adres
Van Baerlestraat 47-49,
1071 AP Amsterdam

L'Entrecôte et les Dames

L’Entrecôte et les Dames omarmt het concept van een formule-restaurant, zoals de Fransen het noemen. Binnen een sfeervol ingerichte Franse brasserie staat de entrecôte centraal, altijd met een lichte 'bleu' bereiding van het Maas-Rijn-IJsel rund. Dit wordt geserveerd met frietjes en een verfrissende salade. Als je hierna nog trek hebt krijg je nog een keer een portie opgediend. Liever geen vlees? Als alternatief serveren zij in roomboter gebakken sliptong met ravigottesaus. Zelfde formule en zelfde prijs als het entrecôte menu.

downloadgram.org_610617586_18420032773136397_3224401437205912253_n
13
Adres
Van Baerlestraat 51,
1071 BJ Amsterdam

Esh Pitabar

Esh Pitabar is het nieuwe hoofdstuk van broers Ilan en Joël Benamara, die eerder sinds 2015 Café Martinot runden tot het pand in 2022 noodgedwongen moest sluiten vanwege funderingsherstel. Na een succesvolle crowdfunding besloten ze hun zaak opnieuw op te bouwen, dit keer met meer ruimte voor hun Israëlische roots en inspiratie uit Tel Aviv. Chef Ilan Benamara staat zelf in de keuken en bewaakt een simpele maar duidelijke regel: alles is huisgemaakt, van de hummus tot het pitabrood. Op de kaart vind je streetfood zoals pita falafel, hummus met warme kikkererwten en verse pizza’s, precies zoals je ze in Israël ook zou eten.

14
Adres
Valeriusstraat 85,
1071 MG Amsterdam

Carter

Carter is een moderne brasserie in Amsterdam-Zuid waar internationale klassiekers worden geserveerd met flair en finesse. Aan de Valeriusstraat voelt deze plek als een elegant buurtcafé – informeel, verfijnd en altijd gastvrij. Op de kaart staan tijdloze gerechten als steak tartare, burrata en kreeftenpasta, met een solide wijnselectie ernaast.

Kunst & cultuur
315727004_139279408874516_3171046503847699668_n
15
Adres
Willemsparkweg 64H,
1071 HK Amsterdam

Hama Gallery

Bij Hama Gallery geloven ze dat een galerie een grenzeloze ontmoetingsplaats is waar kunst en mensen samenkomen. Het doel is om kunst toegankelijker te maken door een unieke ervaring te bieden die breekt met traditie. De galerie verwelkomt bezoekers met open armen, of je nu binnenloopt voor een spontaan bezoek, een intieme privébezichtiging wilt, of samen met anderen kunst wilt vieren tijdens onze feestelijke openingen en tuinevenementen.

241801382_194597056100298_7531339944812475387_n
16
Adres
Willemsparkweg 134,
1071 HR Amsterdam

Galerie Bildhalle

Bildhalle is oorspronkelijk opgericht als een Zwitserse galerie gespecialiseerd in klassieke en hedendaagse fotografie. De galerie heeft inmiddels vestigingen in Zürich en Amsterdam. Sinds de oprichting door Mirjam Cavegn in 2013, heeft de galerie zich ontwikkeld tot een van de meest gerespecteerde fotogaleries in Zwitserland. In oktober 2021 zette Bildhalle haar groei voort met de opening van een tweede galerie aan de Willemsparkweg in Amsterdam. Hier presenteert de galerie een zorgvuldig geselecteerde collectie van Nederlandse en internationale kunstenaars, variërend van opkomend talent tot gevestigde fotografen.

Exterieur-Concertgebouw-Kerst-Winter-crop-1
grotezaal-eduarduslee
17
Adres
Concertgebouwplein 10,
1071 LN Amsterdam

Het Concertgebouw

Het Concertgebouw is één van de monumentale panden aan het Amsterdamse Museumplein. Het gebouw stamt uit 1888 en is voltooid volgens de stijl van het Weens classicisme; als heeft het ook kenmerken uit de neorenaissance. Het gebouw is ontworpen voor klassieke concerten maar heeft in de jaren 60 en 70 ook een tijd dienst gedaan als poppodium. Bekende sterren die hier hebben opgetreden zijn onder andere Led Zappelin en Aretha Franklin. Tegenwoordig vinden er jaarlijks bijna duizend concerten en andere culturele activiteiten in het Concertgebouw plaats. Voor degenen met een kleiner budget zijn er ook gratis lunchconcerten. Voor een bezoek aan een lunchconcert kun je het beste eerst even op de website kijken. Vaak kun je daar van de voren gratis kaartjes reserveren.

1-sma-jannes-linders
18
Adres
Museumplein 10,
1071 DJ Amsterdam

Stedelijk Museum

Het Stedelijk Museum is dé plek waar iedereen moderne en hedendaagse kunst en vormgeving kan ontdekken en beleven. 365 dagen per jaar geopend. In het gebouw van het Stedelijk Museum Amsterdam versmelten oude en moderne architectuur tot een geheel. Architect Mels Crouwel gebruikte in de verbouwing van 2012 het wit van ouddirecteur Willem Sandberg als uitgangspunt voor 'de badkuip'. Het Stedelijk Museum Amsterdam neemt sinds 2008 jaarlijks 15 nieuwe Blikopeners aan. Blikopeners zijn open-minded Amsterdamse jongeren, die een jaar lang in het museum werken om de blik van het publiek en personeel te openen.

Boodschappen
Schermafbeelding 2022-05-18 om 19.26.29
19
Adres
Van Breestraat 107A,
1071 ZJ Amsterdam

De Wijnkaart

In het Museumkwartier in Amsterdam-Zuid zit De Wijnkaart. Hier worden allerlei soorten wijnen uit de vergeten Oost-Europese wijnlanden geserveerd. Alhoewel de geschiedenis van het wijn maken hier is begonnen, zijn deze landen vaak vergeten in de wijnwereld. Als je benieuwd bent geworden naar alle soorten wijnen kan je een wijnproeverij doen in de wijnbar, waarbij je zelf mag uitkiezen welke je wil proeven. Naast de borrelplanken die wekelijks veranderen, staan er ook hoofdgerechten op het menu.

69495482_2355482024538342_8370925297519820800_n
20
Adres
1071 MR Amsterdam

ZuiderMRKT

De zuiderMRKT is een kleine, gezellige, wekelijkse buurtmarkt. Uniek door haar coöperatieve karakter. De coöperatie bestaat uit leden - enthousiaste buurtbewoners - die de markt een warm toedragen en meehelpen op de markt en in de groentekraam. De leden bepalen samen het aanbod van alle kramen. Zij kopen groente en fruit rechtstreeks in bij de boer, om ze voor eerlijke prijzen op het zuiderMRKT-plein te verkopen.

groentenier-winkel-voor-buiten
21
Adres
Cornelis Schuytstraat 35,
1071 NL Amsterdam

Groenteboer Tom Ensink

Groenteboer Tom Ensink zorgt ervoor dat klanten kunnen kiezen uit een exclusief assortiment aan eerlijke producten. Naast groenten worden er kazen, fruit, noten, oliën, wijnen én maaltijden verkocht - zorgvuldig geselecteerd voor de échte fijnproevers in Zuid. Specifieke wensen kunnen worden vervuld wat betreft het bestellen van producten, maar ook voor de verse maaltijden.

1593079817
22
Adres
Johannes Verhulststraat,
1066 VH Amsterdam

Slagerij De Schuyt

Slagerij De Schuyt, vernoemd naar hun locatie in de Cornelis Schuytstraat, heeft als symbool de parkiet. Net als de parkiet heeft deze kenmerkende slagerij zijn oorsprong in de jaren zeventig en hebben beiden hun plek veroverd in Amsterdam. Geïnspireerd door de parkiet begon eigenaar Evert Blauwendraat zijn slagerij met het idee om daar een karakteristiek, persoonlijk en bijzonder embleem aan te geven dat voor iedereen herkenbaar is. Bij dit familiebedrijf met een rijke historie kan je terecht voor vlees en delicatessen.

Interieur
Menno+Kroon+-+Maikel+Thijssen+Photography+-+www.maikelthijssen.com-3
23
Adres
Cornelis Schuytstraat 11,
1071 JC Amsterdam

Menno Kroon

De uitbundige en sfeervolle etalage van Menno Kroon toont zulke betoverende en bijzondere bloemen dat je wel even binnen moet kijken. Prille liefde, verrukking, het onvermijdelijke afscheid. Elk boeket van Menno Kroon geeft betekenis aan een bijzonder moment. Niks is ze te gek bij Menno Kroon en u kunt er terecht voor de meest speciale en uiteenlopende boeketten.

Scherm­afbeelding 2023-11-14 om 12.46.19
Scherm­afbeelding 2023-11-14 om 12.46.32
24
Adres
Van Baerlestraat 10,
1071 AL Amsterdam

Carl Hansen & Søn

Carl Hansen & Søn, een Deens familiebedrijf onder leiding van de derde generatie, belichaamt meer dan honderd jaar vakmanschap in modern design.  Bij Carl Hansen & Søn geloven ze dat iconisch design voortkomt uit eenvoud, esthetiek en functionaliteit, met aandacht voor vakmanschap en hoogwaardige materialen. De focus op het behoud van Deense ontwerpklassiekers gaat volgens hun hand in hand met het verwelkomen van nieuwe invloedrijke ontwerpers om een diverse collectie van de beste moderne meubelklassiekers te creëren.

277535791_5208467215858783_4051211327754731278_n
274469633_5110110329027806_2507568570523403675_n
25
Adres
Van Baerlestraat 39-43,
1071 AP Amsterdam

Cosentino

Cosentino Group is een wereldwijd bekend Spaans familiebedrijf dat hoogwaardige innovatieve oppervlakken produceert en distribueert voor de wereld van design en architectuur. Aan de Van Baerlestraat bevindt zich hun inspiratiecentrum waar men kleuren, materialen en toepassingen voor architectuur en designprojecten met elkaar kan vergelijken. Cosentino City biedt een uitgebreid inspiratieplatform waar architecten en ontwerpers elkaar kunnen ontmoeten en kunnen werken.

Kunst & cultuur agenda maart 2026

Kunst & cultuur agenda maart 2026

Een ontwerp wat voelt als een op maat gemaakt pak.

Een ontwerp wat voelt als een op maat gemaakt pak.

Buurtgids: Volewijck (Noord) rondom van der Pekstraat

Buurtgids: Volewijck (Noord) rondom van der Pekstraat

Onlangs bekeken
Bekijk het overzicht

Deze site maakt gebruik van cookies.

Voor welke cookies geef je akkoord?