Een uniek en fraai gezinshuis, waarbij alles in verhouding is: van de afwerking en voorzieningen tot aan de indeling en buitenruimten. Hier woont men zonder een VvE, in een praktisch en prettig ingedeelde woonhuis dat is verdeeld over drie lichte woonlagen en een handige kelder, met in totaal circa 254 m² oppervlakte. Het huis heeft een voortuin waar men van een kopje koffie kunt genieten en uw fietsen kunt stallen, en een circa 10 meter diepe achtertuin van bijna 71 m².
De J.J. Viottastraat ligt heel prettig in de luwte van de gewilde Concertgebouwpleinbuurt en is een zijstraat van de Cornelis Schuytstraat.

Rondleiding
Dit ruime en smaakvolle familiehuis van circa 254 m² heeft een prettige, vrijwel gelijkvloerse entree en een royale, lichte indeling. De leefruimte bestaat uit een zitkamer met haard aan de voorzijde en een open eet-/woonkeuken aan de tuinzijde. De tuin is verbonden door stalen deuren. De keuken is een echte eyecatcher met spoeleiland, hoogwaardige apparatuur en een natuurlijke overgang naar de zonnige tuin met terras, grasveld en jacuzzi. Op de eerste en tweede verdieping bevinden zich in totaal vijf slaapkamers, een studeerkamer (tevens te gebruiken als zesde slaapkamer), twee badkamers en een prettige laundry. De oudersuite beschikt over een frans balkon, walk-in closet en stijlvolle badkamer met vrijstaand ligbad. Alle verdiepingen zijn licht, praktisch ingedeeld en afgewerkt met eikenhouten vloeren en heeft ensuite een luxe bad- en kleedkamer. De tuin ligt op woonniveau en is via grote glazen puien direct verbonden met het huis. Naast de diepe achtertuin met meerdere zitplekken is er ook een voortuin met ruimte voor fietsen en een zitje in de ochtendzon. Extra buitenruimtes zijn het franse balkon en een loggia. Kortom: een comfortabel, sfeervol en compleet gezinshuis.

Buurtgids
Op de plek waar nu het Museumplein ligt, stonden 150 jaar geleden nog boerderijen. Om meer woonruimte te creëren, begon hier aan het begin van de vorige eeuw de bouw van het Museumkwartier. Herkenbaar is de hand van architect Cuypers, die naast de eerste woningen ook het Rijksmuseum in neogotische stijl ontwierp. Deze periode is prachtig verwoord in Publieke Werken van Thomas Rosenboom. Samen met het Concertgebouw in neorenaissancestijl bepaalt dit gebouw het karakter van de wijk. Met de komst van het Van Goghmuseum deed ook de hedendaagse bouwkunst van Gerrit Rietveld haar intrede op het Museumplein. De Concertgebouwbuurt heeft een sfeer en uitstraling die velen aanspreekt. Het aanbod van restaurants, cafés en winkels is even eclectisch als de bouwstijlen en past uitstekend bij de internationale allure van de wijk. Haute-couturekenners en -kopers kunnen terecht in de P.C. Hooftstraat, bij modehuizen als Burberry, Ba&sh en Isabel Marant Étoile. Het prettige aan deze buurt is dat het Centrum, De Pijp en Amsterdam-Zuid – met het Vondelpark – allemaal op loopafstand liggen. Dit deel van de Concertgebouwbuurt heeft weer een net andere dynamiek en een ander type bebouwing, aangezien het in de jaren twintig van de vorige eeuw is gebouwd. De straat is lichter. Het ligt daarbij net in de luwte, maar wel om de hoek. De scholen zijn op loopafstand. Het winkelaanbod in de Cornelis Schuytstraat en de boerenmarkt op de Jacob Obrechtstraat voorzien in de eerste levensbehoeften.

Bijzonderheden
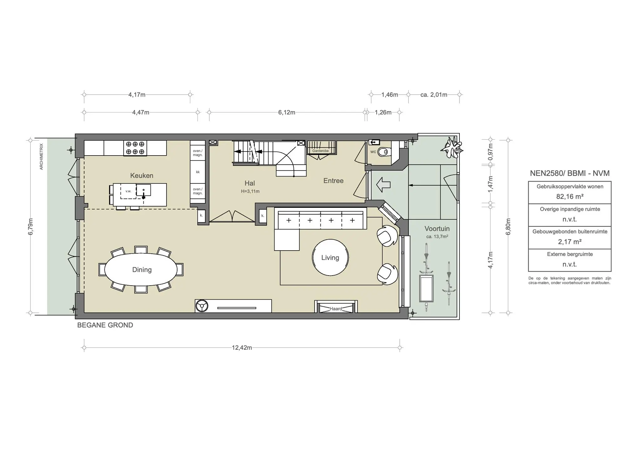
• Gebruiksoppervlakte wonen circa 254 m²
• Zonnige tuin gelegen op het noordwesten van circa 71 m², met 10 meter diepte.
• Twee balkons van totaal circa 8 m²
• Gelegen op erfpachtgrond van Gemeente Amsterdam. Er is overgestapt naar eeuwigdurende erfpacht en Algemene Bepalingen 2016 van toepassing. Huidige jaarlijkse canon bedraagt € 1.251,-, tijdvak voor deze canon loopt tot 30 juni 2041. De canon is IB aftrekbaar. Het is mogelijk de canon eeuwigdurend af te kopen.
• Energielabel C
 

AM106086-2002101-J.J.-Viottastraat-12,-Amsterdam-227033800

The Perfect TownHouse No.12
Sommige woningen die wij bezoeken, weten ons echt te verrassen. Zo ook dit huis. We kennen de woningen in deze straat en zijn eerder verrast door de prettige indeling. Deze woning was opnieuw zo’n verrassing. Ook dit huis heeft die fijne, efficiënte indeling én een tijdloze sfeer: The Perfect TownHouse No. 12. Wij herkennen in dit huis een ideale balans tussen grootte, functionaliteit en de smaakvolle manier waarop het is verbouwd. Het is niet te groot, maar voelt zeker ook niet te klein. Die balans is mede te danken aan de doordachte indeling, slimme functies en verfijnde details. Niet alleen binnen klopt het, ook met buiten is er een goede balans. De kleine voortuin is praktisch én biedt privacy. En de achtertuin is écht onderdeel van het wonen – alles is goed in verhouding. Tot slot: de ligging in de straat en dit deel van het Concertgebouwkwartier is ideaal. Centraal, maar toch in de luwte van de drukte. The Perfect TownHouse No. 12 is voor ons opnieuw zo’n parel die we met trots presenteren.


Kees Kemp | Makelaar Broersma Wonen
Ronald van de Bijl | Makelaar Broersma Wonen
J.J. Viottastraat 12-75
Architectuur

Het pand aan de J.J. Viottastraat 12 maakt deel uit van een bouweenheid die in 1925 is gebouwd en is ontworpen door architect Gerrit Jan Rutgers. Rutgers is een van de bekendere architecten die behoorde tot de stroming van de Amsterdamse School. Het ontwerp van dit bouwblok bestaat uit een eenheid van in totaal 9 woningen, met een middenblok van 6 woningen met voortuin en aan het einde huizen met extra volume en afwijkende vorm die een visuele beëindiging bevestigen. De middelste huizen hebben een eigen en kenmerkend ontwerp, waaronder een terugliggende veranda met een dak overstek en geïntegreerde plantenbakken. Opvallend is het metselwerk met heldere rode bakstenen en een ruwe voeg. De begane grond heeft een terugliggend entree met een robuuste deur die aan de bovenzijde een ronde vorm heeft. De deur is hoogglans monumentengroen geschilderd. De gevels zijn versierd met beelden van Hildo Krop. Een ander kenmerkend detail is de verticale vlaggenmasten die ieder op een natuurstenen console staan. De vorige eigenaren hebben bij hun verbouwing ook het oorspronkelijke tuinhek aan de straatzijde weer in ere hersteld. De afwerking, de toegepaste materialen en kleurstellingen sluiten naadloos op elkaar aan. Mooie lichte tinten, eikenhout en metalen kozijnen vormen een rustige basis waarin elk persoonlijk interieur past. Het trappenhuis vormt het hart van het huis met aan de bovenzijde een daklicht dat het licht centraal in het huis laat vallen. Het resultaat is een gezinshuis als een heerlijk geheel waar alles samenvalt en klopt.

J.J. Viottastraat 12-77
J.J. Viottastraat 12-20
J.J. Viottastraat 12-24
J.J. Viottastraat 12-29
Wonen en koken

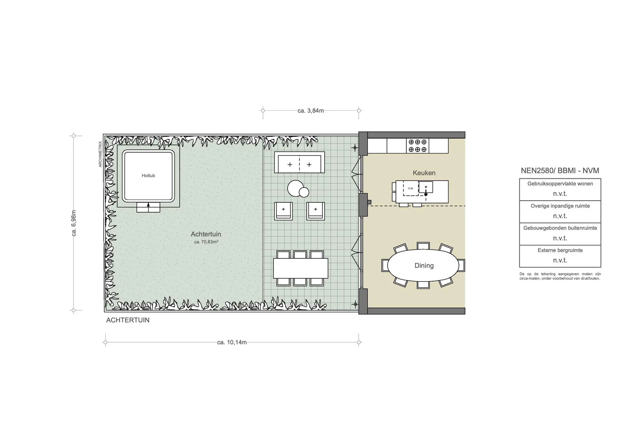
De woning heeft een prettig toegankelijke entree, vrijwel gelijkvloers met de straat en de voortuin. Via een voorportaal kom je in de centrale hal, waar direct de fraaie trapopgang opvalt. Aan de zijkant is de woonkamer middels dubbele stalen deuren met glas verbonden, wat een ruimtelijk effect geeft. De begane grond beslaat circa 82 m² en vormt één geheel, met aan de voorzijde een zitkamer en aan de tuinzijde een open eet-/woonkeuken. De voorkamer beschikt over een grote schouw met haard. Aan één zijde, naast de entree, zijn vanuit de hal ingebouwde boekenkasten gerealiseerd. De eikenhouten vloer in visgraatmotief is over de gehele verdieping doorgelegd, waardoor alle vertrekken met elkaar verbonden worden. Aan de achterzijde zijn twee nieuwe stalen puien geplaatst die binnen en buiten met elkaar verbinden; kamer en tuin lopen hierdoor naadloos in elkaar over. Een van de grotere structurele ingrepen is het openbreken van de keuken geweest. Dit heeft aan de achterzijde meer licht en ruimte gebracht en maakt de keuken tot een vanzelfsprekend onderdeel van het dagelijks leven. Een kookeiland en een zichtbare balk in het plafond zorgen voor een natuurlijke scheiding tussen het eetgedeelte en de keuken. De keuken is een echte eyecatcher, zonder overdreven aanwezig te zijn. De grijzige witte tint in de keukenvloer wordt versterkt door hoge eikenhouten kasten. De keuken nodigt uit tot georganiseerd koken. Alle apparatuur en werkbladen zijn erop ingericht om uitgebreid te kunnen koken. Naast een 90 cm breed fornuis met oven beschikt de keuken over een grote koel-vriescombinatie, een vaatwasser, een ruime spoelbak, een stoomoven en een Quooker. Het spoeleiland is zo ontworpen dat je er ook aan kunt zitten, wat het een sociale functie geeft. Dankzij de open verbinding met de tuin is dit voor de huidige bewoners een van de meest geliefde plekken in huis.

J.J. Viottastraat 12-15
J.J. Viottastraat 12-43
J.J. Viottastraat 12-46
J.J. Viottastraat 12-53
J.J. Viottastraat 12-54
J.J. Viottastraat 12-57
J.J. Viottastraat 12-56
Slapen en baden

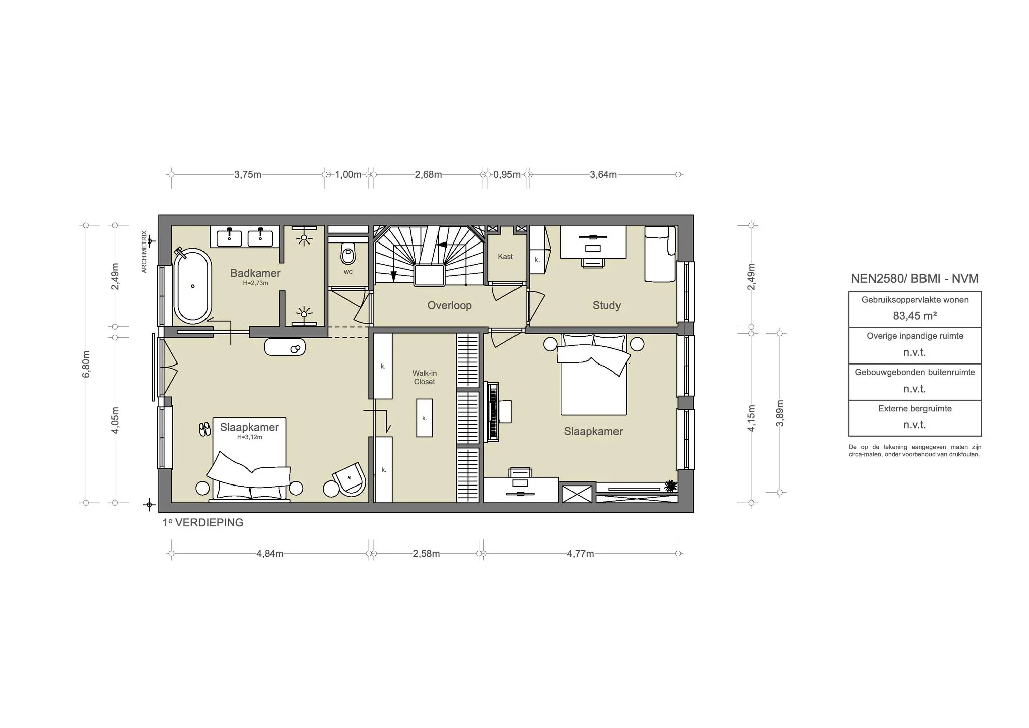
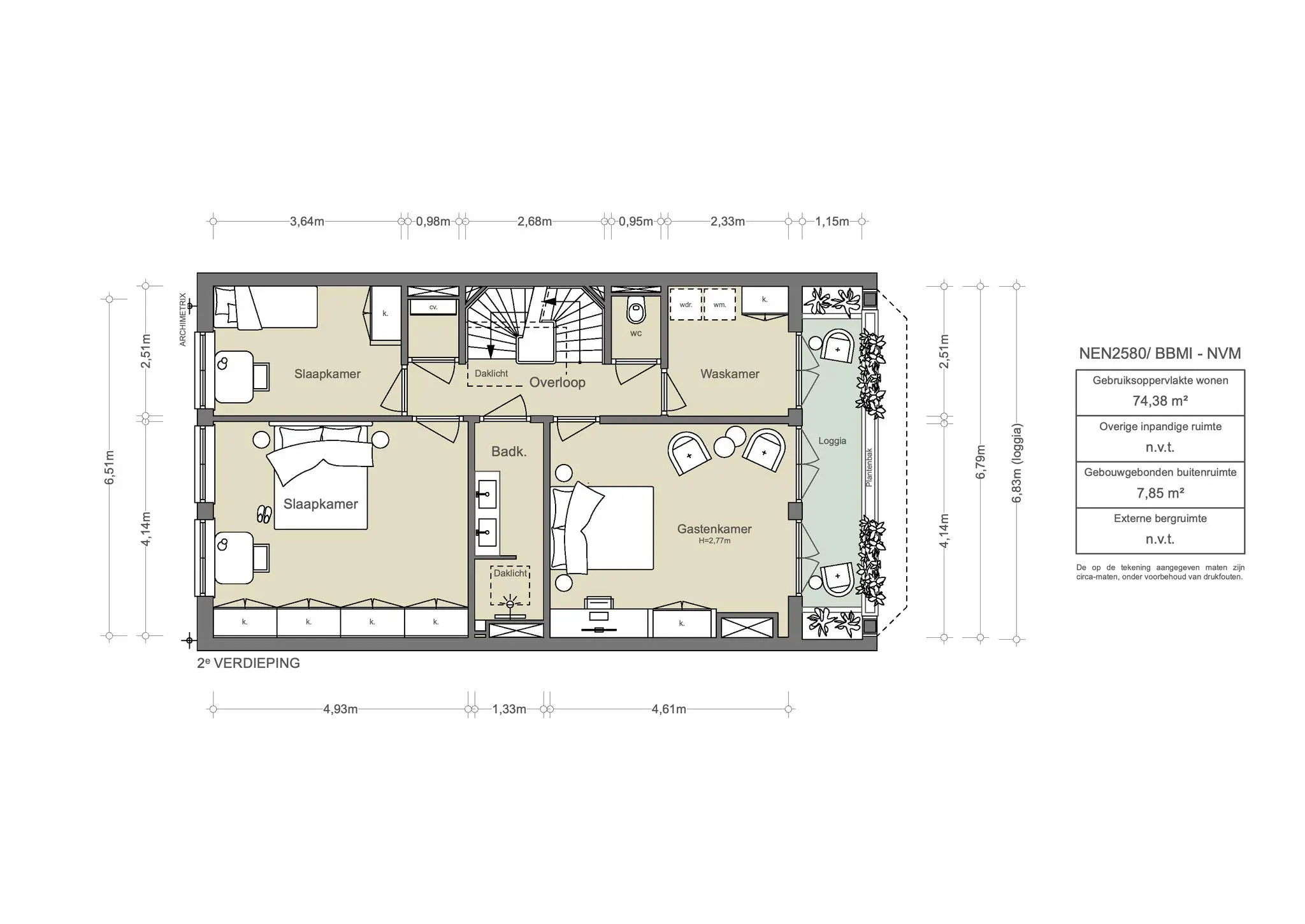
De eerste en tweede verdieping vormen samen de slaapverdiepingen. Ze zijn overzichtelijk en praktisch ingedeeld met in totaal vijf ruime en prettig ingedeelde slaapkamers, een studeerkamer, een laundry en twee badkamers. Beide etages zijn licht en royaal van opzet. Op de eerste verdieping is een centrale, ruime overloop met daglicht dat van boven binnenvalt. Aan de achterzijde bevindt zich de oudersuite: een royale slaapkamer met een klein balkon, een grote walk-in closet met veel kastruimte, en een direct aangrenzende, stijlvolle badkamer. De badkamer is doordacht ingedeeld en uitgevoerd in ingetogen tinten. Beton ciré vloeren en wanden combineren prachtig met het eikenhouten wastafelmeubel, wat zorgt voor een warme uitstraling. Het vrijstaande ligbad staat sfeervol opgesteld bij het raam. Aan de voorzijde liggen twee ruime en lichte kamers, waarvan één uitstekend dienst kan doen als home office of gameroom voor de kinderen. Dankzij de ligging op het zuiden genieten deze kamers de hele dag van zonlicht. Afhankelijk van de woonwensen zijn deze kamers ideaal als kinderkamers of, zoals nu, als extra werk- en televisiekamer. Ook de tweede verdieping is optimaal ingedeeld. De hal heeft een groot daklicht en geeft toegang tot een ruime en praktisch ingedeelde laundry. Rondom de lichte overloop bevinden zich drie goed bemeten slaapkamers. Deze delen een aparte, toegankelijk geplaatste badkamer. De slaapkamers zijn voorzien van ingebouwde kasten met nissen. De gehele verdieping heeft een eikenhouten parketvloer die mooi doorloopt in alle vertrekken. De laundry is ruim en efficiënt ingericht. Een maatwerk wandmeubel biedt plek aan wasmachine en droger op werkhoogte, met daaronder praktische lades. Daarnaast is er een wastafel, extra kastruimte en ophangstangen voor wasgoed. De ruimte is ruim genoeg om comfortabel te kunnen strijken en linnengoed op te bergen.

J.J. Viottastraat 12-45
J.J. Viottastraat 12-63
J.J. Viottastraat 12-49
J.J. Viottastraat 12-70
J.J. Viottastraat 12-42
AM106086-2002101-J.J.-Viottastraat-12,-Amsterdam-227033862
AM106086-2002101-J.J.-Viottastraat-12,-Amsterdam-227033858
De tuin en de loggia

The Perfect Townhouse No. 12 beschikt over wat wij noemen ”quality outdoor space”: buitenruimte die goed toegankelijk is en direct aansluit op de keuken en woonkamer. Drempelloos en als vanzelfsprekend verlengstuk van het wonen binnen én buiten. De glazen puien met openslaande deuren zorgen voor een naadloze verbinding. De tuin ligt op hetzelfde niveau en begint met een natuurstenen terras dat overloopt in een grasveld. Aan de achterzijde bevindt zich nog een terras, compleet met jacuzzi. Tussen en langs de woningen zijn groene borders met beplanting aangelegd. De tuin is omsloten met een groene, begroeide schutting en er is voldoende ruimte voor bijvoorbeeld een tafeltennistafel. De tuin is daarmee een ideale plek voor kinderen om te spelen én om buiten te eten. In de zomer geniet je hier de hele dag van de zon, die ’s avonds ook nog op de achtergevel schijnt. Aan de voorzijde is er een kleine voortuin, in de eerste plaats praktisch voor het stallen van fietsen, maar ook een fijne plek om met een kopje koffie van de ochtendzon te genieten en informeel contact met de buren te hebben. De voortuin creëert bovendien afstand tot de stoep, wat zorgt voor extra privacy in de woning. Naast beide tuinen beschikt het huis ook over een Frans balkon bij de hoofdslaapkamer en een intieme loggia aan de voorzijde van de tweede verdieping.

AM106086-2002101-J.J.-Viottastraat-12,-Amsterdam-237153514
AM106086-2002101-J.J.-Viottastraat-12,-Amsterdam-227033950
J.J. Viottastraat 12-17
J.J. Viottastraat 8-7
1071 XX Rijksmuseum

Op de plek waar nu het Museumplein ligt, stonden 150 jaar geleden nog boerderijen. Om meer woonruimte te creëren, begon hier aan het begin van de vorige eeuw de bouw van het Museumkwartier. Herkenbaar is de hand van architect Cuypers, die naast de eerste woningen ook het Rijksmuseum in neogotische stijl ontwierp. Deze periode is prachtig verwoord in Publieke Werken van Thomas Rosenboom. Samen met het Concertgebouw in neorenaissancestijl bepaalt dit gebouw het karakter van de wijk. Met de komst van het Van Goghmuseum deed ook de hedendaagse bouwkunst van Gerrit Rietveld haar intrede op het Museumplein. De Concertgebouwbuurt heeft een sfeer en uitstraling die velen aanspreekt. Het aanbod van restaurants, cafés en winkels is even eclectisch als de bouwstijlen en past uitstekend bij de internationale allure van de wijk. Haute-couturekenners en -kopers kunnen terecht in de P.C. Hooftstraat, bij modehuizen als Burberry, Ba&sh en Isabel Marant Étoile. Het prettige aan deze buurt is dat het Centrum, De Pijp en Amsterdam-Zuid – met het Vondelpark – allemaal op loopafstand liggen. Dit deel van de Concertgebouwbuurt heeft weer een net andere dynamiek en een ander type bebouwing, aangezien het in de jaren twintig van de vorige eeuw is gebouwd. De straat is lichter. Het ligt daarbij net in de luwte, maar wel om de hoek. De scholen zijn op loopafstand. Het winkelaanbod in de Cornelis Schuytstraat en de boerenmarkt op de Jacob Obrechtstraat voorzien in de eerste levensbehoeften.

Bereikbaarheid
De J.J. Viottastraat is uitstekend bereikbaar. Het openbaar vervoer is goed vertegenwoordigd, met verschillende tram- en buslijnen die u naar alle delen van de stad en daarbuiten brengen. Station Amsterdam Zuid en station Amsterdam RAI liggen in de buurt. Tot slot bereikt u met de auto binnen vijf minuten de Ring A10. Dankzij de centrale ligging is de hele stad per fiets goed bereikbaar.

Parkeergelegenheid
Parkeren is mogelijk via een vergunningenstelsel op de openbare weg (vergunningsgebied Zuid 8-1). Met een parkeervergunning voor Zuid 8-1 mag u parkeren in Zuid-1, Zuid-2 en Zuid-8. Een parkeervergunning voor bewoners kost € 192,81 per 6 maanden. Momenteel is er voor dit vergunningsgebied een wachttijd van 6 maanden. Een tweede parkeervergunning is in dit gebied niet mogelijk. (Bron: Gemeente Amsterdam, juli 2025).

J.J. Viottastraat 8-6
Wat de eigenaren gaan missen

We voelden ons zo gelukkig toen we dit huis bijna drie jaar geleden vonden… Het was meteen klaar om in te trekken, volledig gerenoveerd. We wilden een heel huis, zodat we geen last zouden hebben van buren boven of onder ons. De JJ Viottastraat is een prachtige, rustige en brede straat, en we kunnen eigenlijk altijd recht voor de deur parkeren! Dankzij de grote tuin konden we er een jacuzzi plaatsen, waar we talloze avonden hebben doorgebracht onder de sterren, gezellig kletsend. Onze zoons hebben er ook veel plezier van gehad met hun vrienden. Over de jongens gesproken: we vinden het geweldig dat zij hun eigen verdieping in het huis hebben. Zo heeft iedereen zijn eigen plek en privacy, en kunnen ze ook makkelijk hun vrienden ontvangen. We wonen op een steenworp afstand van alle leuke winkels in de Cornelis Schuytstraat en genieten van de bijna dorpse sfeer daar. We zullen het zeker missen om in het rondje te zitten met een ijsje van de Frietboutique in de hand, waarbij we steevast bekende en vriendelijke gezichten tegenkomen! We gaan nu op avontuur in Zuid-Frankrijk, maar nemen warme herinneringen mee aan ons huis aan de JJ Viottastraat.

1071 AA Vondelpark 3
AM106086-2002101-J.J.-Viottastraat-12,-Amsterdam-237153508
Kenmerken
J.J. Viottastraat 12, Amsterdam
Vraagprijs
  • € 3.580.000 k.k.
Beschikbaarheid
  • In overleg
Vertrekken
  • 7 kamers
  • 6 slaapkamers
  • 2 badkamers
Onderhoud
  • Intern: Uitstekend
  • Extern: Goed tot uitstekend
Oppervlakten & Inhoud
  • Woonoppervlakte: 254 m²
  • Gebouwgebonden buitenruimte: 10 m²
  • Tuinoppervlakte: 71 m²
  • Perceeloppervlakte: 177 m²
Bouwjaar
  • 1921
Installaties
  • Dakraam
  • Frans balkon
  • Natuurlijke ventilatie
  • TV kabel
Ligging
  • Aan rustige weg
  • In woonwijk
Parkeren
  • Betaald parkeren
  • Parkeervergunningen
Type verwarming
  • CV Ketel
  • Open haard
  • Vloerverwarming gedeeltelijk
Type warmwater
  • CV Ketel
Bestemming
  • Woonruimte
Eigendomssoort
  • Eigendom belast met erfpacht
Buitenruimte
  • Achtertuin
  • Loggia
Kadastraal
  • Gemeente: Amsterdam
  • Sectie: Z
  • Nummer: 438
Duurzaamheid
  • Dubbel glas
  • Volledig geisoleerd
  • Energielabel C
Soort
  • Eengezinswoning
  • Tussenwoning
  • Woonhuis
Bijzonderheden
  • Beschermd stads of dorpsgezicht
Overige kenmerken

OZB ('25) € 1.553,28 per jaar
Rioolrecht ('25) € 185,20 per jaar

Plattegrond
J.J. Viottastraat 12, Amsterdam
AM106086-2002101-J.J.-Viottastraat-12,-Amsterdam-226676006
AM106086-2002101-J.J.-Viottastraat-12,-Amsterdam-226676012
AM106086-2002101-J.J.-Viottastraat-12,-Amsterdam-226676016
AM106086-2002101-J.J.-Viottastraat-12,-Amsterdam-226676020
AM106086-2002101-J.J.-Viottastraat-12,-Amsterdam-226676026
AM106086-2002101-J.J.-Viottastraat-12,-Amsterdam-226676032
Documenten
J.J. Viottastraat 12, Amsterdam
Locatie
J.J. Viottastraat 12, Amsterdam
Eten & drinken
downloadgram.org_612368537_18441156778097723_3706005334160954595_n
01
Adres
Johannes Verhulststraat 64-H,
1071 NH Amsterdam

Franzen

Chef en eigenaar Jesse Franzen groeide op in een horecafamilie in Haarlem. Zijn vader stond in de keuken, zijn moeder werkte in de bediening. Zijn eigen professionele reis begon in de keuken van het tweesterrenrestaurant Chapeau, waarna hij ervaring opdeed bij onder andere Aan de Poel, Ron Gastrobar en Lars Amsterdam. Met Franzen creëert Jesse een plek die voelt als een moderne huiskamer voor de stad. Toegankelijk en warm, maar altijd met een hoge standaard. Het menu is klassiek en herkenbaar, met hier en daar een verrassende twist.

tip_10694-edible-treasures-large
02
Adres
Jacob Obrechtstraat 75,
1071 KK Amsterdam

Edible Treasures

In een voormalige slagerij in Amsterdam Zuid huist de concept store Edibe Treasures. Naast de 'edibles en drinkables' in de koffieshop vind je hier een prachtige selectie van alles voor op de tafel zoals zilverwerk, keramiek, tafellinnen, maar ook kookboeken en accessoires. Er worden ook regelmatig pop ups en workshops georganiseerd.

Schermafbeelding 2022-05-11 om 16.25.41
03
Adres
Johannes Verhulststraat 32,
1071 NE Amsterdam

Pizzeria Le 4 Stagioni

Voor bezoekers van het Concertgebouw zijn de Romaanse pizza's met dunne bodem geen vreemde. Sinds 1978 voorziet de pizzeria in Oud-Zuid menige groep en (grote) families van authentiek Italiaans eten. Het interieur heeft een Mediteraans tintje en het menu biedt voor ieder wat wils, van verse pasta's en mals vlees, tot onmisbare antipasti en vegetarische alternatieven.

84942268_1529941500492597_3844385910518972416_n
04
Adres
Apollolaan 138,
1077 BG Amsterdam

Roberto's Restaurant Amsterdam

In de top tien Italiaanse restaurants van Amsterdam mag Roberto’s niet ontbreken. Het restaurant is gelegen in het Hilton hotel, waar de iconische Italiaanse keuken sinds 25 jaar de borden vult. Het restaurant draait om pure en simpele smaken met gerechten als dungesneden aubergine, groene farfalle pasta met kreeftensaus en Lava cake.

05
Adres
Cornelis Schuytstraat 8-10,
1071 JH Amsterdam

Brasserie van Dam

Brasserie van Dam staat bekend om een simpele maar effectieve receptuur: een niet te uitgebreide kaart met kwalitatief goede producten, acceptabele prijzen, goede koffie, een fijne sfeer en vriendelijk personeel.

brasserie-de-joffers-buiten02-1600px-1024×615
Brasserie_De_Joffers_Lunch-7-1600px-1024×683
06
Adres
Willemsparkweg 163,
1071 GZ Amsterdam

Brasserie de Joffers

Met een groot terras in de zomer én winter is brasserie Joffers al 15 jaar een bekende hotspot op steenworp afstand van het Vondelpark en het Museumkwartier. Mocht de zon niet schijnen, dan is er binnen genoeg plek - een met kunst en spiegelwanden ingerichte ruimte, wat voor een huiselijke sfeer zorgt. De ontmoetingsplek voor de buurt is ideaal voor ontbijt, lunch en diner of simpelweg voor een lekkere kop koffie.

07
Adres
Valeriusstraat 85,
1071 MG Amsterdam

Carter

Carter is een moderne brasserie in Amsterdam-Zuid waar internationale klassiekers worden geserveerd met flair en finesse. Aan de Valeriusstraat voelt deze plek als een elegant buurtcafé – informeel, verfijnd en altijd gastvrij. Op de kaart staan tijdloze gerechten als steak tartare, burrata en kreeftenpasta, met een solide wijnselectie ernaast.

273565404_2463417327127039_151412226997513128_n
08
Adres
Willemsparkweg 177,
1071 GZ Amsterdam

Batoni Khinkali

In Nederland is de Georgische keuken helaas ondervertegenwoordigd, ondanks haar rijke en boeiende culinaire erfgoed. Gelukkig biedt Batoni Khinkali een introductie tot deze smaakvolle keuken. Dit restaurant, opgericht door de Georgische klarinettist Levan Tskhadadze, combineert zijn liefde voor muziek met zijn passie voor koken. Hier kunnen gasten genieten van Georgische klassiekers zoals khinkali, katsjapuri en lobio, evenals een veganistisch en vleesmenu, allemaal geserveerd met de kenmerkende Georgische gastvrijheid.

09
Adres
Valeriusstraat 90,
1075 GH Amsterdam

Barolo

Bar Barolo brengt de sfeer van Noord-Italië naar de Valeriusstraat, midden in het elegante Amsterdam-Zuid. De wijnkaart is royaal en zorgvuldig samengesteld, met Barolo als vanzelfsprekend middelpunt. Op het menu: huisgemaakte pasta, klassieke antipasti en seizoensgerechten zonder opsmuk. Het interieur is warm en ingetogen, net als de gastvrijheid – hier wordt met aandacht gewerkt.

welling
10
Adres
Jan Willem Brouwersstraat 32,
1071 LK Amsterdam

Café Welling

Café Welling is een knus buurtcafé aan de J.W. Brouwersstraat; vlakbij het Museumplein. Hier kun je genieten van een lekker biertje aan de bar of op het terras als het zonnetje schijnt. Dit buurtcafé kent een lange geschiedenis. Het café bestaat al langer dan 70 jaar maar draagt pas sinds 1963 de naam Café Welling. Deze historie verklaart misschien wel de oude vertrouwde sfeer die in dit café altijd te vinden blijkt. Interessant voor muziekliefhebbers: bij Café Welling worden regelmatig Jazz-avonden georganiseerd.

Schermafbeelding 2022-05-18 om 16.11.48
Schermafbeelding 2022-05-18 om 16.12.05
11
Adres
Willemsparkweg 74,
1071 HK Amsterdam

George W.P.A

George W.P.A is de ideale plek om neer te strijken voor een goed glas wijn en lekker eten met een chique touch. De brasserie in Zuid is naar eigen zeggen een combinatie van klassieke Franse gerechten, verpakt in New-Yorkse stijl en staat bekend om signature dishes zoals gegrilde kreeft en Blackened Tuna. Treed binnen (op reservering) in het "Upper South" van Amsterdam en see for yourself!

362085173_18198336283252516_5120199989074488114_n
12
Adres
Willemsparkweg 220hs,
1071 HX Amsterdam

Restaurant Visque

Op het prachtige hoekje van Amsterdam Zuid bevindt zich Restaurant Visque, waar vis de hoofdrol speelt. Onze menukaart is flexibel en afhankelijk van de dagelijkse keuze voor de meest verse en smaakvolle producten. Chef Menno geeft een eigen twist aan eenvoudige Franse gerechten, zoals coquilles, Hollandse garnalen, sliptong en onze bekende Tuna Wellington.

13
Adres
Valeriusstraat 128B,
1075 GD Amsterdam

Castell Zuid

Castell Zuid is de stijlvolle nieuwe vestiging van het iconische Amsterdamse grillrestaurant Castell, gevestigd aan de Valeriusstraat in Oud-Zuid. Waar het origineel in het centrum bekendstaat om zijn no-nonsense steaks en late diners, brengt deze locatie dezelfde smaken in een verfijnde setting. “Same taste, same vibe, different look” luidt het motto – en dat klopt: herkenbaar en toch helemaal nieuw.

312175149_2011502502368624_2613652535986311070_n
14
Adres
Koninginneweg 34,
1075 CZ Amsterdam

Tozi

TOZI betekent in Venetiaans dialect ‘een groep vrienden’, en dat voel je direct als je binnenkomt. Het is net alsof je terecht komt in één grote familie. De kaart toont een selectie van kleine Venetiaans geïnspireerde gerechten om te delen, bekend als cicchetti. Met een Italiaanse wijnkaart en een cocktailbar met Italiaanse gins en negroni's.

 

foto-oesters
15
Adres
Van Baerlestraat 158,
1071 BG Amsterdam

Brasserie van Baerle

De Franse brasserie van Baerle is niet meer weg te denken uit het Amsterdamse stadsbeeld. Met een levensloop van al 41 jaar in Amsterdam-Zuid, is het een vertrouwde plek. De compacte lunch- en dinerkaart bestaat uit klassieke gerechten uit de overwegend Franse brasserie keuken én vernieuwende eigentijdse gerechten.  In het seizoen zijn er altijd oesters, asperges en kreeft. Naast à la carte is er zowel voor lunch als diner een wisselend 3-gangen keuzemenu dat sinds 2010 jaarlijks door Michelin met een ‘BIB Gourmand’  onderscheiden wordt. Grootspraak, de restaurantgids voor wijnliefhebbers, rangschikt Brasserie van Baerle al jaren tot de beste ‘wijnrestaurants’ van Amsterdam.

downloadgram.org_610617586_18420032773136397_3224401437205912253_n
16
Adres
Van Baerlestraat 51,
1071 BJ Amsterdam

Esh Pitabar

Esh Pitabar is het nieuwe hoofdstuk van broers Ilan en Joël Benamara, die eerder sinds 2015 Café Martinot runden tot het pand in 2022 noodgedwongen moest sluiten vanwege funderingsherstel. Na een succesvolle crowdfunding besloten ze hun zaak opnieuw op te bouwen, dit keer met meer ruimte voor hun Israëlische roots en inspiratie uit Tel Aviv. Chef Ilan Benamara staat zelf in de keuken en bewaakt een simpele maar duidelijke regel: alles is huisgemaakt, van de hummus tot het pitabrood. Op de kaart vind je streetfood zoals pita falafel, hummus met warme kikkererwten en verse pizza’s, precies zoals je ze in Israël ook zou eten.

339816079_240302538447892_8075740380035601622_n
17
Adres
Van Baerlestraat 47-49,
1071 AP Amsterdam

L'Entrecôte et les Dames

L’Entrecôte et les Dames omarmt het concept van een formule-restaurant, zoals de Fransen het noemen. Binnen een sfeervol ingerichte Franse brasserie staat de entrecôte centraal, altijd met een lichte 'bleu' bereiding van het Maas-Rijn-IJsel rund. Dit wordt geserveerd met frietjes en een verfrissende salade. Als je hierna nog trek hebt krijg je nog een keer een portie opgediend. Liever geen vlees? Als alternatief serveren zij in roomboter gebakken sliptong met ravigottesaus. Zelfde formule en zelfde prijs als het entrecôte menu.

Boodschappen
1593079817
18
Adres
Johannes Verhulststraat,
1066 VH Amsterdam

Slagerij De Schuyt

Slagerij De Schuyt, vernoemd naar hun locatie in de Cornelis Schuytstraat, heeft als symbool de parkiet. Net als de parkiet heeft deze kenmerkende slagerij zijn oorsprong in de jaren zeventig en hebben beiden hun plek veroverd in Amsterdam. Geïnspireerd door de parkiet begon eigenaar Evert Blauwendraat zijn slagerij met het idee om daar een karakteristiek, persoonlijk en bijzonder embleem aan te geven dat voor iedereen herkenbaar is. Bij dit familiebedrijf met een rijke historie kan je terecht voor vlees en delicatessen.

groentenier-winkel-voor-buiten
19
Adres
Cornelis Schuytstraat 35,
1071 NL Amsterdam

Groenteboer Tom Ensink

Groenteboer Tom Ensink zorgt ervoor dat klanten kunnen kiezen uit een exclusief assortiment aan eerlijke producten. Naast groenten worden er kazen, fruit, noten, oliën, wijnen én maaltijden verkocht - zorgvuldig geselecteerd voor de échte fijnproevers in Zuid. Specifieke wensen kunnen worden vervuld wat betreft het bestellen van producten, maar ook voor de verse maaltijden.

69495482_2355482024538342_8370925297519820800_n
20
Adres
1071 MR Amsterdam

ZuiderMRKT

De zuiderMRKT is een kleine, gezellige, wekelijkse buurtmarkt. Uniek door haar coöperatieve karakter. De coöperatie bestaat uit leden - enthousiaste buurtbewoners - die de markt een warm toedragen en meehelpen op de markt en in de groentekraam. De leden bepalen samen het aanbod van alle kramen. Zij kopen groente en fruit rechtstreeks in bij de boer, om ze voor eerlijke prijzen op het zuiderMRKT-plein te verkopen.

Schermafbeelding 2022-05-18 om 19.26.29
21
Adres
Van Breestraat 107A,
1071 ZJ Amsterdam

De Wijnkaart

In het Museumkwartier in Amsterdam-Zuid zit De Wijnkaart. Hier worden allerlei soorten wijnen uit de vergeten Oost-Europese wijnlanden geserveerd. Alhoewel de geschiedenis van het wijn maken hier is begonnen, zijn deze landen vaak vergeten in de wijnwereld. Als je benieuwd bent geworden naar alle soorten wijnen kan je een wijnproeverij doen in de wijnbar, waarbij je zelf mag uitkiezen welke je wil proeven. Naast de borrelplanken die wekelijks veranderen, staan er ook hoofdgerechten op het menu.

Interieur
Menno+Kroon+-+Maikel+Thijssen+Photography+-+www.maikelthijssen.com-3
22
Adres
Cornelis Schuytstraat 11,
1071 JC Amsterdam

Menno Kroon

De uitbundige en sfeervolle etalage van Menno Kroon toont zulke betoverende en bijzondere bloemen dat je wel even binnen moet kijken. Prille liefde, verrukking, het onvermijdelijke afscheid. Elk boeket van Menno Kroon geeft betekenis aan een bijzonder moment. Niks is ze te gek bij Menno Kroon en u kunt er terecht voor de meest speciale en uiteenlopende boeketten.

Kunst & cultuur
241801382_194597056100298_7531339944812475387_n
23
Adres
Willemsparkweg 134,
1071 HR Amsterdam

Galerie Bildhalle

Bildhalle is oorspronkelijk opgericht als een Zwitserse galerie gespecialiseerd in klassieke en hedendaagse fotografie. De galerie heeft inmiddels vestigingen in Zürich en Amsterdam. Sinds de oprichting door Mirjam Cavegn in 2013, heeft de galerie zich ontwikkeld tot een van de meest gerespecteerde fotogaleries in Zwitserland. In oktober 2021 zette Bildhalle haar groei voort met de opening van een tweede galerie aan de Willemsparkweg in Amsterdam. Hier presenteert de galerie een zorgvuldig geselecteerde collectie van Nederlandse en internationale kunstenaars, variërend van opkomend talent tot gevestigde fotografen.

315727004_139279408874516_3171046503847699668_n
24
Adres
Willemsparkweg 64H,
1071 HK Amsterdam

Hama Gallery

Bij Hama Gallery geloven ze dat een galerie een grenzeloze ontmoetingsplaats is waar kunst en mensen samenkomen. Het doel is om kunst toegankelijker te maken door een unieke ervaring te bieden die breekt met traditie. De galerie verwelkomt bezoekers met open armen, of je nu binnenloopt voor een spontaan bezoek, een intieme privébezichtiging wilt, of samen met anderen kunst wilt vieren tijdens onze feestelijke openingen en tuinevenementen.

Exterieur-Concertgebouw-Kerst-Winter-crop-1
grotezaal-eduarduslee
25
Adres
Concertgebouwplein 10,
1071 LN Amsterdam

Het Concertgebouw

Het Concertgebouw is één van de monumentale panden aan het Amsterdamse Museumplein. Het gebouw stamt uit 1888 en is voltooid volgens de stijl van het Weens classicisme; als heeft het ook kenmerken uit de neorenaissance. Het gebouw is ontworpen voor klassieke concerten maar heeft in de jaren 60 en 70 ook een tijd dienst gedaan als poppodium. Bekende sterren die hier hebben opgetreden zijn onder andere Led Zappelin en Aretha Franklin. Tegenwoordig vinden er jaarlijks bijna duizend concerten en andere culturele activiteiten in het Concertgebouw plaats. Voor degenen met een kleiner budget zijn er ook gratis lunchconcerten. Voor een bezoek aan een lunchconcert kun je het beste eerst even op de website kijken. Vaak kun je daar van de voren gratis kaartjes reserveren.

De Vondelparkbuurt West

De Vondelparkbuurt West

Uitgelicht; Het Achterhuis Hospitium

Uitgelicht; Het Achterhuis Hospitium

Kunstagenda augustus 2025

Kunstagenda augustus 2025

Onlangs bekeken
Bekijk het overzicht

Deze site maakt gebruik van cookies.

Voor welke cookies geef je akkoord?