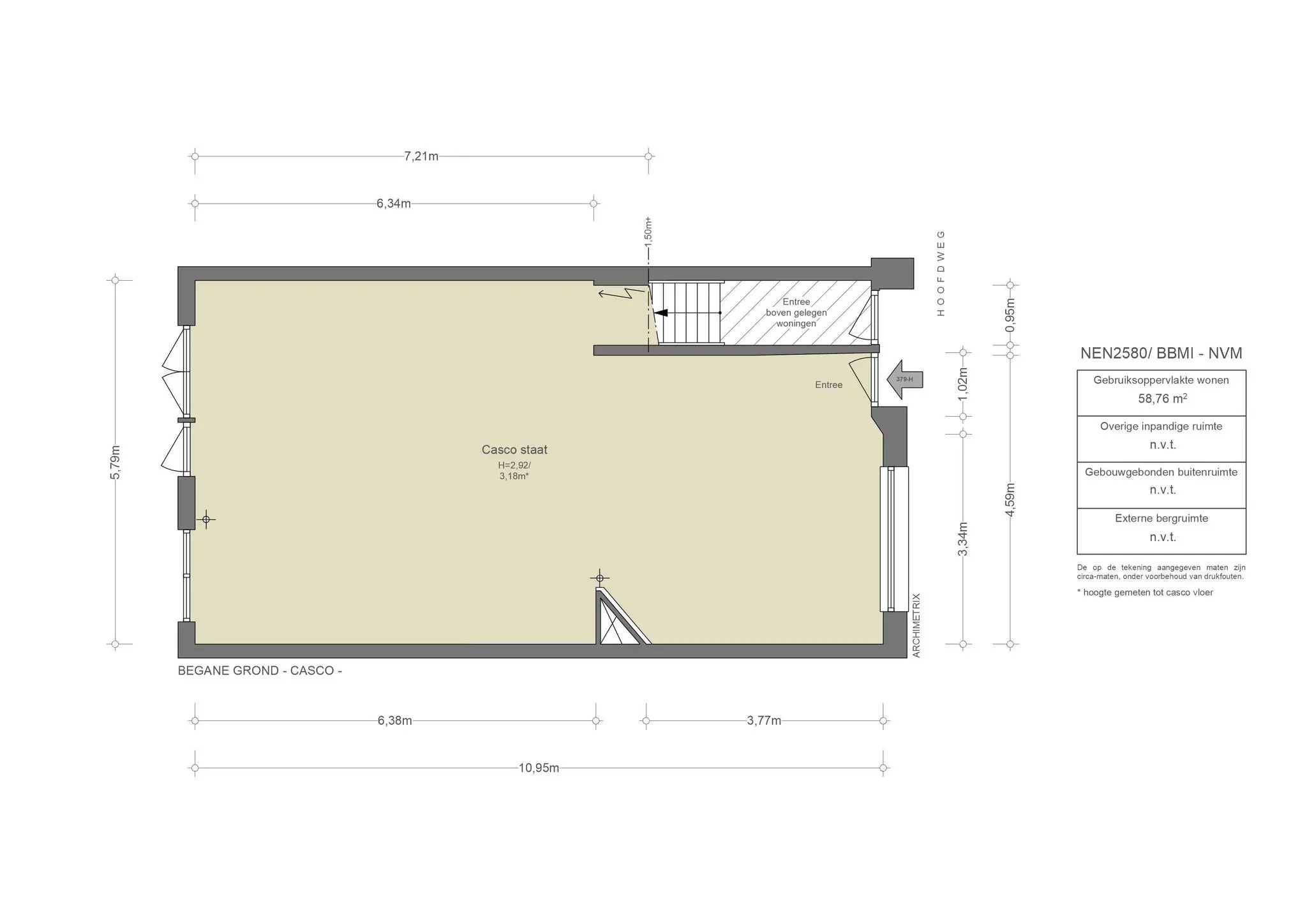
Begane grond-appartement van circa 59 m², gelegen in de Van Galenbuurt. Het appartement is thans in casco staat en heeft een ruime tuin op het zuidwesten.

Rondleiding
Hoofdweg 379 H is een woning in ruwe staat, maar met een heldere belofte. Via een eigen entree aan de straatzijde ligt een casco begane grondwoning; onverdeeld, onafgewerkt, maar ruim, licht en vol mogelijkheden.
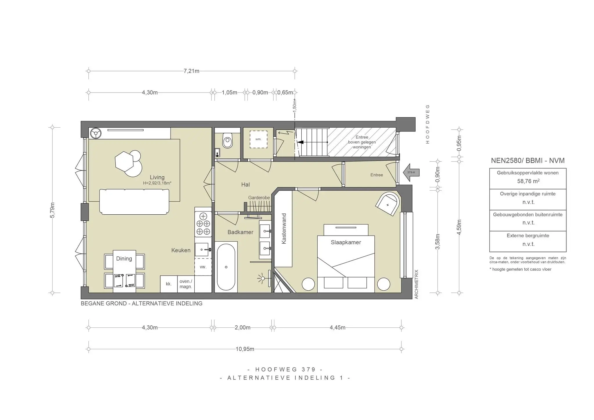
De ruimte strekt zich uit van gevel tot tuin, met hoge plafonds en daglicht aan twee zijden. In de huidige staat ontbreken binnenmuren en afwerking, wat volledige vrijheid geeft voor een eigen indeling. De alternatieve plattegrond toont één van de scenario’s: met een woonkeuken aan de tuinzijde, een slaapkamer aan de straat en een centrale badkamer daartussen.
De achtertuin, westelijk georiënteerd, is royaal van formaat en nog onbewerkt. De erfafscheiding met het naastgelegen perceel zal nog moeten worden gerealiseerd. Wat nu nog een open buitenruimte is, kan uitgroeien tot een volwaardige stadstuin; beschut, groen en verbonden met de leefruimte binnen.
Deze woning is geen eindpunt, maar een begin: een casco basis in een monumentaal jasje, klaar voor transformatie.

Buurtgids 
De woning is gelegen in de wijk Erasmuspark in Amsterdam West. De buurt is een hippe en bruisende plek. Het is een populaire woonwijk voor young professionals, stellen en gezinnen vanwege de aanwezigheid van meerdere stadsparken, groen opzet van de wijk en de gunstige ligging.
De buurt heeft een gevarieerd aanbod van winkels, restaurants en cafés, met veel lokale ondernemingen die bijdragen aan de unieke sfeer van de wijk. Op de Jan van Galenstraat en de Hoofdweg, vindt men een groot aanbod aan supermarkten, winkels, bakkers en eetgelegenheden. In de buurt zijn ook verschillende parken te vinden, waaronder het Erasmuspark, Rembrandtpark en het Westerpark. Het Erasmuspark en Rembrandtpark zijn prachtige stadspark met een vijver, speeltoestellen en diverse sportfaciliteiten. Het Westerpark heeft een cultureel centrum, een bioscoop, diverse restaurants en cafés en is een populaire locatie. 

Bijzonderheden
•    Gebruiksoppervlakte wonen circa 59 m²
•    Tuin gelegen op het zuidwesten van circa 56 m²
•    Gelegen op erfpachtgrond van Gemeente Amsterdam. AB 2000, erfpachtcanon is afgekocht tot en met 31 december 2053
•    Energielabel D
•    Servicekosten VvE € 136,45 per maand
•    Gemeentelijk monument
•    Oplevering kan snel
•    Projectnotaris Spier en Hazenberg
•    Volgende clausules zijn van toepassing: as-is-where-is clausule, Ouderdoms-, niet zelfbewonings- en asbestclausuleclausule
•    Anti-speculatiebeding van toepassing voor 2 jaar

AM105927-1979436-Hoofdweg-379H,-Amsterdam-217604221

The Perfect Canvas
Wij begeleiden als kantoor de verkoop van een uiteenlopend aanbod. Als makelaar is deze afwisseling erg uitdagend en draagt bij aan het beeld dat je krijgt van de totale woningmarkt in Amsterdam. Zelf heb ik een zwak voor Amsterdam West, waar ik zelf lange tijd heb gewoond. De dynamiek van de buurt is erg fijn en de voorzieningen zijn goed. Op onder andere de Hoofdweg, Jan van Galenstraat, Mercatorplein en Jan Evertsenstraat is een diversiteit aan winkels, speciaalzaken en traiteurs te vinden. Daarnaast zijn er diverse goede restaurant en gezellige cafés te vinden in de buurt.
Sommige woningen hebben geen afwerking nodig om indruk te maken. Deze begane grondwoning aan de Hoofdweg laat zien hoe krachtig de combinatie kan zijn van monumentale architectuur, een ruim opgezette tuin en de vrijheid om een eigen woonwereld te creëren.
Wat hier wordt aangeboden, is geen standaard appartement maar een belofte. De huidige casco staat vormt een helder beginpunt voor wie visie heeft, gevoel voor ruimte én oog voor detail. Met de juiste ingrepen ontstaat hier een woning waarin licht, rust en architectonische kwaliteit samenkomen, midden in het ritme van West.
Een plek waar wonen vorm krijgt zoals het bedoeld is: met aandacht, op eigen wijze.
Mocht je verdere interesse hebben nodig ik je graag uit om eens langs te komen. Uiteraard vertel ik je dan nog meer over het appartement. Wellicht tot snel.


Glenn van der Zanden | Makelaar Broersma Wonen
AM105927-1979436-Hoofdweg-379H,-Amsterdam-217604225
Architectuur

In het hart van de West-Indische Buurt, aan de levendige Hoofdweg, ligt een pand dat de tijd heeft doorstaan zonder aan kracht in te boeten. De gevel is een les in Amsterdamse School: zorgvuldig metselwerk, expressieve details in beton en glas-in-lood boven de deuren. De entree – robuust, ingetogen en rijk aan ornament – markeert een woning waar architectonische kwaliteit en ambacht hand in hand gaan.
Dit benedenhuis maakt deel uit van een gemeentelijk monument en draagt die status zichtbaar met zich mee. De ritmiek van de vensters, de verfijnde profilering van het houtwerk en de stoere voordeur in monumentaal blauwgroen geven het geheel een statige, doch menselijke maat. De gevel straalt vakmanschap uit: ingetogen, maar onmiskenbaar bijzonder in detail.
Binnen wacht een casco-ruimte die elke vrijheid biedt. Hier liggen de contouren klaar voor een nieuwe indeling, een nieuwe invulling. De ruimtelijkheid wordt versterkt door de plafondhoogte van ruim drie meter, wat niet alleen lucht geeft, maar ook talloze mogelijkheden in zich draagt. Grote ramen aan voor- en achterzijde zorgen voor doorzicht en lichtval over de volle diepte van het volume, een krachtig canvas voor hedendaagse woonkwaliteit in historische context.

AM105927-1979436-Hoofdweg-379H,-Amsterdam-218929017
AM105927-1979436-Hoofdweg-379H,-Amsterdam-217604329
AM105927-1979436-Hoofdweg-379H,-Amsterdam-217604253
AM105927-1979436-Hoofdweg-379H,-Amsterdam-217604323
Wonen en koken

Bij binnenkomst wordt direct de potentie van de ruimte ervaren; een open ruimte, volledig casco en nog onverdeeld. De ruwe staat van wanden, vloer en plafond laat de oorspronkelijke structuur zien: een diepe rechthoek met hoge balklagen, doorkruist door licht dat via ramen aan beide zijden binnenvalt. Hier geen afwerking of inrichting, maar een lege maatvoering die uitnodigt tot denken in lijnen, verhoudingen en mogelijkheden.
De bijgevoegde impressies tonen een mogelijke interpretatie van deze ruimte. Een opstelling waarin een woonkeuken in directe relatie staat tot de tuin, met daarnaast een royaal zitgedeelte, ingebouwde wandkasten en natuurlijke materialen in een rustgevend palet. Openslaande deuren verbinden de leefruimte met de westelijk georiënteerde tuin, waardoor buiten onderdeel wordt van het dagelijks gebruik.
Deze visualisaties zijn geen weergave van de huidige staat, maar illustreren de potentie die in het casco besloten ligt. De vrije indeling maakt uiteenlopende woonoplossingen denkbaar met ruimte voor maatwerk in sfeer, functie en afwerking. In deze fase kan nog alles vorm krijgen: van vloertype tot lichtplan, van routing tot materialisering.
Een woning op basisniveau, klaar om naar eigen inzicht tot leven te worden gebracht.

AM105927-1979436-Hoofdweg-379H,-Amsterdam-217604297
AM105927-1979436-Hoofdweg-379H,-Amsterdam-224496300
AM105927-1979436-Hoofdweg-379H,-Amsterdam-224496306
AM105927-1979436-Hoofdweg-379H,-Amsterdam-224496304
AM105927-1979436-Hoofdweg-379H,-Amsterdam-224496310
AM105927-1979436-Hoofdweg-379H,-Amsterdam-217604275
AM105927-1979436-Hoofdweg-379H,-Amsterdam-217604309
AM105927-1979436-Hoofdweg-379H,-Amsterdam-217604317
Slapen en baden

Volgens het voorgestelde plan bevindt de slaapvertrek zich aan de voorzijde van de woning, afgescheiden van het leefgedeelte door een centrale hal. Deze situering biedt rust, privacy en een duidelijke functionele scheiding tussen dag en nacht. De ruimte is royaal bemeten, met plaats voor een tweepersoonsbed, op maat gemaakte kastruimte en een rustige werk- of leeshoek onder het raam. De ligging aan de straatzijde wordt verzacht door de diepte van de gevel en de beslotenheid van het plantsoen.
Grenzend aan de slaapkamer kan een badkamer gerealiseerd worden. Deze centrale positionering maakt de ruimte efficiënt en flexibel bruikbaar. De plafondhoogte zorgt ook hier voor lucht en comfort, terwijl de gekozen opstelling zorgt voor een vloeiende routing door het huis.
Net als de rest van de woning verkeert ook dit deel in casco staat. Binnenmuren ontbreken nog; afwerking en inrichting zijn volledig vrij te bepalen. De alternatieve indeling laat zien hoe de ruimte logisch en helder geordend kan worden, zonder concessies aan gebruiksgemak of esthetiek.

AM105927-1979436-Hoofdweg-379H,-Amsterdam-217604291
AM105927-1979436-Hoofdweg-379H,-Amsterdam-217604285
AM105927-1979436-Hoofdweg-379H,-Amsterdam-217604261
AM105927-1979436-Hoofdweg-379H,-Amsterdam-217604391
AM105927-1979436-Hoofdweg-379H,-Amsterdam-224496298
AM105927-1979436-Hoofdweg-379H,-Amsterdam-224496292
Tuin

Aan de achterzijde van het appartement ligt een royale tuin van ca. 55 m², georiënteerd op het westen. Deze buitenruimte vormt een essentieel verlengstuk van het woonprogramma. De ligging op het middag- en avondlicht maakt het tot een plek waar het lang aangenaam blijft. Een natuurlijke buffer tussen woning en stad, waar beschutting en openheid samenkomen.
De tuin is op dit moment nog onbewerkt en niet formeel afgescheiden van het naastgelegen perceel. De erfafscheiding zal nog moeten worden aangebracht, waarmee de grenzen van het privégebruik helder gedefinieerd worden. De huidige staat biedt een uitnodiging om het groen opnieuw vorm te geven: met plaats voor een eettafel onder de lucht, een loungeplek tegen de gevel en beplanting die rust en privacy brengt.
De verbinding met het interieur loopt via dubbele deuren in de gevel. Deze directe overgang versterkt de relatie tussen binnen en buiten en maakt het mogelijk om het leefoppervlak op zonnige dagen aanzienlijk te vergroten. In het alternatieve ontwerp is gekozen voor een minimalistisch terras met groen langs de randen. Een buitenruimte die nog wacht op invulling, maar de potentie heeft om een volwaardig onderdeel van het dagelijks wonen te worden.

AM105928-1979513-Hoofdweg-381H,-Amsterdam-217604875
AM105927-1979436-Hoofdweg-379H,-Amsterdam-218929043
AM105927-1979436-Hoofdweg-379H,-Amsterdam-218929025

De woning is gelegen in de wijk Erasmuspark in Amsterdam West. De buurt is een hippe en bruisende plek. Het is een populaire woonwijk voor young professionals, stellen en gezinnen vanwege de aanwezigheid van meerdere stadsparken, groen opzet van de wijk en de gunstige ligging.
De buurt heeft een gevarieerd aanbod van winkels, restaurants en cafés, met veel lokale ondernemingen die bijdragen aan de unieke sfeer van de wijk. Op de Jan van Galenstraat en de Hoofdweg, vindt men een groot aanbod aan supermarkten, winkels, bakkers en eetgelegenheden.
In de buurt zijn ook verschillende parken te vinden, waaronder het Erasmuspark, Rembrandtpark en het Westerpark. Het Erasmuspark en Rembrandtpark zijn prachtige stadspark met een vijver, speeltoestellen en diverse sportfaciliteiten. Het Westerpark heeft een cultureel centrum, een bioscoop, diverse restaurants en cafés en is een populaire locatie.

Bereikbaarheid
De woning aan de Hoofdweg is uitstekend verbonden met de rest van de stad en daarbuiten. Binnen vijf minuten sluit de route aan op de Ring A10, via afslag S105. Tram- en buslijnen vanaf het Mercatorplein en de Marco Polostraat zorgen voor directe verbindingen richting onder meer Centraal Station, Station Zuid, Sloterdijk en Slotervaart. Ook tramlijn 7 en 13 passeren op loopafstand, met een regelmatige dienstregeling die het centrum en de westelijke stadsdelen moeiteloos bereikbaar maakt.
Voor wie zich per fiets verplaatst, ligt Station Sloterdijk op circa tien minuten afstand.

Parkeergelegenheid
Parkeren is mogelijk via een vergunningensysteem op de openbare weg (vergunningsgebied West-1.2). Met een parkeervergunning voor West-1.2 mag men parkeren in West-1. Een parkeervergunning voor bewoners kost € 192,81 per 6 maanden. Momenteel geldt voor dit vergunningsgebied een wachttijd van 5 maanden. Een tweede parkeervergunning is in dit gebied niet mogelijk. (Bron: Gemeente Amsterdam, juli 2025).

AM104446-1875736-Orteliusstraat-309H,-Amsterdam-184292017
AM105927-1979436-Hoofdweg-379H,-Amsterdam-217604279
AM105927-1979436-Hoofdweg-379H,-Amsterdam-218929035
AM105927-1979436-Hoofdweg-379H,-Amsterdam-218929037
Kenmerken
Hoofdweg 379H, Amsterdam
Vraagprijs
  • € 425.000 k.k.
Beschikbaarheid
  • In overleg
Vertrekken
  • 1 kamer
Onderhoud
  • Intern: Redelijk
  • Extern: Redelijk
Oppervlakten & Inhoud
  • Woonoppervlakte: 59 m²
  • Tuinoppervlakte: 56 m²
Bouwjaar
  • 1927
Installaties
  • Natuurlijke ventilatie
  • TV kabel
Ligging
  • In woonwijk
Parkeren
  • Betaald parkeren
  • Parkeervergunningen
Bestemming
  • Woonruimte
Eigendomssoort
  • Eigendom belast met erfpacht
Buitenruimte
  • Achtertuin
Kadastraal
  • Gemeente: Sloten
  • Sectie: L
  • Nummer: 3194
Duurzaamheid
  • Dubbel glas
  • Energielabel D
Soort
  • Appartement
  • Benedenwoning
Bijzonderheden
  • Kluswoning
Overige kenmerken
  • OZB ('25) € 251,- per jaar
  • Rioolrecht ('25) € 18,20 per jaar
  • Servicekosten VvE € 136,45 per maand
  • Erfpachtcanon is afgekocht tot en met 31 december 2053
Plattegrond
Hoofdweg 379H, Amsterdam
AM105927-1979436-Hoofdweg-379H,-Amsterdam-219188237
AM105927-1979436-Hoofdweg-379H,-Amsterdam-219188241
AM105927-1979436-Hoofdweg-379H,-Amsterdam-219188253
AM105927-1979436-Hoofdweg-379H,-Amsterdam-219188257
Documenten
Hoofdweg 379H, Amsterdam
Locatie
Hoofdweg 379H, Amsterdam
Eten & drinken
Schermafbeelding 2022-05-18 om 18.29.39
01
Adres
Jan Evertsenstraat 136,
1056 EG Amsterdam

White label coffee

White label coffee is een koffiemerk met meerdere koffietentjes in Amsterdam. Ze roasten hun eigen koffie waarbij ze kwaliteit, openheid en samenwerking door de hele keten van het koffieproces belangrijk achten. De locatie in West is een soort van open huiskamer waar je gerust kan zitten om een koffietje te drinken. De zaak is minimalistisch ingericht waarbij gebruik is gemaakt van vintage interieur. Ze hebben koffie van verschillende origine die de barista’s met liefde voor je bereiden. Je kan ook lekkernijen bestellen voor bij de koffie en er zijn verschillende vegan melk opties.

terrasmus
02
Adres
1056 LE Amsterdam

Terrasmus

Midden in het groen van het Erasmuspark ligt deze fijne, een beetje verborgen plek waar je kunt ontsnappen aan de stad en kunt ontbijten, lunchen en borrelen.  Er wordt gewerkt met de leukste en beste lokale leveranciers. Daarnaast worden en verschillende clinics, live muziek georganiseerd. In de zomer is er het Erasmus Culinair festival.

197838590_394303158477494_3697288289228022643_n
03
Adres
Jan van Galenstraat 219,
1056 BW Amsterdam

Broodje Daan

Broodje Daan is een gezellige broodjeszaak met tijdloze prijzen, verwelkomt een gevarieerd publiek. Van 6.00 tot 15.00 uur op werkdagen kunt u genieten van een broodje en vers gezette koffie tegen aantrekkelijke tarieven. De broodjes dragen namen van de bedenksters, zoals de Bouwmaat XL Burgers, ontworpen door de mannen van de bouwmarkt. Zelfs huishond Buddy heeft zijn eigen creatie. De zaak trekt ook vaste klanten, waaronder 'Mevrouw Pindakaas', die dagelijks geniet van haar broodje pindakaas. Daan kent haar klanten door en door, volgt hun routines en deelt dagelijkse lachmomenten.

04
Adres
Jan Evertsenstraat 91,
1057 BS Amsterdam

Bar Baarsh

Een leuke gezellige bar in De Baarsjes waar je terecht kan voor een hapje, drankje of pub quiz op de maandag avond. Eigenaren van Visbar Beet hebben in november 2019 de zaak overgenomen maar wilde het 'oude' Bar Baarsh in stand houden. Het is dus nog steeds hetzelfde gezellige restaurant wat we gewend waren. De keuken is dagelijks geopend van 10:00- 22:00 voor ontbijt, lunch, borrel en diner. Voor de lunch heb je keuze uit verschillende boordjes zoals de gegrilde groente met zoete aardappel-chipotle crème of de avocado mash met avocado, ei en tomaat. Kies voor het diner bijvoorbeeld een dorade van de BBQ, een gelakte Rib eye of de Bar Baarsch burger.

289335290_537440104749125_4621487855614951470_n
298667034_570819111411224_6652995449162279579_n
05
Adres
Hoofdweg 456,
1056 DJ Amsterdam

MasMais Taqueria

MasMais begon als een BBQ met vrienden in het park. Na een succesvol pop-up avontuur was het tijd voor een vaste plek. Een next-generation taqueria en bar in Amsterdam-West! Tijdens de bezoeken aan Mexico leerde ze de meeste taco en salsa-recepten. Ze proberen nauw vast te houden aan de gedurfde smaken die ze op straat en op markten zijn tegengekomen. Zo begint elke taco begint met een warme, zachte, vers geperste maïstortilla. 

downloadgram.org_610695058_17975405936977609_8539314007563208742_n
downloadgram.org_610764730_17975405945977609_1306229365209936158_n
downloadgram.org_610671282_17975405969977609_4972116120418114050_n
06
Adres
Baffinstraat 1,
1057 SV Amsterdam

September

September is een intieme wijnbar en restaurant in De Baarsjes, gerund door drie vrienden Matthew, Valentijn en Lizzy, die elkaar leerden kennen in de horeca en nu hun eigen droomplek neerzetten. Hun stijl leunt op Franse keukenlogica met lokale seizoensproducten, en een compacte kaart die regelmatig mee wisselt. Wijn speelt een hoofdrol, met nadruk op natuurwijn en een aanpak die ontdekken makkelijk maakt zonder poespas

26165612_1787760961298744_2665224725295893488_n
07
Adres
Balboastraat 15hs,
1057 VS Amsterdam

Rotishop Gieta

Sinds 2008 is Rotishop Gieta een opmerkelijk begrip in de buurt, waar generatiesoude familie-recepten de basis vormen voor hun heerlijke gerechten. Gieta, die velen bij naam kent, verwelkomt een gevarieerde klantenkring voor roti, bara en bami. Met trots rolt Gieta nog steeds haar eigen roti, omdat handgemaakt naar haar mening altijd het beste is.

330395866_728988148836979_8044589916189772151_n
306010281_609238110786746_2030159783972727770_n
286758554_387921876626672_5696208070626382574_n
08
Adres
Jan van Galenstraat 147,
1056 BN Amsterdam

Oficina

Bij Oficina bieden ze een wekelijks wisselend ontbijt- en lunchmenu aan, met ingrediënten die passen bij het seizoen. De focus ligt op het vinden van mooie producten uit Amsterdam en de omliggende boerderijen. Oficina is geopend van woensdag tot en met zondag van 10:00 tot 17:00 uur. Ontbijt wordt de hele dag geserveerd en de lunchservice begint om 11:30 uur.

09
Adres
Witte de Withstraat 125-H,
1057 XR Amsterdam

Sham West

Restaurant Sham is het allereerste Syrische restaurant in Amsterdam. Chefs ervaren in de Syrische cuisine staan elke dag in de keuken om prachtige Syrische gerechten klaar te bereiden, zoals Baba Ganoush, Fatoush en Foul Muqalla. In het restaurant hangt een goede sfeer en er wordt regelmatig live muziek gespeeld. Omdat het de bedoeling om de kleine gerechtjes samen te delen met je tafelgenoten, wordt een bezoek aan Sham altijd een gezellige gelegenheid. Goede gesprekken, prachtig opgemaakte borden, en heerlijk verse ingrediënten, bij Sham is je avond compleet.

239146717_360848548872665_1235599640777855714_n
10
Adres
Van Speijkstraat 157HS,
1057 GX Amsterdam

Thai Thai Poppetje

Thai Thai Poppetje is een authentiek Thais streetfoodrestaurant dat de nadruk legt op versheid. Op hun beperkte kaart vind je klassiekers zoals viskoekjes, maar ook originele creaties zoals bitterballen van rode curryrijst met een smeuïge vulling en een knapperig korstje. Het restaurant biedt ook vegetarische en veganistische opties aan.

244941393_392674422556390_5974260137434439690_n
361937251_1006343037055178_1266157854329145058_n
11
Adres
Postjesweg 98,
1057 EG Amsterdam

Mundi

Bij Mundi in Amsterdam-West komt alles samen: goede koffie, wijnen voor in de avond en een gezellige plek om te werken of te kletsen. Gelegen aan de Kinkerstraat, biedt Mundi een diversiteit aan bezoekers, van freelancers met laptops tot mensen die voor een sterke bak koffie komen. De koffie van Five Ways is krachtig en pittig, ook beschikbaar voor thuis. De roze bank met speelhoek maakt het kindvriendelijk, terwijl dagelijks lekkers van Ulmus en een selectie natuurwijnen de ervaring compleet maken. Mundi is elke dag open van 08:00 tot 16/17 uur.

344958756_744684200721961_1937864838698341245_n
350812931_924913161950865_6719435353221097677_n
12
Adres
Hoofdweg 141,
1057 CN Amsterdam

Restaurant Felperlaan

Recent heeft Restaurant Felperlaan zijn deuren geopend in de Baarsjes. De eigenaren zijn bekend van Café Mundi. Eigenaresse Lila, en haar partner Benten willen kunstenaars uit de buurt de mogelijkheid bieden om hun kunst te exposeren. Het restaurant is een bruisende buurtstek met de focus op goed eten en een toegankelijke sfeer. Het dagmenu, seizoensgebonden en geprijsd tussen de 39 en 49 euro, wordt om de drie à vier weken vernieuwd. Daarnaast biedt het restaurant een (borrel)hapjeskaart met vaste items zoals oesters, huisgemaakte paté (ook vegetarisch) en diverse vegetarische gerechten. De keuken combineert invloeden uit Zuid-Frankrijk, Noord-Italië en Spanje.

1515753586-meneer-de-wit_bar4589
1547131084-meneer-de-witjcb8132
13
Adres
Witte de Withstraat 10,
1057 XV Amsterdam

Meneer de Wit heeft Honger

In 2015 opende Meneer de Wit heeft Honger; een restaurant met een huiselijke sfeer en heerlijk eten. Chef Simo Bouabgha leerde koken van zijn oma in het zuiden van Marokko en houdt van het eten dat de moeders rondom de Middellandse zee met alle liefde, geduld koken. Het menu bestaat uit seizoensgebonden gerechten met deze verfijnde en warme smaken, vaak gebaseerd op groente maar er is ook duurzaam vlees, gevogelte en vis.

26-lvffood-com-5129-57-20230127
14
Adres
Postjesweg 1,
1057 DT Amsterdam

Daalder (*)

Zijn Indonesische roots en Aziatische invloeden kruiden de inventiviteit van chef Huwaë. Hij schuwt allerminst de contrasterende smaken. Het talent van deze chef ligt in de harmonie die hij bereikt met dergelijke associaties. Soms is hij iets klassieker, zoals met een perfect gegaarde langoustine waarbij een botersaus komt die is verrijkt met champagne, appelsien en Grand Marnier. Subtiel, intens, explosief. Helemaal Dennis Huwaë. Daalder heeft 1 Michelin ster.

Schermafbeelding 2022-05-18 om 18.31.40
15
Adres
Bos en Lommerweg 136 HS,
1055 ED Amsterdam

Friedhats FUKU café

FUKU is het allereerste café van Friedhats; een micro koffie branderij in Amsterdam. De zaak is opgezet door vrienden Lex Wenneker en Dylan Sedgwick. Lex is meervoudig barista kampioen en werkt al acht jaar fulltime in de koffie business, Dylan komt uit Australië en heeft een lange tijd gewerkt in Londen bij allerlei koffie events. Samen realiseerden zij hun droom met een eigen branderij en café waar ze koffie branden en serveren van de beste kwaliteit. Duurzaamheid is erg belangrijk voor Friedhats en ze zijn constant bezig met het verbeteren van hun producten. Je kunt bij café FUKU niet alleen genieten van een heerlijke espresso of cappuccino maar ook van een fris biertje of wijntje.

280279707_690276598712258_782257989926286225_n
16
Adres
Lootsstraat 5,
1053 NT Amsterdam

Eetcafé Meo’s Colosseum

Bij het Surinaams-en Caribische Eetcafé Meo’s Colosseum kan je elke dag vanaf 04.00 uur 's ochtends tot 10.30 uur 's avonds terecht en op zaterdag tot 05.00 uur (en soms nog langer). Ze staan altijd voor je klaar wanneer andere eetgelegenheden gesloten zijn met lekkernijen als nasi, bami, pom, of moksi alesi. Op vrijdag en zaterdag zijn er ook barbecue gerechten en huisgemaakte friet. Krijg je er nog geen genoeg van? Binnenkort zijn ze 24 uur geopend.

Boodschappen
17
Adres
Mercatorplein,
1057 CA Amsterdam

De MercatorMarkt

De MercatorMarkt wordt de lekkerste en liefste markt in De Baarsjes genoemd en we snappen waarom. Het is een echte buurtmarkt, waar buurtbewoners hun eigen spullen kunnen verkopen en anders is het een kleine onderneming met een goed verhaal. Er is theater voor jong en oud, verschillende workshops en een draaimolen voor de kinderen. Hun doel is een duurzame kwaliteitsmarkt waar de buurt van op aan kan. De moeite waard!

18
Adres
Jan Evertsenstraat 89,
1057 BT Amsterdam

T’s teas

Bij T’s teas draait alles om de liefde voor het onderschatte theeblad. Als je van mening bent dat thee maar een saai drankje is, zal je hier geheid van gedachte veranderen. Alle kennis over theebladeren en de drankjes die je hiermee kan maken is hier verzameld in een winkel. De geur alleen al is een bezoek waard. Als je eerst de thee wil proeven of even wil bijkomen van alle geuren, kan je terecht in de theebar waar je allerlei soorten theedrankjes van over de hele wereld kan drinken.

355858024_587525863490224_7804309936375678814_n
362603419_18297120616114775_3360408025604327005_n
19
Adres
Jan Evertsenstraat 31,
1057 ZX Amsterdam

Fort Negen bakkerij

Bij Fort negen in De Baarsjes kan je zien hoe het brood gebakken wordt. Terwijl je je vers gehaalde croissantje opeet kan je namelijk in de winkel en voor de etalage de bakkers met passie het deeg zien kneden op de met bloem bestrooide werkbanken. De bakkers hanteren een traditionele en manier van brood maken, het zuurdesembrood wordt maar liefst 26 uur gerezen. Dit zorgt voor een heerlijke knapperige korst en een zachte binnenkant. Ze gebruiken alleen maar biologische producten en maken alles met de hand. Wat ook leuk is; je kan er een workshop desembrood of croissant maken volgen.

20
Adres
Gulden Winckelplantsoen 44,
1055 EN Amsterdam

Bakkeriij Al Maghrib

Deze Marokkaanse familiebakkerij bakt heerlijk brood en banket sinds 2005. Met een breed assortiment is deze plek een echte buurtbakker geworden met terugkerende liefhebbers. In de Marokkaanse cultuur is brood vooral een belangrijk onderdeel van de warme maaltijd, waarbij het witte brood wordt gemixt met griesmeel en de bruine variant bestaat uit volkoren.

74368093_571598240314359_8811672873834070652_n
21
Adres
Admiraal de Ruijterweg 43,
1057 JV Amsterdam

The Wine Spot

In 2012 is The Wine Spot opgericht door Filipe en Paulo in een kleine anti-kraak winkel aan de Jan Evertsenstraat in Amsterdam. Deze tijdelijke plek werd snel vervangen door een grotere, permanente locatie aan de Admiraal de Ruijterweg 43. Deze wijnwinkel biedt een uitgebreid assortiment wijnen uit heel Europa, zowel natuurlijke als klassieke varianten. Aan elke fles is een handgeschreven notitie bevestigd met uitleg over de wijn, de regio van herkomst en het vinificatieproces. Voor liefhebbers van iets anders is er ook een ruime selectie ambachtelijke bieren, port, sherry en dessertwijnen.

22
Adres
Jan van Galenstraat 68,
1056 CC Amsterdam

Ela! Traiterie

De perfecte plek om de smaakvolle Griekse keuken te ontdekken. Ze bereiden hier alles dagvers, met zoveel mogelijk natuurlijke producten. Ze hebben belegde broodes, salades, hele maaltijden maar ook uiteraard mist de pita gyros of souvlaki niet op het menu. Maar behalve deze Griekse gerechten verkopen ze er ook delicatessen, zoals heerlijke biologische olijfolie of échte Griekse feta.

Interieur
Schermafbeelding 2022-05-19 om 13.53.12
Schermafbeelding 2022-05-19 om 13.57.57
23
Adres
Jan van Galenstraat 143,
1056 BN Amsterdam

Ted.Amsterdam

Ted.Amsterdam is een multifunctionele creatieve ruimte gevestigd in Amsterdam waar interieur, kunst en creativiteit elkaar ontmoeten. Ze verkopen verzamelbare mid-century moderne vintage en nieuwe meubelstukken, hedendaagse kunstwerken van lokale kunstenaars en unieke design objecten, en tegelijkertijd creëert het een unieke ruimte waar creativiteit kan bloeien. Of je nu op zoek bent naar een speciaal ontwerp voor je huis of tuin of juist een inspirerende ruimte voor een project, ted. is de plek voor jou.

104196247_2609875105928789_2143325823481766499_n
24
Adres
Baarsjesweg 208,
1057 HT Amsterdam

The BirdTsang

The BirdTsang is een jonge keramiek studio gevestigd aan de Baarsjesweg die unieke en handgemaakte ontwerpen maakt. The Bird Tsang wordt gerund door kunstenaars Robin de Vogel & Johannes Tsang, die zich focussen op de samenwerking met innovatieve chef-koks om unieke en op maat gemaakte ontwerpen te creëren die een eetervaring complimenteren en verhogen met onderscheidend en duurzaam keramisch servies.

Kunst & cultuur
25
Adres
Bos en Lommerweg 191,
1055 DT Amsterdam

Podium Mozaïek

Podium Mozaïek is een grootstedelijk theater met café-restaurant in Amsterdam West, gevestigd in de voormalige Pniëlkerk aan de Bos en Lommerweg. Het programma van Podium Mozaïek is voor jong en oud en biedt theater, muziek, comedy, spoken word storytelling, dans en alle mogelijke cross-overs daartussen uit binnen- en buitenland. In het Café wordt er een Mediterraans geïnspireerd menu geserveerd dat bestaat uit verschillende wisselende seizoensgerechten,

Uitgelicht;  Marrakesh Living

Uitgelicht; Marrakesh Living

Buurtgids: de Jordaan rondom de Bloemstraat

Buurtgids: de Jordaan rondom de Bloemstraat

Het Verhaal van Michelin: Van Banden naar Gastronomie

Het Verhaal van Michelin: Van Banden naar Gastronomie

Onlangs bekeken
Bekijk het overzicht

Deze site maakt gebruik van cookies.

Voor welke cookies geef je akkoord?