Aan een van de mooiste delen van de grachtengordel ligt deze karaktervolle bovenwoning van circa 135 m², verdeeld over twee woonlagen. De woning beschikt over een riant dakterras van circa 39 m², grote woonkamer met openhaard, keuken, drie slaapkamers, twee badkamers en een sfeervolle entresol onder het kapspant. Gelegen aan de statige Herengracht, met zicht op de historische gevelwand en de gracht zelf. De indeling is doordacht, de sfeer rijk aan originele details. Houten balklagen, een open haard, klassieke raampartijen en zichtlijnen over de daken van de binnenstad zorgen voor een unieke woonbeleving. 

Rondleiding
Aan de voorzijde van de woning ligt de living met zicht over de gracht, een open haard en balkenplafond. Centraal het royale eetgedeelte en de goed ingerichte keuken, verlicht door ronde lichtkoepels. De keuken is uitgevoerd in een zachte grijsgroene en blauwe kleurstelling, met marmeren details en voldoende opbergruimte. Een intieme plek om te koken en tafelen. De hoofdslaapkamer op de tweede verdieping valt op door het imposante houten kapspant, en ingebouwde kasten. Aangrenzend bevindt zich de eerste badkamer met ligbad, wastafelmeubel en toilet. Op de derde verdieping bevinden zich twee slaapkamers. De naastgelegen badkamer is licht en fris, met marmeren vloer, ligbad, dubbele wastafel en een raam. Via een vaste trap is vanuit de slaapkamer de entresol bereikbaar: een charmante ruimte direct onder de nok. Ideaal als logeerplek, kinderruimte of extra berging. 

Buurtgids 
Het karakteristieke pand is gelegen aan de Herengracht, naast de Huidenstraat en de Jordaan. Met vele verschillende voorzieningen op het gebied van kunst en cultuur in de nabije omgeving, zoals de prachtige Westertoren en het Anne Frankhuis. Om de hoek bevinden zich de 9 Straatjes, het Spui en op zaterdag in de Jordaan de Noordermarkt. Kortom, alles wat Amsterdam te bieden heeft, is binnen handbereik. Door het grote aanbod aan winkels in de 9 Straatjes, en restaurants als Restaurant Breda, Beulings en Cecconi’s is er voor ieder wat wils.

Bijzonderheden
•    Lichte bovenwoning van circa 135 m² verdeeld over twee woonlagen
•    Groot zonnig dakterras van circa 39 m²
•    Op stand gelegen aan de Herengracht en op eigen grond 
•    Sfeervolle woonkamer met openhaard en drie slaapkamers
•    Extern gerenoveerd in 2025 onder auspiciën van Van Schaijk aannemerij
•    Fundering vernieuwd in 1964 en verzorgd trappenhuis
•    Actieve VvE
•    Gelegen in het UNESCO Werelderfgoedgebied en Rijksbeschermd stadsgezicht, gemeentelijk monument

AM106110-1993993-Herengracht-391C,-Amsterdam-223220999

Zicht op Cromhout
Sommige delen van de grachtengordel hebben iets verstilds. Wie over de Leidsegracht fietst, van de Prinsengracht richting de Herengracht, ziet aan de overkant een fraai pand met torentje opduiken. Zo’n plek is dit. In de gevelwand tussen de Beulingsloot en de Dubbele Worststeeg, met een statige entree aan de Herengracht, bevindt zich een bijzonder appartement. Jarenlang was het het Amsterdamse thuis van een gezin dat overzee verbleef en er warme herinneringen aan koestert. De woning biedt een royale woonkamer met open haard en drie ramen aan de gracht, drie slaapkamers – waarvan één met een speelse entresol – én een groot, zonnig dakterras met uitzicht op de prachtige Krijtbergkerk. Een sfeervol en ruim appartement, op een locatie die al meer dan drie eeuwen tot de meest voorname van de stad behoort.


Otte van Apeldoorn | Makelaar Broersma Wonen
Jelle Mundt | Makelaar Broersma Wonen
Herengracht 391 C-56
Het gebouw

Herengracht 391 maakt deel uit van een karakteristieke gevelwand in het westelijke deel van de grachtengordel. Het pand stamt oorspronkelijk uit de zeventiende eeuw en is in de loop der tijd meerdere malen aangepast, waarbij ook funderingsherstel is uitgevoerd in 1964. Het huidige aanzicht wordt bepaald door een laat-achttiende-eeuwse lijstgevel met klassieke ornamenten. Afgelopen jaar is de gehele schil van het gebouw aangepakt zoals het schilderwerk, de goten en het metselwerk. De indeling en structuur van het pand dragen nog steeds de sporen van de oorspronkelijke grachtenhuis-typologie, maar zijn wel verdeeld in appartementsrechten, zo is er een bel-etage, tussenverdiepingen en een kapverdieping onder een houten spantconstructie. De woning bevindt zich op de bovenste twee verdiepingen en is bereikbaar via een verzorgd en ruim trappenhuis. Binnen wordt de historische sfeer versterkt door authentieke details zoals de zichtbare balklagen, een prachtige kapconstructie in de hoofdslaapkamer, houten vloeren en klassieke raamverdelingen. Deze elementen zorgen voor een tijdloze elegantie en een aangenaam gevoel van geborgenheid in het hart van de stad.

AM106110-1993993-Herengracht-391C,-Amsterdam-238738076
AM106110-1993993-Herengracht-391C,-Amsterdam-223220887
AM106110-1993993-Herengracht-391C,-Amsterdam-223221079
AM106110-1993993-Herengracht-391C,-Amsterdam-223220867
Wonen en koken

De ruime woonkamer is gesitueerd aan de voorzijde van de woning met uitzicht over de Herengracht. De woonkamer heeft een open verbinding met het eetgedeelte en keuken, dit zorgt voor een vloeiende overgang tussen de ruimtes. De combinatie van het balkenplafond, het visgraatparket en de open haard geeft de ruimte een warme en klassieke uitstraling. Het centrale eetgedeelte en aansluitende keuken worden verlicht door drie ronde lichtkoepels, wat zorgt voor veel daglichtinval. De keuken is van Arcline en uitgevoerd in een zachte grijsgroene en blauwe kleurstelling, met marmeren details en voldoende opbergruimte.

AM106110-1993993-Herengracht-391C,-Amsterdam-223220879
AM106110-1993993-Herengracht-391C,-Amsterdam-223221045
AM106110-1993993-Herengracht-391C,-Amsterdam-223221059
AM106110-1993993-Herengracht-391C,-Amsterdam-223221065
AM106110-1993993-Herengracht-391C,-Amsterdam-223220945
AM106110-1993993-Herengracht-391C,-Amsterdam-223221019
Slapen en baden

In de slaapkamer op de tweede verdieping is de vloer afgewerkt met sisal en de inbouwkasten zijn op maat gemaakt en zo weg gewerkt in de schuine wanden. Het balkenplafond zorgt voor een knusse sfeer. Aangrenzend bevindt zich de eerste badkamer, afgewerkt met witte wandtegels, een marmeren vloer, verder is er een wastafel met wastafelmeubel, een toilet en een ligbad met een raam erboven voor daglicht. De tweede en de derde slaapkamer bevinden zich op de bovenste verdieping. Beide slaapkamers hebben uitzicht op de Herengracht. Via een vaste trap in de rechter slaapkamer is de entresol bereikbaar – een charmante ruimte direct onder de nok, met een intieme sfeer. De zichtbare spanten, het kleine dakraam en de houten balustrade geven deze plek een authentiek karakter. Ideaal als logeerplek, kinderruimte, leeshoek of extra bergruimte. Achter de panelen schuilt nog een praktische berging, geschikt als extra opbergruimte. De tweede badkamer is voorzien van een ligbad, dubbele wastafel en een wastafelmeubel. Op deze verdieping bevindt zich een separaat toilet.

AM106110-1993993-Herengracht-391C,-Amsterdam-223220971
AM106110-1993993-Herengracht-391C,-Amsterdam-223220927
AM106110-1993993-Herengracht-391C,-Amsterdam-223220913
AM106110-1993993-Herengracht-391C,-Amsterdam-223220931
AM106110-1993993-Herengracht-391C,-Amsterdam-223221119
Herengracht 391 C-58
Herengracht 391 C-60
Het dakterras

Een van de meest unieke kenmerken van de woning is het ruime dakterras van bijna 40 m². Gelegen tussen de daken van de historische binnenstad biedt deze buitenruimte rust, privacy en een panoramisch uitzicht op de omliggende gevels en torenspitsen. Ook is dit een plek om samen te komen met vrienden en familie. Dankzij de brede opzet is er ruimte voor een loungeset, buitenkeuken of lange eettafel.

Herengracht 391 C-61
B103576-1971314-Herengracht-286,-Amsterdam-215926041
Herengracht 391 C-49
Herengracht 391 C-55
Buurtgids

Het karakteristieke pand is gelegen aan de Herengracht, naast de Huidenstraat en de Jordaan. Met vele verschillende voorzieningen op het gebied van kunst en cultuur in de nabije omgeving, zoals de prachtige Westertoren en het Anne Frankhuis. Om de hoek bevinden zich de 9 Straatjes, het Spui en op zaterdag in de Jordaan de Noordermarkt. Kortom, alles wat Amsterdam te bieden heeft, is binnen handbereik. Door het grote aanbod aan winkels in de 9 Straatjes, en restaurants als Restaurant Breda, Beulings en Cecconi’s is er voor ieder wat wils.

Bereikbaarheid
Het appartement is zowel met de fiets, als openbaar vervoer zeer goed bereikbaar en met de auto redelijk tot goed. Het appartement is centraal gelegen, zo is het vijf minuten fietsen naar het Centraal Station, vanwaar alle mogelijke bestemmingen te bereiken zijn. Op twee minuten loopafstand is er een tramhalte beschikbaar waar de tram 13 en tram 17 stoppen.

Parkeergelegenheid
Parkeren is mogelijk via een vergunningenstelsel op de openbare weg (vergunningsgebied Centrum-2e). Met een parkeervergunning voor Centrum-2e mag u parkeren in Centrum-2. Een parkeervergunning voor bewoners kost € 326,65 per 6 maanden. Momenteel is er voor dit vergunningsgebied een wachttijd van 12 maanden. Een tweede parkeervergunning is in dit gebied niet mogelijk. Naast de openbare weg is het ook mogelijk om met een parkeervergunning kosteloos te parkeren in garage Oosterdok Eiland en garage Rokin. (Bron: Gemeente Amsterdam, april 2025)

AM105815-1937137-Herengracht-189E,-Amsterdam-201514695
AM106110-1993993-Herengracht-391C,-Amsterdam-223220941
AM106110-1993993-Herengracht-391C,-Amsterdam-223220907
Kenmerken
Herengracht 391C, Amsterdam
Vraagprijs
  • € 1.295.000,- k.k.
Beschikbaarheid
  • In overleg
Vertrekken
  • 4 kamers
  • 3 slaapkamers
  • 2 badkamers
Onderhoud
  • Intern: Redelijk tot goed
  • Extern: Goed
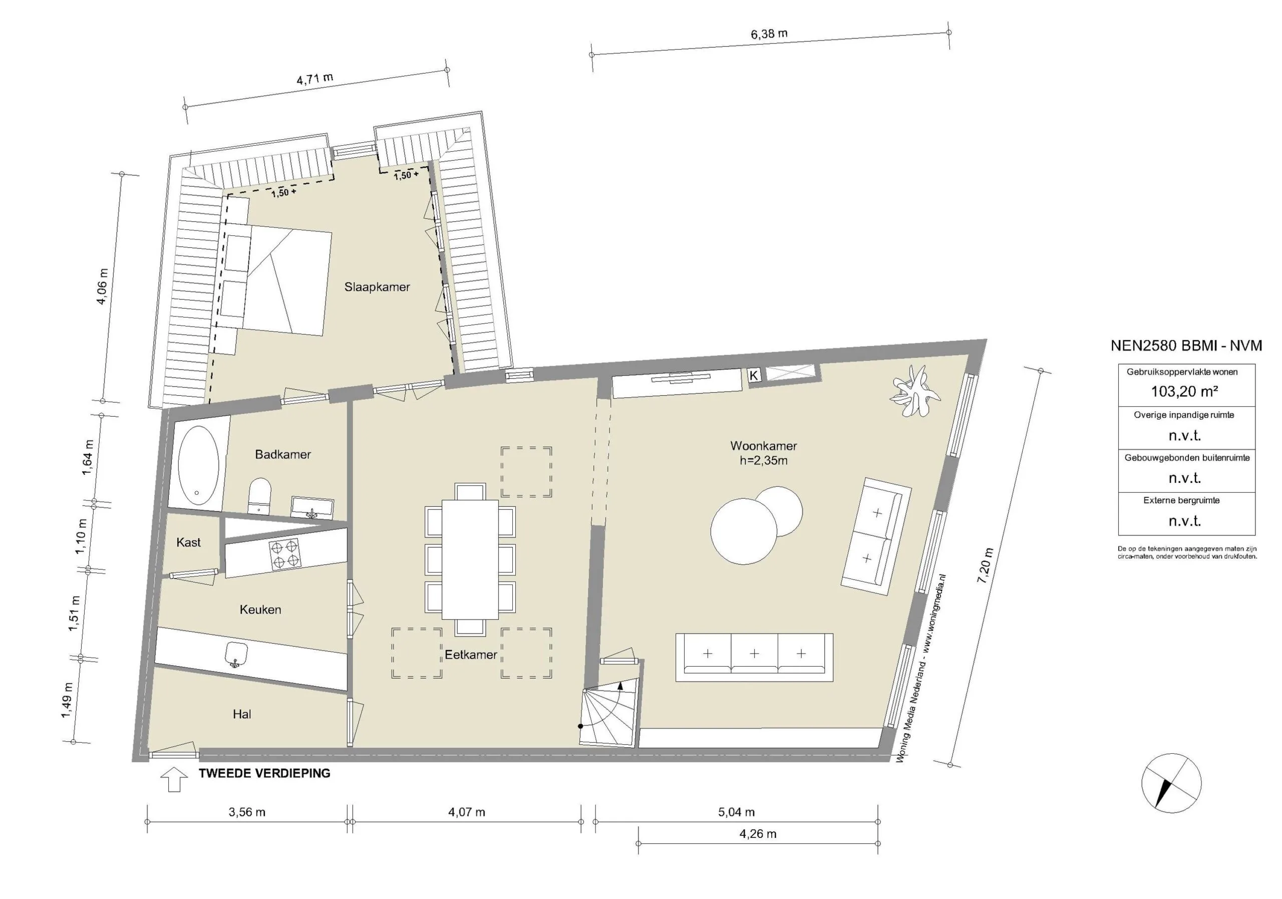
Oppervlakten & Inhoud
  • Woonoppervlakte: 135 m²
  • Overige inpandige ruimte: 4 m²
  • Gebouwgebonden buitenruimte: 39 m²
  • Tuinoppervlakte: 39 m²
Bouwjaar
  • 1650
Installaties
  • Dakraam
  • Mechanische ventilatie
  • Natuurlijke ventilatie
  • TV kabel
Ligging
  • Aan water
  • In centrum
Parkeren
  • Betaald parkeren
  • Parkeervergunningen
Type verwarming
  • CV Ketel
Type warmwater
  • CV Ketel
Bestemming
  • Woonruimte
Eigendomssoort
  • Volle eigendom
Buitenruimte
  • Zonneterras
  • Dakterras
Kadastraal
  • Gemeente: Amsterdam
  • Sectie: I
  • Nummer: 10333
Soort
  • Appartement
  • Bovenwoning
  • Dubbel-bovenhuis
Welke woonlaag
  • 3e
Bijzonderheden
  • Beschermd stads of dorpsgezicht
  • Monument
  • Monumentaal pand
Overige kenmerken

OZB ('25) € 605,85 per jaar
Rioolrecht ('25) € 185,20 per jaar
Servicekosten VvE € 349,02 per maand

Plattegrond
Herengracht 391C, Amsterdam
AM106110-1993993-Herengracht-391C,-Amsterdam-223568193
AM106110-1993993-Herengracht-391C,-Amsterdam-217764469
AM106110-1993993-Herengracht-391C,-Amsterdam-217764477
Documenten
Herengracht 391C, Amsterdam
Locatie
Herengracht 391C, Amsterdam
Eten & drinken
284424519_5126376000748750_5583589813571934548_n
01
Adres
Wijde Heisteeg 1,
1016 AS Amsterdam

The Lebanese Sajeria

Lange rijen staan er dagelijks voor de vestigingen van de The Lebanese Sajeria in Amsterdam. Deze zaak is begonnen als foodtruck waar de eigenaren Libanees fastfood serveren met een twist. In 2016 openden zij hun eerste restaurant in de 9 straatjes en het werd een groots succes. Inmiddels hebben zij drie vestigingen in Amsterdam waar zij elke dag overheerlijke gerechten uit de Libanese keuken serveren. Bij The Lebanese Sajeria koken ze met een traditionele Saj; een koepelvormige plaat waar broden op gebakken kunnen worden. Op de saj maken ze hun manoushes en saj broden die worden gebruikt voor de smaakvolle wraps zoals de Manoushe Zatar en Halloumi of de Beef Labneh.

317354155_576309097838056_5300133261289346202_n
02
Adres
Beulingstraat 7,
1017 BA Amsterdam

Pianeta Terra

Fabio van Pianeta Terra, staat bekend als de onbetwiste kampioen van slowfood in de stad. In zijn keuken combineert hij op meesterlijke wijze de fijnste lokale ingrediënten tot authentiek Italiaanse gerechten. Gastvrouw Laura Martini maakt de ervaring compleet door bijpassende prachtige wijnen te schenken, waardoor een perfect verzorgde avond gegarandeerd is.

Schermafbeelding 2022-05-18 om 19.33.11
03
Adres
Spui 18-20,
1012 XA Amsterdam

Hoppe

Dit café is een klassieker: sinds 1670 is Café Hoppe al gevestigd aan het centrale plein genaamd t’ Spui. Café Hoppe heeft dan ook een rijkelijke geschiedenis: hier werd de basis gelegd voor een van de grootste politieke partijen van Nederland, voormalig Koningin Beatrix vereerde de bruine Amsterdamse kroeg met een bezoek maar ook Freddy Heineken, grondlegger van het meest bekende Nederlandse bier liep de deur plat in dit centraal gelegen café. En nog steeds is Hoppe een van de meest bruisende cafés in het centrum van Amsterdam. Strijk hier neer voor een (Heineken) biertje, geniet van de zon en kijk om je heen.

103869559_10163664798155142_645102952535043170_n
04
Adres
Huidenstraat 25,
1016 ER Amsterdam

Café de Pels

Café de Pels is een echt intellectueel creatief café. Menig boek of column is hier geschreven, goede gesprekken worden hier gevoerd en leuke of stomme grappen zijn hier uitgeprobeerd. Ook wordt er in de Pels op z’n Amsterdams geflirt, gediscussieerd en zoals het hoort in een Amsterdams bruincafé, bier gedronken. De muren hangen vol met kunst dat door vaste gasten zelf gemaakt is. Het is een bruincafé met een creatief randje, broodjes kroket en op maandag een daghap.

Schermafbeelding 2022-10-10 om 14.52.13
05
Adres
Spuistraat 304,
1012 VX Amsterdam

Sagardi

In 2020 opent Sagardi zijn deuren. Het is een deel van de Spaanse groep Sagardi Restaurant, wat zit gevestigd over heel Europa. Bij Sagardi serveren ze de beste stukken Baskisch rood vlees, oftewel txuleton, wilde vis uit de Baskische havens en hun eigen gekweekte groenten en fruit uit hun eigen tuinen. Chef-kok Iñaki López de Viñaspre is bekend om zijn eerlijke en authentieke keuken met de smaak van weleer.

Frens-Haringhandel_FMWS_20160418_0039_-e1592935539840
traditional-herring-frens-haringhandel-710×375
06
Adres
1017 AW Amsterdam

Frens Haringhandel

Frens Haringhandel is nog een van de weinige viskramen in Amsterdam waar je heerlijke verse haring en andere vis kan bestellen op de traditioneel Hollandse manier. Al sinds 1972 is de familie Frens actief in de haringindustrie, inmiddels wordt de kraam gerund door vrouw, zoon en vriend van Frens. De kraam staat op een vaste plek op Koningsplein en is iedere dag geopend voor een verse hap vis met zuurtjes en ui.

07
Adres
Spuistraat 281,
1012 VR Amsterdam

Koffiesalon

De allerlekkerste Italiaanse koffie gemaakt door goede barista’s. De service is heel erg goed en je proeft dat de koffie gemaakt is door experts. Je kan hier ook terecht voor simpele en lekkere ontbijthapjes. Ze hebben hier take-away maar even binnenzitten is ook mogelijk. De koffiesalon heeft meerdere vestigingen in de stad.

412428428_266762306412529_8086765611674655419_n
406512134_257536430668450_7884857376059786217_n
08
Adres
Spuistraat 279,
1012 VR Amsterdam

Oaxaca

Bij Oaxaca presenteert chef Joan Bagur de traditionele Mexicaanse keuken te midden van de prachtig gerenoveerde oude panden van Haesje Claes aan het Spui. Je kan kiezen voor een chefsmenu, een culinaire reis langs de belangrijkste regio's van Mexico, of een eigen a-la-carte selectie. Naast het restaurant, kan je hier ook terecht voor een mezcal proeflokaal. Wat alleen al de moeite waard is voor een bezoekje!

313848685_1144510456168068_7188390628705923134_n
09
Adres
Runstraat 6,
1016 GK Amsterdam

Screaming Beans

Screaming Beans is een Amsterdams merk dat lokaal en internationaal bekend staat om zijn hoogwaardige koffie. Deze locatie bevindt zich te midden in de historische Negen Straatjes van Amsterdam.  Met zijn gezellige en familiaire sfeer is de winkel aan de Runstraat een tweede huiskamer geworden voor de ondernemers, bewoners en bezoekers van de Runstraat. Kom langs en geniet ook van een heerlijk gebakje, gebakken door Sara of Mateen.

Vinkeles_Impression_Patio_LRS_06
Restaurant_Vinkeles_Food_LRS_13-1500×630
10
Adres
Keizersgracht 384,
1016 GB Amsterdam

Vinkeles (**)

Omsloten door hotel Dylan, is restaurant Vinkeles klein Frankrijk dichtbij huis. Met een prachtige locatie aan de Keizersgracht is het restaurant bij uitstek een chique aangelegenheid. De keuken draagt de handtekening van chef Jurgen van der Zalm die in 2023 zijn tweede ster er mee verdiende.

sfeer-buiten1
11
Adres
Runstraat 12,
1016 GK Amsterdam

Restaurant Smelt

Smelt is een gezellig en sfeervol restaurant in de 9 straatjes van Amsterdam. Het restaurant is gespecialiseerd in kaasfondue en biedt vijf verschillende soorten kaas aan. Naast klassieke kaasfondue kun je bij Smelt ook genieten van bijzondere smaken zoals truffel en pesto. Als je geen grote eter bent, kun je ook eenpersoonsporties bestellen. Het interieur van Smelt is knus en warm, met veel hout en kaarslicht. Een perfecte plek om te genieten van een heerlijke kaasfondue met vrienden of familie.

242763162_10159469480317380_5670688408655907350_n
12
Adres
Runstraat 14,
1016 GK Amsterdam

Café de Doffer

Café in de 9-straatjes met een knus terras en een eenvoudige doch goede menukaart. Je kan hier ook terecht voor lunch en borrelhapjes. De Doffer is al sinds de jaren zeventig een begrip in de Amsterdamse 9 straatjes en trekt daarom ook een leuk gevarieerd publiek met uiteraard een goede portie Amsterdamse gezelligheid. Voor iedereen wat wils hier!

353641879_1419939592163038_8634430788037824397_n
290397117_436247795090553_6563998570248249791_n
13
Adres
Wolvenstraat 22,
1016 EP Amsterdam

Café Wolf

Bakkerij Wolf opende al een jaar geleden haar deuren. En dan is nu daarnaast Café Wolf geopend,  waar je kunt genieten van verfrissende gerechten boordevol groenten in een prachtig Scandinavisch interieur. De gerechten zijn hier niet je standaard kost, maar bieden een unieke culinaire ervaring van hoog niveau. Het Café is geopend van dinsdag tot zondag vanaf 8:30 tot 18:00 (de keuken sluit om 17:00).

 

Schermafbeelding 2022-10-10 om 12.05.00
Schermafbeelding 2022-10-10 om 12.05.19
14
Adres
Voetboogstraat 23,
1012 XK Amsterdam

Bhatti Pasel

Na jaren ervaring opdoen in top restaurants en hotels in verschillende landen, opent Tika Pun zijn eigen deuren van Bhatti Pasel. Een authentiek Nepalees restaurant midden in Amsterdam. Je kan er terecht voor een snelle lunch, een diner of een shared dining experience. Ze serveren heerlijke Nepalese, met de keuze uit gestoomde of gefrituurde dumplings (momo), gecombineerd met sesam, tomaat of koriander.

302010347_495888739209659_6066910017611455600_n
15
Adres
Rozenboomsteeg 4,
1012 PR Amsterdam

Café de Dokter

Café de Dokter ook wel 't Doktertje, is opgericht door een chirurg van het Binnengasthuis. Hij opende het café als ontmoetingsplaats voor artsen en studenten. Tegenwoordig komen de bezoekers overal en nergens vandaan.

Interieur
68b5fce4900d8af5fd8fa70e_Frame 109
68b5fcde3bc17a074edca4a0_Frame 121
16
Adres
Singel 395,
1012 WN Amsterdam

Two Story

Two Story ontstond vanuit de overtuiging dat kunst voor iedereen is en dat hedendaagse kunst niet afstandelijk of intimiderend hoeft te zijn. De oprichters transformeerden een historisch grachtenpand tot een tweelaagse combinatie van galerie, designstore en café die aanvoelt als een echt thuis. Hun visie draait om het creëren van dat Sunday Morning Feeling, met de geur van verse koffie, zachte muziek en kunst die opgaat in het dagelijkse ritme. Voor het ontwerp werkten ze samen met het Kopenhaagse Atelier Axo, bekend om hun ruimtelijke storytelling en gevoel voor balans tussen oud en nieuw. De sfeer is warm en toegankelijk, een plek waar nostalgie en vernieuwing samenkomen in een omgeving die kunst vanzelfsprekend maakt.

cph-25_rey-chair_910x1100
colour-storage_table-clock_trae_910x1100-1
17
Adres
Spuistraat 281,
1012 VR Amsterdam

Hay House

Hay House is een centraal gelegen, indrukwekkende design woonwinkel. Voor bijzondere meubels, verlichting en diverse woonaccessoires kan je hier terecht. De collectie is gebaseerd op Deens design uit de jaren vijftig en zestig, en kan je bewonderen op twee verdiepingen in een gaaf pand. De sfeer is open en rustig en je wordt goed geholpen door vriendelijk personeel. Ook kan je terecht voor advies en kan je in-store genieten van de heerlijke koffie van De Koffiesalon.

spuiboekenmarkt10
18
Adres
Spui,
1012 WX Amsterdam

Boekenmarkt Spui

De Boekenmarkt op het Spui wordt iedere vrijdag, het hele jaar door, gehouden van 10.00 – 18.00 uur. Alleen in geval van overmacht (zoals bijvoorbeeld heel slecht weer) gaat de markt niet door. Maar vaak gebeurd dit niet, want de echte boekenliefhebber laat zich niet tegenhouden door wat regen, en de verkopers ook niet. Je vindt er tweedehands en antiquarische boeken en is al dertig jaar een begrip, ook in het buitenland. Ook prenten, pamfletten, affiches, documenten en tijdschriften kan je hier aantreffen, in meerdere talen!

19891-en-muuto-showroom-amsterdam-16
26895-en-amstedam-showroom-sep-2023-muuto-hi-res-32
19
Adres
Keizersgracht 469,
1017 DK Amsterdam

Muuto

Muuto is geworteld in de Scandinavische ontwerptraditie, gekenmerkt door tijdloze esthetiek, functionaliteit, vakmanschap en een eerlijke expressie. Muuto komt van 'muutos', wat nieuwe perspectieven betekent in het Fins. Je herkent het design omdat het muutos heeft: objecten verheven door nieuwe perspectieven, wereldwijd gewaardeerd en representatief voor het beste van Scandinavisch design vandaag de dag. Om Muuto te bezoeken moet je van te voren een afspraak maken, dat kan via hun website.

Boodschappen
9
20
Adres
Huidenstraat 12,
1016 ES Amsterdam

Chocolaterie Pompadour

Chocolaterie Pompadour is een patisserie aan de Huidenstraat. Alles draait hier om vakmanschap, pure producten en passie voor chocolade en gebak. Elk chocolaatje wordt met zorg gemaakt en prachtig gedecoreerd. In de bijbehorende tearoom kunt u in het prachtig nostalgische interieur genieten van heerlijke thee of Catalaanse koffie. Bij elk kopje koffie serveert Pomadour ook een zelfgebakken financier; een zalig frans cakeje van Spaanse amandelen en beurre noisette. Kortom, voor de beste gebakjes met pure smaken ben je hier aan het juiste adres.

kaaskamer-amsterdam-cheese-lunch-broodjes-speciale-kaas-80
21
Adres
Runstraat 7,
1016 GJ Amsterdam

Kaaskamer

De naam zegt het al; bij de Kaaskamer kan je terecht voor kaas. Van de vloer tot het plafond is deze winkel gevuld met kaas waarbij vakmanschap en traditie voorop staan. Bij deze kaasspeciaalzaak kan je tussen de 300 en 400 soorten kaas kopen uit heel Europa. Je kan hier je broodje beleggen met ruime keuze en om het af te maken kan je ook kiezen tussen verschillende huisgemaakte sausjes. Uit Frankrijk worden de kazen iedere twee weken zelf opgehaald en in Nederland ligt de focus op biologische kazen die rechtstreeks van de boer komen. Ook worden er wijnen, salades, olijven, hammen en noten verkocht voor een complete borrelplank.

Schermafbeelding 2022-09-27 om 11.29.03
22
Adres
Wolvenstraat 22,
1016 EP Amsterdam

Bakkerij Wolf

In de negen straatjes in Amsterdam zit Bakkerij Wolf. Blijf even lekker zitten of neem wat lekkere dingen mee naar huis. Op de rustieke houtrekken achter te toonbank staan de zuurdesembroden uitgesteld. Bij deze bakker in de Wolfstraat heb je broden, croissants en gebakjes van de allerbeste kwaliteit. De geur van de kaneelbroodjes en croissants is onweerstaanbaar en je kijkt je ogen uit in de vitrine vol lekkers. Probeer absoluut de amandelcroissant en het aardbeientaartje

Kunst & cultuur
erin_johnson.1000×700
23
Adres
Singel 372,
1016 AH Amsterdam

Ellen de Bruijne Projects

Ellen de Bruijne Projects is een galerie die zich sinds de eerste tentoonstelling in 1999 richt op nieuwe tendensen in de hedendaagse kunst door het nieuwe in vergelijking te brengen met het recente verleden en te experimenteren om nieuwe standaarden te ontwikkelen, waarbij de nadruk ligt op performing art, sociaal gerelateerde kunst, installaties en werken in uitvoering.

74e6adf2059221ac2dd55278be18c13b_w680
24
Adres
Keizersgracht 321,
1016 EE Amsterdam

De BorzoGallery

De BorzoGallery gelegen aan de Keizersgracht is toonaangevend op het gebied van NUL/Zero, minimalisme en conceptuele kunst. Het koppelen van het nabije verleden aan de hedendaagse kunst is een van de belangrijkste speerpunten. Zoals ze zelf zeggen: “Kunstenaars van nu ‘staan op de schouders’ van hun voorgangers, waarbij wij schrille contrasten niet schuwen.”

deur_6e47a554-ba37-4854-8ed7-dba08d3a300c
25
Adres
Prinsengracht 615H,
1016 HT Amsterdam

Galerie Madé van Krimpen

Galerie Madé van Krimpen, voorheen bekend als Multiplemadé, presenteert een mix van tentoonstellingen die werk tonen van zowel gevestigde als opkomende kunstenaars. Hoewel de galerie vooral gericht is op solotentoonstellingen en groepsexposities, werken ze ook regelmatig samen met creatieve collectieven en makers om pop-up-evenementen en take-overs te organiseren.

Tien jaar Shortlist Amsterdam: een jubileum met simpele succesrecepten.

Tien jaar Shortlist Amsterdam: een jubileum met simpele succesrecepten.

Samengesteld; een collectie ‘landelijk wonen’ in en om Amsterdam

Samengesteld; een collectie ‘landelijk wonen’ in en om Amsterdam

Een Rijksmonument uit 1896 gebouwd in een Art Nouveau stijl naar ontwerp van Gerrit van Arkel.

Een Rijksmonument uit 1896 gebouwd in een Art Nouveau stijl naar ontwerp van Gerrit van Arkel.

Onlangs bekeken
Bekijk het overzicht

Deze site maakt gebruik van cookies.

Voor welke cookies geef je akkoord?