Heerlijk wonen in een licht en ruim opgezet herenhuis op een top locatie in Amsterdam Zuid, dichtbij verschillende (internationale) scholen, in een rustige straat nabij het Beatrixpark.

Dit gemeubileerde (familie)huis met een prettige indeling is verdeeld over drie verdiepingen, heeft vier slaapkamers en twee badkamers, een grote zonnige tuin met tuinhuisje. 

Een rondleiding

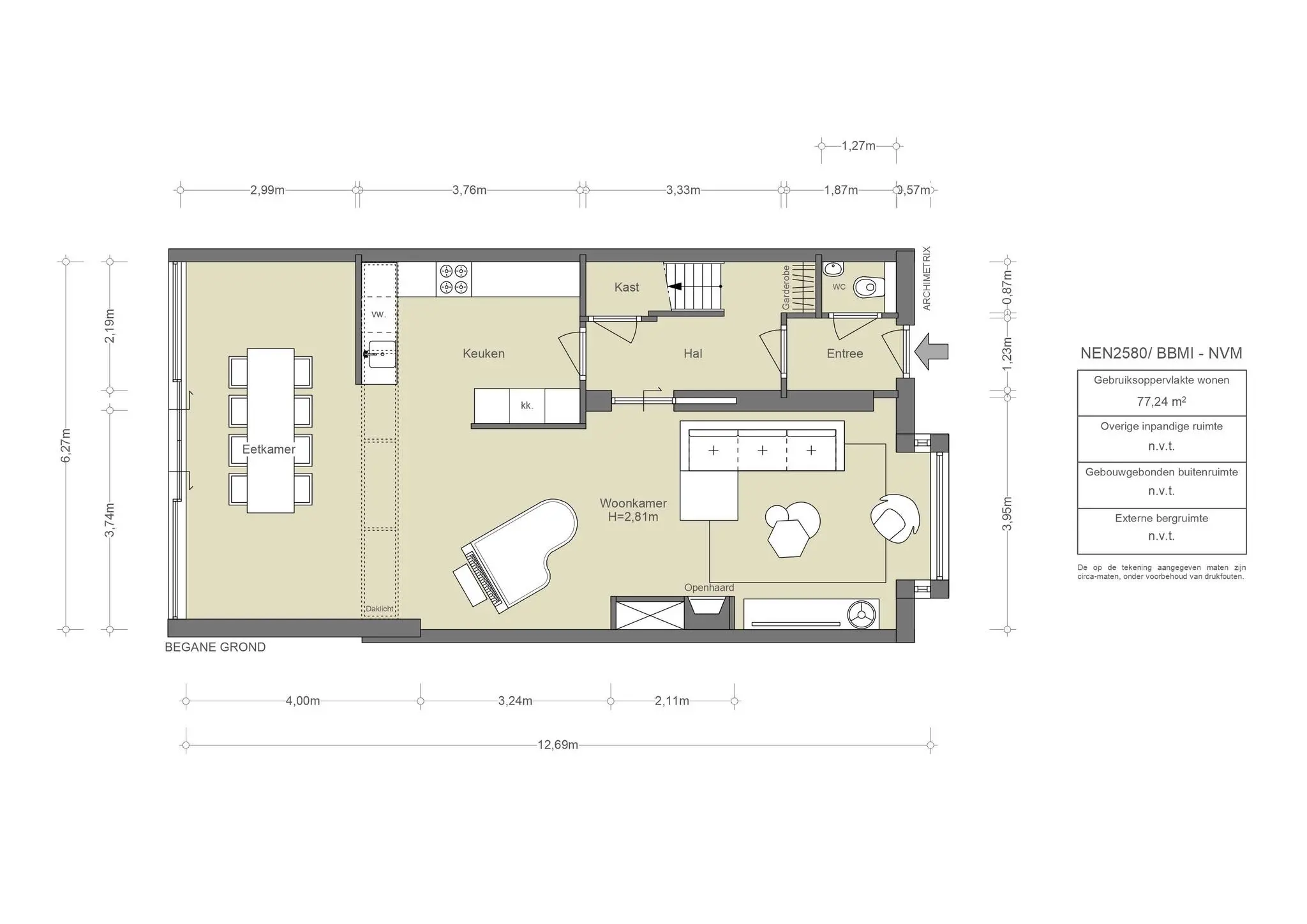
De begane grond
Entree in nette hal met toilet. De woonkamer ademt licht en ruimte. Aan de voorzijde van het huis is de zithoek gelegen, een fijne en ontspannen hoek waar ook van de haard kan worden genoten. Aan de achterzijde ligt de eetkamer en de half-open moderne keuken voorzien van inbouwapparatuur zoals een vaatwasser, inductiekookplaat, twee ovens (met stoomfunctie en magnetron) en koelkast. 
De royale raampartijen verbinden het interieur met de groene buitenwereld. Middels de eetkamer is de riante tuin te bereiken, een fijne plek om van de buitenlucht te genieten en genoeg ruimte voor het hele gezin. 

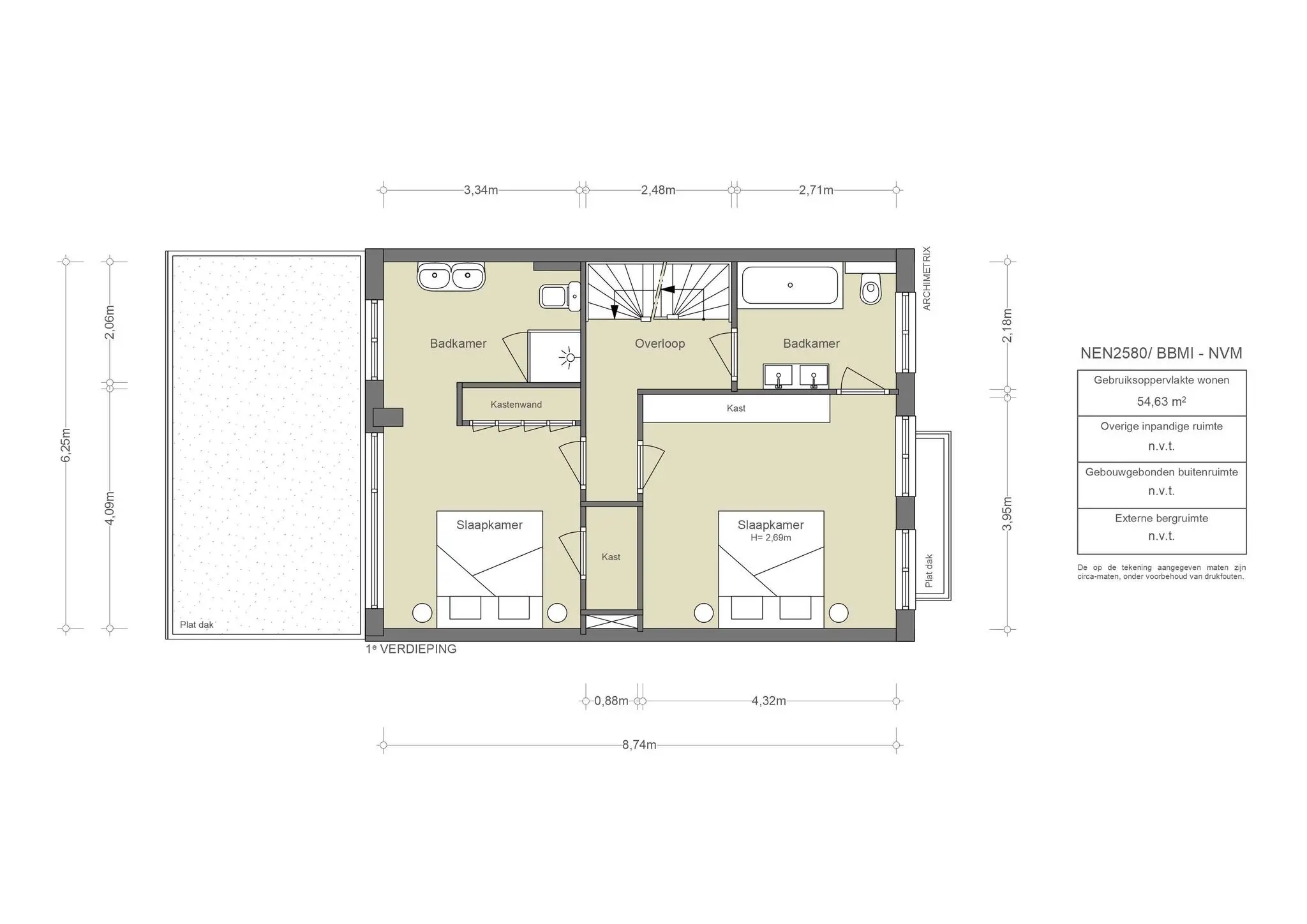
De eerste verdieping
Op deze slaapverdieping zijn twee slaapkamers en twee badkamers gelegen. De kamer aan de voorzijde wordt gebruikt als werkkamer en is voorzien van kasten. De masterslaapkamer zit aan de achterzijde en heeft aan badkamer en-suite met douche, toilet en dubbele wastafel. Via de hal is de tweede strakke badkamer te bereiken die voorzien is van een ligbad, dubbele wastafel en toilet.

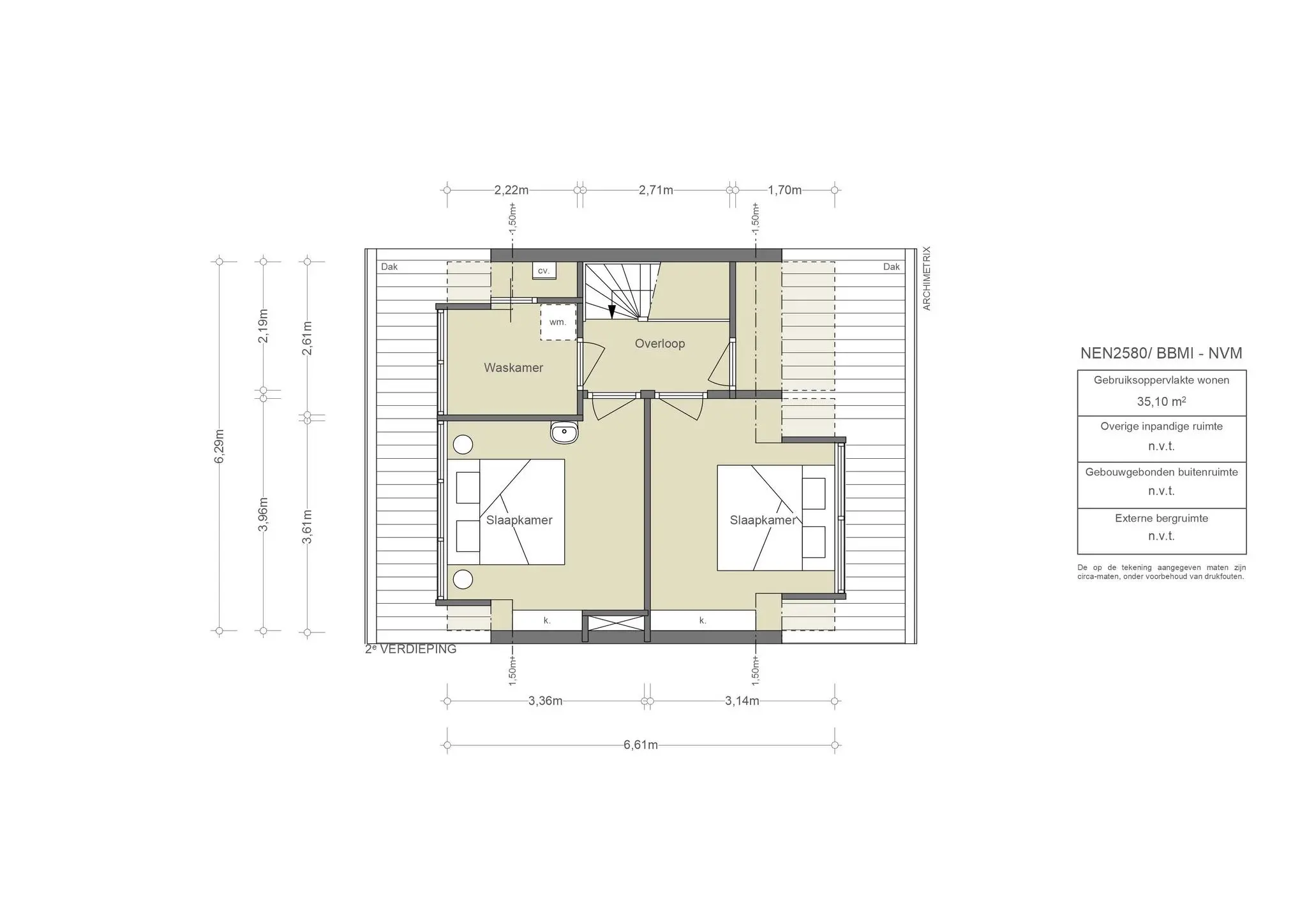
De tweede verdieping
Op deze verdieping zijn ook twee slaapkamers en een wasruimte. 

De buitenruimte
De zonnige tuin vormt een groene oase, zorgvuldig omzoomd door hoge hagen die zorgen voor privacy en beschutting. De combinatie van sierlijk straatwerk, beplanting en een royaal terras creëert een buitenruimte met een ontspannen karakter. 

De omgeving en bereikbaarheid
Zeer goed gelegen in Zuid dichtbij de Beethovenstraat, waar een divers aanbod van winkels, restaurants, terrassen, traiteurs en koffietentjes te vinden is. Alle voorzieningen zoals cultuur, internationale scholen en sportfaciliteiten zijn in de buurt. De buurt wordt gekenmerkt door zijn groene karakter en brede straten. Voor meer ontspanning kan er in het Beatrixpark gerecreëerd worden. De verschillende musea zoals het Rijks- Stedelijk en van Gogh museum zijn binnen enkele minuten fietsen te bereiken. 

De ring A10 is snel te bereiken, openbaar vervoer met verschillende bus- en tramlijnen zijn allemaal op loopafstand gelegen en station Amsterdam Zuid bevindt zich op enkele minuten loopafstand. Vanaf dit treinstation is Schiphol binnen zeven minuten bereikbaar. Op loopafstand van de Zuid-As.

De parkeergelegenheid
Er is een mogelijkheid om een parkeervergunning aan te vragen. 

De bijzonderheden 
- Huurprijs: € 6.950,- excl. per maand;
- Beschikbaar: per 15 juli;
- Huurtermijn: Model C, 12 maanden;
- Borg: 2 maanden huur;
- Gemeubileerd (ongemeubileerd is mogelijk);
- Woningdelen is niet toegestaan op basis van de regels van de gemeente Amsterdam;
- Huisdieren niet toegestaan.

Kenmerken
Henriette Bosmansstraat 44, Amsterdam
Huurprijs
  • € 6.950 per maand
Beschikbaarheid
  • Per datum
Vertrekken
  • 5 kamers
  • 4 slaapkamers
  • 2 badkamers
Onderhoud
  • Intern: Goed
  • Extern: Goed
Oppervlakten & Inhoud
  • Woonoppervlakte: 167 m²
  • Gebouwgebonden buitenruimte: 117 m²
  • Externe bergruimte: 2 m²
  • Tuinoppervlakte: 85 m²
Bouwjaar
  • 1954
Installaties
  • Dakraam
  • Schuifpui
  • Zonnepanelen
Ligging
  • Aan rustige weg
  • In woonwijk
Parkeren
  • Betaald parkeren
  • Openbaar parkeren
  • Parkeervergunningen
Bestemming
  • Woonruimte
Buitenruimte
  • Achtertuin
  • Voortuin
Duurzaamheid
  • Dakisolatie
  • Vloerisolatie
  • Volledig geisoleerd
Soort
  • Eengezinswoning
  • Tussenwoning
  • Woonhuis
Bijzonderheden
  • Gemeubileerd
Plattegrond
Henriette Bosmansstraat 44, Amsterdam
AM106445-2019507-Henriette-Bosmansstraat-44,-Amsterdam-232744048
AM106445-2019507-Henriette-Bosmansstraat-44,-Amsterdam-232744062
AM106445-2019507-Henriette-Bosmansstraat-44,-Amsterdam-232744080
AM106445-2019507-Henriette-Bosmansstraat-44,-Amsterdam-232744092
Documenten
Henriette Bosmansstraat 44, Amsterdam
Locatie
Henriette Bosmansstraat 44, Amsterdam
Kunst & cultuur
pati_F1A7803ssdweb
_F1A4074
01
Adres
Parnassusweg 220,
1076 AV Amsterdam

Diez Gallery

Diez is een Amsterdamse kunstgalerie met een internationale uitstraling, opgericht in 2022 door Diego Diez. De tentoonstellingen worden samengesteld in samenwerking met kunstenaars die affiniteit hebben met Diez's interesses en zullen zowel internationaal als nationaal talent presenteren in Amsterdam. Naast het tentoonstellingsprogramma streeft Diez ernaar een toegankelijke ruimte te zijn voor een breed publiek met diverse activiteiten en evenementen zoals poëzielezingen, samengestelde diners en kunstenaarsgesprekken.

downloadgram.org_597897714_1508494480841935_8620457783605645660_n
02
Adres
Prinses Irenestraat 36,
1077 WX Amsterdam

De Thomas

De Thomas is een monumentale kerk aan de rand van de Zuidas waar religie en cultuur bewust samenkomen. Met een eigen theater, concerten en debatavonden is het een plek voor ontmoeting en verdieping, midden in het zakelijke hart van Amsterdam Zuid. Het gebouw geldt als een belangrijk voorbeeld van naoorlogse kerkarchitectuur in Nederland en is vormgegeven in een expressieve, brutalistische stijl.

03
Adres
Hildegard Von Bingenstraat 4,
1081 LH Amsterdam

Cinema The Pulse

Cinema The Pulse is een filmtheater in de plint van The Pulse of Amsterdam op de Zuidas, met een breed programma van arthouse, cult en actuele films. De kracht ligt in de combinatie van cinema, architectuur en ontmoeting, als stedelijke filmhub waar filmbeleving en metropolitane context samenkomen.

04
Adres
De Boelelaan 1111,
1081 HV Amsterdam

VU ART SCIENCE gallery

De VU ART SCIENCE gallery is een universitaire galerie op de VU-campus waar kunst en wetenschap elkaar ontmoeten in tentoonstellingen en dialogen rond actuele thema’s. De kracht ligt in de multidisciplinaire uitwisseling tussen kunstenaars, onderzoekers en publiek, met een duidelijke focus op kennis, onderzoek en maatschappelijke vraagstukken.

05
Adres
De Boelelaan 1111,
1081 HV Amsterdam

Rialto VU

Rialto VU is de tweede locatie van het historische filmtheater Rialto (1921) en gevestigd op de VU-campus aan de Boelelaan. De kracht ligt in de combinatie van arthouse cinema, festivals en culturele programmering binnen een bredere culturele hub waar film, kunst en academie samenkomen.

Eten & drinken
frietsteeg
06
Adres
Stadionkade 73 /A,
1076 BJ Amsterdam

De Frietsteeg

De Frietsteeg is een snackbar aan de gracht in de Stadionbuurt. Ze serveren hier heerlijke krokante frietjes en vele andere snacks. De frieten worden met de hand gesneden en je hebt keus uit meer dan 20 sauzen. Ook bijzonder: de Frietsteeg is gevestigd in een historisch huisje en er is een groot zonnig terras aan het water

07
Adres
Olympiaplein 111,
1077 CV Amsterdam

The Coffee District

Eigenaren Adil Loukane en Rosa Loukane begonnen met een hole-in-the-wall coffeeshop in een modewinkel in Zuid. Toen de winkel de deuren sloot, grepen Adil en Rosa hun kans en besloten om hun eigen koffiebar te openen. Inmiddels hebben ze meerdere locaties. De koffie wordt gemaakt met een eigen melange gebrand door Lot Sixty One. Daarnaast worden er zoetigheden aangeboden zoals de inmiddelsal bekende kaneelbroodjes en bananenbrood.

84828243_1531217050352887_4539296221554016256_o
08
Adres
Agamemnonstraat 27,
1076 LP Amsterdam

Umeno

Umeno is een van de oudste Japanse restaurants in Amsterdam dat geliefd is bij haar vaste lokale gasten. Zodra je binnenstapt zie je een intieme ruimte met traditionele Japanse authenticiteit gevormd door het handgemaakte houten interieur, de shamisen en shakuhachi muziek en de enorme gastvrijheid van Ayumi en Atsuhito Hosono. De nigiri sushi is een aanrader, want de kwaliteit van de vis is uitstekend.

09
Adres
Parnassusweg 400,
1081 LD Amsterdam

Vascobelo Parnassusweg

Vascobelo ontstond in 1998 in Antwerpen vanuit de familiepassie van Marc De Roeck, die opgroeide met vers gebrande koffie van zijn vader. De kracht ligt in de combinatie van Belgische koffiecultuur, langzaam gebrande blends en een herkenbare, ambachtelijke signatuur waarin kwaliteit en beleving centraal staan.

366937812_17933803049710351_8213912525779000332_n
367438354_17933803034710351_539942877662656212_n
370936688_17935908203710351_8346539429364568324_n
10
Adres
Beethovenstraat 515,
1083 HK Amsterdam

Nela

Bij Nela vieren ze de samensmelting van live vuur koken met hoogwaardige en zorgvuldig geselecteerde ingrediënten. Ze halen en selecteren seizoensgebonden producten van gespecialiseerde partners.  Het open vuur is het perfecte gereedschap voor de chefkoks om warmte en temperatuur te gebruiken om ongelooflijke texturen en smaken te creëren. Nela is bedacht door toonaangevende chefs Hari Shetty en Ori Geller, die twee decennia ervaring hebben op het internationale podium. Na jarenlang te hebben gewerkt voor toprestaurants zoals Nobu (Londen), Yaffo-Tel Aviv, Izakaya, The Duchess en Mr. Porter (Amsterdam), bundelden ze hun krachten met de innovatieve internationale ondernemer Gilad Hayeem (Waverly Group). Samen brachten Hari, Ori en Gilad hun gedeelde visie en creativiteit tot leven door Nela op te richten.

Interieur_Zuidas_24-12-2018-scaled
11
Adres
Parnassusweg 1021,
1082 LZ Amsterdam

Café Loetje Zuid As

In 1977 werd café Loetje opgericht als biljartcafé door Ludwig 'Loetje' Klinkhamer, maar het duurde niet lang voor men het biljart inruilde voor de ossenhaasbiefstuk die werd geserveerd. Meer dan veertig jaar later is Loetje een gigantische keten en is het oorspronkelijke 'Café' een begrip in Amsterdam. De smakelijke biefstuk wordt geserveerd met huisgemaakte frietjes en zwemt in verse jus - om je vingers bij af te likken!

89760007_208364853843740_4913033452334350336_n
12
Adres
Beethovenstraat 58,
1077 JK Amsterdam

Winebar QV

Bij Winebar QV kan je in principe de hele dag doorbrengen alsof je in Italië bent. Je begint met een Italiaanse espresso, luncht met een warme maaltijd en sluit af met een goed glas wijn met bijbehorend een Italiaanse aperitivo. Het is er gezellig en stijlvol ingericht en je kan aan de hoge krukken aan de bar zitten, aan de lagere tafeltjes of op het kleine terras.

483279358_18324217756166170_7586630462193368446_n
13
Adres
Stadionweg 271,
1076 NZ Amsterdam

Cucina casalinga

Giovanni Carmelitano is de eigenaar van Cucina Casalinga, een Italiaans restaurant gevestigd aan de Stadionweg 271 in Amsterdam-Zuid. Geboren in Rome, met een moeder uit Puglia, brengt Giovanni zijn Zuid-Italiaanse roots tot leven in zijn restaurant. Al meer dan twintig jaar is hij een toegewijde vertolker van de Italiaanse keuken, waarbij hij traditionele smaken combineert met een moderne benadering. De intieme sfeer en het beperkte aantal zitplaatsen zorgen voor een persoonlijke eetervaring die doet denken aan dineren bij een Italiaanse ‘nonna’ thuis.

vascobelo-stadionplein-01
14
Adres
Stadionplein 100,
1076 CK Amsterdam

Vascobelo

Vascobelo, van origine uit Antwerpen, was bedoeld als een café waar mensen zouden komen voor een unieke koffie ervaring. Inmiddels is de keten aan Vascobelo Café-Brasseries bekend van veel meer dan alleen dat. De vestiging in de Rijnstraat is uniek door het knusse interieur en de open keuken, wat de locatie ideaal maakt voor intieme ontmoetingen of zakelijke bijeenkomsten.

315761837_664619815074448_8137880443810625460_n
321084772_1555342291555230_7489434614896126447_n
15
Adres
Beethovenstraat 38,
1077 JJ Amsterdam

Et Claire

Op de Beethoven straat bevindt zich Et Claire. Et Claire is ontstaan uit een voorliefde voor de beste viennoiserie, koffie, (ijs)thee in combinatie met eindeloze zoete en hartige mogelijkheden.  Het motto bij et Claire is ''ne vous contentez pas de moins'', wat betekent dat je niet genoegen moet nemen met minder.

264088316_309512271179442_4492361891256328028_n
242514067_218469310302263_8949483099160412699_n
16
Adres
Beethovenstraat 19,
1077 HM Amsterdam

Cafecito

Cafecito, een minimalistische koffiezaak, biedt hoogwaardige koffie uit stralend witte machines. Het is een onderdeel van de Cafecito-franchise, een Amsterdamse koffiebranderij die besloot koffiezaken te openen om hun eigen afzet te stimuleren toen de verkoop aan horecagelegenheden tijdens de pandemie stagneerde. Cafecito heeft al drie vestigingen in Amsterdam en één in Rotterdam. Cafecito is een tot de essentie teruggebrachte zaak. Je drinkt er topkoffie uit witte machines.

Schermafbeelding 2022-09-27 om 12.59.20
Schermafbeelding 2022-09-27 om 12.59.31
17
Adres
Stadionplein 24,
1076 CM Amsterdam

Wils Bakery & Café

In Amsterdam Zuid vind je nu Wils Bakery Café op de begane grond. Een mix van bakkerij en Franse bistro. Wils is een nieuwe onderneming van chef Joris Bijendijk en de Vermaat Groep (Vermaat bezit Rijks en Wils).  In Wils Bakery Café combineren ze het ambacht van een bakkerij met de gezelligheid van een Franse bistro. Op de menukaart vind je herkenbare gerechten, bereid met hetzelfde vakmanschap als in Michelinster restaurant Wils. Proef de patisserie van Tania, de gerechten van Rudolf, lunch met het brood van Maxim en borrel met de wijnen van Barbora.

211297744_1153889045094448_8766733082684644550_n
18
Adres
Stadionplein 26,
1076 CM Amsterdam

Restaurant Wils (*)

Deze unieke culinaire hotspot opent zijn deuren in 2019 dankzij chef Joris Bijdendijk. Het restaurant bevindt zich naast het Olympische stadion. Joris gaf voor de opening een sneak preview door op open vuur te koken op de middenstip van het stadion in Amsterdam-zuid. De hoge verwachtingen maakt Wils inmiddels helemaal waar. Van de 4 tot 6 gangen worden op open vuur bereid en zitten vol verrassende elementen.

Boodschappen
Schermafbeelding 2022-05-12 om 19.08.47
19
Adres
Olympiaplein 111,
1077 CV Amsterdam

L'Amuse

Volgens sommigen is dit de beste kaaswinkel van Nederland. Ze hebben een indrukwekkend breed assortiment van de lekkerste kazen. Ook heerlijke wijn, salami, ham en olijfolie is hier te koop. Je wordt uitstekend geholpen en de kaas is echt van een ander niveau. Aanrader!

20
Adres
Olympiaplein 119,
1077 CW Amsterdam

Le Fournil de Sébastien

Le Fournil is het initiatief van Susan en Sébastien, die na jaren bakkerservaring in Frankrijk in 2007 naar Nederland kwamen om een authentieke Franse boulangerie te openen. De kracht ligt in het ambachtelijke handwerk, zuurdesem en de bewuste keuze voor kleinschaligheid en pure, traditionele broodbereiding.

21
Adres
Marathonweg 51,
1076 TB Amsterdam

Slagerij Zikking & Zoon

Slagerij Zikking & Zoon zit aan de Marathonweg en is een begrip in Amsterdam. Eigenaar Robert Zikking is een geboren en getogen Amsterdammer die samen met zijn vrouw in 1995 gepassioneerd en vol zelfvertrouwen een eigen zaak begon. Zoals hij zelf zegt: ‘Het is geen sprookje, maar een (h)eerlijke werkelijkheid die een geschiedenis heeft.’ De filet americain is gemaakt met het recept van een oude Jordaanse dam en niet te ontbreken is de nostalgische Amsterdamse ossenworst.

hergo
22
Adres
Beethovenstraat 49,
1077 HN Amsterdam

Slagerij Hergo

Slagerij Hergo is de vleesspecialist in Amsterdam. Al in 1930 begon de heer Cantor, een Duitse worstmaker, samen met zijn vrouw die uit een Amsterdamse slagersfamilie kwam, zijn slagerij met typische Duitse worstspecialiteiten. Met het motto ‘De slager met ’n koksmuts’ is Hergo uitgegroeid naar vier verschillende locaties en is zo tegenwoordig niet meer weg te denken uit het straatbeeld van Amsterdam. Met jachtworst, hausmacher, ossenworst, pekelvlees maar ook met een broodje filet americain onderscheidt Hergo zich als slagerij in het topsegment.

21125326_348074012310751_3902449023829329736_o
21125332_348074092310743_8164135921726057693_o
21200854_348074335644052_3928733172084979767_o
23
Adres
Stadionplein,
1076 CJ Amsterdam

Stadionpleinmarkt

Op het mooie Stadionplein, midden in Oud-Zuid vind je elke zaterdag de Stadionpleinmarkt. Ze gaan om 09:00 open en zijn dus een ideale markt voor mensen die op zaterdag vroeg hun weekboodschappen gedaan willen hebben. Ook hebben ze hier prachtige bloemen te koop en vind je er veel verschillende buurtbewoners. De sfeer is altijd goed en de markt is open tot 17:00.

Interieur
5a1eff_bf84a6dcd25c4e9983e1e74f8140f4da_mv2
24
Adres
Rubensstraat 45,
1077 MJ Amsterdam

Flower fusion

Elke zaterdag van 9:30 tot 17:00 kunt u Ilona Bokma van Flowerfusion vinden op de ZuiderMRKT. Unieke en schitterende bloemen waardoor je het gevoel krijgt middenin een pluktuin te staan. Doordat Ilona iedere week andere bloemen, planten en kleuren uitzoekt die aansluiten bij het seizoen, is het elke zaterdag weer een feestje om langs te gaan bij Flowerfusion.

Uitgelicht; Maison D’Angle

Uitgelicht; Maison D’Angle

Een  industrieel loft op een verborgen plek

Een industrieel loft op een verborgen plek

Buurtgids (rondom) het Willemspark

Buurtgids (rondom) het Willemspark

Onlangs bekeken
Bekijk het overzicht

Deze site maakt gebruik van cookies.

Voor welke cookies geef je akkoord?