Twee-onder-een-kapwoning van circa 207 m² gelegen in de Apollobuurt. De woning is gelegen op een ruim perceel van 459 m² met diepe tuin op het westen aan het water. Het architectenechtpaar Pot-Keegstra heeft de woning ontworpen, er is een inpandige garage, vier slaapkamers, een balkon en zonnepanelen.

Rondleiding
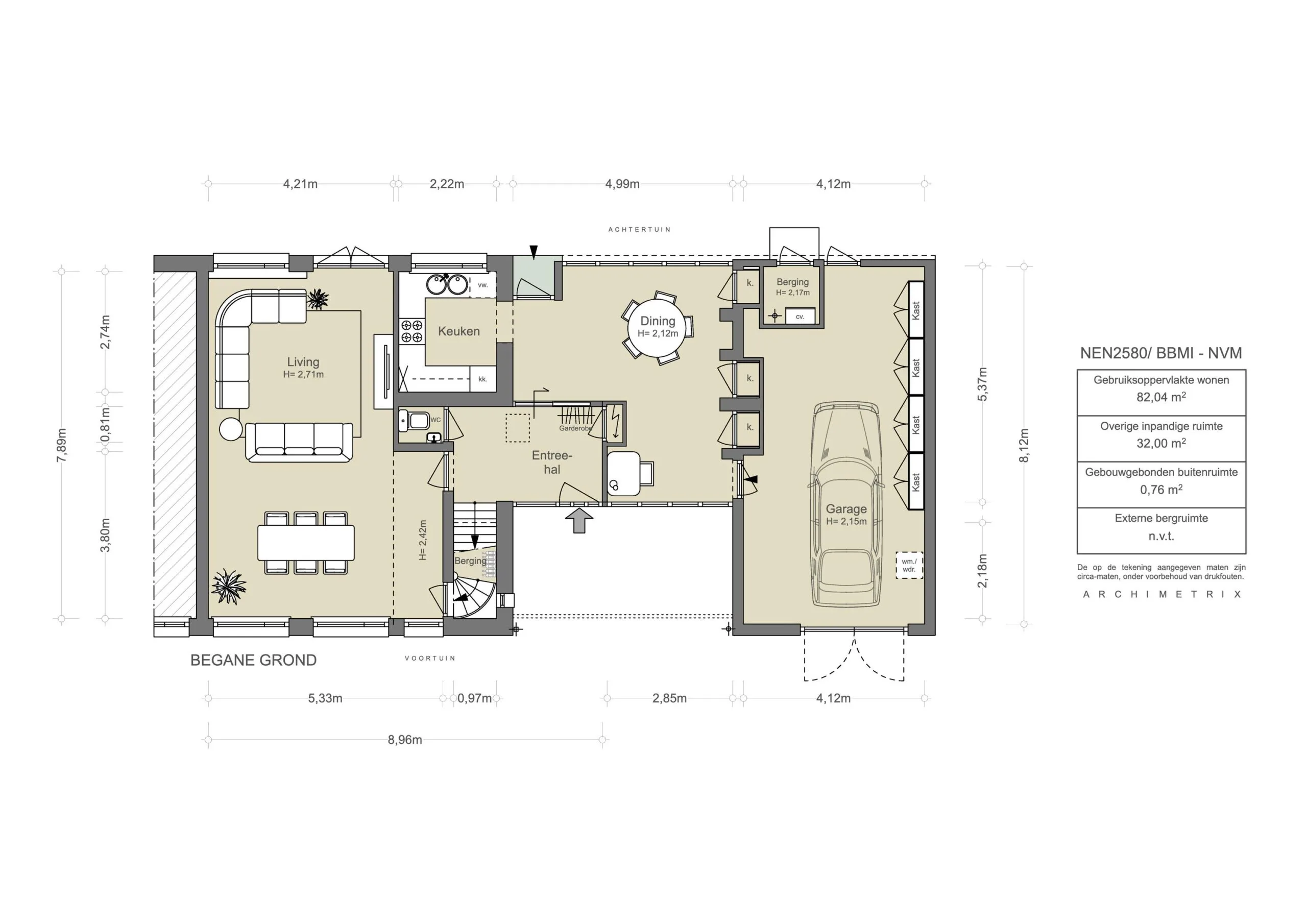
De woning heeft een rustige ligging achter een groene voortuin die veel privacy geeft. De entreehal is licht en overzichtelijk. Aan de achterzijde van de begane grond ligt de woonkamer, met brede glaspartijen en openslaande deuren naar de tuin. De eetkamer sluit aan op de tuin, het terras en loopt door in de keuken, die eveneens uitkijkt op de tuin. Aan de voorzijde ligt de inpandige garage met wasmachineaansluiting. Op de eerste verdieping zijn twee ruime slaapkamers en een badkamer met ligbad, douche en een apart toilet. De tweede verdieping biedt nog twee slaapkamers, waarvan één met toegang tot het balkon. De achtertuin ligt op het westen, grenst aan het water en biedt een groene en stille buitenruimte midden in de stad.

Verbouwingsmogelijkheden
Architectenbureau Allard Architecture heeft in opdracht van de verkoper een plan uitgewerkt voor de verbouwingsmogelijkheden van het woonhuis aan de Haringvlietstraat 12. Dit beslaat met name het samenvoegen en omzetten van de huidige garage tot woonruimte en daarbij de verhoging van de bestaande zij-uitbouw en garage met 1 meter buitenmaats waardoor er een hoger plafond gerealiseerd kan worden in het uitbouw gedeelte. Voorts is het waarschijnlijk mogelijk om een kelder onder het uitbouwgedeelte te maken, echter deze uitbreiding valt nu buiten het bestemmingsplan. Indien je deze gehele uitbreiding zou kunnen realiseren zal de woonoppervlakte vergroot kunnen worden tot circa 275 m². Voor meer informatie is er een vlekkenplan beschikbaar van Allard Architecture en zie alternatieve plattegrond.

Buurtgids
De Haringvlietstraat is een rustige en veilige straat gelegen in de geliefde Apollobuurt nabij het Beatrixpark en de Apollolaan. De buurt wordt gekenmerkt door zijn groene karakter en brede straten. Op de Scheldestraat en Maasstraat is een groot en divers aanbod aan winkels, zoals een viswinkel, koffietentjes en een bakkerij. Voor meer ontspanning is het Beatrixpark een uitstekende plek. Ook de Beethovenstraat bevindt zich op loopafstand. Mocht je willen genieten van een heerlijke lunch zijn onder andere Feduzzi en Vinnies een zeer leuk gelegenheden in de buurt. Diverse sportscholen zijn in de nabije omgeving gelegen en ook het De Mirandabad is op enkele fietsminuten te bereiken.

Bijzonderheden
• Gebruiksoppervlakte van circa 207 m²
• Voortuin op het oosten van circa 161 m² achtertuin op het westen van circa 165 m²
• Balkon van circa 8 m² op het westen
• Gelegen op erfpachtgrond van Gemeente Amsterdam. De erfpacht is afgekocht tot 15-04-2054
• Energielabel D
• Gemeentelijk monument
• Rijksbeschermd stadsgezicht
• Ontwerpplan van de architect beschikbaar

AM105661-2008005-Haringvlietstraat-12,-Amsterdam-228125288

Huys Pot-Keegstra
In 1955 bouwden architecten Pot en Keegstra deze twee-onder-een-kapwoning voor zichzelf en vrienden. Geen façade, geen franje — maar een woning met structuur, licht en karakter. Nu, zeventig jaar later, is die visie nog steeds voelbaar. Huys Pot-Keegstra is ontworpen vanuit een helder principe: ruimtelijkheid zonder overdaad, ritme zonder herhaling, en comfort zonder opsmuk. Elk detail is functioneel én zorgvuldig gekozen. Wat deze woning extra bijzonder maakt, is de zeldzame samenhang tussen architectuur en landschap. De tuin — ooit ontworpen door Mien Ruys — vormt geen omlijsting, maar een verlengde van het plan. En dan is er de ligging: aan een stille straat in de Apollobuurt, met een diepe, groene tuin aan het water van de Boerenwetering, het oudste kanaal van Amsterdam. Huys Pot-Keegstra is niet voor iedereen. Het is voor wie oog heeft voor vakmanschap en rust. Voor wie liever een goed idee bewoont dan een bekende vorm. Voor wie in de eenvoud ruimte ziet.


Ronald van de Bijl | Makelaar Broersma Wonen
Judith de Jong | Makelaar Broersma Wonen
AM105661-2008005-Haringvlietstraat-12,-Amsterdam-228125050
Architectuur

Aan de rustige Haringvlietstraat staat deze monumentale twee-onder-een-kapwoning, ontworpen en bewoond door het architectenechtpaar Pot-Keegstra. Het huis — in 1955 gebouwd als woonhuis met kantoor — is een uitgesproken voorbeeld van laatmodernistische architectuur in een buurt die vooral wordt gekenmerkt door laat jaren ’20-woningen. Het ontwerp is helder en functioneel, met een ritmische gevelcompositie, rechte volumes en een ingetogen materialisering. Architect Pot stond voor een sobere architectuur, waarin expressie voortkomt uit verhouding, ritme en vorm. Geen decoratie of nostalgie, maar zuiver bouwen met ruimtelijke middelen. Dat zie je terug in de verticale raamstroken, veel licht, het subtiele metselwerkreliëf en de precieze balans tussen gesloten en open vlakken. De woning is bewust ingetogen, maar zorgvuldig opgebouwd — met oog voor maat, schaal en structuur. De woning opent zich in lagen: van een diepe voortuin via een royale woonverdieping tot een brede achtertuin aan het water. De entree, met houten puien en wit omlijste panelen, is laag en vriendelijk vormgegeven. Binnen zijn de zichtlijnen lang en de ruimtes logisch verbonden. De inpandige garage — oorspronkelijk losstaand — vergroot het gebruiksgemak en is zeldzaam in deze context. De tuin is ontworpen door Mien Ruys. Zonnepanelen op het dak en een reeds opgesteld herontwerp bieden ruimte voor eigentijdse aanpassingen. Het architecten echtpaar Pot-Keegstra, later ook verantwoordelijk voor de Bijlmerbajes, laat hier zien hoe ingetogen middelen kunnen leiden tot een krachtig en duurzaam woonhuis.

Verbouwingsmogelijkheden
Architectenbureau Allard Architecture heeft in opdracht van de verkoper een plan uitgewerkt voor de verbouwingsmogelijkheden van het woonhuis aan de Haringvlietstraat 12. Dit beslaat met name het samenvoegen en omzetten van de huidige garage tot woonruimte en daarbij de verhoging van de bestaande zij-uitbouw en garage met 1 meter buitenmaats waardoor er een hoger plafond gerealiseerd kan worden in het uitbouw gedeelte. Voorts is het waarschijnlijk mogelijk om een kelder onder het uitbouwgedeelte te maken, echter deze uitbreiding valt nu buiten het bestemmingsplan. Indien je deze gehele uitbreiding zou kunnen realiseren zal de woonoppervlakte vergroot kunnen worden tot circa 275 m². Voor meer informatie is er een vlekkenplan beschikbaar van Allard Architecture en zie alternatieve plattegrond.

AM105661-2008005-Haringvlietstraat-12,-Amsterdam-228125040
AM105661-2008005-Haringvlietstraat-12,-Amsterdam-228125188
AM105661-2008005-Haringvlietstraat-12,-Amsterdam-228125244
AM105661-2008005-Haringvlietstraat-12,-Amsterdam-228125156
Wonen en koken

De woning opent met een lichte hal die uitzicht biedt op de tuin. Hoge glasstroken naast de voordeur zorgen voor een aangename binnenkomst, waarbij daglicht de ruimte verzacht. De hal vormt een natuurlijke spil in de plattegrond, met directe toegang tot de woonkamer, eetkamer, keuken en het gastentoilet. De woonkamer kijkt via grote glaspartijen uit op de diepe tuin en het water daarachter. De ruimte is helder en overzichtelijk, met een lichte houten vloer en een rustige indeling. Openslaande deuren verbinden het interieur direct met het groen. Aan de voorzijde valt het licht mooi gefilterd binnen, waardoor de kamer aan beide zijden open voelt. De Italiaanse keuken ligt enigszins apart, maar blijft visueel verbonden met de rest van de begane grond. De opstelling is functioneel, met diepe kastfronten in warmrood hoogglans en een wit werkblad. Een breed raam zorgt voor daglicht bij de spoelzone. De ruimte is overzichtelijk en praktisch ingericht. De eetkamer kijkt prachtig uit op de tuin en vormt een heerlijke plek in huis. Door de indeling ontstaat een natuurlijke overgang tussen wonen, koken en buiten zijn. De inpandige garage biedt veel ruimte voor fietsen en opslag, en is voorzien van een wasmachineaansluiting.

AM105661-2008005-Haringvlietstraat-12,-Amsterdam-228125116
AM105661-2008005-Haringvlietstraat-12,-Amsterdam-228125136
AM105661-2008005-Haringvlietstraat-12,-Amsterdam-228125382
AM105661-2008005-Haringvlietstraat-12,-Amsterdam-228125370
AM105661-2008005-Haringvlietstraat-12,-Amsterdam-228125308
AM105661-2008005-Haringvlietstraat-12,-Amsterdam-228125324
Slapen en baden

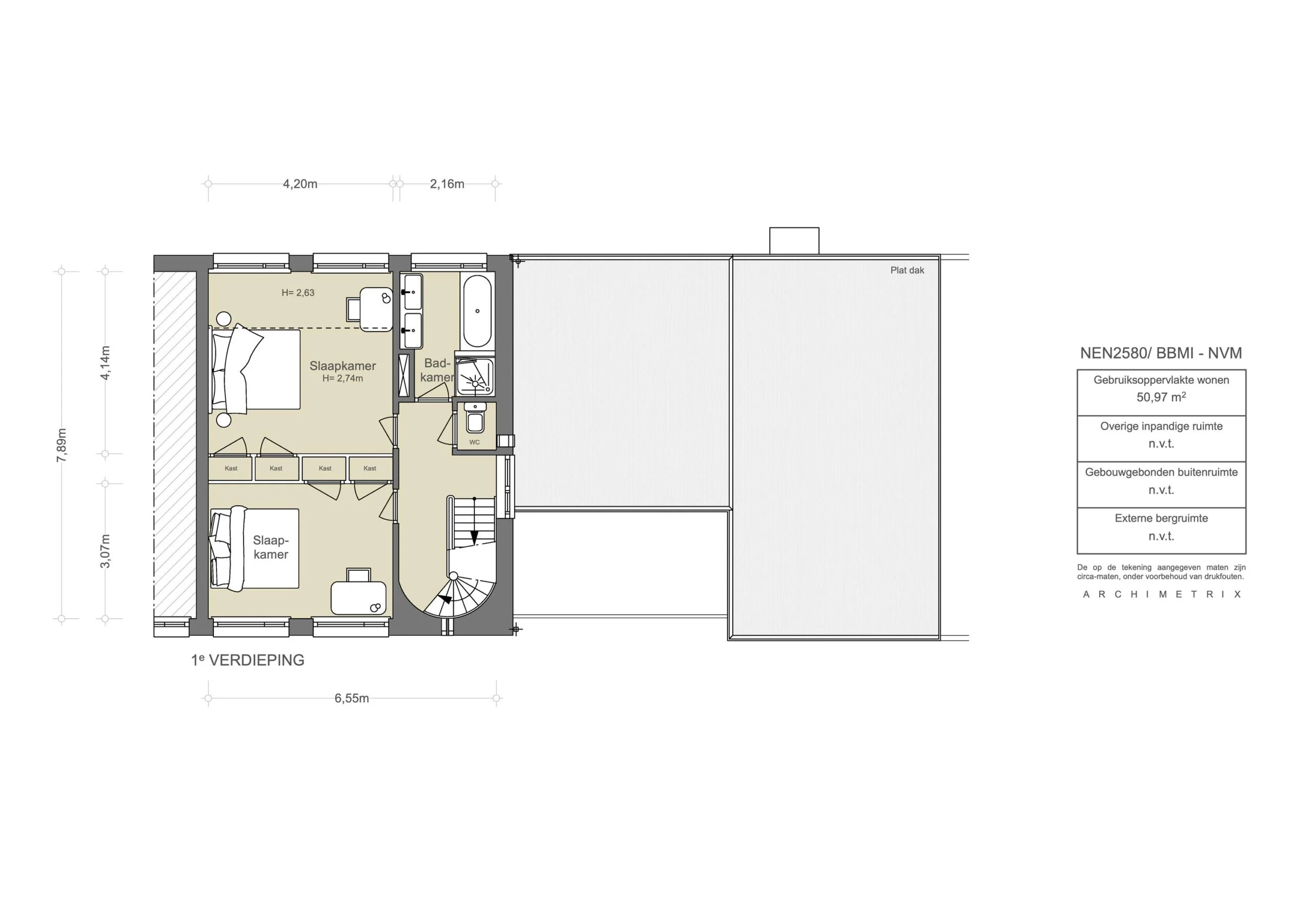
Op de eerste verdieping bevinden zich twee slaapkamers, beide met een rustige ligging en uitzicht op groen. De kamer aan de tuinzijde is royaal van formaat en kijkt uit over het water. De indeling is eenvoudig en praktisch, met voldoende ruimte voor een groot bed en een kastenwand. De tweede kamer ligt aan de voorzijde en wordt momenteel gebruikt als werkkamer, met veel natuurlijk licht via de grote ramen. Iedere slaapkamer heeft twee ruime ingebouwde kasten. De badkamer is helder afgewerkt, met witte wand- en vloertegels, een ligbad, aparte douchecabine en een dubbel wastafelmeubel. Dankzij het raam is er volop daglicht en natuurlijke ventilatie. Het toilet ligt apart, naast de badkamer en is direct bereikbaar vanaf de overloop. Op de tweede verdieping zijn nog twee slaapkamers onder de platte kap. De kamer aan de tuinzijde biedt toegang tot een balkon en is geschikt als logeer-, werk- of atelierruimte. De andere kamer kijkt uit op de bomen van de voortuin. Samen vormen ze een rustige verdieping met veel mogelijkheden.

AM105661-2008005-Haringvlietstraat-12,-Amsterdam-228125390
AM105661-2008005-Haringvlietstraat-12,-Amsterdam-228125396
AM105661-2008005-Haringvlietstraat-12,-Amsterdam-228125344
AM105661-2008005-Haringvlietstraat-12,-Amsterdam-228125408
AM105661-2008005-Haringvlietstraat-12,-Amsterdam-228125404
AM105661-2008005-Haringvlietstraat-12,-Amsterdam-228125216
De tuin en het balkon

De met bomen omzoomde voortuin vormt een groene overgang tussen de woning en de straat. Dankzij het diepe profiel en de volwassen beplanting is er volop privacy, zowel bij de entree als voor de ramen van de begane grond. De oprit biedt ruimte voor twee auto’s, met directe toegang tot de inpandige garage. Het ontwerp van de tuin, in oorsprong van Mien Ruys, benadrukt de eenvoud en symmetrie van het huis. Aan de achterzijde ligt een diepe tuin op het westen, met volop zon vanaf de vroege middag tot zonsondergang. De tuin grenst direct aan het water, met uitzicht over de tegenoverliggende woningen en boomrijke oevers. De tuin is volledig omsloten en biedt rust, ruimte en een vrije verbinding met het groen. Vanuit de eetkamer en woonkamer geven meerdere deuren toegang tot de tuin. Op de tweede verdieping ligt een beschut balkon, bereikbaar vanuit een van de slaapkamers. Vanaf hier kijk je uit over het water en de groene tuinen van de buurt en het water. Het is een rustige plek met middagzon en een breed perspectief over de wijk. In combinatie met de tuin aan het water en de groene voortuin ontstaat een woning die op elk niveau verbonden is met buiten.

AM105661-2008005-Haringvlietstraat-12,-Amsterdam-228125204
AM106075-1965845-Mozartkade-1,-Amsterdam-223343883
AM105661-2008005-Haringvlietstraat-12,-Amsterdam-228125210
AM105661-2008005-Haringvlietstraat-12,-Amsterdam-228125092
Buurtgids

De Haringvlietstraat is een rustige en veilige straat gelegen in de geliefde Apollobuurt nabij het Beatrixpark en de Apollolaan. De buurt wordt gekenmerkt door zijn groene karakter en brede straten. Op de Scheldestraat en Maasstraat is een groot en divers aanbod aan winkels, zoals een viswinkel, koffietentjes en een bakkerij. Voor meer ontspanning is het Beatrixpark een uitstekende plek. Ook de Beethovenstraat bevindt zich op loopafstand. Mocht je willen genieten van een heerlijke lunch zijn onder andere Feduzzi en Vinnies een zeer leuk gelegenheden in de buurt. Diverse sportscholen zijn in de nabije omgeving gelegen en ook het De Mirandabad is op enkele fietsminuten te bereiken.

Bereikbaarheid
De woning is zowel met de fiets, auto als openbaar vervoer uitstekend bereikbaar. De Ring A10 is binnen vijf autominuten te bereiken via afslag S109. Vanaf Station RAI vertrekken diverse tram-, metro- en buslijnen, zoals tram 4 naar Centraal Station en bussen richting het Amstelstation en Station Zuid. Ook regionaal vervoer, waaronder een directe verbinding naar Luchthaven Schiphol, vertrekt vanaf deze halte. Daarnaast is Station RAI een opstappunt voor de Noord-Zuidlijn. Station RAI bevindt zich op vijf minuten loopafstand.

Parkeergelegenheid
Naast de eigen oprit met plek voor twee auto’s is parkeren mogelijk via een vergunningensysteem op de openbare weg (vergunningsgebied Zuid 4.1 Rivierenbuurt Noord). Met een parkeervergunning voor Zuid 4.1 Rivierenbuurt Noord mag geparkeerd worden in Zuid-3 en Zuid-4. Een parkeervergunning voor bewoners kost € 192,81 per zes maanden. Momenteel is er voor dit gebied een wachttijd van 2 maanden. Een tweede parkeervergunning is niet mogelijk (Bron: Gemeente Amsterdam, mei 2025).

AM105661-2008005-Haringvlietstraat-12,-Amsterdam-228125084
Haringvlietstraat 12-58
AM105661-2008005-Haringvlietstraat-12,-Amsterdam-228125420
Kenmerken
Haringvlietstraat 12, Amsterdam
Vraagprijs
  • € 0 .
Beschikbaarheid
  • In overleg
Vertrekken
  • 6 kamers
  • 4 slaapkamers
  • 1 badkamer
Onderhoud
  • Intern: Redelijk tot goed
  • Extern: Redelijk tot goed
Oppervlakten & Inhoud
  • Woonoppervlakte: 207 m²
  • Gebouwgebonden buitenruimte: 9 m²
  • Tuinoppervlakte: 170 m²
Bouwjaar
  • 1955
Installaties
  • Glasvezel kabel
  • Natuurlijke ventilatie
  • TV kabel
  • Zonnepanelen
Ligging
  • Aan rustige weg
  • In woonwijk
Parkeren
  • Op eigen terrein
  • Parkeergarage
  • Parkeervergunningen
  • Aangebouwd steen
Type verwarming
  • CV Ketel
Type warmwater
  • CV Ketel
  • Zonnecollectoren
Bestemming
  • Woonruimte
Eigendomssoort
  • Eigendom belast met erfpacht
Buitenruimte
  • Achtertuin
  • Voortuin
  • Balkon
Kadastraal
  • Gemeente: Amsterdam
  • Sectie: V
  • Nummer: 10388
Duurzaamheid
  • Dakisolatie
  • Hr glas
  • Vloerisolatie
  • Energielabel D
Soort
  • Eengezinswoning
  • Twee-onder-een-kapwoning
  • Woonhuis
Bijzonderheden
  • Beschermd stads of dorpsgezicht
  • Monument
Overige kenmerken

OZB ('25) € 1.249,78 per jaar
Rioolrecht ('25) € 185,20 per jaar
 

Plattegrond
Haringvlietstraat 12, Amsterdam
AM105661-2008005-Haringvlietstraat-12,-Amsterdam-230840076
AM105661-2008005-Haringvlietstraat-12,-Amsterdam-230840084
AM105661-2008005-Haringvlietstraat-12,-Amsterdam-230840092
AM105661-2008005-Haringvlietstraat-12,-Amsterdam-230840098
AM105661-2008005-Haringvlietstraat-12,-Amsterdam-231627312
Documenten
Haringvlietstraat 12, Amsterdam
Locatie
Haringvlietstraat 12, Amsterdam
Eten & drinken
Hakata-Senpachi-dsc_0680-4000PX-1024×683
01
Adres
Wielingenstraat 16,
1078 KK Amsterdam

Hakata Senpachi

Prachtig Japans eten en de lekkerste saké's; dat is Hakata Senpachi. Dit restaurant aan de Wielingenstraat bestaat al langer dan 20 jaar en heeft in al die jaren altijd haar autentieke japanse sfeer behouden. De manier waarop restaurant is ontworpen doet het lijken op een echt Japans restaurant in de steegjes van Tokyo. Hakanta Senpachi is als Yakitori-ya - gespecialiseerd in het maken van gegrilde kipspiesjes, die in Japans Yakitori worden genoemd. De spiesen worden gegrild via traditionele kookwijzen op de houtskool grill. Deze grill staat overigens in het midden van het restaurant waardoor de ruimte altijd volhangt met de lekkerste aroma's.

02
Adres
Scheldestraat 68,
1078 GM Amsterdam

Venetië IJS

Bij Venetië hebben ze ambachtelijk Italiaans ijs. Het zijn veelal Italiaanse mensen die de bolletjes scheppen en dat merk je dan ook aan hun charmante accent en hun vriendelijke glimlach. Het ijs is huisgemaakt en ze hebben veel verschillende smaken en heerlijke slagroom. Het interieur is authentiek Italiaans met genoeg zitplekken binnen. In de zomer staan er buiten tafels en stoelen op het terras om even rustig je ijsje op te eten.

Schermafbeelding 2022-05-18 om 15.54.00
03
Adres
Scheldeplein 4,
1078 GR Amsterdam

Visaandeschelde

Al meer dan 20 jaar een begrip in Amsterdam Zuid. Zoals ze zelf zeggen is hun culinaire passie het omtoveren van dagverse vis en seizoensproducten tot spannende en heerlijke gerechten. En daarmee is eigenlijk bijna alles al gezegd. Visaandeschelde ziet er chique uit, maar binnen is er geen te kort aan een goede portie Amsterdamse gezelligheid. Ook kan je in de zomer heerlijk op het terras zitten dat uitkijkt op het Scheldeplein.

175682_10152206008775179_210428518_o
04
Adres
Scheldeplein 22,
1072 GJ Amsterdam

Pisa IJs

Bij deze bescheiden ijswinkel bij Amsterdam RAI ben je aan het goede adres voor heerlijk Italiaans ijs. Sinds 1935 kun je hier terecht voor ambachtelijk ijs in meer dan 60 verschillende (wisselende) smaken per seizoen. Samen met ijswinkel Venetië ietsje verderop zijn deze twee ijswinkels dé plekken om goed schepijs in Amsterdam-Zuid te halen, vandaar ook de lange rijen in de zomer, maar het wachten waard en het gaat snel!

Schermafbeelding 2022-07-01 om 15.54.18
05
Adres
Scheldestraat 45BG,
1078 GG Amsterdam

Vinnies

Bij Vinnies draait het om goed en eerlijk eten. Dit restaurant serveert ook all-day ontbijt en lunch. Je kunt bijvoorbeeld kiezen uit lekkere broodjes, gerechten met ei en zelfs Marokkaanse couscous of linzensoep. Als je liever komt voor een drankje ben je bij Vinnies ook op het juiste adres; ze zetten heerlijke koffie en maken ook de mooiste sappen en cocktails voor je klaar. Laat je liever de lunch bezorgen? Geen probleem: Vinnies verzorgt ook catering en heeft een eigen take-away lunchmenu.

333838177_1395182361027309_276174909384860799_n
06
Adres
Ruysdaelkade 251,
1072 AX Amsterdam

KID

Levy Byron, Joshua Styns en Steven Mamahit begonnen tijdens de pandemie. Het concept begon als pop-up en heeft nu een vaste locatie op de Ruysdaelkade.  Het menu is inmiddels fors uitgebreid. Yakitori van kip met kaffir lime en chillies. Chickenwings gevuld met een tartaar van garnaal en een saus van shi-take. Geroosterde kool met gefrituurde ui en een hollandaise saus. En natuurlijk de inmiddels beroemde kip-sandwiches in allerlei varianten zoals bijvoorbeeld de Sichuan spiced firied chicken met pickles en knoflookmayonaise geserveerd op een sake kasu bricohe broodje. KID schenkt er cocktails, bier en een kleine selectie wijn bij.

8-Neapolitan-Pizza-Bar
07
Adres
Maasstraat 18,
1078 HK Amsterdam

Pizza Project

Het begon met een pizzaoven in hun achtertuin. Elke vrijdag stond er een rij voor hun woning met vrienden en familie die een pizza kwamen halen. Inmiddels hebben Idske en Bas twee vestigingen en een foodtruck. Het geheim? Het deeg 48 uur laten rijzen waardoor de bodem luchtig wordt en de pizza minder zwaar op de maag ligt. In het weekend worden er ook broodjes voor de lunch geserveerd.

08
Adres
Ferdinand Bolstraat 333,
1072 LH Amsterdam

Serre

Onder leiding van Chef de Cuisine Bram Postel biedt Serre een à-la-cartemenu en het Bibendum-menu, een drie- of viergangenervaring met uitstekende prijs-kwaliteitverhouding, bekroond met een Bib Gourmand door Michelin. Het menu weerspiegelt de internationale flair van Hotel Okura, met fusiongerechten en subtiele Oosterse invloeden.

170048820_833091807392145_1141200956224978229_n
09
Adres
Maasstraat 72,
1078 HL Amsterdam

Hummus bistro d&a

Hummus Bistro D&A is opgezet door twee Israëlische vrouwen. Je kan er de hele dag door genieten van heerlijke gerechten. Begin je dag met shakshuka voor ontbijt, smul van traditionele hummus met verschillende toppings tijdens de lunch en proef vlees- of vegetarische gerechten bij het diner. Alles is mogelijk en kan de hele dag worden besteld. De traditionele hummus wordt geserveerd met pitabrood, salade en zuur, maar je kunt ook kiezen voor toppings zoals geroosterde groenten of langzaam gegaard vlees en verse kruiden.

downloadgram.org_559642553_122125719002959277_149688819253188505_n
10
Adres
Europaplein 67,
1078 GW Amsterdam

Toet Amsterdam

Toet is het mediterraan georiënteerde restaurant van het team achter Troef, dat met deze tweede zaak een eigen draai geeft aan mediterrane en Italiaanse smaken in Zuid-Amsterdam. De eigenaren — waaronder Niels Leijssenaar, Roderick Kunst, Willem Alberts en Raymond Plat — brengen dezelfde kwaliteit en gastvrijheid als hun Troef-concept, maar dan met frisse, mediterraanse invloeden op de kaart. Je vindt hier gerechten zoals kreeft met gnocchi of pizzeta met ’nduja en rivierkreeft, die de rijke smaken van de Middellandse Zee reflecteren.

Fried-rice-with-prawn-Teppanyaki-Restaurant-Sazanka
11
Adres
Ferdinand Bolstraat 333,
1072 LH Amsterdam

Teppanyaki Restaurant Sazanka

Sazanka is een teppanyaki restaurant in hotel Okura aan de Ferdinand bolstraat. Deze vorm van voedselbereiding uit de Japanse keuken draait om de teppan, een hete ijzeren plaat om op te bakken. In Sazanka is het dan ook mogelijk om met zijn allen aan te schuiven en de teppan-chef te aanschouwen terwijl deze de meest wonderlijke gerechten op de borden tovert. De gerechten bestaan uit zowel vis en vlees, maar er worden ook genoeg vegetarische gerechten aangeboden. Een bezoek aan Sazanka is gegarandeerd een uniek kijkje in de wereld van de Japanse chefs en de kooktechnieken die zij gebruiken om elk gerecht met Japanse precisie klaar te maken. Het klinkt bijna te mooi om waar te zijn, maar Sazanka maakt het simpele grillen op een plaat tot een verfijnd stukje ambachtswerk.

10388075_451384665012811_909562328407685569_n
10985537_451384838346127_3104155378018227811_n
12
Adres
Dusartstraat 53 h,
1072 HP Amsterdam

En Japanese kitchen & Sake bar

En Japanese kitchen & Sake bar opent in 2015 zijn deuren. Chef Ken Osawa en Ryuji Ikemizu (restaurant manager), die voorheen bij Yamazato werkten, brengen de originele Japanse keuken in zicht.  Iedere maand maakt chef Ken Osawa (geboren & opgegroeid in Hokkaido) een nieuw menu in 3, 6 of 8 gangen met oog voor de seizoenen. Manager Ikemizu paart deze aan de mooiste sakes. De sashimi en sushi zijn allebei van top kwaliteit en het wordt altijd mooi geserveerd.

 

restaurant-with-waitress-in-kimono-yamazato-restaurant-1
13
Adres
Ferdinand Bolstraat 333,
1072 LH Amsterdam

Yamazato (*)

Als de naam Yamazato je niets zegt, is het wellicht makkelijker om te denken aan het Okura hotel. In dit torenachtige hotel aan de Ferdinand Bolstraat zit restaurant Yamazato wat zoals de Michelin gids uitlegt het eerste traditionele kaiseki restaurant is dat in 2002 werd bekroond met een Michelin ster. De keuken is uitgebreid en toegankelijk voor zowel degene die al volop bekend zijn met authentiek Japans, als zij die net om de hoek komen kijken. Het personeel is vriendelijk en hoffelijk en brengt het op kunstwerk gelijkende eten met een elegante flair naar de tafels. De traditionele kaiseki keuken toont zich hier simpelweg van haar mooiste en puurste kant. Yamazato biedt daarmee een ingetogen moment waarin een topproduct als zeebaars en intense bereidingen rond miso en yuzu de hoofdrol spelen. De aangepaste saké’s dienen als kers op de taart!

47575457_760618610980339_644622428751790080_n
14
Adres
Maasstraat 12,
1078 HJ Amsterdam

Mangi Amore

Bij Mangi Amore kun je terecht voor heerlijke authentieke pizza's zoals die in de Italiaanse pizza-stad Napoli worden gegeten. Chefkok Cico is een Napolitaan in hart en nieren en weet als geen ander hoe hij de perfecte krokante pizza's kan maken. In 2014 won Cico zelfs de prijs voor het bakken van de beste pizza van Nederland! De ingrediënten die worden gebruikt -in Mangi Amore zoals de tomaten uit Campania en de fameuze buffelmozzerella - worden rechtstreeks uit Italië geïmporteerd. Breng een bezoekje aan deze pizzeria om écht Italië te proever, of zoals de naam van het restaurant zelf als zegt "eet mijn lief!"

Chefs-table-Ciel-Bleu-Restaurant-Hotel-Okura-Amsterdam-1024×683
15
Adres
Ferdinand Bolstraat 333,
1072 LH Amsterdam

Ciel Bleu (**)

Het gastronomische restaurant Ciel Bleu zit in het welbekende Okura Hotel. Het hotel dat boven Amsterdam Zuid uittorent. Verwacht bij Ciel Bleu diner van hoog niveau. Niet alleen bevindt het restaurant zich op de 23e verdieping, de internationale keuken heeft inmiddels twee michelinsterren op zijn naam staan. Waan je in de seizoensgebonden gerechten bereid door chefs Onno Kokmeijer en Arjan Speelman en geef je over aan een puur zintuiglijke ervaring.

Sjefietshe-Amsterdam-Restaurant-01
Sjefietshe-Amsterdam-Restaurant-06-750×1000
16
Adres
Van Ostadestraat 1,
1072 SL Amsterdam

Sjefietshé

Sjefietshe is een cevicheria in het midden van de Pijp, met een mooi terras met genoeg plek. Voor eenieder die niet bekend is met het heerlijke Zuid-Amerikaanse gerecht: het klassieke Peruviaanse voorgerecht bestaat uit rauwe (wit) vis die ‘gegaard’ is in limoensap. Het gerecht wordt geserveerd met chili, koriander, rode ui en een oceaan aan limoen. Een overdonderende smaaksensatie en daarom ook moeilijk om goed te evenaren. Sjefietshe doet een goede poging en maakt met een Amsterdamse flair een goede eigen variant. Naast de ceviches met verschillende soorten vis is er ook de optie om van lekkere bites te genieten, waaronder de Sjefietshe special: de door hun uitgevonden ‘hotdoctopus’. Genoeg redenen om hier dus langs te gaan en voor jezelf te besluiten of de zaak erin slaagt je mee te nemen naar hogere Zuid-Amerikaanse sferen!

316696614_701301834540671_3708281314260770335_n
144520165_409011853732573_3822562762173474371_n
17
Adres
Europaplein 87,
1078 GZ Amsterdam

Scandinavian Embassy

Hier wordt ervaring en interesse in Scandinavisch eten en duurzaamheid geboden. Bij de Embassy traceren ze kleine, niche-leveranciers en gaan mee met de seizoenswisselingen van producten. De keuken biedt menu's voor een betaalbare prijs waarbij de gezonde en milieuvriendelijke wortels van de Scandinavische keuken behouden blijven. Bijzonder is dat ze ook koffie met eten combineren , waardoor, volgens hun zeggen, de algehele culinaire ervaring verbeterd wordt. Dit is hun tweede locatie. De ander locatie is in de Pijp gevestigd.

Boodschappen
180912402_1910769552415460_9061827722288066926_n
18
Adres
Scheldeplein 20,
1078 GR Amsterdam

Sab’s Deli

Bij Sab’s Deli ligt de focus op echt lekker, maar net wat specialer dan normaal, en uiteraard waar mogelijk duurzame en lokale producten. Al deze dingen samen vormen het merk ‘Sab’s. Ze verzorgen ook complete caterings van thuisdiners tot heerlijke borrelhapjes. Gelegen vlak naast de drukke RAI in Amsterdam Zuid, kan je ook altijd als je net de trein uitstapt even binnenlopen en kijken wat de pot schaft. Het zal niet tegenvallen!

Schermafbeelding 2022-07-01 om 14.11.20
19
Adres
Scheldestraat 63,
1078 GH Amsterdam

Feduzzi

Feduzzi is opgezet in 1981 door de Italiaanse familie Feduzzi en was daarmee de allereerste Italiaanse delicatessenwinkel in Nederland. In 2001 werd het bedrijf overgenomen door Pjotr Meuwissen, die het liet uitgroeien tot een van de beste Italiaanse traitteurs in de stad. Je kunt bij Feduzzi terecht voor traditionele Italiaanse producten, zoals pasta's en wijnen en olijfolies, maar je kunt hier ook allerlei lekkere panini's halen; belegd met mozzarella, tonijnsalade of een van de andere heerlijke affetati, zoals beenham of coppa di parma.

IMG_1772_345x345@2x
20
Adres
Maasstraat 16,
1078 HJ Amsterdam

Grammes

Na maar liefst 10 jaar training in de beste patisserieën in Parijs en New York, brengt Chef Maxime Papin zijn kennis en technieken naar Amsterdam. Papin kreeg al vroeg de kneepjes van het vak met de paplepel kreeg ingegoten van zijn moeder toen hij opgroeide in Frankrijk, en zette dit voort in de culinaire wereld van New York. Zijn creaties zijn dan ook allesbehalve doorsnee; het befaamde cappuccino taartje maar ook chocolade croissants, koekjes en zelfgemaakte granola.

Schermafbeelding 2022-07-01 om 14.03.31
21
Adres
Maasstraat 88,
1078 HM Amsterdam

Sophie Eats

Sophie Eats is een cateringbedrijf en deli-shop gevestigd in Amsterdam. Met kwalitatieve seizoen producten wordt er een balans naar smaken en textuur gezocht die het eten uniek en lekker maken. Het kleurrijke menu is geschikt voor iedere gelegenheid; van een zakenlunch of een mode-evenement tot een sfeervolle borrel. In het winkeltje kan je terecht voor koffie, een vers sapje of iets lekkers te eten voor onderweg.

personeel
22
Adres
Maasstraat 19,
1078 HB Amsterdam

Poelier Jonker

Poelier Jonker in de Maasstaat bestaat al meer dan 45 jaar. Anno 1974 is het bedrijf opgezet door de familie Jonker en is vandaag de dag nog steeds in het bezit van de familie. Bij Poelier Jonker is de missie "het behouden van het poeliers-ambacht" en dat is te zien! Het assortiment is zeer uitgebreid; van gegrilde producten tot heerlijke salades. Daarnaast verkopen ze hier ook maaltijden en ragouts. Alle producten van poelier Jonker zijn dagvers en van de beste kwaliteit.

23
Adres
Maasstraat 65,
1078 HE Amsterdam

Slagerij Woorts

Slagerij Woorts opende al in 1964 de deuren van de winkel op de Maasstraat. Met het motto ‘niet teveel kruiden, niet teveel specerijen, gewoon dat wat hoort, en dat moet het product an sich het zelf doen’, is dit een typisch Amsterdamse slagerij waar de producten weinig poespas nodig hebben. De klanten komen van heinde en verre hier naartoe voor de ossenworst en filet americain. Er wordt hier met aandacht gewerkt zodat het dier krijgt wat het verdient.

Kunst & cultuur
202309galerie+fleur+&+wouter_MG_0118
WIDE59
24
Adres
Van Ostadestraat 43,
1072 SN Amsterdam

Galerie Fleur & Wouter

Galerie Fleur & Wouter werd in 2019 opgericht door Fleur Feringa en Wouter van Herwaarden. De galerie heeft als missie jongeren te betrekken bij kunst, hen vertrouwd te maken met galerieën en aan te moedigen om kunst te verzamelen. Deze toegankelijke en inclusieve filosofie weerspiegelt zich in alle activiteiten. Ze streven naar begrijpelijke communicatie en heldere verhalen.

 

35bbaf_61b11900b0874d829350247b7015092d~mv2
25
Adres
Van Ostadestraat 43A,
1072 SN Amsterdam

GoMulan Gallery

In 2018 opende GoMulan Gallery haar deuren als een pop-up galerie, opgericht door Mulan Go (1998). Slechts drie maanden later vestigde de galerie zich permanent als een artistieke ruimte. Het voornaamste doel van deze galerie is het bieden van een platform aan opkomende kunstenaars. De galerie toont zowel opkomende talenten als gevestigde kunstenaars en creëert zo een sterke inhoudelijke brug tussen verschillende generaties.

Uitgelicht; ‘Woodworck’. In de winter bij de open haard en in de zomer op het dakterras.

Uitgelicht; ‘Woodworck’. In de winter bij de open haard en in de zomer op het dakterras.

Buurtgids: de Jordaan rondom de Bloemstraat

Buurtgids: de Jordaan rondom de Bloemstraat

Familiehuizen

Familiehuizen

Onlangs bekeken
Bekijk het overzicht

Deze site maakt gebruik van cookies.

Voor welke cookies geef je akkoord?