De woning ligt op de derde verdieping van een gerenoveerd pand in de Govert Flinckstraat. Aan de achterzijde bevinden zich de woonkamer en open keuken, met grote raampartijen, openslaande deuren naar het terras en twee daklichten boven het werkblad. Aan de voorzijde liggen twee slaapkamers, waarvan één geschikt als hoofdslaapkamer en de andere als werk- of logeerkamer. De badkamer ligt centraal in de woning en is voorzien van ligbad, inloopdouche, dubbele wastafel, toilet. Daarnaast zijn er een apart toilet en een berging met wasruimte. Boven deze drie ruimten is extra opbergruimte gecreëerd, wat ruimte biedt voor spullen die niet dagelijks in gebruik zijn. Het terras van ruim tien vierkante meter is zuidelijk georiënteerd en biedt ruimte voor een tafel met stoelen of loungeset. De indeling is efficiënt, het onderhoud goed en de ligging centraal, met voorzieningen op loopafstand.

Rondleiding
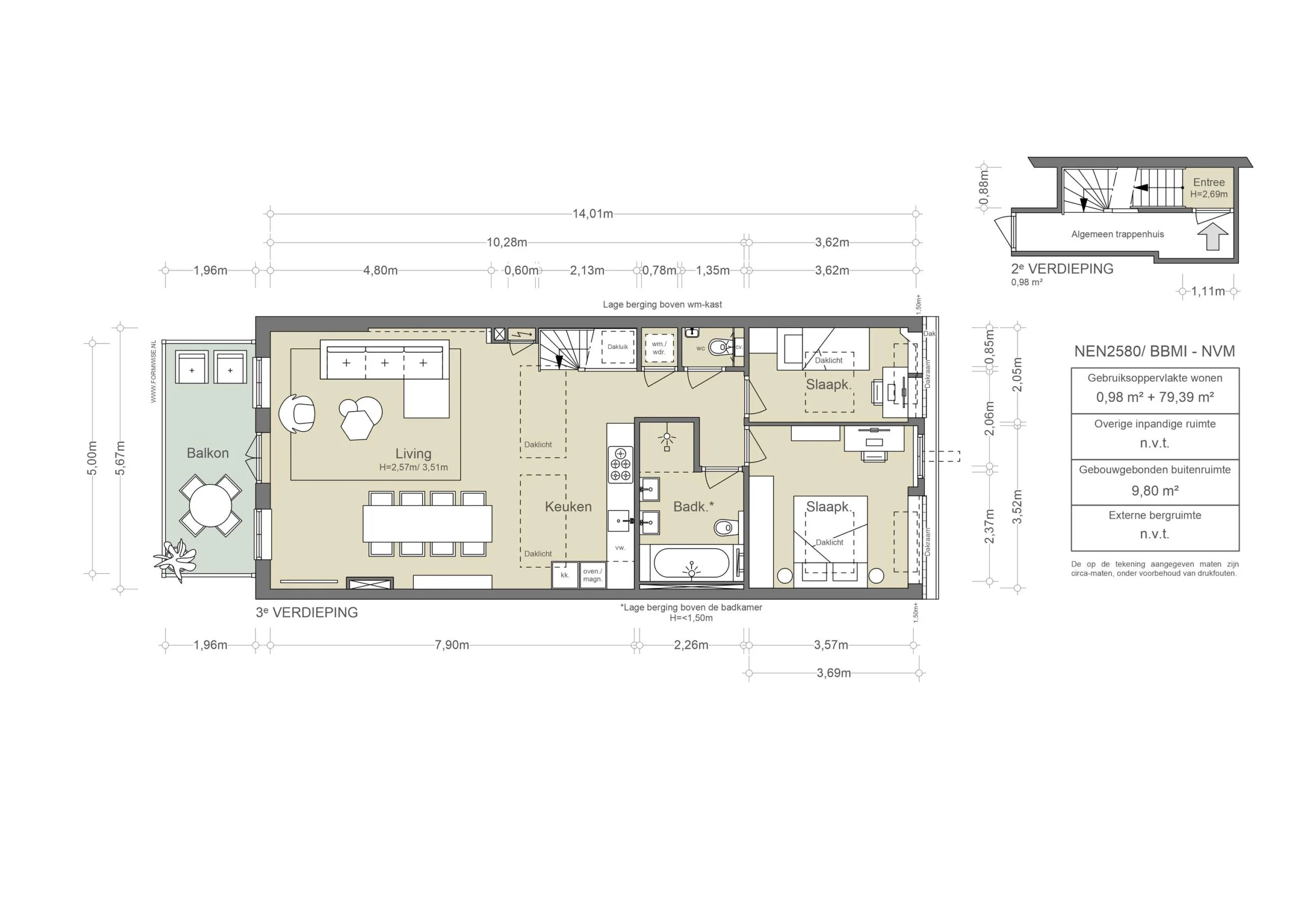
De woning is gelegen op de derde verdieping van een gerenoveerd pand aan de Govert Flinckstraat, gelegen op eigen grond. De toegang verloopt via het gemeenschappelijke trappenhuis met de voordeur op de tweede verdieping met interne trap naar de derde verdieping. Aan de achterzijde bevindt zich de woonkamer. De ruimte is breed en heeft grote ramen en dubbele deuren naar het terras. De woonkamer grenst direct aan de open keuken. Twee grote daklichten boven de keuken zorgen voor extra daglicht in het midden van de woning. Aan de voorzijde liggen twee slaapkamers. De grootste kamer biedt plaats aan een tweepersoonsbed en een kledingkast. De tweede kamer is geschikt als werkruimte of logeerkamer. Beide vertrekken ontvangen licht via de voorgevel en dakramen. Terug in de hal ligt de badkamer. Deze is voorzien van een ligbad, een inloopdouche, toilet en een dubbele wastafel. Daarnaast is er een apart toilet en een inpandige berging met ruimte voor wasmachine en droger. Boven deze drie ruimten is extra opbergruimte gecreëerd, wat ruimte biedt voor spullen die niet dagelijks in gebruik zijn. Uit het zicht, maar goed bereikbaar.
Het terras aan de achterzijde is zuidelijk georiënteerd. Het terras biedt voldoende ruimte voor een tafel met stoelen en/of loungeset. De woning is efficiënt ingedeeld en goed onderhouden. Alle functies zijn logisch georganiseerd en praktisch in gebruik. De locatie in De Pijp biedt directe toegang tot voorzieningen zoals openbaar vervoer, winkels, horeca en het Sarphatipark.

Buurtgids
Het appartement ligt in stadsdeel Zuid, in het meest gewilde en rustige gedeelte van De Pijp. De Pijp werd eind 19e eeuw aangelegd om huisvesting te bieden aan nieuwkomers die naar de hoofdstad trokken voor werk. De vader van Freddy Heineken opende hier in 1886 de Heinekenbrouwerij. De eerste arbeiderswoningen, rondom de Albert Cuypstraat, werden snel en voordelig gebouwd. Later werden daar, richting de Diamantbuurt, door Berlage huizen in de Amsterdamse School-stijl aan toegevoegd. Er wordt gezegd dat de buurt zijn naam te danken heeft aan de lange rechte straten, die de vorm van een pijp hebben.
De Pijp staat bekend om zijn levendigheid en gezellige horeca gelegen heden die allemaal op loopafstand zijn.
De Albert Cuypmarkt en het Sarphatipark zijn bepalend voor dynamiek van De Pijp. Kunstenaars en schrijvers zoals Piet Mondriaan, Carel Willink en Gerard Reve woonden en werkten hier. De levendige, gemixte populatie bracht vele cafés en eethuisjes naar de wijk. Tegenwoordig staat de wijk bekend als het Quartier Latin van Amsterdam, met nog steeds veel dynamiek diverse restaurants zoals Samuel's, Badcuyp, de Italiaan Impero Romano, het franse Arles of Caron. Daarnaast zijn er in de van Woustraat gezellige eettentjes uit allerlei windstreken.

Bijzonderheden
• Gebruiksoppervlakte wonen circa 80 m²
• Dakterras gelegen op het zuiden van circa 10 m²
• Gelegen op eigen grond
• Energielabel A
• Servicekosten VvE € 141,- per maand
• Fundering vernieuwd in 2011, inclusief renovatie van het gehele pand
• Gemeentelijk beschermd stadsgezicht

Deze informatie is door ons met de nodige zorgvuldigheid samengesteld. Onzerzijds wordt echter geen enkele aansprakelijkheid aanvaard voor enige onvolledigheid, onjuistheid of anderszins, dan wel de gevolgen daarvan. Alle opgegeven maten en oppervlakten zijn slechts indicatief
De Meetinstructie is gebaseerd op de NEN2580. De Meetinstructie is bedoeld om een meer eenduidige manier van meten toe te passen voor het geven van een indicatie van de gebruiksoppervlakte. De Meetinstructie sluit verschillen in meetuitkomsten niet volledig uit, door bijvoorbeeld interpretatieverschillen, afrondingen of beperkingen bij het uitvoeren van de meting.

AM105909-2045177-Govert-Flinckstraat-294-3,-Amsterdam-242502954

Bovenlicht in de Pijp
Govert Flinckstraat 294-3 is gelegen op de derde verdieping van een pand in het hart van De Pijp. De locatie biedt directe toegang tot voorzieningen zoals winkels, horeca, de Albert Cuypmarkt en het Sarphatipark. Ondanks de centrale ligging is de woning rustig gesitueerd, boven het stadsniveau. Het gebouw is in 2011 gerenoveerd en voorzien van een nieuwe fundering. De indeling van de woning is efficiënt en logisch, met aandacht voor ruimtelijkheid en daglicht. Dit appartement heeft een heldere plattegrond, goed georganiseerde ruimtes en een verzorgde afwerking. De woning sluit aan bij de behoefte aan stedelijk wonen met comfort en overzicht. Kortom; een fijne lichte woning met een doordachte indeling en royale living, passend bij een stedelijke levensstijl.


Babette Meijers | Makelaar Broersma Wonen
Jelle Mundt | Makelaar Broersma Wonen
AM105909-2045177-Govert-Flinckstraat-294-3,-Amsterdam-242502928
Designvisie

Deze bovenwoning aan de Govert Flinckstraat, gelegen op eigen grond, is in 2011 volledig gerenoveerd, inclusief fundering. De indeling is eenvoudig en overzichtelijk: wonen aan de achterzijde, slapen aan de voorzijde. De leefruimte strekt zich uit over de volle breedte van het pand en grenst direct aan het terras. Grote ramen en openslaande deuren zorgen voor veel daglicht en een directe verbinding met buiten. In het midden van de woning, boven de keuken, brengen meerdere daklichten extra licht tot diep in het interieur. De plafonds zijn hoog, wat bijdraagt aan een open gevoel. De materialisering is ingetogen, modern en met vloer is uitgevoerd in naturel hout. De keuken is strak vormgegeven, met greeploze fronten en een donker werkblad. Alles is afgewerkt in een rustige, neutrale toon. De slaapkamers zijn functioneel en licht, wat binnen komt via de voorgevel en dakramen. Het pand kende oorspronkelijk een gemengde functie. Op de begane grond was een drukkerij gevestigd, met erboven woningen. In 2011 is het gebouw volledig herontwikkeld tot kleinschalig woongebouw, met behoud van de historische gevel en structuur. De bovenwoning is opnieuw ingedeeld en aangepast aan hedendaagse woonwensen. De gevel behoort tot een aaneengesloten rij panden uit het begin van de twintigste eeuw. De Govert Flinckstraat is kenmerkend voor De Pijp: dynamisch en opgebouwd uit een mix van woningen en voormalige bedrijfsruimten. De oorspronkelijke functie van de straat, wonen, werken en produceren op één adres.

AM105909-2045177-Govert-Flinckstraat-294-3,-Amsterdam-242502926
AM105909-2045177-Govert-Flinckstraat-294-3,-Amsterdam-242502962
AM105909-2045177-Govert-Flinckstraat-294-3,-Amsterdam-242502968
AM105909-2045177-Govert-Flinckstraat-294-3,-Amsterdam-242502960
Wonen en koken

De woonkamer en keuken vormen samen één open ruimte aan de achterzijde van de woning. Deze ruimte is licht en ruim opgezet. Drie hoge ramen en dubbele deuren geven toegang tot het terras en laten het daglicht diep naar binnen vallen. De overgang tussen binnen en buiten is logisch, waardoor het terras aanvoelt als een verlengstuk van de woning. De woonkamer biedt plaats aan een ruime zithoek en een eettafel. Door de breedte van het pand is er voldoende ruimte tussen de functies. De vloer loopt drempelloos door, wat bijdraagt aan het gevoel van samenhang. Aan de zijde van de keuken bevindt zich de toegang tot de slaapkamers, badkamer en toilet. Het wonen gebeurt hier aan de achterzijde van het pand, met uitzicht op de binnentuinen. De keuken is geplaatst langs de binnenwand en uitgevoerd in lichte kleurstelling. De opstelling is ruim, met voldoende werkblad en geïntegreerde apparatuur. Boven de keuken brengen twee daklichten extra licht. De afwerking is rustig, strak en modern.

AM105909-2045177-Govert-Flinckstraat-294-3,-Amsterdam-242502948
AM105909-2045177-Govert-Flinckstraat-294-3,-Amsterdam-242502970
AM105909-2045177-Govert-Flinckstraat-294-3,-Amsterdam-242502964
AM105909-2045177-Govert-Flinckstraat-294-3,-Amsterdam-242502976
AM105909-2045177-Govert-Flinckstraat-294-3,-Amsterdam-242502980
AM105909-2045177-Govert-Flinckstraat-294-3,-Amsterdam-242502986
AM105909-2045177-Govert-Flinckstraat-294-3,-Amsterdam-242502990
Slapen en baden

Aan de voorzijde van de woning bevinden zich twee slaapkamers. In 2019 is één grote slaapkamer opgesplitst in twee ruimtes. De grootste slaapkamer biedt ruimte voor een tweepersoonsbed en een kastenwand. De tweede kamer is compacter en geschikt als logeer- of werkkamer, nu ingericht als kastenkamer met werkplek. Beide vertrekken ontvangen licht via de voorgevel en dakramen. Tussen het woongedeelte en de slaapkamers ligt de badkamer. Deze is uitgevoerd met een ligbad, een inloopdouche, een dubbele wastafel en een toilet. De indeling is praktisch en de afwerking neutraal. Naast de badkamer bevindt zich een aparte toiletruimte en een inpandige berging met aansluitingen voor wasmachine en droger. Boven de badkamer, het toilet en de wasruimte is een extra laag met opbergruimte over de volle breedte. Deze biedt ruimte voor spullen die niet dagelijks in gebruik zijn, maar wel binnen handbereik moeten blijven. Uit het zicht, maar goed bereikbaar.

Govert Flinckstraat 294-3-15
AM105909-2045177-Govert-Flinckstraat-294-3,-Amsterdam-242502952
AM105909-2045177-Govert-Flinckstraat-294-3,-Amsterdam-242502988
Het terras

Aan de achterzijde van de woning ligt een terras van ruim tien vierkante meter, direct grenzend aan de woonkamer. Door de openslaande deuren loopt de vloer van binnen naar buiten door in één lijn. De ligging op het westen zorgt voor zon vanaf het begin van de middag tot in de avond. Het terras is breed genoeg en biedt voldoende ruimte voor een tafel met stoelen en/of loungeset. De positie op de bovenste woonlaag zorgt voor beschutting, maar ook voor openheid. De omliggende bebouwing houdt geluid op afstand en maakt dat je hier rustig buiten zit, midden in de stad. Door de directe verbinding met de woonkamer wordt het terras in de zomer een vanzelfsprekend onderdeel van het dagelijks gebruik. Of het nu gaat om een kop koffie aan het eind van de ochtend, of een maaltijd in de avondzon. Het buitenleven is hier eenvoudig en toegankelijk.

AM105909-2045177-Govert-Flinckstraat-294-3,-Amsterdam-242502958
AM105909-2045177-Govert-Flinckstraat-294-3,-Amsterdam-242502930
AM105909-2045177-Govert-Flinckstraat-294-3,-Amsterdam-242502938
AM105909-2045177-Govert-Flinckstraat-294-3,-Amsterdam-242502934

Buurtgids
Het appartement ligt in stadsdeel Zuid, in het meest gewilde en rustige gedeelte van De Pijp. De Pijp werd eind 19e eeuw aangelegd om huisvesting te bieden aan nieuwkomers die naar de hoofdstad trokken voor werk. De vader van Freddy Heineken opende hier in 1886 de Heinekenbrouwerij. De eerste arbeiderswoningen, rondom de Albert Cuypstraat, werden snel en voordelig gebouwd. Later werden daar, richting de Diamantbuurt, door Berlage huizen in de Amsterdamse School-stijl aan toegevoegd. Er wordt gezegd dat de buurt zijn naam te danken heeft aan de lange rechte straten, die de vorm van een pijp hebben.  De Pijp staat bekend om zijn levendigheid en gezellige horeca gelegen heden die allemaal op loopafstand zijn. De Albert Cuypmarkt en het Sarphatipark zijn bepalend voor dynamiek van De Pijp. Kunstenaars en schrijvers zoals Piet Mondriaan, Carel Willink en Gerard Reve woonden en werkten hier. De levendige, gemixte populatie bracht vele cafés en eethuisjes naar de wijk. Tegenwoordig staat de wijk bekend als het Quartier Latin van Amsterdam, met nog steeds veel dynamiek diverse restaurants zoals Brut de Mer voor champagne en oesters, de Italiaan Impero Romano, het Franse Arles of Caron.  Daarnaast zijn er in de van Woustraat gezellige eettentjes uit allerlei windstreken voor een snelle hap.

Bereikbaarheid
Op drie minuten fietsen is de halte “ De Pijp” van de Noord/Zuidlijn en de trein (Amstelstation), tram 4 (van Woustraat) of tram 3 (Ceintuurbaan)en bus (lijn 246). Met de auto is er een goede aansluiting op het knooppunt Amstel richting de A2 en A10.  De woning is gelegen in de Oude Pijp, een centraal gelegen gedeelte van Amsterdam nabij het Sarpahtipark, Van Woustraat, Albert Cuyp markt en nabij o.a. de Utrechtsestraat.

Parkeren
Parkeren is mogelijk via een vergunningenstelsel op de openbare weg (vergunningsgebied Zuid 3.1). Met een parkeervergunning voor dit gebied mag je parkeren in zowel Zuid-3 als Zuid-4. Een parkeervergunning voor bewoners kost in 2025 € 192,45 per 6 maanden. Op dit moment geldt er een geschatte wachttijd van 5 maanden voor een parkeervergunning. Een tweede vergunning per adres is in dit gebied niet mogelijk.
(Bron: Gemeente Amsterdam, september 2025)

AM105909-2045177-Govert-Flinckstraat-294-3,-Amsterdam-242502944
AM105909-2045177-Govert-Flinckstraat-294-3,-Amsterdam-242502956
AM105909-2045177-Govert-Flinckstraat-294-3,-Amsterdam-242502948
AM105909-2045177-Govert-Flinckstraat-294-3,-Amsterdam-242502974
Kenmerken
Govert Flinckstraat 294-3, Amsterdam
Vraagprijs
  • € 740.000 k.k.
Beschikbaarheid
  • In overleg
Vertrekken
  • 3 kamers
  • 2 slaapkamers
  • 1 badkamer
Onderhoud
  • Intern: Goed
  • Extern: Goed
Oppervlakten & Inhoud
  • Woonoppervlakte: 80 m²
  • Gebouwgebonden buitenruimte: 10 m²
Bouwjaar
  • 1924
Installaties
  • Dakraam
  • Natuurlijke ventilatie
  • TV kabel
Ligging
  • Aan rustige weg
  • In woonwijk
Parkeren
  • Betaald parkeren
  • Parkeervergunningen
Type verwarming
  • CV Ketel
Type warmwater
  • CV Ketel
Bestemming
  • Woonruimte
Eigendomssoort
  • Volle eigendom
Buitenruimte
  • Geen tuin
  • Balkon
Kadastraal
  • Gemeente: Amsterdam
  • Sectie: R
  • Nummer: 7849
Duurzaamheid
  • Dakisolatie
  • Dubbel glas
  • Muurisolatie
  • Vloerisolatie
  • Energielabel A
Soort
  • Appartement
  • Bovenwoning
Welke woonlaag
  • 4e
Bijzonderheden
  • Beschermd stads of dorpsgezicht
Overige kenmerken
  • OZB ('25) € 388,90 per jaar
  • Rioolrecht ('25) € 185,20 per jaar
  • Servicekosten VvE € 141,- per maand

Plattegrond
Govert Flinckstraat 294-3, Amsterdam
AM105909-2045177-Govert-Flinckstraat-294-3,-Amsterdam-239866402
Documenten
Govert Flinckstraat 294-3, Amsterdam
Locatie
Govert Flinckstraat 294-3, Amsterdam
Eten & drinken
01
Adres
Govert Flinckstraat 251,
1073 BX Amsterdam

Arles

Numa Muller, de chef uit Arles, creëert elke maand een nieuw 3, 4 en 5 gangen menu. Zijn neo-bistro gerechten zijn eenvoudig doch verrassend door de bijzondere combinaties van de Franse keuken met invloeden van buitenaf. De geheel Franse wijnkaart is een interessante combinatie van traditionele producenten met zowel opkomende vins naturels.
In 2022 is het restaurant voor het vijfde jaar op rij door Michelin bekroond met een Bib-Gourmand.

Schermafbeelding 2022-10-10 om 13.50.49
02
Adres
Eerste Sweelinckstraat 19F,
1073 CL Amsterdam

Little Collins

In 2011 ­openden Stan Kerkhof en zijn ­Australische vrouw Georgina Patterson het brunchcafé Little Collins in De Pijp. Bij Australisch brunchen moet je denken aan gepocheerde eieren en avocado op toast. Bij de brunch mag ook best wat alcohol gedronken worden, daarom staat ook de bloody mary op de kaart.

03
Adres
Eerste Sweelinckstraat 23,
1073 CL Amsterdam

BRIO

Restaurant BRIO, gelegen in de levendige wijk De Pijp in Amsterdam, biedt een eigentijdse interpretatie van de Italiaanse keuken. Het restaurant, opgericht door de eigenaren van Little Collins, combineert klassieke Italiaanse smaken met moderne invloeden. Gasten kunnen genieten van een menu dat draait om verse pasta’s en seizoensgebonden gerechten, geserveerd in een sfeervolle en gastvrije setting.

a47a0d_544e9cc89cd4470eb63806a4654b427d_mv2
a47a0d_fb5e2a64d06040578cf8264ee6b4ddff_mv2
04
Adres
Govert Flinckstraat 308,
1073 CJ Amsterdam

Restaurant Mont Blanc

Chef Thibault en zijn vrouw Dieuwertje Gordijn runnen al jaren succesvol Bistrot des Alpes. In oktober 2021 hebben zij op de Govert Flinckstraat 308 een nieuw restautant geopend. Hier kan je op culinaire ontdekkingsreis rondom de Mont Blanc. Chef Thibault neemt je mee langs de bergmeren, door de bergen en tot slot naar de top van de Mont Blanc met zijn signature dessert. Een fine-dining ervaring in een warme sfeer.

377995667_326166063142346_5384662192818780844_n
05
Adres
Tweede Jan Steenstraat 3,
1073 VK Amsterdam

Restaurant Ja

Het charmante restaurant Ja, bevindt zich in het voormalige pand van Jan de Wit's Le Restaurant aan de hoek van het Sarphatipark.  Chef chef Julius Busscher, voorheen werkzaam bij Jacobsz en Staets, biedt verrassende gerechten. Zijn partner Amy Delorme verzorgt met toewijding de bediening en selectie van wijnen. Bij Ja wordt alles, van het brood tot de limoncello, ambachtelijk bereid. Het restaurant presenteert een vast 4-gangenmenu, dat desgewenst kan worden uitgebreid met oesters en kaas. De intieme ambiance en culinaire creativiteit maken ja tot een unieke culinaire bestemming in Amsterdam.

Schermafbeelding 2022-06-20 om 19.25.16
06
Adres
Albert Cuypstraat 250 HS,
1073 BP Amsterdam

Osakaball

The Osaka streetfood kraam staat op maandag op de Ten Katemarkt en van dinsdag tot en met zaterdag op de Albert Cuypmarkt. The kraam heel gedurende het jaar heel wat trouwe klanten opgebouwd met hun authentieke Japanse dishes. Van ramen tot, okonomiyaki, noodles en curry. Wandel over de markt met een lege maag en volg de geur van lekker eten.

DSC_3974-Edit-1363×2048
DSC_3970-Edit-1363×2048
07
Adres
Albert Cuypstraat 260,
1073 BR Amsterdam

Ranchi

Ranchi is een Japanse broodjeszaak gerund door Sebastiaan en Christiaan Roosink. Een broodje in Japanse stijl wordt ook wel Sando genoemd. Keuzes zijn bijvoorbeeld een chicken sando (met krokante kip) of de beroemde tamago sando met eiersalade. Daarnaast hebben ze een broodje met tsukune (een soort gehaktbrood) gemaakt van kippengehakt in yakitori-stijl. Lekker met sesam, bosui, gember, knoflook en tare-saus.

Schermafbeelding 2022-07-01 om 13.26.17
08
Adres
Albert Cuypstraat 228,
1073 BN Amsterdam

De Japanner

De Japanner is inmiddels een fenomeen geworden in zowel de Pijp als in Oud-West. De vestiging in de Pijp zit op de Albert Cuyp markt, wat het gemakkelijk maakt om binnen te stappen nadat je ergens een biertje hebt gedaan. Het concept is simpel en straight-forward: heerlijk Japans fingerfood wat gepaard gaat met ofwel een cocktail, Japans biertje, saké of een non-alcoholisch alternatief natuurlijk. Het komt dan ook niet als een verassing dat de reviews over de Japanner lovend zijn, waarbij vooral het vriendelijke personeel als de lekkere hapjes worden uitgelicht.

447164722_1356420922001941_4467312401791193537_n
09
Adres
Eerste Sweelinckstraat 10,
1073 CM Amsterdam

Badcuyp

Een geweldige locatie (een voormalig badhuis jarenlang geliefd als jazz­café De Badcuyp en voorheen Escobar) gecombineerd met een superjong team. Voormalig chef van Bar du Champagne, Joep Hermans , opende samen met Martin de Nes (ex Rijsel) en Tobias Kuyt (ex Troef) op de hoek van de Albert Cuyp een eigen restaurant waar op open vuur wordt gekookt. Tobias stelde een uitgebreide wijnkaart samen met een concentratie op Frankrijk en Italie.

10
Adres
Eerste Sweelinckstraat 1,
1073 CK Amsterdam

Warung Swietie

Warung Swietie Lelydorp is een Surinaams restaurant op een steenworp afstand van de Albert Cuyp Markt. Het staat bekend om saotosoep en roti, die beiden voor een hele betaalbare prijs over de toonbank vliegen. Het is één van de kleinste Warungs in Amsterdam en in de zomer heeft het eethuis zelfs een klein terras. Voor een snelle hap zoals een broodje Pom met zuur kun je hier prima terecht!

245985996_1241955602934354_1770623343967133327_n
11
Adres
Govert Flinckstraat 326HS,
1073 CJ Amsterdam

101 Gowrie

De jonge Australische chef Alex Haupt met Japanse en Duitse roots kookt naar eigen zeggen 'Gaijin cuisine'.  'Een viering van culturele diversiteit door middel van Japanse tradities, technieken en liefde voor het ingrediënt met een respectvolle minachting voor de regels van reguliere conventie.' Gowrie serveert een vast menu met verrassende gerechtjes. Denk aan gyoza gevuld met duif, japans brood (shokupan) met miso en nori en een congee van noord zee krab. Reserveren is noodzakelijk.

308963496_482352027283836_6226254290717796775_n
12
Adres
Van Woustraat 20,
1073 LL Amsterdam

Broodje Popov

Broodje Popov is al 50 jaar een broodjeszaak zoals deze bedoeld is. Gewoon een dik belegd broodje zoals je hem wil. Ze staan bekend om hun philly cheese steak en smashed hamburger met kaas, augurken, burgersaus en heerlijke gefrituurde uitjes. Iets minder trek? Ze serveren ook een goed broodje halfom.

 

377504997_18261988948162741_2108036798515136593_n
13
Adres
Van Woustraat 48,
1073 LM Amsterdam

Mister Nata

Bij Mister Nata ben je aan het juiste adres voor het lekkerste gebak van Amsterdam, waar je kunt genieten van heerlijke pastel de nata, perfect gecombineerd met prachtige Single Estate Coffee, bereid met een La Marzocco-espressomachine. Portugal staat bekend om zijn verrukkelijke zoetigheden. Snoep, gebak en desserts maken allemaal deel uit van de traditionele Portugese keuken. Te midden van al deze heerlijkheden is de pastel de nata de absolute beroemdheid.

335514203_871992397231199_3539701541656556904_n
14
Adres
Albert Cuypstraat 278,
1073 BR Amsterdam

La Biss Kosher Streetfood

La Biss is geen gewone sandwichbar; los van het feit dat de sandwiches uiteraard kosher zijn worden ze met zorg en precisie gemaakt met de beste en meest verse ingrediënten. Een specialiteit is de huisgemaakte challah brood, dagelijks vers gebakken en een unieke toevoeging aan de sandwiches. Ook de baguettes en andere verse broden zijn niet te missen.

15
Adres
Van Woustraat 37,
1074 AB Amsterdam

Roopram Roti

Roopram Roti komt oorspronkelijk uit Suriname en werd geëxporteerd naar Nederland vanwege de grote vraag naar roti op de Nederlandse markt, onder andere door vakantiegangers uit Paramaribo. Om aan deze vraag te voldoen, besloot J. Roopram diepvries roti naar Nederland te exporteren. Helaas werd dit op het laatste moment tegengehouden vanwege de beperkingen op de uitvoer van kip en kipdelen uit Suriname. In plaats daarvan opende J. Roopram in juli 2002 zijn eerste restaurant aan het Mathenesserplein 89 te Rotterdam. Dit werd gevolgd door het tweede filiaal in Amsterdam, genaamd Roopram Roti Eetcafé. Sindsdien zijn er twee extra filialen geopend, namelijk in Den Haag en aan de Van Woustraat 37 te Amsterdam.

16
Adres
Van Woustraat 58,
1073 LN Amsterdam

Yen dining bar

De oprichter van Yen Dining Bar groeide op met Vietnamese smaken en de sociale eetcultuur van quán nhậu, wat de basis vormt van zijn visie voor deze zaak. Hij brengt hier klassieke Vietnamese gerechten zoals pho, bun bo hue en banh mi samen met moderne interpretaties en shared dining. De keuken legt nadruk op verse ingrediënten en kruiden, met frisse salades en hartige noodles die de essentie van Vietnam vangen. Yen wil een plek zijn waar vrienden samenkomen voor lekker eten en drank, met een warme, ontspannen energie. De ambiance is sfeervol en intiem met een lichte industriële toets, perfect voor diners met gezelschap of een drankje vooraf.

17
Adres
Van Woustraat 25,
1074 AB Amsterdam

Café Biljart van Wou

Café Biljart van Wou is een typisch buurtcafé waar het stil wordt als de buurtbewoners op vakantie zijn.

Schermafbeelding 2023-01-25 om 15.31.43
18
Adres
Van Woustraat 17,
1074 AA Amsterdam

Tjin's

Rond deze kleine broodjeszaak verzamelen zich vaak groepen mensen voor de deur voor een snelle snack. Tjin maakt al meer dan 40 jaar surinaamse broodjes en hapjes op basis van familie recept. Oprichter Chong begon ooit in West als platenzaak, echter werden de broodjes die hij achterin klaargemaakte steeds populairder, zoals het broodje met kabeljauw of de kerrie kip.

50241633_2207645855964289_3493298168299257856_n
19
Adres
Albert Cuypstraat 203-C,
1073 BE Amsterdam

Saskia's Huiskamerrestaurant

De naam zegt het al: eten bij Saskia's Huiskamerrestaurant is als dineren in de huiskamer. In dit restaurant eet je alleen in kleine gezelschappen tot 10 personen. Een uitstekende manier om een gezellige knusse avond door de brengen met een groep vrienden. Saskia's Huiskamerrestaurant is echt begonnen als restaurant in de huiskamer van eigenaresse Saskia en is later verhuist naar een eigen pand. Het restaurant bestaat nu al 18 jaar maar heeft zijn bijzondere sfeer weten te behouden. Het restaurant bevindt zich aan de Albert Cuypstraat; vlakbij de markt waar Saskia dagelijks inspiratie opdoet voor nieuwe gerechten

Boodschappen
Homepage3-1
20
Adres
Eerste Sweelinckstraat 18,
1073 CM Amsterdam

Il Pastificio

Een pastafabriek; zo noemt Il Pastificio zichzelf. Hier maken ze zelf Italiaanse pasta op authentieke wijze. Elke dag zijn ze bezig met het bereiden van verse producten. Het aanbod is groot: van fusilli tot conchiglie tot rigatoni napoletani. Of je nou indruk wil maken tijdens een etentje; of lekker voor jezelf wil koken; met de producten van Il Pastificio wordt elk pastagerecht een succes.

21
Adres
Albert Cuypstraat 267,
1073 BH Amsterdam

C&C Asianmarkt

Aan het einde/of het begin van de Albert Cuyp ligt de C&C Asian Supermarket. De winkel is een begrip voor eenieder die tijdens het koken opeens bijzondere ingrediënten nodig heeft. Naast verse producten heeft de winkel een gigantisch assortiment met allerlei Aziatische must-haves wanneer het op onmisbare ingrediënten aankomt. Van heerlijke pindasaus voor bij summer-rolls tot ongelofelijke hoeveelheden ingevroren dumplings om in bamboe mandjes zelf op te warmen. De sojasaus vliegt in grote flessen en betaalbare prijzen over de toonbank en ook voor enkele leuke decoraties kan je hier terecht. De pret kan echter niet op, want er is óók nog een klein hoekje in de supermarkt waar er vers eten wordt klaargemaakt. Hier kun je dus na je grote boodschappen genieten van onder andere verse summer-rolls of een banh mi (Vietnamese baguette).

119121435_131526715332723_8568503447827834886_n
278784717_306079698266849_2026436298554568020_n
22
Adres
Albert Cuypstraat 208H,
1073 BM Amsterdam

Rise Bakery

De drie eigenaren van Rise Bakery ontmoetten elkaar in Londen waar ze allemaal in de horeca werkten. Door de maatregelen van de pandemie op de horeca besloten ze gezamenlijk hun droom te volgen en naar Amsterdam te komen om een bakkerij te openen. Alle drie hebben ze een eigen specialiteit en dat resulteert in Franse broden, zuurdesem en taartjes. Gelegen aan de Albert Cuypstraat is dit de perfecte plek om een Deens gebakje of een kaneelbroodje te eten voor of na boodschappen op de markt.

247591968_3070054166616521_5753782012107438783_n
278910128_3200962820192321_8300979430721222855_n
23
Adres
Albert Cuypstraat,
1073 BD Amsterdam

De Albert Cuypmarkt

De Albert Cuypmarkt is van maandag t/m zaterdag geopend van 9:00 tot 18:00 en is met 260 kramen de grootste dagmarkt van Europa. Het gemeentebestuur besloot om in 1905 een vrije markt te vestigen dat vandaag de dag de Albert Cuypmarkt is, vernoemd naar een 17e -eeuwse kunstschilder. Je kan hier je dagelijkse boodschappen doen en terecht voor in het speciaal verse vis, delicatessen en verschillende soorten stoffen. De markt is natuurlijk bekend onder de Amsterdammers, maar ook toeristen weten de markt te vinden om bijvoorbeeld de typische Hollandse lekkernijen als haring en stroopwafel te proeven en opzoek te gaan naar souvenirs. Het is ook een leuke markt om gewoon even af te lopen voor de gezelligheid.

downloadgram.org_468511512_17950326035880735_2970155290351330324_n
24
Adres
Gerard Doustraat 180,
1073 XA Amsterdam

De Predetariër

De Predetariër is opgericht door Kaj de Jager, James Snoerwang en Philip Buys, drie vrienden die hun kantoorbaan opzegden na hun groeiende afkeer van de bio-industrie. Vanuit hun gedeelde liefde voor natuur en jacht ontwikkelden ze het idee van predetarisch eten: vooral plantaardig, met af en toe verantwoord wild vlees. Via hun webshop verkopen ze wild dat wordt geschoten voor natuurbeheer in Nederland, Duitsland en Polen, en datzelfde principe brengen ze nu naar hun fysieke winkel én deli. In de zaak koop je producten om mee naar huis te nemen, maar kun je ook aanschuiven voor broodjes als rendang van hert en pastrami van gans, met duurzame drankjes erbij.

Interieur
155858240_1370921613246057_3148762465349325701_n
124035318_1289866934684859_4883301117125525721_n
25
Adres
Eerste Sweelinckstraat 56,
1073 CM Amsterdam

Mud in May

Mud in May is een interieur- en cadeauwinkel in het hartje van de Pijp. Je vindt hier items van zowel bekende designers als minder bekende designers en daardoor ontstaat er een speels mix. Voor ieder budget is hier wel iets te scoren. Mud in may verkoopt allerlei soorten producten; stoelen, vazen, lampen, tafels en zelfs kleding. Ook hebben ze een leuke blog waar ze artikelen waar ze in gesprek gaan met designers over de nieuwste interieurtrends.

Uitgelicht; De Plantage 22

Uitgelicht; De Plantage 22

Een  industrieel loft op een verborgen plek

Een industrieel loft op een verborgen plek

Uitgelicht; Een indrukwekkend voormalig schoolgebouw van het rooms-katholieke gesticht “De Voorzienigheid”

Uitgelicht; Een indrukwekkend voormalig schoolgebouw van het rooms-katholieke gesticht “De Voorzienigheid”

Onlangs bekeken
Bekijk het overzicht

Deze site maakt gebruik van cookies.

Voor welke cookies geef je akkoord?