Woonhuis van bijna 210 m², gelegen in de Jordaan. Het huis strekt zich uit over vier woonlagen met woonkamer, keuken, vijf slaapkamers (waaronder een studio op de begane grond), twee badkamers, een tuin en twee balkons. Gelegen op eigen grond met vernieuwde fundering.
Het Goudsbloemhuis is een klassiek herenhuis in de Jordaan met vier woonlagen, waaronder een zelfstandige studio die ook als extra woon- en/of werkruimte kan dienen, een tuin en twee balkons. De gevel toont Amsterdamse bouwtraditie, terwijl de indeling ruimte biedt voor flexibel gebruik. De combinatie van historische context, functionele architectuur en veelzijdige indeling maakt dit huis tot een bijzonder en verfijnd object in het hart van Amsterdam.

Rondleiding
De rondleiding start aan de Goudsbloemstraat, midden in de Jordaan. De gevel verraadt al dat dit geen doorsnee pand is: ruim vijf meter breed en met een klassieke uitstraling die zich onderscheidt van de smallere buren. Achter de voordeur ligt een woning die niet gesplitst is, maar in zijn geheel wordt aangeboden. Bij binnenkomst is er een entreehal met een modern uitgevoerde meterkast. Links ligt de studio en deze ruimte strekt zich uit naar de tuinzijde, waar openslaande deuren toegang geven tot een groene binnenwereld. De tuin grenst aan een grote binnentuin, waardoor je hier een bijzonder gevoel van ruimte en rust ervaart.
De badkamer in de uitbouw is netjes en functioneel uitgevoerd met een inloopdouche met drain, een hangend toilet en een wit wastafelmeubel. Grijze plavuizen op vloer en wand geven de ruimte een verzorgde, frisse uitstraling. Aan de achterzijde bevindt zich bovendien een klein keukenblok, waardoor deze studio - indien gewenst - volledig zelfstandig kan functioneren.  

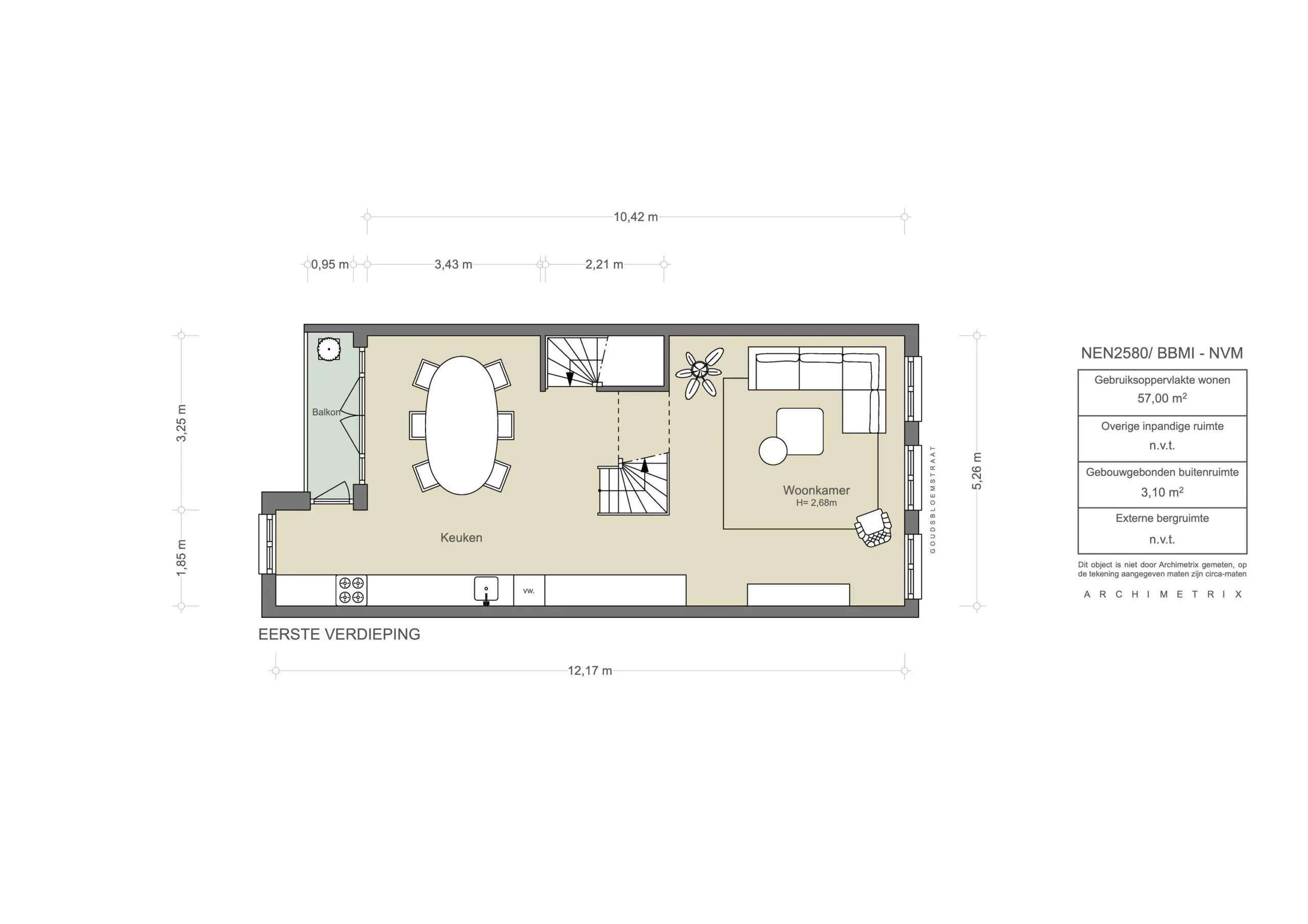
De trap leidt naar de eerste verdieping. De woonkamer ontvouwt zich als een brede ruimte met drie hoge ramen aan de voorzijde, gericht op het zuiden. Het licht valt diep naar binnen en op zomerse dagen kunnen de hoge ramen worden geopend, zodat de straat bijna een verlengstuk van de woning wordt. In de vloer zijn convectorputten verwerkt, die onzichtbaar zorgen voor verwarming zonder het zicht of de indeling te verstoren.
Het woongedeelte loopt door naar de eetkamer aan de achterzijde, waar openslaande deuren toegang geven tot een balkon. Dit balkon vangt minder zon, maar biedt een aangename plek voor frisse lucht en ventilatie. De keuken is in de lengte van de ruimte geplaatst, met een royaal werkblad dat naadloos aansluit op de leefruimte. Het maakt koken tot een sociale bezigheid, waarbij contact met de zitkamer behouden blijft.
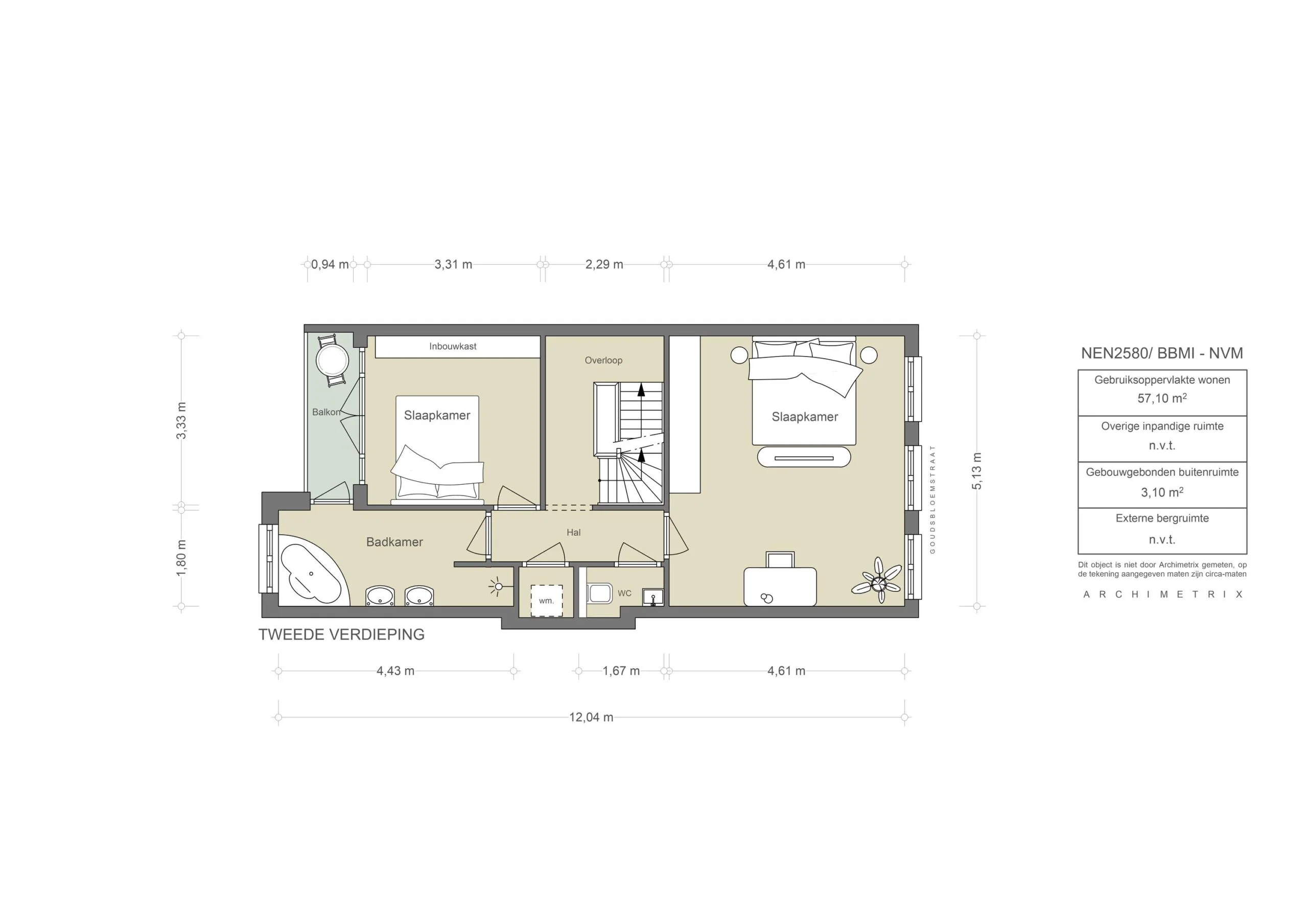
Op de tweede verdieping liggen twee slaapkamers. Aan de voorzijde een brede kamer met drie ramen, ideaal als hoofdslaapkamer. Aan de achterzijde bevindt zich een tweede slaapkamer met inbouwkasten  en toegang tot het balkon. De badkamer bevindt zich  direct naast deze kamer en is uitgerust met een hoekbad, dubbele wastafels en een inloopdouche. Ook hier is toegang tot het balkon, waardoor binnen en buiten opnieuw met elkaar verbonden zijn.
In het midden van de verdieping zijn een separaat toilet en een ruimte voor wasmachine en droger te vinden. Vier dakramen brengen licht tot in het hart van de verdieping, waardoor ook de hal verrassend ruim en helder oogt.
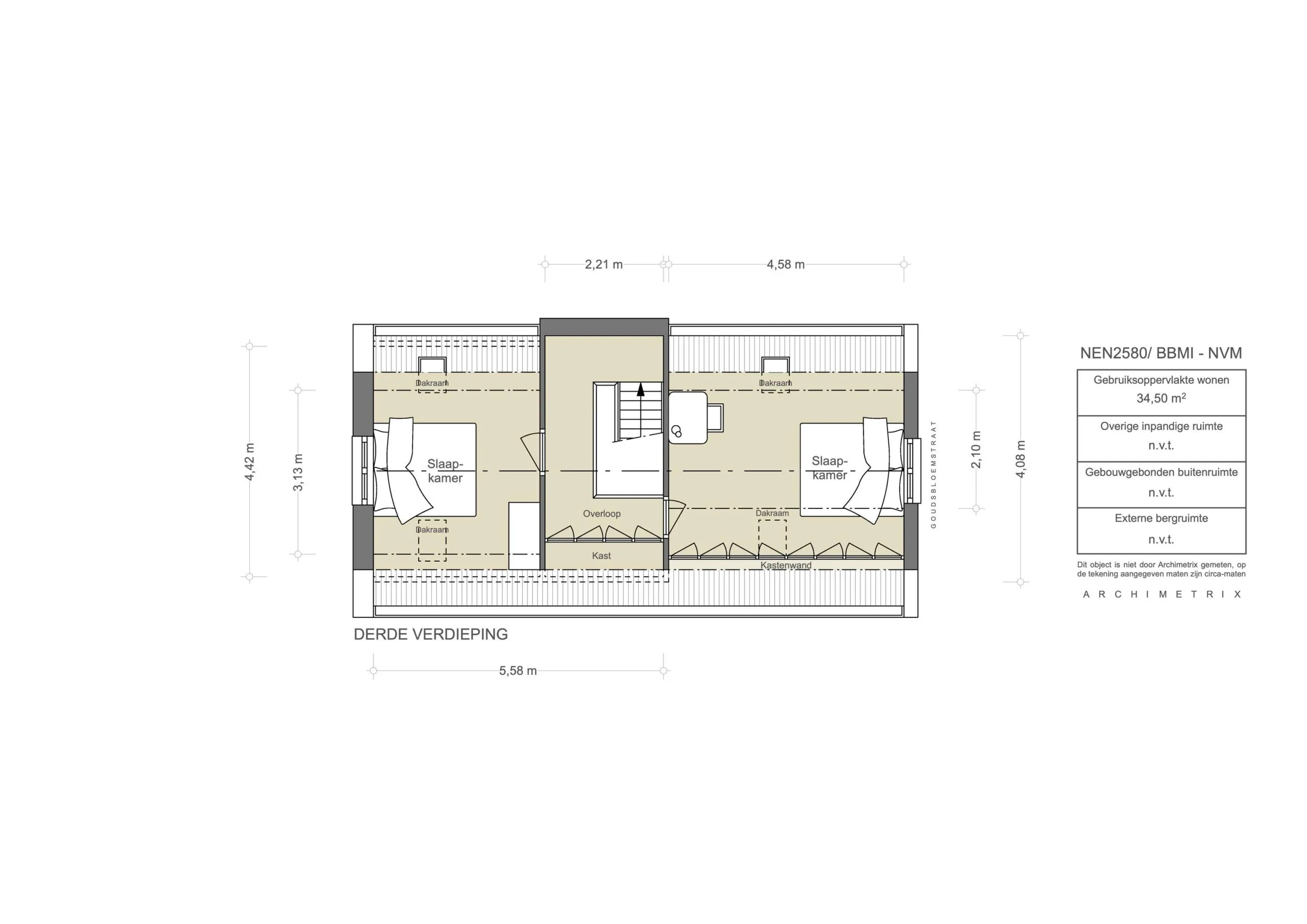
De kapverdieping biedt nog eens twee volwaardige slaapkamers, één aan de voorzijde en één aan de achterzijde, beide voorzien van Velux-ramen. Op de overloop zijn knieschotten aangebracht voor bergruimte en er is in de slaapkamer aan de voorzijde een wastafel aanwezig voor praktisch gebruik. In de nok bevindt zich bovendien een bergvliering, geschikt voor koffers of seizoensopslag. Hoewel er nu nog geen badkamer aanwezig is, leent de indeling zich uitstekend om op de kapverdieping een compacte derde badkamer te realiseren.
Naast de besloten achtertuin en de balkons op de verdiepingen is er nog een onverwacht extra: de grote ramen aan de voorzijde van het huis. Deze kunnen volledig open en veranderen de vensterbank in een plek waar je al vroeg in het voorjaar in de zon kunt zitten, met uitzicht op de levendigheid van de Jordaan.

Buurtgids 
Gelegen nabij de geliefde Lindengracht, een unieke en historische locatie in het hart van de Jordaan nabij Noordermarkt en onder andere Toscanini. Op zaterdag transformeert deze sfeervolle gracht in de levendige Lindengrachtmarkt, één van de meest geliefde markten van Amsterdam. In de directe omgeving bevinden zich tal van verfijnde horecazaken, en voor de dagelijkse boodschappen liggen de Westerstraat en de Haarlemmerstraat op loopafstand. De ligging is zonder meer centraal. Voor het openbaar vervoer zijn er op 5 minuten loopafstand haltes van tram 5, 13 en bussen 18 en 21. Met de auto zit je binnen enkele minuten op de A10, waardoor ook de ontsluiting buiten de stad uitstekend is geregeld.

Bijzonderheden
•    Gebruiksoppervlakte wonen bijna 210 m²
•    Balkons en tuin gelegen op het noordwesten
•    Gelegen op eigen grond
•    Energielabel E
•    Fundering hersteld 2003
•    Rijksbeschermd stadsgezicht

AM106476-2061895-Goudsbloemstraat-86,-Amsterdam-246833910

Het Goudsbloemshuis
Goudsbloemstraat 86 is een huis dat jarenlang met zorg en plezier bewoond is door de huidige eigenaren. Het bood hen de ruimte en de charme van de Jordaan, met een complete woning die zich uitstrekt van de tuin tot in de nok. Enkele jaren geleden kozen zij voor een nieuw hoofdstuk in Amsterdam-Zuid. Sindsdien is het pand verhuurd geweest en is nu het moment aangebroken om het over te dragen aan een volgende bewoner. Bij de koopovereenkomst wordt een niet-bewonersclausule opgenomen.
Het huis onderscheidt zich door zijn bijzondere breedte van ruim vijf meter, de veelzijdige begane grond, de royale leefruimte en de vanzelfsprekende verbondenheid met de Jordaan.


Otte van Apeldoorn | Makelaar Broersma Wonen
Babette Meijers | Makelaar Broersma Wonen
AM106476-2061895-Goudsbloemstraat-86,-Amsterdam-246833860
Het gebouw

Het pand aan de Goudsbloemstraat 86 ademt de karakteristiek van de Jordaan, maar onderscheidt zich door zijn uitzonderlijke breedte van ruim vijf meter. Waar veel gevels in de buurt smal en hoog zijn, valt dit huis juist op door zijn royale maatvoering, waardoor de ruimtes binnen merkbaar meer licht en lucht krijgen. De gevel is klassiek opgezet in baksteen met een traditionele topgevel en symmetrische raampartijen, die de verticale lijnen benadrukken. Achter deze gevel ontvouwt zich een verrassend geheel: een volledige woning die niet gesplitst is, maar als één adres functioneert. Vanuit het bouwdossier blijkt dat de fundering rond 2002/2003 volledig is vernieuwd. Het huis staat dus stevig op nieuwe palen en een betonconstructie, waardoor het historische karakter wordt gecombineerd met een solide en toekomstbestendige basis. De indeling sluit op natuurlijke wijze aan bij de karakteristiek van het pand. Op de begane grond bevindt zich een multifunctionele ruimte met directe toegang tot de tuin, die zelfstandig maar ook uitstekend als extra leef-, werk- of slaapruimte kan worden gebruikt. Daarboven strekken de woonlagen zich uit tot in de kap, met een logische routing en doorlopende zichtlijnen van voor- tot achtergevel. Het resultaat is een woning die zowel in architectuur als gebruik overtuigt door ruimtelijkheid en samenhang.

AM106476-2061895-Goudsbloemstraat-86,-Amsterdam-246833858
AM106476-2061895-Goudsbloemstraat-86,-Amsterdam-245333242
AM106476-2061895-Goudsbloemstraat-86,-Amsterdam-245333228
AM106476-2061895-Goudsbloemstraat-86,-Amsterdam-245333240
Wonen en koken

De multifunctionele ruimte op de begane grond is royaal opgezet en volledig ingericht. Aan de tuinzijde bevindt zich het woongedeelte met een keuken, uitgevoerd met een houten werkblad en gladde witte kasten. De keuken is uitgerust met een koelkast en vaatwasser. Grote openslaande deuren verbinden de leefruimte direct met de tuin, waardoor een natuurlijke overgang tussen binnen en buiten ontstaat.
In de uitbouw aan de achterzijde is de badkamer gesitueerd. Deze lichte ruimte is voorzien van een inloopdouche, toilet en een strak wastafelmeubel in wit. De grijze plavuizen, die zowel vloer als wanden bekleden, creëren een rustige en samenhangende uitstraling.

Eerste verdieping – zitkamer en keuken
Op de eerste verdieping bevindt zich de woonkamer met open keuken. Grote zuidgerichte vensters laten het licht diep de kamer in stromen en kunnen volledig open, waardoor de verbinding met de straat direct voelbaar is. De houten vloer versterkt de warme, huiselijke sfeer en vormt een contrast met de witte wanden en trappen. De keuken strekt zich in de lengte uit en biedt royale werkruimte. De opstelling langs de gevel maakt het mogelijk om tijdens het koken in contact te blijven met de zitkamer. De trap, midden in de ruimte geplaatst, fungeert als een natuurlijke scheidslijn zonder de openheid te doorbreken. Aan de achterzijde opent de eetkamer naar het balkon, met dubbele deuren die de kamer verlengen naar buiten.

AM106476-2061895-Goudsbloemstraat-86,-Amsterdam-245333256
AM106476-2061895-Goudsbloemstraat-86,-Amsterdam-245333264
AM106476-2061895-Goudsbloemstraat-86,-Amsterdam-245333296
AM106476-2061895-Goudsbloemstraat-86,-Amsterdam-245333278
AM106476-2061895-Goudsbloemstraat-86,-Amsterdam-245333294
AM106476-2061895-Goudsbloemstraat-86,-Amsterdam-245333282
AM106476-2061895-Goudsbloemstraat-86,-Amsterdam-246833876
AM106476-2061895-Goudsbloemstraat-86,-Amsterdam-246833884
AM106476-2061895-Goudsbloemstraat-86,-Amsterdam-246833890
Slapen en baden

De tweede verdieping biedt een royale slaapverdieping. Twee slaapkamers liggen aan weerszijden van de centrale hal. Aan de achterzijde bevindt zich een complete badkamer, ingericht met een dubbele wastafel, een hoekbad en een tweede toegang tot het balkon. Hierin komen functionaliteit en ontspanning samen. Naast de badkamer zijn er slimme voorzieningen zoals een inbouwkast voor de wasmachine en droger en een separaat toilet, waardoor de dagelijkse routine comfortabel en overzichtelijk blijft. Ook de slaapkamer aan de achterzijde opent naar het balkon, waardoor slapen en buitenleven op een vanzelfsprekende manier verbonden raken.

Derde verdieping – slaapkamers
De kapverdieping is verrassend ruim en biedt nog eens twee volwaardige slaapkamers, elk met karakteristieke kaplijnen en Veluxramen die zorgen voor daglicht en lucht. Op de overloop is ruimte gecreëerd voor kasten en bergruimte. Bovendien is er in de nok een bergvliering bereikbaar, ideaal voor opslag. Op deze verdieping is nog geen badkamer, maar de indeling leent zich uitstekend om een compacte derde badkamer te realiseren.

AM106476-2061895-Goudsbloemstraat-86,-Amsterdam-245333316
AM106476-2061895-Goudsbloemstraat-86,-Amsterdam-245333344
AM106476-2061895-Goudsbloemstraat-86,-Amsterdam-245333340
AM106476-2061895-Goudsbloemstraat-86,-Amsterdam-245333342
AM106476-2061895-Goudsbloemstraat-86,-Amsterdam-245333312
AM106476-2061895-Goudsbloemstraat-86,-Amsterdam-246833892
AM106476-2061895-Goudsbloemstraat-86,-Amsterdam-246833898
Tuin en balkons

Aan de achterzijde van het huis ligt een besloten tuin die direct grenst aan een grote binnentuin. Hier ervaar je de stilte van de Jordaan, weg van de drukte van de straten. Vanuit de begane grond is er directe toegang tot de tuin, die zo een vanzelfsprekend verlengstuk van het wonen beneden vormt.
Op de verdiepingen erboven zijn er twee balkons, bereikbaar vanuit de woonkamer respectievelijk slaapkamer en badkamer. Ze bieden een intieme plek om even buiten te zijn, met zicht op het groen en de historische bebouwing rondom.
Aan de voorzijde zorgen de grote ramen voor een onverwacht extra: ze kunnen volledig open, waardoor je op zonnige dagen letterlijk aan de gevel zit, met uitzicht op de straat en de dynamiek van de buurt. Al vroeg in het voorjaar is dit een heerlijke plek om de eerste zonnestralen op te vangen.

AM106476-2061895-Goudsbloemstraat-86,-Amsterdam-246833906
1015 DK Prinsengracht 9-37
1015 KK Lindengracht 126D-31
1015 BG Herengracht 127A-8

Gelegen aan de geliefde Goudsbloemstraat, een unieke en historische locatie in het hart van de Jordaan nabij de Lindengracht, Noordermarkt en onder andere Toscanini. Op zaterdag transformeert de sfeervolle Lindengracht in de levendige Lindengrachtmarkt, één van de meest geliefde markten van Amsterdam. In de directe omgeving bevinden zich tal van verfijnde horecazaken, en voor de dagelijkse boodschappen liggen de Westerstraat en de Haarlemmerstraat op loopafstand.

Bereikbaarheid
De ligging in de Jordaan brengt een vanzelfsprekende verbondenheid met de stad. Op loopafstand ligt het Centraal Station, waar trein, metro, bus en tram samenkomen. Ook de Appeltjesmarkt is nabij: een knooppunt waar tal van buslijnen vertrekken, waaronder de Airport Express (lijn 397) die je in korte tijd rechtstreeks naar Schiphol brengt. De tram biedt daarnaast een efficiënte verbinding met de rest van de stad. Lijn 5 en 13 stoppen op een paar minuten lopen. Met de auto zit je binnen enkele minuten op de A10, de ringweg die Amsterdam verbindt met de grote uitvalswegen. Zo is ook de bereikbaarheid buiten de stad uitstekend geregeld.

Parkeergelegenheid
Parkeren is mogelijk via een vergunningenstelsel op de openbare weg (vergunningsgebied Centrum-2b). Met een parkeervergunning voor Centrum-2b mag u parkeren in Centrum-2. Een parkeervergunning voor bewoners kost 326,65 per 6 maanden. Momenteel is er voor dit vergunningsgebied een wachttijd van 24 maanden. Voor bewoners van Amsterdam die nu reeds een parkeervergunning hebben, is de wachttijd mogelijk korter. In dat geval bepaalt de datum waarop u in het oude vergunningsgebied een vergunning heeft aangevraagd namelijk uw positie op de wachtlijst. Een tweede parkeervergunning is in dit gebied niet mogelijk. Naast de openbare weg is het ook mogelijk om met een parkeervergunning kosteloos te parkeren in garage Marnix. (Bron: Gemeente Amsterdam, september 2025).

1015 BG Herengracht 127-83
AM106476-2061895-Goudsbloemstraat-86,-Amsterdam-245333304
AM106476-2061895-Goudsbloemstraat-86,-Amsterdam-245333274
Kenmerken
Goudsbloemstraat 86, Amsterdam
Vraagprijs
  • € 1.650.000 k.k.
Beschikbaarheid
  • In overleg
Vertrekken
  • 6 kamers
  • 5 slaapkamers
  • 2 badkamers
Onderhoud
  • Intern: Goed
  • Extern: Goed
Oppervlakten & Inhoud
  • Woonoppervlakte: 209 m²
  • Gebouwgebonden buitenruimte: 6 m²
  • Tuinoppervlakte: 21 m²
  • Perceeloppervlakte: 89 m²
Bouwjaar
  • 1937
Installaties
  • Dakraam
  • Natuurlijke ventilatie
  • TV kabel
Ligging
  • Aan rustige weg
  • In centrum
  • In woonwijk
Parkeren
  • Betaald parkeren
  • Parkeervergunningen
Type verwarming
  • CV Ketel
Type warmwater
  • CV Ketel
Bestemming
  • Woonruimte
Eigendomssoort
  • Volle eigendom
Buitenruimte
  • Achtertuin
  • Balkon
Kadastraal
  • Gemeente: Amsterdam
  • Sectie: L
  • Nummer: 5034
Duurzaamheid
  • Energielabel E
Soort
  • Herenhuis
  • Tussenwoning
  • Woonhuis
Bijzonderheden
  • Beschermd stads of dorpsgezicht
Overige kenmerken
  • OZB ('25) € 845,30 per jaar
  • Rioolrecht ('25) € 185,20 per jaar
  • Fundering hersteld 2003
Plattegrond
Goudsbloemstraat 86, Amsterdam
AM106476-2061895-Goudsbloemstraat-86,-Amsterdam-246871114
AM106476-2061895-Goudsbloemstraat-86,-Amsterdam-245882584
AM106476-2061895-Goudsbloemstraat-86,-Amsterdam-246871116
AM106476-2061895-Goudsbloemstraat-86,-Amsterdam-245882588
Documenten
Goudsbloemstraat 86, Amsterdam
Locatie
Goudsbloemstraat 86, Amsterdam
Boodschappen
43624563_m-1
01
Adres
Goudsbloemstraat 76,
1015 JR Amsterdam

Slagerij Louman

Slagerij Louman is al sinds 1890 een begrip in Amsterdam en omstreken. Naast veel vaste omwonende klanten, komen veel mensen van buiten de stad speciaal voor Slagerij Louman voor een stukje vlees, andere vleeswaren of een ambachtelijk bereide worst. De slagerij is met gepaste trots al drie generaties in de familie. In hartje Jordaan kan je hier terecht voor kwaliteit, vakmanschap én de lekkerste gehaktballen.

jwo hoek
02
Adres
Tweede Goudsbloemdwarsstraat 1,
1015 JX Amsterdam

JWO Lekkernijen

Eten en drinken is lust en leven van de eigenaren van JWO. In het hartje van de Jordaan word je hier verwelkomd met echte Amsterdamse gezelligheid én lekkernijen. Je kunt er alle benodigdheden voor een heerlijke borrelplank kopen; van kaas en vleeswaren tot heerlijke rode wijn. Rond lunchtijd kan je hier een broodje bestellen aan de marmeren bar. Na een broodje grillworst van slagerij Louman met honingmosterdsaus en uiteraard een glas melk erbij, wil je nooit meer anders.

405081974_17867905413020752_6521648150883525543_n
Scherm­afbeelding 2024-01-10 om 13.57.03
03
Adres
Lindengracht 99,
1015 KD Amsterdam

SAINT-JEAN Deli

Bij SAINT-JEAN Deli, net tegenover de bakkerij, vind je zoete-en hartige lekkernijen, sandwiches en delicatessen voor thuis. Hier geen overdaad aan vegan zoetigheden, maar een mooie mix met lekkere koffie. Het lunchmenu biedt versgebakken ciabatta, belegde sandwiches en wekelijks wisselende gerechten. Voor zoetekauwen zijn er cinnamon buns, croissants en andere lekkernijen uit eigen keuken. Daarbij hebben ze een ruime keuze aan natuurwijnen. De flessen zijn te koop voor thuis of je kunt ter plekke van een glas wijn genieten.

deli_hompepage
04
Adres
Lindengracht 79,
1015 KD Amsterdam

Toscanini Deli

Naast het geweldige restaurant vind je Toscanini Deli, beroemd om de goddelijke kaneelbrioche, échte Italiaanse espresso, focaccia of  een broodje met verse producten zoals kaas, worst of ansjovis. Daarnaast verkopen ze ook avondmaaltijden met alle Italiaanse specialiteiten. Denk aan pasta, pastasauzen, maar ook vers gemaakte groente- vis- en vleesgerechten. Ook pizzameel, azijnen, biologische goede olijfolie en verschillende Italiaanse wijnen zijn hier te koop.

05
Adres
Lindengracht,
1015 JP Amsterdam

Lindengrachtmarkt

Als je al een appeltaart bij Winkel 43 op de Noodermarkt gegeten hebt, wandel dan even door naar de Lindenmarkt. Aan het begin vind je gelijk de heerlijke viskraam (de kibbeling of het broodje tonijnsalade zijn aanraders!) Maar niet alleen de vis, ook de notenspeciaalzaak Notjé is briljant, en het broodje Sabich van Abu Salie is er eentje die je absoluut niet mag missen.

273204947_1071299630109303_3216789697958750572_n
275237523_1096139134292019_2600311377251223779_n
06
Adres
Noordermarkt,
1015 NA Amsterdam

Noordermarkt

Op maandagochtend en zaterdag kan je shoppen op de gezellige Noordermarkt. Van oorsprong is de Noordermarkt een potten, pannen en lapjes markt, waar men in de 17e eeuw vooral dagelijkse gebruiksvoorwerpen kocht. Vandaag de dag kan je er van alles kopen zoals antiek, sieraden, schilderijen, glas-en serviesgoed, boeken en prenten en veel vintage kleding. Op zaterdagochtend is er ook een biologische markt waar je verse biologische groenten, fruit, brood, kaas, kruiden, vis, honing en nog veel meer andere producten kunt kopen. De marktlui zijn soms nog ras Amsterdammers met een flink accent en een bord vol flauwe humor. Op geen één markt in Amsterdam vind je zo’n verscheidenheid aan producten, de markt heeft zoveel te bieden dat je er zomaar een hele dag rondstruint.

de oliewinkel
07
Adres
Brouwersgracht 119,
1015 GD Amsterdam

De Oliewinkel

In 2016 opende de Oliewinkel aan de Brouwersgracht. De Oliewinkel is dé plek voor degenen die houden van lekker eten en kwaliteitsproducten. Het assortiment is samengesteld uit voornamelijk Mediterrane producten maar de nadruk ligt op olijfolie van kleine producten in Italië, Spanje, Griekenland en Frankrijk. In de winkel kan je de olie proeven zodat je zelf de lekkerste uit kan kiezen en mee kan nemen in een glazen fles die je weer opnieuw kan laten vullen.
Ook de rest van het assortiment is met zorg samengesteld. Naast verschillende heerlijke huisgemaakte pesto’s, tapenades en vinaigrettes, vind je bijvoorbeeld fantastische mosterd uit Nederland, België en Frankrijk in de schappen.
De Oliewinkel heeft bovendien verschillende soorten olijven, fantastisch tafelzuur en de lekkerste mayonaises en vinaigrettes op voorraad. In het midden van de winkel staat een tafel vol visconserven. Met name de conserven van het Spaanse merk Ortiz zijn goed vertegenwoordigd.

 

08
Adres
Westerstraat,
1015 LZ Amsterdam

Westerstraatmarkt

Elke week is er de Westerstraat markt, ook wel bekend als de lapjesmarkt. Ze staan hierom bekend omdat de markt ontzettend veel stoffen en lapjes-kramen heeft. Mensen van allen kanten komen hier naartoe om de mooiste stoffen te scoren. Maar ook lekker eten en andere dingen kan je hier vinden, de markt is veelzijdig met meer dan 212 kramen!

09d056_f78daf4a5ac841dba751a666ccaaf36a_mv2
09
Adres
Westerstraat 55,
1015 LV Amsterdam

Terre Lente

Bij Terre Lente importeren ze hun producten direct van kleinschalige biologische boeren- en familiebedrijven uit Calabrië, Zuid-Italië, en dat proef je. De producten zijn eerlijk, goed en écht Italiaans. Ze hebben onder andere worst, kaas, olijfolie, gemaakte groenten en uiteraard bijzondere wijnen. Alles is dus biologisch geproduceerd. In hartje Jordaan vind je dit pareltje. Tip: neem ook lekker kopje Napolitaanse koffie of een belegde focaccia.

Interieur
5
10
Adres
Tweede Goudsbloemdwarsstraat 5-B,
1015 JX Amsterdam

Galerie Gaudium

Galerie Gaudium is gespecialiseerd in 20e-eeuws design van de meest iconische architecten en ontwerpers. De galerie bevindt zich in het hart van het prachtige Amsterdam, waar ze verschillende thematentoonstellingen presenteren van midcentury meubels gecombineerd met hedendaagse kunst. Thema's omvatten het werk van beroemde ontwerpers zoals Mathieu Matégot en Charlotte Perriand, of locatiegerichte tentoonstellingen zoals Deens, Italiaans of Japans design. Nieuwe tentoonstellingen worden aangekondigd via hun sociale media. De items in de tentoonstelling zijn te koop en beschikbaar in de online winkel.

Eten & drinken
Schermafbeelding 2022-06-27 om 18.28.45
11
Adres
Lindengracht 158h,
1015 KK Amsterdam

SAINT-JEAN

Sinds kort bevindt zich in de Jordaan: Saint Jean. Toen de eigenaar Yann Pierre-Jean plant-based ging eten was hij erg teleurgesteld in de smaken van vegan gebak. Hij besloot vanuit huis te gaan bakken en dit te verkopen. Dit groeide uit tot zijn eigen plant-based bakkerij en koffiespeciaalzaak. Het is er altijd druk maar als je vroeg bent, kun je een van de kenmerkende cruffins scoren, gevuld met een huisgemaakte pistachecrème die goddelijk is.

531474882_18073893428004240_7187049577581030040_n
12
Adres
Lindengracht 248,
1015 KM Amsterdam

ô bistro

ô bistro aan de Lindengracht is zo’n plek waar je meteen voelt dat er een subtiele balans is gevonden tussen vakmanschap en warmte. Het restaurant wordt bestierd door een Frans-Italiaans duo: chef Pierre Buffard, die de klassieke Franse bistrokeuken met aandacht en precisie naar tafel brengt, en sommelier Daniele Gaudiello, die met zijn Italiaanse achtergrond zorgt voor een wijnkaart die nét even verder reikt dan de verwachte Bourgogne of Bordeaux. Het resultaat is een met zorg samengesteld menu vol Franse favorieten zoals terrine, côte de boeuf, mille-feuille begeleid door wijnen die je nieuwsgierig maken in plaats van op de automatische piloot te laten drinken.

tosca-square-mm-1
dinerbon
13
Adres
Lindengracht 75,
1015 KD Amsterdam

Toscanini

Nadat Maud Moody 40 jaar geleden met Toscanini begon is het restaurant niet meer weg te denken uit de lijst van beste restaurants in Amsterdam. Het restaurant is ruim, gezellig en ook licht. Hier vind je een wisselende menukaart van hoge kwaliteit, een enorm uitgebreide wijnkaart en uitstekende service. Chef Leonardo Pacenti houdt ervan de gerechten te versimpelen, zonder in te boeten aan verfijning en smaak. Alleen de allerbeste ingrediënten, niet teveel mee gedaan, behalve goed bereid.

DuendeDos-22-e1518696764691
14
Adres
Nieuwe Willemsstraat 1-3,
1015 JH Amsterdam

Duende dos

Erik Nieuwendijk (56) en Jackie Tack (51), de bevlogen eigenaren van restaurant Dos, hebben een culinaire reis van 25 jaar achter de rug. In een tijd waarin het uitleggen van tapas nog noodzakelijk was, hebben ze nu, mede dankzij de invloed van drie Spaanse experts uit het oude Centra, gekozen voor klassieke Spaanse gerechten. Met Roberto en Jesus, samen meer dan 60 jaar ervaring in de Spaanse keuken, wordt het authentieke karakter van Dos versterkt. Dit restaurant staat dan ook synoniem voor de traditionele Spaanse keuken met gebruik van goede en eerlijke ingrediënten, bereid op een simpele en smaakvolle wijze.

370862932_1664011317414313_2153678134155894104_n
362099727_235733052148717_1962555790629958447_n
15
Adres
Boomstraat 41A,
1015 LB Amsterdam

Café R. De Rosa

Eindelijk kunnen we aanschuiven bij Café R. De Rosa, gelegen in de Jordaan tussen de Westerstraat en de Lindengracht. Deze charmante hoekzaak wordt gerund door de ervaren Floris (bekend van restaurant VRR) en mede-eigenaar Marieke (Chateau Amsterdam). Bij Café R. De Rosa vind je goede kwaliteit zonder de hoge prijzen. Filterkoffie met melk, tap-chardonnay en heerlijke barhappen zoals ingelegde artisjokken en zelfgemaakte ei-mayonaise. De keuze is bewust beperkt en bij elke bestelling krijg je water en maïsnootjes.

361918206_239911348927037_426215727825515003_n
372800321_317823594101483_3189312280135650856_n
16
Adres
Westerstraat 86,
1015 MN Amsterdam

Sins of Sal

Bij Sins of Sal wijkt de keuken af van de authentieke Latijns-Amerikaanse stijl van Salmuera. Het menu omarmt streetfood met onder andere de Heretic Hamburger, met huancaina-kaassalsa en de Molleja (zwezerik) Tostadas. In tegenstelling tot Salmuera, waar de nadruk ligt op familiediners of romantisch kaarslicht, is Sins of Sal gedurfd en zondig. Kaarsvet druipt van de kandelaren, betonlook muren en rode tl-buizen sieren het interieur.

Schermafbeelding 2022-09-27 om 13.29.54
17
Adres
Westerstraat 40H,
1015 MK Amsterdam

Hinata

Hinata is een populair ramen restaurant midden in de Jordaan. De chef-kok is opgeleid als een traditional Soba meester. Ze mengen de traditionele Japanse soba-techniek in ramen om niet alleen een authentieke, maar ook een unieke en onderscheidende smaak te creëren. Hinata specialiseert zich in Shoyu, Miso en vegan ramen en ze maken hun eigen bouillon en noodles. 

 

IMG_0917-scaled-e1581387393137
18
Adres
Noordermarkt 34,
1015 NA Amsterdam

Café Hegeraad

Café Hegeraad was tot begin 20e eeuw een klein café met een aansluitend woonhuis. Later zijn de glazen tussendeuren weggehaald. Het is een gezellige bar met typisch Hollandse keuken, koffie en zoete lekkernijen.

441602528_1254855125493335_5971456061780795851_n
19
Adres
Lindengracht 31,
1015 KB Amsterdam

Enté

Een combinatie van een bruine kroeg en een restaurant. Dat was het uitgangspunt van Natalie Kouwen en Tim Werners.  Chef Joris van Dijk (o.a. voorheen Rijsel) kookt hier geen gemiddelde daghap maar eerder culinair comfortfood. Binnen of buiten aan de Lindegracht middenin de Jordaan eert je hier bijvoorbeeld en onder andere zelfgedraaide braadworst met piccalilly, knolselderij met salsa verde of een gebraiseerde konijnenpoot.

appeltaart-1
20
Adres
Noordermarkt 43,
1015 NA Amsterdam

Winkel 43

Je kunt hier van ’s ochtends vroeg tot ’s avonds laat, in de zomer en in de winter terecht. Je kunt genieten van de beroemde appeltaart op het heerlijk zonnige terras of een lekker broodje kiezen van de lunchkaart. Ook ’s avonds kun je terecht voor iets te eten of een borrel. De kaart is niet ingewikkeld, maar lekker en niet duur. Het zit in het midden van de Jordaan en is een perfecte plek om lekker mensen te kijken. Omdat Winkel 43 zo beroemd is vanwege zijn appeltaarten trekt het natuurlijk toeristen maar ook lokale bewoners komen hier maar al te graag omdat het zo ongelofelijk lekker is. Niet te missen!

170048820_833091807392145_1141200956224978229_n
21
Adres
Westerstraat 136,
1015 MP Amsterdam

Hummus Bistro D&A

Hummus Bistro D&A is opgezet door twee Israëlische vrouwen. Je kan er de hele dag door genieten van heerlijke gerechten. Begin je dag met shakshuka voor ontbijt, smul van traditionele hummus met verschillende toppings tijdens de lunch en proef vlees- of vegetarische gerechten bij het diner. Alles is mogelijk en kan de hele dag worden besteld. De traditionele hummus wordt geserveerd met pitabrood, salade en zuur, maar je kunt ook kiezen voor toppings zoals geroosterde groenten of langzaam gegaard vlees en verse kruiden.

cafenol-amsterdam-huikamer
22
Adres
Westerstraat 109,
1015 LX Amsterdam

Café Nol

Een echt familiebedrijf en een authentiek Amsterdams café. Gelegen aan de Westerstraat in de gezellige buurt de Jordaan is het café niet te missen: de rode luifels zijn op een grote afstand al zichtbaar. Ook van binnen is alles rood en oer-Amsterdams. Barkrukken van leer, kanten gordijntjes voor de ramen, kroonluchters en oude foto’s aan de muren maken Café Nol iconisch. De tijd lijkt hier stil te staan; zodra je naar binnen gaat bevind je je in het Amsterdam van 1966 (toen opende dit café voor het eerst haar deuren). Ben je op zoek naar Amsterdamse gezelligheid, dan ben je bij Café Nol aan het goede adres.

Kunst & cultuur
485A9340-2048×1446-1-1024×723
23
Adres
Lindengracht 148,
1015 KK Amsterdam

Kersgallery

In de Kersgallery vind je twee stromen moderne hedendaagse kunstwerken. Enerzijds kunstenaars die het theatrale en absurde van het dagelijks leven weergeven en anderzijds kunstenaars die middels abstract-impressionisme de natuur in al haar wonderbaarlijkheid laten zien. Voor Annelien Kers zijn veel kleur en een levendige sfeer de stuwende krachten achter de kunstwerken die in de Kersgallery worden tentoongesteld.

Gevel+Kahmann+Gallery+2019
24
Adres
Lindengracht 35,
1015 KB Amsterdam

Kahmann Gallery

De Kahmann gallery aan de Lindengracht is de plek voor de fotografieliefhebber. Het tentoonstellingsprogramma van de galerie is een mix van vintage en hedendaagse fotografie en ze vertegenwoordigen het werk van bijna 30 nationaal en internationaal gerenommeerde fotografen. Daarnaast organiseren ze de fotografiebeurs Haute Photographie, dat jaarlijks plaatsvindt in februari in Rotterdam en in september in Amsterdam.

Pianola-met-rol-scaled
25
Adres
Westerstraat 106,
1015 MN Amsterdam

Geelvinck Pianola Museum

Midden in de Jordaan ligt een uniek museum, namelijk het kleine Geelvinck Pianola museum. Voor eenieder die geen idee heeft wat de -la achter piano doet: het is de verzamelnaam voor alle automatisch spelende piano’s. Het archief van het museum heeft meer dan 30.000 rollen en deze kunnen allemaal afgespeeld worden op verschillende soorten muziekinstrumenten. Het museum legt uit wat deze pianorollen zijn, hoe deze worden gemaakt en wie er vooral gebruik van maakt. Daarnaast is het museum ook te gebruiken om een zaal voor 50 man te huren en worden er regelmatig concerten gehouden waar online kaartjes voor kunnen worden gekocht.

Buurtgids (rondom) het Willemspark

Buurtgids (rondom) het Willemspark

Uitgelicht; Pakhuis ‘De Drieharingen’

Uitgelicht; Pakhuis ‘De Drieharingen’

Samengesteld; slim ingedeelde appartementen met het comfort van een suite.

Samengesteld; slim ingedeelde appartementen met het comfort van een suite.

Onlangs bekeken
Bekijk het overzicht

Deze site maakt gebruik van cookies.

Voor welke cookies geef je akkoord?