The Modern Townhouse aan de George Gershwinlaan biedt een unieke woonervaring in het internationaal georiënteerde Zuidas-gebied. Met circa 242 m² woonoppervlakte, drie woonlagen, een voor- en achtertuin, een eigen entree aan een autovrije straat en twee privé parkeerplaatsen, combineert deze woning ruimte, comfort en privacy midden in de stad.
Uniek is de vergunning voor een extra woonlaag van circa 51 m², waarmee de gebruiksoppervlakte kan worden uitgebreid tot circa 293 m². The Modern Townhouse is modern wonen in het groen, op een toplocatie in de dynamische Zuidas.

Rondleiding
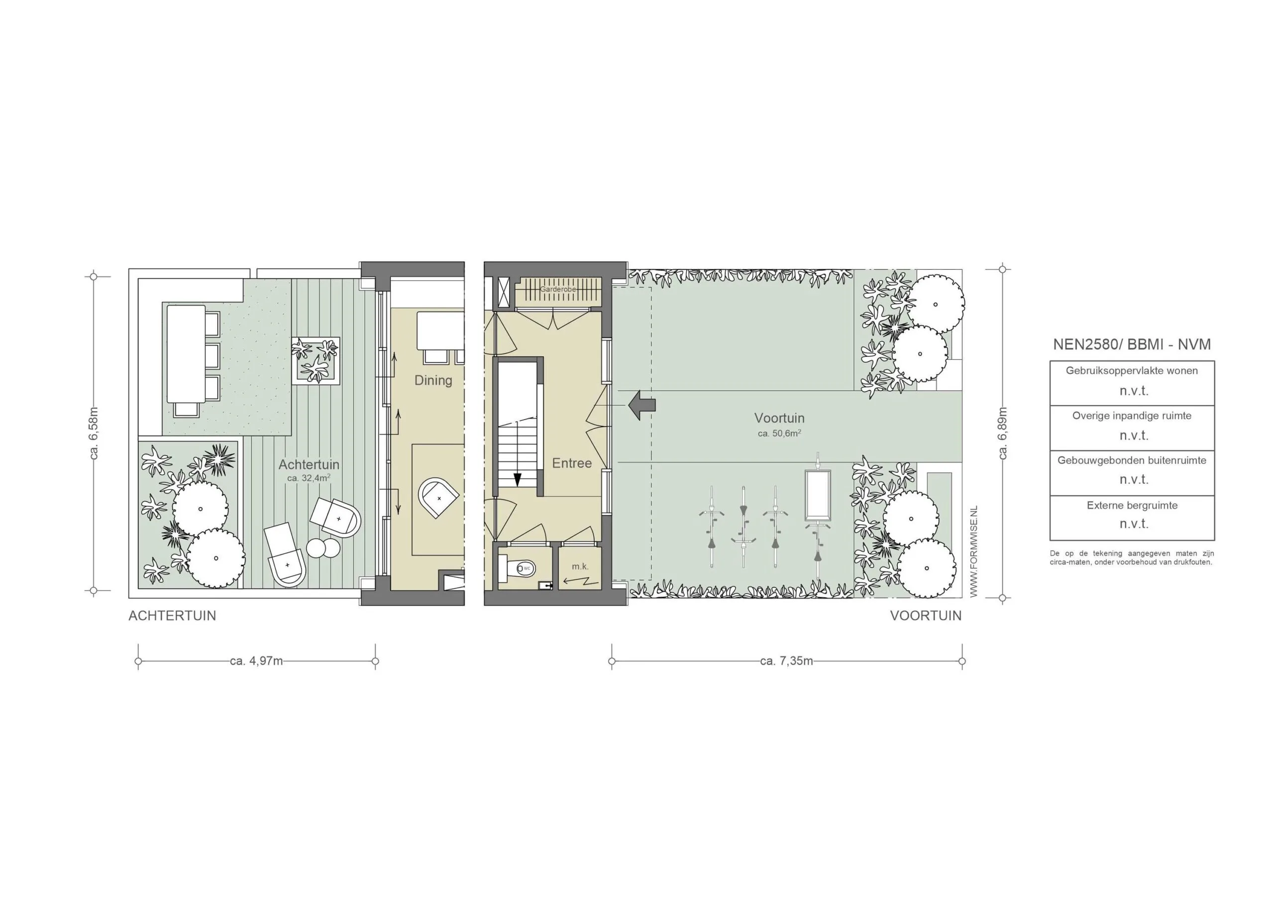
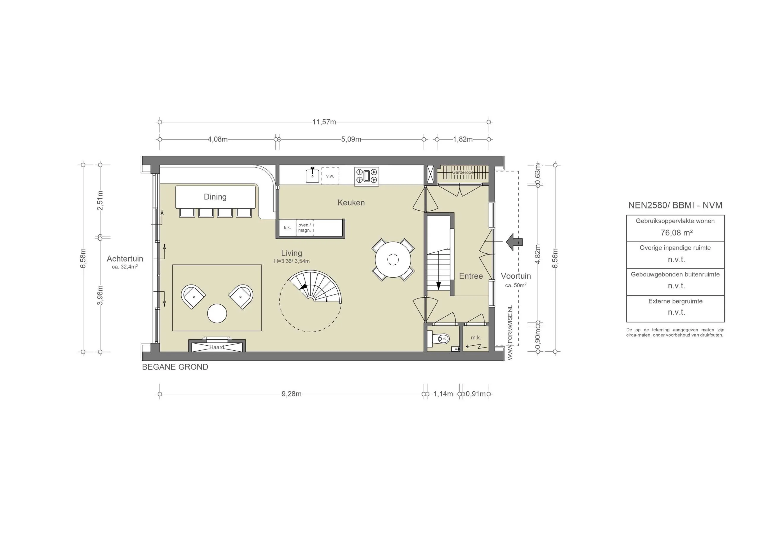
Via de groene, beschutte voortuin betreed je deze townhouse, waar binnen direct de ruimtelijkheid voelbaar is. De royale hal leidt langs garderobe en gastentoilet naar de riante woonkeuken, badend in licht en ontworpen als het hart van het huis. Grote glaspartijen verbinden de eetkamer met de tuin, terwijl de plafondhoogte van ruim drieënhalve meter zorgt voor een ongekende openheid. Centraal in de woning slingert een sculpturale trap omhoog, bekroond met een daklicht dat het daglicht door alle verdiepingen laat stromen.
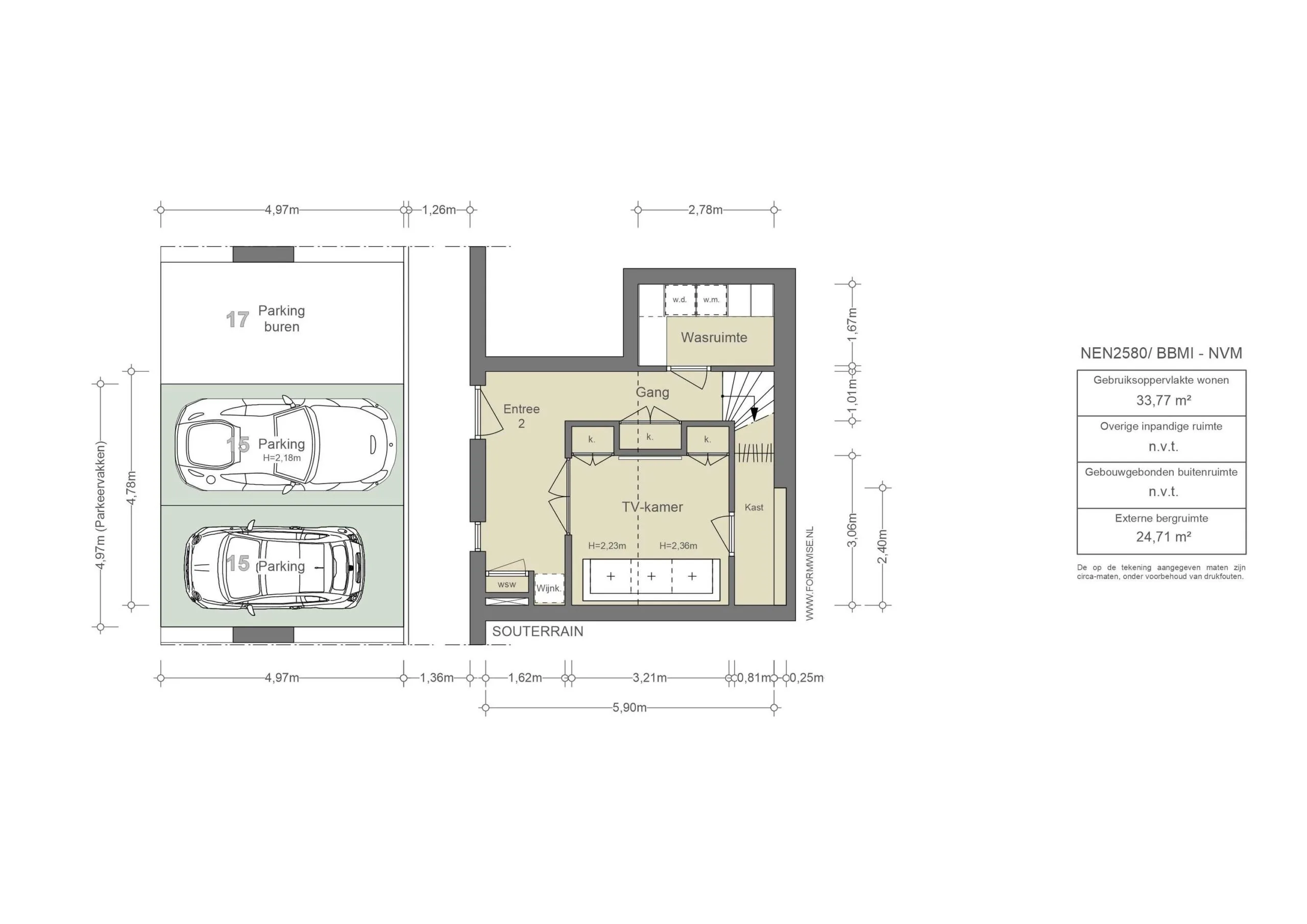
In het souterrain bevinden zich twee privéparkeerplaatsen met een tweede entree, aangevuld met een multifunctionele ruimte, wasvoorzieningen en volop bergruimte. Op de slaapverdieping vormt de royale badkamer met vrijstaand bad het middelpunt, geflankeerd door maatwerk kasten en een comfortabele hoofdslaapkamer met balkon. Extra kamers beschikken over eigen sanitaire voorzieningen, waardoor rust en privacy vanzelfsprekend zijn.
Buiten wordt het gevoel van ruimte voortgezet. De tuin is volwassen aangelegd, biedt privacy en ligt gunstig voor de middag- en avondzon. De woning ligt aan een doodlopende straat met een groene binnenplaats en water aan de rand, waardoor het hier verrassend rustig woont. Tegelijkertijd bevinden parken, sportvelden en de Amstel zich op korte fietsafstand, met de stad altijd binnen handbereik.

Buitenruimte
Aan de voorzijde ligt een fraai aangelegde tuin met volwassen beplanting, direct grenzend aan de groene, besloten binnenplaats. De achtertuin, gericht op het westen, biedt in de middag en avond volop zon, privacy en groen. De voortuin biedt plaats voor een zitje, terwijl de achtertuin vloeiend overloopt in de leefruimte. De ligging aan een doodlopende straat zonder doorgaand verkeer zorgt voor een opmerkelijk rustige woonomgeving.

Buurtgids
De Zuidas ontwikkelt zich als een levendig stadsdeel waar wonen, werken en ontspannen samenkomen. Op steenworp afstand bevinden zich restaurants als Nela en George, een bioscoop (The Pulse), boutique fitnessstudio’s, sportvelden en padelbanen. Voor boodschappen zijn er supermarkten en speciaalzaken binnen loopafstand. De Beethovenstraat ligt op vijf minuten, net als de Zuidas Market, met wekelijks verse producten. Voor gezinnen biedt de wijk kindvriendelijke voorzieningen, zoals kinderopvang en scholen, en voor ontspanning liggen het Amsterdamse Bos, het Beatrixpark en de Amstel op korte fietsafstand.

Bijzonderheden
• Gebruiksoppervlakte wonen 242 m²
• Achtertuin van circa 33 m², gelegen op het westen
• Voortuin van circa 50 m², gelegen op het oosten
• Twee balkons gelegen op het oosten
• Perceeloppervlak: circa 130 m²
• Erfpachtcanon is eeuwigdurend afgekocht AB2016
• Uitbreidingsmogelijkheid: vergunning verleend voor extra verdieping van ca. 51 m² (totaal 293 m²)
• Energielabel: A
• Sculpturale trap, hoogwaardige afwerking, veel licht en ruimte
• Parkeren: Twee privé parkeerplaatsen in ondergelegen parkeergarage

AM105643-2101705-George-Gershwinlaan-15,-Amsterdam-247462364

Modern wonen met allure in het hart van de Zuidas
The Modern Townhouse aan de George Gershwinlaan biedt een unieke woonervaring binnen het dynamische en internationaal georiënteerde Zuidas-gebied. Met circa 242 m² woonoppervlakte, een voor- en achtertuin, een eigen entree aan een autovrije straat en twee privé parkeerplaatsen, is dit een woning van uitzonderlijke klasse. Groots wonen met de luxe van privacy, ruimte en comfort, en dat midden in de stad. Uniek is ook de verleende vergunning voor een extra woonlaag van circa 51 m², waarmee het gebruiksoppervlakte wonen uitbreidbaar is naar maar liefst circa 293 m².


Daniël de Bont | Makelaar Broersma Wonen
Kees Kemp | Makelaar Broersma Wonen
AM105643-2101705-George-Gershwinlaan-15,-Amsterdam-247462338
Architectuur

De Gershwin Townhouses zijn ontworpen door architectenbureau Claus & Kaan en kenmerken zich door een tijdloze, stedelijke elegantie. De witmarmeren gevels, RVS kliklijsten en houten accenten zorgen voor een verfijnde uitstraling. De zes woningen in dit ensemble zijn ieder uniek, met een eigen karakter en indeling. Aan de voorzijde ligt een rustige, groene gemeenschappelijke binnenplaats waaraan de privé voortuinen grenzen. Hier is bewust gekozen voor oriëntatie op de middag- en avondzon. Binnen wachten drie verdiepingen aan ruimtelijkheid, rust en daglicht, een zeldzaam concept voor de Zuidas.

AM105643-2101705-George-Gershwinlaan-15,-Amsterdam-247462284
AM105643-2101705-George-Gershwinlaan-15,-Amsterdam-252009896
AM105643-2101705-George-Gershwinlaan-15,-Amsterdam-252009902
AM105643-2101705-George-Gershwinlaan-15,-Amsterdam-252009932
Wonen en koken

Via de groene voortuin betreed je de woning. De ontvangsthal met garderobe en gastentoilet leidt naar de indrukwekkende leefverdieping. Hier bevindt zich een royale, open woonkeuken, uitgevoerd in een stijlvol en hoogwaardig design met apparatuur van onder andere Viking, Gaggenau en V-Zug. De eettafel grenst aan de achtertuin, waar de enorme glaspuien en de plafondhoogte van ruim 3,5 meter zorgen voor licht en lucht. Tegenover het eetgedeelte is een gezellige zithoek met haard. In het hart van de woning vormt de sculpturale trap, een architectonisch statement, de verbindende spil tussen de verdiepingen, bekroond met een daklicht dat daglicht door alle lagen laat stromen. Op de eerste verdieping is de sfeervolle woonkamer. De ruimte is prettige licht door de hoge plafonds en grote raampartijen. De fraaie inbouwkasten en haard geven de ruimte sfeer en geborgenheid.

Het souterrain biedt directe toegang tot de parkeergarage met twee privé parkeerplaatsen. Daarnaast is er hier een multifunctionele ruimte ingericht als tv-, werk- of speelkamer, een bijkeuken met wasruimte, berging, en een extra kamer, ideaal voor logees, hobby of studie.

AM105643-2101705-George-Gershwinlaan-15,-Amsterdam-252009912
AM105643-2101705-George-Gershwinlaan-15,-Amsterdam-252009854
AM105643-2101705-George-Gershwinlaan-15,-Amsterdam-252009920
AM105643-2101705-George-Gershwinlaan-15,-Amsterdam-252009924
AM105643-2101705-George-Gershwinlaan-15,-Amsterdam-252009764
AM105643-2101705-George-Gershwinlaan-15,-Amsterdam-262914184
AM105643-2101705-George-Gershwinlaan-15,-Amsterdam-262914214
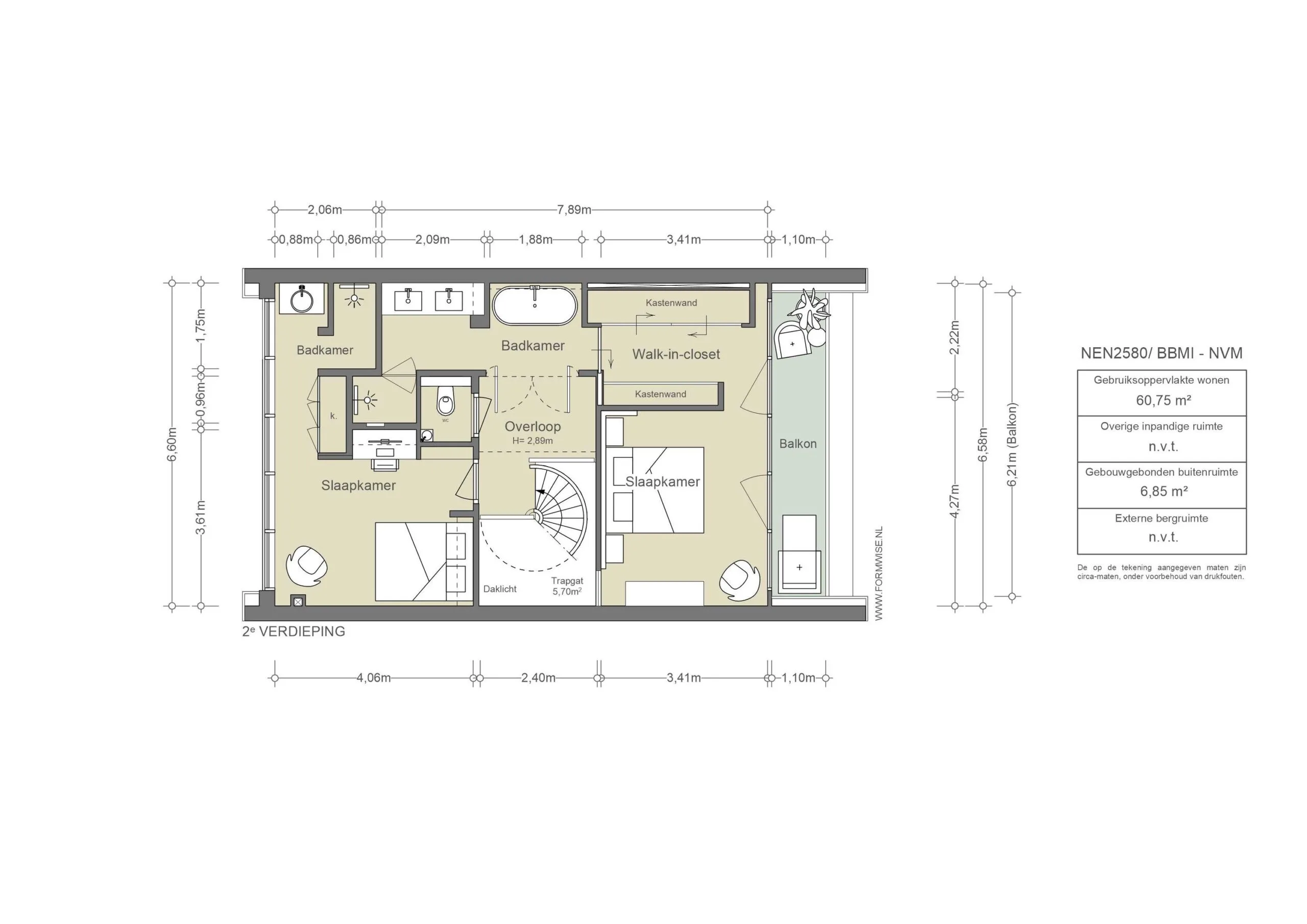
Slapen en baden

Op de eerste verdieping een ruime slaapkamer met op maat gemaakte kasten en bureau. De en suite badkamer is voorzien van douche en wastafel. Op de bovenste woonlaag biedt de woning een main bedroom met eigen balkon, en suite kleedkamer en een luxe badkamer met vrijstaand bad, travertin wandafwerking, dubbele wastafel en inloopdouche. Een derde slaapkamer beschikt eveneens over een eigen badkamer met douche en wastafel, en is voorzien van maatwerk bureau en kastruimte. Een separaat toilet bevindt zich op de overloop. De ruimtes zijn stuk voor stuk ontworpen met oog voor comfort, functionaliteit en rust.

AM105643-2101705-George-Gershwinlaan-15,-Amsterdam-252009770
AM105643-2101705-George-Gershwinlaan-15,-Amsterdam-252009796
AM105643-2101705-George-Gershwinlaan-15,-Amsterdam-252009786
AM105643-2101705-George-Gershwinlaan-15,-Amsterdam-252009778
AM105643-2101705-George-Gershwinlaan-15,-Amsterdam-247462430
AM105643-2101705-George-Gershwinlaan-15,-Amsterdam-247462382
AM105643-2101705-George-Gershwinlaan-15,-Amsterdam-247462402
De buitenruimtes

Aan de voorzijde ligt een fraai aangelegde tuin met volwassen beplanting, direct grenzend aan de groene, besloten binnenplaats. De achtertuin, gericht op het westen, biedt in de middag en avond volop zon, privacy en groen. De voortuin biedt plaats voor een zitje, terwijl de achtertuin vloeiend overloopt in de leefruimte. De ligging aan een doodlopende straat zonder doorgaand verkeer zorgt voor een opmerkelijk rustige woonomgeving.

AM105643-2101705-George-Gershwinlaan-15,-Amsterdam-252009862
AM105643-2101705-George-Gershwinlaan-15,-Amsterdam-252009928
AM105643-2101705-George-Gershwinlaan-15,-Amsterdam-247462444
AM105643-2101705-George-Gershwinlaan-15,-Amsterdam-247462484
AM105643-2101705-George-Gershwinlaan-15,-Amsterdam-247462466
Buurtgids

De Zuidas ontwikkelt zich als een levendig stadsdeel waar wonen, werken en ontspannen samenkomen. Op steenworp afstand bevinden zich restaurants als Nela en George, een bioscoop (The Pulse), boutique fitnessstudio’s, sportvelden en padelbanen. Voor boodschappen zijn er supermarkten en speciaalzaken binnen loopafstand. De Beethovenstraat ligt op vijf minuten, net als de Zuidas Market, met wekelijks verse producten. Voor gezinnen biedt de wijk kindvriendelijke voorzieningen, zoals kinderopvang en scholen, en voor ontspanning liggen het Amsterdamse Bos, het Beatrixpark en de Amstel op korte fietsafstand.

Bereikbaarheid
De woning ligt op een absolute toplocatie, met uitstekende bereikbaarheid per fiets, auto en openbaar vervoer. Station Zuid ligt op loopafstand en biedt toegang tot metro, tram, trein en HSL. De Ring A10 is binnen enkele minuten te bereiken. Ook Schiphol ligt op minder dan 10 minuten per trein of auto. Toekomstige uitbreidingen, zoals het dokmodel van de A10 en de modernisering van station Zuid, versterken deze bereikbaarheid nog verder.

Parkeren
De woning beschikt over twee privé parkeerplaatsen in de ondergelegen parkeergarage, direct bereikbaar via het souterrain. Let op: het aanvragen van een parkeervergunning voor de openbare weg is op dit adres niet mogelijk.

AM105643-2101705-George-Gershwinlaan-15,-Amsterdam-247462308
AM105643-2101705-George-Gershwinlaan-15,-Amsterdam-252009814
AM105643-2101705-George-Gershwinlaan-15,-Amsterdam-252009904
AM105643-2101705-George-Gershwinlaan-15,-Amsterdam-252009910
Kenmerken
George Gershwinlaan 15, Amsterdam
Vraagprijs
  • € 4.000.000 k.k.
Beschikbaarheid
  • In overleg
Vertrekken
  • 7 kamers
  • 3 slaapkamers
  • 3 badkamers
Onderhoud
  • Intern: Uitstekend
  • Extern: Uitstekend
Oppervlakten & Inhoud
  • Woonoppervlakte: 242 m²
  • Gebouwgebonden buitenruimte: 12 m²
  • Externe bergruimte: 25 m²
  • Perceeloppervlakte: 181 m²
Bouwjaar
  • 2017
Installaties
  • Mechanische ventilatie
  • Natuurlijke ventilatie
  • Rolluiken
  • Rookkanaal
Ligging
  • In woonwijk
Parkeren
  • Betaald parkeren
  • Openbaar parkeren
  • Inpandig
  • Parkeerkelder
Type verwarming
  • CV Ketel
  • Vloerverwarming geheel
Type warmwater
  • CV Ketel
Bestemming
  • Woonruimte
Eigendomssoort
  • Eigendom belast met erfpacht
Buitenruimte
  • Achtertuin
  • Voortuin
  • Balkon
Kadastraal
  • Gemeente: Amsterdam
  • Sectie: Ak
  • Nummer: 4837
Duurzaamheid
  • Volledig geisoleerd
  • Energielabel A
Soort
  • Eengezinswoning
  • Tussenwoning
  • Woonhuis
Overige kenmerken
  • OZB ('25) € 1230,16 per jaar 
  • Rioolrecht ('26) € 192,04 per jaar
  • Erfpachtcanon is eeuwigdurend afgekocht AB2016 
  • Gebruiksoppervlakte wonen: circa 242 m²
  • Tuin: circa 33 m², gelegen op het westen
  • Perceeloppervlak: circa 130 m²
  • Uitbreidingsmogelijkheid: vergunning verleend voor extra verdieping van ca. 51 m² (totaal 293 m²)
  • Energielabel: A
  • Sculpturale trap, hoogwaardige afwerking, veel licht en ruimte
  • Parkeren: Twee privé parkeerplaatsen in ondergelegen parkeergarage
  • Buitenruimte: Voor- en achtertuin, balkon
Plattegrond
George Gershwinlaan 15, Amsterdam
AM105643-2101705-George-Gershwinlaan-15,-Amsterdam-244414272
AM105643-2101705-George-Gershwinlaan-15,-Amsterdam-244414276
AM105643-2101705-George-Gershwinlaan-15,-Amsterdam-244414274
AM105643-2101705-George-Gershwinlaan-15,-Amsterdam-244414278
AM105643-2101705-George-Gershwinlaan-15,-Amsterdam-244414280
AM105643-2101705-George-Gershwinlaan-15,-Amsterdam-261052202
Documenten
George Gershwinlaan 15, Amsterdam
Locatie
George Gershwinlaan 15, Amsterdam
Eten & drinken
366937812_17933803049710351_8213912525779000332_n
367438354_17933803034710351_539942877662656212_n
370936688_17935908203710351_8346539429364568324_n
01
Adres
Beethovenstraat 515,
1083 HK Amsterdam

Nela

Bij Nela vieren ze de samensmelting van live vuur koken met hoogwaardige en zorgvuldig geselecteerde ingrediënten. Ze halen en selecteren seizoensgebonden producten van gespecialiseerde partners.  Het open vuur is het perfecte gereedschap voor de chefkoks om warmte en temperatuur te gebruiken om ongelooflijke texturen en smaken te creëren. Nela is bedacht door toonaangevende chefs Hari Shetty en Ori Geller, die twee decennia ervaring hebben op het internationale podium. Na jarenlang te hebben gewerkt voor toprestaurants zoals Nobu (Londen), Yaffo-Tel Aviv, Izakaya, The Duchess en Mr. Porter (Amsterdam), bundelden ze hun krachten met de innovatieve internationale ondernemer Gilad Hayeem (Waverly Group). Samen brachten Hari, Ori en Gilad hun gedeelde visie en creativiteit tot leven door Nela op te richten.

Interieur_Zuidas_24-12-2018-scaled
02
Adres
Parnassusweg 1021,
1082 LZ Amsterdam

Café Loetje Zuid As

In 1977 werd café Loetje opgericht als biljartcafé door Ludwig 'Loetje' Klinkhamer, maar het duurde niet lang voor men het biljart inruilde voor de ossenhaasbiefstuk die werd geserveerd. Meer dan veertig jaar later is Loetje een gigantische keten en is het oorspronkelijke 'Café' een begrip in Amsterdam. De smakelijke biefstuk wordt geserveerd met huisgemaakte frietjes en zwemt in verse jus - om je vingers bij af te likken!

03
Adres
Parnassusweg 400,
1081 LD Amsterdam

Vascobelo Parnassusweg

Vascobelo ontstond in 1998 in Antwerpen vanuit de familiepassie van Marc De Roeck, die opgroeide met vers gebrande koffie van zijn vader. De kracht ligt in de combinatie van Belgische koffiecultuur, langzaam gebrande blends en een herkenbare, ambachtelijke signatuur waarin kwaliteit en beleving centraal staan.

04
Adres
Gelrestraat 28,
1079 MZ Amsterdam

Restaurant Showw (*)

Eigenaren Lendl Mijnhijmer (sommelier en restaurant manager) en Dorus Floris, executive chef, voorheen Bougainville (*) openden hun eigen fine dining restaurant aan de kop van de Zuidas. Naast een 6 gangen menu is er ook de mogelijkheid om a la carte te eten. Hier wordt op hoog niveau gekookt en de uitstekende wijnkaart bevat maar liefst 750 wijnen. In 2024 ontving Showw een Michelinster, waarbij Lendl Mijnhijmer tevens werd bekroond met de Michelin Sommelier Award voor zijn uitmuntende wijnadviezen en combinaties. Het menu varieert van een 5- tot 6-gangendiner, met gerechten zoals langoustine met aardpeer, curry en koffie, en tarbot met risotto, paprika en XO-saus.

87063095_139858640829594_2768792685031456768_n
05
Adres
Buitenveldertselaan 114,
1081 AB Amsterdam

China Supreme

China Supreme is een must-visit voor liefhebbers van Chinees streetfood en comfort food. Het populairste gerecht op de kaart zijn de jianbingcrêpes, die gevuld worden met onder andere ei, pittige olie en lente-ui, garnalen of eend. Verder biedt de kaart heerlijke wontons, gyozas en de specialiteit biangbiang noedels. De perfecte plek om de authentieke Chinese smaken te ontdekken.

144252327_1117059068733866_113518853239563698_n
06
Adres
Buitenveldertselaan 158A,
1081 AB Amsterdam

Wagyu Yakiniku Kanata

Wagyu Yakiniku Kanata restaurant is een plek waar je kan genieten van rundvlees van de hoogste kwaliteit. Bij Kanata vind je een traditionele ingebouwde Japanse barbecue aan tafel, waar je zelf je Wagyu vlees en groenten grilt. De Wagyu die ze serveren komt uit Japan en is beoordeeld met een A5 (dat is de hoogte score). Daarbij hebben ze ook Wagyu van boerderijen uit Spanje die al tientallen jaren ervaring hebben met het fokken van hoogwaardige Wagyu.

Hakata-Senpachi-dsc_0680-4000PX-1024×683
07
Adres
Wielingenstraat 16,
1078 KK Amsterdam

Hakata Senpachi

Prachtig Japans eten en de lekkerste saké's; dat is Hakata Senpachi. Dit restaurant aan de Wielingenstraat bestaat al langer dan 20 jaar en heeft in al die jaren altijd haar autentieke japanse sfeer behouden. De manier waarop restaurant is ontworpen doet het lijken op een echt Japans restaurant in de steegjes van Tokyo. Hakanta Senpachi is als Yakitori-ya - gespecialiseerd in het maken van gegrilde kipspiesjes, die in Japans Yakitori worden genoemd. De spiesen worden gegrild via traditionele kookwijzen op de houtskool grill. Deze grill staat overigens in het midden van het restaurant waardoor de ruimte altijd volhangt met de lekkerste aroma's.

downloadgram.org_559642553_122125719002959277_149688819253188505_n
08
Adres
Europaplein 67,
1078 GW Amsterdam

Toet Amsterdam

Toet is het mediterraan georiënteerde restaurant van het team achter Troef, dat met deze tweede zaak een eigen draai geeft aan mediterrane en Italiaanse smaken in Zuid-Amsterdam. De eigenaren — waaronder Niels Leijssenaar, Roderick Kunst, Willem Alberts en Raymond Plat — brengen dezelfde kwaliteit en gastvrijheid als hun Troef-concept, maar dan met frisse, mediterraanse invloeden op de kaart. Je vindt hier gerechten zoals kreeft met gnocchi of pizzeta met ’nduja en rivierkreeft, die de rijke smaken van de Middellandse Zee reflecteren.

316696614_701301834540671_3708281314260770335_n
144520165_409011853732573_3822562762173474371_n
09
Adres
Europaplein 87,
1078 GZ Amsterdam

Scandinavian Embassy

Hier wordt ervaring en interesse in Scandinavisch eten en duurzaamheid geboden. Bij de Embassy traceren ze kleine, niche-leveranciers en gaan mee met de seizoenswisselingen van producten. De keuken biedt menu's voor een betaalbare prijs waarbij de gezonde en milieuvriendelijke wortels van de Scandinavische keuken behouden blijven. Bijzonder is dat ze ook koffie met eten combineren , waardoor, volgens hun zeggen, de algehele culinaire ervaring verbeterd wordt. Dit is hun tweede locatie. De ander locatie is in de Pijp gevestigd.

175682_10152206008775179_210428518_o
10
Adres
Scheldeplein 22,
1072 GJ Amsterdam

Pisa IJs

Bij deze bescheiden ijswinkel bij Amsterdam RAI ben je aan het goede adres voor heerlijk Italiaans ijs. Sinds 1935 kun je hier terecht voor ambachtelijk ijs in meer dan 60 verschillende (wisselende) smaken per seizoen. Samen met ijswinkel Venetië ietsje verderop zijn deze twee ijswinkels dé plekken om goed schepijs in Amsterdam-Zuid te halen, vandaar ook de lange rijen in de zomer, maar het wachten waard en het gaat snel!

11
Adres
Olympiaplein 111,
1077 CV Amsterdam

The Coffee District

Eigenaren Adil Loukane en Rosa Loukane begonnen met een hole-in-the-wall coffeeshop in een modewinkel in Zuid. Toen de winkel de deuren sloot, grepen Adil en Rosa hun kans en besloten om hun eigen koffiebar te openen. Inmiddels hebben ze meerdere locaties. De koffie wordt gemaakt met een eigen melange gebrand door Lot Sixty One. Daarnaast worden er zoetigheden aangeboden zoals de inmiddelsal bekende kaneelbroodjes en bananenbrood.

Boodschappen
12
Adres
Gelderlandplein 187,
1082 LW Amsterdam

Shilia Supermarkets

Een Japanse en Koreaanse foodmarkt. Gevestigd op het Gelderlandplein. Oorspronkelijk opende ze deze winkel om mensen uit Japan en Korea zich weer een beetje thuis te laten voelen, maar inmiddels weet iedereen deze foodmarkt te vinden. Authentiek, goed eten, als je Aziatisch wilt gaan koken is dit de plek.

13
Adres
Kastelenstraat 262-264,
1082 EJ Amsterdam

Atariya

Naast importeur en distributie van Japanse producten heeft dit bedrijf ook een winkel in Amsterdam. Hier vind je een geweldig en uitgebreid assortiment aan Japanse etenswaar producten. Het is ook mogelijk om eten af te halen. De winkel heeft een kleine keuken waarin elke ochtend verse maaltijden worden bereid.

Mordechai-Mouwes-kastelenstraat-sept2009
14
Adres
Kastelenstraat 261,
1082 EG Amsterdam

Mouwes

Mouwes Koshere Delicatessen is al meer dan 200 jaar het adres voor alle koshere producten. Of je komt voor je dagelijkse boodschappen of  je zoekt iets speciaals , zij hebben het allemaal. Van brood, kaas en vlees tot Israelische specialiteiten.  Je kan er ook terecht voor broodjes of soms gerechten zoals Sefardische kip met couscous.

15
Adres
Buitenveldertselaan 166,
1081 AC Amsterdam

Slagerij Hergo

Slagerij Hergo is de vleesspecialist in Amsterdam. Al in 1930 begon de heer Cantor, een Duitse worstmaker, samen met zijn vrouw die uit een Amsterdamse slagersfamilie kwam, zijn slagerij met typische Duitse worstspecialiteiten. Met het motto ‘De slager met ’n koksmuts’ is Hergo uitgegroeid naar vier verschillende locaties en is zo tegenwoordig niet meer weg te denken uit het straatbeeld van Amsterdam. Met jachtworst, hausmacher, ossenworst, pekelvlees maar ook met een broodje filet americain onderscheidt Hergo zich als slagerij in het topsegment.

180912402_1910769552415460_9061827722288066926_n
16
Adres
Scheldeplein 20,
1078 GR Amsterdam

Sab’s Deli

Bij Sab’s Deli ligt de focus op echt lekker, maar net wat specialer dan normaal, en uiteraard waar mogelijk duurzame en lokale producten. Al deze dingen samen vormen het merk ‘Sab’s. Ze verzorgen ook complete caterings van thuisdiners tot heerlijke borrelhapjes. Gelegen vlak naast de drukke RAI in Amsterdam Zuid, kan je ook altijd als je net de trein uitstapt even binnenlopen en kijken wat de pot schaft. Het zal niet tegenvallen!

Schermafbeelding 2022-05-12 om 19.08.47
17
Adres
Olympiaplein 111,
1077 CV Amsterdam

L'Amuse

Volgens sommigen is dit de beste kaaswinkel van Nederland. Ze hebben een indrukwekkend breed assortiment van de lekkerste kazen. Ook heerlijke wijn, salami, ham en olijfolie is hier te koop. Je wordt uitstekend geholpen en de kaas is echt van een ander niveau. Aanrader!

18
Adres
Olympiaplein 119,
1077 CW Amsterdam

Le Fournil de Sébastien

Le Fournil is het initiatief van Susan en Sébastien, die na jaren bakkerservaring in Frankrijk in 2007 naar Nederland kwamen om een authentieke Franse boulangerie te openen. De kracht ligt in het ambachtelijke handwerk, zuurdesem en de bewuste keuze voor kleinschaligheid en pure, traditionele broodbereiding.

Kunst & cultuur
downloadgram.org_597897714_1508494480841935_8620457783605645660_n
19
Adres
Prinses Irenestraat 36,
1077 WX Amsterdam

De Thomas

De Thomas is een monumentale kerk aan de rand van de Zuidas waar religie en cultuur bewust samenkomen. Met een eigen theater, concerten en debatavonden is het een plek voor ontmoeting en verdieping, midden in het zakelijke hart van Amsterdam Zuid. Het gebouw geldt als een belangrijk voorbeeld van naoorlogse kerkarchitectuur in Nederland en is vormgegeven in een expressieve, brutalistische stijl.

20
Adres
Hildegard Von Bingenstraat 4,
1081 LH Amsterdam

Cinema The Pulse

Cinema The Pulse is een filmtheater in de plint van The Pulse of Amsterdam op de Zuidas, met een breed programma van arthouse, cult en actuele films. De kracht ligt in de combinatie van cinema, architectuur en ontmoeting, als stedelijke filmhub waar filmbeleving en metropolitane context samenkomen.

pati_F1A7803ssdweb
_F1A4074
21
Adres
Parnassusweg 220,
1076 AV Amsterdam

Diez Gallery

Diez is een Amsterdamse kunstgalerie met een internationale uitstraling, opgericht in 2022 door Diego Diez. De tentoonstellingen worden samengesteld in samenwerking met kunstenaars die affiniteit hebben met Diez's interesses en zullen zowel internationaal als nationaal talent presenteren in Amsterdam. Naast het tentoonstellingsprogramma streeft Diez ernaar een toegankelijke ruimte te zijn voor een breed publiek met diverse activiteiten en evenementen zoals poëzielezingen, samengestelde diners en kunstenaarsgesprekken.

22
Adres
De Boelelaan 1111,
1081 HV Amsterdam

VU ART SCIENCE gallery

De VU ART SCIENCE gallery is een universitaire galerie op de VU-campus waar kunst en wetenschap elkaar ontmoeten in tentoonstellingen en dialogen rond actuele thema’s. De kracht ligt in de multidisciplinaire uitwisseling tussen kunstenaars, onderzoekers en publiek, met een duidelijke focus op kennis, onderzoek en maatschappelijke vraagstukken.

23
Adres
De Boelelaan 1111,
1081 HV Amsterdam

Rialto VU

Rialto VU is de tweede locatie van het historische filmtheater Rialto (1921) en gevestigd op de VU-campus aan de Boelelaan. De kracht ligt in de combinatie van arthouse cinema, festivals en culturele programmering binnen een bredere culturele hub waar film, kunst en academie samenkomen.

24
Adres
Van der Boechorststraat 8,
1081 BT Amsterdam

De Botanische Tuin Zuidas

De Botanische Tuin Zuidas, ontstaan als universitaire hortus in 1967, is een verrassend groene oase midden op de VU-campus. Met duizenden plantensoorten, gespecialiseerde collecties en kronkelende paden vormt de tuin een rustige, bijna verborgen plek waar wetenschap, natuur en stedelijke dynamiek op een bijzondere manier samenkomen.

Uitgelicht; ‘Cromhouts Buiten’. Er zijn huizen die stil hun plek behouden in de stad — onverstoord door tijd, mode of beweging.

Uitgelicht; ‘Cromhouts Buiten’. Er zijn huizen die stil hun plek behouden in de stad — onverstoord door tijd, mode of beweging.

Kunstagenda april 2025

Kunstagenda april 2025

Uitgelicht; Een voormalige drukkerij in de Pijp

Uitgelicht; Een voormalige drukkerij in de Pijp

Onlangs bekeken
Bekijk het overzicht

Deze site maakt gebruik van cookies.

Voor welke cookies geef je akkoord?