Optimaal wooncomfort in een heerlijk licht en luxe hoekappartement van 112 m² met lift, hoge plafonds, een groot zonnig terras op het zuiden en uitzicht over het water. De woning heeft een goede indeling met drie slaapkamers, ruime woonkamer en mooie open keuken met kookeiland. De locatie is perfect. Een rustige en groene omgeving in Amsterdam-Zuid in de directe nabijheid van alle denkbare grootstedelijke voorzieningen. De ultieme combinatie van het beste van twee werelden. Te koop zowel met als zonder inpandige parkeerplaats met eigen oplaadpunt.

De woning is gelegen in het chique appartementencomplex “De Fred” uit 2017, ontworpen door Dam & Partners Architects met als thema urban chic en straalt rust, exclusiviteit en luxe uit. De groene en goed onderhouden binnentuin is voorzien van een fraaie langwerpige spiegelvijver, vlindertuin en zitelementen. Om deze binnentuin liggen de drie woonblokken gegroepeerd. De binnentuin, de glazen balkons, de fraaie lichte natuurstenen gevels en koperkleurige kozijnen en grote raampartijen, geven het geheel een mediterrane uitstraling en sfeer.

 

AM102467-76671-Fred.-Roeskestraat-92A6+PP,-Amsterdam-124885048

Indeling
Via de imposante centrale hoofdentree met dubbele hoogte, moderne kroonluchter en wit natuursteen bereikt u via de groene binnentuin met vijver uw eigen gebouw. De lift of het gemeenschappelijke trappenhuis geven toegang tot de woning op de tweede verdieping. Ook kan direct de lift worden genomen vanuit de eigen parkeerplaats of fietsenstalling naar de eigen verdieping.

AM102467-76671-Fred.-Roeskestraat-92A6+PP,-Amsterdam-124884833
Fred Roeskestraat 92 A6-17
Fred Roeskestraat 92 A6-2
Fred Roeskestraat 92 A6-4
Fred Roeskestraat 92 A6-16

Indeling
Via de imposante centrale hoofdentree met dubbele hoogte, moderne kroonluchter en wit natuursteen bereikt u via de groene binnentuin met vijver uw eigen gebouw. De lift of het gemeenschappelijke trappenhuis geven toegang tot de woning op de tweede verdieping. Ook kan direct de lift worden genomen vanuit de eigen parkeerplaats of fietsenstalling naar de eigen verdieping.

 

AM102467-76671-Fred.-Roeskestraat-92A6+PP,-Amsterdam-124884845

Er is een ruime centrale hal met een op maat gemaakte garderobe en toilet. Aan de voorzijde met uitzicht op de groene binnentuin bevinden zich de woonkamer met een ruim zitgedeelte en open keuken, voorzien van een kookeiland en diverse inbouwapparatuur zoals een Bora kookplaat, Quooker, (stoom)oven, oven/magnetron, grote koelkast, aparte vriezer en vaatwasser. Er is veel lichtinval door de grote ramen en de schuifpui naar het terras op het zuiden, waar de hele dag genoten kan worden van de zon.

AM102467-76671-Fred.-Roeskestraat-92A6+PP,-Amsterdam-124884888
AM102467-76671-Fred.-Roeskestraat-92A6+PP,-Amsterdam-124884883
AM102467-76671-Fred.-Roeskestraat-92A6+PP,-Amsterdam-124884863

“Het is heel rustig en comfortabel, van alle gemakken voorzien, licht en luxe.”

AM102467-76671-Fred.-Roeskestraat-92A6+PP,-Amsterdam-124884855
AM102467-76671-Fred.-Roeskestraat-92A6+PP,-Amsterdam-124884867
AM102467-76671-Fred.-Roeskestraat-92A6+PP,-Amsterdam-124884839
AM102467-76671-Fred.-Roeskestraat-92A6+PP,-Amsterdam-124884842

Aan de achterzijde van het appartement zijn twee ruime slaapkamers en een wat kleinere slaapkamer gesitueerd met voldoende ruimte voor een (thuis)werkplek. De slaapkamers hebben schitterend uitzicht over het Zuider Amstelkanaal met bomen en groen.

AM102467-76671-Fred.-Roeskestraat-92A6+PP,-Amsterdam-124884953
AM102467-76671-Fred.-Roeskestraat-92A6+PP,-Amsterdam-124884968
AM102467-76671-Fred.-Roeskestraat-92A6+PP,-Amsterdam-124884964
AM102467-76671-Fred.-Roeskestraat-92A6+PP,-Amsterdam-124884942
AM102467-76671-Fred.-Roeskestraat-92A6+PP,-Amsterdam-124884937

De luxe badkamer is voorzien van een dubbele wastafel met een op maat gemaakt badkamermeubel, ligbad, inloop (regen)douche en toilet. Ook is er een separaat toilet met fonteintje en een interne berging met veel opslagruimte en aansluitingen voor de wasmachine en droger.

Het hele appartement is voorzien van een mooie gietvloer met vloerverwarming en mechanische ventilatie. Aan de voorzijde van het appartement en bij de kleinste slaapkamer is elektrische zonwering aangebracht. Het is in de zomer heerlijk koel en in de winter lekker warm. Het appartement is volledig gasvrij, dus goed voorbereid op de toekomst.

AM102467-76671-Fred.-Roeskestraat-92A6+PP,-Amsterdam-124884978
AM102467-76671-Fred.-Roeskestraat-92A6+PP,-Amsterdam-124884989
AM102467-76671-Fred.-Roeskestraat-92A6+PP,-Amsterdam-124884983

In de onderbouw is een eigen separate berging van circa 5 m², een gemeenschappelijke fietsenstalling en een parkeerplaats met oplaadpunt van € 65.000,- k.k.

AM102467-76671-Fred.-Roeskestraat-92A6+PP,-Amsterdam-124885125

Het appartement is gelegen in de luwte van de Zuidas en tegenover de Stadionkade in Amsterdam-Zuid. Voor de dagelijkse boodschappen kunt u terecht op het Stadionplein en het Olympiaplein met bijvoorbeeld de ambachtelijke Franse bakker Le Fournil, kaaswinkel L’Amuse, Slagerij Zikking & Zoon, Marqt en Albert Heijn. In de directe omgeving zijn diverse leuke restaurants en cafés. Daarnaast liggen alle (internationale) scholen in Zuid op een steenworp afstand. De ligging van het appartement is ook ideaal ten opzichte van de kantoren op de Zuidas, dichtbij het winkelcentrum Groot Gelderlandplein en geliefde winkelstraten zoals de Beethovenstraat, de Cornelis Schuytstraat en de P.C. Hooftstraat.

De buurt is ook ideaal voor rust en recreatie. Hiervoor zijn naast de brede groene lanen ook het Amsterdamse Bos, het Vondelpark, het Park Schinkeleilanden en het Beatrixpark de ideale, dichtbij gelegen locaties. Ook het gezellige centrum van Amsterdam is op fietsafstand en met het openbaar vervoer goed bereikbaar.

Parkeergelegenheid
In de onderbouw is een eigen parkeerplaats met eigen oplaadpunt, ter waarde van € 65.000,- k.k.

Bereikbaarheid
De bereikbaarheid van deze locatie is zeer gunstig. Op loopafstand van Station Zuid en de omliggende kantoren. Directe verbinding naar de Ring A10 via afslag S108 (Olympisch Stadion), slechts 15 minuten rijden naar Schiphol. Maar ook een directe verbinding via metro 52 naar Zuid en Centrum tot in Noord.

AM102467-76671-Fred.-Roeskestraat-92A6+PP,-Amsterdam-125151971

“Het is heerlijk rustig en groen en toch overal dichtbij.”

AM102467-76671-Fred.-Roeskestraat-92A6+PP,-Amsterdam-124885088
AM102467-76671-Fred.-Roeskestraat-92A6+PP,-Amsterdam-124885117

"Wat we het meest gaan missen zijn de leuke en lieve buren en de lekkere zondagochtenden met koffie en krant met uitzicht over het Zuider Amstelkanaal, alsof we in de bomen zitten.”

Bijzonderheden
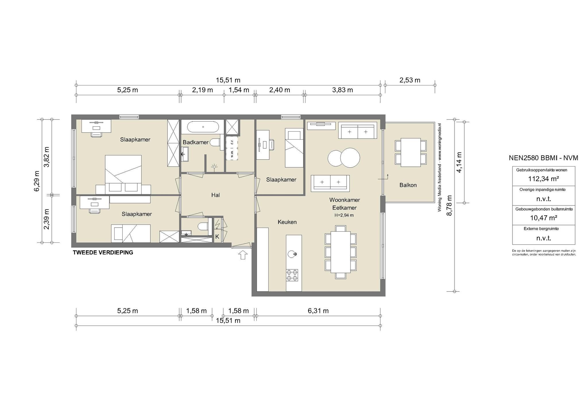
• Gebruiksoppervlakte wonen ca. 112 m²
• Terras gelegen op het zuiden van 10 m²
• Grote raampartijen en hoge plafonds van 3 meter
• Zeer gunstig gelegen
• Gelegen op erfpachtgrond van Gemeente Amsterdam. Huidig tijdvak 16-06-2015 t/m 15-06-2065, AB 2000, te betalen canon bedraagt € 885,79 per jaar voor het appartement en € 69,09 per jaar voor de parkeerplaats
• Aanvraag overstap eeuwigdurende erfpacht met AB 2016 is tijdig gedaan
• Het gehele appartement is voorzien van mechanische ventilatie en vloerverwarming
• Energielabel A, volledig gasvrij
• Extra berging en fietsenstalling in de onderbouw
• Parkeerplaats met eigen oplaadpunt in de onderbouw ad. € 65.000,- k.k. is inbegrepen in de vraagprijs
• Servicekosten VvE € 199,86 per maand
• Voorschot stookkosten € 85,- per maand
• Actieve en professionele VvE

Deze informatie is door ons met de nodige zorgvuldigheid samengesteld. Onzerzijds wordt echter geen enkele aansprakelijkheid aanvaard voor enige onvolledigheid, onjuistheid of anderszins, dan wel de gevolgen daarvan. Alle opgegeven maten en oppervlakten zijn slechts indicatief
De Meetinstructie is gebaseerd op de NEN2580. De Meetinstructie is bedoeld om een meer eenduidige manier van meten toe te passen voor het geven van een indicatie van de gebruiksoppervlakte. De Meetinstructie sluit verschillen in meetuitkomsten niet volledig uit, door bijvoorbeeld interpretatieverschillen, afrondingen of beperkingen bij het uitvoeren van de meting

Kenmerken
Fred. Roeskestraat 92A6+PP, Amsterdam
Vraagprijs
  • € 1.130.000 k.k.
Beschikbaarheid
  • In overleg
Vertrekken
  • 4 kamers
  • 3 slaapkamers
  • 1 badkamer
Onderhoud
  • Intern: Uitstekend
  • Extern: Uitstekend
Oppervlakten & Inhoud
  • Woonoppervlakte: 112 m²
Bouwjaar
  • 2017
Installaties
  • Buitenzonwering
  • Lift
  • Mechanische ventilatie
  • Schuifpui
  • Zonnecollectoren
Ligging
  • Aan rustige weg
  • Aan vaarwater
  • Aan water
  • In woonwijk
  • Vrij uitzicht
Parkeren
  • Betaald parkeren
  • Parkeervergunningen
  • Parkeerkelder
  • Parkeerplaats
Type verwarming
  • Stadsverwarming
  • Vloerverwarming geheel
Type warmwater
  • Centrale voorziening
Bestemming
  • Woonruimte
Eigendomssoort
  • Eigendom belast met erfpacht
Buitenruimte
  • Plaats
  • Balkon
Kadastraal
  • Gemeente: Amsterdam
  • Sectie: Ab
  • Nummer: 2755
Duurzaamheid
  • Volledig geisoleerd
  • Energielabel A
Soort
  • Appartement
  • Bovenwoning
Welke woonlaag
  • 2e
Plattegrond
Fred. Roeskestraat 92A6+PP, Amsterdam
AM102467-76671-Fred.-Roeskestraat-92A6+PP,-Amsterdam-125150920
AM102467-76671-Fred.-Roeskestraat-92A6+PP,-Amsterdam-125150923
AM102467-76671-Fred.-Roeskestraat-92A6+PP,-Amsterdam-125150915
AM102467-76671-Fred.-Roeskestraat-92A6+PP,-Amsterdam-125150918
Documenten
Fred. Roeskestraat 92A6+PP, Amsterdam
Locatie
Fred. Roeskestraat 92A6+PP, Amsterdam
Eten & drinken
84828243_1531217050352887_4539296221554016256_o
01
Adres
Agamemnonstraat 27,
1076 LP Amsterdam

Umeno

Umeno is een van de oudste Japanse restaurants in Amsterdam dat geliefd is bij haar vaste lokale gasten. Zodra je binnenstapt zie je een intieme ruimte met traditionele Japanse authenticiteit gevormd door het handgemaakte houten interieur, de shamisen en shakuhachi muziek en de enorme gastvrijheid van Ayumi en Atsuhito Hosono. De nigiri sushi is een aanrader, want de kwaliteit van de vis is uitstekend.

vascobelo-stadionplein-01
02
Adres
Stadionplein 100,
1076 CK Amsterdam

Vascobelo

Vascobelo, van origine uit Antwerpen, was bedoeld als een café waar mensen zouden komen voor een unieke koffie ervaring. Inmiddels is de keten aan Vascobelo Café-Brasseries bekend van veel meer dan alleen dat. De vestiging in de Rijnstraat is uniek door het knusse interieur en de open keuken, wat de locatie ideaal maakt voor intieme ontmoetingen of zakelijke bijeenkomsten.

483279358_18324217756166170_7586630462193368446_n
03
Adres
Stadionweg 271,
1076 NZ Amsterdam

Cucina casalinga

Giovanni Carmelitano is de eigenaar van Cucina Casalinga, een Italiaans restaurant gevestigd aan de Stadionweg 271 in Amsterdam-Zuid. Geboren in Rome, met een moeder uit Puglia, brengt Giovanni zijn Zuid-Italiaanse roots tot leven in zijn restaurant. Al meer dan twintig jaar is hij een toegewijde vertolker van de Italiaanse keuken, waarbij hij traditionele smaken combineert met een moderne benadering. De intieme sfeer en het beperkte aantal zitplaatsen zorgen voor een persoonlijke eetervaring die doet denken aan dineren bij een Italiaanse ‘nonna’ thuis.

Schermafbeelding 2022-09-27 om 12.59.20
Schermafbeelding 2022-09-27 om 12.59.31
04
Adres
Stadionplein 24,
1076 CM Amsterdam

Wils Bakery & Café

In Amsterdam Zuid vind je nu Wils Bakery Café op de begane grond. Een mix van bakkerij en Franse bistro. Wils is een nieuwe onderneming van chef Joris Bijendijk en de Vermaat Groep (Vermaat bezit Rijks en Wils).  In Wils Bakery Café combineren ze het ambacht van een bakkerij met de gezelligheid van een Franse bistro. Op de menukaart vind je herkenbare gerechten, bereid met hetzelfde vakmanschap als in Michelinster restaurant Wils. Proef de patisserie van Tania, de gerechten van Rudolf, lunch met het brood van Maxim en borrel met de wijnen van Barbora.

211297744_1153889045094448_8766733082684644550_n
05
Adres
Stadionplein 26,
1076 CM Amsterdam

Restaurant Wils (*)

Deze unieke culinaire hotspot opent zijn deuren in 2019 dankzij chef Joris Bijdendijk. Het restaurant bevindt zich naast het Olympische stadion. Joris gaf voor de opening een sneak preview door op open vuur te koken op de middenstip van het stadion in Amsterdam-zuid. De hoge verwachtingen maakt Wils inmiddels helemaal waar. Van de 4 tot 6 gangen worden op open vuur bereid en zitten vol verrassende elementen.

frietsteeg
06
Adres
Stadionkade 73 /A,
1076 BJ Amsterdam

De Frietsteeg

De Frietsteeg is een snackbar aan de gracht in de Stadionbuurt. Ze serveren hier heerlijke krokante frietjes en vele andere snacks. De frieten worden met de hand gesneden en je hebt keus uit meer dan 20 sauzen. Ook bijzonder: de Frietsteeg is gevestigd in een historisch huisje en er is een groot zonnig terras aan het water

neni
07
Adres
Stadionplein 8,
1076 CM Amsterdam

NENI

NENI is een Midden-oosters restaurant gevestigd aan het Stadionplein. De naam is een samenstelling van de voorletters van de vier zonen van Haya Molcho; de drijfveer van deze zaak. Haya is geboren in Tel-Aviv en heeft daar psychologie gestudeerd. Ze hield altijd veel van koken en begon in 2009 haar eerste eigen restaurant. Over de jaren is de familie Mocho een bekende familie geworden in de culinaire wereld en ze hebben ook andere vestigingen van NENI in onder andere Wenen en Berlijn. In al hun restaurants staat familie, samenzijn en gerechten delen centraal. De midden-oosterse gerechten zijn uitmuntend en de vers bereidde hummus is een van de beste die Amsterdam te bieden heeft.

08
Adres
Parnassusweg 400,
1081 LD Amsterdam

Vascobelo Parnassusweg

Vascobelo ontstond in 1998 in Antwerpen vanuit de familiepassie van Marc De Roeck, die opgroeide met vers gebrande koffie van zijn vader. De kracht ligt in de combinatie van Belgische koffiecultuur, langzaam gebrande blends en een herkenbare, ambachtelijke signatuur waarin kwaliteit en beleving centraal staan.

09
Adres
Olympiaplein 111,
1077 CV Amsterdam

The Coffee District

Eigenaren Adil Loukane en Rosa Loukane begonnen met een hole-in-the-wall coffeeshop in een modewinkel in Zuid. Toen de winkel de deuren sloot, grepen Adil en Rosa hun kans en besloten om hun eigen koffiebar te openen. Inmiddels hebben ze meerdere locaties. De koffie wordt gemaakt met een eigen melange gebrand door Lot Sixty One. Daarnaast worden er zoetigheden aangeboden zoals de inmiddelsal bekende kaneelbroodjes en bananenbrood.

Interieur_Zuidas_24-12-2018-scaled
10
Adres
Parnassusweg 1021,
1082 LZ Amsterdam

Café Loetje Zuid As

In 1977 werd café Loetje opgericht als biljartcafé door Ludwig 'Loetje' Klinkhamer, maar het duurde niet lang voor men het biljart inruilde voor de ossenhaasbiefstuk die werd geserveerd. Meer dan veertig jaar later is Loetje een gigantische keten en is het oorspronkelijke 'Café' een begrip in Amsterdam. De smakelijke biefstuk wordt geserveerd met huisgemaakte frietjes en zwemt in verse jus - om je vingers bij af te likken!

321951658_745210986479092_3482688388092291829_n
264585813_916339462605248_793857125163270911_n
11
Adres
Amstelveenseweg 226h,
1075 XT Amsterdam

Bonnie

Bonnie, een charmante bistro gelegen in Amsterdam-Zuid. Bij Bonnie draait alles om genieten; van lekkere maaltijden tot zorgvuldig geselecteerde wijnen die perfect aansluiten. Vooral de Bonnie's double cheeseburger is een aanrader. De ambiance zorgt ervoor dat je je al snel op je gemak voelt. Een lunch hier kan gemakkelijk overgaan in een gezellige borrel, waardoor je het gevoel krijgt dat je eigenlijk helemaal niet meer weg wil.

12
Adres
Hendrik Jacobszstraat 18,
1075 PD Amsterdam

LOT61 Coffee Roasters

Geboren in Sydney, grootgebracht in Brooklyn en nu stevig geworteld in Amsterdam: LOT61 is allesbehalve een doorsnee koffiezaak. Als onafhankelijke koffiebrander combineert het merk internationale flair met lokaal vakmanschap. Slow coffee die met precisie en aandacht is gezet. De esthetiek is rauw maar verfijnd, de sfeer informeel en creatief – een plek waar buurt en barista samenkomen. Met hun B Corp-certificering laat LOT61 bovendien zien dat smaak en duurzaamheid hand in hand kunnen gaan.

Boodschappen
21125326_348074012310751_3902449023829329736_o
21125332_348074092310743_8164135921726057693_o
21200854_348074335644052_3928733172084979767_o
13
Adres
Stadionplein,
1076 CJ Amsterdam

Stadionpleinmarkt

Op het mooie Stadionplein, midden in Oud-Zuid vind je elke zaterdag de Stadionpleinmarkt. Ze gaan om 09:00 open en zijn dus een ideale markt voor mensen die op zaterdag vroeg hun weekboodschappen gedaan willen hebben. Ook hebben ze hier prachtige bloemen te koop en vind je er veel verschillende buurtbewoners. De sfeer is altijd goed en de markt is open tot 17:00.

14
Adres
Olympiaplein 119,
1077 CW Amsterdam

Le Fournil de Sébastien

Le Fournil is het initiatief van Susan en Sébastien, die na jaren bakkerservaring in Frankrijk in 2007 naar Nederland kwamen om een authentieke Franse boulangerie te openen. De kracht ligt in het ambachtelijke handwerk, zuurdesem en de bewuste keuze voor kleinschaligheid en pure, traditionele broodbereiding.

Schermafbeelding 2022-05-12 om 19.08.47
15
Adres
Olympiaplein 111,
1077 CV Amsterdam

L'Amuse

Volgens sommigen is dit de beste kaaswinkel van Nederland. Ze hebben een indrukwekkend breed assortiment van de lekkerste kazen. Ook heerlijke wijn, salami, ham en olijfolie is hier te koop. Je wordt uitstekend geholpen en de kaas is echt van een ander niveau. Aanrader!

16
Adres
Marathonweg 51,
1076 TB Amsterdam

Slagerij Zikking & Zoon

Slagerij Zikking & Zoon zit aan de Marathonweg en is een begrip in Amsterdam. Eigenaar Robert Zikking is een geboren en getogen Amsterdammer die samen met zijn vrouw in 1995 gepassioneerd en vol zelfvertrouwen een eigen zaak begon. Zoals hij zelf zegt: ‘Het is geen sprookje, maar een (h)eerlijke werkelijkheid die een geschiedenis heeft.’ De filet americain is gemaakt met het recept van een oude Jordaanse dam en niet te ontbreken is de nostalgische Amsterdamse ossenworst.

Kunst & cultuur
pati_F1A7803ssdweb
_F1A4074
17
Adres
Parnassusweg 220,
1076 AV Amsterdam

Diez Gallery

Diez is een Amsterdamse kunstgalerie met een internationale uitstraling, opgericht in 2022 door Diego Diez. De tentoonstellingen worden samengesteld in samenwerking met kunstenaars die affiniteit hebben met Diez's interesses en zullen zowel internationaal als nationaal talent presenteren in Amsterdam. Naast het tentoonstellingsprogramma streeft Diez ernaar een toegankelijke ruimte te zijn voor een breed publiek met diverse activiteiten en evenementen zoals poëzielezingen, samengestelde diners en kunstenaarsgesprekken.

18
Adres
Hildegard Von Bingenstraat 4,
1081 LH Amsterdam

Cinema The Pulse

Cinema The Pulse is een filmtheater in de plint van The Pulse of Amsterdam op de Zuidas, met een breed programma van arthouse, cult en actuele films. De kracht ligt in de combinatie van cinema, architectuur en ontmoeting, als stedelijke filmhub waar filmbeleving en metropolitane context samenkomen.

19
Adres
De Boelelaan 1111,
1081 HV Amsterdam

VU ART SCIENCE gallery

De VU ART SCIENCE gallery is een universitaire galerie op de VU-campus waar kunst en wetenschap elkaar ontmoeten in tentoonstellingen en dialogen rond actuele thema’s. De kracht ligt in de multidisciplinaire uitwisseling tussen kunstenaars, onderzoekers en publiek, met een duidelijke focus op kennis, onderzoek en maatschappelijke vraagstukken.

20
Adres
De Boelelaan 1111,
1081 HV Amsterdam

Rialto VU

Rialto VU is de tweede locatie van het historische filmtheater Rialto (1921) en gevestigd op de VU-campus aan de Boelelaan. De kracht ligt in de combinatie van arthouse cinema, festivals en culturele programmering binnen een bredere culturele hub waar film, kunst en academie samenkomen.

downloadgram.org_597897714_1508494480841935_8620457783605645660_n
21
Adres
Prinses Irenestraat 36,
1077 WX Amsterdam

De Thomas

De Thomas is een monumentale kerk aan de rand van de Zuidas waar religie en cultuur bewust samenkomen. Met een eigen theater, concerten en debatavonden is het een plek voor ontmoeting en verdieping, midden in het zakelijke hart van Amsterdam Zuid. Het gebouw geldt als een belangrijk voorbeeld van naoorlogse kerkarchitectuur in Nederland en is vormgegeven in een expressieve, brutalistische stijl.

22
Adres
Van der Boechorststraat 8,
1081 BT Amsterdam

De Botanische Tuin Zuidas

De Botanische Tuin Zuidas, ontstaan als universitaire hortus in 1967, is een verrassend groene oase midden op de VU-campus. Met duizenden plantensoorten, gespecialiseerde collecties en kronkelende paden vormt de tuin een rustige, bijna verborgen plek waar wetenschap, natuur en stedelijke dynamiek op een bijzondere manier samenkomen.

Interieur
Annindriya-Perfume-_Lounge-Local-Minded-005_lichter_Lowres_480x480
perfumelounge 2
23
Adres
Cornelis Krusemanstraat 25,
1075 NC Amsterdam

Perfume Lounge

Bij de ‘Perfume lounge’ richten ze zich op het maken en adviseren van geuren voor bedrijven en organisaties en wat reuk kan toevoegen aan een merk of organisatie. Daarnaast hebben zij een winkel met een assortiment van de meest bijzondere parfums van de wereld, waar zij ook persoonlijk geuradvies geven. Advies voor op de huid of in huis. Volgens de experts voegt geur iets toe wat niet zichtbaar en tastbaar is. Je kunt geur op verschillende manieren inzetten in een ruimte. Het begint natuurlijk eerst dat het er niet negatief mag ruiken. Er zijn best wel veel ruimtes waar je het riool of sanitair ruikt, waar veel gerookt is of waar de afzuiging niet goed is en het naar eten ruikt. De meeste simpele manier van geur in huis is dat het schoon ruikt. Veel mensen associëren schoonmaak of wasmiddel met een schoon, opgeruimd en verzorgd huis. Daarnaast kun je de ambiance aanzetten. Net zoals met licht en muziek kun je de sfeer verzachten of versterken. Je kunt het heel huiselijk laten ruiken of juist heel modern. Landelijk of artistiek. Of juist heel minimalistisch of intiem.

5a1eff_bf84a6dcd25c4e9983e1e74f8140f4da_mv2
24
Adres
Rubensstraat 45,
1077 MJ Amsterdam

Flower fusion

Elke zaterdag van 9:30 tot 17:00 kunt u Ilona Bokma van Flowerfusion vinden op de ZuiderMRKT. Unieke en schitterende bloemen waardoor je het gevoel krijgt middenin een pluktuin te staan. Doordat Ilona iedere week andere bloemen, planten en kleuren uitzoekt die aansluiten bij het seizoen, is het elke zaterdag weer een feestje om langs te gaan bij Flowerfusion.

Kunstagenda mei 2025

Kunstagenda mei 2025

Uitgelicht; Open view

Uitgelicht; Open view

Een houten rijksmonument uit 1880

Een houten rijksmonument uit 1880

Onlangs bekeken
Bekijk het overzicht

Deze site maakt gebruik van cookies.

Voor welke cookies geef je akkoord?