Mijn collega en ik zijn uitgenodigd om te komen praten over de verkoop van Falckstraat 10, ofwel: Serafine. De belangrijkste reden hiervoor, geven de bewoners aan, is hoe wij in het verleden de verkoop hebben aangepakt van nummer 12 voor hun toenmalige buren. Ook toen al waren wij enthousiast over het fraaie woonblok van drie waar deze woning deel van uitmaken.

We lopen door het huis en zien ook hier mooie, hoge ruimtes en prachtige lichtinval. Het zonnige terras schittert ons tegemoet. Overal schemert door dat de bewoners van dit huis creatief zijn: onze gastheer is auteur en programmamaker, de gastvrouw heeft haar eigen studio op de bovenste verdieping. De nieuwe bewoners zullen wellicht hun eigen smaak en afwerking in wil brengen, maar dat is op deze locatie, met zo’n mooi, breed pand een uitdaging die alleen maar kan slagen. Want dit herenhuis heeft veel potentie.

De huidige eigenaren nemen na vele jaren heerlijk wonen afscheid van dit elegante herenhuis nu ze gekozen hebben voor een compacter huis in een groene omgeving. Een mooie kans voor woningzoekenden

Otte van Apeldoorn I Broersma Wonen 

 

Een karakteristiek, sfeervol herenhuis op een hoek van circa 318 m² midden in het centrum van Amsterdam, maar weg van de drukte, aan een rustig plein. De maatvoering is royaal met hoge ruimtes en brede vertrekken. In plaats van een tuin heeft deze statige woning een vorstelijk terras dat vanuit de woonkamer-en-suite direct te bereiken is. Het pand is samen met nummer 12 en 14 rond 1870 als één blok gebouwd in classicistische stijl en is in 2007 als gemeentelijk monument aangemerkt.

Een rondleiding

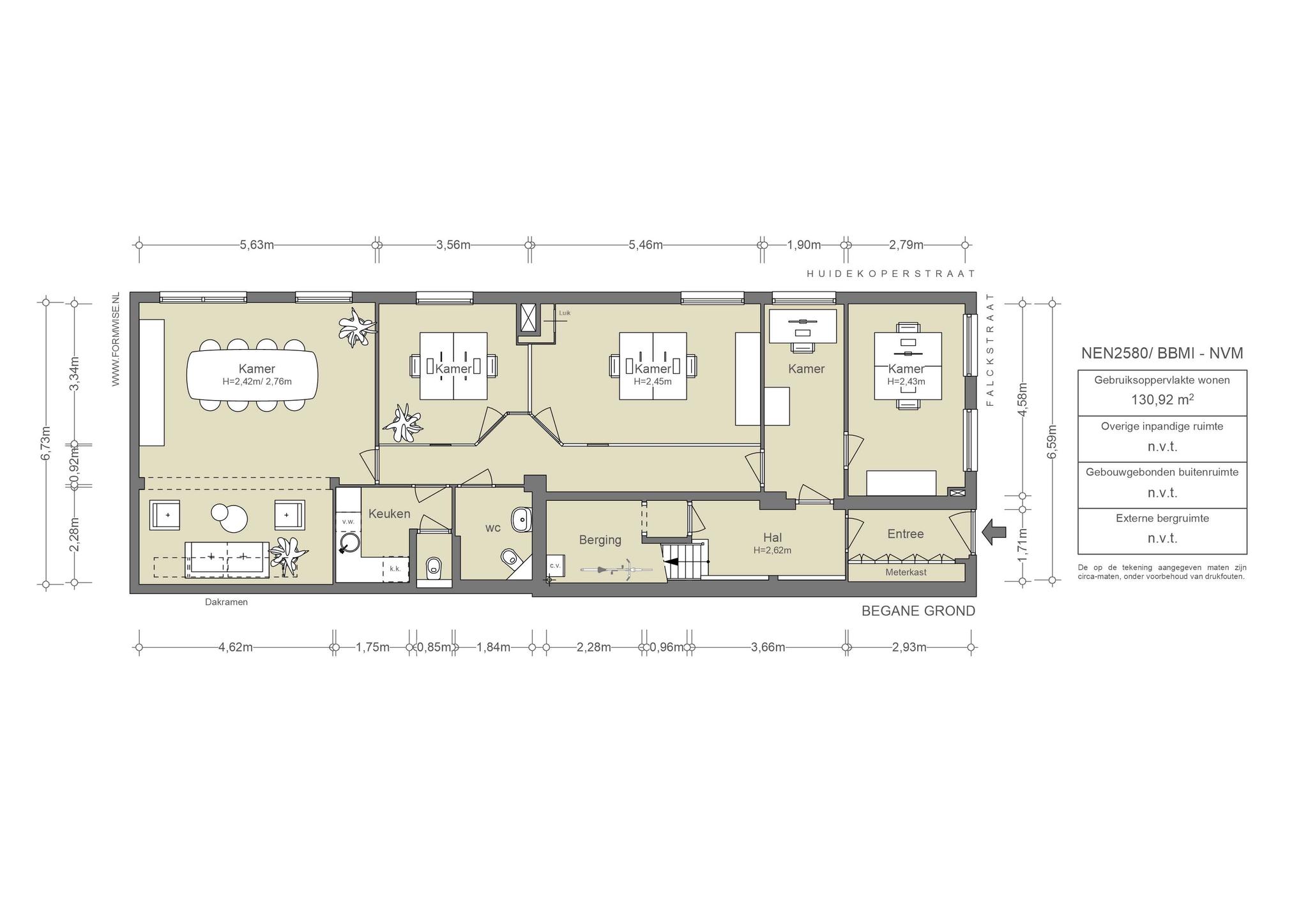
De begane grond
De entree leidt zowel naar de bovenverdieping als naar de benedenruimte, die in gebruik is geweest als kantoor, maar heel veel (woon)ruimte biedt. De hal geeft toegang tot alle andere ruimtes op de begane grond: een voorkamer, een tussenruimte, twee royale kamers, een keuken een grote sanitaire ruimte en een woonkamer aan de achterzijde met vensters aan twee zijden. Onder de trap bevindt zich ook nog een grote bergruimte met de cv voor de begane grond.

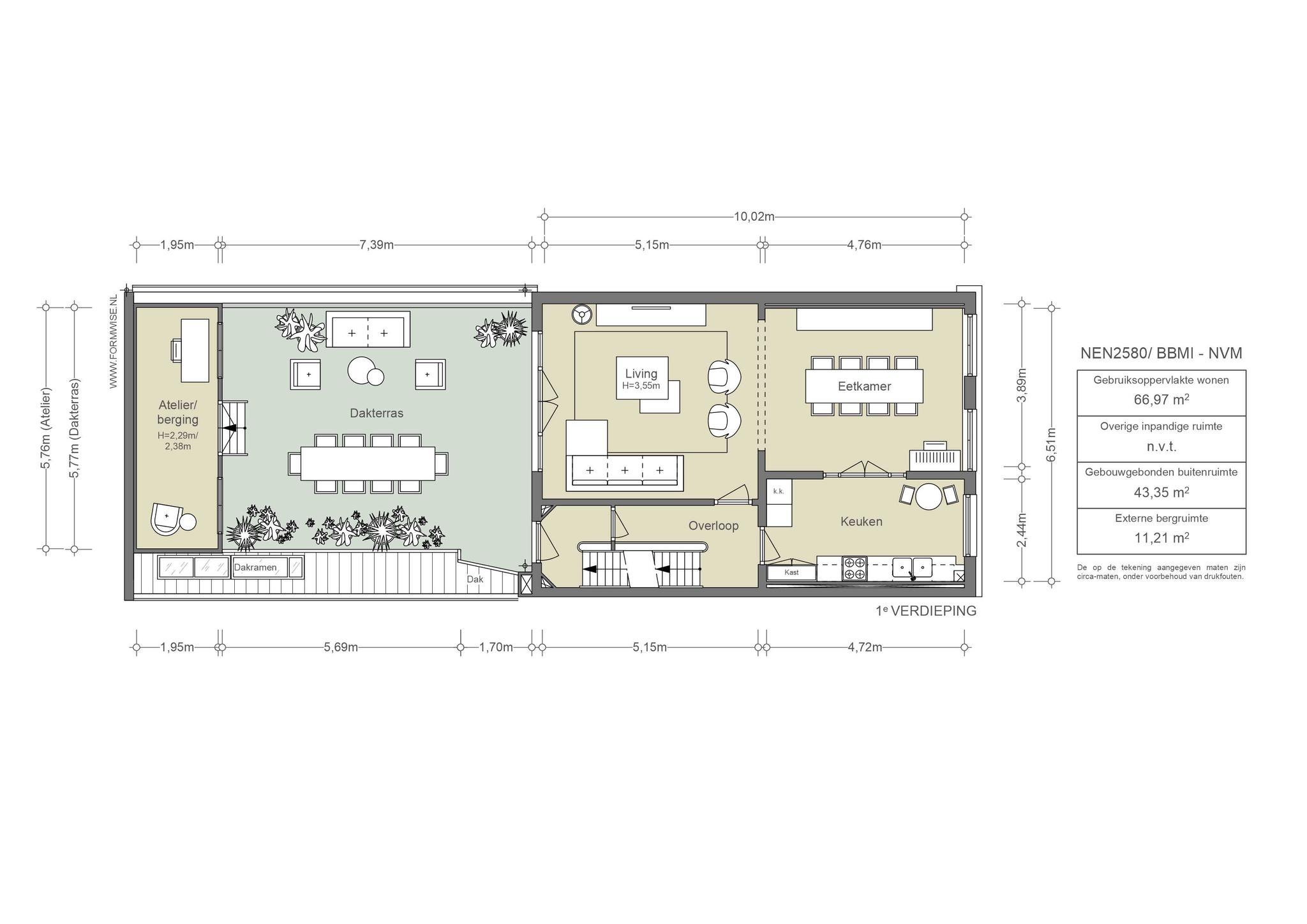
De eerste verdieping
Het trappenhuis is ruim en licht en elke verdieping heeft een toiletruimte op het bordes. Opvallend is de royale opzet van het huis. Met 6.65 breedte en een plafondhoogte van meer dan 3,50 voelt deze etage meer dan luxe. De sfeervolle kamer en-suite heeft openslaande deuren naar het zonnige terras dat in afmetingen niet onderdoet voor een flinke stadstuin. Een ideale plek om ’s zomers met vrienden buiten te dineren. De keuken aan de voorzijde kijkt uit over het plein en staat in directe verbinding met het eetgedeelte.

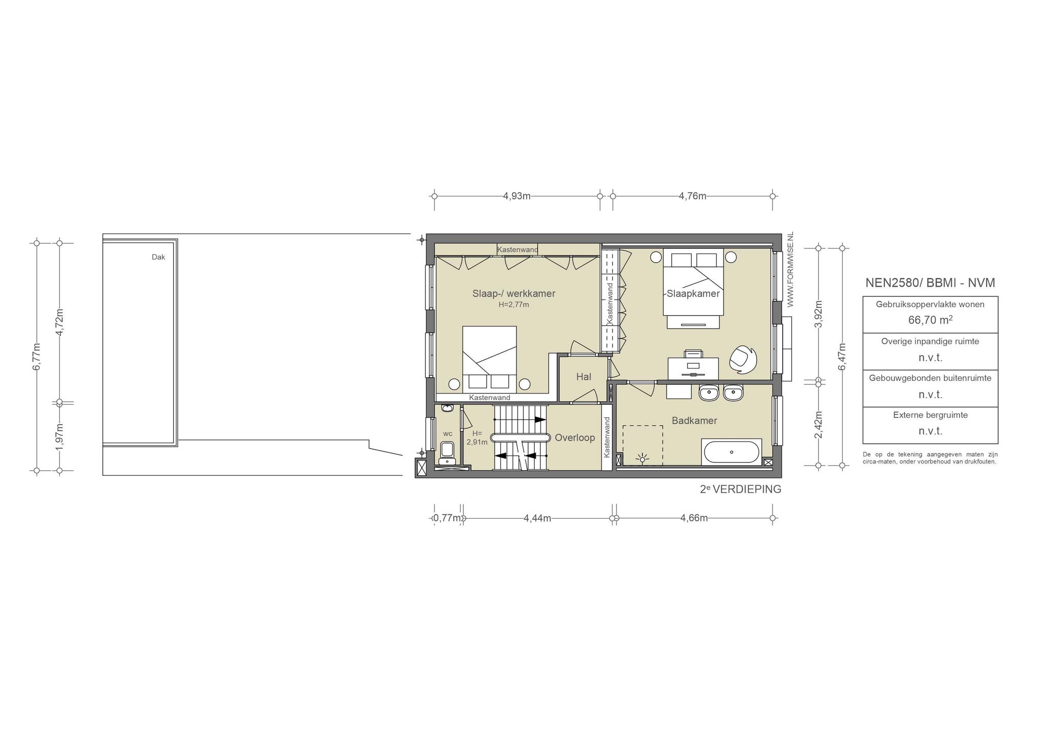
De tweede verdieping
Boven de keuken bevindt zich de eenvoudige maar functionele en zeer ruime badkamer, met het ligbad, inloopdouche en twee wastafels. De heerlijk lichte kamer aan de rustige achterzijde doet nu dienst als schrijfkamer. Bij warm weer worden hier de markiezen neergelaten voor de nodige verkoeling. Het royale vertrek aan de koelere voorzijde is als slaapkamer ingericht.

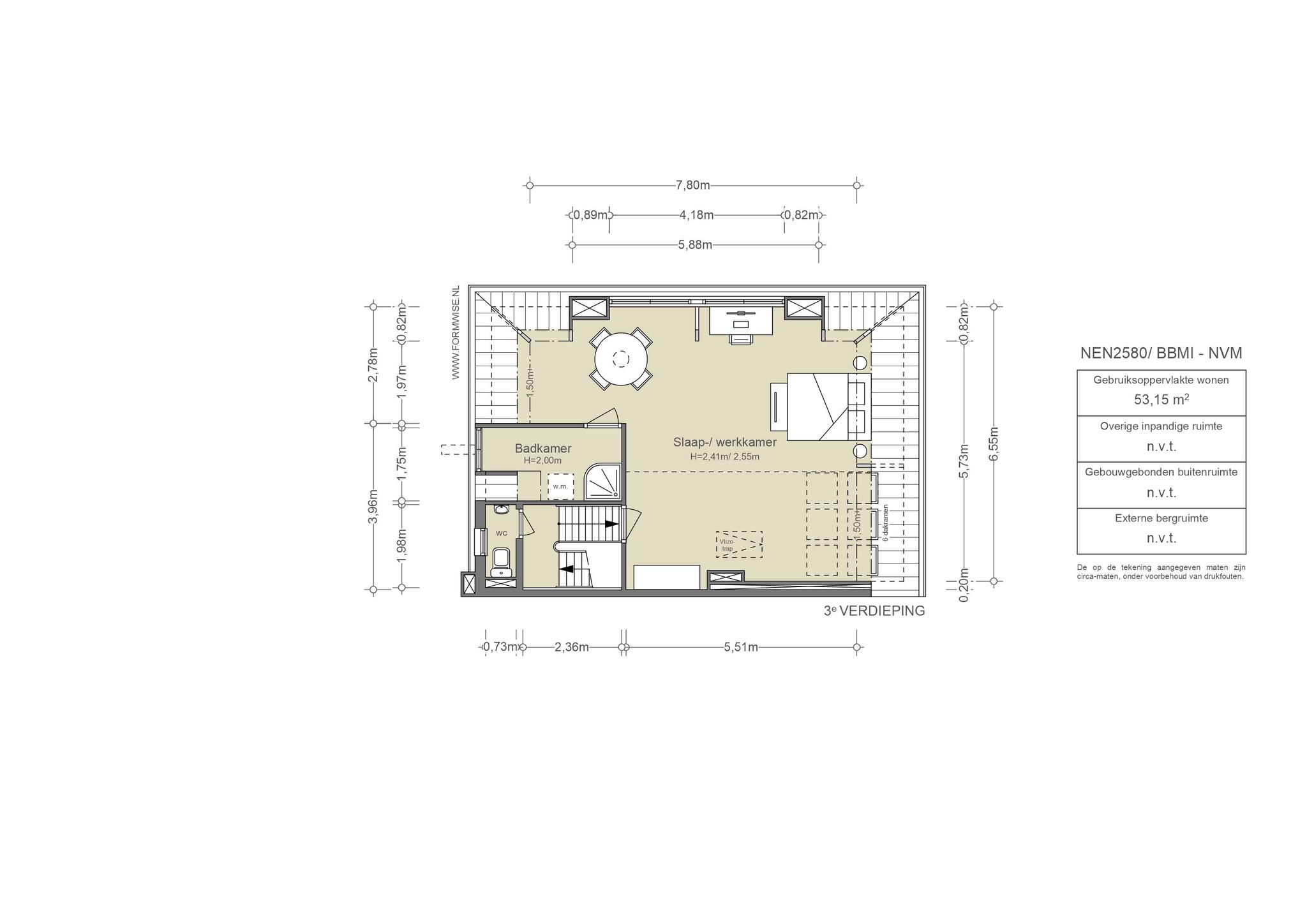
De bovenste verdieping
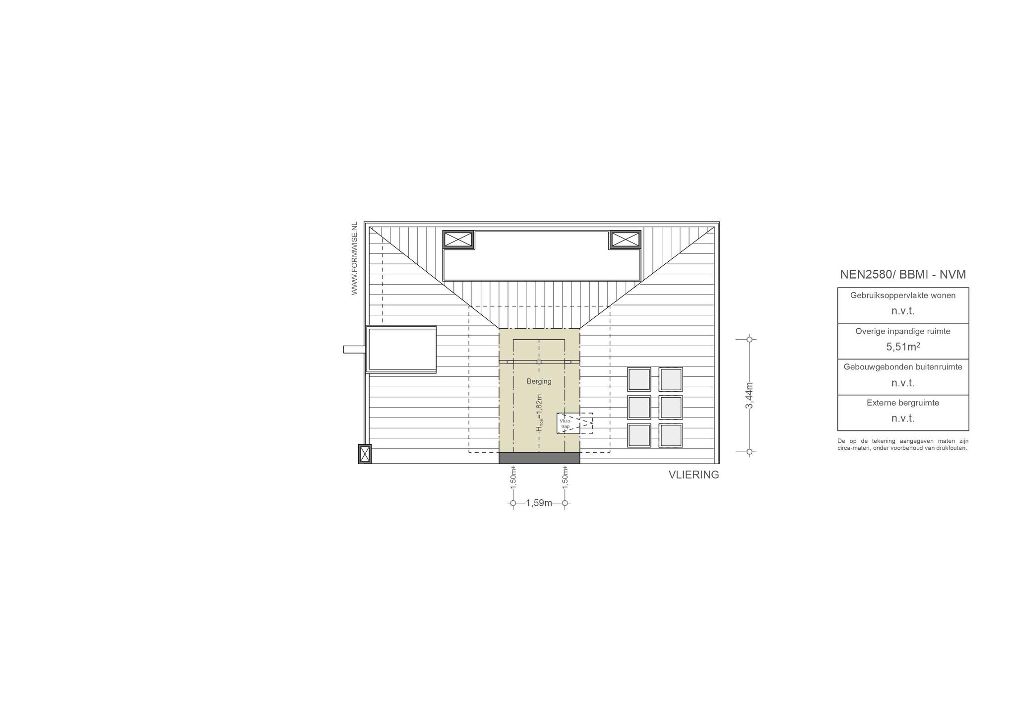
Volgens de huidige bewoners misschien wel de mooiste ruimte van het huis. Bij binnenkomst vallen meteen de zes Velux-ramen op waardoor veel licht naar binnen valt. De toch al spectaculaire ruimte is verder vergroot met een kapel op de westkant. Zo is een prettige, atelierachtige ruimte ontstaan die uitnodigt tot creativiteit. Ook in de badkamer op deze verdieping zorgt een fijne dakkapel voor extra licht en ruimte. Via een vlizotrap is de vliering bereikbaar, met nog eens een zee aan bergruimte. Hier hangt ook de cv voor de drie bovenste verdiepingen.

De buitenruimte
Op de eerste verdieping bevindt zich een breed en diep terras op het zuiden met veel zon én veel privacy. Hierop staat een charmant terrashuis waarvan de gevel de voorgevel van het woonhuis weerspiegelt. Nu in gebruik voor opslag, maar ook perfect in te richten als werkruimte.

Het gebouw
Samen met Falckstraat 12 en 14 vormt deze stadsvilla een elegant bouwblok in classicistische stijl, met een gepleisterde zijgevel aan de Huidekopersstraat en voorzien van een schildkap. De drie woningen zijn rond 1870 in opdracht ontworpen door architect, timmerman en makelaar – toen een gebruikelijke combinatie – Coenraad Wiegand. De brede panden hebben elk drie vensterassen, met als extra bijzonderheid dat de middelste fraai bepleisterd is met een klassiek fronton. De raam- en deurpartijen van Serafine, zoals nummer 10 gedoopt is, wijken iets af van die bij de buren; een gevolg van verbouwingen in het verleden. Vanwege de architectuurhistorische waarde, de gaafheid en de esthetische kwaliteiten is dit blok van drie in 2007 tot gemeentelijk monument verklaard.

De omgeving
In vroegere tijden was de Falckstraat een drilveld voor Franse soldaten, nu een opvallend rustig stadsplein met prachtige vleugelnootbomen en een kinderspeelplaats. Om de hoek ligt het gezellige Amstelveld met op maandag de Bloemenmarkt en het beroemde terras van NEL. Net als de Utrechtsestraat met zijn sterke aanbod aan delicatessezaken en horeca – waaronder verschillende restaurants met een Michelinster. Ook het culturele leven speelt zich in de zeer nabije omgeving af: de Stopera, Carré en de Hermitage, waar op zaterdag een biologische markt is met streekproducten, liggen bijvoorbeeld op loopafstand. En een geruststellende gedachte voor gezinnen met kleine kinderen: de twee buurtbasisscholen, de ASVO en De Kleine Reus, zijn beide op hun eigen manier hoog gewaardeerd.

De bereikbaarheid
Deze woning lig op een zeer centrale locatie vanwaar er meerdere routes de stad uit en in zijn en is dus makkelijk aan te rijden. Via de Wibautstraat is zowel de IJtunnel goed te bereiken als de uitvalswegen naar Utrecht en het Gooi. Openbaar vervoer stopt op de Utrechtsestraat, Weteringschans en de Noord-Zuid halte op de Vijzelgracht is op nog geen vijf minuten lopen.

De parkeergelegenheid
Parkeren is mogelijk via een vergunningenstelsel in parkeergebied Centrum 2g. De geschatte wachttijd is momenteel twee maanden (bron: gemeente Amsterdam). De kosten bedragen 287,09 per zes maanden. Daarnaast zijn verschillende parkeergarages in de nabijheid met koop- en huuraanbod.

De bijzonderheden

  • Gemeentelijk monument, genaamd Serafine
  • Breed, licht en royaal opgezette hoekwoning 
  • Gebouwd als herenhuis in 1870 en gelegen op eigen grond
  • Uitstekende en rustige woonlocatie in gewilde 1017-buurt
  • Spectaculaire bovenverdieping met veel ramen
  • Woonruimte met openslaande deuren terras met veel zon en privacy
  • Mooi terrashuis met verwijzing naar de voorgevel
Kenmerken
Falckstraat 10, Amsterdam
Vraagprijs
  • € 2.680.000,- k.k.
Beschikbaarheid
  • In overleg
Vertrekken
  • 10 kamers
  • 5 slaapkamers
  • 2 badkamers
Onderhoud
  • Intern: Goed
  • Extern: Redelijk tot goed
Oppervlakten & Inhoud
  • Woonoppervlakte: 318 m²
  • Tuinoppervlakte: 43 m²
Bouwjaar
  • 1870
Installaties
  • Dakraam
  • Natuurlijke ventilatie
  • TV kabel
Ligging
  • Aan park
  • Aan rustige weg
  • In centrum
  • In woonwijk
  • Vrij uitzicht
Parkeren
  • Betaald parkeren
  • Openbaar parkeren
Type verwarming
  • CV Ketel
Type warmwater
  • CV Ketel
Bestemming
  • Woonruimte
Eigendomssoort
  • Volle eigendom
Buitenruimte
  • Zonneterras
  • Dakterras
Kadastraal
  • Gemeente: Amsterdam
  • Sectie: I
  • Nummer: 10059
Duurzaamheid
  • Gedeeltelijk dubbel glas
Soort
  • Herenhuis
  • Hoekwoning
  • Woonhuis
Bijzonderheden
  • Beschermd stads of dorpsgezicht
  • Gedeeltelijk gestoffeerd
  • Monument
Overige kenmerken
  • OZB ('22) € 475,02 per jaar
  • Rioolrecht ('22) € 152,50 per jaar
Plattegrond
Falckstraat 10, Amsterdam
AM103608-108560-Falckstraat-10,-Amsterdam-132562541
AM103608-108560-Falckstraat-10,-Amsterdam-132562542
AM103608-108560-Falckstraat-10,-Amsterdam-132562543
AM103608-108560-Falckstraat-10,-Amsterdam-132562544
AM103608-108560-Falckstraat-10,-Amsterdam-132562545
Documenten
Falckstraat 10, Amsterdam
Locatie
Falckstraat 10, Amsterdam
Eten & drinken
Schermafbeelding 2022-06-27 om 18.11.15
01
Adres
Falckstraat 3,
1017 VV Amsterdam

Bouchon du centre

Op de hoek van de Reguliersgracht vind je 40m2 knus Frankrijk, inclusief traditionele bistro sfeer en rood wit-geruite tafelkleden. De bistro wordt gerund door Hanneke Schouten en is geopend van woensdag tot en met zaterdag. Het concept is ontstaan vanuit de ‘bouchon Lyonnais’ waarbij met betaalbare ingrediënten een hoogwaardige maaltijd wordt bereid.

1002870_632187776804983_1795107424_n
02
Adres
Utrechtsestraat 140,
1017 VT Amsterdam

Café Slijterij Oosterling

Café Oosterling is een van de enige twee cafe's in Amsterdam met een slijterij-vergunning. Oosterling produceert jenever naar eigen recept. Het café is al 140 jaar in de familie.

277308208_1172321166929090_372143994178302905_n
276152204_1184037255757481_8592495868560013575_n
03
Adres
Utrechtsestraat 141H,
1017 VM Amsterdam

Zoldering (*)

Een 1* Michelin bistro gerund door gerenommeerde en getalenteerde sommeliers en chefs. Er bestaan twee wijnkaarten. Een kaart met 'betaalbare' wijnen onder de 50 euro en een uitgebreide kaart met een grote selectie Champagne en een focus op de Bourgogne. De keuken serveert ongedwongen to share bordjes met o.a filet americain van tomaat, bospeen & hazelnoot met karnemelk, dille en vadouvan. Grotere gerechten zijn bijvoorbeeld boerederijeend met spinazie, cantharel en krokante huid of rogvleugel met courgette, merg en groene peper. Zoldering is erg gewild, dus reserveer  lang van te voren. Je kunt ook proberen op de dag zelf binnen te lopen voor een glas wijn aan de bar.

Ku+Kitchen+June18+(web)-3712
Ku+Kitchen+June18+(web)-3563
04
Adres
Utrechtsestraat 114,
1017 VT Amsterdam

Ku Kitchen & Bar

Hier serveren ze de klassieke, maar ook minder klassieke Japanse gerechten. Sinds 2014 is deze plek geopend, en het is niks voor niks dat het Kitchen EN bar heet. Ze hebben naast de Japanse gerechten namelijk ook een uitstekend aanbod aan Japanse bieren, sakes whiskeys en spannende en bijzondere cocktails. Zeker de moeite waard om dit kleine stukje Japan op Amsterdamse bodem uit te proberen!

TinaB-190604-6965
IMG_5027-1500×1000
05
Adres
Utrechtsedwarsstraat 85A,
1017 WD Amsterdam

Fiaschetteria Pistoia

Pistoia is een plek om authentieke geïmporteerde Italiaanse wijnen te proeven terwijl je geniet van de traditionele Toscaanse keuken. De wijnkaart is vol smaakvolle geïmporteerde wijnen, de ingrediënten worden geïmporteerd uit Italië en de recepten komen uit een lange familietraditie onder leiding van "nonna".

06
Adres
Weteringschans 76,
1017 XR Amsterdam

An

Gelegen aan de Weteringschans 76 in Amsterdam, is Japans Restaurant An sinds 1989 een begrip voor authentieke, huisgemaakte Japanse gerechten. Het restaurant specialiseert zich in traditionele Japanse maaltijden zoals ze thuis bereid worden, met pure, verse en gezonde ingrediënten. Bij An staat ambacht centraal: bijna alle gerechten worden met de hand gemaakt. Gasten kunnen genieten van diverse Japanse klassiekers, zoals sushi, tempura en teishoku-setmenu’s. Er is daarnaast speciale aandacht voor groentegerechten, wat het restaurant toegankelijk maakt voor vegetarische en veganistische gasten.

Schermafbeelding 2022-10-10 om 10.58.56
07
Adres
Frederiksplein 29h,
1017 XL Amsterdam

Oocker

Oocker is een nieuwe restobar (restaurant-bar) in Amsterdam. Het is opgezet door de mannen Meyer Viol, Niels van der Werf (voorheen bij The Lobby, Gebr. Hartering en Shiraz) en Stefano Orofino (voorheen bij Domenica). Bij Oocker is het eten net zo belangrijk als de wijn. Aan de voorzijde kan je de wijnbar vinden en achterin is het restaurant gedeelte, waar wordt gekookt in een open keuken. Chef Stefano kook voornamelijk veel met groentes.  Het is open van donderdag tot en met dinsdag vanaf 15:00. Ze nemen geen reserveringen aan dus loop vooral gezellig naar binnen.

 

539068_629857897052313_810190241_n
08
Adres
Utrechtsestraat 109-111,
1017 VL Amsterdam

Patisserie Kuyt

Voor de echte zoetekauw is Patisserie Kuyt een zeer bekende. Klaas Kuyt heeft het geheime recept voor allerlei verfijnde taartjes, cakes, chocola, koekjes en eclairs. Met als kers op de taart een beloning van het parool voor beste appeltaart van Amsterdam. Te vinden op de gezellige Utrechtsestraat naast de lokale slager en kaasboer.

69494280_419420035667205_8113005642382675104_n
09
Adres
Weteringschans 187c,
1017 XE Amsterdam

Sizz

Midden in het centrum bevindt zich het Indiase restaurant Sizz. Het eten is zeer smaakvol en de porties zijn royaal en perfect om te delen. De sfeer is uitnodigend en voelt als een ouderwets familierestaurant met een moderne twist.  Als je gaat, mag je hun lamsspiesjes, papadums, boterkip of chocoladetaart niet missen!

10
Adres
Stadhouderskade 123-124,
1074 AV Amsterdam

Saravana Bhavan

Wie echt goed Indiaas wilt eten, en de sfeer van een echt Indiaas restaurant wilt proeven, moet naar Saravana Bhavan gaan, op het hoekje van de drukke Stadhouderskade en de van Wou straat zit hier dit grote restaurant. Het is een deel van de grootste vegetarische Indiase ketens in de wereld. Ze serveren ontelbaar veel lekkere (veel vegetarische dus) curry's en andere specialiteiten uit India. Het zit er vaak bomvol, met een gemengd publiek. Indiase gezinnen, stelletjes, toeristen, buurtbewoners, Saravana Bhavaan is een plek waar je goed kan eten.

11
Adres
Utrechtsestraat 89,
1015 VK Amsterdam

Restaurant Soenda Kelapa

Indonesische familiebedrijf biedt een- en tweepersoons rijsttafels, een à-la-cartemenu en verzorgt ook catering klussen. Ze serveren eten geïnspireerd op de West Javaanse keuken. ‘Soenda’ is namelijk de provincienaam van dat gebied. Gelegen midden in de Utrechsestraat is dit een geweldige plek om goed Indonesisch eten te proeven.

Scherm­afbeelding 2023-11-15 om 13.24.59
12
Adres
Utrechtsestraat 75,
1017 VJ Amsterdam

Screaming Beans

Screaming Beans is een Amsterdams merk dat lokaal en internationaal bekend staat om zijn hoogwaardige koffie. De locatie heeft een prachtige, open bakstenen bar en een rustige zitruimte. Het is de perfecte plek om te werken of gewoon achterover te leunen, koffie te drinken en te ontspannen.

335514203_871992397231199_3539701541656556904_n
13
Adres
Albert Cuypstraat 278,
1073 BR Amsterdam

La Biss Kosher Streetfood

La Biss is geen gewone sandwichbar; los van het feit dat de sandwiches uiteraard kosher zijn worden ze met zorg en precisie gemaakt met de beste en meest verse ingrediënten. Een specialiteit is de huisgemaakte challah brood, dagelijks vers gebakken en een unieke toevoeging aan de sandwiches. Ook de baguettes en andere verse broden zijn niet te missen.

14
Adres
Eerste Sweelinckstraat 1,
1073 CK Amsterdam

Warung Swietie

Warung Swietie Lelydorp is een Surinaams restaurant op een steenworp afstand van de Albert Cuyp Markt. Het staat bekend om saotosoep en roti, die beiden voor een hele betaalbare prijs over de toonbank vliegen. Het is één van de kleinste Warungs in Amsterdam en in de zomer heeft het eethuis zelfs een klein terras. Voor een snelle hap zoals een broodje Pom met zuur kun je hier prima terecht!

265617006_1807622789446508_710233366890861875_n
15
Adres
Noorderstraat 19h,
1017 TR Amsterdam

Sukhothai Thanee

Misschien komt de naam van dit restaurant je bekend voor. Want de eigenaren van dit restaurant bezaten vroeger de succesvolle streetfood stal in Amsterdam, namelijk Sukothai Streetfood Expres. Tegenwoordig zijn ze volop bezig bezig met het runnen van een chique restaurant. Ze koken vanuit de Thaise traditie met eerlijke ingrediënten. Wat je zeker niet mag missen zijn de curry's van van versgemaakte currypasta’s.

Interieur
78453341_2540874405968488_2679508191917637632_n
16
Adres
Utrechtsestraat 145-147,
1017 VM Amsterdam

Moooi

Opgericht door Marcel Wanders & Carsper Vissers in 2001 zet ‘Moooi’ al meer dan 20 jaar fantastische producten op de markt. De winkels hebben zich in deze 20 jaar dan ook niet voor niets verspreid over de hele wereld. Het merk staat voornamelijk bekend om innovatieve designs die verder gaan dan het alledaagse. Of het nou om lampen, meubels of accessoires gaat, Moooi belooft hun klanten altijd te blijven verbazen met schoonheid en creativiteit. Om producten op deze wijze af te leveren werkt Moooi samen met designers die variëren van up and coming tot degene die al internationaal bekend zijn.

278571715_2573073872828455_3449746870166575998_n
280265095_2584294698373039_5653152344189306406_n
17
Adres
Reguliersgracht 70,
1017 LV Amsterdam

Archive store

Op het Frederiksplein, op het randje van de Pijp, vind je sinds 2015 de Archive store - te herkennen aan de prachtig versierde thema etalages. De interieurwinkel is bestemd voor een groot publiek: je kunt hier terecht voor baby- en kinderspulletjes tot volwassen hebbedingetjes en meubels. Het is daarmee een winkel om heerlijk in rond te struinen als je op zoek bent naar dingen voor jezelf en een kleine. Met een gigantisch arsenaal aan merken is de keuze daadwerkelijk reuze, wat voor elke generatie wat wils biedt. Naast het verkopen van bestaande merken houdt de Archive store zich ook bezig met hun huismerk - société.

279056119_499852685014635_8123187631375995143_n
278672372_493889782277592_5408348043727345845_n
18
Adres
Utrechtsestraat 62,
1017 VR Amsterdam

Mobilia

Mobilia is een prachtige interieurzaak op de Utrechtsestraat. Rini Scherpenisse is de eigenaar van de zaak en runt deze met passie sinds 2001. Gelukkig is hij niet alleen en wordt hij ondersteund door een team jonge en gepassioneerde interieur designers. De design studio is door het vriendelijke team enorm toegankelijk en laagdrempelig, niemand hoeft een échte design kenner te zijn om hier naar binnen te stappen. De Instagram van de zaak dient als perfecte tool om inspiratie op te doen en daarna is een belletje of e-mail genoeg om een afspraak te maken.

278287126_5017084395041979_5150113744866398002_n
278227977_5017084525041966_5244810507209283372_n
19
Adres
Lijnbaansgracht 319A,
1017 WZ Amsterdam

Casa Gitane

Op de Lijnbaansgracht bevindt zich de prachtige in aardse kleuren gehulde studio van Casa Gitane. Gitane betekent gipsy en zo herbergt Casa Gitane meubels en voorwerpen geïnspireerd op verre oorden, wereldreizen en een nomadische levensstijl. Hun collectie bestaat uit drie belangrijke ingrediënten; unieke vintage stukken, een selectie van bestaande merken en onze eigen ontwerpen. Momenteel voornamelijk webshop en project inrichting.

Boodschappen
22219951_1927712430886413_4129215567659154981_o
32482879_2047475148910140_3670677208067735552_n
20
Adres
Amstelveld,
1017 VS Amsterdam

Plantenmarkt Amstelveld

Op maandagen het Amstelveld opgaan is een goed idee, je wordt meteen vrolijk van alle kleuren die op je afkomen. 30 kramen vol bloemen en planten waar je je tuin of balkon mee kan opfleuren. Ook hebben ze heel erg veel kruiden en bollen waar je je eigen moestuin mee kan beginnen. Je komt zeker niet met lege handen thuis.

www.madasiro.com
21
Adres
Utrechtsestraat 92,
1017 VS Amsterdam

Slagerij de Leeuw

Een begrip in Amsterdam en omstreken. De kwaliteit is heel hoog in deze slagerij, traiteur en delicatessenwinkel. Hij zit al sinds 1966 in de gezellige Utrechtsestraat. Ze hangen het vlees hier op een traditionele manier waardoor het zachter en smaakvoller wordt. Ze hebben een open keuken waar je kan zien hoe de professionele chefs te werk gaan. Ze hebben ook nog een wijnassortiment.

22
Adres
Albert Cuypstraat 267,
1073 BH Amsterdam

C&C Asianmarkt

Aan het einde/of het begin van de Albert Cuyp ligt de C&C Asian Supermarket. De winkel is een begrip voor eenieder die tijdens het koken opeens bijzondere ingrediënten nodig heeft. Naast verse producten heeft de winkel een gigantisch assortiment met allerlei Aziatische must-haves wanneer het op onmisbare ingrediënten aankomt. Van heerlijke pindasaus voor bij summer-rolls tot ongelofelijke hoeveelheden ingevroren dumplings om in bamboe mandjes zelf op te warmen. De sojasaus vliegt in grote flessen en betaalbare prijzen over de toonbank en ook voor enkele leuke decoraties kan je hier terecht. De pret kan echter niet op, want er is óók nog een klein hoekje in de supermarkt waar er vers eten wordt klaargemaakt. Hier kun je dus na je grote boodschappen genieten van onder andere verse summer-rolls of een banh mi (Vietnamese baguette).

Kunst & cultuur
64de1fcd0b0424e4a3a718cc_DSC08433-p-1600
62fd325e97b604afb95b89cd_001.M.SIMONS GALERIE- HOEKSTRA + STOCK-2022-PH.GJ-p-1600
23
Adres
Lijnbaansgracht 318,
1017 WZ Amsterdam

M.Simons

M.simons is opgericht in 2021. Het is een galerie gevestigd in het historische centrum van Amsterdam. Hoewel de galerie voornamelijk gefocust is op schilder-en grafische kunst biedt het ook ruimte voor diverse andere artistieke media, waaronder fotografie en beeldhouwkunst.

Displacement-with-Basim-Magdy-Andrei-Roiter-Hrair-Sarkissian-at-AKINCI
24
Adres
Lijnbaansgracht 317,
1017 WZ Amsterdam

Akinci

De liefhebber voor hedendaagse kunst zit bij AKINCI zeker goed. AKINCI heeft een grote focus op nieuwe ontwikkelingen in de hedendaagse kunst en is expliciet geëngageerd met kunstenaars die socio-politieke, ecologische en gender vragen in hun werk integreren. Hun programma wordt bepaald door een diversiteit aan media en cross-overs tussen geluid, architectuur, schilderkunst, beeldhouwkunst, film en installatie. Je vindt er werken van o.a. Stephan Balkenhol, Theo Jansen en Edwin Zwakman.

1600px-Giovanni-Nardi-Photography_5Y6A6134
25
Adres
Lijnbaansgracht 314,
1017 WZ Amsterdam

Lumen Travo Gallery

Lumen Travo is opgericht door Marianne van Tilborg in 1985. Het is een hedendaagse kunstgalerie in Amsterdam. Elk jaar organiseert de galerij diverse tentoonstellingen in samenwerking met zowel opkomende als gevestigde kunstenaars. Lumen Travo maakt zich zorgen over actuele thema's zoals identiteit, representatie en postkolonialisme en streeft ernaar de veelheid aan stemmen te laten zien die een rol spelen in onze geglobaliseerde samenleving. Door krachtige en diverse artistieke perspectieven te presenteren, die niet beperkt blijven tot het westerse gezichtspunt, engageert deze galerij zich in een visueel gesprek met open ogen voor de hele wereld.

Affordable Art Fair Amsterdam, 9-13 Oktober 2024

Affordable Art Fair Amsterdam, 9-13 Oktober 2024

Brutalisme in Amsterdam: Beton, Form Follows Function en Een Nieuw Perspectief

Brutalisme in Amsterdam: Beton, Form Follows Function en Een Nieuw Perspectief

Een voormalig stoffenmagazijn

Een voormalig stoffenmagazijn

Recent bekeken
Overzicht alle woningen

Deze site maakt gebruik van cookies.

Voor welke cookies geef je akkoord?