Deze charmante dubbele bovenwoning van circa 133 m² is gelegen in het hart van Amsterdam-Zuid, op een rustige locatie met gemakkelijke toegang tot de levendigheid van de stad en het Vondelpark. Het appartement, gelegen op eigen grond, beslaat de tweede en derde etage en biedt drie slaapkamers, een studeerkamer, een ruime woon- en eetkamer, een badkamer, een aparte keuken, en veel natuurlijke lichtinval. Deze woning combineert op perfecte wijze privacy, comfort en charme.

Rondleiding
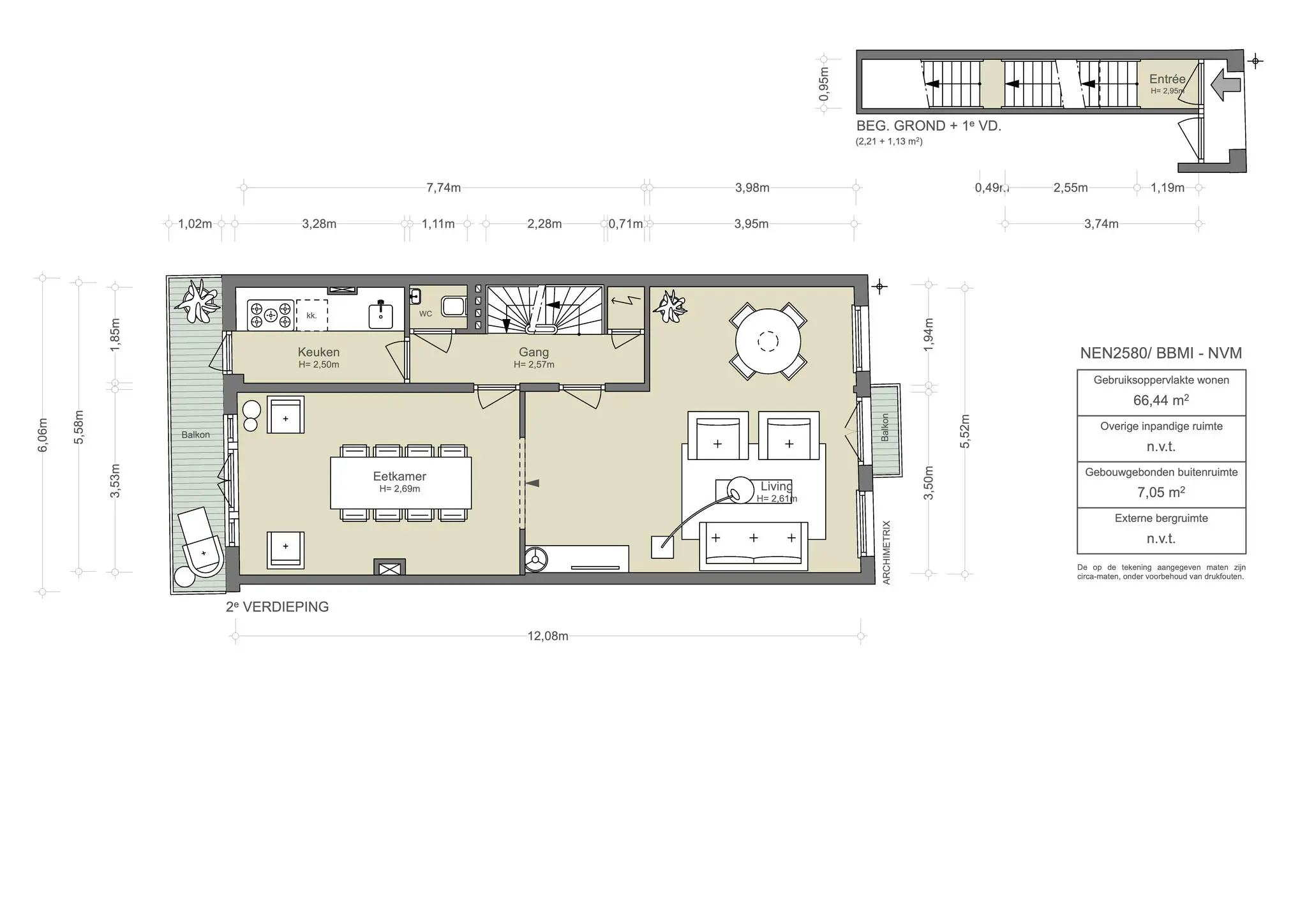
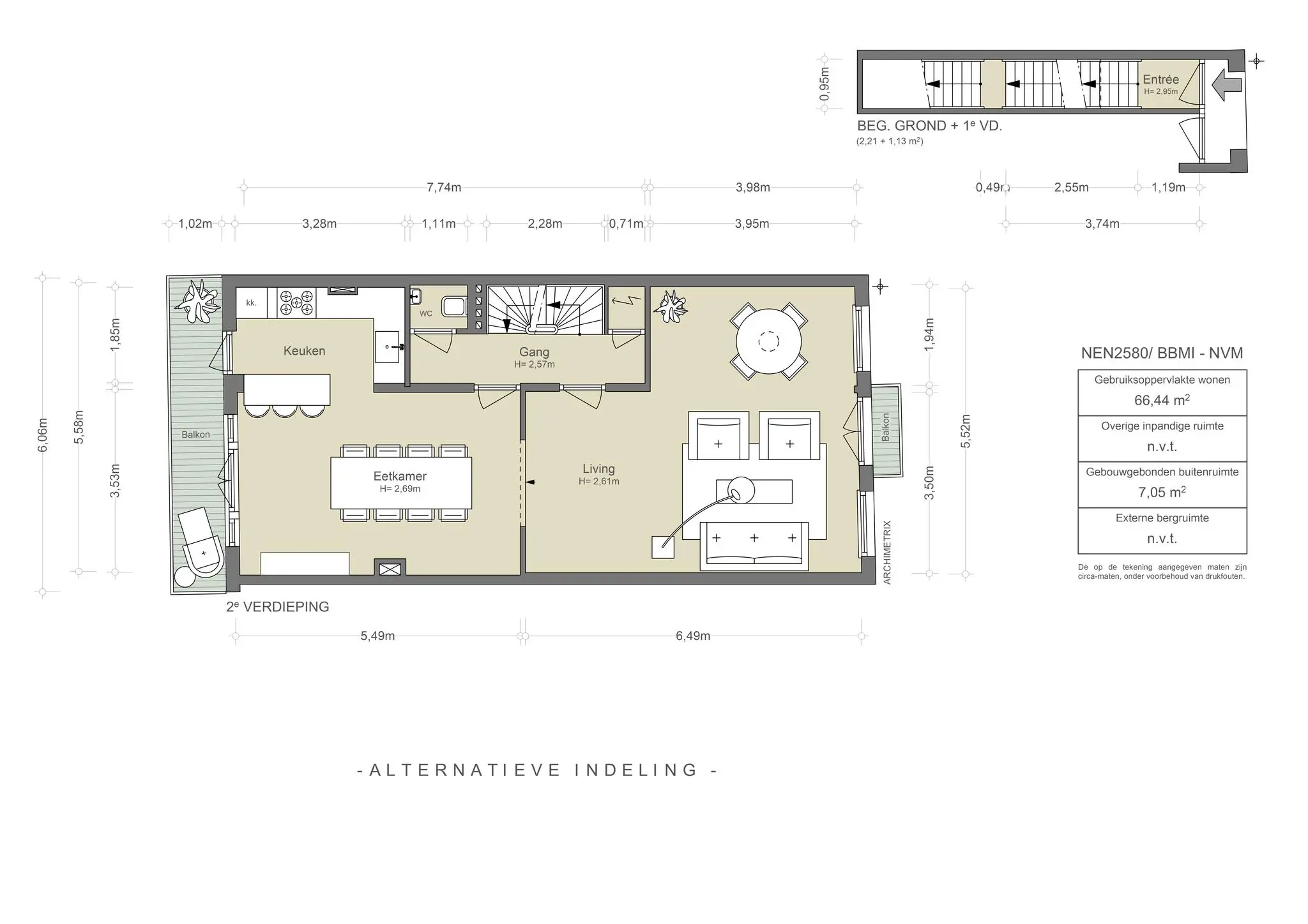
Welkom op de Emmastraat. Je stapt het bovenhuis binnen op de tweede verdieping. De woonkamer aan de voorzijde is licht, ruim en kijkt uit over de straatbomen. Via de en-suite deuren loop je naar de eetkamer aan de achterzijde, waar openslaande deuren je meenemen naar het balkon op het zuidoosten. De keuken is compact en functioneel, met uitzicht op het groen. Denk je de alternatieve indeling in, dan zie je een royale leefkeuken met een kookeiland — het hart van het huis, met zichtlijnen van gevel tot gevel. De trap naar boven leidt naar drie kamers: een ruime hoofdslaapkamer aan de achterzijde, een kinderkamer met daklicht en zitnis aan de voorzijde, en een werkkamer. De badkamer ligt centraal, met inloopdouche en een kalme uitstraling. Buiten is er het balkon — maar ook het dak. Met de juiste vergunning en toestemming ligt daar nog een verborgen kans: een dakterras met uitzicht over de stad. Emmastraat 19-II is klaar voor vandaag, én voor morgen.

Buurtgids
Gelegen in Oud-Zuid in het Museumkwartier, vlakbij de hoofdingang van het Vondelpark, en nabij de Cornelis Schuytstraat en de PC Hooftstraat. De buurt in Amsterdam-Zuid staat bekend om haar prachtige historische gebouwen, brede lanen en groene parken. Het is een van de meest gewilde buurten van Amsterdam door haar luxe uitstraling en centrale ligging. In de Emmastraat heerst een levendige sfeer en een ruim aanbod met diverse speciaalzaken voor de dagelijkse boodschappen en er zijn restaurants, bars en cafés. Voorbeelden hiervan zijn wijnhandel NAN, restaurant Carter en Café Garçon om de hoek. Het Vondelpark ligt aan het einde van de straat en voor cultuur is er Het Concertgebouw en het Museumplein met een gevarieerd cultureel aanbod. Bij de presentatie van deze woning op onze website, hebben we de leukste hotspots in de buurt verzameld.

Bijzonderheden
•    Gebruiksoppervlakte wonen circa 133 m²
•    Balkon gelegen op het zuiden van circa 7 m²
•    Gelegen op eigen grond
•    Energielabel D
•    Gemeentelijk beschermd stadsgezicht
 

AM106064-1966494-Emmastraat-19-2,-Amsterdam-226979128

Emma – 19
Onze cliënten kochten deze woning ooit aan op de veiling, toen in geheel verouderde staat. De locatie en het licht motiveerde hun de woning te kopen. Daarbij vinden wij het een fijne bovenwoning met een prettige maatvoering. Deze woning leent zich de investering om er een prettig toekomstig verblijf van te maken. Een bovenhuis met karakter en licht, gelegen in het hart van Oud-Zuid — met alles binnen handbereik en toch op enige hoogte van de drukte. Een woning die je meeneemt langs authentieke details, diepe zichtlijnen en slimme indelingsopties, maar bovenal: een plek die prettig aanvoelt. Wat wij hier aantroffen, is een uitzonderlijk compleet bovenhuis, verdeeld over twee verdiepingen, met potentie voor nóg meer. Niet alleen binnen klopt het — met ruime kamers, originele plafonds en een balkon op het zuidoosten — maar ook de plek maakt indruk. Vanuit de eetkamer kijk je zo het groen in, en op straat proef je dagelijks de levendigheid van de stad. Of je hier nu meteen intrekt, of het eerst naar je hand zet: dit is een huis met een lange toekomst. Voor wie ruimte zoekt, lucht, en de vrijheid om zijn eigen woonritme te bepalen.


Ronald van de Bijl | Makelaar Broersma Wonen
Kees Kemp | Makelaar Broersma Wonen
AM106064-1966494-Emmastraat-19-2,-Amsterdam-226979094
Het gebouw

Dit pand aan de Emmastraat, karakteristiek voor de vroege jaren 1900, weerspiegelt de klassieke schoonheid van de architectuur uit die tijd. Met zijn karakteristieke gevel, hoge ramen en verfijnd in roeden verdeelde kozijnen ademt het gebouw de charme van de late 19e en vroege 20e eeuw. Het traditionele metselwerk, waarin sierwerk door vlakken, verspringingen en “speklagen” de gevel een speelse en sierlijke uitstraling geeft, benadrukt dit karakter. Het betreft een vrij bovenhuis met eigen opgang, verdeeld over twee prettige woonlagen. De interne indeling combineert klassieke elementen zoals hoge plafonds en originele details met eigentijdse aanpassingen die het pand geschikt maken voor modern wonen. De herbestemming van het pand heeft de oorspronkelijke grandeur behouden. Een perfect voorbeeld van de verfijning en tijdloze allure van de Amsterdamse woonarchitectuur. De klassieke opzet leent zich uitstekend voor een eigentijdse interpretatie: met open plattegronden, werkplekken, suites en zelfs de mogelijkheid tot een dakterras. Emmastraat 19-II is daarmee geworteld in traditie, maar klaar voor een nieuwe toekomst.

AM106064-1966494-Emmastraat-19-2,-Amsterdam-226979090
AM106064-1966494-Emmastraat-19-2,-Amsterdam-226979234
AM106064-1966494-Emmastraat-19-2,-Amsterdam-226979122
AM106064-1966494-Emmastraat-19-2,-Amsterdam-226979158
Wonen en koken

Het ruime en lichte appartement beschikt over een twaalf meter diepe woonkamer, die zich kenmerkt door hoge plafonds en grote ramen. De kamer heeft zowel aan de voorzijde als aan de achterzijde vrij uitzicht. Aan de voorzijde strekt de woonkamer zich uit over de volle breedte, met een ligging op het westen. Hier geniet de kamer van de middag- en avondzon. Aan deze zijde zijn drie raampartijen, met in het midden openslaande deuren naar het Franse balkon. Aan de achterzijde beschikt de eetkamer over een balkon over de volle breedte van het pand. De keuken is voorzien van een vijfpits gasfornuis, een vaatwasser en een ruim werkblad in natuursteen. Deze keuken is afzonderlijk, maar kan met de eetkamer worden verbonden. Door de verbinding van beide kamers aan de voor- en achterzijde ontstaat een prettige, ruimtelijke eenheid.

AM106064-1966494-Emmastraat-19-2,-Amsterdam-226979112
AM106064-1966494-Emmastraat-19-2,-Amsterdam-226979132
AM106064-1966494-Emmastraat-19-2,-Amsterdam-226979248
AM106064-1966494-Emmastraat-19-2,-Amsterdam-226979242
AM106064-1966494-Emmastraat-19-2,-Amsterdam-226979320
AM106064-1966494-Emmastraat-19-2,-Amsterdam-226979256
AM106064-1966494-Emmastraat-19-2,-Amsterdam-226979272
Slapen en baden

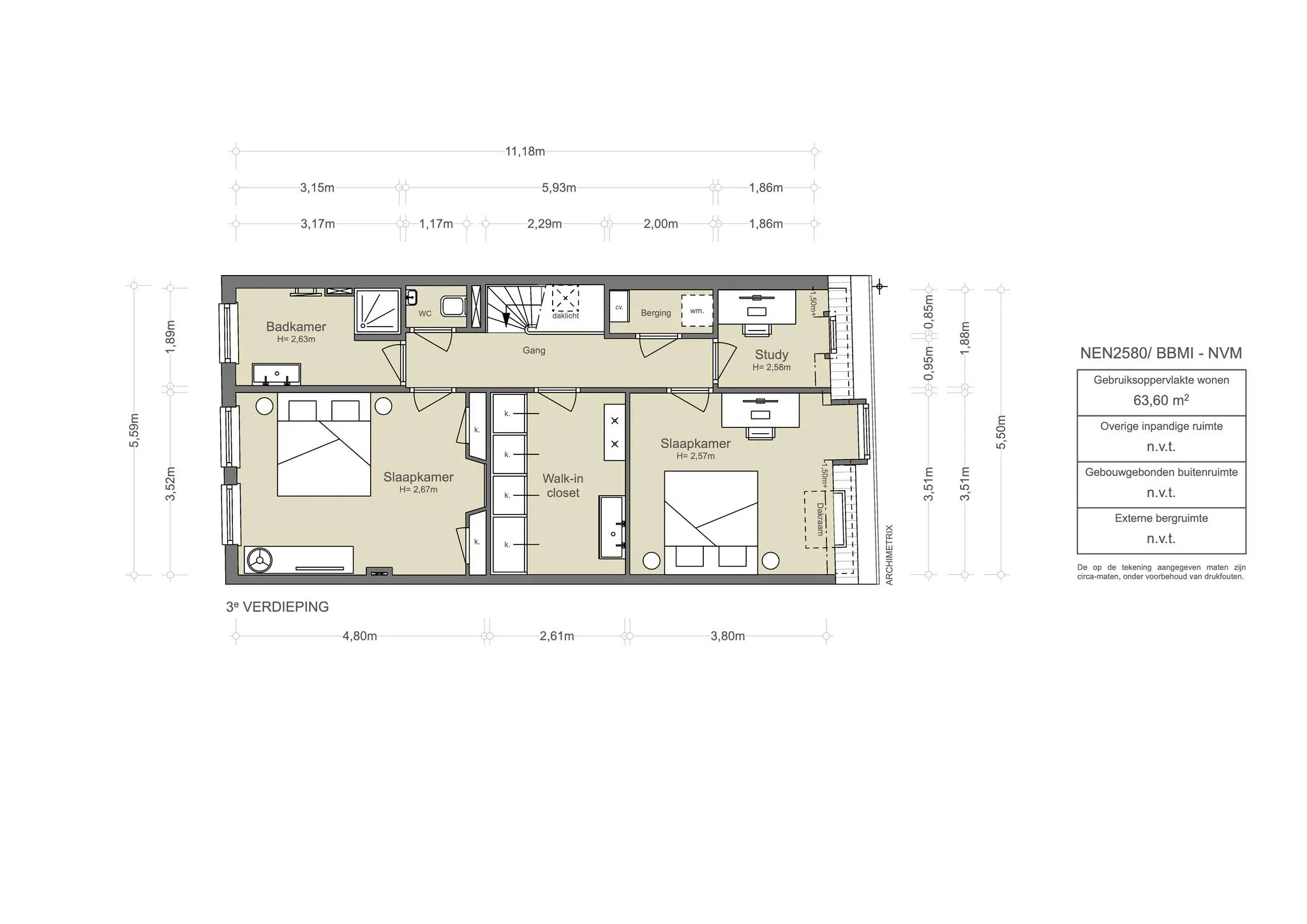
De woning heeft drie slaapkamers, een ruime badkamer en een grote centrale berging. De slaapkamer aan de voorzijde van het appartement biedt een prachtig uitzicht over de straat. De kamer is extra licht dankzij het dakraam en beschikt over een brede vensterbank. Daarnaast bevindt zich een tweede, kleinere slaapkamer, eveneens met een dakraam. De slaapkamer aan de achterzijde is zeer royaal en biedt eveneens veel licht en ruimte, met uitzicht op de groene achterzijde van de woning. Tussen de slaapkamers bevindt zich een ruime berging. De badkamer is ruim opgezet en voorzien van een royale inloopdouche en een brede wastafel. Door het grote raam in de badkamer valt veel licht naar binnen. Deze indeling van de verdieping kan eenvoudig worden geoptimaliseerd, bijvoorbeeld door het toevoegen van een extra badkamer en het vergroten van de kleinste slaapkamer.

Alternatieve indeling
De verdieping kan worden herschikt tot een luxe master suite, inclusief en suite-badkamer en kleedkamer. De andere kamers blijven behouden en krijgen meer wandruimte. De centrale badkamer wordt vergroot en uitgebreid met een ligbad. Deze indeling verhoogt het wooncomfort en versterkt de privacy.

AM106064-1966494-Emmastraat-19-2,-Amsterdam-226979316
AM106064-1966494-Emmastraat-19-2,-Amsterdam-226979326
AM106064-1966494-Emmastraat-19-2,-Amsterdam-226979298
AM106064-1966494-Emmastraat-19-2,-Amsterdam-226979294
AM106064-1966494-Emmastraat-19-2,-Amsterdam-226979210
AM106064-1966494-Emmastraat-19-2,-Amsterdam-226979138
AM106064-1966494-Emmastraat-19-2,-Amsterdam-226979192
Het balkon

De woning beschikt over een balkon over de volle breedte, toegankelijk vanuit de eetkamer en keuken. Vanaf het balkon is er vrij uitzicht op de binnentuinen van de Van Breestraat en de Valeriusstraat. Aan deze zijde schijnt de zon vanaf de ochtend tot in de middag. Het balkon aan de straatzijde ligt op het westen en is perfect voor een klein zitje om in de zon te ontspannen.

Mogelijkheid tot dakterras
Op het dak bestaat de mogelijkheid tot het aanleggen van een privé dakterras. Hiervoor is een omgevingsvergunning vereist, evenals toestemming van de VvE. Binnen de regels van het stadsdeel mag een terras maximaal 30% van het dakoppervlak beslaan en enkel bereikbaar zijn via een dakluik. Het zou een unieke toevoeging zijn — een stadsverdieping in de open lucht.

AM106064-1966494-Emmastraat-19-2,-Amsterdam-226979202
AM106064-1966494-Emmastraat-19-2,-Amsterdam-226979098
AM106064-1966494-Emmastraat-19-2,-Amsterdam-226979108
AM106064-1966494-Emmastraat-19-2,-Amsterdam-226979102
Buurtgids

Gelegen in Oud-Zuid in het Museumkwartier, vlakbij de hoofdingang van het Vondelpark, en nabij de Cornelis Schuytstraat en de PC Hooftstraat. De buurt in Amsterdam-Zuid staat bekend om haar prachtige historische gebouwen, brede lanen en groene parken. Het is een van de meest gewilde buurten van Amsterdam door haar luxe uitstraling en centrale ligging. In de Emmastraat heerst een levendige sfeer en een ruim aanbod met diverse speciaalzaken voor de dagelijkse boodschappen en er zijn restaurants, bars en cafés. Voorbeelden hiervan zijn wijnhandel NAN, restaurant Carter en Café Garçon om de hoek. Het Vondelpark ligt aan het einde van de straat en voor cultuur is er Het Concertgebouw en het Museumplein met een gevarieerd cultureel aanbod.

Bereikbaarheid
De Emmastraat is uitstekend bereikbaar. Het openbaar vervoer is goed vertegenwoordigd met verschillende tram- en buslijnen die u naar alle delen van de stad en daarbuiten brengen. Station Amsterdam Zuid en Station Amsterdam RAI zijn dichtbij. Met de auto is de Ring binnen 5 minuten te bereiken via meerdere wegen. Aan en wegrijden is daarom vrijwel altijd een eenvoudig. Met de fiets is de gehele stad door de centrale ligging uitstekend bereikbaar.

Parkeergelegenheid
Parkeren is mogelijk via een vergunningensysteem op de openbare weg (vergunningsgebied Zuid 8.1).
Met een parkeervergunning voor Zuid 8.1 mag je parkeren in Zuid-1, Zuid-2 en Zuid-8. Een parkeervergunning voor bewoners kost € 192,81 per 6 maanden. Momenteel geldt voor dit vergunningsgebied een wachttijd van 7 maanden. Een tweede parkeervergunning is in dit gebied niet mogelijk. (Bron: Gemeente Amsterdam, mei 2025)

AM106241-2002673-Valeriusstraat-146H,-Amsterdam-226883648
AM106064-1966494-Emmastraat-19-2,-Amsterdam-226979324
AM106064-1966494-Emmastraat-19-2,-Amsterdam-226979314
Kenmerken
Emmastraat 19-2, Amsterdam
Vraagprijs
  • € 1.160.000 k.k.
Beschikbaarheid
  • In overleg
Vertrekken
  • 6 kamers
  • 3 slaapkamers
  • 1 badkamer
Onderhoud
  • Intern: Redelijk
  • Extern: Redelijk tot goed
Oppervlakten & Inhoud
  • Woonoppervlakte: 133 m²
  • Gebouwgebonden buitenruimte: 7 m²
Bouwjaar
  • 1901
Installaties
  • Natuurlijke ventilatie
  • TV kabel
Ligging
  • In woonwijk
  • Vrij uitzicht
Parkeren
  • Betaald parkeren
  • Parkeervergunningen
Type verwarming
  • CV Ketel
Type warmwater
  • CV Ketel
Bestemming
  • Woonruimte
Eigendomssoort
  • Volle eigendom
Buitenruimte
  • Geen tuin
  • Balkon
Kadastraal
  • Gemeente: Amsterdam
  • Sectie: U
  • Nummer: 9774
Duurzaamheid
  • Dubbel glas
  • Vloerisolatie
  • Energielabel D
Soort
  • Appartement
  • Bovenwoning
Welke woonlaag
  • 2e
Bijzonderheden
  • Beschermd stads of dorpsgezicht
Overige kenmerken

OZB ('24): € 406,79 per jaar
Rioolrecht ('25): € 185,20 per jaar
Servicekosten VvE: Geen periodieke bijdrage

Plattegrond
Emmastraat 19-2, Amsterdam
AM106064-1966494-Emmastraat-19-2,-Amsterdam-227105302
AM106064-1966494-Emmastraat-19-2,-Amsterdam-227105308
AM106064-1966494-Emmastraat-19-2,-Amsterdam-228121224
AM106064-1966494-Emmastraat-19-2,-Amsterdam-228121228
Documenten
Emmastraat 19-2, Amsterdam
Locatie
Emmastraat 19-2, Amsterdam
Eten & drinken
01
Adres
Valeriusstraat 90,
1075 GH Amsterdam

Barolo

Bar Barolo brengt de sfeer van Noord-Italië naar de Valeriusstraat, midden in het elegante Amsterdam-Zuid. De wijnkaart is royaal en zorgvuldig samengesteld, met Barolo als vanzelfsprekend middelpunt. Op het menu: huisgemaakte pasta, klassieke antipasti en seizoensgerechten zonder opsmuk. Het interieur is warm en ingetogen, net als de gastvrijheid – hier wordt met aandacht gewerkt.

02
Adres
Valeriusstraat 85,
1071 MG Amsterdam

Carter

Carter is een moderne brasserie in Amsterdam-Zuid waar internationale klassiekers worden geserveerd met flair en finesse. Aan de Valeriusstraat voelt deze plek als een elegant buurtcafé – informeel, verfijnd en altijd gastvrij. Op de kaart staan tijdloze gerechten als steak tartare, burrata en kreeftenpasta, met een solide wijnselectie ernaast.

362085173_18198336283252516_5120199989074488114_n
03
Adres
Willemsparkweg 220hs,
1071 HX Amsterdam

Restaurant Visque

Op het prachtige hoekje van Amsterdam Zuid bevindt zich Restaurant Visque, waar vis de hoofdrol speelt. Onze menukaart is flexibel en afhankelijk van de dagelijkse keuze voor de meest verse en smaakvolle producten. Chef Menno geeft een eigen twist aan eenvoudige Franse gerechten, zoals coquilles, Hollandse garnalen, sliptong en onze bekende Tuna Wellington.

04
Adres
Valeriusstraat 128B,
1075 GD Amsterdam

Castell Zuid

Castell Zuid is de stijlvolle nieuwe vestiging van het iconische Amsterdamse grillrestaurant Castell, gevestigd aan de Valeriusstraat in Oud-Zuid. Waar het origineel in het centrum bekendstaat om zijn no-nonsense steaks en late diners, brengt deze locatie dezelfde smaken in een verfijnde setting. “Same taste, same vibe, different look” luidt het motto – en dat klopt: herkenbaar en toch helemaal nieuw.

312175149_2011502502368624_2613652535986311070_n
05
Adres
Koninginneweg 34,
1075 CZ Amsterdam

Tozi

TOZI betekent in Venetiaans dialect ‘een groep vrienden’, en dat voel je direct als je binnenkomt. Het is net alsof je terecht komt in één grote familie. De kaart toont een selectie van kleine Venetiaans geïnspireerde gerechten om te delen, bekend als cicchetti. Met een Italiaanse wijnkaart en een cocktailbar met Italiaanse gins en negroni's.

 

06
Adres
Cornelis Schuytstraat 8-10,
1071 JH Amsterdam

Brasserie van Dam

Brasserie van Dam staat bekend om een simpele maar effectieve receptuur: een niet te uitgebreide kaart met kwalitatief goede producten, acceptabele prijzen, goede koffie, een fijne sfeer en vriendelijk personeel.

273565404_2463417327127039_151412226997513128_n
07
Adres
Willemsparkweg 177,
1071 GZ Amsterdam

Batoni Khinkali

In Nederland is de Georgische keuken helaas ondervertegenwoordigd, ondanks haar rijke en boeiende culinaire erfgoed. Gelukkig biedt Batoni Khinkali een introductie tot deze smaakvolle keuken. Dit restaurant, opgericht door de Georgische klarinettist Levan Tskhadadze, combineert zijn liefde voor muziek met zijn passie voor koken. Hier kunnen gasten genieten van Georgische klassiekers zoals khinkali, katsjapuri en lobio, evenals een veganistisch en vleesmenu, allemaal geserveerd met de kenmerkende Georgische gastvrijheid.

brasserie-de-joffers-buiten02-1600px-1024×615
Brasserie_De_Joffers_Lunch-7-1600px-1024×683
08
Adres
Willemsparkweg 163,
1071 GZ Amsterdam

Brasserie de Joffers

Met een groot terras in de zomer én winter is brasserie Joffers al 15 jaar een bekende hotspot op steenworp afstand van het Vondelpark en het Museumkwartier. Mocht de zon niet schijnen, dan is er binnen genoeg plek - een met kunst en spiegelwanden ingerichte ruimte, wat voor een huiselijke sfeer zorgt. De ontmoetingsplek voor de buurt is ideaal voor ontbijt, lunch en diner of simpelweg voor een lekkere kop koffie.

downloadgram.org_612368537_18441156778097723_3706005334160954595_n
09
Adres
Johannes Verhulststraat 64-H,
1071 NH Amsterdam

Franzen

Chef en eigenaar Jesse Franzen groeide op in een horecafamilie in Haarlem. Zijn vader stond in de keuken, zijn moeder werkte in de bediening. Zijn eigen professionele reis begon in de keuken van het tweesterrenrestaurant Chapeau, waarna hij ervaring opdeed bij onder andere Aan de Poel, Ron Gastrobar en Lars Amsterdam. Met Franzen creëert Jesse een plek die voelt als een moderne huiskamer voor de stad. Toegankelijk en warm, maar altijd met een hoge standaard. Het menu is klassiek en herkenbaar, met hier en daar een verrassende twist.

84942268_1529941500492597_3844385910518972416_n
10
Adres
Apollolaan 138,
1077 BG Amsterdam

Roberto's Restaurant Amsterdam

In de top tien Italiaanse restaurants van Amsterdam mag Roberto’s niet ontbreken. Het restaurant is gelegen in het Hilton hotel, waar de iconische Italiaanse keuken sinds 25 jaar de borden vult. Het restaurant draait om pure en simpele smaken met gerechten als dungesneden aubergine, groene farfalle pasta met kreeftensaus en Lava cake.

366416263_660727485939210_4584064804028118782_n
11
Adres
Valeriusplein 4A,
1075 BG Amsterdam

Juliette

In Amsterdam Zuid  kun je bij Juliette genieten van ontbijt en lunch in de zon. Het menu is gebaseerd op verse ingrediënten van lokale leveranciers en wordt dagelijks samengesteld op basis van wat er op de markt beschikbaar is. Denk aan gerechten zoals de Porco Rosso: mortadella, stracciatellakaas, Spaanse guindillapepers en rode pesto. Voor het diner of een borrel kan je terecht bij buurman Bar Jules. De focus ligt op Zuid-Europese gerechten zoals pizzetta's, pata negra en geroosterde octopus.

Schermafbeelding 2022-05-11 om 16.25.41
12
Adres
Johannes Verhulststraat 32,
1071 NE Amsterdam

Pizzeria Le 4 Stagioni

Voor bezoekers van het Concertgebouw zijn de Romaanse pizza's met dunne bodem geen vreemde. Sinds 1978 voorziet de pizzeria in Oud-Zuid menige groep en (grote) families van authentiek Italiaans eten. Het interieur heeft een Mediteraans tintje en het menu biedt voor ieder wat wils, van verse pasta's en mals vlees, tot onmisbare antipasti en vegetarische alternatieven.

Schermafbeelding 2022-05-18 om 16.11.48
Schermafbeelding 2022-05-18 om 16.12.05
13
Adres
Willemsparkweg 74,
1071 HK Amsterdam

George W.P.A

George W.P.A is de ideale plek om neer te strijken voor een goed glas wijn en lekker eten met een chique touch. De brasserie in Zuid is naar eigen zeggen een combinatie van klassieke Franse gerechten, verpakt in New-Yorkse stijl en staat bekend om signature dishes zoals gegrilde kreeft en Blackened Tuna. Treed binnen (op reservering) in het "Upper South" van Amsterdam en see for yourself!

tip_10694-edible-treasures-large
14
Adres
Jacob Obrechtstraat 75,
1071 KK Amsterdam

Edible Treasures

In een voormalige slagerij in Amsterdam Zuid huist de concept store Edibe Treasures. Naast de 'edibles en drinkables' in de koffieshop vind je hier een prachtige selectie van alles voor op de tafel zoals zilverwerk, keramiek, tafellinnen, maar ook kookboeken en accessoires. Er worden ook regelmatig pop ups en workshops georganiseerd.

welling
15
Adres
Jan Willem Brouwersstraat 32,
1071 LK Amsterdam

Café Welling

Café Welling is een knus buurtcafé aan de J.W. Brouwersstraat; vlakbij het Museumplein. Hier kun je genieten van een lekker biertje aan de bar of op het terras als het zonnetje schijnt. Dit buurtcafé kent een lange geschiedenis. Het café bestaat al langer dan 70 jaar maar draagt pas sinds 1963 de naam Café Welling. Deze historie verklaart misschien wel de oude vertrouwde sfeer die in dit café altijd te vinden blijkt. Interessant voor muziekliefhebbers: bij Café Welling worden regelmatig Jazz-avonden georganiseerd.

16
Adres
Hendrik Jacobszstraat 18,
1075 PD Amsterdam

LOT61 Coffee Roasters

Geboren in Sydney, grootgebracht in Brooklyn en nu stevig geworteld in Amsterdam: LOT61 is allesbehalve een doorsnee koffiezaak. Als onafhankelijke koffiebrander combineert het merk internationale flair met lokaal vakmanschap. Slow coffee die met precisie en aandacht is gezet. De esthetiek is rauw maar verfijnd, de sfeer informeel en creatief – een plek waar buurt en barista samenkomen. Met hun B Corp-certificering laat LOT61 bovendien zien dat smaak en duurzaamheid hand in hand kunnen gaan.

17
Adres
Overtoom 255H,
1054 HW Amsterdam

Tamari Ya

Tamari Ya is opgezet door Imoto Yoshihisa en Yazawa Yuji, twee Japanse ondernemers die in hun dorp bij Hiroshima een farm-stay retreat begonnen en daar in 2023 hun eerste donutshop openden om hun gemeenschap nieuw leven in te blazen. Vanuit hun liefde voor rijst ontwikkelden ze de komeko-donut, gemaakt van rijstmeel uit eigen regio en daardoor van nature glutenvrij. In Amsterdam worden de donuts dagelijks met de hand gemaakt en gefrituurd in rijstolie, zonder conserveermiddelen of kleurstoffen. De textuur is anders dan je gewend bent: minder fluffy, meer chewy, met varianten als old fashioned of yeast-raised in smaken als matcha, zwarte sesam en pistache. De rustige, houtgedomineerde winkel op de Overtoom voelt als een stukje Japans platteland in de stad, waar aandacht voor eten en omgeving centraal staat.

Boodschappen
1593079817
18
Adres
Johannes Verhulststraat,
1066 VH Amsterdam

Slagerij De Schuyt

Slagerij De Schuyt, vernoemd naar hun locatie in de Cornelis Schuytstraat, heeft als symbool de parkiet. Net als de parkiet heeft deze kenmerkende slagerij zijn oorsprong in de jaren zeventig en hebben beiden hun plek veroverd in Amsterdam. Geïnspireerd door de parkiet begon eigenaar Evert Blauwendraat zijn slagerij met het idee om daar een karakteristiek, persoonlijk en bijzonder embleem aan te geven dat voor iedereen herkenbaar is. Bij dit familiebedrijf met een rijke historie kan je terecht voor vlees en delicatessen.

groentenier-winkel-voor-buiten
19
Adres
Cornelis Schuytstraat 35,
1071 NL Amsterdam

Groenteboer Tom Ensink

Groenteboer Tom Ensink zorgt ervoor dat klanten kunnen kiezen uit een exclusief assortiment aan eerlijke producten. Naast groenten worden er kazen, fruit, noten, oliën, wijnen én maaltijden verkocht - zorgvuldig geselecteerd voor de échte fijnproevers in Zuid. Specifieke wensen kunnen worden vervuld wat betreft het bestellen van producten, maar ook voor de verse maaltijden.

Schermafbeelding 2022-05-18 om 19.26.29
20
Adres
Van Breestraat 107A,
1071 ZJ Amsterdam

De Wijnkaart

In het Museumkwartier in Amsterdam-Zuid zit De Wijnkaart. Hier worden allerlei soorten wijnen uit de vergeten Oost-Europese wijnlanden geserveerd. Alhoewel de geschiedenis van het wijn maken hier is begonnen, zijn deze landen vaak vergeten in de wijnwereld. Als je benieuwd bent geworden naar alle soorten wijnen kan je een wijnproeverij doen in de wijnbar, waarbij je zelf mag uitkiezen welke je wil proeven. Naast de borrelplanken die wekelijks veranderen, staan er ook hoofdgerechten op het menu.

69495482_2355482024538342_8370925297519820800_n
21
Adres
1071 MR Amsterdam

ZuiderMRKT

De zuiderMRKT is een kleine, gezellige, wekelijkse buurtmarkt. Uniek door haar coöperatieve karakter. De coöperatie bestaat uit leden - enthousiaste buurtbewoners - die de markt een warm toedragen en meehelpen op de markt en in de groentekraam. De leden bepalen samen het aanbod van alle kramen. Zij kopen groente en fruit rechtstreeks in bij de boer, om ze voor eerlijke prijzen op het zuiderMRKT-plein te verkopen.

Interieur
Menno+Kroon+-+Maikel+Thijssen+Photography+-+www.maikelthijssen.com-3
22
Adres
Cornelis Schuytstraat 11,
1071 JC Amsterdam

Menno Kroon

De uitbundige en sfeervolle etalage van Menno Kroon toont zulke betoverende en bijzondere bloemen dat je wel even binnen moet kijken. Prille liefde, verrukking, het onvermijdelijke afscheid. Elk boeket van Menno Kroon geeft betekenis aan een bijzonder moment. Niks is ze te gek bij Menno Kroon en u kunt er terecht voor de meest speciale en uiteenlopende boeketten.

Annindriya-Perfume-_Lounge-Local-Minded-005_lichter_Lowres_480x480
perfumelounge 2
23
Adres
Cornelis Krusemanstraat 25,
1075 NC Amsterdam

Perfume Lounge

Bij de ‘Perfume lounge’ richten ze zich op het maken en adviseren van geuren voor bedrijven en organisaties en wat reuk kan toevoegen aan een merk of organisatie. Daarnaast hebben zij een winkel met een assortiment van de meest bijzondere parfums van de wereld, waar zij ook persoonlijk geuradvies geven. Advies voor op de huid of in huis. Volgens de experts voegt geur iets toe wat niet zichtbaar en tastbaar is. Je kunt geur op verschillende manieren inzetten in een ruimte. Het begint natuurlijk eerst dat het er niet negatief mag ruiken. Er zijn best wel veel ruimtes waar je het riool of sanitair ruikt, waar veel gerookt is of waar de afzuiging niet goed is en het naar eten ruikt. De meeste simpele manier van geur in huis is dat het schoon ruikt. Veel mensen associëren schoonmaak of wasmiddel met een schoon, opgeruimd en verzorgd huis. Daarnaast kun je de ambiance aanzetten. Net zoals met licht en muziek kun je de sfeer verzachten of versterken. Je kunt het heel huiselijk laten ruiken of juist heel modern. Landelijk of artistiek. Of juist heel minimalistisch of intiem.

Kunst & cultuur
241801382_194597056100298_7531339944812475387_n
24
Adres
Willemsparkweg 134,
1071 HR Amsterdam

Galerie Bildhalle

Bildhalle is oorspronkelijk opgericht als een Zwitserse galerie gespecialiseerd in klassieke en hedendaagse fotografie. De galerie heeft inmiddels vestigingen in Zürich en Amsterdam. Sinds de oprichting door Mirjam Cavegn in 2013, heeft de galerie zich ontwikkeld tot een van de meest gerespecteerde fotogaleries in Zwitserland. In oktober 2021 zette Bildhalle haar groei voort met de opening van een tweede galerie aan de Willemsparkweg in Amsterdam. Hier presenteert de galerie een zorgvuldig geselecteerde collectie van Nederlandse en internationale kunstenaars, variërend van opkomend talent tot gevestigde fotografen.

315727004_139279408874516_3171046503847699668_n
25
Adres
Willemsparkweg 64H,
1071 HK Amsterdam

Hama Gallery

Bij Hama Gallery geloven ze dat een galerie een grenzeloze ontmoetingsplaats is waar kunst en mensen samenkomen. Het doel is om kunst toegankelijker te maken door een unieke ervaring te bieden die breekt met traditie. De galerie verwelkomt bezoekers met open armen, of je nu binnenloopt voor een spontaan bezoek, een intieme privébezichtiging wilt, of samen met anderen kunst wilt vieren tijdens onze feestelijke openingen en tuinevenementen.

Uitgelicht; een heerlijk licht en slim ingedeeld appartement aan het Valeriusplein in Oud-Zuid

Uitgelicht; een heerlijk licht en slim ingedeeld appartement aan het Valeriusplein in Oud-Zuid

Tien jaar Shortlist Amsterdam: een jubileum met simpele succesrecepten.

Tien jaar Shortlist Amsterdam: een jubileum met simpele succesrecepten.

Tussen stad en stilte: Waterpost

Tussen stad en stilte: Waterpost

Onlangs bekeken
Bekijk het overzicht

Deze site maakt gebruik van cookies.

Voor welke cookies geef je akkoord?