We treffen de verkopers bij het pand. Zij hebben dit in het verleden aangekocht voor huisvesting voor de kinderen. Tijdens het gesprek kwam naar voren dat bij de aankoop ons kantoor ook heeft bemiddelt.
 
Nu is het gesplitst in vijf appartementen en is de huurder op één hoog vertrokken. Door de splitsing is het mogelijk deze nu apart te verkopen.
 
Een uniek appartement aan het begin van de Elandsgracht met zicht over het plein en de Prinsengracht. Centraler in de Jordaan lukt bijna niet.

Een ideaal appartement voor diegene die volop gebruik wil maken van de mogelijkheden die Amsterdam biedt.

Otte van Apeldoorn | Broersma Wonen 
  
 

AM103766-101771-Elandsgracht-32I,-Amsterdam-130877323
AM103766-101771-Elandsgracht-32I,-Amsterdam-130877324
AM103766-101771-Elandsgracht-32I,-Amsterdam-130877333
AM103766-101771-Elandsgracht-32I,-Amsterdam-130877331
AM103766-101771-Elandsgracht-32I,-Amsterdam-130877332
AM103766-101771-Elandsgracht-32I,-Amsterdam-130877337

Een rondleiding

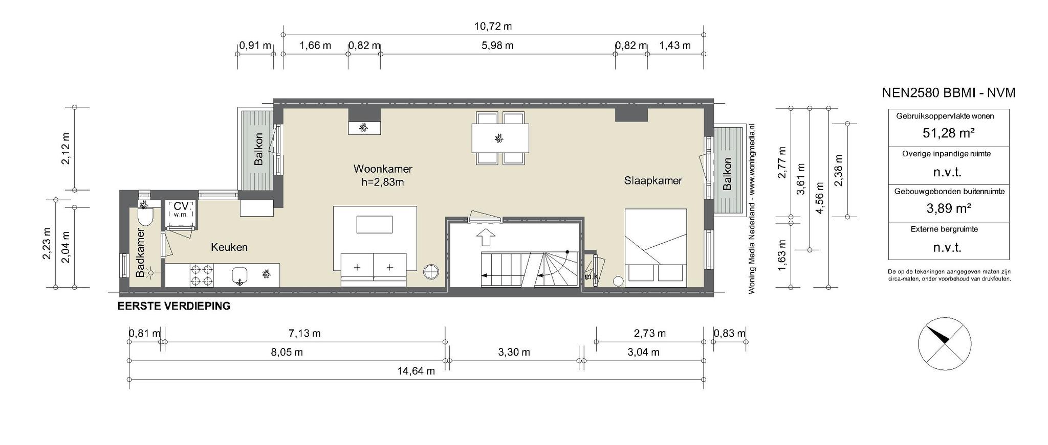
Eerste verdieping:
Bereikbaar via het algemene trappenhuis met een goed beloopbare trap. De entree geeft toegang tot de grote ruimte, die indien gewenst nog vrij is in te delen. De vorige bewoners gebruikten de woning zoals deze nu is ingericht. Aan de voorkant het slaapgedeelte en aan de achterzijde wonen en eten. In het appartement ligt een nette houten vloer. De badkamer is compact en combineert de douche en het toilet.

De bergruimte bevindt zich in een vaste wandkast in de keuken. De keuken kijkt uit op de binnenplaats en is voorzien van diverse inbouwapparatuur.

AM103766-101771-Elandsgracht-32I,-Amsterdam-130877321
AM103766-101771-Elandsgracht-32I,-Amsterdam-130877326
AM103766-101771-Elandsgracht-32I,-Amsterdam-130877328

Omgeving 
Het pand is bijzonder centraal gelegen nabij de mooie historische Prinsen- en Keizersgracht en dichtbij de Westerkerk en de Appeltjesmarkt. Gelegen op loopafstand van de levendige “Negen Straatjes” Een omgeving met een uitgebreid aanbod van luxe winkels, delicatessenzaken, traditionele ambachten en diverse horeca.

Het restaurant Gertrude is een persoonlijke favoriet met Franse keuken. Maar ook het bekende café De Waterkant met zijn beroemde terras en restaurant George zijn op loopafstand.

Bereikbaarheid
De Elandsgracht is gemakkelijk te bereiken met de fiets en het openbaar vervoer. Met de auto is het goed te bereiken via de Nassaukade. De A10 ligt op 10 minuten afstand. De verbinding met Schiphol is uitstekend via de buslijnen die vertrekken op de Appeltjesmarkt. (einde van de Elandsgracht)

AM103766-101771-Elandsgracht-32I,-Amsterdam-130877351
AM103766-101771-Elandsgracht-32I,-Amsterdam-130877329

De bijzonderheden

  • Gebruiksoppervlakte wonen ca. 51 m²
  • Balkon is gelegen op het noorden en het zuiden voorzijde circa 2 m² achterzijde circa 4 m²
  • Gelegen op eigen grond
  • Energielabel D
  • Rijks beschermd stadsgezicht
  • Servicekosten VvE circa € 85,- per maand

De parkeergelegenheid
Parkeren is mogelijk via een vergunningenstelsel. Op de prinsengracht en nabij liggende straten is er vaak plek. Ook is het mogelijk om te parkeren met een abonnement in de parkeergarage gelegen aan de Nassaukade. Het vergunningsgebied is Centrum 2d, de kosten voor bewoners zijn € 287,09 per 6 maanden. De geschatte wachttijd is nu circa vijf maanden.

Kenmerken
Elandsgracht 32I, Amsterdam
Vraagprijs
  • € 425.000,- k.k.
Beschikbaarheid
  • In overleg
Vertrekken
  • 1 kamer
  • 1 badkamer
Onderhoud
  • Intern: Goed
  • Extern: Goed
Oppervlakten & Inhoud
  • Woonoppervlakte: 51 m²
Installaties
  • Mechanische ventilatie
Ligging
  • In centrum
Parkeren
  • Betaald parkeren
  • Openbaar parkeren
  • Parkeervergunningen
Type verwarming
  • CV Ketel
Type warmwater
  • CV Ketel
Bestemming
  • Woonruimte
Eigendomssoort
  • Volle eigendom
Buitenruimte
  • Geen tuin
  • Balkon
Kadastraal
  • Gemeente: Amsterdam
  • Sectie: E
  • Nummer: 10814
Duurzaamheid
  • Gedeeltelijk dubbel glas
  • Vloerisolatie
  • Energielabel D
Soort
  • Appartement
  • Bovenwoning
Overige kenmerken
  • OZB ('22) € 166,92 per jaar
  • Rioolrecht ('22) € 152,50 per jaar
  • Servicekosten VvE € 85,- per maand 
Plattegrond
Elandsgracht 32I, Amsterdam
AM103766-101771-Elandsgracht-32I,-Amsterdam-130977725
AM103766-101771-Elandsgracht-32I,-Amsterdam-130977721
Documenten
Elandsgracht 32I, Amsterdam
Locatie
Elandsgracht 32I, Amsterdam
Kunst & cultuur
Overzicht-midden-Galerie-Bart-Krista-Jongsma
01
Adres
Elandsgracht 16,
1016 TW Amsterdam

Galerie Bart

Galerie Bart is een galerie voor hedendaagse kunst in Amsterdam met een focus op zowel gevestigde als jonge kunstenaars die in Nederland zijn afgestudeerd en uitblinken door hun vernieuwende vakmanschap. Bij Bart vind je kunstenaars die ofwel speels en fris, stevig en scherp, sereen en lichtvoetig of serieus met een vleugje humor werk maken. Zij zoeken de grenzen van hun medium op en bevragen deze, met als doel de grenzen te verleggen.

Installation-view-Through-Painters-Eyes-1-2000×1159
2022-08-04_RONMANDOS_133
02
Adres
Prinsengracht 282,
1016 HJ Amsterdam

Galerie Ron Mandos

Galerie Ron Mandos heeft in 20 jaar tijd een prominente plaats verworven binnen de Nederlandse kunstscene. De galerie opende haar deuren in Rotterdam in 1999 en is sinds 2010 verhuisd naar hun huidige galerie in het Amsterdamse galeriedistrict. Galerie Ron Mandos is een galerie voor hedendaagse kunst en presenteert tentoonstellingen van o.a. internationaal erkende kunstenaars maar de focus ligt op opkomende kunstenaars.

2020-11-24
03
Adres
Hazenstraat 54,
1016 SR Amsterdam

Galerie van Caroline O'Breen

De galerie van Caroline O'Breen is een begrip in de Amsterdamse hedendaagse kunstmarkt. En naast exposant op de Amsterdamse kunstbeurzen aanwezig te zijn, is de galerie ook gewoon te bezoeken in de Hazenstraat. Hier presenteert Caroline O’Breen toonaangevende beeldende kunst met een sterke focus op fotografie. In de tentoongestelde kunst is een sterke interesse in vrouwelijke kunstenaars en van bijzonder belang voor deze galerie zijn kunstenaars die nadenken over natuurlijke milieuthema's.

installation-overview-2
04
Adres
Elandsstraat 90,
1016 SH Amsterdam

Stigter van Doesburg

Stigter van Doesburg, gevestigd in de Jordaan, toont een gevarieerd programma van hedendaagse kunst. Van schilderkunst tot performance. Sinds de oprichting in 2001 heeft de galerie zich gericht op jonge kunstenaars en hebben ze een sterke vertegenwoordiging van vrouwelijke kunstenaars.

306981759_507603221373869_4893075116400113264_n
49178114_617962648641041_1446208182547382272_n
05
Adres
Hazenstraat 27bg,
1016 SM Amsterdam

Galerie Wouter van Leeuwen

De galerie van Wouter van Leeuwen is verstopt in de Hazenstraat in de Jordaan buurt. Als je niet op let loop je er zo langs. Maar dat zou zonde zijn, aangezien deze fotogalerie een bezoek zeker waard is! De Galerie van van Leeuwen vertegenwoordigt grote zowel internationale als nationale fotografen, met een breed scala aan kunstwerken. Foto’s van de westkust van Amerika in de jaren 70 tot aan kleurrijke natuurtaferelen van de Nederlandse wadden eilanden: bij deze galerie vind je het allemaal!

PAB6852_16z24cm_300dpi-1-scaled
06
Adres
Hazenstraat 20,
1016 SP Amsterdam

Martin van Zomeren

Midden in de Jordaan ligt de galerie Martin van Zomeren. Martin van Zomeren presenteert een tal van hedendaagse kunsttentoonstellingen voornamelijk bestaand uit fotografie met een focus op conceptuele kunst. In galerie Martin van Zomeren vind je de werken van onder andere Navid Nuur, Alexandra Leykauf en Cornelius Quabeck.

Tanja_Ritterbex_20012018_0466_670
07
Adres
Hazenstraat 11,
1016 SM Amsterdam

Althuis Hofland Fine Arts

In het historische centrum van Amsterdam bevindt zich Althuis Hofland Fine Arts. Een galerie voor iedereen met een nieuwsgierig oog, een voorliefde voor de kunst; van eerste ontmoeting, eerste aanwinsten tot kunstprofessionals. De galerie heeft een sterke focus op het medium schilderkunst en neemt ieder jaar mee aan belangrijke kunstbeurzen wereldwijd (zoals o.a. Art Brussels en NADA Miami)

installation-myrto-copy-1
08
Adres
Lauriergracht 94,
1016 RN Amsterdam

Torch Gallery

Torch werd in 1984 opgericht door Adriaan van der Have als podium voor Nederlandse en internationale hedendaagse kunst. Adriaan was een van de eersten die de mogelijkheden van fotografie als kunstvorm zag. Sinds 2009, zet Adriaans zoon, Mo, zijn gedachtegoed voort en toont zo wel gevestigde kunstenaars die toonaangevend zijn in verschillende disciplines, als jongere kunstenaars die de grenzen van hun respectieve mediums blijven verleggen.

Eten & drinken
image_ramen1_large-1777×1000-q75
09
Adres
Elandsgracht 2A,
1016 TV Amsterdam

Fou Fow Ramen

Vroeger was dit ramen restaurant een goed bewaard geheim dat verscholen zat in de Chinese buurt. Maar ondertussen heeft Fou Fow al twee locaties in de stad en is Fou Fow een bekende naam voor de Amsterdammer die van ramen houden. Op de gezellige en bruisende Elandsgracht eet je de overheerlijke en overigens goedgeprijsde – van origine Chineese - ramen van Fou Fow. Je kunt kiezen uit vier soorten soep op basis van verschillende bouillons en daar gaan dan vervolgens diverse ingrediënten in waaronder natuurlijk de main ingredient: noedels!

10
Adres
Elandsgracht 29-31,
1016 TM Amsterdam

Rakang

Op de altijd gezellige Elandsgracht zit het Thaise restaurant Rakang. Vriendelijke bediening, prettige sfeer en heerlijk authentiek Thais eten! En volgens sommigen zelfs de lekkere Thai van Amsterdam… Of je het daar mee eens bent laten we aan jou over. Maar ben je op zoek naar een lekker, vers, aziatisch restaurant. Dan is Rakang zeker de moeite waard. En na die lekkere Thaise maaltijd biedt de Elandsgracht genoeg gelegenheid om nog een biertje drinken in een van de vele kroegen.

413921630_17881045268992530_3502756144754358179_n
11
Adres
Elandsgracht 45,
1016 TN Amsterdam

Ela Restobar

ELA Restobar verwelkomt je graag in hun 'all-day' food concept. In de ochtend en middag is het de ideale locatie voor een heerlijke kop Spaanse koffie, een smakelijke lunch of een (zakelijke) bijeenkomst. Naarmate de dag vorder, verandert het in een plek waar je kunt genieten van een verfrissende cocktail of een smaakvol Italiaans biertje. En voor wie trek heeft, biedt chef Teun Dikkers een unieke draai aan de klassieke mediterrane keuken.

Schermafbeelding 2022-07-01 om 17.02.01
12
Adres
Eerste Looiersdwarsstraat 4,
1016 VM Amsterdam

Pazzi

De houtoven pizza's van Pazzi zijn sinds 2010 te vinden in elk stadsdeel van Amsterdam. De formule is simpel, elke locatie heeft een knus interieur waardoor je bij binnenkomst wordt begroet door een gemoedelijke Italiaanse sfeer. De houtovenpizza's worden gemaakt op authentieke wijze en de producten ter garnering worden met zorg uitgezocht. Het is een Italiaanse ervaring waar simpelweg niets op aan te merken is en je graag terugkomt. Mocht je zin in hebben in goede pizza, dan zit je bij Pazzi aan het goede adres.

Schermafbeelding 2022-07-01 om 17.17.51
13
Adres
Eerste Looiersdwarsstraat 15,
1016 VL Amsterdam

Bar Parry

Restaurant Balthazar’s Keuken - dat al eerder op deze site geprezen werd - heeft ook een jonger broertje/zusje: Bar Parry. Houd je van (natuur)wijn? Dan is deze wijnbar echt wat voor jou. Je kan heerlijk buiten aan de straat zitten; dan geniet je naast jouw glas wijn van de altijd bruisende Jordaan buurt. Zit je liever binnen? Dan lijk je je even in een hippe bar in Barcelona te bevinden; een strak interieur, houten stoeltjes en hier en daar een twist van verschillende kleuren zorgen voor Spaanse sferen, maar dan op z'n Amsterdams. Naast wijnen serveert Parry mooie kleine gerechten, charcuterie en kaas. De bediening weet alles van de wijnen die geserveerd worden en helpen je graag bij het maken van een keuze. Bar Parry is het perfecte recept voor een gezellige avond.

Katsu course
14
Adres
Hazenstraat 19H,
1016 SM Amsterdam

Men Impossible

Men Impossible is een ramen restaurant waar ze alleen maar 100% plant-based gerechten serveren. Bij Men Impossibe geloven ze in het verbeteren van de wereld door te focussen op enkel plantaardige voeding en brengen ze mensen samen met de lekkerste vegan gerechten uit de Japanse keuken. De plantaardige ramen heeft een sterke smaak maar dat maakt het zeker niet minder lekker. Door het gebruik van verse ingrediënten en umami smaken is een diner bij Men Impossible een ware smaakbeleving.

Schermafbeelding 2022-07-01 om 16.59.58
15
Adres
Elandsgracht 108,
1016 VA Amsterdam

Balthazar’s keuken

Dit is een favoriet! Balthazar’s keuken is een verborgen parel in Amsterdam en een absolute must als het op restaurants aan komt. Sinds 1995 is dit kleine familierestaurant al aan de Elandsgracht te vinden. In Balthazar’s keuken staat seizoen, herkomst en traditie centraal. Vader en zoon serveren eerlijke gerechten geïnspireerd op het aanbod van hun trouwe leveranciers. Op de kaart staat een vast drie gangen menu dat om de week wisselt. Hierin vormen vijf kleine voorgerechten om te delen, vlees of vis als hoofdgerecht en een verassend dessert de basis. Houten tafeltjes, witte tafellakens, mooi servies en geweldige bediening: Balthazar’s keuken is authentiek en een absolute must try.

258259290_1099450644203131_9046645986166328405_n
273169718_727311508235024_4226021460398763832_n
16
Adres
Berenstraat 8,
1016 GH Amsterdam

Chun Café

In de druk gelegen Negenstraatjes heeft Chun Café onlangs hun bubble tea menu uitgebreid met een selectie van speciale  sandwiches. De sandwiches zijn verkrijgbaar in vier smaken. De opties zijn: eiersalade, bacon ei en kaas, knoflookgarnalen ei en rib-eye bulgogi. Heerlijk boterachtig en perfect geroosterd.

387661944_893000069050630_4617540481649015931_n
17
Adres
Lauriergracht 71 H,
1016 RH Amsterdam

Wandu

Evandro Barbosa de Souza en zijn beste vriend Aldo Jesus Silva openden koffiezaak Wandu in het Amsterdamse centrum. De naam is een eerbetoon aan zijn oma, die hem 'Wandu' noemde, wat in het Afrikaans een koffieboontje betekent. Wandu biedt buurtbewoners vanaf half acht 's ochtends heerlijke Braziliaanse koffie, cappuccino, espresso Brasileirinho en pão de queijo; een Braziliaanse kaasbun. De mannen willen een gezellige plek creëren waar mensen tijd voor zichzelf nemen en tot rust komen. Daarnaast is er lof voor de charmante sfeer van Wandu, een verfrissend alternatief voor de Scandi esthetiek in Amsterdamse cafés.

242763162_10159469480317380_5670688408655907350_n
18
Adres
Runstraat 14,
1016 GK Amsterdam

Café de Doffer

Café in de 9-straatjes met een knus terras en een eenvoudige doch goede menukaart. Je kan hier ook terecht voor lunch en borrelhapjes. De Doffer is al sinds de jaren zeventig een begrip in de Amsterdamse 9 straatjes en trekt daarom ook een leuk gevarieerd publiek met uiteraard een goede portie Amsterdamse gezelligheid. Voor iedereen wat wils hier!

Interieur
anoukbeerents_003
19
Adres
Prinsengracht 467-BG,
1016 HP Amsterdam

Anouk Beerents

Anouk Beerents is sinds 1987 uitgegroeid tot een bekend begrip op het gebied van de import en export van antieke spiegels. Het atelier aan de Prinsengracht biedt ruimte aan hun collectie van ruim 300 spiegels uit de 18e en 19e eeuw, waarvan het merendeel zijn origine vindt in Frankrijk en Italië, en is verguld in bladgoud of bladzilver.

409344802_1424032745209928_3072233832484114538_n
Schermafbeelding 2022-07-01 om 13.17.49
20
Adres
Elandsgracht 59,
1016 TN Amsterdam

Misc store

Goed nieuws voor iedereen die houdt van stationary en andere mooie items. Op de Elandsgracht in het centrum kun je Misc vinden (kort voor Miscellaneous), die een zorgvuldig geselecteerd assortiment van kantoorbenodigdheden, alledaagse voorwerpen, design objecten en meubels aanbieden om te helpen bij het vinden van de juiste balans tussen werk en privé.

281661230_5289140751106028_5004304199774961695_n
282007955_5286220708064699_8260481307134760693_n
21
Adres
Looiersgracht 40B,
1016 VS Amsterdam

FEST

FEST is een Nederlands interieurmerk dat in 2013 is gestart door Femke Furnée. De kerngedachte achter FEST: een mooie omgeving toegankelijk maken, voor iedereen. FEST biedt high-end meubels en woonaccessoires – zonder dat daar een high-end prijskaartje aan hangt. De vrolijke, tijdloze en duurzame collecties worden ontwikkeld in samenwerking met internationale designers. Bij FEST vind je alles om jouw interieur een (kleurrijke) boost te geven.

269811997_4974956682516096_4977920613031829702_n
22
Adres
Prinsengracht 397,
1016 DN Amsterdam

360 volt

Gevestigd aan de Prinsengracht kun je 360volt vinden, opgericht door Hilde de Lange en Emile de Cock. 360volt heeft inmiddels een van de grootste collecties vintage originele industriële lampen en bijzondere objecten. De lampen van 360volt zijn bijzonder omdat alle lampen worden gerestaureerd, maar toch hun authentieke uitstraling behouden – industrieel, met strakke lijnen, eenvoudige vormen en van duurzame materialen.

Boodschappen
F2701F61-74D1-4E5C-A173-0C4AB51AC930_800x
chenin-shop
23
Adres
Hazenstraat 60,
1016 SR Amsterdam

Chenin Chenin

Chenin Chenin is een wijnwinkel, online shop en abonnementsservice voor natuurlijke wijnen, bier, cider en sake. Het is gevestigd in hartje Amsterdam. Het assortiment is een continu ontwikkelde lijst van originele en vooral drinkbare wijnen. Van ondergewaardeerde koopjes tot moeilijk te vinden juweeltjes. Bij Chenin Chenin houden ze van wijnen uit alle delen van de wereld, ongeacht trends.  Ze zijn geopend van dinsdag tot zaterdag van 12:00 tot 20:00 uur en op zondag van 12:00 tot 18:00 uur.

Schermafbeelding 2022-07-01 om 17.10.30
24
Adres
Looiersgracht 12,
1016 VS Amsterdam

Foodware

Foodware is de plek voor eerlijk voedsel: vers bereid en zonder kunstmatige toevoegingen. Combineer verschillende gerechten tot een maaltijd door te kiezen uit een assortiment van vis-, vlees- of vegetarische ingrediënten. Foodware was oorspronkelijk een traiteur, maar je kan tegenwoordig ook hun heerlijke verse maaltijden in het restaurant aan de Looiersgracht opeten. Maar heb je haast? Dan kan je het eten ook altijd nog gewoon meenemen. Het aanbod aan gerechten is redelijk vast en niet heel groot maar dit bevordert de kwaliteit. Zin in lekker, gezond en niet al te moeilijk eten? Dan is Foodware een perfecte plek om naar toe te gaan.

25
Adres
Elandsgracht 116AI,
1016 VB Amsterdam

Slagerij Siem van der Gragt

Slagerij Siem van der Gragt is al sinds 1966 een goede bekende in de Amsterdamse binnenstad. Siem begon zijn winkel in de Tweede Laurierdwarsstraat en verhuisde in 1977 naar de Elandsgracht. Siem had het streven om alleen dieren die een goed leven hadden gehad te kopen en richtte het Scharrelvlees controleorgaan op samen met andere belangengroepen, overheidsinstellingen en andere scharrelslagers. Met de missie om de consument te voorzien in behoefte naar duurzame en ambachtelijke vlees- en vleesproducten waarin zorg en respect voor het milieu, de dieren en de mens centraal staan, is hij een begrip in de binnenstad van Amsterdam.

Buurtgids: Het Museumkwartier

Buurtgids: Het Museumkwartier

Uitgelicht; Een voormalige drukkerij in de Pijp

Uitgelicht; Een voormalige drukkerij in de Pijp

De Ziel van Amsterdam

De Ziel van Amsterdam

Recent bekeken
Overzicht alle woningen

Deze site maakt gebruik van cookies.

Voor welke cookies geef je akkoord?