Uniek wonen in een prachtig hoek appartement aan de Eerste Weteringplantsoen.

Dit unieke appartement is gelegen op de bel etage in een openbaar park met uitzicht op de gracht. Het appartement heeft originele monumentale kenmerken en is hoogwaardig afgewerkt.

Een rondleiding

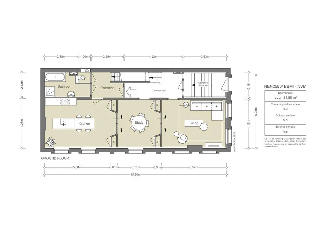
Begane grond
Binnenkomst middels het gemeenschappelijke trappenhuis. Bij binnenkomst in de woonkamer spreken de hoge plafonds en het licht gelijk tot de verbeelding. Het uitzicht op de gracht terwijl de openhaard brandt zorgt voor rust. Via de kamer en suite kom je terecht in de ruime eetkamer waar 6 personen plaats kunnen nemen.

Aan de achterzijde bevindt zich de luxe, moderne keuken met kookeiland en bar met uitzicht op de gracht en het Rijksmuseum. De keuken is voorzien van divers inbouwapparatuur en een wijnkoeler. Vanuit de keuken kom je in de hal terecht waar een separaat toilet zich bevindt. Naast het separaat toilet bevindt zich de stijlvolle badkamer. De badkamer is voorzien van een ruim ligbad en een inloopdouche.

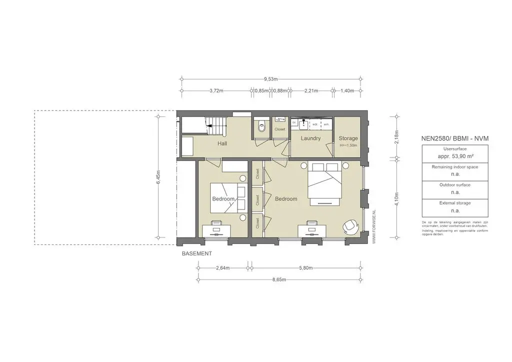
Souterrain
Op deze slaapverdieping bevinden zich de twee slaapkamers, een separaat toilet, diverse opbergkasten en de bijkeuken met wasmachine en droger.

De omgeving en bereikbaarheid
De buurt staat bekend om de gezellige winkels, sfeervolle restaurants en veel cafés. Het Museumplein met het Rijksmuseum en het Van Gogh museum bevinden zich op loopafstand. Ook het Leidseplein ligt op een steenworp afstand.

Het appartement is zeer goed gelegen. De tramhaltes 7, 10, 16, 24 en 25 zijn op loopafstand.

De parkeergelegenheid
Er is een mogelijkheid om een parkeervergunning aan te vragen.

De bijzonderheden
- Beschikbaar: per 1 juli;
- Huurprijs: € 4.300,- excl. per maand;
- Voorschotkosten GWL, internet, tv, schoonmaak ramen buiten en algemene ruimte (trappenhuis en hal): € 430,- per maand;
- Borg: 2 maanden huur;
- Huurperiode: Model A, minimaal 12 maanden;
- Gemeubileerd.

Kenmerken
Eerste Weteringplantsoen 6B, Amsterdam
Huurprijs
  • € 4.300 per maand
Beschikbaarheid
  • Per datum
Vertrekken
  • 5 kamers
  • 2 slaapkamers
  • 1 badkamer
Onderhoud
  • Intern: Uitstekend
  • Extern: Uitstekend
Oppervlakten & Inhoud
  • Woonoppervlakte: 136 m²
Bouwjaar
  • 1884
Parkeren
  • Betaald parkeren
  • Parkeervergunningen
Bestemming
  • Woonruimte
Buitenruimte
  • Geen tuin
Duurzaamheid
  • Dubbel glas
  • Energielabel E
Soort
  • Appartement
  • Dubbel-benedenhuis
Bijzonderheden
  • Gemeubileerd
  • Monumentaal pand
Plattegrond
Eerste Weteringplantsoen 6B, Amsterdam
AM106213-2010576-Eerste-Weteringplantsoen-6B,-Amsterdam-220098369
AM106213-2010576-Eerste-Weteringplantsoen-6B,-Amsterdam-220098385
Documenten
Eerste Weteringplantsoen 6B, Amsterdam
Locatie
Eerste Weteringplantsoen 6B, Amsterdam
Kunst & cultuur
1600px-Giovanni-Nardi-Photography_5Y6A6134
01
Adres
Lijnbaansgracht 314,
1017 WZ Amsterdam

Lumen Travo Gallery

Lumen Travo is opgericht door Marianne van Tilborg in 1985. Het is een hedendaagse kunstgalerie in Amsterdam. Elk jaar organiseert de galerij diverse tentoonstellingen in samenwerking met zowel opkomende als gevestigde kunstenaars. Lumen Travo maakt zich zorgen over actuele thema's zoals identiteit, representatie en postkolonialisme en streeft ernaar de veelheid aan stemmen te laten zien die een rol spelen in onze geglobaliseerde samenleving. Door krachtige en diverse artistieke perspectieven te presenteren, die niet beperkt blijven tot het westerse gezichtspunt, engageert deze galerij zich in een visueel gesprek met open ogen voor de hele wereld.

Displacement-with-Basim-Magdy-Andrei-Roiter-Hrair-Sarkissian-at-AKINCI
02
Adres
Lijnbaansgracht 317,
1017 WZ Amsterdam

Akinci

De liefhebber voor hedendaagse kunst zit bij AKINCI zeker goed. AKINCI heeft een grote focus op nieuwe ontwikkelingen in de hedendaagse kunst en is expliciet geëngageerd met kunstenaars die socio-politieke, ecologische en gender vragen in hun werk integreren. Hun programma wordt bepaald door een diversiteit aan media en cross-overs tussen geluid, architectuur, schilderkunst, beeldhouwkunst, film en installatie. Je vindt er werken van o.a. Stephan Balkenhol, Theo Jansen en Edwin Zwakman.

64de1fcd0b0424e4a3a718cc_DSC08433-p-1600
62fd325e97b604afb95b89cd_001.M.SIMONS GALERIE- HOEKSTRA + STOCK-2022-PH.GJ-p-1600
03
Adres
Lijnbaansgracht 318,
1017 WZ Amsterdam

M.Simons

M.simons is opgericht in 2021. Het is een galerie gevestigd in het historische centrum van Amsterdam. Hoewel de galerie voornamelijk gefocust is op schilder-en grafische kunst biedt het ook ruimte voor diverse andere artistieke media, waaronder fotografie en beeldhouwkunst.

Museumkwartier
04
Adres
Museumstraat 1,
1071 XX Amsterdam

Rijksmuseum

De architect, Pierre Cuypers, had voor het Rijksmuseum een ontwerp in historische stijl gemaakt, een mengeling van gotiek en renaissance en vol van vaderlandse symboliek. Na jarenlang gedoe - velen vonden het te middeleeuws, te katholiek en te weinig écht Nederlands – startte de bouw in 1876. In 1885 werd het officieel geopend. Naast de bestaande collectie kwamen bijna alle oudere schilderijen van de Stad Amsterdam in het Rijksmuseum te hangen, zoals Rembrandts Joodse bruidje die de bankier A. van der Hoop aan de stad had nagelaten. Ook kwam er kunst uit Haarlem, kreeg een deel van het Kabinet van Zeldzaamheden een vaste plek en het prentenkabinet een eigen ruimte. Een waardige collectie, in een schitterend gebouw.
Bij de laatste renovatie (2003-2013) kreeg het gebouw de oorspronkelijke structuur van Cuypers terug. Het gebouw is gemoderniseerd maar is tegelijkertijd van binnen weer meer het gebouw van Cuypers geworden, in al z’n grandeur. Schilderkunst, kunstnijverheid en geschiedenis zijn niet meer in aparte delen van het gebouw te zien. Alles vormt samen één chronologisch verhaal: het verhaal over de Nederlandse kunst en geschiedenis, van de Middeleeuwen tot en met de 20e eeuw.

Eten & drinken
Schermafbeelding 2022-06-27 om 17.58.26
05
Adres
Weteringstraat 41,
1017 SM Amsterdam

Restaurant Watergang

Sinds begin 2019 zit Watergang in een charmant 17 eeuws pandje in de leuke Weteringbuurt wat voorheen decennialang Spaans restaurant La Cacerola huisvestte. Uit het kleine keukentje op twee hoog tovert Chef Tim van Grootheest (voorheen jarenlang patissier bij Bord'Eau) verrassende gerechten.  Watergang serveert een verrassingsmenu dat regelmatig wijzigt en laveert tussen Franse en Italiaanse maar ook oosterse smaken.

weteringstraat-new-1604
Schermafbeelding 2022-05-18 om 18.36.27
06
Adres
Weteringstraat 48,
1017 SP Amsterdam

Back to Black

Back to Black is een koffiebar met een eigen branderij aan de Weteringstraat. Bij Back to Black wordt elk stap in het productieproces van koffie met passie en vakmanschap uitgevoerd. Vanuit hun liefde voor koffie reizen de eigenaren van Back to Black de hele wereld af op zoek naar de beste producten. Deze verkopen zij vervolgens in hun eigen zaak. Naast koffie serveren ze ook lekkere koekjes en taartjes én ze verkopen ook eigen t-shirts met mooie designs.

downloadgram.org_571902759_18102388009641879_2152803389231709999_n
downloadgram.org_574515938_18102388048641879_8716818313911497798_n
downloadgram.org_572126293_18102388021641879_5057052068189435512_n
07
Adres
Weteringschans 171,
1017 XD Amsterdam

Veneur

Chef-eigenaren Yoran Jacobi en Moriaan Koeleman staken hun jarenlange samenwerking in het voormalige sterrenrestaurant De Juwelier* in een nieuw Frans restaurant aan de Weteringschans. Samen met sommelier en mede-eigenaar Bas Hazen brengen ze hier een productgedreven keuken waarin vlees, grillades en open vuur de hoofdrol spelen. Het menu is klassiek Frans met moderne accenten en seizoensproducten, waarbij robuuste sauzen en precisie centraal staan. De zorgvuldig samengestelde wijnkaart vormt een perfecte partner voor de a-la-carte gerechten. Veneur combineert nostalgische charme met eigentijdse gastvrijheid, met een warme sfeer en een terras dat doet denken aan een Parijse bistro.

19264285_1400067526755014_1069961631133216664_o
08
Adres
Weteringstraat 37,
1017 SM Amsterdam

Café de Wetering

Een bruine kroeg ten voeten uit en niet eenvoudig te vinden als je niet precies weet waar je wezen moet. Het cafe bevind zich in een prachtig 17e eeuws pand. Er is een vide boven de bar waar zich een open haard bevindt. Dit bruincafé is ook bijzonder omdat het een uitstekende wijnkaart heeft, en dat zie je niet vaak in klassieke Amsterdamse kroegen. Uiteraard ook heerlijk bier, borrelnootjes en, niet onbelangrijk, je betaalt hier alleen in cash.

344794704_172401005427383_4729904843469609369_n
347634872_1412020886212625_495521124589363058_n
09
Adres
Frans Halsstraat 28,
1072 BS Amsterdam

Café Caron

Café Caron werd geboren uit de inspiratie van Alain en Roeltje thuis. Hun zonen Tom en David wilden een restaurant beginnen dat aanvoelde alsof je aan hun eigen eettafel zat, waar top gerechten zonder poespas in een huiselijke setting werden geserveerd. De menukaart is compact en wisselt naargelang het aanbod van het seizoen. De wijnkaart is stevig geworteld in Frankrijk. Inmiddels is het familiebedrijf uitgegroeid tot 4 zaken.

273217385_628333881829822_6168734948118851788_n
10
Adres
Ferdinand Bolstraat 10,
1072 LJ Amsterdam

Kaasbar Amsterdam

Bij Kaasbar Amsterdam krijg je kaas (joh) vooraf, kaas als hoofdgerecht, kaas on the side én kaas als dessert. Er is zelfs kaasijs! Alle producten die hier verkocht worden zijn uit Nederland. Ook leuk, voor de vegans zijn er ook diverse opties vegan kaas. Aan de bar kan je een lopende band met verschillende kaasjes voorbij zien komen.

72369503_2440972226192232_6382862125353664512_n
11
Adres
Ferdinand Bolstraat 12,
1072 LJ Amsterdam

Bardak

Bardak verplaatst Mediterraans Manhattan naar Amsterdam. In dit restaurant serveren ze de lekkerste soorten streetfood uit Tel Aviv. Naast heerlijke gerechten zoals gefrituurde bloemkool en crunchy falafel, maken ze hier ook spannende vintage cocktails met namen zoals Chili Cucumber Margarita en Sweet Bliss. Verse ingrediënten zijn key en ook de warme zomerse sfeer van het Midden Oosten mag niet ontbreken. Bardak is een een pareltje waar je kan genieten in Tel Aviv style.

12
Adres
Weteringschans 76,
1017 XR Amsterdam

An

Gelegen aan de Weteringschans 76 in Amsterdam, is Japans Restaurant An sinds 1989 een begrip voor authentieke, huisgemaakte Japanse gerechten. Het restaurant specialiseert zich in traditionele Japanse maaltijden zoals ze thuis bereid worden, met pure, verse en gezonde ingrediënten. Bij An staat ambacht centraal: bijna alle gerechten worden met de hand gemaakt. Gasten kunnen genieten van diverse Japanse klassiekers, zoals sushi, tempura en teishoku-setmenu’s. Er is daarnaast speciale aandacht voor groentegerechten, wat het restaurant toegankelijk maakt voor vegetarische en veganistische gasten.

265617006_1807622789446508_710233366890861875_n
13
Adres
Noorderstraat 19h,
1017 TR Amsterdam

Sukhothai Thanee

Misschien komt de naam van dit restaurant je bekend voor. Want de eigenaren van dit restaurant bezaten vroeger de succesvolle streetfood stal in Amsterdam, namelijk Sukothai Streetfood Expres. Tegenwoordig zijn ze volop bezig bezig met het runnen van een chique restaurant. Ze koken vanuit de Thaise traditie met eerlijke ingrediënten. Wat je zeker niet mag missen zijn de curry's van van versgemaakte currypasta’s.

275790806_542543747084575_7206843501789032588_n
14
Adres
Ferdinand Bolstraat 13-15,
1072 LA Amsterdam

Soju bar

Bij Soju Bar kun je genieten van heerlijk knapperige Korean Fried Chicken. Naast de Fried Chicken bieden ze ook andere Koreaanse gerechten aan en natuurlijk de befaamde Soju. Bij Soju bar kun je genieten van Korean Fried Chicken en dit wegspoelen met bier en Soju, een Koreaanse borrel die vergelijkbaar is met sake in Japan. Soju wordt meestal gemaakt van rijst en is een gedestilleerde drank die verrassend lekker is om te drinken. Als je je avond echt op z'n Koreaans wilt beginnen, bestel dan een sojubomb, een soort 'kopstootje' maar dan met soju in plaats van jenever.

image00029_compressed
101845496_271380147566071_7180259268128407552_n
15
Adres
Ferdinand Bolstraat 36 H,
1072 LK Amsterdam

Takumi Ramen Kitchen

Takumi is het zuster Restaurant Umaimon ramen op het Leidseplein. Het restaurant is intiem met uitstekend vriendelijke bediening. Takumi biedt een klein, maar heerlijk aanbod. Je hebt de keuze uit shio (zout), shoyu (soyasaus) of miso ramen met gevarieerde toppings en smaken.

 

foto6
Buffet-van-Odette-148
16
Adres
Prinsengracht 598,
1017 KS Amsterdam

Buffet van Odette

Odette Rigterink begon Buffet van Odette in 1994. Ze laadde pannen vol met zelfgemaakt eten in een krat voorop de fiets en serveerde een dagmenu aan jong en oud Amsterdam bij de crèche Enfant Terrible. Vanaf 2011 is het restaurant gevestigd op Prinsengracht 598, op de hoek van Weteringstraat. Ze serveren hun vaste klassiekers en koken ook met het seizoen mee en hebben een uitgebreide (natuur)wijnkaart. Van maandag tot en met vrijdag serveren ze zowel lunch als diner.

 

07892ef9-8e75-41cd-986e-cb8a3b027027
17
Adres
Museumstraat 2,
1071 XX Amsterdam

Rijks (*)

In het Rijks heeft Joris Bijdendijk de culinaire smaak van het Rijksmuseum op de kaart gezet. Hij werkt voornamelijk met ingrediënten van eigen bodem. Proef vooral zijn signatuur-gerecht, een millefeuille van fijne vellen rode biet met een beurre blanc die is opgewekt met sojasaus van Tomasu en frisse peterselie-olie. Vergeet ook niet een kijkje te nemen op de overheerlijke wijnkaart die is samengesteld door sommelier Isabelle Chow.

18
Adres
Prinsengracht 568,
1017 KR Amsterdam

Heuvel

Buurtbewoners en galeriehouders uit het Spiegelkwartier komen hier regelmaat op bezoek. Bij Café Heuvel is het bijna elke dag dag rond 17:00 al volop borreluur. 'Als ik sneuvel, dan bij Heuvel!' Het kleine hoekcafé met fijn terras is een van de oudste cafés van de stad.

Schermafbeelding 2022-10-05 om 14.40.44
19
Adres
Saenredamstraat 37,
1072 CB Amsterdam

La Dilettante

Eigenaren Olivier von Grumbkow en Hans Vervoort openden de deuren van La Dilettante. La Dilettante is open voor lunch en wijn. Bij de natuurwijnen worden hapjes geserveerd als quiches, tarte tatins, patés en rillettes. Een van die natuurwijnen die de mannen schenken heet La dilettante. Dat is niet de enige verklaring voor de gekozen naam. Het woord heeft verschillende betekenissen. Een daarvan is: iemand die iets doet uit liefhebberij.

tokyo_ramen_iki_ramen_restaurant_amsterdam_wat_is_ramen
20
Adres
Vijzelstraat 135,
1017 HJ Amsterdam

Tokyo Ramen Takeichi

Deze Japanse ramen keten heeft inmiddels al meerdere vestigingen over de hele wereld. In Amsterdam zijn inmiddels al drie vestigingen. Tokyo Ramen Takeichi is bekend om zijn gezonde ramen met kip en groentebouillon. Doordat ze trouw blijven aan de Japanse roots is het een authentieke restaurant. Naast hun specialiteit zijn de side dishes ook heerlijk. De 'karaage' zal je niet teleurstellen.

Schermafbeelding 2022-06-20 om 14.04.47
21
Adres
Ferdinand Bolstraat 37,
1072 LB Amsterdam

Onigiri YA!

De meeste mensen die door de Pijp struinen voor Japans komen niet veel verder dan het denken aan sushi en bubble tea (ook al komt dit oorspronkelijk uit Taiwan). Bij Onigri Ya staat dan ook specifiek op de deur vermeld dat deze items hier niet te koop zijn. In plaats daarvan is Onigri Ya een authentiek Japans restaurant en daarnaast ook een kruideniers- en delicatessenwinkel. Zoals verwacht zijn de Onigri’s een specialiteit: gekruide Japanse rijstballen in verschillende vormen, bedekt met nori en met vullingen van vis tot fruit. Voor eenieder die wel eens naar animé kijkt, Onigri Ya brengt het voedsel wat eenieder zo doet watertanden van het beeldscherm naar een lief klein winkeltje in de Pijp. Simpelweg een must-go.

Interieur
278287126_5017084395041979_5150113744866398002_n
278227977_5017084525041966_5244810507209283372_n
22
Adres
Lijnbaansgracht 319A,
1017 WZ Amsterdam

Casa Gitane

Op de Lijnbaansgracht bevindt zich de prachtige in aardse kleuren gehulde studio van Casa Gitane. Gitane betekent gipsy en zo herbergt Casa Gitane meubels en voorwerpen geïnspireerd op verre oorden, wereldreizen en een nomadische levensstijl. Hun collectie bestaat uit drie belangrijke ingrediënten; unieke vintage stukken, een selectie van bestaande merken en onze eigen ontwerpen. Momenteel voornamelijk webshop en project inrichting.

77A1012-HDR_s
RVO_DesignStudio-483_LR_s
23
Adres
Stadhouderskade 42,
1071 ZD Amsterdam

Ruud van Oosterhout design

Ruud van Oosterhout's studio en showroom ligt gelegen naast het Rijksmuseum in Amsterdam. De showroom weerspiegelt zijn passie voor interieurontwerp met verfijnde eenvoud, heldere lijnen en subtiele kleurcombinaties. Met een hecht team werkt hij aan herkenbare interieurontwerpen, waar design en kunst samenkomen in samenwerkingen met galerieën en kunstenaars. Van Oosterhout staat bekend om zijn passie, vakmanschap en samenwerkingen met ambachtslieden.

 

 

 

Boodschappen
overholtkamp
24
Adres
Vijzelgracht 15,
1017 HM Amsterdam

Patisserie Holtkamp

Patisserie Holtkamp is een bekend begrip onder de Amsterdammers. Ooit bekend geworden met de altijd verse tompouce, is Holtkamp tegenwoordig dé plek om de lekkerste (citroen)taarten en garnalenkroketten te halen. De recepten werken al jaren heel goed, want rond de feestdagen staat er altijd een rij. Het kleine winkeltje aan de Vijzelgracht is functioneel, maar vooral mooi authentiek. Het personeel is ontzettend vriendelijk en behulpzaam. Zeker een bezoekje waard.

downloadgram.org_608197557_17886555126421954_6843272127401052487_n
25
Adres
Saenredamstraat 32,
1072 CH Amsterdam

Layers Bakery

Layers is een bakery en deli in Amsterdam, opgericht door de Franse patissier Alexandre Scour, die zijn vakmanschap vertaalt naar een plek waar alles laag voor laag wordt opgebouwd. In de ochtenden draait boven het open pastry lab op volle toeren met boterige croissants, viennoiserie en patisserie die volledig in huis worden gemaakt. In de middag verplaatst de aandacht zich naar beneden, waar de deli verse sandwiches serveert met dezelfde toewijding aan kwaliteit en detail. Het concept draait om ambacht zonder opsmuk, met eten dat precies en met aandacht is bereid.

Het voormalig Gouwzee Museum

Het voormalig Gouwzee Museum

De markten van Amsterdam

De markten van Amsterdam

Uitgelicht; The Gentleman

Uitgelicht; The Gentleman

Onlangs bekeken
Bekijk het overzicht

Deze site maakt gebruik van cookies.

Voor welke cookies geef je akkoord?