In een voormalige frisdrankfabriek – een industriële ruimte van circa 208 m² met lift. Op de tweede etage van dit karakteristieke gebouw bevindt zich een bijzondere loft met een plafondhoogte van vijf meter. De ruimte is smaakvol gerenoveerd met aandacht voor de essentie: een zorgvuldige balans tussen openheid, intimiteit en comfort. De materiaalkeuze, de op maat gemaakte elementen en het verfijnde kleurpalet creëren een beleving van rust en geborgenheid – midden in de dynamiek van de stad.

Rondleiding
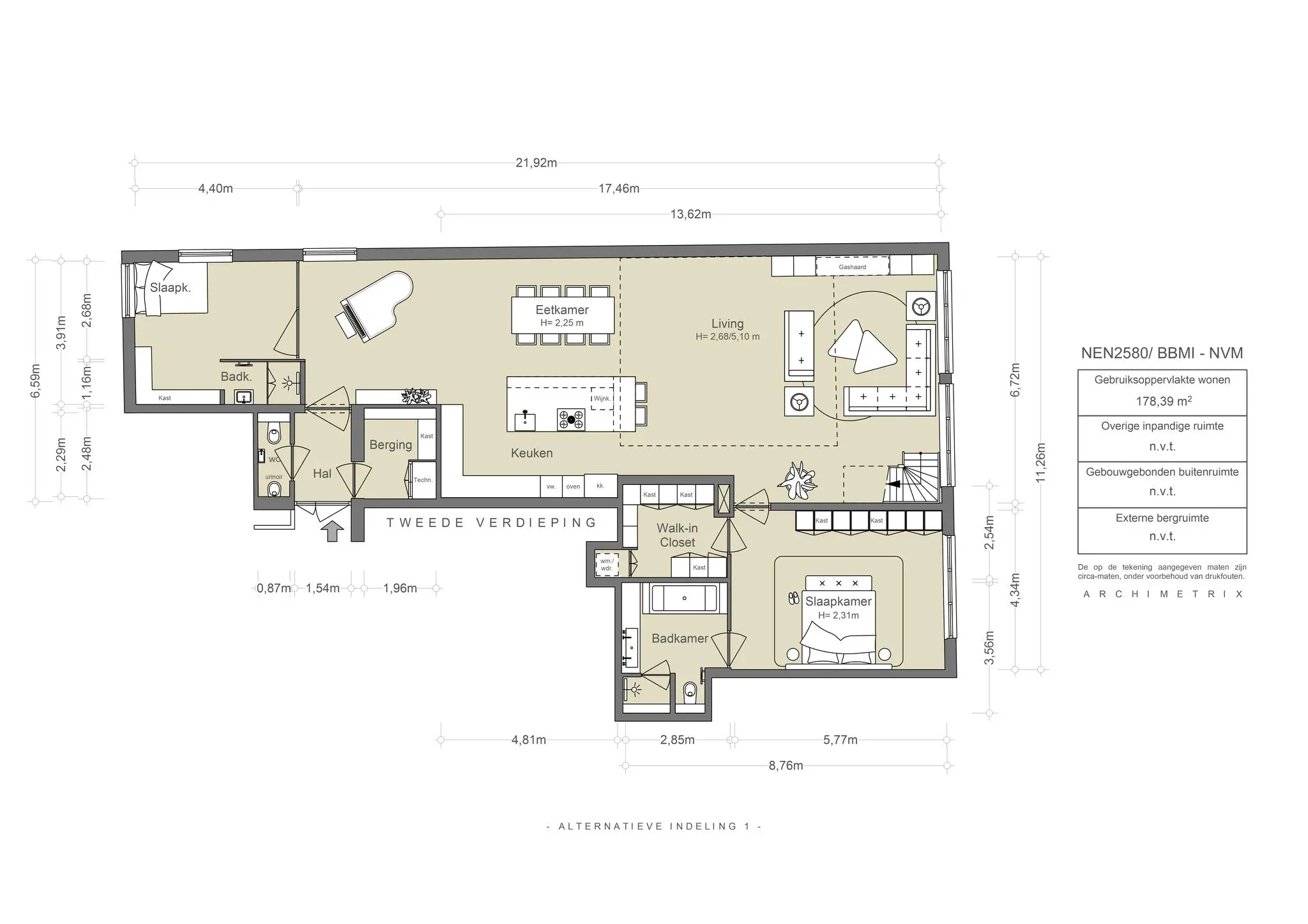
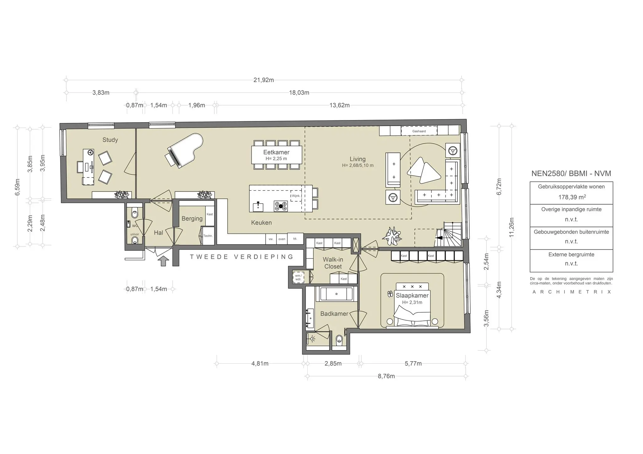
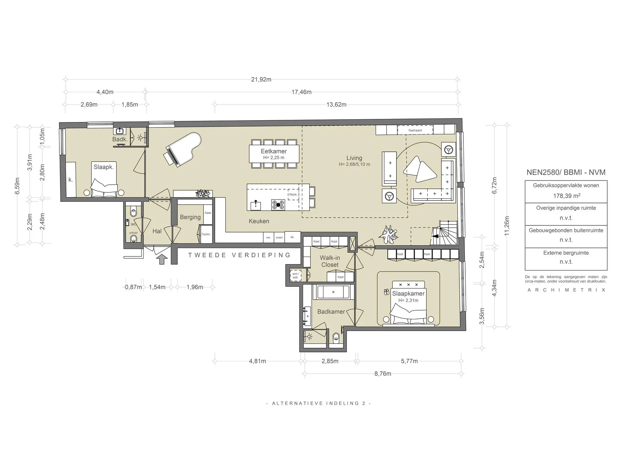
Tijdens de renovatie zijn onder meer vloerverwarming en airconditioning geïntegreerd, evenals diverse maatwerkoplossingen. Er zijn twee ruimten gerealiseerd die als slaapkamer, werkkamer of bibliotheek kunnen fungeren.
De leefruimte ontvouwt zich in een vloeiende compositie, van de royale living met vide tot de eetruimte aan de achterzijde. Het hoge plafond boven het zitgedeelte verheft het geheel – letterlijk en figuurlijk – tot een indrukwekkende woonbeleving. Licht valt gefilterd binnen via de bovenramen en accentueert de hoogte. Rondom een comfortabele hoekbank is een maatwerkwand gecreëerd met geïntegreerde boekenkast, gashaard en audiovisuele voorzieningen. De vide daarboven versterkt het gevoel van ruimte en verbinding, en biedt mogelijkheden voor een thuiskantoor of speelruimte.
De keuken ademt ingetogen luxe: donker gebeitst hout, een natuurstenen werkblad met expressieve tekening en een centraal eiland waar koken en ontmoeten samenkomen. Alle apparatuur – van wijnklimaatkast tot ingebouwde espressomachine – is zorgvuldig geïntegreerd. Aan het eiland nodigen barkrukken uit tot aanschuiven, terwijl aan de royale eettafel een gezelschap ruim plaatsvindt.
Aan de stille achterzijde van het object ligt de hoofdsuite, een besloten vleugel met rustgevende uitstraling. De slaapkamer is riant, uitgevoerd in zachte tonen en voorzien van airconditioning en een wandbreed raam met verduisterende gordijnen.
Aangrenzend bevindt zich de walk-in closet: volledig bekleed met op maat gemaakte kastenwanden in donker hout. Een elegante, functionele ruimte met het karakter van een boutique dressing. De ensuite badkamer sluit hier naadloos op aan en is ingericht met een verdiept ligbad, een spiegelwand over de volle breedte, dubbele wastafel, zwarte inbouwkranen en indirecte verlichting. Elk element is met zorg gekozen en toegepast.
Op deze verdieping bevindt zich tevens een tweede slaapkamer, eveneens voorzien van airconditioning. Er bestaat hier de mogelijkheid om een tweede badkamer ensuite te realiseren, conform de alternatieve plattegrond.

Buitenruimte
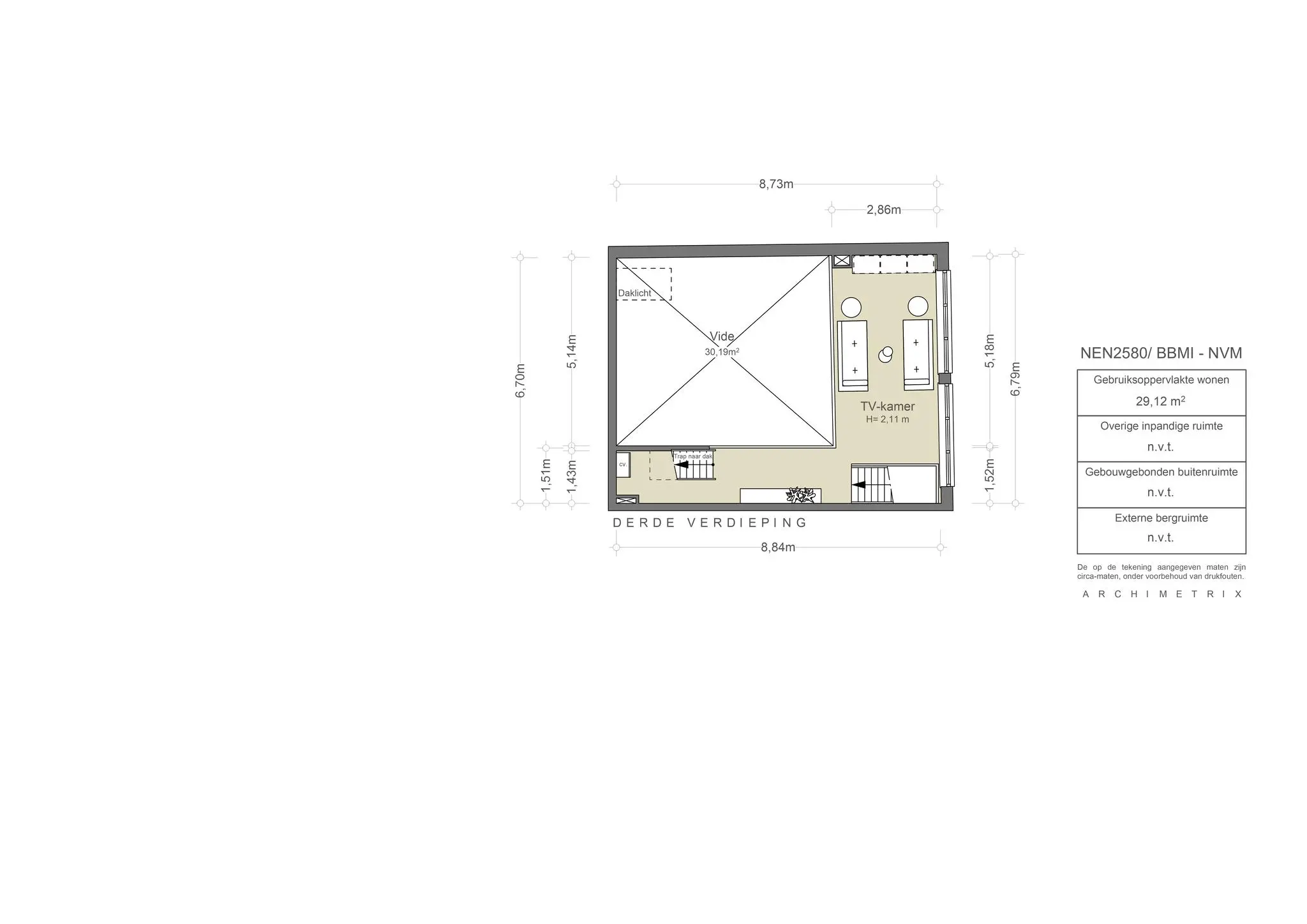
Hoewel de loft momenteel geen buitenruimte kent, schuilt er potentie in de architectonische opzet. De vide op de bovenste verdieping is bereikbaar via een interne trap en geeft toegang tot een tweede trap die leidt naar het dak. Hier bestaat – onder voorbehoud van goedkeuring door de Vereniging van Eigenaars en het verkrijgen van een omgevingsvergunning – de mogelijkheid om een dakterras te realiseren. Een beschutte, hoge plek met potentieel zicht op de stad en het straatbeeld van de Jordaan. Een zeldzame kans om het woonoppervlak letterlijk te verruimen met een buitenruimte vol licht en lucht, midden in de stad.

Buurtgids
De Eerste Passeerdersdwarsstraat ligt in het hart van de geliefde Jordaan. Een wijk die bekendstaat om haar intieme straatjes, historische grachtenpanden en levendige sfeer. De straat zelf is rustig en charmant, omringd door karakteristieke architectuur, een mix van monumentale gebouwen en moderne woningen.
Op loopafstand bevinden zich de Elandsgracht en Rozengracht, beiden bruisend met winkels, cafés, restaurants en culturele voorzieningen. Ook de beroemde grachtengordel is vlakbij: ideaal voor wandelingen langs het water of een boottocht door de stad. Alles wat Amsterdam uniek maakt ligt binnen handbereik — en dat voel je in het dagelijks leven.

Bijzonderheden
• Gebruiksoppervlakte wonen circa 208 m²
• De erfpacht is afgekocht tot 1 mei 2052
• Energielabel A
• Vloerverwarming
• Airconditioning
• Servicekosten VvE € 470,54 per maand
• Beschermd stadsgezicht
• BAG geeft voor het object woon- /kantoorfunctie
• WOZ is gebaseerd op wonen/kantoor
• Kadaster geeft voor het object gebruik - onbekend
• Akte uitgifte erfpacht geeft "bedrijfsruimte" aan, maximaal dertig procent (30%) bruto vloeroppervlak van het appartementsrecht als kantoor gebruiken voor een eigen bedrijf dat gevestigd is in het appartement.
• Splitsingsakte geeft “ruimte” aan
• Bestemmingsplan gemengd 2 aan

AM105209-2023797-Eerste-Passeerdersdwarsstraat-96,-Amsterdam-235546788

City Loft
Een stoere en luxueuze loft, midden in de Jordaan — een wens van velen, maar zelden te vinden. Dit bijzondere gebouw, een voormalige frisdrankfabriek, ademt nog altijd de sfeer van ondernemerschap en ambacht. Ooit wemelde het in deze buurt van de werkplaatsen en fabrieken; die geschiedenis leeft voort in de architectuur en uitstraling van de wijk.
De straat is kalm en onopvallend. Achter de grote deur ontvouwt zich een woning die verrast. Zowel het gebouw als de loft zelf ademen geschiedenis en industriële allure. De ruimte is met aandacht gerenoveerd: hoogwaardig, ruimtelijk en met een warme, intieme sfeer. Een oase van rust in het levendige centrum.


Judith de Jong | Makelaar Broersma Wonen
AM105209-2023797-Eerste-Passeerdersdwarsstraat-96,-Amsterdam-235546786
Designvisie

De loft bevindt zich op de tweede verdieping van de voormalige limonadefabriek Houweling. De industriële uitstraling is nog altijd voelbaar bij de entree, de lift en de verschillende hoogtes in het gebouw. De oorspronkelijke details — zoals de oude fabriekslampen in de hal en de voormalige goederenlift — zijn behouden en benadrukken het robuuste karakter. In 1909 verhuisde Houweling naar deze locatie aan de Passeerdersgracht, in die tijd een moderne fabriek. Later volgden uitbreidingen naar omliggende panden en pakhuizen.
De loft zelf is smaakvol gerenoveerd, met oog voor het oorspronkelijke karakter en een luxueuze afwerking.

AM105209-2023797-Eerste-Passeerdersdwarsstraat-96,-Amsterdam-235546914
AM105209-2023797-Eerste-Passeerdersdwarsstraat-96,-Amsterdam-235546792
AM105209-2023797-Eerste-Passeerdersdwarsstraat-96,-Amsterdam-235546798
AM105209-2023797-Eerste-Passeerdersdwarsstraat-96,-Amsterdam-235546826
Wonen en koken

De leefruimte strekt zich uit in één vloeiende beweging: van de zithoek onder de indrukwekkende vide tot aan de eettafel aan de achterzijde. Het vijf meter hoge plafond tilt het geheel letterlijk en figuurlijk naar een hoger niveau. Licht stroomt royaal binnen via de bovenramen. De zithoek is royaal en sfeervol, ingericht rondom een zachte hoekbank en een op maat gemaakte wand met boekenkast, televisie en gashaard. De vide erboven verbindt visueel met de bovenverdieping, waar ruimte is voor een kantoor of speelhoek.
De keuken is ingetogen en rijk tegelijk: donker gebeitst hout, een natuurstenen blad met uitgesproken nerf, en een centraal eiland waar koken en ontmoeten samenkomen. Alles is tot in detail geïntegreerd — van wijnklimaatkast tot espressomachine. De eettafel biedt royaal plaats aan een gezelschap, terwijl aan het eiland ruimte is voor een informeel moment.
Over de volledige lengte ligt een visgraatparketvloer met vloerverwarming — comfortabel en verbindend. Wonen, koken en eten gaan hier naadloos in elkaar over.

AM105209-2023797-Eerste-Passeerdersdwarsstraat-96,-Amsterdam-235546840
AM105209-2023797-Eerste-Passeerdersdwarsstraat-96,-Amsterdam-235546794
AM105209-2023797-Eerste-Passeerdersdwarsstraat-96,-Amsterdam-235546818
AM105209-2023797-Eerste-Passeerdersdwarsstraat-96,-Amsterdam-235546894
AM105209-2023797-Eerste-Passeerdersdwarsstraat-96,-Amsterdam-235546878
AM105209-2023797-Eerste-Passeerdersdwarsstraat-96,-Amsterdam-235546886
Slapen en baden

De hoofdsuite bevindt zich aan de rustige achterzijde en voelt als een eigen vleugel. De slaapkamer is ruim en kalm, met zachte kleuren, een wandbreed raam met verduisterende gordijnen, en airconditioning. Aangrenzend ligt de op maat gemaakte walk-in closet, met donkere kastenwanden, zacht tapijt en sfeerverlichting — een boutique dressing pur sang.
De ensuite badkamer sluit perfect aan op het geheel. Warm natuursteen met marmerstructuur, een verdiept ligbad, een royale spiegelwand, dubbele wastafel en zwarte kranen vormen een harmonieus geheel — zorgvuldig ontworpen en hoogwaardig uitgevoerd.
Op deze verdieping bevindt zich ook een tweede slaapkamer met airconditioning. Hier kan eventueel een tweede badkamer worden gerealiseerd; zie de alternatieve plattegrond.

AM105209-2023797-Eerste-Passeerdersdwarsstraat-96,-Amsterdam-235546872
AM105209-2023797-Eerste-Passeerdersdwarsstraat-96,-Amsterdam-235546874
AM105209-2023797-Eerste-Passeerdersdwarsstraat-96,-Amsterdam-235546856
AM105209-2023797-Eerste-Passeerdersdwarsstraat-96,-Amsterdam-235546902
AM105209-2023797-Eerste-Passeerdersdwarsstraat-96,-Amsterdam-235546900
AM105209-2023797-Eerste-Passeerdersdwarsstraat-96,-Amsterdam-235546904
De buitenruimte

Hoewel de woning momenteel geen buitenruimte kent, biedt de vide op de bovenste verdieping toegang tot het dak via een interne trap. Hier bestaat — mits goedkeuring van de VvE en een omgevingsvergunning — de mogelijkheid om een dakterras te realiseren. Hoog, beschut, en met potentieel uitzicht over de stad en het straatbeeld van de Jordaan. Een zeldzame kans op deze locatie om het woonoppervlak letterlijk uit te breiden met een terras vol licht en lucht.

AM105209-2023797-Eerste-Passeerdersdwarsstraat-96,-Amsterdam-235546898
AM105209-2023797-Eerste-Passeerdersdwarsstraat-96,-Amsterdam-235546926
AM105209-2023797-Eerste-Passeerdersdwarsstraat-96,-Amsterdam-235546952
AM105209-2023797-Eerste-Passeerdersdwarsstraat-96,-Amsterdam-235546944
Bereikbaarheid

De Eerste Passeerdersdwarsstraat ligt in het hart van de geliefde Jordaan. Een wijk die bekendstaat om haar intieme straatjes, historische grachtenpanden en levendige sfeer. De straat zelf is rustig en charmant, omringd door karakteristieke architectuur, een mix van monumentale gebouwen en moderne woningen.
Op loopafstand bevinden zich de Elandsgracht en Rozengracht, beiden bruisend met winkels, cafés, restaurants en culturele voorzieningen. Ook de beroemde grachtengordel is vlakbij: ideaal voor wandelingen langs het water of een boottocht door de stad. Alles wat Amsterdam uniek maakt ligt binnen handbereik — en dat voel je in het dagelijks leven.

Bereikbaarheid
De woning is centraal gelegen. Binnen zeven minuten fietsen ligt het Centraal Station. Op twee minuten loopafstand bevindt zich tram- en bushalte Elandsgracht, waar trams 5, 7 en 19 en nachtbussen N84 en N88 stoppen. Via de nabijgelegen uitvalswegen is de ringweg A10 goed bereikbaar.

Parkeren
Parkeren is mogelijk via een vergunningensysteem op de openbare weg (vergunningsgebied Centrum-2d). Met een vergunning voor Centrum-2d mag ook worden geparkeerd in Centrum-2. De kosten voor een parkeervergunning bedragen € 315,60 per zes maanden. Op dit moment geldt een wachttijd van 18 maanden. Een tweede vergunning is in dit gebied niet beschikbaar.
(Bron: Gemeente Amsterdam, juli 2025)

AM105209-2023797-Eerste-Passeerdersdwarsstraat-96,-Amsterdam-235546800
AM105209-2023797-Eerste-Passeerdersdwarsstraat-96,-Amsterdam-235546802
AM105209-2023797-Eerste-Passeerdersdwarsstraat-96,-Amsterdam-235546790
Kenmerken
Eerste Passeerdersdwarsstraat 96, Amsterdam
Vraagprijs
  • € 1.740.000 k.k.
Beschikbaarheid
  • In overleg
Vertrekken
  • 3 kamers
  • 2 slaapkamers
  • 1 badkamer
Onderhoud
  • Intern: Goed tot uitstekend
  • Extern: Goed
Oppervlakten & Inhoud
  • Woonoppervlakte: 208 m²
Bouwjaar
  • 1900
Installaties
  • Airconditioning
  • Alarminstallatie
  • Domotica
  • Lift
  • Mechanische ventilatie
Ligging
  • Aan rustige weg
  • In centrum
Parkeren
  • Betaald parkeren
  • Parkeervergunningen
Type verwarming
  • CV Ketel
  • Vloerverwarming geheel
Type warmwater
  • CV Ketel
Bestemming
  • Woonruimte
Eigendomssoort
  • Eigendom belast met erfpacht
Buitenruimte
  • Geen tuin
Kadastraal
  • Gemeente: Amsterdam
  • Sectie: E
  • Nummer: 10447
Duurzaamheid
  • Dubbel glas
  • Energielabel A
Soort
  • Appartement
  • Tussenverdieping
Welke woonlaag
  • 3e
Bijzonderheden
  • Beschermd stads of dorpsgezicht
Overige kenmerken
  • OZB ('26) € 908,02 per jaar
  • Rioolrecht ('26) € 192,04 per jaar
  • Servicekosten VvE € 470,54 per maand
  • BAG geeft voor het object woon- /kantoorfunctie
  • WOZ is gebaseerd op wonen/kantoor
  • Kadaster geeft voor het object gebruik - onbekend
  • Akte uitgifte erfpacht geeft "bedrijfsruimte" aan, maximaal dertig procent (30%) bruto vloeroppervlak van het appartementsrecht als kantoor gebruiken voor een eigen bedrijf dat gevestigd is in het appartement.
  • Splitsingsakte geeft “ruimte” aan
  • Bestemmingsplan gemengd 2 aan

 

Plattegrond
Eerste Passeerdersdwarsstraat 96, Amsterdam
AM105209-2023797-Eerste-Passeerdersdwarsstraat-96,-Amsterdam-235791952
AM105209-2023797-Eerste-Passeerdersdwarsstraat-96,-Amsterdam-235791962
AM105209-2023797-Eerste-Passeerdersdwarsstraat-96,-Amsterdam-235791970
AM105209-2023797-Eerste-Passeerdersdwarsstraat-96,-Amsterdam-235791978
Documenten
Eerste Passeerdersdwarsstraat 96, Amsterdam
Locatie
Eerste Passeerdersdwarsstraat 96, Amsterdam
Interieur
web-4_2880x
Martijn_Vonck_Fotografie_21_900x
01
Adres
Prinsengracht 645,
1016 HV Amsterdam

The Frozen fountain

Of je nou een tourist of ras-amsterdammer bent, het blijft heerlijk om door de negen straatjes te struinen. The frozen fountain is één van die winkels waar je ogen naar afdwalen wanneer je de etalage met excentrieke design meubels passeert. In 1992 werd de basis voor the frozen fountain gevormd, zijde een platforms voor designers – voornamelijk afgestudeerden van de Design Acedemy in Eindhoven. Omdat ‘Dutch Design’ internationaal al een behoorlijke naam had verkregen, was de samenwerking met jonge Nederlandse designers een gigantische stimulus voor de bekendheid van the frozen fountain. Naast een winkel met een prachtige collectie noemt the frozen fountain zichzelf ook een instituut: voor en door designers, om de eer aan Dutch Design hoog te houden. En hoe!

281661230_5289140751106028_5004304199774961695_n
282007955_5286220708064699_8260481307134760693_n
02
Adres
Looiersgracht 40B,
1016 VS Amsterdam

FEST

FEST is een Nederlands interieurmerk dat in 2013 is gestart door Femke Furnée. De kerngedachte achter FEST: een mooie omgeving toegankelijk maken, voor iedereen. FEST biedt high-end meubels en woonaccessoires – zonder dat daar een high-end prijskaartje aan hangt. De vrolijke, tijdloze en duurzame collecties worden ontwikkeld in samenwerking met internationale designers. Bij FEST vind je alles om jouw interieur een (kleurrijke) boost te geven.

409344802_1424032745209928_3072233832484114538_n
Schermafbeelding 2022-07-01 om 13.17.49
03
Adres
Elandsgracht 59,
1016 TN Amsterdam

Misc store

Goed nieuws voor iedereen die houdt van stationary en andere mooie items. Op de Elandsgracht in het centrum kun je Misc vinden (kort voor Miscellaneous), die een zorgvuldig geselecteerd assortiment van kantoorbenodigdheden, alledaagse voorwerpen, design objecten en meubels aanbieden om te helpen bij het vinden van de juiste balans tussen werk en privé.

Kunst & cultuur
tumblr_mxhhnyvV5C1qjguz6o1_1280
04
Adres
Prinsengracht 645,
1016 HV Amsterdam

Galerie Wim van Krimpen

Sinds 1991 is Galerie Wim van Krimpen gehuisvest aan de Prinsengracht. Wim van Krimpen is een van de meest gewaardeerde museumdirecteuren van Nederland daarbij staat hij wereldwijd ook bekend als een verwoed kunstverzamelaar. In zijn galerie in de Jordaan vind je bijzondere hedendaagse kunstwerken. Vergeet van tevoren niet te bellen want de galerie is uitsluitend op afspraak te bezoeken.

deur_6e47a554-ba37-4854-8ed7-dba08d3a300c
05
Adres
Prinsengracht 615H,
1016 HT Amsterdam

Galerie Madé van Krimpen

Galerie Madé van Krimpen, voorheen bekend als Multiplemadé, presenteert een mix van tentoonstellingen die werk tonen van zowel gevestigde als opkomende kunstenaars. Hoewel de galerie vooral gericht is op solotentoonstellingen en groepsexposities, werken ze ook regelmatig samen met creatieve collectieven en makers om pop-up-evenementen en take-overs te organiseren.

Cinecenter-Zaal-1-kopie-2
06
Adres
Lijnbaansgracht 236,
1017 PH Amsterdam

Cinecenter

Klein filmhuis met onder andere goede arthouse films. Zit aangesloten in het Cineville netwerk, dus met een Cineville pas kan je ook hier terecht. Ook leuk om van tevoren of na afloop een drankje te drinken. De locatie is direct naast het Leidseplein dus vanuit hier kan je nog veel andere leuke plekken bezoeken.

2020-11-24
07
Adres
Hazenstraat 54,
1016 SR Amsterdam

Galerie van Caroline O'Breen

De galerie van Caroline O'Breen is een begrip in de Amsterdamse hedendaagse kunstmarkt. En naast exposant op de Amsterdamse kunstbeurzen aanwezig te zijn, is de galerie ook gewoon te bezoeken in de Hazenstraat. Hier presenteert Caroline O’Breen toonaangevende beeldende kunst met een sterke focus op fotografie. In de tentoongestelde kunst is een sterke interesse in vrouwelijke kunstenaars en van bijzonder belang voor deze galerie zijn kunstenaars die nadenken over natuurlijke milieuthema's.

Eten & drinken
180661497_109525414592089_5524060405684313540_n
199541340_112181734417905_7498033300373632292_n
08
Adres
Looiersgracht 144,
1016 VT Amsterdam

Café de Jonge Wees

Café De Jonge Wees, gelegen aan de Looiersgracht 144, is een typische bruine buurtkroeg die de basis legt voor de welbekende Amsterdamse gezelligheid met een uitgebreide selectie bieren, jenevers en borrelhappen. Hier is altijd Ajax te zien en dankzij het zonnige terras kun je zowel binnen als buiten van de sfeer genieten. Bovendien is Café De Jonge Wees het zusje van Proeflokaal A. Van Wees, wat betekent dat alle jenevers die in de Jordaan worden geschonken afkomstig zijn van A. Van Wees Distilleerderij de Ooievaar in Amsterdam.

09
Adres
Prinsengracht 422,
1016 JC Amsterdam

Sinck

Teamleider Timo van der Stad is samen met Chef-kok Sander Bierenbroodspot en sommelier Sabas Joosten (eerder de Librije), restaurant en wijnbar Sicnk gestart. Bij Sinck gaan ze voor kwaliteit én voor een lage drempel. Chefkok Sander zorgt voor goede bereidingen van mooie producten met extra focus op sauzen. Het restaurant bevindt zich boven en beneden kom je terecht in de sfeervolle wijnbar. De wijnkaart is uitgebreid met een focus op Franse wijnen.

Schermafbeelding 2022-07-01 om 17.17.51
10
Adres
Eerste Looiersdwarsstraat 15,
1016 VL Amsterdam

Bar Parry

Bar Parry is het jonge broertje/zusjes van Restaurant Balthazar’s Keuken. Bij Bar Parry serveren ze sinds 2018 mooie kleine gerechten, charcuterie en kaas met een lekker glas wijn. Ze werken al bijna 25 jaar nauw samen met De Wijnwinkel (Runstraat 23). In de bar staat een groot deel van het assortiment op de kaart. Bijzonder; ze hanteren een vaste opslag op de winkelprijs zodat ze ook de meer bijzondere wijnen voor een goede prijs kunnen schenken.

11
Adres
Prinsengracht 424,
1016 JC Amsterdam

Café de Pieper

Café de Pieper is familiebedrijf met veel stamgasten. Het is een klassiek, maar gezellig café met houten lambrisering, waar je bier, cider en worst kunt krijgen.

Schermafbeelding 2022-07-01 om 17.02.01
12
Adres
Eerste Looiersdwarsstraat 4,
1016 VM Amsterdam

Pazzi

De houtoven pizza's van Pazzi zijn sinds 2010 te vinden in elk stadsdeel van Amsterdam. De formule is simpel, elke locatie heeft een knus interieur waardoor je bij binnenkomst wordt begroet door een gemoedelijke Italiaanse sfeer. De houtovenpizza's worden gemaakt op authentieke wijze en de producten ter garnering worden met zorg uitgezocht. Het is een Italiaanse ervaring waar simpelweg niets op aan te merken is en je graag terugkomt. Mocht je zin in hebben in goede pizza, dan zit je bij Pazzi aan het goede adres.

413921630_17881045268992530_3502756144754358179_n
13
Adres
Elandsgracht 45,
1016 TN Amsterdam

Ela Restobar

ELA Restobar verwelkomt je graag in hun 'all-day' food concept. In de ochtend en middag is het de ideale locatie voor een heerlijke kop Spaanse koffie, een smakelijke lunch of een (zakelijke) bijeenkomst. Naarmate de dag vorder, verandert het in een plek waar je kunt genieten van een verfrissende cocktail of een smaakvol Italiaans biertje. En voor wie trek heeft, biedt chef Teun Dikkers een unieke draai aan de klassieke mediterrane keuken.

242763162_10159469480317380_5670688408655907350_n
14
Adres
Runstraat 14,
1016 GK Amsterdam

Café de Doffer

Café in de 9-straatjes met een knus terras en een eenvoudige doch goede menukaart. Je kan hier ook terecht voor lunch en borrelhapjes. De Doffer is al sinds de jaren zeventig een begrip in de Amsterdamse 9 straatjes en trekt daarom ook een leuk gevarieerd publiek met uiteraard een goede portie Amsterdamse gezelligheid. Voor iedereen wat wils hier!

sfeer-buiten1
15
Adres
Runstraat 12,
1016 GK Amsterdam

Restaurant Smelt

Smelt is een gezellig en sfeervol restaurant in de 9 straatjes van Amsterdam. Het restaurant is gespecialiseerd in kaasfondue en biedt vijf verschillende soorten kaas aan. Naast klassieke kaasfondue kun je bij Smelt ook genieten van bijzondere smaken zoals truffel en pesto. Als je geen grote eter bent, kun je ook eenpersoonsporties bestellen. Het interieur van Smelt is knus en warm, met veel hout en kaarslicht. Een perfecte plek om te genieten van een heerlijke kaasfondue met vrienden of familie.

16
Adres
Elandsgracht 29-31,
1016 TM Amsterdam

Rakang

Op de altijd gezellige Elandsgracht zit het Thaise restaurant Rakang. Vriendelijke bediening, prettige sfeer en heerlijk authentiek Thais eten! En volgens sommigen zelfs de lekkere Thai van Amsterdam… Of je het daar mee eens bent laten we aan jou over. Maar ben je op zoek naar een lekker, vers, aziatisch restaurant. Dan is Rakang zeker de moeite waard. En na die lekkere Thaise maaltijd biedt de Elandsgracht genoeg gelegenheid om nog een biertje drinken in een van de vele kroegen.

Schermafbeelding 2022-07-01 om 16.59.58
17
Adres
Elandsgracht 108,
1016 VA Amsterdam

Balthazar’s keuken

Sinds 1995 is dit kleine familierestaurant al aan de Elandsgracht te vinden. In Balthazar’s keuken staat seizoen, herkomst en traditie centraal. Op de kaart staat een vast drie gangen menu dat om de week wisselt. Hierin vormen vijf kleine voorgerechten om te delen, vlees of vis als hoofdgerecht en een verassend dessert de basis. Houten tafeltjes, witte tafellakens, mooi servies en geweldige bediening: Balthazar’s keuken is authentiek.

313848685_1144510456168068_7188390628705923134_n
18
Adres
Runstraat 6,
1016 GK Amsterdam

Screaming Beans

Screaming Beans is een Amsterdams merk dat lokaal en internationaal bekend staat om zijn hoogwaardige koffie. Deze locatie bevindt zich te midden in de historische Negen Straatjes van Amsterdam.  Met zijn gezellige en familiaire sfeer is de winkel aan de Runstraat een tweede huiskamer geworden voor de ondernemers, bewoners en bezoekers van de Runstraat. Kom langs en geniet ook van een heerlijk gebakje, gebakken door Sara of Mateen.

19
Adres
Elandsgracht 140h,
1016 VC Amsterdam

Dutch Dabbawala

Dutch Dabbawala, een Indiaas restaurant aan de Elandsgracht, is zo vaak getipt dat men er móét bestellen. De butterchicken momo’s zijn een absolute must-try en werden meteen een favoriet. Het restaurant heeft een moderne twist aan klassieke Indiase gerechten gegeven en biedt ook een groot aantal vegetarische opties. Naast de momo's staan er op het menu ook andere lekkernijen zoals samosa's en verschillende curry's. Bestellen kan zowel voor afhaal als bezorging.

Vinkeles_Impression_Patio_LRS_06
Restaurant_Vinkeles_Food_LRS_13-1500×630
20
Adres
Keizersgracht 384,
1016 GB Amsterdam

Vinkeles (**)

Omsloten door hotel Dylan, is restaurant Vinkeles klein Frankrijk dichtbij huis. Met een prachtige locatie aan de Keizersgracht is het restaurant bij uitstek een chique aangelegenheid. De keuken draagt de handtekening van chef Jurgen van der Zalm die in 2023 zijn tweede ster er mee verdiende.

Boodschappen
Schermafbeelding 2022-07-01 om 17.10.30
21
Adres
Looiersgracht 12,
1016 VS Amsterdam

Foodware

Foodware is de plek voor eerlijk voedsel: vers bereid en zonder kunstmatige toevoegingen. Combineer verschillende gerechten tot een maaltijd door te kiezen uit een assortiment van vis-, vlees- of vegetarische ingrediënten. Foodware was oorspronkelijk een traiteur, maar je kan tegenwoordig ook hun heerlijke verse maaltijden in het restaurant aan de Looiersgracht opeten. Maar heb je haast? Dan kan je het eten ook altijd nog gewoon meenemen. Het aanbod aan gerechten is redelijk vast en niet heel groot maar dit bevordert de kwaliteit. Zin in lekker, gezond en niet al te moeilijk eten? Dan is Foodware een perfecte plek om naar toe te gaan.

324881858_834540850983260_7922799188280236168_n
22
Adres
Elandsgracht 113,
1016 TT Amsterdam

Vindict wine

Vindict wine is te vinden aan de rand van de Jordaan op de Elandsgracht. Omdat ze niet alleen van wijn houden maar ook van ontwerpen en bouwen, hebben ze deze prachtplek een eigen en duurzaam design gegeven. Elk onderdeel van de winkel heeft een vorig leven gekend. Zo is de vloer gemaakt van steenschotten uit oude steenfabrieken en worden de wijnen gepresenteerd in schoenen kasten uit de Puma-fabriek van het voormalige Tsjecho-Slowakije.  Er wordt hier elk soort wijn aangeboden: van vijf euro tot een fles Dom Pérignon Champagne. Alle witte, rosé en bubbels zijn gekoeld verkrijgbaar.

kaaskamer-amsterdam-cheese-lunch-broodjes-speciale-kaas-80
23
Adres
Runstraat 7,
1016 GJ Amsterdam

Kaaskamer

De naam zegt het al; bij de Kaaskamer kan je terecht voor kaas. Van de vloer tot het plafond is deze winkel gevuld met kaas waarbij vakmanschap en traditie voorop staan. Bij deze kaasspeciaalzaak kan je tussen de 300 en 400 soorten kaas kopen uit heel Europa. Je kan hier je broodje beleggen met ruime keuze en om het af te maken kan je ook kiezen tussen verschillende huisgemaakte sausjes. Uit Frankrijk worden de kazen iedere twee weken zelf opgehaald en in Nederland ligt de focus op biologische kazen die rechtstreeks van de boer komen. Ook worden er wijnen, salades, olijven, hammen en noten verkocht voor een complete borrelplank.

24
Adres
Elandsgracht 116AI,
1016 VB Amsterdam

Slagerij Siem van der Gragt

Slagerij Siem van der Gragt is al sinds 1966 een goede bekende in de Amsterdamse binnenstad. Siem begon zijn winkel in de Tweede Laurierdwarsstraat en verhuisde in 1977 naar de Elandsgracht. Siem had het streven om alleen dieren die een goed leven hadden gehad te kopen en richtte het Scharrelvlees controleorgaan op samen met andere belangengroepen, overheidsinstellingen en andere scharrelslagers. Met de missie om de consument te voorzien in behoefte naar duurzame en ambachtelijke vlees- en vleesproducten waarin zorg en respect voor het milieu, de dieren en de mens centraal staan, is hij een begrip in de binnenstad van Amsterdam.

F2701F61-74D1-4E5C-A173-0C4AB51AC930_800x
chenin-shop
25
Adres
Hazenstraat 60,
1016 SR Amsterdam

Chenin Chenin

Chenin Chenin is een wijnwinkel, online shop en abonnementsservice voor natuurlijke wijnen, bier, cider en sake. Het is gevestigd in hartje Amsterdam. Het assortiment is een continu ontwikkelde lijst van originele en vooral drinkbare wijnen. Van ondergewaardeerde koopjes tot moeilijk te vinden juweeltjes. Bij Chenin Chenin houden ze van wijnen uit alle delen van de wereld, ongeacht trends.  Ze zijn geopend van dinsdag tot zaterdag van 12:00 tot 20:00 uur en op zondag van 12:00 tot 18:00 uur.

Buurtgids: Zuidas

Buurtgids: Zuidas

Buurtgids: rondom de Apollobuurt

Buurtgids: rondom de Apollobuurt

Al veertig jaar is Toscanini een begrip in Amsterdam. Maud Moody, een van de oprichters, vertelt hoe het allemaal begon.

Al veertig jaar is Toscanini een begrip in Amsterdam. Maud Moody, een van de oprichters, vertelt hoe het allemaal begon.

Onlangs bekeken
Bekijk het overzicht

Deze site maakt gebruik van cookies.

Voor welke cookies geef je akkoord?