Dit ruime appartement, gelegen op eigen grond in een voormalige winkelruimte, biedt veel karakter en charme. De woning heeft een royale plafondhoogte en is voorzien van een houten vloer, wat bijdraagt aan het gevoel van ruimte en warmte. De centrale keuken staat in verbinding met de sfeervolle kamer en suite, terwijl het slaapvertrek aan de achterzijde rustig gelegen is. De moderne badkamer heeft een ligbad, inloopdouche en een wastafel met grote spiegel. De verwarmde kelder met daglicht is geschikt als extra slaapkamer. Tot slot ligt het appartement op een uitstekende locatie, vlakbij de Amstel, en heeft het een fijne tuin om van te genieten.

Rondleiding 
Entree naar een ruime, hoge woonkamer met een prachtige eikenhouten vloer. Centraal in de ruimte bevindt zich de keuken, voorzien van een marmeren werkblad en alle benodigde inbouwapparatuur. Aan de achterzijde ligt een fijne eet- of werkkamer met openslaande deuren naar de tuin. Ook de slaapkamer, rustig gelegen aan de achterzijde, heeft openslaande deuren naar de tuin. De badkamer is uitgevoerd in warme taupe tinten en biedt een inloopdouche, ligbad en wastafelmeubel, waardoor het een serene ruimte is. Daarnaast zijn er nog een kast voor wasmachine en droger, en een apart toilet. De kelder, voorzien van een koekoek voor direct daglicht, is verwarmd en kan dienen als slaapkamer of een luxe berging.

Buurtgids
Het appartement is gelegen in een van de meest bruisende en populaire buurten van Amsterdam, nabij de Amstel, om de hoek van Weesperzijde en de Wibautstraat. In de Eerste Oosterparkstraat en de omliggende straten bevinden zich verscheidene winkels, sportscholen en restaurants zoals De Ysbreeker, Oliver Green en Loulou Pizzabar. Aan de overkant van de Amstel is de Pijp met de Albert Cuyp markt en talloze winkels en restaurants. Verder liggen er ook parken zoals het Oosterpark met Hotel Arena en het Sarphatipark om de hoek. Op nog geen 10 minuten fietsafstand is Artis bereikbaar.

Bijzonderheden
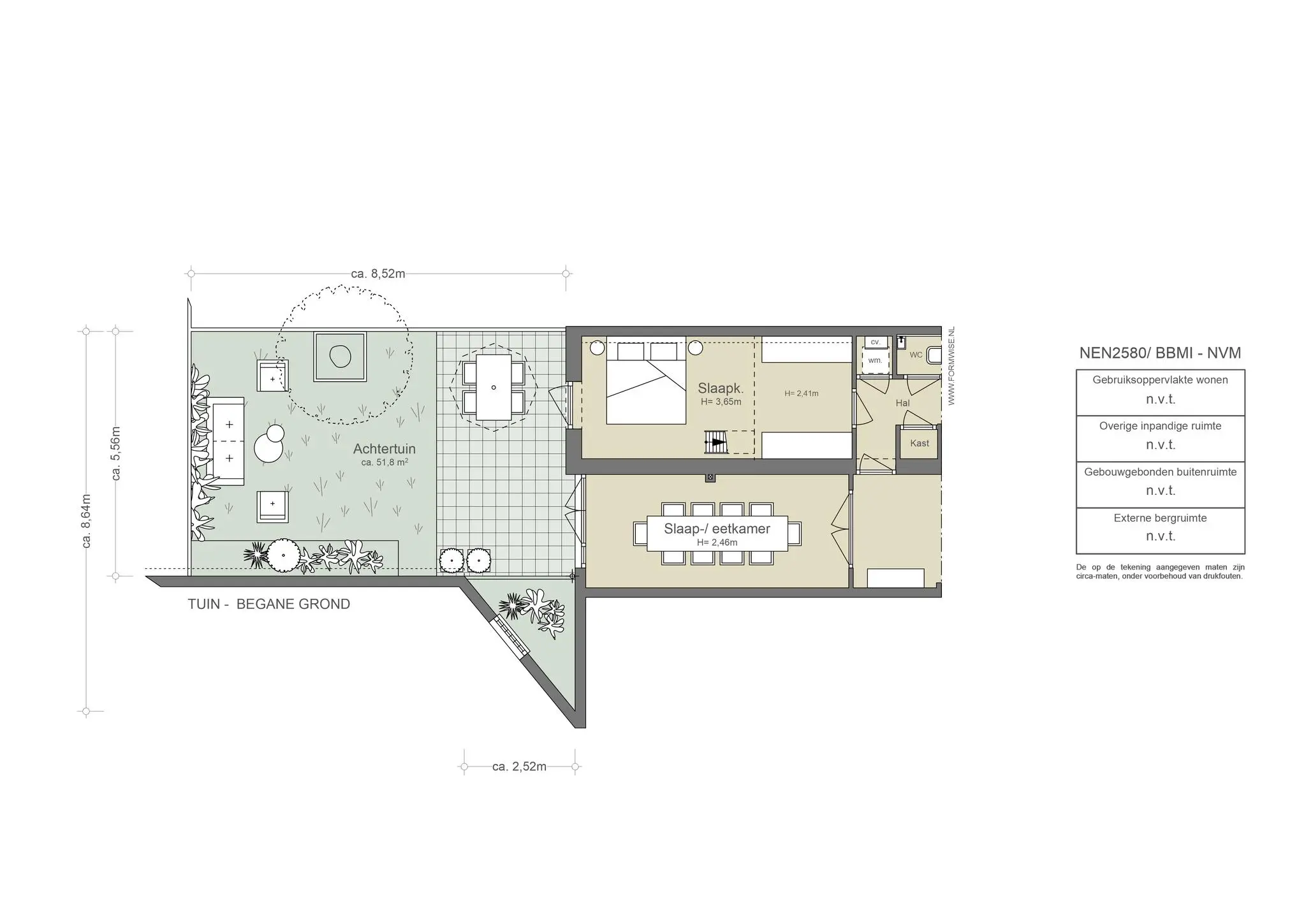
•    Gebruiksoppervlakte wonen circa 98 m²
•    tuin gelegen met ochtend en avondzon van circa 52 m²
•    Gelegen op eigen grond
•    Energielabel D
•    Servicekosten VvE € 102,- per maand
•    Informatie fundering herstel plaatsgevonden in 1980
•    In 2023 extern geschilderd

AM105929-1946970-Eerste-Oosterparkstraat-9H,-Amsterdam-207200599

Kleur Atelier
De uitnodiging om langs te komen werd telefonisch geregeld en meerdere keren uitgesteld. Bij de laatste poging lukte het, en samen met mijn collega brachten we een bezoek aan de huidige eigenaar. Een creatief, sympathiek en markant persoon, wat ook duidelijk terug te zien is in het appartement. De inrichting, kunst en manier van bewoning weerspiegelen zijn karakter. Het appartement is een voormalige winkelruimte, met een groot raam dat uitzicht biedt op Amsterdam en een serene tuin die voor een bijzondere sfeer zorgt. Voor velen een droom: geen standaard appartement, maar iets unieks. De locatie, vlakbij de Amstel en gelegen tussen De Pijp en Oost, is werkelijk ideaal. Nu is het tijd voor een nieuw avontuur over de landsgrenzen, met een kleiner thuis in Amsterdam.


Otte van Apeldoorn | Makelaar Broersma Wonen
Judith de Jong | Makelaar Broersma Wonen
AM105929-1946970-Eerste-Oosterparkstraat-9H,-Amsterdam-207200635
Architectuur

De nummers 9 tot en met 25 zijn gelijktijdig gebouwd, net na 1900, om precies te zijn in 1906. In het archief worden ze aangeduid als “Winkelwoonhuizen ingericht voor vier gezinnen”. In 1918 werden er serres aan het gebouw toegevoegd en keukens geïnstalleerd, terwijl de voorzijde een winkelruimte bleef. In 1980 vond er funderingsherstel plaats met stalen buispalen. Er werd een doorbraak gemaakt tussen de panden 9 en 11, en het geheel werd gebruikt als bedrijfsruimte. Pas in 2009 werd het gebouw gesplitst en omgezet naar vier woningen. Ook kreeg het pand toen de definitieve kwaliteitsindeling klasse I (de hoogste classificatie voor bestaande bouw) toegekend. De voormalige bedrijfsruimte werd een garage voor ambulances en werd in een latere fase omgebouwd tot de woning die het nu is. Perca Vastgoed begeleidde de omzetting, deze ontwikkelaar is nog steeds actief in Amsterdam. De bouwstijl uit 1906 kan worden gekwalificeerd als neorenaissance, een bouwstijl die populair was in Nederland in de late 19e en vroege 20e eeuw, vooral in stedelijke gebieden zoals Amsterdam. De kenmerken van deze gevel die wijzen op de neorenaissance zijn: symmetrische gevelindeling, horizontale banden, baksteen met natuurstenen accenten, en geveltoppen. Deze bouwstijl was populair tijdens de wederopbouw van Amsterdam in de late 19e eeuw, en veel woningen in buurten als De Pijp en Amsterdam-Oost vertonen deze kenmerken.

AM105929-1946970-Eerste-Oosterparkstraat-9H,-Amsterdam-207200581
AM105929-1946970-Eerste-Oosterparkstraat-9H,-Amsterdam-207200609
AM105929-1946970-Eerste-Oosterparkstraat-9H,-Amsterdam-207200553
AM105929-1946970-Eerste-Oosterparkstraat-9H,-Amsterdam-207200575
Wonen en koken

Het bankje staat uitnodigend voor het appartement, en samen met de bloembakken vol planten vormt het een verlenging van de woonkamer. De entree bevindt zich direct naast het bankje. Bij het openen van de deur valt meteen de hoge, lichte woonkamer op. Daarom is er ook voor gekozen om deze aan de voorkant te situeren. De hoogte leent zich uitstekend voor de vele kleurrijke en opvallende kunst, wat perfect past bij deze echte verzamelaar. De Bourgondische keuken ligt in het midden van de woning en heeft een mooi marmeren blad. De keuken is voorzien van inbouwapparatuur, zoals een oven, magnetron, recirculatiekap en een vijfpits Boretti-gasfornuis. De en-suite deuren zijn opvallend uitgevoerd in een rode kleur en maken het mogelijk om de achterkamer zowel als open eetkamer of als meer besloten werkkamer te gebruiken. Op mooie dagen kunnen de deuren naar de tuin worden geopend, waardoor deze ruimte een verlengstuk wordt van het woongedeelte. De prachtige eikenhouten vloer loopt door het hele appartement.

AM105929-1946970-Eerste-Oosterparkstraat-9H,-Amsterdam-207200643
AM105929-1946970-Eerste-Oosterparkstraat-9H,-Amsterdam-207200627
AM105929-1946970-Eerste-Oosterparkstraat-9H,-Amsterdam-207200657
AM105929-1946970-Eerste-Oosterparkstraat-9H,-Amsterdam-207200669
AM105929-1946970-Eerste-Oosterparkstraat-9H,-Amsterdam-207200661
AM105929-1946970-Eerste-Oosterparkstraat-9H,-Amsterdam-207200665
Slapen en baden

Een ruime slaapkamer aan de achterzijde, gelegen aan de tuin en geschilderd in groene en roze tinten, is een fijne ruimte waar het heerlijk slapen is. Ook hier is de hoogte 3,65 meter, waarbij extra bergruimte is gecreëerd door een insteek te maken. De badkamer is ruim en voorzien van een inloopdouche, een wastafelmeubel met mengkranen, en een ligbad. De inbouwspots zijn te dimmen en zelfs de grote spiegel heeft een verlichte rand. De badkamer is uitgevoerd in taupe schilderwerk en heeft grote tegels op de vloer.
Het souterrain heeft een grote koekoek met drie ramen. Deze ruimte is net te laag (1.88 meter hoog) om mee te tellen in de woonmeters, maar is goed bruikbaar als slaapkamer of werkkamer. Het souterrain is circa 21 m². Er is verwarming, een verdiepte vensterbank die dienst doet als zitje, en een wastafel.

AM105929-1946970-Eerste-Oosterparkstraat-9H,-Amsterdam-207200677
AM105929-1946970-Eerste-Oosterparkstraat-9H,-Amsterdam-207200673
AM105929-1946970-Eerste-Oosterparkstraat-9H,-Amsterdam-207200697
AM105929-1946970-Eerste-Oosterparkstraat-9H,-Amsterdam-207200693
AM105929-1946970-Eerste-Oosterparkstraat-9H,-Amsterdam-207200737
AM105929-1946970-Eerste-Oosterparkstraat-9H,-Amsterdam-207200705
AM105929-1946970-Eerste-Oosterparkstraat-9H,-Amsterdam-207200719
De buitenruimte

Een groene oase in hartje Amsterdam: een tuin met een terras en een stuk gazon, omringd door weelderige borders. Aan de zijkant zorgt een prachtige boom voor schaduw en privacy. Met een oppervlakte van 52 m² biedt deze tuin meer dan genoeg ruimte om buiten te dineren, te ontspannen en volop te genieten van de zomerzon. Een serene plek waar rust en kalmte de stadse drukte doen vergeten.

 

AM105929-1946970-Eerste-Oosterparkstraat-9H,-Amsterdam-207200591
AM105929-1946970-Eerste-Oosterparkstraat-9H,-Amsterdam-207200815
AM105929-1946970-Eerste-Oosterparkstraat-9H,-Amsterdam-207200603
AM105929-1946970-Eerste-Oosterparkstraat-9H,-Amsterdam-207200793

Het appartement is gelegen in een van de meest bruisende en populaire buurten van Amsterdam, nabij de Amstel, om de hoek van Weesperzijde en de Wibautstraat. In de Eerste Oosterparkstraat en de omliggende straten bevinden zich verscheidene winkels, sportscholen en restaurants zoals De Ysbreeker, The Breakfast Club en Loulou Pizzabar. Aan de overkant van de Amstel is de Pijp met de Albert Cuyp markt en talloze winkels en restaurants. Verder liggen er ook parken zoals het Oosterpark met Hotel Arena en het Sarphatipark om de hoek. Op nog geen 10 minuten fietsafstand is Artis bereikbaar.

Bereikbaarheid
Het Oosterpark en de bruisende buurt De Pijp binnen enkele minuten met de fiets te bereiken. Het appartement is zowel met eigen vervoer vanaf Ringweg A10 (via S111/S112) als met het openbaar vervoer uitstekend bereikbaar. Nabijgelegen is de metrohalte Wibautstraat waar metro 51, 53 en 54 stoppen. Tevens is op loopafstand de halte van tram 3 richting Amsterdam West.

Parkeergelegenheid
Parkeren is mogelijk via een vergunningenstelsel op de openbare weg (vergunningsgebied Oost-1b Swammerdam).
Met een parkeervergunning voor Oost-1b Swammerdam mag u parkeren in Oost-1. Een parkeervergunning voor bewoners kost € 192,81 per 6 maanden. Momenteel is er voor dit vergunningsgebied een wachttijd van 15 maanden. Een tweede parkeervergunning is in dit gebied niet mogelijk. (Bron: Gemeente Amsterdam, februari 2025).

AM105929-1946970-Eerste-Oosterparkstraat-9H,-Amsterdam-207200783
1091 RW Swammerdamstraat 62 31
1091 TG 35 – Graaf Florisstraat 2 M
Kenmerken
Eerste Oosterparkstraat 9H, Amsterdam
Vraagprijs
  • € 920.000 k.k.
Beschikbaarheid
  • In overleg
Vertrekken
  • 4 kamers
  • 3 slaapkamers
  • 1 badkamer
Onderhoud
  • Intern: Goed
  • Extern: Goed
Oppervlakten & Inhoud
  • Woonoppervlakte: 98 m²
  • Overige inpandige ruimte: 20 m²
  • Tuinoppervlakte: 52 m²
Bouwjaar
  • 1906
Installaties
  • TV kabel
Ligging
  • Aan water
  • In woonwijk
Parkeren
  • Betaald parkeren
  • Parkeervergunningen
Type verwarming
  • CV Ketel
Type warmwater
  • CV Ketel
Bestemming
  • Woonruimte
Eigendomssoort
  • Volle eigendom
Buitenruimte
  • Achtertuin
Kadastraal
  • Gemeente: Amsterdam
  • Sectie: S
  • Nummer: 9660
Duurzaamheid
  • Dubbel glas
  • Energielabel D
Soort
  • Appartement
  • Benedenwoning
Overige kenmerken

OZB ('24): € 403,79 per jaar
Rioolrecht ('24): € 185,20 per jaar
Servicekosten VvE € 102 per maand

Plattegrond
Eerste Oosterparkstraat 9H, Amsterdam
AM105929-1946970-Eerste-Oosterparkstraat-9H,-Amsterdam-207200839
AM105929-1946970-Eerste-Oosterparkstraat-9H,-Amsterdam-207200853
AM105929-1946970-Eerste-Oosterparkstraat-9H,-Amsterdam-207200863
Documenten
Eerste Oosterparkstraat 9H, Amsterdam
Locatie
Eerste Oosterparkstraat 9H, Amsterdam
Boodschappen
downloadgram.org_587808323_17920950975199409_2006557532097734563_n
01
Adres
Eerste Oosterparkstraat 7H,
1091 GT Amsterdam

Dough Studio

Dough Studio is het project van Bas en Idske, die in 2019 begonnen met pizza’s bakken in hun achtertuin in Amsterdam-Oost en daar hun liefde voor goed deeg ontdekten. Na het openen van twee Pizza Projects in Oud-West en Zuid ontstond de behoefte aan een plek om hun vak verder te verdiepen. In Dough Studio draait alles om fermentatie en tijd, met deeg dat de ruimte krijgt om zich volledig te ontwikkelen. Ze breiden hun ambacht hier uit voorbij pizza, met schiacciata-sandwiches, seizoensgebonden baksels en koffie van een lokale brander.

02
Adres
Van Woustraat 103,
1074 AG Amsterdam

Stadsmarkt de Pijp

Bij Stadsmarkt de Pijp worden de producten dagelijks zelf opgehaald. Zo komen direct van de boer, tuinder, slager, visboer en bakker allerlei producten midden in de Pijp terecht. De focus bij Stadsmarkt de Pijp ligt op duurzaamheid en hier wordt een eerlijke prijs voor betaald aan de leveranciers. De werkzame vakmensen staan altijd paraat om iets aan te raden of om iets te laten proeven. Ook staat ambacht centraal; het is een markt waar je fijn kan eten en lekker kan genieten.

Eten & drinken
281839615_1107865493110246_5418967694543907480_n
03
Adres
Weesperzijde 23,
1091 EC Amsterdam

De Ysbreeker

Levendig en gastvrij, de Ysbreeker is dé ontmoetingsplek voor heel Amsterdam. Deze locatie nodigt uit om de hele dag te vertoeven, met haar kenmerkende troeven zoals de verse keuken, het sfeervolle terras aan de Amstel en de indrukwekkende monumentale ruimte doordrenkt met een veelbewogen geschiedenis sinds 1702. Benoemd naar de historische ijsbreker die voor de deur lag, heeft deze plek een rijke herberg- en tapperijgeschiedenis. Chef-kok Goran Lukovic en zijn toegewijde team brengen een milieubewuste benadering naar de verfijnde landkeuken, met gerechten zoals Schots Balmoral hert en gerookte Noorse zalm gemarineerd in Red Bull.  De Ysbreeker kiest met zorg voor verantwoorde, eerlijke en dagverse producten. En dat merk je aan alles.

338212934_232099025975928_3095569794647745098_n
333127935_667698065046121_5547373681443039532_n
04
Adres
Wibautstraat 105HS,
1091 GL Amsterdam

Alba

Geopend tijdens corona en toen direct gesloten. Nu gelukkig geopend, van dinsdag tot en met zaterdag voor diner. Naast vis en vlees word er ook een goed vegetarisch aabod verzorgt zoals o.a. een zonnige wortelschotel: regenboogwortelen, peterseliehummus, gember-wortelsaus, peterselieolie, gepofte gierst en mosterd-worteldressing. Chef  James Usdin werkte eerder voor sterren restaurants in Londen, maar ook in het Rijks (*). Alba serveert een 3 gangen diner voor 38,50, maar heeft ook een al la carte menu. Ook leuk, er is een gigantisch terras (130 m2) en een fijne snackkaart. De wijnkaart bestaat uit een groot assortiment natuurwijnen.

328463208_973652460268804_1665337633279136739_n
347631518_167402726014189_3756591334333499543_n
05
Adres
Wibautstraat 130,
1091 GP Amsterdam

Bottleshop

De Bottleshop is recent geopend door Freek Kattenberg. Het interieur combineert een strak design met warme sfeer. De wijnbar biedt meer dan 350 natuurwijnen. Chef Torres Peralta creëert een unieke fusion van de Japanse en Franse keuken met gedeelde gerechten. Het restaurant organiseert ook kleine evenementen; recentelijk verwelkomde het de chef van Les Oeillets uit Parijs voor een achtgangenmenu en wijnproeverij. Kattenberg benadrukt de waarde van internationale samenwerkingen en wil dit in de toekomst voortzetten.

Voorkant-new-draver-1200×630-1
06
Adres
Tweede Oosterparkstraat 2-4,
1091 JC Amsterdam

New Draver

Oso Nyan! betekent in Suriname genieten van maaltijden die herinneren aan moeders kookkunsten. Al ruim 30 jaar is New Draver een icoon in Amsterdam, gespecialiseerd in de exotische en smaakvolle Surinaams-Creoolse keuken. Gevestigd in Amsterdam Oost wordt je verwelkomt met gerechten zoals Bami, Nasi, Heri Heri en Bruine Bonen met Rijst. Probeer de goudbruine kip met bami en zuurgoed.

431059263_18422861317009279_783760135140482126_n
07
Adres
Ceintuurbaan 233,
1074 CW Amsterdam

Casa Nostra

De keuken van Puglia in de Pijp van Amsterdam. Oorspronkelijk van Taranto en opgegroeid in een familie waar alles om eten draait kookten de eigenaren de eerste tijd in Amsterdam alleen voor vrienden. Nadat iedereen er grapjes over maakten dat ze eigenlijk een restaurant moesten openen hebben ze uiteindelijk 10 jaar geleden de stap gezet. Op de kaart staan authentiek gerechten zoals handgemaakte orecchiette, capocollo uit Martina Franca en een fijne selectie van Pugliese wijnen.

Schermafbeelding 2022-07-01 om 16.10.46
Schermafbeelding 2022-07-01 om 16.10.08
08
Adres
Wibautstraat 150,
1091 GR Amsterdam

Het Volkshotel

Het Volkshotel is een hotel en cultureel centrum gevestigd in het oude Volkskrantgebouw aan de Wibautstraat. De naam zegt het eigenlijk al; Het Volkshotel is een hotel voor iedereen. Het Volkshotel is meer dan alleen maar een hotel. Naast dat je hier heerlijk kunt overnachten en eten en drinken, kun je hier ook genieten van de vetste muziek-events in soundbar Doka en heb je het mooiste uitzicht vanaf dakterras restaurant Canvas. Het Volkshotel is ook een geliefde plek om te werken en te studeren. Er zijn meerdere vergaderruimtes beschikbaar die je van te voren kunt reserveren en de barista's zetten de lekkerste koffie.

Schermafbeelding 2022-07-01 om 16.04.41
09
Adres
Camperstraat 48-50,
1091 AH Amsterdam

4850

Overdag een uitstekende koffiebar met zelfgemaakte pastries en broodjes. In de avond een wijnbar annex restaurant. De keuken omschrijft zichzelf als Nordic met pan europese smaken. De gerechtjes (to share) zijn bijzonder. Zuurdesem brood met geslagen comté boter gecombineerd met naar keuze kippenlevermousse of ansjovis in houtskoololie. Een aardapplemousse met cantherellen en eidooier.  De kaart is compact maar gevarieerd. Ze hebben een enorm (natuur en klassiek) wijn assortiment. De lijst, samengesteld door eigenaar Daniel Schein, staat in de Star Wine list. The huidige chef Ciaran Naughter heeft een voorliefde voor het koken op vuur.

10
Adres
Hemonystraat 18,
1074 BP Amsterdam

L'Angoletto

Bij L’Angoletto lijkt het alsof de tijd heeft stil gestaan. Het restaurant heeft geen website, reserveren kan niet en pinnen ook niet maar het eten is verrukkelijk! De chef staat erom bekend dat hij trots is op zijn eten en hij hecht veel waarde aan tradities, dus waag het niet om te vragen om kaas bij je pasta met vis. Dit is het allemaal waard want het beste Italiaans eten in de Pijp eet je hier.

1519ee_a5c462bd4fa847949becbf9cb6c357a9_mv2_d_6016_4016_s_4_2
11
Adres
Camperstraat 36,
1091 AG Amsterdam

The Bab

Het Koreaanse restaurant The Bab heeft de authentieke smaak die je zou verwachten van een Koreaans restaurant, maar dan zonder al te fancy te zijn. Eigenaren Junghun Pyo en zijn vrouw Haksun (Sunny) Kim willen namelijk dat mensen zich op hun gemak voelen bij hen en casual Korean food kunnen proeven. Het eerste waar je aan moet denken als je denkt aan Koreaans eten zijn de gerechten bibimbap en gefrituurde kip. De bibimbap bevat rijst, groenten en een rauw ei. De gefrituurde kip is bereid met een speciale Koreaanse kruidenmix. Een ander populair gerecht dat je bij The Bab kunt bestellen zijn de kimchipannenkoeken. Deze pannenkoekjes zijn gevuld met ui en kimchi, een gefermenteerde kool die steeds populairder wordt in het westen.

_BOU9102
12
Adres
Van Woustraat 97,
1074 AG Amsterdam

Rayleigh & Ramsay

Rayleigh & Ramsay wordt omschreven als een snoepwinkel voor volwassenen. De term wijnbar vinden ze hier te hoogdrempelig, maar de focus ligt toch echt wel op wijn, met meer dan 100 open wijnen. Uniek is dat je wijn per slok, half glas of heel glas kan bestellen. Zo kan je hier terecht om alles wat je wil te proeven en te ontdekken wat je de allerlekkerste wijn vindt. Naast wijnen staat er ook goede koffie, cocktails, tapbier en lekker eten op het menu.

Schermafbeelding 2022-07-01 om 13.55.26
13
Adres
Van Woustraat 127,
1074 AH Amsterdam

Firma Pekelhaaring

Firma Pekelhaaring is een geliefd Italiaans restaurant gevestigd aan de Van Woustraat 127-129 in Amsterdam. Het restaurant staat bekend om zijn ontspannen sfeer en authentieke gerechten, beïnvloed door de Italiaanse keuken, maar met ruimte voor eigen variaties en lokale invloeden. De eigenaar van Firma Pekelhaaring is Matthias van der Nagel.  Onder zijn leiding heeft het restaurant erkenning gekregen, waaronder een vermelding in de MICHELIN Gids met een Bib Gourmand voor de goede prijs-kwaliteitverhouding. Op de kaart gerechten als Arancini, tagliatelle met eendenstoof of kabeljauw met gezouten baccala en schorseneer.

Schermafbeelding 2022-07-01 om 13.58.34
14
Adres
Van Ostadestraat 354,
1073 TZ Amsterdam

NAZKA

In de Van Ostadestraat vind je het kleurrijke restaurant Nazka. Naast dat het interieur er fantastisch uitziet, is het eten ook spectaculair. De keuken toont zowel Peruaanse klassiekers als innovatieve gerechten, die voortbouwen op het erfgoed van Peru. Nazka heeft een prachtige inrichting, fantastische service, knap eten en de sommelier is een genie, maar het belangrijkst: álles is lekker.

210216-StudioHENK-March-Campaign_-940_c6762d4f-0fa1-48be-b1bc-fe6926edfc3e_1280x
4F1CBAC2-EB37-4655-914A-D166C6FD0447_96ac6b3e-5d29-4e5a-8292-1601c74d4167_1540x
15
Adres
Andreas Bonnstraat 2,
1091 AX Amsterdam

Yusu

Bij Yusu verkopen en serveren ze verschillende soorten koffie. De bonen worden geïmporteerd, geselecteerd en gebrand in samenwerking met Back to Black Coffee. De importeurs stimuleren boeren op diverse manieren om duurzamer te werken. Naast het serveren van goede koffie worden alle lekkernijen in eigen huis bereid. Mede-oprichter Nicole heeft een enorme passie voor bakken en heeft de recepten voor de taarten samen met Kick ontwikkeld. Probeer de traditionele Surinaamse gebakjes of de Braziliaanse kaasbal.

16
Adres
Van Woustraat 160,
1073 LW Amsterdam

Leeman döner

Voor een goed broodje doner kan je terecht bij Leeman döner op de Van Woustraat. De zaak staat al jaren bekend om zijn goede broodjes döner en dit komt mede omdat de broodjes elke dag vers gemaakt worden in de bakkerij achterin de winkel. Naast de döner hebben ze ook nog allemaal andere producten zoals Turkse pizza, kapsalon, falafel, borek en baklava. Leeman heeft door de jaren heen veel bekendheid gekregen dus het kan er soms erg druk zijn. Het is een afhaalwinkel er zijn dus geen zitplekken binnen, in de zomer staan er nog wel eens stoeltjes buiten.

332194684_1210683406229899_1266038755429113890_n
320556713_1299962830790670_8095264289252116921_n
17
Adres
Boerhaaveplein 3,
1091 DH Amsterdam

Five Ways Coffee Roasters

Five Ways Coffee Roasters begon als een bescheiden koffiebranderij in Amsterdam bij Spot On Coffeeroaster. Enkele jaren geleden vestigde de eigenaar zich in Nederland en heeft sindsdien zijn tweede succesvolle specialty koffiebar in Amsterdam geopend. In Oost is de koffiebar meer gericht op koffie met eten. Zo heeft eigenaar Benny een eigen chef die constant bezig is met het verbeteren van zijn recepten en het gebruik maken van seizoensproducten.

18
Adres
Van Woustraat 58,
1073 LN Amsterdam

Yen dining bar

De oprichter van Yen Dining Bar groeide op met Vietnamese smaken en de sociale eetcultuur van quán nhậu, wat de basis vormt van zijn visie voor deze zaak. Hij brengt hier klassieke Vietnamese gerechten zoals pho, bun bo hue en banh mi samen met moderne interpretaties en shared dining. De keuken legt nadruk op verse ingrediënten en kruiden, met frisse salades en hartige noodles die de essentie van Vietnam vangen. Yen wil een plek zijn waar vrienden samenkomen voor lekker eten en drank, met een warme, ontspannen energie. De ambiance is sfeervol en intiem met een lichte industriële toets, perfect voor diners met gezelschap of een drankje vooraf.

19
Adres
Van Woustraat 37,
1074 AB Amsterdam

Roopram Roti

Roopram Roti komt oorspronkelijk uit Suriname en werd geëxporteerd naar Nederland vanwege de grote vraag naar roti op de Nederlandse markt, onder andere door vakantiegangers uit Paramaribo. Om aan deze vraag te voldoen, besloot J. Roopram diepvries roti naar Nederland te exporteren. Helaas werd dit op het laatste moment tegengehouden vanwege de beperkingen op de uitvoer van kip en kipdelen uit Suriname. In plaats daarvan opende J. Roopram in juli 2002 zijn eerste restaurant aan het Mathenesserplein 89 te Rotterdam. Dit werd gevolgd door het tweede filiaal in Amsterdam, genaamd Roopram Roti Eetcafé. Sindsdien zijn er twee extra filialen geopend, namelijk in Den Haag en aan de Van Woustraat 37 te Amsterdam.

281880305_508154391047644_2028401497570239133_n
285721110_518276833368733_8528353151648555893_n
20
Adres
Andreas Bonnstraat 36,
1091 BA Amsterdam

Sushi Fanatics

Toen Ho en haar vriend naar Nederland kwamen, viel de sushi hen tegen. De sushi bij Hotel Okura was wel lekker, maar ook erg duur. Daarom openden ze takeaway Sushi Fanatics. Die viel goed in de smaak. Het liep zelfs zo goed dat ze nu hun eigen restaurant hebben in Amsterdam-Oost. Specialiteiten zijn de Hokkaido sint-jakobsschelp, inktvis en Unagi Deluxe.

334420143_1682273368910187_7322496611730177761_n
21
Adres
Andreas Bonnstraat 36,
1091 BA Amsterdam

Shigure

Amsterdam heeft een nieuwe omakasezaak bij namelijk Shigure; 'the unpredictable monsoon of the Netherlands,’ zoals ze het zelf noemen. Het restaurant bevindt zich achterin bij Sushi Fanatics. De counter met acht zitplekken is twee dagen (vrijdag en zaterdag) per week geopend met een ronde om 17:30 en een om 20:15. Chef Ryusaku Hiruma bezorgt je een echte omakase experience waarin hij zijn verfijnde en originele sushi vaardigheden weergeeft.

22
Adres
Van Woustraat 25,
1074 AB Amsterdam

Café Biljart van Wou

Café Biljart van Wou is een typisch buurtcafé waar het stil wordt als de buurtbewoners op vakantie zijn.

377504997_18261988948162741_2108036798515136593_n
23
Adres
Van Woustraat 48,
1073 LM Amsterdam

Mister Nata

Bij Mister Nata ben je aan het juiste adres voor het lekkerste gebak van Amsterdam, waar je kunt genieten van heerlijke pastel de nata, perfect gecombineerd met prachtige Single Estate Coffee, bereid met een La Marzocco-espressomachine. Portugal staat bekend om zijn verrukkelijke zoetigheden. Snoep, gebak en desserts maken allemaal deel uit van de traditionele Portugese keuken. Te midden van al deze heerlijkheden is de pastel de nata de absolute beroemdheid.

Schermafbeelding 2023-01-25 om 15.31.43
24
Adres
Van Woustraat 17,
1074 AA Amsterdam

Tjin's

Rond deze kleine broodjeszaak verzamelen zich vaak groepen mensen voor de deur voor een snelle snack. Tjin maakt al meer dan 40 jaar surinaamse broodjes en hapjes op basis van familie recept. Oprichter Chong begon ooit in West als platenzaak, echter werden de broodjes die hij achterin klaargemaakte steeds populairder, zoals het broodje met kabeljauw of de kerrie kip.

Interieur
BEDROOM-EDIT-_12_1500
25
Adres
Stadhouderskade 160,
1074 BC Amsterdam

Nicemakers

Interieurontwerpers Joyce en Dax Roll zijn partners in het leven en in design, samen staan zij bekend als ‘Nicemakers’. Persoonlijk, levendig, functioneel, rijk, inspirerend, elegant, gedegen en decoratief; het 'Nice' in 'Nicemakers' is even licht en natuurlijk alsook indrukwekkend en allesomvattend. Het interieur voor de saladebar SLA was het eerste project dat hen op de kaart zette, waarna vele indrukwekkende projecten volgden waaronder een waanzinnig penthouse in Maastricht, waarmee ze een rol kregen in het Netflix-programma 'Amazing Interiors'.

Duurzaam met de tijd mee – een huis dat leeft, groeit en bewaart

Duurzaam met de tijd mee – een huis dat leeft, groeit en bewaart

Het Torenhuys

‘Het Torenhuys’, een voormalig onderstation ontworpen door de Dienst Publieke Werken

Kunst & cultuur agenda december 2025

Kunst & cultuur agenda december 2025

Onlangs bekeken
Bekijk het overzicht

Deze site maakt gebruik van cookies.

Voor welke cookies geef je akkoord?