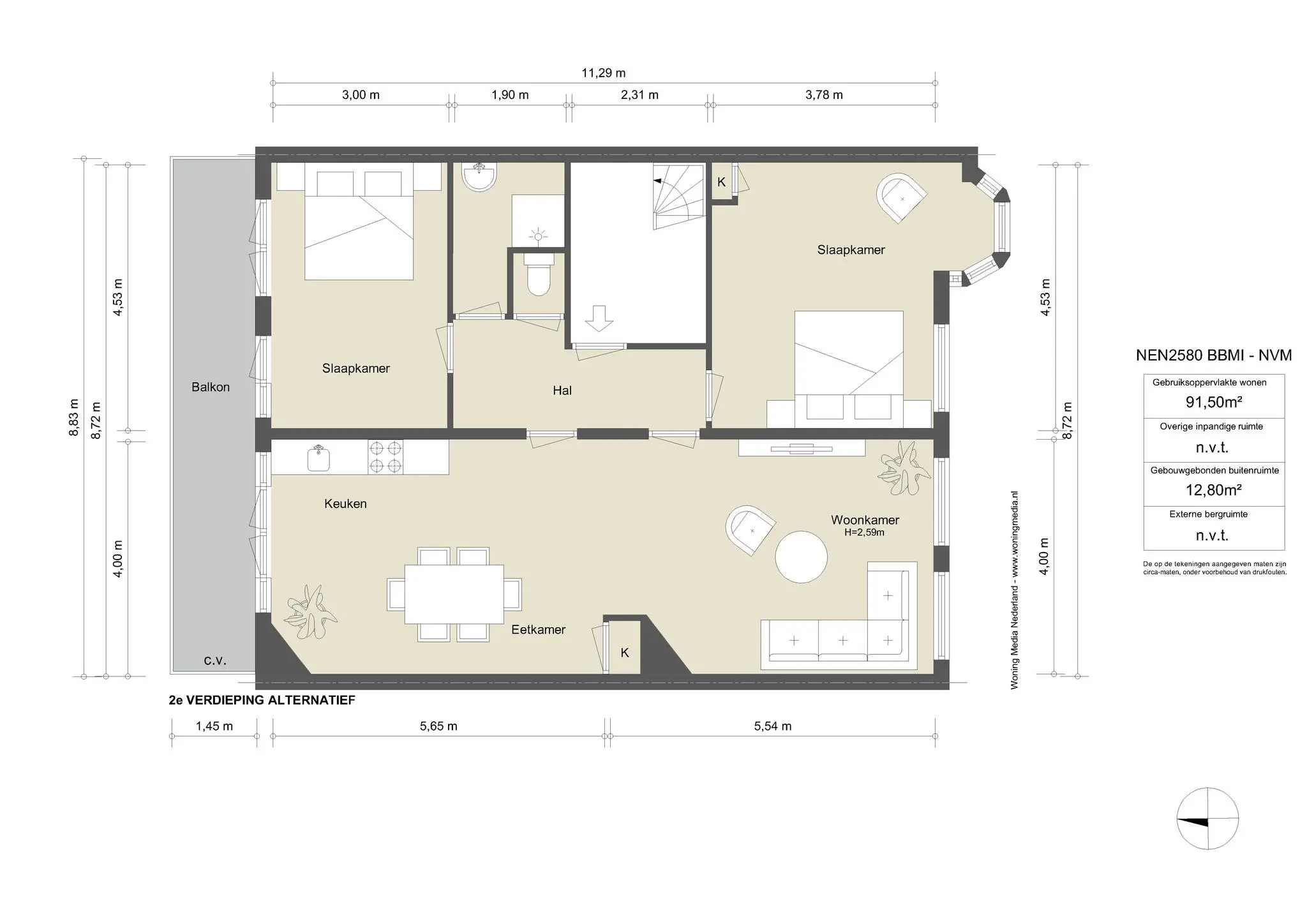
Dit appartement van 92 m² is momenteel opgedeeld in drie onzelfstandige wooneenheden, elk met een vergelijkbare oppervlakte en een gedeelde keuken aan de achterzijde. De keuken biedt toegang tot het brede balkon van 13 m² op het noorden. Er zijn drie volwaardige slaapkamers, waarvan twee aan de voorzijde en één aan de achterzijde met balkontoegang. De badkamer is compact en centraal gelegen, met een aparte toiletruimte. Er zijn mogelijkheden om het appartement opnieuw in te delen, bijvoorbeeld door de keuken te verplaatsen naar de voormalige kamer-en-suite. Dit zou zorgen voor een ruime doorzonwoonkamer met open keuken en twee grote slaapkamers. Dankzij de grote ramen zou de leefruimte veel lichtinval en een open sfeer krijgen. Het appartement biedt flexibele indelingsmogelijkheden en is ideaal voor zowel gedeeld wonen als voor een stel of gezin.

Rondleiding
Dit courant ingedeelde appartement van 92 m², gelegen aan Deurloostraat 44-2 in de geliefde Rivierenbuurt, biedt volop mogelijkheden. Momenteel is de woning opgedeeld in drie onzelfstandige wooneenheden, elk met een vergelijkbare oppervlakte en een gedeelde keuken aan de achterzijde. De keuken biedt toegang tot het brede balkon van 13 m², gelegen op het noorden. De woning beschikt over drie volwaardige slaapkamers, waarvan twee aan de voorzijde en één aan de achterzijde met directe toegang tot het balkon. De centraal gelegen, compacte badkamer is voorzien van een douche en wastafel, en er is een separaat toilet aanwezig. De huidige indeling biedt flexibiliteit en diverse mogelijkheden. Een aanpassing waarbij de keuken wordt verplaatst naar de voormalige kamer-en-suite creëert een ruime doorzonwoonkamer met een open keuken en twee grote slaapkamers. De royale leefruimte profiteert optimaal van de grote raampartijen, wat zorgt voor veel natuurlijke lichtinval en een open sfeer. Het balkon, met een breedte van bijna 9 meter, is zowel via de keuken als de slaapkamer te bereiken en biedt een fijne buitenruimte met uitzicht op de omgeving. Dankzij de courante indeling en de kamerverhuurvergunning biedt het appartement verschillende woonmogelijkheden: ideaal voor gedeeld wonen, maar ook geschikt voor een stel of gezin dat op zoek is naar een ruim en licht appartement in een groene en dynamische buurt.

Buurtgids
De Deurloostraat is gelegen in de geliefde Scheldebuurt nabij het Beatrixpark. De buurt wordt gekenmerkt door zijn groene karakter en brede straten. Op o.a. de Scheldestraat en Maasstraat is een groot en divers aanbod aan winkels, zoals een viswinkel, koffietentjes en een bakkerij. Voor meer ontspanning is het Beatrixpark een uitstekende plek. Mocht je willen genieten van een heerlijke lunch is onder andere Feduzzi en Vinnies een zeer leuk alternatief in de buurt. Diverse sportscholen zijn in de nabije omgeving gelegen en ook het De Mirandabad is op enkele fietsminuten te bereiken.

Bijzonderheden
• Gebruiksoppervlakte wonen circa 92 m²
• Balkon gelegen op het noorden van circa 13 m²
• Gelegen op erfpachtgrond van Gemeente Amsterdam. Huidig tijdvak loopt t/m 31 mei 2052 en de erfpachtcanon is afgekocht
• Overstap naar eeuwigdurende erfpacht met AB 2016 is reeds gedaan en er is gekozen voor het vastklikken van de canon
• Energielabel B
• Er is een vergunning voor het gebruik van drie onzelfstandige woonruimten. Er kunnen hier dus drie mensen wonen die de woning delen
• Servicekosten VvE € 39,14 per maand
• Gemeentelijk beschermd stadsgezicht

AM106054-1979804-Deurloostraat-44-2,-Amsterdam-219058581

Deurloo No. 44
Wij begeleiden als kantoor de verkoop van een uiteenlopend aanbod. Als makelaar is deze afwisseling erg uitdagend en draagt het bij aan het beeld dat je krijgt van de totale woningmarkt in Amsterdam. Zelf heb ik namens deze opdrachtgever al een aantal woningen mogen verkopen. De potentie en courante indeling spreken tot de verbeelding. De dynamiek van de buurt is erg fijn en de (sport)voorzieningen zijn goed. Op onder andere de Maasstraat, Scheldestraat en het Scheldeplein is een diversiteit aan winkels, speciaalzaken en traiteurs te vinden. Daarnaast zijn er diverse goede restaurants en gezellige cafés in de buurt. Het appartement aan Deurloostraat 44-2, dat wij als kantoor mogen verkopen, is een courant ingedeeld appartement gelegen in de geliefde Rivierenbuurt. De woning heeft veel potentie en beschikt over een kamerverhuurvergunning. Hierdoor is het mogelijk om in deze woning drie kamers te verhuren.


Ronald van de Bijl | Makelaar Broersma Wonen
Glenn van der Zanden | Makelaar Broersma Wonen
AM106054-1979804-Deurloostraat-44-2,-Amsterdam-219058583
Het gebouw

Het bouwblok aan Deurloostraat 44 t/m 48 bestaat uit drie panden en is uitgevoerd in de Amsterdamse School-bouwstijl, typisch voor de bouwperiode in de jaren twintig en dertig van de vorige eeuw. Het bouwblok is ontworpen door de bekende Amsterdamse architect Cornelis Kruyswijk en kenmerkt zich in het algemeen door goede verhoudingen en een bijzondere plasticiteit. Paarsgewijs naar voren springende erkers of raampartijen, verticale markering van entrees, profilering van hoekpartijen, articulering van grote baksteenvlakken en gedetailleerde gevelbeëindigingen met feestelijk gemetselde kartelingen. Waar je ook kijkt, is er met veel aandacht voor detail en vakmanschap vormgegeven. Vrijwel vanaf het begin van de uitwerking van het stedenbouwkundig Plan-Zuid van Berlage uit 1917 was Kruyswijk betrokken bij de realisatie van een aantal woningblokken. Een groot deel van deze stadsuitbreiding werd gebouwd door Amstels Bouwvereniging, waarin zeventig bouwondernemingen samenwerkten. Om enige grip te houden op de kwaliteit van de architectuur werd een speciale commissie onder gemeentearchitect Allard Remco Hulshoff aangesteld, die architecten voor dit werk moest selecteren en tevens de randvoorwaarden bepaalde waaronder de uitverkorenen moesten werken. Kruyswijk kreeg onder andere de twee blokken op het kruispunt van de Amstellaan (nu Vrijheidslaan) en de Rijnstraat onder zijn hoede. Voorbij dit kruispunt begint het Victorieplein, het stedelijk knooppunt waar de drie hoofdassen, de Vrijheidslaan, Churchilllaan en Rooseveltlaan, samenkomen. De entree tot het plein wordt gevormd door deze twee woningblokken met een winkelarcade. Het noordelijke deel kwam in 1924 gereed, het zuidelijke in 1928. Vanuit de Vrijheidslaan gezien vormen de beide blokken als het ware een poortgebouw voor het plein, mede door de vernauwing van de rooilijn ter plaatse. De arcaden met winkels zijn de eerste in een reeks winkelgalerijen die in die tijd tot stand kwamen, zoals aan het Mercatorplein (architect H.P. Berlage) en het Surinameplein van architect J. Roodenburgh.

AM106054-1979804-Deurloostraat-44-2,-Amsterdam-219058581
AM106054-1979804-Deurloostraat-44-2,-Amsterdam-219058687
AM106054-1979804-Deurloostraat-44-2,-Amsterdam-219058617
AM106054-1979804-Deurloostraat-44-2,-Amsterdam-219058587
Wonen en koken

In de huidige indeling is het appartement opgedeeld in drie onzelfstandige wooneenheden. Hierdoor zijn er nu drie kamers die redelijk vergelijkbaar zijn in oppervlakte. De gemeenschappelijke keuken bevindt zich aan de achterzijde en biedt tevens ruimte aan een grote eettafel. Vanuit de keuken is ook het woningbrede balkon toegankelijk. Uiteraard is het ook mogelijk om het appartement met een stel of gezin te bewonen. In dat geval kan de keuken naar de voormalige kamer-en-suite worden verplaatst, waardoor twee grote slaapkamers ontstaan. De doorzonwoonkamer met open keuken vormt dan het hart van het appartement en biedt een royale leefruimte met veel lichtinval dankzij de grote raampartijen. Er is voldoende plek voor een ruime living en een grote eettafel, waardoor de ruimte ideaal is voor zowel ontspanning als samenzijn. De keuken kan geheel naar eigen smaak worden gerealiseerd. (Zie alternatieve plattegrond.)

AM106054-1979804-Deurloostraat-44-2,-Amsterdam-219058599
AM106054-1979804-Deurloostraat-44-2,-Amsterdam-219058613
AM106054-1979804-Deurloostraat-44-2,-Amsterdam-219058589
AM106054-1979804-Deurloostraat-44-2,-Amsterdam-219058695
AM106054-1979804-Deurloostraat-44-2,-Amsterdam-219058627
AM106054-1979804-Deurloostraat-44-2,-Amsterdam-219058637
Slapen en baden

Het appartement beschikt op dit moment over drie volwaardige slaapkamers: twee aan de voorzijde en één aan de achterzijde met toegang tot het balkon. In de hal bevindt zich de centraal gelegen, compacte badkamer met douche en wastafel. Voorts is er een separaat toilet aanwezig. Wanneer het appartement wordt verbouwd, kan deze indeling uiteraard naar eigen smaak worden aangepast.

AM106054-1979804-Deurloostraat-44-2,-Amsterdam-219058683
AM106054-1979804-Deurloostraat-44-2,-Amsterdam-219058641
AM106054-1979804-Deurloostraat-44-2,-Amsterdam-219058649
AM106054-1979804-Deurloostraat-44-2,-Amsterdam-219058633
AM106054-1979804-Deurloostraat-44-2,-Amsterdam-219058679
AM106054-1979804-Deurloostraat-44-2,-Amsterdam-219058661
AM106054-1979804-Deurloostraat-44-2,-Amsterdam-219058655
Het balkon

Lekker buiten zitten? Dat kan hier perfect. Het balkon van circa 13 m², met een breedte van bijna 9 meter, is gelegen op het noorden en is via de keuken en de slaapkamer te bereiken.

AM106054-1979804-Deurloostraat-44-2,-Amsterdam-219058621
AM106054-1979804-Deurloostraat-44-2,-Amsterdam-219058713
AM106054-1979804-Deurloostraat-44-2,-Amsterdam-219058709
AM106054-1979804-Deurloostraat-44-2,-Amsterdam-219058701
Buurtgids

De Deurloostraat is gelegen in de geliefde Scheldebuurt nabij het Beatrixpark. De buurt wordt gekenmerkt door zijn groene karakter en brede straten. Op o.a. de Scheldestraat en Maasstraat is een groot en divers aanbod aan winkels, zoals een viswinkel, koffietentjes en een bakkerij. Voor meer ontspanning is het Beatrixpark een uitstekende plek. Mocht je willen genieten van een heerlijke lunch is onder andere Feduzzi en Vinnies een zeer leuk alternatief in de buurt. Diverse sportscholen zijn in de nabije omgeving gelegen en ook het De Mirandabad is op enkele fietsminuten te bereiken.

Bereikbaarheid
Het appartement is zowel met de fiets, auto als openbaar vervoer zeer goed bereikbaar. De Ring A10 is al binnen 5 autominuten te bereiken via afslag S109. Vanaf de RAI vertrekken meerdere tram-, metro-, en buslijnen, zoals tram 4 naar Centraal Station en bussen naar respectievelijk Amstelstation en Station Zuid. Vanaf deze halte vertrekt eveneens het streekvervoer met onder andere een verbinding naar Luchthaven Schiphol. Ook is het mogelijk vanaf station RAI op te stappen op de Noord-Zuidlijn. Station RAI bevindt zich op 5 minuten loopafstand.

Parkeergelegenheid
Parkeren is mogelijk via een vergunningenstelsel op de openbare weg (vergunningsgebied Zuid 4.1 Rivierenbuurt Noord). Met een parkeervergunning voor Zuid 4.1 Rivierenbuurt Noord mag u parkeren in Zuid-3 en Zuid-4. Een parkeervergunning voor bewoners kost € 192,81 per 6 maanden. Momenteel is er voor dit vergunningsgebied een wachttijd van 3 maanden. Een tweede parkeervergunning is in dit gebied niet mogelijk (Bron: Gemeente Amsterdam, maart 2025).

AM106054-1979804-Deurloostraat-44-2,-Amsterdam-219058691
AM104665-1804159-Deurloostraat-8–3,-Amsterdam-151910807
AM106054-1979804-Deurloostraat-44-2,-Amsterdam-219058623
AM106054-1979804-Deurloostraat-44-2,-Amsterdam-219058591
Kenmerken
Deurloostraat 44-2, Amsterdam
Vraagprijs
  • € 625.000 k.k.
Beschikbaarheid
  • In overleg
Vertrekken
  • 4 kamers
  • 3 slaapkamers
  • 1 badkamer
Onderhoud
  • Intern: Redelijk
  • Extern: Redelijk
Oppervlakten & Inhoud
  • Woonoppervlakte: 92 m²
  • Gebouwgebonden buitenruimte: 13 m²
Bouwjaar
  • 1933
Installaties
  • Mechanische ventilatie
  • Natuurlijke ventilatie
Ligging
  • Aan rustige weg
  • In woonwijk
Parkeren
  • Betaald parkeren
  • Parkeervergunningen
Type verwarming
  • CV Ketel
Type warmwater
  • CV Ketel
Bestemming
  • Woonruimte
Eigendomssoort
  • Eigendom belast met erfpacht
Buitenruimte
  • Geen tuin
  • Balkon
Kadastraal
  • Gemeente: Amsterdam
  • Sectie: Y
  • Nummer: 4278
Duurzaamheid
  • Dubbel glas
  • Vloerisolatie
  • Energielabel B
Soort
  • Appartement
  • Bovenwoning
Welke woonlaag
  • 2e
Bijzonderheden
  • Beschermd stads of dorpsgezicht
Overige kenmerken
  • OZB ('25) € 398,71 per jaar
  • Rioolrecht ('25) € 185,20 per jaar
  • Servicekosten VvE € 39,14 per maand
Plattegrond
Deurloostraat 44-2, Amsterdam
AM106054-1979804-Deurloostraat-44-2,-Amsterdam-218110901
AM106054-1979804-Deurloostraat-44-2,-Amsterdam-221020699
Documenten
Deurloostraat 44-2, Amsterdam
Locatie
Deurloostraat 44-2, Amsterdam
Eten & drinken
Schermafbeelding 2022-07-01 om 15.54.18
01
Adres
Scheldestraat 45BG,
1078 GG Amsterdam

Vinnies

Bij Vinnies draait het om goed en eerlijk eten. Dit restaurant serveert ook all-day ontbijt en lunch. Je kunt bijvoorbeeld kiezen uit lekkere broodjes, gerechten met ei en zelfs Marokkaanse couscous of linzensoep. Als je liever komt voor een drankje ben je bij Vinnies ook op het juiste adres; ze zetten heerlijke koffie en maken ook de mooiste sappen en cocktails voor je klaar. Laat je liever de lunch bezorgen? Geen probleem: Vinnies verzorgt ook catering en heeft een eigen take-away lunchmenu.

02
Adres
Scheldestraat 68,
1078 GM Amsterdam

Venetië IJS

Bij Venetië hebben ze ambachtelijk Italiaans ijs. Het zijn veelal Italiaanse mensen die de bolletjes scheppen en dat merk je dan ook aan hun charmante accent en hun vriendelijke glimlach. Het ijs is huisgemaakt en ze hebben veel verschillende smaken en heerlijke slagroom. Het interieur is authentiek Italiaans met genoeg zitplekken binnen. In de zomer staan er buiten tafels en stoelen op het terras om even rustig je ijsje op te eten.

8-Neapolitan-Pizza-Bar
03
Adres
Maasstraat 18,
1078 HK Amsterdam

Pizza Project

Het begon met een pizzaoven in hun achtertuin. Elke vrijdag stond er een rij voor hun woning met vrienden en familie die een pizza kwamen halen. Inmiddels hebben Idske en Bas twee vestigingen en een foodtruck. Het geheim? Het deeg 48 uur laten rijzen waardoor de bodem luchtig wordt en de pizza minder zwaar op de maag ligt. In het weekend worden er ook broodjes voor de lunch geserveerd.

47575457_760618610980339_644622428751790080_n
04
Adres
Maasstraat 12,
1078 HJ Amsterdam

Mangi Amore

Bij Mangi Amore kun je terecht voor heerlijke authentieke pizza's zoals die in de Italiaanse pizza-stad Napoli worden gegeten. Chefkok Cico is een Napolitaan in hart en nieren en weet als geen ander hoe hij de perfecte krokante pizza's kan maken. In 2014 won Cico zelfs de prijs voor het bakken van de beste pizza van Nederland! De ingrediënten die worden gebruikt -in Mangi Amore zoals de tomaten uit Campania en de fameuze buffelmozzerella - worden rechtstreeks uit Italië geïmporteerd. Breng een bezoekje aan deze pizzeria om écht Italië te proever, of zoals de naam van het restaurant zelf als zegt "eet mijn lief!"

Schermafbeelding 2022-05-18 om 15.54.00
05
Adres
Scheldeplein 4,
1078 GR Amsterdam

Visaandeschelde

Al meer dan 20 jaar een begrip in Amsterdam Zuid. Zoals ze zelf zeggen is hun culinaire passie het omtoveren van dagverse vis en seizoensproducten tot spannende en heerlijke gerechten. En daarmee is eigenlijk bijna alles al gezegd. Visaandeschelde ziet er chique uit, maar binnen is er geen te kort aan een goede portie Amsterdamse gezelligheid. Ook kan je in de zomer heerlijk op het terras zitten dat uitkijkt op het Scheldeplein.

170048820_833091807392145_1141200956224978229_n
06
Adres
Maasstraat 72,
1078 HL Amsterdam

Hummus bistro d&a

Hummus Bistro D&A is opgezet door twee Israëlische vrouwen. Je kan er de hele dag door genieten van heerlijke gerechten. Begin je dag met shakshuka voor ontbijt, smul van traditionele hummus met verschillende toppings tijdens de lunch en proef vlees- of vegetarische gerechten bij het diner. Alles is mogelijk en kan de hele dag worden besteld. De traditionele hummus wordt geserveerd met pitabrood, salade en zuur, maar je kunt ook kiezen voor toppings zoals geroosterde groenten of langzaam gegaard vlees en verse kruiden.

175682_10152206008775179_210428518_o
07
Adres
Scheldeplein 22,
1072 GJ Amsterdam

Pisa IJs

Bij deze bescheiden ijswinkel bij Amsterdam RAI ben je aan het goede adres voor heerlijk Italiaans ijs. Sinds 1935 kun je hier terecht voor ambachtelijk ijs in meer dan 60 verschillende (wisselende) smaken per seizoen. Samen met ijswinkel Venetië ietsje verderop zijn deze twee ijswinkels dé plekken om goed schepijs in Amsterdam-Zuid te halen, vandaar ook de lange rijen in de zomer, maar het wachten waard en het gaat snel!

restaurant-with-waitress-in-kimono-yamazato-restaurant-1
08
Adres
Ferdinand Bolstraat 333,
1072 LH Amsterdam

Yamazato (*)

Als de naam Yamazato je niets zegt, is het wellicht makkelijker om te denken aan het Okura hotel. In dit torenachtige hotel aan de Ferdinand Bolstraat zit restaurant Yamazato wat zoals de Michelin gids uitlegt het eerste traditionele kaiseki restaurant is dat in 2002 werd bekroond met een Michelin ster. De keuken is uitgebreid en toegankelijk voor zowel degene die al volop bekend zijn met authentiek Japans, als zij die net om de hoek komen kijken. Het personeel is vriendelijk en hoffelijk en brengt het op kunstwerk gelijkende eten met een elegante flair naar de tafels. De traditionele kaiseki keuken toont zich hier simpelweg van haar mooiste en puurste kant. Yamazato biedt daarmee een ingetogen moment waarin een topproduct als zeebaars en intense bereidingen rond miso en yuzu de hoofdrol spelen. De aangepaste saké’s dienen als kers op de taart!

09
Adres
Ferdinand Bolstraat 333,
1072 LH Amsterdam

Serre

Onder leiding van Chef de Cuisine Bram Postel biedt Serre een à-la-cartemenu en het Bibendum-menu, een drie- of viergangenervaring met uitstekende prijs-kwaliteitverhouding, bekroond met een Bib Gourmand door Michelin. Het menu weerspiegelt de internationale flair van Hotel Okura, met fusiongerechten en subtiele Oosterse invloeden.

Fried-rice-with-prawn-Teppanyaki-Restaurant-Sazanka
10
Adres
Ferdinand Bolstraat 333,
1072 LH Amsterdam

Teppanyaki Restaurant Sazanka

Sazanka is een teppanyaki restaurant in hotel Okura aan de Ferdinand bolstraat. Deze vorm van voedselbereiding uit de Japanse keuken draait om de teppan, een hete ijzeren plaat om op te bakken. In Sazanka is het dan ook mogelijk om met zijn allen aan te schuiven en de teppan-chef te aanschouwen terwijl deze de meest wonderlijke gerechten op de borden tovert. De gerechten bestaan uit zowel vis en vlees, maar er worden ook genoeg vegetarische gerechten aangeboden. Een bezoek aan Sazanka is gegarandeerd een uniek kijkje in de wereld van de Japanse chefs en de kooktechnieken die zij gebruiken om elk gerecht met Japanse precisie klaar te maken. Het klinkt bijna te mooi om waar te zijn, maar Sazanka maakt het simpele grillen op een plaat tot een verfijnd stukje ambachtswerk.

Hakata-Senpachi-dsc_0680-4000PX-1024×683
11
Adres
Wielingenstraat 16,
1078 KK Amsterdam

Hakata Senpachi

Prachtig Japans eten en de lekkerste saké's; dat is Hakata Senpachi. Dit restaurant aan de Wielingenstraat bestaat al langer dan 20 jaar en heeft in al die jaren altijd haar autentieke japanse sfeer behouden. De manier waarop restaurant is ontworpen doet het lijken op een echt Japans restaurant in de steegjes van Tokyo. Hakanta Senpachi is als Yakitori-ya - gespecialiseerd in het maken van gegrilde kipspiesjes, die in Japans Yakitori worden genoemd. De spiesen worden gegrild via traditionele kookwijzen op de houtskool grill. Deze grill staat overigens in het midden van het restaurant waardoor de ruimte altijd volhangt met de lekkerste aroma's.

Chefs-table-Ciel-Bleu-Restaurant-Hotel-Okura-Amsterdam-1024×683
12
Adres
Ferdinand Bolstraat 333,
1072 LH Amsterdam

Ciel Bleu (**)

Het gastronomische restaurant Ciel Bleu zit in het welbekende Okura Hotel. Het hotel dat boven Amsterdam Zuid uittorent. Verwacht bij Ciel Bleu diner van hoog niveau. Niet alleen bevindt het restaurant zich op de 23e verdieping, de internationale keuken heeft inmiddels twee michelinsterren op zijn naam staan. Waan je in de seizoensgebonden gerechten bereid door chefs Onno Kokmeijer en Arjan Speelman en geef je over aan een puur zintuiglijke ervaring.

downloadgram.org_559642553_122125719002959277_149688819253188505_n
13
Adres
Europaplein 67,
1078 GW Amsterdam

Toet Amsterdam

Toet is het mediterraan georiënteerde restaurant van het team achter Troef, dat met deze tweede zaak een eigen draai geeft aan mediterrane en Italiaanse smaken in Zuid-Amsterdam. De eigenaren — waaronder Niels Leijssenaar, Roderick Kunst, Willem Alberts en Raymond Plat — brengen dezelfde kwaliteit en gastvrijheid als hun Troef-concept, maar dan met frisse, mediterraanse invloeden op de kaart. Je vindt hier gerechten zoals kreeft met gnocchi of pizzeta met ’nduja en rivierkreeft, die de rijke smaken van de Middellandse Zee reflecteren.

316696614_701301834540671_3708281314260770335_n
144520165_409011853732573_3822562762173474371_n
14
Adres
Europaplein 87,
1078 GZ Amsterdam

Scandinavian Embassy

Hier wordt ervaring en interesse in Scandinavisch eten en duurzaamheid geboden. Bij de Embassy traceren ze kleine, niche-leveranciers en gaan mee met de seizoenswisselingen van producten. De keuken biedt menu's voor een betaalbare prijs waarbij de gezonde en milieuvriendelijke wortels van de Scandinavische keuken behouden blijven. Bijzonder is dat ze ook koffie met eten combineren , waardoor, volgens hun zeggen, de algehele culinaire ervaring verbeterd wordt. Dit is hun tweede locatie. De ander locatie is in de Pijp gevestigd.

333838177_1395182361027309_276174909384860799_n
15
Adres
Ruysdaelkade 251,
1072 AX Amsterdam

KID

Levy Byron, Joshua Styns en Steven Mamahit begonnen tijdens de pandemie. Het concept begon als pop-up en heeft nu een vaste locatie op de Ruysdaelkade.  Het menu is inmiddels fors uitgebreid. Yakitori van kip met kaffir lime en chillies. Chickenwings gevuld met een tartaar van garnaal en een saus van shi-take. Geroosterde kool met gefrituurde ui en een hollandaise saus. En natuurlijk de inmiddels beroemde kip-sandwiches in allerlei varianten zoals bijvoorbeeld de Sichuan spiced firied chicken met pickles en knoflookmayonaise geserveerd op een sake kasu bricohe broodje. KID schenkt er cocktails, bier en een kleine selectie wijn bij.

10388075_451384665012811_909562328407685569_n
10985537_451384838346127_3104155378018227811_n
16
Adres
Dusartstraat 53 h,
1072 HP Amsterdam

En Japanese kitchen & Sake bar

En Japanese kitchen & Sake bar opent in 2015 zijn deuren. Chef Ken Osawa en Ryuji Ikemizu (restaurant manager), die voorheen bij Yamazato werkten, brengen de originele Japanse keuken in zicht.  Iedere maand maakt chef Ken Osawa (geboren & opgegroeid in Hokkaido) een nieuw menu in 3, 6 of 8 gangen met oog voor de seizoenen. Manager Ikemizu paart deze aan de mooiste sakes. De sashimi en sushi zijn allebei van top kwaliteit en het wordt altijd mooi geserveerd.

 

downloadgram.org_610537169_18548346316008255_4419216508779777234_n
17
Adres
Ferdinand Bolstraat 178H,
1072 LT Amsterdam

Bar Buuf

Bar Buuf werd opgericht door Fleur van Olphen (in samenwerking met de eigenaar van Bar Dó), die opgroeide in Saigon en haar koksopleiding volgde aan Le Cordon Bleu in Parijs voordat ze haar eigen restaurant opende in Amsterdam. Met de naam koos ze bewust voor iets huiselijks en toegankelijk, als tegenhanger van de vele Franse bistro’s in de stad. De keuken heeft een Franse basis, met ruimte voor invloeden uit andere landen dankzij een internationaal team en een menu dat meebeweegt met de seizoenen. Fleur staat graag dicht bij haar gasten en bouwde Bar Buuf als een plek waar gastvrijheid vanzelfsprekend is, van een karaf water tot een mandje brood zonder bijbetaling. Bar Buuf is ook open voor een eenvoudige lunch.

273527792_1094120731373914_3723216352655897476_n
273504397_682824012857141_6351908061930260148_n
18
Adres
Ferdinand Bolstraat 168H,
1072 LT Amsterdam

Brittons bakery

In 2016 opende Heather Brittons een knusse bakstudio in Amsterdam. Gespecialiseerd in Amerikaans/Canadees gebak, waarbij kwaliteit voorop staat. Elk beslag wordt zorgvuldig geproefd voor de oven. Het vaste menu wordt regelmatig herzien met kleine aanpassingen voor een nog betere smaak en uitstraling. Brittons staat voor ambacht, met recepten die decennia lang zijn doorgegeven, zoals "Grandma's Carrot Cake". Hoogwaardige ingrediënten, waaronder biologische eieren van de MiniRondeel zorgboerderij en zelfgemaakt vanille-extract met Madagaskar-bourbon vanillestokjes van Vanilla Venture, maken Brittons' gebak onweerstaanbaar.

Boodschappen
Schermafbeelding 2022-07-01 om 14.11.20
19
Adres
Scheldestraat 63,
1078 GH Amsterdam

Feduzzi

Feduzzi is opgezet in 1981 door de Italiaanse familie Feduzzi en was daarmee de allereerste Italiaanse delicatessenwinkel in Nederland. In 2001 werd het bedrijf overgenomen door Pjotr Meuwissen, die het liet uitgroeien tot een van de beste Italiaanse traitteurs in de stad. Je kunt bij Feduzzi terecht voor traditionele Italiaanse producten, zoals pasta's en wijnen en olijfolies, maar je kunt hier ook allerlei lekkere panini's halen; belegd met mozzarella, tonijnsalade of een van de andere heerlijke affetati, zoals beenham of coppa di parma.

IMG_1772_345x345@2x
20
Adres
Maasstraat 16,
1078 HJ Amsterdam

Grammes

Na maar liefst 10 jaar training in de beste patisserieën in Parijs en New York, brengt Chef Maxime Papin zijn kennis en technieken naar Amsterdam. Papin kreeg al vroeg de kneepjes van het vak met de paplepel kreeg ingegoten van zijn moeder toen hij opgroeide in Frankrijk, en zette dit voort in de culinaire wereld van New York. Zijn creaties zijn dan ook allesbehalve doorsnee; het befaamde cappuccino taartje maar ook chocolade croissants, koekjes en zelfgemaakte granola.

personeel
21
Adres
Maasstraat 19,
1078 HB Amsterdam

Poelier Jonker

Poelier Jonker in de Maasstaat bestaat al meer dan 45 jaar. Anno 1974 is het bedrijf opgezet door de familie Jonker en is vandaag de dag nog steeds in het bezit van de familie. Bij Poelier Jonker is de missie "het behouden van het poeliers-ambacht" en dat is te zien! Het assortiment is zeer uitgebreid; van gegrilde producten tot heerlijke salades. Daarnaast verkopen ze hier ook maaltijden en ragouts. Alle producten van poelier Jonker zijn dagvers en van de beste kwaliteit.

22
Adres
Maasstraat 65,
1078 HE Amsterdam

Slagerij Woorts

Slagerij Woorts opende al in 1964 de deuren van de winkel op de Maasstraat. Met het motto ‘niet teveel kruiden, niet teveel specerijen, gewoon dat wat hoort, en dat moet het product an sich het zelf doen’, is dit een typisch Amsterdamse slagerij waar de producten weinig poespas nodig hebben. De klanten komen van heinde en verre hier naartoe voor de ossenworst en filet americain. Er wordt hier met aandacht gewerkt zodat het dier krijgt wat het verdient.

180912402_1910769552415460_9061827722288066926_n
23
Adres
Scheldeplein 20,
1078 GR Amsterdam

Sab’s Deli

Bij Sab’s Deli ligt de focus op echt lekker, maar net wat specialer dan normaal, en uiteraard waar mogelijk duurzame en lokale producten. Al deze dingen samen vormen het merk ‘Sab’s. Ze verzorgen ook complete caterings van thuisdiners tot heerlijke borrelhapjes. Gelegen vlak naast de drukke RAI in Amsterdam Zuid, kan je ook altijd als je net de trein uitstapt even binnenlopen en kijken wat de pot schaft. Het zal niet tegenvallen!

Schermafbeelding 2022-07-01 om 14.03.31
24
Adres
Maasstraat 88,
1078 HM Amsterdam

Sophie Eats

Sophie Eats is een cateringbedrijf en deli-shop gevestigd in Amsterdam. Met kwalitatieve seizoen producten wordt er een balans naar smaken en textuur gezocht die het eten uniek en lekker maken. Het kleurrijke menu is geschikt voor iedere gelegenheid; van een zakenlunch of een mode-evenement tot een sfeervolle borrel. In het winkeltje kan je terecht voor koffie, een vers sapje of iets lekkers te eten voor onderweg.

Schermafbeelding 2022-07-01 om 13.44.23
25
Adres
Maasstraat 77,
1078 HE Amsterdam

Patisserie Tout

Patisserie Tout maakt gebakjes, chocolade en macarons in een atelier aan de Maasstraat. De Patisserie is in 2007 opgezet door koppel Job en Kim van Berkel. Samen vormen zij het ideale team; Job is de smaakmaker en Kim is de gastvrouw. Dit ijzersterke duo heeft succes geboekt; Patisserie Tout is een van de bekendste smaakateliers in Amsterdam Zuid en verkoopt taart en gebak voor elke gelegenheid; bruidstaarten, verjaardagstaarten, en ook bedrijfstaarten. Geen grote taart nodig? Gelukkig kan ook een kleine gebakjes kopen, zoals éclairs of verrukkelijke macarons.

Samengesteld; een collectie werkplekken in het centrum van Amsterdam.

Samengesteld; een collectie werkplekken in het centrum van Amsterdam.

Uitgelicht; Romance with a View, het allerlaatste stuk van de Prinsengracht

Uitgelicht; Romance with a View, het allerlaatste stuk van de Prinsengracht

Nicolien Kloppart kunst

Nicolien van KloppArt over kunst, lithografie en een nieuw begin

Onlangs bekeken
Bekijk het overzicht

Deze site maakt gebruik van cookies.

Voor welke cookies geef je akkoord?