Woonboerderij van circa 442 m² op een royaal perceel van 4.370 m², gelegen in Weesp.
De woning beschikt over een sfeervolle woonkamer, een landelijke keuken, vier slaapkamers, drie badkamers en een fraai aangelegde tuin rondom. De boerderij is gelegen op eigen grond en biedt volop rust, ruimte en privacy, op korte afstand van de stad.

Rondleiding
Begane grond

Bij binnenkomst in het achterhuis valt direct de royale maatvoering en heldere indeling op. De woonverdieping is opgezet als een open ruimte, met zichtbare houten spanten en een vide die zorgt voor extra hoogte en een bijzonder gevoel van ruimte. De woonkamer is gesitueerd aan de tuinzijde, met meerdere openslaande deuren en grote raampartijen die zorgen voor een constante lichtinval en prachtig uitzicht op het groen. De haard vormt het warme hart van de ruimte en zorgt voor sfeer en comfort.

Aansluitend aan de woonkamer ligt de eetkamer, die op haar beurt weer grenst aan de ruime woonkeuken. De keuken is functioneel ingericht, voorzien van voldoende werk- en kastruimte, een robuust houten werkblad en zicht op de omliggende weilanden. Hier is ook een tweede eetgedeelte gecreëerd, ideaal voor zowel dagelijks gebruik als lange diners bij het haardvuur.
Daarnaast bevinden zich op de begane grond diverse praktische ruimtes, zoals een bijkeuken, berging en een gastentoilet.

Slaapverdieping
In het achterhuis zijn drie slaapkamers gesitueerd. De hoofdslaapkamer is royaal opgezet, voorzien van meerdere raampartijen en heeft directe toegang tot een privébadkamer met ligbad, inloopdouche, dubbele wastafel en daglicht via een dakraam.
De twee overige slaapkamers delen een tweede badkamer en zijn ideaal voor kinderen, gasten of als werkkamer. Beide badkamers zijn functioneel ingericht en dateren uit de jaren negentig.
In het voorhuis bevindt zich nog een vierde, zeer ruime slaapkamer met karakteristieke details zoals zichtbare balklagen en een hoge plafond. Aangrenzend ligt een sfeervolle opkamer, momenteel ingericht als werkruimte, maar ook uitstekend te gebruiken als extra slaapkamer of hobbyruimte.

De Buitenruimte
De tuin rondom de boerderij is ruim, groen en besloten. Volgroeide bomen markeren de erfgrens en bieden beschutting en privacy. Vanuit het huis is er vrij zicht op het omliggende landschap; de openheid van het weiland contrasteert mooi met de omslotenheid van de tuin.
Aan de achterzijde ligt een houten kapschuur, ingericht als beschutte buitenplek voor lange zomeravonden aan tafel. De beplanting is informeel en zorgvuldig opgebouwd, met vaste planten, oude rozen en eenvoudige borders van gestapelde stenen. Her en der liggen aanwijzingen van het gebruik: een croquetspel in het gras, houtstapels, een zitplek onder de bomen.
Achterin het perceel ligt een eigen steiger aan de Vecht. De oever is begroeid, het water kalm, het uitzicht weids. Hier zijn alle lijnen gericht op rust en ruimte — geen omlijsting, maar open verbinding met het landschap.
Wat opvalt is de vanzelfsprekendheid van de tuin in relatie tot de woning. Niets is nadrukkelijk aangelegd, alles is functioneel en in balans. De buitenruimte maakt deel uit van het dagelijks gebruik, niet als decor, maar als verlengstuk van het huis.

Buurtgids
Dammerweg 10 ligt in het landelijke buitengebied tussen Weesp, Bussum en Nederhorst den Berg — midden in het groen, aan een rustige dijk langs de rivier de Vecht. Deze plek combineert het vrije buitenleven met de nabijheid van stedelijke voorzieningen.
De ligging is strategisch: onder de rook van Amsterdam, met uitstekende bereikbaarheid richting de stad. Binnen twintig minuten rijden sta je in het centrum van Amsterdam of Hilversum. Station Weesp, met directe treinverbindingen naar onder meer Amsterdam Centraal, Utrecht en Schiphol, ligt op circa tien minuten afstand.
De ligging aan het water biedt bovendien directe vaarverbindingen met onder andere Muiden, Weesp en de Spiegelplas. Vanuit de eigen steiger vaar je zo de Vecht op — richting natuur, dorpskernen of open water.
Het geheel ligt beschut en rustig, zonder verkeersdrukte, met zicht op weilanden en een brede waterloop. Een locatie die rust biedt, zonder afgelegen te zijn.

Bijzonderheden
• Gebruiksoppervlakte wonen circa 442 m²
• Tuin rondom gelegen van circa 3765 m²
• Gelegen op eigen grond
• Monument
• Renovatie jaar 1985
• (Rijks-) monument

AM106297-2045577-Dammerweg-10,-Weesp-242369442

De Melk Koe
Soms komt er een plek voorbij die alles in zich heeft: rust, ruimte en de directe nabijheid van water. Dammerweg 10 is zo’n plek. Hier woon je in een boerderij die autonoom aanvoelt, midden in het groen, en toch vlakbij de voorzieningen van Weesp en Bussum.
De ligging aan de Vecht maakt dit huis bijzonder. Er is ruimte voor ontspanning, voor lange dagen buiten en voor het leven op en aan het water. De tuin met fruitbomen en oude beplanting sluit daar naadloos bij aan. Het is een erf dat evenwichtig is gegroeid, met volop ruimte om te wonen, te werken en te genieten.
Dit is een schitterende plek, met de allure van het buitenleven en het comfort van bereikbaarheid. Een huis dat rust geeft, maar je ook in verbinding houdt met de omgeving.


Jelle Mundt | Makelaar Broersma Wonen
Ronald van de Bijl | Makelaar Broersma Wonen

AM106297-2045577-Dammerweg-10,-Weesp-242369148
Designvisie

Deze woonboerderij combineert historisch karakter met functionele ruimte. Het voorhuis dateert uit het midden van de 18e eeuw en laat dit zien in de opbouw en details: een gevelsteen met het jaartal 1747, luiken in oorspronkelijke stijl en robuust metselwerk. De symmetrische gevels en diepe daklijn geven het pand een heldere structuur.
Achter het voorhuis ligt het voormalige deel, dat is verbouwd tot volwaardige woonruimte. De rij dakvensters toont de nieuwe functie van dit volume, zonder dat het afbreuk doet aan de oorspronkelijke vorm. Oud en nieuw zijn hier goed in balans; het contrast tussen de bakstenen gevels en de witgepleisterde uitbouw versterkt de leesbaarheid van het geheel.
Binnen zorgen zichtbare gebinten en een hoge kapconstructie voor ruimtelijkheid. De indeling is helder en gericht op contact met buiten. Grote ramen bieden zicht op het omliggende groen en meerdere openslaande deuren verbinden de woonvertrekken met de tuin.
De ligging aan de Vecht met een eigen aanlegsteiger maakt het ensemble compleet. Wat hier opvalt is de rust, de ruimte en de beschutte ligging — zonder de stad uit het oog te verliezen.

AM106297-2045577-Dammerweg-10,-Weesp-242369732
AM106297-2045577-Dammerweg-10,-Weesp-242369246
AM106297-2045577-Dammerweg-10,-Weesp-242369200
AM106297-2045577-Dammerweg-10,-Weesp-242369284
Wonen en koken

Het achterhuis is ingericht als volwaardige woonruimte, met een heldere structuur en royale maatvoering. De open plattegrond wordt gedragen door een constructie van zichtbare spanten, met een vide die extra hoogte en diepte aan de ruimte geeft. De indeling is logisch opgebouwd rond zichtlijnen en natuurlijke looproutes.
De woonkamer grenst aan de tuinzijde en profiteert van grote raampartijen en meerdere openslaande deuren. Licht en zicht zijn hier constant aanwezig. De haard vormt een centraal element, praktisch in gebruik en bepalend voor de sfeer. Verschillende zitplekken maken de ruimte flexibel in gebruik — van informeel samenzijn tot meer besloten momenten.
De eetkamer ligt aansluitend en opent naar de keuken. Deze is functioneel ingericht, met voldoende werk- en bergruimte, een robuust houten werkblad en zicht op het omliggende landschap. In de keuken bevindt zich ook een tweede eettafel, gesitueerd bij een haardpartij, waardoor het geheel geschikt is voor zowel dagelijks gebruik als langer tafelen.
Alles in deze woonverdieping is ontworpen in verhouding tot de schaal van het huis. Er is ruimte, maar geen leegte. Zichtlijnen, materiaalgebruik en afwerking zijn in balans, ingetogen, functioneel en prettig om in te leven.

AM106297-2045577-Dammerweg-10,-Weesp-242369314
AM106297-2045577-Dammerweg-10,-Weesp-242369306
AM106297-2045577-Dammerweg-10,-Weesp-242369300
AM106297-2045577-Dammerweg-10,-Weesp-242369264
AM106297-2045577-Dammerweg-10,-Weesp-242369184
AM106297-2045577-Dammerweg-10,-Weesp-242369252
AM106297-2045577-Dammerweg-10,-Weesp-242369376
AM106297-2045577-Dammerweg-10,-Weesp-242369422
Slapen en baden

In het achterhuis zijn drie slaapkamers ondergebracht, waaronder de ouderslaapkamer met directe toegang tot een eigen badkamer. De ruimte is ruim van opzet, heeft meerdere raampartijen en zicht op het omliggende groen. De badkamer is uitgevoerd met een ligbad, inloopdouche, dubbele wastafel en daglicht via een dakraam.
De overige twee slaapkamers liggen aan dezelfde zijde van het huis en delen een tweede badkamer. Beide badkamers stammen uit de jaren negentig en zijn functioneel ingericht, passend bij de verbouwingsperiode.
In het voorhuis bevindt zich een royale slaapkamer, direct grenzend aan de opkamer die nu dienstdoet als werkruimte. Hier zijn de oorspronkelijke balklagen, kozijnen en plafondhoogte behouden gebleven, wat het geheel karakter en rust geeft.

AM106297-2045577-Dammerweg-10,-Weesp-242369394
AM106297-2045577-Dammerweg-10,-Weesp-242369404
AM106297-2045577-Dammerweg-10,-Weesp-242369414
AM106297-2045577-Dammerweg-10,-Weesp-242369436
AM106297-2045577-Dammerweg-10,-Weesp-242369534
AM106297-2045577-Dammerweg-10,-Weesp-242369124
AM106297-2045577-Dammerweg-10,-Weesp-242369800
De buitenruimte

De tuin rondom de boerderij is ruim, groen en besloten. Volgroeide bomen markeren de erfgrens en bieden beschutting en privacy. Vanuit het huis is er vrij zicht op het omliggende landschap; de openheid van het weiland contrasteert mooi met de omslotenheid van de tuin.
Aan de achterzijde ligt een houten kapschuur, ingericht als beschutte buitenplek voor lange zomeravonden aan tafel. De beplanting is informeel en zorgvuldig opgebouwd, met vaste planten, oude rozen en eenvoudige borders van gestapelde stenen. Her en der liggen aanwijzingen van het gebruik: een croquetspel in het gras, houtstapels, een zitplek onder de bomen.
Achterin het perceel ligt een eigen steiger aan de Vecht. De oever is begroeid, het water kalm, het uitzicht weids. Hier zijn alle lijnen gericht op rust en ruimte, geen omlijsting, maar open verbinding met het landschap.
Wat opvalt is de vanzelfsprekendheid van de tuin in relatie tot de woning. Niets is nadrukkelijk aangelegd, alles is functioneel en in balans. De buitenruimte maakt deel uit van het dagelijks gebruik, niet als decor, maar als verlengstuk van het huis.

AM106297-2045577-Dammerweg-10,-Weesp-242369486
AM106297-2045577-Dammerweg-10,-Weesp-242369814
Weesp 1
AM106297-2045577-Dammerweg-10,-Weesp-242369156
Buurtgids

Dammerweg 10 ligt in het landelijke buitengebied tussen Weesp, Bussum en Nederhorst den Berg, midden in het groen, aan een rustige dijk langs de rivier de Vecht. Deze plek combineert het vrije buitenleven met de nabijheid van stedelijke voorzieningen.
De ligging is strategisch: onder de rook van Amsterdam, met uitstekende bereikbaarheid richting de stad. Binnen twintig minuten rijden sta je in het centrum van Amsterdam of Hilversum. Station Weesp, met directe treinverbindingen naar onder meer Amsterdam Centraal, Utrecht en Schiphol, ligt op circa tien minuten afstand.
De ligging aan het water biedt bovendien directe vaarverbindingen met onder andere Muiden, Weesp en de Spiegelplas. Vanuit de eigen steiger vaar je zo de Vecht op,  richting natuur, dorpskernen of open water.
Het geheel ligt beschut en rustig, zonder verkeersdrukte, met zicht op weilanden en een brede waterloop. Een locatie die rust biedt, zonder afgelegen te zijn.

Bereikbaarheid
De woonboerderij aan de Dammerweg is uitstekend bereikbaar, zowel met de auto als per fiets. De N236 en N523 zorgen voor een snelle verbinding richting de A1, A9 en A10, waarmee steden als Amsterdam, Hilversum en Utrecht gemakkelijk te bereiken zijn. Met de fiets ben je binnen 10 minuten in het centrum van Weesp, waar ook het NS-station ligt met directe treinverbindingen naar Amsterdam, Schiphol, Almere en Utrecht.
Buslijnen richting Weesp, Nederhorst den Berg en Bussum vertrekken op korte afstand van de woning. Ook voor recreatief fietsen is de ligging ideaal: je zit zo op de dijken langs de Vecht of in het natuurgebied rond de Ankeveense Plassen.

Parkeren
Parkeren is mogelijk op eigen terrein. Er is ruime parkeergelegenheid op het erf, geschikt voor meerdere auto’s. Voor bezoekers is parkeren langs de Dammerweg doorgaans goed mogelijk en gratis. Er is geen betaald parkeren of vergunningensysteem van toepassing in dit gebied (bron: Gemeente Weesp, september 2025).

Vecht
AM106297-2045577-Dammerweg-10,-Weesp-242369534
AM106297-2045577-Dammerweg-10,-Weesp-242369372
AM106297-2045577-Dammerweg-10,-Weesp-242369174
Kenmerken
Dammerweg 10, Weesp
Vraagprijs
  • € 2.000.000 k.k.
Beschikbaarheid
  • In overleg
Vertrekken
  • 13 kamers
  • 5 slaapkamers
  • 3 badkamers
Onderhoud
  • Intern: Goed
  • Extern: Redelijk tot goed
Oppervlakten & Inhoud
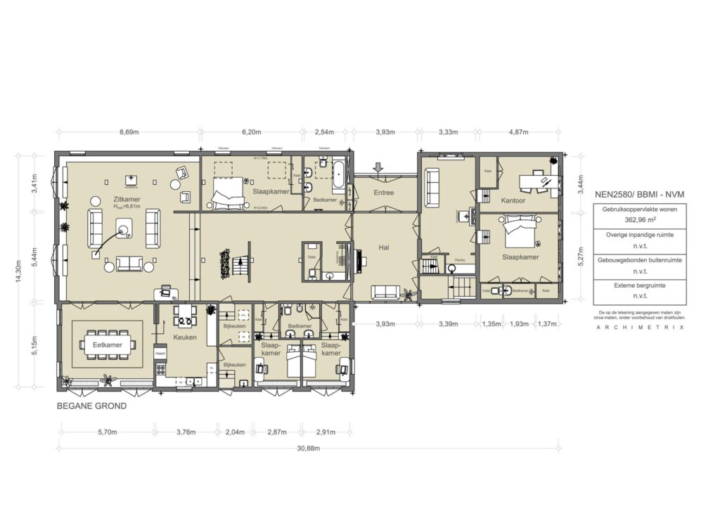
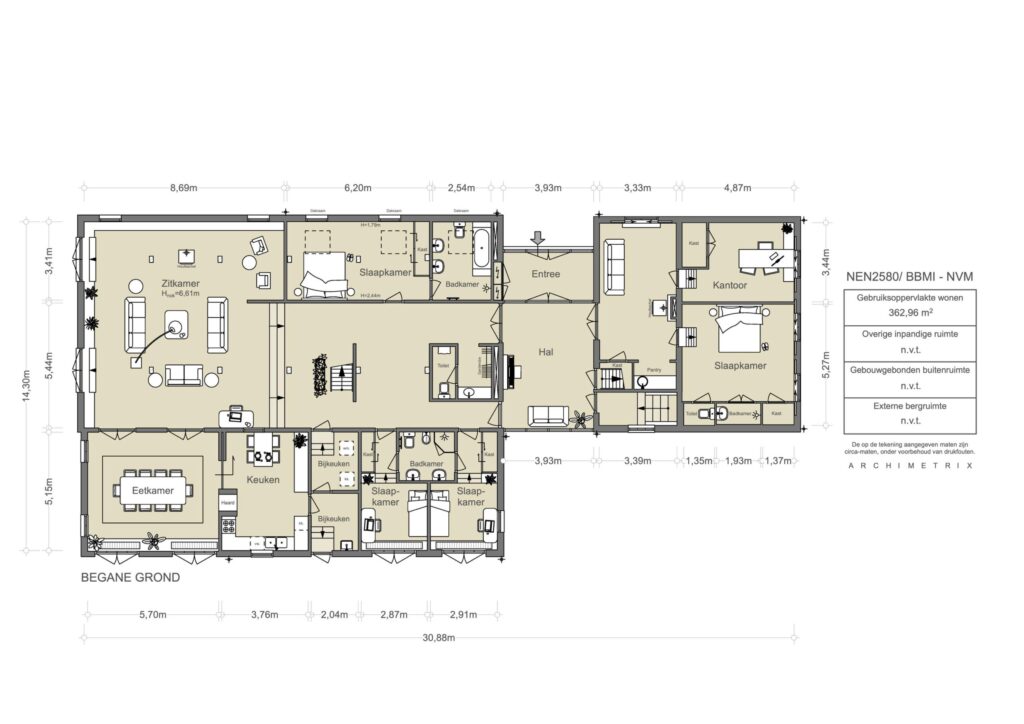
  • Woonoppervlakte: 442 m²
  • Overige inpandige ruimte: 60 m²
  • Gebouwgebonden buitenruimte: 24 m²
  • Perceeloppervlakte: 4370 m²
Bouwjaar
  • 1747
Installaties
  • Mechanische ventilatie
  • TV kabel
Ligging
  • Aan rustige weg
  • Aan vaarwater
  • Aan water
  • In bosrijke omgeving
  • Open ligging
  • Vrij uitzicht
Parkeren
  • Op eigen terrein
Type verwarming
  • CV Ketel
  • Open haard
Type warmwater
  • CV Ketel
Bestemming
  • Woonruimte
Eigendomssoort
  • Volle eigendom
Buitenruimte
  • Tuin rondom
Kadastraal
  • Gemeente: Weesp
  • Sectie: H
  • Nummer: 1486
Soort
  • Vrijstaande-woning
  • Woonboerderij
  • Woonhuis
Bijzonderheden
  • Monument
  • Monumentaal pand
Overige kenmerken
  • OZB ('25) € 975,71 per jaar
  • Rioolrecht ('25) € 185,20 per jaar
  • Gelegen op eigen grond
  • Tuin rondom gelegen van circa 3765 m²
  • Gelegen op eigen grond
  • Monument
  • Renovatie jaar 1985
     
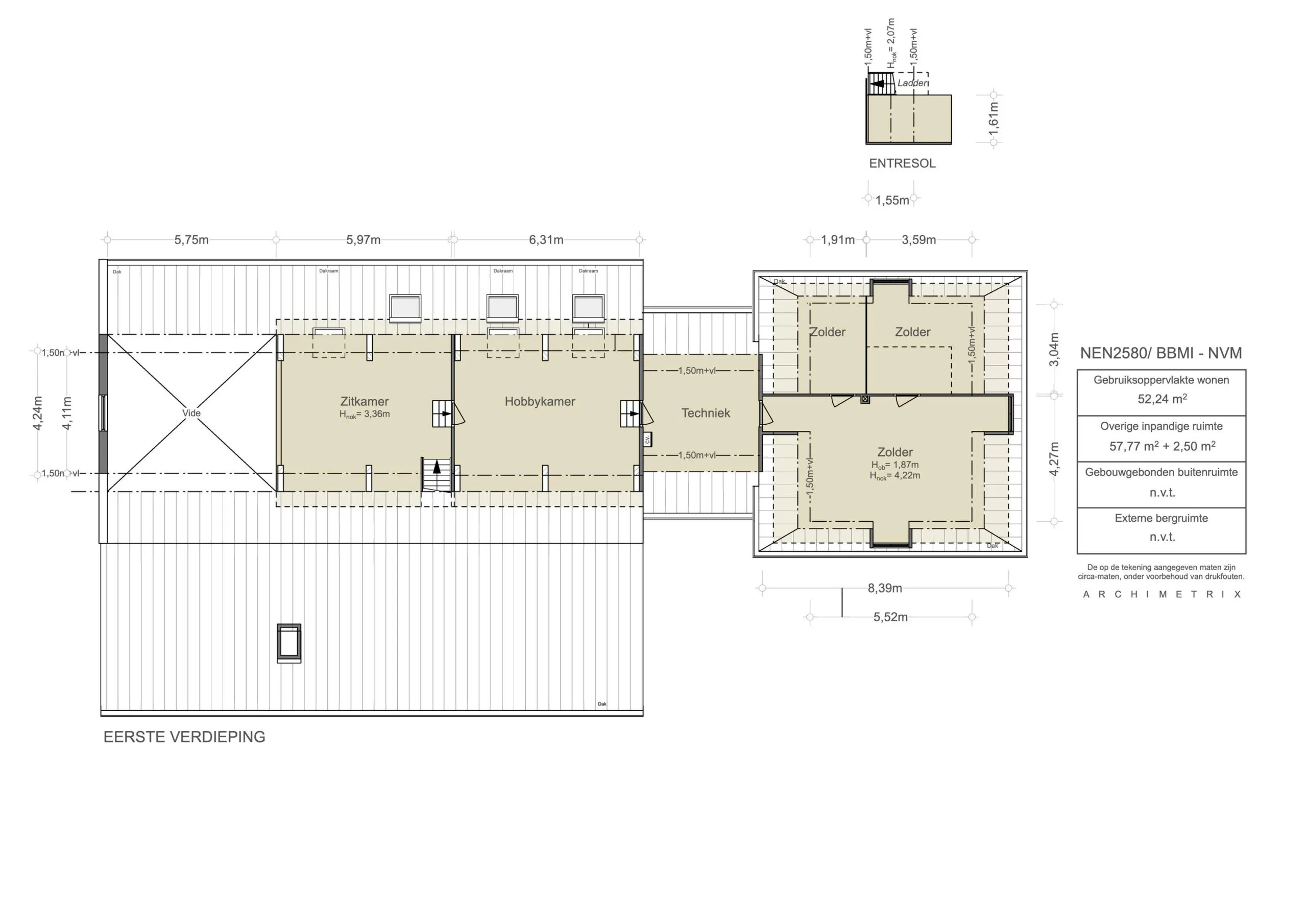
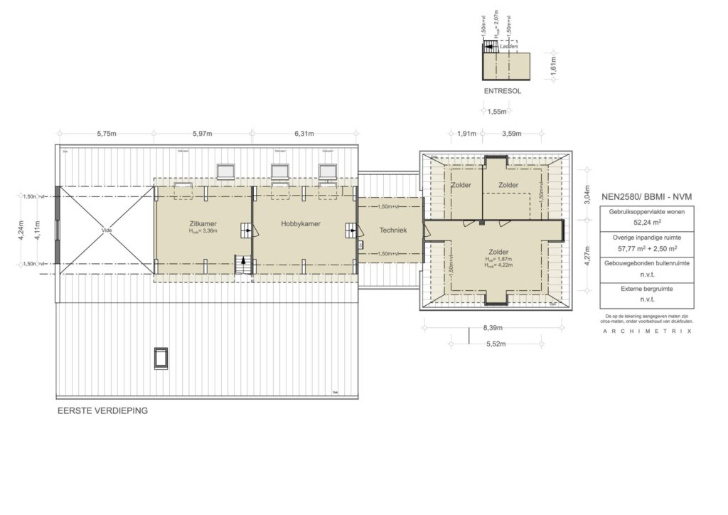
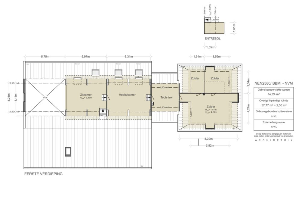
Plattegrond
Dammerweg 10, Weesp
AM106297-2045577-Dammerweg-10,-Weesp-245004436
AM106297-2045577-Dammerweg-10,-Weesp-245004444
AM106297-2045577-Dammerweg-10,-Weesp-245004446
AM106297-2045577-Dammerweg-10,-Weesp-245004448
AM106297-2045577-Dammerweg-10,-Weesp-245004450
Documenten
Dammerweg 10, Weesp
Locatie
Dammerweg 10, Weesp
Eten & drinken
Pasted Graphic 20
01
Adres
Nieuwstad 32,
1381 CC Weesp

SOMM Bistro a Vin

Na enkele jaren in Amsterdam is SOMM Bistro à Vin opnieuw neergestreken in het centrum van Weesp. In deze pretentieloze pijpenla serveert sommelier Sascha Holzkämper eerlijke, smakelijke gerechten en een zorgvuldig samengestelde wijnkaart met zo’n 250 referenties. De focus ligt op goed eten, zonder poespas, dat perfect samengaat met een goed glas wijn. Een fijne plek voor liefhebbers van wijn en eenvoud in smaak.

02
Adres
Gein Zuid 23a,
1391 JE Abcoude

Anna Haen

Een heerlijke buitenplek waar je kan genieten van gerechten geïnspireerd op het seizoen, het leven vieren en vergaderen. In de streekwinkel kan je terecht voor een cadeautje of iets lekkers voor thuis. De groene omgeving, de moestuin van Anna Haen en de verse producten geeft het keukenteam keer op keer inspiratie voor pure en verrassende gerechten.

8-lvffood.com-12-20241217
48-lvffood.com-5322-32-20241217
03
Adres
Stationsplein 3,
1391 GS Abcoude

De Witte Dame

Boetiekhotel De Witte Dameis  gevestigd in het gerenoveerde treinstation van Abcoude met de polder Het Gein als achtertuin. Naast dat je er fantastische kamers hebt kun je er ontbijten, lunchen of dineren – ook zonder overnachting is dat echt het omrijden waard! De chef kookt naar het seizoen en de gerechten zijn pretentieloos en heerlijk.

wilco
oesterproeverij4
oesterproeverij8
04
Adres
Duinkerken 3,
3633 EM Vreeland

De Nederlanden

Aan de oever van de Vecht in Vreeland leidt Wilco Berends restaurant De Nederlanden met passie en precisie. Sinds zijn komst in 2006 en overname in 2012 heeft hij het restaurant naar een Michelinster gekookt, met een keuken die Franse technieken combineert met Nederlandse seizoensproducten . Zijn vrouw Caroline zorgt als gastvrouw voor een warme, huiselijke sfeer en werd bekroond tot ‘Gastvrouw van het Jaar’ door Gault&Millau.

05
Adres
Hoogstraat 37,
1391 BR Abcoude

De Eendracht

Al 290 jaar lang is De Eendracht een ontmoetingsplek voor Abcoude. Van lokale herberg met paardenstal in 1734 tot het Café-Restaurant wat het nu is. Een plek waar mensen samenkomen om te genieten van goed eten en waar iedereen zich meteen thuis voelt. Zelf gebakken appeltaart met handgeklopte slagroom (waar vind je dat nog) op een prachtig terras.

191686408_2310828075718601_276839848729415013_n
06
Adres
Overdiemerweg 37,
1111 PP Diemen

Paviljoen Puur

Paviljoen puur is een spectaculaire locatie midden in het Diemerpark. Het paviljoen kan afgehuurd worden voor trouwfeesten en zakelijke evenementen, maar je kunt hier ook informeel een hapje komen eten. Het gebouw is speciaal door de ronde vormen geïnspireerd op het nabijgelegen gerestaureerde fort Diemerdam. Door het omliggende groen heerst er een in de omgeving ban het paviljoen een heerlijke kalme sfeer. Leuk is dat ze zowel een binnen- als een buitenkeuken hebben dus als het lekker weer is kan er ook buiten in de zon gekookt worden.

Screenshot-2025-03-25-at-14.57.11
DSC_9486-scaled
07
Adres
Zandeiland één,
3645 BZ Vinkeveen

Wander Island

Wander Island is een sfeervol restaurant op een eilandje in de Vinkeveense Plassen, waar je het hele jaar door kunt genieten van pure gerechten en een prachtig uitzicht over het water . De keuken combineert mediterrane en Midden-Oosterse smaken en biedt een shared dining-concept, waarbij gerechten gedeeld kunnen worden,

08
Adres
Kerkstraat 1,
3632 EL Loenen aan de Vecht

Tante Koosje

Tante Koosje in Loenen aan de Vecht biedt een verfijnde productkeuken onder leiding van chef Roland Veldhuijzen. Zijn gerechten balanceren zuivere smaken en verfijnde combinaties, zoals hamachi met ponzu of zomerschol in beurre blanc. Tante Koosje is vernoemd naar een markante dorpsbewoonster die in het pand woonde. Het restaurant beschikt over een sfeervol terras bij de kerk.

485626220_18363339187131783_7726875381423708693_n
09
Adres
Rijksstraatweg 119,
3632 AB Loenen aan de Vecht

’t Amsterdammertje in Loenen

’t Amsterdammertje in Loenen aan de Vecht is een bruisende culinaire bestemming met Michelinster, geleid door chef-eigenaar André Gerrits. Zijn moderne interpretatie van de Franse keuken komt tot uiting in creatieve klassiekers zoals een ‘canard à l’orange’-Wellington met kardemom en barbecuede witlof. Ook in vegetarische gerechten, zoals rendang van biet met limoenijs en cashewnoten, toont hij zijn finesse. Gerechten worden geserveerd in een ontspannen setting met een sfeervol terras aan het water. De wijnkaart, onder leiding van sommelier Joep Smit, tilt wijn-spijscombinaties naar een hoger niveau. Gerrits is niet alleen een topchef, maar ook een mentor voor een nieuwe generatie keukentalent.

10
Adres
Groenlandsekade 1,
3645 BA Vinkeveen

The Harbour Club

The Harbour Club Vinkeveen combineert internationale flair met een uitzicht dat je stil maakt. Aan de rand van de Vinkeveense Plassen eet je hier oesters en steak tartaar met een chique nonchalance.

106477833_3230819603637267_5055141329423735816_n
11
Adres
IJburglaan 1489,
1087 KM Amsterdam

Espressofabriek

De Espressofabriek heeft meerdere vestigingen in Amsterdam; bij de Westergas, IJburg en bij Zeeburgereiland. Bij de Espressofabriek kun je de lekkerste koffie, cappuchino, en natuurlijk espresso halen. De uitstraling is hip en industrieel en je kunt zowel binnen als buiten heerlijk zitten. Wat extra leuk is aan deze zaak is dat zij ook een eigen koffiebranderij hebben. In de winkels verkopen zij ook hun eigen producten zodat je ook thuis van een kopje verse koffie kan genieten.

467683_483607991655776_1494931399_o
12
Adres
Krijn Taconiskade 124,
1087 HV Amsterdam

NAP Amsterdam

NAP Amsterdam is prachtig gelegen aan de haven in IJburg. Ze hebben een heerlijk buitenterras aan het water en prachtig interieur. Op de menukaart staan allerlei verschillende gerechten; van tagliatelle tot hamburgers. Bij NAP Amsterdan kunt hier terecht voor lunch, diner en voor een frisse borrel. Ook hebben ze hebben leuke arrangementen voor het vieren van een verjaardag, jubilieum of promotie. NAP Amsterdam is een heerlijke plek om neer te strijken tijdens een fietstochtje langs het water of om samen met vrienden een drankje te drinken in de zon.

mchi_20130210
13
Adres
IJburglaan 1295,
1087 JJ Amsterdam

Restaurant Mchi

Bij restaurant Mchi draait het om proeven, eten en delen. In dit Aziatische restaurant werken ze volgens een shared-dining concept en kun je samen genieten van allerlei verse gerechtjes van hoge kwaliteit. Ze serveren hier heerlijke Aziatische gerechten - van dim sum tot sushi tot gefrituurde tofu. Het restaurant heeft een rustige ambiance en het personeel is zeer gastvrij en behulpzaam.

14
Adres
Agatha Christiesingel 28,
1102 WK Amsterdam

Annie's Place

Stap binnen bij Annies Place voor een smaakvolle ervaring met authentieke Surinaamse gerechten. Het dagelijks bereide menu omvat verse Surinaamse lekkernijen, met als absolute favoriet de ambachtelijk gebakken Annie's Vis. Ontdek een scala aan keuzes, va Nasi en Bami tot garnalen, bakkeljauw en een assortiment Surinaamse groenten zoals Antroewa, Bittawiri, Soproppo en Tayerblad. Bij Annies Place geniet je van de rijke smaken van Surinaamse culinaire tradities.

4409833c90ff3131539a50f0e860c079
Vuurtoreneiland_Winter_Annelore_W
15
Adres
Amsterdam

Vuurtoreneiland

Echt iets speciaals plannen? Dan ben je bij Vuurtoren eiland aan het juiste adres. Een uitstapje voor de echte foodie en wijnliefhebber. Stap op de boot bij het Lloyd hotel en laat je meevoeren naar een klein eiland over ‘t Ij. Een hidden gem waar zomers wordt ontvangen in de kas en s’winters dineert in het fort. Verwacht een compleet 5-gangen diner met regionale producten bereid op open vuur. Je kunt er nu ook blijven slapen! Onlangs zijn er 5 slaapkamers gecreëerd.

Boodschappen
40253730_2623759364316324_6606856450935357440_o
kaasplateautaart-1-1280×1920-1
16
Adres
Rijksstraatweg 21,
1396 JC Baambrugge

Lindenhoff

Op een autoritje van 20 minuten afstand van Amsterdam ligt de Lindenhoff, een boerderij in het pittoreske dorpje Baambrugge. 30 jaar geleden werd het bedrijf opgericht door Ben en inmiddels wordt de boerderij door zijn drie zonen gerund, met allen een passie voor eerlijke producten en een hart voor het agrarische vak. Vooral in het weekend is het een drukte van jewelste van mensen die langs om seizoensproducten te voelen, ruiken en proeven bij de Marché!

w985_957891_nl.jpg
w985_957903_nl.jpg
w985_957738_nl.jpg
17
Adres
Hoogstraat 17,
1391 BR Abcoude

Phil & Déjean

Gérard Déjean en Philbère Nijenhof reizen twee keer per week af naar de grootste versmarkt van Europa: Rungis, iets ten zuiden van Parijs. Hier kopen zij de mooiste versproducten, die even later rechtstreeks tot bij jou in de keuken kunnen worden afgeleverd. Daarnaast runnen ze sinds 2020 een Traiteur-Kaas & Delicatessen winkel in Abcoude met een heuse wijnzolder erboven.

18
Adres
Kerkplein 24,
1391 GK Abcoude

Slagerij Konijn

Wat de meeste mensen niet weten is dat veel slagerijen hun vlees en vleeswaren kant en klaar aangeleverd krijgen. Zo niet bij Slagerij Konijn, zij doen alles zelf, van slachten tot verwerken. Dus geen massale diertransporten, geen misstanden tijdens de verwerking, maar kleinschalige productie met oog voor het dier. Dit betekent niet alleen zeer goede kwaliteit vlees, maar ook producten die je nergens anders aantreft.

Kai-Hing-Li_OMOE-1
19
Adres
Harriët Freezerstraat 108A,
1103 JP Amsterdam

Toko Kai Hing

Bij Toko Kai Hing in winkelcentrum Ganzenhoef, ook wel toko Omoe genoemd,  vind je een unieke combinatie van Chinese en Surinaamse cultuur en producten. Naast Chinese draken en lampions aan het plafond, worden de lekkerste Surinaamse gerechten hier verkocht. Deze familietoko biedt onder andere nasi Hongkong style en gemberbier van Blesi, gemaakt door een familie uit Zuidoost. Kai Hing Li, 80 jaar oud en nog steeds dagelijks werkzaam in de toko, zorgt voor een authentieke sfeer en lekker eten.

Kaddour
20
Adres
Pampuslaan 22,
1087 LA Amsterdam

Slagerij Kaddour

Bij Kaddour hebben ze een breed scala aan ambachtelijk vers vlees en vleeswaren. Het assortiment biedt puur en eerlijk kwaliteitsvlees, zowel lokaal als wereldwijd, waaronder Hollands vlees, exclusief Halal Wagyu, verfijnd John Dee rundvlees uit Australië en smaakvol Maimoa lamsvlees uit Nieuw-Zeeland. Al ruim 35 jaar staat Slagerij Kaddour bekend om uitmuntende kwaliteit, met recepten die generaties lang worden doorgegeven. Ontdek de gezonde, diervriendelijke aanpak en geniet van handgeknoopte rollades, gourmet- en barbecuepakketten, ambachtelijke vleeswaren en het welbekende broodje kip grilworst.

21
Adres
Albert Camuslaan 114,
1102 WJ Amsterdam

Tanger Markt

Bij Tanger Mark bieden ze een unieke diversiteit met producten uit meer dan 100 landen. Of het nu gaat om ingrediënten voor een Hollandse stamppot of Marokkaanse harira soep, Tanger Markt heeft alles. Naast het brede scala aan land-specifieke producten, staat Tanger Markt bekend om de ongeëvenaarde versheid, variërend van sappig fruit tot mediterrane olijven en mals lamsvlees. Voor liefhebbers van vers is Tanger Markt dé bestemming.

22
Adres
Joris Ivensplein,
1087 BP Amsterdam

De REURING markt

De REURING markt strijkt elke zaterdag neer van 09:00 tot 16:00 en is een kleine maar fijne markt op IJburg. De gezellige sfeer van IJburg en de goede kwaliteit van producten staan hier voorop. Het ligt naast het Winkelcentrum van IJburg en bevindt zich naast een mooie speeltuin. Je vindt er diversen kramen met onder andere Alfons koffiebonen uit Italië, een jam speciaal zaak met bijzondere chutneys, buikspek van de BBQ in een foodtruck, een Mexicaanse specialist en nog veel meer. Ga erheen om het zelf mee te maken.

Kunst & cultuur
23
Adres
Broekzijdselaan 46,
1391 XL Abcoude

Theater Piet Mondriaan

Het theater Piet Mondriaan is vernoemd naar de wereldberoemde schilder die onder andere bekendheid verwierf met zijn fraaie schilderijen van Het Gein, een riviertje dat langs Abcoude stroomt. Het theater is gevestigd in het gebouw van de Stichting Ab-Art: een sociaal cultureel centrum. Deze begon in 2006 met het programmeren van enkele cabaretvoorstellingen. Het succes was van dien aard dat er inmiddels per seizoen vele opvoeringen plaatsvinden door bekende artiesten.

Interieur
286463721_1350282202151603_2114217501944506381_n
24
Adres
Bert Haanstrakade 100,
1087 DN Amsterdam

Joink

Sinds 2011 kopen en verkoopt Joink voornamelijk vintage designmeubels, met de nadruk op de ontwerpen van Charles en Ray Eames. Bijna alle items worden gevonden in de EU en de Verenigde Staten; gekocht van particulieren, nalatenschappen, veilingen en vintage dealers. Sinds 2016 biedt Joink een breder scala aan geweldige designklassiekers, van bekende tot onbekende tijdloze ontwerpen.

25
Adres
Pedro de Medinalaan 89-91,
1086 XP Amsterdam

Design020

Op de westelijke punt van het Steigereiland vind je Design020; een groot woonwarenhuis met allerlei designmeubels van aanbieders zoals woonwinkel Kasstoor & Wonen 2000 en andere showrooms. Het is de perfectie plek om lekker rond te dwalen en inspiratie op te doen voor interieur en design. De ruimte is prachtig, met veel daglicht, zwevende trappen en een industrieel karakter. In de showrooms kun je naast designermeubelen ook bouwmaterialen bekijken zoals deurklinken en gietvloeren. Daarnaast is Design020 ook een meetingpunt voor architecten en designers.

‘Modern werken bij And Agency. Een interieur ontwerpconcept wat draait om veelzijdigheid en aanpassingsvermogen. Een project van 88 Projects in samenwerking met Studio Sluijzer’

‘Modern werken bij And Agency. Een interieur ontwerpconcept wat draait om veelzijdigheid en aanpassingsvermogen. Een project van 88 Projects in samenwerking met Studio Sluijzer’

Kunstagenda februari 2025

Kunstagenda februari 2025

‘De Valckenier’

‘De Valckenier’

Onlangs bekeken
Bekijk het overzicht

Deze site maakt gebruik van cookies.

Voor welke cookies geef je akkoord?