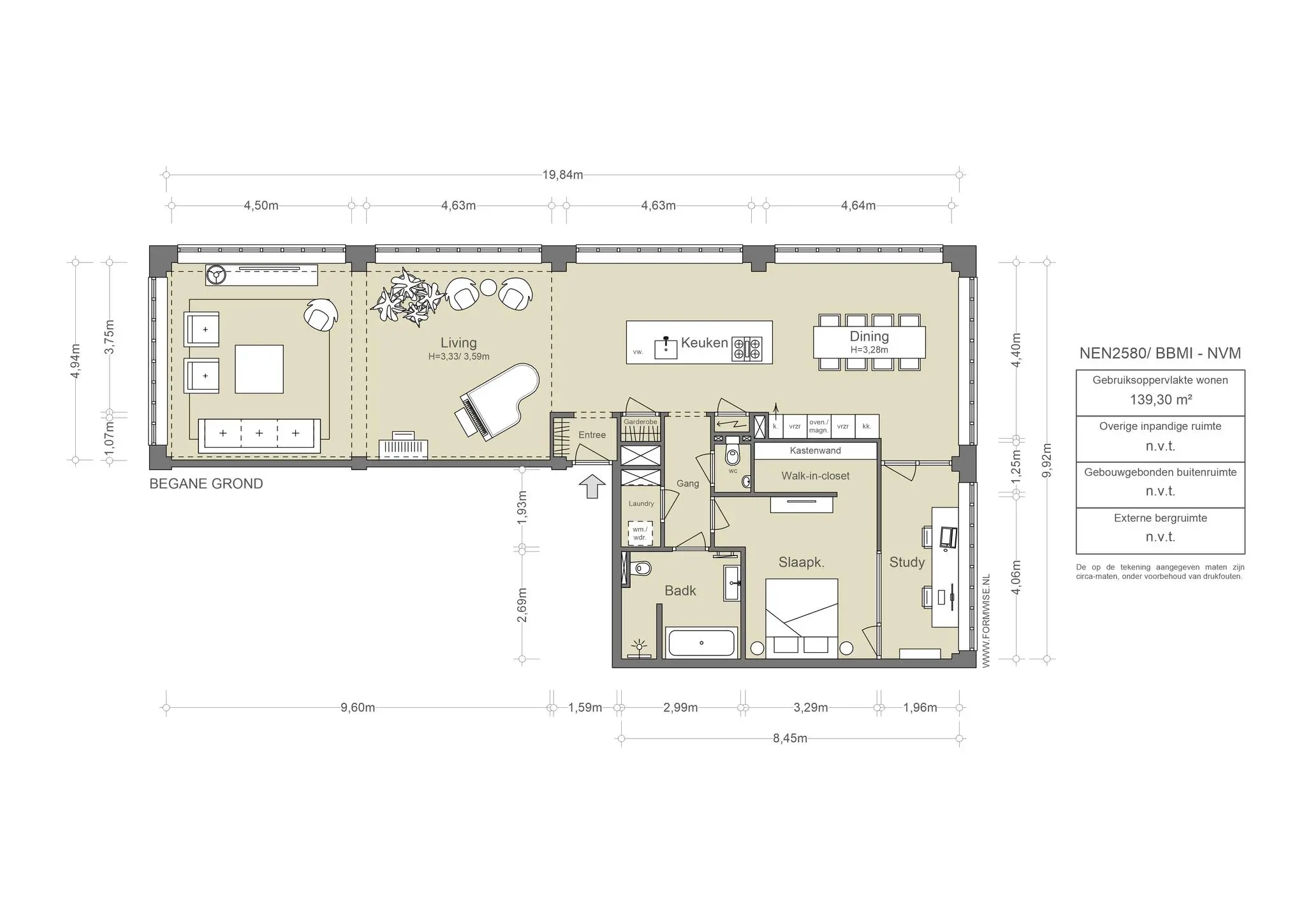
Riant appartement op de begane grond van circa 139 m², gelegen in de Cruquiusbuurt. Het appartement beschikt over een woonkamer, open keuken, slaapkamer, studeerkamer en badkamer. Het geheel is gelegen op eigen grond.

Rondleiding
De entree biedt toegang tot een garderobe. De woonkamer wordt gekenmerkt door grote, industrieel ogende raampartijen die een prachtig uitzicht bieden op de omgeving en de ruimte vullen met natuurlijk licht. Aansluitend bevindt zich de open keuken met eiland, uitgerust met hoogwaardige inbouwapparatuur.
De slaapkamer is voorzien van een inloopkast, zorgvuldig ontworpen voor een optimaal gebruik van de ruimte. Hiernaast bevindt zich een gastentoilet. De naastgelegen luxe badkamer is ingericht met een elegant ligbad, een royale inloopdouche, een verfijnde wastafel en een toilet. Alles is uitgevoerd in een minimalistische stijl die rust en functionaliteit benadrukt.
Vanuit zowel de slaapkamer als de keuken is er toegang tot de study, die dankzij de flexibele indeling ruimte biedt voor zowel werk als ontspanning.
In de ondergelegen garage zijn twee privéparkeerplaatsen beschikbaar, evenals een separate berging.

Wat de bewoners gaan missen
“Bij de aankoop waren we helemaal weg van het historische karakter van de voormalige SIGMA verffabriek, waarin ons appartement is gesitueerd. Veel authentieke elementen zijn bewaard gebleven, zoals de balkenstructuur en de hoge plafonds.”

Buurtgids
Cruquiuseiland is getransformeerd tot een levendig woon- en werkgebied, waar moderne architectuur naadloos wordt gecombineerd met gerestaureerde historische panden. Diverse creatieve bedrijven uit de mode-, interieur-, architectuur- en mediabranche hebben zich hier gevestigd.
Aan de Entrepothaven, gelegen tussen Cruquiuseiland en Borneo-eiland, bevinden zich diverse horecagelegenheden, waaronder The Harbour Club Amsterdam Oost en Cruquius Local. In het nabijgelegen Flevopark is Proeflokaal ’t Nieuwe Diep een verborgen parel, gelegen tussen het groen met een terras aan het water. Aan het einde van de straat is een vestiging van Albert Heijn gelegen.

Bijzonderheden
•    Gebruiksoppervlakte wonen circa 139 m²
•    Gelegen op eigen grond
•    Energielabel A+
•    Twee privéparkeerplaatsen
•    Separate berging
•    Ontworpen door Abels & Partners Architecten
•    Servicekosten VvE € 278,19 per maand (appartement)
•    Servicekosten VvE € 71,84 per maand (parkeerplaatsen)
•    Servicekosten VvE € 18,92 per maand (berging)

AM105915-1964622-Cruquiusweg-104A,-Amsterdam-212799827

De Verffabriek
Wonen op Cruquiuseiland: een historische plek met een levendige mix van wonen en werken. Ooit waren hier de havens en industrie van Amsterdam, nu een bruisende stadswijk met bijzondere architectuur. Door de oorsprong als haven is het gebied zeer waterrijk, en er is van alles te doen op en om het water.
Het appartement is gesitueerd in de voormalige SIGMA verffabriek, waar het industriële karakter is gecombineerd met modern wonen. Dankzij de vele raampartijen wordt het appartement rijkelijk gevuld met natuurlijk licht. De open indeling en hoge plafonds geven het de uitstraling van een loft.


Daniël de Bont | Makelaar Broersma Wonen
Glenn van der Zanden | Makelaar Broersma Wonen
AM105915-1964622-Cruquiusweg-104A,-Amsterdam-212799903
Designvisie

In de bocht naar het Cruquiusterrein zijn rond twee bestaande gebouwen vijf nieuwe wooncomplexen gerealiseerd. Het Sigma fabrieksgebouw, het grootste oude gebouw in de omgeving, is behouden om de geschiedenis zichtbaar te houden in de transformatie van deze industriële omgeving.
Monumentenzorg pleitte voor een dominante positie van het hoofdgebouw, wat betekende dat het als belangrijkste volume zichtbaar moest blijven bij binnenkomst van Cruquius. Daarnaast is de authentieke lakstokerij achter de fabriek behouden vanwege zijn betekenis voor de schaal en sfeer van het gebied. Hierdoor is een samenhangend geheel ontstaan waarin de zakelijke architectuur van de fabriek de omliggende gebouwen heeft beïnvloed.

AM105915-1964622-Cruquiusweg-104A,-Amsterdam-212799793
AM105915-1964622-Cruquiusweg-104A,-Amsterdam-212799933
AM105915-1964622-Cruquiusweg-104A,-Amsterdam-212799929
AM105915-1964622-Cruquiusweg-104A,-Amsterdam-212799927
Wonen en koken

De royale woonkamer bevindt zich aan de voorzijde van het appartement en wordt gekenmerkt door grote, industrieel ogende raampartijen die een overvloed aan natuurlijk licht bieden. Door de hoekligging en glaspartijen ontstaat een ruimtelijk gevoel. De authentieke details van het voormalige pakhuis zorgen voor een unieke sfeer.
De keuken vormt het hart van de woning en is ontworpen met oog voor stijl en functionaliteit. Het keukeneiland, uitgevoerd in een donker kleurpalet met lichte houten accenten, biedt ruimte om te koken en samen te komen. De Bulthaup keuken is uitgerust met hoogwaardige inbouwapparatuur van Gaggenau en moderne voorzieningen, zoals een Quooker en een Bora inductiekookplaat met geïntegreerde afzuiging.

AM105915-1964622-Cruquiusweg-104A,-Amsterdam-212799931
AM105915-1964622-Cruquiusweg-104A,-Amsterdam-212799935
AM105915-1964622-Cruquiusweg-104A,-Amsterdam-212240491
AM105915-1964622-Cruquiusweg-104A,-Amsterdam-212240479
AM105915-1964622-Cruquiusweg-104A,-Amsterdam-212240523
AM105915-1964622-Cruquiusweg-104A,-Amsterdam-212240521
AM105915-1964622-Cruquiusweg-104A,-Amsterdam-212240519
Slapen en baden

De slaapkamer is een oase van rust, met een ensuite inloopkast en directe toegang tot de studeerkamer. Deze studeerkamer is ideaal voor thuiswerken of als leesruimte. Bij mooi weer kunnen hier de ramen volledig open worden gezet. De badkamer is een echte blikvanger, uitgevoerd in moderne grijstinten met een strak design. Een vrijstaand zwart bad en een ruime inloopdouche bieden een luxe spa-ervaring. Het ronde spiegelontwerp en de minimalistische wastafel versterken de eigentijdse uitstraling, terwijl geïntegreerde verlichting een warme ambiance creëert.

AM105915-1964622-Cruquiusweg-104A,-Amsterdam-212240511
AM105915-1964622-Cruquiusweg-104A,-Amsterdam-212240501
AM105915-1964622-Cruquiusweg-104A,-Amsterdam-212240503
AM105915-1964622-Cruquiusweg-104A,-Amsterdam-212240499
AM105915-1964622-Cruquiusweg-104A,-Amsterdam-212799921
AM105915-1964622-Cruquiusweg-104A,-Amsterdam-212799915
AM105915-1964622-Cruquiusweg-104A,-Amsterdam-212799925
Buurtgids

Cruquiuseiland is getransformeerd tot een levendig woon- en werkgebied waarin moderne architectuur wordt afgewisseld met gerestaureerde historische panden. Diverse creatieve bedrijven uit de mode-, interieur-, architectuur- en mediabranche hebben zich hier gevestigd. Aan de Entrepothaven, gelegen tussen Cruquiuseiland en Borneo-eiland, zijn horecagelegenheden zoals The Harbour Club Amsterdam Oost en Cruquius Local te vinden. In het nabijgelegen Flevopark is Proeflokaal ’t Nieuwe Diep een verborgen hotspot, met een terras aan het Nieuwe Diep en omringd door groen. Aan het einde van de straat is een vestiging van Albert Heijn gelegen.

Bereikbaarheid
Het appartement is uitstekend bereikbaar met de fiets, auto en het openbaar vervoer. De Ring A10 is binnen vijf autominuten te bereiken via afslag S108 (Oud-Zuid). Tramlijn 3 verbindt het gebied met de Frederik Hendrikbuurt via De Pijp en Amsterdam Zuid, terwijl buslijnen 22, 37 en 65 naar Station Noord, Sloterdijk, Muiderpoort en Amstel rijden. Met de fiets is Station Muiderpoort binnen tien minuten te bereiken. In de toekomst zal er in de buurt een brug naar het Flevopark worden gebouwd.

Parkeergelegenheid
Het appartement beschikt over twee privéparkeerplaatsen in de ondergelegen garage. Voor dit adres is het niet mogelijk een parkeervergunning aan te vragen. Daarnaast beschikt het appartement over een separate berging.

AM105915-1964622-Cruquiusweg-104A,-Amsterdam-212799907
AM105915-1964622-Cruquiusweg-104A,-Amsterdam-212240495
AM105915-1964622-Cruquiusweg-104A,-Amsterdam-212240459
Kenmerken
Cruquiusweg 104A, Amsterdam
Vraagprijs
  • € 1.180.000 k.k.
Beschikbaarheid
  • In overleg
Vertrekken
  • 3 kamers
  • 1 slaapkamer
  • 1 badkamer
Onderhoud
  • Intern: Goed tot uitstekend
  • Extern: Goed tot uitstekend
Oppervlakten & Inhoud
  • Woonoppervlakte: 139 m²
  • Externe bergruimte: 34 m²
Bouwjaar
  • 2021
Installaties
  • Balansventilatie
  • Lift
  • Mechanische ventilatie
  • Schuifpui
Ligging
  • Aan park
  • Aan rustige weg
  • In woonwijk
Parkeren
  • Op eigen terrein
  • Inpandig
  • Parkeerkelder
  • Parkeerplaats
Type verwarming
  • Aardwarmte
  • Vloerverwarming geheel
  • Warmtepomp
Type warmwater
  • Aardwarmte
Bestemming
  • Woonruimte
Eigendomssoort
  • Volle eigendom
Buitenruimte
  • Geen tuin
Kadastraal
  • Gemeente: Amsterdam
  • Sectie: A
  • Nummer: 8445
Duurzaamheid
  • Volledig geisoleerd
  • Energielabel A
Soort
  • Appartement
  • Benedenwoning
Bijzonderheden
  • Toegankelijk voor ouderen
Overige kenmerken

OZB ('24) € 467,08 per jaar
Rioolrecht ('25) € 185,20 per jaar
Servicekosten VvE € 278,19 per maand (appartement)
Servicekosten VvE € 71,84 per maand (parkeerplaatsen)
Servicekosten VvE € 18,92 per maand (berging)

Plattegrond
Cruquiusweg 104A, Amsterdam
AM105915-1964622-Cruquiusweg-104A,-Amsterdam-213686695
AM105915-1964622-Cruquiusweg-104A,-Amsterdam-213686707
Documenten
Cruquiusweg 104A, Amsterdam
Locatie
Cruquiusweg 104A, Amsterdam
Eten & drinken
01
Adres
Cruquiusweg 83D,
1019 AT Amsterdam

Krux brouwwerf

Vroeger was Cruquiuseiland één grote werf. Nu is er alleen nog een brouwwerf over. Eentje waar bier wordt gebrouwen en waar je ook kan komen drinken. Volgens zeggen de kleinste brouwerij van Amsterdam. Dit heeft twee voordelen; door de kleine batches kunnen ze makkelijk experimenteren met de recepten én is het bier altijd super vers!

joki
02
Adres
Cruquiusweg 89F,
1019 AG Amsterdam

Jōki

De naam ‘JōKi’ (wat Stoom betekent in het Japans) verwijst naar het ‘Gemaal de Cruquius’, de grootste stoommachine ter wereld.
De koffie wordt hier gemaakt met de bonen van Stooker, dat zit dus wel goed.

272793218_3188322951397443_5440626548767686297_n
03
Adres
Flevopark 13a,
1095 KE Amsterdam

Distilleerderij ’t nieuwe diep

Distilleerderij ’t nieuwe diep bevindt zich op een mooie rustige plek in het Flevopark. Bij mooi weer kan je hier heerlijk op het terras bij de vijver zitten en hoor je de geluiden van eenden en andere dieren om je heen. Ze maken een 100-tal producten waaronder verschillende jenevers, likeuren en bitters, zoveel mogelijk gemaakt van biologische grondstoffen. Neem bijvoorbeeld’ ‘het groene juffertje in de plas’ of een citroenjenever. Naast sterke dranken serveren ze ook andere dranken en verschillende borrelhapjes.

 

Baggerbeest
04
Adres
Rudi van Dantzigstraat 1,
1095 PK Amsterdam

Bar Baggerbeest

Een plek om wat te drinken, een hapje te eten, nieuwe mensen te ontmoeten en te verbinden. Stil je honger met overheerlijke steenoven pizza's. Lust je dorst met een van de  (biologische) wijnen, eerlijke koffie of (Amsterdams) bier. Bar Baggerbeest is onderdeel van Broedplaats Baggerbeest hét culturele ankerpunt van de stadswijk-in-wording: de Sluisbuurt. Club: Op vrijdag, zaterdag en zondag na 21.00 uur is er ruimte voor een culturele programmering.

Schermafbeelding 2022-07-01 om 12.46.22
05
Adres
Javaplein 23,
1095 CJ Amsterdam

Restaurant Wilde Zwijnen

Bij restaurant Wilde Zwijnen wordt gekookt volgens de moderne Nederlandse keuken. Zelf zeggen ze daar over; 'Een Modern Nederlandse keuken betekent voor ons: ingrediënten van Nederlandse bodem, hoe meer de ingrediënten uit de buurt, hoe beter. We koken seizoensgebonden, ook vegetarisch en gebruiken zoveel als mogelijk duurzame producten.' Wilde Zwijnen serveert een vast menu bestaande uit drie, vier of vijf gangen. Op maandag en dinsdag kan er a la carte gegeten worden.

image
06
Adres
Javaplein 25,
1095 HR Amsterdam

Bar bachrach

Bar Bachrach is zowel een bar als een restaurant. Je vindt hier modern midden-Oosters eten, denk bijvoorbeeld aan halloumi met biet of een Jeruzalem bagel. Chefkok Yaniv stelt met zorg de gerechten samen met verschillende verse seizoensgebonden producten. Je kunt hier genieten van een goed glas wijn en kleine gerechtjes of lekker lang tafelen met een diner volgens het vooraf samengestelde chef's menu. Binnen hangt een heerlijke warme sfeer door houten interieur en de mix van vintage kunt en moderne elementen.

downloadgram.org_541042297_18371694193180191_2446309907341887321_n
downloadgram.org_539947091_18371694262180191_8511630982273558689_n
downloadgram.org_539941790_18371694214180191_4169846064157363061_n
07
Adres
C. van Eesterenlaan 35,
1019 JK Amsterdam

Esra

Esra is het Amsterdamse restaurant van Selin Kiazim, een London-born chef met Turks-Cypriotische roots en bekend van haar gerenommeerde restaurant Oklava in Londen. Samen met partner en mede-oprichter Steph de Goeijen serveert ze hier een menu dat seizoensproducten en Mediterrane smaken viert, met een duidelijke nadruk op haar culturele achtergrond en frisse, creatieve interpretaties. De gerechten zijn rijk aan smaak en variëren wekelijks, waarbij klassieke Turkse elementen worden gecombineerd met lokale Nederlandse producten. Naast het eten is de zorgvuldig samengestelde wijnkaart van Steph een belangrijk onderdeel van de ervaring, met mediterrane en Turkse wijnen die goed aansluiten bij de keuken

08
Adres
Javastraat 149,
1094 HE Amsterdam

De Jonge Admiraal

Aan het einde van de Javastraat, tegen het Javaplein aan vind je De Jonge Admiraal. Ze serveren hier heerlijke koffies, goede broodjes en heerlijke taart van Majesteit Taart, een taartenwinkel verderop in de Javastraat. De Jonge Admiraal is gezellig en Laptopfree, iedereen die er zit is gezellig aan het kletsen of spelletjes aan het spelen en dat zorgt voor een goede sfeer. ’s Avonds kan je er ook lekkere biertjes uit de buurt drinken en er zijn vaak leuke evenementen als pubquizzes, Ajax-wedstrijden of live optredens.

1592227987583
09
Adres
Timorplein 62,
1094 CC Amsterdam

Studio/K

Studio/K is een bioscoop, restaurant en cultureel podium aan het Timorplein in Amsterdam Oost. Dagelijks draaien hier de mooiste speelfilms van nationale en internationale herkomst. Ook organiseert Studio/K muziekavonden en dansfeesten. In het café/restaurant van Studio/K kun je genieten van een lekkere koffie of een van de heerlijke gerechten op het menu. Extra leuk aan Studio/K is dat je hier ook film en diner kan combineren met een speciaal arrangement. Je kan zelfs het gerecht meenemen in de bioscoopzaal. Studio/K is opgericht door Stichting Kriterion, die ook bioscoop Kriterion en restaurant Skek heeft opgericht. Net als bij de andere initiatieven van Stichting Kriterion wordt Studio/K volledig gerund door studenten.

image-e1568147216648-2048×1310
10
Adres
Levantplein 84,
1019 MB Amsterdam

Paon Bali

Paon Bali Amsterdam ( voorheen Catering Enak Sekali ) is gespecialiseerd in de authentieke Balinese keuken.Bali heeft een eigen, uitgebreide keuken. In vergelijking met andere keukens uit Indonesië is het pittiger en minder zoet. Daarnaast wordt varkensvlees ook vaker gebruikt. Volgens een bekende chef en auteur van boeken over Indonesisch eten vind je hier de beste sate (geroosterd op houtskool) van de stad!

190030-restaurant-foer-najaar-2499-1000×1000
190030-restaurant-foer-najaar-2732-1000×1000
11
Adres
Cruquiusweg 9,
1019 AT Amsterdam

Foer

Bij Foer bepalen de seizoenen het menu, waardoor het aanbod constant in beweging is. Het eten is bijzonder en experimenteel. De chef Steven Broere kookt een mix tussen modern Nederlands eten, met een Noorse toevoeging. Je eet hier vijf of zeven gangen, met de keuze tussen vlees of vegetarisch. De zaak zit in een mooi gebouw en de serre geeft een bijzondere sfeer. Ook de bar (chef’s table) is een enorme aanrader, met een kijkje in de keuken. Stijlvol ingericht met een lichte sfeer.

355558636_658901965671105_4945119479846555783_n
350225589_588874753064011_2654054422649678475_n
12
Adres
Sumatrastraat 47,
1094 LN Amsterdam

Eatmosfera

Eatmosfera is de tweede vestiging die de Florentijnse zwagers Samuele en Max hebben geopend. Dit restaurant richt zich voornamelijk op zuurdesempizza. Hier wordt de ontspannen gezelligheid van een buurt-pizzeria gecombineerd met een geheel eigen culinaire stijl. Naast pizza's kun je bijvoorbeeld ook genieten van een borrelplank, evenals klassieke desserts zoals huisgemaakte tiramisu of panna cotta. Het is ook mogelijk om het eten af te halen.

22554880_1639178239480359_1970663980227168184_n
13
Adres
Javastraat 47,
1094 HA Amsterdam

Eethuis Ricardo's

Sinds 1978 heeft Ricardo de Amsterdamse keukens verrijkt met zijn passie voor Surinaams-Creoolse gerechten. Dagelijks serveert Ricardo's vaste lekkernijen, waaronder de bami en nasi met geroosterde kip.  Het menu verrast met dagelijkse variaties zoals moksi alesi met bitawiri of zalm, cassave- en okersoep en andere smaakvolle creaties. Wees op tijd, want Ricardo's is snel vol en op is op!

Boodschappen
millie
327448751_105529872451533_2683322311542512579_n
14
Adres
Bottelarijstraat 1,
1019 VC Amsterdam

Millie Vanillie

Bij Millie Vanillie wordt van s’morgens vroeg tot ‘s avonds laat gebakken. Het assortiment bestaat onder andere uit verse zuurdesembroden en patisserie zoals kardemom buns en custard buns.
Daarnaast wordt er bij Millie Vanillie ook heerlijke koffie geserveerd. De bonen komen ook van  Sprout.

1465889_221896457986867_1027729947_o
15
Adres
C. van Eesterenlaan,
Amsterdam

Thull's deli

Thulls deli is een echte goede traiteur. Ze maken heerlijke dagvers-maaltijden met mediterrane invloeden om mee te nemen. Je kan er naast maaltijden ook heerlijke royaal belegde broodjes afhalen die vers gemaakt worden door de vriendelijke verkopers. Alles is vers en huisgemaakt. De deli heeft een uitgebreide en met zorg uitgekozen selectie Europese wijn en cider, zuurdesembrood van Restaurant As, chocolade, charcuterie, kazen, olijfolie, azijnen, blikvis en meer.  Thulls is echter echt bekend geworden doordat ze zelf pickles en gefermenteerde groente zoals zuurkool en kimchi maken. Daarnaast zijn ze brouwer van waterkefir en kombucha!

22490121_179839189242836_3341019391178952167_n
16
Adres
C. van Eesterenlaan,
Amsterdam

Biomarkt Zeeburg

Al meer dan 10 jaar is er iedere woensdag biologische markt op de Van Eesterenlaan in Zeeburg. Groente, fruit, noten, kaas, olijven, raw food, brood, paddenstoelen, vegetarische roti, pizza, Libanese mezze, vis en gegrilde kippetjes. Het zit aan de Oostelijke Eilanden dus je hebt ook nog mooi uitzicht. Tip: sommigen zeggen dat ze de lekkerste kibbeling van Amsterdam hier verkopen…

17
Adres
Javastraat 89-BG,
1094 HB Amsterdam

El Pescado

De Marokkaanse viswinkel El Pescado is opgezet in 2006 en is sindsdien uitgegroeid tot een echt begrip in Amsterdam. De producten worden door de eigenaren rechtstreeks van de vismarkt Rungis in Frankrijk geïmporteerd en worden in de winkel prachtig geëtaleerd in mooie vitrines. Als je zelf niet de verse vis wilt fileren, doen ze dit ook graag voor je in de winkel. Naast verse rauwe vis hebben ze ook heerlijke delicatessen zoals vispasta, vispaella en viskroketjes.

Schermafbeelding 2022-06-20 om 17.22.19
18
Adres
Javastraat 65,
1094 HA Amsterdam

Gallizia Deli

Een ware Italiaanse delicatessenwinkel in de leuke Javastraat. Naast de winkel is er ook de bar waar je heerlijk kan eten. In de Deli kan je terecht voor overheerlijke Italiaanse kaasjes, vlees en natuurlijk ook wijn. Ze maken er ook vers belegde broodjes met uitsluitend verse, mooie producten uit Italië.

42173510_1878227918927057_4734855664612933632_n
19
Adres
Javastraat 66,
1094 HK Amsterdam

Bakkerij Afrah Fes

Bakkerij Alfrah Fes is gevestigd in het centrum van Amsterdam aan Plein 40-45. Bij deze Marokkaanse bakkerij kun je elke dag prachtige verse producten halen; zoals brood, banket , vlees uit de oven en salades. Naast Oosters banket zoals baklava en Marokkaanse koekjes, maken ze hier ook taarten op bestellingen voor bijvoorbeeld verjaardagen en huwelijksfeesten. Kwaliteit en ambacht zijn hun uitgangspunten en dat is te zien. Zin in iets lekkers? Trakteer dan jezelf op een doosje prachtige gebakjes van Alfrah Fes.

Interieur
119183029_748370379060570_3524924206402000634_n
20
Adres
Ertskade 272,
1019 BB Amsterdam

Frankly Amsterdam

Het jonge Nederlandse bedrijf Frankly Amsterdam – met oprichter Femke Derks aan het roer – ontwerpt, produceert en verkoopt kleden, bedlinnen, plaids en sjaals. Producten in zachte naturel tinten die warme, comfort en rust toevoegen aan ieder interieur. Bij Frankly Amsterdam doen ze dingen anders, hun producten hebben een eerlijke oorsprong waarbij werknemers in een goede omgeving met zuivere, onschadelijke materialen werken en een eerlijk loon ontvangen.

119235730_640071679979829_2528260860777625963_n
21
Adres
Javaplein 31HS,
1095 CJ Amsterdam

Found in Sweden

Found in Sweden, gelegen op het Javaplein in Amsterdam Oost, is een vintage winkel die trouw is aan zijn naam. Alles in de winkel is zorgvuldig geselecteerd uit Zweden, variërend van mid-century dressoirs tot lampen en tafelkleden. De collectie verandert voortdurend, met wekelijks nieuwe vondsten uit Zweden of liefdevol gerestaureerde stukken. Hoewel sommige items designklassiekers zijn, biedt de winkel ook betaalbare vintage schatten. De eigenaar, een gepassioneerde vintage-jager, deelt haar liefde voor unieke stukken. Found in Sweden is een plek waar de wereld van vintage tot leven komt, met verrassingen op elk bezoek.

22
Adres
Javastraat 105,
1094 HC Amsterdam

Buurtkringloop

De Buurtkringloop is een kringloopwinkel en ontmoetingsplek voor bewoners van de Indische buurt. Geopend dankzij crowdfunding en het winnen van de publieksprijs ter waarde van 2.500 euro bij ‘Boost je Buurt’. Je kunt hier zoeken naar bijzondere spulletjes, maar ook flexwerken of vergaderen. Verder is er een koffiehoek en komen er gratis workshops.

Schermafbeelding 2022-06-20 om 17.00.11
23
Adres
Zeeburgerpad 26 BG,
1019 AA Amsterdam

Fortune Flea

Elke zaterdag en zondag is de Vintage interieurwinkel van Zoë open op het Zeeburgerpad in Amsterdam Oost, gepositioneerd in een gave oude loods aan het water. De creatieve eigenaresse van Fortune Flea is alleen in de weekenden open om een eenvoudige reden: de rest van de tijd is ze op treasure hunt in Frankrijk of België. Naast de winkel maakt Fortune Flea goed gebruik van Instagram als platform om te inspireren en verkopen. Mocht je op de Instagram pagina langs een item kopen dat je absoluut wilt hebben, dan kan je simpelweg reageren door middel van een privé berichtje. Dit betekent dat de verkoop dus altijd doorgaat!

Kunst & cultuur
128208323_1821516841330440_426264450150309702_n
24
Adres
Cruquiusweg 11,
1019 AT Amsterdam

Museum Perron Oost

Met een oppervlakte van 6 m2 is Museum Perron Oost in het Oostelijk Havengebied misschien wel het kleinste museum ter wereld. In 1993 toverde kunstenaar en ontwerper Joep van Lieshout het voormalige perron van de veemarkt om tot een mini-parkje, met een goederenwagon zonder lading. Het toont de afgelopen 150 jaar geschiedenis van dit stukje stad: er zijn verhalen van veehandelaren, circusstoeten, lijndiensten naar Indonesië, Suriname en de Verenigde Staten, Joodse vluchtelingen, jonge delinquenten, krakers en stadsnomaden. Sinds 2013 vertelt Museum Perron Oost de verhalen van oude en nieuwe buurtbewoners, in de vorm van theater, film, dans, muziek, beeldende kunst, of combinaties daarvan. Ook zijn in het museum op het perron exposities te zien over steeds een andere periode uit de geschiedenis van het Oostelijk Havengebied.

134564196_191610846004438_8248033808513572819_n_17873218790136161-1080×1350
FLYER-1-WONDERWALL-1080×1350
7B2899AA-3A88-46E7-BBB7-EAF1321D77E6-2-1080×1350
25
Adres
Levantkade 85,
1019 MJ Amsterdam

Bisou Gallery

Bisou Gallery is ontstaan uit Rademaker zijn liefde voorkunst en interieur. Hij begon in 2016 met een ‘Instagram only gallery’, maar sinds 2020 is er een fysieke plek op het KNSM Eiland in Amsterdam Oost. Rademaker volgt voor de kunst die hij tentoonstelt niet de grote namen maar alleen zijn eigen hart en smaak. De huiselijke sfeer is het een fijne plek om laagdrempelig kennis te maken met de uitgesproken werken.

Ontmoet de ondernemer, in deze serie Jochem Leegstra van creative agency …,staat

Ontmoet de ondernemer, in deze serie Jochem Leegstra van creative agency …,staat

Het Verhaal van Michelin: Van Banden naar Gastronomie

Het Verhaal van Michelin: Van Banden naar Gastronomie

Uitgelicht; Garage Du Vin

Uitgelicht; Garage Du Vin

Onlangs bekeken
Bekijk het overzicht

Deze site maakt gebruik van cookies.

Voor welke cookies geef je akkoord?