Boutique wonen op Duivelseiland. High-end hoekappartement op het zuidwesten met zeven grote ramen op de zon. De woning maakt deel uit van een kleinschalig high-end renovatieproject op de hoek van de Pieter Baststraat en de Cornelis Anthoniszstraat.

Cornelis Anthoniszstraat 39 3
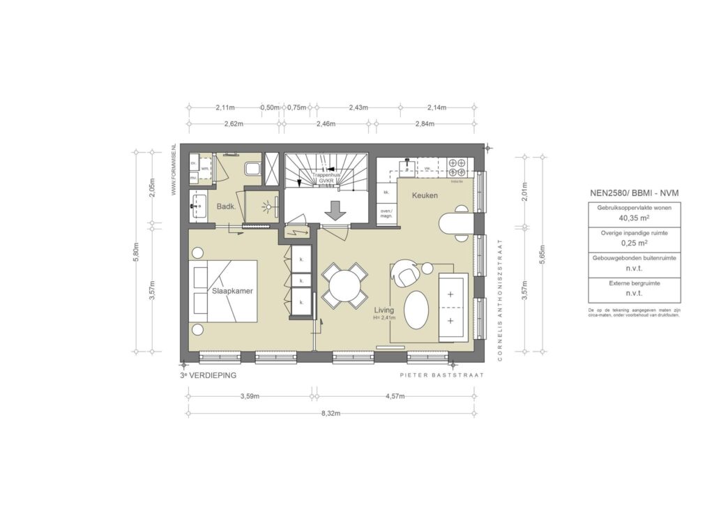
De woning van circa 40 m2 bevindt zich op de hoek, wat betekent dat er aan twee zijdes grote ramen zijn die zorgen voor een overvloed aan daglicht. In de hoek van de woonkamer is een gezellige zithoek gecreëerd. Aangrenzend aan de woonkamer bevindt zich de eethoek. De keuken is voorzien van een handig barretje en uitgerust met luxe inbouwapparatuur van Siemens, waaronder een combimagnetron en een Quooker. Je vindt er alles wat je nodig hebt, van bestek en servies tot potten, pannen en zelfs een Nespresso-apparaat.

De slaapkamer heeft op maat gemaakte kasten die voldoende opbergruimte bieden voor al je kleding en persoonlijke bezittingen. Via de slaapkamer betreed je de en suite badkamer, die een inloopdouche, een luxe wastafel en een toilet heeft. De badkamer is prachtig afgewerkt met hoogwaardige materialen en tegels.

In de hele woning ligt een pvc-vloer, wat zorgt voor een moderne uitstraling en makkelijk te onderhouden is.

Cornerstone Suites zijn luxe appartementen op Duivelseiland, een kleine wijk in de Pijp in Amsterdam Oud-Zuid, gevestigd op de hoek van de Pieter Baststraat en de Cornelis Anthoniszstraat. Lees alles over Cornerstone Suites op www.cornerstonesuites.nl. Meld je daar aan voor onze nieuwsbrief en ontvang alle updates over het project.

Omgeving  & hotspots
Duivelseiland en de Pijp hebben in het een kosmopolitische uitstraling met een mix van culturen, wat bijdraagt aan de diversiteit en levendigheid van de buurt. Het is een geliefde plek voor bewoners als bezoekers. Tips van een buurtbewoner: We starten de dag met brunch bij Little Collins, een trendy restaurant met Australische invloeden. Daarna snuffelen we rond op de Albert Cuyp waar we een haring eten en wandelen door het Sarphatipark. In de oude bioscoop, waar nu CT Coffee & Coconuts is gevestigd, stoppen we voor een koffiepauze. Dan wandelen we richting het Museumplein, voor wat culturele inspiratie. We sluiten de dag af dichtbij huis, voor de lekkerste biefstuk van de stad bij  Loetje, aan het einde van onze straat.

Bijzonderheden
- Luxe verbouwd, turn-key
- ready-to-move-in:stijlvol interieur met accessoires
- 1 slaapkamer
- Gelegen op eigen grond
- Professionele VvE
- Nieuwe Fundering

Kenmerken
Cornelis Anthoniszstraat 39-3, Amsterdam
Vraagprijs
  • € 540.000 k.k.
Beschikbaarheid
  • In overleg
Vertrekken
  • 2 kamers
  • 1 slaapkamer
Onderhoud
  • Intern: Uitstekend
  • Extern: Uitstekend
Oppervlakten & Inhoud
  • Woonoppervlakte: 40 m²
Bouwjaar
  • 1900
Installaties
  • Frans balkon
  • Mechanische ventilatie
  • Natuurlijke ventilatie
  • TV kabel
Parkeren
  • Betaald parkeren
  • Parkeervergunningen
Type verwarming
  • Vloerverwarming geheel
Type warmwater
  • CV Ketel
Bestemming
  • Woonruimte
Eigendomssoort
  • Volle eigendom
Buitenruimte
  • Geen tuin
Kadastraal
  • Gemeente: Amsterdam
  • Sectie: U
  • Nummer: 11306
Duurzaamheid
  • Dubbel glas
  • Volledig geisoleerd
  • Energielabel A
Soort
  • Appartement
  • Bovenwoning
Welke woonlaag
  • 4e
Plattegrond
Cornelis Anthoniszstraat 39-3, Amsterdam
AM106300-1997672-Cornelis-Anthoniszstraat-39-3,-Amsterdam-224831174
Documenten
Cornelis Anthoniszstraat 39-3, Amsterdam
Locatie
Cornelis Anthoniszstraat 39-3, Amsterdam
Eten & drinken
image04-1
01
Adres
Ruysdaelstraat 25,
1071 WZ Amsterdam

Breadwinner Too

Breadwinner Bagels werd opgericht door Jon Fairclough, die zijn liefde voor ambachtelijk bakken vertaalde naar handgerolde zuurdesem-bagels met een eigen signatuur. Wat begon in de Jordaan groeide uit tot een geliefd concept met meerdere locaties, waaronder deze vestiging in De Pijp. In de keuken draait het om natuurlijke ingrediënten en dagelijks versgebakken bagels, gecombineerd met creatieve en klassieke toppings.

Schermafbeelding 2022-06-20 om 13.47.57
Schermafbeelding 2022-06-20 om 13.49.19
02
Adres
Johannes Vermeerstraat 52,
1071 DT Amsterdam

Café Loetje

In 1977 werd café Loetje opgericht als biljartcafé door Ludwig 'Loetje' Klinkhamer, maar het duurde niet lang voor men het biljart inruilde voor de ossenhaasbiefstuk die werd geserveerd. Meer dan veertig jaar later is Loetje een gigantische keten en is het oorspronkelijke 'Café' een begrip in Amsterdam. De smakelijke biefstuk wordt geserveerd met huisgemaakte frietjes en zwemt in verse jus - om je vingers bij af te likken!

Cafe-Wildschut-Amsterdam-Zuid-terras-1-uai-1250×1000
Cafe-Wildschut-Amsterdam-ontbijt-lunch-brunch-diner-borrel-2-uai-1250×1000
03
Adres
Roelof Hartplein 1,
1071 TR Amsterdam

Café wildschut

Café wildschut zit aan het Roelof Hartplein en is een ideale uitvalbasis om een drankje te doen. Vooral 's zomers ben je hier aan het goede adres, het terras heeft namelijk van 's ochtends vroeg tot 's avonds zon. Omdat het café aan een plein zit is er altijd reuring. Het café is gevestigd in een monumentaal pand van de Amsterdamse school en heeft kosmopolitisch interieur met jaren '20 elementen. Er komt een gemêleerd publiek en is inmiddels al decennia een begrip onder Amsterdammers. Je kan hier ook terecht voor ontbijt, lunch en diner.

foto-oesters
04
Adres
Van Baerlestraat 158,
1071 BG Amsterdam

Brasserie van Baerle

De Franse brasserie van Baerle is niet meer weg te denken uit het Amsterdamse stadsbeeld. Met een levensloop van al 41 jaar in Amsterdam-Zuid, is het een vertrouwde plek. De compacte lunch- en dinerkaart bestaat uit klassieke gerechten uit de overwegend Franse brasserie keuken én vernieuwende eigentijdse gerechten.  In het seizoen zijn er altijd oesters, asperges en kreeft. Naast à la carte is er zowel voor lunch als diner een wisselend 3-gangen keuzemenu dat sinds 2010 jaarlijks door Michelin met een ‘BIB Gourmand’  onderscheiden wordt. Grootspraak, de restaurantgids voor wijnliefhebbers, rangschikt Brasserie van Baerle al jaren tot de beste ‘wijnrestaurants’ van Amsterdam.

Bisous-001-24-05-by-RVDA-DSC_0270
05
Adres
Albert Cuypstraat 31,
1072 LZ Amsterdam

Bisous

Een 'over de top interieur' van Jean-Philippe Demeyer (Architectural Digest AD100 architect) gecombineerd met een uitstekende keuken waarvan ze zelf zeggen 'A sumptuous French – Zeeland cuisine'.  Een goed voorbeeld hiervan zijn de Zeelandse kokkels in een room witte wijnsaus afgemaakt met Pasris en peterselie. Bisou!

53700300_311590863045393_1981039547722498048_n
Schermafbeelding 2022-06-20 om 13.29.38
06
Adres
Albert Cuypstraat 20H,
1072 CT Amsterdam

Sababa

De eigenaar van Sababa wilde goede, perfecte falafel. Ze zijn verschillende combinaties gaan uitproberen, producten gaan proeven en zo ontstond hun perfecte falafel broodje. Geïnspireerd op de Israëlische keuken, heerlijk voor een snelle hap of om uitgebreid te eten met een biertje erbij.

IMG_6482-HDR-2048×2048
Sora_02s
07
Adres
Ceintuurbaan 49,
1072 ET Amsterdam

Sora Sapporo

Sora Sapporo Ramen serveert authentieke Japanse ramen en andere Aziatische gerechten. Het restaurant heeft twee vestigingen in Amsterdam, waarvan één is geleden aan de Ceintuurbaan in de Pijp. Het restaurant staat bekend om zijn smaakvolle noedels. Deze noedels worden geïmporteerd uit Japan, waar ze gespecialiseerd zijn in het bereiden van dit product. Ook de bouillon, die deel uit maakt van de miso soep en de tonkotsu shoyu ramen is het proberen waard. Voor degenen die liever thuis van een heerlijke kom noedels genieten: Sora Sapporo Ramen bezorgt ook aan huis.

Sjefietshe-Amsterdam-Restaurant-01
Sjefietshe-Amsterdam-Restaurant-06-750×1000
08
Adres
Van Ostadestraat 1,
1072 SL Amsterdam

Sjefietshé

Sjefietshe is een cevicheria in het midden van de Pijp, met een mooi terras met genoeg plek. Voor eenieder die niet bekend is met het heerlijke Zuid-Amerikaanse gerecht: het klassieke Peruviaanse voorgerecht bestaat uit rauwe (wit) vis die ‘gegaard’ is in limoensap. Het gerecht wordt geserveerd met chili, koriander, rode ui en een oceaan aan limoen. Een overdonderende smaaksensatie en daarom ook moeilijk om goed te evenaren. Sjefietshe doet een goede poging en maakt met een Amsterdamse flair een goede eigen variant. Naast de ceviches met verschillende soorten vis is er ook de optie om van lekkere bites te genieten, waaronder de Sjefietshe special: de door hun uitgevonden ‘hotdoctopus’. Genoeg redenen om hier dus langs te gaan en voor jezelf te besluiten of de zaak erin slaagt je mee te nemen naar hogere Zuid-Amerikaanse sferen!

437922501_1117156876006867_728206199129953616_n
09
Adres
Albert Cuypstraat 58-60,
1072 CV Amsterdam

Auberge Amsterdam

De eigenaren van onder andere 212 (**), de Juwelier (*) en Bistro de la Mer (*) waren zelf een fervent bezoeker van voorheen Auberge jean & Marie. Nu zetten zij de Auberge traditie voort op deze zelfde plek. Voor 38 euro eet je hier een uitstekend 3 gangen menu.

Schermafbeelding 2022-06-20 om 13.58.14
Schermafbeelding 2022-06-20 om 13.58.34
10
Adres
Frans Halsstraat 76 HS,
1072 BV Amsterdam

Maris Piper Brasserie

Het begrip brasserie vindt zijn oorsprong in de Elzas en serveert over het algemeen wat luxere gerechten dan een bistro. De Breda Group heeft met Maris Piper is een eigentijdse versie neergezet. Hier kun je traditionele vis- en schelpdierengerechten, vlees en seizoensfavorieten bestellen. Denk aan Denk aan oesters, artichoke en piepkuiken.Wil je je laten verrassen, dan kan je kiezen voor de Chef's Table, een dertiengangenmenu dat veranderd per seizoen. Voor een gezellige sfeer en een goed gevuld bord is dit restaurant in De Pijp zeker het bezoeken waard.

Schermafbeelding 2022-09-28 om 17.27.18
Schermafbeelding 2022-09-28 om 17.26.37
11
Adres
Ceintuurbaan 238,
1072 GE Amsterdam

Tapi 'n Bowls

Bij Tapi 'n Bowls bieden ze Braziliaanse gerechten met een moderne jonge twist. De specialiteiten zijn Tapiocas en exotische smoothie bowls. De smoothie bowls worden geserveerd met meer dan 200 verschillende soorten vruchten met verschillende kleuren en smaken. De tapioca is een gerecht van cassave zetmeel, wat erg populair is in het noorden van Brazilië. De Tapioca heeft een knapperige buitenkant en is zacht van binnen. Daarbij is het ook erg gezond omdat het geen geen gluten, vetten, lactose of suiker bevat.

 

downloadgram.org_610617586_18420032773136397_3224401437205912253_n
12
Adres
Van Baerlestraat 51,
1071 BJ Amsterdam

Esh Pitabar

Esh Pitabar is het nieuwe hoofdstuk van broers Ilan en Joël Benamara, die eerder sinds 2015 Café Martinot runden tot het pand in 2022 noodgedwongen moest sluiten vanwege funderingsherstel. Na een succesvolle crowdfunding besloten ze hun zaak opnieuw op te bouwen, dit keer met meer ruimte voor hun Israëlische roots en inspiratie uit Tel Aviv. Chef Ilan Benamara staat zelf in de keuken en bewaakt een simpele maar duidelijke regel: alles is huisgemaakt, van de hummus tot het pitabrood. Op de kaart vind je streetfood zoals pita falafel, hummus met warme kikkererwten en verse pizza’s, precies zoals je ze in Israël ook zou eten.

Schermafbeelding 2022-10-05 om 14.40.44
13
Adres
Saenredamstraat 37,
1072 CB Amsterdam

La Dilettante

Eigenaren Olivier von Grumbkow en Hans Vervoort openden de deuren van La Dilettante. La Dilettante is open voor lunch en wijn. Bij de natuurwijnen worden hapjes geserveerd als quiches, tarte tatins, patés en rillettes. Een van die natuurwijnen die de mannen schenken heet La dilettante. Dat is niet de enige verklaring voor de gekozen naam. Het woord heeft verschillende betekenissen. Een daarvan is: iemand die iets doet uit liefhebberij.

339816079_240302538447892_8075740380035601622_n
14
Adres
Van Baerlestraat 47-49,
1071 AP Amsterdam

L'Entrecôte et les Dames

L’Entrecôte et les Dames omarmt het concept van een formule-restaurant, zoals de Fransen het noemen. Binnen een sfeervol ingerichte Franse brasserie staat de entrecôte centraal, altijd met een lichte 'bleu' bereiding van het Maas-Rijn-IJsel rund. Dit wordt geserveerd met frietjes en een verfrissende salade. Als je hierna nog trek hebt krijg je nog een keer een portie opgediend. Liever geen vlees? Als alternatief serveren zij in roomboter gebakken sliptong met ravigottesaus. Zelfde formule en zelfde prijs als het entrecôte menu.

366463382_3442100836044283_4217378537140301143_n
366411821_293571546686558_858409787167627600_n
15
Adres
Ceintuurbaan 246h,
1072 GG Amsterdam

Ikkoku

Bij Ikkoku izakaya  serveren ze individuele traditionele en bijna niche izakaya-gerechten met hun eigen kijk op sake, wijn en cocktailpairing. De twee eigenaren begonnen tijdens covid in 2020 Sushi Fanatics en opende daarna omakase shigure. Ikkoku is een nieuwe uitdaging omdat ze nog dieper de niche en onbekende wereld van de Japanse keuken ingaan. De individuele à-la-carte gerechten variëren van echt traditionele izakaya-gerechten tot Japanse gerechten die je in Europa niet vaak tegenkomt,

 

image-asset
16
Adres
Ceintuurbaan 71 H,
1072 EW Amsterdam

Kafé Kontrast

Kafé Kontrast is ontstaan uit de liefde voor het ongecompliceerde. Ze laten zich  inspireren door hun Scandinavische roots en de charme van cafés in Zuidoost-Azië.  De essentie is om een ruimte te creëren waar mensen kunnen eten, drinken en gewoon zichzelf kunnen zijn. Op doordeweekse dagen bieden ze een diner aan en in het weekend serveren ze brunch.

335969_460774987275260_2002095946_o
17
Adres
Ferdinand Bolstraat 74,
1072 LM Amsterdam

Toko Ramee

Midden op de Ferdinandbolstraat vind je Toko Ramee. Zoals al vermeld staat op de buitenkant van de toko is er een scala aan authentieke Indonesische en Aziatische producten. Het is een toko die aansluit op het familiare gevoel van de traditionele Indische en Chinees-Indische keuken, waar er voor iedereen iets te vinden valt. De toko is gevuld met geïmporteerde hapjes en drankjes en ook met kookgerei om zelf dingen thuis te maken. Van een complete rijsttafel tot huisgemaakt spekkoek: Toko Ramee neemt je maar al te graag mee in het proces om een heerlijke maaltijd samen te stellen. Mocht dat niet genoeg reden zijn om naar de toko toe te komen, vrees niet – toko Ramee heeft ook een catering service paraat!

Boodschappen
86970959_3017388671613224_8101255914595549184_n
18
Adres
Van Baerlestraat 67,
1071 AR Amsterdam

Renzo’s Delicatessen

Bij Renzo’s Delicatessen draait het om huisgemaakte, culinaire en Italiaanse producten. Alle gerechten worden hier dagvers gemaakt. Naast Renzo’s klassiekers is er ook een variërend menu. Voor de een is Renzo’s een buurtwinkel en voor de ander een plek om te lunchen of dineren. Je kan er ook terecht voor boodschappen, een Italiaanse meeneem menu of  een broodje. En dan vooral het broodje Dino: rundergehakt of warme kippendijen met de beruchte dinosaus, zonnemayo, rucola en zongedroogde tomaatjes.

downloadgram.org_608197557_17886555126421954_6843272127401052487_n
19
Adres
Saenredamstraat 32,
1072 CH Amsterdam

Layers Bakery

Layers is een bakery en deli in Amsterdam, opgericht door de Franse patissier Alexandre Scour, die zijn vakmanschap vertaalt naar een plek waar alles laag voor laag wordt opgebouwd. In de ochtenden draait boven het open pastry lab op volle toeren met boterige croissants, viennoiserie en patisserie die volledig in huis worden gemaakt. In de middag verplaatst de aandacht zich naar beneden, waar de deli verse sandwiches serveert met dezelfde toewijding aan kwaliteit en detail. Het concept draait om ambacht zonder opsmuk, met eten dat precies en met aandacht is bereid.

Kunst & cultuur
202309galerie+fleur+&+wouter_MG_0118
WIDE59
20
Adres
Van Ostadestraat 43,
1072 SN Amsterdam

Galerie Fleur & Wouter

Galerie Fleur & Wouter werd in 2019 opgericht door Fleur Feringa en Wouter van Herwaarden. De galerie heeft als missie jongeren te betrekken bij kunst, hen vertrouwd te maken met galerieën en aan te moedigen om kunst te verzamelen. Deze toegankelijke en inclusieve filosofie weerspiegelt zich in alle activiteiten. Ze streven naar begrijpelijke communicatie en heldere verhalen.

 

35bbaf_61b11900b0874d829350247b7015092d~mv2
21
Adres
Van Ostadestraat 43A,
1072 SN Amsterdam

GoMulan Gallery

In 2018 opende GoMulan Gallery haar deuren als een pop-up galerie, opgericht door Mulan Go (1998). Slechts drie maanden later vestigde de galerie zich permanent als een artistieke ruimte. Het voornaamste doel van deze galerie is het bieden van een platform aan opkomende kunstenaars. De galerie toont zowel opkomende talenten als gevestigde kunstenaars en creëert zo een sterke inhoudelijke brug tussen verschillende generaties.

Interieur
Scherm­afbeelding 2025-07-23 om 14.24.00
Scherm­afbeelding 2025-07-23 om 14.23.36
22
Adres
Eerste Jan van der Heijdenstraat 103B,
1072 TN Amsterdam

Juki Amsterdam

JUKI Amsterdam is een ode aan design met karakter. In de showroom in De Pijp vind je iconische vintage meubels, lampen en objecten – elk met een verhaal.Van Bauhaus tot Memphis, met liefde geselecteerd en klaar voor een tweede leven.  JUKI Amsterdam biedt haar collectie aan via de webshop, met elke donderdag om 18:00 uur (CET) een nieuwe drop. De showroom in De Pijp is open op afspraak én elke zaterdag van 12:00 tot 18:00.

Pasted Graphic
23
Adres
Gerard Doustraat 54,
1072 VT Amsterdam

Duikelman

In het hart van De Pijp vind je Duikelman, al sinds 1940 dé kookwinkel van Amsterdam. Van espressomachines tot Japanse messen – elke kok, professioneel of thuis, raakt hier geïnspireerd. De speciaalzaken op de Ferdinand Bolstraat en Gerard Doustraat vormen samen een culinair walhalla. Hier proef je niet alleen kwaliteit, maar ook vakmanschap. Een must voor wie koken als ambacht ziet.

277535791_5208467215858783_4051211327754731278_n
274469633_5110110329027806_2507568570523403675_n
24
Adres
Van Baerlestraat 39-43,
1071 AP Amsterdam

Cosentino

Cosentino Group is een wereldwijd bekend Spaans familiebedrijf dat hoogwaardige innovatieve oppervlakken produceert en distribueert voor de wereld van design en architectuur. Aan de Van Baerlestraat bevindt zich hun inspiratiecentrum waar men kleuren, materialen en toepassingen voor architectuur en designprojecten met elkaar kan vergelijken. Cosentino City biedt een uitgebreid inspiratieplatform waar architecten en ontwerpers elkaar kunnen ontmoeten en kunnen werken.

Oosterparkbuurt

Oosterparkbuurt

Kunst & cultuur Kerstspecial 2025

Kunst & cultuur Kerstspecial 2025

Uitgelicht; Romance with a View, het allerlaatste stuk van de Prinsengracht

Uitgelicht; Romance with a View, het allerlaatste stuk van de Prinsengracht

Onlangs bekeken
Bekijk het overzicht

Deze site maakt gebruik van cookies.

Voor welke cookies geef je akkoord?