Het appartement beschikt over een comfortabele woonkamer met open keuken, twee slaapkamers, een recent gerenoveerde badkamer.
De woning is gelegen op gemeentelijke erfpachtgrond en de canon bedraagt € 207,48 per jaar.

Rondleiding
Onder het schuine dak ontvouwt zich een woning die verrast door licht, helderheid en precisie. Vanaf het moment dat je de ruimte betreedt, valt het ritme van de architectuur samen met de rust van het interieur. Drie grote dakramen aan de zuidwestzijde werpen licht in brede banen over de woonkeuken. De wit gepleisterde wanden weerkaatsen het daglicht, dat zich in de zachte rondingen van plafond en vloer nestelt. De zithoek ligt aan de lichtere zijde, ingetogen geordend rond een laag tafeltje en een natuurlijk geweven kleed. Alles in deze ruimte is afgestemd op balans. De wandkeuken, greeploos, zandkleurig, zonder bovenkasten, trekt zich bescheiden terug tegen de schuine wand. De natuurstenen uitstraling van het werkblad voegt verfijning toe zonder nadruk. Aan de overzijde staat een compacte eettafel voor twee, in een nis die onverwacht ruimtelijk aanvoelt. Zelfs de airco, boven de zitplek weggewerkt, is een voorbeeld van comfort zonder visuele ruis. Achterin ligt de slaapkamer, verzonken onder het dakvlak. De schuine lijnen vangen hier het licht in verstilde hoeken. Twee ramen openen het zicht op de dag, terwijl het bed in het midden als ankerpunt rust. Alles is ingetogen: lichte stoffen, zachte overgangen, een houten krukje dat doet denken aan eenvoud en precisie. De badkamer sluit naadloos aan op de sfeer van het appartement. Een ruimte in aardetinten, waarin glad stucwerk en warme texturen samenkomen en voorzien van een inloopdouche, wastafelmeubel en toilet.

Buurtgids
Aan de rand van de bruisende Baarsjes ligt de charmante Cabotstraat, een straat waar geschiedenis en dynamiek samenkomen. Ontstaan tijdens de wederopbouw halverwege de vorige eeuw, biedt de wijk een harmonieuze mix van traditionele baksteenarchitectuur en moderne invloeden. Het culturele hart wordt gevormd door het Chassé Theater, een geliefde plek voor film en theater. Voor culinaire ontdekkingen zijn er hotspots zoals Bakkerij Fort Negen, bekend om ambachtelijk brood voor heerlijke croissantjes op zondagochtend in de zonnige tuin, Italiaans restaurant Volare met authentieke gerechten, en bar-restaurant Edel, gelegen aan het water. De nabijheid van het Rembrandtpark en het Vondelpark biedt een fijne balans tussen stadsleven en groen. Op 10 minuten fietsen van de Jordaan, maar ’s ochtends wakker worden met het geluid van fluitende vogeltjes in de tuin.
De Cabotstraat combineert een gezellige buurtbeleving met een praktische ligging in het hart van Amsterdam.

Bijzonderheden
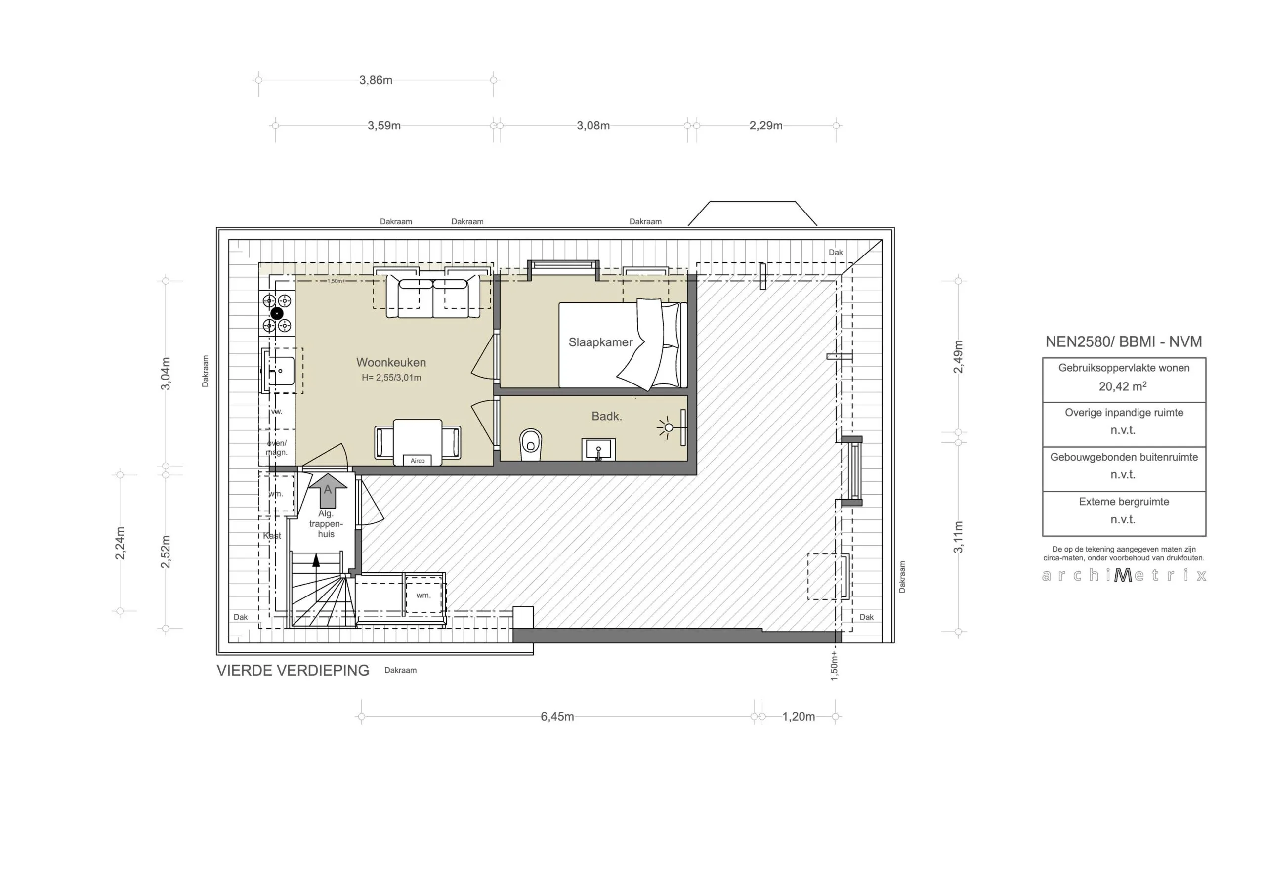
• Gebruiksoppervlakte wonen circa 20 m²
• Intern volledig hoogwaardig gerenoveerd in 2025
• Gelegen op erfpachtgrond van Gemeente Amsterdam. Huidig tijdvak t/m 15 augustus 2053, AB 2000, te betalen canon bedraagt € 207,48 per jaar op basis van 1-jaarlijkse canonindexering
• Energielabel A, geldig t/m 10-07-2035
• Servicekosten VvE p.m.
• Vloerverwarming in combinatie met een gietvloer
• Gemeentelijk beschermd stadsgezicht
• Niet-zelfbewoningsclausule van toepassing
• Projectnotaris: Lubbers en dijk notarissen
• Oplevering kan snel

AM106900-2112532-Cabotstraat-25A-4,-Amsterdam-256153510

Bright corner suite
Wij begeleiden als kantoor de verkoop van een gevarieerd aanbod. Zelf kom ik erg graag in Amsterdam-West, en ben er dan ook veel te vinden. Ik hou van de reuring in de buurt en de voorzieningen zijn goed. Op onder andere de J.P. Heijestraat, Jan Evertsenstraat, Kinkerstraat en Postjesweg is een diversiteit aan winkels, speciaalzaken en traiteurs te vinden. Daarnaast zijn er diverse goede restaurant en gezellige cafés te vinden in de buurt. Het appartement in de Cabotstraat 25 A4 dat wij als kantoor mogen verkopen is een zeer eficient ingedeeld benedenhuis met een heerlijke tuin. Daarnaast is het zeer centraal gelegen in Amsterdam-Westen nabij 3 grote parken, namelijk het Rembrandtpark, Erasmuspark en Vondelpark. Zo ervaar je aan de voorzijde van het pand de stadse dynamiek met een Cruijff voetbalveld en aan de achterzijde een fijne rust. Mocht je verdere interesse hebben nodig ik je graag uit om eens langs te komen. Uiteraard vertel ik je dan nog meer over het appartement. Wellicht tot snel.


Babette Meijers | Makelaar Broersma Wonen
Otte van Apeldoorn | Makelaar Broersma Wonen
AM106900-2112532-Cabotstraat-25A-4,-Amsterdam-256153422
Designvisie

Aan de rustige hoek van de Cabotstraat en de Vasco da Gamastraat staat een ensemble dat de tijd trotseert. Het blok, ontworpen door J.A. Bangert in de jaren twintig, is een markant voorbeeld van Amsterdamse School-architectuur binnen Plan West, een stadsuitbreiding waarin esthetiek en stedelijkheid hand in hand gingen. De gevel is volledig opgetrokken uit warmrode baksteen, zorgvuldig gemetseld in strakke patronen. De repetitie van hoge, witgevatte kozijnen geeft het blok een ritmisch gevelbeeld, waarin de verticale accenten de compositie versterken. Sierlijke metselwerkdetails tussen de vensters verraden de hand van een architect met oog voor nuance. Op de hoek wordt het karakter van het gebouw krachtig voelbaar: een afgeronde erker met driezijdig uitzicht accentueert het samenspel tussen straat en gebouw. Hier ontmoet symmetrie de stad, met ramen die in geometrische precisie zijn geplaatst. Elk venster kadert de wereld buiten als een tableau vivant. Het schuine dak, gedekt met oranje gebakken pannen en voorzien van sobere dakkapellen, sluit het geheel af met ingetogen grandeur. De entrees zijn diepgelegen in portieken, deels voorzien van oorspronkelijke deuren met sierroosters en glas-in-loodaccenten. Dit zijn kleine verwijzingen naar de expressieve taal van de Amsterdamse School. Wat hier aan de gevel verschijnt is geen overdaad, maar vakmanschap. Een architectuur die zich niet opdringt, maar door ritme, materiaal en detail tot spreken komt.

AM106900-2112532-Cabotstraat-25A-4,-Amsterdam-256153416
AM106900-2112532-Cabotstraat-25A-4,-Amsterdam-256153508
AM106900-2112532-Cabotstraat-25A-4,-Amsterdam-256153466
AM106900-2112532-Cabotstraat-25A-4,-Amsterdam-256153450
Wonen en koken

Onder het schuine dak ontvouwt zich een verrassend lichte leefruimte, waarin elk element zorgvuldig op zijn plek staat. De woonkeuken is gesitueerd aan de zonnige achterzijde van het pand en profiteert optimaal van het licht door de zuidwestelijke oriëntatie in combinatie met de drie grote dakramen. Het daglicht valt hier royaal naar binnen, wordt weerkaatst door de lichtkleurige wanden en brengt een aangename zachtheid in de ruimte. De zithoek is intiem en helder, met een lage bank aan de lichtzijde en een rond vloerkleed dat de ruimte visueel centreert. Het schuine plafond versterkt het gevoel van geborgenheid, zonder te drukken op de beleving van ruimte. Door de open verbinding met de keuken blijft het geheel luchtig en in balans. De keuken zelf is ingetogen modern: een greeploze wandopstelling in zachte zandtint, afgewerkt met een werkblad van natuursteenlook. Hier geen overdaad aan bovenkasten, maar een lijn die de rust van het interieur bewaart. Koken, lezen, koffiezetten alles vindt hier plaats onder één dakvlak, met uitzicht op de lucht erboven. Naast de keuken staat een kleine eettafel, perfect gepositioneerd voor twee. De nis tussen wand en schuinte biedt hier een verrassend ruimtelijk moment, alsof de kamer zich opent in een knik. De materialisering blijft overal consistent: ingetogen en helder. Airco is subtiel weggewerkt boven de zithoek, comfort zonder concessie aan uitstraling.

AM106900-2112532-Cabotstraat-25A-4,-Amsterdam-256153436
AM106900-2112532-Cabotstraat-25A-4,-Amsterdam-256153484
AM106900-2112532-Cabotstraat-25A-4,-Amsterdam-256153460
AM106900-2112532-Cabotstraat-25A-4,-Amsterdam-256153498
AM106900-2112532-Cabotstraat-25A-4,-Amsterdam-256153488
AM106900-2112532-Cabotstraat-25A-4,-Amsterdam-256153504
Slapen en baden

In het verlengde van de leefruimte ligt de slaapkamer verscholen onder de kap, aan de rustige zijde van het pand. De kamer is compact, maar overtuigt door haar vorm en lichtval. Twee ramen vangen het daglicht, waardoor het natuurlijke ritme van de dag hier altijd voelbaar blijft. Het schuine plafond benadrukt de intimiteit van de ruimte en kadert het bed als een rustpunt in wit en zand. Een houten krukje naast het bed, een zachte plaid over het dekbed alles ademt eenvoud en verstilling. Door de heldere afwerking blijft de kamer licht en luchtig, zonder aan geborgenheid in te boeten. Via woonkamer is eveneens de badkamer te bereiken. Deze is verrassend ruim en hoogwaardig afgewerkt, met wanden in kalktint en een warme textuur. De inloopdouche is voorzien van een regendouchekop en een glazen scherm, de waskom staat op een donker houten meubel. Het ronde spiegelvlak met geïntegreerde verlichting voegt een architectonisch accent toe dat de ruimte optilt. Hier is comfort niet spectaculair, maar zorgvuldig. Elk detail klopt van de zachte kleurstellingen tot de positionering van het sanitair.

AM106900-2112532-Cabotstraat-25A-4,-Amsterdam-256153492
AM106900-2112532-Cabotstraat-25A-4,-Amsterdam-256153518
AM106900-2112532-Cabotstraat-25A-4,-Amsterdam-256153510
AM106900-2112532-Cabotstraat-25A-4,-Amsterdam-256153512
AM106900-2112532-Cabotstraat-25A-4,-Amsterdam-256153526
AM106900-2112532-Cabotstraat-25A-4,-Amsterdam-256153530
AM106900-2112532-Cabotstraat-25A-4,-Amsterdam-256153522

Buurtgids
Aan de rand van de bruisende Baarsjes ligt de charmante Cabotstraat, een straat waar geschiedenis en dynamiek samenkomen. Ontstaan tijdens de wederopbouw halverwege de vorige eeuw, biedt de wijk een harmonieuze mix van traditionele baksteenarchitectuur en moderne invloeden. Het culturele hart wordt gevormd door het Chassé Theater, een geliefde plek voor film en theater. Voor culinaire ontdekkingen zijn er hotspots zoals Bakkerij Fort Negen, bekend om ambachtelijk brood voor heerlijke croissantjes op zondagochtend in de zonnige tuin, Italiaans restaurant Volare met authentieke gerechten, en bar-restaurant Edel, gelegen aan het water. De nabijheid van het Rembrandtpark en het Vondelpark biedt een fijne balans tussen stadsleven en groen. Op 10 minuten fietsen van de Jordaan, maar ’s ochtends wakker worden met het geluid van fluitende vogeltjes in de tuin. De Cabotstraat combineert een gezellige buurtbeleving met een praktische ligging in het hart van Amsterdam.

Bereikbaarheid
Het appartement is zowel met de fiets, auto als openbaar vervoer zeer goed bereikbaar. De Ring A10 is al binnen 5 autominuten te bereiken via afslag S105 of S106. Vanaf zowel de Postjesweg, Hoofdweg als de Jan van Galenstraat vertrekken meerdere tram- en buslijnen, zoals tram 7, 13, 17 naar Centraal Station en Nieuw Sloten en bussen naar respectievelijk Station Sloterdijk en Station Zuid. Vanaf de Hoofdweg vertrekt eveneens een directe verbinding naar Luchthaven Schiphol. Met de fiets is Station Sloterdijk binnen 15 minuten aan te rijden.

Parkeergelegenheid
Altijd een parkeerplek voor de deur en een parkeergarage op slechts vijf minuten lopen. Parkeren is mogelijk via een vergunningenstelsel op de openbare weg (vergunningsgebied West-1.2). Met een parkeervergunning voor West-1.2 mag u parkeren in West-1. Een parkeervergunning voor bewoners kost 192,81 per 6 maanden. Momenteel is er voor dit vergunningsgebied een wachttijd van 3 maanden. Een tweede parkeervergunning is in dit gebied niet mogelijk. Naast de openbare weg is het ook mogelijk om met een parkeervergunning kosteloos te parkeren in garage De Wending, Piri Reis en Mercatorplein. (Bron: Gemeente Amsterdam, november 2025).

Geen overdrachtsbelasting bij je eerste woning? Ontdek of jij in aanmerking komt.

Lees meer
Startersvrijstelling overdrachtsbelasting
AM106900-2112532-Cabotstraat-25A-4,-Amsterdam-256153532
AM106900-2112532-Cabotstraat-25A-4,-Amsterdam-256153544
AM106900-2112532-Cabotstraat-25A-4,-Amsterdam-256153436
AM106900-2112532-Cabotstraat-25A-4,-Amsterdam-256153472
Kenmerken
Cabotstraat 25A 4, Amsterdam
Vraagprijs
  • € 280.000 k.k.
Beschikbaarheid
  • In overleg
Vertrekken
  • 2 kamers
  • 1 slaapkamer
  • 1 badkamer
Onderhoud
  • Intern: Uitstekend
  • Extern: Goed tot uitstekend
Oppervlakten & Inhoud
  • Woonoppervlakte: 20 m²
Bouwjaar
  • 1929
Installaties
  • Airconditioning
  • Buitenzonwering
  • Mechanische ventilatie
  • Natuurlijke ventilatie
  • TV kabel
Ligging
  • Aan rustige weg
  • In woonwijk
  • Vrij uitzicht
Parkeren
  • Betaald parkeren
  • Parkeervergunningen
Type warmwater
  • Elektrische boiler huur
Bestemming
  • Woonruimte
Eigendomssoort
  • Eigendom belast met erfpacht
Buitenruimte
  • Geen tuin
Kadastraal
  • Gemeente: Amsterdam
  • Sectie: C
  • Nummer: 11891
Duurzaamheid
  • Volledig geisoleerd
  • Energielabel A
Soort
  • Appartement
  • Bovenwoning
Welke woonlaag
  • 5e
Bijzonderheden
  • Beschermd stads of dorpsgezicht
Overige kenmerken
  • Rioolrecht ('25) € 185,20 per jaar
  • Servicekosten VvE p.m.
  • Gelegen op erfpachtgrond van Gemeente Amsterdam. Huidig tijdvak t/m 15 augustus 2053, AB 2000, te betalen canon bedraagt € 207,48 per jaar op basis van 1-jaarlijkse canonindexering
Plattegrond
Cabotstraat 25A 4, Amsterdam
AM106900-2112532-Cabotstraat-25A-4,-Amsterdam-256686786
Documenten
Cabotstraat 25A 4, Amsterdam
Locatie
Cabotstraat 25A 4, Amsterdam
Eten & drinken
26165612_1787760961298744_2665224725295893488_n
01
Adres
Balboastraat 15hs,
1057 VS Amsterdam

Rotishop Gieta

Sinds 2008 is Rotishop Gieta een opmerkelijk begrip in de buurt, waar generatiesoude familie-recepten de basis vormen voor hun heerlijke gerechten. Gieta, die velen bij naam kent, verwelkomt een gevarieerde klantenkring voor roti, bara en bami. Met trots rolt Gieta nog steeds haar eigen roti, omdat handgemaakt naar haar mening altijd het beste is.

downloadgram.org_610695058_17975405936977609_8539314007563208742_n
downloadgram.org_610764730_17975405945977609_1306229365209936158_n
downloadgram.org_610671282_17975405969977609_4972116120418114050_n
02
Adres
Baffinstraat 1,
1057 SV Amsterdam

September

September is een intieme wijnbar en restaurant in De Baarsjes, gerund door drie vrienden Matthew, Valentijn en Lizzy, die elkaar leerden kennen in de horeca en nu hun eigen droomplek neerzetten. Hun stijl leunt op Franse keukenlogica met lokale seizoensproducten, en een compacte kaart die regelmatig mee wisselt. Wijn speelt een hoofdrol, met nadruk op natuurwijn en een aanpak die ontdekken makkelijk maakt zonder poespas

03
Adres
Jan Evertsenstraat 91,
1057 BS Amsterdam

Bar Baarsh

Een leuke gezellige bar in De Baarsjes waar je terecht kan voor een hapje, drankje of pub quiz op de maandag avond. Eigenaren van Visbar Beet hebben in november 2019 de zaak overgenomen maar wilde het 'oude' Bar Baarsh in stand houden. Het is dus nog steeds hetzelfde gezellige restaurant wat we gewend waren. De keuken is dagelijks geopend van 10:00- 22:00 voor ontbijt, lunch, borrel en diner. Voor de lunch heb je keuze uit verschillende boordjes zoals de gegrilde groente met zoete aardappel-chipotle crème of de avocado mash met avocado, ei en tomaat. Kies voor het diner bijvoorbeeld een dorade van de BBQ, een gelakte Rib eye of de Bar Baarsch burger.

04
Adres
Witte de Withstraat 125-H,
1057 XR Amsterdam

Sham West

Restaurant Sham is het allereerste Syrische restaurant in Amsterdam. Chefs ervaren in de Syrische cuisine staan elke dag in de keuken om prachtige Syrische gerechten klaar te bereiden, zoals Baba Ganoush, Fatoush en Foul Muqalla. In het restaurant hangt een goede sfeer en er wordt regelmatig live muziek gespeeld. Omdat het de bedoeling om de kleine gerechtjes samen te delen met je tafelgenoten, wordt een bezoek aan Sham altijd een gezellige gelegenheid. Goede gesprekken, prachtig opgemaakte borden, en heerlijk verse ingrediënten, bij Sham is je avond compleet.

Schermafbeelding 2022-05-18 om 18.29.39
05
Adres
Jan Evertsenstraat 136,
1056 EG Amsterdam

White label coffee

White label coffee is een koffiemerk met meerdere koffietentjes in Amsterdam. Ze roasten hun eigen koffie waarbij ze kwaliteit, openheid en samenwerking door de hele keten van het koffieproces belangrijk achten. De locatie in West is een soort van open huiskamer waar je gerust kan zitten om een koffietje te drinken. De zaak is minimalistisch ingericht waarbij gebruik is gemaakt van vintage interieur. Ze hebben koffie van verschillende origine die de barista’s met liefde voor je bereiden. Je kan ook lekkernijen bestellen voor bij de koffie en er zijn verschillende vegan melk opties.

244941393_392674422556390_5974260137434439690_n
361937251_1006343037055178_1266157854329145058_n
06
Adres
Postjesweg 98,
1057 EG Amsterdam

Mundi

Bij Mundi in Amsterdam-West komt alles samen: goede koffie, wijnen voor in de avond en een gezellige plek om te werken of te kletsen. Gelegen aan de Kinkerstraat, biedt Mundi een diversiteit aan bezoekers, van freelancers met laptops tot mensen die voor een sterke bak koffie komen. De koffie van Five Ways is krachtig en pittig, ook beschikbaar voor thuis. De roze bank met speelhoek maakt het kindvriendelijk, terwijl dagelijks lekkers van Ulmus en een selectie natuurwijnen de ervaring compleet maken. Mundi is elke dag open van 08:00 tot 16/17 uur.

239146717_360848548872665_1235599640777855714_n
07
Adres
Van Speijkstraat 157HS,
1057 GX Amsterdam

Thai Thai Poppetje

Thai Thai Poppetje is een authentiek Thais streetfoodrestaurant dat de nadruk legt op versheid. Op hun beperkte kaart vind je klassiekers zoals viskoekjes, maar ook originele creaties zoals bitterballen van rode curryrijst met een smeuïge vulling en een knapperig korstje. Het restaurant biedt ook vegetarische en veganistische opties aan.

1515753586-meneer-de-wit_bar4589
1547131084-meneer-de-witjcb8132
08
Adres
Witte de Withstraat 10,
1057 XV Amsterdam

Meneer de Wit heeft Honger

In 2015 opende Meneer de Wit heeft Honger; een restaurant met een huiselijke sfeer en heerlijk eten. Chef Simo Bouabgha leerde koken van zijn oma in het zuiden van Marokko en houdt van het eten dat de moeders rondom de Middellandse zee met alle liefde, geduld koken. Het menu bestaat uit seizoensgebonden gerechten met deze verfijnde en warme smaken, vaak gebaseerd op groente maar er is ook duurzaam vlees, gevogelte en vis.

344958756_744684200721961_1937864838698341245_n
350812931_924913161950865_6719435353221097677_n
09
Adres
Hoofdweg 141,
1057 CN Amsterdam

Restaurant Felperlaan

Recent heeft Restaurant Felperlaan zijn deuren geopend in de Baarsjes. De eigenaren zijn bekend van Café Mundi. Eigenaresse Lila, en haar partner Benten willen kunstenaars uit de buurt de mogelijkheid bieden om hun kunst te exposeren. Het restaurant is een bruisende buurtstek met de focus op goed eten en een toegankelijke sfeer. Het dagmenu, seizoensgebonden en geprijsd tussen de 39 en 49 euro, wordt om de drie à vier weken vernieuwd. Daarnaast biedt het restaurant een (borrel)hapjeskaart met vaste items zoals oesters, huisgemaakte paté (ook vegetarisch) en diverse vegetarische gerechten. De keuken combineert invloeden uit Zuid-Frankrijk, Noord-Italië en Spanje.

26-lvffood-com-5129-57-20230127
10
Adres
Postjesweg 1,
1057 DT Amsterdam

Daalder (*)

Zijn Indonesische roots en Aziatische invloeden kruiden de inventiviteit van chef Huwaë. Hij schuwt allerminst de contrasterende smaken. Het talent van deze chef ligt in de harmonie die hij bereikt met dergelijke associaties. Soms is hij iets klassieker, zoals met een perfect gegaarde langoustine waarbij een botersaus komt die is verrijkt met champagne, appelsien en Grand Marnier. Subtiel, intens, explosief. Helemaal Dennis Huwaë. Daalder heeft 1 Michelin ster.

280279707_690276598712258_782257989926286225_n
11
Adres
Lootsstraat 5,
1053 NT Amsterdam

Eetcafé Meo’s Colosseum

Bij het Surinaams-en Caribische Eetcafé Meo’s Colosseum kan je elke dag vanaf 04.00 uur 's ochtends tot 10.30 uur 's avonds terecht en op zaterdag tot 05.00 uur (en soms nog langer). Ze staan altijd voor je klaar wanneer andere eetgelegenheden gesloten zijn met lekkernijen als nasi, bami, pom, of moksi alesi. Op vrijdag en zaterdag zijn er ook barbecue gerechten en huisgemaakte friet. Krijg je er nog geen genoeg van? Binnenkort zijn ze 24 uur geopend.

197838590_394303158477494_3697288289228022643_n
12
Adres
Jan van Galenstraat 219,
1056 BW Amsterdam

Broodje Daan

Broodje Daan is een gezellige broodjeszaak met tijdloze prijzen, verwelkomt een gevarieerd publiek. Van 6.00 tot 15.00 uur op werkdagen kunt u genieten van een broodje en vers gezette koffie tegen aantrekkelijke tarieven. De broodjes dragen namen van de bedenksters, zoals de Bouwmaat XL Burgers, ontworpen door de mannen van de bouwmarkt. Zelfs huishond Buddy heeft zijn eigen creatie. De zaak trekt ook vaste klanten, waaronder 'Mevrouw Pindakaas', die dagelijks geniet van haar broodje pindakaas. Daan kent haar klanten door en door, volgt hun routines en deelt dagelijkse lachmomenten.

350797001_546119614400873_859829144022127459_n
13
Adres
Jan Pieter Heijestraat 76,
1053 GS Amsterdam

Wakuli

Wakuli ontleent aan het Swahili-woord 'wakulima', wat boer betekent. Hier vind je kwaliteitskoffie die op duurzame wijze is verkregen tegen betaalbare prijzen.  Ze halen hun bonen bij kleinschalige boeren die groene productie produceren en roosteren ze op de beste manier mogelijk voor maximale smaak. Je kunt hier alle gebruikelijke koffiesoorten krijgen, evenals heerlijke ijskoffie en nitro cold brew. Last but not least, hebben ze een aantal zoete en hartige lekkernijen beschikbaar, van empanadas tot broodjes en croissants.

330395866_728988148836979_8044589916189772151_n
306010281_609238110786746_2030159783972727770_n
286758554_387921876626672_5696208070626382574_n
14
Adres
Jan van Galenstraat 147,
1056 BN Amsterdam

Oficina

Bij Oficina bieden ze een wekelijks wisselend ontbijt- en lunchmenu aan, met ingrediënten die passen bij het seizoen. De focus ligt op het vinden van mooie producten uit Amsterdam en de omliggende boerderijen. Oficina is geopend van woensdag tot en met zondag van 10:00 tot 17:00 uur. Ontbijt wordt de hele dag geserveerd en de lunchservice begint om 11:30 uur.

Schermafbeelding 2023-08-30 om 14.30.21
15
Adres
Nicolaas Beetsstraat 47h,
1053 RJ Amsterdam

Dona

Met Restaurante Dona brengen eigenaren Diogo en Sjors een eerbetoon aan hun grootmoeders en de Portugese keuken. Chef Diogo dankt zijn liefde en uitzonderlijke kookvaardigheden aan zijn grootmoeders, Tana & Tonica. Sinds zijn kindertijd leerden zij hem de ambacht van de authentieke Portugese keuken. Sindsdien deelt hij zijn passie en expertise in vele Europese restaurants. Hij laat gasten van over de hele wereld kennismaken met verrukkelijke Portugese gerechten. Voor Sjors belichaamt Dona zijn passie voor gastvrijheid en de onvoorwaardelijke steun van zijn grootmoeders hierin. Bep en Nel voorspelden altijd dat Sjors ooit zijn eigen restaurant zou openen. Ze steunden hem gedurende zijn carrière in het beheer van hoogwaardige restaurants.

 

downloadgram.org_587941642_17861923047540463_7528525127815259624_n
downloadgram.org_580577890_17860377204540463_347230483383533533_n
16
Adres
Jan Pieter Heijestraat 94A,
1053 GS Amsterdam

Café Vitalente

Café Vita Lente werd geopend door Simon Witmaar, voormalig eigenaar van het sterrenrestaurant Coulisse, dat hij samen met Tim van der Molen runde. Met Vita Lente koos hij bewust voor iets totaal anders: geen fine dining, maar een café waar spontaniteit en vrijheid centraal staan. In de keuken staat Bas Holthuizen, die meeging vanuit Coulisse en hier kookt in een losser format met warme en koude gerechten die je de hele dag door kunt bestellen. Het concept draait om het Italiaanse idee van 'vita lenta', langzaam leven, waarbij je op elk moment vanaf 11.30 kunt binnenlopen en zo lang blijft als je wilt.

412174660_3213646675598150_4852236387686728737_n
17
Adres
Nicolaas Beetsstraat 51,
1053 RJ Amsterdam

Petit Péché

Le Petit Péché staat symbool voor de kleine zonde. Door openlijk achter de bar te koken, willen ze laten zien dat het bereiden van vlees en vis op een respectvolle manier mogelijk is. De keuze van ingrediënten is lokaal. De chefs omarmen de vaak de minder gangbare producten. De (nu al) signature dish is gefrituurde kikkerbillen met bottarga en merg mayonaise. Uiteraard streven ze ernaar de warme en toegankelijke smaken te behouden die mensen kennen van Café Beurre.

downloadgram.org_612064080_18088618793472192_8522096381989837072_n
downloadgram.org_503799539_18064983656472192_5322203112114680114_n
18
Adres
Jacob Van Lennepkade 334D,
1053 NJ Amsterdam

Bon Burger

Bon Burger is de nieuwe zaak van Freek Kattenberg, bekend van Bottleshop in Oost, die met dit concept zijn liefde voor burgers en natuurwijn samenbrengt. Na jaren van succesvolle burgerpop-ups in Bottleshop besloot hij dat het tijd was voor een vaste plek in West, op de geliefde vlonder aan de Jacob van Lennepkade. Kattenberg gelooft dat juist iets simpels als een hamburger goed uitvoeren een vak is, en dat zie je terug in zijn focus op grilltechniek en kwaliteit. Het vlees komt van Nederlandse dubbeldoelkoeien, die eerst als melkkoe hebben geleefd en daardoor duurzamer en smaakvoller zijn. Bon Burger voelt als een ontspannen buurtplek waar kenners en nieuwsgierige voorbijgangers samenkomen voor burgers, wijn en lange avonden aan het water.

Boodschappen
19
Adres
Jan Evertsenstraat 89,
1057 BT Amsterdam

T’s teas

Bij T’s teas draait alles om de liefde voor het onderschatte theeblad. Als je van mening bent dat thee maar een saai drankje is, zal je hier geheid van gedachte veranderen. Alle kennis over theebladeren en de drankjes die je hiermee kan maken is hier verzameld in een winkel. De geur alleen al is een bezoek waard. Als je eerst de thee wil proeven of even wil bijkomen van alle geuren, kan je terecht in de theebar waar je allerlei soorten theedrankjes van over de hele wereld kan drinken.

20
Adres
Mercatorplein,
1057 CA Amsterdam

De MercatorMarkt

De MercatorMarkt wordt de lekkerste en liefste markt in De Baarsjes genoemd en we snappen waarom. Het is een echte buurtmarkt, waar buurtbewoners hun eigen spullen kunnen verkopen en anders is het een kleine onderneming met een goed verhaal. Er is theater voor jong en oud, verschillende workshops en een draaimolen voor de kinderen. Hun doel is een duurzame kwaliteitsmarkt waar de buurt van op aan kan. De moeite waard!

355858024_587525863490224_7804309936375678814_n
362603419_18297120616114775_3360408025604327005_n
21
Adres
Jan Evertsenstraat 31,
1057 ZX Amsterdam

Fort Negen bakkerij

Bij Fort negen in De Baarsjes kan je zien hoe het brood gebakken wordt. Terwijl je je vers gehaalde croissantje opeet kan je namelijk in de winkel en voor de etalage de bakkers met passie het deeg zien kneden op de met bloem bestrooide werkbanken. De bakkers hanteren een traditionele en manier van brood maken, het zuurdesembrood wordt maar liefst 26 uur gerezen. Dit zorgt voor een heerlijke knapperige korst en een zachte binnenkant. Ze gebruiken alleen maar biologische producten en maken alles met de hand. Wat ook leuk is; je kan er een workshop desembrood of croissant maken volgen.

74368093_571598240314359_8811672873834070652_n
22
Adres
Admiraal de Ruijterweg 43,
1057 JV Amsterdam

The Wine Spot

In 2012 is The Wine Spot opgericht door Filipe en Paulo in een kleine anti-kraak winkel aan de Jan Evertsenstraat in Amsterdam. Deze tijdelijke plek werd snel vervangen door een grotere, permanente locatie aan de Admiraal de Ruijterweg 43. Deze wijnwinkel biedt een uitgebreid assortiment wijnen uit heel Europa, zowel natuurlijke als klassieke varianten. Aan elke fles is een handgeschreven notitie bevestigd met uitleg over de wijn, de regio van herkomst en het vinificatieproces. Voor liefhebbers van iets anders is er ook een ruime selectie ambachtelijke bieren, port, sherry en dessertwijnen.

holyactiefoto-s-183.960×0
holyactiefoto-s-164.960×0
23
Adres
Jan Pieter Heijestraat 88,
1053 GS Amsterdam

Holy Ravioli

Holy Ravioli is een pastawinkel in Amsterdam-West. Er zijn maar liefst 15 verschillende soorten ravioli en bij iedere ravioli hoort een passende pesto, boter, chutney, saus of kaas. Alle producten zijn seizoengebonden en vers en dat zorgt voor de allerlekkerste pasta. Daarnaast zijn er ook soepen, lasagnes, salades en toetjes. Je kan lekker buiten zitten in de zomer op de picknickbanken of pasta mee naar huis nemen en zelf klaarmaken als je een keer geen tijd hebt om te komen. De perfecte plek voor pastafanaten.

Interieur
104196247_2609875105928789_2143325823481766499_n
24
Adres
Baarsjesweg 208,
1057 HT Amsterdam

The BirdTsang

The BirdTsang is een jonge keramiek studio gevestigd aan de Baarsjesweg die unieke en handgemaakte ontwerpen maakt. The Bird Tsang wordt gerund door kunstenaars Robin de Vogel & Johannes Tsang, die zich focussen op de samenwerking met innovatieve chef-koks om unieke en op maat gemaakte ontwerpen te creëren die een eetervaring complimenteren en verhogen met onderscheidend en duurzaam keramisch servies.

Schermafbeelding 2022-05-19 om 13.53.12
Schermafbeelding 2022-05-19 om 13.57.57
25
Adres
Jan van Galenstraat 143,
1056 BN Amsterdam

Ted.Amsterdam

Ted.Amsterdam is een multifunctionele creatieve ruimte gevestigd in Amsterdam waar interieur, kunst en creativiteit elkaar ontmoeten. Ze verkopen verzamelbare mid-century moderne vintage en nieuwe meubelstukken, hedendaagse kunstwerken van lokale kunstenaars en unieke design objecten, en tegelijkertijd creëert het een unieke ruimte waar creativiteit kan bloeien. Of je nu op zoek bent naar een speciaal ontwerp voor je huis of tuin of juist een inspirerende ruimte voor een project, ted. is de plek voor jou.

Monumentaal werken midden in de stad

Monumentaal werken midden in de stad

Botanic Barn

Botanic Barn

Anja Henneman, voormalig topmodel, ontwierp dit interieur op de 19e verdieping van het Pontsteiger gebouw

Anja Henneman, voormalig topmodel, ontwierp dit interieur op de 19e verdieping van het Pontsteiger gebouw

Onlangs bekeken
Bekijk het overzicht

Deze site maakt gebruik van cookies.

Voor welke cookies geef je akkoord?