Charmant en tevens multifunctioneel te gebruiken grachtenpand zowel een moderne als historische beleving. Met een fraai vormgegeven en gedetailleerde symmetrische entreepartij met glas-in-lood ramen. De voorzijde ligt zonnig op het zuiden en heeft een prachtig uitzicht over de Brouwersgracht en de tegenover gelegen Langestraat. De woon- en werkoppervlakte van dit rijksmonument is in totaal 263 m² die verdeeld zijn over 4 ruime en lichte etages.

Het geheel is opgedeeld in drie afzonderlijke eenheden met op de begane grond een creatieve hoge ruimte met aparte voordeur, die recent is verbouwd en direct verhuurbaar is, en een bovengelegen woning met eigen opgang en dakterras, die qua indeling ook als 2 separate units kan worden gebruikt.

De woonlocatie aan de Brouwersgracht dichtbij de Herenmarkt, Haarlemmerstraat, Noordermarkt en Jordaan is geliefd en gewild.

AM103740-1721693-Brouwersgracht-42,-Amsterdam-129725275

Begane grond:
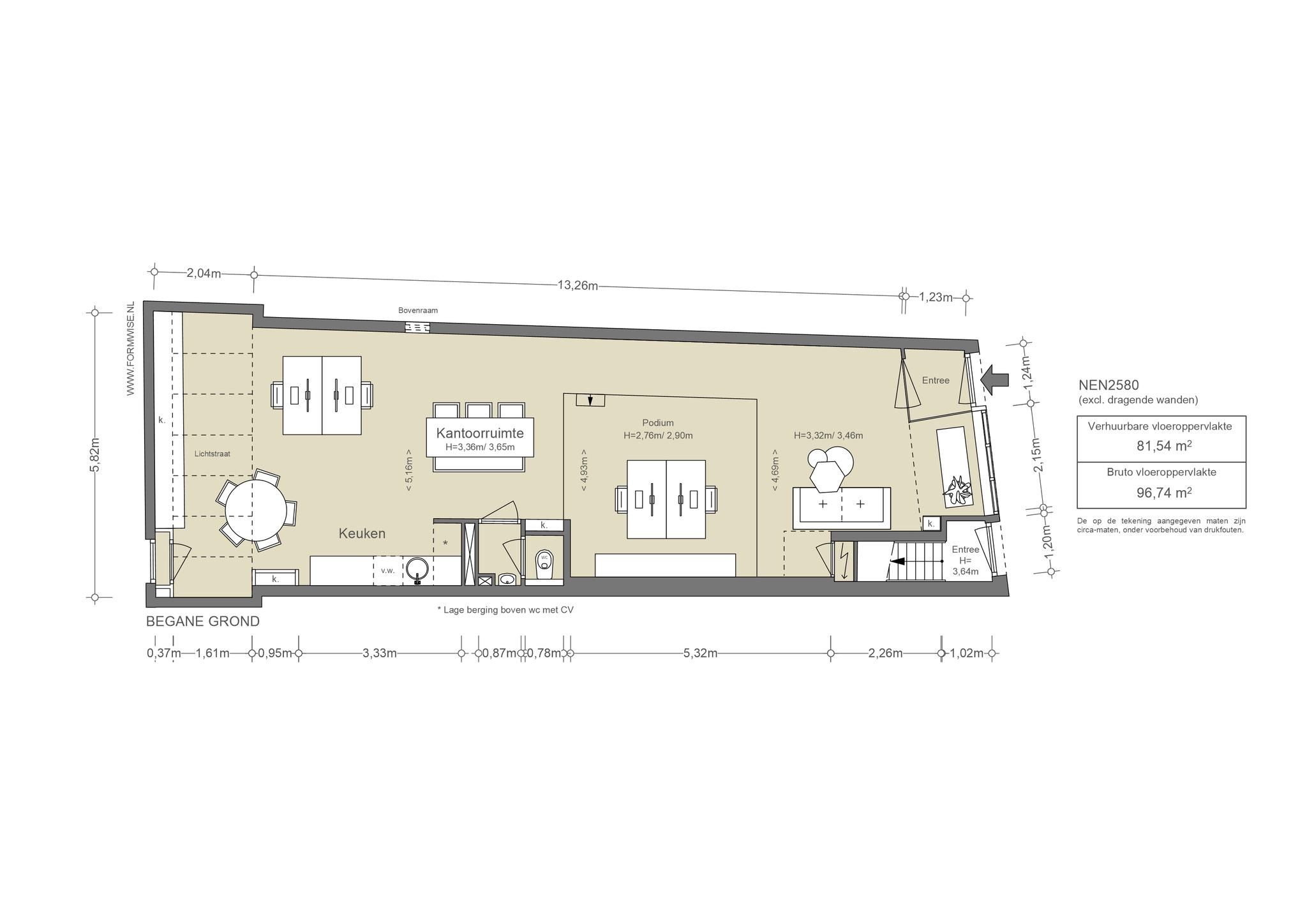
Op de begane grond van dit rijksmonument is een kantoorruimte van circa 81 m² gelegen met fraaie plafondhoogte van gemiddeld 3,50 meter. Bijzonder is dat de ruimte beschikt over een achterom via een afgesloten steeg die bereikbaar is via de Binnen Vissersstraat. Het object is gelegen op eigen grond en het bestemmingsplan laat zowel werken als wonen toe.

Eerste verdieping:
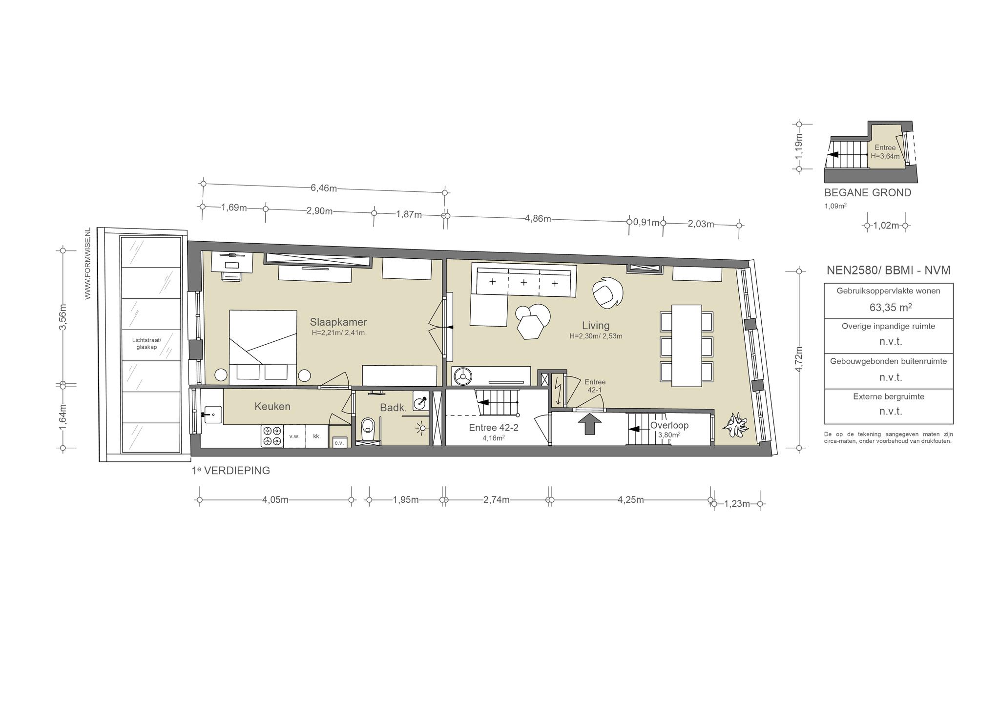
Via de andere opgang is het zelfstandige bovenhuis bereikbaar. Deze is thans feitelijk in twee delen bewoond, waarbij de eerste verdieping een lichte woonkamer heeft aan de grachtzijde met drie ramen. Aan de achterzijde is er een ruime slaapkamer met aangrenzend een dichte, complete keuken. De badkamer is voorzien van een toilet, douche en wastafel. Deze etage is apart te bewonen of op eenvoudige wijze weer als een geheel te maken, als drie laags bovenhuis, met de overige etages. Voor deze samenvoeging is er een alternatieve indeling bedacht welke te zien is op de alternatieve plattegrond. Met deze indeling kunnen er drie slaapkamers en twee badkamers gerealiseerd worden. Zo creëer je samen met de bovengelegen twee verdiepingen een groot drie-laags bovenhuis met meerdere slaapkamers en een dakterras.

AM103740-1721693-Brouwersgracht-42,-Amsterdam-129725285
Brouwersgracht 42 I-40
Brouwersgracht 42 I-42

Tweede verdieping:
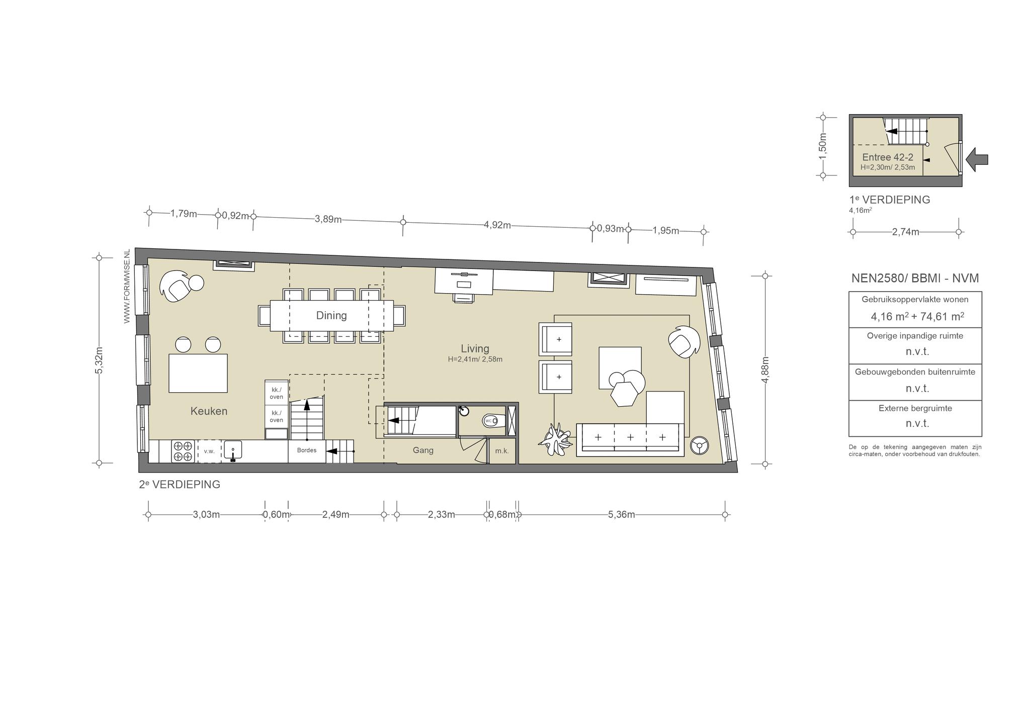
Moderne verbouwde etage, met een entree vanaf de eerste verdieping, die open en licht is met eveneens drie ramen aan de gracht. Aan de grachtzijde is een ruime zithoek gesitueerd. In het centrale gedeelte met een vide is ruimte voor een grote eettafel. Door deze fraaie vide is er extra licht en hoogte. Aan de achterzijde bevindt zich de moderne keuken met een eilandopstelling. De keuken is voorzien van diverse inbouwapparatuur. Over deze gehele verdieping ligt een fraaie eikenplanken vloer. Dankzij het licht, de verrassende vide en de maatvoeringen is het een hele prettige ruimte om in te verblijven.

AM103740-1721693-Brouwersgracht-42,-Amsterdam-129725295
Brouwersgracht 42 I-6
Brouwersgracht 42 I-14
Brouwersgracht 42 I-17

Derde verdieping:
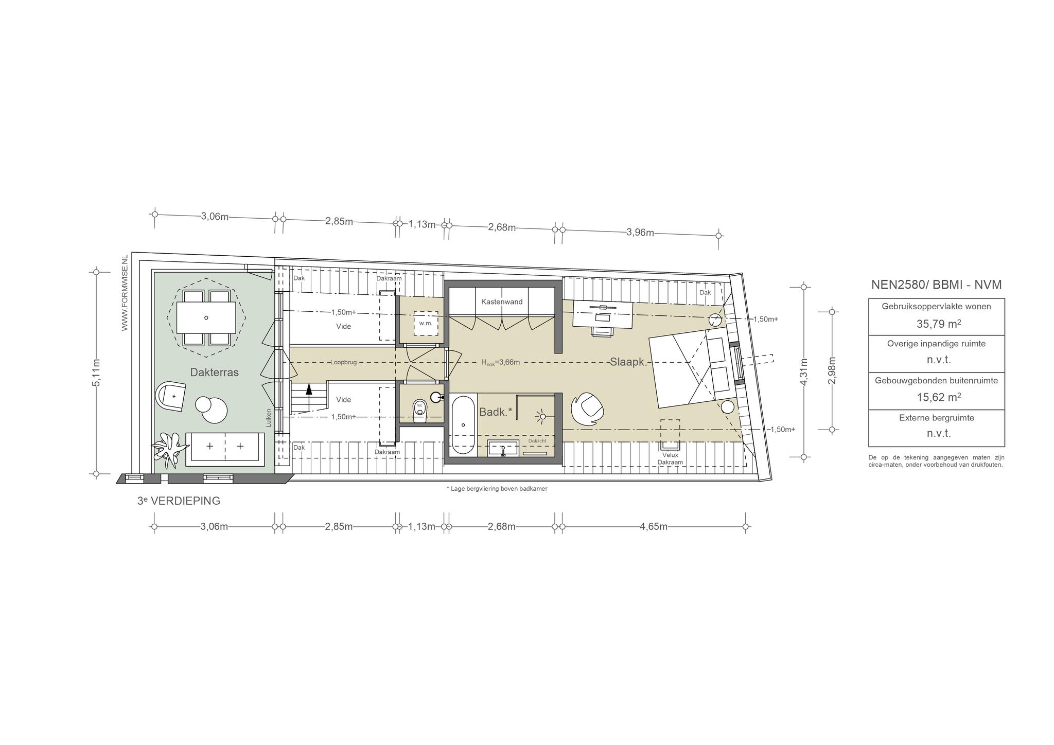
Via de fraai ontworpen open trap naar een loopbrug zijn de slaapverdieping en het dakterras toegankelijk. Hier is aan de voorzijde een ruime slaapkamer met een openkapconstructie. Dit geeft een ruimtelijk effect en een geborgen gevoel. In het midden is een moderne badkamer aan de ene kant en een grote ingebouwde kastenwand aan de andere zijde. De badkamer is voorzien van een ligbad, inloopdouche, wastafel en een ingebouwde spiegelkast en is dankzij een groot daklicht ruimtelijke en licht. Tevens is er een separaat toilet met fontein en een vaste kast met aansluiting voor wasmachine / droger. Vanaf de loopbrug is ook het dakterras toegankelijk.

Brouwersgracht 42 I-13
Brouwersgracht 42 I-19
Brouwersgracht 42 I-20
Brouwersgracht 42 I-30
Brouwersgracht 42 I-27
Brouwersgracht 42 I-22

De buitenruimte
Het dakterras aan de achterzijde is ruim van opzet en biedt ruimte aan een zithoek en een eettafel. Vanaf het dakterras is er een leuk uitzicht over de daken van de omliggende panden en is er gedurende de dag volop zon. Bijzonder te noemen is de lamellenconstructie aan de buitenzijde van de glaspartij van het huis. Deze lamellen zorgen voor een gefilterd licht binnen, maar geven ook een bijzonder fraai aanzicht vanaf het dakterras richting het appartement.

Brouwersgracht 42 I-26
Brouwersgracht 42 I-24

Het pand
Een rijksmonument, oorspronkelijk uit 17e eeuw, doch uitgebreid en verbouwd in de negentiende eeuw met een rechte lijstgevel en een kapconstructie. Het monumentennummer is 756.

Begin 1900 is de onderpui voor de laatste keer aangepast zoals deze op dit moment nog steeds is.
Een met hout uitgevoerde indeling met deuren, glas en glas en lood. Typerend voor die tijd qua smaak en mode.
De laatst bekende zakelijke gebruiker van het pand is meubelfabriek De Zeeuw. In 2007 heeft er een grote renovatie en modernisering plaatsgevonden, waarbij het bovenhuis is gemaakt in de huidige situatie, installaties en staat. Sindsdien is het goed onderhouden.

Thans is het pand in gebruik als een verhuurbare bedrijfsruimte op de begane grond, een bovenhuis dat uit twee zelfstandige eenheden bestaat, op de eerste verdieping en de twee lagen met het dakterras. Een nieuwe eigenaar kan dit uiteraard naar eigen inzicht en behoefte een andere invulling geven.

Brouwersgracht 42 I-56

De omgeving
De Brouwersgracht ligt aan het begin van de Singel, Heren-, Keizers- en de Prinsengracht, dit deel is dynamisch en samen met de Herenmarkt vormt het een van de mooiere delen van de grachtengordel.

De historische Brouwersgracht is een prachtige centrale locatie en ligt in een levendig gedeelte van het centrum. Omringd door de Jordaan, de Haarlemmerdijk, de Dam en het Centraal Station, is hier altijd iets te beleven. Trendy winkels, gezellige cafés en restaurantjes zoals Toscanini, Duende, Café Winkel 43, Vrouw met de baard en Café Thijssen. De Noordermarkt is om de hoek met op maandag en zaterdag de biologische markt. Ook het Westerpark met aanpalende natuurgebieden is vlakbij. Boodschappen kunt u doen op loopafstand bij de Albert Heijn, Jumbo, Marqt en diverse kleine speciaalzaken op Herenstraat, Haarlemmerdijk en Haarlemmerstraat.
In 2007 werd de Brouwersgracht niet voor niets door lezers van Het Parool uit 150 nominaties verkozen tot de mooiste “straat” van Amsterdam.

De Brouwersgracht, geeft de perfecte balans tussen rustig wonen en de gezelligheid van het Centrum van Amsterdam.

Historische context is nog voelbaar en zichtbaar, vanaf 1612 werd vanaf de Brouwersgracht de grachtengordel in zuidelijke richting gegraven. De gracht dankt sinds 1594 zijn naam aan de vele bierbrouwerijen die in de zestiende en zeventiende eeuw in deze buurt waren te vinden. Vanaf 1782 zit aan de Brouwersgracht bij de Driehoekstraat de laatste Amsterdamse distilleerderij van jenever en likeuren: De Ooievaar. De meeste pakhuizen, gebouwd voor de opslag van goederen, zijn omgebouwd tot woonhuizen.

Voor het basisonderwijs is op loop afstand op Herengracht 34 OBS De Burght. Ook de Theo Thijssenschool en 14e Montessorie in de Jordaan zijn op loopafstand.

Bereikbaarheid
Een centrale locatie waarbij er meerdere routes de stad uit en in zijn wat het makkelijk aan te rijden maakt. Via de achterzijde van het Central Station en langs het IJ zijn Amsterdam noord, west en oost en de Ring eenvoudig bereikbaar. Zeker zo belangrijk is dat het Centraal Station op loopafstand is met als knooppunt de Metro, buslijnen en (internationale) treinverbindingen.

De bijzonderheden
• Gebruiksoppervlakte wonen ca. 263 m²
• Dakterras
• Gelegen op eigen grond
• Rijksmonument / Zie monumenten.nl tbv rijkssubsidie op groot onderhoud.
• Rijksbeschermd stadsgezicht
• Drie afzonderlijke gebruikseenheden, formeel 1 woning en 1 bedrijfsruimte, met veel mogelijkheden om het pand anders in te delen

1013 GW Brouwersgracht 42 I-51
1013 GW Brouwersgracht 42 I-55
Kenmerken
Brouwersgracht 42, Amsterdam
Vraagprijs
  • € 2.300.000 k.k.
Beschikbaarheid
  • In overleg
Vertrekken
  • 5 kamers
  • 2 slaapkamers
  • 2 badkamers
Onderhoud
  • Intern: Goed
  • Extern: Goed
Oppervlakten & Inhoud
  • Woonoppervlakte: 263 m²
Bouwjaar
  • 1789
Installaties
  • Mechanische ventilatie
  • Natuurlijke ventilatie
  • TV kabel
Ligging
  • Aan water
  • In centrum
Parkeren
  • Betaald parkeren
  • Openbaar parkeren
  • Parkeervergunningen
Type verwarming
  • CV Ketel
Type warmwater
  • CV Ketel
Bestemming
  • Woonruimte
Eigendomssoort
  • Volle eigendom
Buitenruimte
  • Geen tuin
  • Dakterras
Kadastraal
  • Gemeente: Amsterdam
  • Sectie: M
  • Nummer: 6950
Duurzaamheid
  • Dakisolatie
  • Gedeeltelijk dubbel glas
Soort
  • Grachtenpand
  • Tussenwoning
  • Woonhuis
Bijzonderheden
  • Beschermd stads of dorpsgezicht
  • Monumentaal pand
Overige kenmerken
  • OZB ('22) € 596,40 per jaar
  • Rioolrecht ('22) € 152,50 per jaar
Plattegrond
Brouwersgracht 42, Amsterdam
AM103740-1721693-Brouwersgracht-42,-Amsterdam-129725445
AM103740-1721693-Brouwersgracht-42,-Amsterdam-129725449
AM103740-1721693-Brouwersgracht-42,-Amsterdam-129725452
AM103740-1721693-Brouwersgracht-42,-Amsterdam-129725454
AM103740-1721693-Brouwersgracht-42,-Amsterdam-135191111
AM103740-1721693-Brouwersgracht-42,-Amsterdam-129725457
AM103740-1721693-Brouwersgracht-42,-Amsterdam-129725461
AM103740-1721693-Brouwersgracht-42,-Amsterdam-129725464
AM103740-1721693-Brouwersgracht-42,-Amsterdam-129725467
Documenten
Brouwersgracht 42, Amsterdam
Locatie
Brouwersgracht 42, Amsterdam
Eten & drinken
Screenshot-2021-02-18-at-14.49.59
RG4A9844
01
Adres
Haarlemmerstraat 9,
1013 EH Amsterdam

Bistrot neuf

Bistrot Neuf is een gezellige bistro met een modern interieur midden in het levendige Amsterdam. Het werd ooit terecht uitgeroepen tot de beste Franse zaak van Amsterdam en dat is te begrijpen. De vaste kaart staat vol Franse klassiekers zoals bouillabaisse, slakken en steak tartaar. Als een van de weinigen in Amsterdam wordt hier ook warme lunch geserveerd, maar je kan hier ook op z’n Parijs gezellig en ongecompliceerd tafelen met een goed glas wijn.

Belhamel-2019-005-HighRes-1-scaled
02
Adres
Brouwersgracht 60,
1013 GX Amsterdam

De Belhamel

Dit restaurant weet zich zowel qua locatie als qua interieur uniek te onderscheiden. Het restaurant en de bar (een echte speakeasy) hebben allebei een romantische Parijse Art Nouveau sfeer. Frans geïnspireerde klassiekers versterken deze eigen identiteit met tarte tatin van sjalotten, zilveruitjes, blauwe kaas en mosterdkaramel of pain perdu van brioche met yoghurt-sinaasappelijs. In de zomer zit je heerlijk op het terras aan de Brouwersgracht.

304780495_484810383653892_8455702289174150848_n
03
Adres
Haarlemmerstraat 91,
1013 EL Amsterdam

De Blauwe Druif

Met zijn glas-in-lood ramen en gehaakte gordijntjes zijn de deuren van Café de Blauwe Druif al open sinds 1733. Het is gevestigd vlakbij het WestIndisch Huis. Schippers die werkten voor de WIC dronken afscheid-en verwelkomt-borrels in de Blauwe Druif.

web-images-Slider01_B
04
Adres
Buiten Brouwersstraat 19h,
1013 GJ Amsterdam

Café de Vrouw met de Baard

De Vrouw met de Baard - alleen de naam is reden genoeg om hier een keertje langs te wippen. Geheel met eigen merchandise, eigen sambal en soul kookboek én playlist weet het eethuis in het centrum een stempel te zetten op de Indisch/Molukse keuken. Ookal is de Rendang het gerecht waarvoor mensen van mijl en ver komen, ook de vegetarische alternatieven met jackfruit en aubergine zijn meer dan de moeite waard. De huiskamer-achtige sfeer geeft het geheel een echt familiegevoel, wat volgens de eigenaren zelf exact het doel is van soul- en comfortfood!

05
Adres
Hekelveld 10,
1012 SN Amsterdam

CIMA Rooftop

CIMA is de rooftop bar en restaurant boven op hotel The Duyfken, met uitzicht over de daken van de binnenstad. Aan het roer staat de Mexicaanse head chef Jeniffer Calderon, die met ceviches, taco’s en shareable bites een speelse maar verfijnde keuken neerzet. Haar gerechten combineren frisse zuren, vuur en textuur, geïnspireerd op de moderne Mexicaanse eetcultuur. De cocktailkaart versterkt die energie, met de beroemde ‘taptails’ ontwikkeld door de Belgische mixoloog Paul Morel.

DSCF8342_0
06
Adres
Martelaarsgracht 2,
1012 TP Amsterdam

Café Karpershoek

Café Karpershoek is een van de oudste kroegen van Amsterdam. In 1606 was de Karpershoek een herberg aan het IJ voor de zeelui van de VOC. Vandaag de dag is de Karpershoek een authentieke ‘bruine kroeg’.

275279450_339994221480681_7545304616695200098_n
07
Adres
Martelaarsgracht 5,
1012 TM Amsterdam

Arca

‘Portugees comfortfood dat naar een verfijnd niveau wordt opgewaardeerd en vaak met een Aziatische toets extra diepgang krijgt. Baby inktvisjes krijgen in een heerlijk tempurabeslag extra beet, worden bestrooid met zeezout en gemalen zeewier, en geserveerd met frisse en lichte koriandermayonaise. Bacalhau à brás of gezouten kabeljauw krijgt gemengd met dungesneden frieten, eigeel, peterselie en zwarte olijven gelijke een steak tartaar een verfijnde smaaklift en zalige textuur.’

08
Adres
Herenstraat 14,
1015 CA Amsterdam

Max restaurant

Max, geboren in Jakarta, leerde de basis van zijn moeder die kok was. Verwacht geen Indonesische nostalgie, maar een eigen, lichtvoetige interpretatie van de Indische keuken. Het interieur is huiselijk maar niet tuttig.  MAX voelt als een eerbetoon aan de familiegeschiedenis van de chef, maar ook als een restaurant dat volledig in het hier en nu staat.

Schermafbeelding 2022-05-18 om 17.31.24
09
Adres
Herenstraat 22,
1015 CB Amsterdam

Linguini

Essentieel in de Italiaanse keuken is simpliciteit: zolang de ingrediënten goed zijn heb je niet veel nodig. “Less is more”. Dat hebben ze bij Linguini in de Herenstraat goed begrepen. Het interieur ademt het Italiaanse dolce vita-gevoel: sfeervolle oude tegels en een mooie lange bank als eyecatcher: Linguini is een knusse en warme trattoria, met oog voor detail. De kaart is klein en bestaat voornamelijk uit pasta. Deze bestel je of in een kleine portie (voor één persoon), of op z’n Italiaans in een grote pan voor de ‘famiglia’. Pasta, pasta, pasta dus. Allemaal bereid met liefde en passie door de Italiaanse ‘pasta maestro’ genaamd Lorenzo Isidoro.

Boek-Jordaan-1965
10
Adres
Prinsengracht 2,
1015 DV Amsterdam

Het Papeneiland

Het huidige pand van het café komt uit 1642. Aan het begin van de Prinsengracht bevond zich in de 17de eeuw op nummer 7 een katholieke schuilkerk en deze was via een tunnel verbonden met het pand op de hoek. De ingang van de tunnel bevindt zich nog altijd in de kelder van het café. ’T Papeneiland werd wereldnieuws toen Bill Clinton bij zijn bezoek aan Amsterdam de zelfgebakken appeltaart kwam proeven. Ga langs en beoordeel zelf.

Schermafbeelding 2023-01-23 om 15.38.06
11
Adres
Noordermarkt 7,
1015 MV Amsterdam

Domenica

Domenica betekent Zondag in het Italiaans. DE dag om samen te komen en uitgebreid te tafelen, maar dat kan natuurlijk ook de rest van de week! Chef Flavio Carestia (vroeger werkzaam als chef bij Toscanini) kookt hier met super verse ingrediënten Italiaanse klassiekers, maar ook andere gerechten uit de Europese keuken. Ook de wijnkaart is van een buitengewone goede kwaliteit. De ligging van dit restaurant, aan de Noordermarkt (de voormalige locatie van Bordewijk), is natuurlijk onovertroffen.

319408347_417837573801667_7292054601011003106_n
12
Adres
Hasselaerssteeg 1,
1012 LG Amsterdam

Brasserie Carstens

Brasserie Carstens is heropend in september 2022, met chef-kok Jeroen Bruinsma aan het roer. Deze centraal gelegen brasserie biedt een moderne stadse sfeer, uitstekende service en verse Nederlandse ingrediënten. Van donderdag tot en met zondag kun je genieten van lokale en seizoensgebonden gerechten, zowel voor vleesliefhebbers als vegetariërs. Carstens biedt ook een driegangenmenu vanaf €39,-. Wijnliefhebbers kunnen kiezen voor een wijnarrangement.

398866851_2084725278550009_2045391366418278164_n
416522940_603820108545118_3960406295925336014_n
13
Adres
Prinsenstraat 16h,
1015 DC Amsterdam

OSLO

Bij OSLO Amsterdam omarmen ze met toewijding de Scandinavische filosofie. Het gebak wordt met zorg vervaardigd, strevend naar het perfecte balans tussen zoet en verfijning, bevredigend zonder enige overdaad. Het resultaat is een  combinatie van complexiteit, maar toch toegankelijk voor iedereen. Bij OSLO maken ze gebruik van uitsluitend organische en biodynamische ingrediënten in hun bakproces, waarmee ze niet alleen heerlijke gebakjes creëren, maar ook de aarde een beetje beter achterlaten.

441602528_1254855125493335_5971456061780795851_n
14
Adres
Lindengracht 31,
1015 KB Amsterdam

Enté

Een combinatie van een bruine kroeg en een restaurant. Dat was het uitgangspunt van Natalie Kouwen en Tim Werners.  Chef Joris van Dijk (o.a. voorheen Rijsel) kookt hier geen gemiddelde daghap maar eerder culinair comfortfood. Binnen of buiten aan de Lindegracht middenin de Jordaan eert je hier bijvoorbeeld en onder andere zelfgedraaide braadworst met piccalilly, knolselderij met salsa verde of een gebraiseerde konijnenpoot.

15
Adres
Prinsenstraat 20,
1015 DD Amsterdam

Christiaan Smit

Christiaan Smit is een intiem restaurant in de Jordaan, gevestigd aan de Prinsenstraat 20 in Amsterdam. Het biedt een 4- of 5-gangendiner, met de mogelijkheid om à la carte te bestellen. Onder leiding van chef-kok Simon van Lith ligt de focus op seizoensgebonden gerechten met vlees, vis en lokale producten, zoals langoustines en dry-aged vis. Sommelier Abel van Schoonhoven verzorgt bijpassende wijnen. Het interieur, geïnspireerd op Engelse pubs, straalt comfort en gezelligheid uit. Met ruimte voor 30 gasten en een binnentuin biedt het restaurant een warme sfeer. De naam is een eerbetoon aan Christiaan Smit, een historische kargadoor uit Amsterdam, bekend als "Kikkie van de Prinsensluis". Het restaurant combineert hoogwaardige gerechten met een vleugje Amsterdamse geschiedenis, ideaal voor een culinaire avond in een bijzondere setting.

Schermafbeelding 2022-05-18 om 17.11.04
16
Adres
Prinsenstraat 22,
1015 DD Amsterdam

Café De Klepel

In 2013 veranderde eigenaar Maureen Café de Klepel van een klassieke bruine kroeg in een wijncafé waar Franse wijn centraal staat. Chefs Ewout Lindenhovius en Rudolf Brand serveren dagelijks een wisselend menu van 3 of 4 gangen. De wijnkaart is volledig Frans en wordt begeleid door een sterk team van sommeliers dat de kaart tot in detail kent. Er staan meer dan 300 verschillende flessen op de kaart en elke avond schenken ze zo’n 25, steeds wisselende, wijnen per glas.

279508919_1412880715841289_4687270343439268000_n
295771871_1466924723770221_5169999350187462603_n
17
Adres
Prinsenstraat,
1015 DD Amsterdam

Kikkie van de Prinsensluis

Op de hoek van de Prinsenstraat en de Prinsengracht ligt dit café restaurant. Er is een ruim terras met een ruime selectie natuurwijnen. Het is een ideale plek voor een borrel die overloopt in een lange avond met gerechtjes die het niveau van barhapjes ruim ontstijgen. In het weekend kan je terecht voor een lekkere lunch, dat betekent  huis-gerookte Pastrami vanaf 12:00 net zoals de smashburger en meer kleine gerechtjes.

Boodschappen
PGBIG15-1010×505-1
18
Adres
Haarlemmerstraat 80,
1013 EV Amsterdam

Petit Gâteau

Petit Gâteau is een échte Franse patisserie aan de Haarlemmerstraat in Amsterdam. Alles wordt bereid in de winkel, zichtbaar voor iedereen. Bij het aanschouwen van dit unieke concept loopt het water je in de mond. De eigenaren Meike en Patrice ontmoetten elkaar in Parijs waar Meike na haar banketbakkersopleiding een patisserie opende. Na zes succesvolle jaren in Parijs verhuisden ze naar Amsterdam om hetzelfde te doen. Bij Petit Gâteau heb je taarten in allerlei soorten en maten en kan je die taarten ook nog leren namaken in de workshops die hier worden gegeven.

1015921_365183493604749_1058351331_o
19
Adres
Haarlemmerstraat 93,
1013 EM Amsterdam

Ibericus

Sinds 2012 vertegenwoordigt Ibericus de keuken van Spanje in de Nederlandse winkelstraten. Eenmaal binnen voelt het bij Ibericus alsof je je op het Iberische schiereiland begeeft. Overal hangen hammen met de alom bekende zwarte hoeven, de Pata Negra. Je kan hier naast vleesproducten ook andere Spaanse specialiteiten kopen, van broodjes en chorizo tot een heerlijk glaasje wijn. Als je op zoek bent naar authentiek Spaans eten kan je hier het beste terecht.

DSC_3357-542×360
20
Adres
Nieuwendijk 35,
1012 MA Amsterdam

Gebroeders Niemeijer

Dat Nederland een broodcultuur heeft is geen geheim, dus gaat er niets boven een sneetje volkoren van eigen bodem. De Hartog volkorenbroden zijn een begrip in Amsterdam. Al sinds 1896 worden de tarwe gemalen in eigen maalderij. Het volkorenmeel is puur, eerlijk en veganistisch. Daarnaast kan je voor ontbijt en lunch terecht in het café van de bakkerij.

21
Adres
Lindengracht,
1015 JP Amsterdam

Lindengrachtmarkt

Als je al een appeltaart bij Winkel 43 op de Noodermarkt gegeten hebt, wandel dan even door naar de Lindenmarkt. Aan het begin vind je gelijk de heerlijke viskraam (de kibbeling of het broodje tonijnsalade zijn aanraders!) Maar niet alleen de vis, ook de notenspeciaalzaak Notjé is briljant, en het broodje Sabich van Abu Salie is er eentje die je absoluut niet mag missen.

Interieur
218608734_6463109070381616_757357937076898474_n
247864582_7138406816185168_9218306182338378760_n
22
Adres
Haarlemmerstraat 110,
1013 EW Amsterdam

Sukha

Sukha betekent 'joy of life' in het Sanskriet, en de vreugde zie je terug in het mooi ingerichte lichte pand aan de Haarlemmerstraat in Amsterdam. Het label, Atelier Sukha, maakt enkel gebruik van de puurste, meest natuurlijke materialen zoals wol, linnen, katoen, klei en kasjmier. Deze pure materialen zijn verwerkt in alle prachtige producten die de winkel aanbiedt: een assortiment van vrouwenkleding tot interieur en kunstvoorwerpen. Leuk feitje: een groot deel van de bijzondere items wordt gemaakt in Nepal.

amsterdam_860x
23
Adres
Prinsengracht 12 HS,
1015 DV Amsterdam

Pompon

Al meer dan 30 jaar maken de bloemisten van Pompon op maat gemaakte boeketten. Niet zomaar boeketten maar van de mooiste kunstbloemen. Ze stoppen de “kunst” in kunstbloemen en creëren arrangementen die zo realistisch zijn dat je bijna vergeet dat ze voor altijd meegaan. Naast de prachtige boeketten kun je hier ook terecht voor een divers assortiment aan unieke vazen.

Kunst & cultuur
artotelAmsterdamLeVoyageDansLaLune9-1920×1080
24
Adres
Prins Hendrikkade 33,
1012 TM Amsterdam

Art'otel Amsterdam kunstgalerij

De naam zegt het al, maar dit is een kunst hotel. Bijzonder is dat de exposities voor iedereen gratis zijn en elke dag toegankelijk. Het eten is voornamelijk shared dining met Aziatische inspiratie. Ze hebben hier ook lekkere cocktails. Het hotel heeft behalve exposities ook verschillende workshops en speciale evenementen. Genoeg cultuur in Art’otel Amsterdam dus, ik zou zeggen: loop even naar binnen en kijk wat er speelt!

Gevel+Kahmann+Gallery+2019
25
Adres
Lindengracht 35,
1015 KB Amsterdam

Kahmann Gallery

De Kahmann gallery aan de Lindengracht is de plek voor de fotografieliefhebber. Het tentoonstellingsprogramma van de galerie is een mix van vintage en hedendaagse fotografie en ze vertegenwoordigen het werk van bijna 30 nationaal en internationaal gerenommeerde fotografen. Daarnaast organiseren ze de fotografiebeurs Haute Photographie, dat jaarlijks plaatsvindt in februari in Rotterdam en in september in Amsterdam.

Kunstagenda juli 2025

Kunstagenda juli 2025

Uitgelicht Keizers Continental

Uitgelicht Keizers Continental

Wonen aan de Amstel, het beste van twee werelden

Wonen aan de Amstel, het beste van twee werelden

Onlangs bekeken
Bekijk het overzicht

Deze site maakt gebruik van cookies.

Voor welke cookies geef je akkoord?